New Temporary Public Housing Typology in the Basque Country: A Legislative and Design Response to the New Requirements of the 21st Century Society
Abstract
1. Introduction
2. Research Context and Background
2.1. Socioeconomic Context: Rental vs. Purchase Temporariness
2.2. Public Housing and Minimum Housing
2.3. European Social Context
2.4. Public Housing for Aging and Young People
2.5. Historical and Regulatory Background
2.6. The New Habitability Decree, AD, and SDGs
3. Materials and Methods
3.1. Analysis of Housing Regulations
3.2. Analysis of the Decree on Habitability and Contextualisation with Other European Standards
3.3. Statistic Data Sources
3.4. Analysis of Subsidised Housing Promoted by the Housing Department of the Basque Government
4. Results
4.1. Definition of the Decree and Design Conditions
4.1.1. Design Conditions of the Rooms and Units
4.1.2. Working at Home: The Flexibility of Space
4.2. Rental Regime Financing
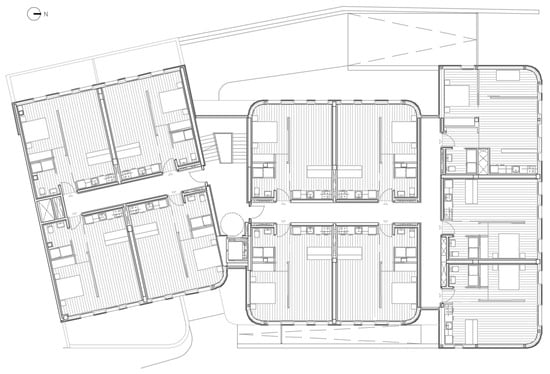
4.3. Typological Characteristics and Case Studies
Example of a Case Study Analysed
4.4. Analysis of the Risk of Overcrowding in Minimum Housing
4.4.1. Context of the Problem
4.4.2. Regulation of Overcrowding in the Habitability Decree and European Context
S (2.15) = 41.5 (m2 per person),
4.4.3. Minimum Housing in Europe
5. Discussion and Conclusions
Supplementary Materials
Author Contributions
Funding
Conflicts of Interest
References
- Constitución Española, Cortes Generales, Madrid. 1978. Available online: https://www.boe.es/buscar/act.php?id=BOE-A-1978-31229 (accessed on 17 November 2022).
- Alcocer, A.A.; Alcaraz, A.C.; Maruri, N. Lugares sin Nombre. Dignidad, Habitabilidad y Sostenibilidad, Sociabilidad y Hedonism. Temas Arquit. 2015, 18, 13–15. [Google Scholar]
- Navas-Martín, M.; Oteiza, I.; Cuerdo-Vilches, T. Dwelling in times of COVID-19: An analysis on habitability and environmental factors of Spanish housing. J. Build. Eng. 2022, 60, 105012. [Google Scholar] [CrossRef]
- Cuerdo-Vilches, T.; Navas-Martín, M.; Oteiza, I. Working from Home: Is Our Housing Ready? Int. J. Environ. Res. Public Health 2021, 18, 7329. [Google Scholar] [CrossRef] [PubMed]
- Soler-Montellano, A. Housing flexibility by spatial indeterminacy: The case of the Casa de las Flores in Madrid. Int. J. Archit. Res. Archnet 2015, 9, 4–19. [Google Scholar] [CrossRef]
- Dirección General de Arquitectura. Observatorio de Vivienda y Suelo. Boletín Especial Censo 2011—Parque Edificatorio, Madrid. 2014. Available online: https://cvp.mitma.gob.es/observatorio-de-vivienda-y-suelo-bolet%C3%ADn-especial-censo-2011-parque-edificatorio (accessed on 17 November 2022).
- Whitehead, C.; Scanlon, K. Social Housing in Europe; London School of Economics and Political Science: London, UK, 2007. [Google Scholar]
- Munárriz, Á. El Alquiler Avanza en España y ya Alcanza un Cuarto de la Población Pese al Histórico Déficit de Ayudas, InfoLibre. 2022. Available online: https://www.infolibre.es/politica/alquiler-avanza-espana-llega-cuarto-poblacion-pese-historico-deficit-ayudas_1_1216368.html (accessed on 17 November 2022).
- López-Rodríguez, D.; de los Llanos Matea, M. La Intervención Pública en el Mercado del Alquiler de Vivienda: Una Revisión de la Experiencia Internacional. Documentos Ocasionales No. 2002; Madrid, Spain. 2020. Available online: https://www.bde.es/f/webbde/SES/Secciones/Publicaciones/PublicacionesSeriadas/DocumentosOcasionales/20/Fich/do2002.pdf (accessed on 17 November 2022).
- Vasco, G. Plan Director de Vivienda 2018–2020. 2018. Available online: https://www.etxebide.euskadi.eus/x39-ovad01/es/contenidos/informacion/ovv_pdv_2018_2020/es_def/index.shtml (accessed on 23 November 2022).
- García-Astrain, P. Beyond the controversy: The draft decree of habitability and rules for the design of housing in the autonomous community of the Basque Country. Ciudad. Y Territ. Estud. Territ. 2020, 52, 139–150. [Google Scholar] [CrossRef]
- Las Mujeres Dedican el Doble de Tiempo a las Tareas Domésticas que los Hombres en la C.A.P.V., Eustat (Instituto Vasco de Estadística) Press Release. 2016. Available online: https://www.eustat.eus/elementos/ele0013200/las-mujeres-dedican-el-doble-de-tiempo-a-las-tareas-domesticas-que-los-hombres-en-la-ca/not0013296_c.html (accessed on 17 November 2022).
- Renteria, I.U. Decreto 80/2022, de 28 de junio, de Regulación de las Condiciones Mínimas de Habitabilidad y Normas de Diseño de las Viviendas y Alojamientos Dotacionales en la Comunidad Autónoma del País Vasco, Gobierno Vasco, Vitoria-Gasteiz. 2022. Available online: https://www.euskadi.eus/bopv2/datos/2022/09/2203803a.pdf (accessed on 17 November 2022).
- Clark-Foulquier, C.; Causse, E.; Newey, M.; Kaakinen, J.; Sumeghy, G.; Kulenovic, S.; Unterholzner, D.; Mallants, B.; van Vooren, D.; Nasarre-Aznar, S.; et al. 50 Out-of-the-Box Housing Solutions to Homelessness & Housing Exclusion. 2019. Available online: www.housing-solutions-platform.org (accessed on 17 November 2022).
- Moya, L. VR. Vivienda Reducida; Mairea: Madrid, Spain, 2007. [Google Scholar]
- Strandell, H.; Wolf, P. (Eds.) Key Figures on Europe. Statistics Illustrated: 2019 Edition; Publications Office of the EU: Luxembourg, 2019. [Google Scholar] [CrossRef]
- Censos de Población y Viviendas 2011. Resultados Definitivos. 2011. Available online: https://www.ine.es/censos2011_datos/cen11_datos_microdatos.htm (accessed on 17 November 2022).
- Encuesta Continua de Hogares (ECH). Año 2020., Nota de Prensa Del Instituto Nacional de Estadística. 2021, pp. 1–9. Available online: https://www.ine.es/prensa/ech_2020.pdf (accessed on 17 November 2022).
- Alokabide. Sociedad pública de alquiler del Gobierno Vasco, (n.d.). Available online: https://www.alokabide.euskadi.eus/inicio (accessed on 23 November 2022).
- Bizigune, P. Tranquilidad. Seguridad. Confianza. Manual de la Persona Propietaria, Alokabide. (n.d.). Available online: https://www.alokabide.euskadi.eus/contenidos/informacion/aa10_documentos/es_def/adjuntos/bizigune/Informacion-del-programa-y-manual/Manual-de-la-personas-propietaria-ES.pdf (accessed on 23 November 2022).
- Censos de Población y Viviendas 2001. Resultados definitivos. 2001. Available online: https://www.ine.es/censo/es/inicio.jsp (accessed on 17 November 2022).
- Kotzeva, M. Eurostat Regional Yearbook 2021 Edition. Luxembourg. 2021. Available online: https://op.europa.eu/en/publication-detail/-/publication/b95b8f93-227b-11ec-bd8e-01aa75ed71a1/language-en (accessed on 17 December 2022).
- Mendiola, A. Euskadi Cuenta con el Segundo Parque Público de Vivienda en Alquiler más Importante de España, Crónica Vasca. 2020. Available online: https://www.cronicavasca.com/economia/euskadi-cuenta-con-segundo-parque-publico-vivienda-en-alquiler-mas-importante-espana_416712_102.html (accessed on 17 November 2022).
- Renteria, I.U. Ley 3/2015, de 18 de Junio, de Vivienda., Parlamento Vasco—Eusko Jaurlaritza, Vitoria-Gasteiz. 2015. Available online: https://www.boe.es/diario_boe/txt.php?id=BOE-A-2015-7802 (accessed on 17 November 2022).
- Markuartu, J.I. Ley 2/2006, de 30 de Junio, de Suelo y Urbanismo., Parlamento Vasco—Eusko Jaurlaritza, Vitoria-Gasteiz. 2006. Available online: https://www.boe.es/buscar/doc.php?id=BOE-A-2011-17400 (accessed on 17 November 2022).
- The Sustainable Development Agenda—United Nations Sustainable Development, (n.d.). Available online: https://www.un.org/sustainabledevelopment/development-agenda/ (accessed on 20 December 2022).
- THE 17 GOALS|Sustainable Development, (n.d.). Available online: https://sdgs.un.org/goals (accessed on 20 December 2022).
- Goal 6|Department of Economic and Social Affairs, (n.d.). Available online: https://sdgs.un.org/goals/goal6 (accessed on 20 December 2022).
- Goal 7|Department of Economic and Social Affairs, (n.d.). Available online: https://sdgs.un.org/goals/goal7 (accessed on 20 December 2022).
- Goal 11|Department of Economic and Social Affairs, (n.d.). Available online: https://sdgs.un.org/goals/goal11 (accessed on 20 December 2022).
- An Urbanizing World. Global Report on Human Settlements 1996; Oxford University Press, 1996. Available online: https://mirror.unhabitat.org/downloads/docs/GRHS.1996.0.pdf (accessed on 19 December 2022).
- Arriola, I. ORDEN de 3 de Noviembre de 2010, del Consejero de Vivienda, Obras Públicas y Transportes, Sobre Determinación de los Precios Máximos de las Viviendas de Protección Oficial, Gobierno Vasco, Vitoria-Gasteiz. 2010. Available online: https://www.euskadi.eus/y22-bopv/es/p43aBOPVWebWar/VerParalelo.do?cd2010005448 (accessed on 17 November 2022).
- Arriola, I. ORDEN de 30 de Junio de 2022, del Consejero de Planificación Territorial, Vivienda y Transportes, Sobre Determinación de los Precios y Rentas Máximas de las Viviendas de Protección Pública y el Canon de los Alojamientos Dotacionales, Gobierno Vasco, Vitoria-Gasteiz. 2022. Available online: https://www.euskadi.eus/bopv2/datos/2022/07/2203202a.pdf (accessed on 17 November 2022).
- Ley 7/1985, de 2 de abril, Reguladora de las Bases del Régimen Local, Jefatura del Estado, Madrid. 1985. Available online: https://www.boe.es/buscar/act.php?id=BOE-A-1985-5392 (accessed on 23 November 2022).
- When do Young People Leave the Nest? Eurostat—Estimated Average Age of Young People Leaving the Parental Household by Sex. 2021. Available online: https://ec.europa.eu/eurostat/web/products-eurostat-news/-/edn-20210812-1 (accessed on 17 November 2022).
- Censos de Población y Viviendas 1991. Resultados Definitivos. 1991. Available online: https://www.ine.es/censo91/es/inicio.jsp (accessed on 17 November 2022).
- Viviendas y Edificios, (n.d.). Available online: https://www.eustat.eus/estadisticas/opt_0/tema_437/ti_Viviendas_y_Edificios/temas.html (accessed on 23 November 2022).
- Gobierno de España, Real Decreto Legislativo 7/2015, de 30 de Octubre, Por el Que se Aprueba el Texto Refundido de la Ley de Suelo y Rehabilitación Urbana, Gobierno de España. 2015. Available online: https://www.boe.es/buscar/doc.php?id=BOE-A-2005-12049 (accessed on 17 November 2022).
- Markuartu, J.I. Decreto 68/2000, de 11 de Abril, Por el que se Aprueban las Normas Técnicas sobre Condiciones de Accesibilidad de los Entornos Urbanos, Espacios Públicos, Edificaciones y Sistemas de Información y Comunicación, Gobierno Vasco, Vitoria-Gasteiz. 2000. Available online: https://www.legegunea.euskadi.eus/eli/es-pv/d/2000/04/11/68/dof/spa/html/webleg00-contfich/es/ (accessed on 18 November 2022).
- CTE DB SUA—Seguridad de Utilización y Accesibilidad, Ministerio de Transportes, Movilidad y Agenda Urbana, Madrid. 2022. Available online: https://www.codigotecnico.org/pdf/Documentos/SUA/DBSUA.pdf (accessed on 18 November 2022).
- Paricio, I. La Norma o la Vida, Arquitectura Viva. 2007, p. 21. Available online: https://arquitecturaviva.com/publicaciones/av/vivienda-normal (accessed on 17 November 2022).
- Rico-Martínez, J.; González-Quintial, F. Habitar en Madera. Guía Para la Construcción en Madera de Alojamientos Dotacionales, 1st ed.; Servicio Editorial de la Universidad del País Vasco: Leioa, Spain, 2022. [Google Scholar]
- World Health Organization (WHO). Recommendations to Promote Healthy Housing for a Sustainable and Equitable Future. 2018. Available online: https://www.who.int/publications/i/item/9789241550376 (accessed on 23 November 2022).
- Children Living in Homes with Problems of Damp. 2009. Available online: https://www.euro.who.int/__data/assets/pdf_file/0005/97007/3.5.-homes-with-problems-with-damp-EDITING_layouted_V2.pdf (accessed on 23 November 2022).
- Deaths Involving COVID-19 by Local Area and Socioeconomic Deprivation—Office for National Statistics, (n.d.). Available online: https://www.ons.gov.uk/peoplepopulationandcommunity/birthsdeathsandmarriages/deaths/bulletins/deathsinvolvingcovid19bylocalareasanddeprivation/latest (accessed on 23 November 2022).
- Inside Housing—News—Overcrowding has Affected Households’ Ability to Protect Themselves during Pandemic, Study Finds, (n.d.). Available online: https://www.insidehousing.co.uk/news/news/overcrowding-has-affected-households-ability-to-protect-themselves-during-pandemic-study-finds-69086 (accessed on 23 November 2022).
- Better Housing is Crucial for our Health and the COVID-19 Recovery—The Health Foundation, (n.d.). Available online: https://www.health.org.uk/publications/long-reads/better-housing-is-crucial-for-our-health-and-the-covid-19-recovery#lf-section-110861-anchor (accessed on 23 November 2022).
- Curl, A.; Kearns, A. Can housing improvements cure or prevent the onset of health conditions over time in deprived areas? Environmental health. BMC Public Health 2015, 15, 1191. [Google Scholar] [CrossRef] [PubMed]
- Holt-Lunstad, J.; Smith, T.; Baker, M.; Harris, T.; Stephenson, D. Loneliness and Social Isolation as Risk Factors for Mortality: A Meta-Analytic Review. Perspect. Psychol. Sci. 2015, 10, 227–237. [Google Scholar] [CrossRef] [PubMed]
- Brandily, P.; Brébion, C.; Briole, S.; Khoury, L. A Poorly Understood Disease? The Unequal Distribution of Excess Mortality Due to COVID-19 Across French Municipalities*. MedRxiv 2020. [Google Scholar] [CrossRef]
- The state of Housing in Europe in 2021|Housing Europe, (n.d.). Available online: https://www.housingeurope.eu/resource-1540/the-state-of-housing-in-europe-in-2021 (accessed on 23 November 2022).
- Is your Home too Crowded?—Products Eurostat News—Eurostat, (n.d.). Available online: https://ec.europa.eu/eurostat/web/products-eurostat-news/-/ddn-20200422-1 (accessed on 23 November 2022).
- Gove, W.; Hughes, M.; Galle, O. Overcrowding in the Home: An Empirical Investigation of Its Possible Pathological Consequences. Am. Soc. Rev. 1979, 44, 59. [Google Scholar] [CrossRef]
- Loi du 9 Septembre 1975 sur le Logement, Canton de Vaud, Lausanne. 1975. Available online: https://www.vd.ch/fileadmin/user_upload/themes/vie_privee/logement/fichiers_pdf/directive_1-3_lineaire_cond-techniques_lineaire.pdf (accessed on 23 November 2022).
- Ordonnance Concernant la Surface Nette Habitable, le Nombre et la Dimension des Pièces (programme), L’aménagement de la Cuisine et L’équipement Sanitaire du 12 mai 1989 (Etat le 1 er Janvier 2013), Le Département Fédéral de L’économie, de la Formation et de la Recherche. 1989. Available online: https://fedlex.data.admin.ch/filestore/fedlex.data.admin.ch/eli/cc/1989/1202_1202_1202/20130101/fr/pdf-a/fedlex-data-admin-ch-eli-cc-1989-1202_1202_1202-20130101-fr-pdf-a.pdf (accessed on 23 November 2022).
- Code de la Construction et de L’habitation—Légifrance, (n.d.). Available online: https://www.legifrance.gouv.fr/codes/id/LEGITEXT000006074096/ (accessed on 23 November 2022).
- Blake, K.; Kellerson, R.; Simic, A. Measuring Overcrowding in Housing, Fairfax. 2007. Available online: https://www.huduser.gov/publications/pdf/measuring_overcrowding_in_hsg.pdf (accessed on 23 November 2022).
- Otaegi, J.; Hernández, R.; Oregi, X.; Martín-Garín, A.; Rodríguez-Vidal, I. Comparative Analysis of the Effect of the Evolution of Energy Saving Regulations on the Indoor Summer Comfort of Five Homes on the Coast of the Basque Country. Buildings 2022, 12, 1047. [Google Scholar] [CrossRef]
- Vidal, I.; Otaegi, J.; Oregi, X. Thermal Comfort in NZEB Collective Housing in Northern Spain. Sustainability 2020, 12, 9630. [Google Scholar] [CrossRef]





| Type of Household | 2014 | 2015 | 2016 | 2017 | 2018 | 2019 | 2020 | % Over Total, 2020 | Change (%) |
|---|---|---|---|---|---|---|---|---|---|
| Single person | 4480.4 | 4562.4 | 4611.1 | 4663.8 | 4705.4 | 4771.4 | 4827.0 | 25.9 | +7.7 |
| Single parent | 1740.9 | 1827.7 | 1937.6 | 1907.2 | 1864.2 | 1886.8 | 1916.8 | 10.3 | +10.1 |
| Couple without children | 3962.9 | 3926.6 | 3867.3 | 3890.7 | 3915.8 | 3920.1 | 3921.3 | 21.1 | −1.0 |
| Couple with 1 child | 2954.9 | 2925.1 | 2891.9 | 2922.1 | 2954.4 | 2926.8 | 2904.1 | 15.6 | − 1.7 |
| Couple with 2 children | 2785.3 | 2785.4 | 2777.5 | 2783.0 | 2785.4 | 2765.8 | 2754.2 | 14.8 | −1.1 |
| Couple with 3 children | 588.0 | 578.3 | 564.9 | 583.2 | 589.8 | 551.6 | 548.6 | 2.9 | −6.7 |
| Two or more family nuclei | 443.4 | 405.2 | 361.1 | 354.4 | 368.4 | 375.7 | 372.9 | 2.0 | −15.9 |
| Total | 18,330.4 | 18,363.9 | 18,338.9 | 18,441.4 | 18,543.3 | 18,544.2 | 18,612.5 | 100 | +1.5 |
| Target | Target Description | New Decree [13] |
|---|---|---|
| 5.4 | Recognise and value unpaid care and domestic work through the provision of public services, infrastructure, and social protection policies and the promotion of shared responsibility within the household and the family as nationally appropriate | Article 3 |
| 7.1 | By 2030, ensure universal access to affordable, reliable, and modern energy services | Article 3, I-B.5 |
| 7.2 | By 2030, substantially increase the share of renewable energy in the global energy mix | |
| 11.1 | By 2030, ensure access for all to adequate, safe, and affordable housing and basic services, and upgrade slums | I-A.1, I-A.3, I-A.4, I-B.1, I-B.2, I-B.3, I-B.4 |
| 11.3 | By 2030, enhance inclusive and sustainable urbanisation and capacity for participatory, Integrated, and sustainable human settlement planning and management in all countries | Article 3 |
| 11.7 | By 2030, provide universal access to safe, inclusive, and accessible green and public spaces, in particular for women and children, older persons, and persons with disabilities | Article 3 |
| Room Depth | Open to Exterior | Open to Patios, etc. |
|---|---|---|
| <4 [m] | 10 [%] | 15 [%] |
| ≥4 [m] | 15 [%] | 20 [%] |
| Type of Household | N Bedr. | N Bath. | K | K+E | E | E+C | E+C+K | Storage | Area Min. | Area Max. |
|---|---|---|---|---|---|---|---|---|---|---|
| AD | 1 (ECKH) | 1 | 7 | 11 | 13 | 14 | 20 | 1.95 | 20 | 25 |
| 1 (ECK+H) | 1 | 7 | 11 | 13 | 14 | 20 | 1.95 | 25 | 45 | |
| 2 | 1 | 8 | 13 | 14 | 16 | 22 | 3.90 | 40 | 60 | |
| VPO | 3 | 2 | 9 | 14 | 16 | 18 | 24 | 5.85 | 70 | 90 |
| 4 | 2 | 10 | 16 | 18 | 20 | 26 | 7.80 | 90 | 120 | |
| 5 + | 2 | 12 | 18 | 20 | 22 | 28 | 9.75 | 90 | 120 |
| No. Bedr. | <15,000 | 15,000–21,000 | 21,000–25,000 | 25,000–35,000 | >35,000 |
|---|---|---|---|---|---|
| 1 | 150 | 200 | 250 | 300 | 350 |
| 2 | 180 | 240 | 300 | 360 | 420 |
| Living Room | Type I (1 Bedr.) | Type II (1 Bedr., Accessible) | Type III (2 Bedr.) |
|---|---|---|---|
| Hall | 3.14 | 3.37 | 4.13 |
| Bathroom | 3.76 | 6.57 | 4.35 |
| Bedroom 1 | 12.21 | 15.88 | 10.93 |
| Bedroom 2 | 0.00 | 0.00 | 9.26 |
| ECK | 23.50 | 29.76 | 24.61 |
| Balcony | 0.00 | 25.25 | 0.00 |
| Living area | 42.61 | 55.58 | 53.28 |
| Ext. space | Yes | No | No |
| Type | A (1D) | B (1D) | C (2D) | D (2D) | E (3D) | F (3D) | G (4+D) | H (4+D) |
|---|---|---|---|---|---|---|---|---|
| Occupants | 1 | 2 | 3 | 4 | 5 | 6 | 7 | 8 |
| Limit for substandard housing General | 25 | 35 | 50 | 60 | 70 | 80 | 90 | 100 |
| Limit for substandard housing Endowment | 20 | 30 | 45 | 55 | 65 | 75 | 85 | 95 |
| Minimum programme area Endowment | 20 | 25 | 40 | 40 | - | - | - | - |
| Minimum m2 per person Endowment | 20 | 12.5 | 13.33 | 10 | - | - | - | - |
| Maximum programme area General | 60 | 60 | 70 | 70 | 90 | 90 | 120 | 120 |
| Maximum programme area Endowment | 25 |
| Type | A | B | C | D | E | F | G | H |
|---|---|---|---|---|---|---|---|---|
| N rooms without K and WC | 1 | 2 | 3 | 3 | 4 | 4 | 5 | 5 |
| Occupants | 1 | 2 | 3 | 4 | 5 | 6 | 7 | 8 |
| Individual rooms | - | 14 | 24 | 28 | 36 | 40 | 48 | 52 |
| Shared rooms | - | 18 | 19 | 20 | 21 | 22 | 23 | 24 |
| Kitchen modules | 4 to 5 | 4 to 5 | 5 to 6 | 5 to 6 | 6 to 7 | 6 to 7 | 7 to 8 | 7 to 8 |
| WC and [m2] | 3 | 3 | 4.5 | 4.50 | 6.5 | 6.5 | 6.5 | 6.5 |
| WC separated | no | no | no | no | yes | yes | yes | yes |
| Minimum surface | 40 | 50 | 60 | 70 | 80 | 90 | 100 | 110 |
| Maximum surface | 40 | 55 | 66 | 77 | 88 | 99 | 110 | 121 |
| Type | A | B | C | D | E | F | G | H |
|---|---|---|---|---|---|---|---|---|
| Occupants | 1 | 2 | 3 | 4 | 5 | 6 | 7 | 8 |
| Minimum surface | 14 | 28 | 42 | 56 | 66 | 76 | 86 | 96 |
| Minimum volume | 33 | 66 | 99 | 132 | 155 | 178 | 201 | 224 |
| m2 per person | 14 | 14 | 14 | 14 | 13.2 | 12.97 | 12.29 | 12 |
| m3 per person | 33 | 33 | 33 | 33 | 88 | 99 | 110 | 121 |
| Type | A | B | C | D | E | F | G | H |
|---|---|---|---|---|---|---|---|---|
| Occupants | 1 | 2 | 3 | 3 | 4 | 4 | 5 | 5 |
| Switzerland (S) 1 | 40 | 25 | 20 | 17.5 | 16 | 15 | 14.29 | 13.75 |
| France (F) 2 | 14 | 14 | 14 | 14 | 13.2 | 12.67 | 12.29 | 12 |
| United States (US) 3 | 15.3 | 15.3 | 15.3 | 15.3 | 15.3 | 15.3 | 15.3 | 15.3 |
| Basque Country 4 | 25 | 17.5 | 16.67 | 15 | 14 | 13.33 | 12.86 | 12.5 |
| >m2 per person | 40 (S) | 25 (S) | 20 (S) | 17.5 (S) | 16 (S) | 15.3 (US) | 15.3 (US) | 15.3 (US) |
| <m2 per person | 14 (F) | 14 (F) | 14 (F) | 14 (F) | 13.2 (F) | 12.67 (F) | 12.29 (F) | 12 (F) |
| Maximum difference | 26 | 11 | 6 | 3.5 | 2.8 | 2.63 | 3.01 | 3.3 |
Disclaimer/Publisher’s Note: The statements, opinions and data contained in all publications are solely those of the individual author(s) and contributor(s) and not of MDPI and/or the editor(s). MDPI and/or the editor(s) disclaim responsibility for any injury to people or property resulting from any ideas, methods, instructions or products referred to in the content. |
© 2022 by the authors. Licensee MDPI, Basel, Switzerland. This article is an open access article distributed under the terms and conditions of the Creative Commons Attribution (CC BY) license (https://creativecommons.org/licenses/by/4.0/).
Share and Cite
Romeo-Gurruchaga, M.; Otaegi, J.; Rodríguez-Vidal, I. New Temporary Public Housing Typology in the Basque Country: A Legislative and Design Response to the New Requirements of the 21st Century Society. Architecture 2023, 3, 33-55. https://doi.org/10.3390/architecture3010002
Romeo-Gurruchaga M, Otaegi J, Rodríguez-Vidal I. New Temporary Public Housing Typology in the Basque Country: A Legislative and Design Response to the New Requirements of the 21st Century Society. Architecture. 2023; 3(1):33-55. https://doi.org/10.3390/architecture3010002
Chicago/Turabian StyleRomeo-Gurruchaga, María, Jorge Otaegi, and Iñigo Rodríguez-Vidal. 2023. "New Temporary Public Housing Typology in the Basque Country: A Legislative and Design Response to the New Requirements of the 21st Century Society" Architecture 3, no. 1: 33-55. https://doi.org/10.3390/architecture3010002
APA StyleRomeo-Gurruchaga, M., Otaegi, J., & Rodríguez-Vidal, I. (2023). New Temporary Public Housing Typology in the Basque Country: A Legislative and Design Response to the New Requirements of the 21st Century Society. Architecture, 3(1), 33-55. https://doi.org/10.3390/architecture3010002

