Pump Switching-Induced Transients in Water Distribution Networks—Preliminary Laboratory Experiments †
Abstract
1. Introduction
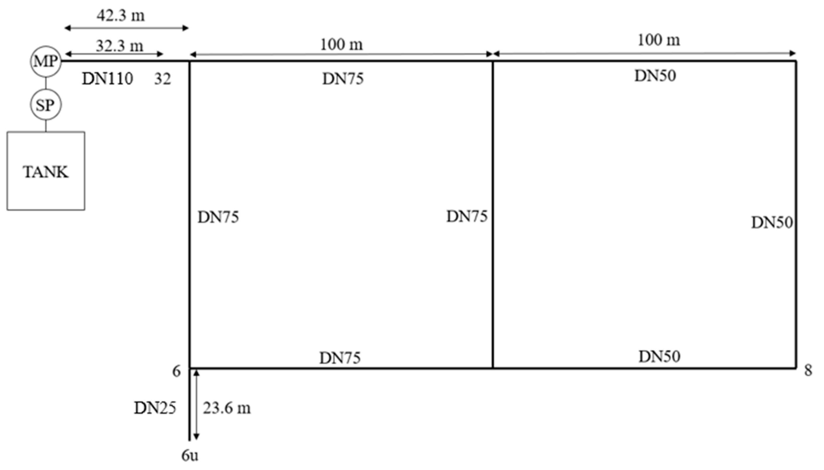
2. Experimental Setup
3. Transient Tests
4. Results
5. Conclusions
Author Contributions
Funding
Institutional Review Board Statement
Informed Consent Statement
Data Availability Statement
Conflicts of Interest
References
- Meniconi, S.; Brunone, B.; Mazzetti, E.; Laucelli, D.B.; Borta, G. Hydraulic characterization and transient response of pressure reducing valves: Laboratory experiments. J. Hydroinform. 2017, 19, 798–810. [Google Scholar] [CrossRef]
- Meniconi, S.; Maietta, F.; Alvisi, S.; Capponi, C.; Marsili, V.; Franchini, M.; Brunone, B. Consumption change-induced transients in a water distribution network: Laboratory tests in a looped system. Water Resour. Res. 2022, 58, e2021WR031343. [Google Scholar] [CrossRef]
- Marsili, V.; Mazzoni, F.; Alvisi, S.; Maietta, F.; Capponi, C.; Meniconi, S.; Brunone, B.; Franchini, M. Investigation of pressure transients induced on a real water service line by user’s activity. AQUA—Water Infrastruct. Ecosyst. Soc. 2023, 72, 2331–2346. [Google Scholar] [CrossRef]
- Haghighi, A. Analysis of transient flow caused by fluctuating consumptions in pipe networks: A many-objective genetic algorithm approach. Water Resour. Manag. 2015, 29, 2233–2248. [Google Scholar] [CrossRef]
- Bohorquez, J.; Lambert, M.F.; Simpson, A.R. Identifying head accumulation due to transient wave superposition in pipelines. J. Hydraul. Eng. 2020, 146, 04019044. [Google Scholar] [CrossRef]
- Huang, Y.; Zheng, F.; Duan, H.-F.; Zhang, Q. Multi-objective optimal design of water distribution networks accounting for transient impacts. Water Resour. Manag. 2020, 34, 1517–1534. [Google Scholar] [CrossRef]
- Bongioannini Cerlini, P.; Silvestri, L.; Meniconi, S.; Brunone, B. Simulation of the Water Table Elevation in Shallow Unconfined Aquifers by means of the ERA5 Soil Moisture Dataset: The Umbria Region Case Study. Earth Interact. 2021, 25, 1–31. [Google Scholar] [CrossRef]
- Starczewska, D.; Boxall, J.B.; Collins, R.P. A method to characterise transients from pressure signals recorded in real water distribution networks. In Proceedings of the 12th International Conference on Pressure Surges, Dublin, Ireland, 18–20 November 2015; pp. 609–623. [Google Scholar]



Disclaimer/Publisher’s Note: The statements, opinions and data contained in all publications are solely those of the individual author(s) and contributor(s) and not of MDPI and/or the editor(s). MDPI and/or the editor(s) disclaim responsibility for any injury to people or property resulting from any ideas, methods, instructions or products referred to in the content. |
© 2024 by the authors. Licensee MDPI, Basel, Switzerland. This article is an open access article distributed under the terms and conditions of the Creative Commons Attribution (CC BY) license (https://creativecommons.org/licenses/by/4.0/).
Share and Cite
Capponi, C.; Falocci, D.; Brunone, B.; Xiaodong, Y.; Chao, Y.; Meniconi, S. Pump Switching-Induced Transients in Water Distribution Networks—Preliminary Laboratory Experiments. Eng. Proc. 2024, 69, 78. https://doi.org/10.3390/engproc2024069078
Capponi C, Falocci D, Brunone B, Xiaodong Y, Chao Y, Meniconi S. Pump Switching-Induced Transients in Water Distribution Networks—Preliminary Laboratory Experiments. Engineering Proceedings. 2024; 69(1):78. https://doi.org/10.3390/engproc2024069078
Chicago/Turabian StyleCapponi, Caterina, Debora Falocci, Bruno Brunone, Yu Xiaodong, Yu Chao, and Silvia Meniconi. 2024. "Pump Switching-Induced Transients in Water Distribution Networks—Preliminary Laboratory Experiments" Engineering Proceedings 69, no. 1: 78. https://doi.org/10.3390/engproc2024069078
APA StyleCapponi, C., Falocci, D., Brunone, B., Xiaodong, Y., Chao, Y., & Meniconi, S. (2024). Pump Switching-Induced Transients in Water Distribution Networks—Preliminary Laboratory Experiments. Engineering Proceedings, 69(1), 78. https://doi.org/10.3390/engproc2024069078

