Next Article in Journal
From Archives to 3D Models: Managing Uncertainty with Paradata in Virtual Heritage
Previous Article in Journal
The Lost Golden Room Courtyard Gallery in the Alhambra: Sources, Graphic Analysis and Digital Reconstruction
 
 
Font Type:
Arial Georgia Verdana
Font Size:
Aa Aa Aa
Line Spacing:
Column Width:
Background:
Article

Star-Shaped Vaults Constructed Using Brickwork, Context and Analysis of An Architectural Type, and the Case of the Más Palace

by
Antonio Gómez-Gil
1,*,
Andrés Delgado-Pinos
2,*,
Pablo Navarro Camallonga
3,* and
José Luis Lerma García
4,*
1
Escuela Técnica Superior de Arquitectura, Departamento de Composición Arquitectónica, Universitat Politècnica de València, Camino de Vera s/n, 46022 Valencia, Spain
2
Instituto de Estudios de Régimen Seccional del Ecuador, Universidad del Azuay, Av. 24 de Mayo 7-77 y Hernán Malo, Cuenca 010204, Ecuador
3
Escuela Técnica Superior de Arquitectura, Departamento de Expresión Gráfica Arquitectónica, Universitat Politècnica de València, Camino de Vera s/n, 46022 Valencia, Spain
4
Escuela Técnica Superior de Ingeniería Geodésica, Cartográfica y Topográfica, Departamento de Ingeniería Cartográfica Geodesia y Fotogrametría, Universitat Politècnica de València, Camino de Vera s/n, 46022 Valencia, Spain
*
Authors to whom correspondence should be addressed.
Heritage 2025, 8(10), 440; https://doi.org/10.3390/heritage8100440 (registering DOI)
Submission received: 11 July 2025 / Revised: 5 October 2025 / Accepted: 10 October 2025 / Published: 21 October 2025

Abstract

This article presents the study of an architectural-constructive type located in Valencia: ribless brick vaults built with the “catalan” technique (one single brick plement approximately 5 cm thick). This is a very specific variant of the star-shaped vault, from the late 15th and early 16th centuries, of which we will examine a representative example: the vault that covers the entrance to the Mas Palace in Valencia. The methodology used is dual in nature: on the one hand, a historical study has been carried out to contextualize the typology, and on the other, a metric analysis of the Mas Palace vault has been carried out using laser scanning technology as a prominent tool. These two parts have finally been put into relationship, determining the formal correspondences that define the type, as well as the particularities of the built work. The main finding of the research is the consideration of this star-shaped vaults, not as a set of particular cases, but as a well-defined typology, which was widespread and successful in its context. We have also determined that its formal characteristics are not only due to aesthetic but also functional (stability and fire resistance) issues. This research, therefore, has allowed us to ponder the importance of a constructive solution that usually goes unnoticed and whose originality does not lie in the techniques used but in their original combination.

1. Introduction

The object of study in this article is a very specific architectural type or variant: a star-shaped vault found in Valencia in the early 16th century. This architectural and construction type presents certain distinctive characteristics: a star-shaped floor plan, a formal/structural solution without ribs, and a construction solution with a very thin, partitioned vault.
The three characteristics that define the typology are not foreign to the architectural-temporal context of the late 15th and early 16th centuries. What is unusual, however, is the combination of the three techniques. This, along with the geographical location of the preserved examples (in the former Valencian kingdom), makes these vaults a particular variant worthy of study.
Some scholars have occasionally cited some of these vaults, such as Navarro Fajardo [1] (p. 87) and Arturo Zaragozá [2] (pp. 137–140), among others. However, none have considered that this group of works reflects a well-defined variation (geometrically and constructively). This is mainly due to the appearance of the works, seemingly conventional and aesthetically characteristic of the period. This is the reason why there is almost no specific bibliography on this type of vault.
In fact, the expression “star-shaped vault” can be misleading, as it refers only to the form and primarily to its representation in plan. In this case, we are not talking about a specific architectural type but rather about possible disparate architectural solutions within a single form.
Therefore, we will develop a systematic classification of star-shaped solutions, which will allow us to distinguish groups and even establish specific typological variants, and to situate our specific variant. This process, moreover, will not be a mere taxonomy, since the term “star-shaped vault” (or tierceron vault) extends over a very broad historical period (from the 13th to the 17th century). This will also lead us to establish a series of historical/chronological questions that will help organize all the variants. And this will give us the contextual perspective necessary to discuss the relevance of both the architectural type or variant and the example analyzed.
With this, we will be able to begin analyzing a preserved example: a vault probably built in the early 16th century, located in Valencia, in the central area of the city, in the Mas Palace. Furthermore, we have had the unusual opportunity to access and observe the extrados. This has allowed us to clarify some additional constructive and functional issues that complete our understanding of the architectural type.
Thus, the object of study is defined, both as a construction typology and as a built example of a vault.

2. Methodology

The methodological system that allowed for the development of this article is composed of several processes: the study and comparative analysis of historiographical sources, the analysis of a specific built structure, and the final comparison and synthesis of both.
The historical study defines a broad overview of the typology of star-shaped vaults. This overview also incorporates a comparative study and a classification or taxonomy of star-shaped vaults. This has allowed us to locate and contextualize the specific variant we analyze.
The analysis of the built structure consists of two parts: The first part consists of a specific historical-documentary study of the built vault we analyze (the vault of the Mas Palace). The second part consists of a metric, formal, and constructive study of the vault, based on data collection using a 3D laser scanner.
The synthesis work consists of pooling all the data, verifying that the typology corresponds to the constructed example, and noting the particularities of the analyzed work and those characteristics that can be extrapolated to the typology.

3. The Star-Shaped Vault, Between the Gothic Tradition and the Southern Context

The first examples that we can define as star-shaped vaults occurred in France during the Radiant Gothic period. According to Barrón [3] (p. 222), These star-shaped vault designs date back to the 13th century, and the most notable is the transept of Amiens Cathedral (1264). We are therefore talking about the evolutionary process of the Gothic style: increasing the number of keystones and ribs and facilitating construction by reducing the number of plenums. Furthermore, the name is immediately apparent given the stonemasons’ design: two diagonals in simple vaults, hence the “cross vault”; and star-shaped in cases with multiple ribs.
However, the usual construction principle of star-shaped vaults, laid out over the course of a nave, belongs to the Germanic brick tradition—Backsteingotik—and took place in territories dominated by the Teutonic Order [3] (p. 225) in East Prussia and the present-day Baltic countries. This process gave rise to German Sterngewölbe, which were exported from these states to the rest of Europe.
Although Gothic multi-ribbed vaults were present from this time on in very diverse areas of Europe, it is difficult to establish a documented network of knowledge exchange, or to establish a single network, or one that applies to all cases. Furthermore, the very process of Gothic multiplicity is, to a certain extent, natural, and it is not difficult for different masters to arrive at the same solutions without knowing each other. As Bertachi indicates [4] (p. 138) “(…) There is no reason why we cannot assume that there has been a direct exchange of constructive knowledge beyond the national territory, especially in the case of countries strongly connected by mutual influences or relations of domination.”
Towards the 14th and 15th centuries, the Gothic system entered, to a certain extent, into a process of transformation towards complexity: a multiplicity of ribs, keystones, and the appearance of curved ribs. However, in the 15th century, and especially towards the end, this process was truncated with the appearance of architectural types that deviated from the principle of arranging ribs and plements. This is the case of English fan vaults, German diamond vaults, or Valencian groin vaults. In these cases, the form fits within the parameters of the Gothic, but the lack of ribs implies a radical change in conformation, which in some way negates this construction system and puts an end to an entire evolutionary process.
The presence of these star-shaped vaults in the Iberian Peninsula dates back relatively early, and there are already examples of constructed cases from the 14th century, some of them of notable dimensions (such as the chapter house of Valencia Cathedral). However, it was from the 15th century onwards, with the arrival of master builders from the Lower Rhine region to the Iberian Peninsula, when a profound renewal of the architecture of the kingdoms of Castile and Aragon took place. At this time, the (simpler) French models were gradually replaced by increasingly complex and sophisticated vaulted forms [5] (p. 749) [6] (p. 33) and producing certain variants that are specifically Spanish (or, rather, Castilian or Aragonese).
An important concept at this point, when speaking of star-shaped vaults composed primarily of ribs and plements, is the shape of the webs. When the shape is defined by a curved surface whose joints are perpendicular to the diagonal rib, it is called the English type [4] (p. 139). And when the shape of the web is defined by a roughly ruled surface between the ribs, or perpendicular to them, it is called the French type [7] (p. 59) (Figure 1).

4. The Crown of Aragon and the Valencian Context

At the time of the development of the late Gothic period, the boundaries of the Kingdom of Castile were limited to the Iberian Peninsula. However, the political boundaries of the Kingdom of Aragon did not correspond exclusively to the territories that remain Spanish today. At that time, the Crown of Aragon comprised the peninsular Kingdom of Aragon, the Principality of Catalonia, the Kingdom of Valencia, the island kingdoms of Sardinia and Majorca, Provence in France, the Duchies of Athens and Neopatria, and later, the kingdoms of Sicily and Naples. Different languages were spoken in these kingdoms, and sometimes different religions were practiced, with the monarch being “the only institutional link that united them. However, the existence of a common Mediterranean foundation, a strong community of interests, a well-organized chancellery, and the itinerancy of the court itself ended up shaping a shared, identifiable culture, not devoid of civic values” [8] (p. 22). During the 14th and 15th centuries, the Aragonese monarchy saw architecture as a very important element of identity, which allowed them to consolidate their kingdoms. Sometimes, the kings personally took charge of transmitting any construction innovation that occurred in any of them to all their kingdoms1. The former great kingdom of Aragon has disappeared, and its lands are now divided between Spain, Italy, France, and Greece, hence the paradoxical architectural unity found in the buildings constructed at that time.
The city of Valencia from the end of the 14th century to the end of the 15th century, largely due to the patronage of the Aragonese kings, became “a meeting point for master builders, stonemasons and designers from other places, where the exchange of knowledge took place with notable intensity” [9] (p. 79). Thus, there is evidence of the presence of important stonemasons and master builders such as Andreu Juliá (?–1381), Pere Balaguer (1335–1424), Joan del Poyo (?–1439) [10] (pp. 111–119), Pere Llobet (S. XIV) or Antoni Dalmau (S. XV) [11] (pp. 331–352). It was in this environment that the work of Francesc Baldomar (1395–1476) and Pere Compte (?–1506) would later develop.
In the Kingdom of Aragon, the construction of star-shaped vaults evolved relatively early, and in fact, examples of the earliest Spanish vaults are still preserved in these territories. On the other hand, star-shaped vaults coexisted naturally with the cross vaults typical of the Gothic style [12], and the latter continued to be used well into the 17th century2.
It should also be noted that in the Valencian context, various forms of ribbed vaulting coexisted: with stone ribs and brick ribs. Although the ribs were usually made of stone, the use of masonry as a suitable material for ribbed vaulting was widespread. Rafael Marín states that “Curiously, in Valencian territories, ribbed vaults with stone ribs and brick ribs arranged in a threaded pattern seem to have been used long before those made with stone ribs.” [13] (p. 843). Based on recent discoveries, Marín reasons that these brick-based techniques for solving plementeries would be implemented in order to reduce costs, reduce the input of materials to build the formwork (in an area where wood is scarce), prevent the risk of fires, and shorten construction times.

5. Geometry and Shape of Star-Shaped or Tierceron Vaults

The morphology of Gothic star-shaped vaults has been studied extensively and systematically by numerous researchers, among whom it is worth mentioning to Isabel Martínez Espejo [14] (pp. 275–284), Juan Carlos Navarro Fajardo [15] (pp. 245–253), José Carlos Palacios Gonzalo [5,12] (pp. 743–750), Enrique Rabasa, Ana López Mozo. All these authors agree, when studying vaults, on representing them graphically using, as far as possible, the basic principles put into practice by ancient draftsmen (in the layouts that have been preserved): definition of the plan in terms of rib or edge axes and definition of the true magnitude of each of the arches/edges/rampants that make up the vault.
This simple and effective way of representing the vaults will facilitate their classification and will be adopted later to order the morphology “under simple principles whose combination generates gradients of increasing complexity” [5] (p. 744). In this way, the star-shaped vaults will be arranged according to their layout, thus defining the shape of the floor plan, the shape of the different ribs, and finally the resolution of the plenums.
First, we will consider the plan layout of the star-shaped vaults. The first option we will consider is to align the secondary ribs (or tiercerons) on the bisector between the diagonal and the side of the square. This, developed graphically, can be obtained in a simplified manner by inscribing the square of the plan within a circle and extending the tiercerons to one of its singular points. This solution using a circle can also be achieved with rectangular plans, obtaining similar results (ad germanicum) (Figure 2).
The second option is to fix the tierceron not to the point on the circle, but to the midpoint of the opposite side (ad cuadratum). This variation is more common in Central Europe, and in Spain, it appears mainly in rectangular floor plans (where it makes less sense to use angle bisectors) [12]. Its use allows for the orderly fragmentation of the vault plan and the determination of strategic points for locating keystones or intersections of edges (Figure 3). These two rules or options (tercelet on the bisector and modulation) are not mutually exclusive and can be used together on the same vault.
Second, we will consider each of the lines corresponding to ribs or edges and establish their true magnitude on paper. Here, too, two large groups are identified. First, the general trend is the use of a single radius. That is, defining all or most of the ribs or edges as being defined by a single radius, which results in overall vault shapes that do not conform to known patterns. The other approach found is the use of different radii for different edges, which is usually due to formal issues of the vaults, such as their suitability with respect to adjacent vaults, etc. However, in this last group, there are vaults whose radii respond to another pattern, that of a spherical shape.
Thirdly, we will consider not the edges that arise from the springs, but the rampant edges, which are arranged between keystones, or between the highest points of arches. The rampant edge is of particular interest because it will help us understand the overall shape of the vault, and because in the late 15th and early 16th centuries a debate will arise about the ideal shape of vaults based on their rampant. According to Fernando Chueca Goitia, what most concerned medieval masters at this time was the rampant edge [16]. Two groups emerged among professionals, some preferring the traditional “plain rampant” style, while others favored the “modern” “round rampant.” From this point on, rampant styles were classified as “straight” or “plain” rampant styles, which run in a straight line from the two arch points or keystones, and “curved rampant styles,” which describe an arched shape rather than a straight line.
The proponents of the round rampant architecture believed that the strength of the vaults lay more in the curvature of the plenum shell than in the strength of the ribs. That is, more in the continuous, spheroidal structure than in the scaffolding of the arches [17] (p. 174). The “round rampant” also had the advantage of greater adaptability, “(…) the two rampants of the vault can be unequal, leaving full freedom to the formeros (former arches) and tiercerons to reach the heights they deem appropriate” [12]. As for the straight rampant, it should be noted that it functions as a lintelled or flat arch. And, in fact, strictly flat rampant arches are rare, as it is easier to constructively give them a slight curve (sometimes so slight that it is imperceptible) to facilitate the arrangement of the pieces.
Regarding the definition of the plements in star-shaped ribbed vaults, the main trend is the English approach, with courses perpendicular to the diagonal rib. However, sometimes the plements solution does not meet this characteristic; instead, each free space between ribs is designed in a direction that ensures the maximum support for the members, while minimizing the arching of the surfaces.

6. Construction Characterization

Discussing the construction of star-shaped or tierceron vaults in general terms is such a broad subject that it would be impossible to cover them, and it makes no sense in an article that will focus on a very specific variant. However, it is worth briefly clarifying some issues to keep in mind the construction context and the level of construction technology at this time.
When we discuss ribbed vaults, the construction sequence will be defined by the Gothic system itself (definition and construction of the formwork, placement of the stone or brick ribs, and enclosure of the space with the plement). This system, also called “Opus Francigenum,” is well known, and its use in the late Middle Ages was. In this context, it is worth mentioning the territories of the Crown of Aragon, where plementaries were frequently constructed with brick. In these regions, the “Catalan” or partitioned vault technique is commonly used. In this case, the construction process is streamlined and made faster thanks to the use of plaster [2] (p. 179).
When star-shaped vaults lack ribs, construction process must be completely redefined, regardless of the construction material used. In the field of stone construction, two examples are worth mentioning: First, the Valencian ribless vaults, whose geometry or form is characteristic of the Gothic style, but whose stereotypical conformation requires significant geometric development [9] (p. 107). Second, the Salento vaults are worth considering, since, with formal parameters relatively similar to those of Valencian vaults, their constructional resolution is completely different. These vaults are built without formwork, following a very clear construction sequence: first the perimeter arches or barrel vaults are built, which end in a cantilever, and then the remaining space (with a star-shaped plan) is filled from bottom to top with pieces that rest on both sides of each point of the star [2] (p. 145).

7. The Ribless Vaults

Towards the middle of the 15th century, a new architectural type emerged in Valencia under the master Francesc Baldomar: vaults whose form is analogous to Gothic ones but which dispense with ribs and instead solve the spatial covering with a continuous groin surface [18]. These vaults, as far as we know, were originally made of stone, and had a certain diffusion in the local area between 1440 and 1550. This new architectural variant did not distance itself from the Gothic context in the formal plane, but the change from rib to groin implied reconsidering a series of questions of the carving of the pieces and of conformation that in a certain way deny the raison d’être of the Gothic procedure [3] (p. 1). On the other hand, they are vaults that are unequivocally different from the groin vaults resulting from the meeting of cylinders.
According to Arturo Zaragozá, “ribless vaults are those formed from edges that have replaced the diagonal arches of cross vaults. The webs of these vaults can be double-curved surfaces similar to those found in gothic vaults. Visually, they seek to dematerialize the preceding and consistent ribbed cross vaults. Constructively, they attempt to construct without ribs” [19] (p. 42). This change does not represent a mere modification in the patterns of the prevailing architectural system, but rather a profound change in conception, implying a technical development comparable to the great architectural challenges achieved in the rest of Europe, and allowing for greater creative freedom [20] (p. 83).
Among the main professionals working in Valencia, experts agree in pointing to Francesc Baldomar as an innovator and his work on the Santo Domingo convent as the new constructive manifesto in which he put into practice the new architectural typology [21] (p. 186). This Mestre Piquer (master stonemason), in 1440, received the royal commission to build the tomb of the King of Aragon, Alfonso V the Magnanimous, in the convent of Santo Domingo in Valencia. This chapel (where King Alfonso was finally buried, not the Marquises of Cenete) is covered by what is considered the first great materialization of this new [22]. This work, for its part, has been the subject of study by numerous researchers [18,23] (pp. 101–116) [24] (pp. 527–534) [21,25] (pp. 187–224) [26] (pp. 129–142) [27,28] (pp. 1302–1309) (Figure 4a,b).
One of the most complex issues to address regarding groin vaults is their construction process. In cross vaults, it’s logical to establish the construction sequence of ribs with formwork, and then plenums, but this isn’t the case with the new typology. By eliminating the ribs, the surface is continuous, and in principle, the formwork element is no longer strictly necessary. Eliminating the rib forces us to work without the initial advantage that the geometric generation of the vault from the formwork provides (and sometimes for its stability). For this reason, it’s difficult to understand how these elements, theoretically without supports, maintained themselves until completion, or how they were supported.
Although there have been more recent publications [29,30] (pp. 113–131) [31,32,33], John Fichten’s 1961 book [34], On the construction of Gothic cathedrals, has become a canonical text for the question of self-stability in the construction process of the vaults. Fitchen uses a constructive approach based on common sense, trying to deduce the possible techniques of those medieval stonemasons to carry out his objective in an easy and economical way [35] (p. 1619). The author claims that those components of sufficiently large dimensions were resolved with the help of counterweights to hold the pieces together. Among current Spanish researchers who share this theory, albeit with reservations, are Arturo Zaragoza [17] and Santiago Huerta [35] (pp. 1619–1631), inter alia.
To verify the viability of Fitchen’s hypotheses, the work carried out by one of the authors of this article in his doctoral thesis [9] and subsequently published [36] has been very useful. Following this hypothesis, to execute a scale model, Navarro turned to the counterweight system proposed by Fichten for the construction of Gothic cathedral plein airs. The method applied to the experimental case was based on placing four masts at the corners of the space to be vaulted, on the already completed walls. Ropes are suspended from these masts, each with counterweights (or hooks, thus considering nuances to the English proposal). The friction caused by the pressure of these ropes or the action of the hook itself holds the vault members in place during the construction process, thus avoiding the use of formwork. The model considered that the weight remaining at the end of the rope should be approximately the same as that of the stone to be supported. Logically, the ropes must be long enough to cover the different radii that must be absorbed when placing the members of each course (Figure 5).
During the scale work, it was found that once the top of the vault is reached, the counterweights become insufficient. Based on this fact, it is hypothesized that to complete the vault, it would be necessary to build a second floor on the central platform to accommodate struts, which would serve as formwork, until the corresponding course was closed [9] (p. 178) (Figure 6).
To this architectural context we must add another group of cases that are also classified as star-shaped vaults, but which present very different characteristics with respect to what has just been explained. In the Salentine province of Lecce (former kingdom of Naples), also from the 15th century, a unique type of vaulted structure began to develop: It is called volta leccese a stella (star-shaped vault) [4] (p. 145) (Figure 7).
The abundance of stone in the area, easy to work with, provided the material for these constructions, which seek to constructively resolve the meeting of two-barrel vaults, avoiding the need for formwork [4] (p. 140). The way to resolve this situation is to extend the cantilevered “canyons” (in the shape of a point) until the central space at the intersection to be covered acquires a star shape in plan. This significantly reduces the central space and allows for its construction without formwork. This system was highly successful in its geographical area and has been in use for a long time, from the late 15th century (1481) to the present day (since this construction tradition is still maintained). However, the period of splendor of this approach is throughout the 16th and 17th centuries. Bertachi directly links this development to the presence of the Aragonese royal family and its courtiers, as well as that of the Spanish noble families and the merchants of Salentino, Veneti, Lombardy, and Genoa [7] (p. 59).
Although formal analogies can be found between these Italian and Spanish structures, the differences are evident because the Italian cases solve the problem of the meeting of two-barrel vaults (pointed or semicircular), while the Spanish ones derive from the resolution of a Gothic vault. This implies that the surface form is already different: Italian vaults are defined by radiated surfaces (the barrel vaults) and ruled surfaces (the interior star-shaped space to be covered), while Spanish star-shaped vaults (or Gothic vaults in general) are formed from ribs and webs (which, depending on the case, will have a structure and shape). For this reason, the rigging of the Salento vaults is apparently [7] (p. 59) of the French type (courses perpendicular to the arches, precisely because they are barrel vaults), and that of the Spanish vaults of the English type [4] (p. 139) (courses perpendicular to the diagonal arches, although this does not occur in all cases) (Figure 1).
It is appropriate here to summarize the main peculiarity of the Salento vaults, although their main differences with respect to the Gothic ones have already been pointed out. Gustav Adolf Breymann [37], considers the Salento vaults as a particular expression of the groin vault. The German architect attributed an independent role to star vaults, considering them a unique class [4] (p. 147). Silvia Bertachi also states that, if one studies the geometric composition of the star vault, one can see that it derives from the groin vault.

8. The Brick-Partitioning Technique Applied to Star Vaults

The vaulted, partitioned construction has been linked to the Roman architectural heritage on the peninsula and to the arrival of the Renaissance in Spain, but in recent years, it has even been possible to establish a different origin through documentation. The idea that an element of Roman roots could be resolved into the form of Muslim builders took shape when the Spanish architect and archaeologist Antonio Almagro discovered the remains of a vaulted staircase in a 12th-century Islamic house in Siyasa (Murcia) [38] (p. 762). Which leads us to affirm that in the 12th century the first brick vaults appeared in the popular construction of Shark-al-Andalus, an ancient Islamic kingdom that extended throughout the Spanish Levant3. After the certainty of the Hispano-Muslim origin, experts point to the surroundings of Xátiva, in the Valencian Costera region (border) as the place where this technique began to be applied to the construction of large, vaulted spaces, already in Christian times. There is evidence that its use moved to the kingdom of Aragon and Catalonia. From Catalonia it would be exported to Roussillon, then Aragonese and later Spanish territory, until the Treaty of the Pyrenees [39] (p. 356).
The brick vaults are those built with bricks placed on their flat face and joined with plaster both at the joints and on their faces4. Generally, two or three layers (also called falfas) are superimposed, and the bricks that form the intrados are hidden from view by a covering. This intrados covering has several names: Valencian documentation calls it llafardat, Castilian jaharrado, and Aragonese zaboyado, lavado, or espalmado [13] (p. 845) [40] (p. 368).
These vaults are light and strong, and their construction does not require large formwork, forcing the setting time of the plaster to a rapid construction [41] (p. 135) [42] (p. 68). In the Valencia area, the use of this technique can be seen as the most used in Christian times, especially in the last third of the 14th century [43] (p. 20).
Towards the end of the 15th century, almost in parallel with the stone groin vaults of the Baldomar circle, vaults emerged whose form was completely analogous to those of Mestre Piquer, but built of brick (chronologically parallel to, or at least very slightly later). This formula, which appears to translate the groin forms invented by Francesc Baldomar into brick, was extremely successful in Valencia until the mid-16th century.
Although the economic value and the ease of not needing formwork for its execution are valued, Javier Ibáñez points out that “the structural ribs and Gothic fragmentations could not disappear permanently as long as the floor plan configurations were maintained” [44] (p. 87). In fact, especially in exceptionally stretched vaults, the ribs should continue to be turned, in some way, although hidden by the extrados, to ensure stability [44] (p. 87). In this regard, it is worth recalling Thunissen’s statement: “The ribs could be placed either under the vault’s shell or between the panels, so that the shell exerted a lateral thrust on them; sometimes they protruded beyond the back of the webs” [45] (p. 169) (this is how Brunelleschi’s creste e vele vaults, built in Florence throughout the 15th century, are conceived).
Regarding the widespread use of plaster, Ibáñez emphasizes: “Instead of using stonework, the ribs used in the territories of the Crown of Aragon were usually made of plaster due to the wealth of this material in these lands and the scarcity of stone material”5. Rafael Marín also states: “The cross vaults formed by prefabricated plaster voussoirs, with a structural function and generally combined with partitioned plenums, constitute an unprecedented episode in the history of construction that can be attributed to a crossroads of technological cultures” [42] (p. 81). The technique of using plaster as a durable, rather than merely decorative, building material began to spread from the epicenter of Zaragoza throughout the Crown and continued to spread throughout the 15th century. These plasterworks could be carved, modeled, or molded, and their use also reached Valencia, where it became more widespread as the 15th century progressed [8] (p. 54). The development of this connection between vaults and plaster structures seems to be linked to the expansion of brick vaults. Its use resulted in “the lightening of roof systems and the elimination of ribs during the modern period when their constructive and ornamental role was outdated” [13] (p. 841).
Most of the groined vaults, due to their formal correspondences, can be linked in their beginnings to the same personality (Francesc Martí Biulaygua) or, at least, to the same circle [43] (p. 27).
A distinction worth making at this point is that of master stonemasons (stonemasonry) and master builders (brick construction workers). Traditionally, the work of the latter has tended to be considered secondary or of lesser importance. However, a careful examination of historical documents reveals that both trades were important and, at the very least, complementary.
This is confirmed by the case of the master Frances Martí, alias Biulaygua (1451–1484), who was the most famous master builder of the Valencian 15th century [17] (p. 153). This master is the one who, it seems, began to translate the forms invented by Baldomar in stonework, into brick [46] (p. 116). According to Mercedes Gómez-Ferrer, Francesc Martí “Biulaygua,” also known as Francisco Martínez, was the son of the master builder Jaume Martí, alias Biulaygua, and father of Galcerá Martí (who followed in his footsteps professionally). After committing a terrible crime, Biulaygua was expelled from Aragon and temporarily exiled to the kingdom of Castile (1466) [47] (p. 173).
During his exile in Castile, he found abundant work, even achieving professional renown. Serra observes that “his time in Castile had important consequences for his development, as it was only upon his return from exile that he emerged prominently in Valencian architecture, and then appeared accompanied by a team of workers of Castilian origin and his nephew, Joan Martínez” [48] (p. 15). Upon his return from exile to Valencia, his almost familial relationship with Mestre Racional (treasurers controller) Guillem Çaera enabled him to be at the head of major construction projects, both in the city and the kingdom.
Although there are several documentary sources that mention Biulaygua, his personality gains historical significance when a chapter is dedicated to him in the Valencian manuscript of the chaplain of Alfonso the Magnanimous. The work, Chronicle and Diet of the Chaplain of Alfonso the Magnanimous, was written by Melchor Miralles during a visit to Valencia, and he dedicates chapter LXIII, “De la bregua de Mestre Biulaygua,6” to him. In this chapter, he pays attention to his built work7, as well as his personal life. He describes Francesc Martí as an important and wealthy industrialist, who directed many projects and is surprised by the fact that he owned a significant number of slaves. He also attributes to him a large number of employees. According to the chaplain, “he continually had twenty young men under his command” [49].
Amadeo Serra highlights among his collaborators Bartomeu de Seville, Francisco de Toledo, the Biscayan stonemason Miguel de Alpis, Pedro de Pastrana, Pedro de Requena, Joan de Vesarril, Joan de Salcedo, Martí de Tolosa and Joan Yvarra [48] (p. 15). Among the singular works in which Biulaygua or his circle are known to have participated, there are some dependencies of the monastery of the Trinity (Valencia), of the monastery of Santa María de Valldigna (Simat de Valldigna), the cloister of the remembrances of the Carthusian monastery of Portaceli, and certain dependencies of the Carthusian monastery of Valdecristo (Altura), the choir of the church of the convent of Luchente (Valencia) and works in the monastery of San Jerónimo de Cotalba (Gandía). In addition to the vaults of the cloister of said monastery, his work on the five vaults of the sotacoro of the church is especially noteworthy (1481–1485) (According to José Manuel Barrera Puigdollers, financed by Beatriz Villaragut) [50] (p. 41) (Figure 8).
The most representative vault attributable to Biulaygua or his circle is that of the so-called Tribune of Queen Mary of Castile in the Monastery of the Trinity. It is a partitioned structure with a pentagonal floor plan, in which the brickwork is exposed and has never been plastered. In this example, the original finish of the period can be seen, perfectly resolved, without any construction errors.
Finally, it is worth mentioning some unique cases parallel to the episode of partitioned vaults in the extra-peninsular area. In the former territories of the crown of Aragon, partitioned vaults like those described can be found. This is the case of the schianciane vaults of Pescara (Kingdom of Naples), where the rigging is arranged in the English style, a solution identical to that of the Valencian groined stone vaults [43] (p. 34).
In Volterra (Tuscany, Italy) there are also partitioned vaults, called volta a foglio or volterrane [41] (p. 36). These are built with plaster and without falsework, “(…) Only at distances of about 3 m, a camones arch (lumber arch) is placed, made up of 3 cm boards: ropes are stretched between the arches with which the correct alignment is determined” [45] (p. 240). Its construction problem consists of finding out the thickness, or resistance, of the adjacent walls, so that they can withstand the lateral thrust of the vaults they support. In many cases its surface has nerves in which the thrust lines are directed and concentrated. Thunissen collects a metric relationship between the thickness of the walls that support the vault and its span, with the arrow not being less than ¼ of the span. For a Volterran vault with a span of 4.00 m, a wall thickness of 0.30 m is required, and a minimum deflection of 1.00 m is estimated.

9. The Case of the Vault of the Más Palace

When the city of Valencia was reconquered from the Muslims in the first half of the 13th century, its Roman urban layout was unrecognizable. The urban fabric was a complex network of narrow, irregularly aligned streets. During the first centuries of the “new” medieval Christian era, there was a tendency to gradually reorganize the layout through urban planning. These projects usually depended on noble families, who, once they acquired the plots of land, rebuilt the buildings to meet their changing needs [51] (p. 115). During the 14th and especially the 15th centuries, the city experienced a period of economic splendor, which led to a considerable increase in construction activity. The result in the central area of the city was a notable concentration of large houses with interior courtyards. These noble buildings, called “palau” in Valencian, can be considered small palaces, or palaces within a medieval context (somewhat removed from the later Renaissance idea) [51] (p. 200). Most of these buildings have undergone modifications over time, and only a few can document their original ownership. The case we are analyzing is not historically documented, but it is located in the most emblematic area of the city (next to the former government building, called the “Palau de la Generalitat”). The name we give the building derives from its current owners.
In Valencian civil buildings, such as palaces, most of the large rooms were covered with wooden coffered ceilings, but secondary spaces such as stables, studios, etc., were covered with brick vaults [41] (p. 145). This can be seen in the Más Palace (Figure 9, Figure 10 and Figure 11), where the halls are covered with polychrome coffered ceilings and the vestibule with a partitioned vault. The latter will be the subject of study in this work, that is, the example through which we will further explore this specific variant of the star-shaped vault.
The vault of the vestibule of the Más Palace can be dated, in the Valencian context, between the second half of the 15th century and the 16th century. Given the shape of some of the moldings at the base, like those of the Generalitat Palace, it could be said that it was built in the early decades of the 16th century.
Throughout the 15th century, the urban planning and construction activity undertaken by the Consell (Council Meeting) in the city of Valencia was very intense, and as the century progressed, the interventions on private initiative increased in number and quality, turning the city of Valencia into “a luxurious and populated city”, as described in 1484 by Nicolás de Popielovo on his visit [46] (p. 109).
The Más Palace is in a central area of the city, very close to the palace of the Generalitat, which in those years was being renovated by the masters Pere Compte and Joan Corbera [46] (p. 116). Also nearby, in front of the church of San Bartolomé, the palace of Alfonso de Aragón (1455–1513), then bishop of Tortosa, was being built.
Also nearby, work was beginning on the Borja family palace (now known as Benicarló), where Biulaygua’s presence is documented. A few years later, the Spera Tower (which housed the city’s public clock) was also built nearby, overlooking the street called the Reloj Viejo Street [52] (p. 95).
The certainty of Biulaygua’s intervention, and the presence of other recognized master builders in the area surrounding the Más Palace, together with the features of the vault we are analyzing, seem to be able to point to this master or his circle or followers as its authors.

10. Data Collection and Survey

The vault was surveyed using a Trimble TX6 laser scanner (acquired by the Department of Cartographic Engineering, Geodesy and Photogrammetry-UPV-of the Trimble company, USA) (Figure 11). The scanner has a range of up to 30 m. The capture capacity is 500,000 points per second, and its accuracy is ±2 mm. Angular coverage is 360° horizontally and 317° vertically, and it features an integrated camera system, whose information will allow the chromatic/material texturing of the scanned elements.
Not only was the vault itself scanned above the palace vestibule, but other areas (the exterior façade and the main interior spaces) were also recorded. A total of 39 scan positions were recorded (Figure 9).
In addition, reflective targets were used to facilitate the connection between shots. The data obtained was processed using the specialized software Trimble RealWorks 11.x. This program generated a three-dimensional model of the vault and the palace complex (Figure 3) (Figure 10). The linear drawing process was carried out using AutoCAD (version R25.0; Autodesk Inc., San Rafael, CA, USA), inserting the point cloud as a RECAP type reference (.rcp file obtained from .e57).

11. Formal Analysis

The vault is conceived as a four-pointed star stretched between the façade, a segmental arch, which provides access to the courtyard, and two side walls, which define the vestibule. It is clad and painted beige, and according to the owners, it previously had a brick grating finish, although this may not have been the original finish (Figure 12).
As for the breakdown of what we would call plementeries, it is difficult to determine the rigging, but, nevertheless, in some areas, it can be seen that the joint planes are perpendicular to the diagonal, which corroborates the use of the so-called “English” rigging [2] (p. 140) (similar, for example, to the vault of the Carreró of the Cathedral of Valencia) (Figure 4). To better define the vault and its section, two sections have been made from the scan, which are detailed below (Figure 13).
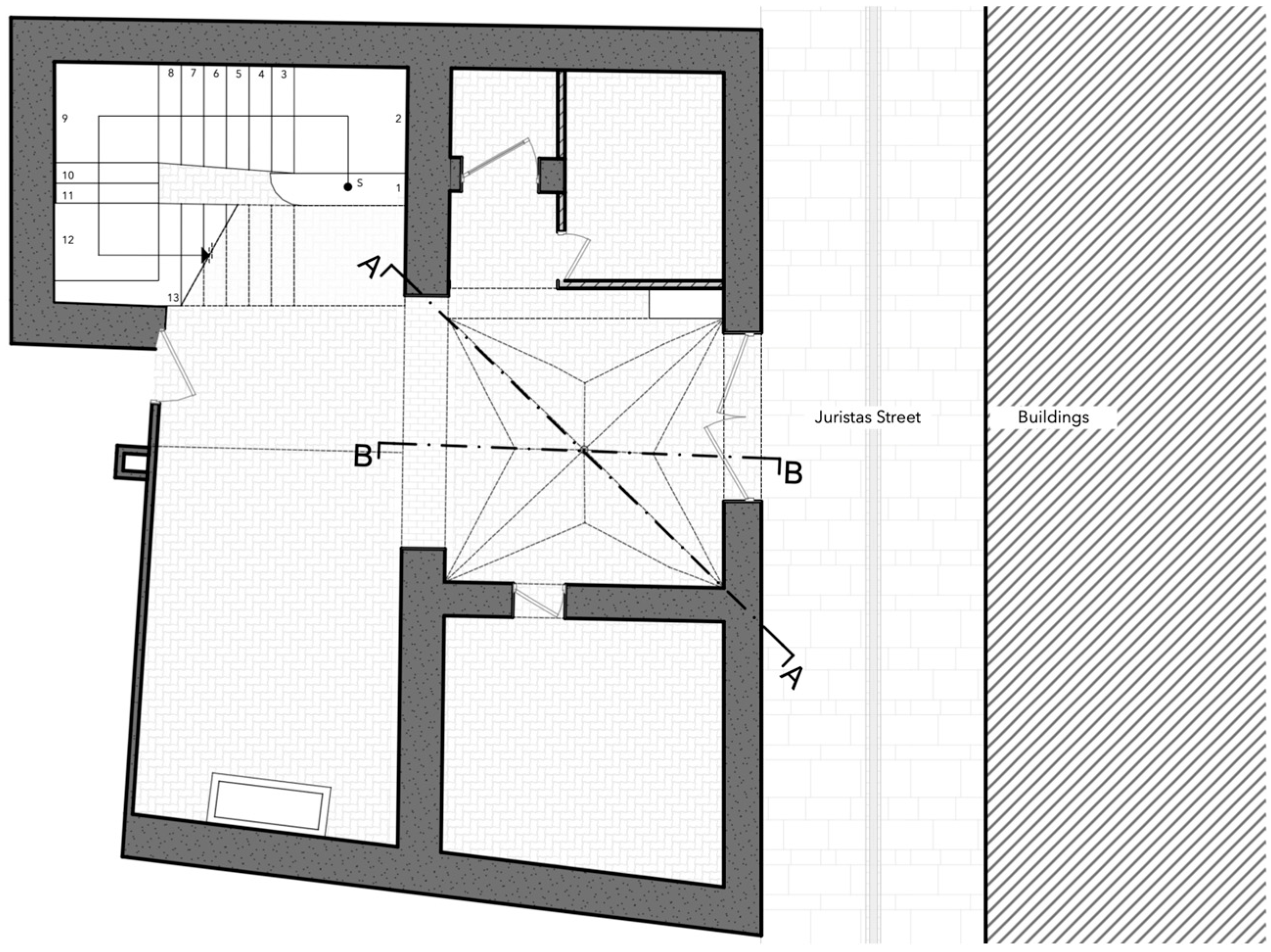
The space that forms the vestibule housing the vault, at level 0, is an approximately rectangular measuring 4.00 m × 3.75 m, with a diagonal of 5.41 m (Figure 14). It is an irregular space that is worked differently on each of its four sides (Figure 15, Figure 16, Figure 17 and Figure 18).
In the case under analysis, as mentioned above, we had the opportunity to access the extrados of the vault, observing the following characteristics: The vault of the Más Palace is not a load-bearing vault, or, in other words, it does not support any floor or flooring, but rather it closes off an interior space, separating it from the next floor by defining an intermediate, lost space between the wooden floor and the vault. This approach to building an interior enclosure can be seen in other later works with similar characteristics, such as the vaults of the cloister of the Colegio del Patriarca, which, although from a later period, follow the same tradition and feature similar construction systems.
Thanks to the kindness of the owners of the Más Palace, a test was carried out on the wall supporting the vault and above it. Through this opening, photographs were taken of the extrados of one of these partitioned vaults (Figure 19), and not only was it confirmed that it is not a load-bearing vault, but it was also possible to observe the structure and finish of the extrados, which is of enormous interest.
First, Figure 12 clearly shows that the vault’s kidneys are filled to some extent with rubble, and presumably lime mortar (or plaster, which could not be determined). Although not readily apparent, it has also been determined that the areas corresponding to the vault’s edges are “solidified” with plaster cords that seal and provide cohesion to the ceramic planes that make up the vault (Figure 20).

12. Restitution of the Trace

From the information obtained in the laser scanning process, an architectural survey of the vault space has been prepared, and a formal analysis of the same has also been carried out through the restitution of its layout, in accordance with the conventions of the treatise of drawing all its elements in true magnitude arranged on the plan (Figure 21).
When defining the vault’s layout, we will follow the same process as described in the initial taxonomy but adapting it to the dimensions of the Más Palace space. We will therefore define the irregular quadrilateral of the floor plan, and based on the survey, we will define the traceable shape used.
Since the floor plan’s shape is not excessively different from a square, the main edges, based on the laser scanner survey, correspond to the diagonal lines of the rhomboid, and the points of the “star” of the vault’s layout correspond with almost no error to the midpoints of each side. With this, the floor plan’s layout would be perfectly defined without any major problems (Figure 22).
It therefore remains to analyze the curvatures of the different edges on the survey carried out. By arranging all the edges in true magnitude on the same starting point, a clear design pattern is observed. The designer conceived the vault based on two main radii: one common to the perimeter edges of the vault, and another corresponding to the diagonals and tiercerons.
The vault’s peculiarity, that said, is that since its floor plan is not regular, the edges present certain adjustments that are somewhat difficult to detect during the survey, but which obey construction logic: The edges of each vault section should have a slightly different radius to absorb irregularities, but instead, the construction practice of the time solved the problem by raising or lowering the initial or final points of each edge until the desired height of the point was obtained. In other words, the height of the meeting points between edges (keystones, if we were talking about a ribbed vault) is established before the radius of the edges themselves. Or, an initial radius is established, corresponding to the diagonal, and with this, the rest of the vault is resolved by establishing heights for the keystones.
This process, somewhat complicated to explain, would be very simple on the construction site, and makes it unnecessary to have a perfectly defined vault plan in relation to the irregularities of the space to be covered. We are therefore talking about the constructive logic of the Gothic system applied to a distinct architectural type, but one that still owes its formal origins to medieval practices.
The result, therefore, is the image shown, which with a few lines can usefully define the totality of elements that must be built or used for the construction process (Figure 23).

13. Constructional Analysis: Functional and Aesthetic Considerations

The choice of this vault, as mentioned, does not serve a load-bearing structural function, but rather responds to other issues, namely, ornamental and functional ones. It is possible that the vault was conceived to some extent to complement the representative character of the access space it occupies but given that there are other examples of this type of vault in secondary spaces, it is more likely that the primary purpose of this vault is to conceal the wooden floor for a functional reason, such as fire prevention. Plaster is a material with relatively good fire resistance characteristics, and even more so if its purpose is to protect another element, this one a structural one.
Another question that must be addressed is the construction process or sequence, which, being partitioned, seems to be in no way other than from the bottom up. The construction sequence must have begun with the construction of the walls, that is, the perimeter. It must have then been necessary to delimit on the ground itself or on some scale plan (most likely on the ground at full scale or reduced to 1/2 or 1/3) the location where the main and secondary edges would be located. With this, the radius needed to construct small guides to control the shape of the vault during its construction process could be drawn (they would not actually be formwork, since they have no load-bearing function). Next, to begin construction, it must have been necessary to make grooves on the walls, marking the perimeter edges and bases. And with all this, the construction of the vault itself could begin from its foundations, arranging the bricks “on the board” and joining them with plaster, which, by hardening almost immediately, would allow progress at great speed [13,41].
Following Thunissen’s instructions regarding the Volterran vaults, reviewed above, the “arrow” tolerance of the Más Palace vault will be checked. In our case, the wall thicknesses that delimit the vault range from 0.50 m to 0.58 m, having to cover a span of 3.60 to 3.73. In this case in which, according to Thunissen [45] (p. 135), a minimum arrow of 0.93 m would be foreseen, the Más Palace develops an arrow of 1.48 m. Comparing with the Italian parameters for Volterran partitioned vaults, the Valencian vault falls within a wide security threshold.
Once the ridges were started, which, as in other examples in Valencia, such as the Quart Towers, usually correspond to circular arches on non-parallel planes (Vivó & Calvo López, 2010), the panels would be defined by courses that varied in orientation as they rose, adjusting to the geometry guided by the tiercerons and ties [53]. In this type of vault, the ridges replace the traditional role of the structural ribs, organizing the space without playing an explicit supporting role [27,44]. And at this point, it would be necessary to form the cords that are located on the back of the ridges with plaster to provide stability.
Once the upper areas were reached, the vault would be closed without much difficulty, and all that remained was to apply the intrados coating with a layer of fine plaster, or llafardat. This not only homogenizes the surface finish but also contributes to the fire resistance of the entire structure [8,18]. This construction system offers formal, constructive, economic, and even fireproof advantages, which explains its widespread use over a long period of time in ecclesiastical, civil, and courtly settings [42,43].

14. Findings

The main contribution of the article is the consideration of Valencian ribless star-shaped vaults as a specific typology in the field of brick construction (a separate nomenclature could be established: Valencian brick ribless vaults). These vaults are not separate examples but rather a well-defined typology with a historical history and well-established formal and construction characteristics.
In addition, the article also offers a study or taxonomy of star vaults that is useful not only for our case but also for other different ones that may be applied. Furthermore, a historical study is offered, the novelty of which lies in its application/focus on the type of vaults analyzed.
Regarding the vault analyzed, the article presents several new aspects: First, the fact that it shows a vault that does not appear in previous studies (the vault of the Más Palace). Second, the article analyzes the vault, showing its formal and constructive characteristics and peculiarities. However, these characteristics are not only applicable to the given example, but are also defining of the variant we are studying.
This last point has been made possible thanks to the 3D laser scanner survey methodology. As is well known, this technology is not new today, but it should be noted that it has been tested and its use has proven to be very useful.

15. Conclusions

The most important conclusion arises from identifying valencian star-shaped groin vaults as a specific type. This article not only establishes this fact but also details some extremely interesting construction aspects. First, this article confirms that these vaults conform to the formal parameters of Gothic star-shaped or tierceron vaults. Second, it determines that the brick construction technique is partitioned or “Catalan style.”
This fact is of great interest, as the construction system defined offers multiple advantages: speed of construction due to the use of plaster, cost savings compared to stone vaults, fire resistance (remember that the vault analyzed does not support the slab above), and rigidity due to the folded shape of the star-shaped vaults. All these characteristics lead to the conclusion that the typology was a success.
This set of advantages, as well as the success of the type, should be taken as a starting point for more extensive future research, in which a catalog of all preserved vaults can be compiled. This will allow for the geographic scope and the potential transfer of knowledge to other territorial contexts to be assessed. Furthermore, the system for carrying out this proposal should adopt the same methodology used, including surveying using laser scanner technology.
Another interesting question worth addressing is the origin of ribbed vault construction in Valencia: stone or brick. Traditional historiography tends to consider that ribbed vaults were originally made of stone (at the time of Baldomar), and that they later became constructed of brick due to its advantages and economy. However, this may not be the case, as brick allows for greater experimentation and could easily have been used as a preliminary test. The earliest examples of brick ribbed vaults in Valencia date back to Baldomar’s vaults. Nevertheless, it is a question worth considering.
With all this, it can be confirmed that this article highlights a little-studied architectural variant and also offers the field of research a starting point for more extensive studies.

Author Contributions

Software, A.D.-P., P.N.C. and J.L.L.G.; writing—original draft, A.G.-G., A.D.-P. and P.N.C. All authors have read and agreed to the published version of the manuscript.

Funding

This research received no external funding.

Data Availability Statement

The original contributions presented in this study are included in the article. Further inquiries can be directed to the corresponding authors.

Conflicts of Interest

The authors declare no conflict of interest.

Notes

1
This interest is sufficiently documented, with specific examples, in royal chronicles. For example, when the first brick vaults were built in the Royal Palace of Valencia (1382), King Pedro IV the Ceremonious asked the merino of Zaragoza to send Master Faraig Delbadar and another of his best to Valencia to learn the new technique. He explained that a new type of construction method based on brick and plaster had been developed in Valencia. In 1407, the royal chapel of Martin the Humane in Barcelona Cathedral was already being vaulted in this same way.
2
A good example of this is the ribbed vaults that cover the church of the College of Corpus Christi in Valencia or College of the Patriarch Saint John of Ribera, which were built between 1586 and 1606.
3
The new kingdom stretched from the northern part of the Valencian region to the present-day region of Murcia, with some territories in the province of Teruel. This new Almoravid kingdom reached its peak under the reign of Ibn Mardanis, known to the Christians as the “Rey Lobo”.
4
The rapid setting of plaster requires a fast pace of execution, because if it is not used immediately, the plaster begins to set and loses its plasticity.
5
Like the middle Ebro valley in Aragon or in most of Valencian territory.
6
From the work of Master Biulaygua.
7
Miralles, in addition to indicating that he participated in “all” of the city’s works, specifically mentions his work in the Seu and in the monasteries of Portaceli and San Jerónimo la Virgen María in la Murta, Trinidad de Santa Clara and Valdexpi.

References

  1. Navarro Fajardo, C. Bóvedas Valencianas de Crucería de los Siglos XIV al XVI. Traza y Montea. Ph.D. Thesis, Universitat de Valencia, Valencia, Spain, 2004. [Google Scholar]
  2. Zaragozá Catalán, A. Historia de las bóvedas tabicadas. In Una Arquitectura Gótica Mediterránea; Mira, E., Zaragozá Catalán, A., Eds.; Generalidad Valenciana: Valencia, Spain, 2003; Volume I, pp. 129–140. [Google Scholar]
  3. Barrón García, A. Bóvedas con figuras de estrellas y combados del Tardogótico en la Rioja. Tvriaso 2012, 21, 219–269. [Google Scholar]
  4. Bertachi, S. Modelos de bóvedas en estrella: Forma y geometría. In Bóvedas Valencianas. Arquitecturas Ideales, Reales y Virtuales en Época Medieval y Moderna; Navarro Fajardo, J.C., Ed.; Editorial Universitat Politécnica de Valencia: Valencia, Spain, 2014. [Google Scholar]
  5. Palacios Gonzalo, J.C. Las bóvedas de crucería españolas, ss. XV y XVI. In Proceedings of the Tercer Congreso Nacional de Historia de la Construcción, Sevilla, Spain, 26–28 October 2000; p. 749. [Google Scholar]
  6. Tellia, F.; Palacios, J.C. Las bóvedas de crucería del manuscrito Llibre de trasas de viax y muntea, de Joseph Ribes. Locus Amoenus 2015, 13, 33. [Google Scholar] [CrossRef]
  7. Pecoraro, I. Las bóvedas estrelladas del Salento. Una arquitectura a caballo entre la edad media y la Edad Moderna. In Una Arquitectura Gótica Mediterránea; Mira, E., Zaragozá Catalán, A., Eds.; Generalitat Valenciana: Valencia, Spain, 2003; Volume II. [Google Scholar]
  8. Zaragozá Catalán, A.; Ibáñez Fernández, J. Materiales, técnicas y significados en torno a la arquitectura de la Corona de Aragón en tiempos del Compromiso de Caspe (1410–1412). Artigrama 2011, 26. [Google Scholar] [CrossRef]
  9. Navarro Camallonga, P. Arcos, Bóvedas de Arista y Bóvedas Aristadas de Cantería en el Círculo de Francesc Baldomar y Pere Compte. Ph.D. Thesis, Escuela Técnica Superior de Arquitectura de Valencia (UPV), Valencia, Spain, 2018. [Google Scholar]
  10. Serra Desfilis, A. Al servicio de la ciudad: Joan del Poyo y la práctica de la arquitectura en Valencia (1402–1439). Ars Longa Cuad. Arte 1994, 5, 111–119. [Google Scholar]
  11. López Lorente, V. Mestres d’obra, Mestres de cases e imaginaires: La semántica de la construcción a finales de la edad Media en el contexto lingüístico catalán. Medievalismo 2020, 30, 331–352. [Google Scholar] [CrossRef]
  12. Palacios Gonzalo, J.C.; La Geometría de la Bóveda de Crucería Española del XVI. Lecture Given at the 3rd Vault Seminar, Taught as Part of the Restoration Master’s Program at the Polytechnic University of Valencia. A Virtual Museum of Mediterranean Gothic Arquitecture, Archivo Digital UPM. 2007. Available online: https://oa.upm.es/30744/ (accessed on 10 March 2025).
  13. Marín Sánchez, R. Bóvedas de crucería con nervios prefabricados de yeso y de ladrillo aplantillado. In Actas del Séptimo Congreso Nacional de Historia de la Construcción; Huerta, S., Gil Crespo, I., García, S., Taí, M., Eds.; Instituto Juan de Herrera: Madrid, Spain, 2011; p. 843. [Google Scholar]
  14. Martínez-Espejo Zaragoza, I. Técnicas de levantamiento con escáner láser del patrimonio arquitectónico. Hipótesis y restitución virtual de la bóveda de una iglesia. In Proceedings of the XXII Jornadas de Patrimonio Cultural de la Región de Murcia, Cartagena, Spain, 4 October–8 November 2011; pp. 275–284. [Google Scholar]
  15. Navarro Fajardo, J.C. La Lonja De Valencia a La Luz De Las Trazas de Montea; ARCHÉ; Publicación del Instituto Universitario de Restauración del Patrimonio de la UPV—Núms: Valencia, Spain, 2010; pp. 245–253. [Google Scholar]
  16. Chueca, F. La Catedral Nueva de Salamanca. Historia Documental De Su Construcción; Volumen del Acta Salmanticensia, Filosofía y Letras Tomo IV, N.º 3; Universidad de Salamanca: Salamanca, Spain, 1951. [Google Scholar]
  17. Zaragozá Catalán, A. Arquitectura Gótica Valenciana Siglos XIII–XV. Monumentos de la Comunidad Valenciana. Catálogo de Monumentos y Conjuntos Declarados e Incoados; Tomo, I., Ed.; Generalitat Valenciana: Valencia, Spain, 2000; p. 174. [Google Scholar]
  18. Navarro Camallonga, P. Transverse Arches in Spanish Ribless Vaults. Nexus Netw. J. Archit. Math. 2020, 22, 937–957. [Google Scholar] [CrossRef]
  19. Zaragozá Catalán, A. Una Catedral, una Escuela: La arquitectura y la escultura valenciana del cuatrocientos a través de los maestros Dalmau, Baldomar y Compte. In La Catedral De Valencia: Historia, Cultura y Patrimonio; Muñoz Ibáñez, M., Ed.; Real Academia de Bellas Artes de San Carlos: Valencia, Spain, 2018; p. 42. [Google Scholar]
  20. Martín Lloris, C. El monasterio de Santa María de la Valldigna: Símbolo en la organización territorial del Antiguo Reino de Valencia. Rev. Valencia. D’estudis Autonòmics 2013, 58, 83. [Google Scholar]
  21. Zaragozá Catalán, A. Cuando la arista gobierna el aparejo: Bóvedas aristadas. In Arquitectura en Construcción en Europa en Época Medieval y Moderna; Serra Desfilis, A., Ed.; Universidad de Valencia: Valencia, Spain, 2010; pp. 187–224. [Google Scholar]
  22. Chiva Maroto, G. Francesc Baldomar: Maestro De Obra De La Seo. Geometría e Inspiración Bíblica. Ph.D. Thesis, Departamento de Composición Arquitectónica, UPV, Valencia, Spain, 2014. [Google Scholar]
  23. Navarro Camallonga, P. Las Bóvedas Anervadas de Baldomar. Singularidad y Representación del Poder en Tiempos de Alfonso el Magnánimo; Academia Valenciana de Genealogía e Heráldica: Valencia, Spain, 2016; pp. 101–116. Available online: https://www.avghcv.com/gallery/4%20las%20b%C3%B3vedas%20enarvadas%20(101-116).pdf (accessed on 10 March 2025).
  24. Soler Estrela, A.; Garfella Rubio, T.; Cabeza González, M. Geometría y construcción en la capilla real del convento de santo Domingo, Valencia. In XI Congreso Internacional de Expresión Gráfica Aplicada a La Edificación; Hidalgo Delgado, F., Ed.; Universidad Politécnica de Valencia: Valencia, Spain, 2012; pp. 527–534. [Google Scholar]
  25. Serra Desfilis, A. (Ed.) Arquitectura en Construcción en Europa en Época Medieval y Moderna; Bóvedas del Gótico Mediterráneo; Universidad de Valencia: Valencia, Spain, 2010; pp. 187–224. [Google Scholar]
  26. Mira, E.; Zaragozá Catalán, A. (Eds.) Una Arquitectura del Gótico Mediterráneo. Catálogo de La Exposición. Generalitat Valenciana; Conselleria de Cultura i Educació, Subsecretaria de Promoció Cultural: Valencia, Spain, 2003; pp. 129–142. [Google Scholar]
  27. Sánchez Simón, I. Traza y montea de la bóveda de la Capilla Real del convento de Santo Domingo de Valencia. La arista del Triángulo de Reuleaux entre las aristas de la bóveda. In Proceedings of the Actas del Séptimo Congreso Nacional de Historia de la Construcción, Santiago de Compostela, Spain, 26–29 October 2011; Instituto Juan de Herrera: Madrid, Spain, 2011; pp. 1301–1310. [Google Scholar]
  28. Huerta, S.; Gil Crespo, I.; García, S.; Taín, M. (Eds.) Actas del Séptimo Congreso Nacional de Historia de la Construcción: Santiago de Compostela, 26–29 October 2011; Instituto Juan de Herrera: Madrid, Spain, 2011. [Google Scholar]
  29. Shelby, L.R. Gothic Design Techniques: The 15th Century Design Booklets of Mathes Roriczer and Hans Schumttermayer; Southern Illinois University Press: Carbondale, IL, USA; Edwardsville, IL, USA, 1977. [Google Scholar]
  30. Shelby, L.; Mark, R. Late Gothic Structural Design in the ‘Instructions’ of Lorenz Lechler. Architectura 1979, 9, 113–131. [Google Scholar]
  31. Coenen, U. Die Spãtgotischen Werkmeisterbücher in Deutschland; Untersuchung und Edition der Lehrschriften fiir Entwurfund Ausfiihrung von Sakralbauten. (Beitrüge zur Kunstwissenschaft, Bd. 25); Scaneg: Munich, Germany, 1990. [Google Scholar]
  32. Müller, W. Grundlagen Gotischer Bautechnik; Deutscher Kunstverlag: Munich, Germany, 1990. [Google Scholar]
  33. Binding, G. Baubetrieb im Mittelalter; Wissenshaftliche Gesellschaft: Darmstadt, Germany, 1993. [Google Scholar]
  34. Fitchen, J. The Construction of Gothic Cathedrals: A Study of Medieval Vault Erection; The University of Chicago Press: Chicago, IL, USA, 1981; First. ed. 1961. [Google Scholar]
  35. Huerta, S.; Ruiz, A. Some Notes on Gothic Building Processes: The Expertises of Segovia Cathedral. In The Second International Congress on Construction History (2006); Dunkeld, M., Campbell, J., Louw, H., Tutton, M., Addis, B., Thorne, R., Eds.; Cambridge University: London, UK, 2006; p. 1619. [Google Scholar]
  36. Navarro Camallonga, P. Bóvedas Aristadas. Levantamiento y Estudio Histórico-Constructivo; Editorial Universidad de Alcalá: Alcalá de Henares, Spain, 2021. [Google Scholar]
  37. Breymann, G.A. Allgemeine Bau-Constructions-Lehre, Mit Besonderer Beziehung Auf Das Hochbauwesen Ein Leiftaden Zu Vorlesungen und Zum Selbstunterrichte; Constructionen in Metall Eisenconstrutionen; Verlag von Gustav Weise: Stuttgart, Germany, 1858. [Google Scholar]
  38. Huerta, S. Las bóvedas tabicadas en Alemania: La larga migración de una técnica constructiva. In Actas del Segundo Congreso Internacional Hispanoamericano, Noveno Nacional, de Historia de la Construcción; Instituto Juan de Herrera: Madrid, Spain, 2017; Volume 2, p. 762. [Google Scholar]
  39. Cabeza Laínez, J.M.; Jiménez Verdejo, J.; Sánchez-Montanes Macias, B.; Pérez Calero, J. The Key-role of Eladio Dieste, Spain and the Americas in the Evolution from Brickwork to Architectural Form. J. Asian Archit. Build. Eng. 2009, 8, 356. [Google Scholar]
  40. Ibáñez Fernández, J. Técnica y ornato: Aproximación al estudio de la bóveda tabicada en Aragón y su decoración a lo largo de los siglos XVI y XVII. Artigrama 2010, 25, 368. [Google Scholar] [CrossRef]
  41. Gómez-Ferrer, M. Las bóvedas tabicadas en la arquitectura valenciana durante los siglos XIV, XV y XVI. In Una Arquitectura Gótica Mediterránea; Mira, E., Zaragozá Catalán, A., Eds.; Generalidad Valenciana: Valencia, Spain, 2003; Volume II, p. 135. [Google Scholar]
  42. Marín Sánchez, R. Aspectos constructivos de las bóvedas levantinas de albañilería (S. XV-XVI) a la luz de las obras y los documentos. In Ecos Culturales, Artísticos y Arquitectónicos Entre Valencia y el Mediterráneo en Época Moderna; Gómez-Ferrer, M., Gil Saura, Y., Eds.; Cuadernos Ars Longa nº 8; Universitat de Valencia: Valencia, Spain, 2018; p. 68. [Google Scholar]
  43. Zaragozá Catalán, A. Hacia una historia de las bóvedas tabicadas. In Construyendo Bóvedas Tabicadas: Actas del Simposio Internacional de Bóvedas Tabicadas, Valencia 26, 27 y 28 de Mayo de 2011; Zaragozá Catalán, A., Soler, R., Marín, R., Eds.; Editorial UPV: Valencia, Spain, 2012; p. 20. [Google Scholar]
  44. Ibáñez Fernández, J. De la crucería al cortado: Importación, implantación y desarrollo de la bóveda tabicada en Aragón y su decoración a lo largo de los siglos XVI y XVII. In Construyendo Bóveda Tabicadas. Actas del Simposio Internacional Sobre Bóvedas Tabicadas, Valencia 26, 27 y 28 de Mayo de 2011; Zaragozá Catalán, A., Soler, R., Marín, R., Eds.; Editorial Universidad Politécnica de Valencia: Valencia, Spain, 2012; p. 87. [Google Scholar]
  45. Thunissen, H.J.W. Bóvedas Su Construcción y Empleo En La Arquitectura; Instituto Juan de Herrera: Madrid, Spain, 2012; p. 169. [Google Scholar]
  46. de Celis, J.C.; Durán, J. De obras publicas y maestros de obras en la Valencia del siglo XV e inicios del XVI. El entorno de la iglesia de San Bartolomé. Boletín Soc. Castellon. Cult. 2007, 83, 105–122. [Google Scholar]
  47. Gómez-Ferrer, M.; Zaragozá, A. Lenguajes, fábricas y oficios en la arquitectura valenciana del tránsito entre la Edad Media y la Edad Moderna (1450–1550). Artigrama 2008, 23, 173. [Google Scholar] [CrossRef]
  48. Serra Desfilis, A. A través de la frontera: Los maestros de Castilla y la arquitectura tardogótica en Valencia. In Bóvedas Valencianas: Arquitecturas Ideales, Reales y Virtuales en Época Medieval y Moderna; Navarro Fajardo, J.C., Ed.; Universidad de Cantabria: Santander, Spain, 2014; p. 15. [Google Scholar]
  49. Miralles, M. Crònica i Dietari Del Capellà D’Alfons el Magnànim; Edició a Cura de Mateu Rodrigo Lizondo, Fonts Històriques Valencianes, 47; València Universitat de València: Valencia, Spain, 2011. [Google Scholar]
  50. Barrera Puigdollers, J.M. Plan Especial Zona Norte de Alfauir (PE); Urbanística Y Patrimonial Plan Especial de Protección del Monumento—Monasterio de San Jerónimo de Cotalba (PEP). 2015–2016. Document prepared by the monument’s conservation architect for the implementation of the special plan approved by the “Consell Valencià de Cultura”. Available online: https://cotalba.es/rehabilitacion/ (accessed on 10 March 2025).
  51. Zaragozá, A. Arquitectura Gótica Valenciana. Valencia. Generalitat Valenciana; Consellería de Cultura i Educació; Generalitat Valencia: Valencia, Spain, 2000. [Google Scholar]
  52. Serra Desfilis, A. El fasto del palacio inacabado. la casa de la ciudad de Valencia en los siglos XIV y XV. In Historia de la Ciudad III: Arquitectura y Transformación Urbana de la Ciudad de Valencia; COACV: Valencia, Spain, 2004; p. 95. [Google Scholar]
  53. Natividad Vivó, P.; Calvo López, J.; Muñoz Cosme, G. La bóveda de crucería anervada del portal de Quart de Valencia. EGA Expresión Gráfica Arquit. 2012, 19, 190–199. [Google Scholar] [CrossRef]
Figure 1. Rigging used in vault construction. (a) English rigging; (b) French rigging. Scheme Author’s own work.
Figure 1. Rigging used in vault construction. (a) English rigging; (b) French rigging. Scheme Author’s own work.
Heritage 08 00440 g001
Figure 2. Calculation of the edges of a star-shaped vault: (a) joining the corner of the inscribed square with the intersection of the axis of symmetry with the edge of the square. (b) joining the corner of the inscribed square with the intersection of the axis of symmetry with the perimeter of the circumscribed circle. Source: Author’s own work.
Figure 2. Calculation of the edges of a star-shaped vault: (a) joining the corner of the inscribed square with the intersection of the axis of symmetry with the edge of the square. (b) joining the corner of the inscribed square with the intersection of the axis of symmetry with the perimeter of the circumscribed circle. Source: Author’s own work.
Heritage 08 00440 g002
Figure 3. Calculation of the edges of a star-shaped vault, based on an ad quadratum pattern. Source: Author’s own work.
Figure 3. Calculation of the edges of a star-shaped vault, based on an ad quadratum pattern. Source: Author’s own work.
Heritage 08 00440 g003
Figure 4. (a) Royal Chapel of Santo Domingo, Francesc Baldomar (c. 1450). Source: Author’s own work. (b) Vault covering the junction of the Miguelete bell tower with the cathedral, or the Carreró (alley) vault. Source: Author’s own work.
Figure 4. (a) Royal Chapel of Santo Domingo, Francesc Baldomar (c. 1450). Source: Author’s own work. (b) Vault covering the junction of the Miguelete bell tower with the cathedral, or the Carreró (alley) vault. Source: Author’s own work.
Heritage 08 00440 g004
Figure 5. Experimental study. Assembly of a reduced-scale vault model. Source: Author’s own work.
Figure 5. Experimental study. Assembly of a reduced-scale vault model. Source: Author’s own work.
Heritage 08 00440 g005
Figure 6. Navarro’s hypothesis on how to complete the vault. Source: Author’s own work.
Figure 6. Navarro’s hypothesis on how to complete the vault. Source: Author’s own work.
Heritage 08 00440 g006
Figure 7. A volta leccese a stella. Church of San Giovanni Battista in Matera region of the Basilicata. https://commons.wikimedia.org/wiki/File:Chiesa_di_San_Giovanni_Battista_-_Matera_05.jpg (accessed on 20 March 2025).
Figure 7. A volta leccese a stella. Church of San Giovanni Battista in Matera region of the Basilicata. https://commons.wikimedia.org/wiki/File:Chiesa_di_San_Giovanni_Battista_-_Matera_05.jpg (accessed on 20 March 2025).
Heritage 08 00440 g007
Figure 8. Sotacoro of the church of the Hieronymite monastery of Cotalba (Gandía). Source: Jose Manuel Barrera Puigdollers.
Figure 8. Sotacoro of the church of the Hieronymite monastery of Cotalba (Gandía). Source: Jose Manuel Barrera Puigdollers.
Heritage 08 00440 g008
Figure 9. Laser scanning positions. Source: Author’s own work.
Figure 9. Laser scanning positions. Source: Author’s own work.
Heritage 08 00440 g009
Figure 10. Vault: southern coffered ceiling. Source: Author’s own work.
Figure 10. Vault: southern coffered ceiling. Source: Author’s own work.
Heritage 08 00440 g010
Figure 11. Trimble TX6 equipment installed to lift the façade of the Más Palace. Source: Author’s own work.
Figure 11. Trimble TX6 equipment installed to lift the façade of the Más Palace. Source: Author’s own work.
Heritage 08 00440 g011
Figure 12. Vault of the Más Palace. Source: Author’s own work.
Figure 12. Vault of the Más Palace. Source: Author’s own work.
Heritage 08 00440 g012
Figure 13. Plan with indication of the sectional drawings. Source: Author’s own work.
Figure 13. Plan with indication of the sectional drawings. Source: Author’s own work.
Heritage 08 00440 g013
Figure 14. Section by plane A-A’: a. Source: Author’s own work. (a) Survey and laser scanning. (b) Bounded survey.
Figure 14. Section by plane A-A’: a. Source: Author’s own work. (a) Survey and laser scanning. (b) Bounded survey.
Heritage 08 00440 g014
Figure 15. Section by plane B-B’: Source: Author’s own work. (a) Survey and laser scanning. (b) Bounded survey.
Figure 15. Section by plane B-B’: Source: Author’s own work. (a) Survey and laser scanning. (b) Bounded survey.
Heritage 08 00440 g015
Figure 16. Detail of the meeting of the partitioned vault with the wall. Source: Author’s own work.
Figure 16. Detail of the meeting of the partitioned vault with the wall. Source: Author’s own work.
Heritage 08 00440 g016
Figure 17. Floor plan of the Más Palace lobby in Valencia. Source: Author’s own work.
Figure 17. Floor plan of the Más Palace lobby in Valencia. Source: Author’s own work.
Heritage 08 00440 g017
Figure 18. Vault perimeter: (a) Access plane, from Jurists Street, located on the east side of the vault. Source: Author’s own work (b) Arch separating the vestibule from the Más Palace courtyard (west side). It should be noted that this arch is not aligned with the vault axis. Source: Author’s own work. (c) Junction with the north wall. Source: Author’s own work. (d) Junction with the south wall. Source: Author’s own work.
Figure 18. Vault perimeter: (a) Access plane, from Jurists Street, located on the east side of the vault. Source: Author’s own work (b) Arch separating the vestibule from the Más Palace courtyard (west side). It should be noted that this arch is not aligned with the vault axis. Source: Author’s own work. (c) Junction with the north wall. Source: Author’s own work. (d) Junction with the south wall. Source: Author’s own work.
Heritage 08 00440 g018
Figure 19. Back of the vault of the Más Palace. Source: Author’s own work.
Figure 19. Back of the vault of the Más Palace. Source: Author’s own work.
Heritage 08 00440 g019
Figure 20. Plaster cords placed over the joints of the brick planes, which reinforce the cohesion of the vault. More. Source: Author’s own work.
Figure 20. Plaster cords placed over the joints of the brick planes, which reinforce the cohesion of the vault. More. Source: Author’s own work.
Heritage 08 00440 g020
Figure 21. Modular plan. Vault of the Más Palace. Source: Author’s own work.
Figure 21. Modular plan. Vault of the Más Palace. Source: Author’s own work.
Heritage 08 00440 g021
Figure 22. Definition of the layout of the Más Palace vault. Source: Author’s own work.
Figure 22. Definition of the layout of the Más Palace vault. Source: Author’s own work.
Heritage 08 00440 g022
Figure 23. Survey of the vault of the Más Palace. Source: Author’s own work.
Figure 23. Survey of the vault of the Más Palace. Source: Author’s own work.
Heritage 08 00440 g023
Disclaimer/Publisher’s Note: The statements, opinions and data contained in all publications are solely those of the individual author(s) and contributor(s) and not of MDPI and/or the editor(s). MDPI and/or the editor(s) disclaim responsibility for any injury to people or property resulting from any ideas, methods, instructions or products referred to in the content.

Share and Cite

MDPI and ACS Style

Gómez-Gil, A.; Delgado-Pinos, A.; Navarro Camallonga, P.; Lerma García, J.L. Star-Shaped Vaults Constructed Using Brickwork, Context and Analysis of An Architectural Type, and the Case of the Más Palace. Heritage 2025, 8, 440. https://doi.org/10.3390/heritage8100440

AMA Style

Gómez-Gil A, Delgado-Pinos A, Navarro Camallonga P, Lerma García JL. Star-Shaped Vaults Constructed Using Brickwork, Context and Analysis of An Architectural Type, and the Case of the Más Palace. Heritage. 2025; 8(10):440. https://doi.org/10.3390/heritage8100440

Chicago/Turabian Style

Gómez-Gil, Antonio, Andrés Delgado-Pinos, Pablo Navarro Camallonga, and José Luis Lerma García. 2025. "Star-Shaped Vaults Constructed Using Brickwork, Context and Analysis of An Architectural Type, and the Case of the Más Palace" Heritage 8, no. 10: 440. https://doi.org/10.3390/heritage8100440

APA Style

Gómez-Gil, A., Delgado-Pinos, A., Navarro Camallonga, P., & Lerma García, J. L. (2025). Star-Shaped Vaults Constructed Using Brickwork, Context and Analysis of An Architectural Type, and the Case of the Más Palace. Heritage, 8(10), 440. https://doi.org/10.3390/heritage8100440

Article Metrics

Back to TopTop