Flame Spread on an Active Photovoltaic–Roof System
Abstract
1. Introduction
2. Materials and Methods
2.1. Tested Samples
- -
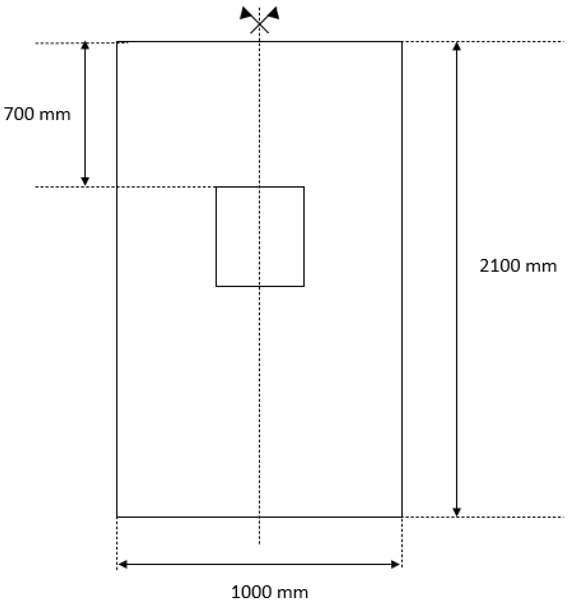
- Metal sandwich panel for roofings, 2100 mm × 1000 mm of size and 100 mm of thickness of insulating rigid foam core. A plate was added in the upper edge of the panel to protect the foam core from flames.
- -
- Two organic photovoltaic (OPV) flexible modules encapsulated in polymer transparent layers. They are glued in parallel to the sandwich panel. Each of these modules has its corresponding junction boxes and cables on the front side, i.e., the upper part.
2.2. Methodology
2.2.1. CEN/TS 1187 Test Method 1
2.2.2. Keeping PV Modules Active
- -
- A laboratory DC power source was used to impose external voltage in reverse mode; the equipment name is N8957APV Photovoltaic Array Simulator from Keysight Tecnhologies (Santa Rosa, CA, USA), 1500 VDC, 400 VAC. The positive output of the DC power supplier is connected to the positive terminal of the PV system. This source simulates the potential difference along a string of PV modules up to 1000 V.
- -
- Some resistances to simulate the voltage dropped in the leading modules of a bigger PV installation. This way a potential difference between the positive and negative part of the PV array was created. In this set-up, modules were connected in series and, if there was no resistance, the voltage value depended on the number of modules in the test. The voltage value resulted in a lower-than-average nominal level of a string connected to an inverter. With some resistances, we generated a higher potential difference and simulated the fact that there were more modules in the circuit. The following ones were used for the present work: TE2500B100RJ, TE1500 B47RJ, TE1500 B22RJ, from TE Connectivity (Galway, Ireland) and TVK 60.400 10R, from Tecnomega (Hernani, Spain).
2.2.3. Observations and Measurements
- -
- Side and back curtains: 0.5 m gap opening from the floor;
- -
- Front curtain: 2.4 m gap opening from the floor.
2.3. Experimental Campaign
3. Results
3.1. Environmental Conditions
3.2. Fire-Related Measurements
3.2.1. Heat Release Rate (HRR)
3.2.2. Fire Propagation
3.2.3. Total Heat Release (THR)
3.2.4. Temperatures
3.3. Electrical Measurements
3.3.1. Voltage
3.3.2. Current
4. Discussion
4.1. Environmental Conditions Analysis
4.2. Fire-Related Measurements Analysis
4.2.1. Heat Release Rate (HRR) Analysis
HRR Peak
Time Frame of Fire
4.2.2. Fire Propagation Analysis
4.2.3. Total Heat Release (THR) Analysis
4.2.4. Temperatures Analysis
4.3. Electrical Measurements Analysis
4.3.1. Voltage Analysis
4.3.2. Current Analysis
5. Conclusions
- -
- Current results are specific to organic PV modules on metallic sandwich panels and 4 mm glass-encapsulated organic PV modules.
- -
- Additional research is needed on various PV–roof systems and glass/glass PV configurations.
- -
- For glass–glass PV configurations, investigation is required for glass thickness, interlayer, and module dimensions affecting crack formation.
- -
- Air flow control improvements is needed to minimize flame direction variations and reduce uncertainty; testing should be conducted during low-wind conditions.
- -
- Tests should be repeated for each configuration to assess reproducibility of the tests, in particular results regarding fire-related measurements.
- -
- Electrical measurements should maintain 64 samples per second frequency.
- -
- Complete CEN/TS 1187 protocol (four tests) is needed for validation.
- -
- Round robin testing is recommended for result reproducibility.
- -
- Additional testing at varying roof pitches is required.
Supplementary Materials
Author Contributions
Funding
Institutional Review Board Statement
Informed Consent Statement
Data Availability Statement
Acknowledgments
Conflicts of Interest
Abbreviations
| PV | Photovoltaic |
| BIPV | Building-integrated photovoltaics |
| BAPV | Building-attached photovoltaics |
| CEN | European Committee for Standardization |
| TC | Technical Committee |
| CENELEC | European Committee for Electrotechnical Standardization |
| IEA PVPS | International Energy Agency Photovoltaic Power Systems Programme |
| OPV | Organic photovoltaic |
| G-OPV | Glass–organic photovoltaic |
| HRR | Heat release rate |
| THR | Total heat release |
References
- IPCC. Climate Change 2022: Mitigation of Climate Change; Contribution of Working Group III to the Sixth Assessment Report of the Intergovernmental Panel on Climate Change, Shukla, P.R., Skea, J., Slade, R., Al Khourdajie, A., van Diemen, R., McCollum, D., Pathak, M., Some, S., Vyas, P., et al., Eds.; Cambridge University Press: Cambridge, UK, 2022; ISBN 978-92-9169-160-9. [Google Scholar]
- Jäger-Waldau, A. Snapshot of Photovoltaics—February 2022. EPJ Photovolt. 2022, 13, 9. [Google Scholar] [CrossRef]
- International Renewable Energy Agency (IRENA). World Energy Transitions Outlook 2023: 1.5 °C Pathway; International Renewable Energy Agency: Abu Dhabi, United Arab Emirates, 2023. [Google Scholar]
- IEA. IEA PVPS Task 15 International Definitions of “BIPV”; IEA: Paris, France, 2018. [Google Scholar]
- Bonomo, P.; Saretta, E.; Frontini, F.; Caccivio, M.; Bellenda, G.; Manzini, G.; Cancelliere, P. Fire Safety of PV Modules and Buildings: Overviews. In Proceedings of the 33rd European Photovoltaic Solar Energy Conference and Exhibition, Amsterdam, The Netherlands, 25–29 September 2017; Bottlenecks and Hints. Smets, A., Taylor, N., Helm, P., Eds.; WIP GmbH & Co-KG: Munich, Germany, 2017; p. 303, ISBN 3-936338-47-7. [Google Scholar]
- Yang, R.; Zang, Y.; Yang, J.; Wakefield, R.; Nguyen, K.; Shi, L.; Trigunarsyah, B.; Parolini, F.; Bonomo, P.; Frontini, F.; et al. Fire Safety Requirements for Building Integrated Photovoltaics (BIPV): A Cross-Country Comparison. Renew. Sustain. Energy Rev. 2023, 173, 113112. [Google Scholar] [CrossRef]
- EN 50583-1; European Committee for Electrotechnical Standardization (CENELEC) Photovoltaics in Buildings—Part 1: BIPV Modules. European Committee for Electrotechnical Standardization: Brussels, Belgium, 2016.
- EN 50583-2; European Committee for Electrotechnical Standardization (CENELEC) Photovoltaics in Buildings—Part 2: BIPV Systems. European Committee for Electrotechnical Standardization: Brussels, Belgium, 2016.
- IEC 63092-1; International Electrotechnical Commission (IEC) Photovoltaics in Buildings—Part 1: Requirements for Building-Integrated Photovoltaic Modules. International Electrotechnical Commission: London, UK, 2020.
- IEC 63092-2; International Electrotechnical Commission (IEC) Photovoltaics in Buildings—Part 2: Requirements for Building-Integrated Photovoltaic Systems. International Electrotechnical Commission: London, UK, 2020.
- Ko, Y.; Aram, M.; Zhang, X.; Qi, D. Fire Safety of Building Integrated Photovoltaic Systems: Critical Review for Codes and Standards. Indoor Built Environ. 2023, 32, 25–43. [Google Scholar] [CrossRef]
- Ong, N.A.F.M.N.; Sadiq, M.A.; Md Said, M.S.; Jomaas, G.; Mohd Tohir, M.Z.; Kristensen, J.S. Fault Tree Analysis of Fires on Rooftops with Photovoltaic Systems. J. Build. Eng. 2022, 46, 103752. [Google Scholar] [CrossRef]
- EU Market Outlook for Solar Power 2023–2027—SolarPower Europe. Available online: https://www.solarpowereurope.org/insights/outlooks/eu-market-outlook-for-solar-power-2023-2027/detail (accessed on 9 December 2024).
- Aram, M.; Zhang, X.; Qi, D.; Ko, Y. A State-of-the-Art Review of Fire Safety of Photovoltaic Systems in Buildings. J. Clean. Prod. 2021, 308, 127239. [Google Scholar] [CrossRef]
- Tommasini, R.; Pons, E.; Palamara, F.; Turturici, C.; Colella, P. Risk of Electrocution during Fire Suppression Activities Involving Photovoltaic Systems. Fire Saf. J. 2014, 67, 35–41. [Google Scholar] [CrossRef]
- Ramali, M.R.; Ong, N.A.F.M.N.; Md Said, M.S.; Mohamed Yusoff, H.; Baharudin, M.R.; Tharima, A.F.; Akashah, F.W.; Mohd Tohir, M.Z. A Review on Safety Practices for Firefighters During Photovoltaic (PV) Fire. Fire Technol. 2023, 59, 247–270. [Google Scholar] [CrossRef] [PubMed]
- New York State Electrical Code Chapter 6 Special Equipment: Special Equipment, New York State Electrical Code 2017. 2017. Available online: https://up.codes/viewer/new_york/nfpa-70-2017/chapter/6/special-equipment#690.12 (accessed on 25 November 2024).
- Parolini, F.; Bonomo, P.; Frontini, F.; Caccivio, M.; Manzini, G.; Traina, G.; Cancelliere, P. Fire Performance Assessment of BIPV Facades Equipped with Active Rapid Shutdown. In Proceedings of the 37th EU PVSEC, European PV Solar Energy Conference and Exhibition, Online, 7–11 September 2020. [Google Scholar]
- Boddaert, S.; Parolini, F.; Bonomo, P.; Awais, M.; Pirotta, C.; Jimenez, J.; Vega de Seoane, J.M.; Valencia-Caballero, D. Most Demanding Standard Combination to Support BIPV Development and Sustainability-Fire Safety. In Proceedings of the 8th WCPEC, Milan, Italy, 26–30 September 2022. [Google Scholar]
- EN 13823; European Committee for Standardization (CEN) Reaction to Fire Tests for Building Products—Building Products Excluding Floorings Exposed to the Thermal Attack by a Single Burning Item. European Committee for Standardization: Brussels, Belgium, 2020.
- CEN/TS 1187; European Committee for Standardization (CEN) Test Methods for External Fire Exposure to Roofs. European Committee for Standardization: Brussels, Belgium, 2012.
- IEC 61215-1; International Electrotechnical Commission (IEC) Terrestrial Photovoltaic (PV) Modules—Design Qualification and Type Approval—Part 1: Test Requirements. International Electrotechnical Commission: Geneva, Switzerland, 2021.
- IEC 61215-2; International Electrotechnical Commission (IEC) Terrestrial Photovoltaic (PV) Modules—Design Qualification and Type Approval—Part 2: Test Procedures. International Electrotechnical Commission: Geneva, Switzerland, 2021.
- Ishii, H.; Kondo, M.; Saito, M.; Najajima, A.; Hayashi, M.; Saito, H. Experimental Study on BIPV Module of Closed Circuit Situation Exposed to Fire. In Proceedings of the Grand Renewable Energy 2018 International Conference and Exhibition, Yokohama, Japan, 17–22 June 2018. [Google Scholar]
- Ishii, H. Experimental Study on BIPV Module During Power Generation Exposed to Fire. In Proceedings of the EU PVSEC 2018, Brussels, Belgium, 24–28 September 2018. [Google Scholar]
- ISO 834-1; International Organization for Standardization (ISO) Fire-Resistance Tests—Elements of Building Construction—Part 1: General Requirements. International Organization for Standardization: Geneva, Switzerland, 1999.
- IEC 61730-1; International Electrotechnical Commission (IEC) Photovoltaic (PV) Module Safety Qualification—Part 1: Requirements for Construction. International Electrotechnical Commission: Geneva, Switzerland, 2021.
- IEA. IEA PVPS Task 15 Multifunctional Characterisation of BIPV—Proposed Topics for Future International Standardisation Activities; IEA: Paris, France, 2020. [Google Scholar] [CrossRef]
- ISO 12468-1; International Organization for Standardization (ISO) External Exposure of Roofs to Fire Part 1: Test Method. International Organization for Standardization: Geneva, Switzerland, 2013.
- UL 790; Underwriters Laboratories (UL) Standard Test Methods for Fire Tests of Roof Coverings. Underwriters Laboratories: Northbrook, IL, USA, 2022.
- ASTM E108; American Society for Testing and Materials (ASTM) Standard Test Methods for Fire Tests of Roof Coverings. American Society for Testing and Materials: West Conshohocken, PA, USA, 2020. [CrossRef]
- CAN/ULC S107; Underwriters Laboratories (UL) Methods of Fire Tests of Roof Coverings. Underwriters Laboratories: Northbrook, IL, USA, 2019.
- CLC/TR 50670; European Committee for Electrotechnical Standardization (CENELEC) External Fire Exposure to Roofs in Combination with Photovoltaic (PV) Arrays—Test Method(s). European Committee for Electrotechnical Standardization: Brussels, Belgium, 2016.
- UL 1703; Underwriters Laboratories (UL) Flat-Plate Photovoltaic Modules and Panels. Underwriters Laboratories: Northbrook, IL, USA, 2024.
- IEC 61730-2; International Electrotechnical Commission (IEC) Photovoltaic (PV) Module Safety Qualification—Part 2: Requirements for Testing. International Electrotechnical Commission: Geneva, Switzerland, 2016.
- EN 13501-5; European Committee for Standardization (CEN) Fire Classification of Construction Products and Building Elements—Part 5: Classification Using Data from External Fire Exposure to Roofs Tests. European Committee for Standardization: Brussels, Belgium, 2016.
- SolarPower Europe. Rooftop PV Fire Safety Factsheet 2024. Available online: https://api.solarpowereurope.org/uploads/Factsheet_Rooftop_PV_Fire_Safety_vfinal_33eaab8bb3.pdf?updated_at=2024-03-18T15:38:06.684Z (accessed on 2 December 2024).
- IEA. IEA PVPS Task 15 Fire Safety of BIPV: International Mapping of Accredited and R&D Facilities in the Context of Codes and Standards; Report IEA-PVPS T15-15; IEA: Paris, France, 2023. [Google Scholar]
- Razak, A.; Irwan, Y.M.; Leow, W.Z.; Irwanto, M.; Safwati, I.; Zhafarina, M. Investigation of the Effect Temperature on Photovoltaic (PV) Panel Output Performance. Int. J. Adv. Sci. Eng. Inf. Technol. 2016, 6, 682. [Google Scholar] [CrossRef]

















| Author [Ref.] | System Tested | Test Standard/Methodology | Main Objective of Study |
|---|---|---|---|
| Parolini et al. [18] | BIPV façade system | Construction-related test: own procedure with 30 kW linear burner. Electrical conditions: imposed current of 1 A. | Develop and set up first test protocols focused on the fire performance for electrically operational BIPV façade systems. |
| Boddaert et al. [19] | BIPV glass–glass façade system and BIPV thin film–PV roof system | Construction-related test: EN 13823 [20] (façade) and CEN/TS 1187 [21] (roof) test method t3. Electrical conditions: load based on most demanding conditions EN 61215 [22,23] (1000 V). | Detect possible deviation or defects brought by the active part based on a combination of building and electrical standards as a first step forward. |
| Ishii et al. [24] and Ishii [25] | BIPV curtain wall system | Construction-related test: Fire resistance test according to the JIS Standard and heating according to ISO 834 [26]. Electrical conditions: in closed-circuit situation connected to a load device. | Prove that a conventional laminated glass for curtain wall has the same performance compared to mono-crystalline silicone and thin film crystalline silicone BIPV modules. |
| Test n# | Brief Description Sample and Test Set-Up | Abbreviation |
|---|---|---|
| 1 | Sandwich panel | Ref. |
| 2 | Sandwich panel + 2 OPV modules | OPV |
| 3 | Sandwich panel + 2 OPV modules + electrical connection as Option A (see Figure 3) | OPV2.5A |
| 4 | Sandwich panel + 2 OPV modules + electrical connection as Option B (see Figure 3) | OPV1000V |
| 5 | 2 glass-OPV modules | G-OPV |
| 6 | 2 glass-OPV modules + electrical connection as Option A (see Figure 3) | G-OPV2A |
| Test Ref. | Testing Date | Temperature (°C) | Humidity (%) | Pressure (Pa) |
|---|---|---|---|---|
| Test 1 (Ref.) | 2 October 2023 | 20.6 | 70.8 | 100,870 |
| Test 2 (OPV) | 5 October 2023 | 19.5 | 82.2 | 101,420 |
| Test 3 (OPV2.5A) | 3 October 2023 | 21.5 | 74.1 | 101,710 |
| Test 4 (OPV1000V) | 3 October 2023 | 23.2 | 70.3 | 101,710 |
| Test 5 (G-OPV) | 23 July 2024 | 23 | 76 | 101,265 |
| Test 6 (G-OPV2A) | 23 July 2024 | 22 | 78 | 101,262 |
Disclaimer/Publisher’s Note: The statements, opinions and data contained in all publications are solely those of the individual author(s) and contributor(s) and not of MDPI and/or the editor(s). MDPI and/or the editor(s) disclaim responsibility for any injury to people or property resulting from any ideas, methods, instructions or products referred to in the content. |
© 2025 by the authors. Licensee MDPI, Basel, Switzerland. This article is an open access article distributed under the terms and conditions of the Creative Commons Attribution (CC BY) license (https://creativecommons.org/licenses/by/4.0/).
Share and Cite
Aurrekoetxea-Arratibel, O.; Otano-Aramendi, N.; Valencia-Caballero, D.; Vidaurrazaga, I.; Oregi, X.; Olano-Azkune, X. Flame Spread on an Active Photovoltaic–Roof System. Fire 2025, 8, 105. https://doi.org/10.3390/fire8030105
Aurrekoetxea-Arratibel O, Otano-Aramendi N, Valencia-Caballero D, Vidaurrazaga I, Oregi X, Olano-Azkune X. Flame Spread on an Active Photovoltaic–Roof System. Fire. 2025; 8(3):105. https://doi.org/10.3390/fire8030105
Chicago/Turabian StyleAurrekoetxea-Arratibel, Olaia, Nerea Otano-Aramendi, Daniel Valencia-Caballero, Iñigo Vidaurrazaga, Xabat Oregi, and Xabier Olano-Azkune. 2025. "Flame Spread on an Active Photovoltaic–Roof System" Fire 8, no. 3: 105. https://doi.org/10.3390/fire8030105
APA StyleAurrekoetxea-Arratibel, O., Otano-Aramendi, N., Valencia-Caballero, D., Vidaurrazaga, I., Oregi, X., & Olano-Azkune, X. (2025). Flame Spread on an Active Photovoltaic–Roof System. Fire, 8(3), 105. https://doi.org/10.3390/fire8030105

