Numerical and Experimental Analysis of Fire Resistance for Steel Structures of Ships and Offshore Platforms
Abstract
1. Introduction
- (1)
- “B” class divisions: B-15 and B-0;
- (2)
- “A” class divisions: A-60, A-30, A-15 and A-0;
- (3)
- “C” class divisions: divisions constructed of approved non-combustible materials.
- (4)
- “H” class divisions: H-120, H-60 and H-0.
- —
- Loss of integrity resulting from the formation of through cracks or openings in the structures through which combustion products or flame (E) penetrate to the unheated surface;
- —
- Loss of thermal insulating capability (I) due to an average temperature rise of more than 140 °C at the unheated surface of the structure or at any point on that surface of more than 180 °C compared with the temperature of the structure before the test or more than 220 °C regardless of the temperature of the structure before the test (additional limit conditions of structures and the criteria of their occurrence are established, if necessary, in the standards for tests of particular structures). It should be noted that the same requirements for the quantitative values of the thermal insulating capacity (I) and qualitative features of the loss of integrity (E) are established for the enclosing structures.
2. Materials and Methods
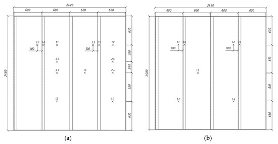
2.1. Experiments on Bulkhead and Deck Structures
2.2. Simulation of Bulkhead and Deck Section Heating
3. Results and Discussion
3.1. Experimental and Simulation Results
3.2. Discussion
4. Conclusions
Author Contributions
Funding
Institutional Review Board Statement
Informed Consent Statement
Data Availability Statement
Acknowledgments
Conflicts of Interest
References
- Andryushkin, A.Y.; Kirshina, A.A.; Kadochnikova, E.N. The evaluation of the fire-retardant efficiency of intumescent coatings of steel structures exposed to high-temperature gas flows. Pozharovzryvobezopasnost/Fire Explos. Saf. 2021, 30, 14–26. [Google Scholar] [CrossRef]
- Gravit, M.; Zimin, S.; Lazarev, Y.; Dmitriev, I.; Golub, E. Fire Simulation of Bearing Structures for Natural Gas Module Plant. Adv. Intell. Syst. Comput. 2020, 365–376. [Google Scholar] [CrossRef]
- Imran, M.; Liew, M.S.; Nasif, M.S.; Gracia, E.M.; Danyaro, K.U.; Niazi, M.U. Thermal and Mechanical Response of Partially Protected Steel I-Beam under Fire. MATEC Web Conf. 2018, 203, 06009. [Google Scholar] [CrossRef][Green Version]
- Gravit, M.; Gumerova, E.; Bardin, A.; Lukinov, V. Increase of Fire Resistance Limits of Building Structures of Oil-and-Gas Complex Under Hydrocarbon Fire. Adv. Intell. Syst. Comput. 2018, 692, 818–829. [Google Scholar] [CrossRef]
- ISO 834-75. Elements of Building Constructions. Fire-Resistance Test Methods. General Requirements. Available online: https://docs.cntd.ru/document/9055248 (accessed on 2 November 2021).
- Dmochowska, A. Threats related to accidental release of LPG in rail transport. Zesz. Nauk. SGSP 2020, 73, 37–54. [Google Scholar] [CrossRef]
- Aksu, S. Assessing compartment-wide damage consequences in ships and offshore vessels using Fault Trees with System Location Attribution. Ocean Eng. 2019, 192, 106510. [Google Scholar] [CrossRef]
- Zakhmatov, V.D.; Tursenev, S.A.; Mironchev, A.V.; Chernyshov, M.V.; Ozerov, A.V.; Dorozhkin, A.S. Analysis of Existing and Justification of Applying New Automatic System for Fire-and-Explosion Prevention at Vessels, Ships, Offshore Oil Platform. Pozharovzryvobezopasnost/Fire Explos. Saf. 2018, 27, 50–63. [Google Scholar] [CrossRef]
- Kim, M.; Kim, G.; Oh, M. Optimized Fire Protection for Offshore Topside Structure with 3-Sides PFP Application. In Proceedings of the International Offshore and Polar Engineering Conference, San Francisco, CA, USA, 25–30 June 2017; pp. 740–746. [Google Scholar]
- Salazar-Domínguez, C.M.; Hernández-Hernández, J.; Rosas-Huerta, E.D.; Iturbe-Rosas, G.E.; Herrera-May, A.L. Structural Analysis of a Barge Midship Section Considering the Still Water and Wave Load Effects. J. Mar. Sci. Eng. 2021, 9, 99. [Google Scholar] [CrossRef]
- Nitonye, S.; Ezenwa, O. Calculation for Hull Strength Construction in Offshore Structures (A Case Study of 5000t Work Barge). West Afr. J. Ind. Acad. Res. 2013, 8, 3–12. [Google Scholar]
- Chandrasekaran, S.; Nagavinothini, R. Behavior of stiffened deck plates under hydrocarbon fire. Mar. Syst. Ocean Technol. 2020, 15, 95–109. [Google Scholar] [CrossRef]
- Niazi, U.M.; Nasif, M.S.; Bin Muhammad, M.; Imran, M. Integrated Consequence Modelling for Fire Radiation and Combustion Product Toxicity in offshore Petroleum Platform using Risk Based Approach. MATEC Web Conf. 2018, 225, 06013. [Google Scholar] [CrossRef][Green Version]
- Manco, M.R.; Vaz, M.A.; Cyrino, J.C.R.; Landesmann, A. Evaluation of localized pool fire models to predict the thermal field in offshore topside structures. J. Braz. Soc. Mech. Sci. Eng. 2020, 42, 1–15. [Google Scholar] [CrossRef]
- Chandrasekaran, S.; Pachaiappan, S. Numerical analysis and preliminary design of topside of an offshore platform using FGM and X52 steel under special loads. Innov. Infrastruct. Solut. 2020, 5, 1–14. [Google Scholar] [CrossRef]
- Cirpici, B.K.; Wang, Y.; Rogers, B. Assessment of the thermal conductivity of intumescent coatings in fire. Fire Saf. J. 2016, 81, 74–84. [Google Scholar] [CrossRef]
- ABS Rules for Building and Classing Facilities on Offshore Installations. Rules for Building and Classing Facilities on Offshore Installations 2021. Available online: https://ww2.eagle.org/content/dam/eagle/rules-and-guides/current/offshore/63_rulesforbuildingandclassingfacilitiesonoffshoreinstallations_2021/fac-rules-july21.pdf (accessed on 8 November 2021).
- Seo, J.K.; Lee, S.E.; Park, J.S. A method for determining fire accidental loads and its application to thermal response analysis for optimal design of offshore thin-walled structures. Fire Saf. J. 2017, 92, 107–121. [Google Scholar] [CrossRef]
- A Study of SOLAS Regulation II-2/17 on Alternative Design and Arrangements for Fire Safety. Available online: https://core.ac.uk/download/pdf/38467591.pdf (accessed on 2 November 2021).
- Bureau of Shipping, A. ABS Rules for Building and Classing Mobile Offshore Units. Available online: https://ww2.eagle.org/content/dam/eagle/rules-and-guides/current/offshore/3_mobileoffshoreunits_2021/mou-part-5-july21.pdf (accessed on 3 December 2021).
- Russian Maritime Register of Shipping. Available online: https://rs-class.org/en/ (accessed on 22 November 2021).
- UL 1709. Rapid Rise Fire Tests of Protection Materials for Structural Steel. Available online: https://nd.gostinfo.ru/print.aspx?control=27&id=4546871&print=yes (accessed on 2 November 2021).
- EN 1363-2:1999. Fire Resistance Tests—Part 2: Alternative and Additional Procedures. Available online: https://nd.gostinfo.ru/document/6239985.aspx (accessed on 22 November 2021).
- Gravit, M.V.; Golub, E.V.; Antonov, S.P. Fire Protective Dry Plaster Composition for Structures in Hydrocarbon Fire. Mag. Civ. Eng. 2018, 3, 79. [Google Scholar] [CrossRef]
- Gravit, M.; Golub, E.; Klementev, B.; Dmitriev, I. Fire Protective Glass Fiber Reinforced Concrete Plates for Steel Structures under Different Types of Fire Exposure. Buildings 2021, 11, 187. [Google Scholar] [CrossRef]
- IMO Resolution A.754 (18). Recommendation for Testing Fire Resistance of Class “A”, “B” and “F” Slabs. Available online: http://www.rise.odessa.ua/texts/A754_18.php3 (accessed on 2 November 2021).
- Russian Government Standard GOST 30247.1-94. Elements of Building Constructions. Fire-Resistance Test Methods. Loadbearing and Separating Constructions. Available online: https://docs.cntd.ru/document/9055247 (accessed on 20 November 2021).
- Palfy, J. Guidance Notes on Alternative Design and Arrangements for Fire Safety. Available online: https://ww2.eagle.org/content/dam/eagle/rules-and-guides/current/design_and_analysis/122_altdesignandarrangforfiresafety/fire_safety_guidance_e-july10.pdf (accessed on 2 November 2021).
- Imran, M.; Liew, M.S.; Nasif, M.S.; Niazi, U.M.; Yasreen, A. Hydrocarbon Fire and Explosion’s Safety Aspects to Avoid Accident Escalation for Offshore Platform. ICIPEG 2016 2017, 801–808. [Google Scholar] [CrossRef]
- Imran, M.; Liew, M.S.; Nasif, M.S.; Niazi, U.M.; Yasreen, A. Hazard Assessment Studies on Hydrocarbon Fire and Blast: An Overview. Adv. Sci. Lett. 2017, 23, 1243–1247. [Google Scholar] [CrossRef]
- Jafarov, E. Causes and Consequences of Fire Emergencies on Oil and Gas Platforms. Revista Gestão Inovação e Tecnologias 2021, 11, 1253–1258. [Google Scholar] [CrossRef]
- Park, D.K.; Kim, J.H.; Park, J.S.; Ha, Y.C.; Seo, J.K. Effects of the structural strength of fire protection insulation systems in offshore installations. Int. J. Nav. Arch. Ocean Eng. 2021, 13, 493–510. [Google Scholar] [CrossRef]
- Zhukov, A.; Konoval’Tseva, T.; Bobrova, E.; Zinovieva, E.; Ivanov, K. Thermal insulation: Operational properties and methods of research. MATEC Web Conf. 2018, 251, 01016. [Google Scholar] [CrossRef]
- Gravit, M.; Dmitriev, I. Numerical Simulation of Fire Resistance of Steel Ship Bulkheads. Transp. Res. Procedia 2021, 54, 733–743. [Google Scholar] [CrossRef]
- ELCUT. Modeling of Two-Dimensional Fields by the Finite Element Method. Available online: https://elcut.ru/free_doc_r.htm (accessed on 6 January 2022).
- Dudin, M.O.; Vatin, N.I.; Barabanshchikov, Y. Modeling a set of concrete strength in the program ELCUT at warming of monolithic structures by wire. Mag. Civ. Eng. 2015, 54, 33–45. [Google Scholar] [CrossRef]
- Markus, E.S.; Snegirev, A.Y.; Kuznetsov, E.A. Numerical Simulation of a Fire Using Fire Dynamics; St. Petersburg Polytech-Press: St. Petersburg, Russia, 2021; p. 175. [Google Scholar]
- EN 1991-1-2: Eurocode 1: Actions on Structures—Part 1–2: General Actions—Actions on Structures Exposed to Fire. Available online: https://www.phd.eng.br/wp-content/uploads/2015/12/en.1991.1.2.2002.pdf (accessed on 25 October 2021).
- Russian Government Standard GOST 52927-2015. Rolled of Normal, Increased-and High-Strength Steel for Shipbuilding. Specifications. Available online: https://docs.cntd.ru/document/1200122434 (accessed on 6 January 2022).
- Recommendations for Optimizing the Operation of Fire Extinguishing, Smoke Removal and Ventilation Systems in Fires. Available online: https://fireman.club/literature/optimizatsiya-deystviy-sistem-pozharotusheniya-dyimoudaleniya-i-ventilyatsii-pri-pozharah-2005/ (accessed on 6 January 2022).
- Code of Practice. SP 50.13330.2012. Thermal Performance of the Buildings. Available online: https://docs.cntd.ru/document/1200095525 (accessed on 11 January 2022).
- Paudel, D.; Rinta-Paavola, A.; Mattila, H.-P.; Hostikka, S. Multiphysics Modelling of Stone Wool Fire Resistance. Fire Technol. 2021, 57, 1283–1312. [Google Scholar] [CrossRef]
- PAROC Building Insulation. Available online: http://kosko.ru/sites/kosko.ru/files/files/opisanie-svojstv-paroc.pdf (accessed on 28 November 2021).
- Gravit, M.; Shabunina, D. Structural Fire Protection of Steel Structures in Arctic Conditions. Buildings 2021, 11, 499. [Google Scholar] [CrossRef]
- Product Data Sheet “3M Interam” Endothermic Mat E-5A-4. Available online: https://www.aircraftspruce.com/catalog/pdf/05-00948tech.pdf (accessed on 18 December 2021).














| Spaces | (1) | (2) | (4) | (4) | (5) | (6) | (7) | (8) | (9) | (10) | (11) | (12) | |
|---|---|---|---|---|---|---|---|---|---|---|---|---|---|
| Control stations including central process control rooms | (1) | A-0 | A-0 | A-60 | A-0 | A-15 | A-60 | A-15 | H-60 | A-60 | A-60 | * | A-0 |
| Corridors | (2) | C | B-0 | B-0 A-0 | B-0 | A-60 | A-0 | H-60 | A-0 | A-0 | * | B-0 | |
| Accommodation spaces | (3) | C | B-0 A-0 | B-0 | A-60 | A-0 | H-60 | A-0 | A-0 | * | C | ||
| Stairways | (4) | B-0 A-0 | B-0 A-0 | A-60 | A-0 | H-60 | A-0 | A-0 | * | B-0 A-0 | |||
| Service spaces (low risk) | (5) | C | A-60 | A-0 | H-60 | A-0 | A-0 | * | B-0 | ||||
| Machinery spaces for category A | (6) | * | A-0 | H-60 | A-60 | A-60 | * | A-0 | |||||
| Other machinery spaces | (7) | A-0 | H-0 | A-0 | A-0 | * | A-0 | ||||||
| Process areas, storage tank areas, wellhead/manifold areas | (8) | (Symmetrical) | – | H-60 | H-60 | * | H-60 | ||||||
| Hazardous areas | (9) | – | A-0 | * | A-0 | ||||||||
| Service spaces (high risk) | (10) | A-0 | * | A-0 | |||||||||
| Open decks | (11) | – | * | ||||||||||
| Sanitary and similar spaces | (12) | C | |||||||||||
| Name of the Value | Value | Information Source |
|---|---|---|
| Degree of blackness of ship’s alloy steel | 0.35 | [40] |
| Degree of blackness of mineral wool | 0.92 | [40] |
| Degree of blackness of endothermic mat | 0.96 | [40] |
| Convection heat transfer coefficient at standard temperature regime, W/(m2 · K) | 25 | [38] |
| Convection heat transfer coefficient at hydrocarbon temperature regime, W/(m2 · K) | 50 | [38] |
| Surface absorption coefficient | 0.5 | [37] |
| The emissivity of steel | 0.8 | [37] |
| The emissivity of mineral wool | 0.7 | [37] |
| Initial ambient temperature, °C * | 20 | - |
| Time step for calculating the temperature gradient of the structure, second | 60 | - |
| Structure/Manufacturer | ρ, KT/M3 | λ, W/(m·K) | Cp, J/(kg·K) | φ, % | Organic Substances, % | Thickness of Plates, mm | ||||
|---|---|---|---|---|---|---|---|---|---|---|
| 10 °C | 100 °C | 300 °C | 10 °C | 100 °C | 300 °C | |||||
| H-0 (Rockwool) | 150 | 0.034 | 0.045 | 0.078 | 840 | 860 | 900 | 0.24 | 1.30 | 60/125 |
| H-60 (Rockwool) | 150 | 0.034 | 0.045 | 0.078 | 840 | 860 | 900 | 0.20 | 0.40 | 70/110 |
| H-120 (Rockwool) | 150 | 0.034 | 0.045 | 0.078 | 840 | 860 | 900 | 0.20 | 0.40 | 90/150 |
| A-15 (PAROC) | 80 | 0.037 | 0.047 | 0.095 | 840 | 860 | 900 | 0.34 | 1.50 | 40/65 |
| A-60 (PAROC) * | 100 | 0.037 | 0.047 | 0.095 | 840 | 860 | 900 | 0.28 | 3.09 | 60/85 |
| A-60 (TIZOL) ** | 100 | 0.035 | 0.046 | 0.085 | 840 | 860 | 900 | 0.25 | 2.00 | 50/75 |
| H-120 (Rockwool) | 100 | 0.034 | 0.045 | 0.078 | 840 | 860 | 900 | 0.20 | 0.40 | 120/240 |
| T, °C | 93 | 177 | 316 | 399 | 482 |
|---|---|---|---|---|---|
| λ, W/K·m | 0.151 | 0.175 | 0.100 | 0.118 | 0.140 |
| C, J/K·m | 1155 | 1155 | 1155 | 1155 | 1155 |
| ρ, kg/m3 | 865 | 865 | 865 | 865 | 865 |
| T, °C | 0 | 100 | 200 | 300 | 400 | 500 | 600 | 700 | 800 | 900 | 1000 |
|---|---|---|---|---|---|---|---|---|---|---|---|
| λ (1), W/K·m | 0.0340 | 0.0450 | 0.0595 | 0.0780 | 0.1021 | 0.1314 | 0.1669 | 0.2047 | 0.2432 | 0.2810 | 0.3195 |
| λ (2), W/K·m | 0.0370 | 0.0470 | 0.0652 | 0.0950 | 0.1384 | 0.1967 | 0.2589 | 0.3207 | 0.3826 | 0.4453 | 0.5086 |
| λ (3), W/K·m | 0.0350 | 0.0460 | 0.0729 | 0.0850 | 0.1196 | 0.1652 | 0.2222 | 0.2724 | 0.3229 | 0.3741 | 0.4269 |
| C, J/K·kg | 840 | 860 | 877 | 900 | 913 | 929 | 943 | 955 | 971 | 988 | 1004 |
Publisher’s Note: MDPI stays neutral with regard to jurisdictional claims in published maps and institutional affiliations. |
© 2022 by the authors. Licensee MDPI, Basel, Switzerland. This article is an open access article distributed under the terms and conditions of the Creative Commons Attribution (CC BY) license (https://creativecommons.org/licenses/by/4.0/).
Share and Cite
Gravit, M.; Shabunina, D. Numerical and Experimental Analysis of Fire Resistance for Steel Structures of Ships and Offshore Platforms. Fire 2022, 5, 9. https://doi.org/10.3390/fire5010009
Gravit M, Shabunina D. Numerical and Experimental Analysis of Fire Resistance for Steel Structures of Ships and Offshore Platforms. Fire. 2022; 5(1):9. https://doi.org/10.3390/fire5010009
Chicago/Turabian StyleGravit, Marina, and Daria Shabunina. 2022. "Numerical and Experimental Analysis of Fire Resistance for Steel Structures of Ships and Offshore Platforms" Fire 5, no. 1: 9. https://doi.org/10.3390/fire5010009
APA StyleGravit, M., & Shabunina, D. (2022). Numerical and Experimental Analysis of Fire Resistance for Steel Structures of Ships and Offshore Platforms. Fire, 5(1), 9. https://doi.org/10.3390/fire5010009

