E-Archeo Project: The 3D Reconstruction of the Roman Villae in Sirmione and Desenzano (Brescia, Italy)
Abstract
:1. Introduction
1.1. Aims of This Paper
- (1)
- The conduct of surveys of both sites using drones and other techniques and the production of phase plans to gather data for virtual reconstructions.
- (2)
- The study of wall structures, wall paintings, floor coverings, and architectural and statuary elements to compare them with better-preserved examples that could inspire virtual reconstructions.
- (3)
- The use of virtual reconstructions as a tool for scientific investigation by mapping the scientific back-end of the reconstructive hypothesis.
- (4)
- The development of a narrative based on scientific and research content to meet the interests of a broader audience. On the one hand, captivating narratives are provided to the curious visitor, focused on daily life in these places and the relationship between the villas and the natural landscape; on the other, information on the levels of reliability of the reconstructions, sources, and interpretative processes are available for scholars.
- (5)
- The production of texts for a web app developed for the project and used as a basis for content in podcasts, video documentaries, and installations.
- (6)
- The sharing of plans, reconstructive studies, photogrammetry surveys, and iconographic, historical, and archaeological studies on Zenodo.
1.2. Structure of the Paper
2. Methodologies
2.1. Survey of Archaeological Areas
2.2. Extended Matrix
- -
- red for preserved and/or documented archaeological remains;
- -
- blue to identify virtual restorations derived from physical evidence;
- -
- dark yellow for elements that were not found in situ and have been repositioned and light yellow for the anastylosis of missing parts;
- -
- green to identify elements reconstructed without physical evidence but based on deductive processes.
3. The Virtual Reconstructions of the Villas
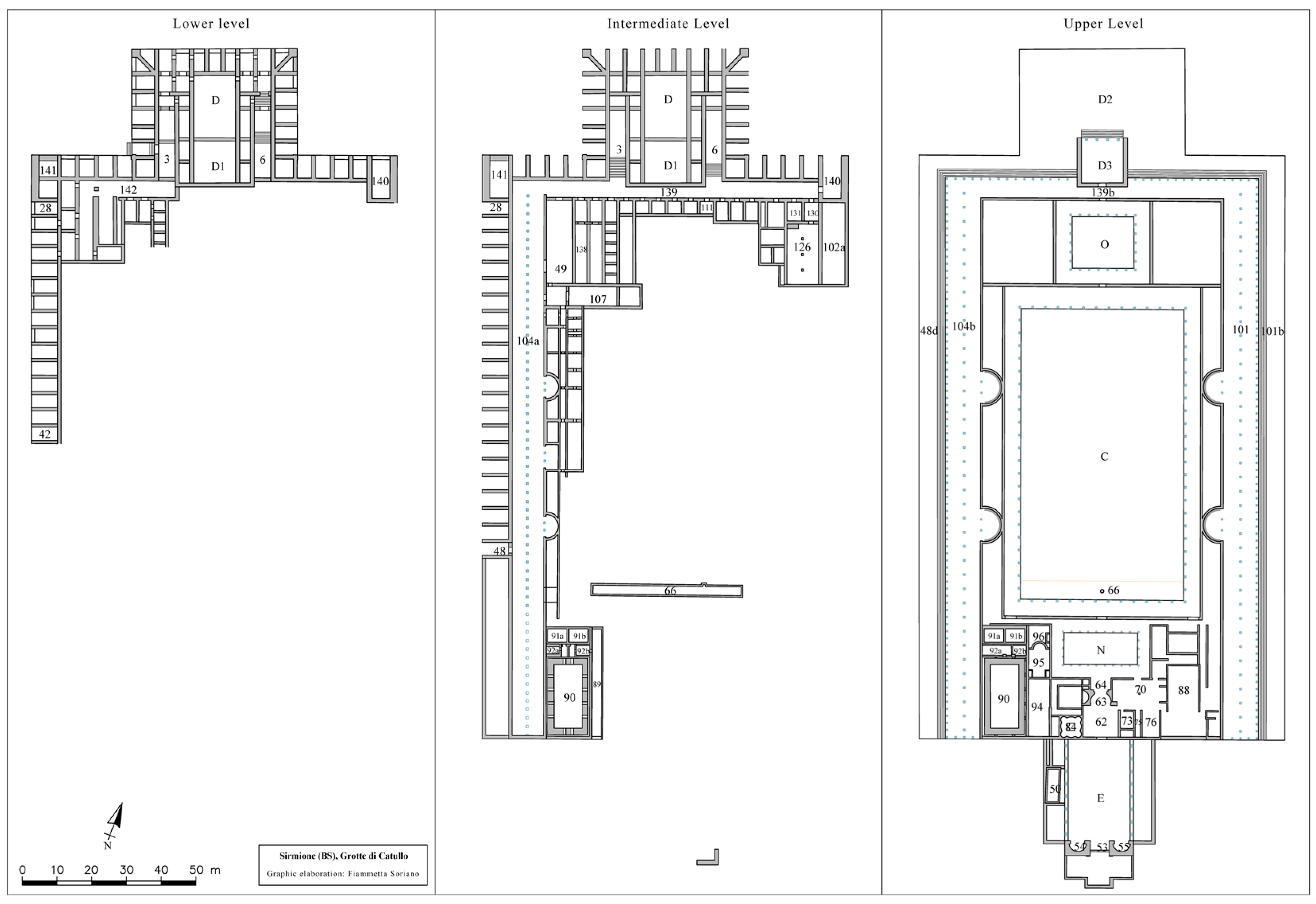
3.1. Sirmione: ”Grotte di Catullo”
3.1.1. Presentation of the Site
3.1.2. Reconstructive Hypothesis
3.1.3. Reconstructive Plans, Sections and Elevations
3.1.4. Wall Decoration
3.2. Desenzano: Roman Villa
3.2.1. Presentation of the Site
3.2.2. Reconstructive Hypothesis
3.2.3. Wall Decoration
4. E-Archeo 3D
4.1. The Web App
4.1.1. Structure of the App
4.1.2. Storytelling
4.2. “Grotte di Catullo”, Sirmione
4.3. Roman Villa, Desenzano
5. Conclusions
- -
- The web app discussed in this article (e-Archeo 3D), where great attention was paid to the relationship of the sites with nature;
- -
- One of the eight podcasts developed from the historical–archaeological narratives of the site (e-Archeo—Voices);
- -
- An application developed for Sirmione (and Cerveteri), where a character—Catullus, in the case of Sirmione—played by an actor in costume, interacts with the user, telling the archaeological area’s story (e-Archeo HI—Human Interface).
Author Contributions
Funding
Data Availability Statement
Acknowledgments
Conflicts of Interest
References
- Pietroni, E.; Menconero, S.; Botti, C.; Ghedini, F. e-Archeo: A Pilot National Project to Valorize Italian Archaeological Parks through Digital and Virtual Reality Technologies. Appl. Syst. Innov. 2023, 6, 38. [Google Scholar] [CrossRef]
- Zenodo, e-Archeo Collection. Available online: https://zenodo.org/communities/e-archeo/ (accessed on 5 February 2023).
- Roffia, E. Architettura e ambiente naturale nelle ville lacustri benacensi. In Vivere in Villa. Le Qualità delle Residenze Agresti in età romana. Atti del Convegno Ferrara—Gennaio 2003; Ortalli, J., Ed.; Quaderni degli Annali dell’Università di Ferrara, Sezione Storia, 3; Le Lettere: Firenze, Italy, 2006; pp. 219–260. Available online: https://www.academia.edu/63200776/Architettura_e_ambiente_naturale_nelle_ville_lacustri_benacensi (accessed on 5 February 2023).
- Scagliarini Corlàita, D.; Albini, M.; Bertolotti, C.; Rossi, F. Villa romana. Desenzano. In Itinerari dei Musei, Gallerie, Scavi e Monumenti d’Italia, 13; Istituto poligrafico e Zecca dello Stato: Rome, Italy, 1992. [Google Scholar]
- Parrinello, S. 3D BETHLEHEM City Information Models for the Management of Urban Transformation; Edifir Edizioni: Firenze, Italy, 2022. [Google Scholar]
- Pace, A.; Bursich, D. New perspectives on documenting Attic pottery. In From Pottery to Context. Archaeology and Virtual Modelling; Baldoni, V., Ed.; Archeologia e Calcolatori, All’Insegna del Giglio: Sesto Fiorentino, Italy, 2021; Volume 32.2, pp. 83–94. [Google Scholar] [CrossRef]
- Demetrescu, E. Archaeological stratigraphy as a formal language for virtual reconstruction. Theory and practice. Archaeol. Sci. 2015, 57, 42–55. Available online: https://www.sciencedirect.com/science/article/pii/S0305440315000382 (accessed on 5 February 2023). [CrossRef]
- Available online: https://www.extendedmatrix.org/ (accessed on 5 February 2023).
- Demetrescu, E. Virtual Reconstruction as a Scientific Tool: The Extended Matrix and Source-Based Modelling Approach. In Digital Research and Education in Architectural Heritage; Münster, S., Friedrichs, K., Niebling, F., Seidel-Grzesińska, A., Eds.; Springer Cham: Dresda, Germany, 2018; pp. 102–116. Available online: https://www.researchgate.net/publication/323703757_Virtual_Reconstruction_as_a_Scientific_Tool_The_Extended_Matrix_and_Source-Based_Modelling_Approach (accessed on 5 February 2023).
- Available online: https://www.yworks.com/ (accessed on 5 February 2023).
- Available online: https://github.com/zalmoxes-laran/ExtendedMatrix (accessed on 5 February 2023).
- Available online: https://www.blender.org/ (accessed on 5 February 2023).
- Ferdani, D.; Demetrescu, E.; Cavalieri, M.; Pace, G.; Lenzi, S. 3D Modellin and visualization in field archaeology. From survey to interpretation of the past using digital technologies. Groma 2019, 4, 1–21. [Google Scholar]
- Roffia, E. …una grande, e superbissima fabbrica. La villa delle “grotte di Catullo”. In Sirmione in età Antica. Il Territorio del Comune Dalla Preistoria dal Medioevo; Roffia, E., Ed.; ET edizioni: Milano, Italy, 2018; pp. 124–146. [Google Scholar]
- Roffia, E. Nuove ricerche sulla villa romana di Sirmione: Problemi di cronologia e di attribuzione. In Archeologia e Architettura Romanica nel Basso Garda Bresciano. Nuovi Contributi. Atti del Convegno; Grafo: Brescia, Italy, 1991; pp. 7–18. [Google Scholar]
- Roffia, E. Sirmione, le “grotte di Catullo”. In Ville Romane sul Lago di Garda; Roffia, E., Ed.; Lions Club: San Felice del Benaco, Italy, 1997; pp. 141–169. [Google Scholar]
- Roffia, E. Considerazioni sulle fasi più tarde delle “grotte di Catullo” a Sirmione. In La Fine Delle Ville Romane: Trasformazioni Nelle Campagne Tra Tarda Antichità e Alto Medioevo; Brogiolo, G.P., Ed.; I Convegno Archeologico del GARDA: Gardone Riviera, Italy, 1995; Mantova, Italy, 1996; pp. 43–49. [Google Scholar]
- Bolla, M. Le necropoli delle ville romane di Desenzano e Sirmione. In La Fine Delle Ville Romane: Trasformazioni Nelle Campagne Tra Tarda Antichità e Alto Medioevo; Brogiolo, G.P., Ed.; I Convegno archeologico del Garda: Gardone Riviera, Italy, 1995; Mantova, Italy, 1996; pp. 51–70. Available online: https://www.academia.edu/709296/Le_necropoli_delle_ville_romane_di_Desenzano_e_Sirmione (accessed on 5 February 2023).
- D’Anna, E.; Molari, P.G. Il velarium del Colosseo: Una nuova interpretazione; AMS acta: Bologna, Italy, 2020; Available online: http://amsacta.unibo.it/6307/1/Velarium%2007-01-2020%2B.pdf (accessed on 5 February 2023).
- Mari, Z. Substructiones. In Subterraneae Domus. Ambienti Residenziali e di Servizio Nell’edilizia Privata Romana. Il Sottosuolo nel Mondo Antico 4; Basso, P., Ghedini, F., Eds.; Cierre edizioni: Milano, Italy, 2003; pp. 66–112. [Google Scholar]
- Colpo, I. La Raffigurazione delle Ville nell’arte di I secolo d.C.; Antenor, I., Ed.; Bottega d’Erasmo: Padova, Italy, 1999; pp. 47–70. Available online: https://www.academia.edu/8195131/COLPO_I_1999_La_raffigurazione_delle_ville_nellarte_di_I_secolo_d_C_come_excerptum_della_pittura_romana_di_paesaggio_in_Antenor_Miscellanea_di_Studi_di_Archeologia_I_Padova_pp_47_70 (accessed on 5 February 2023).
- Roffia, E.; Sacchi, F. La villa delle “grotte di Catullo” a Sirmione: Proposta di restituzione e analisi della decorazione architettonica. In Balácai Közlemények IX. 2005, Internationale Tagung über Römerzeitliche Villen (Veszprém-Baláca, 2004); Veszprém Megyei Múzeumi Igazgatóság: Veszprém, Hungary, 2005; pp. 279–289. [Google Scholar]
- Cavalieri Manasse, G. La tipologia architettonica. In L’area del Capitolium di Verona: Ricerche Storiche e Archeologiche; Cavalieri Manasse, G., Ed.; Soprintendenza per i Beni Archeologici del Veneto: Padova, Italy, 2008; pp. 307–327. Available online: https://www.academia.edu/8652774/La_tipologia_architettonica (accessed on 5 February 2023).
- Delbarba, N.; Soriano, F.; Bianchi, B. Sirmione (BS), Grotte di Catullo, ipotesi ricostruttiva: Piante, sezioni, prospetti ed Extended Matrix. Zenodo 2022. Available online: https://zenodo.org/record/5985051 (accessed on 5 February 2023).
- Lerco, E.; Mancassola, N. Piante di fase della villa di Sirmione, Grotte di Catullo. Zenodo 2022. Available online: https://zenodo.org/record/5957598 (accessed on 5 February 2023).
- Bursich, D. Sirmione (BS)—Rilievi e scansione 3D delle Grotte di Catullo. Zenodo 2022. Available online: https://zenodo.org/record/6047571 (accessed on 5 February 2023).
- Bianchi, B. Nuovi Dati Dalla Villa “Grotte di Catullo” a Sirmione. Le Pitture di un Ambiente Collegato al Criptoportico, Antike Malerei Zwischen Lokalstil und Zeitstil? Zimmermann, N., Ed.; Atti XI. Internationales Kolloquium der AIPMA (Efeso, 13–17 settembre); Österreichische Akademie der Wissenschaften: Wien, Austria, 2014; pp. 537–541, Taf. CLXIX, Abb.1–4. [Google Scholar]
- Mols, S.T.A.M.; Moormann, E. M. La Villa della Farnesina, Le Pitture; Mondadori: Milano, Italy, 2008. [Google Scholar]
- Bianchi, B. 3. La decorazione degli ambienti residenziali. In “Le grotte di Catullo” a Sirmione. Guida Alla Visita Della Villa Romana e del Museo; Roffia, E., Ed.; Polo Museale Regionale della Lombardia: Brescia, Italy, 2018; pp. 89–99. [Google Scholar]
- Scagliarini Corlàita, D. La villa di Desenzano. Vicende architettoniche e decorative. In Studi Sulla Villa Romana di Desenzano; 1, Settore cultura e spettacolo. Raccolte Archeologiche e Numismatiche; Comune di Milano: Milano, Italy, 1994; pp. 43–58. [Google Scholar]
- Rossi, F.; Portulano, B. Nuovi scavi nell’area della villa romana, 1988–1990. In Studi Sulla Villa Romana di Desenzano; 1, Settore cultura e spettacolo. Raccolte Archeologiche e Numismatiche; Comune di Milano: Milano, Italy, 1994; pp. 148–171. [Google Scholar]
- Scagliarini Corlàita, D.; Coralini, A.; Ghetti, R.; Compostella, C. Le sculture. In Studi Sulla Villa Romana di Desenzano; 1, Settore cultura e spettacolo. Raccolte Archeologiche e Numismatiche; Comune di Milano: Milano, Italy, 1994; pp. 59–104. [Google Scholar]
- Arslan, E.A. Le monete. In Studi Sulla Villa Romana di Desenzano; 1, Settore cultura e spettacolo. Raccolte Archeologiche e Numismatiche; Comune di Milano: Milano, Italy, 1994; pp. 115–144. [Google Scholar]
- Scagliarini Corlàita, D. La villa di Desenzano del Garda. In Ville Romane Sul Lago di Garda; Roffia, E., Ed.; Lions Club: San Felice del Benaco, Italy, 1997; pp. 191–215. [Google Scholar]
- Scagliarini Corlàita, D. Gli ambienti poligonali nell’architettura residenziale tardoantica. In CARB XLII; Edizioni del Girasole: Ravenna, Italy, 1995; pp. 837–873. [Google Scholar]
- Baldini Lippolis, I. La Domus Tardoantica. Forme e Rappresentazioni dello Spazio Domestico nelle Città del Mediterraneo; University Press Bologna: Imola, Italy, 2001; pp. 79–83. [Google Scholar]
- Settis, S. Le Pareti Ingannevoli. La Villa di Livia e la Pittura di Giardino; Mondadori Electa: Milano, Italy, 2002. [Google Scholar]
- Bragantini, I.; De Vos, M. Museo Nazionale Romano. Le Pitture. II, 1. Le Decorazioni della Villa Romana della Farnesina; De Luca: Roma, Italy, 1982. [Google Scholar]
- De Vos, M. Funzione e Decorazione dell’Auditorium di Mecenate, Roma Capitale 1870–1911. L’archeologia in Roma Capitale tra Sterro e Scavo; Catalogo Della Mostra: Venezia, Italy; Padova, Italy, 1983; pp. 231–247. [Google Scholar]
- Salvadori, M.; Pavan, G.M.B. Dall’Hortus Pictus al Locus Amoenus Cristiano: Sopravvivenza e Risemantizzazione di un Tema Iconografico Negli Affreschi Dell’aula sud Della Basilica di Aquileia, Aquileia Nostra; Associazione Nazionale per Aquileia: Aquileia, Italy, 2012; Volume LXXXIII–LXXIV, pp. 345–357. [Google Scholar]
- Zimmermann, N. Die Entwicklung der Wandmalerei in kleinasien von der griechischen bis zur römischen Zeit am Beispiel von Ephesos. In Pitores per Provincias II Status Quaestionis; Dubois, Y., Ed.; Actes du 13e Colloque de l’AIPMA (Losanna 12–16 Settembre 2016; Archéologie Suisse: Basel, Switzerland, 2018; pp. 239–256. [Google Scholar]
- Bianchi, B. Via Antiche mura. Un caso esemplificativo di pittura tardo antica. In Sirmione in Età Antica. Il Territorio del Comune dalla Preistoria al Medioevo; Roffia, E., Ed.; Ed. ET.: Milano, Italy, 2018; pp. 210–222. [Google Scholar]
- Bianchi, B. La decorazione dell’edificio. La decorazione pittorica della villa. In tonaci dipinti. In La Villa Romana dei Nonii Arrii a Toscolano Maderno; Roffia, E., Ed.; Edizioni ET: Milano, Italy, 2015; pp. 169–187. [Google Scholar]
- e-Archeo Project, Website. Available online: https://e-archeo.it/en/ (accessed on 10 March 2023).
- Fanini, B.; Ferdani, D.; Demetrescu, E.; Berto, S.; d’Annibale, E. ATON: An Open-Source Framework for Creating Immersive, Collaborative and Liquid Web-Apps for Cultural Heritage. Appl. Sci. 2021, 11, 11062. [Google Scholar] [CrossRef]
- ATON. Available online: https://osiris.itabc.cnr.it/aton/ (accessed on 5 February 2023).
- Delbarba, N. Sirmione (BS), Grotte di Catullo, storytelling e campagna fotografica (progetto e-Archeo). Zenodo 2022. [Google Scholar] [CrossRef]
- Marinello, A. Desenzano (BS), Villa romana: Storytelling e campagna fotografica (e-archeo project) (Version 1). Zenodo 2022. [Google Scholar] [CrossRef]
- Basso, P.; Dobreva, D. Aquileia: First Results from the Excavations of the Marketplace and Late Antiquity Town Walls (Part One); FOLD&R Italy Series 482; 2020; pp. 1–20. Available online: www.fastionline.org/docs/FOL-DER-it-2020-482.pdf (accessed on 5 February 2023).
- Basso, P.; Dobreva, D. Aquileia: First Results from the Excavations of the Marketplace and Late Antiquity Town Walls (Part Two); FOLD&R Italy Series 483; 2020; pp. 1–31. Available online: www.fastionline.org/docs/FOLDER-it-2020-483.pdf (accessed on 5 February 2023).
- Basso, P.; Dobreva, D.; Laserra, S. Aquileia: Le Mura Tardoantiche nel Settore Meridionale della Città fra Indagini d’ar-chivio e Dati di Scavo; Atlante Tematico Topografia Antica: Rome, Italy, 2022; Volume 32, pp. 87–112. [Google Scholar]





























Disclaimer/Publisher’s Note: The statements, opinions and data contained in all publications are solely those of the individual author(s) and contributor(s) and not of MDPI and/or the editor(s). MDPI and/or the editor(s) disclaim responsibility for any injury to people or property resulting from any ideas, methods, instructions or products referred to in the content. |
© 2023 by the authors. Licensee MDPI, Basel, Switzerland. This article is an open access article distributed under the terms and conditions of the Creative Commons Attribution (CC BY) license (https://creativecommons.org/licenses/by/4.0/).
Share and Cite
Basso, P.; Bianchi, B.; Bursich, D.; Delbarba, N.; Marinello, A.; Soriano, F. E-Archeo Project: The 3D Reconstruction of the Roman Villae in Sirmione and Desenzano (Brescia, Italy). Appl. Syst. Innov. 2023, 6, 59. https://doi.org/10.3390/asi6030059
Basso P, Bianchi B, Bursich D, Delbarba N, Marinello A, Soriano F. E-Archeo Project: The 3D Reconstruction of the Roman Villae in Sirmione and Desenzano (Brescia, Italy). Applied System Innovation. 2023; 6(3):59. https://doi.org/10.3390/asi6030059
Chicago/Turabian StyleBasso, Patrizia, Barbara Bianchi, Daniele Bursich, Nicola Delbarba, Alessandra Marinello, and Fiammetta Soriano. 2023. "E-Archeo Project: The 3D Reconstruction of the Roman Villae in Sirmione and Desenzano (Brescia, Italy)" Applied System Innovation 6, no. 3: 59. https://doi.org/10.3390/asi6030059
APA StyleBasso, P., Bianchi, B., Bursich, D., Delbarba, N., Marinello, A., & Soriano, F. (2023). E-Archeo Project: The 3D Reconstruction of the Roman Villae in Sirmione and Desenzano (Brescia, Italy). Applied System Innovation, 6(3), 59. https://doi.org/10.3390/asi6030059

