Next Article in Journal
Urban Compactivity Models: Screening City Trends for the Urgency of Social and Environmental Sustainability
Previous Article in Journal
Chemical Fractionation of Sediment Phosphorus in Residential Urban Stormwater Ponds in Florida, USA
 
 
Font Type:
Arial Georgia Verdana
Font Size:
Aa Aa Aa
Line Spacing:
Column Width:
Background:
Article

An Integrated Economic-Energy-Environmental Framework for the Assessment of Alternative Eco-Sustainable Building Designs

by
Maria Rosaria Guarini
1,*,
Francesco Sica
1,
Pierluigi Morano
2 and
Josè Antonio Vadalà
1
1
Department of Architecture and Design, Sapienza University of Rome, 00196 Rome, Italy
2
Department of Sciences of Civil Engineering and Architecture, Polytechnic University of Bari, 70125 Bari, Italy
*
Author to whom correspondence should be addressed.
Urban Sci. 2021, 5(4), 82; https://doi.org/10.3390/urbansci5040082
Submission received: 31 August 2021 / Revised: 5 October 2021 / Accepted: 17 October 2021 / Published: 27 October 2021

Abstract

:
The International Energy Agency (2019) states 40% of CO2 emissions in cities are linked to the buildings stock, in particular to heating and cooling systems, material types and users’ performance. According to Green New Deal, the energy transition of buildings is becoming a priority. This is via investments with low environmental impacts through renewable energy sources. The paper describes an integrated economic-energy-environmental framework (IE3F), i.e., an economic evaluation protocol for new constructions and/or existing renewal projects aimed at supporting the choice phase between alternative technological solutions based on biocompatible materials. The IE3F borrows the logical-operative flow of the life cycle assessment multi-criteria approach. The value aspects translated into monetary terms that characterize the project life cycle are taken into account. The protocol was tested on an emergency project in Italy, namely in Messina City. The results obtained provide evidence of the versatile use of IE3F and its practical utility to guide economic convenience judgements on building investments and choice problems between alternatives in sustainable perspective. The research deepening will be about keeping track of multiple performance levels of the construction, not only the energy performance, and attempting to estimate the corresponding economic value in terms of increase/decrease of construction cost value.

1. Introduction

Through the second half of the 20th century, the evolution of people’s living conditions in cities and the progressive increase in awareness of the fast climatic changes produced by human activities on the existing natural environment have led to the research and implementation of settlement transformation projects based on the efficient use of available material and immaterial resources. This is to direct the building sector to the pursuit of 17 sustainable development goals as declared in the Agenda 2030 by the United Nations in 2015 [1]. In order to promote cities’ sustainability (SdG 11), it is necessary to provide actions in order to address climate change (SdG 13) and to promote social inclusion (SdG 10), the citizens’ psycho-physical well-being (SdG 3) and economic growth (SdG 8). The pursuit of these objectives can take place in building sector design solutions with low environmental impact and a green-safe footprint.
Since the 1980s, there has been an increase in the design and construction of buildings implementing technologies, construction methods and building materials with a low environmental impact [2]. The aim is to safeguard and enhance the ecosystem through the management and use of the natural resources of the area, for the creation of buildings and infrastructures compatible with the settlement context and its own social, economic and environmental characteristics [3,4].
In order to safeguard and reduce the consumption of natural resources and the impact on the environment of in situ transformations, in the last twenty years of the 20th-century directives, recommendations and regulations have been promulgated in Europe for identifying and establishing the minimum performance levels to guarantee in buildings with appropriate construction technologies, both in the cases of new buildings and/or renovation of existing ones, with building materials as synergetic and respectful of the reference context as possible [5,6,7,8,9,10,11]. In the range of directives proposed at the European level, many of them are focused on the performance characteristics of buildings and infrastructures, and, in particular, their technological and constructional aspects, from the point of view of energy consumption and environmental impact. Most recently, Directive 2018/844/EU, in amending Directives 2010/31/EU (concerning the definition of energy performance characteristics of buildings), 2012/27/EU (which sets out the methodology and calculation procedure for verifying the energy efficiency of new buildings) and 2002/91/EC (which requires that new buildings and existing buildings under renovation meet minimum energy performance requirements), has set out some guidelines on energy efficiency that the Member States of the European Community must take into account in their policies [12]. All for the common goal of increasing the construction of buildings with almost zero or very low energy requirements.
The European policy guidelines direct Member States to design and construct nearly zero-energy buildings seen as “[…] a very high energy performance building whose very low or nearly zero energy requirements should be covered to a very significant extent by energy from renewable sources, including energy from renewable sources produced on site or nearby by means of cost-effective, energy-efficient materials” [13].
Experiments performed during the 21st century in countries such as Germany, Finland and Spain promote sustainable buildings according to the zero-energy building model. These are characterized by the implementation of design actions, on a building and urban planning/design scale, for reducing the emission of greenhouse gases into the atmosphere and energy consumption through energy supply systems based on the use of natural materials and innovative building systems. In particular, the solutions of natural materials or elements of a natural matrix, such as straw or laminated wood, in the construction phase, and subsequently in the management and operation of the work, help to reduce energy demand by limiting the need for heating and cooling, thus improving the energy performance of the building, its consequent environmental impact and the overall cost of the intervention [14,15,16,17].
With the aim of describing and establishing the minimum performance levels to be guaranteed during the realization and management of building-infrastructure works according to the zero-energy building model, the European Union proposes systems of analysis and evaluation of building performance based on the “principle of optimality” of the performance and economic characteristics, linked to the different phases of the life cycle of a project. The use of these systems allows public and private operators to estimate the energy performance level, with reference to both renovated buildings and new constructions, in view of the lowest cost estimated during the entire life cycle. They consider the relative construction costs, ordinary and extraordinary maintenance, management, dismantling of the building and disposal of the used materials. These evaluation systems based on the triad “economy–energy–environment” support the idea, design and realization of energy-efficient building systems by also taking into account the corresponding cost items, and not only parameters representing energy performance.
The standard UNI EN 15603:2008 “Energy performance of buildings—Global energy consumption and definition of energy assessment methods”, classifies the methodologies for an energy buildings audit into two main assessment procedures: (i) energy rating; (ii) measured rating [18]. The energy rating provides the energy demand of the building according to the most usual climatic and management conditions related to the type of indoor environment involved. This implies the preliminary definition and subsequent use of parameters related to lighting, ventilation, crowding, etc., in correspondence of the different indoor thermal zones, which instead conserve morphologies and technological-constructive project characteristics. The measure rating, on the other hand, allows the energy performance to be expressed by estimating the annual energy consumption during the life cycle of the building, also taking into account the corresponding cost items. Both methodologies analyze the building performance in view of the choices made on the types of construction solutions to be adopted during the design and construction phases from the energy, material, economic and environmental perspectives.
Subsequently, the standard EN 15643-2:2011 provides specific principles and requirements for the assessment of building performance taking into account the technical characteristics, associated costs and functionality of a building over its life cycle (life cycle assessment, LCA). The LCA quantifies the potential effects of a product (e.g., building) over its life cycle from cradle to grave in terms of cost items (life cycle cost, LCC).
In relation to the growing interest for low energy consumption in buildings and the related impact on the environment in Europe and an international context, there is a lack of a unitary evaluation strategy able to promote a way of designing interventions of settlement transformation based on the integrated use of low-impact materials for the creation of energy-efficient buildings that are convenient in their construction, management and maintenance in terms of the related construction and management costs. This can also be seen by reading the legislative apparatus that each country, especially in Europe, has put in place regarding the use of renewable energy sources for the construction of energy-efficient buildings and the design of low environmental impact interventions on the construction system. In this case, the Italian model is of interest and it will be discussed in the following section of this paper.
To obtain an energetically efficient and economically-financially advantageous building, it is not enough to respond to the energy requirements in accordance with specific standards of reference, it is necessary to implement a design process in which the choices made in the different phases and scales (from the layout of the lot to the construction details, from the envelope solutions to the plant engineering system, from the arrangement of the interior spaces to the choice of materials) have the purpose of guaranteeing overall environmental comfort achieved through the introduction/preservation of natural elements and materials useful for reducing the use of non-renewable energy sources with a view to containing and minimizing the cost items linked to the settlement product. The complex interactions between society, environment and economy require integrated design solutions that take into account the complexity of the system in which we operate, and overcome the limits imposed by considering the various aspects that characterize the project’s life cycle phases in a separate and sectoral way. In order to respond to these requirements of complexity, it is necessary to adopt an approach to design based on an operational plan that allows the development of interventions in a multi-dimensional, multi-temporal and multi-semantic key. The final result of this process is the elaboration of a “coordinated building unitary system” represented by the built/natural product; chosen by, and commensurate with, taking into account the benefits derived from the use of specific materials in the atrophic environment.
To jointly consider the energetic, ecological-environmental and economic-financial aspects, the use of multi-criteria evaluation approaches allow the expression of the multiple aspects that a settlement transformation project can have when conceived and carried out according to the logic of integration between multiple factors, both with regard to the building environment and the surrounding context. In Italy, for example, the document “Prassi di Riferimento sulla sostenibilità ambientale nel mondo delle costruzioni”, produced in collaboration between the Istituto per l’Innovazione e la Trasparenza degli Appalti e Compatibilità Ambientale (ITACA) and the Italian Standards Institute (ISI), allows the formulation of a synthetic judgement on the performance of buildings, thanks to specific multi-criteria analyses useful for assessing the environmental and economic sustainability of buildings, carrying out their performance classification by assigning a score. It is an operational/practical tool that ISI has provided for designers, construction managers and builders to meet an ever-increasing demand for qualification in the building sector. The object of the evaluation is the entire building with its external pertinent area and not the individual building unit. The document is used to calculate the performance score of new and renovated buildings (residential and not) [19].

2. Work Aims

In order to formulate economic and financial judgements on the possibility of designing and implementing settlement transformation interventions, taking into account not only monetarily expressible value aspects (settlement production and management costs of the project life cycle, including building dismantling and disposal costs) but also the impacts on the environment as a result of the instrumental use of the existing natural sector; for example, for the use of eco-compatible materials, this work proposes an economic-energetic-environmental framework (integrated economic-energy-environmental framework, IE3F) aimed to support the feasibility of design solutions based on the implementation of eco-compatible natural materials according to an integration logic between multiple aspects related to the different phases of the project life cycle. This is according to a multi-criteria evaluation approach [20,21,22,23,24,25,26,27] in terms of energy performance, construction costs and environmental impact of each design solution. The quantification of each factor taken into consideration during the evaluation phase is related to the life cycle of the intervention and its individual component steps.
The proposed evaluation framework is based on the methodological development of the life cycle assessment (LCA), defined by ISO 14040/44:2006 and provided by the EN 15643-2:2011 standard, through which it is possible to evaluate the life cycle of a project, taking into account its technical characteristics, its costs (life cycle cost, LCC) and its energetic-environmental performance. The LCA quantifies the energetic and environmental loads, as well as the potential effects, both monetary and non-monetary, during the life cycle of the project to be built. The IE3F supports the mechanisms of evaluation, selection and adoption of alternative eco-compatible technological-constructive systems with the quantification of the corresponding LCC seen as a selection driver between multiple alternatives. The IE3F can be usable in the assessment process related to new construction and/or interventions for the built environment conservation.
In the case of the current work, the validation of the proposed integrated economic-energy-environmental framework (IE3F) is carried out with reference to an ex novo intervention for emergency housing in Messina City in Italy. According to the Italian legislative system concerning the production, consumption and use of renewable energy sources, and with reference to the choice between two different alternative building systems based on different eco-compatible building materials (straw bales and x-lam laminated wood), a performance-based analysis of two building systems is carried out in terms of costs, energy and environmental consumption, considering the impacts produced in the entire life cycle of the suggested project.
In the following, the work is articulated in: Section 3, where the main indicators/measurement parameters for the analysis of the energetic-environmental performance of buildings are collected (Section 3.2) and for the determination of the life cycle cost (Section 3.3), and finally, the steps of the proposed integrated economic-environmental framework are described (Section 3.4); Section 4, illustrates the case study chosen for the implementation of the methodological assessment apparatus proposed in Section 3; in Section 5, the conclusions and the development prospects of the conducted research are illustrated.

3. Materials and Methods

3.1. Premise

To be able to measure the multi-dimensional character of initiatives aimed at building structures with low environmental impact, lower energy consumption, taking into account the value costs of construction and management related to the life cycle of the building in consideration of the type of materials and construction systems, it is appropriate to use multiple indicators (drivers) able to express at the same time the energetic qualities performance of the technological components of interest in relation to the material type, parameters explaining the costs to be sustained in the design, realization, management and dismantling phase, as well as economic-financial factors useful to express monetarily the impact on the surrounding environment within the life cycle of the intervention due to the type of material used. The use of appropriate indicators to measure the relative energy performance and related economic value.
With a point of view oriented to multiple evaluation aspects regarding the same building system, the following section illustrates the set of indicators (Section 3.2) specifically designed to measure the energy performance of the building as a result of the technological components used, as well as the cost items related to the phases characterizing the life cycle of a building work that contribute to the development of the corresponding LCA (Section 3.3).
Having defined the main drivers behind the IE3F, the proposed evaluation approach is illustrated (Section 3.4). This approach makes it possible to formulate judgements of convenience on settlement transformation interventions developed in an integrated way. This is done by taking into account the indicators jointly expressing the energy performance, the environmental impact, the cost items related to the construction system and the energy-environmental performance of the building according to the type of construction system considered and the technical performance aspects of the construction material.

3.2. Energy Performance Indicators for Sustainable Building Projects

In order to express and be able to quantify the energy performance levels in consideration of the construction and technological solutions chosen to build the construction, it is possible to use a series of parameters through which the life cycle can be monitored from an energy point of view. The performance indicators used for the development of the case studies (Section 3.2), some known in literature and some others illustrated in normative documents for energy efficiency to be applied to the building sector and infrastructure works (Table 1 b), are collected in key sectors (Table 1 a) according to the type of indicator considered. In correspondence with the identified sector, the evaluation variables are specified (Table 1 c). They are used for the quantitative and/or qualitative measurement of the i-th indicator.
Specifically, the energy sector indicators, extracted by Guarini, M.R. (2019) [28], make it possible to measure the building’s energy requirements as a function of the technological solutions used during its construction, as well as the level of energy consumed during its life cycle.
Each type of indicator can be estimated using quantitative and/or qualitative measurement methodologies. In the case of qualitative methods, which are used when dealing mainly with indicators referring to environmental-perceptive aspects that are difficult to calculate numerically in an objective manner, it is possible to use, for example, a scale of values according to which a score can be attributed in an increasing or non-increasing way according to the grade of satisfaction of the reference energy performance level. Or, where it is necessary to express these energy indicators quantitatively, it is possible to make use of methods-tools, as well as parametric reference information found in the scientific literature, suitable to support the process of calculating and analytically defining the performance characteristics of interest. The plan configuration is one of the main variable drivers thaht can influence the net energetic demand of building. This is according to urban programmatic disposals of the territorial context of reference, and also to proper bi-tridimensional construction features obtained on the basis of the technological and design solutions with corresponding performance characteristics adopted in the construction phase. In the present research, some of the variables in Table 1 will be adopted as the main drivers of energetic building demand, namely the embodied energy (EE) and global warming potential (GWP).

3.3. Life Cycle Cost Assessment Indicators

The importance of the life cycle cost, defined by ISO 15686-5:2008, lies in the identification of the total global cost (global building cost, CG) of the intervention which takes into account the economic and environmental impact derived from the transformation intervention to be realized. In particular, the development of the life cycle cost analysis aimed at determining the global building cost passes through the following steps:
  • The estimation of the global building cost through the identification of all those costs involved in the entire life phase of the building: 1) construction costs, 2) costs during the operating phase (electricity, ordinary and extraordinary maintenance), 3) costs at the end of life (dismantling and disposal);
  • The determination of the global environmental cost, i.e., the costs of energy-environmental indicators such as embodied energy (EE) and global warming potential (GWP).
In light of this, the mathematical expression (1) taken from Fregonara, E et al. (2017) is valid for the monetary quantification of the global building cost (CG) as a function of: environmental costs (CAM) referred to the life cycle of the project; the construction cost of the building (Cc); costs of ordinary and extraordinary maintenance (Cm); costs related to energy consumption recorded in the exercise phase of the intervention in relation also to the technical solutions and technical-performance features of the materials used (Ce); dismantling costs (Cdm); disposal costs (Cdp); residual value (Vr); discount rate (r); number of years of analysis (t) [29].
C G =   C C +   C AM + ( C M +   C e ) ( 1 + r ) t + ( C dm +   C dp   V r ) ( 1 + r ) t
In the case that EE and GWP with their associated costs are taken into account as energy performance terms, the expression in Equation (1) for CAM takes on the following connotation
C G =   C C +   C EE + C GWP +   ( C M +   C e ) ( 1 + r ) t + ( C dm +   C dp   V r ) ( 1 + r ) t
In order to be able to formulate a judgement of convenience, the quantities Cm, Ce, Cdm, Cdp and Vr are actualized using the logical-mathematical tools of financial mathematics. Specifically, Cm and Ce shall be discounted by multiplying the corresponding sum with reference to a time period coinciding with the exercise phase of the project life cycle. On the other hand, Cdm, Cdp and Vr must be discounted by considering the time of the useful life of the project.
The estimation of Cc can be carried out analytically through the preparation of an appropriate metric calculation, or by performing a synthetic-comparative procedure based on the identification of parametric costs. The estimation phase related to both costs and energy performance of the building systems to be considered is included in the proposed evaluation approach illustrated in the following Section.

3.4. Integrated Economic-Energy-Environmental Framework Proposed

The methodological approach that is proposed to estimate interventions integrating economic, energetic and environmental aspects linked to the technical-constructive features of the project and the corresponding design solutions has been developed using the principles of multi-criteria analysis. On the basis of these principles, it is possible to identify the existing relationships between the elements characterizing the assessment problem considered, i.e., the identification of the best technological design practice from the economic-energetic and environmental point of view for new constructions, through functional links between multiple parameters of different natures in order to produce a unitary view of the design case to be assessed.
The structuring of the proposed methodological approach can be summarized in an interactive and iterative integrated process structured in the following phases:
  • Analysis of the technological-constructive system of the building construction at the basis of the settlement transformation intervention under examination. From the description of the geo-locational, architectural, technical-constructive and plant engineering aspects of the project, are collected data of the construction to be built, which are necessary to calculate the energy performance as well as the cost items that characterize the life cycle of the project, useful to estimate the global, technical and environmental cost of the intervention (global building cost and global environmental cost);
  • Life cycle cost analysis of the intervention. Quantification, measurement, evaluation of the single cost items functional to the measurement of the global cost of the intervention (global building cost, CG) and of that attached to the impact that the project causes on the environmental context of reference (global environmental cost). This is based on the logical-functional articulation of Equation (2) at the basis of the LCC analysis illustrated in Section 3.3. The estimate of the environmental costs is a function of the energy level of the building and/or infrastructure, following the implementation of appropriate technological-constructive solutions characterized by the use of eco-compatible building materials. The energy audit of the building is expressed by means of performance indicators that can be found in literature and/or in European and/or international policy documents (cfr. Table 1);
  • Estimation of the global building cost (GC) and global environmental cost of the intervention along its life cycle in consideration of the typology and of the technical-impacting characteristics of the eco-compatible technological solutions to be implemented.
Demonstration of the operational development of the steps underlying the proposed integrated economic-energy-environmental framework (IE3F) is conducted in Section 4 of the case study.

4. Case Study

4.1. Captation

In order to formulate economic and financial judgements on the possibility of designing, building and managing projects in which it may be necessary to choose between different eco-compatible building materials, a comparative analysis is carried out bearing in mind two building systems to be used in the same new construction project.
Specifically, it is intended to compare the performance of the wall system made of straw bales (MBP) with the wood one (XLAM). The two construction types are analyzed and compared with a multi-criteria approach in terms of energy performance, construction costs and environmental impact.
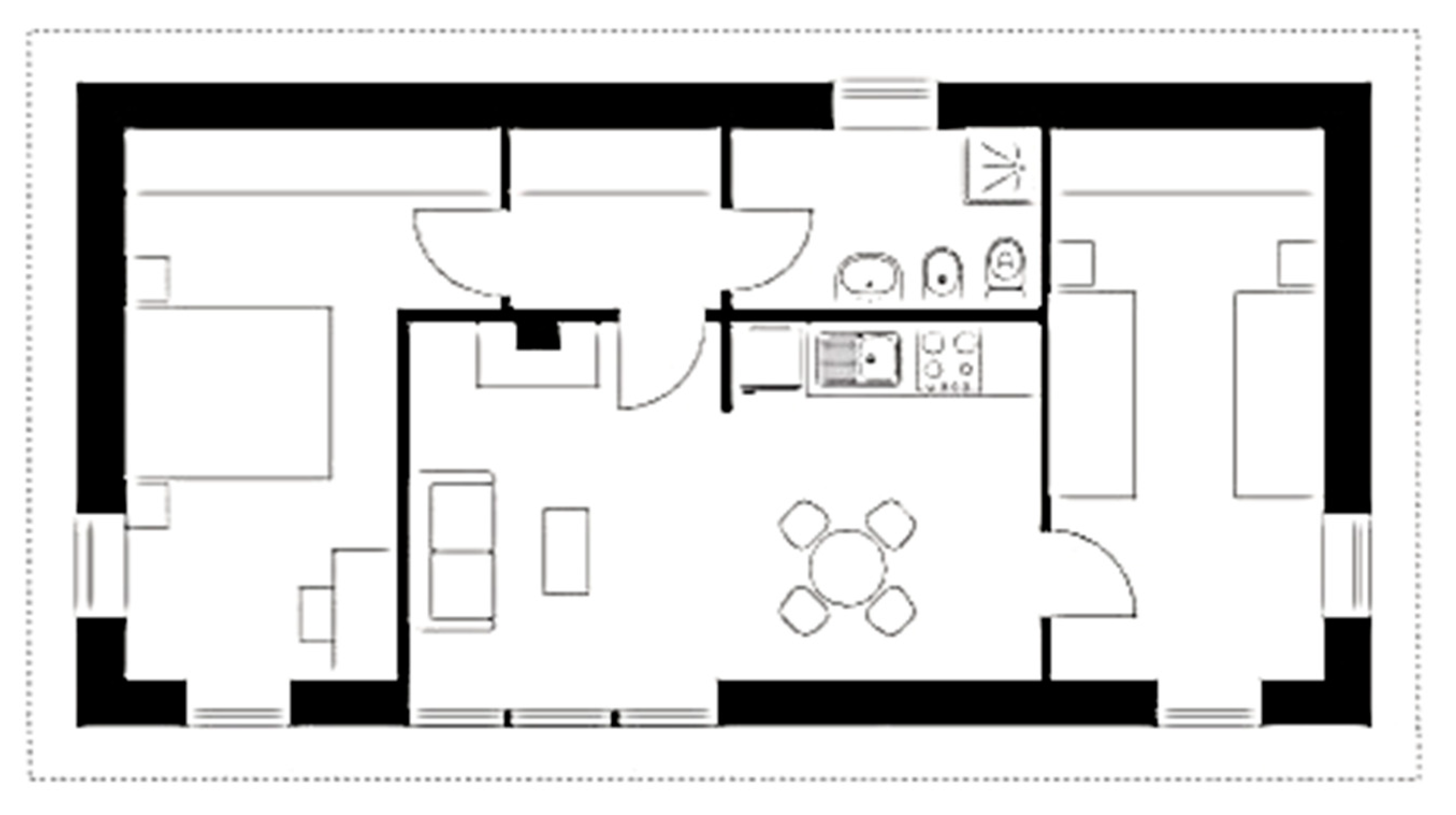
As a reference dwelling for the solution with a load-bearing structure in wood and a straw bale, we examined one of the housing modules built in the eco-village (EVA project) in Pescomaggiore (Italy) after the earthquake that devastated L’Aquila city on 6 April 2009 in which seven housing modules were built, three of 40 and four of 56 sqm. That of 56 sqm. is taken into account for implementing the IE3F proposed. In Figure 1, a type plan is illustrated.
It was adopted to apply the IE3F on a construction of this size and with simple morphological traits as they are intervention examples of an emergency nature usually made through low-impact materials, like straw bales. Therefore, thanks to their regular plan the calculation of cost voices of the building processing considered in the comparative analysis between XLAM with MBP results in being more expeditious and controllable in the test of the proposed IE3F. This as well as consequent rapidity in computing the estimated metric calculations of technological solutions (XLAM and MBP) concerning the executive design phase of the intervention. The building under examination can be made alternatively with load-bearing masonry: totally in wood (XLAM) or in wood and straw bales (MBP). The choice of these double technological alternatives is general track extracted after consulting the general description documents of the emergency intervention study.
The design solution to be adopted differs only for the masonry packages, inside and outside the house, keeping unchanged the type of foundations (weakly reinforced concrete slab), flooring (cement and pumice mixture) and roof (wooden trusses with a layer of cellulose fibre in the roof covering). The focus only on the masonry packages gives the possibility to appreciate the main difference underlined by the two technological solutions under examination in the economic-environmental-energetic perspective. This is even more with the purpose of implementing the IE3F according to the LCC logic.
This village was built in the implementation of DL. n.39 issued on 28 April 2009, through the announcement C.A.S.E. (24 June 2009) in L’Aquila municipality, which provided for the transfer of inhabitants whose homes had been damaged by the 2009 earthquake to newly built residential neighbourhoods. The EVA project was carried out from October 2009 to February 2010 on land granted on a free loan by some inhabitants of L’Aquila city.
In order to compare the two building systems (MBP and XLAM) as referred to the same building project, a study was carried out:
  • Analysis of the masonry system, external and internal, of the building work at the basis of the settlement transformation intervention under examination from a techno-morphological point of view and of the type of material used during the construction of the habitation, in order to define the quantity to be used and to calculate the construction cost;
  • Life cycle cost analysis of the building project in its two construction system cases (MBP and XLAM). Computation of the parameters at the basis of the corresponding life cycle cost analysis, i.e., estimation of the technical and environmental cost items related to the entire life cycle of the two construction models compared. Energy audit of the building examined by means of the analytical estimate of the embodied energy (EE) and the global warming potential (GWP) relative to the construction and the corresponding life cycle for each of the technological-constructive solutions under investigation;
  • Estimation of the global building cost (CG) and global environmental cost of the intervention for each of the technological-constructive solutions studied.

4.2. Technological-Constructive Analysis of the Masonry System of the Building at the Basis of the Settlement Transformation Intervention under Examination

With regard to the two building systems (XLAM and MBP) that could be adopted for the same type of “emergency” intervention, Figure 2 shows the stratigraphic composition of the external and internal wall packages.
In particular, in the case of XLAM, the external load-bearing walls are composed of five layers. The internal partition walls have only one layer of mineral wool (Figure 2A–C).
In the case of MBP, the load-bearing system is a wooden frame with a mono-block masonry made of straw bales (35 × 45 × 90 cm) and an internal raw earth plaster layer and an external natural lime layer (Figure 2B–D).
For each alternative construction solution, the amount of material required for its construction was quantified. The information on the quantities, expressed in terms of mass measured in kilograms of material to be used for their realization, are shown in Table 2.

4.3. Life Cycle Cost Analysis of the Project. Analytical-Parametric Estimation of Cost Items

The analytical-procedural determination of the global building cost (CG) of the two building systems examined passes through the implementation of Equation (2) of Section 3.3. Specifically, an estimation is made of the cost items that characterize the life cycle of the new building project under study, in relation to the technological systems (XLAM and MBP) under analysis.
For the integrated evaluation (environmental, energetic and economic-financial) of each building system, XLAM and MBP, finalized to the computation of the corresponding CG, parametric assumptions were made concerning some factors constituting the algebraic relation (2). In other words, the following are considered as standard parameters for the computational explication of Equation (2): the discount rate (r) equal to 1.40%; the exercise phase (t) equal to 30 years; the residual value (Vr) equivalent to 30% of the construction costs (Cc) of each technological solution examined.
The study of the energy, environmental and economic performance of XLAM and MBP, according to the life cycle cost analysis (LCC) logic, is carried out for each technological-constructive solution considered (XLAM and MBP) by estimating the items related to the construction cost (Cc); ordinary and extraordinary maintenance costs (Cm); energy consumption costs (Ce); dismantling costs (Cdm); disposal costs (Cdp). This, as already mentioned, with regard only to the external and internal walls (wall costs). The costs of the other building elements (foundations, floor, roof) of the housing module under examination are identified as “other costs” (calculated and accounted for, but in the present case, to be considered as an invariant aspect in the convenience judgement to be expressed).
In the following, we illustrate for each technical-constructive solution (XLAM and MBP) the methods of analytical-procedural determination of the items relating to: construction cost of the building (Cc); ordinary and extraordinary maintenance costs (Cm); energy consumption costs (Ce); dismantling costs (Cdm); disposal costs (Cdp).

4.3.1. Determination of the Construction Cost

In order to define the construction costs (Cc) related to the realization of the external and internal walls in MBP and XLAM (wall costs) and to the other works concerning foundations, flooring, roofing (other costs), since this is an “emergency” public project, the corresponding estimated metric calculations were drawn up with reference to the Prezziario della Regione Sicilia (2019). This was performed using the Primus ACCA PriMus-DCF software (2021). In the Supplementary Materials, the metric calculations relating to the technological solutions under-examination are uploaded.
The item referring to the cost of straw bales per square meter was calculated by drawing up a new unit price. For this purpose, it was assumed that:
  • The straw bales (35 × 45 × 90 cm) are taken from granaries located about 100 km away from the construction site;
  • Through negotiation with the direct straw producer, the purchase price per bale of straw is EUR 2.50. This is based on direct market analysis;
  • In each square metre of wall area there are 3.12 bales, each measuring 35 × 45 × 90 cm;
  • The percentage of labour incidence can be maximized to 40%.
The combination of these sub-items gives a cost per square metre of straw bales of 10.92 EUR/sqm.
The comparison of the results of the metric calculations for XLAM and MBP, illustrated in Table 3, shows a minimal difference in the construction cost in favour of the MBP housing model (−4.2%). The unit cost varies from 1.215 EUR/sqm for MBP to 1.269 EUR/sqm for XLAM.

4.3.2. Determination of the Cost of Ordinary and Extraordinary Maintenance

The determination of the ordinary and extraordinary building maintenance costs (Cm) in XLAM and MBP, summarized in Table 4, is conducted from the corresponding construction costs (Cc) of wall costs and other costs. This is achieved by applying standard percentage rates to the amount of the relative construction costs in Table 2.

4.3.3. Determination of Energy Costs

The analysis related to the energy consumption of the study building in XLAM and MBP, and to the estimate of the corresponding cost items, is carried out by comparing the performance characteristics of the building located, for hypothesis, in different geographical areas for location, morphological-urban connotation and climatic area.
The cities of Messina, L’Aquila and Bolzano were chosen as the reference cities, representing the climatic conditions of Southern, Central and Northern Italy. Appropriate environmental and climatic data necessary for the scenario analysis were collected for the three study cities (Messina, L’Aquila and Bolzano).
The construction of three analysis frameworks (Messina, L’Aquila and Bolzano) made it possible to simulate the variation of the building’s energy performance as a function of both the type of technological system to be implemented (XLAM and MBP) and the climatic and environmental conditions of the reference settlement context.
The energy performance of the building is expressed through the Energy Performance Index (EPI), also known as the consumption index, which measures the total consumption of primary energy for air conditioning referred to as the unit of usable built surface. The corresponding unit of measurement is kWh/sqm per year.
The simulation of EPI for the building changes according to the territory it belongs to and is conducted with the environmental software IDA ICE 4.8, which imputes, in addition to the bioclimatic data on a territorial scale, also parameters related to: (i) thermal transmittance (U) of each building element; (ii) cooling and heating periods of the housing systems under study.
The simulations carried out with IDA ICE 4.8 provide outputs (Table 5) for which a better energy performance, therefore a higher energy saving, is revealed for MBP, with a percentage that varies from 13 to 22%, compared to XLAM.
Based on the EPI thus obtained, the annual energy consumption costs are estimated for the two housing models (XLAM and MBP). This is achieved using the opensource software of the Autorità di Regolazione per Energia e Ambiente (ARERA). This simulator allows the identification of energy costs based not only on the EPI but also on: (i) contractual power of 3 kW with definition of hourly rates; (ii) surface area of the building concerned.
Table 6 shows the results obtained from the implementation of the ARERA calculator in the three cities of analysis. There is a clear saving (−10 ÷ −25%) in the case of MBP dwellings. This is independent of the settlement and bioclimatic context.
These results show that a design solution using straw bales is more cost-effective in terms of energy performance in all climates.

4.3.4. Determination of Disposal and Dismantling Costs

The dismantling-disposal costs (Cdmp) are obtained by adding the dismantling costs (Cdm) to the disposal costs (Cdp) in the case of MBP and XLAM, respectively.
Specifically, the dismantling costs (Cdm) are estimated as a percentage rate (5%) of the construction costs (Cc) in the case of XLAM and MBP respectively. The disposal costs (Cdp), on the other hand, are estimated on the basis of the “2020 Waste Disposal Price List” of the specialized company BWR S.r.l. The dismantling-disposal costs for the habitation in XLAM and MBP, respectively, are shown in Table 7. The results show a cost saving of 5.5% for MBP compared to XLAM.

4.3.5. Determination of Environmental Costs Related to GWP and EE Factors

For the energetic-environmental analysis of the examined intervention, the indicators in Table 1 include embodied energy (EE) and global warming potential (GWP). From the examples in literature on the recognition and adoption of the main indicators used for the energy assessment of interventions in the building field, it results frequently in the use of EE and GWP parameters as drivers for the measuring of the energy audit of new constructions and/or interventions carried out for the energetic efficiency of the existing ones.
In general, the EE accounts are obtained in two main phases.
In the first phase with regards to standard UNI 8290-1:1981: Residential building. Building elements [30]. Classification and terminology, the methodological approach divides the building into the following classes: super-structures and frameworks, wall systems, window systems, roof systems, floor systems, partitioning. Every system is made up of materials and components. The EE refers to one square meter of building system. The EE is calculated taking into account the quantity of materials (kg), the specific weight (kg/m3) and the thickness (m) necessary to fulfil the mandatory requirements provided by building codes, technical standards, etc.
In the second phase, the accounts are extended to total building systems surfaces (m2). The quantity can be different consistently to stages over the building life cycle envisaged in the analysis (design, construction, maintenance and final disposal) as follows:
EE TOT , j = i = 1 n EE TOT , i × m i
where: EETOT,j is the total embodied energy for the j-th building systems analyzed (MJ); EETOT,i is the embodied energy for the i-th material or component used in the j-th building system (MJ/kg); mi is the mass for the i-th material or component used in the j-th building system (kg/m2); n is the number of material used for the j-th building systems.
Analogously, the GWP is assessed in two phases, starting from UNI 8290-1 standard and it refers initially to the calculation of one square meter of building system. The account is given by the following formula:
EE TOT , j = i = 1 n EE TOT , i × m i
where: GWPj is the end-of-life embodied carbon for the j-th building system analyzed (kg CO2eq); GWPi is the end-of-life embodied carbon for the i-th material or component used in the j-th building system (kg CO2eq/kg).
Taking into account the expressions (3) and (4) also used in some case studies for the analytical determination of EE and GWP [31,32,33], the GWP and EE of the two building systems (XLAM and MBP) were calculated of the housing module considered. The reference studies aimed at the analytical determination of GWP and EE are carried out with dwellings of 100 m2 whose life cycle is assumed to be 30 years. From the scientific evidence of the authors Asdrubali (2015), Gonzalez and Fugler (2002), Sodagar (2011) relating to the estimation of GWP and EE for dwellings of 100 m2, numerical reference parameters are derived for the dwellings subjects of this case study. The GWP and EE values for the two building systems under investigation are collected in Table 8. The life cycle of the building is assumed to be 30 years, similar to that found in the literature.
On the basis of the total values (TOT.) in Table 8, higher values emerge for the XLAM technological model compared to the MBP construction system, in terms of both GWP (+20.0%) and EE (+6.3%).
The costs related to the parameters EE (embodied energy cost) and GWP (global warming potential cost), respectively for XLAM and MBP, are estimated taking as reference the cost of electricity (0.17 EUR/kWh) and the European Carbon Tax (22.25 EUR/tonCO2). Table 9 shows the embodied energy cost and the global warming potential cost in the case of XLAM and MBP use.

4.3.6. Estimation of Global Building Cost (CG) and Global Environmental Cost of XLAM and MBP Intervention

The individual cost items discussed in the previous sections are collected in Table 10. The combination of the cost categories of construction, maintenance, dismantling and disposal (Table 10 a) of the XLAM and MBP habitation provides the corresponding global building cost (Table 10 d). Those of embodied energy and global warming potential provide the corresponding global environmental costs (Table 10 e). The global life cycle cost (Table 10 f) of the XLAM and MBP building is obtained from the addition of the i-th global building cost and global environmental cost.
Table 11 shows the cost differential for each of the items making up the global life cycle cost of the MBP habitation compared to the XLAM habitation prototype.
The results obtained show a global cost with a saving of EUR 8987.11 for the MBP straw bale house compared to the technical-design solution in XLAM.

5. Conclusions

In 2021, the construction sector consumes 40% of energy resources, 16% of water resources and 62.5% of material resources globally each year [34,35,36,37,38,39,40]. These results in terms of the greenhouse gas emissions highlight the weight of this sector in the determination of climate change processes. This is why it seems essential to undertake ever more stringent sustainable growth paths that, in the building sector, take the form of limiting energy consumption and encouraging the use of recyclable materials with a low environmental impact [41,42,43,44,45]. The comparison between the XLAM construction system, widely used in the contemporary building world, and the MBP straw bale house shows advantageous results in both case studies, with slightly greater energy and economic savings and environmental sustainability characteristics for MBP. The straw bale dwelling, in particular, has a thermal performance that preserves considerable energy and monetary savings. Using natural materials such as straw, in the logic of contemporary building, is in fact the most compatible choice with the principles of environmental sustainability. However, in spite of the many positive aspects, there are still no straw bale dwellings higher than two floors in the context of large-scale urbanization. Today (2021), when we talk about houses, for example, straw bale houses, we are referring to rural (peripheral) habitations, far from the logic of the city and therefore from the maximization of land revenue. Despite this, the straw bale house has all the characteristics of a near-zero energy building.
With the application of the proposed framework (IE3F) it was possible to highlight how the MBP construction returns better energy and economic performance. This shows how the use of biomaterials, such as straw, in construction can act as an instrumental action for the implementation of eco-sustainable designs for a resilient economy to changing environmental policies at international and local scales.
Limits of the proposed evaluation method concern the restricted number of energy performance factors, as well as the empiric assessment of the environmental costs based on scientific evidence in the literature.
Research perspectives will concern the implementation of the proposed framework to decision-making contexts governed by multiple project alternatives evaluated not only from the energetic-environmental point of view and according to the relative cost items but also on the basis of more complex multidimensional considerations [46,47,48,49,50,51,52,53]. In particular, it will do the attempt to consider multiple performance layers of examined construction systems under different perspectives of social, environmental, economic nature, namely the effects generated by the portfolio of selected design solutions, evaluated with IE3F, on the general frame “building-context”. To this, the ecosystem-services assessment approach will be investigated as a possible pathway for future research.

Supplementary Materials

The following are available online at https://www.mdpi.com/article/10.3390/urbansci5040082/s1, The metric calculations relating to the technological solutions under-examination are uploaded in Supplementary Materials (Estimated metric calculations in accordance to Prezziario della Regione Sicilia, 2019) as table form.

Author Contributions

The four authors contributed equally to this work. In particular: Conceptualization, M.R.G., P.M. and F.S.; Data curation, F.S. and J.A.V.; Formal analysis, M.R.G., P.M. and F.S.; Investigation, F.S. and J.A.V.; Methodology, M.R.G. and F.S.; Resources, F.S. and J.A.V.; Supervision, M.R.G. and P.M.; Validation, M.R.G., P.M. and F.S.; Visualization, M.R.G., F.S. and J.A.V.; Writing—original draft, M.R.G. and F.S.; Writing—review and editing, M.R.G., P.M., F.S. and J.A.V. All authors have read and agreed to the published version of the manuscript.

Funding

This research received no external funding.

Institutional Review Board Statement

Not applicable.

Informed Consent Statement

Not applicable.

Data Availability Statement

Not applicable.

Conflicts of Interest

The authors declare no conflict of interest.

References

  1. Manfred, H. Correttezza delle strategie: Tra rendimento e sostenibilità. In Atlante della Sostenibilità; Hegger, M., Fuchs, M., Stark, T., Zeumer, M., Eds.; UTET: Milano, Italy, 2008; p. 24. [Google Scholar]
  2. Organisation de Coopération et de Développement Économiques. Transition to Sustainable Buildings: Strategies and Opportunities to 2050; OECD Publishing: Paris, France, 2013. [Google Scholar]
  3. Baker, S.; Kousis, M.; Richardson, D.; Young, S. Politics of Sustainable Development. Theory, Police and Practice within European Union; Routdlege: London, UK, 1997; p. 292. [Google Scholar]
  4. Chung, W. Review of Building Energy Use Performance Benchmarking Methodologies; Applied Energy: Amsterdam, The Netherlands, 2008; Volume 88, pp. 1470–1479. [Google Scholar]
  5. Directive 2006/32/EC of the European Parliament and of the Council of 5 April 2006 on Energy End-Use Efficiency and Energy Services and Repealing Council Directive 93/76/EEC. Available online: https://eur-lex.europa.eu/legal-content/IT/ALL/?uri=CELEX%3A32006L0032 (accessed on 30 August 2021).
  6. Directive 2009/29/EC of the European Parliament and of the Council of 23 April 2009 Amending Directive 2003/87/EC so as to Improve and Extend the Greenhouse Gas Emission Allowance Trading Scheme of the Community. Available online: https://eur-lex.europa.eu/legal-content/IT/TXT/?uri=celex%3A32009L0029 (accessed on 30 August 2021).
  7. Directive 2010/31/EU of the European Parliament and of the Council of 19 May 2010 on the Energy Performance of Buildings. Available online: https://eur-lex.europa.eu/legal-content/IT/ALL/?uri=CELEX%3A32010L0031 (accessed on 30 August 2021).
  8. Directive 2012/27/EU of the European Parliament and of the Council of 25 October 2012 on Energy Efficiency, Amending Directives 2009/125/EC and 2010/30/EU and Repealing Directives 2004/8/EC and 2006/32/EC. Available online: https://eur-lex.europa.eu/legal-content/IT/TXT/?uri=celex%3A32012L0027 (accessed on 30 August 2021).
  9. Commision Recommendation (EU) 2016/1318 of 29 July 2016 on Guidelines for the Promotion of Nearly Zero-Energy Buildings and Best Practices to Ensure that, by 2020, All New Buildings are Nearly Zero-Energy Buildings. Available online: https://eur-lex.europa.eu/legal-content/IT/TXT/?uri=CELEX%3A32016H1318 (accessed on 30 August 2021).
  10. Directive (EU) 2018/844 of the European Parliament and of the Council of 30 May 2018 Amending Directive 2010/31/EU on the Energy Performance of Buildings and Directive 2012/27/EU on Energy Efficiency. Available online: https://eur-lex.europa.eu/legal-content/IT/TXT/?uri=CELEX%3A32018L0844 (accessed on 30 August 2021).
  11. Directive (EU) 2018/2001 of the European Parliament and of the Council of 11 December 2018 on the Promotion of the Use of Energy from Renewable Sources. Available online: https://eur-lex.europa.eu/legal-content/IT/ALL/?uri=CELEX:32018L2001 (accessed on 30 August 2021).
  12. Directive 2002/91/EC of the European Parliament and of the Council of 16 December 2002 on the Energy Performance of Building. Available online: https://eur-lex.europa.eu/legal-content/IT/TXT/?uri=celex%3A32002L0091 (accessed on 30 August 2021).
  13. Mazzucchelli, E.S. Edifici ad Energia Quasi Zero; Maggioli Editore: Borgo Maggiore, San Marino, 2013; p. 320. [Google Scholar]
  14. Sferra, A.S. Obiettivo “Quasi Zero”. Un Percorso Verso la Sostenibilità Ambientale; Franco Angeli: Milano, Italy, 2013; p. 283. [Google Scholar]
  15. Tyrväinen, L.; Pauleit, S.; Seeland, K.; de Vries, S. Benefits and uses of urban forests and trees. In Urban Forests and Trees; Springer: Berlin/Heidelberg, Germany, 2005; p. 81114. [Google Scholar]
  16. Sanesi, G.; Gallis, C.; Kasperidus, H.D. Urban Forests and Their Ecosystem Services in Relation to Human Health. In Forests, Trees and Human Health; Nilsson, K., Sangster, M., Gallis, C., Hartig, T., De Vries, S., Seeland, K., Schipperijn, J., Eds.; Springer: Dordrecht, The Netherlands, 2011; p. 2340. [Google Scholar]
  17. Millennium Ecosystem Assessment. Ecosystems and Human Wellbeing: Synthesis; Island Press: Washington, DC, USA, 2005. [Google Scholar]
  18. BSI. BS EN 15603—Energy Performance of Buildings Overarching Standard EPBD; BSI Standards Publication: London, UK, 2014. [Google Scholar]
  19. Tavolo Uni-itaca. “Sostenibilità ambientale nelle costruzioni”, Operational tools for sustainability assessment. In General Framework and Methodological Principles; 2019; Available online: http://itaca.org/news_dettaglio.asp?ID=531 (accessed on 30 August 2021).
  20. Tajani, F.; Morano, P. Evaluation of vacant and redundant public properties and risk control: A model for the definition of the optimal mix of eligible functions. J. Prop. Invest. Financ. 2017, 35, 75–100. [Google Scholar] [CrossRef]
  21. Nesticò, A.; Endreny, T.; Guarini, M.R.; Sica, F.; Anelli, D. Real Estate Values, Tree Cover, and Per-Capita Income: An Evaluation of the Interdependencies in Buffalo City (NY). In International Conference on Computational Science and Its Applications; Springer: Cham, Switzerland, 2020; pp. 913–926. [Google Scholar]
  22. Guarini, M.R.; Morano, P.; Sica, F. Eco-system Services and Integrated Urban Planning. A Multi-criteria Assessment Framework for Ecosystem Urban Forestry Projects. In Values and Functions for Future Cities; Springer: Cham, Switzerland, 2020; pp. 201–216. [Google Scholar]
  23. Langdon, D. Life Cycle Costing (LCC) as a Contribution to Sustainable Construction: A Common Methodology—Final Methodology. 2007. Available online: http://ec.europa.eu/enterprise/sectors/construction/studies/life-cycle-costing_en.htm (accessed on 30 August 2021).
  24. Flanagan, R.; Norman, G. Life Cycle Costing for Construction; Royal Institution of Chartered Surveyors: London, UK, 1983. [Google Scholar]
  25. Chau, C.K.; Xu, J.M.; Leung, T.M.; Ng, W.Y. Evaluation of the impacts of end-of-life management strategies for deconstruction of a high-rise concrete framed office building. Appl. Energy 2017, 185, 1595–1603. [Google Scholar] [CrossRef]
  26. Riosa, F.C.; Chonga, W.K.; Grau, D. Design for Disassembly and Deconstruction. Challenges and Opportunities. Procedia Eng. 2015, 118, 1296–1304. [Google Scholar] [CrossRef] [Green Version]
  27. Fregonara, E.; Coscia, C. Multi criteria analyses, life cycle approaches and delphi method: A methodological proposal to assess design scenarios | Analisi multi criteria, approcci life cycle e delphi method: Una proposta metodologica per valutare scenari di progetto. Valori E Valutazioni 2019, 23, 107–117. [Google Scholar]
  28. Guarini, M.R.; Morano, P.; Sica, F. Integrated ecosystem design: An evaluation model to support the choice of eco-compatible technological solutions for residential building. Energies 2019, 12, 2659. [Google Scholar] [CrossRef] [Green Version]
  29. Fregonara, E.; Giordano, R.; Ferrando, D.G.; Pattono, S. Economic-environmental indicators to support investment decisions: A focus on the buildings’ end-of-life stage. Buildings 2017, 7, 65. [Google Scholar] [CrossRef] [Green Version]
  30. Italian Organization for Standardization. UNI 8290-1:1981—Residential Building. Building Elements. Classification and Terminology; Italian Organization for Standardization (UNI): Milan, Italy, 1981. [Google Scholar]
  31. Asdrubali, F.; D’Alessandro, F.; Schiavoni, S. A review of unconventional sustainable building insulation materials. Sustain. Mater. Technol. 2015, 4, 1–17. [Google Scholar] [CrossRef]
  32. Gonzalez, H.J.; Fugler, D. Energy Use in Straw Bale Houses, Research Highlights Technical Series 02-115; Canada Mortgage and Housing Corporation: Ottawa, ON, Canada, 2002. [Google Scholar]
  33. Sodagar, B.; Rai, D.; Jones, B.; Wihan, J.; Fieldson, R. The carbon-reduction potential of straw-bale housing. Build. Res. Inf. 2011, 39, 51–65. [Google Scholar] [CrossRef] [Green Version]
  34. Pullen, S. Energy used in the construction and operation of houses. Archit. Sci. Rev. 2000, 43, 87–94. [Google Scholar] [CrossRef]
  35. Huberman, N.; Pearlmutter, D. A life-cycle energy analysis of building materials in Negev desert. Energy Build. 2008, 40, 837–848. [Google Scholar] [CrossRef]
  36. Gao, W.; Ariyama, T.; Ojima, T.; Meier, A. Energy impacts of recycling disassembly material in residential buildings. Energy Build. 2001, 33, 553–562. [Google Scholar] [CrossRef]
  37. Ding, G.K.C. Life cycle energy assessment: Australian secondary schools. Build. Res. Inf. 2001, 35, 487–500. [Google Scholar] [CrossRef]
  38. Treloar, G.J.; Mc Coubrie, A.; Love, P.E.D.; Iyer-Raniga, U. Embodied energy analysis of fixtures, fittings and furniture in office buildings. Facilities 1999, 17, 403–409. [Google Scholar] [CrossRef] [Green Version]
  39. Vukotic, L.; Fenner, R.A.; Symons, K. Assessing embodied energy of building structural elements. Eng. Sustain. 2010, 163, 147–158. [Google Scholar] [CrossRef]
  40. Blengini, G.A. Life cycle of buildings, demolition and recycling potential: A case study in Turin, Italy. Build. Environ. 1999, 44, 319–330. [Google Scholar] [CrossRef]
  41. Augustyńska, A. Opportunities and threats for natural building using straw bale technology. Bud. I Archit. 2020, 19, 29–38. [Google Scholar] [CrossRef]
  42. Fan, H.; AbouRizk, S.; Kim, H.; Zaïane, O. Assessing Residual Value of Heavy Construction Equipment Using Predictive Data Mining Model. J. Comput. Civ. Eng. 2008, 22, 181–191. [Google Scholar] [CrossRef] [Green Version]
  43. Deakin, M. Valuation, Appraisal, Discounting, Obsolescence and Depreciation. Int. J. Life Cycle Assess. 1999, 4, 87–93. [Google Scholar] [CrossRef]
  44. Liapis, K.; Kantianis, D. Depreciation Methods and Life-Cycle-Costing (LCC) Methodology. Procedia Econ. Financ. 2015, 19, 314–324. [Google Scholar] [CrossRef] [Green Version]
  45. Asif, M. Life Cycle Assessment of Aluminium-Clad Timber Windows; Edinburgh Napier University: Edinburgh, UK, 2002. [Google Scholar]
  46. González-Gil, A.; Palacin, R.; Batty, P. Optimal energy management of urban rail systems: Key performance indicators. Energy Convers. Manag. 2015, 90, 282–291. [Google Scholar] [CrossRef] [Green Version]
  47. Van Elegem, B.; Embo, T.; Lust, N. A methodology to select the best locations for new urban forests using multicriteria analysis. Forestry 2002, 75, 13–23. [Google Scholar] [CrossRef]
  48. Dobbs, C.; Escobedo, F.J.; Zipperer, W.C. A framework for developing urban forest ecosystem services and goods indicators. Landsc. Urban Plan. 2011, 99, 196–206. [Google Scholar] [CrossRef]
  49. Van Oudenhoven, A.P.E.; Petz, K.; Alkemade, R.; Hein, L.; De Groot, R.S. Framework for systematic indicator selection to assess effects of land management on ecosystem services. Ecol. Indic. 2012, 21, 110–122. [Google Scholar] [CrossRef]
  50. Morano, P.; Guarini, M.R.; Tajani, F.; Anelli, D. Sustainable redevelopment: The cost-revenue analysis to support the urban planning decisions. In International Conference on Computational Science and Its Applications; Springer: Cham, Switzerland, 2020; pp. 968–980. [Google Scholar]
  51. Morano, P.; Tajani, F.; Guarini, M.R.; Di Liddo, F.; Anelli, D. A Multivariate Econometric Analysis for the Forecasting of the Interdependences between the Housing Prices and the Socio-economic Factors in the City of Barcelona (Spain). In International Conference on Computational Science and Its Applications; Springer: Cham, Switzerland, 2019; pp. 13–22. [Google Scholar]
  52. Della Spina, L.; Giorno, C.; Galati Casmiro, R. Bottom-Up Processes for Culture-Led Urban Regeneration Scenarios. In Computational Science and Its Applications—ICCSA 2019. ICCSA 2019. Lecture Notes in Computer Science; Misra, B.M.S., Torre, A.M.A.R.C., Falcão, J.G.R.M.I., Apduhan, D.T.B.O., Gervasi, O., Eds.; Springer: Cham, Switzerland, 2019; Volume 11622, pp. 93–107. [Google Scholar] [CrossRef]
  53. Della Spina, L. Multidimensional Assessment for Culture-Led” and Community-Driven Urban Regeneration as Driver for Trigger Economic Vitality in Urban Historic Centers. Sustainability 2019, 11, 7237. [Google Scholar] [CrossRef] [Green Version]
Figure 1. Typical building plan of reference construction. Source: BAG officinamobile, (2014), Ecovillaggio autocostruito Pescomaggiore, in “Legno Architettura 05”, Edicom Edizioni (http://www.bagstudio.org/wp-content/uploads/2014/03/legno-architettura-05.pdf; last accessed: 2 September 2021).
Figure 1. Typical building plan of reference construction. Source: BAG officinamobile, (2014), Ecovillaggio autocostruito Pescomaggiore, in “Legno Architettura 05”, Edicom Edizioni (http://www.bagstudio.org/wp-content/uploads/2014/03/legno-architettura-05.pdf; last accessed: 2 September 2021).
Urbansci 05 00082 g001
Figure 2. Stratigraphy of the external (A,B) and internal (C,D) XLAM and MBP masonry package of the housing module examined.
Figure 2. Stratigraphy of the external (A,B) and internal (C,D) XLAM and MBP masonry package of the housing module examined.
Urbansci 05 00082 g002
Table 1. Energy performance indicator set.
Table 1. Energy performance indicator set.
a.
Key Sectors
b.
Performance Indicators
c.
Evaluation Variables
Energy
sector
Net energetic demandBuilding plan configuration
Shape coefficient
Embodied energy (EE)Number and type of
installations installed
Quantity of
primary energy
Rate of extractable energy
from renewable sources
Global warming potential (GWP)CO2 concentration
in the atmosphere
Table 2. Schedule of material quantities for the construction of the external and internal wall packages of the XLAM and MBP house.
Table 2. Schedule of material quantities for the construction of the external and internal wall packages of the XLAM and MBP house.
XLAMMBP
EXTERIOR WALLING
MaterialsMass (kg)MaterialsMass (kg)
XLAM panels3563.00Spruce wood3960.00
Mineral wool823.40Steel140.00
Transparent waterproof sheathing213.70Straw bales8000.00
Fibre concrete854.90Polypropylene3.90
Double plasterboard1456.54Galvanised mesh60.00
Metal340.00Sand5200.00
Paint33.18Natural lime1290.00
Concrete300.00
Water1200.00
Cork45.00
INTERNAL PARTITION WALLS
MaterialsMass (kg)MaterialsMass (kg)
Mineral wool162.60Spruce wood893.00
Double plasterboard1595.65Ceramic tiles540.00
Metal120.00Straw bales1000.00
Ceramic tiles540.00
Table 3. Estimation of construction costs of XLAM and MBP housing.
Table 3. Estimation of construction costs of XLAM and MBP housing.
CONSTRUCTIVE
SOLUTION
CONSTRUCTION COSTS (Cc)
Wall CostsOther CostsCc
XLAMEUR 16,066.10EUR 55,014.49EUR 71,080.59
MBPEUR 13,074.58EUR 55,014.49EUR 68,089.07
Differential
Cc (XLAM—MBP)
EUR 2991.52
Table 4. Estimation of maintenance costs for XLAM and MBP housing.
Table 4. Estimation of maintenance costs for XLAM and MBP housing.
CONSTRUCTIVE
SOLUTION
MAINTENCE COSTS
Wall CostsOther CostsCm
XLAMEUR 11,936.63EUR 381,960.27EUR 396,057.28
MBPEUR 7301.63EUR 381,960.27EUR 391,032.44
Differential
(XLAM—MBP)
EUR 4635.00- EUR 5024.84
Table 5. Determination of the energy performance index (EPI) of the XLAM and MBP housing in the three reference cities.
Table 5. Determination of the energy performance index (EPI) of the XLAM and MBP housing in the three reference cities.
CONSTRUCTIVE
SOLUTION
ENERGY PERFORMANCE INDEX (EPI)
(kWh/sqm·Year)
MessinaL’AquilaBolzano
XLAM13.327.832.0
MBP10.924.828.3
Δ ( MBP XLAM MBP ) × 100   ( % )−22.0−12.0−13.1
Table 6. Determination of annual energy costs of XLAM and MBP housing in the three reference cities.
Table 6. Determination of annual energy costs of XLAM and MBP housing in the three reference cities.
CONSTRUCTIVE
SOLUTION
ANNUAL ENERGY COST
(EUR/Year)
MessinaL’AquilaBolzano
XLAM113.05 236.30272.00
MBP92.65210.80240.55
Table 7. Estimated dismantling and disposal costs for XLAM and MBP housing.
Table 7. Estimated dismantling and disposal costs for XLAM and MBP housing.
CONSTRUCTIVE
SOLUTION
DISMANTLING COSTS
(Cdm)
DISPOSAL COSTS
(Cdp)
DISMANTLING +
DISPOSAL COSTS
(Cdmp)
XLAMEUR 3554.02EUR 13,297.47EUR 16,851.49
MBPEUR 3404.42EUR 12,510.75EUR 15,915.17
Differential
(XLAM—MBP)
EUR 149.60EUR 786.72EUR 936.32
Table 8. Estimation of GWP and EE for XLAM and MBP.
Table 8. Estimation of GWP and EE for XLAM and MBP.
LIFE CYCLE PHASESGWP (kgCO2)EE (MJ)
XLAMMBPXLAMMBP
Production1214.00236.0018,572.003553.00
Construction548.00317.0015,290.003324.00
Use (30 years)17,768.0014,462.00216,073.00214,886.00
End of life247.00111.00237.00142.00
TOT.19,777.0015,306.00250,172.00221,905.00
Table 9. Estimation of embodied energy cost and global warming potential cost for XLAM and MBP.
Table 9. Estimation of embodied energy cost and global warming potential cost for XLAM and MBP.
CONSTRUCTIVE
SOLUTION
EMBODIED ENERGY COSTGLOBAL WARMING POTENTIAL COST
XLAMEUR 7784.78EUR 289.97
MBPEUR 6905.18EUR 224.42
Differential
(XLAM—MBP)
EUR 879.60EUR 65.55
Table 10. Global life cycle cost estimation for XLAM and MBP.
Table 10. Global life cycle cost estimation for XLAM and MBP.
COSTS (EUR)XLAM MBP
a. Construction costs 71,080.5968,089.07
Others costs55,014.4955,014.49
Wall costs 16,066.1013,074.58
b. Maintenance costs396,057.28391,032.44
Others costs 381,960.27381,960.27
Wall costs 11,936.637301.63
Energetic costs2160.381770.54
c. Dismantling and disposal costs11,104.5210,487.54
Others costs 8283.138283.13
Wall costs2821.392204.41
d. GLOBAL BUILDING COST (d = a + b + c)464,190.54456,148.58
e. GLOBAL ENVIRONMENTAL COST8074.757129.59
Embodied energy cost7784.786905.18
Global warming potential cost289.97224.42
f. GLOBAL LIFE CYCLE COST (f = d + f)472,265.28463,278.17
Table 11. Estimation of the cost differential (Δ) between XLAM and MBP.
Table 11. Estimation of the cost differential (Δ) between XLAM and MBP.
COSTS Δ   Cos ts   ( XLAM MBP )   ( EUR )
a. Construction costs EUR 2991.52
Others costs EUR -
Wall costs EUR 2991.52
b. Maintenance costs EUR 5024.84
Others costs EUR -
Wall costs EUR 4635.00
Energetic costsEUR 389.84
c. Dismantling and disposal costs EUR 616.98
Others costs EUR -
Wall costsEUR 616.98
d. GLOBAL BUILDING COST (d = a + b + c) EUR 8041.95
e. GLOBAL ENVIRONMENTAL COST EUR 945.16
Embodied energy costEUR 879.60
Global warming potential costEUR 65.55
f. GLOBAL LIFE CYCLE COST (f = d + e) EUR 8987.11
Publisher’s Note: MDPI stays neutral with regard to jurisdictional claims in published maps and institutional affiliations.

Share and Cite

MDPI and ACS Style

Guarini, M.R.; Sica, F.; Morano, P.; Vadalà, J.A. An Integrated Economic-Energy-Environmental Framework for the Assessment of Alternative Eco-Sustainable Building Designs. Urban Sci. 2021, 5, 82. https://doi.org/10.3390/urbansci5040082

AMA Style

Guarini MR, Sica F, Morano P, Vadalà JA. An Integrated Economic-Energy-Environmental Framework for the Assessment of Alternative Eco-Sustainable Building Designs. Urban Science. 2021; 5(4):82. https://doi.org/10.3390/urbansci5040082

Chicago/Turabian Style

Guarini, Maria Rosaria, Francesco Sica, Pierluigi Morano, and Josè Antonio Vadalà. 2021. "An Integrated Economic-Energy-Environmental Framework for the Assessment of Alternative Eco-Sustainable Building Designs" Urban Science 5, no. 4: 82. https://doi.org/10.3390/urbansci5040082

APA Style

Guarini, M. R., Sica, F., Morano, P., & Vadalà, J. A. (2021). An Integrated Economic-Energy-Environmental Framework for the Assessment of Alternative Eco-Sustainable Building Designs. Urban Science, 5(4), 82. https://doi.org/10.3390/urbansci5040082

Article Metrics

Back to TopTop