Roof Isolation and Girder-to-Column Dissipative Connections in Seismic Design of Precast R/C Structures
Abstract
1. Introduction
2. Benchmark Building
3. Dissipative Connection-Based Design Solutions
3.1. Earthquake Design Levels
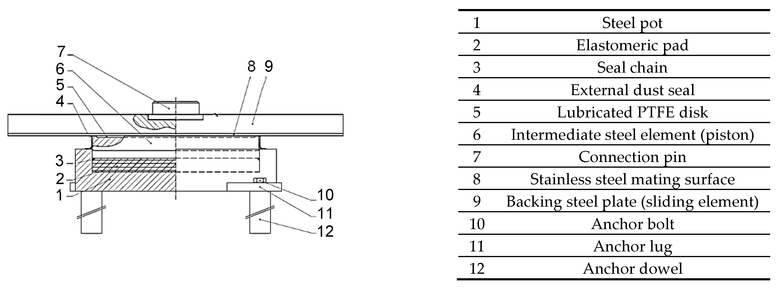
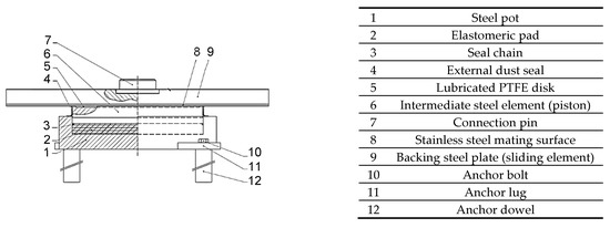
3.2. Roof Isolation System
4. Discussion
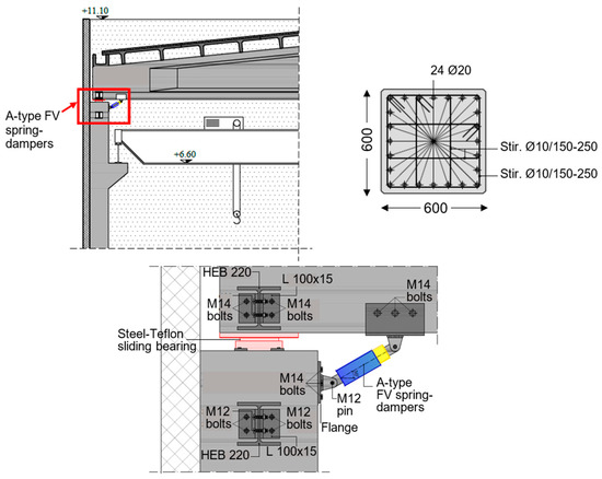
4.1. Design Solution Incorporating FV Spring-Dampers
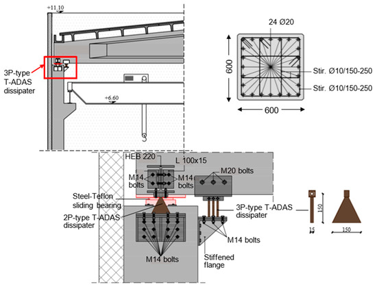
4.2. Design Solution Incorporating T-ADAS Dampers
5. Conclusions
- −
- Notably smaller sizes of columns and footings are obtained for the two advanced design solutions, with reductions of the concrete volume and reinforcement of 45% and 14%, respectively, as compared to the conventional design.
- −
- A completely elastic structural response is guaranteed by the two dissipative systems up to the MCE level.
- −
- For both systems, the maximum drift ratio values measured on top of columns are below the OP performance level-related 0.66% limitation, up to the BDE. At the same time, the peak values result to be within the 1% limitation relevant to the IO performance level, for the MCE.
- −
- On the other hand, remarkable structural damage is expected in the traditionally designed building beginning from the BDE, consistently with the assumption of a behaviour factor of 2.5.
- −
- The structural performance improvement obtained with the dissipative design solutions is also synthesized in terms of global response parameters, as highlighted by reduction factors of about 4.1 on base shear for the FV dissipative connection-based design, and 3.55 for the T-ADAS-based one, as compared to the conventional design.
- −
- Drift ratios for the traditional design are far above the immediate occupancy-related limitation, reaching 1.78% (BDE) and 2.13% (MCE). These values entail significant damage of the cladding panels connections, and thus the need to repair or replace them, beginning from seismic events with comparable amplitude to the BDE one.
- −
- For both types of dissipative connections, the energy dissipated by the dampers at the MCE is close to the 75% share of the input energy targeted in their designs. The remaining dissipated energy is split in nearly equal portions between the energy produced by the frictional response of the steel-PTFE isolators and the modal energy.
- −
- In view of the observations above, the two types of dissipative connections guarantee similar high seismic protection capacities.
- −
- The only difference in performance offered by the two systems consists in the completely undamaged response of the FV spring-dampers, as opposed to the damaged response of the T-ADAS steel yielding dissipaters caused by the development of repeated plastic deformation cycles, beginning from the BDE seismic level.
- −
- The cost of the two advanced designs is 5.4% (FV spring-dampers) and 7.2% (T-ADAS dissipaters) greater than the cost of the conventional design.
- −
- However, a complete economic comparison between the different designs must take into account the cost of the remarkable repair interventions required for the traditional building, as well as the cost related to its interruption of usage in post-quake conditions and during the execution of relevant works.
Author Contributions
Funding
Conflicts of Interest
References
- Negro, P.; Toniolo, G. Design Guidelines for Connections of Precast Structures under Seismic Actions; Report JRC71599—EUR 25377 EN; Publication Offices of the European Union: Luxembourg, 2012. [Google Scholar]
- Fischinger, M.; Zoubek, B.; Isaković, T. Seismic Response of Precast Industrial Buildings. In Perspectives on European Earthquake Engineering and Seismology; Ansal, A., Ed.; Geotechnical, Geological and Earthquake Engineering; Springer: Cham, Switzerland, 2014; Volume 34. [Google Scholar] [CrossRef]
- Sezen, H.; Whittaker, A.S. Seismic Performance of Industrial Facilities Affected by the 1999 Turkey Earthquake. J. Perform. Constr. Facil. 2006, 20, 28–36. [Google Scholar] [CrossRef]
- Toniolo, G.; Colombo, A. Precast concrete structures: The lessons learned from the L’Aquila earthquake. Struct. Concr. 2012, 13, 73–83. [Google Scholar] [CrossRef]
- Sorace, S.; Terenzi, G. Existing prefab R/C industrial buildings: Seismic assessment and supplemental damping-based retrofit. Soil Dyn. Earthq. Eng. 2017, 94, 193–203. [Google Scholar] [CrossRef]
- Soydan, C.; Yuksel, E.; Irtem, E. Seismic performance improvement of single-storey precast reinforced concrete industrial buildings in use. Soil Dyn. Earthq. Eng. 2020, 135, 106167. [Google Scholar] [CrossRef]
- Sorace, S.; Terenzi, G. Innovative Structural Solutions for Prefab Reinforced Concrete Hall-Type Buildings. Open Constr. Build. Technol. J. 2019, 13, 149–163. [Google Scholar] [CrossRef][Green Version]
- Ministry of Infrastructure and Transport. Update of Technical Standards for Constructions; Ministry of Infrastructure and Transport: Rome, Italy, 2018. (In Italian)
- Fenz, D.M.; Constantinou, M.C. Behaviour of the double concave Friction Pendulum bearing. Earthq. Eng. Struct. Dyn. 2006, 35, 1403–1424. [Google Scholar] [CrossRef]
- Sorace, S.; Terenzi, G. A viable base isolation strategy for the advanced seismic retrofit of an R/C building. Contemp. Eng. Sci. 2014, 7, 817–834. [Google Scholar] [CrossRef]
- Sorace, S.; Terenzi, G. Analysis, Design, and Construction of a Base-Isolated Multiple Building Structure. Adv. Civ. Eng. 2014, 2014, 1–13. [Google Scholar] [CrossRef]
- Ponzo, F.C.; Di Cesare, A.; Leccese, G.; Nigro, D. Shaking table tests of a base isolated structure with Double Concave Friction Pendulum bearings. Bull. N. Z. Soc. Earthq. Eng. 2015, 48, 136–144. [Google Scholar] [CrossRef]
- Foti, D. Response of frames seismically protected with passive systems in near-field areas. Int. J. Struct. Eng. 2014, 5, 326. [Google Scholar] [CrossRef]
- Mazza, F.; Mazza, M. Nonlinear seismic analysis of irregular r.c. framed buildings base-isolated with friction pendulum system under near-fault excitations. Soil Dyn. Earthq. Eng. 2016, 90, 299–312. [Google Scholar] [CrossRef]
- Mazza, F.; Mazza, M. Sensitivity to modelling and design of curved surface sliding bearings in the nonlinear seismic analysis of base-isolated r.c. framed buildings. Soil Dyn. Earthq. Eng. 2017, 100, 144–158. [Google Scholar] [CrossRef]
- Quaglini, V.; Gandelli, E.; Dubini, P. Experimental investigation of the re-centring capability of curved surface sliders. Struct. Control. Heal. Monit. 2017, 24, e1870. [Google Scholar] [CrossRef]
- FIP. Anti-Seismic Devices Product Division. 2019. Available online: http://www.fip-group.it (accessed on 30 September 2020).
- SAP2000NL. Theoretical and Users’ Manual. Release 21.06; Computers & Structures Inc.: Berkeley, CA, USA, 2020. [Google Scholar]
- Constantinou, M.C.; Soong, T.T.; Dargush, G.F. Passive Energy Dissipation Systems for Structural Design and Retrofit; Monograph Series, No. 1; MCEER: New York, NY, USA, 1998; ISBN 0-9656682-1-5. [Google Scholar]
- Lago, A.; Trabucco, D.; Wood, A. Damping Technologies for Tall Buildings. Theory, Design Guidance and Case Studies; Elsevier: Butterworth, South Africa, 2018; ISBN 9780128159637. [Google Scholar]
- Lu, Z.; Wang, Z.; Zhou, Y.; Lu, X. Nonlinear dissipative devices in structural vibration control: A review. J. Sound Vib. 2018, 423, 18–49. [Google Scholar] [CrossRef]
- De Domenico, D.; Ricciardi, G.; Takewaki, I. Design strategies of viscous dampers for seismic protection of building structures: A review. Soil Dyn. Earthq. Eng. 2019, 118, 144–165. [Google Scholar] [CrossRef]
- Wang, W.; Fang, C.; Zhang, A.; Liu, X. Manufacturing and performance of a novel self-centring damper with shape memory alloy ring springs for seismic resilience. Struct. Control. Heal. Monit. 2019, 26, e2337. [Google Scholar] [CrossRef]
- Katsimpini, P.S.; Papagiannopoulos, G.A.; Askouni, P.K.; Karabalis, D.L. Seismic response of low-rise 3-D steel structures equipped with the seesaw system. Soil Dyn. Earthq. Eng. 2020, 128, 105877. [Google Scholar] [CrossRef]
- Sorace, S.; Terenzi, G. Seismic Protection of Frame Structures by Fluid Viscous Damped Braces. J. Struct. Eng. 2008, 134, 45–55. [Google Scholar] [CrossRef]
- Sorace, S.; Terenzi, G.; Fadi, F. Shaking Table and Numerical Seismic Performance Evaluation of a Fluid Viscous-Dissipative Bracing System. Earthq. Spectra 2012, 28, 1619–1642. [Google Scholar] [CrossRef]
- Sorace, S.; Terenzi, G.; Bertino, G. Viscous dissipative, ductility-based and elastic bracing design solutions for an indoor sports steel building. Adv. Steel Constr. 2012, 8, 295–316. [Google Scholar] [CrossRef]
- Sorace, S. Dissipative Bracing-Based Seismic Retrofit of R/C School Buildings. Open Constr. Build. Technol. J. 2012, 6, 334–345. [Google Scholar] [CrossRef]
- Sorace, S.; Terenzi, G.; Mori, C. Passive energy dissipation-based retrofit strategies for R/C frame water towers. Eng. Struct. 2016, 106, 385–398. [Google Scholar] [CrossRef]
- Sorace, S.; Terenzi, G.; Licari, M. Traditional and viscous dissipative steel braced top addition strategies for a R/C building. Int. J. Struct. Eng. 2015, 6, 332. [Google Scholar] [CrossRef]
- Terenzi, G.; Costoli, I.; Sorace, S. Activation control extension of a design method of fluid viscous dissipative bracing systems. Bull. Earthq. Eng. 2020, 18, 4017–4038. [Google Scholar] [CrossRef]
- Terenzi, G. Energy-Based Design Criterion of Dissipative Bracing Systems for the Seismic Retrofit of Frame Structures. Appl. Sci. 2018, 8, 268. [Google Scholar] [CrossRef]
- Jarret, S.L. Shock-Control Technologies. 2019. Available online: http://www.introini.info (accessed on 12 October 2020).
- Uang, C.M.; Bertero, V.V. Use of Energy as a Design Criterion in Earthquake-Resistant Engineering; Report UCB-EERC 88/18; University of California at Berkeley: Berkely, CA, USA, 1988. [Google Scholar]
- Kelly, J.M.; Skinner, R.; Heine, A. Mechanisms of energy absorption in special devices for use in earthquake resistant structures. Bull. NZ Soc. Earthq. Eng. 1972, 5, 63–88. [Google Scholar]
- Xia, C.; Hanson, R.D. Influence of ADAS Element Parameters on Building Seismic Response. J. Struct. Eng. 1992, 118, 1903–1918. [Google Scholar] [CrossRef]
- Tsai, K.-C.; Chen, H.-W.; Hong, C.-P.; Su, Y.-F. Design of Steel Triangular Plate Energy Absorbers for Seismic-Resistant Construction. Earthq. Spectra 1993, 9, 505–528. [Google Scholar] [CrossRef]
- Foti, D.; Diaferio, M.; Nobile, R. Optimal design of a new seismic passive protection device made in aluminium and steel. Struct. Eng. Mech. 2010, 35, 119–122. [Google Scholar] [CrossRef]
- Cancellara, D.; De Angelis, F. Steel Braces in Series with Hysteretic Dampers for Reducing the Seismic Vulnerability of RC Existing Buildings: Assessment and Retrofitting with a Nonlinear Model. Appl. Mech. Mater. 2012, 204–208, 2677–2689. [Google Scholar] [CrossRef]

















Publisher’s Note: MDPI stays neutral with regard to jurisdictional claims in published maps and institutional affiliations. |
© 2020 by the authors. Licensee MDPI, Basel, Switzerland. This article is an open access article distributed under the terms and conditions of the Creative Commons Attribution (CC BY) license (http://creativecommons.org/licenses/by/4.0/).
Share and Cite
Sorace, S.; Terenzi, G. Roof Isolation and Girder-to-Column Dissipative Connections in Seismic Design of Precast R/C Structures. Infrastructures 2020, 5, 104. https://doi.org/10.3390/infrastructures5110104
Sorace S, Terenzi G. Roof Isolation and Girder-to-Column Dissipative Connections in Seismic Design of Precast R/C Structures. Infrastructures. 2020; 5(11):104. https://doi.org/10.3390/infrastructures5110104
Chicago/Turabian StyleSorace, Stefano, and Gloria Terenzi. 2020. "Roof Isolation and Girder-to-Column Dissipative Connections in Seismic Design of Precast R/C Structures" Infrastructures 5, no. 11: 104. https://doi.org/10.3390/infrastructures5110104
APA StyleSorace, S., & Terenzi, G. (2020). Roof Isolation and Girder-to-Column Dissipative Connections in Seismic Design of Precast R/C Structures. Infrastructures, 5(11), 104. https://doi.org/10.3390/infrastructures5110104
