Experimental and Numerical Analysis of Shear Performance of 16 m Full-Scale Prestressed Hollow Core Slabs
Abstract
1. Introduction
2. Experimental Program
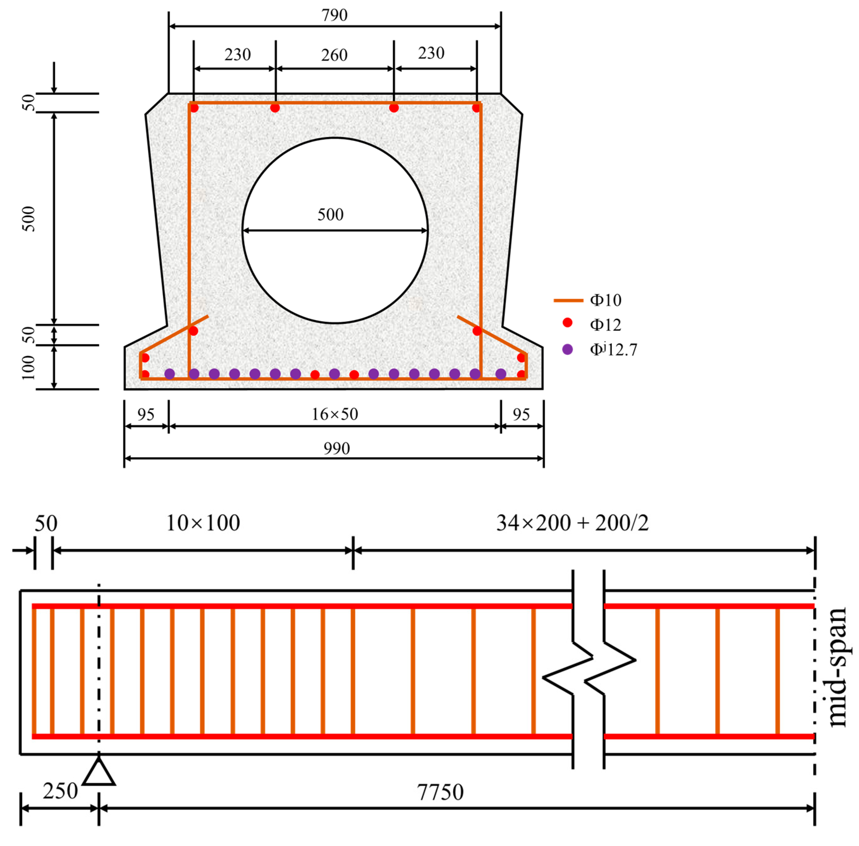
2.1. Specimens
2.2. Test Procedure
3. Experimental Results
3.1. Test Observations and Failure Modes
3.2. Load–Displacement Curves
3.3. Load–Strain Curves
3.3.1. Strain of Concrete
3.3.2. Strain in Stirrups
4. Numerical Analyses
4.1. FE Model
4.2. Material Intrinsic Relationship
4.3. Boundary Condition
4.4. Result of Simulation
4.4.1. Crack Distribution
4.4.2. Comparison of Load–Displacement Curves
4.4.3. Comparison of Load–Strain Curves for Stirrups
4.4.4. Effect of Shear Span Ratio on Shear Capacity


4.4.5. Effect of Hoop Spacing


5. Conclusions
Author Contributions
Funding
Data Availability Statement
Conflicts of Interest
References
- Ramirez, J.A.; Breen, J.E. Evaluation of a modified truss-model approach for beams in shear. Struct. J. 1991, 88, 562–572. [Google Scholar]
 - Zararis, P.D. Shear compression failure in reinforced concrete deep beams. J. Struct. Eng. 2003, 129, 544–553. [Google Scholar] [CrossRef]
 - Zhang, J.-P. Diagonal cracking and shear strength of reinforced concrete beams. Mag. Concr. Res. 1997, 49, 55–65. [Google Scholar] [CrossRef]
 - Vecchio, F.J.; Collins, M.P. The modified compression-field theory for reinforced concrete elements subjected to shear. ACI J. 1986, 83, 219–231. [Google Scholar]
 - Mau, S.; Hsu, T.T. Shear design and analysis of low-rise structural walls. J. Proc. 1986, 83, 306–315. [Google Scholar]
 - Priestley, M.J.; Park, R. Strength and ductility of concrete bridge columns under seismic loading. Struct. J. 1987, 84, 61–76. [Google Scholar]
 - Kim, D.-H.; Jo, M.-S.; Lim, S.-A.; Kim, H.-G.; Kang, S.-W.; Kim, K.-H. Evaluation of Maximum Shear Strength of Prestressed Concrete (PSC) Hollow Core Slab (HCS). Buildings 2024, 14, 1925. [Google Scholar] [CrossRef]
 - Rahman, M.; Baluch, M.; Said, M.; Shazali, M. Flexural and shear strength of prestressed precast hollow-core slabs. Arab. J. Sci. Eng. 2012, 37, 443–455. [Google Scholar] [CrossRef]
 - Walraven, J.C.; Mercx, W. The bearing capacity of prestressed hollow core slabs. HERON 1983, 28, 1983. [Google Scholar]
 - Pisanty, A. The shear strength of extruded hollow-core slabs. Mater. Struct. 1992, 25, 224–230. [Google Scholar] [CrossRef]
 - Zhang, F.; Zhao, G.-H.; Wu, Y.-F.; Zhang, Y. Effect of strand debonding on the shear strength of existing pretensioned PC hollow slab. Eng. Struct. 2023, 291, 116417. [Google Scholar] [CrossRef]
 - Nguyen, T.H.; Tan, K.-H.; Kanda, T. Investigations on web-shear behavior of deep precast, prestressed concrete hollow core slabs. Eng. Struct. 2019, 183, 579–593. [Google Scholar] [CrossRef]
 - Lee, D.; Park, M.-K.; Joo, H.-E.; Han, S.-J.; Kim, K.S. Strengths of thick prestressed precast hollow-core slab members strengthened in shear. ACI Struct. J. 2020, 117, 129–139. [Google Scholar]
 - Wang, J.; Liu, J.; Zhang, G.; Han, J. Experimental study on shear behavior of hollow slab beam strengthened with pasting steel plates. Int. J. Struct. Integr. 2021, 12, 419–427. [Google Scholar] [CrossRef]
 - Sui, Z.-A.; Dong, K.; Jiang, J.; Yang, S.; Hu, K. Flexural behavior of fire-damaged prefabricated RC hollow slabs strengthened with CFRP versus TRM. Materials 2020, 13, 2556. [Google Scholar] [CrossRef]
 - Li, X.; Wu, G.; Popal, M.S.; Jiang, J. Experimental and numerical study of hollow core slabs strengthened with mounted steel bars and prestressed steel wire ropes. Constr. Build. Mater. 2018, 188, 456–469. [Google Scholar] [CrossRef]
 - Conforti, A.; Ortiz-Navas, F.; Piemonti, A.; Plizzari, G.A. Enhancing the shear strength of hollow-core slabs by using polypropylene fibres. Eng. Struct. 2020, 207, 110172. [Google Scholar] [CrossRef]
 - Kankeri, P.; Prakash, S.S. Experimental evaluation of bonded overlay and NSM GFRP bar strengthening on flexural behavior of precast prestressed hollow core slabs. Eng. Struct. 2016, 120, 49–57. [Google Scholar] [CrossRef]
 - Di, J.; Sun, Y.; Yu, K.; Liu, L.; Qin, F. Experimental investigation of shear performance of existing PC hollow slab. Eng. Struct. 2020, 211, 110451. [Google Scholar] [CrossRef]
 - Park, M.-K.; Lee, D.H.; Han, S.-J.; Kim, K.S. Web-shear capacity of thick precast prestressed hollow-core slab units produced by extrusion method. Int. J. Concr. Struct. Mater. 2019, 13, 7. [Google Scholar] [CrossRef]
 - Brunesi, E.; Bolognini, D.; Nascimbene, R. Evaluation of the shear capacity of precast-prestressed hollow core slabs: Numerical and experimental comparisons. Mater. Struct. 2015, 48, 1503–1521. [Google Scholar] [CrossRef]
 - Yuan, F.; Wang, Y.; Li, P.-D.; Li, H. Shear behaviour of seawater sea-sand coral aggregate concrete beams reinforced with FRP strip stirrups. Eng. Struct. 2023, 290, 116332. [Google Scholar] [CrossRef]
 - Yang, Y.; den Uijl, J.; Walraven, J. Critical shear displacement theory: On the way to extending the scope of shear design and assessment for members without shear reinforcement. Struct. Concr. 2016, 17, 790–798. [Google Scholar] [CrossRef]
 - Mihaylov, B.I.; Bentz, E.C.; Collins, M.P. Two-Parameter Kinematic Theory for Shear Behavior of Deep Beams. ACI Struct. J. 2013, 110, 447. [Google Scholar]
 - Yang, L. Design of prestressed hollow core slabs with reference to web shear failure. J. Struct. Eng. 1994, 120, 2675–2696. [Google Scholar] [CrossRef]
 - Derkowski, W.; Surma, M. Prestressed hollow core slabs for topped slim floors—Theory and research of the shear capacity. Eng. Struct. 2021, 241, 112464. [Google Scholar] [CrossRef]
 - Jeziorski, M.; Derkowski, W. Finite Element Analysis of Hollow Core Floor Subjected to Point Load. In Building for the Future: Durable, Sustainable, Resilient; Springer: Cham, Switzerland, 2023; pp. 3–12. [Google Scholar]
 - Michelini, E.; Bernardi, P.; Cerioni, R.; Belletti, B. Experimental and Numerical Assessment of Flexural and Shear Behavior of Precast Prestressed Deep Hollow-Core Slabs. Int. J. Concr. Struct. Mater. 2020, 14, 31. [Google Scholar] [CrossRef]
 - Hegger, J.; Roggendorf, T.; Kerkeni, N. Shear capacity of prestressed hollow core slabs in slim floor constructions. Eng. Struct. 2009, 31, 551–559. [Google Scholar] [CrossRef]
 - Guo, Y.; Gong, G.; Chin, C.; Zhang, C. Structural Design of Concrete to EC2 and GB50010-2010: A Comparison; MATEC Web of Conferences; EDP Sciences: Paris, France, 2018; p. 01039. [Google Scholar]
 - ACI Committee. Building Code Requirements for Structural Concrete (ACI 318-08) and Commentary; American Concrete Institute: Farmington Hills, MI, USA, 2008. [Google Scholar]
 - Kuchma, D.A.; Wei, S.; Sanders, D.H.; Belarbi, A.; Novak, L.C. Development of the One-Way Shear Design Provisions of ACI 318-19 for Reinforced Concrete. ACI Struct. J. 2019, 116, 285–296. [Google Scholar] [CrossRef]
 - JTG 3362–2018; Ministry of Transport of the People’s Republic of China, Specifications for Design of Highway Reinforced Concrete and Prestressed Concrete Bridges and Culverts. China Communications Press Beijing: Beijing, Chian, 2018.
 - Rund, R.; McGrath, T. Comparison of AASHTO standard and LRFD code provisions for buried concrete box culverts. In Concrete Pipe for the New Millennium; ASTM International: Conshohocken, PA, USA, 2000. [Google Scholar]
 - Barker, R.M.; Puckett, J.A. Design of Highway Bridges Based on AASHTO LRFD Bridge Design Specifications; Wiley-Interscience: New York, NY, USA, 1987. [Google Scholar]
 - Sayhood, E.K.; Mohammed, N.S.; Hilo, S.J.; Salih, S.S. Comprehensive Empirical Modeling of Shear Strength Prediction in Reinforced Concrete Deep Beams. Infrastructures 2024, 9, 67. [Google Scholar] [CrossRef]
 - Kim, S.Y.; Lee, D.; Oh, J.-H.; Han, S.-J. Effect of Cast-in-Place Concrete and Stirrups on Shear Capacity of Precast Composite Hollow-Core Slabs. ACI Struct. J. 2024, 121, 75–90. [Google Scholar]
 - Pajari, M. Resistance of Prestressed Hollow core Slabs Against Web Shear Failure; Technical Research Centre of Finland Espoo: Espoo, Finland, 2005. [Google Scholar]
 - Medvediev, K.; Kharchenko, A.; Stakhova, A.; Yevseichyk, Y.; Tsybulskyi, V.; Bekö, A. Methodology for Assessing the Technical Condition and Durability of Bridge Structures. Infrastructures 2024, 9, 16. [Google Scholar] [CrossRef]
 - Duran, B.; Eftekhar Azam, S.; Sanayei, M. Leveraging Deep Learning for Robust Structural Damage Detection and Classification: A Transfer Learning Approach via CNN. Infrastructures 2024, 9, 229. [Google Scholar] [CrossRef]
 - Girhammar, U.A.; Pajari, M. Tests and analysis on shear strength of composite slabs of hollow core units and concrete topping. Constr. Build. Mater. 2008, 22, 1708–1722. [Google Scholar] [CrossRef]
 - Lin, T.Y.; Burns, N.H. Design of Prestressed Concrete Structures; CRC Press: Boca Raton, FL, USA, 1981. [Google Scholar]
 - GB50010-2010; Ministry of Transport of the People’s Republic of China, Code for Design of Concrete Structures. China Communications Press Beijing: Beijing, China, 2010.
 














| Component | ρ [kg/m3] | Ec[GPa] | ftr [MPa] | fcr [MPa] | CDP | ||||
|---|---|---|---|---|---|---|---|---|---|
| φ | ε | fb0/fc0 | Kc | μ | |||||
| Concrete | 2450 | 32.5 | 2.7 | 32.4 | 30 | 0.1 | 1.16 | 0.667 | 0.0005 | 
| Component | ρ [kg/m3] | D [mm] | Es [GPa] | fy [MPa] | fu [MPa] | εu | 
|---|---|---|---|---|---|---|
| Stirrup | 7800 | 10 | 200 | 355 | 500 | 0.080 | 
| Longitudinal reinforcement | 7800 | 12 | 200 | 462 | 612 | 0.075 | 
| Prestressed steel bar | 7800 | 12.7 | 196 | 1580 | 1860 | 0.035 | 
Disclaimer/Publisher’s Note: The statements, opinions and data contained in all publications are solely those of the individual author(s) and contributor(s) and not of MDPI and/or the editor(s). MDPI and/or the editor(s) disclaim responsibility for any injury to people or property resulting from any ideas, methods, instructions or products referred to in the content.  | 
© 2024 by the authors. Licensee MDPI, Basel, Switzerland. This article is an open access article distributed under the terms and conditions of the Creative Commons Attribution (CC BY) license (https://creativecommons.org/licenses/by/4.0/).
Share and Cite
Zhao, K.; Wang, H.; Li, H.; Wei, Y.; Lu, J.; Li, G. Experimental and Numerical Analysis of Shear Performance of 16 m Full-Scale Prestressed Hollow Core Slabs. Infrastructures 2025, 10, 2. https://doi.org/10.3390/infrastructures10010002
Zhao K, Wang H, Li H, Wei Y, Lu J, Li G. Experimental and Numerical Analysis of Shear Performance of 16 m Full-Scale Prestressed Hollow Core Slabs. Infrastructures. 2025; 10(1):2. https://doi.org/10.3390/infrastructures10010002
Chicago/Turabian StyleZhao, Kang, Hui Wang, Houchuan Li, Yang Wei, Jinwei Lu, and Guofen Li. 2025. "Experimental and Numerical Analysis of Shear Performance of 16 m Full-Scale Prestressed Hollow Core Slabs" Infrastructures 10, no. 1: 2. https://doi.org/10.3390/infrastructures10010002
APA StyleZhao, K., Wang, H., Li, H., Wei, Y., Lu, J., & Li, G. (2025). Experimental and Numerical Analysis of Shear Performance of 16 m Full-Scale Prestressed Hollow Core Slabs. Infrastructures, 10(1), 2. https://doi.org/10.3390/infrastructures10010002
        
