Development and Performance Analysis of a Novel Multi-Stage Microchannel Separated Gravity Heat Pipe for Compressor Room Cooling
Abstract
1. Introduction
2. Structural Design and Working Principle of an SGHP
3. Numerical Investigations on an SGHP
3.1. Simulation Model
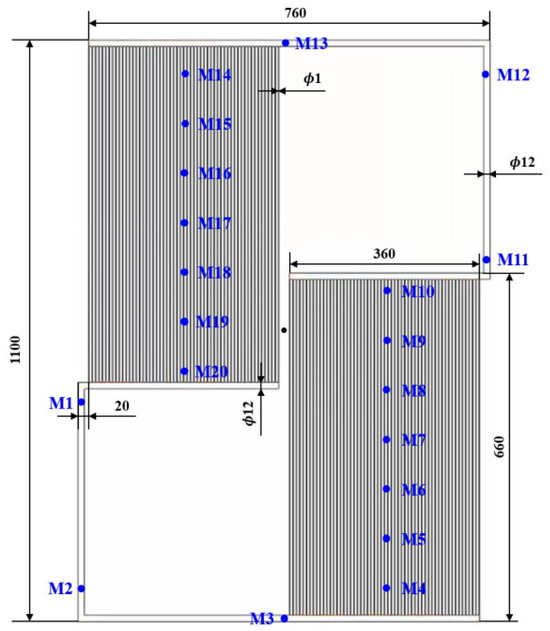
3.1.1. Geometrical Model
3.1.2. Mesh Model and Grid Independence Test
3.1.3. Model Simplifications
- (1)
- The interfacial shear stress between gas and liquid phases was neglected due to its minimal impact on the fluid flow and heat transfer. Neglecting the interfacial shear stress between vapor and liquid phases is an engineering simplification that improves numerical stability. It is reasonable in gravity-driven return flow regions, where buoyancy and pressure gradients dominate momentum exchange; however, in zones with high vapor velocity or thin liquid films, this neglect may alter local film dynamics and slightly affect the prediction of condensation behavior. Thus, while the assumption facilitates convergence, it reduces accuracy in capturing detailed interfacial phenomena.
- (2)
- The airflow distribution (such as air velocity, air capacity, and air temperature) was assumed to be uniform across the evaporator and condenser surfaces. Assuming a uniform airflow distribution over the evaporator and condenser surfaces simplifies the boundary conditions and ensures convergence of the coupled fluid–thermal field. This approximation is acceptable when the airflow is confined and well mixed, as the bulk flow largely determines convective heat transfer. Nevertheless, it suppresses local variations such as turbulence intensity, hot spots, and recirculation, which could smooth the temperature and velocity gradients, thereby limiting the precision of local heat transfer coefficient predictions.
- (3)
- The thermophysical properties (such as density, specific heat, viscosity, and thermal conductivity) of R134a remained unchanged within the operational temperature range from 25 to 100 °C. Treating the thermophysical properties of R134a as constant throughout the operating temperature range is a computationally convenient assumption but physically restrictive. Since the working fluid undergoes phase change under a wide temperature span, its density, viscosity, and thermal conductivity vary noticeably with temperature and pressure. Keeping them constant stabilizes the solver but sacrifices thermodynamic fidelity, potentially misrepresenting vapor–liquid distribution and overall heat transfer characteristics. This assumption is therefore more suitable for qualitative trend analysis than for accurate quantitative prediction.
- (4)
- Adiabatic conditions were applied to rising and downward pipes since the heat loss from the surfaces wrapped with insulating material can be neglected. The adiabatic boundary assumption on the rising and downward pipelines is commonly applied when external surfaces are insulated. It is practical when heat losses are relatively small compared with the total heat flow inside the system. In the present experimental setup, the rising and return pipes were wrapped with insulation material, and thermal imaging confirmed negligible surface heat loss. Therefore, this assumption is considered appropriate and does not introduce significant error into the numerical model.
3.1.4. Simulation Setup
3.2. Numerical Results and Discussions
4. Experimental Investigations on an SGHP
4.1. Experimental Setup
4.2. Performance Evaluation Index of the SGHP
4.3. Uncertainty and Error Analysis
4.4. Experimental Results and Discussions
4.4.1. Effects of Temperature Difference Between Hot and Cold Ends on SGHP Performance
4.4.2. Effects of Filling Ratio Combinations on SGHP Performance
5. Conclusions
Author Contributions
Funding
Data Availability Statement
Conflicts of Interest
References
- Hota, S.K.; Lee, K.-L.; Leitherer, B.; Elias, G.; Hoeschele, G.; Rokkam, S. Pulsating heat pipe and embedded heat pipe heat spreaders for modular electronics cooling. Case Stud. Therm. Eng. 2023, 49, 103256. [Google Scholar] [CrossRef]
- Zhao, J.; Han, J.; Zhou, C.; Cheng, X.; Jian, Q.; Chen, C. Design and experimental study of a novel vapor chamber for proton exchange membrane fuel cell cooling. Int. J. Heat Mass Transf. 2024, 220, 124949. [Google Scholar] [CrossRef]
- Huang, Z.; Jian, Q.; Zhao, J. Thermal management of open-cathode proton exchange membrane fuel cell stack with thin vapor chambers. J. Power Sources 2021, 485, 229314. [Google Scholar] [CrossRef]
- Zhao, X.; Su, L.; Jiang, J.; Deng, W.; Zhao, D. A review of working fluids and flow state effects on thermal performance of micro-channel oscillating heat pipe for aerospace heat dissipation. Aerospace 2023, 10, 179. [Google Scholar] [CrossRef]
- Wang, W.-W.; Song, Y.-J.; Li, B.; Liu, D.; Zhao, F.-Y.; Cai, Y. A novel flat heat pipe for anti-gravity orientations: Leaf fractal evaporator and bi-directional transport capillary channel. Appl. Therm. Eng. 2023, 232, 120954. [Google Scholar] [CrossRef]
- Cai, B.; Deng, W.; Wu, T.; Wang, T.; Ma, Z.; Liu, W.; Ma, L.; Liu, Z. Experimental Study of a Loop Heat Pipe with Direct Pouring Porous Wick for Cooling Electronics. Processes 2021, 9, 1332. [Google Scholar] [CrossRef]
- Jouhara, H.; Nieto, N.; Egilegor, B.; Zuazua, J.; González, E.; Yebra, I.; Igesias, A.; Delpech, B.; Almahmoud, S.; Brough, D.; et al. Waste heat recovery solution based on a heat pipe heat exchanger for the aluminium die casting industry. Energy 2023, 266, 126459. [Google Scholar] [CrossRef]
- Delpech, B.; Milani, M.; Montorsi, L.; Boscardin, D.; Chauhan, A.; Almahmoud, S.; Axcell, B.; Jouhara, H. Energy efficiency enhancement and waste heat recovery in industrial processes by means of the heat pipe technology: Case of the ceramic industry. Energy 2018, 158, 656–665. [Google Scholar] [CrossRef]
- Jouhara, H.; Bertrand, D.; Axcell, B.; Montorsi, L.; Venturelli, M.; Almahmoud, S.; Milani, M.; Ahmad, L.; Chauhan, A. Investigation on a full-scale heat pipe heat exchanger in the ceramics industry for waste heat recovery. Energy 2021, 223, 120037. [Google Scholar] [CrossRef]
- Jouhara, H.; Almahmoud, S.; Chauhan, A.; Delpech, B.; Bianchi, G.; Tassou, S.A.; Llera, R.; Lago, F.; Arribas, J.J. Experimental and theoretical investigation of a flat heat pipe heat exchanger for waste heat recovery in the steel industry. Energy 2017, 141, 1928–1939. [Google Scholar] [CrossRef]
- Ma, H.; Du, N.; Zhang, Z.; Lyu, F.; Deng, N.; Li, C.; Yu, S. Assessment of the optimum operation conditions on a heat pipe heat exchanger for waste heat recovery in steel industry. Renew. Sustain. Energy Rev. 2017, 79, 50–60. [Google Scholar] [CrossRef]
- Abd El-Baky, M.A.; Mohamed, M.M. Heat pipe heat exchanger for heat recovery in air conditioning. Appl. Therm. Eng. 2007, 27, 795–801. [Google Scholar] [CrossRef]
- Abdelaziz, G.B.; Abdelbaky, M.A.; Halim, M.A.; Omara, M.E.; Elkhaldy, I.A.; Abdullah, A.S.; Omara, Z.M.; Essa, F.A.; Ali, A.; Sharshir, S.W.; et al. Energy saving via Heat Pipe Heat Exchanger in air conditioning applications “experimental study and economic analysis”. J. Build. Eng. 2021, 35, 102053. [Google Scholar] [CrossRef]
- Yang, F.; Yuan, X.; Lin, G. Waste heat recovery using heat pipe heat exchanger for heating automobile using exhaust gas. Appl. Therm. Eng. 2003, 23, 367–372. [Google Scholar] [CrossRef]
- Wang, S.; Rong, B.; Ma, S.; Ma, D.; Wu, L.; Ma, H.; Ma, Y.; Wang, R.; Hu, H. Investigation of the cooling and purification effect of automobile exhaust using heat pipe heat exchanger. Appl. Therm. Eng. 2024, 236, 121675. [Google Scholar] [CrossRef]
- Ling, L.; Zhang, Q.; Yu, Y.; Liao, S.; Sha, Z. Experimental study on the thermal characteristics of micro channel separate heat pipe respect to different filling ratio. Appl. Therm. Eng. 2016, 102, 375–382. [Google Scholar] [CrossRef]
- Srimuang, W.; Amatachaya, P. A review of the applications of heat pipe heat exchangers for heat recovery. Renew. Sustain. Energy Rev. 2012, 16, 4303–4315. [Google Scholar] [CrossRef]
- Zhang, B.; Fang, S.; Zhang, S.; Zhang, R.; Zang, Y. Experimental Study on the Influence of Wind Speed on the Start-Up Characteristics and Thermoelectric Generation Characteristics of Gravity Heat Pipe in Gangue Dump. Processes 2023, 11, 2429. [Google Scholar] [CrossRef]
- Blet, N.; Lips, S.; Sartre, V. Heats pipes for temperature homogenization: A literature review. Appl. Therm. Eng. 2017, 118, 490–509. [Google Scholar] [CrossRef]
- Ling, L.; Xia, Y.; Zhao, L.; Hu, Q.; Zhang, Z.; Xiang, Z.; Song, D. Experimental investigation on the thermal performance of a novel loop heat pipe (LHP) with micro-channel structure. Appl. Therm. Eng. 2024, 238, 122046. [Google Scholar] [CrossRef]
- Liu, S.; Ma, G.; Li, X.; Xu, S. Experimental investigation and application potential analysis of vapor compression refrigeration integrated mechanically-driven loop heat pipe for data centers cooling. Appl. Therm. Eng. 2025, 259, 124958. [Google Scholar] [CrossRef]
- Ding, T.; He, Z.G.; Hao, T.; Li, Z. Application of separated heat pipe system in data center cooling. Appl. Therm. Eng. 2016, 109, 207–216. [Google Scholar] [CrossRef]
- Kuang, Y.; Wang, W. Modeling and numerical investigation on the effects of filling ratio in a large separate heat pipe loop. Int. J. Energy Res. 2021, 46, 415–432. [Google Scholar] [CrossRef]
- Xia, G.; Zhuang, D.; Ding, G.; Lu, J. A quasi-three-dimensional distributed parameter model of micro-channel separated heat pipe applied for cooling telecommunication cabinets. Appl. Energy 2020, 276, 115544. [Google Scholar] [CrossRef]
- Wu, Y.; Cheng, J.; Zhu, H.; Xue, H.; Lu, Q.; Li, Y.; Li, W.; Tao, H. Experimental study on heat transfer characteristics of separated heat pipe with compact structure for spent fuel pool. Ann. Nucl. Energy 2023, 181, 109580. [Google Scholar] [CrossRef]
- Kang, Z.; Shou, D.; Fan, J. Numerical study of a novel Single-loop pulsating heat pipe with separating walls within the flow channel. Appl. Therm. Eng. 2021, 196, 117246. [Google Scholar] [CrossRef]
- Xiong, K.; Huang, Y.; Wang, S. Experimental research on the thermal performance of a flat evaporator loop heat pipe with a new composite wick. Appl. Therm. Eng. 2024, 246, 122927. [Google Scholar] [CrossRef]
- Yue, C.; Zhang, Q.; Zhai, Z.; Ling, L. CFD simulation on the heat transfer and flow characteristics of a microchannel separate heat pipe under different filling ratios. Appl. Therm. Eng. 2018, 139, 25–34. [Google Scholar] [CrossRef]
- Yue, C.; Zhang, Q.; Zhai, Z.; Ling, L. Numerical investigation on thermal characteristics and flow distribution of a parallel micro-channel separate heat pipe in data center. Int. J. Refrig. 2019, 98, 150–160. [Google Scholar] [CrossRef]
- Zhang, H.; Shi, Z.; Liu, K.; Shao, S.; Jin, T.; Tian, C. Experimental and numerical investigation on a CO2 loop thermosyphon for free cooling of data centers. Appl. Therm. Eng. 2017, 111, 1083–1090. [Google Scholar] [CrossRef]
- Tong, Z.; Liu, X.-H.; Jiang, Y. Experimental study of the self-regulating performance of an R744 two-phase thermosyphon loop. Appl. Energy 2017, 186, 1–12. [Google Scholar] [CrossRef]
- Xia, G.; Zhuang, D.; Ding, G.; Lu, J.; Han, W.; Qi, H. A distributed parameter model for multi-row separated heat pipe with micro-channel heat exchangers. Appl. Therm. Eng. 2021, 182, 116113. [Google Scholar] [CrossRef]
- Wu, T.; Wang, T.; Ma, Z.; Zhang, Z.; Liu, W.; Liu, Z. Experimental investigation on the start-up performance of a loop heat pipe with three flat disk evaporators combined. Appl. Therm. Eng. 2022, 216, 119128. [Google Scholar] [CrossRef]
- Wang, L.; Quan, Z.; Zhao, Y.; Yang, M.; Jing, H. Heat transfer process analysis and performance research of micro heat pipe array applied for the thermal management of proton exchange membrane fuel cells. Appl. Therm. Eng. 2023, 219, 119531. [Google Scholar] [CrossRef]
- Ding, T.; Cao, H.; He, Z.; Li, Z. Experiment research on influence factors of the separated heat pipe system, especially the filling ratio and Freon types. Appl. Therm. Eng. 2017, 118, 357–364. [Google Scholar] [CrossRef]

















| Geometric Parameters | Values | Units |
|---|---|---|
| Total height of the SGHP | 1100 | mm |
| Total length of the SGHP | 760 | mm |
| Height of evaporator/condenser section | 660 | mm |
| Length of evaporator/condenser section | 360 | mm |
| Height difference between evaporator and condenser | 440 | mm |
| Inner diameter of rising/downward pipe | 12 | mm |
| Inner diameter of evaporator/condenser inlet/outlet ports | 12 | mm |
| Number of microchannel flat tubes | 57 | pieces |
| Case | Mesh Size (mm) | Number of Grids | Orthogonal Quality |
|---|---|---|---|
| #1 | 0.140 | 8.03 105 | 0.9379 |
| #2 | 0.070 | 3.01 106 | 0.9177 |
| #3 | 0.056 | 4.49 106 | 0.9322 |
| #4 | 0.035 | 6.25 106 | 0.9021 |
Disclaimer/Publisher’s Note: The statements, opinions and data contained in all publications are solely those of the individual author(s) and contributor(s) and not of MDPI and/or the editor(s). MDPI and/or the editor(s) disclaim responsibility for any injury to people or property resulting from any ideas, methods, instructions or products referred to in the content. |
© 2025 by the authors. Licensee MDPI, Basel, Switzerland. This article is an open access article distributed under the terms and conditions of the Creative Commons Attribution (CC BY) license (https://creativecommons.org/licenses/by/4.0/).
Share and Cite
Li, Z.; Zhang, Y.; Ye, F.; Zi, J.; Sun, D.; Liu, G.; Kuang, R.; Jiang, W.; Wu, H. Development and Performance Analysis of a Novel Multi-Stage Microchannel Separated Gravity Heat Pipe for Compressor Room Cooling. Processes 2025, 13, 3609. https://doi.org/10.3390/pr13113609
Li Z, Zhang Y, Ye F, Zi J, Sun D, Liu G, Kuang R, Jiang W, Wu H. Development and Performance Analysis of a Novel Multi-Stage Microchannel Separated Gravity Heat Pipe for Compressor Room Cooling. Processes. 2025; 13(11):3609. https://doi.org/10.3390/pr13113609
Chicago/Turabian StyleLi, Zhihua, Ying Zhang, Fanghua Ye, Juan Zi, Deji Sun, Guanglie Liu, Renqin Kuang, Weiguo Jiang, and Hualiang Wu. 2025. "Development and Performance Analysis of a Novel Multi-Stage Microchannel Separated Gravity Heat Pipe for Compressor Room Cooling" Processes 13, no. 11: 3609. https://doi.org/10.3390/pr13113609
APA StyleLi, Z., Zhang, Y., Ye, F., Zi, J., Sun, D., Liu, G., Kuang, R., Jiang, W., & Wu, H. (2025). Development and Performance Analysis of a Novel Multi-Stage Microchannel Separated Gravity Heat Pipe for Compressor Room Cooling. Processes, 13(11), 3609. https://doi.org/10.3390/pr13113609
