Research Regarding the Dimensional Precision of Electrical Steel Strips Machined by Waterjet Cutting in Multilayer Packages
Abstract
:1. Introduction
2. Materials and Methods
2.1. Materials and Technological Setup
2.2. Preliminary Tests
2.3. Preliminary Tests Results
- The process has limitations regarding the number of layers that can be cut together with the selected values of the traverse speed (Table 2).
- The maximum waterjet traverse speed was found, which can be used to obtain parts with a relatively suitable straight cut edge.
- The tolerance spread field obtained for each parameter configuration gave primary information regarding the dimension accuracy when using this machining method.
2.4. Extended Experimental Research
3. Results and Discussion
3.1. Parts Deviation Measurements
3.2. Mathematical Models Used for Parts Deviation Prediction
3.3. Practical Validation of Mathematical Models
4. Conclusions
- Waterjet machining is a proper process, which can be successfully used to manufacture thin sheet metal parts for electrical motor laminations prototyping or for small volume production, maintaining the dimensional precision in a range suitable for such type of parts.
- Initial experimental trials were performed in order to identify the process limitations regarding the most important influence factors, waterjet traverse speed and number of layers per package to be cut at once. These two factors are also the easiest to be modified by operators in the production plants. According to the preliminary tests, the maximum number of layers per package succeeded in being cut using a maximum traverse speed of 250 mm/min was ten layers.
- Extended experimental research, based on a full factorial plan, was conducted to study the process parameters influence (waterjet traverse speed and number of layers per package) on part accuracy. The maximum and the minimum deviations from the nominal dimensions were the research responses and were statistically processes by regression analysis in order to obtain mathematical models for dimensional accuracy prediction in the case of cutting multilayer packages when the sheets are completely separated and not glued or welded together.
- The mathematical model confidence was confirmed by additional experiments in a validation stage. The differences between the deviations calculated by mathematical models and the real deviations measured on the machined parts were in good agreement.
Author Contributions
Funding
Institutional Review Board Statement
Informed Consent Statement
Data Availability Statement
Acknowledgments
Conflicts of Interest
References
- Ion, C.P.; Calin, M.D.; Peter, I. Design of a 3 kW PMSM with Super Premium Efficiency. Energies 2023, 16, 498. [Google Scholar] [CrossRef]
- Cezário, C.A.; Verardi, M.; Borges, S.S.; Silva, J.C.; Oliveira, A.A.M. Transient Thermal Analysis of an Induction Electric Motor. In Proceedings of the 18th International Congress of Mechanical Engineering, Ouro Preto, Brazil, 6–11 November 2005; pp. 1–8. [Google Scholar]
- DIN EN 10106:2015; Cold Rolled Non-Oriented Electrical Steel Strip and Sheet Delivered in the Fully Processed State. iTeh, Inc.: Newark, DE, USA, 2015.
- Mihail, L.; Filip, A.; Mija, A. Researches on the geometrical and dimensional accuracy for complex thin parts made of electrical steel by abrasive waterjet machining. IOP Conf. Ser. Mater. Sci. Eng. 2022, 1268, 012008. [Google Scholar] [CrossRef]
- Naumoski, H.; Riedmüller, B.; Minkow, A.; Herr, U. Investigation of the influence of different cutting procedures on the global and local magnetic properties of non-oriented electrical steel. J. Magn. Magn. Mater. 2015, 392, 126–133. [Google Scholar] [CrossRef]
- Paltanea, V.M.; Paltanea, G.; Gavrila, H.; Peter, I. The influence of punching and laser cutting technologies on the magnetic properties of non-oriented silicon iron steels. In Proceedings of the 2014 International Symposium on Fundamentals of Electrical Engineering (ISFEE), Bucharest, Romania, 28–29 November 2014; Volume 2015, pp. 3–6. [Google Scholar] [CrossRef]
- Paltanea, G.; Manescu, V.; Nemoianu, I.V.; Gavrilǎ, H.; Andrei, P.C. Influence of cutting technologies on the magnetic anisotropy of grain oriented electrical steel. In Proceedings of the 2017 Electric Vehicles International Conference (EV), Bucharest, Romania, 5–6 October 2017; Volume 2017, pp. 1–4. [Google Scholar] [CrossRef]
- Shi, W.; Liu, J.; Li, C. Effect of cutting techniques on the structure and magnetic properties of a high-grade non-oriented electrical steel. J. Wuhan Univ. Technol. Mater. Sci. Ed. 2014, 29, 1246–1251. [Google Scholar] [CrossRef]
- Hofmann, M.; Naumoski, H.; Herr, U.; Herzog, H.G. Magnetic Properties of Electrical Steel Sheets in Respect of Cutting: Micromagnetic Analysis and Macromagnetic Modeling. IEEE Trans. Magn. 2016, 52. [Google Scholar] [CrossRef]
- Schoppa, A.; Louis, H.; Pude, F.; Von Rad, C. Influence of abrasive waterjet cutting on the magnetic properties of non-oriented electrical steels. J. Magn. Magn. Mater. 2003, 254–255, 370–372. [Google Scholar] [CrossRef]
- Sundaria, R.; Hemeida, A.; Arkkio, A.; Daem, A.; Sergeant, P.; Belahcen, A. Effect of Different Cutting Techniques on Magnetic Properties of Grain Oriented Steel Sheets and Axial Flux Machines. In Proceedings of the IECON 2019—45th Annual Conference of the IEEE Industrial Electronics Society, Lisbon, Portugal, 14–17 October 2019. [Google Scholar] [CrossRef]
- Paltanea, V.-M.; Paltanea, G.; Gavrila, H. Some important effects of the water jet and laser cutting methods on the magnetic properties of the non-oriented silicon iron sheets. In Proceedings of the 2015 9th International Symposium on Advanced Topics in Electrical Engineering (ATEE), Bucharest, Romania, 7–9 May 2015. [Google Scholar] [CrossRef]
- Anu Kuttan, A.; Rajesh, R.; Dev Anand, M. Abrasive water jet machining techniques and parameters: A state of the art, open issue challenges and research directions. J. Braz. Soc. Mech. Sci. Eng. 2021, 43, 220. [Google Scholar] [CrossRef]
- Llanto, J.M.; Tolouei-Rad, M.; Vafadar, A.; Aamir, M. Recent Progress Trend on Abrasive Waterjet Cutting of Metallic Materials: A Review. Appl. Sci. 2021, 11, 3344. [Google Scholar] [CrossRef]
- Cui, D.; Li, H.; He, J.; Wang, Q.; Lu, C.; Hu, H.; Cheng, X.; Wang, C. Applications of Water Jet Cutting Technology in Agricultural Engineering: A Review. Appl. Sci. 2022, 12, 8988. [Google Scholar] [CrossRef]
- Zohourkari, I.; Zohoor, M.; Annoni, M. Investigation of the effects of machining parameters on material removal rate in abrasive waterjet turning. Adv. Mech. Eng. 2014, 6, 24203. [Google Scholar] [CrossRef]
- Gembalová, L.; Hlaváč, L.M.; Spadło, S.; Geryk, V.; Oros, L. Notes on the Abrasive Water Jet (AWJ) Machining. Materials 2021, 14, 7032. [Google Scholar] [CrossRef] [PubMed]
- Štefek, A.; Raška, J.; Hlaváč, L.M.; Spadło, S. Investigation of Significant Parameters during Abrasive Waterjet Turning. Materials 2021, 14, 4389. [Google Scholar] [CrossRef] [PubMed]
- Cenac, F.; Zitoune, R.; Collombet, F.; Deleris, M. Abrasive water-jet milling of aeronautic aluminum 2024-T3. Proc. Inst. Mech. Eng. Part L J. Mater. Des. Appl. 2015, 229, 29–37. [Google Scholar] [CrossRef]
- Yuan, Y.; Chen, J.; Gao, H.; Wang, X. An investigation into the abrasive waterjet milling circular pocket on titanium alloy. Int. J. Adv. Manuf. Technol. 2020, 107, 4503–4515. [Google Scholar] [CrossRef]
- ShivajiRao, M.; Satyanarayana, S. Abrasive water jet drilling of float glass and characterization of hole profile. Glas. Struct. Eng. 2020, 5, 155–169. [Google Scholar] [CrossRef]
- Liang, Z.; Xie, B.; Liao, S.; Zhou, J. Concentration degree prediction of AWJ grinding effectiveness based on turbulence characteristics and the improved ANFIS. Int. J. Adv. Manuf. Technol. 2015, 80, 887–905. [Google Scholar] [CrossRef]
- Loc, P.H.; Shiou, F.J. Abrasive water jet polishing on Zr-based bulk metallic glass. AMR 2012, 579, 211–218. [Google Scholar] [CrossRef]
- Zhang, Z.; Song, C.; Shi, F.; Tie, G.; Zhang, W.; Wang, B.; Tian, Y.; Hou, Z. Theoretical Modeling Method for Material Removal Characteristics of Abrasive Water Jet Polishing under Rotating Oblique Incidence. Micromachines 2022, 13, 1690. [Google Scholar] [CrossRef]
- Haghbin, N.; Spelt, J.K.; Papini, M. Abrasive waterjet micro-machining of channels in metals: Model to predict high aspect-ratio channel profiles for submerged and unsubmerged machining. J. Mater. Process Technol. 2015, 222, 399–409. [Google Scholar] [CrossRef]
- Selvan, M.C.; Raju, D.N. Analysis of Surface Roughness in Abrasive Waterjet Cutting of Cast Iron. Int. J. Sci. Environ. Technol. 2012, 1, 174–182. [Google Scholar]
- Wang, S.; Zhang, S.; Wu, Y.; Yang, F. Exploring kerf cut by abrasive waterjet. Int. J. Adv. Manuf. Technol. 2017, 93, 2013–2020. [Google Scholar] [CrossRef]
- Ishfaq, K.; Mufti, N.A.; Ahmed, N.; Pervaiz, S. Abrasive waterjet cutting of cladded material: Kerf taper and MRR analysis. Mater. Manuf. Process 2019, 34, 544–553. [Google Scholar] [CrossRef]
- Babu, M.N.; Muthukrishnan, N. Exploration on Kerf-angle and Surface Roughness in Abrasive Waterjet Machining using Response Surface Method. J. Inst. Eng. India Ser. C 2018, 99, 645–656. [Google Scholar] [CrossRef]
- Gnanavelbabu, A.; Saravanan, P.; Rajkumar, K.; Karthikeyan, S. Experimental Investigations on Multiple Responses in Abrasive Waterjet Machining of Ti-6Al-4V Alloy. Mater. Today Proc. 2018, 5, 13413–13421. [Google Scholar] [CrossRef]
- Sasikumar, K.; Arulshri, K.; Ponappa, K.; Uthayakumar, M. A study on kerf characteristics of hybrid aluminium 7075 metal matrix composites machined using abrasive water jet machining technology. Proc. Inst. Mech. Eng. Part B J. Eng. Manuf. 2018, 232, 690–704. [Google Scholar] [CrossRef]
- Babu, M.N.; Muthukrishnan, N. Investigation on Surface Roughness in Abrasive Water-Jet Machining by the Response Surface Method. Mater. Manuf. Process 2014, 29, 1422–1428. [Google Scholar] [CrossRef]
- Pashmforoush, F.; Hassanpour Bab-ajan, A.; Beyraghi Baranlou, R. Experimental Study of Geometric Tolerances and Surface Roughness in Abrasive Water Jet Machining Process of Hardox 400 Steel. Modares Mech. Eng. 2020, 20, 953–961. [Google Scholar]
- Akkurt, A.; Kulekci, M.K.; Seker, U.; Ercan, F. Effect of feed rate on surface roughness in abrasive waterjet cutting applications. J. Mater. Process Technol. 2004, 147, 389–396. [Google Scholar] [CrossRef]
- Adam Khan, M.; Gupta, K. Machinability Studies on Abrasive Water Jet Machining of Low Alloy Steel for Different Thickness. IOP Conf. Ser. Mater. Sci. Eng. 2020, 709, 44099. [Google Scholar] [CrossRef]
- Marichamy, S.; Ravichandran, M.; Stalin, B.; Sridhar Babu, B. Optimization of abrasive water jet machining parameters for α-β brass using Taguchi methodology. FME Trans. 2019, 47, 116–121. [Google Scholar] [CrossRef]
- Shibin, R.; Anandakrishnan, V.; Sathish, S.; Mallemala Sujana, V. Investigation on the abrasive water jet machinability of AA2014 using SiC as abrasive. Mater. Today Proc. 2020, 21, 519–522. [Google Scholar] [CrossRef]
- Kechagias, J.; Petropoulos, G.; Vaxevanidis, N. Application of Taguchi Design for Quality Characterization of Abrasive Water Jet Machining of TRIP Sheet Steels. Int. J. Adv. Manuf. Technol. 2012, 62, 635–643. [Google Scholar] [CrossRef]
- Henzold, G. Geometrical Dimensioning and Tolerancing for Design, Manufacturing and Inspection: A Handbook for Geometrical Product Specification using ISO and ASME Standards, 2nd ed.; Butterworth-Heinemann: Oxford, UK, 2006. [Google Scholar] [CrossRef]
- Mitutoyo—Quick Vision APEX. Available online: https://WwwMitutoyoCom/Quick-Vision-Apex-Generation-E/ (accessed on 3 July 2023).
- Ishfaq, K.; Ahmad, N.; Ahmad Mufti, N.; Saleem, M.Q.; M. Al-Ahmari, A. Abrasive Waterjet Cutting of Clad Composite for Achieving Minimal Cut Quality Difference Between Constituent Layers. Metals 2019, 9, 754. [Google Scholar] [CrossRef]











| Main Mechanical Properties of M400-50A Material | ||||
|---|---|---|---|---|
| Density (kg/dm3) | Yield Strength (N/mm2) | Tensile Strength (N/mm2) | Young’s Modulus (N/mm2) | Hardess (Vickers) |
| 7.7 | 305 | 445 | 210,000 | 150 |
| Main elements for chemical composition of M400-50A material | ||||
| Si (%) | Mn (%) | P (%) | S (%) | Al (%) |
| 1.5–1.9 | 0.4–0.6 | 0.09–0.12 | max. 0.01 | 0.3–0.45 |
| Experiments Performed for Preliminary Tests | ||||
|---|---|---|---|---|
| Part Code | Traverse Speed (mm/min) | Package Number of Layers | Succeeded Cut | Maximum Layers Cut Completed |
| P-F250-5-1…5 | 250 | 5 | Yes | All |
| P-F350-5-1…5 | 350 | 5 | Yes | All |
| P-F450-5-1…5 | 450 | 5 | Yes | All |
| P-F250-10-1…10 | 250 | 10 | Yes | All |
| P-F350-10-1…10 | 350 | 10 | No | max 8 layers of 10 |
| P-F450-10-1…10 | 450 | 10 | Not performed | - |
| P-F250-15-1…15 | 250 | 15 | No | max 11 layers of 15 |
| P-F350-15-1…15 | 350 | 15 | Not performed | - |
| P-F450-15-1…15 | 450 | 15 | Not performed | - |
| P-F150-15-1…15 | 150 | 15 | Yes | All |
| Part Code | Minimum Deviations Devmin (mm) | Maximum Deviations Devmax (mm) | Tolerance Spread Field (mm) |
|---|---|---|---|
| P-F250-5-1…5 | −0.35 | −0.12 | 0.23 |
| P-F350-5-1…5 | −0.27 | −0.09 | 0.18 |
| P-F450-5-1…5 | −0.27 | 0.01 | 0.28 |
| P-F250-10-1…10 | −0.32 | −0.02 | 0.30 |
| P-F350-10-1…10 | −0.28 | 0.14 | 0.42 |
| P-F250-15-1…15 | −0.32 | 0.11 | 0.43 |
| P-F150-15-1…15 | −0.33 | 0.02 | 0.35 |
| Factor Description | Factor Name | Measurement Unit | Number of Levels | Level Values | Code of the Trial Configuration |
|---|---|---|---|---|---|
| Waterjet feed rate/traverse speed | Ts | mm/min | 3 | 150 | E-F150-4-1…4 |
| 200 | E-F200-4-1…4 | ||||
| 250 | E-F250-4-1…4 | ||||
| Layer package | Nl | number of layers | 3 | 4 | E-F150-7-1…7 |
| 7 | E-F200-7-1…7 | ||||
| 10 | E-F250-7-1…7 | ||||
| E-F150-10-1…10 | |||||
| E-F200-10-1…10 | |||||
| E-F250-10-1…10 |
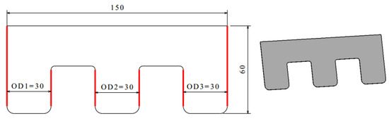
| Experimental Configuration | Nominal Dimension (mm) | OD1 (mm) | Dev OD1 (mm) | OD2 (mm) | Dev OD2 (mm) | OD3 (mm) | Dev OD3 (mm) | Devmin/ Devmax (mm) |
|---|---|---|---|---|---|---|---|---|
| E-F150-4-1 | 30 | 29.991 | −0.009 | 29.967 | −0.033 | 29.993 | −0.006 | Devmin = −0.033 |
| E-F150-4-2 | 30.034 | 0.034 | 30.015 | 0.015 | 30.026 | 0.026 | ||
| E-F150-4-3 | 30.080 | 0.080 | 30.062 | 0.062 | 30.078 | 0.078 | Devmax = 0.104 | |
| E-F150-4-4 | 30.096 | 0.096 | 30.077 | 0.077 | 30.103 | 0.104 |
| Response | Standard Deviation, (S) | Coefficient of Correlation, (R2) |
|---|---|---|
| Devmin | 0.0024056 | 90.90% |
| Devmax | 0.0184220 | 94.82% |
| Validation Configuration Name | Traverse Speed (mm/min) | Number of Layers per Package | Minimum Deviation Devmin (mm) | Maximum Deviation Devmax (mm) |
|---|---|---|---|---|
| V-F175-5-1…5 | 175 | 5 | −0.089 | 0.080 |
| V-F225-8-1…8 | 225 | 8 | −0.141 | 0.089 |
Disclaimer/Publisher’s Note: The statements, opinions and data contained in all publications are solely those of the individual author(s) and contributor(s) and not of MDPI and/or the editor(s). MDPI and/or the editor(s) disclaim responsibility for any injury to people or property resulting from any ideas, methods, instructions or products referred to in the content. |
© 2023 by the authors. Licensee MDPI, Basel, Switzerland. This article is an open access article distributed under the terms and conditions of the Creative Commons Attribution (CC BY) license (https://creativecommons.org/licenses/by/4.0/).
Share and Cite
Nasulea, D.; Filip, A.C.; Zisu, S.; Oancea, G. Research Regarding the Dimensional Precision of Electrical Steel Strips Machined by Waterjet Cutting in Multilayer Packages. Processes 2023, 11, 2788. https://doi.org/10.3390/pr11092788
Nasulea D, Filip AC, Zisu S, Oancea G. Research Regarding the Dimensional Precision of Electrical Steel Strips Machined by Waterjet Cutting in Multilayer Packages. Processes. 2023; 11(9):2788. https://doi.org/10.3390/pr11092788
Chicago/Turabian StyleNasulea, Daniel, Alexandru Catalin Filip, Silvia Zisu, and Gheorghe Oancea. 2023. "Research Regarding the Dimensional Precision of Electrical Steel Strips Machined by Waterjet Cutting in Multilayer Packages" Processes 11, no. 9: 2788. https://doi.org/10.3390/pr11092788
APA StyleNasulea, D., Filip, A. C., Zisu, S., & Oancea, G. (2023). Research Regarding the Dimensional Precision of Electrical Steel Strips Machined by Waterjet Cutting in Multilayer Packages. Processes, 11(9), 2788. https://doi.org/10.3390/pr11092788

