Next Article in Journal
The Use of Chitosan for Flocculation Recovery of Bacillus Biomass Grown on Dairy and Wine Industry Effluents
Previous Article in Journal
Experimental and Simulation Study on the Direct Contact Condensation of Saturated Steam on Moving Droplets at Sub-Atmospheric Pressure
 
 
Font Type:
Arial Georgia Verdana
Font Size:
Aa Aa Aa
Line Spacing:
Column Width:
Background:
Article

Gas-Driven Endoscopic Robot for Visual Inspection of Corrosion Defects Inside Gas Pipelines

1
Central Sichuan District of Petro China Southwest Oil & Gas Field Company, Suining 629000, China
2
College of Automation, Chongqing University, Chongqing 400044, China
*
Author to whom correspondence should be addressed.
Processes 2023, 11(4), 1098; https://doi.org/10.3390/pr11041098
Submission received: 23 February 2023 / Revised: 22 March 2023 / Accepted: 24 March 2023 / Published: 4 April 2023
(This article belongs to the Section Process Control and Monitoring)

Abstract

The internal inspection of corrosion in large natural gas pipelines is a fundamental task for the prevention of possible failures. Photos and videos provide direct proof of internal corrosion defects. However, the implementation of this technique is limited by fast robot motion and poor lighting conditions, with high-quality images being key to its success. In this work, we developed a natural gas-driven pipeline endoscopic robot (GDPER) for the visual inspection of the inner wall surfaces of pipelines. GDPER consists of driving, odometer, and vision modules connected by universal joints. It is designed to work in a 154 mm gas-pressurized pipeline up to a maximum of 6 MPa, allowing it to smoothly pass through bends and cross-ring welds at a maximum speed of 3 m/s using gas pressure driving. Test results have shown that HD MP4 video files can be obtained, and the location of defects on the pipelines can be detected by intelligent video image post-processing. The gas-driven function enables the survey of very long pipelines without impacting the transport of the pipage.

1. Introduction

Pipelines are the main logistics for oil and gas over long distances. In China alone, by the end of 2021, there were over 150,000 km of oil and gas pipelines, according to [1]. A pipeline leak may result in significant economic or human loss. Inner defects are the most common causes of failures, such as corrosion, deformation, crack, dent, deposit, and metal loss. Therefore, regular maintenance of the pipeline is an essential task.
Generally, natural gas pipelines are classified into gathering and transmission pipelines. Gathering pipelines are small-sized pipelines that transport raw gas from production wells to processing stations. Transmission pipelines are large-diameter pipelines for the transmission of purified commercial gas. Gathering pipelines are more susceptible to corrosion, leading to leakage because raw gas comes with high-percentage impurities, such as H2S, CO2, and water, compared to purified gas. Regular internal inspections of the gathering pipelines are necessary.
The most reasonable and effective way to detect long and buried pipelines is through the use of pipeline detection robots equipped with internal or in-line inspection (ILI) techniques [2,3]. Consequently, research on in-pipe inspection robots has significantly enhanced over the years [3,4]. Typical in-pipe robots are divided into wheel-driven robots, tractor/track-driven robots and fluid-powered robots, according to different driving mechanisms in conventional locomotion [5,6,7]. For example, the pipeline inspection gauge (PIG) [8] is a type of passive robot equipped with magnetic flux leakage (MFL) [9], ultrasonic testing (UT) [10], eddy currents (ECs) [11], and electromagnetic acoustic transducers (EMATs). However, the significant drawbacks are the significantly higher operating cost and indirect observation of defects. In particular, non-direct observation of the defect is very unfriendly to end-users. Visual inspection in the ILI involves the use of closed-circuit television (CCTV) [12] for pipeline inspection. The visual inspection system is usually a mobile platform with proper cameras and lights. The camera is used to capture high-resolution videos or photos of the damaged inner pipeline surface. In the visual inspection of the inner pipeline, online inspection is usually manually done by means of a multi-core cable, while the offline inspection is executed by a powered mobile robot. Obviously, the former is often impractical in long and in-service pipelines due to the lack of reliable wireless communication and power supply [13]. Although the latter records images while the robot is passing through the pipeline and then analyzes the images outside the pipeline, the latter is also limited by the mobile platform itself and is not adapted to long pipelines. The wheeled pipe robot mounted on the camera is representative, which has a large overall structure and requires significant energy. As a result, the inspection ability of long or curved pipelines is highly dependent on a high-power supply.
Fortunately, the principle of gathering pipelines, which involves moving gas from high-pressure to low-pressure regions, offers the possibility of long-distance movement for non-power-driven motion platforms. Meanwhile, the pig receiver and launcher, commonly used in pigging processes, provide easy access to the in-line robot. In this work, we developed a prototype of the natural gas-driven pipeline endoscopic robot (GDPER) for long-distance natural gas gathering pipelines with an internal diameter of 154 mm, which has no electric motors and can move through vertical pipelines, elbows, and branches, and has a scaled body and pressure-resistant structure to operate at pressures up to 6 MPa. During the movement of the GDPER prototype in the axial direction of the pipe, the camera constantly captures HD-quality videos of the inner wall at a rate of 30 frames per second (fps) throughout the length of the pipeline. The integrated distance recording combined with the saved MP4 format video files can be further processed to locate defect spots.
In this paper, we introduced the design and structure of the GDPER in Section 2; the pipeline passing capacity of the prototype of GDPER is analyzed by the ADAMS simulation software environment in Section 3. Finally, we describe the preliminary test results and the performance discussion.

2. Design of the Prototype of GDPER

2.1. General Solution for GDPER

A modular design was chosen for the robot, which was designed to pass through gas-gathering pipelines with an internal diameter of 154 mm. The robot is propelled by the flowing gas at a speed equivalent to the fluid velocity. It can be composed of several units, each with a specialized function, linked by universal joints. In this design, the prototype consists only of the traction speed regulation unit, the distance measuring unit, and the camera unit. Individually designed units were mounted along the core of the axis, linked by universal joints. The traction and speed regulation unit is composed of a resin bowl and a speed control module that provides the robot with forward driving force through the natural gas in the pipeline under the action of the pressure difference between the front and rear of the unit. The distance measuring unit carries three odometers to measure travel length. The camera unit has a camera and a set of ring LED lights to record high-definition images of the inner wall of the pipeline and is located at the tail of the robot. A lithium battery is placed in each unit to supply a constant 12 V to the sensor. The structure composition of GDPER is given in Figure 1. The details of each unit are described below.

2.2. Traction and Speed Regulation Unit

The natural gas in the gathering pipeline carries a significant amount of energy and flows at a certain speed. Thus, a specially designed traction structure can enable the robot to complete long-distance and long-term motion within the pipeline, utilizing the gas flow.
The traction and speed regulation control unit is divided into three sections. The front section is a double-layer bowl with flow rate adjustment holes made of polyurethane rubber material. The double bowl not only drives the entire unit forward but also provides sufficient support. The middle section is a cone-shaped flow control valve cover that can move back and forth to adjust the area of the flow control hole. The rear section is the motor compartment, equipped with a screw motor, three pairs of adaptive support wheels, and a sealing cover. These three sections are connected by three double-ended threaded smooth shafts. The cone-shaped flow control valve cover is driven by a screw motor that moves back and forth on the smooth shaft. Changing the area of the flow adjustment orifice changes the differential pressure before and after the bowl. As a result, the robot can travel under the fluid pressure difference drive, and the travel speed range is also adjustable.
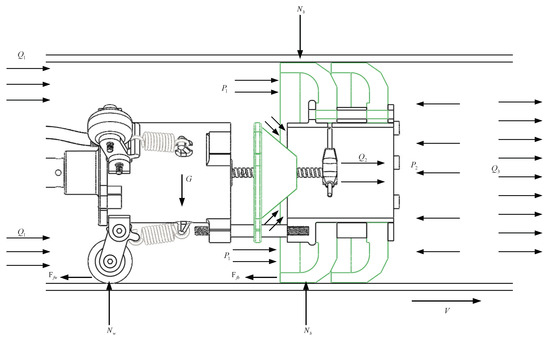
The traction force is what drives the robot to move along the pipeline and is a critical specification for its performance. It is usually limited by the conditions of the pipeline, such as dust, bends, and weld heads. The robot itself is modeled as a lumped element with self-weight and corresponding friction forces, as shown in Figure 2. F f b and F f w represent the friction forces against the pipeline inner wall of the bowl and the support wheel, respectively. N b and N w are the radial forces against the pipeline inner wall of the bowl and the support wheel, respectively, while G represents the gravity of the robot itself. Q 1 , Q 2 , and Q 3 represent the flow of gas into, through, and out of the flow rate adjustment hole, respectively.
Thus, the traction force of the robot unit that should move along the pipeline can be expressed as
( P 1 P 2 ) S = m a + F f b + F f w
where P 1 and P 2 are the pressures at the back end and the front end of the unit, Pa. The effective force area of the bowl is S, m 2 , the total weight of the robot is m kg, and the acceleration of the robot motion is a m/s 2 .
It is assumed that F f b and F f w are constant and m is also constant. The traction force of the robot obtained by the pressure difference overcomes the friction and makes the robot travel along the pipeline. If the traction force obtained by the robot through the pressure difference P 1 P 2 is greater than the friction force, the robot will travel through the pipeline. The velocity of the robot’s movement depends on the effective force area S of the bowl, i.e., P 1 P 2 . This can be achieved by adjusting the opening of the cone-shaped flow control valve cover. It is important to ensure constant movement of the robot through the pipeline for capturing high-quality images.

2.3. Distance Measuring Unit

In order to accurately detect internal defects through image recognition after the robot inspection, it is necessary to record the robot’s position throughout its deployment. Therefore, an odometer is used to calculate the robot’s speed and distance traveled, as well as to track the location of defects. To reduce data errors from a single odometer, three odometer (mileage) wheels are designed on the distance measuring unit, spaced 120 degrees apart from each other. Fusing data from the three sensors may increase positioning accuracy.
The odometer wheel (supported by the support arm) can make contact with the inner wall of the pipeline, travel along the pipeline using the spring preload, and rotate through rolling friction with the pipeline. An encoder is installed on the odometer wheel to record the number of rotations of the odometer wheel. If the total number of pulses output from the encoder for one cycle of the odometer wheel is N w , then the robot’s travel distance D can be calculated as
D = 2 π r × N w n e × n 2 n 1
where n e is the number of pulses for one circle of the encoder, and r is the radius of the odometer wheel. n 1 and n 2 represent the number of teeth on the master gear and the slave gear, respectively. In order to prevent inaccurate recording caused by radial forces on the encoder’s rotating shaft, a transmission structure with meshing gears was designed. The structure of the odometer wheel module in the distance measuring unit is shown in Figure 3.

2.4. Camera Unit

The image captured by the camera of the inner wall of the pipeline is the most visual representation of defects in the pipeline. Despite the rapid advancements in image processing methods, software-based visual assessment of the interior surfaces in a pipeline still heavily rely on the quality of the raw camera images. A key factor in obtaining high-quality endoscopic images is to ensure adequate illumination [6]. However, the internal environment of the pipeline usually has an illumination level of 0 Lux. Additionally, acquiring high-quality images at a maximum speed of 3 m/s should be taken into consideration. To ensure high-quality videos, a full HD high-speed wide-angle digital camera with an LED ring is considered for optimal illumination. Figure 4 illustrates the structure of the camera unit.
The camera and LED light ring were mounted along the axis-core in the center-round hole and the outer ring lamp groove, respectively. The camera and LED light ring each use one piece of protective glass instead of sharing one to avoid reflected light into the camera, resulting in image whitening and affecting image quality. The system will provide full HD wide-angle MP4 video files with a resolution of 3840 × 2160 p x at 30 f p s , including time and length stamps. The video recognition software will also provide a report that contains images with clock positions and locations of defects.

3. Kinematic Analysis of the Pipeline Endoscope Robot

A pipeline endoscope robot is commonly used to traverse ring welds, corrosion, and bends in pipelines. Hence, when designing such a robot, its size should be taken into consideration to ensure easy passage through these obstacles. In this section, we will discuss the design considerations for the robot’s ability to navigate barriers and corners.

3.1. Analysis of Cross-Barrier Capability

The robot is mainly supported in the pipeline by the double bowls and the support wheel sets. The traction and regulation units are supported by a set of double bowls and wheels, while the other units are supported by two sets of wheels. The distance-measuring unit includes odometers embedded in a set of wheels to measure the distance of movement. Each set of support wheels is arranged at 120-degree intervals around the circumference. The structure of the wheel module is the same as that described in Figure 4. As obstacles such as ring welds and corrosion in the pipeline can cause changes in the inner diameter of the pipeline, the wheel module must adapt to these changes to ensure that the robot can pass through these obstacles smoothly. This adaptive function is achieved through the use of a spring, a support arm, and a limit block. A schematic of the adaptive structure is shown in Figure 5.
The maximum height that the robot with an adaptive structure can cross an obstacle, i.e., height difference Δ h of the support wheel for the initial position of the support wheel, can be obtained by
Δ h = ( sin β sin α ) L
where L , β , and α are the valid length, initial angle, and maximum angle of rotation of the support arm, respectively. r is the radius of the support wheel.

3.2. Analysis of Passing Ability

The natural gas pipeline is not only composed of straight pipes but also bends with different radii of curvature. The bends have the greatest influence on the passability of in-pipe robots [14]. GDPER has a multi-unit structure, but each unit size needs to comply with the geometric constraints of the bend. Therefore, an analysis of the cornering ability should first be performed on a single unit. In the design, the pipe bending angle is set to 90 to determine the dimensions range of a single unit. We designed the robot so that it can traverse miter pipes. Various design parameters that affect the robot’s geometry are explained in Figure 6. Moreover, Figure 6 shows the position of the robot while the extreme sizes of the allowed length and width are considered.
The relevant parameters are indicated in Figure 6, where L , d , R , D are the length and width of the robot, the radius of bend, and the inner diameter of the pipe, respectively.
For a robot to pass through the 90 bend, the length of the robot should be restricted as
L 2 2 = R + D 2 2 R D 2 + d 2 , 0 < d < D

4. Simulation of Virtual Prototype of GDPER

Before prototyping a robot, simulations of the static, kinematic, and dynamic properties of the designed robot will help to verify whether the kinematic properties of the robot meet the relevant design requirements.

4.1. Virtual Prototype Modeling on GDPER

The virtual model is often an appropriate simplification of the general physical model, which retains the main features of the general physical model but ignores the features that do not affect the simulation results. The virtual prototype dynamics simulation analysis based on ADAMS software needs the establishment of a 3D CAD model of the prototype in SolidWorks due to the poor 3D modeling ability of ADAMS. Figure 7 shows a schematic of the virtual prototype model with the SolidWorks model imported into ADAMS.
After the SolidWorks model is imported into ADAMS, the assemblies of the model are independent of each other. It is necessary to add material properties; assembly relationships and contact forces must be established for each part through constraint and property settings in ADAMS. Such settings are the only way to determine the mutual motion of the parts and ensure that the simulation is consistent with the actual situation. The prototype model with added constraints is shown in Figure 8.

4.2. Virtual Robot Prototype Model after Adding Constraints

To study the ability of the pipeline endoscope robot to cross barriers, eight different widths of the ring weld barriers were designed to simulate the experiment. The virtual prototype passes through the weld barriers with widths of 0.5 mm, 1 mm, 2 mm, 3 mm, 4 mm, 5 mm, 6 mm, and 7 mm at a constant speed and in turn. Figure 9 shows the adaptive structure passing through spherical weld barriers during the simulation.
Figure 10 shows the trajectory of the robot’s two wheels as they span the small to large weld seam from right to left in sequence. Although there is a 1 mm difference in the Y-axis between the two wheels due to the inconsistency of the wheel specifications in the support wheel and the odometer wheel, they are both able to pass these obstacles.

4.3. Simulation Analysis on Passing Ability

GDPER is driven by natural gas; thus, the speed–regulation control unit is the main power source. In the simulation, after the traction is set on the bowls, the motion image of the robot in the pipeline is shown in Figure 11. The motion process verifies that the robot model can pass smoothly in straight and curved pipelines without jamming and that the overall structure of the pipeline endoscopic robot is reasonable.
The variations in robot speed and force on the bowls of the traction and speed regulation unit are shown in Figure 12 and Figure 13, respectively. It can be observed that the pipeline endoscopic robot in a straight pipe is in an accelerated state between 0–0.33 s due to the traction force and the overcoming of friction in the direction of the traction force. After the first bowl of the traction speed control unit begins to enter the bend at 0.33 s, the speed starts to decrease due to the increased resistance at the bend. At around 0.42 s, the second bowl of the traction speed control unit leaves the bend, reducing the resistance on the traction speed control unit at the bend and causing the speed to increase slowly. At about 0.71 s, the robot has fully exited the bend, and the robot is once again in an accelerated state.

5. Experiment of Prototype of Pipeline Endoscope Robot

Based on the simulation analysis, the prototype robot was developed after optimizing the structure. The actual view of the prototype is illustrated in Figure 14. In this section, a simple traction experiment is designed to verify: (1) the passability and over-obstacle capability of the distance measuring unit and the camera unit of the pipeline endoscopy robot individually and jointly in the straight and curved pipelines; and (2) the availability of the image data and the mileage data.
The experimental pipeline consists of multiple sections of pipeline, including two straight sections and one bend, with a total length of 24 m, as shown in Figure 15. The in-pipeline robot is considered to have completed an experiment by traversing from one end of the pipeline to the other end. The experimental results demonstrate that the robot can smoothly pass through both the straight and curved parts of the experimental pipeline, and successfully cross the welded joints connecting the pipeline sections. The experimental setup is illustrated in Figure 16, while the image stored on the SD card at the end of the experiment is shown in Figure 17, which clearly reveals any defects present. Figure 18 displays the mileage and speed data recorded during the robot’s traversal of the pipeline. The robot positioning accuracy can be verified by comparing it with the actual pipeline length.
In addition, initial testing of the passability of the gas-driven robot on an actual gathering pipeline was completed using the pig receiver and launcher at the gas gathering station. The length of the pipeline, i.e., the distance between the pig receiver and launcher, is approximately 5.75 km. The pressures at the inlet and outlet are 2.3 and 2.2 MPa, respectively. The total running time is about 28 min. Figure 19 shows that both the traction unit and the prototype can pass through the target pipeline smoothly under gas drive. However, because the pipeline was not cleaned before the test, a large amount of oily dirt was still present in the pipeline, as can be seen in Figure 19c for the traction unit after passing through the pipeline compared to the other two units before the test. This caused the distance measurement sensors to fail. This suggests that, in order to ensure the accuracy of the data, multiple pipeline pigging operations must also be completed in accordance with the relevant specifications for internal inspection activities before the visual examination.

6. Conclusions

A gas-driven pipeline endoscopy robot was developed to visually inspect the inner surface wall of the pipeline with an internal diameter of 154 mm. The robot is a chain structure composed of the traction speed regulation unit, the distance measuring unit, and the camera unit linked by universal joints, which can be hooked up to different function modules as needed. The mechanical structure of the three units was designed using Solids software, and the ability to pass through a bend and cross the weld ring was simulated and verified using ADAMS. Three units were put together to build a test prototype. Traction tests were conducted in a 24 m-long pipeline. The location of corrosion defects on the internal surface of pipelines can be detected by intelligent video image post-processing. Furthermore, an actual gas drive test was completed on a 5.75 km long gathering pipeline. Although the internal conditions of the experimental pipeline limited the effectiveness of the distance sensor and image sensor measurements, the passability was fully confirmed. Further research work will include distance measurements based on multi-sensor fusion and sensing data post-processing.

Author Contributions

Project administration, funding acquisition, and experiments, J.F. and L.M.; experiments, design, software, and validation, J.X., H.L. and C.W.; writing—original draft preparation, J.X.; writing—review and editing, S.L.; conceptualization, L.M. and S.L.; methodology and supervision, S.L. All authors have read and agreed to the published version of the manuscript.

Funding

This work is supported in part by the 2021 scientific and technological project of Central Sichuan District of Petro China Southwest Oil & Gas Field Company “Development of Fluid-driven pipeline endoscopy device” (Number: 2021KX-1).

Data Availability Statement

The data used in this research are private and not publicly available.

Conflicts of Interest

The authors declare no conflict of interest.

References

  1. Gao, P. New progress in China’s oil and gas pipeline construction in 2021. Int. Pet. Econ. 2022, 30, 12–19. [Google Scholar]
  2. Wang, M.; Yuan, J.; Bao, S.; Du, L.; Ma, S. Robots for pipeline inspection tasks—A survey of design philosophy and implementation technologies. In Proceedings of the 2021 5th Asian Conference on Artificial Intelligence Technology (ACAIT), IEEE, Haikou, China, 29–31 October 2021; pp. 427–432. [Google Scholar]
  3. Verma, A.; Kaiwart, A.; Dubey, N.D.; Naseer, F.; Pradhan, S. A review on various types of in-pipe inspection robot. Mater. Today Proc. 2022, 50, 1425–1434. [Google Scholar] [CrossRef]
  4. Ab Rashid, M.Z.; Yakub, M.F.M.; bin Shaikh Salim, S.A.Z.; Mamat, N.; Putra, S.M.S.M.; Roslan, S.A. Modeling of the in-pipe inspection robot: A comprehensive review. Ocean Eng. 2020, 203, 107206. [Google Scholar] [CrossRef]
  5. Roh, S.; Choi, H.R. Differential-drive in-pipe robot for moving inside urban gas pipelines. IEEE Trans. Robot. 2005, 21, 1–17. [Google Scholar] [CrossRef]
  6. Ogai, H.; Bhattacharya, B. Pipe Inspection Robots for Structural Health and Condition Monitoring; Springer: Berlin/Heidelberg, Germany, 2018. [Google Scholar]
  7. Song, H.; Ge, K.; Qu, D.; Wu, H.; Yang, J. Design of in-pipe robot based on inertial positioning and visual detection. Adv. Mech. Eng. 2016, 8, 1687814016667679. [Google Scholar] [CrossRef]
  8. Hirao, M.; Ogi, H. An SH-wave EMAT technique for gas pipeline inspection. NDT E Int. 1999, 32, 127–132. [Google Scholar] [CrossRef]
  9. Afzal, M.; Udpa, S. Advanced signal processing of magnetic flux leakage data obtained from seamless gas pipeline. NDT E Int. 2002, 35, 449–457. [Google Scholar] [CrossRef]
  10. Salama, M.M.; Nestleroth, B.J.; Maes, M.A.; Dash, C. Characterization of the uncertainties in the inspection results of ultrasonic intelligent pigs. In Proceedings of the International Conference on Offshore Mechanics and Arctic Engineering, Nantes, France, 9–14 June 2013; American Society of Mechanical Engineers: New York, NY, USA, 2013; Volume 55355, p. V003T03A044. [Google Scholar]
  11. Nestleroth, J.B.; Davis, R.J. Application of eddy currents induced by permanent magnets for pipeline inspection. NDT E Int. 2007, 40, 77–84. [Google Scholar] [CrossRef]
  12. Duran, O.; Althoefer, K.; Seneviratne, L.D. State of the art in sensor technologies for sewer inspection. IEEE Sens. J. 2002, 2, 73–81. [Google Scholar] [CrossRef]
  13. Piciarelli, C.; Avola, D.; Pannone, D.; Foresti, G.L. A vision-based system for internal pipeline inspection. IEEE Trans. Ind. Inform. 2018, 15, 3289–3299. [Google Scholar] [CrossRef]
  14. Chen, J.; Zhang, X.; Lin, J. Dynamical Modeling of Chain Pipeline Robot Passing Through Elbow. In Proceedings of the 2018 IEEE 3rd Advanced Information Technology, Electronic and Automation Control Conference (IAEAC), IEEE, Chongqing, China, 12–14 October 2018; pp. 2577–2582. [Google Scholar]
Figure 1. Structura drawing of GDPER.
Figure 1. Structura drawing of GDPER.
Processes 11 01098 g001
Figure 2. Analysis of the force for traction and the speed regulation unit.
Figure 2. Analysis of the force for traction and the speed regulation unit.
Processes 11 01098 g002
Figure 3. Structure of the odometer wheel module in the distance measurement unit; (1) odometer wheel, (2) active gear, (3) slave gear, (4) support arm, and (5) encoder.
Figure 3. Structure of the odometer wheel module in the distance measurement unit; (1) odometer wheel, (2) active gear, (3) slave gear, (4) support arm, and (5) encoder.
Processes 11 01098 g003
Figure 4. Structure of the camera unit; (1) fixed cover, (2) protective glass of camera, (3) protective glass of LED, (4) camera, and (5) LED light ring.
Figure 4. Structure of the camera unit; (1) fixed cover, (2) protective glass of camera, (3) protective glass of LED, (4) camera, and (5) LED light ring.
Processes 11 01098 g004
Figure 5. Schematic of the pipeline size’s adaptive structure.
Figure 5. Schematic of the pipeline size’s adaptive structure.
Processes 11 01098 g005
Figure 6. Geometric constraints schematic of the robot in bend.
Figure 6. Geometric constraints schematic of the robot in bend.
Processes 11 01098 g006
Figure 7. Virtual prototype model of the pipeline endoscope robot in ADAMS.
Figure 7. Virtual prototype model of the pipeline endoscope robot in ADAMS.
Processes 11 01098 g007
Figure 8. Virtual prototype model of the pipeline endoscope robot in ADAMS after adding the constraint.
Figure 8. Virtual prototype model of the pipeline endoscope robot in ADAMS after adding the constraint.
Processes 11 01098 g008
Figure 9. The robot is crossing the ring weld barriers.
Figure 9. The robot is crossing the ring weld barriers.
Processes 11 01098 g009
Figure 10. Variation in the height of the support and odometer wheels during the crossing of a ring weld in a straight pipeline.
Figure 10. Variation in the height of the support and odometer wheels during the crossing of a ring weld in a straight pipeline.
Processes 11 01098 g010
Figure 11. Simulation schematic of the virtual prototype robot bending.
Figure 11. Simulation schematic of the virtual prototype robot bending.
Processes 11 01098 g011
Figure 12. Variation of the robot’s velocity with time in crossing the bend.
Figure 12. Variation of the robot’s velocity with time in crossing the bend.
Processes 11 01098 g012
Figure 13. Variation of the bowl’s force with time in crossing the bend.
Figure 13. Variation of the bowl’s force with time in crossing the bend.
Processes 11 01098 g013
Figure 14. Actual view of the prototype.
Figure 14. Actual view of the prototype.
Processes 11 01098 g014
Figure 15. Actual view of the experimental pipe.
Figure 15. Actual view of the experimental pipe.
Processes 11 01098 g015
Figure 16. Experimental set-up.
Figure 16. Experimental set-up.
Processes 11 01098 g016
Figure 17. Images of the inner wall surface of the pipe.
Figure 17. Images of the inner wall surface of the pipe.
Processes 11 01098 g017
Figure 18. Data recorded by the distance measuring unit.
Figure 18. Data recorded by the distance measuring unit.
Processes 11 01098 g018
Figure 19. Comparison of the traction unit and prototype before and after testing. (a) Traction unit in the pig launcher before passing through the pipeline; (b) prototype in the launcher before passing through the pipeline; (c) traction unit after passing through the pipeline; (d); prototype after passing through the pipeline.
Figure 19. Comparison of the traction unit and prototype before and after testing. (a) Traction unit in the pig launcher before passing through the pipeline; (b) prototype in the launcher before passing through the pipeline; (c) traction unit after passing through the pipeline; (d); prototype after passing through the pipeline.
Processes 11 01098 g019
Disclaimer/Publisher’s Note: The statements, opinions and data contained in all publications are solely those of the individual author(s) and contributor(s) and not of MDPI and/or the editor(s). MDPI and/or the editor(s) disclaim responsibility for any injury to people or property resulting from any ideas, methods, instructions or products referred to in the content.

Share and Cite

MDPI and ACS Style

Fang, J.; Xiang, J.; Ma, L.; Liu, H.; Wang, C.; Liang, S. Gas-Driven Endoscopic Robot for Visual Inspection of Corrosion Defects Inside Gas Pipelines. Processes 2023, 11, 1098. https://doi.org/10.3390/pr11041098

AMA Style

Fang J, Xiang J, Ma L, Liu H, Wang C, Liang S. Gas-Driven Endoscopic Robot for Visual Inspection of Corrosion Defects Inside Gas Pipelines. Processes. 2023; 11(4):1098. https://doi.org/10.3390/pr11041098

Chicago/Turabian Style

Fang, Jin, Jun Xiang, Li Ma, Hao Liu, Chenxiang Wang, and Shan Liang. 2023. "Gas-Driven Endoscopic Robot for Visual Inspection of Corrosion Defects Inside Gas Pipelines" Processes 11, no. 4: 1098. https://doi.org/10.3390/pr11041098

APA Style

Fang, J., Xiang, J., Ma, L., Liu, H., Wang, C., & Liang, S. (2023). Gas-Driven Endoscopic Robot for Visual Inspection of Corrosion Defects Inside Gas Pipelines. Processes, 11(4), 1098. https://doi.org/10.3390/pr11041098

Note that from the first issue of 2016, this journal uses article numbers instead of page numbers. See further details here.

Article Metrics

Back to TopTop