Cooling Energy Use Reduction in Residential Buildings in Egypt Accounting for Global Warming Effects
Abstract
1. Introduction
2. Materials and Methods
2.1. Present and Future Weather of Egypt
2.2. Assessing the BAT for Envelope Optimization in the Egyptian Market
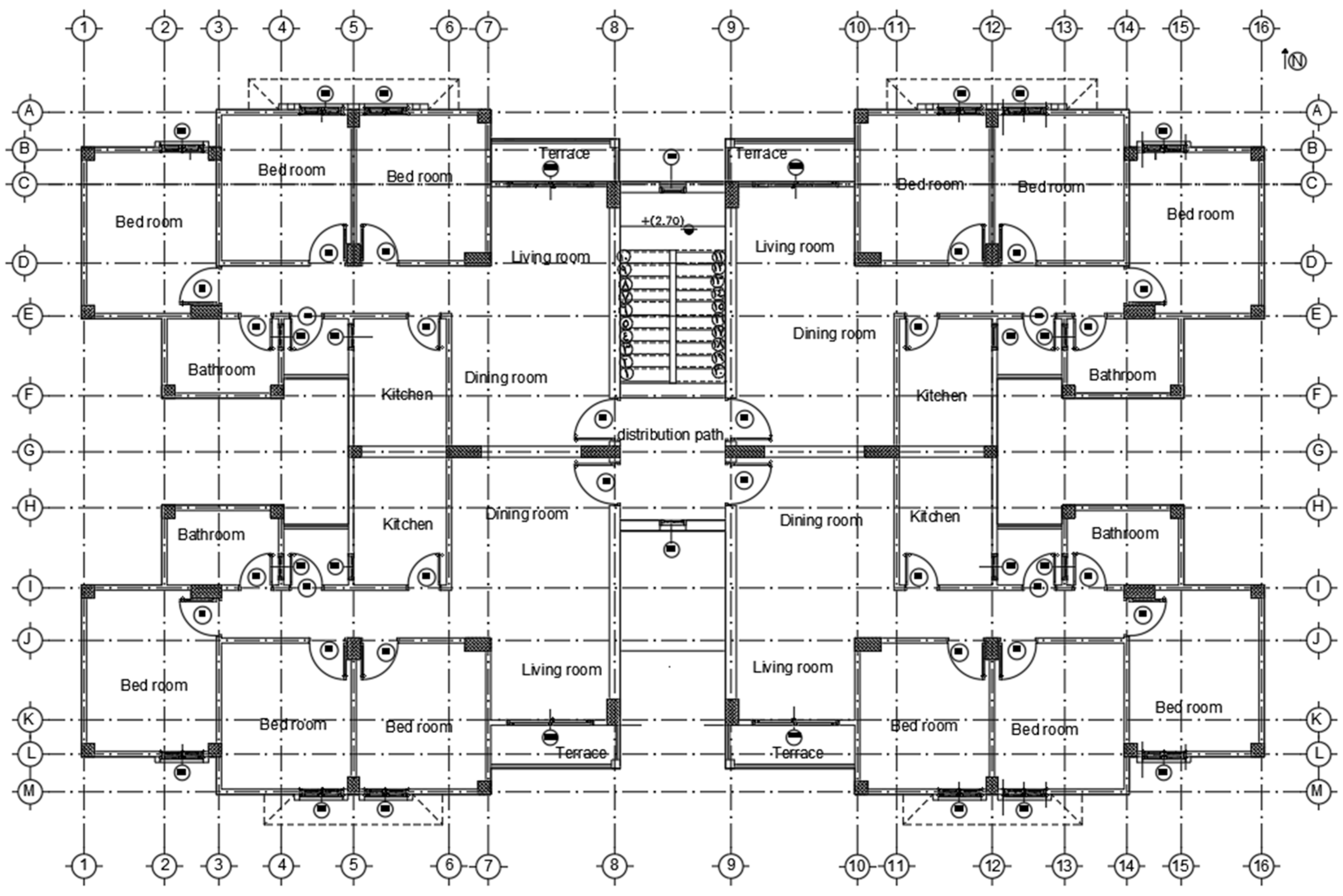
2.3. Case Study Definition and Modelling
2.4. Envelope Alternatives Explored and MCDA
2.4.1. Financial Parameters
2.4.2. Environmental Parameters
2.4.3. Energy Parameters
2.5. Final Configuration and Future Performance
3. Results
3.1. Present and Predicted Future Weather Analysis
3.2. Comparing Present and Predicted Climate Change Adapted Weather Files
3.3. Energy Needs
3.4. MCDA and Optimal Configuration
3.5. Projecting the Future Demand
4. Discussion
5. Conclusions
Author Contributions
Funding
Data Availability Statement
Conflicts of Interest
Appendix A
| Type | Dimensions [cm] | Unit | Price [EGP] | Price [€] |
|---|---|---|---|---|
| Standard dimensions | 25 × 12 × 6.5 | Thousands bricks | 950 | 53.2 |
| 25 × 12 × 13 | 1750 | 98 | ||
| Special dimensions | 24 × 11 × 6 | 730 | 41 | |
| 24 × 11 × 12 | 1250 | 70 |
| Type | Price [EGP/m2] | Price [€/m2] |
|---|---|---|
| EPS with male/female set edges density 36 [kg/m3] | 32.56 | 1.82 |
| EPS with flat edges density 32 [kg/m3] | 29.84 | 1.67 |
| Rockwool panels 5cm density 70 [kg/m3] | 60 | 3.36 |
| Type | Price [EGP/m2] | Price [€/m2] |
|---|---|---|
| Clear 3 mm | 85 | 4.76 |
| Clear 4 mm | 110 | 6.16 |
| Clear 6 mm | 153 | 8.57 |
| Bronze 4 mm | 205 | 11.48 |
| Bronze 6 mm | 320 | 17.92 |
| Green 4 mm | 230 | 12.88 |
| Green 6 mm | 325 | 18.2 |
| Clear tempered 4 mm | 167 | 9.35 |
| Clear tempered 6 mm | 275 | 15.4 |
| Bronze tempered 4 mm | 250 | 14 |
| Bronze tempered 6 mm | 388 | 21.73 |
| Green tempered 6 mm | 400 | 22.4 |
| Double pane clear air gap “6–12–6” | 3000 | 168 |
| Double low e air gap “3–12–6” | 3750 | 210 |


Appendix B
- Shift: Used when the climate change scenario is presented as an absolute change to the mean.
- Stretch: Used when the climate change scenario is presented as a change to the mean or the variance as a percentage or fractional change rather than an absolute increment or when the variable can be put down to zero periodically altogether like in the case of irradiance.
- Shift+Stretch: Used when the change is happening to both the mean and the variance.
- For the dry bulb temperature, The HadCM3 data provides mean, average daily maximum and minimum temperature change predictions. So, the operation done will be Shift+Stretch as follows:where:
- αdbtm = Scaling factor for monthly dry bulb temperature variance change.
- ∆TMAX = HadCM3 predicted absolute change of the average daily maximum dry bulb temperature for the given month m (°C).
- ∆TMINm = HadCM3 predicted absolute change of the average daily minimum dry bulb temperature for the given month m (°C).
where:- = Future dry bulb temperature (°C).
- . = Current weather dry bulb temperature (°C).
- . = HadCM3 predicted absolute change of the mean dry bulb temperature for the given month m (°C).
- = Mean dry bulb temperature of the current weather for any given month (°C)
- For the atmospheric pressure, HadCM3 data gives predictions for the absolute change in the mean sea level pressure in Millibar (mbar), which is converted later to Pascal (Pa). The atmospheric pressure is shifted as follows:where:
- = HadCm3 predicted absolute change of the mean sea level pressure for the given month m (Pa).
- For the dew point temperatures, HadCM3 does not contain any predictions, but it does provide specific humidity predictions by a relative change. A stretch operation is performed as follows:where:
- = Scaling factor for monthly specific humidity change.
- = HadCM3 predicted relative change of the specific humidity for the given month m (%)
The future specific humidity for a given hour is then calculated:where:- = The future predicted specific humidity (kg/kg).
After calculating the predicted specific humidity, the future humidity ratio is then calculated as stated in ASHRAE-Fundamentals [17]:where:- = The future humidity ratio (kg/kg)
The partial pressure of water vapor pressure is then calculated as follows:where:- PV = Future water vapor partial pressure (kPa)
- Pat = Future atmospheric pressure calculated according to Equation (A3) (kPa).
Then the dew point temperature is calculated as mentioned in ASHRAE-Fundamentals [17] for temperatures from 0 to 93 °Cwhere:- = Future predicted dew point temperature (°C)
- are constants = 6.54, 14.526, 0.7389, 0.09486 and 0.4569, respectively.
- = For the relative humidity, Although [14] does not provide any formulas to morph the relative humidity, HadCM3 contains relative humidity predictions as an absolute value. A shift function is then applied as follows:where:
- φ = Future relative humidity (%)
- ∆RHUMm = HadCM3 predicted absolute change of the mean relative humidity for the given month m (%).
References
- Atlam, B.M.; Rapiea, A.M. Assessing the future of energy security in Egypt. Int. J. Energy Econ. Policy 2016, 6, 684–700. [Google Scholar]
- Obukhov, S.; Ibrahim, A.; Kozyreva, A.; Zhdanova, A.; Kuznetsov, G. Analysis of the energy potential of renewable energy sources Egypt. In MATEC Web of Conferences; EDP Sciences: Les Ulis, France, 2017; Volume 141, p. 01035. [Google Scholar] [CrossRef]
- Annual Report 2019; New & Renewable Energy Authority: Cairo, Egypt. Available online: http://nrea.gov.eg/Content/reports/English%20AnnualReport%202019.pdf (accessed on 29 October 2019).
- Abdelazim, A.I.; Ibrahim, A.M.; Aboul-Zahab, E.M. Development of an energy efficiency rating system for existing buildings using Analytic Hierarchy Process—The case of Egypt. Renew. Sustain. Energy Rev. 2017, 71, 414–425. [Google Scholar] [CrossRef]
- Renewable Energy Outlook; International Renewable Energy Agency: Cairo, Egypt, 2018. Available online: https://www.irena.org/-/media/Files/IRENA/Agency/Publication/2018/Oct/IRENA_Outlook_Egypt_2018_En.pdf (accessed on 29 October 2019).
- Caponigro, M.; Manoloudis, A.; Papadopoulos, A.M. Developing a strategy for energy efficiency in the Egyptian building sector. In IOP Conference Series: Earth and Environmental Science; IOP Publishing: Bristol, UK, 2020; Volume 410, p. 012076. [Google Scholar] [CrossRef]
- Causone, F.; Pietrobon, M.; Pagliano, L.; Erba, S. A high performance home in the Mediterranean climate: From the design principle to actual measurements. Energy Procedia 2017, 140, 67–79. [Google Scholar] [CrossRef]
- Sesana, E.; Bertolin, C.; Gagnon, A.; Hughes, J. Mitigating climate change in the cultural built heritage sector. Climate 2019, 7, 90. [Google Scholar] [CrossRef]
- Saleem, A.A.; Abel-Rahman, A.K.; Ali, A.H.H.; Ookawara, S. An analysis of thermal comfort and energy consumption within public primary schools in Egypt. IAFOR J. Sustain. Energy Environ. 2016, 3. [Google Scholar] [CrossRef]
- Beck, H.E.; Zimmermann, N.E.; McVicar, T.R.; Vergopolan, N.; Berg, A.; Wood, E.F. Present and future Köppen-Geiger climate classification maps at 1-km resolution. Sci. Data 2018, 5, 180214. [Google Scholar] [CrossRef] [PubMed]
- World Bank Climate Change Knowledge Portal|for Global Climate Data and Information! Available online: https://climateknowledgeportal.worldbank.org/country/egypt/climate-data-projections (accessed on 29 October 2019).
- Nakicenovic, J.F.; Alcamo, J.; Davis, G.; de Vries, B.; Gaffin, T.K.; Gregory, K.; Griibler, A.; Jung, T.; Rovere, T.; Michaelis, L.; et al. Special Report on Emissions Scenarios; The Edinburgh Building: Cambridge, UK, 2000. [Google Scholar]
- What Is a GCM? Available online: https://www.ipcc-data.org/guidelines/pages/gcm_guide.html (accessed on 29 October 2019).
- Belcher, S.; Hacker, J.; Powell, D. Constructing design weather data for future climates. Build. Serv. Eng. Res. Technol. 2005, 26, 49–61. [Google Scholar] [CrossRef]
- IPCC DDC: Download HadCM3 Scenario Data. Available online: http://phobos.badc.rl.ac.uk/sres/hadcm3_download.html (accessed on 31 October 2019).
- Integrated Environmental Solutions|IES. Available online: https://www.iesve.com/ (accessed on 8 October 2020).
- ASHRAE—Fundamentals 2017—SI Edition; ASHRAE: Atlanta, GA, USA, 2017. Available online: https://www.ashrae.org/File%20Library/Technical%20Resources/ASHRAE%20Handbook/I-P_F2017-IndexIX.pdf (accessed on 8 October 2020).
- Energy Performance of Buildings—Schedule and Condition of Building, Zone and Space Usage for Energy Calculation; BSI Standards Publication: London, UK, 2018.
- Slim 1Way Cassette 4Way Cassette S (600 × 600) 4Way Cassette S Slim Duct MSP (Middle Static Pressure) Duct Console Ceiling Maldives SINGLE; Product Suwon: Seoul, Korea, 2015.
- Serghides, D.K.; Georgakis, C.G. The building envelope of Mediterranean houses: Optimization of mass and insulation. J. Build. Phys. 2012, 36, 83–98. [Google Scholar] [CrossRef]
- Chamodrakas, I.; Martakos, D. A utility-based fuzzy TOPSIS method for energy efficient network selection in heterogeneous wireless networks. Appl. Soft Comput. J. 2012, 12, 1929–1938. [Google Scholar] [CrossRef]
- Alao, M.A.; Ayodele, T.R.; Ogunjuyigbe, A.S.O.; Popoola, O.M. Multi-criteria decision based waste to energy technology selection using entropy-weighted TOPSIS technique: The case study of Lagos, Nigeria. Energy 2020, 201, 117675. [Google Scholar] [CrossRef]
- Abdallah, L.; El-shennawy, D. Evaluation of CO2 emissions from electricity generation in Egypt: Present status and projections to 2030. Eur. Mediterr. J. Environ. Integr. 2020, 5, 49. [Google Scholar] [CrossRef] [PubMed]













| Material | Thickness (mm) | Density (kg/m3) | Conductivity (W/m/K) | Specific Heat (J/kg/K) |
|---|---|---|---|---|
| External wall from outside to inside (U-value = 1.5 W/m2/K) | ||||
| Plaster | 15.0 | 2300.0 | 1.30 | 840.0 |
| Mortar | 25.0 | 2800.0 | 0.88 | 896.0 |
| Bricks | 250.0 | 1400.0 | 0.60 | 840.0 |
| Mortar | 25.0 | 2800.0 | 0.88 | 896.0 |
| Plaster | 15.0 | 2300.0 | 1.30 | 840.0 |
| Internal partition from outside to inside (U-value = 1.824 W/m2/K) | ||||
| Plaster | 15.0 | 2300.0 | 1.30 | 840.0 |
| Mortar | 25.0 | 2800.0 | 0.88 | 896.0 |
| Bricks | 120.0 | 1400.0 | 0.60 | 840.0 |
| Mortar | 25.0 | 2800.0 | 0.88 | 896.0 |
| Plaster | 15.0 | 2300.0 | 1.30 | 840.0 |
| Internal ceiling/floor (U-value = 1.824 W/m2/K) | ||||
| Ceramic tiles | 20.0 | 2000.0 | 1.60 | 800.0 |
| Mortar | 20.0 | 2800.0 | 0.88 | 896.0 |
| Sand | 60.0 | 2200.0 | 1.83 | 712.0 |
| Reinforced concrete | 100.0 | 2300.0 | 1.90 | 840.0 |
| Plaster | 20.0 | 2300.0 | 1.30 | 840.0 |
| Ground floor (U-value = 0.97 W/m2/K) | ||||
| Ceramic tiles | 20.0 | 2000.0 | 1.60 | 800.0 |
| Mortar | 20.0 | 2800.0 | 0.88 | 896.0 |
| Sand | 60.0 | 2200.0 | 1.83 | 712.0 |
| Plain concrete | 100.0 | 1200.0 | 0.38 | 1000.0 |
| Vapor barrier | 4.0 | 35.0 | 0.17 | 840.0 |
| Plain concrete | 150.0 | 1200.0 | 0.38 | 1000.0 |
| Roof (U-value = 0.515 W/m2/K) | ||||
| Cement tiles | 20.0 | 2100.0 | 1.40 | 800.0 |
| Mortar | 20.0 | 2800.0 | 0.88 | 896.0 |
| Sand | 60.0 | 2200.0 | 1.83 | 712.0 |
| Plain concrete | 70.0 | 1200.0 | 0.38 | 1000.0 |
| EPS | 50.0 | 35.0 | 0.03 | 1300.0 |
| Vapor barrier | 4.0 | 35.0 | 0.17 | 840.0 |
| Reinforced concrete | 100.0 | 2300.0 | 1.90 | 840.0 |
| W2 (Net U value including frame = 5.013 W/m2/K) | |||||||
| Thickness (mm) | Conductivity (W/m/K) | Solar transmittance | Visible light transmittance | Outside Reflectance | Inside Reflectance | Inside Emissivity | Outside Emissivity |
| 3.2 | 1.06 | 0.834 | 0.9 | 0.075 | 0.075 | 0.84 | 0.84 |
| Percentage of frame 30% (Wooden frame) | |||||||
| External shading: Louvers | |||||||
| S.W (Net U value including frame = 5.24 W/m2/K) | |||||||
| Thickness (mm) | Conductivity (W/m/K) | Solar transmittance | Visible light transmittance | Outside Reflectance | Inside Reflectance | Inside Emissivity | Outside Emissivity |
| 5.7 | 1.06 | 0.771 | 0.88 | 0.07 | 0.07 | 0.84 | 0.84 |
| Percentage of frame 30% (Aluminum frame) | |||||||
| Brick Thickness | Insulation Thickness [cm] | Trial Code | U Value [W/m2/K] |
|---|---|---|---|
| 25 cm bricks | 2 cm | T25-2 | 0.797 |
| 4 cm | T25-4 | 0.543 | |
| 6 cm | T25-6 | 0.411 | |
| 8 cm | T25-8 | 0.331 | |
| 10 cm | T25-10 | 0.277 | |
| 37.5 cm bricks | 2 cm | T37.5-2 | 0.684 |
| 4 cm | T37.5-4 | 0.487 | |
| 6 cm | T37.5-6 | 0.379 | |
| 8 cm | T37.5-8 | 0.311 | |
| 10 cm | T37.5-10 | 0.262 | |
| 50 cm bricks | 2 cm | T50-2 | 0.598 |
| 4 cm | T50-4 | 0.442 | |
| 6 cm | T50-6 | 0.351 | |
| 8 cm | T50-8 | 0.291 | |
| 10 cm | T50-10 | 0.248 | |
| Cavity wall 12.5 cm–2 cm–12.5 cm | 2 cm | C.W-2 | 0.697 |
| 4 cm | C.W-4 | 0.494 | |
| 6 cm | C.W-6 | 0.383 | |
| 8 cm | C.W-8 | 0.312 | |
| 10 cm | C.W-10 | 0.264 |
| Glazing Type | Thickness [mm] | SHGC | Visible Light Transmittance | U Glass [W/m2/K] |
|---|---|---|---|---|
| Single pane Bronze | 6 | 0.628 | 0.533 | 5.818 |
| Single pane Green | 6 | 0.564 | 0.702 | 5.81 |
| Double pane clear air | “6–12–6” | 0.704 | 0.786 | 2.703 |
| Double low-e air | “3–12–6” | 0.431 | 0.639 | 1.684 |
| Cairo | Hurghada | Aswan | ||||
|---|---|---|---|---|---|---|
| Trial Code | North | South | North | South | North | South |
| T25-2 | 0.764 | 0.768 | 0.742 | 0.743 | 0.738 | 0.746 |
| T25-4 | 0.796 | 0.792 | 0.776 | 0.779 | 0.773 | 0.786 |
| T25-6 | 0.768 | 0.754 | 0.748 | 0.751 | 0.752 | 0.757 |
| T25-8 | 0.704 | 0.685 | 0.684 | 0.687 | 0.691 | 0.692 |
| T25-10 | 0.628 | 0.607 | 0.612 | 0.614 | 0.603 | 0.619 |
| T37.5-2 | 0.676 | 0.641 | 0.629 | 0.628 | 0.613 | 0.629 |
| T37.5-4 | 0.639 | 0.586 | 0.584 | 0.584 | 0.575 | 0.585 |
| T37.5-6 | 0.574 | 0.513 | 0.516 | 0.517 | 0.512 | 0.518 |
| T37.5-8 | 0.500 | 0.437 | 0.446 | 0.447 | 0.446 | 0.449 |
| T37.5-10 | 0.427 | 0.368 | 0.384 | 0.386 | 0.382 | 0.388 |
| T50-2 | 0.486 | 0.406 | 0.404 | 0.402 | 0.387 | 0.400 |
| T50-4 | 0.441 | 0.346 | 0.353 | 0.351 | 0.344 | 0.350 |
| T50-6 | 0.387 | 0.289 | 0.305 | 0.304 | 0.298 | 0.302 |
| T50-8 | 0.335 | 0.248 | 0.270 | 0.270 | 0.257 | 0.268 |
| T50-10 | 0.130 | 0.229 | 0.254 | 0.253 | 0.25 | 0.252 |
| C.W-2 | 0.795 | 0.792 | 0.772 | 0.773 | 0.775 | 0.776 |
| C.W-4 | 0.815 | 0.805 | 0.794 | 0.797 | 0.802 | 0.804 |
| C.W-6 | 0.782 | 0.761 | 0.757 | 0.760 | 0.763 | 0.766 |
| C.W-8 | 0.716 | 0.689 | 0.690 | 0.693 | 0.693 | 0.697 |
| C.W-10 | 0.638 | 0.611 | 0.616 | 0.618 | 0.61 | 0.622 |
| Cairo | Hurghada | Aswan | ||||
|---|---|---|---|---|---|---|
| Trial Code | North | South | North | South | North | South |
| T25-2 | 0.576 | 0.525 | 0.482 | 0.485 | 0.539 | 0.488 |
| T25-4 | 0.649 | 0.594 | 0.563 | 0.569 | 0.635 | 0.580 |
| T25-6 | 0.679 | 0.629 | 0.614 | 0.623 | 0.691 | 0.641 |
| T25-8 | 0.677 | 0.636 | 0.637 | 0.649 | 0.711 | 0.670 |
| T25-10 | 0.650 | 0.615 | 0.640 | 0.650 | 0.707 | 0.671 |
| T37.5-2 | 0.598 | 0.493 | 0.456 | 0.455 | 0.560 | 0.455 |
| T37.5-4 | 0.651 | 0.544 | 0.542 | 0.543 | 0.654 | 0.547 |
| T37.5-6 | 0.649 | 0.555 | 0.576 | 0.578 | 0.678 | 0.584 |
| T37.5-8 | 0.621 | 0.546 | 0.581 | 0.584 | 0.666 | 0.591 |
| T37.5-10 | 0.581 | 0.527 | 0.573 | 0.576 | 0.635 | 0.582 |
| T50-2 | 0.569 | 0.438 | 0.437 | 0.429 | 0.552 | 0.421 |
| T50-4 | 0.583 | 0.469 | 0.495 | 0.490 | 0.599 | 0.485 |
| T50-6 | 0.566 | 0.477 | 0.513 | 0.510 | 0.596 | 0.507 |
| T50-8 | 0.540 | 0.474 | 0.516 | 0.514 | 0.578 | 0.512 |
| T50-10 | 0.522 | 0.468 | 0.513 | 0.511 | 0.563 | 0.509 |
| C.W-2 | 0.624 | 0.562 | 0.524 | 0.527 | 0.594 | 0.532 |
| C.W-4 | 0.685 | 0.622 | 0.600 | 0.606 | 0.681 | 0.619 |
| C.W-6 | 0.710 | 0.651 | 0.645 | 0.655 | 0.732 | 0.673 |
| C.W-8 | 0.706 | 0.654 | 0.664 | 0.674 | 0.747 | 0.694 |
| C.W-10 | 0.677 | 0.637 | 0.662 | 0.671 | 0.731 | 0.690 |
| Cairo | Hurghada | Aswan | ||||
|---|---|---|---|---|---|---|
| Trial Code | North | South | North | South | North | South |
| 6 mm Bronze | 0.812 | 0.692 | 0.721 | 0.601 | 0.828 | 0.708 |
| 6 mm Green | 0.865 | 0.746 | 0.748 | 0.629 | 0.844 | 0.725 |
| Double pane clear air gap “6–12–6” | 0.093 | 0.176 | 0.196 | 0.279 | 0.168 | 0.251 |
| Double low-e air gap “3–12–6” | 0.291 | 0.347 | 0.343 | 0.399 | 0.233 | 0.290 |
| Cairo | Hurghada | Aswan | ||||
|---|---|---|---|---|---|---|
| Trial Code | North | South | North | South | North | South |
| 6mm Bronze | 0.647 | 0.527 | 0.529 | 0.410 | 0.664 | 0.544 |
| 6mm Green | 0.719 | 0.600 | 0.564 | 0.445 | 0.687 | 0.568 |
| Double pane clear air gap “6–12–6” | 0.035 | 0.118 | 0.259 | 0.342 | 0.231 | 0.314 |
| Double low-e air gap “3–12–6” | 0.506 | 0.562 | 0.547 | 0.603 | 0.396 | 0.452 |
| City | Configuration | Annual Electricity Consumption (kWh/m2) | Peak Cooling Load (kW) | Payback Period (EGP) |
|---|---|---|---|---|
| Cairo | Base case | 38.10 | 3.64 | 6.32 |
| final configuration | 20.30 | 2.25 | ||
| Hurghada | Base case | 54.40 | 4.25 | 5.19 |
| final configuration | 31.90 | 2.66 | ||
| Aswan | Base case | 66.60 | 4.61 | 4.3 |
| final configuration | 38.00 | 2.84 |
Publisher’s Note: MDPI stays neutral with regard to jurisdictional claims in published maps and institutional affiliations. |
© 2021 by the authors. Licensee MDPI, Basel, Switzerland. This article is an open access article distributed under the terms and conditions of the Creative Commons Attribution (CC BY) license (http://creativecommons.org/licenses/by/4.0/).
Share and Cite
Abdollah, M.A.F.; Scoccia, R.; Filippini, G.; Motta, M. Cooling Energy Use Reduction in Residential Buildings in Egypt Accounting for Global Warming Effects. Climate 2021, 9, 45. https://doi.org/10.3390/cli9030045
Abdollah MAF, Scoccia R, Filippini G, Motta M. Cooling Energy Use Reduction in Residential Buildings in Egypt Accounting for Global Warming Effects. Climate. 2021; 9(3):45. https://doi.org/10.3390/cli9030045
Chicago/Turabian StyleAbdollah, Mohammad Abdollah Fadel, Rossano Scoccia, Giulia Filippini, and Mario Motta. 2021. "Cooling Energy Use Reduction in Residential Buildings in Egypt Accounting for Global Warming Effects" Climate 9, no. 3: 45. https://doi.org/10.3390/cli9030045
APA StyleAbdollah, M. A. F., Scoccia, R., Filippini, G., & Motta, M. (2021). Cooling Energy Use Reduction in Residential Buildings in Egypt Accounting for Global Warming Effects. Climate, 9(3), 45. https://doi.org/10.3390/cli9030045

