Abstract
The corrosion of grounding materials seriously threatens the safe operation of the power system. The corrosion resistance of four typical grounding materials as carbon steel, galvanized steel, Zn–Al-coated steel, copper was studied in acid red soil. The results show that carbon steel, galvanized steel, Zn–Al-coated steel, copper exhibit different corrosion resistance behaviors, respectively. The corrosion rate of these grounding materials usually increases first and then slowly decreases. Pitting corrosion is the main corrosion feature of carbon steel. The corrosion rate of carbon steel is the largest compared to the other three grounding materials. The corrosion rate of galvanized steel is higher than that of copper. Copper has a low corrosion rate and exhibits good corrosion resistance, but the cost of copper is high and it causes heavy metal pollution. The corrosion rate of Zn–Al-coated steel is the lowest compared to the other three grounding materials, and it has the best corrosion resistance.
1. Introduction
The grounding equipment is of great significance to ensure the safe operation of the power system. Some researchers have carried out research on grounding materials and grounding methods. D.K.J.S. Jayamah et al. studied Protection and grounding methods in DC microgrids [1]. Weichen Yan et al. developed a cylinder Flexible Graphite Earth Electrode (FGEE) to reduce tower earth resistance [2]. Zhanglong Zhang et al. investigated a fracture diagnosis method of grounding wire of tower grounding device [3]. Haize Hu et al. designed a new substation grounding based on electrolytic cathodic protection and on transfer corrosion current [4]. Junhui Zhao et al. studied acoustic-guided wave techniques for the detecting corrosion damage of electrical grounding rods [5]. Zhipo Zhao et al. analyzed the microstructure and corrosion behavior of cold-sprayed Zn–Al composite coating [6]. However, the grounding material works for long periods in the soil environment and grounding equipment is inevitably damaged by corrosion [7,8,9,10,11,12].
Corrosion studies on grounding materials were usually focused on carbon steel [13]. Maocheng Yan, etc. [14] found there were many iron oxides in the red soil, which can be used as the cathode depolarization agent to accelerate the corrosion. Wang Sen [15] studied the corrosion behavior of H62 brass. Xu et al. [16] studied the corrosion characteristics of Al coating, Al-Si alloy coating and Ni-Al alloy coating. Lin Bilan [17] investigated the corrosion behavior of zinc and Zn15Al coating materials in Dagang soil. The corrosion resistance of Zn15Al coating is better. Vanessa DE Freitas Cunha Linus et al. [18] studied the soil corrosion of X52 API carbon steel by the electrochemical method. The corrosion characteristics of different materials are also different [19,20]. The corrosion characteristics of carbon steel, galvanized steel, aluminum–zinc steel and copper were studied in the laboratory and in acid red soil. Red soil is a soil widely distributed in southern China, where the summer temperature exceeds 30 °C and the humidity exceeds 50, which is a typical acid soil environment.
2. Experimental
Carbon steel used to be the most commonly used grounding material due to its low cost. However, it has become increasingly unable to meet the performance requirements of grounding materials. In this experiment, Q235 carbon steel was selected as the base material, and the experimental sample was a steel sheet of 50 mm × 25 mm × 3 mm. The main components are shown in Table 1.
Table 1.
The main components of Q235 carbon steel.
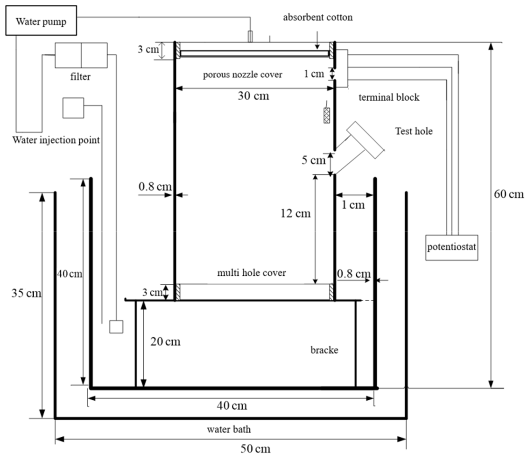
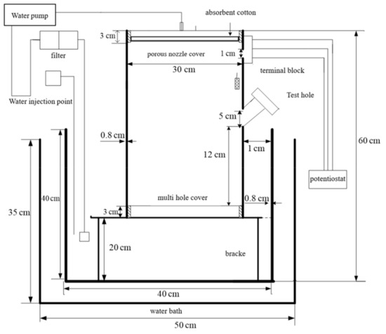
With a Q235 carbon steel sheet as the base material, galvanized steel and zinc–aluminum alloy coated steel were prepared. Copper was also selected as the grounding material. The thickness of the zinc layer of galvanized steel is about 30 μm, and the thickness of the zinc–aluminum alloy coating is about 100 μm. A total of 110 samples of each grounding material were selected for experiment and field research. In order to better realize the accelerated corrosion research, the experimental temperature of the accelerated corrosion research in the laboratory was set to 60°, and corrosion medium was 20% moisture content red soil of the Qili substation (Ganzhou, China). The purpose of this accelerated experiment was to simulate the corrosion of grounding materials under the acid red soil on the ground. The schematic diagram of the device is shown in Figure 1.
Figure 1.
Schematic diagram of accelerated corrosion equipment.
An electrochemical workstation (4000 PARSTAT, Shanghai, China) was used to test polarization curve by using the three-electrode system. The working electrodes were carbon steel, galvanized steel, Zn-Al coating steel and copper, respectively. The tops of them are welded and connected to copper wires, encapsulated by epoxy resin. The auxiliary electrode was platinum sheet, and the reference electrode was a sulfate saturated copper electrode. The scanning speed of the test was 0.5 mV/s, and scanning potential ranges from −100 to 100 mV were used. Those specimens were buried in the red soil for 10 months.
3. Results and Discussion
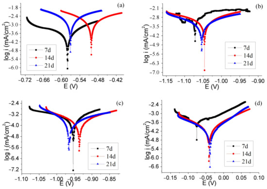
The polarization curve corrosion test of four grounding materials was carried out in the laboratory for 7 days (d), 14 days, and 21 days as shown in Figure 2.
Figure 2.
The polarization curves of four grounding materials undergoing corrosion at different time, (a) carbon steel, (b) galvanized steel, (c) Zn–Al-coated steel, (d) copper.
Figure 2 shows that, with the decrease in the scanning potential, the corrosion currents of grounding materials increase rapidly first, then the speed of increase slower, and finally the corrosion increases rapidly. At the beginning, the cathode surface is sufficiently supplied with oxygen and the reaction rate is fast. After a period of time, the oxygen potential shows a linear relationship with the logarithm of the current density, which is consistent with the Tafel formula. As the corrosion current density increases gradually, the oxygen on the cathode surface begins to be insufficiently supplied and is controlled by oxygen diffusion and the ion reaction, and the current density increases. Due to the slower oxygen diffusion rate, the oxygen content on the cathode surface is further reduced, the cathode polarization is intensified, and hydrogen evolution corrosion occurs, and the corrosion current density begins to increase sharply. Acid red soil has a higher hydrogen ion content and lower oxygen content, which aggravates the corrosion of grounding materials.
According to the results of the polarization curve (Figure 2) above, the corrosion potential and corrosion current density of the grounding materials were fitted as shown in Figure 3a,b.
Figure 3.
Fitting results of polarization curves of 4 kinds of grounding materials, (a) fitting open potential, (b) fitting current density.
The corrosion potential of the four materials is shown in Figure 3a. It shows that the corrosion potential of the four materials is relatively stable. The corrosion potential of galvanized steel and Zn–Al steel coating is relatively low, and less than 0.9 V. The zinc layer is active in the soil and has the effect of a sacrificial anode protection cathode on the carbon steel substrate, which can prevent corrosion of pitting carbon steel. The Zn layer can form a dense oxide film on the surface, reducing the corrosion rate. The Zn–Al alloy coating formed a stable density compound on the surface. It reduces the area of the pure zinc phase improves the corrosion resistance. The activity of copper in the soil is lower than −0.1 V, but it shows good corrosion resistance.
The corrosion current density is shown in Figure 3b. It shows that the corrosion current density of carbon steel was the highest. The galvanized steel is less than that of carbon steel. The corrosion current density of Zn–Al-coated steel and copper were very small. At the beginning, the corrosion current density of carbon steel was the highest, reaching 15.42 μA/cm2. Then, it gradually decreased to 5.98 μA/cm2; finally, it increased to 8.90 μA/cm2 due to the peeling of corrosion products. The corrosion current density of galvanized steel is lower than that of carbon steel and only 5.90 μA/cm2 at the beginning. Then, it is reduced to 1.04 μA/cm2 due to surface passivation. The corrosion current density of Zn–Al coating steel is less than 1.00 μA/cm2. Although copper has a low current density, it is discarded due to its high cost and environmental pollution. Therefore, Zn–Al-coated steel is the best grounding material.
Figure 4 shows optical micrographs of grounding materials in the red soil for 10 months. Figure 4a shows that the surface corrosion of carbon steel is the most serious. Figure 4b exhibits that the surface corrosion products of galvanized steel are reduced. Zn–Al-coated steel has the least surface corrosion as Figure 4c. It is a potential grounding material. Figure 4d shows that corrosion has obviously occurred on the copper surface. Nowadays, a high-power power system puts forward higher requirements on grounding materials in the service environment of acid red earth. Four typical grounding materials, carbon steel, galvanized steel, Zn–Al-coated steel and copper were investigated by the laboratory accelerated corrosion experiment and on-site field experiment, respectively. Carbon steel has the worst corrosion resistance in the acid red soil. The corrosion resistance of galvanized steel is improved. Although copper has good corrosion resistance, a large amount of copper ions cause soil heavy metal corrosion during long-term work. Zn–Al-coated steel shows good corrosion resistance in acid red soil. It shows good potential as grounding material.
Figure 4.
Optical micrographs of four grounded materials that were buried for 10 months without cleaned surface corrosion products, (a) carbon steel, (b) galvanized steel, (c) Zn–Al-coated steel, (d) copper.
SEM (SU1510, Hitachi Corporation, Tokyo, Japan) and XRD (D&ADVANCE, Bremen, Germany) of four grounding materials are shown in Figure 5 and Figure 6. Figure 5a and Figure 6a show the surface corrosion product of carbon steel. It indicated that there is a thick layer of corrosion products; the main components are Fe3O4A and FeO(OH). The remaining components are SiO2 and CaCO3, mainly from the attachment of symbiotic soil. Figure 5b and Figure 6b show that the main corrosion product of galvanized steel is ZnO, Zn5(CO3)2(OH)6, in which Zn5(CO3)2(OH)6 has a smooth and compact structure and uniformly covers the material. Figure 5c and Figure 6c show that the corrosion products of the Zn–Al-coated steel is mainly Al2O3 and Al2ZnO4.They are flocculent and closely packed and improve the corrosion resistance. Figure 4d and Figure 5d show that the surface corrosion product of copper is mainly Cu2O, Cu2(CO3)(OH)2. It is a needle-like corrosion product. The above analysis shows that the corrosion resistance of carbon steel is the worst. Zn–Al-coated steel has the best corrosion resistance. Corrosion weight loss rate of year is only 0.6606 g/dm2·a. It increased the service life of the grounding material.

Figure 5.
SEM micrograph of corrosion product of four grounding materials, (a) carbon steel, (b) galvanized steel, (c) Zn–Al-coated steel, (d) copper.
Figure 6.
XRD patterns of corrosion products of four grounding materials, (a) carbon steel, (b) galvanized steel, (c) Zn–Al-coated steel, (d) copper.
The corrosion rates of four grounding materials in red soil were calculated by the weight loss method. The calculation results are shown in Table 2.
Table 2.
The weight loss of four specimens in acid red soil (after 10 months).
Table 2 shows that carbon steel has the fastest corrosion rate. The corrosion weight loss rate over the year is only 6.0557 g/dm2·a. Galvanized steel has a lower corrosion rate than carbon steel. Copper has a low corrosion weight loss rate over the year and exhibits good corrosion resistance, but the cost of copper is high, and it causes heavy metal pollution. The annual corrosion weight loss rate of Zn–Al-coated steel is the lowest compared to the other three grounding materials, and the annual corrosion weight loss rate of Zn–Al-coated steel is only 0.6606 g/dm2·a. The annual corrosion rate of Zn–Al-coated steel is nearly one-tenth that of carbon steel. It presents the best corrosion resistance. The possible reason is that Zn–Al coating can form a stable and dense composite on the surface and improve the corrosion resistance. Compared to carbon steel, it greatly extends the service life of the grounding material. The corrosion rate of copper is also low, but when copper is buried in acid red soil for a long time, a large amount of copper ions will be produced, which leads to heavy metal pollution. It is gradually being banned from use. Zn–Al-coated steel has a low corrosion weight loss rate. It is becoming the most promising potential grounding material.
The corrosion mechanism of grounding materials in red soil was also studied. The corrosion diagram of carbon steel in red soil is shown in Figure 7. The corrosion products of carbon steel in red soil present a layered distribution. The bottom layer corrosion products are uniform and dense, which can hinder the penetration of corrosive media. The surface corrosion products are loose and porous, and symbiotic with the soil, where they often appear pitting pits [14]. Gerwin, W. and Baumhauer, R. et al. [21] also found delamination in the study. Due to the influence of corrosion product diffusion, the composition and concentration of corrosion products of metal surface are also different. The metal bottom layer is covered by the dense corrosion product layer (DCPL), which is composed of iron oxide and oxyhydroxide. Outside the DCPL layer is the transmission medium layer (TML), which mainly includes a mixture of corrosion products and quartz from the surrounding environment.
Figure 7.
Schematic diagram of corrosion layer on carbon steel surface.
Acid red soil contains very few corrosive ions Cl− and SO42−, but the corrosion rate is relatively high. On the one hand, this is due to abundant rainfall; on the other hand, the pH value of the soil in acid red soil is low. The corrosion mechanism of other metal materials is similar to that of carbon steel. The cathode process is the same as that of carbon steel, but the anode process is slightly different. After the anode metal is dissolved into metal ions, it combines with the anions in the soil to form a stable corrosion product. This process is mainly related to the ionic composition in the soil. From SEM, XRD and experiment analysis, it can be seen that the anions that may have anodic reactions in the red soil in this area are mainly CO32−, HCO3− and OH− adsorbed on the surface of grounding materials caused by oxygen absorption corrosion.
4. Conclusions
With the rapid development of high-power transmission in the power system, higher requirements are put forward for the grounding materials of the power system. The service environment of acid red earth grounding materials is more severe. In this paper, four typical grounding materials, carbon steel, galvanized steel, Zn–Al-coated steel, and copper were selected and the laboratory accelerated corrosion experiment research and on-site field research were carried out, respectively. Although carbon steel is cheap, it has the worst corrosion resistance in acid red soil. It is generally not used. The corrosion resistance of galvanized steel is better. However, if the galvanized layer corrodes the bare carbon steel, it will accelerate corrosion. Copper has better corrosion resistance but, during long-term work, a large amount of copper ions cause soil heavy metal corrosion, and it will also be discarded. Zn–Al coating shows good corrosion resistance in acid red soil due to the coordination effect of zinc and aluminum. It is a promising grounding material.
Author Contributions
Formal analysis and investigation, B.X. and X.X.; data curation, D.L.; writing—original draft preparation, J.G. and Y.G.; writing—review and editing, J.S., J.G. and Y.G.; methodology, project administration, D.L. and J.S. All authors have read and agreed to the published version of the manuscript.
Funding
This project was supported by National Natural Science Foundation of China (51562027), Key projects of Jiangxi Provincial Key R & D Program (20201BBE51001), Advantage Technology Innovation Team of Jiangxi Province (20181BCB24007), Jiangsu Province Key R&D Plan (Industry Prospect and Key Core Technologies) (BE2021055), Science foundation of University of PLA project (KYZXJK123).
Institutional Review Board Statement
Not applicable.
Informed Consent Statement
Not applicable.
Data Availability Statement
The authors confirm that the data supporting the findings of this study are available within the article.
Conflicts of Interest
The authors declare no conflict of interest.
References
- Jayamaha, D.K.J.S.; Lidula, N.W.A.; Rajapakse, A.D. Protection and grounding methods in DC microgrids: Comprehensive review and analysis. Renew. Sustain. Energy Rev. 2020, 120, 109631. [Google Scholar] [CrossRef]
- Yan, W.C.; An, Y.Z.; Hu, Y.C.; Jiang, Z.P.; Gao, X.J.; Zhou, L. Research on cylinder flexible graphite earth electrode (FGEE) used to reduce tower earth resistance. Electr. Power Syst. Res. 2021, 196, 107268. [Google Scholar] [CrossRef]
- Zhang, Z.L.; Ye, H.R.; Dan, Y.H.; Ziang, D.M.; Deng, J.; Gao, C.F.; Gan, P.F. Study on corrosion fracture diagnosis method of grounding wire of tower grounding device. Measurement 2020, 166, 108213. [Google Scholar] [CrossRef]
- Hu, H.Z.; Fang, M.G.; Hu, F.Y.; Zeng, S.L.; Deng, X.F. A new design of substation grounding based on electrolytic cathodic protection and on transfer corrosion current. Electr. Power Syst. Res. 2021, 195, 107174. [Google Scholar] [CrossRef]
- Zhao, J.H.; Durham, N.; Abdel-Hadi, K.; McKenzie, C.A.; Thomson, D.J. Acoustic guided wave techniques for detecting corrosion damage of electrical grounding rods. Measurement 2019, 147, 106858. [Google Scholar] [CrossRef]
- Zhao, Z.P.; Tang, J.R.; Tariq, N.U.H.; Wang, J.Q.; Cui, X.Y.; Xiong, T.Y. Microstructure and corrosion behavior of cold-sprayed Zn-Al composite coating. Coatings 2020, 10, 931. [Google Scholar] [CrossRef]
- Arkhypov, O.; Koval’Ov, D.O.; Usov, D.I.; Lyubymova-Zinchenko, O.V.; Venhrynyuk, T.P. In-service degradation of the pipe steel of grounding anodes. Mater. Sci. 2016, 52, 240–245. [Google Scholar] [CrossRef]
- Li, D.S.; Ye, Y.; Liao, X.J.; Qin, Q.H. Novel preparation and characteristics of graphene nanoplatelets/aluminum nanocompo-sites. Nano Res. 2018, 11, 1642–1650. [Google Scholar] [CrossRef]
- Verbovyts’kyi, Y.V.; Zavalii, I.Y. New metal-hydride materials based on R2–xMgxNi4 alloys for chemical current sources. Mater. Sci. 2017, 52, 747–759. [Google Scholar] [CrossRef]
- Du, P.; Liu, X.; Gao, Y.B.; Li, D.S.; Pei, F.; Liu, G.M.; Tian, X.; Lei, L. Galvanic anode cathodic protection of grounding gridin acidic soils. Surf. Technol. 2015, 44, 111–116. [Google Scholar]
- Li, D.S.; Wu, W.Z.; Qin, Q.H.; Zhou, X.L.; Zuo, D.W.; Lu, S.Q.; Gao, Y.B. Microstructure and mechanical properties of gra-phene/Al composites. Trans. Nonferrous Met. Soc. China 2015, 25, 1498–1504. [Google Scholar]
- Liu, Z.Y.; Wang, L.W.; Du, C.W.; Wang, F.M.; Gong, A.J.; Li, X.G.; Cheng, F. Short-term corrosion behavior of Q235 steel and X70 pipeline steel in gray desert soil in North America. J. Univ. Sci. Technol. Beijing 2013, 35, 1021–1026. [Google Scholar]
- Sun, C.; Han, E.H. Effects of SRB on corrosion of zinc in different humidity soils. Trans. Nonferrous Met. Soc. China 2002, 12, 1109–1112. [Google Scholar]
- Yan, M.; Sun, C.; Xu, J.; Dong, J.; Ke, W. Role of Fe oxides in corrosion of pipeline steel in a red clay soil. Corros. Sci. 2014, 80, 309–317. [Google Scholar] [CrossRef]
- Wang, S.; Luo, H.; Li, Z.Z.; Xiao, K.; Ji, H.L.; Dong, C.F. Corrosion behavior of three kinds of typical grounded metal in simulated solution of shanxi soil. J. Mater. Prot. 2012, 45, 70–73. [Google Scholar]
- Xu, S.; Feng, B.; He, T.X. Investigation of corrosion property of four kinds of coating in the transformer substation soil. Hunan Electr. Power 2015, 35, 36–40. [Google Scholar]
- Lin, B.L.; Lu, X.Y.; Li, L. Corrosion behaviors of arc spraying single and double layer coatings in simulated Dagang soil solu-tion. Trans. Nonferrous Met. Soc. China 2009, 19, 1556–1561. [Google Scholar] [CrossRef]
- Lins, V.D.F.C.; Ferreira, M.L.M.; Saliba, P.A. Corrosion resistance of API X52 carbon steel in soil environment. J. Mater. Res. Technol. 2012, 1, 161–166. [Google Scholar] [CrossRef] [Green Version]
- Bhadra, S.; Chattopadhyay, S.; Singh, N.K.; Khastgir, D. Improvement of conductivity of electrochemically synthesized pol-yaniline. J. Appl. Poly. Sci. 2012, 108, 57–64. [Google Scholar] [CrossRef]
- Stashchuk, M.H.; Dorosh, M.I. Numerical analysis of the strained state of cellular pipes in inhomogeneous soil. Mater. Sci. 2011, 46, 763–768. [Google Scholar] [CrossRef]
- Gerwin, W.; Baumhauer, R. Effect of soil parameters on the corrosion of archaeological metal finds. Geoderma 2000, 96, 63–80. [Google Scholar] [CrossRef]
Publisher’s Note: MDPI stays neutral with regard to jurisdictional claims in published maps and institutional affiliations. |
© 2022 by the authors. Licensee MDPI, Basel, Switzerland. This article is an open access article distributed under the terms and conditions of the Creative Commons Attribution (CC BY) license (https://creativecommons.org/licenses/by/4.0/).