Damage Characterisation of Scour in Riprap-Protected Jackets and Hybrid Foundations
Abstract
1. Introduction
- It establishes a thorough experimental campaign that applies riprap scour protections designed according to recommendations found in the literature to the entire footprint area of a jacket foundation, to evaluate their performance and to compare the damage results with existing design criteria, developed for monopile foundations.
- Performs one of the first physical model tests on protected hybrid jackets, by coupling an OSWEC to the foundation, comparing them to the jacket results to highlight disparities, to demonstrate how the OSWEC paddle’s oscillatory motion can modify the governing mechanisms of scour, influence turbulence, hydrodynamics, and be a key driver of armour-layer damage.
- Presents and successfully applies a novel adaptation of the overlapping-circle method suitable for complex foundations, allowing for improved analysis of damage distribution, as the use of fixed sub-areas often overlooks damage occurring in intersection sub-area zones.
- Suggests alternative metrics presented by [33] to better quantify and evaluate the performance of scour protections in complex offshore settings, which may successfully identify the correct protection behaviour.
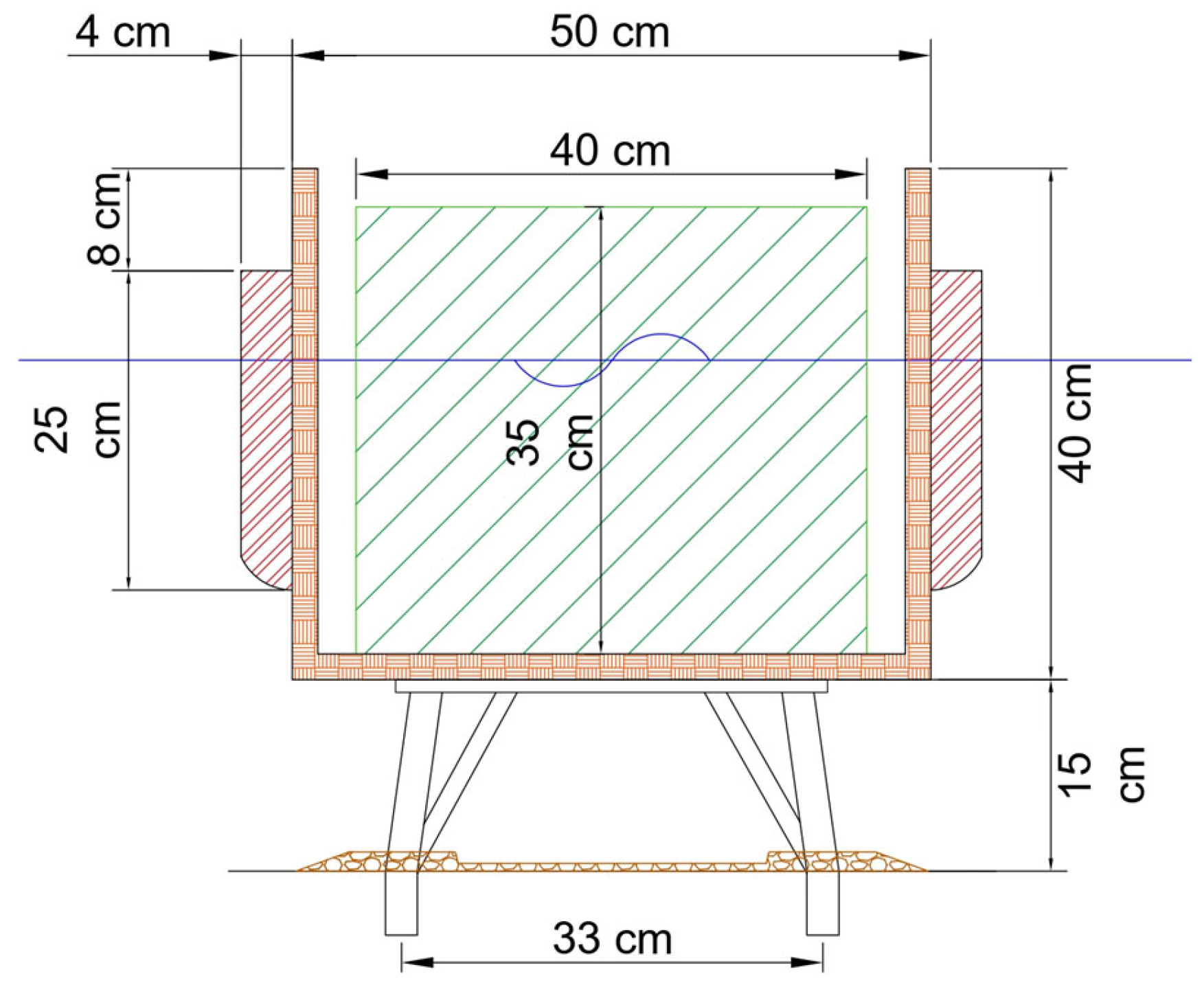
2. Materials and Methods
2.1. Experimental Setup
2.2. Experimental Procedures, Measurements, and Test Conditions
2.3. Method of Analysis
3. Results
3.1. Damage Number (S3D)
3.2. Overlapping Grid Ratio
3.3. S3D/ns and S/ts Analysis
- Failure: ;
- Dynamic Protection: ;
- Static Protection: ;
- Recovery (Sediment Accretion): ;
3.4. Ucw and KC Effects
3.5. Hybrid Jacket vs. Hybrid Monopiles
3.6. Wave Transmission (Kt) and Wave Reduction (KRed) Coefficients
4. Conclusions
- Scale effects: the use of the Froude similitude with a 1:50 geometric scale inevitably introduces some scale effects regarding viscous forces and sediment size. While the Re number was maintained in a range to restrain vortex shedding discrepancies, as suggested by [35], the scaling of granular bed material may not perfectly replicate prototype sediment transport regimes.
- OSWEC model: The WEC selected for the experimental study was modelled as a simplified oscillating paddle system. While macroscopically this reproduces the potential effects and influences of the device in enhancing flow and scour mechanisms, it does not fully capture the real effects of damping and control strategies of a full-scale device with a fully functional PTO system.
- Scour protection applied to a hybrid jacket-WEC system: comparative evaluation of the S3D between a jacket and a hybrid jacket foundation. Results demonstrated that paddle-based WECs intensify scour due to the influence of the paddle’s oscillatory motion, thereby enhancing turbulence and flow patterns, despite its capacity to attenuate wave heights up to 33%.
- Overlapping-circle 3D method implemented to a complex geometry foundation: the research successfully adapted and implemented the methodology developed by [34] to a jacket foundation, a structure with higher complexity when compared to a monopile, and to a square scour protection (different from the typical circular shape). The method demonstrated a high-resolution scour quantification capability through a highly accurate computation of S3D, thereby providing valuable insights into complex and hybrid configurations. Despite the sensitivity to the grid ratio, results suggest an ideal range between 1/8 and 1/4. However, low grid ratios present some difficulties in properly representing overlapping elements near the corners and around the piles in complex foundations/protections. Therefore, the 1/4 ratio remains the most reliable, consistent with the findings disclosed by [6,34];
- Scour protection design predictive formulas limitations: the study’s findings raise some questions regarding the underestimation and application of current design standards, developed primarily for monopiles, which do not account for increased flow and structural complexity of other structures and hybrid configurations. Hybrid jackets failed prematurely, with massive damage rates, within the first 1000 waves. The results emphasise that currently, there is no methodology capable of effectively considering the additional loads caused by the interaction between sediment flow, WEC, and the structure.
- Alternative scour metrics for scour protection performance: the S/ts and S3D/ns parameters, proposed as alternatives by [33] to better quantify and evaluate the performance of scour protections in complex offshore settings, can successfully identify when a protection is dynamic, closer to failure, and when failure occurs. These measurements shift the evaluation focus from the foundation to the armour layer itself, providing a clearer picture of relative performance. Both indicators outperform traditional parameters such as the S/D and the S3D > 1.0 threshold. However, the static limit may need to be reconsidered, as it can be overly conservative and result in thicker protections.
Author Contributions
Funding
Data Availability Statement
Acknowledgments
Conflicts of Interest
Abbreviations
| ADV | Acoustic Doppler Velocimeter |
| Apile_jacket | Overlapping-circle sub-area equivalent to jacket’s pile area |
| Asub | Area of the overlapping-circle sub-areas |
| a0, a2, a3 | Regression fitting coefficients |
| a1, a4 | Coefficient for hydrodynamic conditions |
| b0 | Regression fitting coefficient |
| Djacket | Diameter of jacket piles |
| Dn50 | Nominal stone diameter of the scour protection |
| Dv,i | Incremental erosion depth |
| D15 | 15th percentile of scour protection material grading |
| D85 | 85th percentile of scour protection material grading |
| DOF | Degrees of freedom |
| DTM | Digital Terrain Model |
| d | Water depth |
| d16 | 16th percentile of sediments |
| d50 | Mean diameter of sediments |
| d84 | 84th percentile of sediments |
| Fr | Froude number |
| FOSWEC | Floating Oscillating Surge Wave Energy Converter |
| g | Gravitational acceleration |
| H | Wave height |
| Hm0 | Spectral significant wave height |
| Hs | Significant wave height |
| Hrms | Root-mean square wave height |
| J | Jacket |
| JH | Hybrid jacket |
| JONSWAP | Joint North Sea Wave Project |
| KRed | Wave reduction coefficient |
| Kt | Wave transmission coefficient |
| KC | Keulegan–Carpenter number (wave contribution) |
| LCoE | Levelized Cost of Energy |
| N | Number of waves |
| ns | Number of rock stone sizes (layers) |
| OSWEC | Oscillating Surge Wave Energy Converter |
| OWE | Offshore wind energy |
| OWF | Offshore Wind Foundation |
| PTO | Power-take off |
| p | Multiplication factor for overlapping-circle sub-area |
| Rcircle | Radius of overlapping-circle sub-area |
| Re | Reynolds number |
| S | Scour depth |
| Seq | Equilibrium scour depth |
| Send | End scour depth |
| S/D | Relative scour depth |
| S/ts | Scour depth relative to the scour protection thickness |
| S3D | Damage number |
| S3D,hybrid | Damage number at hybrid jacket |
| S3D,jacket | Damage number at jacket foundations |
| S3D,max | Damage number (maximum) |
| S3D,measured | Damage number (measured) |
| S3D,predicted | Damage number (predicted) |
| S3D/ns | Damage number relative to the number of rock stone sizes (layers) |
| S3D,measured/ns | Measured damage number relative to the number of rock stone sizes (layers) |
| s | Specific density (ρs/ρw) |
| T* | Dimensionless time scale |
| Tm−1,0 | Energy wave period |
| Tp | Wave peak period |
| ts | Scour protection thickness |
| Uc | Depth-averaged current velocity |
| Ucw | Wave–current velocity ratio |
| Um | Wave orbital bottom velocity |
| VA,i | Cumulative dimensionless erosion volume |
| Vcircle | Volume of overlapping-circle sub-area |
| WC | Waves-and-currents |
| WEC | Wave Energy Converter |
| WI | Irregular waves |
| WR | Regular waves |
| ws | Settling velocity |
| ΔS3D/ns | Damage increase ratio |
| ηS3D,grid | Grid ratio |
| ρs | Density of rock material |
| ρw | Water mass density |
| σs | Standard deviation of sediments |
| γ | Wave spectrum peak enhancement factor |
Appendix A. Jacket and Hybrid Jacket S3D Results (Asub = 4






















Appendix B. Jacket and Hybrid Foundations S3D Results for Different Grid Ratios (ηS3D,grid)
| Jacket | (A) | (B) | (C) | (D) | (E) | ||||
|---|---|---|---|---|---|---|---|---|---|
| Asub | Value [m2] | ηS3D,grid | p Value | Rcircle [m] | S3D,max | ||||
| 1.362 × 10−5 | 1.000 | 1.1284 | 2.082 × 10−3 | 2.05 | 2.62 | 5.66 | 5.14 | 6.14 | |
| 1.513 × 10−5 | 0.900 | 1.1894 | 2.194 × 10−3 | 2.02 | 2.60 | 5.92 | 5.65 | 6.26 | |
| 2.042 × 10−5 | 0.667 | 1.3820 | 2.550 × 10−3 | 2.01 | 2.54 | 5.37 | 5.14 | 5.98 | |
| 2.723 × 10−5 | 0.500 | 1.5958 | 2.944 × 10−3 | 1.71 | 2.16 | 5.58 | 4.56 | 5.40 | |
| 4.085 × 10−5 | 0.333 | 1.9544 | 3.606 × 10−3 | 1.76 | 2.04 | 5.29 | 5.04 | 5.33 | |
| 5.446 × 10−5 | 0.250 | 2.2568 | 4.164 × 10−3 | 1.72 | 1.98 | 4.71 | 3.96 | 4.90 | |
| 6.808 × 10−5 | 0.200 | 2.5231 | 4.655 × 10−3 | 1.63 | 1.75 | 4.96 | 3.97 | 5.34 | |
| 8.170 × 10−5 | 0.167 | 2.7640 | 5.099 × 10−3 | 1.53 | 1.70 | 4.38 | 4.00 | 4.64 | |
| 9.531 × 10−5 | 0.143 | 2.9854 | 5.508 × 10−3 | 1.48 | 1.52 | 4.20 | 4.07 | 4.95 | |
| 1.089 × 10−4 | 0.125 | 3.1915 | 5.888 × 10−3 | 1.55 | 1.69 | 4.47 | 4.05 | 4.93 | |
| 1.225 × 10−4 | 0.111 | 3.3851 | 6.246 × 10−3 | 1.30 | 1.45 | 4.50 | 3.88 | 4.76 | |
| 1.362 × 10−4 | 0.100 | 3.5682 | 6.583 × 10−3 | 1.14 | 1.28 | 4.05 | 3.81 | 4.49 | |
| 2.179 × 10−4 | 0.063 | 4.5135 | 8.327 × 10−3 | 1.13 | 1.10 | 4.49 | 3.90 | 4.54 | |
| 2.723 × 10−4 | 0.050 | 5.0463 | 9.310 × 10−3 | 1.18 | 1.08 | 4.24 | 3.81 | 4.47 | |
| 3.404 × 10−4 | 0.040 | 5.6419 | 1.041 × 10−2 | 1.07 | 0.96 | 3.58 | 3.45 | 4.59 | |
| Apile_jacket | 4.909 × 10−3 | 0.02774 | 6.7751 | 1.250 × 10−2 | 0.95 | 0.82 | 4.24 | 3.21 | 4.54 |
| Hybrid Jacket | (A) | (B) | (C) | (D) | (E) | ||||
|---|---|---|---|---|---|---|---|---|---|
| Asub | Value [m2] | ηS3D,grid | p Value | Rcircle [m] | S3D,max | ||||
| 1.362 × 10−5 | 1.000 | 1.1284 | 2.082 × 10−3 | 4.20 | 13.00 | 24.80 | 21.20 | 22.50 | |
| 1.513 × 10−5 | 0.900 | 1.1894 | 2.194 × 10−3 | 4.13 | 12.10 | 23.60 | 19.20 | 21.20 | |
| 2.042 × 10−5 | 0.667 | 1.3820 | 2.550 × 10−3 | 4.10 | 13.70 | 22.20 | 20.20 | 21.40 | |
| 2.723 × 10−5 | 0.500 | 1.5958 | 2.944 × 10−3 | 4.33 | 12.30 | 21.10 | 19.90 | 20.60 | |
| 4.085 × 10−5 | 0.333 | 1.9544 | 3.606 × 10−3 | 3.80 | 11.50 | 20.80 | 19.90 | 19.20 | |
| 5.446 × 10−5 | 0.250 | 2.2568 | 4.164 × 10−3 | 3.65 | 10.30 | 18.80 | 16.00 | 16.80 | |
| 6.808 × 10−5 | 0.200 | 2.5231 | 4.655 × 10−3 | 4.16 | 12.40 | 20.30 | 18.70 | 18.30 | |
| 8.170 × 10−5 | 0.167 | 2.7640 | 5.099 × 10−3 | 3.47 | 10.30 | 18.20 | 16.30 | 17.00 | |
| 9.531 × 10−5 | 0.143 | 2.9854 | 5.508 × 10−3 | 3.68 | 9.35 | 18.30 | 16.30 | 17.00 | |
| 1.089 × 10−4 | 0.125 | 3.1915 | 5.888 × 10−3 | 3.52 | 10.20 | 18.80 | 16.10 | 16.40 | |
| 1.225 × 10−4 | 0.111 | 3.3851 | 6.246 × 10−3 | 3.60 | 9.94 | 18.40 | 15.50 | 16.40 | |
| 1.362 × 10−4 | 0.100 | 3.5682 | 6.583 × 10−3 | 3.51 | 9.89 | 18.00 | 15.40 | 16.00 | |
| 2.179 × 10−4 | 0.063 | 4.5135 | 8.327 × 10−3 | 3.27 | 9.81 | 18.20 | 14.70 | 15.90 | |
| 2.723 × 10−4 | 0.050 | 5.0463 | 9.310 × 10−3 | 3.36 | 9.65 | 17.30 | 15.30 | 15.90 | |
| 3.404 × 10−4 | 0.040 | 5.6419 | 1.041 × 10−2 | 3.39 | 9.76 | 17.50 | 14.80 | 15.50 | |
| Apile_jacket | 4.909 × 10−3 | 0.02774 | 6.7751 | 1.250 × 10−2 | 3.17 | 9.20 | 17.10 | 14.40 | 15.40 |
References
- Wind Europe. Getting Fit for 55 and Set for 2050: Electrifying Europe with Wind Energy; Wind Europe: Brussels, Belgium, 2021. [Google Scholar]
- Matutano, C.; Negro, V.; López-Gutiérrez, J.S.; Esteban, M.D. Scour prediction and scour protections in offshore wind farms. Renew. Energy 2013, 57, 358–365. [Google Scholar] [CrossRef]
- Fazeres-Ferradosa, T.; Taveira-Pinto, F.; Rosa-Santos, P.; Chambel, J. A review of reliability analysis of offshore scour protections. Proc. Inst. Civ. Eng. Marit. Eng. 2019, 172, 104–117. [Google Scholar] [CrossRef]
- De Vos, L. Optimisation of Scour Protection Design for Monopiles and Quantification of Waves Run-Up. Ph.D. Thesis, Ghent University, Ghent, Belgium, 2008. [Google Scholar]
- De Vos, L.; De Rouck, J.; Troch, P.; Frigaard, P. Empirical design of scour protections around monopile foundations: Part 2: Dynamic approach. Coast. Eng. 2012, 60, 286–298. [Google Scholar] [CrossRef]
- den Boon, J.H.; Sutherland, J.; Whitehouse, R.J.S.; Soulsby, R.L.; Stam, C.J.M.; Verhoeven, K.; Hald, T. Scour behaviour and scour protection for monopile foundations of offshore wind turbines. Proc. Euro. Wind Energy Conf. Exhib. 2004, 14, 26. [Google Scholar]
- De Vos, L.; De Rouck, J.; Troch, P.; Frigaard, P. Empirical design of scour protections around monopile foundations: Part 1: Static approach. Coast. Eng. 2011, 58, 540–553. [Google Scholar] [CrossRef]
- De Schoessitter, P.; Audenaert, S.; Baelus, L.; Bolle, A.; Brown, A.; das Neves, L.; Fazeres-Ferradosa, T.; Haerens, P.; Taveira-Pinto, F.; Troch, P. Feasibility of a dynamically stable rock armour layer scour protection for offshore wind farms. In Proceedings of the ASME 2014 33rd International Conference on Ocean, Offshore and Arctic Engineering, San Jose, CA, USA, 8–13 June 2014. [Google Scholar]
- Whitehouse, R.J.S.; Brown, A.; Audenaert, S.; Bolle, A.; de Schoessiter, P.; Haerens, P.; Baelus, L.; Troch, P.; das Neves, L.; Fazeres-Ferradosa, T. Optimising scour protection stability at offshore foundations. In Proceedings of the 7th International Conference on Scour and Erosion, Perth, Australia, 2–4 December 2014; CRC Press: Boca Raton, FL, USA, 2014. [Google Scholar]
- Fazeres-Ferradosa, T.; Taveira-Pinto, F.; Reis, M.T.; das Neves, L. Physical modelling of dynamic scour protections: Analysis of the damage number. Proc. Inst. Civ. Eng. Marit. Eng. 2018, 171, 11–24. [Google Scholar] [CrossRef]
- Augustyn, D.; Nielsen, M.B.; Pedersen, R.R. 17.04: Design of offshore wind turbine jacket foundations: On the influence of subsequent modifications on fatigue performance. ce/papers 2017, 1, 4323–4332. [Google Scholar] [CrossRef]
- Hao, E.; Liu, C. Evolution and comparison of anti-impact performance to offshore wind turbine foundations: Monopiles, tripods, and jacket. Ocean Eng. 2017, 130, 218–227. [Google Scholar] [CrossRef]
- Chen, H.-H.; Yang, R.-Y.; Hwung, H.-H. Study of Hard and Soft Countermeasures for Scour Protection of Jacket-Type Offshore Wind Turbine Foundation. J. Mar. Sci. Eng. 2014, 2, 551–567. [Google Scholar] [CrossRef]
- Chen, H.; Zhang, J.; Wang, F.; Guo, Y.; Guan, D.; Feng, L. Experimental investigation of the current induced local scour around a jacket foundation. Ocean Eng. 2023, 285, 115369. [Google Scholar] [CrossRef]
- Chen, H.; Zhang, J.; Guo, Y.; Cui, L.; Guan, D.; Jiang, L. Laboratory modeling study on the scour characteristics around a jacket foundation subjected to combined wave-current loading. Renew. Energy 2025, 242, 122443. [Google Scholar] [CrossRef]
- Wind Europe. Offshore Wind in Europe—Key Trends and Statistics 2020; Wind Europe: Brussels, Belgium, 2021. [Google Scholar]
- Fazeres-Ferradosa, T.; Chambel, J.; Taveira-Pinto, F.; Rosa-Santos, P.; Taveira-Pinto, F.V.C.; Giannini, G.; Haerens, P. Scour Protections for Offshore Foundations of Marine Energy Harvesting Technologies: A Review. J. Mar. Sci. Eng. 2021, 9, 297. [Google Scholar] [CrossRef]
- Welzel, M. Wave-Current Induced Scouring Processes Around Complex Offshore Structures. Ph.D. Thesis, Leibniz University, Hannover, Germany, 2021. [Google Scholar]
- Welzel, M.; Schendel, A.; Hildebrandt, A.; Schlurmann, T. Scour development around a jacket structure in combined waves and current conditions compared to monopile foundations. Coast. Eng. 2019, 152, 103515. [Google Scholar] [CrossRef]
- Welzel, M.; Schendel, A.; Schlurmann, T.; Hildebrandt, A. Volume-Based Assessment of Erosion Patterns around a Hydrodynamic Transparent Offshore Structure. Energies 2019, 12, 3089. [Google Scholar] [CrossRef]
- Welzel, M.; Schendel, A.; Goseberg, N.; Hildebrandt, A.; Schlurmann, T. Influence of Structural Elements on the Spatial Sediment Displacement around a Jacket-Type Offshore Foundation. Water 2020, 12, 1651. [Google Scholar] [CrossRef]
- Welzel, M.; Schendel, A.; Satari, R.; Neuweiler, I.; Schlurmann, T. Spatio-temporal analysis of scour around complex offshore foundations under clear water and live bed conditions. Ocean Eng. 2024, 298, 117042. [Google Scholar] [CrossRef]
- Zhang, J.; Chen, H.; Guo, Y.; Wang, F.; Guan, D.; Deng, X.; Hou, D. Experimental study on the scour characteristics around a jacket foundation under wave actions. Ocean Eng. 2025, 299, 117290. [Google Scholar] [CrossRef]
- Jalloul, M.H.; Satari, R.; Welzel, M.; Schendel, A.; Kerpen, N.B.; Wynants, M.; Neuweiler, I.; Schlurmann, T. Wave-current induced scour around complex offshore structures: Towards a refined analysis of local scour at jacket piles. Ocean Eng. 2025, 338, 121983. [Google Scholar] [CrossRef]
- Sumer, B.M.; Fredsøe, J. The Mechanics of Scour in the Marine Environment; World Scientific: Singapore, 2002. [Google Scholar]
- Schendel, A.; Hildebrandt, A.; Goseberg, N.; Schlurmann, T. Processes and evolution of scour around a monopile induced by tidal currents. Coast. Eng. 2018, 139, 65–84. [Google Scholar] [CrossRef]
- Rudolph, D.; Bos, K.J.; Luijendijk, A.; Rietema, K.; Out, J. Scour around offshore structures-analysis of field measurements. In Proceedings of the 2nd International Conference on Scour and Erosion: Meritus Mandarin, Singapore, 14–17 November 2004; World Scientific Publishing: Singapore, 2004. [Google Scholar]
- Bolle, A.; de Winter, K.; Goossens, W.; Haerens, P.; Dewaele, G. Scour monitoring around offshore jackets and gravity-based foundations. In Proceedings of the 6th International Conference on Scour and Erosion (ICSE), Paris, France, 27–31 August 2012; Societe Hydrotechnique de France: Paris, France, 2012. [Google Scholar]
- Baelus, L.; Bolle, A.; Szengel, V. Long-term scour monitoring around offshore jacket foundations on a sandy seabed. In Proceedings of the 9th International Conference on Scour and Erosion (ICSE 2018), Taipei, Taiwan, 5–8 November 2018; CRC Press: Boca Raton, FL, USA, 2018. [Google Scholar]
- Bruinsma, N.; Van Velzen, G.; Riezebos, H.; Tilmans, W.M.K. Scour development and conceptual scour protection layout at OHVS HKN and HKFWa. Deltares 2018. [Google Scholar]
- Sarmiento, J.; Guanche, R.; Iturrioz, A.; Ojanguren, T.; Ávila, A.; Yanes, C. Experimental Evaluation of Dynamic Rock Scour Protection in Morphodynamic Environments for Offshore Wind Jackets. Energies 2021, 14, 3379. [Google Scholar] [CrossRef]
- Chambel, J.; Fazeres-Ferradosa, T.; Miranda, F.; Bento, A.; Taveira-Pinto, F.; Lomonaco, P. A Comprehensive Review on Scour and Scour Protections for Complex Bottom-Fixed Offshore and Marine Renewable Energy Foundations. Ocean Eng. 2024, 304, 117829. [Google Scholar] [CrossRef]
- Chambel, J.; Fazeres-Ferradosa, T.; Welzel, M.; Taveira-Pinto, F.; Lomonaco, P. Comparative Analysis of Scour in Riprap-Protected Monopiles and Hybrid Foundations. J. Mar. Sci. Eng. 2025, 13, 1639. [Google Scholar] [CrossRef]
- Fazeres-Ferradosa, T.; Welzel, M.; Schendel, A.; Baelus, L.; Santos, P.R.; Pinto, F.T. Extended characterization of damage in rubble mound scour protections. Coast. Eng. 2020, 158, 103671. [Google Scholar] [CrossRef]
- Sumer, B.M.; Fredsøe, J.; Christiansen, N. Scour around vertical pile in Waves. J. Waterw. Port Coast. Ocean Eng. 1992, 118, 15–31. [Google Scholar] [CrossRef]
- Wiberg, P.L.; Sherwood, C.R. Calculating wave-generated bottom orbital velocities from surface-wave parameters. Comput. Geosci. 2008, 34, 1243–1262. [Google Scholar] [CrossRef]
- Construction Industry Research and Information Association; Civieltechnisch Centrum Uitvoering Research en Regelgeving (Netherlands). The Rock Manual: The Use of Rock in Hydraulic Engineering, 2nd ed.; CIRIA: London, UK, 2007; Volume 683. [Google Scholar]
- Ruehl, K.M.; Forbush, D.D.; Lomonaco, P.; Bosma, B.; Simmons, A.; Gunawan, B.; Bacelli, G.; Michelen, C. Experimental Testing of a Floating Oscillating Surge Wave Energy Converter; Sandia National Laboratories: Albuquerque, NM, USA, 2019. [Google Scholar]
- Ruehl, K.M.; Forbush, D.D.; Yu, Y.H.; Tom, N. Experimental and numerical comparisons of a dual-flap floating oscillating surge wave energy converter in regular waves. Ocean Eng. 2020, 196, 106575. [Google Scholar] [CrossRef]
- Coe, R.G.; Bacelli, G.; Forbush, D.; Spencer, S.J.; Dullea, K.J.; Bosma, B.; Lomonaco, P. FOSWEC Dynamics and Controls Test Report; Sandia National Laboratories: Albuquerque, NM, USA, 2020. [Google Scholar]
- Whitehouse, R.J.S. Scour at marine structures: A manual for practical applications. Oceanogr. Lit. Rev. 1998, 45, 171. [Google Scholar] [CrossRef]
- Broekema, Y.B.; van Steijn, P.W.; Wu, M.; Robijns, T. Predicting loose rock scour protection deformation around monopiles using relative mobility numbers and the Keulegan–Carpenter number. Ocean Eng. 2024, 300, 117475. [Google Scholar] [CrossRef]
- Sumer, B.M.; Fredsøe, J. Experimental study of 2D scour and its protection at a rubble-mound breakwater. Coast. Eng. 2000, 40, 59–87. [Google Scholar] [CrossRef]
- Schendel, A.; Welzel, M.; Schlurmann, T.; Hsu, T.-W. Scour around a monopile induced by directionally spread irregular Waves in combination with oblique currents. Coast. Eng. 2020, 161, 103751. [Google Scholar] [CrossRef]
- Taheri, O.; Kolahdoozan, M.; Faghihirad, S. Experimental study of bed level changes in the vicinity of flap-type wave energy converters. Ships Offshore Struct. 2022, 18, 450–461. [Google Scholar] [CrossRef]
- Chen, L.; Hashim, R.; Othman, F.; Motamedi, S. Experimental study on scour profile of pile-supported horizontal axis tidal current turbine. Renew. Energy 2017, 114, 744–754. [Google Scholar] [CrossRef]
- Sun, C.; Lam, W.H.; Cui, Y.; Zhang, T.; Jiang, J.; Guo, J.; Ma, Y.; Wang, S.; Tan, T.H.; Chuah, J.H. Empiricial models for Darrieus-type tidal current turbine induced seabed scour. Energy Convers. Manag. 2018, 171, 478–490. [Google Scholar] [CrossRef]
















| Test | Number of Waves | Djacket [m] | d [m] | Hs [m] | Tp [s] | Um [m/s] | Uc [m/s] | Ucw | S3D,predicted | KC |
|---|---|---|---|---|---|---|---|---|---|---|
| J_WC_7 | 3000 | 0.025 | 0.4 | 0.07 | 1.414 | 0.080 | 0.155 | 0.66 | 0.08 | 4.52 |
| J_WC_11 | 0.11 | 1.697 | 0.143 | 0.52 | 0.63 | 9.71 | ||||
| J_WC_15.5 | 0.155 | 1.980 | 0.183 | 0.050 | 0.21 | 1.79 | 14.49 | |||
| J_WI_14 | 0.14 | 2.263 | 0.208 | - | 0.00 | 3.43 | 18.83 | |||
| J_WR_14 | 0.14 (Regular) | |||||||||
| JH_WC_7 | 3000 | 0.025 | 0.4 | 0.07 | 1.414 | 0.080 | 0.155 | 0.66 | 0.08 | 4.52 |
| JH_WC_11 | 0.11 | 1.697 | 0.143 | 0.52 | 0.63 | 9.71 | ||||
| JH_WC_15.5 | 0.155 | 1.980 | 0.183 | 0.050 | 0.21 | 1.79 | 14.49 | |||
| JH_WI_14 | 0.14 | 2.263 | 0.208 | - | 0.00 | 3.43 | 18.83 | |||
| JH_WR_14 | 0.14 (Regular) |
| Test | N | Hm0 [m] | Tp [s] | Um [m/s] | Uc [m/s] | Ucw | S3D,max | S3D,predicted | KC |
|---|---|---|---|---|---|---|---|---|---|
| J_WC_7_1000 | 1000 | 0.069 | 1.471 | 0.081 | 0.156 | 0.66 | 1.61 | 0.07 | 4.79 |
| J_WC_7_2000 | 1000 | 0.068 | 1.471 | 0.080 | 0.157 | 0.66 | 1.76 | 0.08 | 4.72 |
| J_WC_7_3000 | 1000 | 0.069 | 1.471 | 0.081 | 0.157 | 0.66 | 1.72 | 0.09 | 4.79 |
| J_WC_11_1000 | 1000 | 0.100 | 1.695 | 0.130 | 0.158 | 0.55 | 1.67 | 0.36 | 8.83 |
| J_WC_11_2000 | 1000 | 0.103 | 1.613 | 0.130 | 0.156 | 0.55 | 1.80 | 0.39 | 8.39 |
| J_WC_11_3000 | 1000 | 0.106 | 1.667 | 0.137 | 0.157 | 0.53 | 1.98 | 0.53 | 9.11 |
| J_WC_15.5_1000 | 1000 | 0.145 | 1.887 | 0.200 | 0.051 | 0.20 | 3.27 | 1.62 | 15.09 |
| J_WC_15.5_2000 | 1000 | 0.148 | 1.887 | 0.204 | 0.048 | 0.19 | 4.62 | 2.04 | 15.41 |
| J_WC_15.5_3000 | 1000 | 0.148 | 1.887 | 0.204 | 0.048 | 0.19 | 4.71 | 2.25 | 15.41 |
| J_WI_14_1000 | 1000 | 0.136 | 2.128 | 0.192 | - | 0.00 | 3.85 | 1.83 | 16.32 |
| J_WI_14_2000 | 1000 | 0.135 | 2.174 | 0.190 | 3.67 | 2.19 | 16.48 | ||
| J_WI_14_3000 | 1000 | 0.137 | 2.083 | 0.196 | 3.96 | 2.43 | 16.30 | ||
| J_WR_14_1000 | 1000 | 0.138 | 2.222 | 0.203 | - | 0.00 | 2.83 | 2.35 | 18.07 |
| J_WR_14_2000 | 1000 | 0.138 | 2.222 | 0.203 | 3.72 | 2.78 | 18.07 | ||
| J_WR_14_3000 | 1000 | 0.134 | 2.222 | 0.197 | 4.90 | 2.81 | 17.54 | ||
| JH_WC_7_1000 | 1000 | 0.068 | 1.471 | 0.080 | 0.155 | 0.66 | 3.02 | 0.06 | 4.72 |
| JH_WC_7_2000 | 1000 | 0.069 | 1.471 | 0.081 | 0.154 | 0.65 | 3.01 | 0.09 | 4.79 |
| JH_WC_7_3000 | 1000 | 0.071 | 1.471 | 0.084 | 0.155 | 0.65 | 3.65 | 0.10 | 4.93 |
| JH_WC_11_1000 | 1000 | 0.111 | 1.695 | 0.145 | 0.156 | 0.52 | 10.40 | 0.50 | 9.80 |
| JH_WC_15.5_1000 | 1000 | 0.154 | 1.961 | 0.216 | 0.049 | 0.18 | 19.10 | 2.21 | 16.95 |
| JH_WI_14_1000 | 1000 | 0.142 | 2.273 | 0.211 | - | 0.00 | 16.00 | 2.77 | 19.17 |
| JH_WR_14_1000 | 1000 | 0.147 | 2.273 | 0.218 | - | 0.00 | 16.80 | 3.05 | 19.85 |
| Test | N | S3D,hybrid/S3D,jacket |
|---|---|---|
| J_WC_7 vs. JH_WC_7 | 1000 | 1.88 |
| 2000 | 1.71 | |
| 3000 | 2.12 | |
| J_WC_11 vs. JH_WC_11 | 1000 | 6.23 |
| 2000 | - | |
| 3000 | - | |
| J_WC_15.5 vs. JH_WC_15.5 | 1000 | 5.84 |
| 2000 | - | |
| 3000 | - | |
| J_WI_14 vs. JH_WI_14 | 1000 | 4.16 |
| 2000 | - | |
| 3000 | - | |
| J_WR_14 vs. JH_WR_14 | 1000 | 5.94 |
| 2000 | - | |
| 3000 | - |
| Test | Tp [s] | Most Affected Region | |
|---|---|---|---|
| Front Pile | Rear Pile | ||
| J_WC_7 | 1.471 | x | |
| J_WC_11 | [1.613–1.695] | x | |
| J_WC_15.5 | 1.887 | x | |
| J_WI_14 | [2.083–2.174] | x | |
| J_WR_14 | 2.222 | x | |
| JH_WC_7 | 1.471 | x | |
| JH_WC_11 | 1.695 | x | |
| JH_WC_15.5 | 1.961 | x | |
| JH_WI_14 | 2.273 | x | |
| JH_WR_14 | 2.273 | x | |
| Test | S3D,max | Static Threshold | Failure Threshold |
|---|---|---|---|
| J_WC_7_1000 | 1.61 | S3D = 0.25 ([5]) | S3D = 5.0 (based on ns—[33]) |
| J_WC_7_2000 | 1.76 | ||
| J_WC_7_3000 | 1.72 | ||
| J_WC_11_1000 | 1.67 | ||
| J_WC_11_2000 | 1.80 | ||
| J_WC_11_3000 | 1.98 | ||
| J_WC_15.5_1000 | 3.27 | ||
| J_WC_15.5_2000 | 4.62 | ||
| J_WC_15.5_3000 | 4.71 | ||
| J_WI_14_1000 | 3.85 | ||
| J_WI_14_2000 | 3.67 | ||
| J_WI_14_3000 | 3.96 | ||
| J_WR_14_1000 | 2.83 | ||
| J_WR_14_2000 | 3.72 | ||
| J_WR_14_3000 | 4.90 | ||
| JH_WC_7_1000 | 3.02 | ||
| JH_WC_7_2000 | 3.01 | ||
| JH_WC_7_3000 | 3.65 | ||
| JH_WC_11_1000 | 10.40 | ||
| JH_WC_15.5_1000 | 19.10 | ||
| JH_WI_14_1000 | 16.00 | ||
| JH_WR_14_1000 | 16.80 |
| Test | S [mm] | S/ts or S3D/ns | Static Threshold | Failure Threshold |
|---|---|---|---|---|
| J_WC_7_1000 | 5.95 | 0.32 | 0.25 | 1.0 |
| J_WC_7_2000 | 6.50 | 0.35 | ||
| J_WC_7_3000 | 6.36 | 0.34 | ||
| J_WC_11_1000 | 6.17 | 0.33 | ||
| J_WC_11_2000 | 6.65 | 0.36 | ||
| J_WC_11_3000 | 7.32 | 0.40 | ||
| J_WC_15.5_1000 | 12.09 | 0.65 | ||
| J_WC_15.5_2000 | 17.08 | 0.92 | ||
| J_WC_15.5_3000 | 17.41 | 0.94 | ||
| J_WI_14_1000 | 14.23 | 0.77 | ||
| J_WI_14_2000 | 13.56 | 0.73 | ||
| J_WI_14_3000 | 14.64 | 0.79 | ||
| J_WR_14_1000 | 10.46 | 0.57 | ||
| J_WR_14_2000 | 13.75 | 0.74 | ||
| J_WR_14_3000 | 18.11 | 0.98 | ||
| JH_WC_7_1000 | 11.16 | 0.60 | ||
| JH_WC_7_2000 | 11.12 | 0.60 | ||
| JH_WC_7_3000 | 13.49 | 0.73 | ||
| JH_WC_11_1000 | 38.44 | 2.08 | ||
| JH_WC_15.5_1000 | 70.59 | 3.82 | ||
| JH_WI_14_1000 | 59.14 | 3.20 | ||
| JH_WR_14_1000 | 62.09 | 3.36 |
| Test | Jacket | Monopile [33] | ||
|---|---|---|---|---|
| S3D,measured | Visual Classification | S3D,measured | Visual Classification | |
| WC_7 | 1.72 | Static (3000 waves) | 1.95 | Dynamic (3000 waves) |
| WC_11 | 1.98 | Static (3000 waves) | 1.83 | Dynamic (3000 waves) |
| WC_15.5 | 4.71 | Dynamic (almost fails for 3000 waves) | 2.87 | Failure (1000 waves) |
| WI_14 | 3.96 | Dynamic (3000 waves) | 3.08 | Dynamic (almost fails for 3000 waves) |
| WR_14 | 4.90 | Dynamic (almost fails for 3000 waves) | 3.18 | Failure (1000 waves) |
| Hybrid_WC_7 | 3.65 | Slightly dynamic (3000 waves) | 3.25 | Failure (2000 waves) |
| Hybrid_WC_11 | 10.40 | Failure (1000 waves) | 5.38 | Failure (1000 waves) |
| Hybrid_WC_15.5 | 19.10 | 9.81 | ||
| Hybrid_WI_14 | 16.00 | 7.28 | ||
| Hybrid_WC_14 | 16.80 | 8.55 | ||
| Test | N | Kt (%) |
|---|---|---|
| J_WC_7_1000 | 1000 | 102.9 |
| J_WC_7_2000 | 1000 | 104.4 |
| J_WC_7_3000 | 1000 | 101.4 |
| J_WC_11_1000 | 1000 | 105.0 |
| J_WC_11_2000 | 1000 | 104.9 |
| J_WC_11_3000 | 1000 | 104.7 |
| J_WC_15.5_1000 | 1000 | 100.7 |
| J_WC_15.5_2000 | 1000 | 100.0 |
| J_WC_15.5_3000 | 1000 | 100.0 |
| J_WI_14_1000 | 1000 | 102.9 |
| J_WI_14_2000 | 1000 | 105.2 |
| J_WI_14_3000 | 1000 | 100.0 |
| J_WR_14_1000 | 1000 | 104.3 |
| J_WR_14_2000 | 1000 | 106.5 |
| J_WR_14_3000 | 1000 | 107.5 |
| JH_WC_7_1000 | 1000 | 95.6 |
| JH_WC_7_2000 | 1000 | 97.1 |
| JH_WC_7_3000 | 1000 | 93.0 |
| JH_WC_11_1000 | 1000 | 82.9 |
| JH_WC_15.5_1000 | 1000 | 73.4 |
| JH_WI_14_1000 | 1000 | 73.9 |
| JH_WR_14_1000 | 1000 | 78.2 |
| Test | N | Seaside KRed (%) | Leeside KRed (%) |
|---|---|---|---|
| J_WC_7 vs. JH_WC_7 | 1000 | 1.5 | 9.2 |
| 1000 | −1.4 | 6.0 | |
| 1000 | −2.8 | 6.1 | |
| J_WC_11 vs. JH_WC_11 | 1000 | −9.9 | 14.1 |
| J_WC_15.5 vs. JH_WC_15.5 | 1000 | −5.8 | 29.2 |
| J_WI_14 vs. JH_WI_14 | 1000 | −4.2 | 33.3 |
| J_WR_14 vs. JH_WR_14 | 1000 | −6.1 | 25.2 |
Disclaimer/Publisher’s Note: The statements, opinions and data contained in all publications are solely those of the individual author(s) and contributor(s) and not of MDPI and/or the editor(s). MDPI and/or the editor(s) disclaim responsibility for any injury to people or property resulting from any ideas, methods, instructions or products referred to in the content. |
© 2026 by the authors. Licensee MDPI, Basel, Switzerland. This article is an open access article distributed under the terms and conditions of the Creative Commons Attribution (CC BY) license.
Share and Cite
Chambel, J.; Fazeres-Ferradosa, T.; Alemi, M.; Taveira-Pinto, F.; Lomonaco, P. Damage Characterisation of Scour in Riprap-Protected Jackets and Hybrid Foundations. J. Mar. Sci. Eng. 2026, 14, 114. https://doi.org/10.3390/jmse14020114
Chambel J, Fazeres-Ferradosa T, Alemi M, Taveira-Pinto F, Lomonaco P. Damage Characterisation of Scour in Riprap-Protected Jackets and Hybrid Foundations. Journal of Marine Science and Engineering. 2026; 14(2):114. https://doi.org/10.3390/jmse14020114
Chicago/Turabian StyleChambel, João, Tiago Fazeres-Ferradosa, Mahdi Alemi, Francisco Taveira-Pinto, and Pedro Lomonaco. 2026. "Damage Characterisation of Scour in Riprap-Protected Jackets and Hybrid Foundations" Journal of Marine Science and Engineering 14, no. 2: 114. https://doi.org/10.3390/jmse14020114
APA StyleChambel, J., Fazeres-Ferradosa, T., Alemi, M., Taveira-Pinto, F., & Lomonaco, P. (2026). Damage Characterisation of Scour in Riprap-Protected Jackets and Hybrid Foundations. Journal of Marine Science and Engineering, 14(2), 114. https://doi.org/10.3390/jmse14020114

