Quasi-Static Model Test of Pile-Supported Wharf under Cyclic Lateral Loading
Abstract
1. Introduction
2. Quasi-Static Model Test of the PSW
2.1. Description of Prototype Wharf
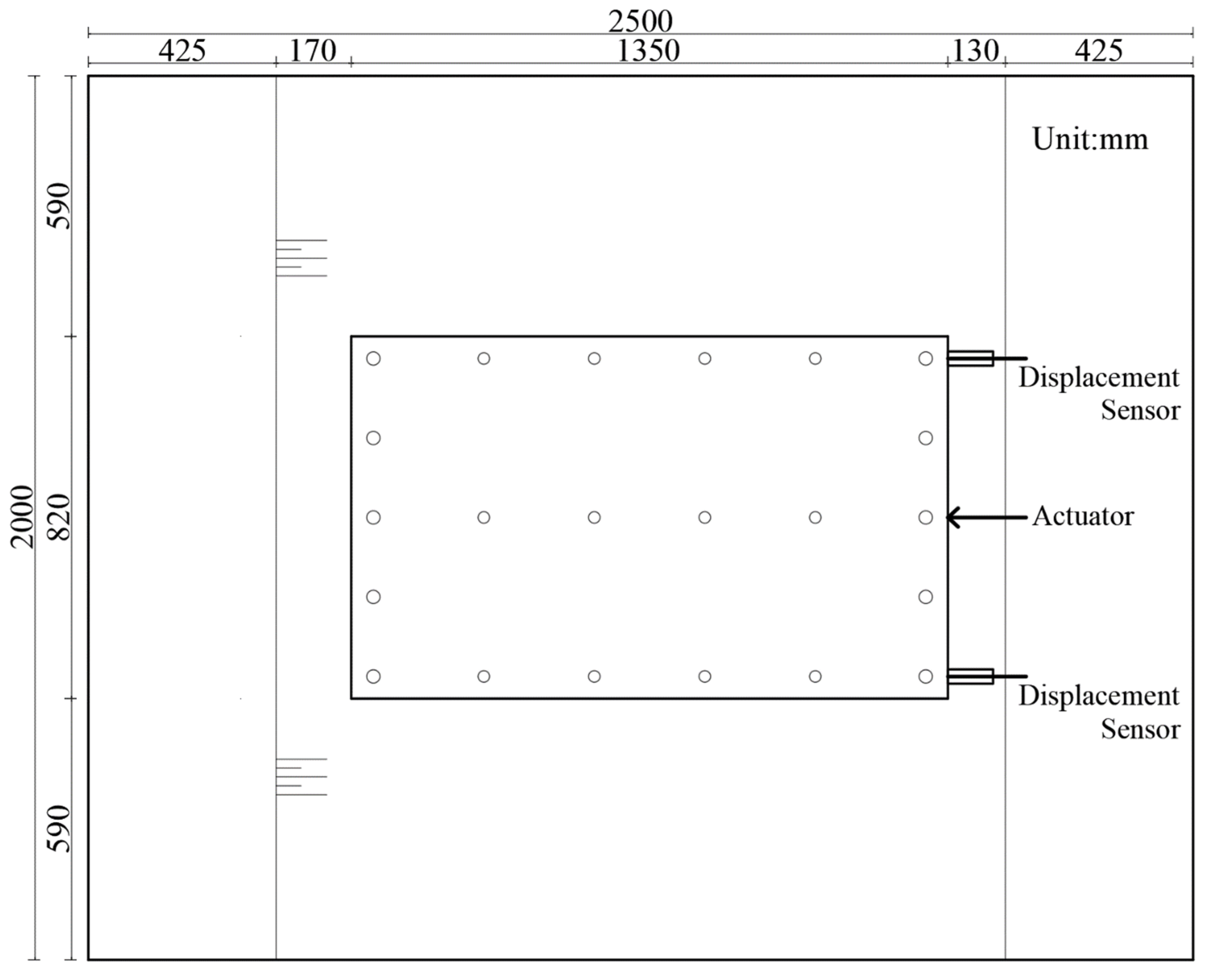
2.2. Design of Model Test
2.3. Test Loading Procedures
3. Test Results and Analysis
3.1. Sand Stratum Failure and Pile Deformation
3.2. Hysteresis Curve and Skeleton Curve
3.3. Pile Bending Moment
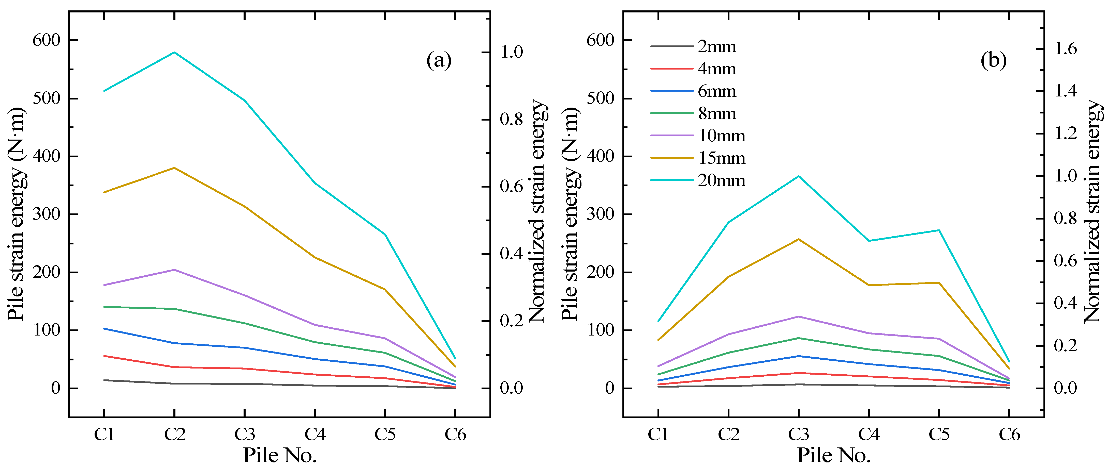
3.4. Pile Strain Energy Distribution Analysis
- (i)
- The loading direction significantly affects the pile strain energy. The strain energy produced by the pile group under upslope direction loading is significantly large, approximately 1.7 times greater than that under downslope direction loading;
- (ii)
- When loading towards the upslope direction, the strain energy of each pile increases sequentially with the pile embedded depth until the soil–pile interaction system enters the nonlinear phase. When loading towards the downslope direction, the piles at the center of the pile group have the largest strain energy percentage and slowly decrease as the loading displacement amplitude increases. At the same time, the strain energy percentage of the neighboring outer piles gradually increases. The strain energy gradually spreads from the center piles to both sides;
- (iii)
- Piles C1 and C3 present the largest strain energy percentage in the upslope and downslope loading directions, respectively. Pile C6 has the lowest strain energy percentage in both loading directions.
4. Conclusions
- (1)
- The failure area of the sand stratum around piles decreases from the landside piles (row 1) to the seaside piles (row 6). Perforation shear cracks can be observed around outside piles. After the test, residual deformation can be presented in the bolts at the top of pile row 1;
- (2)
- The hysteresis curve of the PSW–ground system indicates that the displacement–force relationship is approximately linear. The resistance force of the PSW–ground system decreases with the number of cycles for the same loading level. That indicates that the failure of the peri-pile soil occurs sequentially during the loading process, leading to the decrease in energy-absorbing capacity of the PSW–ground system;
- (3)
- Two peak bending moments on the pile are observed under cyclic lateral loading. The maximum bending moment occurs at the pile top, so the pile–deck connections of the PSW structure should be strengthened during wharf design. The second peak exists in the middle and lower part of the pile. As the loading displacement amplitude increases, the location where the second peak occurs has a downward trend. The bending moments on the piles are obviously different under two loading directions. The bending moments on piles with larger pile embedded depth show significant asymmetry;
- (4)
- The strain energy of the PSW structure under upslope direction loading is approximately 1.7 times larger than that under downslope direction loading. The soil–pile interaction on the sloping ground has a directional nature and is influenced by the pile embedded depth and loading direction;
- (5)
- On the sloping ground, the landside and the center area piles of the PSW have the largest bending moment and strain energy. During the seismic design of the PSW structure, the landside and center area piles should be strengthened for bending resistance.
Author Contributions
Funding
Institutional Review Board Statement
Informed Consent Statement
Data Availability Statement
Acknowledgments
Conflicts of Interest
References
- Akai, K.; Bray, J.D.; Boulanger, R.W.; Christian, J.T. Geotechnical Reconnaissance of the Effects of the January 17, 1995, Hyogoken-Nanbu Earthquake, Japan; Diane Publishing: Darby, PA, USA, 1997. [Google Scholar]
- Tsai, J.; Chung, L.L.; Liu, K.G.Y. Damage and recovery from the 1999 Chichi earthquake in Taiwan. In Progress of Geo-disaster Mitigation Technology in Asia; Springer: Berlin/Heidelberg, Germany, 2013; pp. 171–186. [Google Scholar] [CrossRef]
- Werner, S.; McCullough, N.; Bruin, W.; Augustine, A.; Rix, G.; Crowder, B.; Tomblin, J. Seismic performance of Port de Port-au-Prince during the Haiti earthquake and post-earthquake restoration of cargo throughput. Earthq. Spectra 2011, 27 (Suppl. S1), 387–410. [Google Scholar] [CrossRef]
- Liao, W.I.; Loh, C.H.; Wan, S. Earthquake responses of RC moment frames subjected to near-fault ground motions. Struct. Des. Tall Build. 2001, 103, 219–229. [Google Scholar] [CrossRef]
- Yang, D.; Pan, J.; Li, G. Interstory drift ratio of building structures subjected to near-fault ground motions based on generalized drift spectral analysis. Soil Dyn. Earthq. Eng. 2001, 3011, 1182–1197. [Google Scholar] [CrossRef]
- Vafaei, D.; Eskandari, R. Seismic response of mega buckling-restrained braces subjected to fling-step and forward-directivity near-fault ground motions. Struct. Des. Tall Spec. Build. 2015, 249, 672–686. [Google Scholar] [CrossRef]
- Chen, X.; Liu, Y.; Zhou, B.; Yang, D. Seismic response analysis of intake tower structure under near-fault ground motions with forward-directivity and fling-step effects. Soil Dyn. Earthq. Eng. 2020, 132, 106098. [Google Scholar] [CrossRef]
- Giannakou, A.; Gerolymos, N.; Gazetas, G.; Tazoh, T.; Anastasopoulos, I. Seismic behavior of batter piles: Elastic response. J. Geotech. Geoenviron. Eng. 2010, 1369, 1187–1199. [Google Scholar] [CrossRef]
- Fan, W.; Yuan, W.C. Numerical simulation and analytical modeling of pile-supported structures subjected to ship collisions including soil-structure interaction. Ocean. Eng. 2014, 91, 11–27. [Google Scholar] [CrossRef]
- Muthukkumaran, K.; Arun, K.S. Erratum to: Effect of seabed slope on the pile behaviour of a fixed offshore platform under lateral forces. J. Ocean. Eng. Mar. Energy 2015, 1, 223–236. [Google Scholar] [CrossRef]
- Su, L.; Lu, J.; Elgamal, A.; Arulmoli, A.K. Seismic performance of a pile-supported wharf: Three-dimensional finite element simulation. Soil Dyn. Earthq. Eng. 2017, 95, 167–179. [Google Scholar] [CrossRef]
- Vytiniotis, A.; Panagiotidou, A.I.; Whittle, A.J. Analysis of seismic damage mitigation for a pile-supported wharf structure. Soil Dyn. Earthq. Eng. 2019, 119, 21–35. [Google Scholar] [CrossRef]
- McCullough, N.J.; Dickenson, S.E.; Schlechter, S.M. The seismic performance of piles in waterfront applications. In Ports 2001: America’s Ports: Gateway to the Global Economy; American Society Of Civil Engineers: Reston, VA, USA, 2001; pp. 1–10. [Google Scholar] [CrossRef]
- Restrepo, J.I.; Yin, P.; Jaradat, O.A.; Weismair, M. Performance of new pile-deck connections under earthquakes. In Ports 2007: 30 Years of Sharing Ideas: 1977–2007; American Society Of Civil Engineers: Reston, VA, USA, 2007; pp. 1–10. [Google Scholar] [CrossRef]
- Schlechter, S.M.; Dickenson, S.E.; McCullough, N.J.; Boland, J.C. Influence of batter piles on the dynamic behavior of pile-supported wharf structures. In Ports 2004: Port Development in the Changing World; American Society Of Civil Engineers: Reston, VA, USA, 2004; pp. 1–10. [Google Scholar] [CrossRef]
- Roeder, C.W.; Graff, R.; Soderstrom, J.; Yoo, J.H. Seismic performance of pile-wharf connections. J. Struct. Eng. 2005, 1313, 428–437. [Google Scholar] [CrossRef]
- Takahashi, A.; Takemura, J. Liquefaction-induced large displacement of pile-supported wharf. Soil Dyn. Earthq. Eng. 2005, 2511, 811–825. [Google Scholar] [CrossRef]
- Kawamata, Y. Seismic Performance of a Pile-Supported Container Wharf Structures in Rockfill. Ph.D. Thesis, Oregon State University, Corvallis, OR, USA, 2009. [Google Scholar]
- Bedon, C.; Morassi, A. Dynamic testing and parameter identification of a base-isolated bridge. Eng. Struct. 2014, 60, 85–99. [Google Scholar] [CrossRef]
- Chisari, C.; Bedon, C.; Amadio, C. Dynamic and static identification of base-isolated bridges using Genetic Algorithms. Eng. Struct. 2015, 102, 80–92. [Google Scholar] [CrossRef]
- Jing, L.P.; Wang, G.; Li, J.R.; Sun, Y.L.; Zhou, Z.Y.; Qi, W.H. Shaking table tests and numerical simulations of dynamic interaction of soil-pile-nuclear island system. Chin. J. Geotech. Eng. 2022, 441, 163–172. [Google Scholar] [CrossRef]
- Li, B.; Jing, L.P.; Wang, Y.G.; Tu, J.; Qi, W.H. Experimental study on seismic behavior of nuclear-island pile foundation under cyclic lateral loading. Chin. J. Geotech. Eng. 2023, 45, 2119–2128. [Google Scholar] [CrossRef]
- Park, R.J.T. Seismic Performance of Steel-Encased Concrete Piles. Ph.D. Thesis, University of Canterbury, Christchurch, New Zealand, 1986. [Google Scholar]
- Gerber, T.M. P-y Curves for Liquefied Sand Subject to Cyclic Loading Based on Testing of Full-Scale Deep Foundations. Ph.D. Thesis, Brigham Young University, Provo, UT, USA, 2003. [Google Scholar]















| Parameter | Prototype | Test Model | |
|---|---|---|---|
| Required | Provided | ||
| Pile length (m) | 33 | 1.32 | 1.32 |
| Pile outer diameter (mm) | 1200/18 | 29.62/5 | 30/5 |
| Thickness (mm) | 1000/18 | 25.96/4 | 26/4 |
| Pile material | Q345B steel | A6061 aluminum alloy | A6061 aluminum alloy |
| Mass of deck (t) | 1978.85 | 0.14 | 0.14 |
| Parameter | Dimension | Similarity Ratio |
|---|---|---|
| Geometric dimension L | L | Cl |
| Density ρ | FL−4T2 | Cρ |
| Elastic modulus E | FL−2 | CE |
| Inertia moment I | L4 | CI = Cl4 |
| Mass m | FL−1T2 | Cm = Cρ·Cl3 |
| Crack No. | Length (cm) | Max Width (mm) | Angle (°) | Crack No. | Length (cm) | Max Width (mm) | Angle (°) |
|---|---|---|---|---|---|---|---|
| A1-1 | 33.2 | 6 | 130 | E1-1 | 21.3 | 3 | 5 |
| A1-2 | 15.5 | 5 | 125 | E1-2 | 12.8 | 2 | 340 |
| A1-3 | 13.5 | 4 | 55 | E1-3 | 32.2 | 5 | 305 |
| A2-1 | 28.4 | 5 | 30 | E1-4 | 29.5 | 5 | 235 |
| A2-2 | 38.3 | 3 | 120 | E1-5 | 27.6 | 6 | 235 |
| A2-3 | 42.6 | 6 | 145 | E1-6 | 14.8 | 1 | 235 |
| A2-4 | 12.7 | 3 | 305 | E1-7 | 6.5 | 5 | 230 |
| A3-1 | 5.1 | 3 | 135 | E2-1 | 29.4 | 4 | 220 |
| A6-1 | 7.6 | 2 | 150 | E2-2 | 25.3 | 2 | 210 |
| C1-1 | 33.8 | 4 | 25 | E3-1 | 9.7 | 2 | 235 |
| C6-1 | 11.5 | 2 | 180 | E6-1 | 10.2 | 2 | 250 |
| D1-1 | 13.4 | 3 | 310 |
Disclaimer/Publisher’s Note: The statements, opinions and data contained in all publications are solely those of the individual author(s) and contributor(s) and not of MDPI and/or the editor(s). MDPI and/or the editor(s) disclaim responsibility for any injury to people or property resulting from any ideas, methods, instructions or products referred to in the content. |
© 2024 by the authors. Licensee MDPI, Basel, Switzerland. This article is an open access article distributed under the terms and conditions of the Creative Commons Attribution (CC BY) license (https://creativecommons.org/licenses/by/4.0/).
Share and Cite
Wang, J.; Su, L.; Xie, L.; Ling, X. Quasi-Static Model Test of Pile-Supported Wharf under Cyclic Lateral Loading. J. Mar. Sci. Eng. 2024, 12, 115. https://doi.org/10.3390/jmse12010115
Wang J, Su L, Xie L, Ling X. Quasi-Static Model Test of Pile-Supported Wharf under Cyclic Lateral Loading. Journal of Marine Science and Engineering. 2024; 12(1):115. https://doi.org/10.3390/jmse12010115
Chicago/Turabian StyleWang, Jianfeng, Lei Su, Libo Xie, and Xianzhang Ling. 2024. "Quasi-Static Model Test of Pile-Supported Wharf under Cyclic Lateral Loading" Journal of Marine Science and Engineering 12, no. 1: 115. https://doi.org/10.3390/jmse12010115
APA StyleWang, J., Su, L., Xie, L., & Ling, X. (2024). Quasi-Static Model Test of Pile-Supported Wharf under Cyclic Lateral Loading. Journal of Marine Science and Engineering, 12(1), 115. https://doi.org/10.3390/jmse12010115
