Possible Merits of the Orchestra Pit Covering for Speech Activities in Baroque Theatres
Abstract
1. Introduction
2. Baroque Theatre Stalls for Opera and Drama
2.1. Seats Distribution and Properties
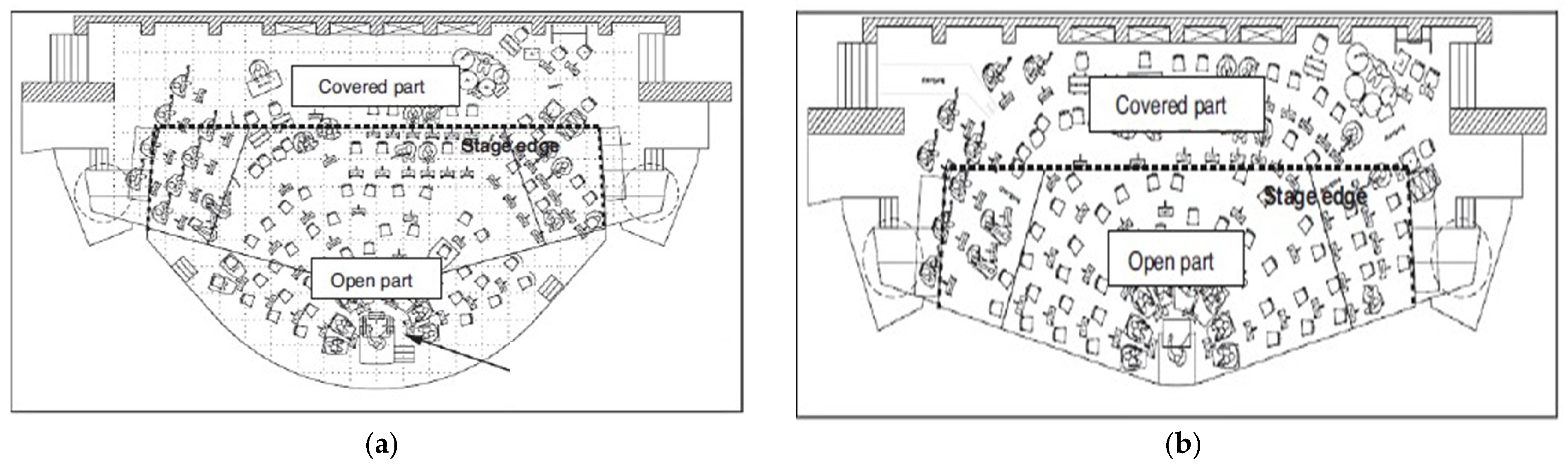
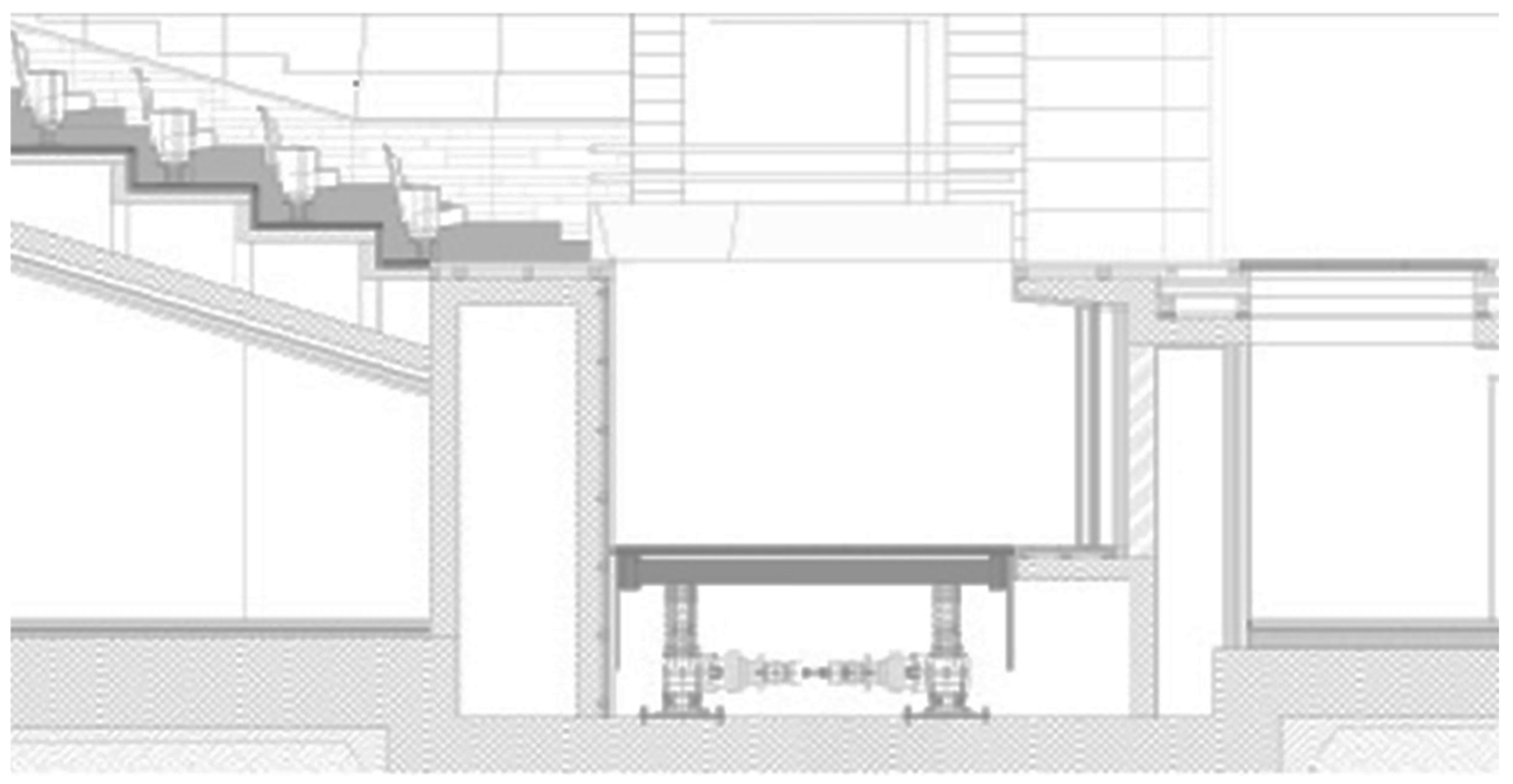
2.2. The Pit Platform
- A small orchestra pit, which accommodates approximately 15–25 musicians depending on instrumentation;
- A medium orchestra pit, which accommodates approximately 30–60 musicians depending on instrumentation;
- A full-large orchestra, a symphony orchestra, with 80–100 musicians or more.
2.3. Main Acoustic Parameter Optimal Range for Drama and Speech Activities
3. The Case Study
3.1. The Analyzed Configurations
3.2. The Acoustic Model
3.3. Acoustic Simulation Results and Comparisons
4. Conclusions
Author Contributions
Funding
Institutional Review Board Statement
Informed Consent Statement
Data Availability Statement
Conflicts of Interest
References
- Barron, M. Auditorium Acoustics and Architectural Design, 2nd ed.; Spon Press: London, UK, 2009. [Google Scholar]
- Carini Motta, F. Trattato Sopra la Struttura de’ Teatri e Scene; 1676—Guastalla; Riedizione del Polifilo: Milano, Italy, 1970. [Google Scholar]
- Bondoni, S.M. Teatri Storici in Emilia-Romagna; Catalogo; Istituto per i Beni Culturali Della Regione Emilia-Romagna: Bologna, Italy, 1982. [Google Scholar]
- Tamburini, E. Il Luogo Teatrale Nella Trattatistica Italiana Dell’800: Dall’utopia Giacobina Alla Prassi Borghese; Bulzoni, Ed.; Bulzoni: Rome, Italy, 1984. [Google Scholar]
- Mazzarella, L.; Cairoli, M. Petrarca Theatre: A case study to identify the acoustic parameters trends and their sensitivity in a horseshoe shape opera house. Appl. Acoust. 2018, 136, 61–75. [Google Scholar] [CrossRef]
- Degl’Innocenti, P. Sviluppo Storico-Tipologico Delle Architetture per lo Spettacolo; Dipartimento di Progettazione: Firenze, Italy, 1995. [Google Scholar]
- Farina, A. Acoustic quality of Theares. Appl. Acoust. 2001, 62, 889–916. [Google Scholar] [CrossRef]
- Long, M. Architectural Acoustics, 2nd ed.; Academic Press: Cambridge, MA, USA, 2014. [Google Scholar]
- Vercammen, M.; Lautenbach, M. Stage and pit acoustics in opera houses. In Proceedings of the ISRA’16, 2016, Eilat, Israel, 26–28 October 2016. [Google Scholar]
- Kimmich, J.M.; Frank, S.; Schlesinger, A.; Ochmann Mund Tschaikner, M. Berechnung des Schallfeldes in der Deutschen Oper Berlin mit Raytracing und der Finiten Elemente Methode. In Proceedings of the Tagungsband der DAGA 2018, München, Germany, 9–22 March 2018. [Google Scholar]
- Schlesinger, A.; Kimmich, J.M.; Ochmann, M.; Frank, S. Messtechnische Untersuchung der Raumakustik der Deutschen Oper Berlin. In Fortschritte der Akustik—DAGA 2018; Fraunhofer: München, Deutschland, 2018. [Google Scholar]
- Sato, S.; Mori, Y.; Ando, Y. On the subjective evaluation of source locations on the stage by listeners. On the subjective evaluation of source locations on the stage by listeners. In Music and Concert Hall Acoustics; Ando, Y., Ed.; Academic Press: Cambridge, MA, USA, 1997. [Google Scholar]
- Tronchin, L.; Merli, F.; Manfren, M. On the acoustics of the Teatro 1763 in Bologna. Appl. Acoust. 2021, 172, 107598. [Google Scholar] [CrossRef]
- Behar, A.; Wong, W.; Kunov, H. Risk of hearing loss in orchestra musicians: Review of the Literature. Med. Probl. Perform. Artist. 2006, 21, 164–168. [Google Scholar] [CrossRef]
- MacDonald, E.N.; Behar, A.; Wong, W.; Kunov, H. Noise exposure of opera musicians. Can. Acoust. 2008, 36, 11–16. [Google Scholar]
- ISO 3382-1: (2009); Acoustics. Measurement of Room Acoustic Parameters. Part 1: Performance Spaces. International Organization for Standardization: Geneva, Switzerland, 2009.
- Pompoli, R. L’acustica dei teatri storici: Un bene culturale. In Proceedings of the Congress Proceedings, Ferrara, Italy, 4 November 1998. [Google Scholar]
- Fausti, P.; Pompoli, R.; Prodi, N. Acoustics of opera houses: A cultural heritage. J. Acoust. Soc. Am. 1999, 105, 929. [Google Scholar] [CrossRef]
- Prodi, N.; Pompoli, R. Guidelines for acoustical measurements inside historical opera houses: Procedures and validation. J. Sound Vib. 2000, 232, 281–301. [Google Scholar] [CrossRef]
- Determinazione dei Requisiti Acustici Passivi Degli Edifici; Decreto del Presidente del Consiglio dei Ministri 5 Dicembre 1997, (D.P.C.M. 05.12.1997) Gazzetta Ufficiale; Ministero della Giustizia, Istituto Poligrafico e Zecca dello Stato (IPZS) Publisher: Roma, Italy, 1997.
- EN ISO 12354; Estimation of Acoustic Performance of Buildings from the Performance of Elements. ISO: Geneva, Switzerland, 2017.
- EN ISO 16283; Acoustics—Field Measurement of Sound Insulation in Buildings and of Building Elements. ISO: Geneva, Switzerland, 2018.
- Gao, J.; Tang, S.K.; Zhao, Y.; Cai, Y.; Pan, L. On the performance of existing acoustic energy models when applied to multi-purpose performance halls. Appl. Acoust. 2020, 167, 107401. [Google Scholar] [CrossRef]
- Surgers, A. Scénographies du Théâtre Occidental; Armand Colin: Paris, France, 2011; pp. 84–85. [Google Scholar]
- Biggi, M.I. Architettura teatrale e spazio scenico nell’Europa del Settecento. In Theatre Spaces for Music in 18th-Century Europe; Yordanova, I., Raggi, G., Biggi, M.I., Eds.; Wien 2020 (Cadernos de Queluz, vol. 3); Hollitzer Verlag: Vienna, Austria, 2020; pp. 1–19. [Google Scholar]
- Barbieri, P. The acoustics of Italian opera houses and auditoriums (ca. 1450–1900). Recercare 1998, 10, 263–328. [Google Scholar]
- Cairoli, M. Acoustical design of the Opera and Ballet Theatre in Astana, Kazakhstan. Appl. Acoust. 2023, 211, 109556. [Google Scholar] [CrossRef]
- Barbieri, P.; Tronchin, L. L’acustica teatrale nel neoclassicismo italiano. Con una ricostruzione virtuale del teatro ideale di Francesco Milizia (1773). In Proceedings of the 22nd International Congress on Sound and Vibration ICSV22, Florence, Italy, 12–16 July 2015. [Google Scholar]
- Ianniello, C. An acoustic catalogue of historical Italian theatres for opera. In Proceedings of the Forum Acusticum, Budapest, Hungary, 29 August–2 September 2005. [Google Scholar]
- Bevilacqua, A.; Amadasi, G.; Iannace, G.; Trematerra, A. Acoustic Simulations Applied to the Garden of Rufolo’s Villa in Ravello: Comparison between Different Scenarios. Appl. Sci. 2024, 14, 1223. [Google Scholar] [CrossRef]
- Samoggia, L. Il teatro di Medicina. Dal Seicento al Novecento. Vicende, personaggi, attività. Medicina 1983. Il Carrobbio Riv. Studi Bolognesi 1978, 4, 395–410. [Google Scholar]
- Cairoli, M.; Iannace, G. A Single Acoustic Quantity Index as Part of an Early-Stage Digitalized Procedure for the Restoration of Baroque Theatres to Be Used as Multipurpose Spaces. Heritage 2024, 7, 6749–6771. [Google Scholar] [CrossRef]
- Archivio Storico Comunale di Castelfranco, Fondo Teatro Accademico; Serie 3 Delibere, Statuto e Regolamenti 1778-1966, Regolamento del Teatro Accademico; Città di Castelfranco Veneto: Treviso, Italy, 1977.
- Cairoli, M. The architectural acoustic design for a multipurpose auditorium: Le Serre Hall in the Villa Erba Convention Center. Appl. Acoust. 2020, 173, 107695. [Google Scholar] [CrossRef]
- Cairoli, M. The architectural acoustic design for a circus: The case study of Rigas Cirks. Appl. Acoust. 2021, 173, 107726. [Google Scholar] [CrossRef]
- Cairoli, M. Identification of a new acoustic sound field trend in modern catholic churches. Appl. Acoust. 2020, 168, 107426. [Google Scholar] [CrossRef]
- Arau, H. Renovating Teatro alla Scala Milano for the 21st century, Part II. J. Acoust. Soc. Am. 2005, 117, 2522. [Google Scholar] [CrossRef]
- Tronchin, L.; Farina, A. Acoustics of the Former Teatro-La Fenice-in Venice. J. Audio Eng. Soc. 1997, 45, 1051–1062. [Google Scholar]
- Facondini, M.; Ponteggia, D. Acoustics of the restored Petruzzelli Theater, Paper 8024. In Proceedings of the 128th AES Convention, London, UK, 22–25 May 2010. [Google Scholar]
- Reinhold, J. Teatro di San Carlo, Naples—Conservation of the excellent acousticsin the oldest active opera house in Europe during restoration and extension. In Proceedings of the 20th ICA Congress, Sydney, Australia, 23–27 August 2010. [Google Scholar]
- Cairoli, M.; Agostinelli, S. Concert Halls as Nearly Adaptive Spaces. Appl. Sci. 2024, 14, 3250. [Google Scholar] [CrossRef]
- ISO 23591:2021; Acoustics—Acoustic Quality Criteria for Music Rehearsal Rooms and Spaces. International Standardization Organization: Geneva, Switzerland, 2021.
- Cairoli, M. Wooden Rehearsal Rooms from the Construction Process to the Musical Performance. Acoustics 2024, 6, 114–133. [Google Scholar] [CrossRef]
- Cairoli, M.; Tagliabue, L.C. Digital Twin for Acoustics and Stage Craft Facility Management in a Multipurpose Hall. Acoustics 2023, 5, 909–927. [Google Scholar] [CrossRef]
- Davies, W.J.; Orlowski, R.J.; Lam, Y.W. Measuring auditorium seat absorption. J. Acoust. Soc. Am. 1994, 96, 879–888. [Google Scholar] [CrossRef]
- Bradley, J.S. The sound absorption of occupied auditorium seating. J. Acoust. Soc. Am. 1996, 99, 990–995. [Google Scholar] [CrossRef]
- Barron, M.; Coleman, S. Measurements of the absorption by auditori-um seating a model study. J. Sound Vib. 2001, 239, 573–587. [Google Scholar] [CrossRef]
- UNI EN ISO 354:2003; Acustica: Misura in Camera Riverberante. ISO: Geneva, Switzerland, 2003.
- Bevilacqua, A.; Sukaj, S.; Ciaburro, G.; Iannace, G.; Lombardi, I.; Trematerra, A. How a quartet of theatres plays under an acoustic perspective: A comparison between horseshoe shaped plans in Campania. Build. Acoust. 2022, 29, 317–329. [Google Scholar] [CrossRef]
- Beranek, L.L. Audience and seat absorption in large halls. J. Acoust. Soc. Am. 1960, 32, 661. [Google Scholar] [CrossRef]
- David, E.M. Architectural Acoustics; J. Ross Publishing: Plantation, FL, USA, 2014. [Google Scholar]
- Beranek, L.L.; Hidaka, T. Sound absorption in concert halls by seats, occupied and unoccupied, and by the hall’s interior surfaces. J. Acoust. Soc. Am. 1998, 104, 3169. [Google Scholar] [CrossRef]
- Harris, C.M. Handbook of Noise Control; McGraw Hill: Columbus, OH, USA, 1997. [Google Scholar]
- Beraneck, L. Concert Hall and Opera Houses; Springer: Berlin/Heidelberg, Germany, 1996. [Google Scholar]
- Izenour George, C. Theater Technology; Yale University Press: New Haven, CT, USA, 1997. [Google Scholar]
- Wenmaekers, R.H.C.; Hak, C.C.J.M.; van Luxemburg, L.C.J. On measurements of stage acoustic parameters—Time interval limits and various source-receiver distances. Acta Acust. United Acust. 2012, 98, 776–789. [Google Scholar] [CrossRef]
- van der Heide, A.H.M.; van Luxemburg, L.C.J.; Hak, C.C.J.M.; Wenmaekers, R.H.C. The Acoustics of Orchestra Pits, a Case Study: Het Muziektheater Amsterdam. Master’s Thesis, Unit BPS, Eindhoven University of Technology, Eindhoven, The Netherlands, 2011. [Google Scholar]
- Ogawa, T. Theatre Engineering and Stage Machinery; Entertainment Technology Press: London, UK, 2001. [Google Scholar]
- Wenmaekers, R.H.C.; Hak, C.C.J.M. Early and Late Support Measured over Various Distances: The Covered versus Open Part of the Orchestra Pit. Build. Acoust. 2013, 20, 313–322. [Google Scholar] [CrossRef]
- Cremer, L.; Muller, H. Principles and Applications of Room Acoustics; Peninsula Pub.: Newport Beach, CA, USA, 2016. [Google Scholar]
- Sessler, G.; West, J. Sound transmission over theatre seats. J. Acoust. Soc. Am. 1964, 36, 1725–1732. [Google Scholar] [CrossRef]
- Schultz, T.; Watters, B. Propagation of sound across audience seating. J. Acoust. Soc. Am. 1964, 36, 885–896. [Google Scholar] [CrossRef]
- Bradley, J. Some further investigations of the seat dip effect. J. Acoust. Soc. Am. 1991, 90, 24–333. [Google Scholar] [CrossRef]
- Tahvanainen, H.; Pätynen, J.; Lokki, T. Analysis of the Seat-Dip Effect in Twelve European Concert Halls. Acta Acust. 2015, 4, 101. [Google Scholar] [CrossRef]
- Siltanen, S.; Lokki, T.; Savioja, L. Geometry Reduction in Room Acoustics Modeling. Acta Acust. 2008, 94, 410–418. [Google Scholar] [CrossRef]
- Sukaj, S.; Ciaburro, G.; Iannace, G.; Lombardi, I.; Trematerra, A. The Acoustics of the Benevento Roman Theatre. Buildings 2021, 11, 212. [Google Scholar] [CrossRef]
- Cairoli, M. Ancient shapes for modern architectural and acoustic design: Large interiors formed by curved surfaces. Appl. Acoust. 2020, 170, 107497. [Google Scholar] [CrossRef]
- Christensen, C.L.; Koutsouris, G.; Gil, J. ODEON Room Acoustics Software, User’s Manual; Odeon A/S: Lyngby, Denmark, 2016. [Google Scholar]
- Hidaka, T.; Nishihara, N.; Beranek, L.L. Relation of acoustical parameters with and without audiences in concert halls and a simple method for simulating the occupied state. J. Acoust. Soc. Am. 2001, 104, 3169. [Google Scholar] [CrossRef]
- Postma, B.N.J.; Katz, B.F.G. Creation and calibration method of acoustical models for historic virtual reality auralizations. J. Virtual Real. Soc. 2015, 19, 161–180. [Google Scholar] [CrossRef]
- Bevilacqua, A.; Iannace, G. From discoveries of 1990s measurements to acoustic simulations of three sceneries carried out inside the San Carlo Theatre of Naples. J. Acoust. Soc. Am. 2023, 154, 66–80. [Google Scholar] [CrossRef]


























| Seat Configuration | Seats Absorption Coefficients | ||||||
|---|---|---|---|---|---|---|---|
| Frequency, Hz | 125 | 250 | 500 | 1000 | 2000 | 4000 | |
| HU | Seats only | 0.70 | 0.76 | 0.81 | 0.84 | 0.84 | 0.81 |
| With people | 0.72 | 0.80 | 0.86 | 0.89 | 0.90 | 0.90 | |
| MU | Seats only | 0.54 | 0.62 | 0.68 | 0.70 | 0.68 | 0.66 |
| With people | 0.62 | 0.72 | 0.80 | 0.83 | 0.84 | 0.85 | |
| LU | Seats only | 0.36 | 0.47 | 0.57 | 0.62 | 0.62 | 0.60 |
| With people | 0.51 | 0.64 | 0.75 | 0.8 | 0.82 | 0.83 | |
| Theatre | Pit Platform Surface [m2] | Theatre Volume [m3] | Seats Capacity |
|---|---|---|---|
| Metropolitan Opera House, New York | 132 | 24,724 | 3900 |
| Academy of music, Philadelphia | 60 | 15,100 | 2827 |
| Teatro Colon Buenos Aires | 63 | 20,570 | 2487 |
| Staatsoper, Vienna | 107 | 10,600 | 1709 |
| Grand theatre, shanghai | 85 | 13,000 | 1676 |
| Glyndebourne Opera House, Sussex | 109 | 7790 | 1243 |
| Opéra Bastille, Paris | 186 | 21,000 | 2700 |
| Festsipelhouse, Baden Baden | 109 | 19,600 | 2300 |
| Semperoper, Dresden | 120 | 12,500 | 1300 |
| Magyar Allami Operahaz, Budapest | 58 | 8900 | 1277 |
| Teatro Alla Sala, Milan | 111 | 11,250 | 2280 |
| Teatro San Carlo, Naples | 108 | 13,700 | 1414 |
| New National Theatre, Tokyo | 102 | 14,500 | 1810 |
| Seats | Hall Volume Range [m3] and Average | Ave. Movable Pit [m2] | Ave. Pit Covered Volume [m3] |
|---|---|---|---|
| 500–800 (small theatre) | 3500–4500 4000 | 45 | 72 |
| 800–1000 (medium theatre) | 5600–7200 6400 | 60 | 96 |
| 1000–1200 (large theatre) | 7000–9000 8000 | 70 | 112 |
| 1200–1500 (large theatre) | 8400–10,800 9600 | 80 | 128 |
| 1500–1800 (Grand opera) | 10,500–13,500 12,000 | 95 | 152 |
| 1800–3000 (Grand opera) | 12,600–16,200 14,400 | 110 | 176 |
| Hall Fixed Seats | Opera House | Pit Platform [m2] | Seats Estimation | Hall Ave. Volume Reduction [%] |
|---|---|---|---|---|
| 500–800 | small theatre | 40 | 60 | 1.8 |
| 800–1000 | medium theatre | 55 | 80 | 1.5 |
| 1000–1200 | large theatre | 65 | 95 | 1.4 |
| 1200–1500 | large theatre | 75 | 105 | 1.3 |
| 1500–1800 | Grand opera | 85 | 110 | 1.2 |
| 1800–3000 | Grand opera | 100 | 130 | 1.2 |
| Configurations | T30 [s] Optimal Range |
|---|---|
| Classical music | 1.8 < T30 < 2.2 |
| Opera | 1.3 < T30 < 1.8 |
| Chamber music | 1.4 < T30 < 1.7 |
| Drama theatre and speeches | 0.7 < T30 < 1.0 |
| Theatre | Seats | Volume [m3] | RT [s] | Vol./Seats | D |
|---|---|---|---|---|---|
| Theatre Royal, Bristol | 638 | 2170 | 0.8 | 3.4 | 0.75 |
| Wyndham’s Theatre, London | 724 | 2490 | 0.7 | 3.4 | 0.72 |
| Royal Shakespeare, Stratford | 1459 | 6310 | 1.0 | 4.3 | 0.71 |
| Arts Theatre, Cambridge | 655 | 1576 | 0.7 | 2.4 | 0.75 |
| Lyttleton Theatre, London | 890 | 4292 | 1.1 | 4.8 | 0.7 |
| Towngate Theatre, Poole | 584 | 2433 | 0.9 | 4.2 | 0.78 |
| Configurations | Optimal Range | |||
|---|---|---|---|---|
| C80 [dB] | D50 | G [dB] | C50 [dB] | |
| Congress and Drama | - | 0.50 < D50 < 0.95 | ≥5 | ≥0 |
| Opera | −2 < C80 < +4 | - | ≥−4 | - |
| Quantity | Optimal Range | ||
|---|---|---|---|
| Subjective Listener Aspect | Acoustic Quantity | Single Number Frequency Averaging [Hz] | Just Noticeable Difference (JND) |
| Subjective level of sound | Strength G [dB] | 500 to 1000 | 1.0 dB |
| Perceived reverberance | Early decay time EDT [s] | 500 to 1000 | Rel. 5% |
| Perceived clarity of sound | Clarity, C80 [dB] | 500 to 1000 | 1.0 dB |
| Definition, D50 | 500 to 1000 | 0.05 | |
| Centre time, TS [ms] | 500 to 1000 | 10 ms | |
| Volume V | 18,200 m3 |
| Number of seats in hall | 1635 |
| Average room height | 26 m |
| Distance from the stage to the most remote listener measured on the centre line | 32 m |
| Open pit dimensions | 107 m2 |
| Absorption Coefficients | ||||||
|---|---|---|---|---|---|---|
| Frequency, Hz | 125 | 250 | 500 | 1000 | 2000 | 4000 |
| Stage floor | 0.15 | 0.11 | 0.09 | 0.07 | 0.05 | 0.04 |
| Fly tower back wall | 0.20 | 0.14 | 0.12 | 0.10 | 0.08 | 0.04 |
| Fly tower lateral walls and ceiling | 0.25 | 0.62 | 0.68 | 0.75 | 0.85 | 0.95 |
| Acoustic shell wood panels | 0.21 | 0.15 | 0.09 | 0.07 | 0.05 | 0.05 |
| House curtains | 0.23 | 0.61 | 0.67 | 0.75 | 0.85 | 0.95 |
| Standard Deviation D50 | ||||||
|---|---|---|---|---|---|---|
| Configuration/Frequency | 125 | 250 | 500 | 1000 | 2000 | 4000 |
| TC1 | 0.13 | 0.15 | 0.17 | 0.19 | 0.2 | 0.2 |
| TC2 | 0.12 | 0.15 | 0.17 | 0.18 | 0.19 | 0.19 |
| FW1 | 0.13 | 0.15 | 0.16 | 0.17 | 0.17 | 0.17 |
| FW2 | 0.13 | 0.15 | 0.16 | 0.17 | 0.17 | 0.17 |
| AC3 | 0.09 | 0.1 | 0.11 | 0.11 | 0.11 | 0.12 |
| AC1 | 0.09 | 0.1 | 0.11 | 0.11 | 0.11 | 0.12 |
| SS1 | 0.09 | 0.1 | 0.13 | 0.15 | 0.17 | 0.18 |
| SS2 | 0.1 | 0.1 | 0.12 | 0.13 | 0.15 | 0.15 |
| Standard Deviation C50 | |||
|---|---|---|---|
| Configuration/Frequency, Hz | 500 | 1000 | 2000 |
| TC1 | 3.4 | 3.7 | 3.9 |
| TC2 | 3.3 | 3.6 | 3.8 |
| FW1 | 3 | 3.2 | 3.2 |
| FW2 | 3.1 | 3.2 | 3.3 |
| AC3 | 2.4 | 2.4 | 2.5 |
| AC1 | 2.5 | 2.5 | 2.5 |
| SS1 | 3.1 | 3.5 | 3.6 |
| SS2 | 3.1 | 3.5 | 3.6 |
| Configuration | STI | St. Dev. |
|---|---|---|
| TC1 | 0.59 | 0.07 |
| TC2 | 0.58 | 0.05 |
| FW1 | 0.55 | 0.06 |
| FW2 | 0.55 | 0.06 |
| AC3 | 0.51 | 0.05 |
| AC1 | 0.51 | 0.05 |
| SS1 | 0.57 | 0.05 |
| SS2 | 0.57 | 0.04 |
Disclaimer/Publisher’s Note: The statements, opinions and data contained in all publications are solely those of the individual author(s) and contributor(s) and not of MDPI and/or the editor(s). MDPI and/or the editor(s) disclaim responsibility for any injury to people or property resulting from any ideas, methods, instructions or products referred to in the content. |
© 2026 by the authors. Licensee MDPI, Basel, Switzerland. This article is an open access article distributed under the terms and conditions of the Creative Commons Attribution (CC BY) license.
Share and Cite
Sukaj, S.; Derme, U.; Iannace, G. Possible Merits of the Orchestra Pit Covering for Speech Activities in Baroque Theatres. Appl. Sci. 2026, 16, 819. https://doi.org/10.3390/app16020819
Sukaj S, Derme U, Iannace G. Possible Merits of the Orchestra Pit Covering for Speech Activities in Baroque Theatres. Applied Sciences. 2026; 16(2):819. https://doi.org/10.3390/app16020819
Chicago/Turabian StyleSukaj, Silvana, Umberto Derme, and Gino Iannace. 2026. "Possible Merits of the Orchestra Pit Covering for Speech Activities in Baroque Theatres" Applied Sciences 16, no. 2: 819. https://doi.org/10.3390/app16020819
APA StyleSukaj, S., Derme, U., & Iannace, G. (2026). Possible Merits of the Orchestra Pit Covering for Speech Activities in Baroque Theatres. Applied Sciences, 16(2), 819. https://doi.org/10.3390/app16020819

