Abstract
Featured Application
Noise simulation and prediction algorithm prioritising ease of use and standard integration to encourage adherence to safety practices.
Abstract
The Malaysian Department of Occupational Safety and Health (DOSH) reported that noise-induced hearing loss (NIHL) accounted for 92% of occupational diseases in 2019. To address this, accurate risk assessment is crucial. The current noise evaluation methods are complex and time-consuming, relying on manual calculations and field measurements. An easy-to-use, open-source noise simulator that directly compares the output with national standards would help mitigate this issue. This research aims to develop an advanced noise evaluation tool to assess and predict unregulated workplace noise, providing tailored safety recommendations. Using a representative plant layout, the Sound Pressure Level (SPL) is calculated using MATLAB’s ray tracing propagation model. The model simulates all possible transmission paths from the source to the receiver to derive the resultant SPL. A noise simulation application featuring a graphical user interface (GUI) built with MATLAB’s App Designer (version: R2024a) automates these computations. The simulation results are validated against the DOSH’s safety standards in Malaysia. Additional safety metrics, such as the recommended maximum exposure time and the required Noise Reduction Rating (NRR) for hearing protection, are calculated based on the SPLs for hazardous locations. The simulation algorithm’s functionality is validated against manual calculations, with an average deviation of just 3.06 dB, demonstrating the model’s precision. This tool can assess and predict indoor noise levels, provide information on optimal exposure limits, and recommend necessary protective measures, ultimately reducing the risk of NIHL in factory environments. It can potentially optimise plant floor operations for existing and new facilities, ensuring safer shift operations and reducing worker noise hazard exposure.
1. Introduction
The Occupational Safety and Health (OSH) standard and adopting proper practices can ensure a safe and conducive work environment []. The other advantages of adopting proper OSH practices are a reduction in the disruption to operating hours and an increase in cost optimisations, employee moral values, and the creation of a positive work culture by lowering the frequency of accidents in the workplace [].
Based on the statistics on occupational poisoning and diseases reported by the Department of Occupational Safety and Health (DOSH) in a report in 2019 [], 92% of these cases were occupational noise-induced hearing disorders. Noise-induced hearing loss is not given enough attention because it is a concealed hazard that affects workers over time. Tahir et al. [] stated that most workers in the manufacturing industry were subjected to high-risk occupational noise, and an efficient solution must be created as a preventive measure [].
The word “noise” originates from the Latin word “nausea” and refers to an unpleasant sound that can negatively impact one’s health or communication []. Bridger [] defines noise as a sound or sounds of sufficient loudness to create irritation or interference with conversation. Many people have been exposed to noise at work, which is the second leading cause of hearing loss, followed by the ageing process []. Manufacturing operations create noise as an unwelcome byproduct of their output [], with manufacturing industries accounting for more than 70% of noise exposure []. For example, noise measurements have recorded levels as high as 95.3 dB during CNC machine operations, exceeding legal exposure limits []. The highest environmental noise level and individual noise intensity were found to occur in sandblasting and grinding positions, with individual noise intensities of 115.5 dB(A) and 108.4 dB(A), respectively [].
Noise exposure is typically assessed in terms of the ears of the employee without considering any protective measures, and prolonged exposure to 85 decibels (dB) is deemed to present excessive danger to a person’s hearing []. The National Institute of Occupational Safety and Health estimates that 14% of employees experience noise levels over the legal limit []. Hearing loss may be transient or irreversible, contingent upon the degree and severity of the exposure. The consequences are typically progressive and may remain unrecognised for several years until damage has transpired and symptoms manifest as a concern for the individual []. Similarly, brief exposure to extremely high noise levels, such as impulsive noise from hammering, explosions, and similar activities, can quickly be detrimental. As a result, it is imperative to mitigate harmful noise exposure to prevent noise-induced hearing loss proactively [].
Traditionally, a noise floor is created through manual measurement and mapping of the environment. This method is only applicable for the stages after workers have been exposed to noise-related risks. As for noise prediction, the methods available are minimal and resource-intensive. Therefore, a simple simulation algorithm would help predict noise levels and mitigate risk. Currently, researchers utilise several noise simulation techniques, but these methods have their limitations. There have been studies conducted using the SCANAM method (Simple Cheap Accurate Noise Assessment Method) [], the Building Information Modelling (BIM) method [], and the 4D acoustic simulation approach []. The SCANAM method provides a cost-effective and precise means of measuring sound exposure; however, it is not suitable for simulation purposes. The BIM method and the 4D acoustic simulation approach are capable of performing simulations and predicting outcomes, but these methods are not readily applicable. Each of the current techniques have common disadvantages, which include the lack of a user-friendly GUI, no customizability for specific scenarios, and an inability to integrate occupational safety and health regulations into the analysis code.
Ray tracing is a method of computing all the direct and reflected paths from a transmitter to a receiver and computing the distance between them using points in the reflections by summing up these values to arrive at the resultant value. Therefore, implementing ray tracing in a sound simulation would make the process much less resource-intensive and more robust. This is due to the geometry-based approach, which calculates the Transmission Loss (TL) pattern in its three components: geometrical [] loss (the space between the sender and recipient), dissipation loss (the atmosphere’s characteristics), and reflection loss (the reflection surfaces) [].
In a ray tracing simulation, acoustic energy is modelled to propagate from the source to the receiver, similarly to the behaviour of light beams or rays. Additionally, specular reflections are considered for all surfaces []. When a ray observes a barrier, a reflected ray is created and tracked until it reaches the receiver. Different forms and orientations can be tested by adjusting the reflecting surfaces until the rays are uniformly dispersed among the audience. The source’s beams are perpendicular to the wavefronts, which are a spherical surface transmitted by the source []. The surface orientation is now allowed for one source site []. The method is repeated for each conceivable source site until the design is complete. Even when performed manually, two-dimensional ray tracing can be a highly effective approach for simulating the acoustics of a small room [].
Currently, the ray tracing method is widely used in simulating mmWave Bands [], ultrasonic array imaging [], and light rays in digital animation []. While the focus has been on other applications, recently, there have been a few new studies on acoustic ray tracing. Lixandru et al. [] investigated acoustic modelling for indoor spaces using the ray tracing method. However, this study was theoretical, and limited research focuses on real-world applications. There are also studies on underwater sound propagation [] and underwater positioning []. Many studies are conducted in 2D, neglecting the floor and ceiling, which significantly impacts the acoustics of small enclosed buildings []. However, the 3D ray tracing method is not common for simulating and assessing factory noise. The application and testing of this method in simulating factory noise floors integrated with ISO standards and safety recommendations are minimal.
Therefore, this study aims to develop a user-friendly noise evaluation tool for factories using the 3D ray tracing method with ISO standards integration and safety recommendations. It focuses on remodelling and developing the ray tracing engine in MATLAB for acoustic applications. It is then verified with manual calculations. The tool is equipped with an intuitive graphical user interface (GUI). This easy-to-use tool would be the first line of defence for those small manufacturing factories to evaluate and predict their noise floors.
2. Materials and Methods
The algorithm framework is divided into three main sections: inputs, processes, and outputs. Figure 1 outlines the proposed algorithm framework for acoustic ray tracing. The algorithm requires inputs, such as the factory’s 3D model, the location of noise sources, their respective Sound Pressure Levels (SPLs), and the receiver’s location. The maximum exposure limits and the Noise Reduction Rating (NRR) variables are established according to the Occupational Safety and Health (Noise Exposure) Regulations 2019 [] from the Department of Safety and Health, Malaysia. The algorithm is initiated by plotting the floor plan, positioning the source and receiver on the floor plan, and executing the ray tracing engine based on the simulation model.
The ray tracing method can be integrated into MATLAB, allowing users to customise it for specific scenarios. However, the ray tracing engine in MATLAB is primarily optimised for radio signal processing rather than noise calculation []. Since the ray tracing engine in MATLAB is not for acoustic purposes, additional computations must be implemented in the code to determine the resultant SPL. Consequently, the data must be converted to be suitable for acoustic purposes. This process involves calculating the distance and identifying the reflecting surfaces for each generated ray. Subsequently, the integration with the Safety and Health Act can be incorporated into the program, creating a comprehensive simulation that identifies issues and provides solutions. Based on the resultant SPL, the program calculates the maximum allowable exposure time and the minimum Noise Reduction Rating (NRR) required for an ear protection device to be adequate over an 8-hour shift.

Figure 1.
Acoustic ray tracing algorithm framework [].
The ray tracing uses the Shooting and Bouncing Rays (SBR) method. The SBR method launches rays from a geodesic sphere centred at the noise source. The geodesic sphere enables the model to launch approximately uniformly spaced rays. Then, the method traces every ray from the source and can model different interactions between the rays and surrounding objects, such as reflections and edge diffractions. When a ray hits a flat surface, the ray reflects based on the law of reflection. When a ray hits an edge, it spawns many diffracted rays based on the law of diffraction. Each diffracted ray has the same angle with the diffracting edge as the incident ray. The diffraction point then becomes a new launching point, and the SBR method traces the diffracted rays in the same way as the rays launched from the source.
The initial phase of this research involves designing the simulation algorithm. This includes planning, designing, and integrating the MATLAB ray tracing method. Subsequently, various variables are tested and selected to ensure the algorithm functions as intended, necessitating multiple simulations. The third phase involves manual testing, where the algorithm’s functionality is compared with a manual calculation approach. Finally, the algorithm is tested and validated by comparing its results with real-world data, and its performance is thoroughly evaluated.
2.1. Design of Simulation
The Sound Pressure Level (SPL) formulas used in the algorithm are initially gathered and compiled. Subsequently, a flowchart of the algorithm is developed, dividing it into pre-processing and post-processing sections. Finally, a graphical user interface (GUI) and additional features are designed to enhance the algorithm’s usability.
2.1.1. The Formulas for Calculating SPL
Noise hazards can be measured, calculated, and interpreted using sound pressure formulas. Using these formulas and calculations, the algorithm can estimate the resulting noise levels or predict the outcome of any modifications []. Pressure is a fundamental element in acoustics, with its general formulation presented in Equation (1). The human ear can detect a wide range of sound pressures, with the threshold of hearing at 0.0002 Pa and 200 Pa being considered a loud sound [].
The dB scale used to quantify sound is log-based and can be calculated according to Equation (2). It starts at zero when sound pressure equals the threshold of human hearing [].
Reference energy is the threshold of human hearing. Acoustic energy cannot be readily measured, but it is proportional to the square of the sound pressure. represents the sound pressure in Pascal (Pa), and represents the reference sound pressure at the threshold of human hearing, which is the Root-Mean-Square (RMS) sound pressure of 0.00002 Pa [].
SPL over distance is calculated using the inverse square method. In terms of the propagation and attenuation of sound, the inverse square law is a principle in physics, whereby a point source emits a sound wave uniformly in all directions (essentially spherically), where the intensity of the sound wave energy at any given point away from the source is diminished as a function of the total surface area of the sphere coincident with that point. This method can be simplified into Equation (3). is the difference in SPL in dB, while and are the distance of the resultant SPL from the source in meters, as shown in Equation (4).
Therefore, the resultant Sound Pressure Level () over a certain distance () in meters from the SPL at the source () can be calculated using Equation (5) [].
Since SPLs are based on a log scale, they cannot be added directly. They must be converted back to pressure (Pa), added together, and converted back to log scale (dB), as shown in Equation (6) [].
where the SPLT is the total SPL and the SPLi is the ith SPL to be summed. The resultant of two sound sources with an equal value will always result in a 3 dB increase. Loud sounds are dangerous only when exposed to a person for a specific amount of time. This is known as the daily noise exposure limit. DOSH, Malaysia, has set allowable SPL for an 8-hour shift, and a 3 dB change will half or double the time. Therefore, the daily noise exposure limit is calculated using Equation (7) [].
If a person is exposed to different sources for a different amount of time, the exposure limit is calculated using the percentage of noise dose formula, as shown in Equation (8) [].
where C is the exposure time, and T is the time allowed to be exposed at each dB level. To combat high sound exposure levels, ear protection devices such as earplugs and earmuffs are used. These have their Noise Reduction Rating (NRR) based on the situation, the NRR rating on earplugs must be used in conjunction with its specific equations to calculate its effectiveness in reducing the risk. The estimated exposure calculation based on Noise Reduction Rating (NRR) is given below in Equation (9) [].
For single protection (only earmuffs or earplugs are used), use the following formula shown in Equation (10) [] to obtain the actual Noise Reduction Rating, which can be used minus the average SPL across 8 h shifts, .
For dual protection (earmuffs and plugs are used simultaneously), use the following formula in Equation (11) []. Compared to single protection, dual protection is estimated to add 5 dB to the overall protection.
2.1.2. Simulation Flowchart
The methodology for evaluating indoor noise levels through ray tracing is outlined in Figure 2. The initial step involves selecting an appropriate platform that supports distinct front-end and back-end functionalities to ensure a streamlined process. An ideal platform should be cost-effective, widely used, and accessible, with an extensive user base. A representative test floor plan is created, detailing the placement of sound sources and receivers. Before coding in MATLAB, the test layout is designed in SolidWorks and exported as a Stereolithography (.stl) file for MATLAB compatibility. The floor plan dimensions mimic an average factory setting, with noise-emitting machines strategically placed, each having specific sound output levels. Receiver locations are mapped using a Cartesian coordinate system, providing input data for the simulation.

Figure 2.
Overall process of noise assessment and safety recommendations.
Following the setup, the simulation model is configured. Key inputs include the floor plan, the Cartesian coordinates of both receivers and sound sources, and each source’s Sound Pressure Level (SPL). Once inputs are defined, the ray tracing algorithm is executed, incorporating parameters such as the transmission and receiver sites, the propagation model, and the layout. The results are visually represented to display simulated sound propagation paths upon completion. The final step is analysing the simulation output, specifically the SPL at each receiver. Additional commands allow for extracting relevant data, including overall signal strength and path loss, facilitating comprehensive noise evaluation.
2.1.3. Pre-Processing Section
Before initiating the coding process, all necessary formulas are encapsulated as distinct functions, simplifying and clarifying subsequent coding steps. The backend code begins with plotting of sound sources (transmitters) and receiver points onto the floor plan. Following this, the propagation model is configured, enabling the execution of the ray tracing algorithm. Each generated ray is calculated individually, accounting for distance travelled and interactions with reflective surfaces. Subsequently, the SPL for each ray is computed, and these values are integrated to yield a cumulative SPL at the receiver location.
Before practical implementation, it is essential to validate the simulation’s assumptions and integrity. This validation process includes comparative analyses involving multiple simulation runs, theoretical formulas, and external data sources, including real-world measurements. This step is critical for assessing the reliability of the simulation outputs for real-world applications. Initially, simulation variables are rigorously tested, followed by comparing simulation results against manual calculations to confirm accuracy and applicability.
The MATLAB ray tracing engine generates all possible ray paths between the transmitter and receiver, incorporating reflections from surfaces and applying the inverse square law to determine the resultant Sound Pressure Level (SPL). A sound source and receiver are positioned within the same floor plan for initial testing, with a fixed separation of 20 m. All parameters are set as previously specified, except for the maximum number of reflections. The reflection count is initially set to zero to facilitate direct comparison, allowing only a single direct ray path for the verification stage. Once the direct transmission is validated, reflections are incrementally introduced, and the results are compared to manual calculations to ensure consistency and accuracy in the model.
The number of reflections significantly impacts the resultant SPL. Reflections continue indefinitely until the sound energy dissipates; however, after a certain number of reflections, the energy becomes too minimal to affect the outcome meaningfully. Increasing the reflection count also demands more computational power, which can slow down processing. Therefore, identifying an optimal reflection count, where additional reflections produce negligible changes in SPL, is essential. This is achieved by conducting simulations with fixed variables, incrementally increasing the reflection count from zero until further increases have an insignificant effect. For this analysis, two sound sources and one receiver are used, with results tabulated and graphed to illustrate the influence of reflections on SPL.
Surface material properties are also integral to the simulation, with material types specified as ‘plasterboard’, ‘perfect reflector’, ‘ceiling board’, ‘chipboard’, ‘floorboard’, ‘concrete’, ‘brick’, ‘wood’, ‘glass’, ‘metal’, ‘water’, ‘vegetation’, ‘loam’, or ‘custom’. The material type affects reflection loss calculations where rays intersect surfaces. When set to ‘custom’, properties like permittivity and conductivity are defined in the ‘Surface Material Permittivity’ and ‘Surface Material Conductivity’ fields. Materials such as water, vegetation, and loam are excluded, as they are beyond the scope of this industrial setting. Table 1 provides an overview of all materials included in the simulation, alongside their respective properties.

Table 1.
Materials with their respective properties.
A controlled test is conducted to evaluate the impact of varying surface materials on the resultant Sound Pressure Level (SPL). In this experiment, all variables are held constant, with the sole exception being the surface material. This approach systematically compares SPL outcomes, providing insights into how different materials influence sound propagation. The test involves using two sound sources positioned with a single receiver within the designated floor plan, enabling a thorough assessment of the material effects on the SPL. The results are analysed side by side to elucidate the relationship between surface material properties and sound levels in the simulated environment.
2.1.4. Post-Processing Section
Further user interface development and coding efforts were undertaken to incorporate safety recommendations into the simulation tool. This enhancement results in a user-friendly interface to assist users in understanding noise levels and implementing appropriate remedies based on the resultant Sound Pressure Level (SPL). The post-simulation algorithm and graphical user interface (GUI) workflow commence with the resultant SPL calculation. The simulation code is executed for the initial sound source, and the resulting SPL is stored as a global variable. After introducing additional sound sources, the global SPL value is updated by integrating the current simulation results using established sound propagation formulas. This operation is conducted within a dedicated function to streamline the process.
The maximum allowable exposure time in the assessed area is calculated as part of the safety recommendations, enabling users to plan work shifts effectively. This integration eliminates the need for users to perform additional calculations or predictions, simplifying their workflow. The formula employed has been modified to enhance clarity and usability. In scenarios where the receiver must remain in a fixed location for the duration of the shift, the algorithm also provides solutions to mitigate potential risks. While the standard recommendation is to use ear protection, it is critical to recognise that ear protection devices have varying Noise Reduction Ratings (NRRs). Utilising a lower-rated device may not adequately mitigate risk to safe levels. Consequently, this algorithm also calculates the minimum NRR required for an 8 h exposure period, ensuring that users are equipped with the necessary information to protect their hearing effectively.
2.1.5. Graphical User Interphase (GUI)
A graphical user interface (GUI) was developed to enhance the usability of the simulation tool. This interface integrates pre-processing and post-processing code into a user-friendly platform. This interface simplifies the simulation process, making it more accessible for users. Before the GUI construction, a preliminary layout design was created to delineate input and output components, serving as a reference for the final design.
The input section includes components for file import, receiver location specification, and sound source configuration. The output section provides safety recommendations, the resultant Sound Pressure Level (SPL), and a clear indication of whether the SPL exceeds established safety limits.
The GUI is organised into five sections, as illustrated in Figure 3: floor plan, receiver, sound source, safety recommendations, and output. The floor plan section features a button for users to upload the factory layout intended for evaluation. The GUI Section 2 allows for the definition of the receiver’s location within the layout. The GUI Section 3 is dedicated to inputting the sound sources, where users can specify the location and SPL of each source. GUI Section 4 presents safety recommendations if the resultant SPL surpasses the allowable limits, while GUI Section 5 displays all pertinent output data, ensuring users can easily interpret the simulation results.

Figure 3.
Sections in the graphical user interface (1—file upload, 2—receiver information, 3—source information, 4—safety recommendations, and 5—resultant SPL).
With the GUI design completed, the final step involves integrating the pre-processing and post-processing components with the interface to create a fully functional application. The resultant Sound Pressure Level (SPL) is displayed on the GUI using a gauge, giving users a visual representation of the noise levels. This resultant SPL is then utilised in calculations for the maximum allowable exposure time and the minimum Noise Reduction Rating (NRR) for ear protection, with these values also presented on the GUI. A reset button was also implemented to restore all values to their initial settings, allowing users to restart the simulation process seamlessly. Figure 4 illustrates a scenario where the resultant SPL exceeds the permissible limit.

Figure 4.
GUI simulates safety recommendations when the resultant SPL is above the limits.
In the yellow section of Figure 4, safety recommendations are automatically generated based on the resultant SPL, which is compared against Malaysian safety standards. The application provides suggestions for managing noise exposure, including calculating the maximum allowable exposure time and the minimum NRR required for ear protection over an 8-hour work shift. The maximum exposure time indicates a worker’s duration in a specific location during a single workday, emphasising the need to consider other daily noise exposures. Conversely, the minimum NRR rating indicates the least adequate ear protection a worker must utilise to mitigate risk while working in that location for an 8-hour shift. This integration of safety features enhances the application’s functionality, promoting a safer working environment.
2.2. Virtual Verification
Once all variables have been determined, the algorithm is prepared for testing and validation against external data. The initial comparison utilises virtual data derived from manual calculations. A consistent scenario is constructed in the simulation algorithm and the manual calculations to ensure a precise comparison. Initially, reflections are disregarded in the manual calculations, and the reflection count is set to zero in the algorithm to establish a baseline for comparison. The differences in outcomes between the analysed methods are subsequently examined and discussed in detail. Then, it is simulated with reflection to see the difference.
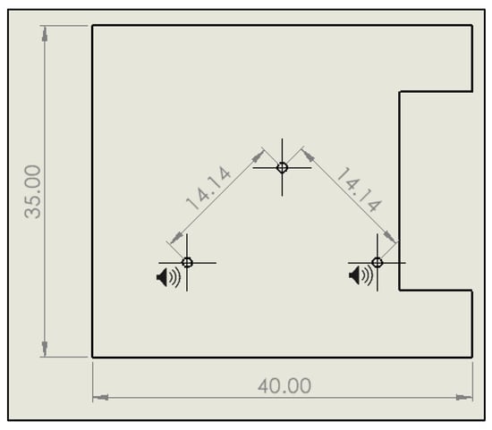
The testing scenario employs two sound sources positioned alongside a receiver within the designated floor plan, as illustrated in Figure 5. This configuration facilitates a comprehensive evaluation of the algorithm’s performance of established methods, allowing for an assessment of its accuracy and reliability in predicting sound levels within a controlled environment.

Figure 5.
Test floor plan with sources and receiver in meters.
2.2.1. Simulation for Virtual Verification
To utilise the simulation algorithm, the user begins by specifying the floor plan and the receiver’s location within the graphical user interface (GUI). Subsequently, sound sources are added one at a time. The algorithm executes the ray tracing program for each sound source and compiles the results thereafter. This process generates a ray diagram for each source, yielding the final resultant Sound Pressure Level (SPL).
2.2.2. Manual Calculation
For verification purposes, the resultant Sound Pressure Level (SPL) at the receiver’s location can also be calculated using established formulas through manual computations. However, it is essential to note that this method does not account for the contributions of reflected rays, which may lead to an incomplete assessment of the SPL.
The verification process begins with sketching the floor plan, including the positions of the receiver and sound sources, to accurately determine the distances between them. The essential variables for the manual calculations include the SPL of each sound source and the calculated distances. As illustrated in Figure 5, the distances can be obtained from the CAD modelling software (SOLIDWORKS 2023) based on the floor plan layout. The calculations are then performed using Formula (31) to derive the resultant SPL at the receiver.
2.3. Real-World Verification
A field study was conducted at a local factory, specifically a Furniture Painting and Assembly factory in Klang, Malaysia. The Sound Pressure Levels (SPLs) around the factory and near the various sound sources were recorded. The positioning of workers within the factory environment was also considered during the data collection process.
Subsequently, the same test site was replicated virtually and analysed using the MATLAB algorithm. The results obtained from the field measurements and the algorithmic simulations were compared to assess discrepancies between the real-world data and the algorithm’s output. This comparison provides valuable insights into the accuracy and reliability of the simulation algorithm in predicting sound levels in industrial settings.
2.3.1. Simulation for Real-World Verification
The algorithm can simulate the factory environment and analyse its output by utilising the floor plan of the selected factory, the locations of the sound sources, and their respective Sound Pressure Levels (SPLs). Since there is no designated receiver position within the factory, the simulation is conducted with the receiver placed at the centre of each grid across the layout.
The algorithm is executed 22 times, corresponding to each receiver location, with the designated sound sources. The resultant data from these simulations are meticulously recorded in accordance with the building’s floor plan. This comprehensive approach allows for a thorough comparison of the simulated outputs across various receiver positions, providing insights into the acoustic characteristics of the factory environment.
2.3.2. Real-World Data
During the site visit, two primary types of Sound Pressure Levels (SPLs) were measured: the ambient SPL throughout the factory and the SPL generated by specific sound sources. These measurements were recorded and plotted onto a sound level map to provide a comprehensive overview of the factory’s noise environment.
The factory layout was systematically reviewed and divided into a coordinate grid. Readings were taken at each designated point, with each measurement involving holding the measuring device at the location for a duration of 30 s. The measuring device employed for this assessment was the NIOSH Sound Level Meter (SLM) application, utilised with an i436 external microphone, a calibrated measurement microphone adhering to the IEC 61672 [] Class 2 sound level meter standard. The microphone was positioned around the tester’s head and angled directly at the noise source at 30 to 45 degrees to ensure accurate readings.
Figure 6a–c illustrate the factory’s floor plan with noise sources, the grid layout for data collection, and the 3D model of the factory floor plan used in the simulation. Additionally, the percentage of noise dosage was calculated by timing the average operational and non-operational periods of machinery within a 5-min window. These data were subsequently used to average the noise levels for the simulation, enhancing the model’s accuracy.

Figure 6.
(a) Floor plan of the factory (Furniture Painting and Assembly factory in Klang Malaysia) with pictures (A1/A2—Painting booth, B1/B2—Sanding booth, C1—Assembly booth); (b) drawing of floor plan divided into grids; (c) 3D model of the floor plan’s outline.
3. Results
Section 3 is organised into three primary segments. First, the algorithm setup is verified by adjusting the input variables and comparing the resulting outputs. This process ensures the algorithm operates as intended and accurately reflects the changes in the parameters.
Second, the algorithm’s performance is evaluated against data from manual calculations. This comparison aims to assess the accuracy and reliability of the algorithm in simulating sound levels under controlled conditions. Finally, the results from the algorithm are compared with real-world data collected from the factory site. This comprehensive analysis discusses any discrepancies observed, providing insights into the algorithm’s effectiveness in predicting acoustic environments and its potential implications for noise assessment in industrial settings.
3.1. Verification of Algorithm Set-Up
The algorithm setup encompasses several key parameters, including the maximum number of reflections and the types of reflective surfaces. These parameters are systematically verified to ensure the functionality and reliability of the algorithm. By testing various configurations and observing the corresponding outputs, the settings that enhance the accuracy of the noise simulations are optimised, thereby confirming the algorithm’s robustness in predicting sound propagation within the defined environment. The noise outside the building is not considered here and is assumed to be an enclosed space.
- (A)
- Max number of reflections
As outlined in the Section 2, the number of reflections was incrementally increased from zero to assess the impact on the resultant Sound Pressure Level (SPL). Figure 7 illustrates the ray diagrams corresponding to each number of reflections utilised in this verification process. Figure 8 presents a line graph depicting the collected data, which indicates that the results stabilise at two reflections. The testing revealed that the resultant SPL remains consistent across three iterations, from two to four maximum reflections. Consequently, it can be concluded that any additional reflections beyond four contribute negligibly to the results. Therefore, the maximum number of reflections is established at four for subsequent simulations.

Figure 7.
Three-dimensional version of ray diagram of the simulation when reflection is changed from 0, 1, 2, 3 and 4.

Figure 8.
Resultant SPL vs. max number of reflections graph.
Figure 7 further visualises the ray diagrams for each number of reflections, while Figure 8 illustrates the relationship between the resultant SPL and the number of reflections.
- (B)
- Reflection surface
The simulation was conducted using various surface types in MATLAB to evaluate their effects on the resultant Sound Pressure Levels (SPLs). Figure 9 presents a bar graph comparing SPL 1, SPL 2, and the resultant SPL obtained from the verification phase for each material used. The results demonstrate slight variations in SPL based on the sound absorption coefficients of the materials. The materials utilised for the floors, ceilings, and walls can be adjusted accordingly within the algorithm. Furthermore, should additional sound-absorbing materials be implemented in the factory, the algorithm can be modified to incorporate these materials, enhancing its adaptability.

Figure 9.
Resultant SPLs vs. surface materials.
In conclusion, the type of surface material significantly influences sound absorption properties. Therefore, factories can effectively reduce noise levels by optimising material choices, contributing to a safer work environment. The algorithm’s capacity to predict noise levels in the presence of sound-absorbing materials allows for proactive noise management strategies within industrial settings.
3.2. Verification of Proposed Algorithms with Virtual Data
Using the simulation algorithm, the initial step involves specifying the floor plan and the receiver’s location within the graphical user interface (GUI). Subsequently, sound sources are added sequentially. The algorithm executes the ray tracing program for each sound source, generating a corresponding ray diagram. Upon adding the first sound source, the resultant Sound Pressure Level (SPL) measured was 36.0 dB, which aligns with the SPL of the sound source, given that it is the only source present.
The second sound source is then incorporated, prompting the ray tracing engine to run again and produce the ray diagram for this additional source, which has an SPL of 26 dB. Combining both sound sources at the receiver’s location, the resultant SPL is calculated to be 36.41 dB. This is the same with the manually calculated SPL. Figure 10 illustrates the three-dimensional ray diagram generated during the simulation verification process.

Figure 10.
Three-dimensional version of ray diagram during simulation verification (with reflection).
With the distance and SPL established, a manual calculation using the appropriate formula yields a resultant SPL of 36.41 dB. The simulations with and without reflections were 36.41 and 38.1, respectively. The collected data are systematically tabulated in Table 2, and a comparison of the results is presented in Table 3.

Table 2.
Manually calculated SPLs.

Table 3.
Comparison between the algorithm and manual calculation.
The analysis indicates a difference of 1.69 dB between the simulation with and without reflection, highlighting the importance of a 3D simulation compared to a 2D approach.
3.3. Verification of Proposed Algorithms with Real-World Data
The measurements obtained throughout the factory are tabulated and represented in a sound-level map, as illustrated in Figure 11. Notably, the sound levels are significantly higher in the lower section of the factory compared to other areas, attributable to the facility operating at only 50% of its capacity, with only one production line. Subsequently, the positions of the sound sources are identified, and their respective Sound Pressure Levels (SPLs) are measured. These locations are documented based on estimated distances from the nearest walls to facilitate accurate plotting on the floor plan. The sound sources are associated with specific workstations, which collectively encompass a substantial area; consequently, the SPL is recorded at the midpoint of each workstation area. Measurements are conducted at a height of 2 m from the ground to ensure consistency. The locations and SPLs of the sound sources are summarised in Table 4.

Figure 11.
Recorded SPLs from collected real-world data in dB.

Table 4.
Sound sources at the site with their SPLs and location (Cartesian coordinate).
The scenario is simulated using the developed algorithm by utilising the source data presented in Table 4 and the factory’s floor plan. The resulting simulated Sound Pressure Levels (SPLs) are plotted on a grid and represented on a sound level map, as illustrated in Figure 12. Given that only one side of the factory was operational during measurements, this is depicted in the sound level map. A comparative analysis of both datasets focuses on the differences in dB values and the percentage differences. Figure 13 presents a line graph illustrating a comparison between the SPLs measured on site and those obtained from the simulation. The graph demonstrates that the simulation closely follows the trend of the real-world data, validating the algorithm’s functionality.

Figure 12.
Simulated SPLs plotted on a grid and heatmap in dB.

Figure 13.
Comparison between SPLs from site and simulation.
The average difference between the simulated and measured SPLs is noted to be 3.06 dB, with the simulation indicating higher values than those recorded in the field. This discrepancy is attributed to the lack of consideration for environmental openings, such as windows and doors, in the simulation model. To enhance accuracy, future model iterations should incorporate a more detailed floor plan that includes the specific locations of machines and openings in the environment.
4. Conclusions
This research presents a comprehensive model for determining noise levels for evaluation in manufacturing environments. The proposed framework employs the ray tracing method and integrates a user interface application developed in MATLAB, which has been validated against real-world data. The configuration of noise levels and their spatial distribution is directly associated with identified noise sources, as outlined in the factory floor plans. Additionally, the user interface facilitates the display of predicted safety recommendations, enabling effective guidance for workers regarding exposure to varying noise levels. This approach not only enhances the understanding of noise dynamics within manufacturing settings but also serves as a crucial tool for promoting occupational safety.
The simulation algorithm yields significant insights regarding noise levels within the factory floor plan, identifying both hazardous zones and areas deemed safe for worker occupancy. However, an average discrepancy of 3.06 dB was observed compared to actual measurements, attributed to the irregularities of noise sources and limitations in dosage estimation. To enhance the accuracy of this model, it is recommended to conduct longer-duration recordings of noise levels. The simulated values represent a worst-case scenario, presuming that all machinery operates at full capacity (100%), an occurrence that is unlikely but plausible. The fidelity of the simulation is further demonstrated by the alignment of data trends with real-world measurements, as illustrated in the line graph.
Notably, the MATLAB ray tracing engine has not been previously utilised by researchers for noise analysis in industrial settings. This is largely due to the engine’s initial design focus on higher-frequency waves. However, by extracting individual rays and applying Sound Pressure Level (SPL) formulas to them, the engine was effectively adapted for sound wave analysis. This enhancement broadens the versatility of the ray tracing engine, enabling its application in various scenarios, including noise simulation and predictive modelling.
Moreover, applying this method to forecast future noise levels following changes to the factory layout would be advantageous. This capability would allow the factory to maintain compliance with allowable noise limits, thereby reducing hazard exposure and potentially decreasing the incidence of noise-induced hearing loss among workers. By enabling noise prediction, factories can optimize their floor plans and strategically plan for the integration of additional machinery within existing operations. Users would be able to visualise predicted noise levels, facilitating informed decision making regarding layout adjustments. However, a primary limitation of the proposed model lies in estimating machinery dosage, which can vary significantly from factory to factory. The accurate assessment of this dosage requires a detailed recording of machinery usage over time, highlighting the need for comprehensive data collection to enhance model precision.
Author Contributions
Conceptualization, P.K., M.S.A.K. and S.N.M.; methodology, P.K. and M.S.A.K.; software, P.K.; validation, M.S.A.K. and S.N.M.; formal analysis, P.K.; investigation, P.K.; resources, M.S.A.K. and S.N.M.; data curation, P.K.; writing—original draft preparation, P.K.; writing—review and editing, M.S.A.K. and S.N.M.; visualization, P.K.; supervision, M.S.A.K. and S.N.M.; project administration, M.S.A.K.; funding acquisition, M.S.A.K. All authors have read and agreed to the published version of the manuscript.
Funding
This research was funded by the MINISTRY OF HIGHER EDUCATION, MALAYSIA, under the Fundamental Research Grant Scheme (FRGS) under grant number FP051-2019A.
Institutional Review Board Statement
Not applicable.
Informed Consent Statement
Not applicable.
Data Availability Statement
Data are contained within the article.
Acknowledgments
I would like to express my gratitude to everyone from the Advanced Material and Manufacturing Processes (AMMP) Centre, University Malaya, as their help supported me greatly in completing my research.
Conflicts of Interest
The authors declare no conflicts of interest.
References
- Mete, S. Assessing occupational risks in pipeline construction using FMEA-based AHP-MOORA integrated approach under Pythagorean fuzzy environment. Hum. Ecol. Risk Assess. Int. J. 2019, 25, 1645–1660. [Google Scholar] [CrossRef]
- Randhawa, J.S.; Ahuja, I.S. An investigation into manufacturing performance achievements accrued by Indian manufacturing organization through strategic 5S practices. Int. J. Product. Perform. Manag. 2018, 67, 754–787. [Google Scholar] [CrossRef]
- DOSH. Occupational Accidents Statistics by State (Investigated). Available online: https://www.dosh.gov.my/index.php/factory-machinery/statistics/occupational-diseases-and-poisoning-statistic/3869-2019/file (accessed on 25 July 2023).
- Tahir, N.; Aljunid, S.M.; Hashim, J.H. Occupational noise exposure in manufacturing industries in Malaysia. BMC Public Health 2014, 14, O17. [Google Scholar] [CrossRef]
- Laad, D. The study of the effect of constant frequency sound with varying intensity levels on Blood pressure and Heart rate of healthy individuals. Ann. Fac. Eng. Hunedoara Int. J. Eng. 2011, 9, 107–109. [Google Scholar]
- Bridger, R. Introduction to Ergonomics; CRC Press: Boca Raton, FL, USA, 2008. [Google Scholar] [CrossRef]
- Rabinowitz, P.M. Noise-induced hearing loss. Am. Fam. Physician 2000, 61, 2749–2756, 2759–2760. [Google Scholar] [PubMed]
- Olayinka, O.S.; Abdullahi, S.A. An overview of industrial employees’ exposure to noise in sundry processing and manufacturing industries in Ilorin metropolis, Nigeria. Ind. Health 2009, 47, 123–133. [Google Scholar] [CrossRef] [PubMed]
- Reilly, M.J.; Rosenman, K.D.; Kalinowski, D.J. Occupational noise-induced hearing loss surveillance in Michigan. J. Occup. Environ. Med. 1998, 40, 667–674. [Google Scholar] [CrossRef] [PubMed]
- Özdemir, M.; Albayrak, S. Occupational Safety and Hidden Risks in a Furniture Factory: A Comprehensive Assessment of Hazards Related to Noise, Lighting, Thermal Comfort, and Dust Exposure. BioResources 2024, 19, 13. [Google Scholar] [CrossRef]
- Zhang, C.C.; Wang, J.F.; Wang, H.; Zhang, H.D. Surveillance of noise exposure level in industrial enterprises-Jiangsu Province, China, 2022. Front. Public Health 2024, 12, 8. [Google Scholar] [CrossRef] [PubMed]
- Domadi, M.K.; Eng, K. Occupational Safety and Health; Oxford Fajar: Shah Alam, Malaysia, 2020. [Google Scholar]
- Lee, J.H.; Kang, W.; Yaang, S.R.; Choy, N.; Lee, C.R. Cohort study for the effect of chronic noise exposure on blood pressure among male workers in Busan, Korea. Am. J. Ind. Med. 2009, 52, 509–517. [Google Scholar] [CrossRef] [PubMed]
- Haron, Z.; Oldham, D.; Yahya, K.; Zakaria, R. A probabilistic approach for modeling of noise from construction site for sustainable environment. Malays. J. Civ. Eng. 2008, 20, 58–72. [Google Scholar]
- Kock, S.; Andersen, T.; Kolstad, H.A.; Kofoed-Nielsen, B.; Wiesler, F.; Bonde, J.P. Surveillance of noise exposure in the Danish workplace: A baseline survey. Occup. Environ. Med. 2004, 61, 838–843. [Google Scholar] [CrossRef]
- Zunjic, A. SCANAM method for the assessment of industrial noise. Work 2012, 41 (Suppl. S1), 2974–2981. [Google Scholar] [CrossRef]
- Aguilar-Aguilera, A.J.; De la Hoz-Torres, M.L.; Martinez-Aires, M.D.; Ruiz, D.P. Noise Management in the Construction Industry Using Building Information Modelling Methodology (BIM): A Tool for Noise Mapping Simulation. In Occupational and Environmental Safety and Health II; Springer: Cham, Switzerland, 2020; pp. 181–188. [Google Scholar]
- Tan, Y.; Fang, Y.; Zhou, T.; Gan, V.J.L.; Cheng, J.C.P. BIM-supported 4D acoustics simulation approach to mitigating noise impact on maintenance workers on offshore oil and gas platforms. Autom. Constr. 2019, 100, 1–10. [Google Scholar] [CrossRef]
- Rivera Domínguez, C.; Pozos Mares, J.I.; Zambrano Hernández, R.G. Hazard identification and analysis in work areas within the Manufacturing Sector through the HAZID methodology. Process Saf. Environ. Prot. 2021, 145, 23–38. [Google Scholar] [CrossRef]
- D’Andrea, E.; Arena, M.; Viscardi, M.; Coppola, T. Bidimensional Ray Tracing Model for the Underwater Noise Propagation Prediction. Fluids 2021, 6, 19. [Google Scholar] [CrossRef]
- Long, M. Acoustic Modeling, Ray Tracing, and Auralization. In Architectural Acoustics; Long, M., Ed.; Academic Press: Boston, MA, USA, 2014; pp. 873–910. [Google Scholar] [CrossRef]
- Guan, K.; Peng, B.; He, D.; Eckhardt, J.M.; Yi, H.; Rey, S.; Ai, B.; Zhong, Z.; Kurner, T. Channel Sounding and Ray Tracing for Intrawagon Scenario at mmWave and Sub-mmWave Bands. IEEE Trans. Antennas Propag. 2021, 69, 1007–1019. [Google Scholar] [CrossRef]
- Cao, H.; Guo, S.; Zhang, S.; Xie, Y.; Feng, W. Ray tracing method for ultrasonic array imaging of CFRP corner part using homogenization method. NDT E Int. 2021, 122, 102493. [Google Scholar] [CrossRef]
- Park, S.; Baek, N. A Shader-Based Ray Tracing Engine. Appl. Sci. 2021, 11, 3264. [Google Scholar] [CrossRef]
- Lixandru, A.B.; Gorobievschi, S.; Baicoianu, A. Acoustic Modeling for Indoor Spaces Using Ray-Tracing Method. In Knowledge Science, Engineering and Management, Proceedings of the 14th International Conference, KSEM 2021, Tokyo, Japan, 14–16 August 2021; PT II; Springer: Cham, Switzerland, 2021; pp. 590–599. [Google Scholar]
- Ding, R.; Liu, S. Underwater sound propagation for virtual environments. Vis. Comput. 2021, 37, 2797–2807. [Google Scholar] [CrossRef]
- Liu, Y.X.; Xue, S.Q.; Qu, G.Q.; Lu, X.S.; Qi, K. Influence of the ray elevation angle on seafloor positioning precision in the context of acoustic ray tracing algorithm. Appl. Ocean Res. 2020, 105, 8. [Google Scholar] [CrossRef]
- Mahjoob, M.J.; Malakooti, S.; Katholieke Univ Leuven, D.W. Acoustic simulation of building spaces by ray-tracing method: Prediction vs. experimental results. In Proceedings of the International Conference on Noise and Vibration Engineering, Leuven, Belgium, 15–17 September 2008; pp. 2303–2312. [Google Scholar]
- Idris, N.F. Occupational Safety and Health (Noise Exposure) Regulations 2019. Available online: https://www.dosh.gov.my/index.php/competent-person-form/occupational-health/regulations/osha-1994-act-154/3174-00-occupational-safety-and-health-noise-exposure-2019?format=html&path=regulations%2Fosha-1994-act-154 (accessed on 12 August 2023).
- Sobetwa, M.; Sokoya, O. Measurement Analysis of Indoor Parameters for an Indoor Wireless Propagation. In Proceedings of the International Conference on Wireless Technologies, Embedded and Intelligent Systems (WITS), Fez, Morocco, 3–4 April 2020. [Google Scholar]
- ISO 9612:2009; Acoustics—Determination of Occupational Noise Exposure—Engineering Method. International Standards Organization: Geneva, Switzerland, 2009.
- Hansen, C. Fundamentals of acoustics. Am. J. Phys. 1951, 19, 254–255. [Google Scholar]
- Kinsler, L.E.; Frey, A.R.; Coppens, A.B.; Sanders, J.V. Fundamentals of Acoustics; Wiley: Hoboken, NJ, USA, 1982. [Google Scholar]
- Bies, D.A.; Hansen, C.H.; Howard, C.Q. Engineering Noise Control; CRC Press: Boca Raton, FL, USA; Taylor & Francis Group: Hoboken, NJ, USA, 2018. [Google Scholar]
- Department of Occupational Safety and Health. Industry Code of Practice for Management of Occupational Noise Exposure and Hearing Conservation; Department of Occupational Safety and Health, Ministry of Human Resource of Malaysia: Putrajaya, Malaysia, 2019.
- IEC 61672; Electroacoustics–Sound Level Meters. International Electrotechnical Commission (IEC): Geneva, Switzerland, 2013.
Disclaimer/Publisher’s Note: The statements, opinions and data contained in all publications are solely those of the individual author(s) and contributor(s) and not of MDPI and/or the editor(s). MDPI and/or the editor(s) disclaim responsibility for any injury to people or property resulting from any ideas, methods, instructions or products referred to in the content. |
© 2025 by the authors. Licensee MDPI, Basel, Switzerland. This article is an open access article distributed under the terms and conditions of the Creative Commons Attribution (CC BY) license (https://creativecommons.org/licenses/by/4.0/).