Impact of Near-Fault Seismic Inputs on Building Performance: A Case Study Informed by the 2023 Maras Earthquakes
Abstract
1. Introduction
2. Materials and Methods
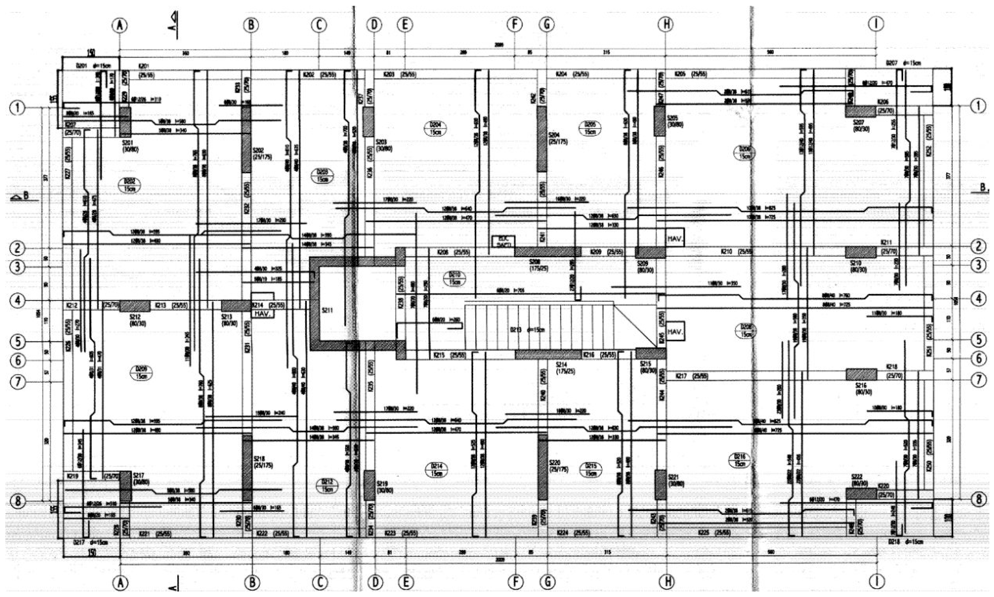
2.1. Test Materials
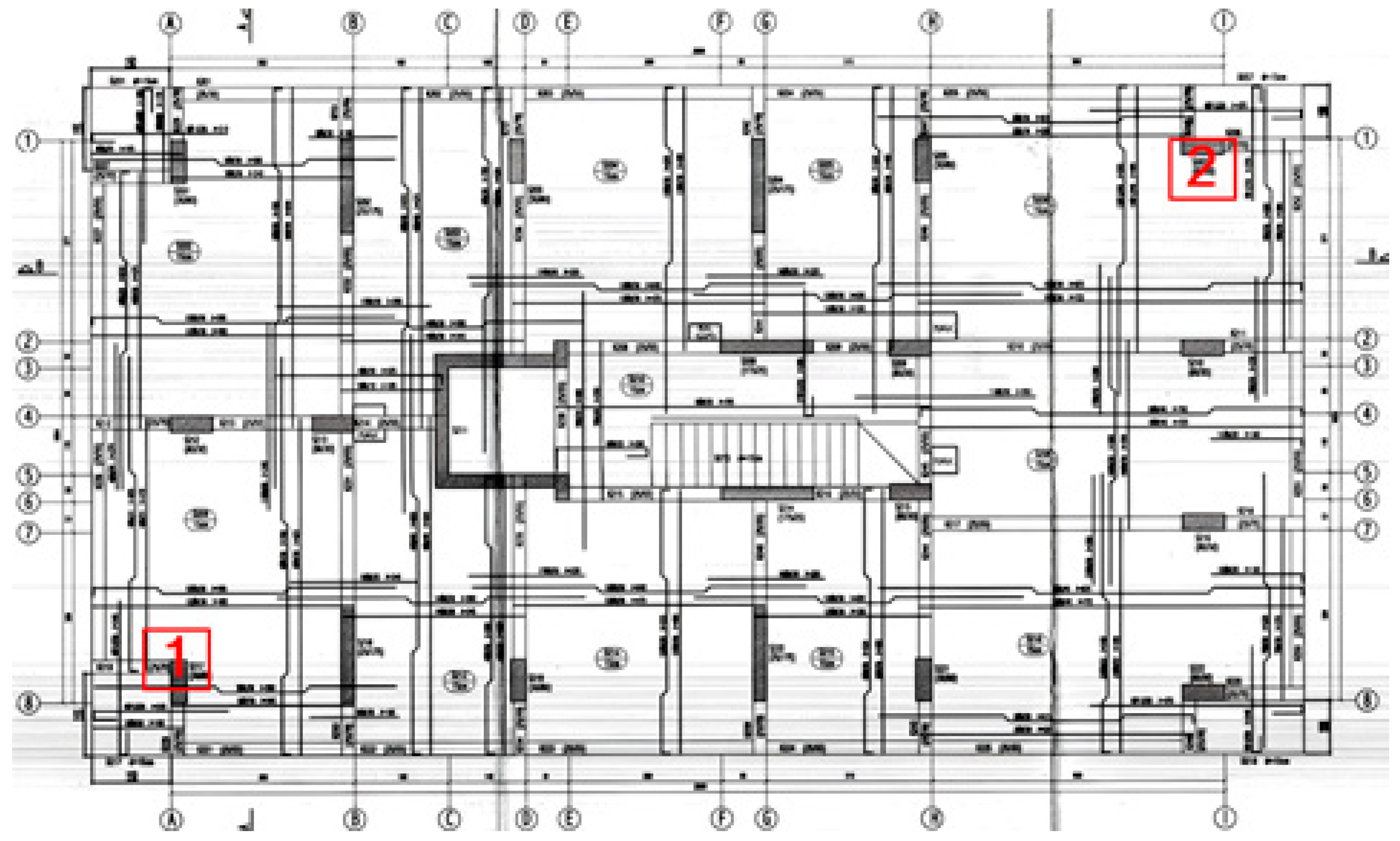
2.2. Finite Element Models
2.3. Nonlinear Analysis
3. Results
4. Discussion
5. Conclusions
- Model 1a results align well with the observed post-earthquake damage, confirming the validity of the finite element model and analysis approach.
- The modal shapes of Models 1 and 2 are similar, but the period values in Model 2 are notably higher, and this situation significantly increases seismic demands.
- Inter-story drift ratios and base shear forces in Model 1a are substantially higher than in Model 1b, due to intense ground accelerations in the near-fault scenario earthquake.
- Plastic deformations in Model 1a are higher than Model 1b. The performance levels further confirm that Model 1a reaches Collapse Prevention, while Model 1b remains at Controlled Damage. A similar trend observed between Models 2a and 2b in terms of base shear, inter-story drifts, and damage levels is that near-fault conditions caused substantially more demand.
- Comparing Model 1 and Model 2 shows the critical role of shear walls. Under near-fault conditions, the reduced stiffness owing to lack of shear walls (Model 2) experienced higher damage and larger displacements in both directions.
- Models 1 and 2 produce similar drift results for far-fault conditions due to the limited plastic deformation demands.
- A more realistic estimation of design spectra could potentially be achieved if specific phenomena such as forward directivity, super-shear rupture, and basin effects are more thoroughly incorporated into probabilistic procedures. In this context, further advancements in ground motion prediction models and the development of techniques that better capture near-fault effects may be beneficial, suggesting that additional research in this direction would be valuable.
- Analysis results highlighted that structures with higher energy dissipation capacity should be prioritized for design of buildings located near fault zones. Considering this aspect, practicing engineering could help foster measures that contribute to reducing the risks of life and property losses in future earthquakes.
Author Contributions
Funding
Data Availability Statement
Conflicts of Interest
Correction Statement
References
- Housner, G.W.; Trifunac, M.D. Analysis of accelerograms—Parkfield earthquake. Bull. Seismol. Soc. Am. 1967, 57, 1193–1220. [Google Scholar]
- Somerville, P.G. Magnitude scaling of the near fault rupture directivity pulse. Phys. Earth Planet. Interiors. 2003, 137, 201–210. [Google Scholar]
- Mukhopadhyay, S.; Gupta, V.K. Directivity pulses in near-fault ground motions—II: Estimation of pulse parameters. Soil Dyn. Earthq. Eng. 2013, 50, 38–52. [Google Scholar]
- Tang, Y.; Zhang, J. Response spectrum-oriented pulse identification and magnitude scaling of forward directivity pulses in near-fault ground motions. Soil Dyn. Earthq. Eng. 2011, 31, 59–76. [Google Scholar] [CrossRef]
- Bernard, P.; Herrero, A.; Berge, C. Modeling directivity of heterogeneous earthquake ruptures. Bull. Seismol. Soc. Am. 1996, 86, 1149–1160. [Google Scholar]
- Somerville, P.G.; Smith, N.F.; Graves, R.W.; Abrahamson, N.A. Modification of empirical strong ground motion attenuation relations to include the amplitude and duration effects of rupture directivity. Seismol. Res. Lett. 1997, 68, 199–222. [Google Scholar]
- Luo, Q.; Dai, F.; Jiang, R.; Xu, W.; Zhang, G. Quantitative evaluation of velocity pulse-like ground motions using spatial rotation technique. J. Seismol. 2024, 28, 209–227. [Google Scholar] [CrossRef]
- Xin, C.; Zeng, L.; Wang, Z.; Feng, W.; Yang, F.; Hajirasouliha, I.; Yu, X. Characterizing Dynamic Responses of Rock Slopes to Near-Fault Pulse-Like Ground Motions: C. Xin et al. Rock Mech. Rock Eng. 2025, 1–41. [Google Scholar] [CrossRef]
- Shaohui, L.; Lizhong, J.; Wangbao, Z.; Jian, Y.; Yulin, F.; Zhenbin, R. Influence of velocity pulse effect on earthquake-induced track irregularities of high-speed railway track–bridge system under near-fault ground motions. Arch. Civ. Mech. Eng. 2024, 24, 70. [Google Scholar]
- Mavroeidis, G.P.; Papageorgiou, A.S. A mathematical representation of near-fault ground motions. Bull. Seismol. Soc. Am. 2003, 93, 1099–1131. [Google Scholar] [CrossRef]
- He, W.; Agrawal, A.K. Analytical model of ground motion pulses for the design. J. Struct. Eng. 2008, 134, 1177–1188. [Google Scholar] [CrossRef]
- Baker, J.W. Quantitative classification of near-fault ground motions using wavelet analysis. Bull. Seismol. Soc. Am. 2007, 97, 1486–1501. [Google Scholar] [CrossRef]
- Huang, N.E.; Shen, Z.; Long, S.R.; Wu, M.C.; Shih, H.H.; Zheng, Q.; Yen, N.C.; Tung, C.C.; Liu, H.H. The empirical mode decomposition and the Hilbert spectrum for nonlinear and non-stationary time series analysis. Proc. R. Soc. A Math. Phys. Eng. Sci. 1998, 454, 903–995. [Google Scholar]
- Chen, X.; Wang, D.; Zhang, R. Identification of pulse periods in near-fault ground motions using the HHT method. Bull. Seismol. Soc. Am. 2019, 109, 2384–2398. [Google Scholar]
- Chang, Z.; Wu, H.; Goda, K. Automated parameterization of velocity pulses in near-fault ground motions. Earthq. Eng. Struct. Dyn. 2024, 53, 1006–1027. [Google Scholar]
- Hall, J.F.; Heaton, T.H.; Halling, M.W.; Wald, D.J. Near source ground motion and its effects on flexible buildings. Earthq. Spectra 1995, 11, 569–605. [Google Scholar] [CrossRef]
- Malhotra, P.K. Response of buildings to near-field pulse-like ground motions. Earthq. Eng. Struct. Dyn. 1999, 28, 1309–1326. [Google Scholar] [CrossRef]
- Zhang, S.; Wang, G. Effects of near-fault and far-fault ground motions on nonlinear dynamic response and seismic damage of concrete gravity dams. Soil Dyn. Earthq. Eng. 2013, 53, 217–229. [Google Scholar] [CrossRef]
- Jangid, R.S. Optimum friction pendulum system for near-fault motions. Eng. Struct. 2005, 27, 349–359. [Google Scholar] [CrossRef]
- Alavi, B.; Krawinkler, H. Effects of Near Fault Ground Motions on Frame Structures; Stanford University: Stanford, CA, USA, 2001. [Google Scholar]
- Anderson, J.C.; Bertero, V.V. Uncertainties in establishing design earthquakes. J. Struct. Eng. 1987, 113, 1709–1724. [Google Scholar] [CrossRef]
- Yaray, B. Sismik yalıtımlı binaların yakın fay etkisi altında davranışı. Yüksek Lisans Tezi, Sivas Cumhuriyet Üniversitesi Fen Bilimleri Enstitüsü, Sivas, Türkiye, 2019. [Google Scholar]
- Mazza, F.; Vulcano, A. Nonlinear dynamic response of R.C. framed structures subjected to near-fault ground motions. Bull. Earthq. Eng. 2010, 8, 1331–1350. [Google Scholar] [CrossRef]
- Ventura, C.E.; Kharrazi, M.H.K.; Ventura, C.E.; Finn, W.D.L. Large coseismic displacements and tall buildings. Struct. Des. Tall Spec. Build. 2011, 20, 85–99. [Google Scholar] [CrossRef]
- Hamidi, H.; Karbassi, A.; Lestuzzi, P. Seismic response of RC buildings subjected to fling—Step in the near—Fault region. Struct. Concr. 2020, 21, 1919–1937. [Google Scholar] [CrossRef]
- Daei, A.; Poursha, M. On the accuracy of enhanced pushover procedures for seismic performance evaluation of code-conforming RC moment-resisting frame buildings subjected to pulse-like and non-pulse-like excitations. Structures 2021, 32, 929–945. [Google Scholar] [CrossRef]
- Zhai, C.; Chang, Z.; Li, S.; Chen, Z.; Xie, L. Quantitative identification of near—Fault pulse—Like ground motions based on energy. Bull. Seismol. Soc. Am. 2013, 103, 2591–2603. [Google Scholar] [CrossRef]
- Sehhati, R.; Adrian, R.M.; ElGawady, M. Effects of near-fault ground motions and equivalent pulses on multi-story structures. Eng. Structures. 2011, 33, 767–779. [Google Scholar] [CrossRef]
- Champion, C.; Liel, A. The effect of near-fault directivity on building seismic collapse risk. Earthq. Eng. Struct. Dyn. 2012, 41, 1391–1409. [Google Scholar] [CrossRef]
- Papazoglou, A.J.; Elnashai, A.S. Analytical and field evidence of the damaging effect of vertical earthquake ground motion. Earthq. Eng. Struct. Dyn. 1996, 25, 1109–1137. [Google Scholar] [CrossRef]
- Elnashai, A.S.; Di Sarno, L. Fundamentals of Earthquake Engineering: From Source to Fragility, 2nd ed.; John Wiley and Sons, Ltd.: West Sussex, UK, 2015. [Google Scholar]
- Mwafy, A.; Elnashai, A.S. Vulnerability of code-compliant RC buildings under multi-axial earthquake loading. In Proceedings of the 4th International Conference on Earthquake Engineering, Taipei, Taiwan, 12–13 October 2006. [Google Scholar]
- Kim, S.; Kim, S.J.; Chang, C. Analytical assessment of the effect of vertical ground motion on RC frames designed for gravity loads with various geometric configurations. J. Adv. Civ. Eng. 2018, 2018, 4029142. [Google Scholar] [CrossRef]
- Abrahamson, N.A. Effects of rupture directivity on probabilistic seismic hazard analysis. In Proceedings of the 6th International Conference on Seismic Zonation, Palm Springs, CA, USA, 12–15 November 2000; Volume 1, pp. 151–156. [Google Scholar]
- Tothong, P.; Luco, N. Probabilistic seismic demand analysis using advanced ground motion intensity measures. Earthq. Eng. Struct. Dyn. 2007, 36, 1837–1860. [Google Scholar] [CrossRef]
- Campbell, K.W.; Bozorgnia, Y. NGA-West2 ground motion model for the average horizontal components of PGA, PGV, and 5% damped linear acceleration response spectra. Earthq. Spectra 2014, 30, 1087–1115. [Google Scholar] [CrossRef]
- Baltzopoulos, G.; Baraschino, R.; Chioccarelli, E.; Cito, P.; Vitale, A.; Iervolino, I. Near-source ground motion in the M7.8 Gaziantep (Turkey) earthquake. Earthq. Eng. Struct. Dyn. 2023, 52, 3903–3912. [Google Scholar] [CrossRef]
- Chen, G. Report on Pulse-Like Ground Motions in the Feb 2023 Turkey Earthquakes; Institute for Risk and Reliability Leibniz University: Hannover, Germany, 2023. [Google Scholar]
- Güneş, N. Effects of near-fault pulse-like ground motions on seismically isolated buildings. J. Build. Eng. 2022, 52, 104508. [Google Scholar] [CrossRef]
- Quaranta, G.; Mollaioli, F. Analysis of near-fault pulse-like seismic signals through Variational Mode Decomposition technique. Eng. Struct. 2019, 193, 121–135. [Google Scholar] [CrossRef]
- Alonso-Rodríguez, A.; Miranda, E. Assessment of building behavior under near-fault pulse-like ground motions through simplified models. Soil Dyn. Earthq. Eng. 2015, 79, 47–58. [Google Scholar] [CrossRef]
- Işık, E.; Hadzima-Nyarko, M.; Avcil, F.; Büyüksaraç, A.; Arkan, E.; Alkan, H.; Harirchian, E. Comparison of seismic and structural parameters of settlements in the east Anatolian fault zone in light of the 6 February Kahramanmaraş earthquakes. Infrastructures 2024, 9, 219. [Google Scholar] [CrossRef]
- Wang, B.; Karavasilis, T.L.; Chen, P.; Dai, K. Seismic modeling and performance evaluation of seismically isolated building considering large strain effects under near-fault earthquakes. J. Build. Eng. 2024, 90, 109339. [Google Scholar] [CrossRef]
- Chen, X.; Zhou, B.; Liu, X.; Lu, J. An Investigation into the Effect of Near-Fault Ground Motion Duration Parameters on the Nonlinear Seismic Response of Intake Towers. Buildings 2024, 14, 580. [Google Scholar] [CrossRef]
- Li, S.; Gao, Y.; Jin, H. Upper crustal deformation characteristics in the northeastern Tibetan Plateau and its adjacent areas revealed by GNSS and anisotropy data. Earthq. Sci. 2023, 36, 297–308. [Google Scholar] [CrossRef]
- Duan, Y.; Bo, J.; Peng, D.; Li, Q.; Wan, W.; Qi, W. Analysis of Peak Ground Acceleration and Seismogenic Fault Characteristics of the Mw7.8 Earthquake in Turkey. Appl. Sci. 2023, 13, 10896. [Google Scholar] [CrossRef]
- Ivanov, M.L.; Chow, W.K. Structural damage observed in reinforced concrete buildings in Adiyaman during the 2023 Türkiye Kahramanmaraş earthquakes. Structures 2023, 58, 105578. [Google Scholar] [CrossRef]
- Kazaz, İ.; Avşar, Ö.; Dilsiz, A. Importance of building inspection on the seismic response of a severely damaged RC structure during the February 6, 2023 Kahramanmaraş earthquake sequence. Eng. Fail. Anal. 2024, 162, 108410. [Google Scholar] [CrossRef]
- Öztürk, S.; Altunsu, E.; Güneş, O.; Sarı, A. Investigation of industrial structure performances in the Hatay and Gaziantep provinces during the Türkiye earthquakes on 6 February 2023. Soil Dyn. Earthq. Eng. 2024, 179, 108569. [Google Scholar] [CrossRef]
- Altfunsu, E.; Güneş, O.; Öztürk, S.; Sorosh, S.; Sarı, A.; Beeson, S.T. Investigating the structural damage in Hatay province after Kahramanmaraş-Türkiye earthquake sequences. Eng. Fail. Anal. 2024, 157, 107857. [Google Scholar] [CrossRef]
- Yaghmaei-Sabegh, S.; Neekmanesh, S.; Ruiz-García, J. Evaluation of vertical-to-horizontal spectral acceleration ratio for the 2023 Turkey–Syria seismic sequences. Soil Dyn. Earthq. Eng. 2024, 182, 108747. [Google Scholar]
- Turkish Earthquake Code, TEC-2007. In Specifications for Buildings to be Built in Seismic Areas; Ministry of Public Works and Settlement: Ankara, Turkey, 1998.
- Republic of Turkey Ministry of Environment and Urbanization. Turkish Building Earthquake Code (TBEC-2018); Republic of Turkey Ministry of Environment and Urbanization: Ankara, Turkey, 2018. [Google Scholar]
- Mander, J.B.; Priestley, M.J.N.; Park, R. Theoretical Stress-Strain Model for Confined Concrete. J. Struct. Eng. 1998, 114, 1804–1826. [Google Scholar] [CrossRef]
- Disaster and Emergency Management Authority (AFAD). Earthquake Database—Event Detail; Ministry of Interior: Ankara, Turkey, 2007. [Google Scholar]
- Sakarya, A.; Akın, O.; Kılıç, A. Investigating the damage from the February 6, 2023 earthquakes in terms of building characteristics in the Antakya and Defne districts of Hatay province. Int. J. Disaster Risk Reduct. 2024, 112, 104783. [Google Scholar] [CrossRef]
- Senel, S.M.; Kayhan, A.H.; Palanci, M.; Demir, A. Assessment of Damages in Precast Industrial Buildings in the Aftermath of Pazarcık and Elbistan Earthquakes. J. Earthq. Eng. 2024, 1–30. [Google Scholar] [CrossRef]
- Ertuncay, D.; Costa, G. Analysis of impulsive ground motions from February 2023 Kahramanmaraş earthquake sequence. Bull. Earthq. Eng. 2025, 23, 965–999. [Google Scholar] [CrossRef]
- Ucar, T.; Merter, O. Ductility demands for stiffness—Degrading SDOF systems under pulse—Like ground motions of the 2023 Pazarcık (Kahramanmaraş) earthquake. Bull. Earthq. Eng. 2024, 90, 3243–3260. [Google Scholar] [CrossRef]
- Wu, F.; Xie, J.; An, Z.; Lyu, C.; Taymaz, T.; Irmak, T.S.; Li, X.; Wen, Z.; Zhou, B. Pulse-like ground motion observed during the 6 February 2023 MW7.8 Pazarcık Earthquake (Kahramanmaraş, SE Türkiye). Earthq. Sci. 2023, 36, 328–339. [Google Scholar] [CrossRef]
- Hu, J.; Liu, M.; Taymaz, T.; Ding, L.; Irmak, T.S. Characteristics of strong ground motion from the 2023 Mw 7.8 and Mw 7.6 Kahramanmaraş earthquake sequence. Bull. Earthq. Eng. 2025, 23, 1225–1254. [Google Scholar] [CrossRef]
- Abdelmeguid, M.; Zhao, C.; Yalcinkaya, E.; Gazetas, G.; Elbanna, A.; Rosakis, A. Dynamics of episodic supershear in the 2023 M7.8 Kahramanmaraş/Pazarcık earthquake, revealed by near-field records and computational modeling. Commun. Earth Env. 2023, 4, 456. [Google Scholar] [CrossRef]
- Karray, M.; Karakan, E.; Kincal, C.; Chiaradonna, A.; Gül, T.O.; Lanzo, G.; Monaco, P.; Sezer, A. Türkiye Mw 7.7 Pazarcık and Mw 7.6 Elbistan earthquakes of 6 February 2023: Contribution of valley effects on damage pattern. Soil Dyn. Earthq. Eng. 2024, 181, 108634. [Google Scholar] [CrossRef]
- Gani, E.; Öztürk, S.; Sarı, A. Examination of the severe impact of the 6 February 2023 earthquakes on Antakya district considering pulse-like ground motions, supershear rupture, and basin effects. Soil Dyn. Earthq. Eng. 2025, 198, 109608. [Google Scholar] [CrossRef]
- Palanci, M.; Demir, A.; Kayhan, A.H. The Investigation of Displacement Demands of Single Degree of Freedom Models Using Real Earthquake Records Compatible with TBEC-2018. Pamukkale Univ. J. Eng. Sci. 2021, 27, 251–263. [Google Scholar] [CrossRef]
- Demir, A.; Kayhan, A.H.; Palanci, M. Response- and Probability-Based Evaluation of Spectrally Matched Ground Motion Selection Strategies for Bi-Directional Dynamic Analysis of Low- to Mid-Rise RC Buildings. Structures 2023, 58, 105533. [Google Scholar] [CrossRef]
- Asgarkhani, N.; Kazemi, F.; Jankowski, R. Machine-Learning Based Tool for Seismic Response Assessment of Steel Structures In-cluding Masonry Infill Walls and Soil-Foundation-Structure Interaction. Comput. Struct. 2025, 317, 107918. [Google Scholar] [CrossRef]
- Demir, A.; Palanci, M.; Kayhan, A.H. Evaluation the Effect of Amplitude Scaling of Real Ground Motions on Seismic Demands Accounting Different Structural Characteristics and Soil Classes. Bull. Earthq. Eng. 2024, 22, 365–393. [Google Scholar] [CrossRef]
- Karakas, C.C.; Palanci, M.; Senel, S.M. Fragility based evaluation of different code based assessment approaches for the performance estimation of existing buildings. Bull. Earthq. Eng. 2022, 20, 1685–1716. [Google Scholar] [CrossRef]













| Numerical Model | Earthquake Data | Structural System |
|---|---|---|
| Model 1a | Near-Fault Station | Original |
| Model 1b | Far-Fault Station | Original |
| Model 2a | Near-Fault Station | Reduced Shear Wall |
| Model 2b | Far-Fault Station | Reduced Shear Wall |
| Steel | Yield Strength fsy (MPa) | Yield Strain εsy | Hardening Strain εsh | Ultimate Tensile Strain εsu | Ultimate-to-Yield Strength Ratio fsu/fsy |
|---|---|---|---|---|---|
| S420 | 420 | 0.0021 | 0.008 | 0.08 | 1.15–1.35 |
| Model 1 | Model 2 | |||||
|---|---|---|---|---|---|---|
| Periods (s) | Mass Participation (x) | Mass Participation (y) | Periods (s) | Mass Participation (x) | Mass Participation (y) | |
| Mode 1 | 2.643 | 0.000556 | 0.2177 | 3.333 | 0.0004102 | 0.2396 |
| Mode 2 | 1.442 | 0.616 | 0.000441 | 1.565 | 0.617 | 0.000399 |
| Mode 3 | 0.961 | 0.000064 | 0.388 | 1.063 | 0.0000702 | 0.367 |
| Model | Base Shear (kN) | |
|---|---|---|
| X | Y | |
| Model1a | 5989.7949 | 6677.8931 |
| Model1b | 2263.656 | 3073.7849 |
| Model2a | 4609.6055 | 4149.8857 |
| Model2b | 1873.6073 | 2305.2654 |
| Numerical Model | TBC—2018 Seismic Performance Level |
|---|---|
| Model1a | Collapse Prevention (CP) |
| Model1b | Controlled Damage (CD) |
| Model2a | Collapse Prevention (CP) |
| Model2b | Controlled Damage (CD) |
Disclaimer/Publisher’s Note: The statements, opinions and data contained in all publications are solely those of the individual author(s) and contributor(s) and not of MDPI and/or the editor(s). MDPI and/or the editor(s) disclaim responsibility for any injury to people or property resulting from any ideas, methods, instructions or products referred to in the content. |
© 2025 by the authors. Licensee MDPI, Basel, Switzerland. This article is an open access article distributed under the terms and conditions of the Creative Commons Attribution (CC BY) license (https://creativecommons.org/licenses/by/4.0/).
Share and Cite
Öztürk, M.; Karan, M.A. Impact of Near-Fault Seismic Inputs on Building Performance: A Case Study Informed by the 2023 Maras Earthquakes. Appl. Sci. 2025, 15, 10142. https://doi.org/10.3390/app151810142
Öztürk M, Karan MA. Impact of Near-Fault Seismic Inputs on Building Performance: A Case Study Informed by the 2023 Maras Earthquakes. Applied Sciences. 2025; 15(18):10142. https://doi.org/10.3390/app151810142
Chicago/Turabian StyleÖztürk, Mehdi, and Mehmet Ali Karan. 2025. "Impact of Near-Fault Seismic Inputs on Building Performance: A Case Study Informed by the 2023 Maras Earthquakes" Applied Sciences 15, no. 18: 10142. https://doi.org/10.3390/app151810142
APA StyleÖztürk, M., & Karan, M. A. (2025). Impact of Near-Fault Seismic Inputs on Building Performance: A Case Study Informed by the 2023 Maras Earthquakes. Applied Sciences, 15(18), 10142. https://doi.org/10.3390/app151810142

