Evaluation of Horizontal Shear Performance of Composite Girders Using Separable Shear Connectors
Abstract
1. Introduction
2. Design Standards for Horizontal Shear Strength of Composite Concrete Members
3. Evaluation of Horizontal Shear Performance
3.1. Structural Characteristics of Embedded Separable Shear Connectors
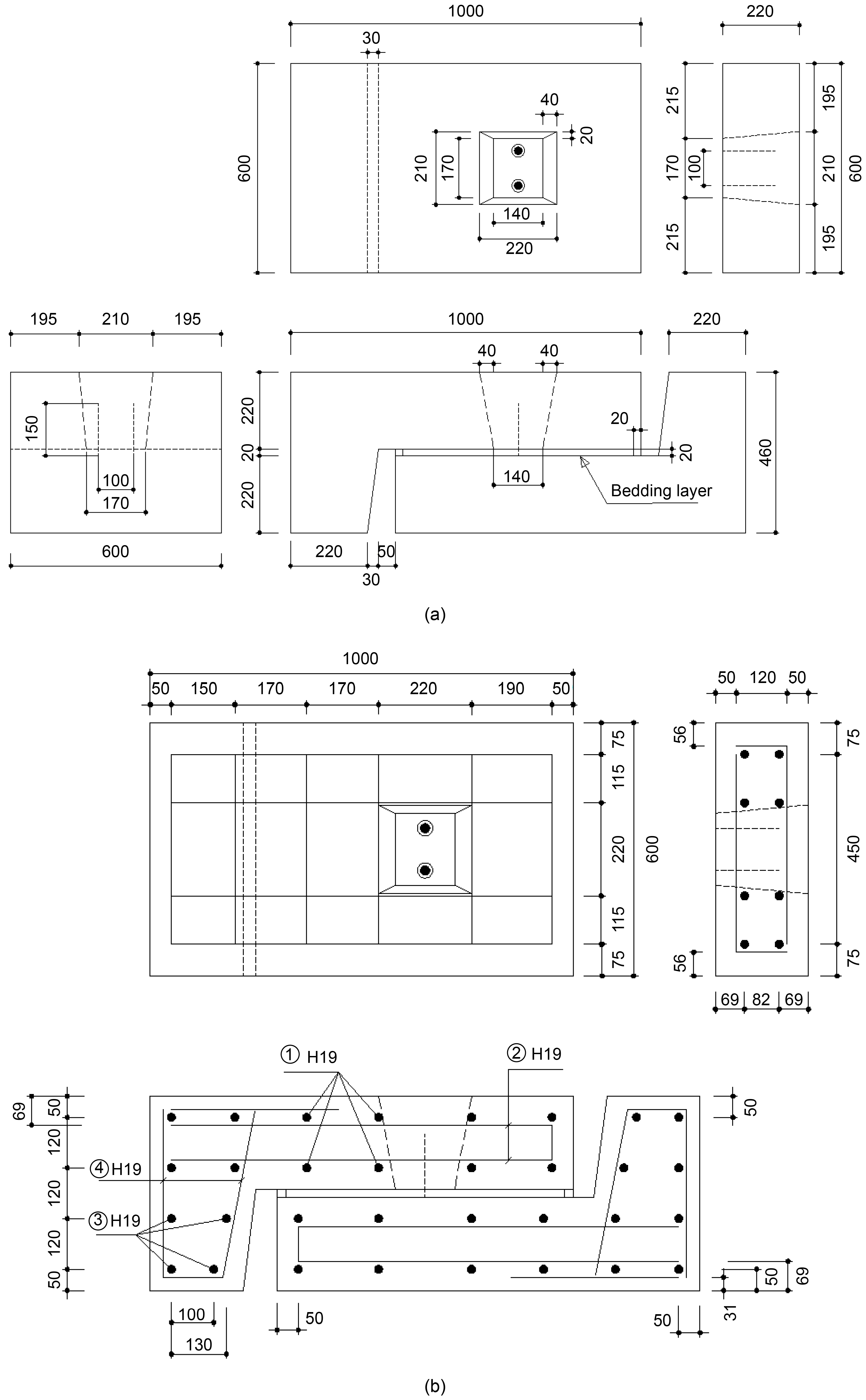
3.2. Fabrication of Horizontal Shear Specimens and Horizontal Shear Tests
3.3. Analysis of Horizontal Shear Test Results
3.4. Review of Reconstructability of Precast Decks
3.5. Evaluation of Horizontal Shear Strength
4. Verification of Flexural Tests on Composite Girders
4.1. Fabrication of Composite Girder Specimens
4.2. Flexural Test and Result Analysis
5. Conclusions
- 1.
- In horizontal shear tests, compared with the rebar specimens using conventional rebar shear connectors, the detachable shear connector model M-DY specimens exhibited performance differences at the 1% level, whereas S-DY specimens exhibited approximately 10% lower shear-strength performance. This phenomenon could be attributed to pull-out failure occurring because the embedded depth of the detachable shear connectors was not sufficiently secured. In the flexural performance test, this was improved by drilling through-holes in the embedded anchor nut of the S-DY shear connector and connecting rebar to resist pull-out. Consequently, pull-out did not occur when applying the improved method to PSC composite girder specimens.
- 2.
- In terms of slip displacement, DY specimens exhibited 55% lower results compared with rebar specimens. However, although DY specimens exhibited less slip than rebar specimens, where larger slip occurred due to pull-out failure from insufficient embedding depth and anchorage, both exceeded 6 mm, satisfying the ductility design conditions of EN standards.
- 3.
- From the simulation test results of deck disassembly and reconstruction using DY shear connectors, the horizontal shear strength of the disassembled and reconstructed specimens was approximately 97.7% of the average horizontal shear strength of regular specimens (S-DY), indicating that sufficient horizontal shear strength was secured.
- 4.
- Most M-DY and S-DY specimens with demountable shear connectors satisfied the shear-strength requirements of the AASHTO LRFD, ACI-318, and KDS standards, with the exception of the EC2 standard.
- 5.
- According to the flexural test results of PSC girders with DY shear connectors and composite girders of precast decks, the horizontal shear strength was approximately 4% higher compared with conventional rebar shear connector specimens, demonstrating superior performance over conventional rebar shear connectors. In particular, because the DY_F specimen used 35.1% fewer shear connectors compared with the Rebar_F specimen, the detachable shear connectors are approximately 60% more effective than conventional rebar shear connectors are.
Author Contributions
Funding
Institutional Review Board Statement
Informed Consent Statement
Data Availability Statement
Acknowledgments
Conflicts of Interest
References
- Loov, R.E.; Patnaik, A.K. Horizontal shear strength of composite concrete beams with a rough interface. PCI J. 1994, 39, 48–69. [Google Scholar] [CrossRef]
- Kahn, L.F.; Mitchell, A.D. Shear friction tests with high-strength concrete. ACI Struct. J. 2002, 99, 98–103. [Google Scholar]
- Menkulasi, F. Horizontal Shear Connectors for Precast Prestressed Bridge Deck Panels; Virginia Polytechnic Institute and State University: Blacksburg, VA, USA, 2002. [Google Scholar]
- Suh, J.I.; Park, H.G.; Hong, G.H.; Kang, S.M.; Kim, C.G. Evaluation of horizontal shear strength for concrete composite members. J. Korea Concr. Inst. 2016, 28, 407–417. (In Korean) [Google Scholar] [CrossRef]
- Kim, M.J.; Lee, G.Y. Calculation of horizontal shear strength in reinforced concrete composite beams. J. Korea Acad.-Ind. Coop. Soc. 2020, 21, 772–781. (In Korean) [Google Scholar]
- Chung, C.H.; Shim, C.S.; Kim, I.G.; Park, S.J. Evaluation of the horizontal bond strength at the interface between precast decks and PSC girders. KSCE J. Civ. Environ. Eng. Res. 2004, 24, 1183–1191. (In Korean) [Google Scholar]
- Pavlovič, M.S. Resistance of Bolted Shear Connectors in Prefabricated Steel-Concrete Composite Decks. Ph.D. Thesis, University of Belgrade, Belgrade, Republic of Serbia, 2013. [Google Scholar]
- Suwaed, A.S.H.; Karavasilis, T.L. Novel demountable shear connector for accelerated disassembly, repair, or replacement of precast steel-concrete composite bridges. J. Bridge Eng. 2017, 22, 04017052. [Google Scholar] [CrossRef]
- Yang, F.; Liu, Y.; Jiang, Z.; Xin, H. Shear performance of a novel demountable steel-concrete bolted connector under static push-out tests. Eng. Struct. 2018, 160, 133–146. [Google Scholar] [CrossRef]
- ACI Committee. Building Code Requirements for Structural. Concrete (ACI 318-19) and Commentary (ACI 318 R-19); American Concrete Institute (ACI): Farmington Hills, MI, USA, 2019. [Google Scholar]
- AASHTO LRFD. Bridge Design Specifications, 4th ed.; AASHTO: Washington, DC, USA, 2007. [Google Scholar]
- EN 1992-1-1; Eurocode 2: Design of Concrete Structures, Part 1–1: General Rules and Rules for Building. European Committee for Standardization (CEN): Brussels, Belgium, 2004.
- KDS 24-14-21:2021; Korean Design Standard. Korea Construction Standards Center: Goyang-si, Republic of Korea, 2021.
- Jung, D.S.; Park, S.H.; Im, E. Shear-performance evaluation of PSC composite girder with embedded demountable shear connectors. J. Korean Soc. Adv. Comp. Struc. 2022, 13, 47–54. (In Korean) [Google Scholar] [CrossRef]
- Jung, D.S.; Park, S.H. Experimental study on development of embedded demountable shear connector for concrete girder-slab composite bridges. J. Korea Concr. Inst. 2022, 34, 609–619. (In Korean) [Google Scholar] [CrossRef]
















| Design Codes | Horizontal Shear-Strength Design Formula | Variable | Interfacial Roughness | Limit Value | |
|---|---|---|---|---|---|
| Smooth | Rough | ||||
| ACI-318 [10] | 0.56 | 1.8 | , | ||
| - | 0.6 | ||||
| 0.6 | 1.0 | , , | |||
| 0.2 | 0.2 | ||||
| 5.5 | 3.3 + 0.08 | ||||
| AASHTO LRFD [11] | 0.52 | 1.65 | , | ||
| 0.6 | 1.0 | ||||
| 0.2 | 0.25 | ||||
| 5.52 | 10.34 | ||||
| EC2 [12] | 0.35 | 0.45 | , | ||
| 0.6 | 0.7 | ||||
| KDS [13] | 0.35 | 0.45 | |||
| 0.6 | 0.7 | ||||
| 0.65 | 0.65 | ||||
| 0.90 | 0.90 | ||||
| Specimen | Shear Connector | ||||
|---|---|---|---|---|---|
| Stud type | Diameter (mm) | Height (mm) | Yield strength (MPa) | Tensile strength (MPa) | |
| Rebar: s1–s3 | Rebar | 22 | 150 | 452.6 | 578.5 |
| M-DY: s1–s3 | DY | 22 | 150 | 409.9 | 705.1 |
| * S-DY: s1–s3 | DY | 22 | 150 | 409.9 | 705.1 |
| Specimen | Ultimate Force (kN) | Slip (mm) | Averaged Value (Standard Deviation) | Difference Ratio (DY/Rebar) | |||||
|---|---|---|---|---|---|---|---|---|---|
| Initial | Maximum | Total | Ultimate Force (kN) | Total Slip (mm) | Ultimate Force (kN) | Total Slip (mm) | |||
| Rebar | s1 | 351.7 | 17.28 | 391.4 (36.40) | 20.71 (-) | 1.00 | 1.00 | ||
| s2 | 423.2 | 0.39 | 21.10 | 20.71 | |||||
| s3 | 399.3 | 32.52 | |||||||
| M-DY | s1 | 345.4 | 0.61 | 12.48 | 11.87 | 394.1 (61.00) | 11.40 (0.66) | 1.01 | 0.55 |
| s2 | 374.3 | 0.81 | 11.74 | 10.93 | |||||
| s3 | 462.5 | 10.51 | |||||||
| S-DY | s1 | 373.5 | 1.26 | 16.27 | 15.01 | 353.9 (17.02) | 14.59 (0.59) | 0.90 | 0.70 |
| s2 | 342.6 | 1.35 | 15.53 | 14.18 | |||||
| s3 | 345.7 | 16.98 | |||||||
| Specimens | As (mm2) | ρyfy (MPa) | Test Results | Predicted Results | Shear Strength Ratio | |||||||||
|---|---|---|---|---|---|---|---|---|---|---|---|---|---|---|
| Ultimate Force (kN) | Horizontal Shear Strength, (MPa) | Averaged Horizontal Shear Strength, (MPa) ① | ② | ③ | ④ | ⑤ | ||||||||
| AASHTO LRFD | ACI-318 | EC2 | KDS | ①/② | ①/③ | ①/④ | ①/⑤ | |||||||
| Rebar | s1 | 774.2 | 1.35 | 351.73 | 1.36 | 1.51 | 1.36 | 0.56 | 1.89 | 1.44 | 1.11 | 2.70 | 0.80 | 1.05 |
| s2 | 774.2 | 1.35 | 423.17 | 1.64 | ||||||||||
| s3 | 774.2 | 1.35 | 399.30 | 1.54 | ||||||||||
| M-DY | s1 | 760.2 | 1.20 | 345.43 | 1.34 | 1.53 | 1.27 | 0.56 | 1.80 | 1.36 | 1.20 | 2.73 | 0.85 | 1.12 |
| s2 | 760.2 | 1.20 | 374.29 | 1.45 | ||||||||||
| s3 | 760.2 | 1.20 | 462.46 | 1.79 | ||||||||||
| S-DY | s1 | 760.2 | 1.20 | 373.45 | 1.44 | 1.37 | 1.27 | 0.56 | 1.80 | 1.36 | 1.08 | 2.44 | 0.76 | 1.00 |
| s2 | 760.2 | 1.20 | 342.55 | 1.32 | ||||||||||
| s3 | 760.2 | 1.20 | 345.74 | 1.34 | ||||||||||
| Specimen | PSC Girder | PC Slab | Shear Connector | Flexural Strength (kN) | Horizontal Shear Strength (kN) | Design Shear Strength of Interface (MPa) | ||||||
|---|---|---|---|---|---|---|---|---|---|---|---|---|
| Compression Strength (MPa) | Modulus of Elasticity (MPa) | Compression Strength (MPa) | Modulus of Elasticity (MPa) | Cross- Sectional area (mm2) | Tensile Strength (MPa) | Quantity | Design | Nominal | Design | Nominal | ||
| Rebar_F | 49 | 35,100 | 44 | 33,980 | 380 | 400 | 74 | 955 | 1085 | 1082 | 1362 | 1.711 |
| DY_F | 49 | 35,100 | 44 | 33,980 | 380 | 569 | 48 | 955 | 1085 | 670 | 905 | 1.713 |
| DY_H | 49 | 35,100 | 44 | 33,980 | 380 | 569 | 20 | 955 | 1085 | 1081 | 1361 | 1.061 |
| Specimen | Vertical Deflection (mm) | Slip Displacement (mm) | Measured Ultimate Force (kN) | Flexural Strength (kN) | Horizontal Shear Strength (kN) | Fracture Mode | ||||||||
|---|---|---|---|---|---|---|---|---|---|---|---|---|---|---|
| 1/4L | 1/2L | 3/4L | 0 | 1/4L | 1/2L | 3/4L | L | Design | Safety Factor | Design | Safety Factor | |||
| Rebar_F | 47.9 | 94.8 | 53.3 | 1.24 | 1.22 | 1.66 | 8.23 | 8.47 | 1252.5 | 955 | 1.31 | 1081 | 1.16 | Flexural |
| DY_F | 51.3 | 97.2 | 51.3 | 5.34 | 5.71 | 0.05 | 4.33 | 3.86 | 1300.2 | 955 | 1.36 | 1082 | 1.20 | Flexural |
| DY_H | 66.0 | 124.4 | 68.5 | 9.22 | 8.93 | 1.67 | 15.03 | 15.07 | 1034.5 | 955 | 1.08 | 670 | 1.54 | Flexural and shear |
Disclaimer/Publisher’s Note: The statements, opinions and data contained in all publications are solely those of the individual author(s) and contributor(s) and not of MDPI and/or the editor(s). MDPI and/or the editor(s) disclaim responsibility for any injury to people or property resulting from any ideas, methods, instructions or products referred to in the content. |
© 2024 by the authors. Licensee MDPI, Basel, Switzerland. This article is an open access article distributed under the terms and conditions of the Creative Commons Attribution (CC BY) license (https://creativecommons.org/licenses/by/4.0/).
Share and Cite
Jung, D.-S.; Park, S.-H.; Han, J.-W.; Kim, C.-Y. Evaluation of Horizontal Shear Performance of Composite Girders Using Separable Shear Connectors. Appl. Sci. 2024, 14, 10982. https://doi.org/10.3390/app142310982
Jung D-S, Park S-H, Han J-W, Kim C-Y. Evaluation of Horizontal Shear Performance of Composite Girders Using Separable Shear Connectors. Applied Sciences. 2024; 14(23):10982. https://doi.org/10.3390/app142310982
Chicago/Turabian StyleJung, Dae-Sung, Se-Hyun Park, Jong-Wook Han, and Chul-Young Kim. 2024. "Evaluation of Horizontal Shear Performance of Composite Girders Using Separable Shear Connectors" Applied Sciences 14, no. 23: 10982. https://doi.org/10.3390/app142310982
APA StyleJung, D.-S., Park, S.-H., Han, J.-W., & Kim, C.-Y. (2024). Evaluation of Horizontal Shear Performance of Composite Girders Using Separable Shear Connectors. Applied Sciences, 14(23), 10982. https://doi.org/10.3390/app142310982

