Abstract
The structures laboratory is a crucial facility for supporting research development related to the construction industry. This kind of laboratory has several components, and one of its key components is the reaction wall. The reaction wall supports the execution of experimental tests on structural elements under specific configurations and loads. Constructing a reaction wall presents challenges due to the highest standards to be met. This research analyzes the construction process of a reaction wall at a private university in Peru. Initially, a schedule was proposed by a contractor. However, the client, knowing the complexity of such construction, asked to review the initial schedule to ensure that it would meet the constructability requirements under the integrated product-organization-process approach given by the virtual design and construction (VDC) methodology. The result of this study pointed out the need to revise the original proposed schedule, extending the construction time to 66% due to the lack of construction processes compatible with the requirements for the reaction wall’s execution. Finally, a survey was conducted to observe the learning curve associated with implementing the VDC methodology.
1. Introduction
Laboratories are crucial environments where researchers innovate and develop new scientific concepts [1]. A civil engineering laboratory serves as an academic setting for students and professionals to hone their skills for the future [2]. Therefore, its quality and safety standards are highly demanding. Constructing a laboratory presents significant challenges, as it entails meeting strict requirements within set deadlines. Compounding this challenge is the limited experience of contractors with the construction processes of reaction walls, given the infrequency of such projects within the industry.
A civil engineering laboratory may have many sub-laboratories, such as a material laboratory, soil laboratory, pavement laboratory, and structures laboratory. The structures laboratory involves testing with large equipment, posing significant safety risks. Inadequate equipment rigidity increases the likelihood of accidents and possible injuries to research personnel. To address this challenge, stricter standards for the quality of the construction and equipment of facilities are needed [3]. The quality management system depends on the methodologies adopted in the laboratory construction process. It also plays an important role in the integrity of the results of the research carried out.
The reaction wall stands out among the various components of a structural laboratory. It facilitates several experimental tests, such as evaluating seismic loads on structures. The stability of reaction walls hinges on their capacity to dissipate the energy exerted by tests without deformations. Therefore, implementing a reaction wall correctly is crucial to obtaining research results aligned with those encountered in construction development [4].
Constructing a rigid element such as a reaction wall presents challenges which add complexity to its implementation. First, its L-shaped design complicates the installation of numerous steel meshes, each composed of different types of steel and following factory specifications, requiring meticulous organization during distribution. Secondly, the significant volume of concrete required for single-point pouring, in addition to the considerable wall height, increases the risk of potential problems such as voids or segregation at the time of pouring and the heat of hydration. Therefore, to ensure the reliability of the results, the International Organization for Standardization (ISO) specifies the conditions that testing and calibration laboratories must meet, as described in the publication of ISO/IEC standard 17025:2017 [5]. Among these requirements is the condition of the laboratory facilities, which encompasses the proper arrangement of equipment, the design of the workstation, and compliance with all associated safety criteria. For all of the above, it was identified that constructing a reaction wall requires great coordination between the different parties involved in the project during its different phases, and it is necessary to use modern methodologies which seek collaborative management. Therefore, the virtual design and construction (VDC) methodology was implemented to improve quality, safety, communication, and productivity.
The VDC methodology, developed by the CIFE, effectively integrates various technological tools into the construction industry and has been taught and implemented in various projects globally since 2001 [6]. Furthermore, it can complement other modern methodologies, such as lean construction and lean project delivery system (LPDS) at various stages [7], providing stakeholders with actionable approaches to effectively approach, plan, and manage projects throughout the design and construction phases [8]. This is beneficial, as there is ample evidence that integrating disciplines, stages, and systems of design and construction activities is critical in large projects and an underlying theme of integrated approaches to project delivery [9].
The goal of VDC in the design phase is to use models to understand the complexity of a project and predict potential challenges before a large commitment of time or money is made [10] through metrics that are important yardsticks for architecture, engineering, and construction (AEC) teams to determine whether their projects are on track [11]. VDC is based on three fundamental components: building information modeling (BIM) allows simulation of a project to improve collaboration between interested parties, and this was adopted by the AECO industry in 2000 as a collaborative process for project management and to improve the efficiency of the construction industry [12]; integrated concurrent engineering (ICE), a methodology which consists of team members from multiple disciplines meeting to develop a coordinated work session, using integrated information to solve different problems [13]; and project production management (PPM), which considers the construction of a project as a production system and analyzes the achievable limits of the work to be carried out and ratified in distinct scenarios [14].The VDC methodology has been implemented and studied in several projects, as demonstrated by a study using Bayes’ theorem which analyzed data from 40 similar projects, concluding that more detailed use of VDC is correlated with greater possibilities of obtaining more benefits [15]. VDC adoption has gradually developed, but its implementation has been slow and predominantly confined to larger projects [16]. However, there is a notable absence of information linking the methodology to constructing laboratory reaction walls.
In this context, to guarantee quality, safety, and timely control in the construction of reaction walls while complying with the technical requirements set by international standards and the specific demands of the client, this research presents implementation of the VDC methodology to support the revision and improvement of the initial schedule with a realistic and precise construction process.
2. The Literature
Laboratories provide controlled environments where researchers drive scientific progress, facilitating the development of new insights and methodologies [1]. In civil engineering, dedicated laboratory spaces are essential for students and professionals, allowing them to build practical skills and empirically validate theoretical concepts [2]. However, constructing a civil engineering laboratory presents numerous complexities, particularly due to various risk factors which can be categorized into four main areas: human elements, objects, management processes, and environmental considerations [3].
A key structural component within the civil engineering laboratory is the reaction wall, which serves as the primary subject of this research. Effective design and implementation of reaction walls requires meticulous planning and an understanding of relevant construction processes [4]. By mapping out the construction process, project managers can establish reliable schedules crucial for maintaining timelines and budgets [17]. The virtual design and construction (VDC) methodology can enhance planning reliability. This approach facilitates more robust project planning by providing effective tools for integrating multidisciplinary data across all project phases, including design, planning, and construction [18].
Recent studies have highlighted the benefits of collaborative digital tools in construction, specifically noting the positive impact of VDC on project outcomes. These benefits are often quantified using specific metrics to measure improvements in project efficiency and quality [19,20]. For instance, employing the VDC framework reduced construction time significantly to 44 days for a reinforced concrete reaction slab in a structural laboratory setting [21]. The success of the VDC framework can be attributed to its structured approach, which begins by clearly defining client and project objectives. Subsequently, each project component is developed to set production objectives and identify controllable factors, ensuring the project aligns with its goals. This process leverages three core components: building information modeling (BIM), integrated concurrent engineering (ICE), and project production management (PPM) [6].
Each of these components offers distinct advantages. BIM, for example, enhances project coordination and visualization by creating detailed digital representations of built assets. Tools such as 4D BIM, which incorporates time as a dimension, support design and construction processes by enabling more reliable decision-making frameworks [22,23]. Studies have shown that BIM alone can reduce project timelines by up to 16% in complex industrial processes, thanks to its ability to improve coordination and streamline workflows [24]. The ICE component further augments project efficiency by fostering integrated management and facilitating real-time team collaboration. This approach enables teams to assess multiple design solutions through constant feedback and effective communication [15]. Finally, the PPM component focuses on optimizing production systems. It accomplishes this through three key areas: production system optimization, production engineering, and project production control. Together, these elements support the configuration, optimization, and control of production, ultimately enhancing project performance [23].
3. Materials and Methods
This research employs a mixed-method approach, integrating both qualitative and quantitative methodologies. From a qualitative standpoint, the construction activities related to the reaction wall are analyzed through observation, gathering insights and perspectives from key participants. On the other hand, quantitative analysis involves numerical data to track progress toward established goals throughout the project’s duration [25]. Additionally, a survey was conducted among primary stakeholders involved in the construction process to validate the efficacy of the methodology. This survey is also mixed since it obtains data on the perception of VDC and the number of participants who would replicate the use of the methodology in other projects. Quantitative and qualitative approaches enhance result interpretation and provide a comprehensive understanding of solutions to various construction processes, capturing stakeholder proposals and facilitating informed decisions based on quantitative findings. In Figure 1 is presented the research framework, which guided the present investigation.
Figure 1.
Research framework.
Understanding the reaction wall requires a deep study and design. This includes the loading conditions, the materials to be used, the working methods, and the characteristics of the environment. Knowing the criteria, each item in constructing this element can be planned.
The research started by formulating questions based on the client’s main objective: an efficient construction process and the early detection of possible planning and construction errors. The research asked, “How could the construction process of a reaction wall be efficiently developed in a structural laboratory?”.
A literature review was conducted from different sources such as the Scopus database and websites about construction, operation, and common requirements for reaction walls in structural laboratories. Then, selection criteria were applied to the found articles, as shown in Figure 1. The result was 18 highlighted articles which described the sequences necessary for the correct construction of a structures laboratory or others which detailed the implementation of VDC in different projects. This allowed us to identify the challenges and difficulties that arise in constructing a reaction wall and the information about the benefits which can be generated by applying VDC in a project with the characteristics of the reaction wall.
The construction process of the main items was validated to plan appropriately, and how the VDC methodology would be implemented was defined. Developing the implementation begins with the analysis of the product, organization, and process (POP) reflected in the VDC framework. The framework is about project optimization by taking advantage of different time-efficient tools to achieve a project’s goals and objectives [26]. Here, the goal that the client hopes to achieve is identified; this is called the client objective (OC). Secondly, the project objective (OP) is outlined, with which it is verified that the client’s objective is satisfactorily met.
The VDC framework was proposed with metrics and controllable factors for each component. These were updated periodically throughout the development of the project. According to the need to identify the main activities, the PPM component established its metrics and controllable factors. With BIM, a 4D simulation of the construction process of the most complex activities was carried out, presenting the ideas to the key actors during the ICE meetings through a detailed agenda. This facilitated the collaborative resolution of problems between project actors. Once the priority construction processes were mapped in PPM, some presented the need to be modeled, and others went directly to being discussed in the ICE meetings. In the first case, they entered the BIM component, where they sought to model these key procedures in 4D BIM with the Navisworks program (Autodesk) based on a 3D BIM model in Revit (Autodesk). Therefore, it was established as a controllable factor to reduce incompatibilities. The inconsistencies identified with the model in the different elements of the construction process selected improved the modeling over time. They reached last week’s goal with zero incompatibilities, as shown in the Results section. All of this is in favor of the objective of the BIM metric, which was intended to simulate the priority processes identified in PPM to improve their understanding. Metrics were measured for six weeks, and all simulations were completed by the end of the sixth week within the same period. When the processes modeled in BIM were ready, they were exposed along with the other construction processes which were not necessary to model, being mapped in PPM to an expert judgment at the ICE meeting with a detailed agenda. The stakeholders discussed and validated the simulations, proposed alternative solutions, and relied, when necessary, on the 4D BIM simulations which facilitated understanding. For the ICE component to fulfill its function, sending the agendas three days in advance was established as a controllable factor so that all participants knew what the meeting would specifically discuss and could deliver a better presentation. This was completed in 4 of the 5 weeks of the study. What made it easier to meet the established metrics was validating the different sequences selected in the PPM component in the meetings to be held, and the goal was achieved since the constructive process was completely analyzed and validated. Once the most appropriate solution was reached for the detail or construction process selected, it was implemented with its modifications in the general construction sequence of the project. It is important to highlight that once a detail to improve in a construction process was found in the ICE meetings, it returned to the PPM component to be analyzed again and see how the detail found could alter the entire construction process, as depicted in Figure 2.
Figure 2.
VDC component interrelation flow for the revised processes.
Finally, at the end of one of the last ICE meetings, an online survey was shared to measure interested parties’ perceptions about the application of VDC in project planning. The 16 participants answered the survey.
4. Results
The results were divided into two sections. The first one presents the detailed characteristics of the reaction wall, such as its dimensions, materials, structure, and distribution. The second section focuses on implementing the VDC methodology in the case study and its relationship with the primary objectives.
4.1. Reaction Wall Case Study
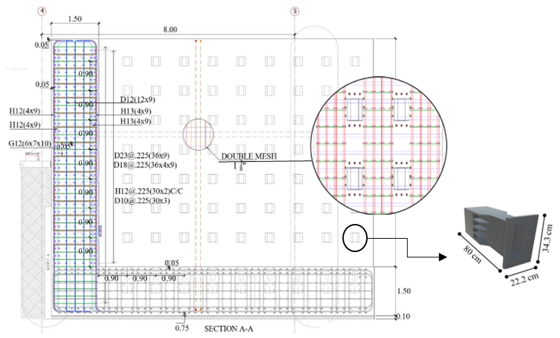
The Civil Engineering Program of Universidad de Lima has been implementing several specialized laboratories in Lima, Peru since the launch of the degree program in 2017. Among them is a structures laboratory which needs to implement a reaction wall for supporting different types of structural tests. The reaction wall is 8.5 m high, 1.5 m thick, 11 m long in one direction, and 10.19 m long in the other direction, and it is attached to a 1.5 m-wide reaction slab. The materials used in the construction process were mostly steel rods, ready-mixed concrete, and anchor boxes. The steel rods were mostly 1 3/8” in diameter and 1” and ½” rods with a coating of 5 cm in a double mesh for 74 tons of steel. For the boxes, 126 anchor boxes were used, being distributed every 90 cm. For the concrete, 250 m3 of ready-mixed concrete was used and delivered to the site by truck. The above details can be seen in Figure 3 and Figure 4.
Figure 3.
A 3D view of the reaction wall with dimensions.
Figure 4.
A 3D view of section A.
Figure 5 details the distribution of the steel rods in the reaction wall and their encounter with the anchorage boxes.
Figure 5.
View of section A of the reaction wall with the details of the double 1 3/8-inch steel mesh and a 3D model of the anchor boxes.
Table 1 presents the main characteristics of the retaining wall, including the dimensions, material type, number of anchor boxes, concrete volume, steel quantity, dowel diameter, reinforcement specifics for the rods, L-shaped wall type, and dimensions of the upper side.
Table 1.
Characteristics of the reaction wall.
Initially, an overall schedule for the entire structures laboratory was received, from which the initial retaining wall schedule was extracted as a Gantt chart (Figure 6). This initial construction scheduling process gave 38 days as the time required to construct the reaction wall for 17 tasks. However, based on the experience of those involved, the days initially projected seemed insufficient compared with the complexity of the structure. Therefore, the VDC methodology was applied to help understand and revise the initial schedule based on a collaborative approach.
Figure 6.
Timeline of the initial construction process.
4.2. Definition of the VDC Framework and Development of Production Metrics and Controllable Factors
The VDC project framework (Figure 7) was designed to ensure an easy understanding of the objectives and processes of each component (ICE, BIM, and PPM) to meet the client and project objectives. It also shows the production metrics and controllable factors used for each component. It is worth mentioning that metrics in VDC projects should be used throughout the project’s duration for continuous improvement of project processes and not only to measure the project’s final results [25].
Figure 7.
VDC framework.
The process began with the PPM component, which aimed to select priority construction processes such as steel distribution and concrete pouring. Activities which were correctly planned, needed some adjustments, and needed to be modeled for a better understanding and solution were identified. Seventeen activities were carried out in planning the construction of the reaction wall. The PPM production metric was the number of construction processes analyzed weekly. The BIM component was responsible for simulating the identified required construction processes and passed them to the ICE component for discussion and validation with the main actors. In these sessions, important decisions were made, such as where the material should be stored for quick access and that the concrete pouring had to be carried out in three parts.
On the other hand, when opportunities for improvement were identified, the PPM component was activated again to review the new construction process. From this sequence of constant review, there will be restrictions on, for example, the storage area for different materials such as steel, since there was little space in the workplace, the distribution of the formwork and scaffolding, since by having reinforced concrete in three parts, it was necessary to optimize the space for a constant flow of work. The lifting of these and other restrictions sometimes depended on other actors, and thus their solution requires a constant review of their statuses. The control of these restrictions weekly was extremely important to achieve activity planning. Each week, the goal was to comply with 100% of the restrictions results. Table 2 and Figure 8 show the PPM component’s production metrics and controllable factor.
Table 2.
Production metrics and controllable factor of the PPM component.
Figure 8.
PPM production metrics and PPM controllable factor.
The BIM component helped to find interferences and conflicts between construction plans and generate a simulation of the sequence of activities provided by PPM. Once the construction processes were selected in PPM, a 4D simulation was carried out for subsequent discussion in the ICE sessions. The production metric of this component sought to complete 100% of the construction processes which require a 4D simulation to improve their understanding. The 3D model needed reliability to achieve this, and thus the program carried out incompatibility identification. Initially, more than 250 incompatibilities were resolved weekly to have a completely clean model with 0 incompatibilities detected. Simulating all the items was unnecessary; rather, only those that required more discussion were simulated. Table 3 and Figure 9 show the production metrics and controllable factor associated with the process of the component.
Table 3.
Production metrics and controllable factor of the BIM component.
Figure 9.
BIM production metrics and controllable factor.
After recognizing the main conflicts and doubts of the construction processes identified in PPM and modeled in BIM, these were resolved through ICE sessions. In each of these sessions, the construction sequences identified with problems or simulated were studied, and 100% of these were validated by the main actors, thus facilitating the problem-solving process. It was important to ensure the involvement and participation of decision makers in the agenda, as it increased problem resolution by having the decision-making power to validate a constructive process. For this reason, detailed agenda invitations were sent 3 days in advance so that all interested parties were prepared for each meeting. The results for the ICE production metrics and controllable factor are shown in Table 4 and Figure 10.
Table 4.
Production metrics and controllable factor of the ICE component.
Figure 10.
ICE production metrics and ICE controllable factor.
The application of VDC increased the number of days. This is because the processes were reviewed collaboratively with all of the stakeholders’ opinions to adequately understand the processes in tasks such as concrete pouring, steel installation, and formwork and installation of anchor boxes in three parts as well as the entire project in general to guarantee the correct final result. In the initial programming, the activities mentioned were only measured from the contractor’s point of view, resulting in concrete pouring, steel installation, and formwork and anchor box installation being planned for one day per activity. However, after thorough evaluation via VDC, these tasks were increased to three days each. On the other hand, the installation of accessories reduced its duration from 18 to 11 days. These changes in days were captured in a Gantt chart (Figure 11) and displayed to all project stakeholders, demonstrating the 45 days required to construct the reaction wall.
Figure 11.
Timeline of the VDC process.
4.3. Analysis of Results
The initial schedule and the revised one applying the VDC methodology are presented below.
4.3.1. Initial Schedule
The initial schedule was proposed to build the reaction wall in a single assembly. In this way, the formworks, concrete, anchor caissons, and stripping of walls would be carried out in a single section. The first important milestone is the placement of the steel. The contractor would place and install the previously sized and coded 74 tons of steel into the wall, initially scheduled to last 6 days. Subsequently, the anchor boxes would be placed, with an estimated duration of 1 day. In addition, the anchors would need to be aligned and leveled, which was scheduled to take 3 days. The next element is the formworks, which lasts 1 day. Subsequently, accessories would have to be placed, initially scheduled for 18 days. The pouring of 250 m3 of concrete would be carried out in a single day, and finally, the wall would be completed with a 1 day finishing, tiling, painting, and cleaning stage. It was concluded that the appropriate schedule for completing the construction process of a reaction wall would be 38 days.
4.3.2. Revised Schedule with VDC
The construction process analysis with VDC began with the framework (Figure 7). The client’s objective was aligned with the projects, and the metrics and controllable factors for the three components were identified. The flow of the synergy methodology began with the PPM component, where the priority construction processes for the project were selected through its controllable factor, which reviewed and monitored the initial construction process and identified the different restrictions presented in it. This factor aimed to obtain 100% lifting of the mapped restrictions, which was met since all restrictions were identified and addressed. This was implemented so that the objective of the PPM component could be achieved: select the priority construction processes to discuss them with the specialists in the ICE meetings or, if necessary, model the process in BIM. For this reason, the goal was established that it was required to study at least three constructive processes per week to identify the most important or most problematic items for subsequent discussion, which was not fully met only in weeks one and three.
As explained above, the construction process of the reaction wall encountered several challenges, two of which were particularly significant and were resolved thanks to the VDC methodology. Firstly, the limited space on the site meant difficulties in moving, storing, and placing steel components. Given these elements’ considerable size and weight, meticulous coordination of movements within the work environment was essential. Upon arrival from the factory, the steel had to be carefully organized to facilitate its storage and subsequent placement within the wall.
The second challenge involved determining the optimal approach to assembling the formworks and pouring the concrete for the reaction wall. Massive concrete walls often face cracking and segregation due to inadequate compaction, exacerbated by the high congestion of steel. While surface remedies such as patching with mortar and epoxy (generally at a 1:3 ratio) are common, imperfections are unacceptable for a reaction wall [26].
To mitigate these challenges, the project team performed a 4D BIM simulation of the steel transfer, storage, and placement processes and reaction wall construction using Navisworks (Autodesk). This approach significantly improved the efficiency of the planning process, allowing the exploration of multiple real-life scenarios for steel handling and construction. Through collaborative efforts, the team identified the most optimal solutions. Consequently, the decision was made to pour the reaction wall into three strategically segmented parts, thereby mitigating segregation, cracking, and the heat of hydration.
The construction process modeled in 4D BIM provided more precise planning over time. The steel reinforcement perpendicular to the slab was modeled in 4D BIM (Figure 12a), showing the distribution of the scaffolding for the moment of installation of the anchor boxes and the formwork before pouring for the first section (Figure 12b), second section (Figure 12c), and third section. This was essential for correct interpretation by all interested parties. The result was that everyone involved understood the ideal sequence of work and had an idea of how the project would culminate (Figure 12d).
Figure 12.
(a) Installation of vertical steel attached to the reaction slab. (b) Scaffolding, formwork, and horizontal steel for the first section. (c) Scaffolding installation for the second section. (d) Concrete pouring for the second and third sections.
4.4. Results of Surveys
It can be seen that with the implementation, the participants who did not know VDC, which represented 13% of the initial group, were later divided between participants who understood the methodology a little or partially, which increased those who understood the methodology a little from 19% to 21% and those who partially understood the methodology from 31% to 36%, demonstrating that no participant after the implementation did not understand VDC.
Another factor to consider is the initial understanding and resilience to using the methodology. Although there may indeed be an initial coupling process, the percentage variation observed concerning knowledge of the VDC methodology in Figure 13 shows that the learning curve is user-friendly.
Figure 13.
Results of surveys carried out with the main actors of the project.
5. Discussion
Implementing the virtual design and construction (VDC) methodology in this study demonstrated its significant impact on complex construction projects, such as a reaction wall in a structural laboratory. Through the application of VDC, the construction process was refined to address technical challenges, resulting in an accurate and more manageable timeline. This section discusses these findings in the context of the existing literature, focusing on how VDC components—building information modeling (BIM), integrated concurrent engineering (ICE), and project production management (PPM)—contributed to achieving the project objectives and aligning with client expectations.
5.1. Initial Schedule vs. Revised Schedule with VDC
The initial schedule underestimated the complexity of constructing a reaction wall, proposing a 38 day timeline. However, after implementing VDC, the revised schedule was extended to 45 days, a 7 day increase essential to ensuring constructability and quality control, as presented in Figure 14. This extension aligns with previous research highlighting VDC’s role in revealing hidden complexities within project phases, leading to more precise scheduling and risk mitigation. For instance, the authors of [6] indicated that VDC methodologies can adjust timelines after thoroughly examining project intricacies.
Figure 14.
Comparison between the schedule (red) and the revised schedule with VDC (blue).
5.2. PPM Component: Streamlining Task Prioritization and Risk Management
The PPM component facilitated identifying and prioritizing critical construction tasks, as shown in Figure 14. The PPM process depicted the timeline required for such a specialized structure through mapping and addressing restrictions. This approach corresponds with the literature’s findings, where VDC’s production management capabilities are emphasized as a means to streamline complex construction tasks and increase accuracy in planning [8,9]. In this study, mapping restrictions enabled adjustments for essential tasks, such as pouring concrete and installing formworks, which were divided into multiple segments to manage risk more effectively. The benefits of these segmentations reflect the findings in [3], where the authors advocated for structured task breakdowns to enhance safety and constructability in laboratory settings.
5.3. The Role of BIM in Enhancing Visualization and Coordination
BIM was pivotal in resolving over 250 design inconsistencies identified during the project’s initial phase. By integrating 4D BIM, the project team could visualize construction sequences, reducing potential errors and minimizing rework. This outcome aligns with the research of the authors of [22], who found that BIM enhances project coordination and visualization, improving decision making and time management on construction sites. The current study further supports this by showing how 4D BIM enabled a thorough simulation of construction activities, which proved invaluable during ICE sessions.
The literature consistently supports BIM’s role in facilitating communication and coordination among stakeholders. This study’s ICE component capitalized on BIM’s visualization capabilities, allowing participants to assess and validate construction sequences effectively. This led to a 100% validation rate for the mapped sequences.
5.4. ICE Component: Enhancing Collaborative Decision Making
The ICE component of VDC promoted active collaboration, enabling experts to discuss and validate each construction sequence through scheduled meetings. This approach reflects the conclusions of the authors of [7], who identified ICE as a critical factor in fostering integrated decision-making processes within multidisciplinary teams. In this study, ICE led to a comprehensive evaluation of construction challenges, particularly in tasks like steel installation and concrete pouring, where expert input is essential for making informed adjustments.
The ICE sessions also benefited from agenda-sharing protocols, with meeting details distributed three days before. This preparation contributed to more focused and productive meetings, allowing stakeholders to come prepared with insights and queries. This finding aligns with the research in [10], which emphasized the importance of agenda-driven ICE sessions for enhancing engagement and expediting problem solving during construction projects. By structuring ICE meetings, the project achieved consensus and overcame potential construction barriers.
5.5. Validation of VDC Implementation among Stakeholders
The high level of stakeholder acceptance of VDC tools further underscores the methodology’s practical value in this project. The post-project survey indicated that 93.3% of the participants recognized the methodology’s role in identifying and resolving construction incompatibilities, which aligns with previous studies on VDC adoption. For example, the authors of [15] highlighted VDC’s effectiveness in improving stakeholder satisfaction and willingness to adopt the methodology in future projects due to its user-friendly learning curve and impactful outcomes. This study corroborates such findings, as stakeholders expressed a readiness to integrate VDC into other projects, indicating positive perceptions of its efficacy.
Moreover, the increase in the participants’ familiarity with VDC throughout the project suggests that VDC can be effectively integrated into projects, even among those unfamiliar with the methodology. This trend echoes the conclusions of the authors of [10], who noted that VDC’s structured approach to project management facilitates a smooth learning process for new users, making it adaptable to various project scales and complexities. The survey results thus emphasize the potential for VDC to bridge knowledge gaps among participants, leading to more collaborative and informed decision making.
6. Conclusions
The construction of reaction walls in structures laboratories poses significant technical challenges due to their structural complexity and stringent performance requirements. By implementing the virtual design and construction (VDC) methodology, this study demonstrated a systematic approach to improving project planning and execution, achieving a more accurate and effective construction process. The VDC framework, supported by its core components—building information modeling (BIM), integrated concurrent engineering (ICE), and project production management (PPM)—allowed for the successful alignment of project objectives with client expectations.
In the PPM component, the methodology aimed to identify priority construction processes by mapping critical tasks and releasing restrictions, enabling smooth progression through each project phase. The initial Gantt chart estimated a 38 day timeline. However, due to the complexity uncovered through detailed simulations and ICE sessions, this timeline was revised to 45 days. This extension was justified as VDC provided a realistic depiction of the required tasks, reducing risks related to scheduling inaccuracies and enhancing constructability. This conclusion supports findings from previous studies, which suggest that VDC contributes to more precise scheduling and greater predictability in complex projects [6].
The BIM component was instrumental in reducing project risks by addressing over 250 design inconsistencies identified during the initial stages of the project. By utilizing 4D BIM, project teams could visualize construction sequences, reducing the potential for construction errors and reworking. This aligns with the existing literature on the effectiveness of BIM in optimizing project visualization and inter-team communication, as well as its impact on reducing timelines in construction projects [22]. The improved coordination also enhanced the ICE component’s efficacy, where construction sequences were validated through expert consultation, resulting in a 100% validation rate. This iterative approach ensured that all stakeholders were fully informed and prepared, improving decision-making speed and accuracy during the ICE sessions.
The study findings also align with the observed benefits of VDC in broader applications within the architecture, engineering, and construction (AEC) industry, particularly in enhancing collaborative work environments and improving project efficiency [19]. Moreover, implementing VDC for a specialized project like a reaction wall—a small-scale yet highly detailed structure—demonstrates that the methodology can be applied effectively beyond large infrastructure projects. This expands the existing body of research on VDC, primarily focusing on high-scale construction projects, by highlighting its applicability and benefits in more intricate and specialized construction environments.
The survey among project stakeholders showed strong acceptance of the VDC methodology, with 93.3% of participants acknowledging the methodology’s role in resolving construction incompatibilities and enhancing understanding of the construction process. This high level of acceptance, coupled with the willingness to adopt VDC in future projects, reinforces the methodology’s user-friendly nature and suggests a positive learning curve. These findings echo similar sentiments in the literature advocating for VDC’s integration into construction workflows to foster collaboration, streamline planning, and optimize project outcomes [24].
In conclusion, the application of VDC in this study not only facilitated a successful construction outcome for the reaction wall but also provided a comprehensive framework for project planning which is transferable to other construction projects of similar complexity. Future research could expand on these findings by implementing VDC from the design phase to maximize its benefits and assess its impact across different construction types. This study contributes to the growing body of evidence that, when effectively applied, VDC offers robust solutions for improving construction management and efficiency.
Author Contributions
Conceptualization, methodology, software, validation, investigation, data curation, writing—original draft, and visualization, R.R.F.; conceptualization, methodology, software, validation, investigation, data curation, writing—original draft, and visualization, N.V.E.; conceptualization, methodology, writing—review and editing, supervision, project administration, and validation, A.A.D.S. All authors have read and agreed to the published version of the manuscript.
Funding
This research received no external funding.
Data Availability Statement
The original contributions presented in the study are included in the article, further inquiries can be directed to the corresponding author.
Acknowledgments
The authors would like to gratefully acknowledge Universidad de Lima for the facilities provided for the investigation.
Conflicts of Interest
The authors declare no conflicts of interest.
References
- Sims, B. Safe Science. Soc. Stud. Sci. 2005, 35, 333–366. [Google Scholar] [CrossRef]
- Lal, S.; Lucey, A.D.; Lindsay, E.D.; Sarukkalige, P.R.; Mocerino, M.; Treagust, D.F.; Zadnik, M.G. An alternative approach to student assessment for engineering–laboratory learning. Australas. J. Eng. Educ. 2017, 22, 81–94. [Google Scholar] [CrossRef]
- Zhang, Y.; Mao, P.; Li, H.; Xu, Y.; You, D.; Liu, H.; Huang, W.; Yuan, J. Assessing the safety risks of civil engineering laboratories based on lab Criticity Index: A case study in Jiangsu province. Int. J. Environ. Res. Public Health 2020, 17, 6244. [Google Scholar] [CrossRef] [PubMed]
- Durgesh, C.; Jain, S.; Murty, C.V.R.; Bansal, D. Large Capacity Reaction Floor-Wall Assembly for Pseudo-Dynamic Testing at IIT Kanpur and Its Load Rating. Curr. Sci. 2014, 106, 93–100. Available online: http://www.i-scholar.in/index.php/CURS/article/view/86199 (accessed on 25 June 2024).
- ISO/IEC 17025; General Requirements for the Competence of Testing and Calibration Laboratories. International Organization for Standardization: Geneva, Switzerland, 2017.
- Del Savio, A.A.; Quincot, J.F.V.; Montalto, A.D.B.; Delgado, L.A.R.; Fischer, M. Virtual Design and Construction (VDC) Framework: A Current Review, Update and Discussion. Appl. Sci. 2022, 12, 12178. [Google Scholar] [CrossRef]
- Aslam, M.; Gao, Z.; Smith, G. Integrated implementation of Virtual Design and Construction (VDC) and lean project delivery system (LPDS). J. Build. Eng. 2021, 39, 102252. [Google Scholar] [CrossRef]
- Jin, Z.; Gambatese, J. Exploring the Potential of Technological innovations for temporary structures: A survey study. J. Constr. Eng. Manag. 2020, 146. [Google Scholar] [CrossRef]
- Ibrahim, N.H. Reviewing the evidence: Use of digital collaboration technologies in major building and infrastructure projects. J. Inf. Technol. Constr. (ITcon) 2013, 18, 40–63. Available online: https://www.itcon.org/2013/3 (accessed on 10 May 2024).
- Khanzode, A.; Fischer, M.; Reed, D.; Ballard, G. A Guide to Applying the Principles of Virtual Design & Construction (VDC) to the Lean Project Delivery Process; CIFE, Stanford University: Palo Alto, CA, USA, 2006. [Google Scholar]
- Majumdar, T.; Rasmussen, S.G.; Del Savio, A.A.; Johannesdottir, K.; Hjelseth, E.; Fischer, M. A Comparative Analysis of Production Metrics across VDC Implementations. In Construction Research Congress 2022: Project Management and Delivery, Controls, and Design and Materials—Selected Papers from Construction Research Congress 2022 (Vol. 3-C). (Construction Research Congress 2022); Jazizadeh, F., Shealy, T., Garvin, M.J., Eds.; American Society of Civil Engineers (ASCE): Reston, VA, USA. [CrossRef]
- Del Savio, A.A.; Velarde, K.G.; Díaz-Garay, B.; Pollard, E.V. A Methodology for Embedding Building Information Modelling (BIM) in an Undergraduate Civil Engineering Program. Appl. Sci. 2022, 12, 12203. [Google Scholar] [CrossRef]
- Majumdar, T.; Rasmussen, S.G.; Del Savio, A.A.; Johannesdottír, K.; Hjelseth, E.; Fischer, M.A. VDC in Practice: A Preliminary Categorization of Production Metrics reported in Scandinavia and Latin America. In Proceedings of the 30th Annual Conference of the International Group for Lean Construction (IGLC30), Edmonton, AB, Canada, 25–31 July 2022; pp. 1177–1185. [Google Scholar] [CrossRef]
- Nagatoishi, M.; Fruchter, R. Construction management in space: Explore solution space of optimal schedule and cost estimate. J. Inf. Technol. Constr. 2023, 28, 597–621. [Google Scholar] [CrossRef]
- Rischmoller, L.; Fischer, M.M.J.; Kunz, J.C. A study of virtual design and construction implementation and benefits using a bayesian approach. Rev. Constr. 2012, 11, 74–87. [Google Scholar] [CrossRef]
- Quiso, E.; Rivera, J.M.R.; Farje, J. Proposal for the application of ICE and BIM sessions to increase productivity in construction. J. Phys. Conf. Ser. 2021, 1803, 012027. [Google Scholar] [CrossRef]
- Gaur, S. Understanding the Importance of Project Planning and Scheduling in Indian Construction Projects; National Institute of Construction Management and Research: Pune, India, 2023. [Google Scholar]
- Didehvar, N.; Hosseinalipour, M.; Mohebifar, A. Benefits and Challenges of Applying Virtual Design and Constrution (VDC). J. Struct. Constr. Eng. 2017, 5, 139–152. [Google Scholar] [CrossRef]
- Fosse, R.; Ballard, G.; Fischer, M. Virtual Design and Construction: Aligning BIM and Lean in Practice. In Proceedings of the 25th Annual Conference of the International Group for Lean Construction, Heraklion, Greece, 9–12 July 2017; pp. 499–506. [Google Scholar]
- Kunz, J.; Fischer, M. Virtual design and construction. Constr. Manag. Econ. 2020, 38, 355–363. [Google Scholar] [CrossRef]
- Barcena, M.; Borja, M.C.; Del Savio, A.A. Construction process time optimization of a reinforced concrete reaction slab—Implementing the VDC methodology. In Book: ECPPM 2022—eWork and eBusiness in Architecture, Engineering and Construction 2022; CRC Press: Boca Raton, FL, USA, 2023. [Google Scholar] [CrossRef]
- Tuesta, R.; Vicuña, M.; Del Savio, A.A.; Palpan, A.; Valle, E.; Quiroz, F. Prefabricated Reinforcement in Construction Using VDC: Case Study Ovalo Monitor Bridge. In Proceedings of the 30th Annual Conference of the International Group for Lean Construction (IGLC30), Edmonton, AB, Canada, 25–31 July 2022; pp. 1008–1019. [Google Scholar] [CrossRef]
- Project Production Institute; Zabelle, T. Digital Technology and Project Production Management. J. Proj. Prod. Manag. 2019, 4, 15. [Google Scholar]
- Chocano, A.E.M.; Bustamante, D.A.F.; Del Savio, A.A. Optimization of Design Coordination Processes for a 7-Story Multifamily Building Using Virtual Design and Construction (VDC). In Proceedings of the 32nd Annual Conference of the International Group for Lean Construction (IGLC32), Auckland, New Zealand, 1–7 July 2024; Costa, D.B., Drevland, F., Florez-Perez, L., Eds.; Annual Conference of the International Group for Lean Construction (IGLC 32): Auckland, New Zealand, 2024; pp. 36–47. [Google Scholar] [CrossRef]
- Sampieri, R.H.; Collado, C.F.; Lucio, P.B.; Valencia, S.M.; Torres, C.P.M. Metodología de la Investigación; 2014. Available online: https://www.esup.edu.pe/wp-content/uploads/2020/12/2.%20Hernandez,%20Fernandez%20y%20Baptista-Metodolog%C3%ADa%20Investigacion%20Cientifica%206ta%20ed.pdf (accessed on 10 December 2023).
- Jovik, L.T. Tilrettelegging for god ICE-prosjektering. In Facilitation for Improved ICE Design; Drevland, F.O., Ed.; Institutt for Bygg, Anlegg Og Transport, Norges Teknisk-Naturvitenskapelige Universitet: Trondheim, Norway, 2012. [Google Scholar]
Disclaimer/Publisher’s Note: The statements, opinions and data contained in all publications are solely those of the individual author(s) and contributor(s) and not of MDPI and/or the editor(s). MDPI and/or the editor(s) disclaim responsibility for any injury to people or property resulting from any ideas, methods, instructions or products referred to in the content. |
© 2024 by the authors. Licensee MDPI, Basel, Switzerland. This article is an open access article distributed under the terms and conditions of the Creative Commons Attribution (CC BY) license (https://creativecommons.org/licenses/by/4.0/).













