Static Bearing Capacity Investigation of a Novel Prefabricated Light-Steel Beam–Column Connection
Abstract
:1. Introduction
2. Specimen Fabrication
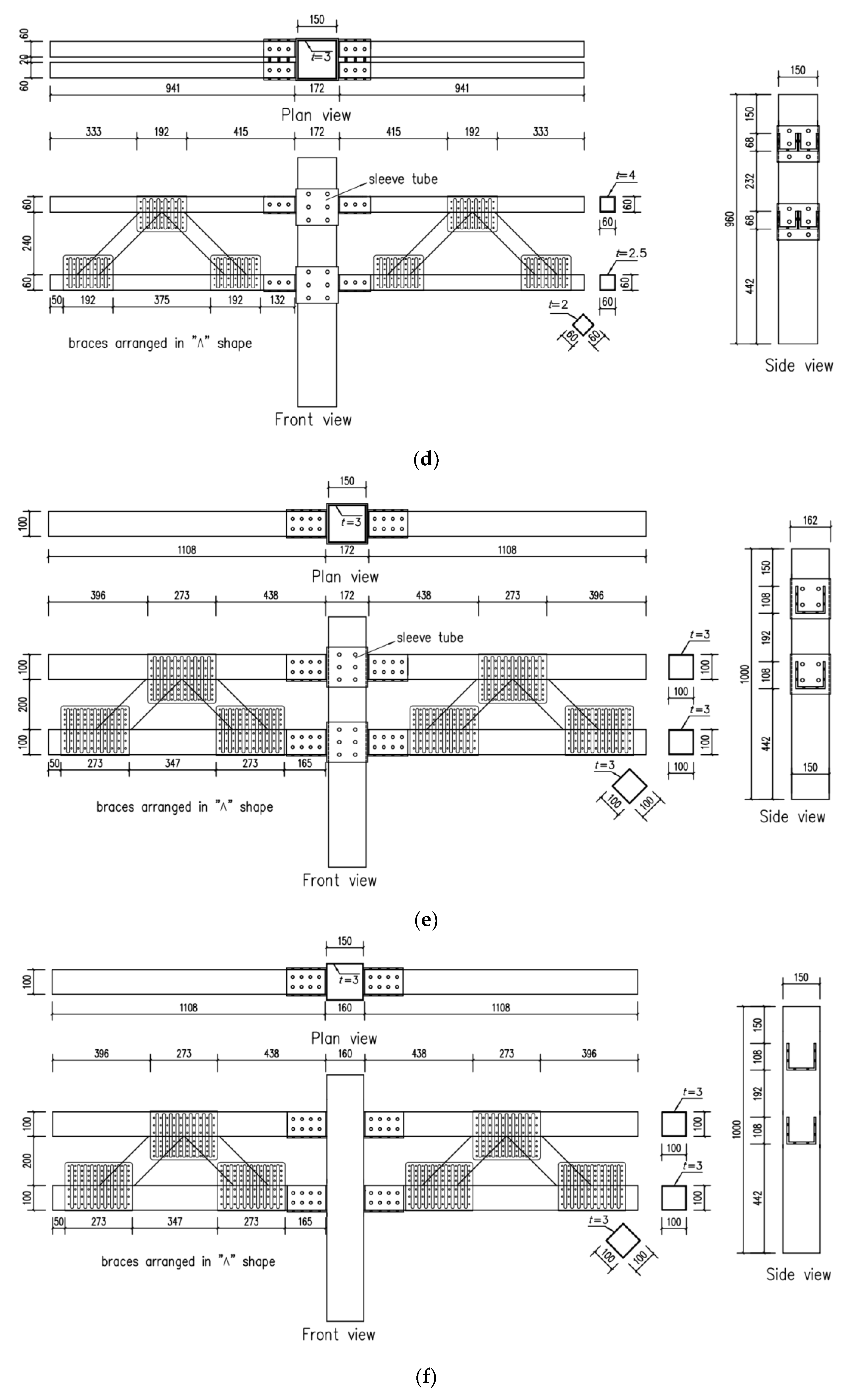
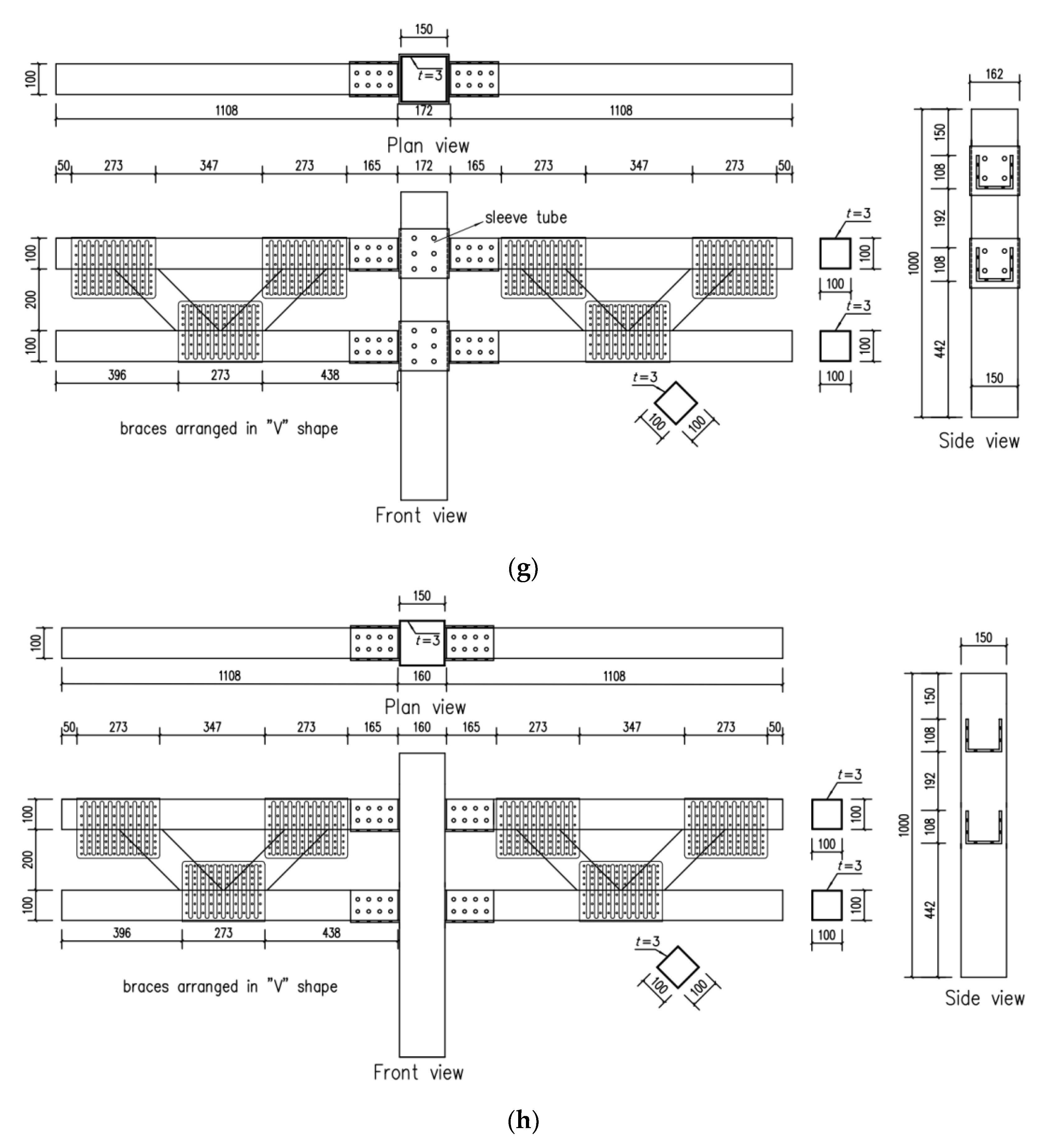
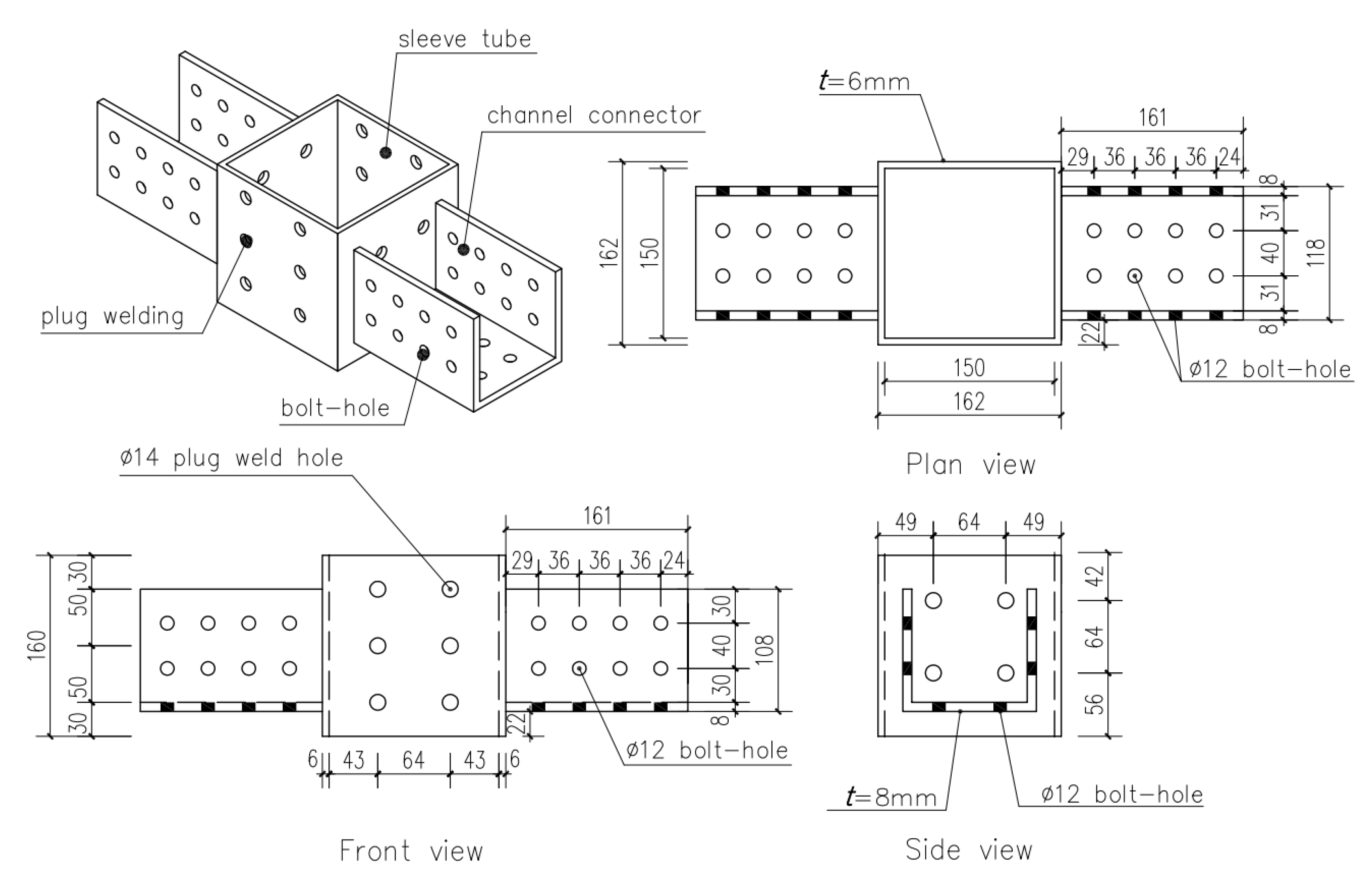
2.1. Configurations and Dimensions of Specimens
2.2. Steel Material Properties
2.3. Displacement-Transducer Deployment
2.4. Test Rig and Loading Scheme
3. Experimental Results
3.1. Deformation and Failure Characteristics
3.2. Loading–Displacement Curves
3.3. Effect of the Column Sleeve Tube on the Proposed Beam–Column Connection
3.4. Effect of the Truss-Beam Configuration on the Proposed Beam–Column Connection
3.5. Effect of the Truss-Beam Type on the Proposed Beam–Column Connection
4. Conclusions
- (1)
- A sleeve tube plug-welded to the thin-wall RHS column can significantly increase the static bearing capacity of the proposed connection because it can effectively prevent local buckling of the RHS column. In engineering practice, it is recommended to use a sleeve tube to locally reinforce the thin-wall RHS column for the proposed connection.
- (2)
- The light-steel beam–column connection has a higher load-bearing capacity and a lower deflection of the truss-beam when the brace members are arranged in a “V” shape.
- (3)
- For specimens without a sleeve tube to reinforce the thin-wall RHS column, those with double-truss beams have a higher load-bearing capacity and a lower deflection compared to their counterpart composed of single-truss beams. However, for specimens with a column locally reinforced with a sleeve tube a single-truss beam has a higher load-bearing capacity and a lower deflection compared to the counterpart composed of double-truss beams. Because double-truss beams are more troublesome to fabricate and require more material, it is recommended to use single-truss beams for the proposed light-steel beam–column connection.
- (4)
- For all the specimen tested, four types of local failure were observed: local column buckling, fillet-weld fracture, U-connector buckling, and local buckling of the slotted region of the chord under compression. Local column buckling can be prevented by using a sleeve tube. Fillet-weld quality should be guaranteed to avoid early failure of the connection due to weld fracture. U-connector buckling was only observed for specimens JU100-1 and JU100-3, and it appears that U-connector buckling only occurs when the fillet weld of the proposed beam–column connection is sufficiently strong. In order to reduce local failure of the slotted region of the chord under compression, it is necessary to control the deformation of the sidewall of the slotted region of the chord during slotting and assembly processes.
Author Contributions
Funding
Institutional Review Board Statement
Informed Consent Statement
Data Availability Statement
Acknowledgments
Conflicts of Interest
References
- Zaharia, R.; Dubina, D. Stiffness of joints in bolted connected cold-formed steel trusses. J. Constr. Steel Res. 2006, 62, 240–249. [Google Scholar] [CrossRef]
- Dawe, J.L.; Liu, Y.; Li, J.Y. Strength and behaviour of cold-formed steel offset trusses. J. Constr. Steel Res. 2010, 66, 556–565. [Google Scholar] [CrossRef]
- Sabbagh, A.B.; Petkovski, M.; Pilakoutas, K.; Mir-ghaderi, R. Ductile moment-resisting frames using cold-formed steel sections: An analytical Investigation. J. Constr. Steel Res. 2011, 67, 634–646. [Google Scholar] [CrossRef]
- Sabbagh, A.B.; Petkovski, M.; Pilakoutas, K.; Mir-ghaderi, R. Cyclic behaviour of bolted cold-formed steel moment connections: FE modelling including slip. J. Constr. Steel Res. 2013, 80, 100–108. [Google Scholar] [CrossRef]
- Mathieson, C.; Clifton, G.C.; Lim, J.B.P. Novel pin-jointed connection for cold-formed steel trusses. J. Constr. Steel Res. 2016, 116, 173–182. [Google Scholar] [CrossRef]
- Mathieson, C.; Roy, K.; Clifton, C.; Ahmadi, A.; Lim, J.B.P. Failure mechanism and bearing capacity of cold-formed steel trusses with HRC connectors. Eng. Struct. 2019, 201, 109741. [Google Scholar] [CrossRef]
- Henriques, J.; Rosa, N.; Gervasio, H.; Santos, P.; Silva, L.S. Structural performance of light steel framing panels using screw connections subjected to lateral loading. Thin-Walled Struct. 2017, 121, 67–88. [Google Scholar] [CrossRef]
- Bondok, D.H.; Salim, H.A. Failure capacities of cold-formed steel roof trusses end-connections. Thin-Walled Struct. 2017, 121, 57–66. [Google Scholar] [CrossRef]
- Bučmys, Ž.; Daniūnas, A.; Jaspart, J.; Demonce-au, J. A component method for cold-formed steel beam-to-column bolted gusset plate joints. Thin–Walled Struct. 2018, 123, 520–527. [Google Scholar] [CrossRef]
- McCrum, D.P.; Simon, J.; Grimes, M.; Broderick, B.M.; Lim, J.B.P.; Wrzesien, A.M. Experimental cyclic performance of cold-formed steel bolted moment resisting frames. Eng. Struct. 2019, 181, 1–14. [Google Scholar] [CrossRef] [Green Version]
- Ye, J.; Mojtabaei, S.M.; Hajirasouliha, I. Seismic performance of cold-formed steel bolted moment connections with bolting friction-slip mechanism. J. Constr. Steel Res. 2019, 156, 122–136. [Google Scholar] [CrossRef] [Green Version]
- Ye, J.; Mojtabaei, S.M.; Hajirasouliha, I.; Pilakoutas, K. Efficient design of cold-formed steel bolted-moment connections for earthquake resistant frames. Thin-Walled Struct. 2020, 150, 105926. [Google Scholar] [CrossRef]
- Dizdar, Ç.; Baran, E.; Topkaya, C. Strength and stiffness of floor trusses fabricated from cold-formed steel lipped channels. Eng. Struct. 2019, 181, 437–457. [Google Scholar] [CrossRef]
- Natesan, V.; Madhavan, M. Experimental study on beam-to-column clip angle bolted connection. Thin-Walled Struct. 2019, 141, 540–553. [Google Scholar] [CrossRef]
- Natesan, V.; Shanmugasundaram, B.; Madhavan, M. Comparative experimental studies on the web cleat bolted CFSbeam-to-column connection. J. Constr. Steel Res. 2020, 170, 106080. [Google Scholar] [CrossRef]
- Song, L.; Yan, W.; Yu, C.; Xie, Z.; Tan, Q. Flexural behavior investigation of the CFS truss beams with self-piercing riveted connection. J. Constr. Steel Res. 2019, 156, 28–45. [Google Scholar] [CrossRef]
- Song, L.; Yan, W.; Zhang, X.; Yu, C.; Xie, Z. Feasibility research on the application of self-piercing riveted connection in cold-formed steel structures. J. Constr. Steel Res. 2020, 168, 105957. [Google Scholar] [CrossRef]
- Fahmy, A.S.; Swelem, S.M.; Mussttaf, H.H. Beam-Column Connections Behavior of Cold-Formed Steel Members: New Experimental Configuration. KSCE J. Civ. Eng. 2020, 24, 2147–2159. [Google Scholar] [CrossRef]
- Wang, J.; Wang, W.; Xiao, Y.; Guo, L. Cyclic behavior tests and evaluation of CFS truss composite floors. J. Build. Eng. 2021, 35, 101974. [Google Scholar] [CrossRef]
- Chen, X.; Blum, H.B.; Roy, K.; Pouladi, P.; Uzzaman, A.; Lim, J.B.P. Cold-formed steel portal frame moment-resisting joints: Behaviour, capacity and design. J. Constr. Steel Res. 2021, 183, 106718. [Google Scholar] [CrossRef]
- Wang, F.; Han, Y.; Yang, J. Nonlinear FE analysis on stiffness and resistance of bolted cold-formed steel built-up joints. Structures 2021, 33, 2520–2533. [Google Scholar] [CrossRef]
- Osman, H.S.; Serror, M.H.; Fathallah, E. Numerical study on the rotation capacity of SIP-strengthened cold-formed steel beams. Eng. Struct. 2022, 251, 113542. [Google Scholar] [CrossRef]
- Wang, X.; Yuan, X.; Zeng, H.; Li, T.; Liang, Y.; Gao, X.; Yu, Y. Bearing capacity and failure mode of a light-steel tubular K-joint connected by a novel U-shape connector. Appl. Sci. 2021, 11, 8587. [Google Scholar] [CrossRef]




















| Component | Yield Stress (MPa) | Elastic Modulus (Gpa) | Ultimate Stress (Mpa) | Elongation Rate (%) |
|---|---|---|---|---|
| SHS brace members of specimens named JU60 | 342 | 202 | 409 | 24.2 |
| Upper SHS chord members of specimens named JU60 | 274 | 196 | 438 | 26.2 |
| Below SHS chord members of specimens named JU60 | 333 | 213 | 414 | 14.3 |
| SHS chord and brace members of specimens named JU100 | 303 | 202 | 467 | 22.2 |
| SHS column | 307 | 205 | 467 | 21.0 |
| SHS sleeve tube | 343 | 213 | 477 | 24.4 |
| Channel connector | 488 | 213 | 554 | 18.6 |
| U60 U connector | 314 | 179 | 331 | 22.9 |
| U100 U connector | 286 | 213 | 312 | 21.1 |
| Specimen | Sleeve Tube | Deformation and Failure Characteristics |
|---|---|---|
| JU60-1 | No | Truss-beam global deflection; local column buckling; fillet-weld fracture |
| JU60-2 | Yes | Truss-beam global deflection; fillet-weld fracture |
| JU60-3 | No | Truss-beam global deflection; local column buckling; local buckling of the slotted region of the below chord |
| JU60-4 | Yes | Truss-beam global deflection; fillet-weld fracture |
| JU100-1 | Yes | Truss-beam global deflection; U-connector buckling |
| JU100-2 | No | Truss-beam global deflection; local column buckling; local buckling of the slotted region of the below chord |
| JU100-3 | Yes | Truss-beam global deflection; U-connector buckling |
| JU100-4 | No | Truss-beam global deflection; fillet-weld fracture |
| Specimen No. | Channel Connector Type | Sleeve Tube | Truss-Beam Configuration | Maximum Loading/(kN) | Maximum Vertical Deflection/(mm) | Arm Length/(mm) | Maximum Bending Moment/(kN m) |
|---|---|---|---|---|---|---|---|
| JU60-1 | Double-channel | No | “V”-shaped brace arrangement | 24 | 24.7 | 800 | 19.2 |
| JU60-2 | Double-channel | Yes | “V”-shaped brace arrangement | 31 | 24.6 | 806 | 25.0 |
| JU60-3 | Double-channel | No | “∧”-shaped brace arrangement | 32 | 34.0 | 516 | 16.5 |
| JU60-4 | Double-channel | Yes | “∧”-shaped brace arrangement | 50 | 43.2 | 522 | 26.1 |
| JU100-1 | Single-channel | Yes | “∧”-shaped brace arrangement | 76 | 29.5 | 585.5 | 44.5 |
| JU100-2 | Single-channel | No | “∧”-shaped brace arrangement | 22 | 39.2 | 579.5 | 12.7 |
| JU100-3 | Single-channel | Yes | “V”-shaped brace arrangement | 60 | 23.0 | 932.5 | 56.0 |
| JU100-4 | Single-channel | No | “V”-shaped brace arrangement | 17 | 43.8 | 926.5 | 15.7 |
Publisher’s Note: MDPI stays neutral with regard to jurisdictional claims in published maps and institutional affiliations. |
© 2022 by the authors. Licensee MDPI, Basel, Switzerland. This article is an open access article distributed under the terms and conditions of the Creative Commons Attribution (CC BY) license (https://creativecommons.org/licenses/by/4.0/).
Share and Cite
Wang, X.; Liu, F.; Li, X.; Li, T.; Xu, X.; Shui, Z.; Wu, H. Static Bearing Capacity Investigation of a Novel Prefabricated Light-Steel Beam–Column Connection. Appl. Sci. 2022, 12, 4387. https://doi.org/10.3390/app12094387
Wang X, Liu F, Li X, Li T, Xu X, Shui Z, Wu H. Static Bearing Capacity Investigation of a Novel Prefabricated Light-Steel Beam–Column Connection. Applied Sciences. 2022; 12(9):4387. https://doi.org/10.3390/app12094387
Chicago/Turabian StyleWang, Xiaoping, Fuyong Liu, Xiangxue Li, Tao Li, Xiaoqin Xu, Zhonghe Shui, and Huancheng Wu. 2022. "Static Bearing Capacity Investigation of a Novel Prefabricated Light-Steel Beam–Column Connection" Applied Sciences 12, no. 9: 4387. https://doi.org/10.3390/app12094387
APA StyleWang, X., Liu, F., Li, X., Li, T., Xu, X., Shui, Z., & Wu, H. (2022). Static Bearing Capacity Investigation of a Novel Prefabricated Light-Steel Beam–Column Connection. Applied Sciences, 12(9), 4387. https://doi.org/10.3390/app12094387

