Abstract
The development of automatic gearbox control systems contributes to their increasing popularity. By raising the number of gears and sophisticated algorithms, the reduction of fuel consumption is feasible regarding traditional manual transmissions. The continuously variable transmissions (CVT) are also growing their share of the market. Wet clutches are employed in all types of automatic transmissions, but because of oil viscosity, when such a type of clutch is disengaged, the drag torque phenomenon occurs. This deteriorates the global efficiency of the transmission system. To recognize the nature of this drag torque and how it is influenced by the main parameters (distance between plates, value of oil flow rate lubricating clutch, oil temperature, rotational speed between plates), a new test stand has been designed and assembled. The value of rotational speed has been studied up to 7000 rpm which is novel in literature. Due to strongly nonlinear dependences, the achieved results can contribute to designing more efficient clutch systems due to the strongly nonlinear nature of observed phenomena.
1. Introduction
The rotational speed of internal combustion engines is limited by the filling efficiency for spark-ignition engines and the rate of pressure increase for diesel engines. The constant striving to increase the engine power with the simultaneous down-sizing process forces the designers to devise solutions allowing for the increase in engine rotational speed. However, this leads to an increase in rotational speeds in the elements of transmission, such as clutches, gears, bearings, etc. On the other hand, the prices of gas and environmental issues draws attention to the efficiency of the whole drive system.
A passenger car has become an indispensable element of our everyday life. The increase in the wealth of society and the competition of car manufacturers to ensure more and more travel comfort resulted in increased interest in the use of automatic transmissions in the drive system. Here, more and more sophisticated control algorithms can boost the efficiency of the driveline, which is in line with the trend of reducing fuel consumption to protect the environment. Therefore, investigating the sources of losses in the automatic gearboxes seems to be significant in order to evaluate them and to minimize or even eliminate them.
One of the sources of losses in an automatic transmission is the drag torque of the wet brakes and clutches, commonly used in the automatic gearboxes of the automotive industry. This issue is widely described in the literature, however, as it was mentioned before, the rotational speed of the combustion engines has been increased, and the new range of speed needs to be tested. This study deals with the rotational speed up to 7000 rpm which is novel in literature. Due to strongly nonlinear dependences, the achieved results can contribute to designing more efficient clutch systems due to the strongly nonlinear nature of observed phenomena.
These clutches are usually multidisc and compressed against each other to be able to transmit sufficient torque by friction. Frequent engaging and disengaging of the clutches, and therefore, the necessity to equalize the rotational speeds of the individual friction pairs causes the generation of heat which must be extracted. For this reason, oil is used by which these clutches are cooled. On the other hand, when the clutches are disengaged, the oil film between the rotating friction plates is sheared, resulting in the drag torque which influences the fuel economy.
This problem and the accompanying phenomena are discussed in the literature.
Leighton et al. [1] investigated losses in a wet brake centrally supplied with oil at different temperatures. It appears that at low temperatures, the influence of cavitation is significant due to the micro-hydrodynamic phenomenon, which is additionally intensified by higher fluid viscosity. Moreover, the oil film between the friction pairs breaks in some working circumstances. Comparable conclusions have been previously described by Lloyd [2] based on his research on wet clutches that are centrally lubricated. He also noticed that the drag torque strictly depends on the relative rotational speed of discs.
Jibin et al. [3] presented an experimental study of a single-plate wet clutch with different design factors and lubrication conditions. It was shown that for low speed, the oil totally overlays the disc surface and for high speed, the gap is filled with a mixture of oil and air. Therefore, the observed drag torque at low speeds increases linearly and slowly decreases at higher speeds.
Pahlovy et al. [4] also noticed that the drag torque depends on the clutch disc’s rotational speed. He observed that small air bubbles appear in the oil at low speed. As the rotational speed increased, the air bubbles also grew. The outcomes from the developed gas cavitation model are almost coincident with the experimental test results.
Pan and Zhou [5], based on their research, have made the following conclusion: the rotating discs of the disengaged wet clutch create drag torque which is changing with relative rotational speed. Three stages from the operating range of such a clutch can be distinguished: (a) low speed, the clearance between the discs is fully filled with single-phase fluid, drag torque increases linearly with increasing the relative speed; (b) medium speed, the fluid film becomes discontinuous, the clearance between the discs is filled with two-phase fluid, drag torque decreases with increasing speed; (c) high speed, the rotating discs are getting closer to each other due to the negative value of fluid pressure in the gap, drag torque increases again with increasing speed. However, their conclusions are based on the results obtained for rotational speed up to 4000 rpm.
Similar research was led by Wu et al. [6]. The two-disc system with open grooves has been designed and manufactured. The presented solution allowed us to identify the fluid flow pattern between the discs at the low-speed condition (240 rpm). The researchers also observed three types of flow patterns depending on the fluid flow rate and the plates clearance. They concluded that it is caused by the centrifugal force coupling effect, fluid shearing force and surface tension. Moreover, the change of single-phase fluid to air-liquid mixture flow is determined by insufficient flow supply.
Takagi et al. [7] proposed the use of a three-dimensional model to simulate the operation of a disengaged wet clutch. Even though in the clearance between the rotating discs at higher speeds, a two-phase fluid flow is observed. The authors decided to use a single-phase model, which significantly reduced the time of numerical calculations. However, the results obtained from such a model are in line with the experimental tests only in terms of low rotational speeds for which the formation of an oil-air mixture does not occur.
Iqbal et al. [8] used continuity and Navier–Stokes equations taking into account the laminar flow. The model uses both the shear of the oil film and the air bubble content that causes the oil film to break. The simulations were compared with the experiment, and it can be noticed that the results accurately reflect the drag torque as a function of rotational speed, even for high relative speeds of the discs. This model is more complicated than the one described by Takagi et al. [7] but still its simplicity makes it suitable for online control and optimization.
A mathematical model was also developed by Morris et al. [9]. It allowed us to analyze the influence of various parameters on the drag torque in a disengaged clutch. The model was experimentally verified, and its novelty was that instead of the cavitation boundary condition which is commonly used in this type of simulation, the authors implemented an incipient reverse flow (Prandtl–Hopkins) condition to determine the moment of the oil film separation. The obtained results show that the assumed model of fluid film separation is in coincidence with the experimental measurements.
Hu et al. [10] made an attempt to simulate the drag torque in open wet clutches caused by the mechanical contact at high circumferential speed. The proposed solution takes into consideration a rigid-body impact model. The results demonstrate the advantage of this idea which is the possibility to predict the drag torque with high accuracy even at a high-speed range. Moreover, the calculations show that the drag torque increases with larger fluid flow.
The influence of fluid flow on the heat exchange processes in the multidisc clutches was studied by Ma et al. [11]. The research was performed for three different oil flows: 1, 2 and 3 L per minute for each single pair of plates. The simulation model and the test on the bench confirmed that the larger the lubrication flow, the slower the temperature rise of the clutch, and the faster the temperature rise of the oil. However, the influence of the oil flow on the drag torque between the rotating discs was not the subject of these studies.
Another parameter that influences the drag torque of the disengaged clutches is the oil viscosity. Zheng et al. [12] investigated the influence of lubrication oil (ATF) temperature on disengaging dynamic characteristics through a comprehensive numerical model for the clutch disengaging process. The results presented in the conclusion indicate that the increase in oil temperature not only accelerates the change of the lubrication status between the discs but also leads to the decrease in friction torque and hydrodynamic torque.
Li et al. [13] studied the influence of the clearance between the wet disc clutches on the drag torque. The test was conducted for three values of the gap: 0.3 mm, 0.5 mm and 1 mm. The results have shown that the clearance is a significant parameter with sensitivity on the drag torque higher than the oil flow or oil density. Clearance between the disks is also studied to understand their effect on the torque by Aphale et al. [14]. The authors took into consideration the distance of 0.1 mm and 0.2 mm. The result from the experiment shows that the drag torque is more than 50% lower for the wider gap. In the conclusion, the authors stated that clearance has the most significant effect on reducing drag torque.
The aim of the research presented below is to recognize the influence of different factors on drag torque value between discs of wet clutch for rotational speed up to 7000 rpm. The investigated factors and investigation ranges were as follows:
- the gap between clutch discs from 0.05 mm up to 0.5 mm
- ○
- based on the work of Li at al. [13] and Aphale et al. [14];
- the oil flow rate from 0 to 6 L/min and
- ○
- based on the work of Ma et al. [11];
- the temperature of oil from 25 deg C to 80 deg C
- ○
- based on the theoretical analysis of Zheng et al. [12].
2. Experimental Setup
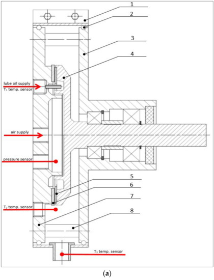
A test stand has been designed (Figure 1 and Figure 2), where only one pair of discs was employed and an oil-air mixture was delivered into the space between them. The two-phase oil-air mixture simulates more accurately the conditions that can be met in an automatic gearbox in comparison to one-phase oil supply. The main module of the test stand (Figure 1a) consists of two immovable flanges 7 and 3. The oil and pressurized air supply are plugged into flange 7 and generate an oil-air mixture between the discs. The delivered air has a constant pressure of 0.05 MPa. There are also connections for the pressure sensor and two temperature sensors, T1 and T2, that measure the air pressure and oil temperature inside and outside the discs. The temperature of oil outflow is measured by sensor T3 at the bottom side of the module. The immovable disc 6 is fixed to flange 7. A rotating disc 5 is assembled to shaft 4 which is supported by two bearings. The whole module is sealed by cover 1 with an O-ring seal 2. The gap between clutch discs is controlled by sleeve 8.
The test module is marked as “A” in Figure 1b where the scheme of the complete test rig is presented. The module’s shaft is connected to torquemeter 9 and further by belt transmission 10 to an electric motor 11. Because the maximal rotational speed of electric motor 11 is nearly 3000 rpm, the use of the belt transmission was necessary to achieve 7000 rpm. This range of rotational speed corresponds to values that are typical for today’s combustion engines. The rotational speed of electric motor 11 is controlled by manual voltage control panel 13 and inverter 12. All electric signals from sensors are gathered by the NI USB 6211 data acquisition system marked by number 16 and proceed and saved at a PC computer by the Lab View 2014 application (number 17). The oil delivered to the main module is supplied by the hydraulic station 14 with a temperature and oil flow rate control unit. Additional pump 15 pumps the oil from module’s output again to hydraulic station 14.
Figure 2a presents the view of the assembled test module, Figure 2b depicts the general overview of the test rig.
The pair of investigated clutch discs originated from the popular General Motors’ automatic transmission, model 6T45E. The corresponding transmission oil was applied which met the standards of General Motor’s DEXRON VI norm.

Figure 1.
The scheme of the test rig: (a) test module; (b) general overview. Description in text above.
Figure 2.
Photos of the test bench: (a) view of the test module; (b) general view of the test rig Description in text above.
3. Results and Discussion
Drag torque measured on the rig consists of the drag induced by the discs and caused by the bearings and sealing. Although, the scope of investigation covered the speed between discs ranging from 300 to 7000 rpm, four disc gaps: 0.5, 0.25, 0.15 and 0.05 mm, four oil flow rates: 0, 1, 3, 6 L/min, three oil temperatures 25, 55, 80 °C and tests for an extended gap of 0.75 mm were carried out additionally to determine the drag torque produced by bearings and sealing. In all cases, the air was delivered between discs at a constant pressure of 0.05 MPa apart from tests for 0.75 mm which were performed for all temperatures but without any oil and airflow. The test program is shown in Table 1. All presented results are the average of measurements repeated twice and are the net discs drag torque with subtracted torque of bearings and sealing.
Table 1.
Test schedule.
The measurements were conducted according to the following procedure. For each of the four gaps, three oil temperatures were investigated. At each temperature, four oil flows rates were applied and for each of them, the series of 15 measurement points were captured for different rotational speeds.
The proposed concept of analysis of one pair of discs appears to be easier in implementation, compared to the multidisc clutch configuration reported elsewhere [5,8,9]. In multidisc conception, the layout of oil flow rates and slippage between specific disc pairs can be noticeably different which makes the research more complex.
The solution when one disc is stationary and the second rotates is popular in the literature [3,6,7], as the control of the rotational speed of one electric motor is easier and more accurate, compared to the solution with two discs rotating in opposite directions [8].
Figure 3 depicts the results for disc drag torque as a function of rotational speed for the gap of 0.5 mm, the oil flow rate of 6 L/min and 25, 55 and 85 °C of oil temperature. The influence of temperature is clearly seen. Due to viscosity change, the higher temperature gives the lower drag torque. At each temperature, the torque increases proportionally to the viscosity change up to about 5000 rpm. Then, between 6000 and 6500 rpm, it achieves the maximum and drops about 10% at the highest speed of 7000 rpm. Pan and Zhou [5] explain this run by the change of oil flow mode between the discs: from one-phase at low speed to two-phase with gas bubbles at high speed.
Figure 3.
Influence of oil temperature on drag torque characteristics—gap between plates 0.5 mm, oil flow rate 6 L/min.
In Figure 4, the results for the same gap between the discs and oil temperature of 80 °C but various oil flow rates are presented. It can be noticed that the increase in the oil flow rate causes higher disc drag torque. For oil flow equal to 3 and 6 L/min, the torque runs have a clear maximum. For lower flow rates, the curves become flatter, and the position of maximum shifts to the left towards lower speed. It seems that at speeds over 6000–6500 rpm there is a lack of oil in the oil-air mixture and the space between discs is filled by the less viscous air.
Figure 4.
Influence of oil flow rate on drag torque characteristics—gap between plates 0.5 mm, oil temperature 80 °C.
In Figure 5, the results for the 0.25 mm gap are presented. Compared to the 0.5 mm gap size, the results are similar, however, the drag torque decreases about 5% for the two highest oil flow rates (6 L/min and 3 L/min). For lower flow rates, the oil supply is not sufficient to refill the space between the discs due to centrifugal force. Thus, in the oil-air mixture, the air replaces oil and disc friction loss is lower.
Figure 5.
Drag torque characteristics for gap between plates 0.25 mm, oil temperature 80 °C and various values of oil flow rate.
Figure 6 presents the results for a 0.15 mm gap between plates and the same value of oil temperature. When the oil flow rate equals 6 L/min and 3 L/min, the drag torque decreases about 50% in comparison to the results from Figure 5. The maximum value is gained at about 6000 rpm and 6500 rpm and the drop at the highest speed of 7000 rpm is still observed but only for the oil flow rate of 6 L/min.
Figure 6.
Drag torque characteristics for gap between plates 0.15 mm, oil temperature 80 °C and various values of oil flow rate.
For 3, 1 and 0 L/min the drag torque curves are close to each other in the whole range of speed. Even for 0 L/min when there is no oil flow and only air is between the discs, the torque is the highest when the speed does not exceed 2000 rpm. Probably the speed is too low then to produce the air pad between the discs, and with such a small gap, accidental contact of discs may occur.
In Figure 7, the results for the smallest gap of 0.05 mm are presented. It corresponds to the clutch engagement or disengagement point and for such a small gap between the discs, it is not possible to avoid their accidental contact. Therefore, at low and medium speeds up to 3000 rpm, the drag torque is the highest when the oil is not delivered (0 L/min). In this range, the oil is necessary for the lubrication of discs when they are in contact. For higher speed, the air forms a pad separating both discs and the drag torque decreases. It appears that 1 L/mm of the oil flow rate is sufficient for lubrication even at 7000 rpm. For higher oil flow, the drag torque rises due to oil viscosity, for 6 L/min it reaches the maximum, and then it drops a little near the highest speed like in the cases of the larger gap.
Figure 7.
Drag torque characteristics for gap between plates 0.05 mm, oil temperature 80 °C and various values of oil flow rate.
All results for 0 L/min of oil flow are gathered in Figure 8. The drag torque generally decreases with the growing distance between the discs. The exception is observed for the 0.05 mm gap, near the engagement or disengagement point, when the maximum appears at 3000 rpm. Around the gap equal to 0.25 mm, the torque stabilizes and only slightly depends on the discs speed up to 7000 rpm. For 0.5 mm, the character of torque runs is similar to that for 0.25 mm, only the values are about 0.03 Nm lower.
Figure 8.
Influence of gap between plates on drag torque characteristics when no oil is delivered.
In summary, it may be concluded that in the investigated discs setup, the air without any oil flow produces the lower drag torque when the gap is at least 0.25 mm. For lower gap values, the discs touch each other temporarily and 1 L/min of oil flow rate lubricates the contact area sufficiently which improves the interaction between rotating and immovable discs.
4. Conclusions
The results of the tests provided characteristics of drag torque for different oil flow rates, various values of gaps, oil temperatures and a wide range of rotational speeds between two discs of the clutch of an automotive automatic gearbox.
Based on the results obtained for the investigated setup, the following conclusions may be formulated:
The higher oil flow rate induces the higher drag torque. This dependence is particularly visible for a high rotational speed range.
When the gap between the discs is 0.25 mm or bigger, the lowest drag torque was observed when oil is not present between the discs and was replaced by air. For smaller gaps below 0.15 mm, some oil (1 L/min) is necessary for the lubrication of discs rotating in temporary contact. This low gap mode represents the engagement and disengagement of the clutch in an automatic gearbox.
A low oil flow rate also reduces the dependence of the drag torque on oil temperature and makes the run of the clutch more stable.
In general, the results of the investigations show that there is still space to improve the disc clutch operation in automatic gearboxes. It is possible to make it smoother and less energy-consuming in the disengaged mode by lowering the drag torque and using an oil pump with lower performance.
The presented test rig and method have been verified and further research considering different oil viscosity, plate design modifications or entire sets of clutch discs could be carried on.
Author Contributions
Conceptualization, J.G. and J.L.; methodology, J.G. and D.B.; software, J.G.; validation, J.L. and G.M.; formal analysis, J.L. and D.B.; investigation, J.G. and J.L; resources, G.M.; data curation, J.G. and J.L.; writing—original draft preparation, J.G. and G.M.; writing—review and editing, J.G. and G.M.; visualization, J.L. and G.M.; supervision, J.G.; project administration, J.G.; funding acquisition, J.G. All authors have read and agreed to the published version of the manuscript.
Funding
This research was funded by National Science Center, Poland-grant number 2020/04/X/ST8/00294.
Institutional Review Board Statement
Not applicable.
Informed Consent Statement
Not applicable.
Data Availability Statement
No additional data is to be reported.
Conflicts of Interest
The authors declare no conflict of interest.
References
- Leighton, M.; Morris, N.; Trimmer, G.; King, P.D.; Rahnejat, H. Efficiency of disengaged wet brake packs. Proc. Inst. Mech. Eng. Part D J. Automob. Eng. 2018, 233, 1562–1569. [Google Scholar] [CrossRef] [Green Version]
- Lloyd, F.A. Parameters Contributing to Power Loss in Disengaged Wet Clutches; SAE Technical Paper No. 740676; SAE International: Warrendale, PA, USA, 1974. [Google Scholar]
- Jibin, H.; Zengxiong, P.; Chao, W. Experimental Research on Drag Torque for Single-plate Wet Clutch. J. Tribol. 2012, 134, 014502. [Google Scholar] [CrossRef]
- Pahlovy, S.A.; Mahmud, S.F.; Kubota, M.; Ogawa, M.; Takakura, N. New Development of a Gas Cavitation Model for Evaluation of Drag Torque Characteristics in Disengaged Wet Clutches. SAE Int. J. Engines 2016, 9, 1910–1915. [Google Scholar] [CrossRef]
- Pan, H.; Zhou, X.; Ma, B.; Dui, G.; Yang, S.; Xin, L. Experimental and Theoretical Analysis of the Drag Torque in Wet Clutches. Fluid Dyn. Mater. Process. 2019, 15, 403–417. [Google Scholar] [CrossRef] [Green Version]
- Wu, W.; Xiao, B.; Hu, J.; Yuan, S.; Hu, C. Experimental investigation on the air-liquid two-phase flow inside a grooved ro-tating-disk system: Flow pattern map. Appl. Therm. Eng. 2018, 133, 33–38. [Google Scholar] [CrossRef]
- Takagi, Y.; Okano, Y.; Miyayaga, M.; Katayama, N. Numerical and Physical Experiments on Drag Torque in a Wet Clutch. Tribol. Online 2012, 7, 242–248. [Google Scholar] [CrossRef] [Green Version]
- Iqbal, S.; Al-Bender, F.; Pluymers, B.; Desmet, W. Mathematical Model and Experimental Evaluation of Drag Torque in Disengaged Wet Clutches. ISRN Tribol. 2013, 2013, 1–16. [Google Scholar] [CrossRef] [Green Version]
- Morris, N.; Davies, J.; Leighton, M.; King, P.; Rahnejat, H. Oil film separation and drag torque in disengaged wet brakes. J. Automob. Eng. 2020, 234, 17–27. [Google Scholar] [CrossRef]
- Hu, J.; Hou, S.; Wei, C. Drag torque modeling at high circumferential speed in open wet clutches considering plate wobble and mechanical contact. Tribol. Int. 2018, 124, 102–116. [Google Scholar] [CrossRef]
- Ma, B.; Yu, L.; Li, H.; Liu, J.; Li, M.; Shi, L. The Thermal Characteristics of a Wet Multi-Disc Clutch with Provision for Lubrication Flow. In Proceedings of the 2nd International Conference of Energy Harvesting, Storage, and Transfer (EHST’18), Niagara Falls, ON, Canada, 7–9 June 2018. [Google Scholar]
- Zheng, L.; Ma, B.; Chen, M.; Yu, L.; Wang, Q. Wang: Influence of the Lubrication Oil Temperature on the Disengaging Dynamic Characteristics of a Cu-Based Wet Multi-Disc Clutch. Appl. Sci. 2021, 11, 11299. [Google Scholar] [CrossRef]
- Heyan, L.; Jing, Q.; Ma, B. Modeling and Parametric Study on Drag Torque of Wet Clutch Lecture Notes in Electrical Engineering. In Proceedings of the FISITA 2012 World Automotive Congress, Beijing, China, 21–30 November 2012; p. 193. [Google Scholar]
- Aphale, C.R.; Cho, J.; Schultz, W.W.; Ceccio, S.L.; Yoshioka, T.; Hiraki, H. Modeling and Parametric Study of Torque in Open Clutch Plates. J. Tribol. 2005, 128, 422–430. [Google Scholar] [CrossRef] [Green Version]
Publisher’s Note: MDPI stays neutral with regard to jurisdictional claims in published maps and institutional affiliations. |
© 2022 by the authors. Licensee MDPI, Basel, Switzerland. This article is an open access article distributed under the terms and conditions of the Creative Commons Attribution (CC BY) license (https://creativecommons.org/licenses/by/4.0/).