A Study on Design and Control of the Multi-Station Multi-Container Transportation System
Abstract
1. Introduction
2. Materials and Methods
2.1. Overall Design
2.2. Mechanical Design
2.3. Method to Evaluate The System
- (1)
- The stability and rigidity of the overhead system: During the testing operation conditions, vibrations, shaking, or displacements will be noted to regard how they affect the absolute system.
- (2)
- The control algorithm: The transport operation depends significantly on this factor, especially the control algorithm for the line switching module to transport the container to the desired stations. Therefore, simulation, as well as experiments, will be performed to check if the control algorithm is appropriate or if any logic error occurs.
- (3)
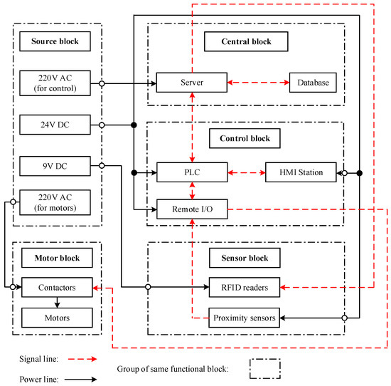
- The control model: As shown in Figure 4, the interaction between the server, the PLC, the access to the database, and the signal receiving unit (sensors and RFID readers) will also be evaluated through the experiments.
- (4)
- The performance of the system: For a comprehensive assessment that covers all situations of the system operation, the experimental transport process will be performed according to specific criteria stations and situations.
3. Results
3.1. Overview of the Controlled Module Characteristics
3.1.1. The Characteristics of Forward Motion Module
3.1.2. The Characteristics of the Lifting Module and the Line Switching Module
- (1)
- Sub-conveyor of the module has reached the right position.
- (2)
- Let the goods move into the lifting module or switch-line module.
- (3)
- Initiate the lifting or line switching operation.
- (4)
- Transport the goods into the next forward motion conveyor module.
3.1.3. The Problems Related to the System’s Sensor
- (a)
- At least one RFID’s signal is lost during the system’s operation.
- (b)
- The proximity sensor’s signal is lost during the system’s operation.
3.2. The Design of Electrical and Controller of the Entire System
3.2.1. The Overall Design of the Controller of the System
- The role of the central block:
- –
- Server receives data of sensor block and operation of conveyor module from control block for further processing.
- –
- Send data after processing at the control block to operate the conveyor module.
- –
- Send data after processing to store in the database.
- –
- Database stores data of containers, conveyor modules and RFID sets. There will be no data lost in the event of a power failure or system shutdown.
- The role of the control block:
- –
- PLC receives data from the server then transmits it back to the remote I/O in order to operate conveyor modules corresponding to stations.
- –
- Acts as an intermediary to receive proximity sensor signals and send them back to the server.
- The role of the sensor block: Including RFID sets and proximity sensors to limit the travel distance of the conveyor and determine the number of containers on a module.
- The role of the motor block: The transmission system for the entire transport system.
- The role of the source block: The power supply for the entire transport system.
- (1)
- GUI (graphical user interface): Built on the server, allowing to choose the transport route for a container, helping the user monitor and check for the operation of the transportation system (cargo, conveyor modules, etc.).
- (2)
- HMI: Placed at the stations for the users to set up the route of transport for the containers.
- (3)
- Conveyor module system: Helps transport containers according to the built-in control logic.
- (4)
- Server, PLC, sensor system, etc.: Help to control the operation of the system automatically.
3.2.2. Simulation of the Routing Algorithm
- (a)
- Make a database connection and send the data back to the GUI.
- (1)
- Containers table (boxes table): The used, line, module, and waiting variables of each box to determine the location and state of each box.
- (2)
- Counters value table: Variable number_of_box bidirectional modules at stations.
- (3)
- The variable state_of_sub_convey will be updated to identify the location of the sub-conveyor of the lifting and line switching modules. Particularly, the 4-line switching module will update three more variables, first_pick, second_pick, and third_pick to determine the order of the box.
- (b)
- Handling of logic at the position of the lift conveyor module.
- (c)
- Handling of logic at the position of the 2-line switching module.
- (d)
- Handling of logic at the position of the 4-line switching module.
3.3. Experimental Results
- (1)
- The containers can move through the gap in transition between the two conveyors.
- (2)
- The different height between the surfaces of the conveyors is negligible and can be ignored.
- (3)
- No abnormal errors occurred in the control model (PLC can handle the operation of the mechanical modules properly, TCP/IP transmission standard can function effectively without error, system data is constantly updated to the server and stored in the database).
- (1)
- Safety factor (the ceilings of buildings must be sufficiently rigid—related to construction site inspection; the system must be examined for durability to select the appropriate material).
- (2)
- The overhead conveyor system after being installed on the truss must operate effectively, without shaking or jamming the container during transport.
- (3)
- The system needs to be expandable and easy to install. The input/output for the control module need to be reduced to a minimum.
- (4)
- Containers must stop at the exact position (entrance and end position of modules, middle of the sub-conveyor).
- (5)
- The containers must always be in the middle of the conveyor width along the length of the conveying stroke (to ensure that there are no jams or entanglements during the transition where the conveyors are perpendicular to each other).
- (1)
- Building a control function for the lifting module, the line switching module and performing experiments to check the operation of each mechanical module separately before installation. The experimental test of each module helps us to observe the other mechanical features that do not meet the previous assumptions and constraints. This issue is explained in detail in the Discussion section.
- (2)
- Perform experimental transporting processes according to the designed algorithm to check the correctness of the proposed control model and the proposed control algorithm. This experiment confirms the feasibility of the research in designing an MSMC ATS to help transport containers from one station to others and vice versa.
3.3.1. The Experimental Test to Evaluate the Operation of Each Mechanical Module
3.3.2. The Experimental Tests to Evaluate the Operation of the Entire System
3.3.3. Evaluation of the Experimental Results
4. Discussions
- For the problem (1), to address the gaps between the conveyors, segmented transfer plates could be used to help fill in the gaps so that the containers can pass through normally.
- For the problem (2), this is a featured design of the system; instead of using a curved conveyor, we arrange the conveyors perpendicular to each other, to save space and avoid cumbersome action, in designing the overhead system, as parallel curves will require different curvature radiation. To ensure the containers do not get stuck in transition at the 90-degree turn, additional guiding rails are used to help smooth and adjust the movement of the containers at those positions.
- For the problem (3), we design the frame to place the proximity sensor PR12—4DN [12] for ensuring that the containers will be detected when they pass through.
- For the problem (4), the selected RFID reader is RDM8540 TCP/IP + WIFI RFID reader series. It can recognize RFID tags within 8(cm) [13]. When the conveyor module is shut off, the container’s inertia may cause the container itself to fall off the conveyor. Therefore, RFID readers need to be placed at the appropriate position in each conveyor module. On the other hand, to ensure the containers are detected, we propose to use more than one RFID reader at each position and more than one RF-tag on each container.
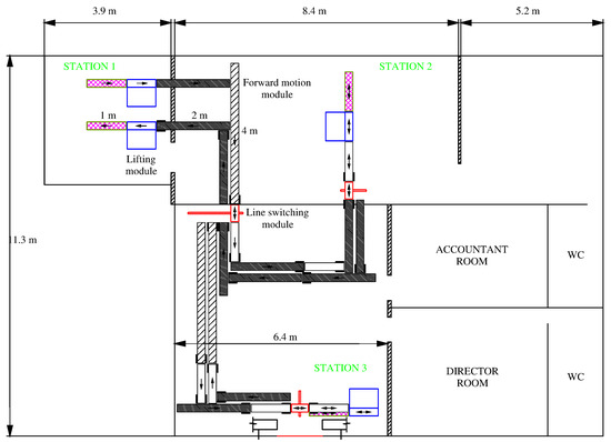
- For the problem (5), the system is designed in modules to ensure interchangeability, replaceability, and ability to expand to a larger-scale system. Therefore, the control system would also need to follow the modular design. For each mechanical module, there will be a separate control function. The algorithm built in combination with the model, as in Figure 4, makes it easier to control the system. A special feature is that instead of using one output for each conveyor, which leads to an extremely large number of system outputs, we only use one output for the whole forward motion module, which consists of multiple component conveyors. Based on the built-in model in Figure 3, we decided to combine all the conveyors between the line switching modules and the lifting modules into one control module. The RFID readers will be used to limit the two ends of a module as in Figure 10 and minimize the output for the control module.
- As for the experiment (a), during the operation test, we also check the sensor position as mentioned in Section 3.1 to ensure that the conveyor operates in the exact limited range. As for the lifting module, it is also necessary to adjust the position of the limit switches to ensure that the vertical movement of the sub-conveyor does not exceed the boundaries, which will lead to a collision between the sliding actuator and the sprocket.
- In addition to the experiment (a), we also test the delay between power off and reversing the conveyor direction and how it would affect the operation of the conveyor. To extend the operating life of the motor and guarantee electrical safety, the function for reversing the motor is only active after the motor has been turned off. From that, the operation of the lifting module and the line switching module are all sequential, so we use the PLC’s sequential function charts (SFC) [14] programming to build the function.
- As for the experiment (b) in Section 3.3, we provide a series of figures regarding the experimental process of transporting with three containers corresponding to any three routes. It shows that the algorithm solved the problems, such as waiting when another container was already in position and the lifting module or switching module is unavailable. The algorithm takes the priority order at the 2-line and the 4-line switching modules into account, in which the containers that come first will be moved in first. The result shows that the proposed control algorithm is effective.
- As for the control model from the experiment (b) in Figure 4, the experiment also shows that the data will be updated to the database whenever a signal is detected. The signal from the proximity sensors is sent by the PLC to the server via TCP/IP protocol [15] for processing. The server, after synthesizing the data from the proximity sensor and PLC, will process and send it back to the PLC to execute the system’s operation. After that, the data continue to be updated to the database, and the cycle repeats over again.
- As emphasized above, the database only requires updates when there are changes in the data. Because the data synchronization speed is set by MySQL by default to 200 ms, the server would be delayed during data processing if updates are continuously required, as the system is not multi-threaded. Therefore, within 200 ms of transmitting data, the server cannot process the data.
- In addition, experiment (b) also helps us to check if the system could function as normal again after being turned off. Based on the recorded data on the database, whenever there is a system power shutdown and then turned back on again, the previous data stored in the database could be obtained. Therefore, the system could continue activating the corresponding mechanical modules, and then update new information to the database, such as the ID of containers and their respective routes, etc.
5. Conclusions and Future Developments
5.1. Conclusions
- (1)
- The system vibrates while operating: During system performance testing, vibration is generated because the conveyors are not linked together, but rather are independent mechanical components. As a result, the conveyors will slightly oscillate in a narrow range, creating vibrations in the whole system. This problem is combated by creating an interlink frame between the conveyors, helping to keep the absolute system in a unified and stable block.
- (2)
- The noise was generated because of the gearing between the sprocket and the chain of the plastic chain. These represent typical characteristics of the chain-conveyor during operation, and it will require some more innovations to overcome this phenomenon. As a result, this noise may cause discomfort to people in the operating environment, or is not sufficient to satisfy the criteria when applied to office buildings, hospitals, etc.
- (3)
- The data transmission line between devices (server, PLC, and database) could be upgraded: An increase in a number of stations in a system will lead to many more data and system variables. Hypothetically, the more variables that occur, the more complicated and difficult it becomes to communicate data through manual TCP/IP. Consequently, the system could be much trickier to control due to the senior level of complexity, although the cost when using TCP/IP protocol is completely reasonable. Fortunately, the prototype system in this paper consists of only three stations and could be applied with manual TCP/IP protocol with little problem.
- (4)
- The system has only experimented in a three-station prototype: As the system was implemented at Bach Khoa Research Center for Manufacturing Engineering (BK–RECME, Ho Chi Minh City University of Technology (HCMUT), Vietnam), it was built on a scale of three stations (according to the model in Figure 3). The next target is to expand the system on a larger scale with n stations (n > 3) to help transport m containers.
5.2. Future Developments
- As mentioned in Section 5.1, to solve problem (1) with the vibration, we have proposed a design of an interlink frame for the component conveyors. These interlink frames also need to be designed as a standardized module for easy installing and removal when access to component conveyors is required.
- For noise reduction (2), when considering the working environment that takes human factors into account, such as factories, warehouses, or hospitals, other alternatives for suitable types of conveyors could be implemented, such as PVC, roller conveyor, etc. On a side note, the team of authors also propose a future mechanical development, which is the development of aluminum casting technology. By casting an aluminum conveyor frame, the difficulties of tolerances and assembling could be reduced. It also helps the system run smoothly. This technique is already feasible and can also be applied in large-scale production to reduce costs.
- To solve problem (3) regarding data transmission, currently, the Open Platform Communications (OPC) standard is an effective tool for easier data communication. In the next steps, the OPC standard will be applied so that all data updates will be synchronized to the OPC server, making it easier to manage and control the system.
- Regarding issue (4), as mentioned, to expand the system, there are a few problems that needed to be considered:
- (a)
- The problem of management and quality control in mass production with generous quantities.
- (b)
- The appropriate plan for installation and maintenance of the overhead conveyor system, while still ensuring rigidity and conducting the deviation when the transport distance increases.
- (c)
- The problem of scaling the control algorithm, etc.
Author Contributions
Funding
Institutional Review Board Statement
Informed Consent Statement
Data Availability Statement
Acknowledgments
Conflicts of Interest
Abbreviations
| ATS | Automatic transportation system |
| MSMC | Multi-station multi-container |
| PTS | Pneumatic tube system |
| PLC | Programmable logic controller |
| OPC | Open Platform Communications |
| PR | Proximity sensor |
| LS | Limit switch |
References
- Bolliger, D.; Seeberger, M.D.; Tanaka, K.A.; Dell-Kuster, S.; Gregor, M.; Zenklusen, U.; Grapow, M.; Tsakiris, D.A.; Filipovic, M. Pre-analytical effects of pneumatic tube transport on impedance platelet aggregometry. Platelets 2009, 7, 458–465. [Google Scholar] [CrossRef] [PubMed]
- Shibani, W.M.; Zulkafli, M.F.; Basuno, P. Methods of Transport Technologies: A Review On Using Tube/Tunnel Systems. In IOP Conference Series: Materials Science and Engineering; IOP Publishing: Bristol, UK, 1998. [Google Scholar]
- Halbig, H.; Gstöttmayer, W. Rail-Type Conveyor System; Telelift GmbH: Puchheim, Germany, 1998. [Google Scholar]
- Görner, M.; Benedikt, F.; Grimmel, F.; Hulin, T. SwarmRail: A Novel Overhead Robot System for Indoor Transport and Mobile Manipulation. In Proceedings of the 2020 IEEE International Conference on Robotics and Automation (ICRA), Paris, France, 31 May–31 August 2020. [Google Scholar]
- Van, V.H. Solutions for Human Resource Development of Mechanical Enterprises in Vietnam. In Proceedings of the 9th International Conference on Socio-Economic and Environmental Issues in Development, NEU-KKU, New York, NY, USA, 10 June 2018. [Google Scholar]
- Pane, S.F.; Awangga, R.M.; Azhari, B.R.; Tartila, G.R. RFID-based conveyor belt for improve warehouse operations. Telkomnika 2019, 17, 794–800. [Google Scholar] [CrossRef][Green Version]
- Vlad, V.; Graur, A.; Turcu, C.E.; Popa, C. Enhancing the Flexibility of Manufacturing Systems Using the RFID Technology. In Proceedings of the 2009 International Conference on Advanced Information Networking and Applications Workshops, Bradford, UK, 26–29 May 2009; pp. 630–635. [Google Scholar]
- Osman, M.S.; Ragman, A.A.A.; Mohamad, N.R.; Noridan, N.Z. Implementation of RFID on Reconfigurable Conveyor System. Proc. Innov. Res. Ind. Dialogue 2017, 16, 119–120. [Google Scholar]
- Quang, H.L.; Knyazev, N.S.; Knyazev, S.T. RFID systems and their development. In Proceedings of the 2018 XIV International Scientific-Technical Conference on Actual Problems of Electronics Instrument Engineering (APEIE), Novosibirsk, Russia, 2–6 October 2018. [Google Scholar]
- Qt Documentation. Available online: https://doc.qt.io/qt-5/index.html (accessed on 29 September 2021).
- Intralox. Product, design and installation guidelines. In Plastic Chains; Intralox: New Orleans, LO, USA, 2016. [Google Scholar]
- PR Series—Cylindrical Type Proximity Sensor. Autonics. Available online: https://www.instrumart.com/assets/Autonics_PR_Series_Proximity_Sensors_datasheet.pdf (accessed on 29 September 2021).
- RDM8540 TCP/IP+WIFI RFID Reader. RDM. Available online: http://www.datarfid.com/product/showproduct.php?id=19 (accessed on 29 September 2021).
- Logix 5000 Controllers Sequential Function Charts. Allen Bradley. Available online: https://literature.rockwellautomation.com/idc/groups/literature/documents/pm/1756-pm006_-en-p.pdf (accessed on 29 September 2021).
- TCP/IP Socket Interface. Allen-Bradley. Available online: https://literature.rockwellautomation.com/idc/groups/literature/documents/at/enet-at002_-en-p.pdf (accessed on 29 September 2021).






























Publisher’s Note: MDPI stays neutral with regard to jurisdictional claims in published maps and institutional affiliations. |
© 2022 by the authors. Licensee MDPI, Basel, Switzerland. This article is an open access article distributed under the terms and conditions of the Creative Commons Attribution (CC BY) license (https://creativecommons.org/licenses/by/4.0/).
Share and Cite
Khuu, N.H.L.; Pham, V.A.; Vu, T.T.C.; Binh Dao, V.T.; Truong, T.D.; Nguyen, N.P.; Vo, T.Q. A Study on Design and Control of the Multi-Station Multi-Container Transportation System. Appl. Sci. 2022, 12, 2686. https://doi.org/10.3390/app12052686
Khuu NHL, Pham VA, Vu TTC, Binh Dao VT, Truong TD, Nguyen NP, Vo TQ. A Study on Design and Control of the Multi-Station Multi-Container Transportation System. Applied Sciences. 2022; 12(5):2686. https://doi.org/10.3390/app12052686
Chicago/Turabian StyleKhuu, Nguyen Huu Loc, Van Anh Pham, Tran Thanh Cong Vu, Vu Thanh Binh Dao, Thuy Duy Truong, Ngoc Phi Nguyen, and Tuong Quan Vo. 2022. "A Study on Design and Control of the Multi-Station Multi-Container Transportation System" Applied Sciences 12, no. 5: 2686. https://doi.org/10.3390/app12052686
APA StyleKhuu, N. H. L., Pham, V. A., Vu, T. T. C., Binh Dao, V. T., Truong, T. D., Nguyen, N. P., & Vo, T. Q. (2022). A Study on Design and Control of the Multi-Station Multi-Container Transportation System. Applied Sciences, 12(5), 2686. https://doi.org/10.3390/app12052686

