Experimental Study of Interfacial Bond Properties between CGM and Existing Concrete
Abstract
:1. Introduction
2. General Conditions of the Experiment
2.1. Specimen Design and Preparation
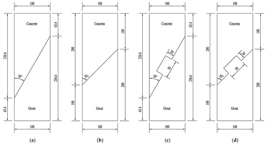
2.1.1. Specimen Design
2.1.2. Specimen Preparation
2.2. Measuring Point Arrangement
2.3. Test Scheme
3. Results and Discussion
3.1. Failure Modes
3.1.1. Failure Modes of Direct Shear Specimens
3.1.2. Failure Modes of Slant Shear Specimens
3.2. Interfacial Bond Strength Analysis
3.2.1. Influence of Interface Form
3.2.2. Influence of Existing Concrete’s Strength
3.2.3. Influence of Shear Key
3.2.4. Influence of Shear Angle
3.3. Interfacial Bond–Slip Curve
3.4. Interface Bond–Slip Model and Recommended Value for Stiffness
4. Conclusions
- (1)
- For the direct shear specimen without shear key, the bond strength between CGM and the concrete interface was the highest when the adhesive interface form was triangular, followed by the trapezoidal and smooth interface (the lowest). Hence, the interface of assembly components should be set as a triangle, and the concrete surface should be roughened when conditions allow to effectively bond with CGM.
- (2)
- The interfacial bond strength of CGM and concrete increased with the increase in concrete strength, but the increase rate slowed down.
- (3)
- The interfacial bond strength of a specimen greatly improved when the specimen was under shear load in the slant section or when the shear key was set, and the interfacial bond strength increased with increasing slant shear angle. Thus, when repairing and strengthening concrete structures or connecting prefabricated components, the slant shear angle of the connection interface between CGM and concrete should be increased as much as possible, and when conditions allow, shear keys should be set at the contacting interface to improve the bond strength of the interface.
- (4)
- On the basis of the linear regression analysis of the bond–slip curve obtained from the experiment and in combination with the existing interfacial bond–slip model, an interfacial bond–slip model of CGM repairing the existing concrete structure was proposed. Bond strength, slippage, and bond stiffness values were also recommended for each group of specimens.
Author Contributions
Funding
Institutional Review Board Statement
Informed Consent Statement
Data Availability Statement
Conflicts of Interest
References
- Li, Z.H. The Research on Performances and Engineering Applications of Cement-Based Grouting Material for Reinforced Concrete Reinforcement. Master’s Thesis, Suzhou University of Science and Technology, Suzhou, China, 2015. [Google Scholar]
- Lei, C. Research on Properties of Cementitious Grout for Strengthening. Master’s Thesis, Shanghai Jiao Tong University, Shanghai, China, 2018. [Google Scholar]
- Zhang, K.; Xiong, J.G.; Hu, H.Z. Analysis on property of reinforced concrete column strengthened by replacing section with high performance CGM. J. Nanchang Univ. 2016, 38, 340–346. [Google Scholar]
- Li, V.C. High performance fiber reinforced cementitious composites as durable material for concrete structure repair. Int. J. Restor. 2014, 10, 163–180. [Google Scholar]
- Zambas, C. Structural repairs to the monuments of the Acropolis—The Parthenon. Proc. Inst. Civ. Eng.-Civ. Eng. 1992, 92, 166–176. [Google Scholar] [CrossRef]
- Ceia, F.; Raposo, J.; Guerra, M.; Júlio, E.; de Brito, J. Shear strength of recycled aggregate concrete to natural aggregate concrete interfaces. Constr. Build. Mater. 2016, 109, 139–145. [Google Scholar] [CrossRef]
- Jafarinejad, S.; Rabiee, A.; Shekarchi, M. Experimental investigation on the bond strength between Ultra high strength Fiber Reinforced Cementitious Mortar & conventional concrete. Constr. Build. Mater. 2019, 229, 116814. [Google Scholar]
- Mirmoghtadaei, R.; Mohammadi, M.; Samani, N.A.; Mousavi, S. The impact of surface preparation on the bond strength of repaired concrete by metakaolin containing concrete. Constr. Build. Mater. 2015, 80, 76–83. [Google Scholar] [CrossRef]
- Wu, J.H.; Li, Z.H.; Zhang, C. Effects of silica fume content on interfacial bond strength between cement based grouting material and old concrete. Bull. Chin. Ceram. Soc. 2018, 37, 3989–3995. [Google Scholar]
- Varga, D.L.; Muñoz, J.F.; Bentz, D.P.; Spragg, R.P.; Stutzman, P.E.; Graybeal, B.A. Grout-concrete interface bond performance: Effect of interface moisture on the tensile bond strength and grout microstructure. Constr. Build. Mater. 2018, 170, 747–756. [Google Scholar] [CrossRef] [PubMed]
- Peng, G.; Niu, D.T.; Hu, X.P.; Pan, B.X.; Zhong, S. Experimental study of the interfacial bond strength between cementitious grout and normal concrete substrate. Constr. Build. Mater. 2021, 273, 122057. [Google Scholar] [CrossRef]
- Yuan, G.L.; Wang, X.; Li, Q.T.; Tian, L.D.; Zhang, Y.F. Experimental research on interfacial bonding property of high performance CGM to concrete. Ind. Constr. 2014, 44, 69–72. [Google Scholar]
- Zhu, H.G.; Leung, C.K.Y.; Cao, Q. Preliminary study on the bond properties of the PDCC concrete repair system. J. Mater. Civ. Eng. 2011, 23, 1360–1364. [Google Scholar] [CrossRef]
- Sahmaran, M.; Yücel, H.E.; Yildirim, G.; Al-Emam, M.; Lachemi, M. Investigation of the bond between concrete substrate and ECC overlays. J. Mater. Civ. Eng. 2014, 26, 167–174. [Google Scholar] [CrossRef]
- Baloch, W.L.; Siad, H.; Lachemi, M.; Sahmaran, M. A review on the durability of concrete-to-concrete bond in recent rehabilitated structures. J. Build. Eng. 2021, 44, 10331. [Google Scholar] [CrossRef]
- Wu, X.G.; Zhang, X.C. Investigation of short-term interfacial bond behavior between existing concrete and precast ultra-high performance concrete layer. J. Build. Str. 2018, 39, 156–163. [Google Scholar]
- Hu, X.G. Experimental Research on Cracking and Bond Properties of Concrete. Master’s Thesis, Tianjin University, Tianjin, China, 2012. [Google Scholar]
- Zhu, R.J. Study on Shear Property of New and Old Concrete Bonding Surface. Master’s Thesis, Hebei University of Technology, Tianjin, China, 2016. [Google Scholar]
- Specification for Mix Proportion Design of Ordinary Concrete JGJ 55-2011; China Architecture & Building Press, Ministry of Housing and Urban Rural Development of the People’s Republic of China: Beijing, China, 2011.
- ACI Committee 546. Concrete Repair Guide: ACI 546R-04; American Concrete Institute: Farmington Hills, MI, USA, 2004. [Google Scholar]
- Wang, N. Experimental Research on Bonding Mechanical Performance between Ultra High Toughness Cementitious Composites (UHTCC) and Existing Concrete. Ph.D. Thesis, Dalian University of Technology, Dalian, China, 2011. [Google Scholar]
- Hu, C.H. Research on the interfacial bonding behavior of existing concrete members repaired with SHCC. Ph.D. Thesis, Xi’an University of Architecture and Technology, Xi’an, China, 2013. [Google Scholar]










| Group No. | Concrete Strength | Interface Form | Shear Key | Number of Specimens |
|---|---|---|---|---|
| Z-C35-I | C35 | smooth | none | 3 |
| Z-C35-T | C35 | trapezoidal | none | 3 |
| Z-C35-S | C35 | triangle | none | 3 |
| Z-C45-S | C45 | triangle | none | 3 |
| Z-C55-S | C55 | triangle | none | 3 |
| Group No. | Concrete Strength | Interface Form | Shear Angle α | Shear Key | Number of Specimens |
|---|---|---|---|---|---|
| X-C35-30-W | C35 | smooth | 30° | without | 3 |
| X-C35-30-Y | C35 | smooth | 30° | with | 3 |
| X-C35-45-W | C35 | smooth | 45° | without | 3 |
| X-C35-45-Y | C35 | smooth | 45° | with | 3 |
| X-C45-45-Y | C45 | smooth | 45° | with | 3 |
| X-C55-45-Y | C55 | smooth | 45° | with | 3 |
| Concrete Strength | Mix Proportions (kg/m3) | Water | Water–Cement Ratio | Sand Ratio | ||
|---|---|---|---|---|---|---|
| OPC (Type) | Coarse Aggregate (max. 10 mm) | Medium Sand (F.M. = 2.8) | ||||
| C35 | 466.02 (P.O 32.5) | 1158.06 | 570.87 | 205.05 | 0.44 | 33% |
| C45 | 525.62 (P.O 42.5) | 1163.10 | 550.85 | 204.99 | 0.39 | 32% |
| C55 | 545.00 (P.O 52.5) | 1174.02 | 553.12 | 201.43 | 0.37 | 32% |
| Group No. | CGM Strength /MPa | Concrete Strength /MPa | Group No. | CGM Strength /MPa | Concrete Strength /MPa |
|---|---|---|---|---|---|
| Z-C35 | 73.13 | 36.37 | X-C35 | 89.03 | 35.03 |
| Z-C45 | 69.35 | 47.63 | X-C45 | 68.35 | 47.63 |
| Z-C55 | 69.35 | 56.22 | X-C55 | 68.35 | 56.22 |
| Group No. | Specimen No. | Discreteness /% | ||
|---|---|---|---|---|
| Z-C35-I | Sample 1 | 1.09 | 4.39 | 1.13 |
| Sample 2 | 1.16 | 1.75 | ||
| Sample 3 | 1.14 | |||
| Z-C35-T | Sample 1 | 2.89 | 0.00% | 2.90 |
| Sample 2 | 2.89 | |||
| Sample 3 | 2.93 | 1.38% | ||
| Z-C35-S | Sample 1 | 3.17 | 0.00% | 3.15 |
| Sample 2 | 3.17 | |||
| Sample 3 | 3.11 | 1.89% | ||
| Z-C45-S | Sample 1 | 3.36 | 5.08% | 3.50 |
| Sample 2 | 3.54 | |||
| Sample 3 | 3.59 | 1.41% | ||
| Z-C55-S | Sample 1 | 3.59 | 5.28% | 3.73 |
| Sample 2 | 3.81 | 0.53% | ||
| Sample 3 | 3.79 | |||
| X-C35-30-W | Sample 1 | 5.79 | 5.76 | |
| Sample 2 | 5.94 | 2.59% | ||
| Sample 3 | 5.56 | 3.97% | ||
| X-C35-30-Y | Sample 1 | 8.80 | 6.38% | 9.24 |
| Sample 2 | 9.40 | |||
| Sample 3 | 9.52 | 1.28% | ||
| X-C35-45-W | Sample 1 | 8.27 | 1.43% | 8.39 |
| Sample 2 | 8.51 | 1.67% | ||
| Sample 3 | 8.39 | |||
| X-C35-45-Y | Sample 1 | 10.62 | 6.76% | 11.52 |
| Sample 2 | 11.39 | |||
| Sample 3 | 12.55 | 10.18% | ||
| X-C45-45-Y | Sample 1 | 14.30 | 1.31% | 14.47 |
| Sample 2 | 14.49 | |||
| Sample 3 | 14.62 | 0.90% | ||
| X-C55-45-Y | Sample 1 | 14.65 | 5.61% | 15.54 |
| Sample 2 | 16.45 | 5.99% | ||
| Sample 3 | 15.52 |
| Group No. | /MPa | /MPa·mm−1 | /mm | Correlation Coefficient | Linear Segment Bond Strength | Ultimate Bond Strength /MPa | Linear Growth Proportion /% | /% | Linear Stiffness /MPa·mm−1 |
|---|---|---|---|---|---|---|---|---|---|
| Z-C35-I | 0.10 | 11.60 | 0.09 | 0.92 | 1.14 | 1.13 | 100 | 8.68 | 12.67 |
| Z-C35-T | 0.17 1.45 | 11.29 4.19 | 0.18 0.33 | 0.96 0.88 | 2.84 | 2.90 | 97.93 | 5.83 | 8.61 |
| Z-C35-S | 0.34 2.73 | 10.49 1.09 | 0.25 0.34 | 0.94 0.92 | 3.10 | 3.15 | 98.41 | 11.02 | 9.12 |
| Z-C45-S | 0.28 | 9.34 | 0.34 | 0.94 | 3.46 | 3.50 | 98.85 | 8.17 | 10.18 |
| Z-C55-S | 0.19 | 8.01 | 0.44 | 0.96 | 3.71 | 3.73 | 99.53 | 5.13 | 8.43 |
| X-C35-30-W | 0.23 | 27.51 | 0.20 | 0.97 | 5.73 | 5.76 | 99.54 | 4.04 | 28.65 |
| X-C35-30-Y | 0.30 | 22.11 | 0.40 | 0.97 | 9.15 | 9.24 | 98.98 | 3.32 | 22.88 |
| X-C35-45-W | 0.28 | 21.31 | 0.36 | 0.89 | 7.95 | 8.39 | 94.73 | 3.45 | 22.08 |
| X-C35-45-Y | 0.27 | 22.57 | 0.45 | 0.94 | 10.43 | 11.52 | 90.53 | 2.59 | 23.17 |
| X-C45-45-Y | 0.34 | 25.46 | 0.54 | 0.92 | 14.09 | 14.47 | 97.35 | 2.40 | 26.09 |
| X-C55-45-Y | 0.37 | 25.31 | 0.60 | 0.94 | 15.55 | 15.54 | 100 | 2.35 | 25.92 |
Publisher’s Note: MDPI stays neutral with regard to jurisdictional claims in published maps and institutional affiliations. |
© 2022 by the authors. Licensee MDPI, Basel, Switzerland. This article is an open access article distributed under the terms and conditions of the Creative Commons Attribution (CC BY) license (https://creativecommons.org/licenses/by/4.0/).
Share and Cite
Han, Y.; Wang, J.; Zhang, E. Experimental Study of Interfacial Bond Properties between CGM and Existing Concrete. Appl. Sci. 2022, 12, 12623. https://doi.org/10.3390/app122412623
Han Y, Wang J, Zhang E. Experimental Study of Interfacial Bond Properties between CGM and Existing Concrete. Applied Sciences. 2022; 12(24):12623. https://doi.org/10.3390/app122412623
Chicago/Turabian StyleHan, Yan, Jiangjiang Wang, and Enlai Zhang. 2022. "Experimental Study of Interfacial Bond Properties between CGM and Existing Concrete" Applied Sciences 12, no. 24: 12623. https://doi.org/10.3390/app122412623
APA StyleHan, Y., Wang, J., & Zhang, E. (2022). Experimental Study of Interfacial Bond Properties between CGM and Existing Concrete. Applied Sciences, 12(24), 12623. https://doi.org/10.3390/app122412623
