Case Study in Modular Lightweight Steel Frame Construction: Thermal Bridges and Energy Performance Assessment
Abstract
1. Introduction
2. Literature Review
3. The Case Study
3.1. Design Requirements and Architecture
3.2. Structural Design and Building Envelope Characteristics
- i.
- Window shutters on both sliding doors acting as a lateral shading—during transport, they are closed, and their primary function changes to protecting the glazing from mechanical damage caused by external factors (rocks, birds, etc.).
- ii.
- Venetian blinds on larger sliding doors—motorized blinds can be manually controlled through a central unit, but they can be programmed to start shutting down automatically when solar radiation is too strong, or at sunset.
- iii.
- Self-load bearing textile overhang on larger sliding doors—this can be easily removed and installed when needed.
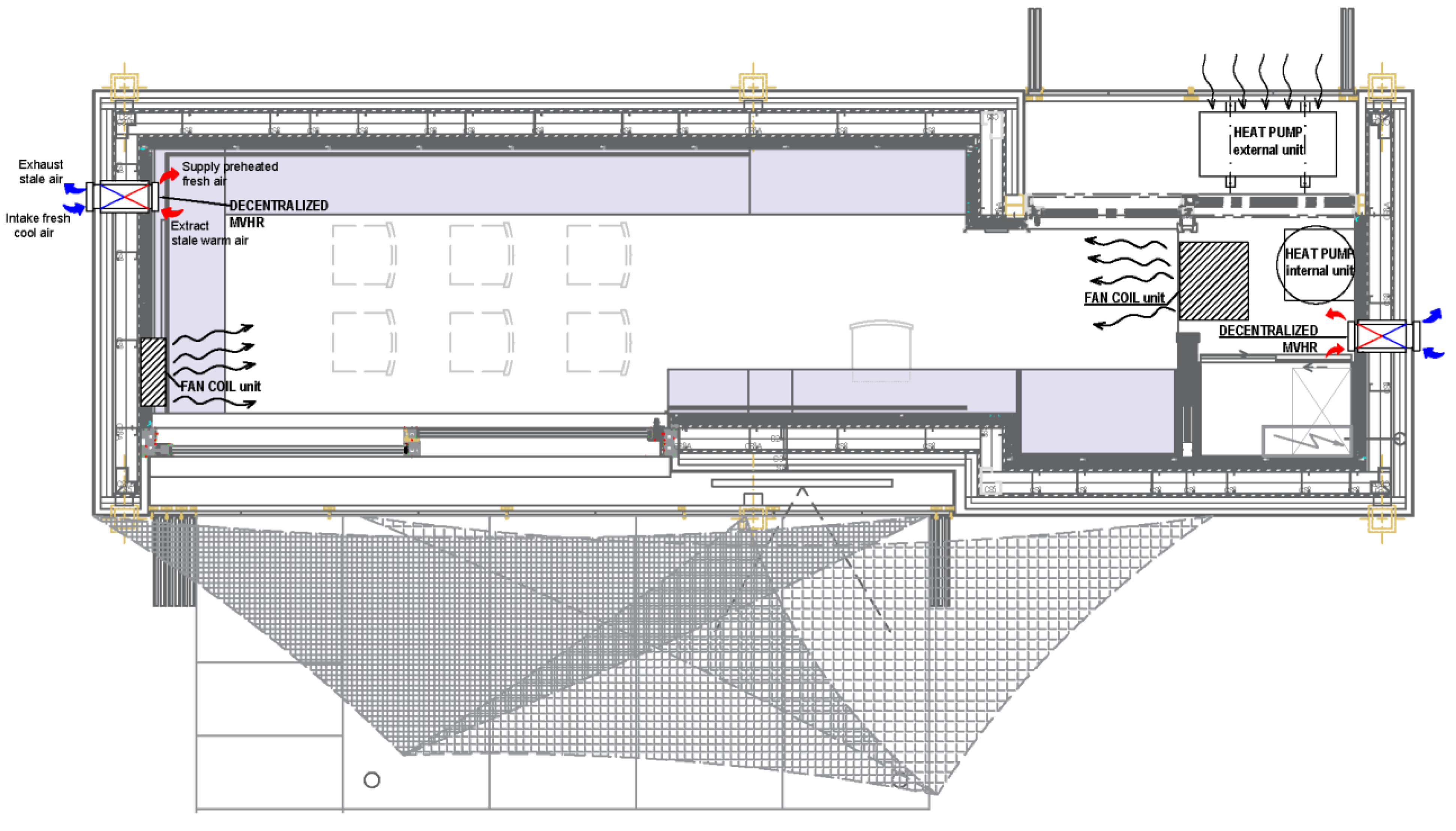
3.3. Technical Systems and Monitoring
4. Research Methodology
4.1. Materials and Boundary Conditions
4.2. Calculation of Effective Thermal Transmittance
4.3. Thermal Bridge Numerical Simulations
4.4. Energy Performance Calculations—Thermal Bridge Incorporation Approach
4.5. Parametric Study—Climate and Orientation Dependent Analysis
5. Results and Discussion
5.1. Comparison between U and Ueff



| Building Element | Steel Stud Spacing [cm] | Ueff [W/(m2 K)] | Reff [m2 K/W] | U [W/(m2 K)] | R [m2 K/W] | ΔU [%] | Ψ [W/(m K)] | fRsi [–] |
|---|---|---|---|---|---|---|---|---|
| Wall | 60 | 0.14890 | 6.71592 | 0.116 | 8.62069 | 28.40 | 0.033 | 0.975 |
| Wall | 30 | 0.16429 | 6.08680 | 0.116 | 8.62069 | 41.60 | 0.048 | 0.975 |
| Roof | 48 | 0.14467 | 6.91228 | 0.110 | 9.09091 | 31.50 | 0.035 | 0.984 |
| Floor | 38 | 0.16534 | 6.04814 | 0.125 | 8 | 32.30 | 0.040 | 0.959 |
5.2. MUZA’s Thermal Bridges



| Construction Detail | L2D [W/(m K)] | Ψ [W/(m K)] | Min. Surf. Temp. [°C] | fRsi [–] |
|---|---|---|---|---|
| Wall—wall corner | 0.38410 | 0.0178 | 18.293 | 0.943 |
| Wall—niche | 0.32853 | 0.0800 | 18.539 | 0.951 |
| Wall-floor connection | 0.28919 | −0.0038 | 17.707 | 0.924 |
| Roof—wall connection | 0.28417 | −0.0195 | 18.394 | 0.946 |
| Wall—sliding door frontal connection | 1.14286 | 0.0628 | 15.220 | 0.841 |
| Wall—sliding doors niche | 1.22735 | 0.115 | 15.606 | 0.854 |
| Sliding doors—wall side connection | 1.22786 | −0.209 | 13.028 | 0.768 |
| Sliding doors—floor connection | 0.69195 | −0.295 | 14.378 | 0.813 |
| Sliding doors—roof connection | 0.40650 | −0.472 | 15.330 | 0.844 |
5.3. The Effect of Numerical Calculation of Thermal Bridges on the Energy Performance
5.4. Climate and Orientation Effect on Energy Performance
6. Conclusions
Author Contributions
Funding
Data Availability Statement
Acknowledgments
Conflicts of Interest
Nomenclature
| A | External surface area of the building envelope | [m2] |
| Af | Gross floor area | [m2] |
| Ak | Net floor area | [m2] |
| AW | Window surface area | [m2] |
| COP | Coefficient of performance | [–] |
| d | Thickness of component layer | [m] |
| E″del | Annual specific delivered energy | [kWh/(m2a)] |
| E″prim | Annual specific primary energy | [kWh/(m2a)] |
| fp | Primary energy factor | [-] |
| fRsi | Temperature factor | [-] |
| f0 | Shape factor | [m−1] |
| gꞱ | The total solar energy transmittance (calculated for solar radiation perpendicular to the glazing) | [-] |
| h | Surface heat transfer coefficient | [W/(m2K)] |
| HD | Transmission heat losses | [W/K] |
| hse | External surface heat transfer coefficient | [W/(m2K)] |
| hsi | Internal surface heat transfer coefficient | [W/(m2K)] |
| l | Length of the geometrical model | [m] |
| li | Length of the 2D geometrical model over which the Ui value is applied | [m] |
| L2D | Two-dimensional thermal coupling coefficient | [W/(m·K)] |
| n | Number of specific layers in building component | [-] |
| n50 | Air changes per hour at a differential pressure of 50 Pa | [h-1] |
| PW | Window perimeter | [m] |
| Q″C,nd | Annual specific cooling energy need | [kWh/(m2a)] |
| qE50 | Volume of air flowing through the m2 of envelope at 50 Pa pressure difference | [m3/(h·m2)] |
| Q″H,nd | Annual specific heating energy need | [kWh/(m2a)] |
| R | Thermal resistance | [(m2·K)/W] |
| RH | Relative humidity | [%] |
| T | Temperature | [°C] |
| Ti | Internal environment (air) temperature | [°C, K] |
| Te | External environment (air) temperature | [°C, K] |
| Tsi,min | Minimum internal surface temperature | [°C, K] |
| U or U-value | Thermal transmittance of building envelope element | [W/(m2·K)] |
| Ueff or Ueff-value | Effective thermal transmittance of opaque building envelope element | [W/(m2·K)] |
| Uf | Thermal transmittance of frame | [W/(m2·K)] |
| Ug | Thermal transmittance of glass | [W/(m2·K)] |
| Ui | One-directional thermal transmittance of the i-th building element separating the two environments | [W/(m2·K)] |
| Uw | Thermal transmittance of windows | [W/(m2·K)] |
| V | Heated air volume | [m3] |
| Ve | Heated building gross volume | [m3] |
| Greek symbols | ||
| Δ | Difference between two quantities or increase of one quantity | [%] or [unit of observed quantity] |
| λ | Thermal conductivity of building material | [W/(m·K)] |
| μ | Water vapour diffusion resistance factor | [-] |
| ϕ | Heat flow rate (heat flux density divided by unit length) | [W/m] |
| χ | Point thermal bridge coefficient | [W/K] |
| Ψ | Linear thermal transmittance | [W/(m·K)] |
References
- Penna, A.; Morandi, P.; Rota, M.; Manzini, C.F.; da Porto, F.; Magenes, G. Performance of masonry buildings during the Emilia 2012 earthquake. Bull. Earthq. Eng. 2014, 12, 2255–2273. [Google Scholar] [CrossRef]
- Mazzoni, S.; Castori, G.; Galasso, C.; Calvi, P.; Dreyer, R.; Fischer, E.; Fulco, A.; Sorrentino, L.; Wilson, J.; Penna, A.; et al. 2016–2017 Central Italy Earthquake Sequence: Seismic Retrofit Policy and Effectiveness. Earthq. Spectra 2018, 34, 1671–1691. [Google Scholar] [CrossRef]
- Bilgin, H.; Shkodrani, N.; Hysenlliu, M.; Ozmen, H.B.; Isik, E.; Harirchian, E. Damage and performance evaluation of masonry buildings constructed in 1970s during the 2019 Albania earthquakes. Eng. Fail. Anal. 2022, 131, 105824. [Google Scholar] [CrossRef]
- Vlachakis, G.; Vlachaki, E.; Lourenço, P.B. Learning from failure: Damage and failure of masonry structures, after the 2017 Lesvos earthquake (Greece). Eng. Fail. Anal. 2020, 117, 104803. [Google Scholar] [CrossRef]
- Cetin, K.O.; Altun, S.; Askan, A.; Akgün, M.; Sezerm, A.; Kıncal, C.; Özkan, C.Ö.; İpek, Y.; Unutmaz, B.; Gülerce, Z.; et al. The site effects in Izmir Bay of October 30 2020, M7.0 Samos Earthquake. Soil Dyn. Earthq. Eng. 2022, 152, 107051. [Google Scholar] [CrossRef]
- Stepinac, M.; Lourenço, P.B.; Atalić, J.; Kišiček, T.; Uroš, M.; Baniček, M.; Šavor Novak, M. Damage classification of residential buildings in historical downtown after the ML5.5 earthquake in Zagreb, Croatia in 2020. Int. J. Disaster Risk Reduct. 2021, 56, 102140. [Google Scholar] [CrossRef]
- Milovanović, B.; Bagarić, M.; Gaši, M.; Stepinac, M. Energy renovation of the multi-residential historic building after the Zagreb earthquake–Case study. Case Stud. Therm. Eng. 2022, 38, 102300. [Google Scholar] [CrossRef]
- Croatian Centre of Earthquake Engineering Assessment Results by County 10 May 2021. Available online: https://www.hcpi.hr/sites/default/files/2021-05/2021%05%11%sredeno%(PNG).png (accessed on 28 September 2022). (In Croatian).
- Government of the Republic of Croatia and the World Bank. The Croatia Earthquake-Rapid Damage and Need Assessment 2020; Government of the Republic of Croatia: Zagreb, Croatia, 2020. [Google Scholar]
- Perković, N.; Stepinac, M.; Rajčić, V.; Barbalić, J. Assessment of Timber Roof Structures before and after Earthquakes. Buildings 2021, 11, 528. [Google Scholar] [CrossRef]
- Večernji List the Investigation in Glina Has Been Completed, the Cause of the Container Fire Is Known. Available online: https://www.vecernji.hr/vijesti/zavrsen-ocevid-u-glini-poznat-uzrok-pozara-kontejnera-1562064 (accessed on 28 September 2022). (In Croatian).
- Paparella, R.; Caini, M. Sustainable Design of Temporary Buildings in Emergency Situations. Sustainability 2022, 14, 8010. [Google Scholar] [CrossRef]
- European Parliament and the Council. Directive 2010/31/EU of the European Parliament and of the Council of 19 May 2010 on the Energy Performance of Buildings (Recast); European Parliament: Luxembourg, 2010; p. OJEU L153/13. [Google Scholar]
- Ministry of Physical Planning Construction and State Asset Technical regulation on energy economy and heat retention in buildings. Official Gazzete 128/15, 70/18, 73/18, 86/18, 102/20, 16 September 2020. (In Croatian)
- European Commission. Proposal for a Directive of the European Parliament and of the Council on the Energy Performance of Buildings (Recast); European Commission: Brussels, Belgium, 15 December 2021. [Google Scholar]
- Moga, L.; Petran, I.; Santos, P.; Ungureanu, V. Thermo-Energy Performance of Lightweight Steel Framed Constructions: A Case Study. Buildings 2022, 12, 321. [Google Scholar] [CrossRef]
- Açıkkalp, E.; Kandemir, S.Y. A method for determining optimum insulation thickness: Combined economic and environmental method. Therm. Sci. Eng. Prog. 2019, 11, 249–253. [Google Scholar] [CrossRef]
- Rodrigues, E.; Soares, N.; Fernandes, M.S.; Gaspar, A.R.; Gomes, Á.; Costa, J.J. An integrated energy performance-driven generative design methodology to foster modular lightweight steel framed dwellings in hot climates. Energy Sustain. Dev. 2018, 44, 21–36. [Google Scholar] [CrossRef]
- Santos, P. Energy Efficiency of Lightweight Steel-Framed Buildings. In Energy Efficient Buildings; Yap, E.H., Ed.; InTech: London, UK, 2017. [Google Scholar]
- Liang, H.; Roy, K.; Fang, Z.; Lim, J.B.P. A Critical Review on Optimization of Cold-Formed Steel Members for Better Structural and Thermal Performances. Buildings 2022, 12, 34. [Google Scholar] [CrossRef]
- Mihić, F.; Markulak, D.; Dokšanović, T. Use of structural steel in residential construction. J. Croat. Assoc. Civ. Eng. 2022, 74, 419–431. [Google Scholar] [CrossRef]
- Brito-Peña, R.; Villa-Enderica, D.; Zalamea-León, E. Análisis comparativo de confort térmico de vivienda unifamiliar en LSF frente a mampostería. Ingenius 2022, 28, 100–124. [Google Scholar] [CrossRef]
- Roque, E.; Santos, P. The Effectiveness of Thermal Insulation in Lightweight Steel-Framed Walls with Respect to Its Position. Buildings 2017, 7, 13. [Google Scholar] [CrossRef]
- Olivieri, H.; Barbosa, I.C.A.; da Rocha, A.C.; Granja, A.D.; Fontanini, P.S.P. A utilização de novos sistemas construtivos para a redução no uso de insumos nos canteiros de obras: Light Steel Framing. Ambient. Construído 2017, 17, 45–60. [Google Scholar] [CrossRef][Green Version]
- European Commission. Communication from the Commission to the European Parliament, the European Council, the Council, the European Economic and Social Committee and the Committee of the Regions—The European Green Deal; European Commission: Brussels, Belgium, 2019; Available online: https://eur-lex.europa.eu/resource.html?uri=cellar:b828d165-1c22-11ea-8c1f-01aa75ed71a1.0002.02/DOC_1&format=PDF (accessed on 5 September 2022).
- European Commission. ANNEX to the Communication from the Commission to the European Parliament, the European Council, the Council, the European Economic and Social Committee and the Committee of the Regions—European Green Deal; European Commission: Brussels, Belgium, 2019; Available online: https://eur-lex.europa.eu/resource.html?uri=cellar:b828d165-1c22-11ea-8c1f-01aa75ed71a1.0002.02/DOC_2&format=PDF (accessed on 5 September 2022).
- Samani, P.; Leal, V.; Mendes, A.; Correia, N. Comparison of passive cooling techniques in improving thermal comfort of occupants of a pre-fabricated building. Energy Build. 2016, 120, 30–44. [Google Scholar] [CrossRef]
- de Angelis, E.; Serra, E. Light Steel-frame Walls: Thermal Insulation Performances and Thermal Bridges. Energy Procedia 2014, 45, 362–371. [Google Scholar] [CrossRef]
- Roque, E.; Vicente, R.; Almeida, R.M.S.F.; Ferreira, V.M. The Impact of Thermal Inertia on the Indoor Thermal Environment of Light Steel Framing Constructions. Energies 2022, 15, 3061. [Google Scholar] [CrossRef]
- Jelčić Rukavina, M.; Skejić, D.; Kralj, A.; Ščapec, T.; Milovanović, B. Development of Lightweight Steel Framed Construction Systems for Nearly-Zero Energy Buildings. Buildings 2022, 12, 929. [Google Scholar] [CrossRef]
- The nZEB Roadshow Horizon 2020 Project “The nZEB Roadshow”. Available online: https://www.nzebroadshow.eu/ (accessed on 26 August 2022).
- Faculty of Civil Engineering University of Zagreb Mobile NZEB Pavillion MUZA. Available online: https://www.muza-nzeb.com/ (accessed on 26 August 2022). (In Croatian).
- Maxwell, S. Why We Should Change Our Building Air Tightness Metrics. Available online: https://thefifthestate.com.au/columns/spinifex/why-we-should-change-our-building-air-tightness-metrics/ (accessed on 24 August 2022).
- EN ISO 6946:2017; Building Components and Building Elements–Thermal Resistance and Thermal Transmittance–Calculation Methods. The European Committee for Standardization: Brusels, Belgium, 2017.
- EN ISO 10211:2017; Thermal Bridges in Building Construction—Heat Flows and Surface Temperatures—Detailed Calculations. The European Committee for Standardization: Brusels, Belgium, 2017.
- EN ISO 14683:2017; Thermal Bridges in Building Construction—Linear Thermal Transmittance—Simplified Methods and Default Values. The European Committee for Standardization: Brusels, Belgium, 2017.
- Schild, K. Wärmebrücken-Berechnung und Mindestwärmeschutz; Springer Fachmedien Wiesbaden: Wiesbaden, Germany, 2018; ISBN 978-3-658-20708-3. [Google Scholar]
- Gorgolewski, M. Developing a simplified method of calculating U-values in light steel framing. Build. Environ. 2007, 42, 230–236. [Google Scholar] [CrossRef]
- ASHRAE Building Envelope, Chapter 25. “Heat, Air, and Moisture Control in Building Assemblies–Fundamentals” and Chapter 27. “Heat, Air, and Moisture Control in Building Assemblies–Examples”. In Handbook of Fundamentals, SI ed.; ASHRAE—American Society of Heating, Refrigerating and Air-Conditioning Engineers: Atlanta, GA, USA, 2017; p. 1014.
- Gaši, M. CRORAL-Computer Program for Thermal Bridge Analysis and Vapour Analysis; University of Zagreb, Faculty of Civil Engineering: Zagreb, Croatia, 2021. [Google Scholar]
- EN ISO 10077-2:2017; Thermal Performance of Windows, Doors and Shutters—Calculation of Thermal Transmittance—Part 2: Numerical Method for Frames. The European Committee for Standardization: Brusels, Belgium, 2017.
- Hens, H. Performance Based Building Design 1, 2nd ed.; Wiley-VCH Verlag GmbH & Co. KGaA: Weinheim, Germany, 2012; ISBN 9783433601952. [Google Scholar]
- EN ISO 13790:2008; Energy Performance of Buildings–Calculation of Energy Use for Space Heating and Cooling. The European Committee for Standardization: Brusels, Belgium, 2008.
- Lončar, D.; Dović, D.; Horvat, I. Algorithm for Determining Energy Requirements and Efficiency of Thermotechnical Systems in Buildings-Cogeneration Systems, District Heating Systems, Photovoltaic Systems; University of Zagreb, Faculty of Mechanical Engineering and Naval Architecture: Zagreb, Croatia, 2017. (In Croatian) [Google Scholar]
- Santos, P.; Lemes, G.; Mateus, D. Thermal Transmittance of Internal Partition and External Facade LSF Walls: A Parametric Study. Energies 2019, 12, 2671. [Google Scholar] [CrossRef]
- ETA-Danmark A/S. European Technical Assessment ETA-21/0756 of 2021/09/03; ETA-Danmark A/S: Copenhagen, Denmark, 2021. [Google Scholar]
- Passive House Institute. EJOT Wandwinkelstütze-Certified Passive House Component for Cool, Temperate Climate; Passive House Institute: Darmstadt, Germany, 2022. [Google Scholar]













| Net floor area, Ak [m2] | 14.75 |
| Gross floor Area, Af [m2] | 22.35 |
| External surface area of the building envelope, A [m2] | 118.96 |
| Heated building gross volume, Ve [m3] | 69.73 |
| Heated air volume, V [m3] | 35.84 |
| Shape factor, f0 [m−1] | 1.71 |
| Building Element | Layer (Internal to External) | Thickness [cm] | λ [W/m·K] | μ [-] |
|---|---|---|---|---|
| EXTERNAL WALL | Gypsum plasterboard | 1.25 | 0.25 | 8 |
| Gypsum plasterboard | 1.25 | 0.25 | 8 | |
| Glass wool | 5 | 0.037 | 1.10 | |
| Vapour barrier | 0.015 | 0.50 | 230,000 | |
| Oriented strand board (OSB) board | 2.20 | 0.13 | 50 | |
| Glass wool | 15 | 0.035 | 1.10 | |
| OSB board | 2.20 | 0.13 | 50 | |
| Stone wool | 8 | 0.034 | 1.10 | |
| Weather barrier (watertight, vapour open) | 0.20 | 0.50 | 5 | |
| Intensively vented air layer | 4 | contribution neglected | contribution neglected | |
| HPL cladding | 0.80 | contribution neglected | contribution neglected | |
| ROOF | Gypsum plasterboard | 1.25 | 0.25 | 8 |
| Stone wool | 5 | 0.035 | 1.10 | |
| Stone wool | 8 | 0.035 | 1.10 | |
| Vapour barrier | 0.015 | 0.50 | 230,000 | |
| OSB board | 2.20 | 0.13 | 50 | |
| Glass wool | 15 | 0.032 | 1.10 | |
| DHF board | 1.50 | 0.10 | 11 | |
| Weakly vented air layer | 2 | 0.30 | 1 | |
| 0.12 | 1 | |||
| Sheet metal | 0.05 | 50 | 1,000,000 | |
| FLOOR | Laminate | 1 | 0.13 | 50 |
| OSB board | 2.20 | 0.13 | 50 | |
| Stone wool | 2 | 0.036 | 1.10 | |
| Vapour barrier | 0.015 | 0.50 | 230,000 | |
| OSB board | 2.20 | 0.13 | 50 | |
| Glass wool | 15 | 0.035 | 1.10 | |
| OSB board | 2.20 | 0.13 | 50 | |
| Bitumen waterproofing | 0.50 | 0.23 | 50,000 | |
| Extruded Polystyrene (XPS) | 8 | 0.034 | 140 | |
| Additional | Description | λ [W/m·K] | μ [-] | |
| Steel | For LSF and perimeter columns and beams | 50 | 1,000,000 | |
| Polyvinyl Chloride (PVC) | Window subframe | 0.57 | 50,000 | |
| air_gap_1 | Chamber in the windowsill | 0.14 | 1 | |
| air_gap_2 | Chamber in the windowsill | 0.28 | 1 | |
| air_gap_3 | Chamber in the windowsill | 0.17 | 1 | |
| air_gap_4 | Chamber in the windowsill | 0.43 | 1 | |
| Window | Window | 0.165 | 50,000 | |
| Window insulation | Thermal insulation around window subframe | 0.038 | 1.10 | |
| Air in steel column | Air in reinforced vertical support and drainage pipe (corner of two walls) | 0.6812 | 1 | |
| Air in steel beam | Beam support around the perimeter of the floor | 0.5456 | 1 | |
| Heat Flux Direction | Boundary | h [W/(m2K)] |
|---|---|---|
| Horizontal | Exterior | 25.00 |
| Interior | 7.69 | |
| Upwards | Exterior | 25.00 |
| Interior | 10.00 | |
| Downwards | Exterior | 25.00 |
| Interior | 5.88 |
| Air | T [°C] | RH [%] |
|---|---|---|
| Exterior | −10.00 | 90.00 |
| Interior | −20.00 | 60.00 |
| Units | Approach Using the Default U-Value Increase ΔU = 0.05 W/(m2K) | Approach Using the Ueff and Calculated ψ-Values | Relative Difference [%] | |
|---|---|---|---|---|
| Total HD | [W/K] | 33.977 | 17.530 | 48.4 |
| HD—opaque building elements | [W/K] | 21.429 | 16.189 | 24.5 |
| HD—transparent building elements | [W/K] | 12.548 | 12.548 | 0.0 |
| HD—thermal bridges | [W/K] | 0 | −11.207 | / |
Publisher’s Note: MDPI stays neutral with regard to jurisdictional claims in published maps and institutional affiliations. |
© 2022 by the authors. Licensee MDPI, Basel, Switzerland. This article is an open access article distributed under the terms and conditions of the Creative Commons Attribution (CC BY) license (https://creativecommons.org/licenses/by/4.0/).
Share and Cite
Milovanović, B.; Bagarić, M.; Gaši, M.; Vezilić Strmo, N. Case Study in Modular Lightweight Steel Frame Construction: Thermal Bridges and Energy Performance Assessment. Appl. Sci. 2022, 12, 10551. https://doi.org/10.3390/app122010551
Milovanović B, Bagarić M, Gaši M, Vezilić Strmo N. Case Study in Modular Lightweight Steel Frame Construction: Thermal Bridges and Energy Performance Assessment. Applied Sciences. 2022; 12(20):10551. https://doi.org/10.3390/app122010551
Chicago/Turabian StyleMilovanović, Bojan, Marina Bagarić, Mergim Gaši, and Nikolina Vezilić Strmo. 2022. "Case Study in Modular Lightweight Steel Frame Construction: Thermal Bridges and Energy Performance Assessment" Applied Sciences 12, no. 20: 10551. https://doi.org/10.3390/app122010551
APA StyleMilovanović, B., Bagarić, M., Gaši, M., & Vezilić Strmo, N. (2022). Case Study in Modular Lightweight Steel Frame Construction: Thermal Bridges and Energy Performance Assessment. Applied Sciences, 12(20), 10551. https://doi.org/10.3390/app122010551

