Next Article in Journal
The Geology, Geochemistry, and Origin of the Porphyry Cu-Au-(Mo) System at Vathi, Serbo-Macedonian Massif, Greece
Previous Article in Journal
Using Generative Adversarial Networks and Parameter Optimization of Convolutional Neural Networks for Lung Tumor Classification
Previous Article in Special Issue
Wear Properties of Sc-Bearing Zr-Based Composite BMG with Nano-CuZr2 under Lubrication
 
 
Font Type:
Arial Georgia Verdana
Font Size:
Aa Aa Aa
Line Spacing:
Column Width:
Background:
Article

Mechanical Properties of Bridge Steel from the Late 19th Century

by
Paweł Grzegorz Kossakowski
Faculty of Civil Engineering and Architecture, Kielce University of Technology, Al. Tysiąclecia Państwa Polskiego 7, 25-314 Kielce, Poland
Appl. Sci. 2021, 11(2), 478; https://doi.org/10.3390/app11020478
Submission received: 28 January 2020 / Revised: 27 November 2020 / Accepted: 2 December 2020 / Published: 6 January 2021
(This article belongs to the Special Issue Microstructural and Mechanical Properties of Metallic Materials)

Abstract

This article presents the results of testing of the strength of structural steel taken from a railway bridge. It was built within the borders of today’s Poland during the late 19th century and was in use for over 100 years, until the early 21st century. The main mechanical parameters of the bridge steel, such as its static and impact strength were determined. The results of the analysis of fracture surfaces with the aim of the identification of the material’s macrostructure are also presented. This article discusses the findings and analyses the values of material parameters in the context of requirements resulting from existing standards, and compares the results with those obtained during the testing of bridge steels of a similar age and operational period.

1. Introduction

Concrete, steel, wood and masonry are still the most popular materials used in the field of structural engineering. Compared to these, modern structural steel is a relatively new material, as its use in construction effectively dates back only to the 19th century, when the technology of its production was developed. At that time, due to its high and favourable strength parameters, steel had relatively quickly become the main structural material and was used for the construction of many large-scale structures. Metallic materials, such as iron and then steel, were used relatively early on a wider scale for the construction of bridges. This was due to the demand for the construction of railways during the industrial revolution, which began in England in the 18th century. Iron Bridge, built in 1779 using cast iron elements and opened on 1 January 1781 in Ironbridge in England, is the world’s first bridge made of materials other than wood and stone. This year may, therefore, be considered as the beginning of modern bridge construction. During the following period, bridge structures were built using puddled and cast steel, as a result of the modernisation of the technology of their production. From the late 18th century, cast iron, and then steel bridges and viaducts were also built on the territory of today’s Poland, which was then under partitions until 1918. Many of these structures built in the 19th century still exist and are still in operation.
Although steel structures which are now historic are relatively recent when compared, for example, to ancient structures, due to the properties of this material, they require preservation, and sometimes repair or reinforcement. This is necessary due to the occurrence of ageing processes of steel used for the construction of elements of building structures, which is exposed to various influences for many years during its operation. Degradation processes which affect the structure of structural steel in this case result in the reduction in the values of its mechanical parameters.
In the case of steel structures, significant reduction in the strength of steel may result in the decrease in their load-carrying capacity. When this is the case, the load-carrying capacity of such structures is reduced, and may even be insufficient for safe operation. Structures built in the 19th century have now been in operation for over 100 years, and many of them are still used in many countries around the world, including Poland. The relevant requirements are currently defined by standard EN 1990 [1], which states that the maximum operational life of bridge structures should be a minimum of 100 years. There are a number of factors that significantly reduce the durability of bridges [2]. This is why new solutions are constantly being sought after that will increase the operational life of bridges. In addition, it should be noted that integral bridges are among the modern constructions which meet these expectations [3,4,5]. In reference to old bridges exposed to multiple hazards, mostly due to material degradation processes, it is necessary to carry out tests of the strength of various types of structural steel used since the 19th century. Upon the determination of actual strength parameters of the material, it is then possible to evaluate the load-carrying capacity of structures built in this period, and to verify their operational safety on the basis of existing standards. It should be noted that the above works are undertaken in many countries around the world [6,7,8,9,10,11,12,13,14,15]—e.g., Poland [16,17,18,19,20,21,22]. Studies of various material properties of old steels extracted from the engineering structures other than bridges, are also very helpful in such analyses [23].
This article presents the results for tests performed on steel taken from a bridge built in the late 19th century in Poland—a structure which has been in operation for over one hundred years. It presents the main mechanical parameters of the tested steel and its macrostructure. The results obtained can be used for the purposes of analyses of the load-carrying capacity of structural elements of structures made of steel of similar age and type.

2. Materials and Methods

The tests were performed on structural steel taken from a railway bridge which was built in the late 19th century on the territory of today’s Poland. It was one of the bridges situated at the two railway routes—Radom–Tomaszów and Warsaw–Cracow—which are one route on a certain line. The bridge was built to serve one railway track, while there were 3 tracks in total. It was built in order to overcome a terrain obstacle in the form of a dry pit. The bridge was intended for normal rail traffic. This line covered wagon trains, cargo trains as well as rail buses and EMU (Electric Multiple Unit). The rail traffic corresponded to Load Model 71 according to EN 1991-2 [24]. This model represents the static effect of vertical loading due to normal rail traffic. For standard rail traffic (EC Mix), the traffic volume per year may be assessed totally as 25 × 106 t, due to the fact that there was one track. The bridge from which the steel for tests was taken had a beam structure (Figure 1), which consisted of two single-span steel structural girders made of riveted sheet metal, with an I-beam cross-section. The length of the bridge span was 16.6 m, and the section height of bridge in the middle of the span was 1.71 m.
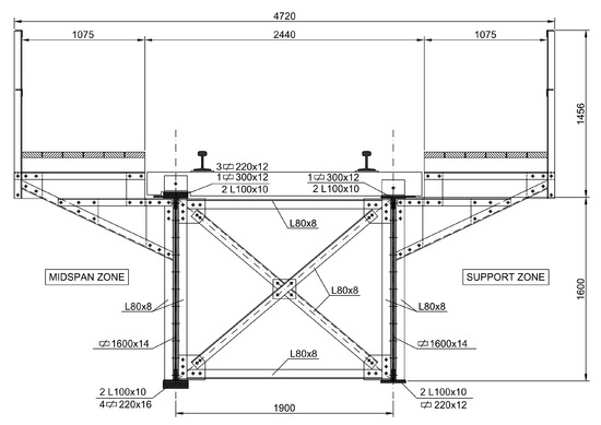
Structural girders had an I-beam cross-section and were made of riveted sheet metal and angle bars. Figure 2 shows the cross section of the bridge structure in the centre of its span and the support zone. Its web was made of a 1600 × 14 mm metal sheet, while the flanges were made of L100 × 100 angle bars, connected using 220 × 12 + 300 × 12 and 220 × 16 metal sheets, which were situated at the top and bottom, respectively. The girders had a variable cross-section, because only one metal sheet was used in the support zone per each flange, with the number of metal sheets increasing towards the centre of the span, where 4 metal sheets were used. The load-carrying structure of the bridge was braced using X-shaped transverse beams consisting of L 80 × 8 equal-armed angle bars.
Due to the fact that the bridge was built in 1885 and was in use until 2007, the period of its operation lasted approximately 122 years, which according to the currently applicable requirements of standard EN 1990 [1] significantly exceeds its maximum operational life. Other requirements were to obtain maximal speeds as 110 km/h for wagon trains, rail buses and EMU and 80 km/h for cargo trains. This was impossible due to the poor technical condition of the bridge. In the end it was dismantled because of the structure deterioration, mainly due to advanced corrosion of its main structural elements (Figure 3). This posed a very realistic hazard in the context of its operation.
Bearing in mind the above, we were interested in establishing the actual strength of the structural material of the railway bridge in question. The scope of undertaken tests included the identification of the main mechanical parameters of bridge steel, such as static and impact strength, and the characterisation of its macrostructure. The tests were performed as part of the procedure for the structural assessment of metal structures using acoustic emission, with a focus on steel bridge assessment [25].

3. Results

3.1. Main Mechanical Parameters

The mechanical parameters of bridge steel were defined on the basis of a static tensile test, carried out at room temperature with the controlled increase in displacement. Test conditions were accordant with those specified in standard PN-EN 10002-1 + AC1 [26]. According to the standard, mechanical properties are defined using samples with a circular or rectangular cross-section.
Tests were performed on samples taken from the structural girders of the bridge, by cutting them in two directions: longitudinal and transverse to the direction of rolling. Tests were performed using an MTS strength testing machine, via the process of controlled load application by the displacement of an actuated piston with the speed of 0.125 mm/s. The signal of displacement of the actuator, the force signal and the signal of elongation of extensometer, mounted on the measured section of the base sample of the length of 50 mm, were all recorded during the tests.
Flat samples with a 10 × 10 mm2 working cross-section area were used for the definition of steel strength properties. The selection of such samples was dictated by the thickness of the plate cut out from the bridge section. The plate was 12 mm in thickness, and following its machining by milling and grinding, it was possible to obtain samples of a maximum thickness of 10 mm.
A dozen pieces were extracted from the bridge for each longitudinal and transverse direction of rolling. They were tested in three different groups of specimens, but the results were very similar for the whole population. In order to ensure the most complete results, the group intended for a wide focus of research covering the mechanical, micro and macrostructural parameters is presented in this paper as representative. In fact, four samples were tested in this group to determine the mechanical parameters for each longitudinal and transverse direction of rolling. The Chauvenet’s statistical criterion was applied to reject atypical results from a population of four specimens and ensure a proper level of homogeneity in the results.
The tests resulted in the definition of the main strength parameters of the bridge steel: upper ReH and lower ReL yield strength, ultimate tensile strength Rm as well as percentage elongation after fracture A and percentage reduction in area Z. The defined parameters were determined on the basis of a population of n = 3 samples, individually for both longitudinal and transverse directions of rolling. A statistical analysis was performed to determine the mean values, standard deviation and confidence interval for the assumed significance level of 5%, for the obtained results. The achieved results can be observed in Table 1. As we can see, for the significance level of 5%, very low values of error bounds were identified.
Figure 4 illustrates the typical σ–ε stress–strain curves for samples cut out in longitudinal and transverse directions of rolling, respectively. Values of stress σ illustrated in the graphs were calculated as the quotient of the force value and the initial cross-section of sample S0. Values of strain ε were obtained by dividing the recorded values of elongation of the extensometer by its base length, L0. The illustrated curves are “engineering” graphs, which do not take into consideration any changes in the cross-section of samples during load application.

3.2. Analysis of Macrostructure of Fractures

A macrostructual analysis was performed on the fractures of samples which were separated as a result of the undertaken static tensile tests. Another series of samples, cut out from metal sheets used for the construction of the girders, was used for these tests, the only difference being that they were not subject to grinding. This allowed us to obtain structural views of the fractures and the deformation of elements in their original form.
Observations revealed the occurrence of zones of significant plastic deformation in the vicinity of the fractures (Figure 5a). They were of significant size and extent, as they started in the fracture plane, and ended at a distance comparable to the dimensions of a sample’s cross-section.
The fractures themselves demonstrated a heterogeneous structure of significant coarseness. Using relatively low magnification, it was possible to clearly observe the graining of the material on both surfaces of the separated samples (Figure 5a).
The configuration of the surfaces of the separated parts of samples was different, of a cup-cone type. In one section, the outer surfaces of fractures in the area of the corners of the cross-section were oriented at an angle of 30 ÷ 45° in relation to the sample axis. These areas formed a kind of a “crown” around the central section, which corresponds with a cup-type surface (Figure 5a). The inner surface of the fractures did not form a uniform surface and consisted of concave and convex areas. The surfaces of fractures of other parts of samples represented a mirror reflection of the described areas and were of the cone type. On the basis of the above observations, fractures of the analysed bridge steel were classified as combined. The outer parts of the samples were subjected to shear fracture, while the core was separated as a result of brittle fracture of quasi-cleavage type.
Another, very characteristic effect was also observed on the surfaces of the fractures. Layer separation was observed along the entire width of the samples, in a direction perpendicular to the thickness of the metal sheet. This is clearly visible in Figure 5b in the form of dark, horizontal lines. This layer separation occurred from the fracture surface to the depth of several millimetres.
In conclusion to the results of the macrostructural analysis, and taking into consideration the determined strength and the material’s age, it can be stated with a significant level of probability that the properties of the analysed steel correspond to the puddled steel, which was widely used for the construction of bridges in Poland during the late 19th century.

3.3. Impact Strength

The second phase of the task consisted of the testing of the impact strength of bridge steel in ambient temperature. The aim of these tests was the experimental definition of the impact strength of the material, by way of the measurement of energy needed to break the given sample in a defined temperature.
The analysis was carried out on samples cut out from the structural elements of the bridge. Samples were obtained and prepared for testing in accordance with standard PN-EN ISO 377 [27]. Experiments were carried out on standard samples with V-shaped notches, of a 10 × 10 mm cross-section and a length of 55 mm. Notches with an angle of 45°, depth of 2 mm and the bottom radius of 0.25 mm were used. Samples cut out in a direction longitudinal and transverse to rolling were considered.
Tests were performed in an ambient temperature of +23 °C. A Charpy pendulum machine with an initial energy of 300 + 10 J, which was compliant with the requirements of standards PN-EN 10045-1 [28] and PN-79/H-04371 [29], was used during experiments. The test criterion was assumed to be the breakage of the sample.
Impact strength U [J/cm2] was determined on the basis of a population of n = 3 samples for both longitudinal and transverse directions of rolling. The main values were defined, such as the mean value, standard deviation and confidence interval for the assumed significance level of 5%. The results are listed in Table 2.

4. Discussion

With reference to strength testing, it was primarily observed that each of the tested samples demonstrated a certain scope of plastic flow and a clear yield point. This can be observed in the examples of engineering stress–strain curves shown in Figure 4, both in longitudinal and transverse directions of rolling. Therefore, it was relatively straightforward to establish the strength of this bridge steel, which is defined by its yield point. In this case, according to standard EN 10025-1 [30], we assumed the lowest value recorded for the tested sample population. For both directions, longitudinal and transverse to rolling, this was ReH = 241 MPa. If we assume that structural elements are made of material of the orientation longitudinal to the direction of rolling, the value of ReH = 241 MPa should be considered as the strength of the analysed steel.
In the course of analysis of results obtained in terms of yield stress, it was generally observed that tests for samples of both orientations were very homogeneous. This applies both to upper and lower yield strength, as well as ultimate strength. The obtained standard deviations are relatively low, because their maximum value is 3.79 MPa for upper yield strength, whereas minimum value is only 1.0 MPa for lower yield strength for transverse direction. Thus, it can be observed that the analysed material is very homogeneous in terms of its strength. Naturally, this also applies to mean values of individual strength parameters, which have very similar values.
In terms of ultimate strength, minimum values defined for both the longitudinal and transverse directions are Rm = 367 MPa. Mean values of these parameters are Rm = 368.7 MPa and Rm = 368.3 MPa. As in the case of the yield point, very homogeneous test results were also obtained for ultimate strength for both directions of samples individually, and in combination.
This homogeneity can be very clearly observed in the graph illustrated in Figure 6, which demonstrates the values of individual parameters and their mean values for samples cut out in the longitudinal and transverse direction of rolling.
On the basis of the above, the definition of yield point of the analysed steel at ReH = 241 MPa means that this steel can be classified as medium-strength steel. This value is lower than yield point values defined for bridge steel types of a similar age. For example, according to data provided in [9], steel taken from a bridge built in 1909 in China demonstrated a yield point of the value of Rs = 275.7 MPa. These values differ by about 14%, which is not a significant amount. In comparison to other examples, the differences are higher. An example is the Eiffel bridge, which was built in Portugal in 1878—i.e., in the similar period as the considered bridge. The strength of the puddled steel extracted from the Eiffel bridge was fy = 292 MPa [21], which is about 21% higher than strength of the tested bridge steel. A similar comparison can be made with reference to data listed in [7] for steel bridges built in Sweden before 1901. In this case, the mean yield point may be assumed as fy = 295 MPa. This value is 22% higher than ReH = 241 MPa obtained for the steel of the analysed bridge. In turn, for a bridge built in 1896 in the US, the yield strength for rolled sections was estimated as 220 MPa [6]. This is almost 10% lower than the yield stress of steel considered in this study. The same difference applies to the Fão Bridge, for which the steel strength was identified as σ0.2% = 219.9 MPa [14]. However, in relation to the “Most pod Cytadelą” bridge erected in 1873 in Warsaw in Poland, the strength is practically the same. The yield tensile strength for this structure was determined as equal to 250 and 245 MPa [20], for longitudinal and transverse directions, respectively.
On the other hand, in comparison to type S235 steel, which is widely used in construction and bridge engineering, the analysed steel has a similar yield point. Standard EN 10025-1 [30] requires this type of steel to have a yield point of the value of 235 MPa. Simultaneously, the mean value of yield point determined in the course of static tensile tests amounts to 320 MPa; therefore, the strength of the analysed bridge steel amounts to approximately 75% of this value. This comparison is even less favourable when set against the main type of steel used in bridge engineering—i.e., type S355 steel—which has a much higher yield point defined in the course of experimental tests that amounts to 355 MPa.
Moving on to the discussion of parameters which determine the plasticity of the analysed bridge steel, it can be observed that a minor difference between the A and Z characteristics was noted in longitudinal and transverse directions of rolling. This is clearly visible in the combined graph illustrated in Figure 7. The obtained mean values of elongation of A = 37.5% and A = 35.6% for the longitudinal and transverse directions, respectively, classify the analysed material as highly ductile steel. This level is similar to that demonstrated by S235 steel types.
It should also be noted that both A and Z deformation parameters obtained for the tested bridge are far higher than the values reported in [14,20,21] for similar bridge steels. The lowest values of A = 6% and Z = 5.6% were identified for the “Most pod Cytadelą” bridge [20] in the transverse direction to the rolling. On a different note, both of these values are generally very low for structural steels. This proves the phenomenon of similar strength with significant differences in ductility at the same time for compared steels.
With reference to impact strength, the first observation is the fact that its value varied significantly depending on the direction of rolling. In the case of the longitudinal direction, the average impact strength stood at U = 62.9 J/cm2, while in the case of the transverse direction it was U = 107.3 J/cm2. Thus, we can see that the ratio of these values gives a relative difference of about 70%.
When comparing the obtained results with impact strength values defined for other types of bridge steel of a similar age, it can be observed that this value is higher in comparison with them. Charpy Kv energy required for a failure of steel determined in the temperature 0 °C for bridges constructed in Germany between 1901 and 1919 was 18 J [31]. For bridge steel considered in this study, this is 50.3 J for longitudinal direction to the rolling. This is almost a three times higher Charpy energy than that estimated for German bridges.
Upon the analysis of existing requirements for steel in accordance with standard EN 1993-1-10 [32], it can be observed that the analysed bridge steel easily fulfils them. According to [32], the minimum energy needed to fracture steel types S235/S275/S355, which are comparable with the analysed steel in this regard, is CVNmin = 27 J at a the temperature of +20 °C. In the case of the analysed steel, the minimum energy needed to fracture it was observed in the case of one sample cut out in longitudinal direction of rolling, and amounted to 44 J, at a test temperature of +23 °C. Therefore, in working conditions and in ambient temperature, the analysed bridge steel fulfils the requirements of existing standards.

5. Summary

The strength parameters of the analysed bridge steel, which was extracted from a railway bridge that operated on the territory of Poland from the late 19th century till the early 21st century, classify this material as medium-strength steel, taking into consideration steel types widely used today in bridge engineering. On the basis of its characteristic yield point of ReH = 241 MPa, it is comparable with S235 steel types. At the same time, it must be noted that the values of the test-defined yield point of various types of S235 steel are much higher, often above 300 MPa. This allows us to conclude that the analysed bridge steel from the late 19th century is much weaker in terms of its strength than steel types most frequently used in bridge engineering. Furthermore, the analysed steel type demonstrated relatively high ductility at a level of approximately 36%, which in the situation of the failure of a structure built using this type of steel ensures a certain reserve of carrying capacity in the post-critical range.
On the basis of impact strength test results, it can be observed that the minimum amount of energy needed to fracture the analysed bridge steel was relatively high, and fulfilled the requirements of existing standards for working conditions in ambient temperature. This especially refers to the requirements of standard EN 1993-1-10 [32] in view of the possibility of the occurrence of brittle fracture, which defines this value for steel types of similar strength at CVNmin = 27 J, whereas the minimum value recorded for the analysed steel was 44 J.
In sum, it should be emphasized that there is still a magnificent number of old steel bridges operating all over the world. Although many of them are in good technical condition, it is necessary to monitor their safety of use and check current load-carrying capacity. In this field, many sophisticated methods were developed [33,34,35,36], which allow us to analyse the stress and strain state in critical parts of the bridges prone to damage, as well as to predict the emergency and model time to failure.

Funding

This research was funded by The Polish Ministry of Science and Higher Education, grant number R04 007 01 and the APC was funded by Kielce University of Technology within the framework of the statutory work No. 02.0.06.00/2.01.01.02.0000, MNSC.BKWB.18.002.

Institutional Review Board Statement

Not applicable.

Informed Consent Statement

Not applicable.

Data Availability Statement

Not applicable.

Conflicts of Interest

The authors declare no conflict of interest.

References

  1. EN 1990:2002. Eurocode—Basis of Structural Design. 2001. Available online: https://www.phd.eng.br/wp-content/uploads/2015/12/en.1990.2002.pdf (accessed on 28 January 2020).
  2. Argyroudis, A.A.; Mitoulis, S.A.; Winter, M.G.; Kaynia, A.M. Fragility of transport assets exposed to multiple hazards: State-of-the-art review toward infrastructural resilience. Reliab. Eng. Syst. Saf. 2019, 191, 106567. [Google Scholar] [CrossRef]
  3. Martin, P.B., Jr. Integral and Semi-Integral Bridges, 1st ed.; Wiley-Blackwel: Chichester, UK, 2009. [Google Scholar]
  4. Kossakowski, P.G. Recent Advances in Bridge Engineering—Application of Steel SheetPiles as Durable Structural Elements in Integral Bridges. IOP Conf. Ser. Mater. Sci. Eng. 2019, 507, 012003. [Google Scholar] [CrossRef]
  5. Mitoulis, S.A.; Palaiochorinou, A.; Georgiadis, I.; Argyroudis, S. Extending the application of integral frame abutment bridges in earthquake-prone areas by using novel isolators of recycled materials. Earthq. Eng. Struct. Dyn. 2016, 45, 2283–2301. [Google Scholar] [CrossRef]
  6. Sparks, S.P. Evaluation of Iron & Steel in Historic Bridges. In Proceedings of the Sixth International Conference on Structural Analysis of Historical Constructions, Bath, UK, 2–4 July 2008; pp. 1–8. [Google Scholar]
  7. Larsson, T.; Lagerqvist, O. Material properties of old steel bridges. In Proceedings of the Nordic Steel Construction Conference, Malmö, Sweden, 2–4 September 2009; pp. 120–127. [Google Scholar]
  8. De Jesus, A.M.P.; Da Silva, A.L.L.; Figueiredo, M.V.; Correia, J.A.F.O.; Ribeiro, A.S.; Fernandes, A.A. Strain-life and crack propagation fatigue data from several Portuguese old metallic riveted bridges. Eng. Fail. Anal. 2011, 18, 148–163. [Google Scholar] [CrossRef]
  9. Wang, C.-S.; Duan, L.; Wang, S.-C.; Hu, J.-Y. Fatigue Strength and Fatigue Life Evaluation of National Cultural Relic Steel Bridges. In Proceedings of the 13th International Conference on Fracture, Beijing, China, 16–21 June 2013; pp. 1–7. [Google Scholar]
  10. Collette, Q.; Sire, S.; Vermes, W.J.; Mesler, V.J.; Wouters, I. Experimental investigations on hot-driven structural rivets in historical French and Belgian wrought-iron structures (1880s–1890s). Constr. Build. Mater. 2014, 54, 258–269. [Google Scholar] [CrossRef]
  11. Lepretre, E.; Chataigner, S.; Dieng, L.; Gaillet, L.; Cannard, H. Numerical and experimental investigations of hot driven riveting process on old metal structures. Eng. Struct. 2016, 127, 583–593. [Google Scholar] [CrossRef]
  12. Marques, F.; Correia, J.A.F.O.; De Jesus, A.M.P.; Cunha, Á.; Caetano, E.; Fernandes, A.A. Fatigue analysis of a railway bridge based on fracture mechanics and local modelling of riveted connections. Eng. Fail. Anal. 2018, 94, 121–144. [Google Scholar] [CrossRef]
  13. Pedrosa, B.; Correia, J.A.F.O.; Rebelo, C.; Lesiuk, G.; De Jesus, A.M.P.; Fernandes, A.A.; Duda, M.; Calçada, R.; Veljkovic, M. Fatigue resistance curves for single and double shear riveted joints from old Portuguese metallic bridges. Eng. Fail. Anal. 2019, 96, 255–273. [Google Scholar] [CrossRef]
  14. Correia, J.; Carvalho, H.; Lesiuk, G.; Mourão, A.; Grilo, L.F.; De Jesus, A.; Calçada, R. Fatigue crack growth modelling of Fão Bridge puddle iron under variable amplitude loading. Int. J. Fatigue 2020, 136, 105588. [Google Scholar] [CrossRef]
  15. Leonetti, D.; Maljaars, J.; Pasquarelli, G.; Brando, G. Rivet clamping force of as-built hot riveted connections in steel bridges. J. Constr. Steel Res. 2020, 167, 105955. [Google Scholar] [CrossRef]
  16. Biliszczuk, J.; Rabiega, J. Badania materiału pierwszego na kontynencie europejskim mostu żelaznego. Inżynieria Bud. 1997, 6, 308–309. [Google Scholar]
  17. Konat, Ł.; Pękalski, G.; Rabiega, J.; Sachadel, U. Material Tests of a Bridge from 1796 over the Strzegomka River in Łażany, Lower Silesia. Arch. Civ. Mech. Eng. 2005, 5, 27–41. [Google Scholar]
  18. Lesiuk, G.; Szata, M. Degradacja mikrostruktur elementów konstrukcyjnych pochodzących z mostów wzniesionych na przełomie XIX i XX wieku. Zesz. Nauk. WSOWL 2010, 1, 96–109. [Google Scholar]
  19. Lesiuk, G.; Rabiega, J. Badania wytrzymałościowe XIX-wiecznych elementów konstrukcyjnych wykonanych ze stali zgrzewnych. Logistyka 2011, 6, 2224–2232. [Google Scholar]
  20. Lesiuk, G.; Rymsza, B.; Rabiega, J.; Correia, J.A.F.O.; De Jesus, A.M.P.; Calcada, R. Influence of loading direction on the static and fatigue fracture properties of the long term operated metallic materials. Eng. Fail. Anal. 2019, 96, 409–425. [Google Scholar] [CrossRef]
  21. Lesiuk, G.; Correia, J.; Smolnicki, M.; De Jesus, A.; Duda, M.; Montenegro, P.A.; Calçada, R. Fatigue crack growth rate of the long term operated puddle Iron from the Eiffel bridge. Metals 2019, 9, 53. [Google Scholar] [CrossRef]
  22. Lesiuk, G.; Smolnicki, M.; Rozumek, D.; Krechkovska, H.; Student, O.; Correia, J.; Mech, R.; De Jesus, A. Study of the Fatigue Crack Growth in Long-Term Operated Mild Steel under Mixed-Mode (I + II, I + III) Loading Conditions. Materials 2020, 13, 160. [Google Scholar] [CrossRef]
  23. Krechkovska, H.; Student, O.; Lesiuk, G.; Correia, J. Features of the microstructural and mechanical degradation of long term operated mild steel. Int. J. Struct. Integr. 2018, 9, 296–306. [Google Scholar] [CrossRef]
  24. EN 1991-2:2003. Eurocode 1: Actions on Structures—Part 2: Traffic Loads on Bridges. Available online: https://www.phd.eng.br/wp-content/uploads/2015/12/en.1991.2.2003.pdf (accessed on 28 January 2020).
  25. Research and Development Project No R04 007 01. Development and Preliminary Verification of a Procedure for the Structural Assessment of Metal Structures Using Acoustic Emission, with a Focus on Steel Bridge Assessment; Kielce University of Technology: Kielce, Poland, 2010. [Google Scholar]
  26. PN-EN 10002-1+AC1:2004. Metallic Materials—Tensile Testing—Part 1: Method of Test at Ambient Temperature. Available online: https://sklep.pkn.pl/pn-en-10002-1-2004p.html (accessed on 28 January 2020).
  27. PN-EN ISO 377:2000. Stal i Wyroby Stalowe—Położenie i Przygotowanie Odcinków Próbnych oraz Próbek do Badań Własności Mechanicznych. Available online: https://sklep.pkn.pl/pn-en-iso-377-2017-09p.html (accessed on 28 January 2020).
  28. PN-EN 10045-1:1994. Metale—Próba Udarności Sposobem Charpy’ego—Metoda Badania. Available online: https://sklep.pkn.pl/pn-en-10045-1-1994p.html (accessed on 28 January 2020).
  29. PN-79/H-04371 Metale. Próba Udarności w Obniżonych Temperaturach. Available online: https://books.google.cn/books/about/Metale_Pr%C3%B3ba_udarno%C5%9Bci_w_obni%C5%BConych_t.html?id=vPrOzQEACAAJ&redir_esc=y (accessed on 28 January 2020).
  30. EN 10025-1:2007. Wyroby Walcowane na Gorąco ze Stali Konstrukcyjnych—Część 1: Ogólne Warunki Techniczne Dostawy. Available online: https://sklep.pkn.pl/pn-en-10025-1-2007p.html (accessed on 28 January 2020).
  31. Larsson, T. Fatigue Assessment of Riveted Bridges. Ph.D. Thesis, Luleå University of Technology, Luleå, Sweden, 2009. [Google Scholar]
  32. EN-1993-1-10:2005—Eurocode 3: Design of Steel Structures—Part 1–10: Material Toughness and Through-Thickness Properties. Available online: https://www.phd.eng.br/wp-content/uploads/2015/12/en.1993.1.10.2005.pdf (accessed on 28 January 2020).
  33. Kossakowski, P.G. Experimental Determination of the Void Volume Fraction for S235JR Steel at Failure in the Range of High Stress Triaxialities. Arch. Metall. Mater. 2017, 62, 167–172. [Google Scholar] [CrossRef]
  34. Kossakowski, P.G. Analysis of the Void Volume Fraction for S235JR Steel at Failure for Low Initial Stress Triaxiality. Arch. Civ. Eng. 2018, 64, 101–115. [Google Scholar] [CrossRef]
  35. Kossakowski, P.G. Application of Damage Mechanics for Prediction of Failure of Structural Materials and Elements. DEStech Trans. Comput. Sci. Eng. 2020, 62–72. [Google Scholar] [CrossRef]
  36. Bernatowska, E. Numerical Simulations of Ductile Fracture in Steel Angle Tension Members Connected with Bolts. Civ. Environ. Eng. Rep. 2020, 30, 32–54. [Google Scholar] [CrossRef]
Figure 1. View of railway bridge from late 19th century, from which the tested steel was taken.
Figure 1. View of railway bridge from late 19th century, from which the tested steel was taken.
Applsci 11 00478 g001
Figure 2. Mid-span and support-zone cross-section of railway bridge from late 19th century.
Figure 2. Mid-span and support-zone cross-section of railway bridge from late 19th century.
Applsci 11 00478 g002
Figure 3. View of corroded sections of the structure of railway bridge from late 19th century.
Figure 3. View of corroded sections of the structure of railway bridge from late 19th century.
Applsci 11 00478 g003
Figure 4. Typical engineering stress–strain σ–ε curves for bridge steel from late 19th century for longitudinal and transverse directions of rolling.
Figure 4. Typical engineering stress–strain σ–ε curves for bridge steel from late 19th century for longitudinal and transverse directions of rolling.
Applsci 11 00478 g004
Figure 5. Fracture surface of analysed bridge steel from late 19th century: (a) “cup-type” part of separated sample; (b) macrostructure.
Figure 5. Fracture surface of analysed bridge steel from late 19th century: (a) “cup-type” part of separated sample; (b) macrostructure.
Applsci 11 00478 g005
Figure 6. Illustration of values of yield and ultimate strength defined in bridge steel samples cut out in longitudinal and transverse directions of rolling.
Figure 6. Illustration of values of yield and ultimate strength defined in bridge steel samples cut out in longitudinal and transverse directions of rolling.
Applsci 11 00478 g006
Figure 7. Illustration of values of elongation and area reduction defined on bridge steel samples cut out in longitudinal and transverses directions of rolling.
Figure 7. Illustration of values of elongation and area reduction defined on bridge steel samples cut out in longitudinal and transverses directions of rolling.
Applsci 11 00478 g007
Table 1. Main mechanical parameters of bridge steel.
Table 1. Main mechanical parameters of bridge steel.
Longitudinal DirectionTransverse Direction
ParameterReH
[MPa]
ReL
[MPa]
Rm
[MPa]
A
[%]
Z
[%]
ReH
[MPa]
ReL
[MPa]
Rm
[MPa]
A
[%]
Z
[%]
Mean value242.3237.0368.737.562.7243.7238.0368.335.657.3
Standard deviation1.533.001.530.500.963.791.001.531.221.15
Error bound1.733.391.730.571.094.281.131.731.381.31
Table 2. Impact strength of tested bridge steel.
Table 2. Impact strength of tested bridge steel.
Longitudinal DirectionTransverse Direction
ParameterU
[J/cm2]
U
[J/cm2]
Mean value62.9107.3
Standard deviation7.538.08
Error bound8.539.15
Publisher’s Note: MDPI stays neutral with regard to jurisdictional claims in published maps and institutional affiliations.

Share and Cite

MDPI and ACS Style

Kossakowski, P.G. Mechanical Properties of Bridge Steel from the Late 19th Century. Appl. Sci. 2021, 11, 478. https://doi.org/10.3390/app11020478

AMA Style

Kossakowski PG. Mechanical Properties of Bridge Steel from the Late 19th Century. Applied Sciences. 2021; 11(2):478. https://doi.org/10.3390/app11020478

Chicago/Turabian Style

Kossakowski, Paweł Grzegorz. 2021. "Mechanical Properties of Bridge Steel from the Late 19th Century" Applied Sciences 11, no. 2: 478. https://doi.org/10.3390/app11020478

APA Style

Kossakowski, P. G. (2021). Mechanical Properties of Bridge Steel from the Late 19th Century. Applied Sciences, 11(2), 478. https://doi.org/10.3390/app11020478

Note that from the first issue of 2016, this journal uses article numbers instead of page numbers. See further details here.

Article Metrics

Back to TopTop