Causes of the Collapse of the Polcevera Viaduct in Genoa, Italy
Abstract
:1. Introduction
1.1. General Information
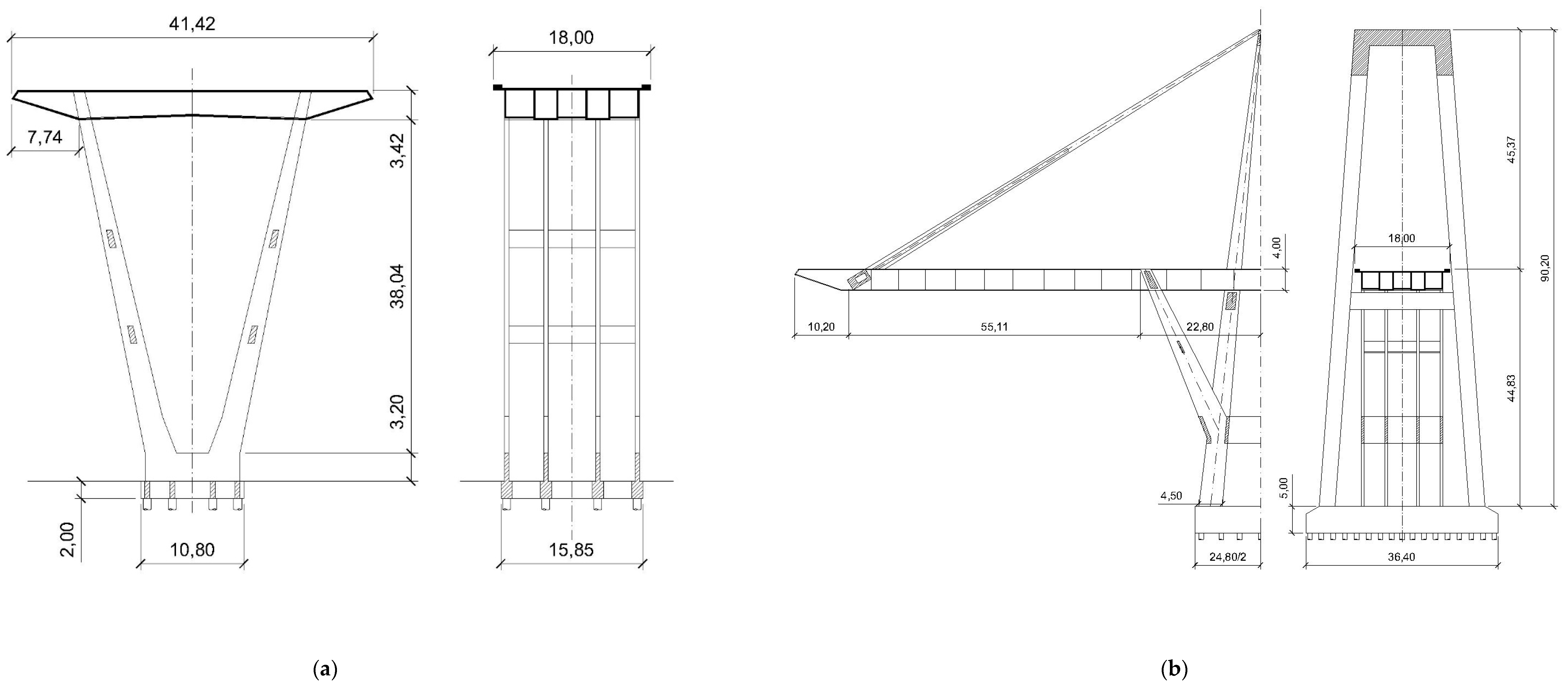
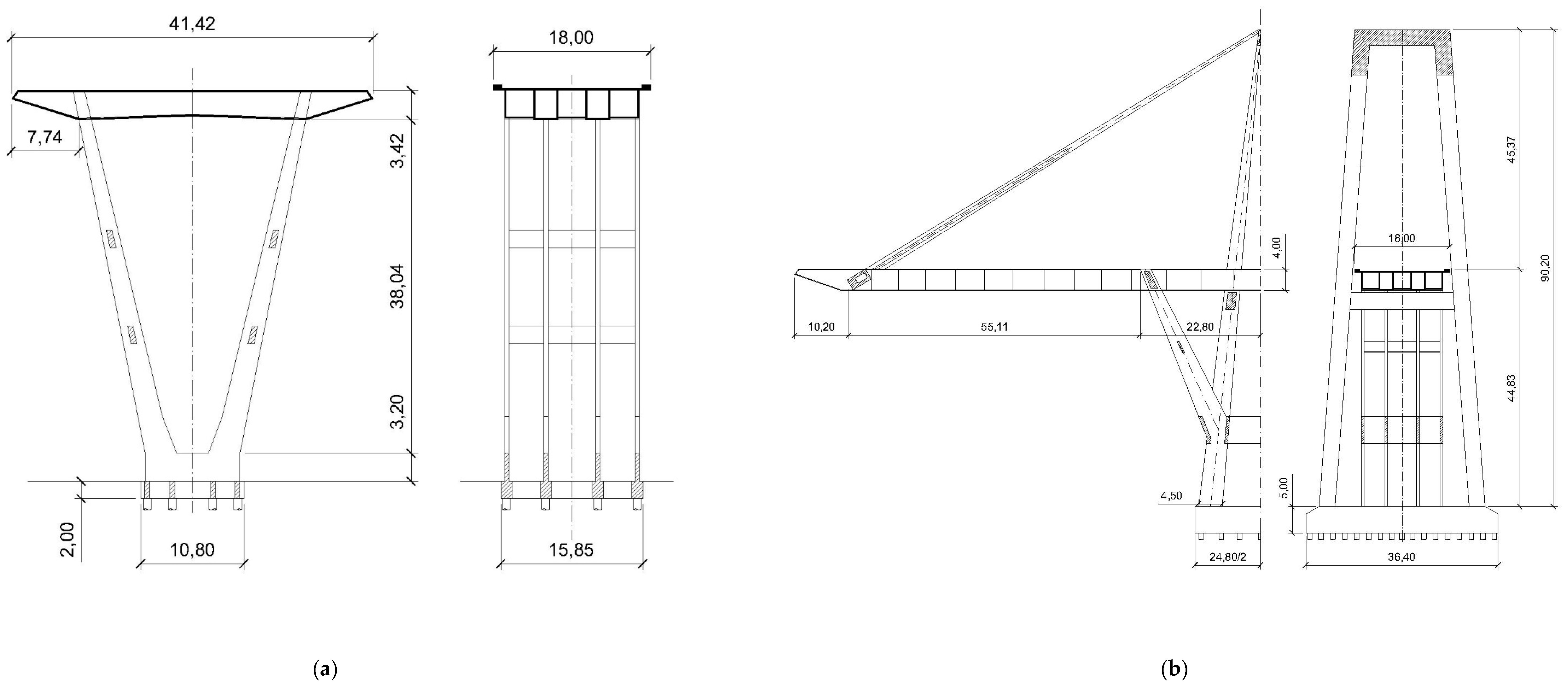
1.2. Static Scheme of the Bridge Structure
1.3. Diagonal Stay Cable Structure According to
1.4. Construction of the Main Structural Elements of the Bridge in Genoa According to
2. Methods and Materials of Strengthening of the Polcevera Viaduct
2.1. Technical Condition of the Polcevera Viaduct after 25 Years of Service
- Prohibition of overtaking by trucks and non-standard vehicles.
- Limitation of the traffic speed to 50 km/h.
2.2. Strengthening of the Concreted Cables at Support No. 11 of the Polcevera Viaduct between 1992 and 1994
- Preserving the architecture of the structure.
- High risk is associated with the demolition of the diagonal stay cables, e.g., with the lack of possibility to maintain the stiffness of the concrete support.
- No possibility of closing traffic through the bridge.
- Ensuring such compressive stress in concrete after strengthening that the steel-concrete cross-section transferred loads as a composite cross-section.
- The concrete was removed in the lower part of the cable at the length of 6.5 m.
- Short tendons were installed and concreted at the length of ~6.0 m with high-strength concrete (leaving the non-concreted 0.5 m gap).
- Short tendons were strained to the maximum value and all old, corroded strands of internal tendons (pre-tensioned and post-tensioned) in the non-concreted 0.5 m gap were cut off.
- The stresses in short tendons were successively reduced while increasing the stress in the long external tendons to the design value.
2.3. Characteristics of the Diagonal Stay Cable before and after Strengthening
3. Results of Strengthening According to the Author
3.1. Characteristics of the Diagonal Stay Cable According to the Author
- internal forces specified in the report of Prof. Wicke (Wicke, March 1992) are correct,
- the longitudinal modulus of elasticity of the tendon E = 180,000 MPa,
- the modulus of elasticity of concrete E = 32,000 MPa,
- the length of the cable is 92.2 m (based on Figure 3b),
- the cross-sectional area and the tensile stiffness are calculated and specified in Table 1, it can be calculated that in the non-strengthened cable:
- ➢
- Under permanent load:
- the tensile stress in internal tendons was 515.1 MPa (26.1:0.05067),
- the compressive stress in concrete was 6.1 MPa (7:1.14493),
- the elongation of the cable transferring the load as a steel-concrete section was 38.5 mm (19.1 × 92,200:45,758.4),
- the elongation of the cable transferring the load only through internal tendons would be 193.1 mm (19.1 × 92,200:9120.6);
- ➢
- Under live load equal to 6.0 MN:
- the tensile stress in internal tendons was 23.6 MPa (6.0:0.05067 × (9120.6:45,758.4)),
- the compressive stress in concrete was 4.2 MPa (6.04:1.14493 × (36,637.8:45,758)),
- the elongation of the cable transferring the load as a steel-concrete section was 12.1 mm (6.0 × 92,200:45,758.4),
- the elongation of the cable transferring the load only through internal tendons would be 60.7 mm (6.0 × 92,200:9120.60).
- the tensile stress in internal tendons was 538.7 MPa (515.1 + 23.6),
- the compressive stress in concrete was 10.3 MPa (6.1 + 4.2),
- the elongation of the cable transferring the load as a steel-concrete section, was 50.6 mm (38.5 + 12.1),
- the elongation of the cable transferring the load only through internal tendons would be 253.8 mm (193.1 + 60.7),
- the increase in elongation of the cable transferring loads only through internal tendons would be 203.2 mm (253.8–50.6); such an increase in elongation of the cable would cause vertical displacement equal to 108.9 mm (sin32.4o × 203.2; the value of the angle was assumed based on Figure 3b).
- ➢
- Under permanent load:
- the tensile stress in internal tendons was 473.7 MPa (24.0:0.05067),
- the compressive stress in concrete was 15.0 MPa (17.2:1.14493);
- ➢
- Under live load equal to 6.0 MN:
- the compressive stress in concrete was 4.2 MPa [6.0:(11,449.3 + 506.7 × (180,000:32,000))],
- the tensile stress in external tendons amounted to 19.3 MPa (0.9:0.04665).
- External tendons slightly relieve strains from the corroded internal tendons—as much as 85% (5.1:6.0 × 100) of the load will still be transferred by the corroded stay cable under live load and only 15% (0.9:6.0 × 100) by external tendons. Figure 8a shows pylon No. 11 with strengthened north-eastern cable. Figure 8b presents strengthening of the cable with long external tendons in the view from the viaduct deck and Figure 8c-in the view from the top of pylon No. 11. Figure 8d shows the newly installed steel cap on pylon No. 11;
- The level of prestressing the long external tendons is limited by the technical condition of the concrete in the diagonal stay cable-stresses at the level of 1% of the tensile strength of steel will be generated in external tendons. Figure 8e shows the cable of pylon No. 11 before strengthening;
- Compression of the curved structural element, like the diagonal stay cable, is difficult in practice (Figure 8c,e).
3.2. Author’s Concept of Strengthening of Pylons Nos. 9 and 10 of the Viaduct from 1993
- the cables were strengthened at support No. 11,
- a steel cap was installed at support No. 10 to connect the cables at both sides of the pylon (with scaffolding),
- no works were performed at support No. 9.
- removing the suspended span-unload the support, including brackets,
- repair and reinforce of concrete supports, including brackets and concrete tendons,
- adaptation of the pylon and brackets to attach additional steel tendons suspending the brackets,
- fixing additional steel tendons to the pylon and brackets,
- strengthening the suspended span (or replacing it with a lighter one) and placing it on the reinforced joints at the ends of the supports.
4. Discussion about the Causes of the Viaduct Collapse
4.1. The Consequences of the Viaduct Collapse
4.2. Causes of the Viaduct Collapse According to the Author
4.2.1. General Remarks
4.2.2. Material Cause
- shrinkage of concrete (decrease in the volume of concrete as a result of drying),
- creep of concrete (increase in deformation without a change in load),
- relaxation of steel (decrease of the pre-stressing force at constant deformation).
4.2.3. Structural Cause
4.2.4. Organizational Cause
4.3. The Destruction Stages of the Viaduct
- The value of the pre-stressing force in the strained cables was reduced as a result of pre-stressing losses.
- Due to the large dead weight of the cable, its shape changed from straight to curved and this led to a decrease of the compressive force, causing tension in concrete at the bottom surface of the cable.
- The decreasing value of the compressive force in the cable as a result of pre-stressing losses and changes in the shape of the diagonal stay cable caused cracking of the concrete, starting from the bottom surface of the diagonal stay cable.
- Cracking of concrete resulted in a decrease of the area of the compressed concrete cross-section that transferred the tension forces.
- The cracked concrete ceased to provide adequate anti-corrosion protection of strands in the tendons and allowed for steel corrosion.
- The strands not protected with concrete cover corroded and successively cracked, causing a decrease in the steel–concrete cross-sectional area of cable transferring the tension forces.
- The decrease of the cross-sectional area of the concreted cable under constant forces resulted in increased stresses in the corroded tendons.
- With such a decrease in the value of the pre-stressing force in the cables that concrete was not compressed in no place of the cable’s cross-section, the tension forces were transferred only by the corroded tendons.
- When the load is transferred only by the corroded internal tendons, the elongation of the cable would be greater than 20 cm.
- The successive ruptures of the corroded strands in the steel tendons under constant force would cause an increase of stresses in other unbroken strands and their excessive elongation, until the rupture of the last strand in the tendon.
- The viaduct superstructure allowed for direct loading of the cantilever with three trucks-at the time of the viaduct collapse, presumably three trucks were on the cantilever.
- The cantilever was structurally connected with the diagonal stay cables, with poor technical condition that could not transfer such a heavy live load.
- The overloaded cantilever resulted in a rupture of one of the two cables, loaded more in the upper part due to the dead load of the cable than in the lower part (the weight of 1 m of the cable was ca. 3 t (1.1956 × 2.5).
- The north-western cable was broken at support No. 9 (Figure 11a).
- The broken cable with a weight of about 280 t (92.2 × 1.1956 × 2.5) fell on the cantilever, which resulted in the destruction of its structure and the rupture of the south-western cable (Figure 11b) located on the other side of the carriageway (the force should be determined taking into account the dynamic impact factor, e.g., equal to 1.5).
- The destruction of the cantilever resulted in a collapse of the suspended span supported on the cantilever (Figure 11c).
- The imbalance in the load of the pylon on both sides caused its destruction, and this led to the collapse of the cables, the cantilever, and the span at the eastern side of the pylon (Figure 11d–f).
5. Conclusions
Funding
Institutional Review Board Statement
Institutional Consent Statement
Data Availability Statement
Conflicts of Interest
References
- Morandi, R. Viaducto sobre el Polcevera, en Genowa—Italia. Inf. Construcción 1968, 21, 57–88. [Google Scholar] [CrossRef] [Green Version]
- Troitsky, M.S. Cable-stayed bridges. In Theory and Design; Crosby Lockwood Staples: London, UK, 1977. [Google Scholar]
- Podolny, W., Jr. Concrete cable-stayed bridges. Bridge Eng. 1978, 2, 121–130. [Google Scholar]
- Italstrade. Autostrada Genova-Savona Viadotto Polcevera: Lavori di risanamento della pila. In Lavori Eseguiti da Italstrade a Tutto il 29 Febbraino 1988; 1988; Available online: http://yadda.icm.edu.pl/yadda/element/bwmeta1.element.baztech-192d98c7-1d6b-4fb9-9a16-263b70ddb798 (accessed on 24 August 2021).
- Wicke, M. Interim report on the corrosion damage to the prestressing steel on the “Viadotto sul Polcevera”. In Report to ISA Italstrade Appalti S.p.A.; Innsbruck: Genoa, Italy, 1992. [Google Scholar]
- Wicke, M. 2nd Report on the Polcevera Viaduct. Report to Autostrada S.p.A.; Innsbruck; Springer: Berlin, Germany, 1992. [Google Scholar]
- Camomilla, G.; Pisani, F.; Martinez y Cabrera, F.; Marioni, A. Repair of the Stay Cables of the Polcevera Viaduct in Genova, Italy; IABSE Reports: Zürich, Switzerland, 1995. [Google Scholar]
- Rymsza, J. Causes of the Morandi viaduct disaster in Genoa as a contribution to the design of pre-stressed structures. Roads Bridges—Drog. i Mosty 2020, 19, 5–25. [Google Scholar] [CrossRef]
- Biliszczuk, J.; Teichgraeber, M. O katastrofie wiaduktu Polcevera w Genui, we W³oszech. Inżynieria i Bud 2018, 74, 578–582. [Google Scholar]
- Kostack, K. Fragments of the Animation “Morandi Bridge Destruction Simulation Genoa 2018|Demolition in 2019”. Available online: www.youtube.com/watch?v=Y6suQ0FIoIQ (accessed on 31 August 2021).
- Morgese, M.; Ansari, F.; Domaneschi, M.; Cimellaro, G.P. Post-collapse analysis of Morandi’s Polcevera viaduct in Genoa Italy. J. Civ. Struct. Health Monit. 2020, 10, 69–85. [Google Scholar] [CrossRef]
- Ministero delle Infrastrutture e dei Trasporti, Commissione Ispettiva Ministeriale. Comune di Genova, Autostrada A10—Crollo del Viadotto Polcevera, Evento Accaduto il 14 Agosto 2018; Governo Italiano: Roma, Italy, 2018. [Google Scholar]
- Cieśla, J.; Biskup, M.; Topczewski, Ł.; Skawiński, M. Cases of Bridge Structural Failure during the Process of Pre-Stressing. Roads and Bridges–Drogi i Mosty 2017, 16, 15–35. [Google Scholar] [CrossRef]
- EN 1990. Eurocode. In Basis of Structural Design, Table 2.1; 2004; p. 20. Available online: https://www.phd.eng.br/wp-content/uploads/2015/12/en.1990.2002.pdf (accessed on 24 August 2021).















| Data | Unit | S | C | B | T |
|---|---|---|---|---|---|
| A | (cm2) | 506.7 | 11,449.3 | 11,956.0 | 466.5 |
| EA | (MN) | 9120.6 | 36,637.8 | 45,758.4 | 8397.0 |
Publisher’s Note: MDPI stays neutral with regard to jurisdictional claims in published maps and institutional affiliations. |
© 2021 by the author. Licensee MDPI, Basel, Switzerland. This article is an open access article distributed under the terms and conditions of the Creative Commons Attribution (CC BY) license (https://creativecommons.org/licenses/by/4.0/).
Share and Cite
Rymsza, J. Causes of the Collapse of the Polcevera Viaduct in Genoa, Italy. Appl. Sci. 2021, 11, 8098. https://doi.org/10.3390/app11178098
Rymsza J. Causes of the Collapse of the Polcevera Viaduct in Genoa, Italy. Applied Sciences. 2021; 11(17):8098. https://doi.org/10.3390/app11178098
Chicago/Turabian StyleRymsza, Janusz. 2021. "Causes of the Collapse of the Polcevera Viaduct in Genoa, Italy" Applied Sciences 11, no. 17: 8098. https://doi.org/10.3390/app11178098
APA StyleRymsza, J. (2021). Causes of the Collapse of the Polcevera Viaduct in Genoa, Italy. Applied Sciences, 11(17), 8098. https://doi.org/10.3390/app11178098
