Non-Linear Analysis of Inter-Story Pounding between Wood-Framed Buildings during Ground Motion
Abstract
1. Introduction
2. Materials and Methods
2.1. Numerical Analysis of Interactions between Wood-Framed Buildings
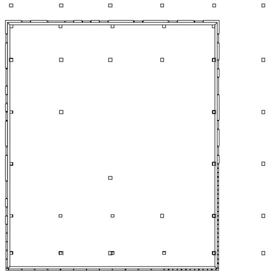
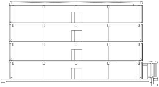
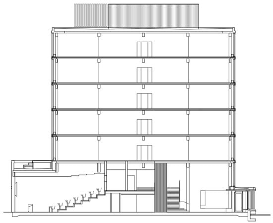
2.1.1. Subject of the Analysis
2.1.2. Model of Wood
2.1.3. FE Models of Wood-Framed Buildings
3. Results
3.1. Modal Analysis of Two Wood-Framed Buildings
3.2. Collisions between Two Wood-Framed Buildings
3.2.1. Response in the Longitudinal Direction
3.2.2. Response in the Transverse Direction
4. Concluding Remarks
Author Contributions
Funding
Acknowledgments
Conflicts of Interest
References
- Kasai, K.; Maison, B.F. Building pounding damage during the 1989 Loma Prieta earthquake. Eng. Struct. 1997, 19, 195–207. [Google Scholar] [CrossRef]
- Jankowski, R. Pounding between superstructure segments in multi-supported elevated bridge with three-span continuous deck under 3D non-uniform earthquake excitation. J. Earthq. Tsunami 2015, 9, 1550012. [Google Scholar] [CrossRef]
- Vasiliadis, L.; Elenas, A. Performance of school buildings during the Athens earthquake of September 7 1999. In Proceedings of the 12th European Conference on Earthquake Engineering, London, UK, 9–13 September 2002; Volume 264. [Google Scholar]
- Rosenblueth, E.; Meli, R. The 1985 earthquake: Causes and effects in Mexico City. Concr. Int. 1986, 8, 23–24. [Google Scholar]
- Anagnostopoulos, S.A. Earthquake induced pounding: State of the art. In Proceedings of the 10th European Conference on Earthquake Engineering, Vienna, Austria, 28 August–2 September 1994; pp. 897–905. [Google Scholar]
- Miari, M.; Choong, K.K.; Jankowski, R. Seismic pounding between adjacent buildings: Identification of parameters, soil interaction issues and mitigation measures. Soil Dyn. Earthq. Eng. 2019, 121, 135–150. [Google Scholar] [CrossRef]
- Khatami, S.M.; Naderpour, H.; Barros, R.C.; Jakubczyk-Gałczyńska, A.; Jankowski, R. Effective formula for impact damping ratio for simulation of earthquake-induced structural pounding. Geosciences 2019, 9, 347. [Google Scholar] [CrossRef]
- Bamer, F.; Markert, B. A nonlinear visco-elastoplastic model for structural pounding. Earthq. Eng. Struct. Dyn. 2018, 47, 2490–2495. [Google Scholar]
- Komodromos, P.; Polycarpou, P.C.; Papaloizou, L.; Phocas, M.C. Response of seismically isolated buildings considering poundings. Earthq. Eng. Struct. Dyn. 2007, 36, 1605–1622. [Google Scholar] [CrossRef]
- Anagnostopoulos, S.A. Pounding of building in series during earthquakes. Earthq. Eng. Struct. Dyn. 1988, 16, 443–456. [Google Scholar] [CrossRef]
- Anagnostopoulos, S.A.; Spiliopoulus, K.V. An investigation of earthquake induced pounding between adjacent buildings. Earthq. Eng. Struct. Dyn. 1992, 21, 289–302. [Google Scholar] [CrossRef]
- Maison, B.F.; Kasai, K. Dynamics of pounding when two buildings collide. Earthq. Eng. Struct. Dyn. 1992, 21, 771–786. [Google Scholar] [CrossRef]
- Karayannis, C.G.; Favvata, M.J. Earthquake-induced interaction between adjacent reinforced concrete structures with non-equal heights. Earthq. Eng. Struct. Dyn. 2005, 34, 1–20. [Google Scholar] [CrossRef]
- Jankowski, R.; Mahmoud, S. Linking of adjacent three-storey buildings for mitigation of structural pounding during earthquakes. Bull. Earthq. Eng. 2016, 14, 3075–3097. [Google Scholar] [CrossRef]
- Komodromos, P.; Polycarpou, P. On the numerical simulation of impact for the investigation of earthquake-induced pounding of building. In Proceedings of the Tenth International Conference on Computational Structures Technology, Stirlingshire, UK, 16 September 2010. [Google Scholar]
- Polycarpou, P.C.; Komodromos, P. Earthquake-induced poundings of a seismically isolated building with adjacent structures. Eng. Struct. 2010, 32, 1937–1951. [Google Scholar] [CrossRef]
- Crozet, V.; Politopoulos, I.; Chaudat, T. Shake table tests of structures subject to pounding. Earthq. Eng. Struct. Dyn. 2019, 48, 1156–1173. [Google Scholar] [CrossRef]
- Sołtysik, B.; Jankowski, R. Non-linear strain rate analysis of earthquake-induced pounding between steel buildings. Int. J. Earth Sci. Eng. 2013, 6, 429–433. [Google Scholar]
- Jameel, M.; Islam, A.B.M.S.; Hussain, R.R.; Hasan, S.D.; Khaleel, M. Non-linear FEM analysis of seismic induced pounding between neighbouring multi-storey structures. Lat. Am. J. Solids Struct. 2013, 10, 921–939. [Google Scholar] [CrossRef]
- Favvata, M.J.; Naoum, M.C.; Karayannis, C.G. Earthquake induced interaction between RC frame and steel frame structures. WIT Trans. Built Environ. 2013, 134, 839–851. [Google Scholar]
- Elwardany, H.; Seleemah, A.; Jankowski, R. Seismic pounding behavior of multi-story buildings in series considering the effect of infill panels. Eng. Struct. 2017, 144, 139–150. [Google Scholar] [CrossRef]
- Bi, K.; Hao, H.; Sun, Z. 3D FEM analysis of earthquake induced pounding responses between asymmetric buildings. Earthq. Struct. 2017, 13, 377–386. [Google Scholar]
- Hughes, P.J.; Sarebanha, A.; Mosqueda, G. Finite element analysis of moat wall pounding in base-isolated buildings. In Proceedings of the 11th National Conference in Earthquake Engineering, Earthquake Engineering Research Institute, Los Angeles, CA, USA, 25–29 June 2018. [Google Scholar]
- Elwardany, H.; Seleemah, A.; Jankowski, R.; El-khoriby, S. Influence of soil-structure interaction on seismic pounding between steel frame buildings considering the effect of infill panels. Bull. Earthq. Eng. 2019, 17, 6165–6202. [Google Scholar] [CrossRef]
- Karayannis, C.G.; Favvata, M.J. Inter-story pounding between multistory reinforced concrete structures. Struct. Eng. Mech. 2005, 20, 505–526. [Google Scholar] [CrossRef]
- Shakya, K.; Wijeyewickrema, A.C. Mid-column pounding of multi-story reinforced concrete buildings considering soil effects. Adv. Struct. Eng. 2019, 12, 71–85. [Google Scholar] [CrossRef]
- PN-EN 338:2016-06 EN Constructional wood - Strength classes. 2016. (In Polish)
- PN-EN 1995-1-1 Eurocode 5: Design of wooden structures. Part 1-1: General principles and rules for buildings. 1995. (In Polish)
- PN-EN 14080:2013-07en Wooden structures - Laminated wood and laminated solid wood - Requirements. 2013. (In Polish)
- Szczepański, M.; Migda, W.; Jankowski, R. Modal analysis of real timber frame houses with different insulation materials. Adv. Sci. Technol. Res. J. 2016, 10, 215–221. [Google Scholar] [CrossRef][Green Version]
- Szczepański, M.; Migda, W.; Jankowski, R. Increasing the seismic resistance of wood-frame buildings by applying PU foam as thermal insulation. Period. Polytech. Civ. Eng. 2019, 63, 480–488. [Google Scholar]
- Dlubal RFEM-FEM Structural Analysis Software. Available online: https://www.dlubal.com/ (accessed on 10 June 2019).
- Central Geological Database. Available online: http://baza.pgi.gov.pl (accessed on 27 December 2016).
- Chopra, A.K. Dynamics of Structures: Theory and Applications to Earthquake Engineering; Prentice Hall: Upper Saddle River, NJ, USA, 1995. [Google Scholar]
- Bertero, V.V.; Collins, R.G. Investigation of the Failures of the OLIVE View Stairtowers during the San Fernando Earthquake and Their Implications on Seismic Design; EERC Report No. 73–26; Earthquake Engineering Research Center, University of California: Berkeley, CA, USA, 1973. [Google Scholar]
- Jankowski, R. Non-linear FEM analysis of earthquake-induced pounding between the main building and the stairway tower of the Olive View Hospital. Eng. Struct. 2009, 31, 1851–1864. [Google Scholar] [CrossRef]
- Fragiacomo, M.; Batchelar, M.; Wallington, C.; Buchanan, A.H. Moment Joints in Timber Frames Using Glued-In Steel Rods: Experimental Investigation of Long-Term Performance; World Conference on Timber Engineering: Riva del Garda, Italy, 2010. [Google Scholar]


























| Element | Material | Density (kg/m3) | Elasticity Modulus (GPa) | Material Model |
|---|---|---|---|---|
| Frame | Wood of class C27 | 450.0 | 11.5—along fibers 0.72—across fibers | Orthotropic linear elastic 2D |
| Ceiling covering | Laminated wood GL24h | 420.0 | 11.50—along fibers 0.65—across fibers | Orthotropic linear elastic 2D |
| Mode of Free Vibrations | Building A | Mode of Free Vibrations | Building B |
|---|---|---|---|
| Natural Frequency (Hz) | Natural Frequency (Hz) | ||
| First (flexural-transverse) | 1.025 | First (flexural-longitudinal) | 1.023 |
| Second (flexural-longitudinal) | 1.222 | Second (flexural-transverse) | 1.447 |
| Third (torsional) | 1.753 | Third (torsional) | 2.110 |
| Fourth (flexural-longitudinal) | 2.863 | Fourth (flexural-longitudinal) | 3.255 |
© 2019 by the authors. Licensee MDPI, Basel, Switzerland. This article is an open access article distributed under the terms and conditions of the Creative Commons Attribution (CC BY) license (http://creativecommons.org/licenses/by/4.0/).
Share and Cite
Migda, W.; Szczepański, M.; Lasowicz, N.; Jakubczyk-Gałczyńska, A.; Jankowski, R. Non-Linear Analysis of Inter-Story Pounding between Wood-Framed Buildings during Ground Motion. Geosciences 2019, 9, 488. https://doi.org/10.3390/geosciences9120488
Migda W, Szczepański M, Lasowicz N, Jakubczyk-Gałczyńska A, Jankowski R. Non-Linear Analysis of Inter-Story Pounding between Wood-Framed Buildings during Ground Motion. Geosciences. 2019; 9(12):488. https://doi.org/10.3390/geosciences9120488
Chicago/Turabian StyleMigda, Wojciech, Marcin Szczepański, Natalia Lasowicz, Anna Jakubczyk-Gałczyńska, and Robert Jankowski. 2019. "Non-Linear Analysis of Inter-Story Pounding between Wood-Framed Buildings during Ground Motion" Geosciences 9, no. 12: 488. https://doi.org/10.3390/geosciences9120488
APA StyleMigda, W., Szczepański, M., Lasowicz, N., Jakubczyk-Gałczyńska, A., & Jankowski, R. (2019). Non-Linear Analysis of Inter-Story Pounding between Wood-Framed Buildings during Ground Motion. Geosciences, 9(12), 488. https://doi.org/10.3390/geosciences9120488

