Abstract
Many architects of the modern movement who, in theory, refused luxury nonetheless responded to the demand for it. Richard J. Neutra was one of them: Although he mostly rejected luxury in his writings, he gained fame for his skills in constructing luxurious residences. This paper explores how he handled such discrepancies. For this purpose, it relates his understanding of luxury to the German debates on the luxury of the interwar period and analyzes two of his most important expensive residences: the Lovell Health House (1927–1929) and the Kaufmann Desert House (1946–1947). It comes to the conclusion that Neutra took an intermediate position between socialist opponents and idealist proponents of luxury. While he acknowledged the importance of objectivity and scientific thinking and agreed to give priority to the improvement of the living conditions of the masses, he was nevertheless much interested in comfort, aesthetics, details, and individualization. Moreover, it draws attention to the fact that Neutra’s houses also reflected his clients’ relationship to luxury. The Kaufmanns asked for a luxurious background for leisure; the Lovells’ wanted a place for a disciplined life that lacked certain essential traits of luxury.
1. Introduction
The relationship of modern architecture to luxury is ambiguous. Only a few architects of the modern movement openly admitted that they considered luxury something desirable—Frank Lloyd Wright and Adolf Loos, for example (Wright [1932] 1993, pp 87, 92–93, 101, 108–9; Wright [1958] 1995, pp. 286, 335; Loos [1924] 2010a, p. 601; 2010b, pp. 606–7). Many more took a position against it, among them Walter Gropius, Le Corbusier, Hannes Meyer, and also Richard Neutra (Gropius 1923, p. 7; Gropius 1930, p. 7; Le Corbusier 1924; Meyer [1930] 1965). Similarly, the luxury of modern architecture was praised by a few critics only, for example by Philip Johnson and Walter Riezler, but frequently attacked by critics such as Karel Teige, Roger Ginsburger, and Sigfried Giedion (Johnson 1932; Riezler 1931; Teige [1930] 2000; Teige [1932] 2002; Ginsburger and Riezler 1931; Giedion 1928a, p. 107; 1928b).1 They criticized not only buildings by architects who defended luxury, but often also by architects who explicitly refused it, for instance by Gropius, Le Corbusier, and also Neutra. Why? Did the critics consider buildings luxurious that actually were not? Did the architects voice statements that were inconsistent with their practice? Did the critics define luxury differently than the criticized?
This paper researches such questions with regard to Neutra’s oeuvre. For this purpose, it analyzes his understanding of luxury in theory and at two of his most important houses, the Lovell Health House (1927–1929) and the Kaufmann Desert House (1946–1947). It relates his interpretation of luxury to the German debates on the luxury of the interwar period since they shaped it most profoundly. It focuses on what the architects and critics used to discuss as luxuries. Thus, it refrains from defining luxury itself and from introducing definitions of luxury from other fields. This approach enables a close understanding of the architects’ reasoning, but cannot cover the topic of luxury in its full breadth and depth.2
Two major forms of luxury are distinguished: the luxury of the rich and irrational luxury. “Luxury of the rich” will refer to what only the rich can afford; large and expensive mansions, for example. “Irrational luxury” will relate to everything that certain anti-idealists—for instance, most Marxists and logical positivists—considered unobjective and superfluous because it escapes scientific grasp. For them, this form of luxury commonly included the spiritual and the art.
By reference to the two houses, it analyzes how luxury manifested in Neutra’s work in practice. To what extent did luxury depend on the clients? How large and expensive were the houses? How did costs influence the clients’ decisions? What social hierarchy was inscribed into the plans? How much comfort was provided by the technical installations? Were the materials luxurious? What was the role of custom-made features, of prototypes, of industrial products?
Neutra’s relationship to luxury has not been analyzed in detail yet, but several closely related topics have already been touched, for example Neutra’s relation to glamour (Friedman 2010, pp. 74–107), photography (Niedenthal 1993), the owner (Friedman 1998, pp. 160–87; Neumann 2001; Leet 2004), Europe (Leuschel 2010), and psychology (Lavin 2004). Luxury in modern architecture has been investigated by Schuldenfrei (2018). Thus far, Alice Friedman’s study about the glamour of Neutra’s Kaufmann Desert House came closest to the topic of this paper (Friedman 2010, pp. 74–107).3
2. On Neutra and Luxury
Despite of his critical statements about luxury, Neutra became famous for having a particular “sense of luxus.”4 Many of the residences he built have been described as being luxurious, for example the Houses Lovell (1929) (Solan 2004, pp. 157–58), von Sternberg (1935) (Zevi 1954, pp. 22–23; Drexler and Hines 1982, p. 66), John Nicholas Brown (1938) (Lamprecht 2000, p. 136), Lewin (1939) (Burton and Botnick 2002, p. 32), Kaufmann (1947) (Stegner 1992, pp. 76–78; Curtis 1982, p. 334; Friedman 2010, p. 76), Tremaine (1948) (A Modern House Uses Its Setting 1949), Kronish (1955) (Neutra and Neutra 1974, p. 101; Boesiger 1959, p. 68), Rados (1958) (Zietzschmann 1961, p. 445), and Rice (1965) (Lamprecht 2000, p. 436). More specifically, Neutra’s use of the latest technical accomplishments (Boesiger 1951, p. 7) and his choice of materials and finishes (Boesiger 1959, p. 68; Zietzschmann 1961, p. 445; Hay 1999, p. 98; Friedman 2010, p. 103) were regarded luxurious.
Furthermore, it has been noted that the “glamorization” of Neutra’s residences in photography, mostly by Julius Shulman, contributed much to their interpretation as luxuries (Glamourized Houses 1949; Niedenthal 1993; Friedman 2010): “Neutra’s houses, as they exist in photographs, are so polished, so perfect, as to seem impossible to achieve: as if their builders all wore white gloves and tabi […]: as if their owners never had an unpresentable moment or laid down a pair of sun glasses [sic]. The photographs have a kind of de-materialized glamour, almost that of soap and toilet paper advertisements […].” (Smithson and Smithson [1973] 1974, p. 26).
Throughout Neutra’s lifetime, the purchasing power of the Americans was considerably higher than that of the remainder of the world. Therefore “[a]ll American projects, even comparatively modest ones, tend[ed] to look opulent to those abroad […].” (Neutra 1962, p. 283). Accordingly, some Europeans referred to his residences as “dream houses.” (Heyken 1950, p. 151; Rebitzki 1957, p. 503).
3. Luxury of the Rich
In interwar Germany, the architects of the modern movement were largely in agreement that it was more important to construct modest apartments for the population at large than luxurious single-family houses for the rich. Correspondingly, Hannes Meyer stated that “[…] not the luxuries, […] but the necessities of the broadest people’s community are relevant”5 and made his students work according to the slogan “necessities, not luxuries.” (Meyer [1930] 1965, p. 102).6 Similarly, in their first two thematic conferences of 1929 and 1930, the Congrès Internationaux d’Architecture Moderne (CIAM) focused on mass housing, discussing the minimum dwelling (Wohnung für das Existenzminimum) and rational lot developments (Rationelle Bebauungsweisen) for housing estates (CIAM 1930, 1931).7
But as soon as it came to the question where progress in architecture takes place, opinions diverged. Some assumed that innovations first emerged in the houses of the rich and were then adopted by the dwellings of the lower classes (Taut [1924] 1925, p. 46). A similar idea with regard to quality instead of novelty was voiced by Loos who stated that luxury is “a very indispensable thing,” because the artisanal quality of ordinary goods depended on that of luxury goods (Loos [1924] 2010b, pp. 606–7). Others, however, believed that mass housing would determine the future development of architecture. One of the most prominent advocates of this view was Giedion: “For the first time in history, not the class with most requirements, but the class with least requirements acts as a factor in the creation of a style. […] Today, no building conceived in luxury and unlimited resources can any longer have any importance in the history of architecture.” (Giedion 1928a, p. 107).8
Surprisingly, it was only rarely discussed whether it was permissible to accept commissions of the rich. Almost only those who refused to build anything for them—mainly fervent socialists—expressed their opinions, arguing that the construction of large houses meant supporting the class enemy. For example, Teige wrote: “In the work of most modern architects, from F. L. Wright to Loos and up to Le Corbusier, […] housing reform has, by and large, been limited only to bourgeois housing. These architects all work and think in the interest of the ruling class.” (Teige [1932] 2002, p. 167).9 To substantiate this argument, Teige and his fellow socialists frequently attacked the same few houses for being excessively luxurious: All houses by Wright, the director’s house at the Bauhaus in Dessau (1926) by Gropius, the Villa Tugendhat (1930) and the model house at the German Building Exposition in Berlin (1931) by Ludwig Mies van der Rohe, the Villas Stein-de Monzie (1927) and Savoye (1931) by Le Corbusier, the Rue Mallet-Stevens in Paris (1927) by Robert Mallet-Stevens, and the Villa Müller in Prague (1930) by Loos. No architect of the modern movement seems to have taken the opposite position, stating that luxurious houses should be built to consolidate the existing society. Instead, those who agreed with building expensive houses mostly argued that only here, aesthetic and spiritual goals could be pursued to perfection.
Neutra’s view of luxury was informed by this debate on luxury as a social issue and his personal experience of the severe housing shortage after World War I in Germany, Austria, and Switzerland. After his emigration to the United States in 1923, he remained in close contact with the latest German developments through his friends and family, his publication activities, and, since 1928, his position as the American CIAM delegate. In 1930, he came back to Europe for almost half a year. He gave many lectures (for example in Vienna, Zurich, Basle, Prague, Hamburg, Berlin, Cologne, Amsterdam, and Rotterdam), attended CIAM III in Brussels, and acted as visiting teacher and design critic at the Bauhaus in Dessau, then directed by Mies (Hines 1982, pp. 94–97).
Neutra shared the view that mass housing should be given preference, but was not a communist nor considered the construction of luxurious residences a betrayal of the working class. In an article on CIAM III (1930), he reported almost with Giedion’s words that the Congress had come to the conclusion that “the immediate future of architecture […] was less concerned with problems of luxurious singularity than with the more typical requirements of populations at large […].” (Neutra 1932a). He fully supported CIAM’s efforts for the minimum dwelling (Boesiger 1951, p. 114; Harris 1977, p. 9). Wanting to contribute to the debate about it, but being in lack of public housing projects, he planned and presented his own home and studio VDL I (1933) as a research house that is composed of four independent minimal dwelling units (V.D.L. Research House 1934). Neutra never lost interest in low-cost accommodations. Occasionally, he and his friends even claimed that he paid equal or more attention to them than to luxury residences (Giedion 1951, p. 10; Boesiger 1951, p. 114; Neutra 1955b; Weisskamp 1986, pp. 121–22).
4. Industry and Crafts
In theory, most exponents of the modern movement agreed that in close future, industrial mass construction would prevail, because it would be considerably cheaper than manual customized construction. In consequence, many of them regarded handmade and customized products as obsolete and luxurious. Teige, for example, wrote: “Today, the crafts are nothing but a luxury, supported by the bourgeoisie with their individualism and snobbery and their purely decorative point of view.”10 According to Gropius, the only function the crafts would retain was to develop prototypes for the industry: “[…] Future crafts will be merged into a new production unit, where they will have the task to conduct the experiments for the industrial production. Speculative experiments in laboratory-like workshops will create models—types—to be reproduced in the factories.” (Gropius 1925, p. 8).11 He asserted that the workshops of the Bauhaus were already working in this way.
In practice, however, the Bauhaus under Gropius around 1925 was far from following these principles. Its workshops still constructed irreproducible handmade luxury objects from expensive materials. As a result, the Bauhaus was sharply criticized, for example by Heinrich de Fries: “Do we still need to establish schools in Germany today, in which the skill to generate pleasant and interesting irrelevancies for wealthy classes is cultivated? Do we have to drill young people to fill the dreary lives and substantial emptiness of our so-called cultural circles with ever new art confectioner’s stuff?” (de Fries 1925, p. 256).12
Throughout his career, but with slightly waning enthusiasm, Neutra, too, was convinced that industrialized building was inevitable and traditional crafts would lose most of their significance (Neutra 1927; 1929; 1932b; 1954, pp. 50–72; 1964). Like Gropius, he aimed at developing reproducible prototypes for industrial production that would improve the modest house for everybody. He believed that the industry failed to fulfill this task because it always waited for the proof that a new concept worked and was accepted by the consumers before it started to invest.13 Publicly financed workshops being out of the question, he considered the expensive private residence the appropriate place to develop his prototypes. Used in this way, in Neutra’s eyes, it changed its nature from a highly problematic luxury to a permissible research and demonstration object.
According to Dione Neutra, her husband nevertheless did not neglect his wealthy individual clients, but aimed at satisfying them and general society likewise: “In every case Richard [Neutra] faithfully lived up to the individual trust [of the client], but it is and was never just a millionaire’s job; it is for every moment of his creative life a job of general social concern, a job of broadly significant concern to benefit a lot of people who have no money to pay for constructive experimentation but will badly need the fruits of it.”14
Despite of his general support of industrialized building, Neutra regretted that in mass housing, only “the species’ basic life necessities” could be met, but not the equally important individual needs, by which he mainly referred to needs resulting from biological individuality like, for example, individual color preference (Neutra 1970, p. 198). For uncovering individual needs, he consequently developed sophisticated methods of client interrogation (Neutra 1958, 1960; Neumann 2001, pp. 122–25).
5. Irrational Luxury
The architects of the modern movement mostly concurred that architecture needed to be practical and reasonable. But they were not in agreement about whether it had to be determined by such considerations only, or whether additional goals (mostly spiritual or artistic) had to be pursued as well. On the one hand, idealists like Mies, Gropius, Le Corbusier, and Wright stressed that the final purpose of architecture was spiritual (Mies van der Rohe 1986; Gropius 1930, pp. 8–9; Le Corbusier 1923, pp. 161–83; Wright [1958] 1995, p. 335). Riezler outlined such an idealist view, saying that the “purposeful–constructive” should be overcome by a “spiritual–mental attitude” and the “factually bound” should be raised to the “free kingdom of the absolute” to render architecture art (Riezler 1931, p. 321). On the other hand, Hannes Meyer did not accept anything beyond the scientifically knowable. Thus, he requested that every building was a “product of the formula: (function times economics)” (Meyer 1928, p. 12)15 and considered all statements about the spiritual in architecture obsolete idealism: “I taught them [the students] to despise the multifariousness of idealist reality and together we strove to attain the sole reality that can be mastered—that of the measurable, visible, and ponderable.” (Meyer [1930] 1965, p. 103).16 Correspondingly, he declared architecture as art obsolete: “Architecture ceased to be ‘building art.’ Construction became a science. Architecture is construction science.” (Meyer 1980a, p. 92).17 From his perspective, every expense for something not scientifically justifiable was irrational and, hence, wasteful and luxurious.
Like Meyer, Neutra was convinced that there was no spiritual sphere beyond the physical world and agreed that nothing should be built that was impractical or contradicts scientific knowledge. Accordingly, he criticized Mies’ all-around identical buildings for being irrational, since they favored an abstract regularity over practical requirements such as insolation or views (Neutra 1956; 1970, pp. 213–14). Likewise, he rejected all systems of proportions including those by Le Corbusier, because they were based on an irrational, obsolete understanding of nature (Neutra 1954, pp. 123–25; 1955a, pp. 16, 18; 1970, p. 603). Similarly, he rejected certain forms of luxury like functionally meaningless decoration, ornaments, fashion and monumentality (Neutra 1954, pp. 62, 80, 101–6, 358–59). However, Neutra nevertheless did not regard himself a scientist and design not a scientific process, because the aims and methods of the architect differed fundamentally from those of the scientist. Since about 1954, he rather liked to compare the methods of the architect with those of the physician. According to him, both had to make use of scientific knowledge, but worked intuitively, empathetically, and creatively (Neutra 1954, pp. 381–84; 1957; 1962, pp. 60–66, 275–314).
Neutra answered the question whether architecture is art rather rarely and often ambiguously, leaving open whether the term “art” referred to high art or to a well-developed skill. He nevertheless considered perceptions extremely important: He believed that sensations of badly designed, chaotic environments could harm the health just like poisons by inducing scientifically explainable, in the long run disastrous nervous reactions. If aesthetic pollution continued, he was convinced, even the survival of mankind was threatened. Therefore, in his eyes, the sensorial qualities of buildings were not luxuries, but biological necessities (Neutra 1954, pp. 6, 26; 1970, p. 353). Consequently, he aimed at creating environments that are perfectly controlled, from the site plan to the smallest detail, from landscaping to furniture. These thoughts provoked a feeling of danger and urgency, which in turn affected his relation to luxury again: He felt obliged to spend all his energy resisting the extinction of the human race instead of wasting it for leisure, distraction, and luxury.
6. The Lovells and the Kaufmanns
Many aspects of luxury in architecture do not depend on the architects but on the clients. To reveal their influence, two specific projects are analyzed: the Lovell Health House (1927–1929) and the Kaufmann Desert House (1946–1947). These two projects are particularly suited for this purpose because they were commissioned by personalities with diverging, pronounced, and tangible opinions about architecture and luxury.18
Lovell and Kaufmann were both wealthy and interested in architecture. Philip M. Lovell (1895–1978) was a naturopath and his wife Leah (1884–1970), a teacher. He ran a clinic with up to 37 employees19 and wrote the column “Care of the Body,” which was one of the major and most popular features of the Sunday issue of the Los Angeles Times. His opinions often contradicted contemporary scientific knowledge. For example, he did not fully acknowledge that germs were responsible for several diseases (Care of the Body, 5 September 1926, p. 31). Therefore, he was often considered a quack (Marmorstein 2002, p. 248). Whether Neutra shared this opinion, cannot be said with certainty, since he cautiously abstained from commenting on this issue. Constructing his houses, Lovell intended to implement his many ideas about healthy environments. Edgar J. Kaufmann (1885–1955) and his wife Liliane (1889–1952) directed the Kaufmann’s Department Store in Pittsburgh, which also supplied products for the refinement of the domestic sphere. Correspondingly, when they built their houses, they cared much about selecting materials and products.
Both the Lovells and the Kaufmanns owned several houses at different locations. All Lovell Houses were in California, the Kaufmann Houses spread across the continent; the Lovells ordered their new main residence from Neutra, the Kaufmanns just another vacation home. Both clients already had built cornerstones of modern architecture before commissioning Neutra: The Lovells their Beach House with Rudolph M. Schindler (1922–1926), the Kaufmanns Fallingwater with Wright (1934–1937).
Like Neutra, Lovell was very critical of luxury, but he opposed it because he thought it impairs virtue and health—and not because he considered it incompatible with social justice or scientific thinking.20 He called for self-control, discipline, and rigor while condemning self-indulgence and excess (Care of the Body, 30 May 1926, p. 24; 5 September 1926, p. 26). Stating that health depended largely on the correct way of life, which entailed “the obedience of the self-evident laws of sane diet, sane thinking [sic] and sane hygiene” (Care of the Body, 5 September 1926, p. 31), he declared health a result of discipline and made everybody fully responsible for his own condition. Correspondingly, he believed that neither bad luck nor the external environment could be at the origin of a disease (Care of the Body, 23 May 1926, p. 25).
Lovell’s diet requested the abstinence of drugs, alcohol, caffeine, tobacco, meats, sweets, and many more substances. He advised a disciplined daily routine with regular and sufficient sleep, but no time unnecessarily spent in bed. He recommended getting up with the birds and going to bed early. He prohibited Saturday night excess and disapproved of its consequence: indulgence in Sunday morning sleep (Care of the Body, 11 April 1926, p. 24). Similarly, he allowed leisure only as “antithesis to labor,” as well-earned repose after an accomplishment, but not as a permanent occupation—this he considered impermissible luxury (Care of the Body, 25 April 1926, p. 24).
Comparably, Lovell favored slightly unpleasant feelings. In particular, he preferred the hard over the soft and the cold over the warm. Even in winter, he recommended sleeping outdoors and taking cold morning showers, followed by strenuous rubdowns that render the skin glowing and sparkling (Care of the Body, 30 November 1924, p. 24; 18 July 1926, p. 25). He advised that the children’s outdoor plays involve “vigorous, strenuous activity” to make them benefit from a “toughened and weathered” body (Care of the Body, 23 May 1926, p. 31) (Figure 1). He complained that, where in the days of his father, “youth thrived on hardship and rigors, it is now threatened with softness and luxury” (Care of the Body, 5 September 1926, p. 26). Similarly, he regarded sleeping with a pillow as “an outcropping of our habits of luxurious softness.” (Care of the Body, 6 June 1926, p. 24). But still, Lovell was not a fanatic of excessively harsh regimens. He welcomed reasonable comfort and correspondingly recommended all sorts of labor-saving household devices (Care of the Body, 12 September 1926, p. 26).
Figure 1.
Richard Neutra, Lovell Health House, Los Angeles, 1927–1929. Exercise equipment. (Photo by Luckhaus Studio, published in Boesiger 1951, p. 21).
7. Size and Costs
The Lovell and Kaufmann Residences count among Neutra’s larger houses, but not the largest: While most of his houses comprise an indoor living area somewhat below 200 m2, the Kaufmann Desert House contains about 260 m2 and the Lovell Health House 350 m2.21 Thus, they are bigger than the average American house, but still considerable smaller than really large residences. The Tugendhat House by Mies, for example, is roughly 1250 m2 and Sunnylands by A. Quincy Jones 2300 m2.
Both houses were far more expensive than the average one-family dwelling, which was about $4915 in 1929 (Halbert 1931, p. 53). Lovell was asked to pay his contractor $58,672.32, Kaufmann $285,192.80.22 These figures cannot be compared directly: Due to inflation, construction prices were roughly two times higher in 1947 than in 1929.23 Thus, the inflation-adjusted price for one square meter of the Kaufmann House was approximately three times higher than that for one square meter of the Lovell House. Notwithstanding the effective costs, Neutra and his friends permanently stressed that the Lovell House was based on “the most […] economical solution of the problems” (Neutra 1930, p. 80), which could “be adapted to the home of modest means” (Morgan 1930, p. 3).
The cost estimate for the Kaufmann House of $44,000 proved to be impressively below the final account.24 An important reason for this divergence is that the costs had to be estimated earlier than usual—before adequate plans could have been drawn. Moreover, the cost overruns reveal that both client and architect cared more about quality than about savings. Indeed, the Kaufmanns rarely tried to save by changing the project, and only occasionally by getting better deals. In comparison, the estimate for the Lovell House seems to have been more precise, tough not accurate either. In retrospect, Philip believed to remember that it was $37,000, and Leah had $48,000 in mind (McCoy 1979, p. 69).
The owners were not necessarily as generous with the architect as they were with themselves, offering themselves large and expensive houses. When Neutra left for Europe in 1930, $413 of the architect’s fee for the Lovell House, which was $5863 in total, were still outstanding.25 At the Kaufmann House, the result seems to have been slightly more favorable to Neutra. Here, he received most of the regular fee; $23,900 in total, only the relatively small sum of $791 being left unpaid.26 When clients refused to pay, Neutra often gave in because he felt it “was more important […] to be recommended […] than to receive the money due […].”27
Neutra was not a rich man’s architect only. Between 1935 and 1937, he had almost built 20 houses below $5000 (The Editors of the Architectural Forum 1937, p. 60). Neither was he rich himself at that time. In 1930, the Neutras were looking in vain for somebody to lend them the money to build a $5000 structure;28 the house and studio they finally built in 1933, VDL I, was slightly over $10,000 (Hines 1982, p. 114).
8. Focus on Desires
The Kaufmann Desert House almost fell victim to the Veterans’ Housing Program Order 1 (VHP-1), which, to alleviate the postwar housing shortage, aimed at advancing moderate homes for the veterans and the population at large. For redirecting resources from expensive residences to moderate shelters, it virtually prohibited the start of construction work on private residences costing more than $10,000.29 To escape this law, the foundations of the Kaufmann House had to be poured before it became effective on 26 March 1946, just about one and a half months after planning had started and although the working drawings were not finished yet.30
In 1946, the building industry worked rather chaotically because the transition from war to peace economy caused frictions. Construction was slow, costs and inflation were high, and many products and materials were difficult to secure. Under such circumstances, the construction of particularly ambitious projects like the Kaufmann House was all the more difficult.31 Nevertheless, it was built fast and almost without compromising its quality.32 This became possible thanks to Neutra’s strong and effective commitment and to the Kaufmanns’ connections, generous funds, and decisiveness. For example, certain materials that were not available on the West Coast, like cork tiles, Koroseal tiles and linoleum, were procured by the buyer of Kaufmann’s department store and shipped from Pittsburgh to Palm Springs across the continent.33 Not caring much about money or anything else, the Kaufmanns focused entirely on their desires. This attitude is luxurious.
9. Privacy and Views
Both the Lovell and the Kaufmann Houses are built in luxurious neighborhoods and respect most conventions for the siting of high-class dwellings. For instance, they simultaneously offer great views and much privacy. The Lovell Health House sits on the steep slopes of the Los Feliz Hills of Los Angeles and enjoys sweeping views of the foothills and the city below. Since privacy was particularly important—the Lovells used to sunbathe in the nude (Lovell 1929, p. 26)—half of the pool is tucked beneath the house, thus protecting it from the neighbors’ views (Figure 2).34
Figure 2.
Richard Neutra, Lovell Health House, Los Angeles, 1927–1929. (Photo by Willard D. Morgan, published in The Demonstration Health-House 1930, p. 436, © Barbara and Willard Morgan photographs and papers, Library Special Collections, Charles E. Young Research Library, UCLA).
The Kaufmann Desert House offers fine views as well, but since its lot is only slightly inclined and the neighbors are close, the issue of how to combine views and privacy was more delicate. Supplementary measures had to be taken to shield undesirable views of other buildings and telephone poles and to keep out intruding eyes. For this purpose, Neutra introduced plant and rock screens, which simultaneously framed the desirable views of the hills, mountains, and dunes.35 Thus, the Kaufmann garden became a more secluded place than the Lovell garden. Their patterns of use differed accordingly: While the Lovell garden mainly served as an area for exercise and play, the Kaufmann garden was conceived as a place for contemplation (Figure 3).
Figure 3.
Richard Neutra, Kaufmann Desert House, Palm Springs, 1946–1947. View from living room. The oleander hedge hides the street but not the foothills. (Photo by Julius Shulman, job 093-30, © J. Paul Getty Trust. Getty Research Institute, Los Angeles, 2004.R.10).
10. Owners, Guests, Servants
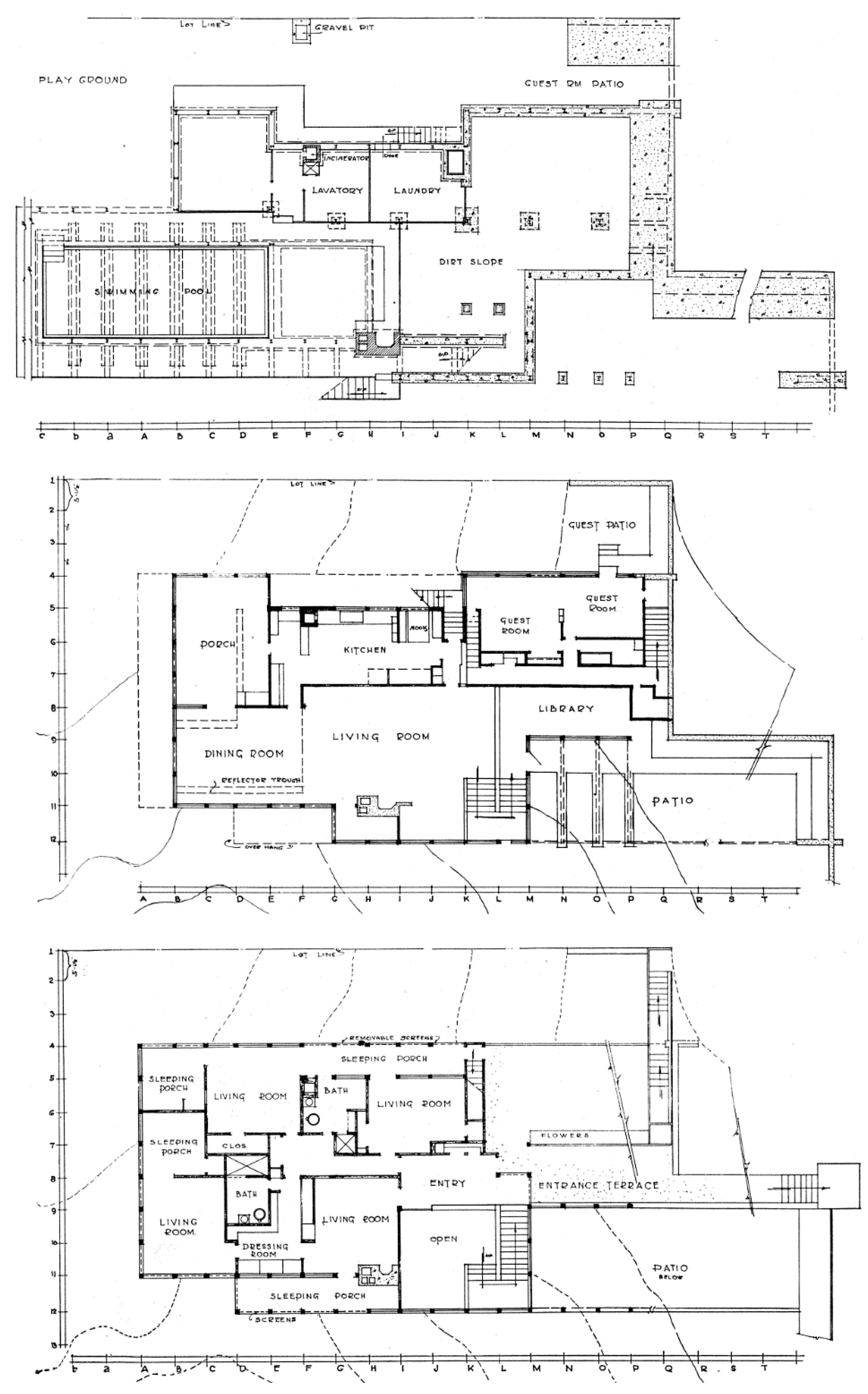
In luxurious dwellings, the spheres of the individuals and of the social groups had to be articulated to provide adequate privacy also within the building. Accordingly, at both houses, the private rooms of the owners—the master suites, containing spaces for sleeping, dressing, and bathing—were clearly separated from the rest of the house. Depending on the degree of privacy the spouses wanted to keep between each other, some of its rooms were doubled—as it was usual in residences of that class (Figure 4 and Figure 5).36
Figure 4.
Richard Neutra, Lovell Health House, Los Angeles, 1927–1929. Basement Plan, Living-Room Floor Plan, Third Floor Plan. During the planning process, the third-floor living room with the fireplace became a study. (Published in The Demonstration Health-House 1930, pp. 435, 437, 438, permission courtesy Dion Neutra, architect ©).
Figure 5.
Richard Neutra, Kaufmann Desert House, Palm Springs, 1946–1947. Plan. (Published in Boesiger 1951, p. 71, permission courtesy Dion Neutra, architect ©).
The Lovells dressed and bathed in common facilities. They shared their only indoor bedroom as well,37 but since they had also two sleeping porches at their disposal, they nevertheless had the option to sleep separately. They could not access their southern sleeping porch directly from their bedroom, but only via the study. This rather inconvenient arrangement is probably due to a late change of plans: In an earlier planning stage, the study was most likely a second bedroom,38 which would have enabled the Lovells to reach their southern sleeping porch directly and to sleep separately indoors as well. Taking its cumbersome access into account, it is no surprise that already in the late 1930s, the Lovells commissioned Gregory Ain to integrate most of this sleeping porch into the study (Ford and Morrow Ford [1942] 1945, pp. 84, 91; Denzer 2008, pp. 61–62).
The Kaufmanns possessed a master suite that offered almost all options of closeness and distance, although it contained only one bedroom and one dressing roomWhen they liked to sleep apart, a conveniently located couch was available in the dressing room. For dressing separately, an additional dressing zone was established in the master bedroom.
The rooms the Lovells and the Kaufmanns provided for their children corresponded to their time’s standards. The three small boys of the Lovells shared two bedrooms and one bathroom only, enjoying considerably less privacy than their parents. When the already adult Edgar Kaufmann Junior visited his parents in Palm Springs, he used to stay in one of the comfortable guest rooms.
Only the Kaufmanns offered adequate quarters to their overnight guests. At the Lovell House, formal guestrooms lacked: The two rooms on the living room floor, which were labelled guestrooms on the floor plans, rather conformed to servants’ room standards, because they were closely related to the service areas, were tiny, and shared a bath.39 At both houses, daytime visitors who needed a restroom had to use the facilities of the sleeping quarters, because the social quarters were not equipped with separate bathrooms. Thus, they had to disturb the privacy of the owners.
Lovells’ servants did less infringe the privacy of the guests and owners than Kaufmanns’ because they were more detached. To move invisibly between the street, the kitchen, the master suite and their own sleeping quarters, they had particular corridors and stairs at their disposal. In contrast, Kaufmanns’ servants were not provided with any separated passageways and could only circulate secretly between the street, the kitchen, and their own rooms. As soon as they had to go to the sleeping quarters of the owners or the guests, they had to cross the social quarters. Most likely, this was deliberately accepted to prevent the introduction of corridors like at the Lovell House, since this would have destroyed the generous openness of the social quarters.
11. Comfortable Installations
Neutra recommended almost any installation providing comfort. Whenever the budget permitted, he specified the latest and most sophisticated installations for heating, plumbing, and illumination. Similarly, he opted for the most refined kitchen, laundry, and bathroom equipment. For comfort brought by servants, he did not show the same enthusiasm, but considered it slightly outdated and simply followed the owners’ instructions (Neutra 1937, p. 381).
Both the Lovell Health House and the Kaufmann Desert House were equipped with installations that, even if compared to those of similar residences, were extraordinarily innovative, refined, custom-specific, and expensive. At the Lovell House, the kitchen and the bathrooms stood out (Solan 2004, pp. 147–50, 154–59); at the Kaufmann House, the artificial illumination (Brunner 2014, 2016) and the heating and cooling system (Brunner 2018). Regarding the Lovell Health House, there is evidence that Neutra shared the opinion that its installations represented a form of luxury. Describing its “plumbing, lighting, electrical power- and heating-conveniences,” he stressed that “Every non-functional luxury is omitted […].” (Neutra 1930, p. 80). Hence, he considered them functional luxuries.
Occasionally, the owner was the driving force behind an exceptional installation. Since Lovell was convinced that correct nutrition was essential for health, he made recipes for healthy dishes a central feature of his Los Angeles Times column and his books (Lovell [1927] 1931). In consequence, the kitchen became very important to him. To facilitate the preparation of his vegetarian, raw food dishes, his kitchen was equipped with an electric vegetable washer (which also served as a dishwasher), an electric fruit-juice squeezer, and an electric grinder for cereals, nuts, and coffee. For complying with his guidelines on hygiene, particular materials and details were chosen, and a special chromium plated water filter, an exhaust fan, a gas incinerator, and an electric refrigerator installed (Lovell 1929, p. 26; Morgan 1930, p. 5).40
12. Luxurious Materials
The architects of the modern movement largely agreed that the use of noble materials was a form of luxury, but not whether this was permissible. Those who consented to the application of such materials often concurred that they were the best replacement for the obsolete ornament. Loos, too, shared this opinion: “The former preference for the ornament has to be substituted by the pleasure in materials.” (Loos [1924] 2010b, p. 609).41 Philip Johnson voiced almost the same view when he discussed Mies’ model house at the German Building Exposition in Berlin (1931): “The Miës home is admittedly luxurious. […] Ornament is absent in the Miës house, nor is any needed. The richness of the beautiful woods, the sheets of plate glass and the gleaming chrome steel posts suffice.” (Johnson 1931).42 Those who opposed luxury in general also refused this form of luxury. Teige criticized Loos’ “cult of ‘beautiful matter’ or ‘precious material’” as an expression of “obsolete aestheticism,” and Le Corbusier the “religion of beautiful materials” as the last form of luxury that was not yet defeated completely (Teige [1930] 2000, p. 136; Le Corbusier 1924).
Neutra paid almost as much attention to materials as Loos and Mies, but unlike them, he was also interested in materials neither noble nor expensive. While some of the materials he appreciated happened to be expensive, as, for example, the Utah stones used for the flagstone walls of the Kaufmann Desert House, other materials he opted for were imitative and cheap, like the rosewood Formica paneling he installed at his own house VDL II in 1965. Apart from their practical qualities, Neutra was most interested in the materials’ potential to shape space. Hence, he focused mainly on their perceivable—i.e., visible, acoustical, tactile, etc.—characteristics. Their luxuriousness was not particularly important to him: As soon as savings were required, he was usually ready to replace expensive ones.43
In comparison to Mies or Loos, the importance of materials in Neutra’s architecture is further reduced by the much more active role of paint. Unlike them, he did not always restrict his color palette to subdued tones that almost automatically subordinated to patterned materials, but occasionally used saturated tones, and at times distinguished otherwise identical surfaces by paint.
To control space perception at the Lovell Health House, Neutra contrasted white plaster with dark wood panels (Figure 6). For the same purpose, on other occasions, as for instance at the Jardinette Apartments of 1928, he applied paint of different shades. At the Kaufmann House, he combined these two approaches, utilizing contrasting colors and contrasting materials simultaneously. In guest room #2, for example, almost each surface was a different material or color to separate the surfaces visually and, thus, to reduce the boxiness of the room. The floor was white terrazzo, the front wall glass, the back wall mainly plywood, the ceiling and one side wall plaster painted off-white, and the other side wall plaster painted the “contrast color” dark brown (Figure 7).44
Figure 6.
Richard Neutra, Lovell Health House, Los Angeles, 1927–1929. Living room. (Photo by Willard D. Morgan, published in Hoffmann 1932, p. 389, © Barbara and Willard Morgan photographs and papers, Library Special Collections, Charles E. Young Research Library, UCLA).
Figure 7.
Richard Neutra, Kaufmann Desert House, Palm Springs, 1946–1947. Guestroom #2. (Photo by Julius Shulman, job 093-27, © J. Paul Getty Trust. Getty Research Institute, Los Angeles, 2004.R.10).
But still, at many Neutra houses, the hierarchy of spaces was expressed by the application of more or less prestigious materials. At the Lovell House, for example, dark wood paneling is limited to the representative rooms such as the entrance, the living room, the study and the master suite. Similarly, at the Kaufmann House, the owners’ and the guests’ rooms were marked by terrazzo floors and textile window drapes, while the maids’ rooms were fitted with plastic tiles and plastic curtains only (Figure 8).
Figure 8.
Richard Neutra, Kaufmann Desert House, Palm Springs, 1946–1947. Maids’ Room #2. (Photo by Julius Shulman, job 093-46, © J. Paul Getty Trust. Getty Research Institute, Los Angeles, 2004.R.10).
13. Customized Features
Considering Neutra’s numerous statements in support of industrialized building, it is surprising to note how many custom-made features he integrated into his houses. Most of his projects were equipped with plenty of custom-made built-in furniture, such as medicine cabinets, dressing tables, cupboards, bookshelves, drawer sets, and record player cabinets. When the relationship with the clients was good, and the budget generous, custom-made mobile furniture and textiles were added often.
The Kaufmann Desert House was among Neutra's projects with most customized features. For instance, all its rugs and all its bedspread fabrics were custom-woven according to his instructions.45 In addition, it was fully fitted with built-in furniture, and even some of its mobile furniture was custom-made. Part of the latter was ordered from Charles Eames, who failed to deliver it on time. His excuse was that his priorities had shifted from individual to mass production: “Actually our problems in this laboratory have been in one direction—the development of a product for mass production which would eventually reach the public at a reasonable price. We have at times done some individual pieces, but we would be remiss in our overall responsibilities if we allowed these to interfere with the production program.”46 This answer must have irritated Neutra, because in theory at least, he favored mass production too.
For the Lovell Health House, Neutra created one of his most important ensembles of mobile furniture. While he conceived the majority of its pieces as custom-made singularities like those for the Kaufmanns, one of its chairs at least—the “cantilever” chair—he designed as prototype for mass-production and consequently patented it (Neutra 1931; Lamprecht 2015).
14. Prototypes
In defense of his expensive residences, Neutra argued that he used them to develop prototypes that would serve society at large by means of industrial reproduction. Such a prototype was, according to him, the steel skeleton of the Lovell Health House (Figure 9).47 Correspondingly, he presented it as a generally valid answer to the question how the heavy steel skeleton of large buildings can be adopted for light residential construction in a rational and therefore economical way. Its modular grid was determined by standard window sizes, resulting in surprisingly short spans of 5′–1½″ (156 cm). These short spans and the avoidance of any bending stress by hanging the balconies from the cantilevering roof resulted in very slender columns of 4″ (10 cm). Its floors were mainly constructed by the just recently (1923) introduced prefabricated open web steel joists (Steel Joist Institute 1946, p. 2), which allowed the easy installation of ducts. Maybe it was here that such joists had been used for the first time in a residential building (Neutra 1962, p. 222). But the Lovell House was certainly not the first steel-framed residence of the United States, as it has often been suggested.48 This honor probably goes to the Niels Poulson House in Brooklyn, which was already constructed in 1890 (The Prefabricated House IV 1943, p. 74).
Figure 9.
Richard Neutra, Lovell Health House, Los Angeles, 1927–1929. Steel skeleton. (Photo by Willard D. Morgan, published in Habitation d’un médecin 1931, p. 21, © Barbara and Willard Morgan photographs and papers, Library Special Collections, Charles E. Young Research Library, UCLA).
Disappointing Neutra’s expectations, the Lovell steel skeleton never became a standard and was never reproduced, not even by Neutra himself. But still, it had very important consequences. It provided the basis for all of Neutra’s later timber structures, and it enormously helped to spread steel in residential architecture in Los Angeles and beyond (Jackson 1996, pp. 10–15). However, steel did not become a cheap material that improved the average house as Neutra had hoped, but rather a material for similarly expensive residences as the Lovell House.
For the Kaufmann Desert House, Neutra developed two more prototypes. The first, the louvers, were moveable vertical aluminum blades serving as wind-protection devices (Olgyay and Olgyay 1957, pp. 156–58) (Figure 10). After having changed their function to sun-protection devices, he used them in many later projects again, most prominently in the Northwestern Mutual Fire Association Building (1951) and the Los Angeles County Hall of Records (1962) (Figure 11). Unlike the Lovell steel skeleton, the louvers were adopted by the industry: by the Lemlar Company (Quick 1957). Presenting the louvers, Neutra immodestly stressed his role as an unselfish forerunner of the industry: “The Spirit of St. Louis was the first plane to cross the ocean [sic] and the aircraft industry gained confidence and got underway. There are little firsts which help an industry to grow. […] An architect constructed the first movable aluminum louvers and it ‘went over,’ […] to interest fabricators, consumers and colleagues in the design profession.”49
Figure 10.
Richard Neutra, Kaufmann Desert House, Palm Springs, 1946–1947. Movable aluminum louvers protecting the courtyard between the dining area and the guestrooms from winds and sandstorms. (Detail of photo by Julius Shulman, job 093-34, © J. Paul Getty Trust. Getty Research Institute, Los Angeles, 2004.R.10).
Figure 11.
Lemlar Manufacturing Company, cover of a brochure promoting sun control devices, showing Richard Neutra’s Los Angeles County Hall of Records, Los Angeles, 1962.
The second feature of the Kaufmann House Neutra declared a prototype was its radiant heating and cooling system. Like the Lovell steel skeleton, it consisted of existing, industrially produced components assembled in a new way. It stands out from conventional contemporary radiant heating systems for being operated with open windows, for conditioning the outdoors and for radiant cooling. Thanks to these features, Neutra said, it was able to provide pure fresh air and thermal comfort at any place on earth, indoors and outdoors. Thus “the habitable area of the planet” could be extended “into places which never before had been inhabited in a civilized manner, the reaches of the upper Amazonas or Congo, the Arctics, the deserts of Arabia, and Northern Peru.”50 Although this system surely provided much indoor comfort and improved the outdoor climate to a certain degree, it must have been unable to meet all of Neutra’s expectations. For example, it cannot have been capable to provide thermal outdoor comfort at extreme temperatures. Therefore, it is not very surprising that Neutra applied it only in part again and that it was not adopted by the industry.
To become effective, Neutra’s prototypes needed to find their way to the industry, they had to be promoted. Therefore, Neutra wrote and arranged for many articles about the Lovell Health House, lectured widely on it, and even planned to present it in a monograph.51 Lovell shared Neutra’s interest in publicity, because he intended to demonstrate how his concepts for healthy living were set into practice. Hence, he discussed his newly finished house in his column and invited the public for a visit (Lovell 1929).52 In contrast, Kaufmann did not support Neutra’s publicity efforts and rather insisted on his privacy (Niedenthal 1993). In published form, his house nevertheless reached a large audience (Crosse 2010).
15. Conclusions
Neutra built luxurious single-family houses for the rich although he felt that constructing moderate apartments for the less privileged was more important. He believed that this is permissible because he used them to develop prototypes and to experiment with innovative construction methods that would later also serve the population at large. In practice, he enjoyed working on them. He liked to communicate with individual clients, was interested in developing customized solutions, appreciated the privilege of building on the most favorable spots, and found it exciting to test out the latest products, materials, and constructions.
Socialists like Teige certainly would have rejected Neutra’s large single-family houses as inacceptable luxuries, although with slightly more favorable comments than those by Wright, Loos, Mies, and Gropius, since Neutra at least never aimed at the spiritual, came closer to their interpretation of objectivity and scientific thinking, and generally felt responsible to give priority to the improvement of the living conditions of the masses. They probably would have admitted that his luxury residences contributed to the technical and architectural progress but would have concluded that their social unacceptability weighed much heavier. Furthermore, they would have considered Neutra’s interest in aesthetics, details, and individualization impermissible luxury, notwithstanding that Neutra had declared them scientifically proven needs. On the other hand, idealists who advocated luxury like Riezler would not have attested Neutra to have achieved “true, artistic luxury” in his large villas, since he did not aim at going beyond the purely rational and scientific. Moreover, they would have considered his materials not noble enough and some of his colors too obtrusive.
Both the Lovell Health and the Kaufmann Desert House clearly reflected their owner’s views of luxury. Despite of its high costs, the Lovell Health House was not luxurious in every regard, because it was deeply marked by a naturopathic regimen that was incompatible with some fundamental traits of luxury. In contrast, the Kaufmann Desert House was a perfectly luxurious location for relaxation and leisure that respected all conventions for postwar high-class vacation homes of moderate size and slight informality.
Funding
This research received no external funding.
Conflicts of Interest
The author declares no conflict of interest.
References
- 1949. A Modern House Uses Its Setting to Help Provide Luxurious Living. Architectural Forum 91, no. 3: 52–57.
- Bayer, Herbert, Walter Gropius, and Ise Gropius. 1938. Bauhaus 1919–1928. New York: Museum of Modern Art. [Google Scholar]
- Berry, Christopher J. 1994. The Idea of Luxury: A Conceptual and Historical Investigation. Ideas in Context 30. Cambridge: Cambridge University Press. [Google Scholar]
- Boesiger, Willy, ed. 1951. Richard Neutra [1923–50]: Buildings and Projects. Réalisations et projects. Bauten und Projekte. Richard Neutra 1. Zürich: Girsberger. [Google Scholar]
- Boesiger, Willy, ed. 1959. Richard Neutra 1950–60: Buildings and Projects. Bauten und Projekte. Réalisations et projets. Richard Neutra 2. Zürich: Girsberger. [Google Scholar]
- Brunner, Matthias. 2014. “Carefully Tempered Not to Interfere with the Starry Desert Sky”: The Illumination of Richard Neutra’s Kaufmann Desert House. In “Le jeu savant”: Luce e oscurità nell’architettura del XX secolo/Light and Darkness in 20th Century Architecture. Edited by Silvia Berselli, Matthias Brunner and Daniela Mondini. Da Ravenna a Vals. Luce e oscurità in architettura dal Medioevo al presente 2. Mendrisio: Mendrisio Academy Press/Silvana Editoriale, pp. 213–23. [Google Scholar]
- Brunner, Matthias. 2016. Essential Sensations: Richard Neutra und das Licht. Ph.D. dissertation, Accademia di Architettura di Mendrisio, Università della Svizzera italiana, Switzerland. [Google Scholar]
- Brunner, Matthias. 2018. Heating and Cooling the Desert: The Case of the Kaufmann Desert House in Palm Springs (USA). In The Urban Microclimate as Artifact: Towards an Architectural Theory of Thermal Diversity. Edited by Sascha Roesler and Madlen Kobi. Basel: Birkhäuser, pp. 152–73. [Google Scholar]
- Burton, Pamela, and Marie Botnick. 2002. Private Landscapes: Modernist Gardens in Southern California. New York: Princeton Architectural Press. [Google Scholar]
- CIAM, ed. 1930. Die Wohnung für das Existenzminimum: Auf Grund der Ergebnisse des 2. Internationalen Kongresses für Neues Bauen sowie der vom Städtischen Hochbauamt in Frankfurt am Main veranstalteten Wander-Ausstellung. Frankfurt am Main: Englert & Schlosser. [Google Scholar]
- CIAM, ed. 1931. Rationelle Bebauungsweisen: Ergebnisse des 3. Internationalen Kongresses für Neues Bauen (Brüssel, November 1930). Frankfurt am Main: Englert & Schlosser. [Google Scholar]
- Cleary, Richard L. 1999. Merchant Prince and Master Builder: Edgar J. Kaufmann and Frank Lloyd Wright. Seattle: University of Washington Press. [Google Scholar]
- 1946. Construction Activity. Survey of Current Business 26, no. 2: 16–19.
- Crosse, John. 2010. Richard Neutra’s Kaufmann House: An Annotated & Illustrated Bibliography. Available online: https://drive.google.com/file/d/0B1Gq8BBO1qBiVU9yaE5vcXFkdGc/edit (accessed on 13 October 2018).
- Curtis, William J. 1982. Modern Architecture since 1900. Oxford: Phaidon. [Google Scholar]
- Denzer, Anthony. 2008. Gregory Ain: The Modern Home as Social Commentary. New York: Rizzoli. [Google Scholar]
- Drexler, Arthur, and Thomas S. Hines. 1982. The Architecture of Richard Neutra: From International Style to California Modern. New York: Museum of Modern Art. [Google Scholar]
- 1930. Dům zdraví v Los Angeles. Stavba 9: 17–19.
- 1948. Emergency Controls on Construction 1941–1948. Engineering News Record 140, no. 22 (May 27): 101.
- 1948. ENR Construction and Building Cost Indexes. Engineering News Record 140, no. 22: 108.
- Ford, James, and Katherine Morrow Ford. 1945. Design of Modern Interiors. New York: Architectural Book Publishing. First published 1942. [Google Scholar]
- Frank, Josef, and Otto Neurath. 1930. Hannes Meyer. Klassenkampf 4, no. 18: 573–75. [Google Scholar]
- Friedman, Alice T. 1998. Women and the Making of the Modern House: A Social and Architectural History. New York: Abrams. [Google Scholar]
- Friedman, Alice T. 2010. American Glamour and the Evolution of Modern Architecture. New Haven: Yale University Press. [Google Scholar]
- de Fries, Heinrich. 1925. Das Ende des Staatlichen Bauhauses in Weimar. Baugilde 7, no. 5: 255–56. [Google Scholar]
- 1930. Gesundheitshaus in Kalifornien. Die Form 5, no. 13: 350–54.
- Giedion, Sigfried. 1928a. Bauen in Frankreich, Eisen, Eisenbeton. Leipzig: Klinkhardt & Biermann. [Google Scholar]
- Giedion, Sigfried. 1928b. Le problème du luxe dans l’architecture moderne: A propos d’une nouvelle construction à Garches de Le Corbusier et Pierre Jeanneret. Cahiers d’art 3, no. 5–6: 254–60. [Google Scholar]
- Giedion, Sigfried. 1939. The Dangers and Advantages of Luxury. Focus, 34–39. [Google Scholar]
- Giedion, Sigfried. 1951. R. J. Neutra. European and American. In Richard Neutra [1923–50]: Buildings and Projects. Réalisations et projets. Bauten und Projekte. Edited by Willy Boesiger. Richard Neutra 1. Zürich: Girsberger, pp. 8–10. [Google Scholar]
- Ginsburger, Roger, and [Durand-Dupont, pseud.]. 1930. Der Deutsche Werkbund im Salon der “Artistes-Décorateurs,” Paris. Werk 17, no. 7: 197–204. [Google Scholar]
- Ginsburger, Roger, and Walter Riezler. 1931. Zweckhaftigkeit und geistige Haltung: Eine Diskussion. Die Form 6, no. 11: 431–37. [Google Scholar]
- 1949. Glamourized Houses: Photographer Julius Shulman Is a Master at Making Them Look Dramatic. Life 26, no. 15: 146–48.
- Gropius, Walter. 1923. Idee und Aufbau des staatlichen Bauhauses. In Staatliches Bauhaus Weimar, 1919-1923. Weimar: Bauhausverlag, pp. 7–18. [Google Scholar]
- Gropius, Walter. 1925. Grundsätze der Bauhausproduktion. In Neue Arbeiten der Bauhauswerkstätten. Bauhausbücher 7. München: Langen, pp. 5–8. [Google Scholar]
- Gropius, Walter. 1930. Bauhausbauten Dessau. Bauhausbücher 12. München: Langen. [Google Scholar]
- 1931. Habitation d’un médecin, à Los Angeles (Etats-Unis d’Amérique). L’architecte, 18–23.
- Halbert, Blanche, ed. 1931. The Better Homes Manual. Chicago: University of Chicago Press. [Google Scholar]
- Harris, Harwell H. 1977. AIA Gold Medal, First in Five Years, Awarded to Neutra. North Carolina Architect 24, no. 3: 8–11. [Google Scholar]
- Hay, David. 1999. A Modernist Masterpiece in the Desert Is Reborn. Architectural Record 187, no. 9: 92–98. [Google Scholar]
- Heyken, Richard. 1950. Der aufgelockerte Grundriss im Eigenheim: Dargestellt an Arbeiten des Architekten Richard J. Neutra, Los Angeles, Kalifornien. Die Kunst und das schöne Heim 48, no. 4: 146–60. [Google Scholar]
- Hines, Thomas S. 1982. Richard Neutra and the Search for Modern Architecture: A Biography and History. New York: Oxford University Press. [Google Scholar]
- Hoffmann, Herbert. 1932. Richard J. Neutra: Haus der Gesundheit am Griffithpark in Los Angeles. Moderne Bauformen 31: 383–92. [Google Scholar]
- Jackson, Neil. 1996. The Modern Steel House. London: E & FN Spon. [Google Scholar]
- Johnson, Philip C. 1931. In Berlin: Comment on Building Exposition. New York Times, August 9. [Google Scholar]
- Johnson, Philip C. 1932. Ludwig Miës van der Rohe. In Modern Architecture: International Exhibition. New York: Museum of Modern Art, pp. 111–18. [Google Scholar]
- Lamprecht, Barbara. 2000. Richard Neutra: Complete Works. Köln: Taschen. [Google Scholar]
- Lamprecht, Barbara. 2015. Richard Neutra—Möbel/Furniture: Der Körper und die Sinne/The Body and Senses. Tübingen: Wasmuth. [Google Scholar]
- Lavin, Sylvia. 2004. Form Follows Libido: Architecture and Richard Neutra in a Psychoanalytic Culture. Cambridge: MIT Press. [Google Scholar]
- Le Corbusier. 1923. Collection de “L’Esprit Nouveau”. Vers une architecture. Paris: Crès. [Google Scholar]
- Le Corbusier. 1924. L’art décoratif d’aujourd’hui. L’Esprit Nouveau. [Google Scholar]
- Leet, Stephen. 2004. Richard Neutra’s Miller House. Primary Material 1. New York: Princeton Architectural Press. [Google Scholar]
- Leuschel, Klaus, ed. 2010. Richard Neutra in Europa: Bauten und Projekte 1960–1970. Köln: DuMont. [Google Scholar]
- Loos, Adolf. 2010a. Ornament und Erziehung. In Gesammelte Schriften. Edited by Adolf Opel. Wien: Lesethek, pp. 597–603. First published 1924. [Google Scholar]
- Loos, Adolf. 2010b. Von der Sparsamkeit. In Gesammelte Schriften. Edited by Adolf Opel. Wien: Lesethek, pp. 604–16. First published 1924. [Google Scholar]
- Lovell, Philip M. 1926. Care of the Body: Labor-Saving Devices. Los Angeles Times, September 12. [Google Scholar]
- Lovell, Philip M. 1929. Care of the Body: The Home Built for Health. Los Angeles Times, December 15. [Google Scholar]
- Lovell, Philip M. 1931. Diet for Health by Natural Methods: Together with Health Menus and Recipes; Complete Instructions for the Cure of the Sick without the Use of Drugs. Los Angeles: Times-Mirror Press. First published 1927. [Google Scholar]
- Marmorstein, Gary. 2002. Steel and Slurry: Dr. Philip M. Lovell, Architectural Patron. Southern California Quarterly 84, no. 3–4: 241–70. [Google Scholar] [CrossRef]
- McCoy, Esther. 1979. Vienna to Los Angeles: Two Journeys. Santa Monica: Arts + Architecture. [Google Scholar]
- Meyer, Hannes. 1928. Bauen. Bauhaus 2, no. 2: 12–13. [Google Scholar]
- Meyer, Hannes. 1965. Mein Hinauswurf aus dem Bauhaus/My Dismissal from the Bauhaus. In Bauten, Projekte und Schriften/Buildings, Projects and Writings. Edited by Claude Schnaidt. Teufen: Niggli, pp. 100–5. First published 1930. [Google Scholar]
- Meyer, Hannes. 1980a. Über marxistische Architektur. In Bauen und Gesellschaft: Schriften, Briefe, Projekte. Edited by Lena Meyer-Bergner. Fundus-Bücher 64/65. Dresden: VEB Verlag der Kunst, pp. 92–97, Written ca. 1932. [Google Scholar]
- Meyer, Hannes. 1980b. Über die kapitalistische Wohnungsarchitektur der Nachkriegszeit (1919–1934). In Bauen und Gesellschaft: Schriften, Briefe, Projekte. Edited by Lena Meyer-Bergner. Fundus-Bücher 64/65. Dresden: VEB Verlag der Kunst, pp. 177–85. First published 1935. [Google Scholar]
- Meyer, Peter. 1933. Haus Tugendhat in Brünn, Architekt Ludwig Mies van der Rohe, Berlin. Werk 20, no. 2: 41–47. [Google Scholar]
- Mies van der Rohe, Ludwig. 1986. Rundfunkrede. In Mies van der Rohe: Das kunstlose Wort. Edited by Fritz Neumeyer. Berlin: Siedler, pp. 374–75, Manuscript dated 1931. [Google Scholar]
- Möller, Werner, ed. 2015. Das prinzip coop: Hannes Meyer und die Idee einer kollektiven Gestaltung. Edition Bauhaus 48. Leipzig: Spector. [Google Scholar]
- Morgan, Williard D. 1930. The House that Health Built. Home Digest, May–June, 3–5. [Google Scholar]
- Mumford, Eric. 2000. The CIAM Discourse on Urbanism, 1928–1960. Cambridge: MIT Press. [Google Scholar]
- Neumann, Dietrich, ed. 2001. Richard Neutra’s Windshield House. New Haven: Yale University Press. [Google Scholar]
- Neutra, Richard J. 1927. Wie baut Amerika? Gegenwärtige Bauarbeit, amerikanischer Kreis. Die Baubücher 1. Stuttgart: Hoffmann. [Google Scholar]
- Neutra, Richard J. 1929. Architecture Conditioned by Engineering and Industry. Architectural Record 66, no. 3: 272–74. [Google Scholar]
- Neutra, Richard J. 1930. Aesthetics and the Open Air. Studio 99, no. 443: 79–84. [Google Scholar]
- Neutra, Richard J. 1931. Construction of a Sitting Device. U.S. Patent 2,034,412, October 12. [Google Scholar]
- Neutra, Richard J. 1932a. The International Congresses for New Building. Shelter 2, no. 3: 28. [Google Scholar]
- Neutra, Richard J. 1932b. Wohnung, Industrie, Bedarf in U.S.A. In Die internationale Werkbundsiedlung Wien 1932. Edited by Josef Frank. Neues Bauen in der Welt 6. Wien: Schroll, pp. 20–22. [Google Scholar]
- Neutra, Richard J. 1937. The Home To-Day: Design for Modern Living. Architectural Record of Design & Construction 7, no. 10: 381–83. [Google Scholar]
- Neutra, Richard J. 1948. Arquitetura social em paises de clima quente. Architecture of Social Concern in Regions of Mild Climate. São Paulo: Todtmann. [Google Scholar]
- Neutra, Richard J. 1949. U.S.A., Architecture, and CIAM. Brief General Report to the Congress in Bergamo. CIAM Archive, gta Archiv, 42-JT-17. Zürich: ETH Zürich, Unpublished typescript. [Google Scholar]
- Neutra, Richard J. 1954. Survival through Design. New York: Oxford University Press. [Google Scholar]
- Neutra, Richard J. 1955a. Architektur als angewandte Physiologie: Ein Vortrag vor Studenten der Technischen Hochschule Darmstadt am 13. November 1954. Baukunst und Werkform 8, no. 1: 9–21. [Google Scholar]
- Neutra, Richard J. 1955b. Ein Brief von Richard Neutra. Baukunst und Werkform 8, no. 10: 592. [Google Scholar]
- Neutra, Richard J. 1956. Bauen, eine höchst menschliche Angelegenheit. Tape Recorded Lecture, ETH Zürich. ETH Library Zürich, Image Archive, Tape D 495, October 23. [Google Scholar]
- Neutra, Richard J. 1957. Notes to the Young Architect. Perspecta 4, no. 4: 50–57. [Google Scholar] [CrossRef]
- Neutra, Richard J. 1958. Client Interrogation: An Art and a Science. AIA Journal 29, no. 6: 285–86. [Google Scholar]
- Neutra, Richard J. 1960. The Individual Client and the Chance for Individual Curiosity. Architettura, Cronache e Storia 5, no. 51: 622–23. [Google Scholar]
- Neutra, Richard J. 1962. Life and Shape. New York: Appleton-Century-Crofts. [Google Scholar]
- Neutra, Richard J. 1964. Umwelt für morgen: Wenn wir weiter leben wollen. Herausgegriffen, 1–18. [Google Scholar]
- Neutra, Richard J. 1970. Man the Measure. Pomona. Unpublished typescript. [Google Scholar]
- Neutra, Dione. 1983. My Life with Richard Neutra: 1933 to 1970 and Beyond. Pomona. Unpublished typescript. [Google Scholar]
- Neutra, Richard J., and Dion Neutra. 1974. Pflanzen Wasser Steine Licht. Edited by Hermann Exner and Dione Neutra. Berlin: Parey. [Google Scholar]
- Neutra, Richard J., and Dione Neutra. 1986. Richard Neutra, Promise and Fulfillment, 1919–1932: Selections from the Letters and Diaries of Richard and Dione Neutra. Carbondale: Southern Illinois University Press. [Google Scholar]
- Niedenthal, Simon. 1993. “Glamourized Houses”: Neutra, Photography, and the Kaufmann House. Journal of Architectural Education 47, no. 2: 101–12. [Google Scholar]
- Olgyay, Aladar, and Victor Olgyay. 1957. Solar Control and Shading Devices. Princeton: Princeton University Press. [Google Scholar]
- Quick, Henry B. 1957. Controlling Solar Heat with Big Aluminum Louvers. Modern Metals 13, no. 3: 66, 68, 70. [Google Scholar]
- Rebitzki, Hartmut G. 1957. Ein Ziel auf innigste zu wünschen. Baukunst und Werkform 10, no. 9: 503–4. [Google Scholar]
- Riezler, Walter. 1931. Das Haus Tugendhat in Brünn. Die Form 6, no. 9: 321–32. [Google Scholar]
- Schuldenfrei, Robin. 2018. Luxury and Modernism: Architecture and the Object in Germany 1900–1933. Princeton: Princeton University Press. [Google Scholar]
- Sheine, Judith. 1990. Moderne Wohnbauarchitektur. Werk, Bauen + Wohnen 77, no. 7–8: 46–53. [Google Scholar]
- Smithson, Alison, and Peter Smithson. 1974. Without Rhetoric: An Architectural Aesthetic 1955–1972. Cambridge: MIT Press. First published 1973. [Google Scholar]
- Solan, Victoria J. 2004. “Built for Health”: American Architecture and the Healthy House, 1850–1930. Ph.D. dissertation, Yale University, New Haven, CT, USA. [Google Scholar]
- Steel Joist Institute. 1946. The Handbook of Steel Joist: Construction, Specifications, Loading Tables and Properties. A.I.A. File No. 13G. Washington, DC: Steel Joist Institute. [Google Scholar]
- Stegner, Wallace E. 1992. Where the Bluebird Sings to the Lemonade Springs: Living and Writing in the West. New York: Random House. [Google Scholar]
- Steinmann, Martin, ed. 1979. CIAM: Internationale Kongresse für Neues Bauen, Dokumente 1928–1939. Geschichte und Theorie der Architektur 11. Basel: Birkhäuser. [Google Scholar]
- Taut, Bruno. 1925. Die neue Wohnung: Die Frau als Schöpferin. Leipzig: Klinkhardt & Biermann. First published 1924. [Google Scholar]
- Teige, Karel. 2000. Modern Architecture in Czechoslovakia. In Modern Architecture in Czechoslovakia and Other Writings. Translated by Irena Žantovská Murray, and David Britt. Texts & Documents. Los Angeles: Getty, pp. 56–304. First published 1930. [Google Scholar]
- Teige, Karel. 2002. The Minimum Dwelling. Translated by Eric Dluhosch. Cambridge: MIT Press. First published 1932. [Google Scholar]
- 1930. The Demonstration Health-House, Los Angeles. Architectural Record 67, no. 5: 433–39.
- The Editors of the Architectural Forum. 1937. The 1938 Book of Small Houses. New York: Simon & Schuster. [Google Scholar]
- 1943. The Prefabricated House IV: Steel. Architectural Forum 78, no. 3: 71–82.
- Toker, Franklin. 2003. Fallingwater Rising: Frank Lloyd Wright, E.J. Kaufmann, and America’s Most Extraordinary House. New York: Knopf. [Google Scholar]
- Tugendhat, Grete. 1969. Zum Bau des Hauses Tugendhat. Bauwelt 60, no. 36: 1246–47. [Google Scholar]
- United States Department of Labor. 1948. Construction and Housing 1946–47; U.S. Bureau of Labor Statistics Bulletin 941; Washington, DC: United States Department of Labor.
- V.D.L. Research House. 1934. Architectural Forum 61, no. 5: 357–72.
- Weisskamp, Herbert. 1986. Todsünden gegen die Architektur. Düsseldorf: ECON. [Google Scholar]
- Wiesing, Lambert. 2015. Luxus. Berlin: Suhrkamp. [Google Scholar]
- Wright, Frank L. 1993. The Disappearing City. In Collected Writings Volume 3, 1931–1939. Edited by Bruce B. Pfeiffer. New York: Rizzoli, pp. 70–112. First published 1932. [Google Scholar]
- Wright, Frank L. 1995. The Living City. In Collected Writings Volume 5, 1949–1959. Edited by Bruce B. Pfeiffer. New York: Rizzoli, pp. 251–343. First published 1958. [Google Scholar]
- Zevi, Bruno. 1954. Richard Neutra. Architetti del movimento moderno 10. Milano: Il Balcone. [Google Scholar]
- Zietzschmann, Ernst. 1961. Haus eines Schiffsbauers in San Pedro bei Los Angeles. Bauen + Wohnen 15, no. 12: 445–50. [Google Scholar]
| 1 | However, Giedion subsequently changed his definition of and opinion about luxury in Giedion (1939). |
| 2 | For further-ranging studies exploring the meaning of luxury see Berry (1994); Wiesing (2015). |
| 3 | However, Friedman’s study only overlaps slightly, since glamour is not the same as luxury. Moreover, this paper only partially agrees with her conclusions. In particular, it questions her portrayal of Neutra as an architect who felt perfectly at ease serving wealthy individual clients. |
| 4 | Kenneth Frampton in a 1995 video interview conducted by Elizabeth Harris and Ron Radziner, quoted by Burton and Botnick (2002, p. 25). |
| 5 | Hannes Meyer, explanatory text for the presentation of the “Volkswohnung” of the Bauhaus Dessau at the Grassi-Museum, Leipzig, 1929, published in Möller (2015, p. 87). All translations, unless otherwise noted, are by the author. Original text: “[…] nicht der luxus, […] sondern das bedürfnis der breitesten volksgemeinschaft ist massgebend.” |
| 6 | Original text: “Volksbedarf statt Luxusbedarf.” |
| 7 | On the CIAM see Steinmann (1979); Mumford (2000). |
| 8 | Original text: “Zum erstenmal in der Geschichte wirkt nicht die Schicht mit den grössten Ansprüchen, sondern die Schicht mit den geringsten Ansprüchen als stilbildender Faktor. […] Kein in Luxus und Unbeschränktheit der Mittel erdachter Bau kann heute in der Geschichte des Bauens mehr Bedeutung erhalten.” Quoted several times by Teige, for example in Teige ([1930] 2000, p. 136); Teige ([1932] 2002, p. 182). See also Giedion (1928b). |
| 9 | See also Meyer (1980b); Ginsburger (1930); Ginsburger and Riezler (1931). |
| 10 | Teige in a Stavba article published in 1924, as cited in Bayer et al. (1938, p 93). |
| 11 | Original text: “[…] [D]as zukünftige Handwerk wird in einer neuen Werkeinheit aufgehen, in der es Träger der Versuchsarbeit für die industrielle Produktion sein wird. Spekulative Versuche in Laboratoriumswerkstätten werden für die produktive Durchführungsarbeit der Fabriken Modelle—Typen—schaffen.” See also Gropius (1930, p. 10). |
| 12 | Original text: “Müssen wir in Deutschland heute noch Schulen errichten, in welchen die Fähigkeit kultiviert wird, für bemittelte Schichten angenehme und interessante Nebensächlichkeiten zu erzeugen? Müssen junge Menschen dafür abgerichtet werden, die Lebensöde und die Inhaltsleere unserer sogenannten Kulturkreise mit immer neuem Kunstkonditorkram auszufüllen […]?” On these inconsistencies of the Bauhaus see Schuldenfrei (2018). |
| 13 | Neutra, Richard J. n.d., ca. 1929. Leichtstahlrahmen im kleinen und mittleren Wohnbau. Unpublished typescript. Richard and Dion Neutra Papers (Collection Number 1179). Los Angeles: Charles E. Young Research Library, University of California (hereafter cited as UCLA), box 75, f. 11. |
| 14 | Dione Neutra to Mary Beard, 19 April 1949, as quoted in D. Neutra (1983, pp. 182–83). See also Boesiger (1951, p. 114). |
| 15 | Original text: “produkt der formel: (funktion mal ökonomie).” |
| 16 | Transl. by D. Q. Stephenson. Original text: “Ich lehrte sie [die Studierenden] das Vielerlei der idealistischen Wirklichkeiten verachten, und ich strebte mit ihnen zur einzig beherrschten Wirklichkeit des Messbaren, Sichtbaren, Wägbaren.” See also Frank and Neurath (1930). Roger Ginsburger took a similar view (Ginsburger and Riezler 1931). |
| 17 | Original text: “die architektur ist keine ‘baukunst’ mehr. das bauen ist eine wissenschaft geworden. architektur ist bauwissenschaft.” |
| 18 | Philip Lovell’s newspaper columns and books are easily accessible, but most correspondence between him and Neutra seems to be lost. In contrast, the correspondence between Kaufmann and Neutra is almost fully preserved. It is particularly comprehensive, because the Kaufmanns were only seldom on the spot for personal meetings. About the wives’ opinions is, unfortunately, much less known. Leah Lovell did not publish; Liliane Kaufmann almost only commented on issues typically left to woman such as colors and gardening. |
| 19 | Lovell to Neutra, 9 February 1969, quoted in Hines (1982, p. 305). |
| 20 | For a similar view of Lovell’s approach to luxury see Solan (2004, pp. 157–58, 163–66). |
| 21 | Houses by Neutra that are larger than the Lovell and Kaufmann Residences include the Rentsch, Tremaine, Kronish, Bucerius, and Delcourt Houses (Neutra and Neutra 1974). The living area of the Lovell Health House was estimated by the author. |
| 22 | Neutra to Lovell, 15 May 1930, UCLA, box 75, f. 9; Brooks, M. L. 1947. Billing 47—Last Billing. UCLA, box 1462, f. 3, March 31. In Kaufmann to Neutra, 19 November 1947, UCLA, box 1462, f. 3, a marginally different number is found: $284,483. These figures do not represent the entire costs of the houses: They only contain what the owners paid to their contractors (which was Neutra in the case of the Lovell House), but not what they paid directly, like the lot and the architect’s fees for example. Therefore, some much higher figures given by other sources may be correct as well. According to McCoy (1979, p. 69), Lovell remembered in 1958 that he had paid $150,000 for his house; Toker (2003, p. 330) reported that the Desert House was nearly half a million dollars. |
| 23 | The Engineering News Record Construction Cost Index was at 207 in 1929 and at 413 in 1947 (ENR Construction and Building Cost Indexes 1948). |
| 24 | Kaufmann, Edgar J. 1946. Owners Comments. UCLA, box 121, f. 2, February 9; Kaufmann to Neutra, 20 September 1946, UCLA, box 1462, f. 3. |
| 25 | Neutra to Lovell, 15 May 1930, UCLA, box 75, f. 9. Lovell promised to pay additional $100 (Dione Neutra to Richard J. Neutra, 13 June 1930, Richard J. Neutra Collection. Pomona: College of Environmental Design (ENV), Cal Poly Pomona (hereafter cited as Pomona). It is likely that Lovell paid the promised $100, but doubtful whether he also paid the remaining $313. |
| 26 | Kaufmann to Neutra, 19 November 1947, UCLA, box 1462, f. 3; Neutra to Kaufmann, unsent letter, 14 March 1948, UCLA, box 1462, f. 3; Neutra to Kaufmann, 14 March 1948, UCLA, box 1462, f. 3. The author’s calculation of unpaid fees is based on the highly probable assumption that Neutra had mistakenly applied the 10 percent fee to the contractor’s overhead costs before accepting Kaufmann’s final proposal. Otherwise the amount of unpaid fees would have been considerably higher. Anyway, Neutra was unable to be reimbursed for untimely changes and other services not included in the contract. |
| 27 | Dione Neutra about the fees for the von Sternberg House to her parents, 5 December 1935, as quoted in D. Neutra (1983, p. 31). |
| 28 | Dione Neutra to Mütterli [Lilly Niedermann, her mother], 18 April 1930, Pomona. |
| 29 | Construction Activity (1946); Emergency Controls on Construction 1941–1948 (1948); United States Department of Labor (1948, pp. 18–19). Already during the war, a similar law was effective: regulation L-41, issued on 9 April 1942, and removed on 15 October 1945. This law made the construction of private houses costing more than $8000 nearly impossible. Only within the short period when neither of the two regulations was effective, the construction of expensive residences such as the Kaufmann Desert House could be started. |
| 30 | About the foundations see Hines (1982, p. 200). The first meeting of Neutra and the Kaufmanns took place on 9 February 1946 (Kaufmann to Neutra, 5 February 1946, UCLA, box 119, f. 2). |
| 31 | H. C. Smith to Kaufmann, 14 April 1947, UCLA, box 1462, f. 3. |
| 32 | Notwithstanding Kaufmann’s complaints about slow progress (Kaufmann to Neutra, 18 June 1946, UCLA, box 119, f. 2), his house was built much faster than most similar projects like, for example, Neutra’s Tremaine House. Construction of both houses had started shortly before 26 March 1946 (Neutra to Warren Tremaine, 24 April 1946, UCLA, box 1670, f. 2). But while the Kaufmann Desert House was ready to move in by about February 1947 (Neutra to Kaufmann, 11 January 1947, UCLA, box 120, f. 4), only more than a year later, towards the end of April 1948, the Tremaine House approached the same stage (Katharine Tremaine to Neutra, 23 April 1948, UCLA, box 1491, f. 2). |
| 33 | Neutra to Kaufmann, 3 August 1946, UCLA, box 119, f. 3; Liliane Kaufmann to Neutra, 10 August 1946, UCLA, box 119, f. 3; Neutra to Waale-Camplan Co. & Smith, Inc., 14 September 1946, UCLA, box 119, f. 5. Koroseal tiles are a sort of thin plastic tiles. |
| 34 | Neutra, Richard J. n.d. Arztliche Arbeit in V.S [U.S.] und Einstellung der Bevölkerung. Unpublished typescript. UCLA, box 75, f. 11, p. 9. |
| 35 | Neutra to James Reddick, 30 July 1946, UCLA, box 119, f. 3; Neutra, Richard J. n.d. Plant lists. UCLA, box 121, f. 1; Neutra, Richard J. n.d. Captions. UCLA, box 827, f. 1. |
| 36 | Maybe, also the specific difficulties that overshadowed the marriages of the Lovells and the Kaufmanns had some influence on these decisions (Cleary 1999; Marmorstein 2002; Toker 2003). |
| 37 | At the Lovell Health House, the private rooms were not labelled “bedrooms,” but “private living rooms,” since the Lovells intended to sleep on their sleeping porches. |
| 38 | For the following two reasons it is very likely that originally, four bedrooms but no study were projected. First, the plans published in several early articles do not mention any study, but refer to all four large spaces of the upper floor as “living rooms” or “Einzelwohnzimmer,” respectively (The Demonstration Health-House 1930, p. 438; Hoffmann 1932, .p. 391). Second, on the final working drawings, these rooms are labelled “study,” “living room 2,” “living room 3,” and “living room 4.” Thus, “living room 1” is missing—most likely because it has become “study.” |
| 39 | Accordingly, the larger of these rooms is occasionally labelled “sewing room” (Neutra, Richard J. n.d. Caption. UCLA, box 836, f. 6. Elsewhere, Neutra said that it is presently used as the living room of the housekeeper (Neutra, Richard J. n.d. Caption. UCLA, box 837, f. 1). |
| 40 | On Lovell’s positive view of labor-saving devices see Lovell (1926). |
| 41 | Original text: “An Stelle der bisherigen Vorliebe für das Ornament muss das Gefallen am Material treten.” |
| 42 | For similar statements about the Tugendhat House see Riezler (1931, p. 326); Meyer (1933, p. 42); Tugendhat (1969, p. 1246). |
| 43 | For example, at the Rentsch House (1965) (Neutra to Bruno Honegger, 8 March 1964, UCLA, box 1982, f. 2). |
| 44 | Neutra, Richard J. 1947. Kaufmann Color Scheme. UCLA, box 120, f. 4, January 12. |
| 45 | Liliane Kaufmann to Neutra, 3 December 1946, UCLA, box 120, f. 3; Joseph Blumfield to Liliane Kaufmann, 20 December 1946, UCLA, box 120, f. 3. They were woven by Joseph Blumfield, Los Angeles, with whom Neutra collaborated also on other projects. |
| 46 | Charles Eames to Liliane Kaufmann, 18 August 1947, UCLA, box 120, f. 4. |
| 47 | Neutra, Richard J. n.d., ca. 1929. Leichtstahlrahmen im kleinen und mittleren Wohnbau. Unpublished typescript. UCLA, box 75, f. 11. |
| 48 | Some authors went even further, saying that the Lovell Health House was the first residence with a steel skeleton worldwide; others made ambiguous statements. See Gesundheitshaus in Kalifornien (1930, p. 351); Gregory Warchavchik in his introduction to Neutra (1948, p. 32); Lovell quoting Neutra in a letter to Dion and Dione Neutra, 6 August 1971, as cited in Hines (1982, p. 308); McCoy (1979, p. 91); Hines (1982, p. 81); Sheine (1990, p. 48). |
| 49 | Neutra, Richard J. n.d., ca. 1956. Residence on an Arid, Detached Site, Colorado Desert, California. Unpublished typescript. UCLA, box 121, f. 9. |
| 50 | Neutra (1949, p. 4). For more a more detailed discussion of the heating and cooling system of the Kaufmann Desert House see Brunner (2018). |
| 51 | Correspondence between Neutra and several German publishers. 1930. Pomona. |
| 52 | In general, the greater the geographic and temporal distance to the event, the higher the numbers of visitors reported. In a January 1930 letter to Frances Toplitz, Dione Neutra (as quoted in Neutra and Neutra 1986, p 183) mentioned 1500 visitors, both Hoffmann (1932, p. 385) and McCoy (1979, p. 70) totaled 15,000 visitors, and the Czechoslovakian journal Stavba even “counted” 30,000 guests (Dům zdraví v Los Angeles 1930). An additional motivation for opening his house were the substantial reductions on the steel price Lovell received for it (Lovell in a 1958 interview with Esther McCoy, as cited in McCoy 1979, p. 68; Lovell to Dion and Dione Neutra, 6 August 1971, as quoted by Hines 1982, p. 308). Neutra would make similar deals again for the construction of his own VDL Research House in 1932–1933 and for its reconstruction in 1963–1965. |
© 2018 by the author. Licensee MDPI, Basel, Switzerland. This article is an open access article distributed under the terms and conditions of the Creative Commons Attribution (CC BY) license (http://creativecommons.org/licenses/by/4.0/).










