Abstract
The material legacy of the Almoravid dynasty is evident in a limited number of public and military works promoted by the authorities, reflecting their policies on territorial expansion and urban planning. Other aspects, such as its integration into the Mediterranean economy, its ideological spread, and the vitality of its productive sectors, are well represented through coinage, inscriptions, and sumptuary arts. However, understanding everyday material culture beyond aristocratic circles remains elusive. This paper explores the influence of the Almoravid period on al-Andalus’s material culture, identifying antecedents and impacts on later periods. We analyze artifacts from the Albalat site (Romangordo, Cáceres, Spain), contextualized in the first half of the 12th century, comparing them with contemporary and earlier examples across the Almoravid empire. Emphasis is placed on ceramics, highlighting their diverse nature with inherited traits from the Taifa period, and innovations that persisted into Almohad culture, considering the role of production centers in disseminating these models. The transition from Almoravid to Almohad is also examined through everyday items like a casket adorned with bone inlays, representing a link in Andalusian ivory handicraft evolution. This analysis aims to deepen understanding of Almoravid heritage in the Iberian Peninsula.
1. Introduction: Brief Overview of the Almoravid Heritage Legacy
The conquests of the important caravan centers of Sijilmāsa and Āwdāġust in 1054–55 are often regarded as marking the beginning of the expansion of the political–religious movement led by Yaḥyā ibn Ibrāhīm and the religious expert in Maliki law ‘Abd Allāh ibn Yasīn1. This reform movement is notable for having unified the Ṣanhājah Berber tribes and for the spread of an orthodox branch of Islam (Lagardère 1989, p. 5; Bennison 2016). Alongside a profound social, economic, and military transformation in the region, this led to control over the trans-Saharan trade routes in West Africa and beyond, a much wider territory that connected both sides of the Strait (Lagardère 1989, p. 5; Bennison 2016). Yet, despite these achievements, the architectural and artistic legacy of this movement, which evolved into the Almoravid dynasty, is mainly known through a limited set of public and military structures. These constructions, directly sponsored by the ruling authority, reflect the Almoravids’ policies of territorial expansion, urban planning, and ideological propagation. Nowadays, this monumental heritage is tangible in only a few places, mainly concentrated in North Africa, where recent studies—often based on research carried out during the colonial period—have shed new light on these works (Almagro 2020; Cressier 2020; Marcos Cobaleda 2015; Marcos Cobaleda and Villalba Sola 2019; El Khammar 2018, among others). Among the architectural remains still standing in Marrakesh, the dynasty’s definitive capital founded in 1070–1071 on the plain of Ḥawz at the foot of the High Atlas range (Lévi-Provençal 1957), particularly noteworthy is the Qubbat al-Bārūdiyyīn which protected the ablutions basin of the aljama (Meunié et al. 1957). Together with the extensions of the al-Qarawiyyīn mosque in Fez or those of Tlemcen, Algiers, and Nedroma (Almagro 2020), these buildings provide reliable evidence of the Almoravid architectural repertoire and ornamental visual language which includes muqarnas, poly-lobed arches, and simple and plain palmettes, all utilized within the specific context of the religious sphere (Marcos Cobaleda and Villalba Sola 2019, p. 47). The associated furnishings, known in part through their textual references (El Khammar 2006), are represented by only a few surviving pieces; the most exceptional being the mimbars from the mosque of Algiers, Nedroma, and above all, from the Kutubīyya (Bloom et al. 1998). This latter one, crafted in Córdoba in 1137, also illustrates the skill of Andalusian craftsmen and, through it, the aesthetic contributions of al-Andalus, as well as the exchange flow that must have existed between the two shores of the strait, unified under a single rule. Beyond these elements, the strength of the Almoravid empire in the Western Mediterranean economy (Constable 1994, p. 10) is well demonstrated in its coinage (Benito de los Mozos 2020; Peña Martín and Vega Martín 2006), which, due to its metrological stability and high fineness, became a monetary standard value (Canto García 2017, p. 205) that extended beyond the limits of the Almoravid domain (Roux and Guerra 2000, p. 42). Indeed, the prosperity from the commercial boom of this period is reflected even in commemorative inscriptions, as seen in the exceptional case of a stela in Almería. This inscription records a pious foundation, designating the revenue from three shops to fund cemetery maintenance in the city (Martínez Núñez 2020, pp. 63–64). Additionally, the quality of the textiles and metalwork that have survived (Partearroyo Lacaba and Ali de Unzaga 2020; Azuar Ruíz 2020) reflect the vitality of luxury arts that circulated among the privileged circles of society, which were also highly valued by the Christian elites of the Iberian Peninsula.
Although several studies have underscored the imbalance in both the quantity and quality of data between the Andalusi and North African territories (Cressier and Gilotte, forthcoming), this disparity is minimal compared to the substantial gaps that remain in understanding everyday material culture—items produced, traded, and used in more popular contexts. Fortunately, this situation has begun to improve thanks to growing interest in both the Iberian Peninsula and Morocco (e.g., Ettahiri et al. 2012; Ettahiri 2014; Serrat et al. 2019; Fili et al. 2018; Fili and Serrat 2020; Marcos Cobaleda 2015, 2018a, 2018b; Pérez Asensio and Jiménez Castillo 2018; González Ballesteros and Muñoz Espinosa 2024; Salinas Pleguezuelo et al. 2024; Iñíguez Sánchez 2024; ongoing Uclés project led by Jesús Molero García and David Gallego Duque). Much of this challenge is due to the difficulty in defining this period archaeologically, given its short duration and the lack of well-identified contexts. Indeed, the brevity of the Almoravid rule, especially in Andalusian lands (1090–1145), has made identifying distinct contexts and their most popular productions a real challenge.
Thus, a few sites have become essential references for building foundational knowledge in this field. One such site is the Albalat settlement, in Cáceres Province, whose excavation and analysis have begun to shed light on key aspects of Almoravid material culture in the Iberian Peninsula, helping to fill some of the gaps in understanding daily life, artisanal practices, and artistic expressions at the edges of the empire. This analysis raises similar questions to those explored in other contexts regarding cultural continuity or rupture between the Taifa and Almoravid periods, as well as between the Almoravid and Almohad eras (Marcos Cobaleda 2018b, pp. 697–701; Marcos Cobaleda and Villalba Sola 2019). Despite their political and religious antagonisms and the Almoravids’ efforts to establish a distinct identity and legitimize themselves, not everything resulted in changes. The arts, and even more so the crafts, did not necessarily follow the pace of political events; rather, earlier elements and techniques were preserved alongside the incorporation of new innovations.
2. Archaeological Context: Albalat as Case Study
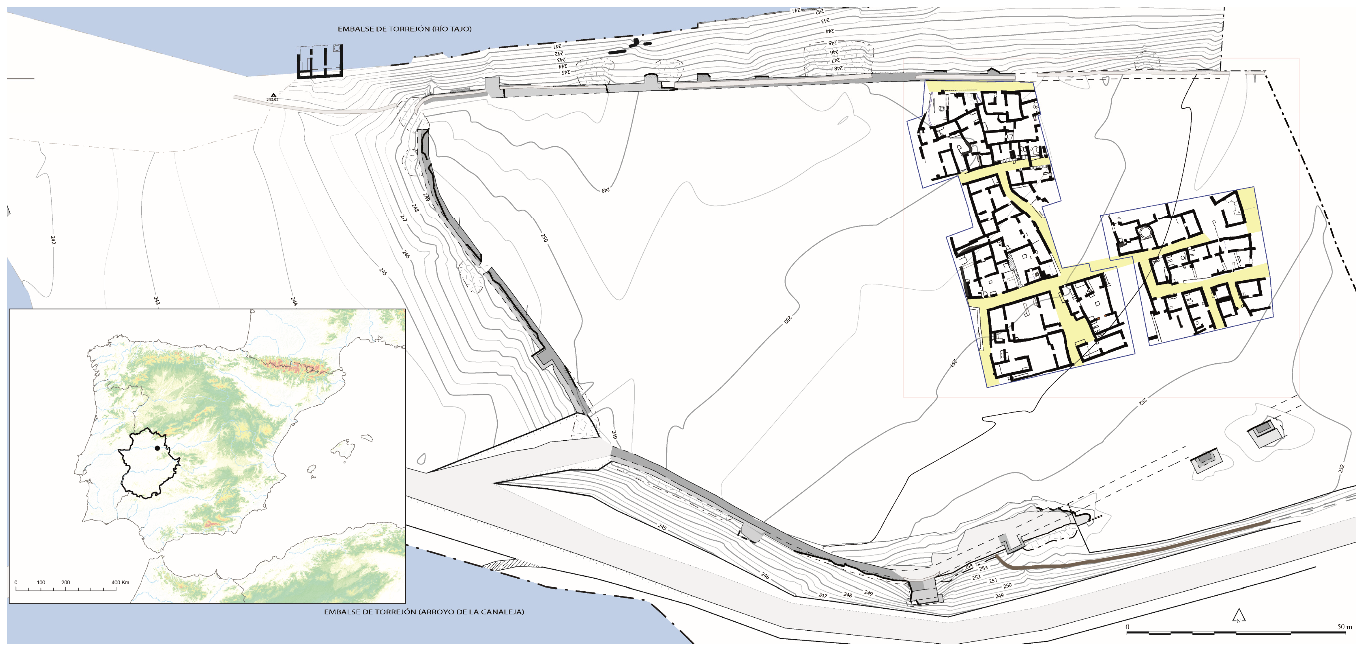
Today, the ruins of Albalat stand several kilometers from the nearest populated area, solitary on the banks of a small valley in the central section of the Tagus River (Figure 1). This initial impression of isolation can be misleading. Its town walls, built at the end of a small river terrace overlooking the river, stand as a testament to its period of splendor and its prominent role in controlling the communication route. In fact, Albalat was located at one of the few points where the Tagus River could be forded during medieval times. This strategic location, as a crossing point on the ancient route linking Mérida and Toledo, gives meaning to its full toponym, Majāḍat al-Balāṭ or “the ford of the road”. This significance may also explain why it was mentioned alongside important cities such as Toledo and Talavera in the treatise of the eastern geographer Ibn Ḥawqal, written in the mid-10th century (Ibn Ḥawqal 1971, p. 15; Al-Balāṭ 2017, pp. 15–19).
Figure 1.
Schematic plan of the archaeological remains of Albalat (2023 campaign status, Albalat Project).
Despite its material and toponymic imprint on the landscape, little was known about the details of its occupation. Albalat was seen as just another fortress among the many castles and urban walls that can be seen in Extremadura. Before the first excavations in 2009, the only sources of information about its history came from medieval, Arabic, and Latin texts. These texts offered complementary, yet limited, information on geographical routes and military events which must be analyzed within their specific writing contexts (Gilotte 2020a). It was inferred that Albalat gained significant strategic importance when the area became a frontier with the Christian kingdoms in the late 11th century, remaining under Muslim control until its destruction in 1142 by militias from Salamanca and Ávila. Additionally, medieval documents from the royal chancery in the second half of the 12th century gave rise to interpretations that archaeology has recently called into question, currently ruling out the existence of a stable settlement later on, whether Christian or Almohad (Gilotte 2020b, p. 214).
However, details of its role in the exploitation and defense of a region turned frontier with the Christian kingdoms from the late 11th century remained unknown, as did its type of occupation, its integration in trade networks, and even the exact conditions and timeline of its abandonment. From a purely scientific perspective, the uncertainties surrounding this site prompted a desire to resolve these historical issues through an archaeological approach. To deepen the analysis of this settlement, an interdisciplinary approach and an international team were embraced from the outset. Most of the work has focused within the walled area, as it is the most accessible zone and the one with the greatest uncertainties (Gilotte and Moreno Paredes 2022, p. 206). In the absence of visible evidence (such as structures or materials), non-intrusive methods were chosen, based on electrical and magnetic geophysical surveys. Although the terrain was not ideal for these techniques, the results suggested the presence of structures buried at a shallow depth. The next step was to verify these initial data with an archaeological exploration, beginning with a small test trench and taking advantage of a prolonged drop in the reservoir level to explore a building that turned out to be a public bath or ḥammām. The highly positive results from the initial geophysical survey have encouraged an expansion in excavation area, growing from 12 square meters to about 2500 square meters today—covering roughly 20% of the area within the walls—with work advancing one month each year.
A key initial result was the contextualization of the findings—that is, understanding the circumstances surrounding the site’s abandonment and the chronology of this event. Albalat was destroyed and abandoned very quickly following a Christian attack in the mid-12th century. Contrary to what some texts suggested, it was not reoccupied in any stable way afterward. The abundance of projectile weapons, with around 400 arrowheads and crossbow bolts scattered across floors or trapped in collapsed roofs, along with evidence of looting and deliberate fires, rules out the possibility of a simple accident, such as a naturally spreading fire. These findings suggest a deliberate destruction strategy aimed at preventing reoccupation of the site after its capture.
This violent end caused roofs to collapse, trapping numerous objects underneath—such as ceramics, metal items, and glass and carved bone artifacts such as small bone plaques from caskets—abandoned by their owners and left behind by the attackers. Conditions created by the fires also helped preserve an abundance of organic remains, including fragments of plant-fiber mats that covered earthen floors, and pieces of cork and seeds, which offer insights into environmental exploitation and, more broadly, environmental conditions. All of these artifacts and ecofacts left behind indicate a hasty flight. Among them, a necklace composed of twenty-two spherical copper-coated beads and four glass-paste beads, found lying on the floor of a courtyard, stands out (Labarta et al. 2023; Orives 2022, p. 113).
A small hoard of eight dinars, minted between 1110 and 1119 in Málaga, Murcia, and Valencia, was also discovered, providing evidence of the circulation of currency from southern and southeastern al-Andalus (Canto García 2017). This mid-12th century time frame, at the end of the Almoravid period, is confirmed by stratigraphic, ceramic, and numismatic data (including about a dozen qirats and a coin from the late reign of Alfonso VII), as well as by radiocarbon datings2 (Figure 2). All this sheds light on the harsher realities of life in this borderland, where warfare—pursued for both economic gain and political repression—played a significant role. The findings confirm the militarized nature of the final phase of occupation in this fortified settlement and indicate that its abrupt abandonment coincided with the retraction of al-Andalus’s borders as the Almoravid empire waned in the mid-12th century, a period for which clear material evidence remains scarce. These discoveries also reinforce the account of King Alfonso VII, who, within a propagandistic context, mentions the attack on Albalat in 1142 (Gilotte 2019).
Figure 2.
(a) Dinar de ‘Alī ibn Yūsuf minted in Murcia in 512 H/1118-1119 AD, Ø 240 mm (2023 excavation campaign, after a preliminary cleaning by A. Llamas Herrero); (b) qirāṭ de ‘Alī ibn Yūsuf, Ø 14 mm, restored at the Autonomous University of Madrid (Al-Balāṭ 2017, pp. 60–61, cat. 9). Not scaled.
Another surprise revealed by the excavations was the discovery of a dense urban layout, the result of an urban planning effort (Figure 1). This finding is notable, as such a complex structure was not necessarily expected in a settlement of this type: that is, a small area—barely 2 hectares within the walls—with a strong military function in its last occupation phase. Instead of barracks, large clusters of buildings have been documented, arranged around an orthogonal street network featuring a small square, narrow alleys, and main streets. Interestingly, these urban axes are not parallel to the enclosure walls; only the buildings adjacent to the northern wall align with the defensive structure, while the others deviate toward the southeast, perhaps influenced by the presence of a not-yet-located mosque. This urban layout reflects a relatively well-preserved, “fossilized” state from the final phase of stable occupation. So far, more than 20 distinct building complexes have been identified. Many of these structures are residences that follow the traditional courtyard house layout common in al-Andalus since the 10th century (Clapés Salmoral 2019; Camacho Cruz and Valera Pérez 2019), with clearly defined spaces for cooking and main rooms. Some are noteworthy for their large dimensions, specific installations like latrines, or functional and decorative elements such as benches or arches. The relative richness of the household items found also suggests differences in the social and economic status of the inhabitants. In addition, designated work areas have been identified, including a bread oven (furn), a workshop for bone and deer antler material, and three metallurgical workshops grouped within a specialized sector (Figure 3). These various artisanal activities, with apparent commercial aspects, reflect a diverse urbanized landscape.
Figure 3.
View of one of the blacksmith workshops adjacent to a large courtyard, 2015.
In general, various interpretations are applied to the remains, both movable and immovable,3 to inform multiple lines of research, ranging from construction techniques (Gilotte 2020b) and domestic activities (Moreno Narganes 2019), including recreational pursuits (Buttard 2021, 2023) to food practices and natural resource management (Ros et al. 2018, 2024; Garrido García and Gilotte 2021).
3. Ceramics and Everyday Artifacts
The furnishings left behind by residents and not looted by attackers offer exceptional insight into daily life in the first half of the 12th century—a period during which, as previously mentioned, well-contextualized artifacts are rarely abundant. While some unique items are among these findings, such as a small blue glass jug (Al-Balāṭ 2017, p. 116) or a necklace with several copper beads decorated with filigree (Labarta et al. 2023) (Figure 4), pottery remains are undoubtedly the most prevalent material. This abundance serves as a key for exploring the “identity” of such productions during the Almoravid period.
Figure 4.
(a) Small blue glass jug restored at the Higher Schools of Conservation and Restoration of Cultural Assets in Madrid; (b) necklace with copper alloy and glass beads restored by B. Sanmartín Freitas with funding from the Casa de Velázquez. To assemble the necklace, transparent glass beads were placed between the different elements to minimize friction as much as possible.
The challenge of characterizing ceramics from this period in the Iberian Peninsula had already been highlighted by numerous researchers (Rosselló Bordoy 2009, p. 706). Previously, this difficulty was often attributed to the lack of stratigraphic sequences that clearly date to this era. Until the end of the 20th century, the relative dating and the identification of coherent ceramic sets proved complicated, with only a few well-documented cases (e.g., Torres 1988; Jiménez Castillo and Navarro Palazón 1997; Rodríguez Aguilera 1999; Valdés et al. 2001). While the preceding Taifa period and the subsequent Almohad period are relatively well-documented in al-Andalus (e.g., for the Taifa era, Navarro Palazón and Robles Fernández 1996; Izquierdo Benito 1999; Beltrán Pinzón 2005; Cavilla Sánchez-Molero 2008; Gómez-Martínez 2014a, 2014b, 2018; Azuar Ruíz 2018; Gutiérrez González and Mendívil Uceda 2023; Jiménez Castillo et al. 2024; e.g., for the Almohade period, Torres 1988; Motos Guirao 2003; Álvarez García 2003; Cavilla Sánchez-Molero 2005, 2007; Navarro Palazón and Jiménez Castillo 2007; Salinas Pleguezuelo and Méndez Santiesteban 2008; Pascual Pacheco et al. 2009; Vera Reina and López Torres 2009; Carmona Ávila et al. 2009; Fuertes Santos 2009, 2010; Gómez-Martínez et al. 2010; García Villanueva and Pascual Pacheco 2018; Retuerce Velasco 1998, 2024), the pre-Almohad ceramics materials, which fall between these two phases, have been scarcely defined in the academic literature.
As with the academic study of Almohad art and architecture—whose innovative aspects are contrasted with techniques already developed by the Almoravids (Marcos Cobaleda and Villalba Sola 2019, p. 35)—these interactions are seen to also occur in ceramics. However, these characteristics are not easy to recognize. As recent authors have stated (Pérez Asensio and Jiménez Castillo 2018, p. 161), the absence of specific attributes typical of the full Almohad period, such as certain stamped green-glazed large open bowls (ataifores), ribbed dishes, or sgraffito decoration, has complicated the clear attribution of ceramic materials to Almoravid contexts. Nonetheless, from the early 21st century, new publications have emerged on the Almoravid world (e.g., Marcos Cobaleda 2018a; Azuar Ruíz 2020), including academic works presenting new ceramic materials from Almoravid sites of Iberian Peninsula and Magreb (e.g., Gomes 2003; Zapata Parra and Muñoz Sandoval 2006; Bugalhão et al. 2008; Catarino et al. 2012; Pérez Asensio and Estall i Poles 2012; Gómez-Martínez 2014a; Gómez-Martínez et al. 2016; García Porras 2016; Pérez Asensio and Jiménez Castillo 2018; Fili et al. 2020; Iñíguez Sánchez 2024; González Ballesteros and Muñoz Espinosa 2024; Simón García et al. 2024; Gil and Santiago 2024; Salinas Pleguezuelo et al. 2024; Serrat 2024; Pérez Martín and Salinas Pleguezuelo 2025).
However, it is important to note that most of the studied cases are situated in urban or palatial settings, with few examples from settlements in frontier areas far from major urban centers. Additionally, the few studies published in the Extremadura region focus primarily on the Almohad phases of sites (Vargas Calderón 2021; Sanabria Murillo 2022). For this reason, the location of the small Albalat enclave may provide valuable insights into the development of pre-Almohad ceramics within a strategic urban frontier setting, particularly significant due to its control over a crossing point on the Tagus River. Although Albalat is a multi-phase site, with the earliest documented layers dating back to the ninth century and showing clear stratification process, it stands out as one of the few excavated sites with well-defined and securely dated Almoravid contexts. Many of these, unlike other sites where abandonment occurred gradually, are marked by destruction, looting, and fires indicative of a wartime scenario (Al-Balāṭ 2017, p. 20).
- a.
- Research Scope
In the first studies of pottery assemblages from the Albalat site (Gilotte et al. 2016; Al-Balāṭ 2017; Cáceres Gutiérrez and Gilotte 2021), a smooth transition in ceramic forms and techniques was noted, rather than a clear break with preceding or following periods. This continuity allowed for the survival of certain shapes and techniques originating in the early 11th century, as well as the introduction of forms that would become widespread in the Almohad period. Among these forms, some—such as the high-rimmed, bichrome ataifores with two handles—show direct parallels with Taifa-period ceramics (Al-Balāṭ 2017, pp. 56–57). This is not surprising, given that the site contains layers from earlier phases in addition to the Almoravid period. In fact, several residual elements have also been found, including green and manganese-decorated ataifores, fragments of full or partial cuerda seca, and even gilded ware with metallic luster (Gilotte et al. 2016, p. 775) aligned with early gilded ware productions from the Iberian Peninsula, such as those discovered in palace levels at Onda (Pérez Asensio and Estall i Poles 2012, p. 201).
Since this study aims to explore the impact of the Almoravid period on the material culture of the Iberian Peninsula, with a focus on the Albalat site, we will specifically examine certain ceramic items, such as jars, pitchers, large open bowls (ataifores), jugs, storage jars, and lamps, found in 12th-century contexts. Although these forms may initially resemble early 11th-century items, certain morphological details place them in later contexts. These forms and techniques would ultimately serve as precursors to the distinctive ceramic repertoire of the Almohad period.
- b.
- Pottery Assemblages at Albalat
In Albalat’s House No. 1 (Gilotte et al. 2016, p. 764), artifacts such as jars and pitchers were found that, while similar to ceramics from the Taifa period, exhibit more angular profiles with multiple moldings, though less pronounced than those that would appear in the following century. Additionally, types and decorations were identified that foreshadow styles that would become widely popular in the second half of the 12th century. Examples include vessels with obliquely sectioned foot rings, jugs with long wide necks featuring stepped moldings, and incised decorations beneath greenish-yellow glazes. These characteristics are also observed in the remains of a cooking area located within a wartime context. In this space, named Kitchen S3-B8, a complete ceramic assemblage was found preserved in situ within a burnt level of Building C12 (Cáceres Gutiérrez and Gilotte 2021).
This assemblage features several distinctive characteristics, such as the use of double molding above the foot-ring, particularly in the ataifores—a trait that appears to have been widespread in the Garb and central al-Andalus regions. The collection includes three types of ataifores in varying shapes and sizes, two of which are glazed in yellow with manganese interior decorations (Figure 5a–c). These ataifores exhibit both older, 11th-century features, like rolled rims, softly carinated walls, flat or simply footed bases, and horizontal handles, alongside more innovative forms with sharper carination and more frequent use of the double molding above the foot-ring, which would later become common in Almohad contexts (Cáceres Gutiérrez and Gilotte 2021, p. 506). Some ataifores from the site, with honey-colored glaze on the exterior and green glaze inside, may reflect styles from the Almoravid period (Melero García 2012, p. 123). Other ataifores, such as those with broken carination; low, archaic-style foot rings; green glazes; and simple square stamps reminiscent of Taifa-period designs, prefigure those typically associated with the Almohad period (Salado Escaño and Arancibia Román 2003, p. 89, pl. 4, fig. 9; Al-Balāṭ 2017, p. 86).
Figure 5.
(a) Honey-glazed large open bowl (ataifor) with pronounced carination and double molding above the foot-ring. (b) Ataifor with softly carinated walls. (c) Unglazed open bowl. (d) Jug with stepped moldings. (e) Flask with decorative depressions on the lower body. (f) Green-glazed lamp in Taifa-period style. (g) Unglazed lamp in Almoravid-period style. (h) Cooking pot with white painted decoration.
The originality of some everyday items such as small jugs is also noteworthy. These jugs feature distinctive characteristics—not seen during the Taifa period—including a straight, inwardly slanted rim, a cylindrical neck, a marked carination, and a somewhat flattened, pear-shaped body with stepped moldings (Figure 5d), and in some cases, a decorative nipple at the top (Gilotte et al. 2016, p. 768). These jugs often serve as precursors to larger versions found in 12th-century Córdoba (Fuertes Santos 2010, pp. 63–64).
Other examples of items that straddle two periods are found among the flasks. One notable flask features a globular body; a narrow, straight neck with a handle; and decorative depressions on the lower body (Figure 5e). Dated to the first half of the 12th century, the closest parallels of this ceramic form with this type of decoration are found in the 10–11th centuries in Ciudad de Vascos (Toledo) (Izquierdo Benito 1999, p. 116) and in the 11–12th centuries in Córdoba (Salinas Pleguezuelo 2012, p. 368, fig. 148, pl. 17.4–6).
For lighting-related items (Gilotte et al. 2024), similar patterns of continuity and innovation are observed (Figure 5f,g). In Kitchen B8, small ataifores and spouted oil lamps with lenticular bowls and faceted spouts—parallels to Taifa-period styles—coexist with more typically pre-Almohad items such as small jugs and storage jars (Cáceres Gutiérrez and Gilotte 2021). By the early 12th century, these would be replaced by Almoravid lamps with characteristically drop-shaped reservoirs and sharply angled three-faceted spouts (Zozaya 2007). This later type of lamp has also been found in the dwellings at the site (Al-Balāṭ 2017, p. 77, cat. 24).
In terms of the decorations present on ceramic material, we can observe certain continuity in the use of white paint on pitchers and cooking pots (Figure 5h) (Cáceres Gutiérrez and Gilotte 2021, p. 505). This feature is a consistent characteristic of the Western region of Al-Andalus productions, as can be seen in the Lisbon and Badajoz assemblages, as well as in other sites in the Extremadura region (Valdés et al. 2001, p. 392, fig. 4; Gomes et al. 2001; Gilotte 2011). In contrast, it is not commonly found in the Toledo area. A pot was also found in Albalat with 12th-century parallels in Mértola, Portugal (Gómez-Martínez et al. 2016, p. 24, figs. 4 and 37, no. 9), and in Cercadilla (Córdoba) (Fuertes Santos 2010, fig. 45). This form is known to have appeared in Portugal associated with white-painted decoration (Gómez-Martínez 2014a, p. 107 and fig. 5.2.1.1.4C).
Another distinctive feature of our ceramic assemblage is the use of innovative techniques and plastic decorations (Cáceres Gutiérrez et al. 2021). Particularly significant is the appearance of finger-impressed cordons, placed horizontally on the neck or around the body, often alternating with wavy cordons, and, most prominently, small knobs (mamelons) that may or may not be paired with combed decorations, suggesting local production—possibly from specific workshops that supply the site or a wider area. Other decorations include braided horizontal cordons surrounded by rows of knobs, which are found on small storage jars and large containers (Gilotte et al. 2021b).
As with earlier ceramic forms, some jars retain archaic features such as small, fin-like handles and short necks. These coexist with large containers in the same spaces, featuring inverted truncated conical necks and bifid rims (Cáceres Gutiérrez et al. 2016, fig. 1). One jar, which features architectural decorations of arches carved with a knife, is an early example of the large Almohad jars stamped with architectural motifs of arcades (Gilotte et al. 2021b). In other cases, plastic motifs like cordons and knobs frame graffiti with the name of a presumed owner (Figure 6) (Gilotte et al. 2023, p. 5, fig. 4). Actually, particularly characteristic of Albalat is the presence of several jars with incised inscriptions near the top of the body, made before firing —that is, inscribed at the potter’s workshop itself. Most inscriptions are personal names, likely marking ownership or dedication, possibly connected to the individuals who commissioned them or to record a commercial transaction (Al-Balāṭ 2017, pp. 62–64).
Figure 6.
Large storage jar with molded decorations, an incised decorative (?) mark, and the inscribed name Ab[ū] ‘Abd al-Malik Ibn Muḥammad indicated by the arrow (not to scale; plaster replica by A. Llamas Herrero; translation reviewed by Ma. Antonia Martínez Núñez).
- c.
- Productions and Supply Networks
Although distinctly imported pieces are present, the prevalence of common ceramics in this setting suggests that much of the production may have been local or sourced from the surrounding region. However, the diversity of clay types (currently under study)4 and the overall quality of the pieces indicate a more complex supply system, likely involving multiple sources, including both local and regional markets. The diversity in documented production prompts a reconsideration of the role of imported wares, particularly the more luxurious items, tempering the notion that Albalat was isolated due to its frontier location.
Furthermore, Albalat likely experienced a brief period of Christian control before returning to Andalusi territory in the early decades of the 12th century. This would explain the presence of a few handmade or slow-wheel ceramic pieces that do not belong to the typical Andalusian repertoire but instead resemble forms from northern Spain, such as burnished pots with “S” profiles or small jars with globular bodies and elongated necks (Al-Balāṭ 2017, pp. 100 and 110). Recent excavations have uncovered more of these roughly made pieces, with grayish clay, handles marked with incisions or impressions, and some showing burnishing. These finds are currently under study, and their detailed analysis may provide insights into the everyday objects related to Christian life during this largely unknown phase (Figure 7).
Figure 7.
Examples of Christian or Christian-influenced ceramics: (a) small storage jar, handcrafted or made on a slow wheel; (b) cooking pot with burnished lines; (c) two-handled cooking pot with traces of burnishing on the lower body.
Additionally, the transition between the Almoravid and Almohad periods can also be observed in other household items, such as small chests decorated with bone plaques, which represent a missing link in the evolution of Andalusian bonework.
- d.
- Beyond Ceramics: The Case of Worked Bone and Antler
The presence of artifacts serving various functions made from hard animal materials (knife handles, distaffs, spindle whorls, chess pieces, etc. [Figure 8]),5 as well as several bone and antler fragments in the process of being worked (Garrido García and Gilotte 2021 and unpublished), provides evidence that this craft was well established in the settlement during its final phase. In fact, at least one specialized workshop has been documented at the front of a building (Gilotte et al. 2021a), while other small concentrations of materials have been found in domestic settings, suggesting the possibility that this artisanal activity was practiced across different areas of the settlement.
Figure 8.
Samples of bone and deer antler artifacts from Albalat: (a) distaff; (b) spindle whorl; (c) crossbow nut; (d) button; (e) box overlay plaque; (f) faceted fragment with incised decoration; (g) handle; (h) detail of a decorated knife handle.
Among these crafted remains, a set of small bone plaques stands out, along with two large, gilded copper fittings found flattened on the earthen floor of a room (Al-Balāṭ 2017, pp. 117–20). The most complete set facilitated the identification of a trapezoidal panel, likely the side of a lid, measuring approximately 21 cm in length by 12 cm in height (Figure 9a). The bone elements, beveled at the edges, formed a cross-shaped motif centered around a gilded diamond. At the bottom, a border alternated between tongue-shaped and oval pieces. The second set, more deteriorated, featured the same composition and dimensions, revealing a well-preserved lower row with traces of gilding. The third group corresponded to the front (or back) face of the lid, also trapezoidal (34 × 12 cm), with the same characteristic beveled edges. These elements reliably allow for the reconstruction of a five-panel coffin-style lid (four side panels and a top panel, which is missing), associated with a rectangular box body (Figure 9b).
Figure 9.
(a) Small bone plaques from the remains of a trapezoidal casket panel, found in situ on compacted earthern floor of a room; (b) reconstruction of the five-panel coffin-style casket lid exhibited in the Museum of Cáceres, 2017. Restored and reassembled by students from the Higher School of Conservation and Restoration of Cultural Assets in Madrid, under the supervision of Ángel Gea García.
Rectangular caskets with truncated pyramidal lids became common in al-Andalus starting in the 10th century and quickly spread to the Christian world. These caskets typically included hinges on the back to allow opening, a front fitting extending from the base to the front panel, and on occasions, small handles or grips for easier handling. The structure of this object, probably made from pine wood (Pinus sp.),6 was covered with bone plaques (0.1 cm thick), likely affixed with organic adhesive. These small plaques may have been embedded into recessed areas in the wood to reinforce the joints and create a smooth surface. The decorative pattern of the plaques found in situ features a geometric interlace running along all four sides, alternating elongated hexagons (across two sides), and diamonds, with a rotated square where the vertices meet. The hexagons contain pairs of beveled plaques at their centers, while the rhomboid and oval elements retain a partial gilding that has survived well despite burial conditions. However, certain limitations remain in the reconstruction: it has not been possible to determine the placement of small, trilobate-ended cruciform pieces (0.7 × 0.8 cm) found in the third set, nor to link fragments of a gilded border with incised patterns, whose style and thickness do not align with the other elements.
Moreover, there is a notable resemblance in the formal composition of this casket with another now-lost piece from the Santa María de Huerta Monastery in Soria (Galán y Galindo 2005, pp. 122–23; Silva Santa-Cruz 2013, p. 400 and fig. 247), although they differ in material and period: the latter was made of painted ivory and dates to the Nasrid period. Although a direct connection is unlikely due to the time gap, both may belong to a tradition of geometric decoration in the Islamic West, as seen, for example, in the screens of the Córdoba Mosque (Brisch 1966) and in the Almoravid minbar of the Kutubīyya Mosque (Sauvaget 1949; Bloom et al. 1998), where this cross-band pattern reached a high degree of refinement. Similar details, like the hexagonal border, can be found on the minbar of the Qarawiyyīn Mosque, dated to 1144 (Lintz et al. 2014, pp. 198–99). Thus, the Albalat casket could be situated within these artistic trends of the early 12th century, forming a link between luxury objects and popular items. Bone, a low-cost and readily available material, offered an affordable alternative to ivory caskets (Silva Santa-Cruz 2013, p. 14). However, even the minimalist use of gilding adds a touch of prestige.
Most caskets found in archaeological excavations are crafted from bone, such as those from Liétor dating to the late 10th-early 11th century (Navarro Palazón and Robles Fernández 1996), Mértola from the 12th century (Lopes et al. 2012), and others from Alarcos, Albacete, and Tavira, from the 13th century (Azuar Ruíz 1985; Torres and Macias 1998). The few examples that allow for a reconstruction of the decorative scheme show a complete covering of the wooden core, unlike the partial covering in Albalat, where the use of inlaid plaques may represent a unique technique on the Peninsula. Although details on the final finish are lacking, and it remains uncertain whether it included polychromy, as with an Almohad casket from San Isidoro de León (Galán y Galindo 2005, p. 468), the Albalat piece stands as a unique example of an as-yet-unknown typology, likely attributable to the Almoravid period—a time for which no other caskets have been documented in the Peninsula.
4. Conclusions
The coexistence of both archaic and modern characteristics in the Albalat assemblage—where 11th-century forms and techniques persist alongside emerging styles that would later become widespread during the Almohad period—reflects a transitional stage without distinct breaks in the ceramic record from the late 11th century. By the early 12th century, we find pieces that, in terms of morphology, span both periods. Unlike the clear stylistic shifts seen in the Taifa and Almohad periods, these changes in the ceramic collection involve the gradual adoption of new forms and techniques alongside the continued use of older ones. At the same time, new prototypes emerge that represent either innovations or, in some cases, the spread of existing forms (such as angular carination and moldings, the continued use of double molding above the foot-ring, and green glazing), leading to the coexistence of characteristics from both periods.
While imported forms (cuerda seca ceramics, gilded ware) are easier to distinguish due to their unique glazes and well-prepared calcareous clay bodies, the same is not true for more common types made of iron-rich clay. This makes it difficult to clearly identify a pre-Almohad context, as archaic forms coexist with early Almohad prototypes. Additionally, the influence of local or regional production centers creates assemblages with local morphologies, reflecting only subtle changes in ceramic materials often specific to certain production sites. Currently, the site employs an interdisciplinary approach, combining formal analysis with archaeometric research to better understand the distribution and origin of these materials, along with faunal and paleobotanical studies to gain insights into the activities that took place within these domestic spaces and better understand the development of daily life.
For a comprehensive understanding, it is essential to expand the analysis beyond ceramics to include metal, bone, stone, and glass artifacts, which reflect a wide typological and qualitative range of material culture in a context that was neither royal nor aristocratic. Fishery-related objects may also provide information on the exploitation of natural resources, particularly the local fishing economy, with ceramic remains shedding light on these practices (Al-Balāṭ 2017, pp. 156 and 175; Gilotte and Cáceres Gutiérrez 2024).
These objects, which survived looting and destruction, indicate a certain level of wealth, suggesting that Albalat was well-integrated into a commercial exchange network despite its frontier location, rather than being solely dependent on parallel economies such as the raids mentioned in historical sources.
Author Contributions
Conceptualization, methodology, formal analysis, investigation, writing—original draft preparation, supervision: S.G. and Y.C.G. Funding acquisition: S.G. All authors have read and agreed to the published version of the manuscript.
Funding
The archaeological data on Albalat was obtained as part of The Albalat Archaeological Program currently supported by the Ciham-UMR 5648, the Casa de Velázquez, the French Ministry of European and Foreign Affairs, the local council of Romangordo, the Nuclear Power Plant of Almaraz and the Association Madinat Albalat, with the authorization of the General Directorate of Cultural Heritage of Extremadura.
Data Availability Statement
Part of the datasets generated by the Archaeological Project are available on the HumaNum open-access repository (https://www.nakala.fr/search/?q=keyword:%22Albalat%22, accessed on 25 February 2025), the digital thesaurus (https://thesaurus.mom.fr/, accessed on 25 February 2025), and 3D models on https://sketchfab.com/albalat, accessed on 25 February 2025. These datasets are currently being deposited as part of an open data initiative.
Acknowledgments
Ceramic drawings by Y. Cáceres Gutiérrez (Figure 5a,d,e and Figure 7a,b), Paula Garrido Amorós (Figure 5g), Cristina I. Mena Méndez (Figure 5b,c,f,h), and J.-C. Tréglia (Figure 6 and Figure 7c), and CAD by S. Gilotte (Figure 5g and Figure 7a), Cristina I. Mena Méndez (Figure 7f), J.-C. Tréglia (Figure 6 and Figure 7c), and C. Velien (Figure 5e and Figure 7b). The authors would also like to thank Anna-M. Llambrich Howard as well as the editor for reviewing the English translation.
Conflicts of Interest
The authors declare no conflicts of interest.
Notes
| 1 | An overview in https://www.britannica.com/topic/Almoravids#ref83234 (accessed on 28 October 2024) and (Norris 1993, pp. 583–89). |
| 2 | Most of the 14C dating analyses conducted on various contexts associated with the last occupation phase (15 in total plus additional ones from older levels)—using charcoal, seeds, or, in one case, deer antlers—, indicate a BP date range of approximately 945–1010 ± 30 BP. In these cases, calibrated intervals range between AD 991–1166, such as S4-I/6188: AD 974–1150 (Beta–552449), S3-P/5395: AD 991–1154 (LY-18241), S3-C3/5026 AD 993–1153 (LY-16299) or S4-E2/6543: AD 1022–1159 (LY-19413 [GrM]). Obviously, these dates need to be compared with other data, especially in cases of discrepancies. In the case of building C-1, the dating of a burnt framework provided an interval of AD 887–1017 (Lyon-20332 [GrM]). However, the coins found in it—including eight dinars dated to 1118–1119 and a qirat discovered in the latrine minted between 1128 and 1138—indicate that the 14C dating is older than the last occupation phase. In this specific case, the possibility of an old wood effect or material reuse must be considered. |
| 3 | The remains are being conserved through conservation campaigns with the participation of students from the Higher Schools of Conservation and Restoration of Cultural Assets from Madrid and Pontevedra. |
| 4 | By Catherine Richarté (Inrap and Ciham UMR5648) and Claudio Capelli (university of Genoa—DISTAV), through to petrographic analysis. |
| 5 | By Some 3D artifacts models available at https://sketchfab.com/albalat (accessed on 28 October 2024); some photos in the freely accessible public repository https://www.nakala.fr/search/?q=keyword:%22Albalat%22 (accessed on 28 October 2024). |
| 6 | Charcoal remains associated with these bone plaques were studied by Mónica Ruiz Alonso, CCHS-CSIC. |
References
- Al-Balāṭ. Vida y Guerra en La frontera de Al-Andalus. 2017. Sophie, Gilotte, and Yasmina Cáceres Gutiérrez, eds. Cáceres: Diputación de Cáceres-Junta de Extremadura. Available online: https://shs.hal.science/halshs-01643193/file/catalogoexpo_ALBALAT_red.pdf (accessed on 28 October 2024).
- Almagro, Antonio. 2020. Arquitectura religiosa almorávide. In Arqueología de Al-Andalus Almorávide. Edited by Rafael Azuar Ruíz. Alicante: MARQ, pp. 163–90. Available online: https://digital.csic.es/bitstream/10261/223019/3/almagro_2020ArqRAlmoravide.pdf (accessed on 28 October 2024).
- Azuar Ruíz, Rafael. 1985. Castillo de la Torre Grossa (Jijona). Alicante: Diputación de Alicante-Museo Arqueológico Provincial. Available online: https://www.marqalicante.com/contenido/genericas/torregrossa.pdf (accessed on 28 October 2024).
- Azuar Ruíz, Rafael. 2018. Les produccions ceràmiques de safes i platets a la Valéncia d’època taifa (segle XI). In L’Argila de la Mitja Lluna. La Cerámica Islámica a la Ciutat de València. 35 Anys D’arqueologia Urbana. Valencia: Museu d’Història de València, Ajuntament de València, pp. 121–47. [Google Scholar]
- Azuar Ruíz, Rafael, ed. 2020. Bronces andalusíes de época almorávide. In Arqueología de Al-Andalus Almorávide. Alicante: MARQ, pp. 139–59. [Google Scholar]
- Álvarez García, José Javier. 2003. Cerámica almohade en la ciudad de Granada procedente de la excavación del Palacio del Almirante de Aragón. In Cerámicas Islámicas y Cristianas a Finales de la Edad Media. Influencias e Intercambios. Granada: Museo de Ceuta, pp. 141–67. [Google Scholar]
- Beltrán Pinzón, José Manuel. 2005. Registros cerámicos de época taifa en Madina Labla (Niebla, Huelva): Un acercamiento tipológico. Huelva Arqueológica 12: 53–76. Available online: https://www.uhu.es/publicaciones/ojs/index.php/huelvahistoria/article/view/943 (accessed on 28 October 2024).
- Benito de los Mozos, Federico. 2020. La plata almorávide y postalmorávide: El quirate. Manquso 7, Monographic issue. [Google Scholar]
- Bennison, Amira K. 2016. The Almoravid and Almohad Empires. Edinburgh: Edinburgh University Press. [Google Scholar]
- Bloom, Jonathan, Ahmed Toufiq, Stefano Carboni, Jack Soultanian, Antoine M. Wilmering, Mark D. Minor, Andrew Zawacki, and El Mostafa Hbibi. 1998. The Minbar from the Kutubiyya Mosque. New York: Metropolitan Museum of Art. Madrid: El Viso. Rabat: Ministry of Cultural Affairs Kingdom of Morocco. Available online: https://www.metmuseum.org/met-publications/the-minbar-from-the-kutubiyya-mosque (accessed on 25 February 2025).
- Brisch, Klaus. 1966. Die Fenstergitter und Verwandte Ornamente der Hauptmoschee von Córdoba: Eine Untersuchung zur Spanisch-islamischen Ornamentik. Berlin: De Gruyter. [Google Scholar]
- Bugalhão, Jacinta, Deolinda Folgado, Sofia Gomes, Maria João Sousa, Antónia Gonzalez Tinturé, Maria Isabel Dias, and Maria Isabel Prudêncio. 2008. La production céramique islamique à Lisbonne: Conclusions du projet de recherche POILIX. Paper presented at VIII Congreso Internacional de Cerámica Medieval en el Mediterráneo, Ciudad Real-Almagro, Spain, February 27–March 3; Ciudad Real-Almagro: Asociación Española de Arqueología Medieval, pp. 373–89. [Google Scholar]
- Buttard, Léa. 2021. Marcas gliptográficas en Albalat. Estado de la cuestión. Nuevas líneas de estudio de jóvenes investigadore en arqueología. In III Jornadas del Master en Arqueología. Granada: Universidad de Granada-Escuela Internacional de Posgrado, pp. 167–84. [Google Scholar]
- Buttard, Léa. 2023. Une historiographie des jeux de plateaux médiévaux, à partir du corpus d’Albalat (IXe–XIIIe siècles). L’Entre-Deux 20. Available online: https://www.lentre-deux.com/?b=288 (accessed on 28 October 2024).
- Camacho Cruz, Cristina, and Rafael Valera Pérez. 2019. Espacios domésticos en los arrabales occidentales de Qurṭuba: Tipos de viviendas, análisis y reconstrucción. Antiquitas 31: 59–92. [Google Scholar]
- Canto García, Alberto. 2017. Tesorillo de dinares. In Al-Balāṭ. Vida y Guerra en la Frontera de Al-Andalus. Edited by Gilotte Sophie and Yasmina Cáceres Gutiérrez. Cáceres: Diputación De Cáceres-Junta De Extremadura, pp. 204–6. [Google Scholar]
- Carmona Ávila, Rafael, Dolores Luna Osuna, and Mª. Ángeles Jiménez Higueras. 2009. Aproximación a la producción cerámica de un horno de barras de época almohade de los alfares de Madinat Baguh (Priego de Córdoba). In VIII Congreso Internacional de Cerámica Medieval en el Mediterráneo. Ciudad Real: Asociación Española de Arqueología Medieval, pp. 1041–49. [Google Scholar]
- Catarino, Elena, Sandra Cavaco, Jaquelina Covaneiro, Isabel Cristina Fernandes, Ana Gomes, Susana Gómez, Maria José Gonçalves, Mathieu Grangé, Isabel Inácio, Gonçalo Lopes, and et al. 2012. La céramique islamique du Ġarb al-Andalus: Contextes socio-territoriaux et distribution. In Atti del IX Congresso Internazionale sulla Ceramica Medievale nel Mediterraneo. Edited by Sauro Gelichi. Venezia: All’Insegna del Giglio, pp. 429–41. [Google Scholar]
- Cavilla Sánchez-Molero, Francisco. 2005. La Cerámica Almohade de la Isla de Cádiz (Ŷazīrat Qādis). Cádiz: Universidad de Cádiz. [Google Scholar]
- Cavilla Sánchez-Molero, Francisco. 2007. La cerámica almohade del suroeste peninsular: Producciones estandarizadas. In La Cerámica en Entornos Urbanos y Rurales en el Mediterráneo Medieval. Edited by Alberto García and Fernando Villada. Granada: Museo de Ceuta, pp. 403–56. [Google Scholar]
- Cavilla Sánchez-Molero, Francisco. 2008. Cerámicas musulmanas procedentes de la posada del Mesón: Aproximación a la cerámica de época Taifas de Cádiz. In Estudios Sobre Patrimonio, Cultura y Ciencia Medievales. Cadiz: Agrija Ediciones, vol. 9/10, pp. 55–84. [Google Scholar]
- Cáceres Gutiérrez, Yasmina, and Sophie Gilotte. 2021. Entre Fogones Almorávides: Un conjunto excepcional del s. XII. In Actas del VI Congreso de Arqueología Medieval (España-Portugal). Ciudad Real: Asociación Española de Arqueología Medieval, pp. 503–7. [Google Scholar]
- Cáceres Gutiérrez, Yasmina, Claudio Capelli, Nicolas Garnier, Sophie Gilotte, Jorge De Juan Ares, and Catherine Richarté. 2016. Les ḫâbiyat-s (jarres) d’Albalat (1ère m. XIIe siècle, Estrémadure). Vers une approche pluridisciplinaire. In Actes Du 1er Congrès International Thématique De L’AIECM3. Jarres et Grands Contenants Entre Moyen Âge et Epoque Moderne. Montpellier: AIECM3, pp. 311–17. [Google Scholar]
- Cáceres Gutiérrez, Yasmina, Sophie Gilotte, Catherine Richarté, and Jorge De Juan Ares. 2021. Les précurseurs des céramiques almohades. Décors estampés, impressions et motifs plastiques d’époque Almoravide à Albalat (Cáceres, Espagne). In 12th Congress Aiecm3 on Medieval & Modern Period Mediterranean Ceramics. Proceedings. Edited by Platón Petridis, Anastasia G. Yangaki, Nikos Liaros and Elli-Evangelia Bia. Athens: National Hellenic Research Foundation, National and Kapodistrian University of Athens, vol. 3, pp. 681–88. [Google Scholar]
- Clapés Salmoral, Rafael. 2019. La formación y evolución del paisaje suburbano en época islámica: Un ejemplo en el arrabal occidental de la capital omeya de al-Andalus (Córdoba). Arqueología y Territorio Medieval 26: 31–54. [Google Scholar] [CrossRef]
- Constable, Olivia R. 1994. Trade and Traders in Muslim Spain: The Commercial Realignment of the Iberian Peninsula, 900–1500. New York: Cambridge University Press. [Google Scholar]
- Cressier, Patrice. 2020. Arqueología del Magreb almorávide. Elementos de bibliografía. In Arqueología de Al-Andalus Almorávide. Edited by Rafael Azuar Ruíz. Alicante: MARQ, pp. 43–58. [Google Scholar]
- Cressier, Patrice, and Sophie Gilotte. Forthcoming. Pour une archéologie des Almoravides (Al-Andalus-Maghreb). In Renouveler Al-Andalus. Les frontières de Philippe Sénac. Edited by Carlos Laliéna and Sébastien Gasc. Toulouse: Presses Universitaires du Midi.
- El Khammar, Abdeltif. 2006. Le mobilier des mosquées médiévales du Maroc d’après les sources textuelles. Al-Andalus Magreb 13: 79–94. Available online: https://revistas.uca.es/index.php/aam/article/view/7614 (accessed on 28 October 2024).
- El Khammar, Abdeltif. 2018. Les mosquées du Maroc: Bilan et perspectives de recherches. In L’archéologie au Maroc Entre le Texte Historique et L’enquête de Terrain. Actes du premier Congrès National sur le Patrimoine Culturel Marocain. Edited by Mohamed Belatik, Alaoui Mohamed Kbiri, Samir Kafas, Ahmed Saleh Ettahiri and Abdellah Fili. Rabat: ALINSAP, pp. 172–87. [Google Scholar]
- Ettahiri, Ahmed S. 2014. À l’aube de la ville de Fès. Découvertes sous la mosquée al-quarawiyin. Dossiers d’Archéologie 365: 42–49. [Google Scholar]
- Ettahiri, Ahmed S., Abdallah Fili, and Jean-Pierre Van Staëvel. 2012. Nouvelles recherches archéologiques sur la période islamique au Maroc: Fès, Aghmat et Îgîlîz. In Villa 4. Histoire et Archéologie de l’Occident Musulman (VIIe-XVe Siècle): Al-Andalus, Maghreb, Sicile. Edited by Philippe Sénac. Toulouse: CNRS—Université Toulouse-Le Mirail, pp. 157–81. [Google Scholar]
- Fili, Abdallah, Ahmed S. Ettahiri, Jean-Pierre Van Staëvel, and Ihssane Serrat. 2020. Première approche typologique de la céramique protoalmohade d’Igīlīz (Maroc). Bulletin d’Archéologie Marocaine 25: 101–23. [Google Scholar]
- Fili, Abdallah, and Ihssane Serrat. 2020. Céramique médiévale de Fès. In Etudes et Travaux d’archeologie Marocaine. Kuala Lumpur: INSAP, vol. 12, pp. 193–217. [Google Scholar]
- Fili, Abdallah, Ronald Messier, and Chloé Capel. 2018. Aghmat, la découverte de la première capitale almoravide. In Le Patrimoine Culturel Marocain, la Croisée des chemins ed.; Paris: Ministère de la Culture et de la Communication, pp. 256–77. [Google Scholar]
- Fuertes Santos, María del Camino. 2009. El siglo XII en Cercadilla a través de los materiales cerámicos. Avance de resultados. In VIII Congreso Internacional de Cerámica Medieval en el Mediterráneo. Ciudad Real-Almagro: Asociación Española de Arqueología Medieval, pp. 327–37. [Google Scholar]
- Fuertes Santos, María del Camino. 2010. La Cerámica Medieval de Cercadilla, Córdoba. Decoración, tipo, función. Junta de Andalucía: Consejería de Cultura, pp. 63–64. [Google Scholar]
- Galán y Galindo, Ángel. 2005. Marfiles Medievales del Islam: Catálogo de Piezas. Córdoba: Cajasur. [Google Scholar]
- García Porras, Alberto. 2016. La producción de cerámica en Almería entre los siglos X y XII. In Cuando Almería era Almariyya: Mil Años en la Historia de un Reino. Edited by Lorenzo Cara. Almeria: Instituto de Estudios Almerienses, pp. 273–92. [Google Scholar]
- García Villanueva, María Isabel, and Josefa Pascual Pacheco. 2018. Ceràmica de l’etapa nord-africana a València. In L’argila de la Mitja Lluna: La Ceràmica Islàmica a la Ciutat de València: 35 Anys D’arqueologia Urbana. Valencia: Museu d’Història de València, pp. 195–232. [Google Scholar]
- Garrido García, José Antonio, and Sophie Gilotte. 2021. Albalat: Posibilidades y limitaciones de los análisis faunísticos para la caracterización de los últimos momentos de un asentamiento fronterizo andalusí. In L’alimentation en Méditerranée Occidentale aux Epoques Antique et Médiévale. Archéologie, Bioarchéologie et Histoire. Edited by Marianne Brisville, Audrey Renaud and Núria Rovira. BiAMA 29. Aix-en-Provence: Presses Universitaires de Provence, pp. 111–34. [Google Scholar]
- Gil, Rui Filipe, and Rafael Santiago. 2024. As cerâmicas almorávidas do Castelo de Sesimbra. Dinâmicas de poder e ocupação do território Gil. In Terra, Pedras e Cacos do Garb al-Andalus. Edited by Jacinta Bugalhão, Isabel Cristina Fernandes, Susana Gómez-Martínez, Helena Catarino, Sandra Cavaco, Jaquelina Covaneiro, Ana Sofia Gomes, Maria José Gonçalves, Isabel Inácio, Marco Liberato and et al. Trabalhos de Arqueologia 57. Lisboa: Património Cultural, I.P., pp. 193–204. [Google Scholar]
- Gilotte, Sophie. 2011. Aux Marges d’al-Andalus. Peuplement et Habitat en Estremadure Centre-Orientale (VIIIe–XIIIe siècles). coll. Humanoria 356. Helsinski: Academia Scientiarum Fennica. [Google Scholar]
- Gilotte, Sophie. 2019. Albalat (Prov. Cáceres): La dernière bataille. Traces archéologiques du siège de 1142. In Da Conquista De Lisboa À Conquista De Alcácer: Definição E Dinâmicas De Um Território De Fronteira. Edited by Isabel Cristina F. Fernandes and Maria João V. Branco. Palmela: Edições Colibri, pp. 81–110. [Google Scholar]
- Gilotte, Sophie. 2020a. ¿En La Mano De Dios? La cuestión del poder en una aglomeración de la frontera almorávide: Puntualizaciones arqueológicas desde Albalat (Cáceres). In Poder y Comunidades Campesinas en el Islam Occidental (Siglos XII–XV). Edited by Alberto García Porras and Adela Fábregas García. Granada: Universidad de Granada, pp. 171–98. Available online: https://shs.hal.science/halshs-02981042v1/document (accessed on 28 October 2024).
- Gilotte, Sophie. 2020b. Pinceladas sobre la arquitectura y el urbanismo de un pequeño centro urbano fronterizo en época almorávide. Albalat (Cáceres). In Arqueología de Al-Andalus Almorávide. Edited by Rafael Azuar Ruíz. Alicante: MARQ, pp. 211–35. [Google Scholar]
- Gilotte, Sophie, and Xoan Moreno Paredes. 2022. Albalat (Romangordo, Cáceres): Una década de trabajos en una fortificación almorávide del valle medio del río Tajo. In Actualidad de la Investigación Arqueológica en España IV (2021–2022). Conferencias Impartidas en el Museo Arqueológico Nacional; Madrid: Ministerio de Cultura y Deporte, pp. 201–20. Available online: https://www.man.es/man/dam/jcr:aeb8fd55-0c60-4362-be05-62ae8acca2b3/2022-aae-ciclo-iv.pdf (accessed on 28 October 2024).
- Gilotte, Sophie, and Yasmina Cáceres Gutiérrez. 2024. Las pesas de red cerámicas del siglo XII del yacimiento de Albalat (Cáceres). In XIII Congreso Internacional Sobre Cerámica Medieval y Moderna en el Mediterráneo. Edited by Alberto García, Miguel Busto, Laura Martín and María José Peregrina. Madrid: La Ergástula, pp. 141–44. [Google Scholar]
- Gilotte, Sophie, Léa Buttard, Yasmina Cáceres Gutiérrez, Alberto Llamas Herrero, and Alba González Gil. 2023. Albalat: Un édifice singulier du secteur nord. Bulletin Archéologique des Écoles Françaises à L’étranger [Online]. [Google Scholar] [CrossRef]
- Gilotte, Sophie, Pauline De Keukelaere, and José Antonio Garrido García. 2021a. Un taller de materia ósea en la frontera de Al-Andalus. In Actas del VI Congreso de Arqueología Medieval (España-Portugal). Edited by Manuel Retuerce Velasco. Ciudad Real: Asociación Española de Arqueología Medieval, pp. 373–80. [Google Scholar]
- Gilotte, Sophie, Yasmina Cáceres, Catherine Richarté, Nicolas Garnier, and Claudio Capelli. 2024. Lo que cuentan los candiles: Una aproximación a la economía local de Albalat. Paper presented at XIV Congress AIECM3 on Medieval and Modern Period Mediterranean Ceramics, Ravenna, Italy, November 18–23. [Google Scholar]
- Gilotte, Sophie, Yasmina Cáceres Gutiérrez, and Jorge De Juan Ares. 2016. Un ajuar de época almorávide procedente de Albalat (Cáceres, Extremadura). In Proceedings of 10th International Congress on Medieval Pottery in the Mediterranean. Edited by Maria José Gonçalves and Susana Gómez Martínez. Silves: Edição Câmara Municipal de Silves, Mértola: Campo Arqueológico de Mértola, vol. 2, pp. 763–75. [Google Scholar]
- Gilotte, Sophie, Yasmina Cáceres Gutiérrez, Claudio Capelli, Nicolas Garnier, Jorge De Juan Ares, and Catherine Richarté. 2021b. A Remarkable Jar With Architectural Decoration: An Almohad Precedent? In 12th Congress Aiecm3 On Medieval & Modern Period Mediterranean Ceramics. Proceedings. Edited by Platón Petridis, Anastasia G. Yangaki, Nikos Liaros and Elli-Evangelia Bia. Athens: National Hellenic Research Foundation, National and Kapodistrian University of Athens, vol. 2, pp. 841–45. [Google Scholar]
- Gomes, Ana, Alexandra Gaspar, João Pimenta, António Valongo, Paula Pinto, Henrique Mendes, Susana Ribeiro, and Sandra Guerra. 2001. A cerâmica pintada de época medieval da Alcáçova do Castelo de S. Jorge. In Garb. Sitios Islamicos del Sur Peninsular; Edited by Manuel Lacerda, Miguel Soromenho, María Ramalho, María de Magalhaes and Carla Lopes. Lisboa-Mérida: Ministério da Cultura—Instituto Português do Património Arquitectónico e Arqueológico, Consejería de Cultura, pp. 119–63. [Google Scholar]
- Gomes, Rosa Varela. 2003. Silves (Xelb), Uma Cidade do Gharb Al-Andalus: A Alcáçova. Trabalhos de Arqueologia 35. Lisboa: Instituto Portugués de Arqueologia. [Google Scholar]
- González Ballesteros, José Ángel, and María Ángeles Muñoz Espinosa. 2024. Análisis de los contextos cerámicos del recinto I del conjunto arqueológico de San Esteban (Murcia). In XIII Congreso Internacional sobre Cerámica Medieval y Moderna en el Mediterráneo. Edited by Alberto García, Miguel Busto, Laura Martín and María José Peregrina. Madrid: La Ergástula, pp. 651–62. [Google Scholar]
- Gómez-Martínez, Susana. 2014a. Cerámica Islámica de Mértola. Mertola: Museu de Mertola—Campo Arqueológico de Mértola. [Google Scholar]
- Gómez-Martínez, Susana. 2014b. Las cerámicas taifas del suroeste peninsular. In Bataliús III: Estudios Sobre el Reino Aftasí. Edited by Juan Zozaya Stabel-Hansen and Guillermo S. Kurtz Schaefer. Badajoz: Gobierno de Extremadura, Consejería de Educación y Cultura. [Google Scholar]
- Gómez-Martínez, Susana. 2018. La cultura material del Garb al-Andalus en el siglo XI. In Ṭawā’if. Historia y Arqueología de los Reinos de Taifas (Siglo XI). Edited by Bilal Sarr. Granada: Alhulia, pp. 139–76. [Google Scholar]
- Gómez-Martínez, Susana, Ligia Rafael, and Santiago Macias. 2010. Habitat e utensílios na Mértola almóada. Cuadernos de Madīnat al-Zahrā 7: 175–95. [Google Scholar]
- Gómez-Martínez, Susana, Maria José Gonçalves, Isabel Inácio, Constança Dos Santos, Catarina Coelho, Marco Liberato, Ana Gomes, Jacinta Burgalhao, Helena Catarino, Sandra Cavaco, and et al. 2016. A cidade e o seu territorio no Gharb al-Ándalus a través da cerámica. In Proceedings of 10th International Congress on Medieval Pottery in the Mediterranean. Edited by Maria José Gonçalves and Susana Gómez Martínez. Silves: Edição Câmara Municipal de Silves, Mértola: Campo Arqueológico de Mértola, vol. 1, pp. 19–50. Available online: http://hdl.handle.net/10400.26/18420 (accessed on 28 October 2024).
- Gutiérrez González, Francisco Javier, and Arancha Mendívil Uceda. 2023. Producciones cerámicas islámicas procedentes de Madīnat Saraqusta. Saldvie 23: 39–56. [Google Scholar] [CrossRef]
- Ibn Ḥawqal, Abū al-Qāsim Muḥammad. 1971. Kitāb Ṣūrat Al-Arḍ. In Configuración del mundo, fragmentos alusivos al Magreb y España, Textos Medievales. Translated by María José Romani Suay. Valence: Anubar, vol. 26. [Google Scholar]
- Iñíguez Sánchez, María del Carmen. 2024. La organización del espacio productivo en los alfares de época islámica en Málaga. In XIII Congreso Internacional Sobre Cerámica Medieval y Moderna en el Mediterráneo. Edited by Alberto García, Miguel Busto, Laura Martín and María José Peregrina. Madrid: La Ergástula, pp. 219–26. [Google Scholar]
- Izquierdo Benito, Ricardo. 1999. Vascos, la Vida Cotidiana en una Ciudad Fronteriza de Al-Andalus. Colección “Imágenes y palabras” 28. Toledo: Junta de Comunidades de Castilla La Mancha. Available online: https://www.academia.edu/97706987/Vascos_La_Vida_cotidiana_en_una_ciudad_fronteriza_de_al_Andalus_Catalogo_de_la_Exposici%C3%B3n_Exhibition_catalogue_1999_ (accessed on 25 February 2025).
- Jiménez Castillo, Pedro, and Julio Navarro Palazón. 1997. Platería 14. Sobre Cuatro Casas Andalusíes y su Evolución (Siglos X–XIII). Murcia: Centro de Estudios Árabes y Arqueológicos “Ibn Arabí”. Available online: https://digital.csic.es/handle/10261/14413 (accessed on 28 October 2024).
- Jiménez Castillo, Pedro, José Luis Simón García, and José María Moreno Narganes. 2024. Las producciones cerámicas de La Graja (Higueruela, Albacete). Una alquería andalusí del s. XI. In XIII Congreso Internacional Sobre Cerámica Medieval y Moderna en el Mediterráneo. Edited by Alberto García, Miguel Busto, Laura Martín and María José Peregrina. Madrid: La Ergástula, pp. 439–50. [Google Scholar]
- Labarta, Ana, Gilotte Sophie, Belén Sanmartin Freitas, Ignacio Montero Ruiz, and Óscar García Vuelta. 2023. Collar de época almorávide hallado en Albalat. Revista De Estudios Extremeños LXXVII-3: 1183–224. Available online: https://www.dip-badajoz.es/cultura/ceex/reex_digital/reex_LXXVII/2021/T.%20LXXVII%20n.%203%202021%20sept.-dic/00124459.pdf (accessed on 28 October 2024).
- Lagardère, Vincent. 1989. Les Almoravides. Paris: L’Harmattan. [Google Scholar]
- Lévi-Provençal, Évariste. 1957. La fondation de Marrakech. In Mélanges d’Histoire et d’Archéologie de L’Occident Musulman. Hommage à Georges Marçais. Alger: Imprimerie officielle, vol. 2, pp. 117–20. [Google Scholar]
- Lintz, Yannick, Claire Déléry, Bulle Tuil Leonetti, Louise Carlat, and Rosène Declémenti. 2014. Le Maroc Médiéval. Un Empire de l’Afrique à l’Espagne. Edited by Yannick Lintz, Claire Déléry and Bulle Tuil. Paris: Musée du Louvre—Hazan. [Google Scholar]
- Lopes, Virgílio, Susana Gómez Martínez, and Lígia Rafael. 2012. Arrabalde Ribeirinho. Museu de Mértola. Mértola: Campo Arqueológico de Mértola. [Google Scholar]
- Marcos Cobaleda, María. 2015. Los Almorávides: Arquitectura de un Imperio. Grenada: University of Grenada. [Google Scholar]
- Marcos Cobaleda, María, dir. 2018a. Al-Murābiṭūn (Los Almorávides): Un Imperio Islámico Occidental. Estudios en Memoria del Profesor Henri Terrasse. Grenade: Junta de Andalucía. [Google Scholar]
- Marcos Cobaleda, María. 2018b. Los almorávides y el fin de las taifas. Continuidad y/o ruptura. In Ṭawā‘if. Historia y Arqueología de los Reinos Taifas. Edited by Bilal Sarr. Grenada: Alhulia, pp. 683–702. [Google Scholar]
- Marcos Cobaleda, María, and Dolores Villalba Sola. 2019. Fronteras entre el arte almorávide y Almohade: Oposición Y Complementariedad. In Da Conquista De Lisboa À Conquista De Alcácer (1147–1217). Definições E Dinâmicas De Um Território De Fronteira. Edited by Isabel Cristina F. Fernandes and Maria João V. Branco. Lisbon: Edições Colibri, pp. 33–54. [Google Scholar]
- Martínez Núñez, Maria Antonia. 2020. Al-Andalus durante el período almorávide a través de la documentación epigráfica. In Arqueología de Al-Andalus Almorávide. Edited by Rafael Azuar Ruíz. Alicante: MARQ, pp. 61–77. [Google Scholar]
- Melero García, Francisco. 2012. El ataifor estampillado andalusí. A propósito del conjunto documentado en el vertedero medieval de Cartama (Málaga). Debates de Arqueologia Medieval 2: 109–28. [Google Scholar]
- Meunié, Jacques, Henri Terrasse, and Gaston Deverdun. 1957. Nouvelles Recherches Archéologiques à Marrakech. Publications de l’Institut des Hautes Études Marocaines LXII. Paris: Arts et métiers graphiques. [Google Scholar]
- Moreno Narganes, Jose María. 2019. Tejiendo en casa: Las actividades de hilado-tejido en el espacio doméstico de Al-Andalus (ss. XII–XIII). In VII Congreso de Arqueología Medieval (España-Portugal). Edited by Susana Gómez, Miguel Ángel Hervás and Manuel Melero. Ciudad Real: Asociación Española de Arqueología Medieval, pp. 429–33. [Google Scholar]
- Motos Guirao, Encarnación. 2003. La cerámica almohade al sur de Jaén. In Cerámicas Islámicas y Cristianas a Finales de la Edad Media. Influencias e Intercambios. Granada: Museo de Ceuta, pp. 83–140. [Google Scholar]
- Navarro Palazón, Julio, and Alfonso Robles Fernández. 1996. Liétor: Formas de Vida Rurales en Šarq Al-Andalus a Través de una Ocultación de los Siglos X–XI. Miscelánea Medieval Murciana. Murcia: Centro de Estudios Árabes y Arqueológicos Ibn Arabi. [Google Scholar]
- Navarro Palazón, Julio, and Pedro Pedro Jiménez Castillo. 2007. Siyasa. Estudio Arqueológico del Desploblado Andalusí (ss. XI–XIII). Murcia: El Legado Andalusí. [Google Scholar]
- Norris, Harry T. 1993. Al-Murābiṭūn. In Encyclopaedia of Islam 2 (EI2). Leiden: J. Brill, vol. 7, pp. 583–89. [Google Scholar]
- Orives. La Joyería de Filigrana Cacereña. 2022. Cáceres: Junta de Extremadura-Museo de Cáceres. Available online: https://www.academia.edu/124629651/Orives_La_joyer%C3%ADa_de_filigrana_cacere%C3%B1a (accessed on 28 October 2024).
- Partearroyo Lacaba, Cristina, and Miriam Ali de Unzaga. 2020. Tejidos del periodo almorávide: Hallazgos recientes, revisión y nuevos datos. In Arqueología de Al-Andalus Almorávide. Edited by Rafael Azuar Ruíz. Alicante: MARQ, pp. 93–138. [Google Scholar]
- Pascual Pacheco, Josefa, Pau Armengol Machí, María Isabel García Villanueva, Lourdes Roca, and Enrique Ruiz. 2009. La producción cerámica almohade en la ciudad de Valencia. El alfar de la calle Sagunto. In VIII Congreso Internacional de Cerámica Medieval en el Mediterráneo. Edited by Juan Zozaya, Manuel Retuerce, Miguel Ángel Hervás and Antonio de Juan. Ciudad Real-Almagro: Asociación Española de Arqueología Medieval, pp. 355–71. [Google Scholar]
- Peña Martín, Salvador, and Miguel Vega Martín. 2006. Rebuilding the contexts of the Andalusi epigraphic legacy: ‘The Friend of God’ in the Almoravid numismatic discourse. TRANS: Revista de Traductología 3: 73–83. [Google Scholar] [CrossRef]
- Pérez Asensio, Manuel, and Pedro Jiménez Castillo. 2018. El ajuar cerámico almorávide en Sarq Al-Andalus. Al-murābitūn (los almorávides). In Un Imperio Islámico Occidental: Estudios en Memoria del Profesor Henri Terrasse. Edited by María Marcos Cobaleda. Granada: Patronato de la Alhambra y el Generalife, pp. 161–221. [Google Scholar]
- Pérez Asensio, Manuel, and Vicent Estall i Poles. 2012. Primera aproximación a la cerámica dorada islámica hallada en la excavación arqueológica de la Alcazaba de Onda. In I Congreso Internacional Red Europea de Museos de Arte Islámico. Granada: Patronato de la Alhambra y Generalife-Victoria & Albert Museum, pp. 189–218. Available online: https://www.alhambra-patronato.es/publicaciones/no-1-i-congreso-internacional-red-europea-de-museos-de-arte-islamico (accessed on 28 October 2024).
- Pérez Martín, Irene, and Elena Salinas Pleguezuelo. 2025. La vida cotidiana de Al-Mariyya en el siglo XII a través de su ajuar cerámico. Arqueología y Territorio Medieval 32: 1–40. [Google Scholar] [CrossRef]
- Retuerce Velasco, Manuel. 1998. La Cerámica Andalusí de la Meseta. Madrid: CRAN, vol. 2. [Google Scholar]
- Retuerce Velasco, Manuel. 2024. Cerámica almohade. In Calatrava la Vieja I. El fin de la Presencia Almohade en Calatrava y su paso al reino de Castilla Según las Fuentes Escritas y Arqueológicas. La Excavación Arqueológica de la Torre n° 27 de la Muralla. Edited by Manuel Retuerce Velasco. Madrid: Opera Prima, pp. 144–274. [Google Scholar]
- Rodríguez Aguilera, Ángel. 1999. Estudio de las producciones postcalifales del alfar de la Casa de los Tiros (Granada). Siglos XI-XII. Arqueologia Medieval 6: 101–22. [Google Scholar]
- Ros, Jérôme, José Antonio Garrido Garcíam, Mónica Ruiz Alonso, and Sophie Gilotte. 2018. Bioarchaeological results from the House 1 at Albalat (Romangordo, Extremadura, Spain): Agriculture, Livestock and Environment at the Margin of al-Andalus. Journal of Islamic Archaeology 5: 71–102. Available online: https://journal.equinoxpub.com/JIA/issue/view/49 (accessed on 28 October 2024). [CrossRef]
- Ros, Jérôme, Sophie Gilotte, Nicolás Losilla, and Thierry Pastor. 2024. Dieta vegetal en al-Andalus: El aporte del estudio de dos pozos Negros en Albalat (Extremadura). In Actas del VII Congreso de Arqueología Medieval. Sigüenza: Asociación Española de Arqueología Medieval, pp. 115–22. [Google Scholar]
- Rosselló Bordoy, Guillermo. 2009. El concepto de la cerámica medieval: Entre Madîna Ilbîra y Hisn al-‘Araq. In Actas del VIII Congreso Internacional de Cerámica Medieval. Ciudad Real: Asociación Española de Arqueología Medieval, vol. 2, pp. 703–10. [Google Scholar]
- Roux, Corinne, and María F. Guerra. 2000. La monnaie almoravide: De l’Affrique à l’Espagne. Revue d’archéométrie 24: 39–52. [Google Scholar] [CrossRef]
- Salado Escaño, Juan Bautista, and Ana Arancibia Román. 2003. Málaga durante los imperios norteafricanos: Los almorávides y almohades, siglos XI–XIII. Mainake 25: 69–102. Available online: https://www.cedma.es/catalogo/mainake.php?ref=13015 (accessed on 28 October 2024).
- Salinas Pleguezuelo, María Elena. 2012. La Cerámica Islámica de Madinat Qurtuba de 1031 a 1236. Cronotipología y Centros de Producción. Ph.D. dissertation/thesis, Universidad of Córdoba, Córdoba, Spain. Available online: http://hdl.handle.net/10396/7830 (accessed on 28 October 2024).
- Salinas Pleguezuelo, María Elena, and María del Carmen Méndez Santiesteban. 2008. El ajuar doméstico de una casa almohade del siglo XII en Córdoba. Anejos de Anales de Arqueología Cordobesa 1: 265–78. [Google Scholar]
- Salinas Pleguezuelo, María Elena, Belén Alemán Ochoterena, and Irene Pérez Martín. 2024. Arquitectura doméstica y cultura material en la Almería islámica del siglo XII. In VII Congreso de Arqueología Medieval (España-Portugal). Edited by Susana Gómez, Miguel Ángel Hervás and Manuel Melero. Ciudad Real: Asociación Española de Arqueología Medieval, pp. 31–37. [Google Scholar]
- Sanabria Murillo, Diego. 2022. La cerámica musulmana del cerro del Castillo (Capilla, Badajoz). NORBA, Revista de Historia 34–35: 11–52. Available online: https://dialnet.unirioja.es/servlet/articulo?codigo=9721993 (accessed on 28 October 2024).
- Sauvaget, Jean. 1949. Sur le minbar de la Kutubīya de Marrakech. Hespéris 36: 313–19. [Google Scholar]
- Serrat, Ihssane. 2024. La céramique de l’habitat d’Igiliz-n-Warghen (Anti-Atlas, Maroc): Dynamique de production et d’échanges durant le xiie siècle. Afrique: Archéologie & Arts 20: 109–10. [Google Scholar]
- Serrat, Ihssane, Ahmed Saleh Ettahiri, and Abdallah Fili. 2019. La céramique glaçurée du niveau almoravide de la mosquée al-Ḳarawiyyīn de Fès: Étude typologique. Bulletin D’archéologie Marocaine 24: 111–26. [Google Scholar]
- Silva Santa-Cruz, Noelia. 2013. La Eboraria Andalusí del Califato Omeya a la Granada Nazarí. BAR International Series 2522; Oxford: Archaeopress. [Google Scholar]
- Simón García, José Luis, José María Moreno Narganes, and Pedro Jimenez Castillo. 2024. Castellar de Meca Revisited. The Islamic Occupation (9th–12th Centuries). Madrider Mitteilungen 65: 326–65. [Google Scholar] [CrossRef]
- Torres, Cláudio. 1988. Mértola Almoravide et Almohade. Mértola: Ministère des Affaires Culturelles du Royaume du Maroc - Câmara Municipal de Mértola. [Google Scholar]
- Torres, Cláudio, and Santiago Macias. 1998. O Legado Islâmico em Portugal. Lisbon: Fundação círculo de leitores. [Google Scholar]
- Valdés, Fernando, Susana Díaz del Diego, Francisco Javier Duran Castellano, and Esther Sordo Romero. 2001. La cerámica andalusí de la ciudad de Badajoz. Primer período (siglos IX–XII), según los trabajos en el antiguo Hospital Militar y en el área del aparcamiento de la c/de Montesinos. In Garb. Sitios Islámicos del sur Peninsular; Edited by Manuel Lacerda, Miguel Soromenho, María Ramalho, María de Magalhaes and Carla Lopes. Lisbon and Merida: Ministério da Cultura—Instituto Português do Património Arquitectónico e Arqueológico, Consejería de Cultura, pp. 377–99. [Google Scholar]
- Vargas Calderón, José. 2021. La cerámica estampillada almohade del albacar de Trujillo. Alcántara 91: 87–107. Available online: https://archivo.dip-caceres.es/wp-content/uploads/2024/01/06-091-06.pdf (accessed on 28 October 2024).
- Vera Reina, Manuel, and Pina López Torres. 2009. La producción trianera (Sevilla) en época almohade. In VIII Congreso Internacional de Cerámica Medieval en el Mediterráneo. Edited by Juan Zozaya, Manuel Retuerce, Miguel Ángel Hervás and Antonio de Juan. Ciudad Real-Almagro: Asociación Española de Arqueología Medieval, pp. 429–41. [Google Scholar]
- Zapata Parra, José Antonio, and María Isabel Muñoz Sandoval. 2006. Estudio de un ajuar cerámico almorávide hallado en Lorca. Alberca 4: 95–113. Available online: http://www.amigosdelmuseoarqueologicodelorca.com/alberca/pdf/alberca4/articulo6.pdf (accessed on 28 October 2024).
- Zozaya, Juan. 2007. Los candiles de piquera. In Tierras del Olivo. El Olivo en la Historia. Granada: Junta de Andalucía, Fundación El Legado Andalusí, pp. 125–35. [Google Scholar]
Disclaimer/Publisher’s Note: The statements, opinions and data contained in all publications are solely those of the individual author(s) and contributor(s) and not of MDPI and/or the editor(s). MDPI and/or the editor(s) disclaim responsibility for any injury to people or property resulting from any ideas, methods, instructions or products referred to in the content. |
© 2025 by the authors. Licensee MDPI, Basel, Switzerland. This article is an open access article distributed under the terms and conditions of the Creative Commons Attribution (CC BY) license (https://creativecommons.org/licenses/by/4.0/).








