Abstract
Energy efficiency of building heritage derived from pre-regulation period is one of the most debated topics in Europe. Building façades, through opaque walls and thermal bridges, are a major source of transmission heat losses and require sustainable and consistent solutions. Aiming to achieve an energy demand reduction, thermal features of building façades were evaluated by field measurements and simulations for one INA-Casa listed apartment building built in the 1950s. Non-destructive insulating solutions have been proposed and a comparison between transmission heat loss coefficient in the current situation and the designed intervention was made. Results show that before the renovation, opaque walls and thermal bridges respectively contributed to 25% and 44% of total transmission heat loss in the case-study building façade. After the renovation, total impact was reduced up to 70% depending on whether high performance windows were replaced; in particular, the impact of opaque walls and thermal bridges were reduced by 66% and 82%, respectively. Interventions performed primarily on the internal layer of the façade with insulation elements, when appropriately designed, strengthen the negative effects of thermal bridges in junctions. Findings show that an accurate insulation design allows for both more efficient conditions and the preservation of the heritage-listed buildings.
1. Introduction
The influence of building façade properties and thermal bridges on building energy performance represent crucial aspects of European building regulations for energy efficiency. Directive 2010/31/EU on Building Energy Performance provides a methodology in thermal behaviour calculation which considers building thermal properties, including thermal capacity, insulation, and thermal bridges [1]. Besides, the Directive prescribes measures to ensure minimum energy performance requirements for envelope building components that have a relevant impact on the global energy performance. It also refers to energy-efficient solutions specific for listed historical buildings in order to preserve the architectural quality.
Building heat balance depends on heat transfer for ventilation and transmission, reduced by the effect of solar irradiation and internal heat gains in Equation (1).
QH = (QTR + QVE) – η ∙ (Qint + Qsol)
Envelope features such as thermal properties and thermal bridges mainly determine this balance; in particular, external façade global performance is subjected to decrease over time: natural deterioration of materials, effects of weather conditions, building component typologies and construction deficiencies are the main aspects that affect this performance. The façade is exposed to wind action, thermal variation, water infiltration, steam migration and condensation, and formation of mould, with negative effects on the entire building. Through these conditions and subjected to the above-mentioned phenomena, thermal bridges are critical spots that require special attention and specific renovation solutions.
These aspects take on greater importance in Italy where the building stock is one of the oldest in Europe. More than 60% of buildings were built before 1972, without any attention to energy performance. The CRESME— social and economic research centre on building sector active in Italy —report on renovation and refurbishment’s capacity in 2014 highlighted the status of Italian building stock: more than 22% of buildings needed urgent intervention because of poor maintenance status (19.9%) or severe conditions (2.2%), with a total of 2.6 million buildings requiring renovation [2]. For these reasons, building stock renovation with special attention to energy efficiency is crucial nowadays.
The INA-Casa Building Heritage
In 1949 Italian Parliament adopted the so called “Fanfani Plan” (Law 43/1949) as proposed by the Minister of Social Security Amintore Fanfani, which was inspired by the experience of the “Beveridge plan” in England. This Law aimed at establishing a seven-year action plan for housing and building post-war reconstruction. The Plan represented the most important public intervention undertaken by government in the housing sector both for quantitative and qualitative reasons: 355,000 dwellings, with a total amount of 1,920,000 rooms, were built between 1949 and 1963 in numerous districts across Italy; there were 20,000 construction sites with an equivalent of 40,000 workers per year; and 17,000 designers were involved in urban planning and architectural design. The Plan had an impact of 10% with respect to the increase of the Italian building stock during the decade 1951–1961.
The so-called “INA-Casa experience” has been characterized by an outstanding spatial and architectural research conducted by some of the greatest architects, which in those years were involved in the post-war reconstruction projects. Despite the architectural quality, from a constructive point of view, techniques were standardized and based on conventional construction processes. The need for a fast response to a housing emergency, linked to urban drift and population growth, led to simple and widespread building technologies without any kind of innovation. These technologies continued to spread over the years in Italy—and in the Mediterranean context—until the end of the last century, so that most of the building stock presented with critical issues with respect to energy performance and thermal bridges. This condition represents a problem to deal with but, at the same time, the solution to energy efficiency of the building heritage due to the possibility of defining standard intervention strategies that could have a relevant impact on global energy demand. Sodagar conducts a study on sustainability potential of refurbishment on a mid-19th century apartment building. He demonstrates that is possible to improve the energy performance of an existing building to a similar level of a new one [3]. Although external cladding allows better results, if this is not possible, in the Mediterranean climate positive effects can be obtained by insulation in the cavity between the two brick walls of residential building façades [4].
One of the most discussed topics in renovation and energy efficiency, also mentioned in the Energy Performance of Buildings Directive (EPBD), is the problem of thermal bridges. Thermal bridge calculations can be conducted using different strategies that allow for the determination of linear thermal transmittance of elements. Regulations consider the numerical analysis finite element method (accuracy ± 5%) and the application of a thermal bridge catalogue (accuracy ± 20%). Moreover, it is also possible using manual calculation methods (accuracy ± 20%), while using fix default values is no longer accepted (0–50%)—UNI EN ISO 10211:2008; UNI EN ISO 14683:2001; UNI TS 11300:2014 [5,6,7]. Although new buildings present high insulation levels, thermal bridges affect heating needs for about 30% of the global value [4]. In case of existing buildings, thermal bridges contribute to 23% of the total transmission heat loss of a building envelope. After renovation, thermal bridges account for only 10% if windows are re-located into additional external thermal insulation and balconies are rebuilt as best practice. Inversely, the impact of the thermal bridges might be up to 34%, depending on the wall insulation thickness [8]. This impact may reach up to 67% for a building with a hollow brick cavity wall in a typical Italian climatic zone [9].
At the same time, thermal bridge correction could determine an important reduction of the winter primary energy demand (25% for terraced houses, 17.5% for semi-detached house) with an overall annual energy savings about 8.5% [10]. Moreover, a study by Berggren demonstrates the increasing role of thermal bridges in transmission heat transfer calculations when improving the building’s energy performance. This is true even though the specific value of thermal bridges may decrease when more insulation is added. The relative effect of thermal bridges increases when insulation increases. If values for normalized thermal bridges are to be used, they need to be differentiated by building system and different amounts of insulation [11].
Despite a certain progress in this field during the last years, the development of specific energy-efficient solution for heritage-listed building needs to be investigated in-depth. In fact, is possible to achieve good level of energy efficiency using passive strategies, e.g., thermal insulation of building components and joints, preserving the complete façade appearance [12].
This study aims to evaluate thermal features of building envelope to inform and support energy-efficient solutions for INA-Casa heritage-listed buildings, with special attention on thermal bridges. Analysis have been conducted comparing external walls and thermal bridges effect on transmission heat losses, considering current situation and possible energy-efficient solutions. The effect of transmission heat loss coefficient in global heat balance has been analysed, and then the percentage of heat loss reduction has been calculated, applying specific passive strategies. These strategies could be useful to improve energy performance and at the same time to respect heritage-listed building regulations and could be applied to the similar building stocks in the Mediterranean climate.
2. Case-Study
The case study building is settled in south-east quadrant of Rome (Italy), in the Tuscolano INA-Casa district. The district is composed of 2 million cubic meters and 3150 dwellings, with 18,000 inhabitants and over 35 hectares of base land area. This residential complex is one of the biggest projects in Italy and is the widest roman district built by the INA-Casa (Figure 1). Besides, it is one of the most representative building of INA-Casa heritage, both in terms of architectural and construction features.
Figure 1.
Tuscolano INA-Casa district: (a) Plan of entire residential complex composed of three main areas (Tuscolano I, Tuscolano II, Tuscolano III); (b) Bird’s eye view of Tuscolano II district—case study tower buildings in red.
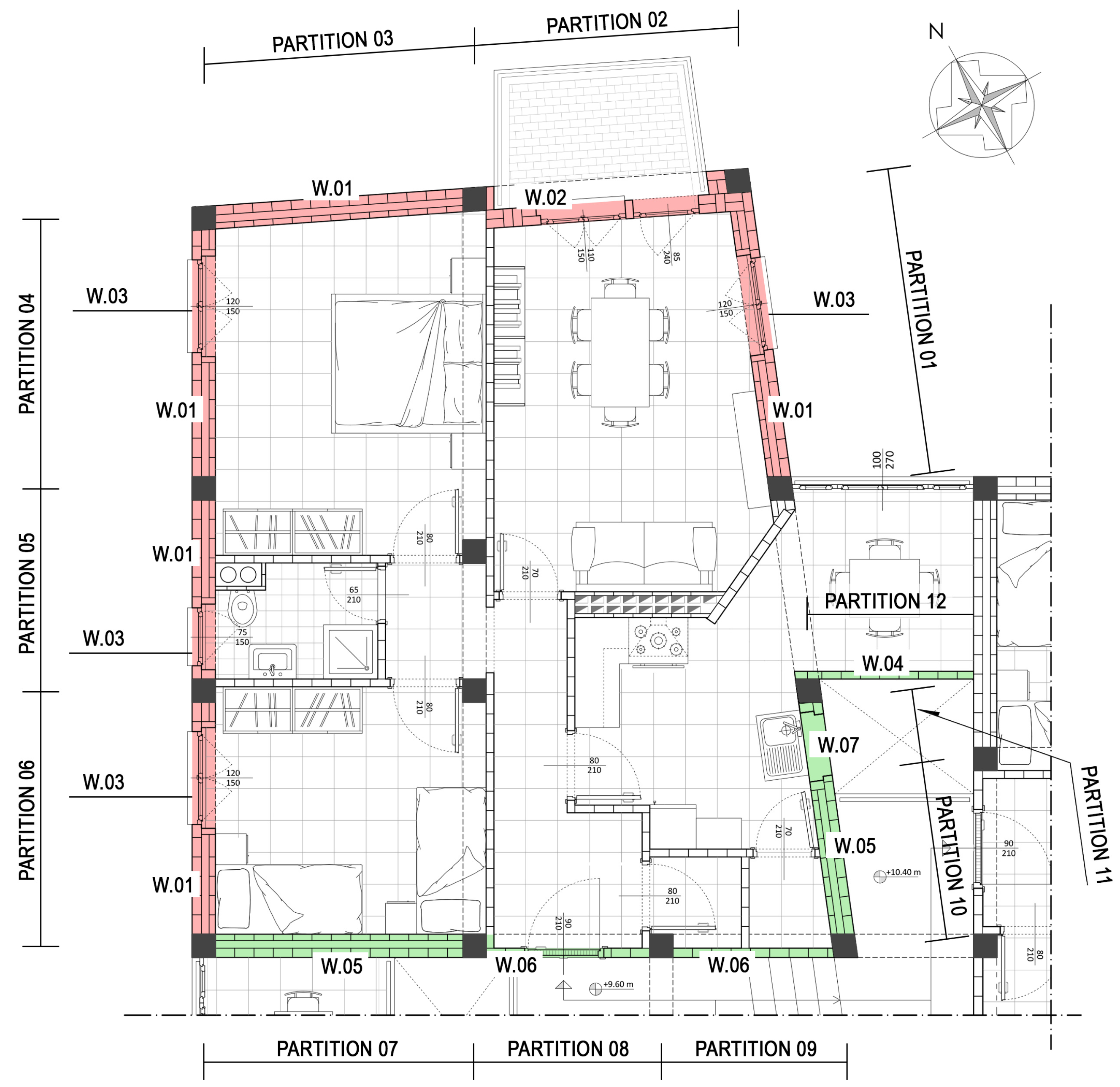
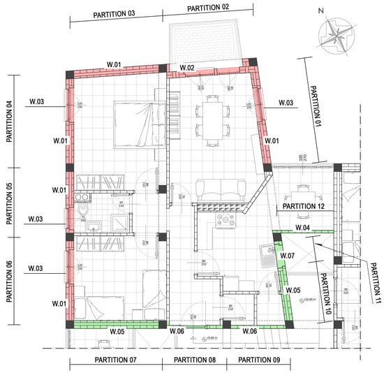
The building, designed by Mario De Renzi, was built between 1952 and 1956. It is a tower based on a star-shaped layout: each dwelling is arranged in one different direction and is interconnected by a vertical core space, where a staircase is located (Figure 2). Due to the INA-Casa guidance dwelling layout (about 65 square meter), all are identical (Figure 3).
Figure 2.
Tower building plan of the analysed apartment.
Figure 3.
External (red) and internal (green) wall typology identification.
In order to evaluate building envelope performance and thermal bridge effects, a dwelling located on the fifth floor was selected. The internal distribution of the apartment, as with all of those analysed, resulted altered from the original project. Changes were mainly the loggia that became an additional heated space due to new windows positioned on the façade and a new wall built towards the stairwell.
Since the building was constructed before the approval of Building Regulations for Energy Efficiency and Reduction of Thermal Energy Consumption—L.30/04/1976 N.373 [13], no thermal insulation and energy performance matched with the current standards.
Analysed buildings, like others of the same period with similar construction features, are classified as part of the “historic city” by the Rome Regulation Master Plan. In fact, being located within a high-quality contemporary urban context and presenting an architectural and historic value, it belongs to category T8 “nineteenth century expansion of urban fabric with a modern and homogeneous urban structure”. For that reason, the Rome Master Plan Technical Regulations allow operations aimed at building restoration and refurbishment, without volume increase, preserving external features [14].
3. Methodology
3.1. Research and Surveys
Building surveys have been conducted starting with an in-depth repository investigation to find original design documentation and to determine building components and materials. The correspondence of the design to the existing building has been verified through site survey in order to underline any differences and to detect thermal bridge presence, using infrared thermography equipment.
Original plans and façade drawings have been found with the repository research, while building components have been determined with site survey, measurements, and interviews with inhabitants. To set thermal modelling, construction details have been assumed, when necessary, with the support of design handbooks of the time and of the INA-Casa handbook [15]. The latter collects suggestions, recommendations, guidelines, schemes, examples for housing and neighbourhood design.
Thermographic analysis, with the aim of identifying thermal bridges, was conducted on 25 November 2015, during working hours for heating system, with an infrared thermal camera—FLIR Thermacam S65 (FLIR System AB, Danderyd, Sweden), temperature range −40 °C to 1500 °C, accuracy ±2 °C or ±2%, calibrated at 23 °C ambient temperature and 39% relative humidity.
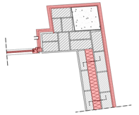
The tower building has a reinforced concrete structure and hollow brick cavity exterior walls with air interposed layer and lime and cement plaster coatings on the outer side, and a lime-gypsum finishing on the internal one. The outer masonry (Figure 4) is made of cavity block (80-mm inner layer and 120-mm outer layer) with an intermediate air layer (100 mm). The percentage of drilling in bricks is over 55%, both in the inner layer (80 × 250 × 250 mm3 perforated bricks) and in the outer layer (120 × 250 × 250 mm3 perforated bricks). Glazing ratio is about 25%, except for the opening at the balcony where the ratio is about 46%.
Figure 4.
Hollow brick cavity wall: details with damaged plaster: (a) West façade, external wall below the reinforced concrete beam; (b) West façade, external wall in proximity to window sill.
3.2. Calculation Methods
Heat flow from internal and external environment represent transmission heat loss through building envelope components. According to UNI/TS 11300:2014, from the thermal balance expression,
it is possible to improve the energy efficiency by minimizing the transmission heat loss QT,
acting on the HTR. In fact, HTR affects a lot on losses through the building envelope [7].
QH = (QTR + QVE) − η ∙ (Qint + Qsol)
QTR = [HTR ∙ (θint,set,H − θe)] ∙ t + (Σ Fr,i ∙ Φr,mn,i) ∙ t
UNI ISO 13789 [16] defines HTR coefficient as,
where in general each term can be calculated with,
In this discussion, punctual thermal bridges will not be taken into consideration because generally their influence can be neglected [17].
HTR = HD + Hg + HU + HA
HTR,x = btr,x [Σi Ai ∙ Ui + Σk lk ∙ Ψk + Σj χj ∙ nj]
Table 1 describes dwelling walls analysed with pertinent boundary conditions, and Table 2 shows values of stationary regime characteristics (Uexisting, Ms,existing) and the stabilized periodic regime characteristics (fd,existing, φexisting) of existing masonry. Thermal transmittance values calculated for the vertical opaque walls were compared with limit values stated by DM 26/06/2015 regulation concerning energy performance calculation methods and definition of minimum building requirements [18]. The requirements for external opaque walls in existing building under renewal are in Attachment 1—Appendix A of the Regulation. Since Rome belongs to the D Zone of the Italian territory climatic classification, the maximum transmittance value to fulfil is Ulimit 2015 = 0.36 W/m2K.
Table 1.
Exterior walls specification. Dimensions are in cm.
Table 2.
Thermal transmittance of existing walls and requirements of DM 26/06/2015, DL 311/2006, and UNI EN ISO 13786 [18,19,20].
The requirements for opaque walls towards not conditioned spaces are in Attachment 1—Appendix A and the limit value for transmittance is Ulimit separations = 0.8 W/m2K. Surface mass values were compared with the limit values required by DL 311/2006 Annex I, concerning building energy efficiency [19]. The latter specifies in Ms > 230 kg/m2 the minimum value of exterior opaque walls surface mass. Wall dynamic thermal characteristics have been compared with characteristics stated by UNI EN ISO 13786, according to parameters in Table 3.
Table 3.
Thermal performance of building components stated by UNI EN ISO 13786 [20].
The junctions considered for the calculation of thermal bridges are related to geometric discontinuities, vertical alignment of different construction materials, intersections between vertical and horizontal elements, and junctions between external walls and windows frames (Figure 5).
Figure 5.
Identification of junctions analysed with thermal bridge calculations.
Each junction has been subdivided according to the number of detected thermal bridges and individual thermal bridges have been modelled. An example of thermal bridge form, containing considered configurations, is presented in Table 4 and Table 5.
Table 4.
Configurations for typical vertical junctions.
Table 5.
Configurations for typical horizontal junctions.
Thermal features of identified thermal bridges have been modelled with finite-element method using THERM 7.2, software developed by Lawrence Berkeley National Laboratory (LBNL, Berkeley, CA, USA). This tool analyses the two-dimensional conduction heat-transfer and allows for evaluation of a product’s energy efficiency and local temperature patterns, which may relate directly to problems with condensation and moisture damage [21].
The numerical value of linear thermal transmittance Ψ is calculated by the arithmetic difference between two-dimensional (L2D) and one-dimensional (Σ Ui ∙ Li) heat flow,
where L2D = Φ/ΔT is the linear thermal coupling coefficient obtained with a two-dimensional computation of settled boundary conditions; Ui is the thermal transmittance of the one-dimensional component that separates the two considered environments; and Li is the length of the two-dimensional geometric model to which the Ui value is applied.
Ψ = L2D – Σ Ui ∙ Li
THERM evaluates total heat flow for each boundary condition group and divides it by ΔT and a settled length Lint. In this analysis, the considered calculation length is the internal measures of converging elements. The boundary conditions have been settled for three groups of environments, external (0 °C temperature; 24.8 W/m2K film coefficient), internal (20 °C temperature; 7.7 W/m2K film coefficient), and unheated (10 °C temperature; 7.7 W/m2K film coefficient).
Obtained value is Ufactor and corresponds to L2D. This hence results in,
and by replacing in Equation (6) we have:
where the Ufactor corresponds to the “equivalent transmittance”: the transmittance that would provide a flow value Φ corresponding to the calculated value, being equal to ΔT on the calculation length.
L2D = Φ/(ΔT ∙ Lint) = Ufactor
Ψ = Ufactor – Σ Ui ∙ Li
UNI EN ISO 14683—Summary 2 sets the project values for Ψ based on three building dimension measurement systems; internal dimensions have been considered measuring the finite internal surfaces of each environment excluding the thickness of internal partitions [5].
Thermal features of the materials used in the calculations and included in the simulation software are shown in Table 6.
Table 6.
Materials thermal features used in simulations.
The choice of insulation materials has been made considering the performance of the most frequently used ones for similar strategies. Moreover, the operating modes were taken into account in order to ensure an easy application. Finally, a Life Cycle Analysis to support the choice and to select performing and sustainable materials has been carried out.
Double-glazed windows have been found to be applied in most cases during the construction process or afterwards as a refurbishment action. For all the examined scenarios, double-glazed insulated windows represent the majority of the openings in the building’s envelope. Since existing buildings have been retrofitted with this type of windows, the assumed scenario can be considered reliable.
4. Results
4.1. Opaque Walls
In order to improve the energy performance of façades and to comply with regulatory limits—in terms of thermal transmittance and thermal inertia—different thermal insulation solutions are proposed. These solutions comply with the possibility to preserve the façade’s appearance:
- Hollow brick cavity walls (W.01, W.05 in Table 7): bulk insulation material filled in the cavity and replacement of existing external plaster with low thermal conductivity plaster. For the filling material, we selected cellulose fibre, which has good insulating properties and prevents condensation thanks to moisture absorption capacity. In order to protect the cellulose fibre from moisture and mould, a special surface treatment is expected to avoid rain penetration. A film of water-repellent impregnating solution—based on silicone compounds in water—is applied on the new plaster layer.
Table 7. Proposed insulating solutions for external and internal walls. Dimensions are in cm. - One-brick walls (W.02 in Table 7): insulation applied on the existing plaster layer a polyurethane insulating layer coated with low thermal conductivity plaster thickness.
- Other walls without cavity (W.03, W.04, W.06, W.07 in Table 7): insulation with a low heat conductivity plaster layer on the outside, consisting of natural hydraulic lime, cork, clay and diatomaceous powders.
- On exterior walls (W.01 and W.03 in Table 7) a 10-mm reinforced plaster layer with high density in order to reinforce the masonry has been proposed for application.
Table 8 shows the significant values obtained in terms of transmittance and thermal inertia after opaque wall insulation. These solutions highly reduce the transmittance values and for W.04 and W.06 only the maximum values stated in DM 26/06/2015 are not fulfilled [18]. On the other hand, dynamic thermal characteristics, stated by UNI EN ISO 13786, achieve, on average, a medium/good performance that matches with a level quality of about II–III [20].
Table 8.
Thermal transmittance of proposed insulating solutions and requirements of DM 26/06/2015, DL 311/2006, and UNI EN ISO 13786 [18,19,20].
Table 9 shows the comparison between transmission heat loss coefficient for façade building component of current and the designed intervention. The most effective interventions for each category of wall have been highlighted.
Table 9.
Transmission heat loss coefficient of building façade: comparison between current situations and proposed solutions.
4.2. Thermal Bridges
The analysed thermal bridges show high temperature distribution differences. Infrared images (IR) have been taken under the following conditions: Tout ≅ 7 °C, RHout ≅ 80%, Tin ≅ 20 °C, RHout ≅ 50%. The most evident warmer zones are due to both the reinforced concrete structural elements and major building façade discontinuity, e.g., roller blind box and sills. Figure 6 shows that critical points are located in:

Figure 6.
Thermal bridge detection with on-site thermography.
- Junctions between reinforced concrete element (columns-slabs) and external walls—temperature variation highlights different materials—Figure 6a;
- Junctions between balconies and slabs—local temperature increase is evident along the edge—Figure 6b–c;
- Walls below windows—due to reduction of wall thickness, radiators are well visible—Figure 6d;
- Junctions between windows jambs and external walls—low temperatures close to the frames show a significant heat loss associated to excessive ventilation—Figure 6e;
- Roller blind box-air layer without isolation is well visible near the ribs due to high temperature confluence—Figure 6f–g;
- Aluminium glazing in the loggia-high external surface temperature of transparent surfaces due to the high value of their thermal transmittance—Figure 6h–i.
The effect of the detected thermal bridges on HTR coefficient has been evaluated. Afterwards, this effect was reduced with local insulation elements. Therefore, each critical point has been analysed and a consistent improvement has been proposed. Due to restrictions imposed by listed building regulation and in particular on preserved façade, we propose the following energy-efficient solutions to solve thermal bridges:
- Vertical thermal bridges (V.07, V.09, V.12 in Table 10): application of a low thermal plaster in connection with the windows frame; filling of cellulose fiber insulation in the cavity of the wall;
Table 10. Passive design interventions for vertical thermal bridges. - Slab-façade junction (H.04, H.05, H.06 in Table 11): custom-designed insulation elements on the internal layer of reinforced concrete building components, aiming to create connection between wall bricks and slab bricks;
Table 11. Passive design interventions for horizontal thermal bridges. - Window sills (H.05, H.07 in Table 7): additional sill cover aiming to guarantee intervention reversibility.
- Loggia (Table 12): replacement of existing glaze with a more efficient and well-insulated new one; relocation of this glaze behind the reinforced concrete beam in order to reduce thermal bridge effect and to solve a typical case of bad practice with an informal solution performed by inhabitants.
Table 12. Example of current situation (left) and passive design intervention (right) for the loggia’s vertical (V.13) and horizontal (H.09) thermal bridge.
Table 9 and Table 10 show current situations and passive design interventions, respectively for vertical thermal bridges and junctions both in vertical and horizontal thermal bridges.
Simulation results highlight that:
- Thermal bridge intensity increases close to reinforced concrete elements. It depends on the combined effect of impossibility to locate an insulation layer on the exterior surface of the façade and the thermal improvement obtained in the hollow brick cavity wall.
- In most cases, internal surface temperatures have undergone a significant increase, due to the proposed energy-efficient solutions ranging from a minimum temperature of 14.4 °C to 18.2 °C, obtaining a reduction of surface condensation phenomena.
Table 13.
Vertical thermal bridges. Simulation of thermal bridges in infrared view performed with LBNL (Lawrence Berkeley National Laboratory) Therm software: current situation (left) and proposed intervention (right).
Table 14.
Horizontal thermal bridges. Simulation of thermal bridges in infrared view performed with LBNL Therm software: current situation (left) and the proposed intervention (right).
Linear thermal transmittances Ψ were evaluated for all types of thermal bridges before and after renovation and values are shown in Table 13. Results show that the Ψ value—as a representative factor of thermal bridges—increase after the renovation with energy-efficient solutions. In fact, Ψ is an index of how much thermal bridges takes part in transmission heat loss in considered scheme. Despite the fact that global heat losses have been reduced, data reveals that the most part of thermal losses occur through junctions and on a very limited area. In fact, hollow brick cavity walls are responsible for lower heat losses compared to the current condition.
Table 13 also shows the percentage reduction of heat transmission coefficient value due to thermal bridges, obtained with the renovation.
4.3. Comparison
In order to evaluate the impact of opaque surfaces and thermal bridges on total losses, we also estimated heat ventilation losses (Table 14). This also allowed us to evaluate how much the ventilation and transmission dispersions respectively affect the total losses. UNI/TS 11300:2014 set minimum air intakes depending on the premise use and occupation in order to ensure adequate air quality [7].
Building heat transfer for ventilation can be calculated with:
where the ventilation heat loss coefficient is derived as:
QH,ve = HVE ∙ (θint,set,H – θe) ∙ t
HVE = ρaca ∙ (Σk ∙ bve,k ∙ qve,k,mn)
Average flow rate on airflow time, qve,k,mn, expressed in [m3/h], is derived as:
qve,k,mn = fve,t,k ∙ qve,k
In case of natural ventilation for residential buildings, an air exchange rate of n = 0.7 vol/h is assumed, considering the net volume of the environment equal to Vnet = 0.7 Vgross
qve,k = n ∙ Vnet
Table 15 shows total thermal flow per unitary temperature difference, represented by the HTR coefficient, for opaque walls, windows, and thermal bridges. It highlighted the effect on total heat transmission loss for each analysed element before and after the proposed efficiency solution and lastly, the percentage reduction of HTR coefficient. Table 16 gives details about HVE calculation data.
Table 15.
Linear thermal transmittance and heat transmission coefficient of wall junctions: current situation and proposed intervention. The most effective interventions have been highlighted.
Table 16.
HVE calculation data input.
The analyses conducted on the case-study apartment suggest that about 25% of global heat transmission losses occur through opaque surfaces, as shown in Table 17. Injecting cellulose fibre in the cavity and applying a thermal plaster on the outer side, a 66.10% reduction of heat loss through opaque walls was achieved.
Table 17.
Global transmission heat loss coefficients: comparison and reduction.
Thermal bridges are responsible for 44.6% of total heat transmission losses. The proposed renovation solutions led to an 81.7% reduction of heat loss trough thermal bridges and allow the preservation of the building façade. Besides, results show that non-homogeneous insulation produces a more intense thermal flow than the current situation, even with a local linear thermal transmittance increase. Nevertheless, the insertion of an appropriately designed insulating elements and different kinds of insulating materials represents an effective solution for heat loss reductions. This solution for energy-efficient renovation have a significant impact on heating demand thanks to a 72.77% reduction of heat transmission loss coefficient (Figure 7).
Figure 7.
(a) Global heat losses; (b) impact of walls, windows, and thermal bridges; hatch indicates reduction due to proposed passive design intervention.
5. Discussion
In this study, the impact of façade building components on energy performance in a housing tower dating back to the 1950s has been evaluated. The case study, located in Rome (Italy) is a typical example of INA-Casa heritage-listed building and requires appropriately designed energy-efficient solutions in order to preserve the building façade. Results show that opaque walls and thermal bridges are responsible for approximately 70% of transmission heat losses and represent a severe problem for buildings with similar building technologies. The analyses on opaque components of façades and on junctions show that:
- The energy renovation solution for hollow brick cavity walls tangibly reduces transmission heat loss and thermal inertia, even though it did not reach optimal quality in terms of periodic transmittance (see Section 4.1 and Table 7), as stated by UNI EN ISO 13786 [20]. This is mainly due to constraints imposed by heritage-listed regulation and consequently, to renovation strategies. The cellulose fibre insulating layer reduces wall thermal transmittance and limits the condensation phenomena—frequent in these buildings—but does not increase wall inertia adequately; low density value does not affect surface mass rate. Replacing the external plaster layer with a low conductivity thermal plaster insulating layer is an effective energy-efficient solution—minimum thicknesses considerably increase walls thermal resistance—and preserves façade’s original appearance.
- Local insertion of polyurethane insulating elements in the inner side of the junctions between slabs and external walls (H.04_slab, H.05_slab, H.06_slab) allows for a reduction of about 70–80% of the heat transfer rate due to thermal bridges. Such a relevant result confirms how similar solutions could represent a valid choice for heritage-listed buildings compared to external insulation. Moreover, this implies reasonable costs, rapid execution and does not require operations on the entire apartment block; for these reasons, it can be adopted by owners and can provide access to energy efficiency incentives.
- A correction of vertical thermal bridges, such as junctions between pillars and external walls, could be obtained introducing low conductivity thermal plaster insulating layer, but it has limited impact on transmission heat loss reductions.
- The polyurethane insulating sill placed in addition to the existing one, (H.05_sill, H.07_sill), eliminates thermal bridge of windowsill.
- Replacing roller blind boxes with already-isolated ones allows for thermal separation of the air layer from interior space and elimination of air drafts that represent the majority of heat transfer losses through windows.
- The proposal to restore the loggias, according to best practice, has proved to be a winning strategy as it has allowed to relocate windows into additional thermal insulation.
To summarize, results show that local and light energy renovation solutions produce significant reductions in façade heat transfer coefficient. For most critical junctions, a very low Ψ level has been reached and has led to a relevant decrease in thermal bridges contribution to global heat losses. Similarly, for opaque walls, the relationship between thermal performance obtained and ease of implementation is a valid strategy to intervene quickly, economically, but with significant energy saving implications, on a great part of the Italian building heritage that presents similar construction technology to the case studies.
6. Conclusions
This article assessed the impact of building façade feature on heat losses, and evaluated heat loss reduction due to passive energy-efficient solutions in order to preserve the façade appearance. The study has been carried out on external walls and thermal bridges of a dwelling in a INA-Casa heritage-listed building with reinforced concrete frames and hollow brick cavity walls, located in Rome (Italy). Results indicate that proposed passive strategies produce remarkable energetic improvements, preserving the façade appearance: transmission heat loss coefficient HTR is reduced by 72.7%. Even though these strategies sometimes do not fulfil performance limits imposed by energy regulations in all the building components, thermal transmittance reduction of walls combined with a careful thermal bridges correction shows remarkable advantages, although external wall insulation has a major contribution in reducing heat losses compared to thermal bridges. Concerning the latter, in some cases the linear thermal transmittance value tends to increase and the heat losses have a reduction due to a better performance of the walls.
The twofold objective was to demonstrate the utility of energy-efficient solutions for renovation of residential buildings and the potential reduction of energy demand for heritage-listed building with similar construction technologies. Moreover, the study underlines the effectiveness of simple, affordable and non-invasive interventions if supported by accurate surveys and simulations; therefore, these solutions represent a definite alternative to external insulation. In fact, operations on the outer layer of the façade are often prevented by the lack of a comprehensive renovation strategy for residential apartment blocks that inhibits large-scale interventions without appropriate incentives.
The energy-efficient solutions here presented and discussed aim at promoting feasible design strategies for energy adaptation and emission reduction of the building heritage. Besides, the proposed approach encourages best practice renovation and would address government’s incentives on existing building energy efficiency with particular attention to building heritage preservation.
Author Contributions
G.M. conducted the building survey the experimental analysis and the thermal simulations; G.M. and C.C. designed the energy efficiency solutions; G.M. and M.M. conceived the method; M.M. analyzed and discussed the data; G.M. and M.M. wrote the paper.
Conflicts of Interest
The authors declare no conflict of interest.
Appendix A
The nomenclature used in this article is provided as follows. Further details could be found in Ref. [5,16,22,23].
Table A1.
Nomenclature.
Table A1.
Nomenclature.
| Abbreviation | Definition | Unit |
|---|---|---|
| Ai | Surface area of the building envelope component | m2 |
| btr,x | Correction factor that takes into account the temperature of the bordering environment with the construction element | dimensionless |
| Fr,i | Form factor between the building components and the celestial vault | dimensionless |
| fd | Attenuation factor or decreasing factor | dimensionless |
| fve,t,k | Fraction of time in which the k-th airflow is carried out and which takes into account the actual utilization profile and the infiltrations that occur when the ventilation is not operated | dimensionless |
| HA | Heat transfer coefficient for transmission to other conditioned areas with different temperature | W/K |
| HTR | Global thermal exchange coefficient for transmission of the considered area | W/K |
| HD | Direct thermal exchange coefficient for transmission towards the external environment | W/K |
| Hg | Stationary thermal exchange coefficient for transmission towards the ground | W/K |
| HU | Thermal exchange coefficient for transmission through non-air-conditioned environments | W/K |
| HVE | Global thermal exchange coefficient for ventilation of the considered area | W/K |
| lk | Length of the linear thermal bridge | m |
| n | Air exchange rate | Vol/h |
| nj | Number of punctual thermal bridges | dimensionless |
| qve,k | Minimum design flow rate of outdoor air | m3/s |
| qve,k,mn | Flow rate averaged on airflow time | m3/s |
| QH | Heat energy heating needs | MJ |
| QTR | Heat exchange for transmission in case of heating | MJ |
| QVE | Heat exchange for ventilation in case of heating | MJ |
| Qint | Thermal inputs due to internal sources | MJ |
| Qsol | Thermal inputs due to incident solar radiation on glass components | MJ |
| Ui | Thermal transmittance of the building envelope components 1 | W/m2K |
| V | Volume | m3 |
| η | Utilization factor of thermal energy inputs | dimensionless |
| Φr,mn,i | Extra thermal flow due to infrared radiation towards the sky vault from the building components, mediated on time | W |
| φ | Thermal shift; time delay between the maximum thermal input entering the indoor environment and the maximum temperature of the outdoor environment | hours |
| Ψ | Linear thermal transmittance of the thermal bridge 2 | W/mK |
| θint,set,H | Internal temperature for heating the considered area | °C |
| θe | Average external temperature of the considered month | °C |
| χ j | Punctual thermal transmittance of the thermal bridge | W/K |
| t | Time | s⋅106 |
1 Opaque components: UNI EN ISO 6946 [23]; transparent components: UNI EN ISO 10077-1 [22]; 2 UNI EN ISO 14683 [5].
References
- European Parliament and Council. Directive 2010/31/EU of the European Earliament and of the council of 19th May 2010 on the Energy Performance of Buildings. Off. J. Eur. Union 2010, 18, 6. [Google Scholar]
- Centro ricerche economiche e sociali del mercato dell’edilizia (CRESME). Research Abstract Riuso03: Building Renovation, Energetic Retraining, Urban Regeneration; CRESME: Roma, Italy, 2014. [Google Scholar]
- Sodagar, B. Sustainability potentials of housing refurbishment. Buildings 2013, 3, 278–299. [Google Scholar] [CrossRef]
- Theodosiou, T.G.; Papadopoulos, A.M. The impact of thermal bridges on the energy demand of buildings with double brick wall constructions. Energy Build. 2008, 40, 2083–2089. [Google Scholar] [CrossRef]
- UNI EN ISO 14683-01; Thermal Bridges in Building—Linear Thermal Transmission Coefficient—Simplified Methods and Reference values; International Organization for Standardization: Geneva, Switzerland, 2001.
- UNI EN ISO 10211; Thermal Bridges in Building Construction—Heat Flows and Surface Temperatures—Detailed Calculations; International Organization for Standardization: Geneva, Switzerland, 2007.
- UNI/TS 11300-1; Energy Performance of Buildings—Part 1: Evaluation of Energy Need for Space Heating and Cooling; UNI Ente Italiano di Normazione: Milan, Italy, 2014.
- Ilomets, S.; Kuusk, K.; Paap, L.; Arumägi, E.; Kalamees, T. Impact of linear thermal bridges on thermal transmittance of renovated apartment buildings. J. Civ. Eng. Manag. 2016, 23, 96–104. [Google Scholar] [CrossRef]
- Cappelletti, F.; Corrado, V.; Gasparella, A.; Gorrino, A. Detailed assessment of thermal bridges in highly insulated buildings. In Proceedings of the 10th REHVA Word Congress’ Sustainable Energy Use in Buildings, Antalya, Turkey, 9–12 May 2010. [Google Scholar]
- Evola, G.; Margani, G.; Marletta, L. Energy and cost evaluation of thermal bridge correction in mediterranean climate. Energy Build. 2011, 43, 2385–2393. [Google Scholar] [CrossRef]
- Berggren, B.; Wall, M. Calculation of thermal bridges in (Nordic) building envelopes-risk of performance failure due to inconsistent use of methodology. Energy Build. 2013, 65, 331–339. [Google Scholar] [CrossRef]
- Wehle, B.; Geyer, C.; Müller, A. Energetic and acoustic renovation of residential buildings of the 1950s to the 1970s. Energy Procedia 2015, 78, 895–900. [Google Scholar] [CrossRef]
- Law 373/76; n°373—Standards for energy consumption containment for thermal uses in buildings. In Italian Parliament’s Ordinary Law 07/06/1976; Italian Legislative Institution: Rome, Italy, 1976.
- Municipality of Rome. Piano Regolatore Generale—Norme Tecniche di Attuazione. In Municipal Council Resolution n°18 12/02/. 2008. Available online: http://www.urbanistica.comune.roma.it/images/uo_urban/prg_vigente/prg_nta.pdf (accessed on 22 June 2017).
- Piano Incremento Occupazione Operaia Legge 43/49 e 1148/55; Guida per l’esame dei Progetti delle Costruzioni INA-Casa da Realizzare nel Secondo Settennio; Tipografia Babuino: Rome, Italy, 1955.
- UNI EN ISO 13789; Thermal Performance of Buildings—Heat Loss Coefficient for Transmission—Method of Calculation; International Organization for Standardization: Geneva, Switzerland, 2008.
- Cappelletti, F. Thermal Bridges Classification. Didactic Materials for Technical Systems for Historic Buildings Module. Available online: http://www.iuav.it/Ateneo1/docenti/docenti201/Cappellett/materiali-/Impianti-t/Classificazione-ponti-termici1.pdf (accssed on 22 june 2017).
- DM 26/06/2015; Italian Ministerial Decree 26/06/2015—Applicazione Delle metodologie di Calcolo Delle Prestazioni Energetiche e Definizione Delle Prescrizioni e Dei Requisiti Minimi Degli edifici; Ministry of Economic Development: Rome, Italy, 2015.
- DL 311/06; Italian Government Legislative Decree 29/12/2006, n°311— Disposizioni Correttive ed Integrative al Decreto Legislativo 19 Agosto 2005, n. 192, Recant e Attuazione Della Direttiva 2002/91/CE, Relativa Al Rendimento Energetico Nell'edilizia; Italian Parliament: Rome, Italy, 2006.
- UNI EN ISO 13786; Thermal Performance of Building Components—Dynamic Thermal Characteristics—Methods of Calculation; International Organization for Standardization: Geneva, Switzerland, 2008.
- LBNL. Therm Software. Available online: https://windows.lbl.gov/software/therm/therm.html (accssed on 22 June 2017).
- UNI EN ISO 10077-1; Thermal Performance of Windows, Doors and Blackouts—Calculation of Thermal Transmittance—Part 1: General; International Organization for Standardization: Geneva, Switzerland, 2007.
- UNI EN ISO 6946:2008; Building Components and Elements—Thermal Resistance and Thermal Transmittance—Calculation Method; International Organization for Standardization: Geneva, Switzerland, 2008.
© 2017 by the authors. Licensee MDPI, Basel, Switzerland. This article is an open access article distributed under the terms and conditions of the Creative Commons Attribution (CC BY) license (http://creativecommons.org/licenses/by/4.0/).













































































































