Optimizing the Integration of Building Materials, Energy Consumption, and Economic Factors in Rural Houses of Cold Regions: A Pathway
Abstract
1. Introduction
1.1. Why Choose Rural Houses in Severe Cold Regions for Energy-Saving Renovations
1.2. Existing Studies on Thermal Performance of Building Envelope Structures
1.3. Existing Studies on Energy-Saving Renovation of Rural Houses in Cold Regions
1.4. Why Consider Energy and Economy Synergistically
1.5. Existing Studies on Building Envelope Parameters Considering Energy and Economy
1.6. Climate Condition
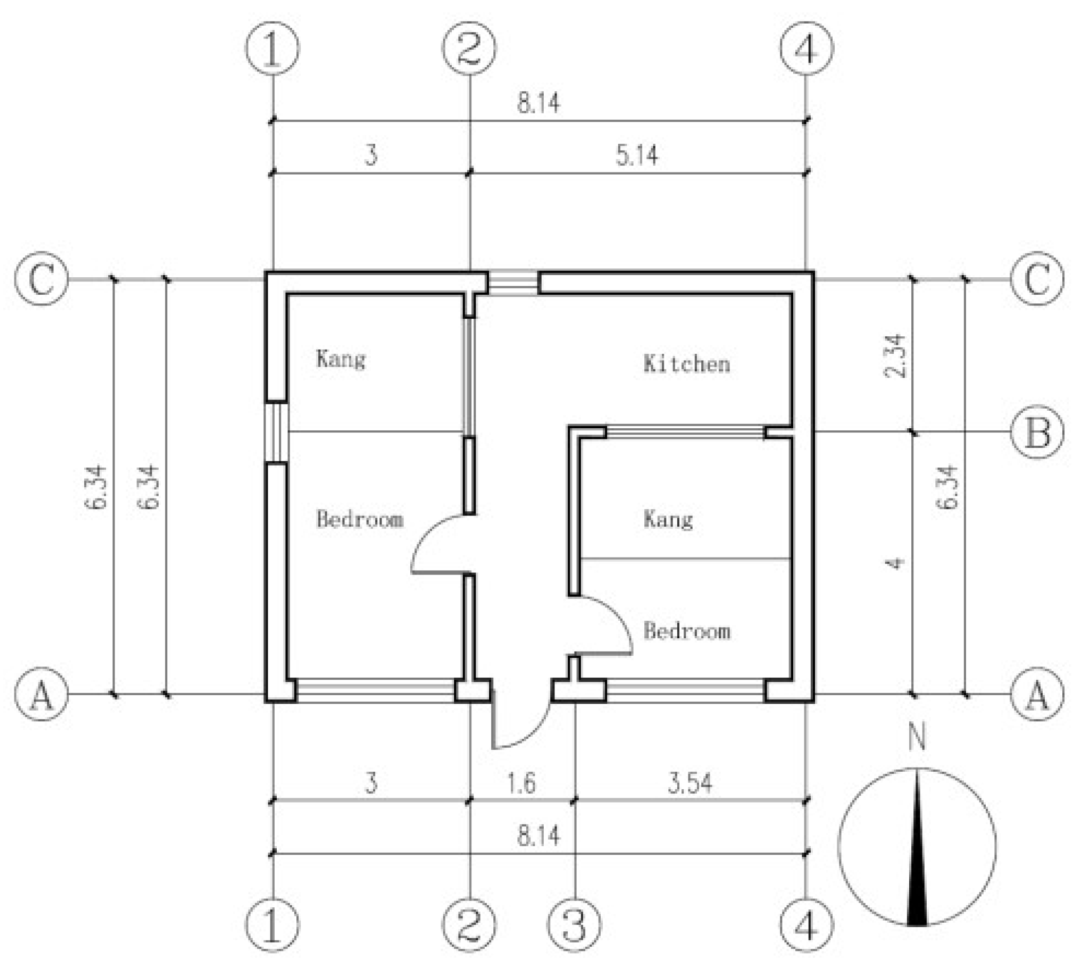
1.7. Basic Information of Rural Houses
- (1)
- Geographical overview
- (2)
- Heating load and equipment
- (3)
- Materials and construction
1.8. Assessment of the Thermal Performance of Existing Rural House Envelope Structures
2. Methodology
2.1. Software Selection
2.2. Simulation Path
3. Result
3.1. Preparation before Simulation
- (1)
- Simulation verification
- (2)
- Selection of research subjects
- (3)
- Parameter setting and program construction
3.2. Comparison of Selected Options
3.3. Performance Comparison of Programs
4. Conclusions
Author Contributions
Funding
Data Availability Statement
Acknowledgments
Conflicts of Interest
Appendix A


References
- Jiang, W.; Liu, B.; Li, Q.; Li, D.; Ma, L. Weight of Energy Consumption Parameters of Rural Residences in Severe Cold Area. Case Stud. Therm. Eng. 2021, 26, 101131. [Google Scholar] [CrossRef]
- Sun, M.; Xue, Y.; Wang, L. Research on Optimized Design of Rural Housing in Cold Regions Based on Parametrization and Machine Learning. Sustainability 2024, 16, 667. [Google Scholar] [CrossRef]
- Curado, A.; de Freitas, V.P. Influence of Thermal Insulation of Facades on the Performance of Retrofitted Social Housing Buildings in Southern European Countries. Sustain. Cities Soc. 2019, 48, 101534. [Google Scholar] [CrossRef]
- Marwan, M. The Effect of Wall Material on Energy Cost Reduction in Building. Case Stud. Therm. Eng. 2020, 17, 100573. [Google Scholar] [CrossRef]
- Li, D.; Zhang, C.; Li, Q.; Liu, C.; Arıcı, M.; Wu, Y. Thermal Performance Evaluation of Glass Window Combining Silica Aerogels and Phase Change Materials for Cold Climate of China. Appl. Therm. Eng. 2020, 165, 114547. [Google Scholar] [CrossRef]
- Zhang, L.; Liu, Z.; Hou, C.; Hou, J.; Wei, D.; Hou, Y. Optimization Analysis of Thermal Insulation Layer Attributes of Building Envelope Exterior Wall Based on DeST and Life Cycle Economic Evaluation. Case Stud. Therm. Eng. 2019, 14, 100410. [Google Scholar] [CrossRef]
- Khoukhi, M.; Hassan, A.; Abdelbaqi, S. The Impact of Employing Insulation with Variant Thermal Conductivity on the Thermal Performance of Buildings in the Extremely Hot Climate. Case Stud. Therm. Eng. 2019, 16, 100562. [Google Scholar] [CrossRef]
- Kumar, D.; Alam, M.; Zou, P.X.W.; Sanjayan, J.G.; Memon, R.A. Comparative Analysis of Building Insulation Material Properties and Performance. Renew. Sustain. Energy Rev. 2020, 131, 110038. [Google Scholar] [CrossRef]
- Llantoy, N.; Chàfer, M.; Cabeza, L.F. A Comparative Life Cycle Assessment (LCA) of Different Insulation Materials for Buildings in the Continental Mediterranean Climate. Energy Build. 2020, 225, 110323. [Google Scholar] [CrossRef]
- Braulio-Gonzalo, M.; Bovea, M.D. Environmental and Cost Performance of Building’s Envelope Insulation Materials to Reduce Energy Demand: Thickness Optimisation. Energy Build. 2017, 150, 527–545. [Google Scholar] [CrossRef]
- Ustaoglu, A.; Kurtoglu, K.; Yaras, A. A Comparative Study of Thermal and Fuel Performance of an Energy-Efficient Building in Different Climate Regions of Turkey. Sustain. Cities Soc. 2020, 59, 102163. [Google Scholar] [CrossRef]
- Khoukhi, M. The Combined Effect of Heat and Moisture Transfer Dependent Thermal Conductivity of Polystyrene Insulation Material: Impact on Building Energy Performance. Energy Build. 2018, 169, 228–235. [Google Scholar] [CrossRef]
- Ziapour, B.M.; Rahimi, M.; Yousefi Gendeshmin, M. Thermoeconomic Analysis for Determining Optimal Insulation Thickness for New Composite Prefabricated Wall Block as an External Wall Member in Buildings. J. Build. Eng. 2020, 31, 101354. [Google Scholar] [CrossRef]
- Raimundo, A.M.; Saraiva, N.B.; Oliveira, A.V.M. Thermal Insulation Cost Optimality of Opaque Constructive Solutions of Buildings under Portuguese Temperate Climate. Build. Environ. 2020, 182, 107107. [Google Scholar] [CrossRef]
- Lee, C.; Won, J. Analysis of Combinations of Glazing Properties to Improve Economic Efficiency of Buildings. J. Clean. Prod. 2017, 166, 181–188. [Google Scholar] [CrossRef]
- Jiang, W.; Liu, B.; Zhang, X.; Zhang, T.; Li, D.; Ma, L. Energy Performance of Window with PCM Frame. Sustain. Energy Technol. Assess. 2021, 45, 101109. [Google Scholar] [CrossRef]
- Ren, J.; Zhou, X.; An, J.; Yan, D.; Shi, X.; Jin, X.; Zheng, S. Comparative Analysis of Window Operating Behavior in Three Different Open-Plan Offices in Nanjing. Energy Built Environ. 2021, 2, 175–187. [Google Scholar] [CrossRef]
- Kahsay, M.T.; Bitsuamlak, G.T.; Tariku, F. Effect of Window Configurations on Its Convective Heat Transfer Rate. Build. Environ. 2020, 182, 107139. [Google Scholar] [CrossRef]
- Hashemi, A.; Alam, M.; Ip, K. Comparative Performance Analysis of Vacuum Insulation Panels in Thermal Window Shutters. Energy Procedia 2019, 157, 837–843. [Google Scholar] [CrossRef]
- Lyu, Y.-L.; Liu, W.-J.; Su, H.; Wu, X. Numerical Analysis on the Advantages of Evacuated Gap Insulation of Vacuum-Water Flow Window in Building Energy Saving under Various Climates. Energy 2019, 175, 353–364. [Google Scholar] [CrossRef]
- Guo, W.; Kong, L.; Chow, T.; Li, C.; Zhu, Q.; Qiu, Z.; Li, L.; Wang, Y.; Riffat, S.B. Energy Performance of Photovoltaic (PV) Windows under Typical Climates of China in Terms of Transmittance and Orientation. Energy 2020, 213, 118794. [Google Scholar] [CrossRef]
- Polo-Labarrios, M.A.; Quezada-García, S.; Sánchez-Mora, H.; Escobedo-Izquierdo, M.A.; Espinosa-Paredes, G. Comparison of Thermal Performance between Green Roofs and Conventional Roofs. Case Stud. Therm. Eng. 2020, 21, 100697. [Google Scholar] [CrossRef]
- Ramamurthy, P.; Sun, T.; Rule, K.; Bou-Zeid, E. The Joint Influence of Albedo and Insulation on Roof Performance: An Observational Study. Energy Build. 2015, 93, 249–258. [Google Scholar] [CrossRef]
- Fantucci, S.; Serra, V. Investigating the Performance of Reflective Insulation and Low Emissivity Paints for the Energy Retrofit of Roof Attics. Energy Build. 2019, 182, 300–310. [Google Scholar] [CrossRef]
- Nandapala, K.; Chandra, M.S.; Halwatura, R.U. A Study on the Feasibility of a New Roof Slab Insulation System in Tropical Climatic Conditions. Energy Build. 2020, 208, 109653. [Google Scholar] [CrossRef]
- Saafi, K.; Daouas, N. A Life-Cycle Cost Analysis for an Optimum Combination of Cool Coating and Thermal Insulation of Residential Building Roofs in Tunisia. Energy 2018, 152, 925–938. [Google Scholar] [CrossRef]
- Dehwah, A.H.A.; Krarti, M. Impact of Switchable Roof Insulation on Energy Performance of US Residential Buildings. Build. Environ. 2020, 177, 106882. [Google Scholar] [CrossRef]
- Kivioja, H.; Vinha, J. Hot-Box Measurements to Investigate the Internal Convection of Highly Insulated Loose-Fill Insulation Roof Structures. Energy Build. 2020, 216, 109934. [Google Scholar] [CrossRef]
- Shao, T.; Zheng, W.; Jin, H. Analysis of the Indoor Thermal Environment and Passive Energy-Saving Optimization Design of Rural Dwellings in Zhalantun, Inner Mongolia, China. Sustainability 2020, 12, 1103. [Google Scholar] [CrossRef]
- Cui, Y.; Sun, N.; Cai, H.; Li, S. Indoor Temperature Improvement and Energy-Saving Renovations in Rural Houses of China’s Cold Region—A Case Study of Shandong Province. Energies 2020, 13, 870. [Google Scholar] [CrossRef]
- Li, E.; Chen, L.; Zhang, T.; Zhu, J.; Hou, R. A Nearly Zero Energy Building Design Method Based on Architecture Form Design for High Solar Exposure Areas in China’s Severe Cold and Cold Regions. J. Build. Eng. 2022, 45, 103641. [Google Scholar] [CrossRef]
- Xi, H.; Gao, H.; Hou, W.; Yin, B.; Zuo, J.; Zhao, H. Multi-Objective Optimization for Winter Heating Retrofit in Rural Houses of Cold Regions: A Case Study in the Wusu Area. Appl. Sci. 2024, 14, 3760. [Google Scholar] [CrossRef]
- Alev, Ü.; Eskola, L.; Arumägi, E.; Jokisalo, J.; Donarelli, A.; Siren, K.; Broström, T.; Kalamees, T. Renovation Alternatives to Improve Energy Performance of Historic Rural Houses in the Baltic Sea Region. Energy Build. 2014, 77, 58–66. [Google Scholar] [CrossRef]
- Hu, X.; Jokisalo, J.; Kosonen, R.; Lehtonen, M.; Shao, T. Cost-Optimal Renovation Solutions for Detached Rural Houses in Severe Cold Regions of China. Buildings 2023, 13, 771. [Google Scholar] [CrossRef]
- Jiang, W.; Ju, Z.; Tian, H.; Liu, Y.; Arıcı, M.; Tang, X.; Li, Q.; Li, D.; Qi, H. Net-Zero Energy Retrofit of Rural House in Severe Cold Region Based on Passive Insulation and BAPV Technology. J. Clean. Prod. 2022, 360, 132198. [Google Scholar] [CrossRef]
- GB 55015-2021; Ministry of Housing and Urban-Rural Development of the People’s Republic of China, General Code for Energy Efficiency and Renewable Energy Application in Buildings. China Building Industry Press: Beijing, China, 2021.
- Wang, Y.; Hu, L.; Hou, L.; Cai, W.; Wang, L.; He, Y. Study on Energy Consumption, Thermal Comfort and Economy of Passive Buildings Based on Multi-Objective Optimization Algorithm for Existing Passive Buildings. J. Clean. Prod. 2023, 425, 138760. [Google Scholar] [CrossRef]
- Li, Q.; Ju, Z.; Wang, Z.; Ma, L.; Jiang, W.; Li, D.; Jia, J. Thermal Performance and Economy of PCM Foamed Cement Walls for Buildings in Different Climate Zones. Energy Build. 2022, 277, 112470. [Google Scholar] [CrossRef]
- Jia, J.; Liu, B.; Ma, L.; Wang, H.; Li, D.; Wang, Y. Energy Saving Performance Optimization and Regional Adaptability of Prefabricated Buildings with PCM in Different Climates. Case Stud. Therm. Eng. 2021, 26, 101164. [Google Scholar] [CrossRef]
- Luo, Z.; Lu, Y.; Cang, Y.; Yang, L. Study on Dual-Objective Optimization Method of Life Cycle Energy Consumption and Economy of Office Building Based on HypE Genetic Algorithm. Energy Build. 2022, 256, 111749. [Google Scholar] [CrossRef]
- Jiang, W.; Jin, Y.; Liu, G.; Li, Q.; Li, D. Passive Nearly Zero Energy Retrofits of Rammed Earth Rural Residential Buildings Based on Energy Efficiency and Cost-Effectiveness Analysis. Renew. Sustain. Energy Rev. 2023, 180, 113300. [Google Scholar] [CrossRef]
- GB 50176-2016; Ministry of Housing and Urban-Rural Development of the People’s Republic of China, Code for Thermal Design of Civil Building. China Building Industry Press: Beijing, China, 2016.











| Material | Conductivity (W/(m·K)) | Density (kg/m3) | Specific Heat (J/(kg·K)) | 
|---|---|---|---|
| Cement mortar | 0.93 | 1800 | 1050 | 
| Plastering | 0.81 | 1600 | 1050 | 
| Clay brick | 0.81 | 1800 | 1050 | 
| Polymer-modified asphalt waterproof coiled material | 0.17 | 600 | 1470 | 
| Polyurethane (PUR) waterproof coating | 0.17 | 600 | 1005 | 
| Reinforced concrete roof slab | 1.74 | 2500 | 920 | 
| Color steel plate | 58.2 | 7850 | 480 | 
| Floor tile | 1.59 | 1920 | 1260 | 
| Concrete | 1.51 | 2300 | 920 | 
| Glass | 0.76 | 2500 | 840 | 
| Air layer | 0.017 | 1 | 1010 | 
| Expanded polystyrene board (EPS) | 0.039 | 20 | 1380 | 
| Extruded polystyrene board (XPS) | 0.03 | 35 | 1380 | 
| PUR | 0.024 | 50 | 1380 | 
| Rock wool (RW) | 0.041 | 120 | 1220 | 
| Expanded perlite (EP) | 0.058 | 100 | 1170 | 
| Envelope | Construction (from Outside to Inside) | 
|---|---|
| Outer wall | Cement mortar (15 mm), Clay brick (490 mm), Plastering (20 mm) | 
| Interior wall | Plastering (20 mm), Clay brick (240 mm), Plastering (20 mm) | 
| Flat roof | 1:3 Cement mortar (20 mm), Low-strength cement mortar (10 mm), Polymer-modified asphalt waterproof coiled material (4 mm), 1:3 Cement mortar (20 mm), XPS (140 mm), PUR waterproof coating (1.2 mm), 1:3 Cement mortar (20 mm), Reinforced concrete roof slab (120 mm) | 
| Sloping roof | Color steel plate (wood beam support) (0.6 mm) | 
| Ground | Floor tile (8 mm), 1:3 Cement mortar (30 mm), Concrete (60 mm) | 
| Outer window | Glass (5 mm) | 
| Inner window | Glass (3 mm) | 
| Minimum K-Value Satisfying the Limit Specified in [36] | Actual Situation | K Difference | |
|---|---|---|---|
| K (W/(m2·K)) | K (W/(m2·K)) | K (W/(m2·K)) | |
| Wall | 0.25 | 1.25 | 1 | 
| Roof | 0.2 | 0.2 | 0 | 
| Window | 1.4 | Subject to specific circumstances | |
| Construction Parameters | Unit | ||
|---|---|---|---|
| Window | South-facing window-to-wall ratio (WWR) | 0.3 | - | 
| Solar heat gain coefficient (SHGC) | 0.35 | - | |
| External wall heat transfer coefficient | 0.25 | W/(m2·K) | |
| Roof heat transfer coefficient | 0.2 | W/(m2·K) | |
| Overhanging floor slab heat transfer coefficient | 0.25 | W/(m2·K) | |
| Indoor thermal disturbance parameters | Unit | ||
| People | 0.04 | number/m2 | |
| Lighting | 5 | W/m2 | |
| Equipment | 3.8 | W/m2 | |
| Heating control (setpoint) | 18 | °C | |
| EPS | XPS | PUR | RW | EP | |
|---|---|---|---|---|---|
| Wall | 120 | 100 | 80 | 130 | 180 | 
| Roof | 180 | 140 | 110 | 190 | 270 | 
| Independent | Types of Insulation Materials | Insulation Material Thickness | Number of Window Layers | Glass Thickness | Air Gap Thickness | 
|---|---|---|---|---|---|
| EPS, XPS, PUR, RW and EP | 50–300 mm | Single-Layer/Double-Layer | 3–12 mm | 6 mm–20 mm | |
| Dependent | Energy saving rate | Cost input | Payback period | ||
| EPS | XPS | PUR | RW | EP | Glass | |
|---|---|---|---|---|---|---|
| Price | 302.8 CNY/m3 | 607.06 CNY/m3 | 1268.69 CNY/m3 | 346.65 CNY/m3 | 462.84 CNY/m3 | 7 CNY/(mm·m2) | 
| Solution | Wall | Roof | Window | Energy Saving Rate (%) | Annual Energy Consumption per Unit Area (kW·h/(m2·a)) | Cost Input (CNY) | Payback Period (Year) | ||
|---|---|---|---|---|---|---|---|---|---|
| Insulation Material | Thickness (mm) | Insulation Material | Thickness (mm) | Thickness (mm) | |||||
| 1 | XPS | 290 | XPS | 300 | 11 + 16A + 11 | 83.29 | 31.28 | 18,502 | 11.68 | 
| 2 | XPS | 290 | EPS | 270 | 10 + 16A + 10 | 81.35 | 34.92 | 13,522 | 8.74 | 
| 3 | RW | 300 | RW | 100 | 11 + 16A + 11 | 80.19 | 37.09 | 6240 | 4.09 | 
| 4 | RW | 50 | RW | 260 | 10 + 20A + 10 | 78.23 | 40.77 | 2567 | 1.73 | 
| 5 | RW | 130 | RW | 80 | 9 + 16A + 9 | 65.57 | 64.47 | 1401 | 1.12 | 
| 6 | RW | 50 | RW | 90 | 10 + 16A + 10 | 55.79 | 82.78 | −273 | −0.26 | 
| 7 | RW | 50 | EPS | 90 | 8 + 16A + 8 | 46.81 | 99.60 | −751 | −0.84 | 
| 8 | RW | 50 | RW | 60 | 9 + 12A + 9 | 41.48 | 109.58 | −918 | −1.16 | 
| Solution | Insulation Material | Wall | Roof | Window | Energy Saving Rate (%) | Annual Energy Consumption per Unit Area (kW·h/(m2·a)) | Cost Input (CNY) | Payback Period (Year) | 
|---|---|---|---|---|---|---|---|---|
| Thickness (mm) | ||||||||
| 1 | RW | 140 | 280 | 11 + 16A + 11 | 79.36 | 38.65 | 5278 | 3.5 | 
| 2 | RW | 130 | 280 | 10 + 16A + 10 | 79.26 | 38.83 | 4886 | 3.24 | 
| 3 | RW | 130 | 280 | 5 + 6A + 5 | 75.68 | 45.53 | 4166 | 2.9 | 
| 4 | RW | 150 | 200 | 5 + 16A + 5 | 73.81 | 49.03 | 3326 | 2.37 | 
| 5 | RW | 130 | 200 | 3 + 20A + 3 | 73.54 | 49.54 | 2542 | 1.82 | 
| 6 | RW | 150 | 150 | 4 + 16A + 4 | 68.24 | 59.47 | 2347 | 1.81 | 
| 7 | RW | 130 | 170 | 3 + 20A + 3 | 64.87 | 65.78 | 2041 | 1.66 | 
| 8 | RW | 130 | 130 | 3 + 9A + 3 | 63.34 | 68.67 | 1373 | 1.14 | 
| Name | GBSWARE | Automatic Optimization Path | 
|---|---|---|
| Ease of operation | Both of them require the model to be constructed first, followed by inputting material parameters and structures, and then the simulation can be carried out. | |
| Function | The focus is on checking whether the heat transfer coefficients of various parts of the building envelope and the annual total energy consumption are within the specified limits. Only one result can be generated at a time, and if the thermal design does not meet the requirements of Regulation [36], adjustments need to be made by the practitioners themselves. | Support is provided for multi-variable, multi-objective automatic parameter optimization. Multiple renovation plans considering both energy saving degree and economic benefits can be generated in one go. Practitioners only need to select the plan they deem most reasonable. | 
| Response time | Simulations with energy consumption as the single objective can be completed within a few minutes. | |
| Simulation engine | DOE-2 | EnergyPlus | 
| Output results | The accuracy of energy consumption simulations has been widely validated by the industry. | The simulation verification section in Section 3.1 (1) demonstrated the accuracy of energy consumption simulations. | 
| Central Processing Unit | Memory | Graphics Card | Mainboard | 
|---|---|---|---|
| Intel Core i7-8750H @2.20GHz Hexa | 32 GB (Hynix DDR4 2666 MHz 16 GB/Micron DDR4 2666 MHz 16 GB) | NVIDIA GeForce GTX 1070 (8 GB/Asus) | Asus GL504 GS (HM370 Chipset) | 
| Disclaimer/Publisher’s Note: The statements, opinions and data contained in all publications are solely those of the individual author(s) and contributor(s) and not of MDPI and/or the editor(s). MDPI and/or the editor(s) disclaim responsibility for any injury to people or property resulting from any ideas, methods, instructions or products referred to in the content. | 
© 2024 by the authors. Licensee MDPI, Basel, Switzerland. This article is an open access article distributed under the terms and conditions of the Creative Commons Attribution (CC BY) license (https://creativecommons.org/licenses/by/4.0/).
Share and Cite
Wang, H.; Liu, B.; Wu, W. Optimizing the Integration of Building Materials, Energy Consumption, and Economic Factors in Rural Houses of Cold Regions: A Pathway. Buildings 2024, 14, 2760. https://doi.org/10.3390/buildings14092760
Wang H, Liu B, Wu W. Optimizing the Integration of Building Materials, Energy Consumption, and Economic Factors in Rural Houses of Cold Regions: A Pathway. Buildings. 2024; 14(9):2760. https://doi.org/10.3390/buildings14092760
Chicago/Turabian StyleWang, Hui, Bo Liu, and Weidong Wu. 2024. "Optimizing the Integration of Building Materials, Energy Consumption, and Economic Factors in Rural Houses of Cold Regions: A Pathway" Buildings 14, no. 9: 2760. https://doi.org/10.3390/buildings14092760
APA StyleWang, H., Liu, B., & Wu, W. (2024). Optimizing the Integration of Building Materials, Energy Consumption, and Economic Factors in Rural Houses of Cold Regions: A Pathway. Buildings, 14(9), 2760. https://doi.org/10.3390/buildings14092760
 
        
 
       