Next Article in Journal
A Framework for the Characterization of Aviation Construction Projects: The Case of UAE
Previous Article in Journal
Space Efficiency in North American Skyscrapers
 
 
Font Type:
Arial Georgia Verdana
Font Size:
Aa Aa Aa
Line Spacing:
Column Width:
Background:
Article

Challenging the Western Framing of Sustainability: A Contextual Analysis of Four Architectural Projects in Kenya

by
Faith Ng’eno Chelang’at
1 and
Ranald Lawrence
2,*
1
Department of Architecture, Jomo Kenyatta University of Agriculture and Technology, P.O. Box 62000, Nairobi 00200, Kenya
2
The Liverpool School of Architecture, University of Liverpool, 25 Abercromby Square, Liverpool L69 7ZN, UK
*
Author to whom correspondence should be addressed.
Buildings 2024, 14(8), 2383; https://doi.org/10.3390/buildings14082383
Submission received: 14 April 2024 / Revised: 5 July 2024 / Accepted: 13 July 2024 / Published: 1 August 2024
(This article belongs to the Section Architectural Design, Urban Science, and Real Estate)

Abstract

Sustainable design discourse reflects diverse understandings and ideological perspectives, leading to a profusion of codes, guides, approaches and solutions, with competing claims to relevance in different contexts. This article presents a comparative investigation of four architectural projects in Nairobi, Kenya, focusing on the sustainable design approaches of different design teams, clients, and other stakeholders. The study includes interviews with architects together with field observations. The analysis examines technical and ideological approaches to sustainability, comparing the influence of techno-centric ‘Western’ approaches with low-tech alternatives, before reflecting on the most appropriate design strategies for the social and climate context. The findings highlight the significance of collaboration and conflicts between stakeholders, and the implications for design decisions. It examines the complexities, challenges, and trade-offs inherent to achieving a sustainable outcome when stakeholders with different interpretations of sustainability are brought together. Four related systematic problems concerning the practice of sustainable design in Kenya are identified: the maladaptation of Western design approaches; misunderstanding of local context; a normative bias towards technological solutions; and the prioritisation of economic considerations.

1. Introduction

In recent years, a growing international consensus about the anthropomorphic nature of climate change, together with the need to take remedial action, has led to a renewed focus on the need for sustainable design principles to inform the design of the built environment. Much of the existing literature examines the origins and the validity of competing definitions of sustainability, usually from a Western perspective, where more mature regulatory environments together with the specialisation of the built environment profession have turned a challenge into a business opportunity—‘sustainability’ demands new design tools, new technology, new materials, new metrics, new skills, and new auditing frameworks. In this context, conflicts often arise between the overarching goals of sustainable practice, and the financial imperatives that drive underpinning commercial behaviour. Often the industry groups and organisations that have been established to promote sustainable design principles or methodologies are wholly funded by businesses who provide the products or services required to achieve these objectives, with little independent oversight. This is clearly problematic in any context; but the consequences in the developing world, have, until now, largely been ignored.
Recent UN Climate Change COP meetings have focused on setting Nationally Determined Contributions for member states to curb carbon emissions in a drive to meet the agreed +2C limit on average global temperatures. The construction and operation of buildings results in 37% of global greenhouse gas emissions, or 10bn tCO2 annually [1]. As of 2021, 40% of countries have developed mandatory building energy codes for part of their building stock. Green building assessment and rating systems continue to grow in popularity, with a 19% year-on-year increase in building certifications from 2020 [1]. In a separate paper, the authors examine how energy codes and rating systems that originated in the West are now being adopted more widely by developing countries, with little attempt to contextualise or adapt their frameworks for very different climatic, social and political contexts [2]. As a consequence of an already saturated Western market, developing world countries are now viewed as a growth market for sustainable building services. However, very little research has been carried out to ascertain the appropriateness of ‘sustainable’ products and services, as defined in the West, for the design of typical buildings on the ground in a country like Kenya.
Local policies in Kenya provide broad guidelines primarily focused on environmental concerns. However, due to the vagueness of these policies, implementation is a challenge. In addition to Kenya’s constitution, the Climate Change Act (2016), the Environmental Management and Coordination Act (1999), Environmental Impact Assessment and Audit Regulations (2003) and the Energy Efficiency and Conservation Act (2019) all encompass how development affects the environment [3]. Nevertheless, none of these acts explicitly addresses sustainable building design.
Local organisations with both global and local interests, such as the Architectural Association of Kenya (AAK), Kenya Green Building Society, UN Habitat Kenya, and the Green Africa Foundation have initiated dialogue with government institutions aimed at developing strategies, policies and assessment systems for sustainable design suitable for the local context. However, this dialogue has yet to lead to the adoption of tangible regulations or policies for sustainable building design that are contextually relevant and enforced.
Collaboration between stakeholders in sustainable design in Kenya is complicated by the rudimentary legislative framework, still largely founded on the 1968 Building Code, and the relative novelty of sustainability assessment and certification [4]. As of 2022, only 13 architectural projects in Kenya have been fully certified (11 employing LEED; 2 employing Green Star SA-Kenya), with a further 20 in progress [1,5].
This has led to demand from clients for international expertise, perceived as necessary to address the technical complexity inherent in a Western approach to sustainable design. This will often prioritise quantifiable criteria such as energy performance over social, economic, or cultural aspects of sustainable design [2]. However, carbon emissions from developing countries are often insignificant compared with Western countries. Lower energy demand often means that it is more straightforward to transition to sustainable sources of energy. Hydro-electric is the main source of power generation in many African countries, including the Democratic Republic of Congo, Ethiopia, Malawi, Mozambique, Uganda, Zambia and Kenya [6]. By contrast, economic and social aspects of sustainability are more consequential for improving quality of life in developing countries compared to a Western context [7,8]. Lack of understanding of local context and competing priorities from local and international clients and professionals therefore often leads to conflicts in design approaches and outcomes.
This article examines four case studies of institutional buildings in Kenya, all designed with sustainable goals in mind, and seeks to identify (a) key stakeholders’ understanding of sustainability through their design, (b) whether this truly reflects conditions on the ground, and (c) the benefits accrued by different stakeholders by adopting a ‘sustainable’ approach. By illuminating the processes through which sustainable design is achieved within Kenya, the study aims to challenge the dominant Western rhetoric by highlighting priorities, complexities and opportunities embedded in the context, contributing towards a more nuanced understanding of the discourse of sustainable design in developing countries.

2. Literature Review

2.1. Ideological Approaches to Sustainable Design

Guy and Farmer argue that sustainability can be viewed as ‘a landscape of often fragmented, contradictory and competing values and interests’ [9]. Similarly, Yaneva interrogates the process of architectural design, and the resultant building as an artefact, by critically questioning who and what makes a building possible [10]. She argues that it is impossible to divorce the technical skill that goes into a building from the politics that surround the project. Beyond the physical technical performance of the building, it is important to understand the institutional, social, and economic context within which buildings are constructed, used, and assessed [11].
In recent years, the discourse of sustainable design has propagated a profusion of constructs covering its definition, appropriate approaches, and solutions through a diverse anthology of codes, guides, best-practice notes, standards, and other documents. Sustainability has been articulated in different ways as a result of competing ideological underpinnings, often with claims to global relevance.
The discourse of sustainability is shaped by diverse social, cultural, economic, and environmental interpretations. Different stakeholders have diverse biases, interests and priorities that influence their perceptions of sustainable design [12,13,14,15]. In order to understand the processes of dialogue and negotiation between stakeholders that lead to a shared or disputed vision of sustainable design, it is first important to explore some of the most common approaches.

2.2. Nature as a Model: Biocentric Approach

The biocentric approach traces its sustainable design roots to environmental discourse and is largely concerned with how buildings relate to, react to, and influence nature and ecological systems. It argues that sustainable design should value nature not just for its benefits to man, but more importantly, for its own sake [16,17]. This approach affords nature greater value and thus demands greater consideration while dealing with the natural environment during the design process. Due to their invasive presence within an existing natural environment, from an eco-centric perspective, buildings may be viewed as parasites [18]. This approach is not opposed to the use of natural resources, but ‘it does affirm their right to continued existence’ [19]. It is how these resources are used, and to what end, that raises ethical concerns.

2.3. Learning from Nature: Biomimicry

Girardet describes how the ‘metabolism’ of contemporary urban cities is characteristically linear, with very little consideration of where resources originate and where waste is eventually deposited [20]. It is therefore ‘less of a system and more of a collection of linear flows’ [21]. Conversely, Edwards argues that ‘nature creates the maximum richness and complexity with the minimum of resources and the maximum of recycling; whereas human kind creates the minimum of richness and complexity with the maximum of resources and minimum recycling’. He draws an analogy between ‘buildings (species) and cities (habitats)’ [22]. This approach considers the relationship of buildings to their wider environment, ensuring the city functions as an eco-system that produces resources it requires, utilises them, and recycles them for reuse.
Similarly, buildings can model the behaviour of natural systems [23]. A typical example is the termite mound that maintains a constant temperature and humidity irrespective of the circumambient condition, resulting from the opening and closing of vents on the mound all through the day. Benuys defines biomimicry as ‘the conscious emulation of life’s genius’ [24]. Multiple authors propose that through the observation and deeper understanding of natural principles and systems, sustainable, adaptive and resilient strategies can be developed and applied to ensure that built environments can co-exist with natural environments [25,26,27,28].

2.4. Climate Responsive Design: Bioclimatic Approach

Climate-responsive design describes the characteristics of regional architecture that respond to features of the local climate. According to Hyde, traditional buildings ‘encapsulate thousands of years of unconscious research into the relationship between buildings and climate’ [29]. Olgyay explains that populations with similar backgrounds developed new strategies to deal with climate as they migrated into different climatic conditions [30]. Those who experienced extreme cold temperatures, developed ways to insulate their shelters and conserve heat while those in hot-humid areas encountered the challenge of heat reduction and shading from the extreme heat and glare from the sun.
The bioclimatic approach was advanced through the works of Aldar and Victor Olgyay in 1951, Baruch Givoni in 1969, and Otto Koenigsberger in 1973 [31,32,33]. Olgyay’s 1963 book, Design with Climate, was influential in outlining the relationship between architecture, climate, and humans [30].
According to Jones, bioclimatic design is an approach ‘which is inspired by nature and which implies a sustained logic to every aspect of the project, focused on optimising and using the environment’ [34]. Ferstl submits that climate appropriate design involves creating ‘a building (or an urban structure) in such a way that an optimal (comfortable) or at least tolerable climate is created for the users, while employing as little energy and technical equipment as possible’ [35]. From these definitions, the bioclimatic approach is focused on the creation of comfortable indoor spaces with minimal energy demand and minimal mechanical intervention.
Recent studies have argued that bioclimatic design not only enhances a building’s energy efficiency and the comfort and wellbeing of its users but also ensures that projects are contextually relevant [36,37,38,39]. For tropical climatic regions like Nairobi, Kenya, the most fundamental climatic consideration is solar radiation. The sun directly influences almost all aspects of design, from orientation to material choice and energy requirements. The Tropical Architecture movement had its roots in climate responsive design geared towards little or no mechanical control, particularly in developing countries. In the 1950s and 1960s, buildings were designed in response to the tropical climate to protect colonial Europeans against extremes of weather and disease. In Nairobi, for example, Amyas Connell was a protagonist of the movement working from the 1950s–1980s.

2.5. Place and Culture: Eco-Cultural Approach

Cultural values are reflective of people’s ethical underpinnings, which influence how people relate to each other and to their natural environment, which in turn determines how they construct problems and their solutions [22]. Robinson et al. suggest that an ethical consideration of sustainability should consider the ethical correlation between sustainability and socio-political issues [40]. This requires not only behavioural change involving choices that guarantee environmental sustainability, but also processes that involve the community in making decisions that affect them and their environment. This ensures that sustainability resonates with a community’s ‘needs, values and cultural identity’. Sustainability should therefore nurture culture. This sense of belonging and identity created by culture fosters community cohesion and reinforces meaning in place.
Vernacular architecture has therefore gained popularity in sustainable discourse, due to the intelligible manner in which it manifests its context. McLennan suggests that ‘many of the ideas discussed within the sustainable design field are not new ideas, but those that have existed for centuries’ [23].
Oliver argues that any successful sustainable design intervention must involve the active participation of the community, taking into cognisance the ‘values, morals, building skills, experiences and wisdom’ of the people it is intended for [41]. The active involvement of communities acknowledges the diversity and the specificity of place and culture, and therefore, constructs an informed extensive understanding of problems and practicable solutions and resources to realise those solutions in response to complex contextual dynamics, while bestowing the community with a sense of ownership, empowerment, and identity.
Appreciating the intricate relationship between culture and sustainability is essential to developing solutions that are not only environmentally responsible but also socially relevant and just. Culture represents the values, traditions and practices of society that influence perceptions and behaviour concerning environmental responsibility. Understanding culture is therefore imperative for the development of sustainable design approaches that are representative of social context [42,43,44].

2.6. The Place of Technology: Eco-Technical Approach

Architecture is reflective of and reactive to technological innovation. It has been argued that as technology advances, architecture is reduced from a product of cultural diversity to a mechanical, minimalist product of function [45]. Recent technological developments have focused on minimising the environmental impact of buildings by reducing energy consumption [46,47,48]. The term ‘ecotechnic logic’ [18], describes a techno-centric approach that advocates the continuance of modernisation and mitigation of environmental concerns through science and technology. This globalised rationale attempts to tackle larger issues such as carbon emissions, global warming, and climate change. Rather than abandoning the path of industrial growth, the approach advocates the creation of more technically efficient solutions to mitigate environmental challenges. With regard to buildings, technology as a tool to achieve sustainable design has been employed in two ways. On the one hand, buildings are divorced from the external climate, with technology employed to reduce energy losses, as exemplified by the Passive Haus concept. On the other hand, ‘smart’ systems and more recently artificial intelligence (AI) are used to interact with and optimise the internal environment [49].
Slessor argues that the eco-technical approach does not afford sufficient attention to the human experience of ecological systems and nature’s cycles within and without the building, treating the building like an autonomous machine [50]. The approach is largely quantitative, evaluated through the reduction of energy and water use, embodied carbon and waste. This is expressed in concepts such as Whole Life Cycle Analysis [51], which involves the optimisation of building performance essentially through technological means, with a focus on measurable performance. In many instances, the approach reduces sustainable design to what Fisher refers to as ‘carbon accountancy’ [52].
A technocentric approach often attempts to apply technological solutions universally. These ‘solutions’ are often mass produced and distributed globally, ignoring the social, political, and economic peculiarities of the contexts they are being introduced to [53]. However, the value and usage of a technological innovation is not embedded in its production, and as a result, technology cannot be universal. Deleuze submits that ‘machines are social before being technical. Or rather, there is human technology before there is material technology’ [53]. Therefore, it is impossible to evaluate technology outside its social context.

2.7. The Market and Sustainability: Eco-Development

Klein argues that carbon emissions are merely a symptom of capitalist, consumerist systems that exploit resources [54]. In many ways, market forces have influenced how sustainability has been defined and articulated. The complex interaction between sustainability and market forces [55,56] leads to the question: are sustainability practices transforming the market or is the market transforming sustainability practices?
The ‘eco-development’ approach to sustainability is predominantly inspired by the Brundtland Commission’s work and is closely linked to the eco-technical approach. Its primary focus is on economic growth to make ‘development sustainable’ [57], driven by global political agendas, and referred to as “global ecocracy” [58]. However, sustainable development as outlined in the Brundtland report has faced several challenges. For instance, the WCED overview recognised that the main ‘ecological’ and ‘developmental’ problem in achieving sustainable development globally is that ‘developing countries must operate in a world in which the resource gap between most developing and industrial nations is widening, in which the industrial world has already used much of the planet’s ecological capital’ [57]. This gap can be attributed to neoliberalism, where developed industrial countries compete to attain dominance primarily through technological advancements, often at the expense of other developing states and the global environment, ignoring the global consequences. Beyond this gap is the ambiguity embedded in what sustainable development really means, which appears to be largely dependent on who is defining it and what their interests are, as well as the context in which it is being defined [59]. Unfortunately, groups with special interests have often exploited these differences and disagreements to impede the process of effectual change in order to further their own agendas.
Despite the evidence of the cost of the industrial capitalist growth model on the planet, it is almost impossible to imagine a political system that will consciously decelerate growth for the sake of planetary survival. Merchant [60] defines this as the ‘egocentric’ ethic, which she argues is driven by Western ideas of liberalism and capitalism; the primary objectives of which are market dominance and profit, and second, a homocentric’ utilitarian ethic driven by political notions of social interests [61].
The crux of this approach is an attempt to incorporate ‘green’ and ‘sustainable’ discourse into the market, introducing the need for legitimisation of claims. For buildings this has come in the form of green building assessment and certification systems. These systems evaluate buildings on the basis of their management of various aspects of nature. Solar radiation, water, and site ecology are a few of the considerations apparent in assessment systems. These aspects are weighted according to priority, and different credits are assigned.

3. Methodology

The study documented and analysed four case study buildings (Table 1) within Nairobi (Figure 1). The research focused on design professionals’ interpretation of the concept of sustainability. The case studies were selected through a purposive sampling approach, following initial interviews with research participants, to represent different facets of the ideological approaches to sustainability described in the literature review.
All the case studies reflect characteristics of an eco-development approach, influenced by the international ‘sustainable development’ agenda that governs much political and economic discourse in sub-Saharan Africa in the present. This is particularly pronounced in the case studies driven by primarily commercial interests (KCB Towers, and to a lesser extent the LRC and SBS projects).
The LRC and SBS projects are further education workspaces, and KCB Towers is a commercial bank. The use pattern of the three buildings is similar—including open plan flexible desk spaces, meeting rooms, and conference facilities. The design approach for these buildings reflects the aspirations of their clients and design teams to achieve what are often perceived as superior ‘Western’ standards of sustainability in construction. They adopt an eco-technical approach, utilising modern HVAC (heating, ventilation and air-conditioning) building services and management systems to maintain optimised ‘performance’ in energy and comfort terms. This use of technology is influenced by international consultants or building practices adapted from Western contexts. Specific design features (e.g., the double skin façade in KCB Towers, and the rock-bed cooling and thermal chimneys in the LRC project) are also influenced by biomimicry.
The design of Anwa Junior School, on the other hand, is influenced by traditional approaches, reflecting a biocentric view in the use of natural materials and resources, and a bioclimatic response to the environment, establishing a reciprocal relationship with positive aspects of the local climate to promote comfort. The building was developed with local expertise, employed local builders, and designed in consultation with the local community, reflecting an eco-cultural approach.
These different ideological approaches to sustainability are explored through the lens of the technical criteria summarised in Table 2.

Climate

Nairobi is characterised by a subtropical climate. An assessment of the respective climates of cities in Kenya, South Africa, Australia and the US reveals that the climates of Nairobi and Mombasa feature warmer temperatures when compared to Johannesburg, South Africa, or New York in the US. Compared with a hot dry climate, e.g., Phoenix, US, temperatures in Nairobi and Mombasa are closer to the comfort zone (Figure 2). In a benign climate such as this, energy use, in particular for cooling, can be reduced by employing passive design strategies such as solar shading and cross-ventilation, promoting thermal comfort through adaptive behaviour. Low-tech strategies such as these can reduce upfront costs and maintenance compared with standard HVAC solutions.
A 2014 report for UN Habitat [63] summarises the challenge of design in tropical climates primarily in relation to thermal comfort. It suggests a need for behaviour change, as the normative temperature ranges established in air-conditioned buildings in developed countries are far lower than required in order to achieve comfort in physiological terms. In East Africa, if ‘solar gains are controlled and natural ventilation is fully exploited, along with a change in comfort principles’, it should be possible to significantly reduce or eliminate the requirement for air conditioning. The report identifies three case studies in East Africa that demonstrate these design principles. The headquarters for Coca-Cola in Nairobi was designed with a curved hollow concrete façade facing north. Windows are recessed within the wall to prevent solar gains. Cross and stack ventilation are employed to reduce the need for air-conditioning. Umoja House in Tanzania houses the British High Commission together with several other European embassies. Designed by British-firm BDP, it is oriented north–south to avoid morning and evening sun. While heavily glazed, the facades are protected by stainless steel louvre screens. A central atrium is again used to aid natural ventilation through the stack effect. Finally, the Eastgate Centre in Zimbabwe is modelled on the environmental properties of a termite mound, with fans assisting natural air flow from a central atrium, through sub-floor plenums on each floor, and extracted through thermal chimneys on the roof.
This article contributes to existing research by examining four additional case studies of ‘sustainable’ buildings in East Africa. It seeks to complicate the prevailing discourse by examining the motivations and justifications behind design decisions labelled as ‘sustainable’ and exploring the ramifications of these decisions.
The investigation of the case studies consisted of three stages. First, the architects were interviewed to gain an understanding of their approach to sustainable design. Second, the case study buildings were visited and documented, with a focus on physical features such as their relationship to site and context, material selection, internal environmental quality and resource efficiency. Finally, the architects were interviewed again to establish the role of key stakeholders and a timeline of the design decision-making process (Figure 3).
The analysis of the case studies that follows can be divided into two parts: technical analysis focusing on the physical attributes of the buildings as artefacts; and socio-cultural analysis of the ‘human’ processes of design development and decision making through which these artefacts were realised. The research findings are based on triangulation of this information (Figure 4).

4. Case Study Analysis

4.1. Kenya Commercial Bank Towers

At the onset of the project in 2004, two main stakeholders were involved: the client (KCB Bank), at this point also the financier; and the architect, who was the main design consultant (Figure 5). The client desired, among other things, a green building. However, this was left for the architect to define. While the client did not fully understand what constituted a ‘green’ building, they were aware of the market value embedded in the green label.
In 2010, the tender was awarded for a sum of KSh. 1.8 billion. Construction began in 2011, with two major changes to the project design team (Figure A1). First, the project lead architect changed, and second, the client invited Arup, an international engineering and design company, to review critical aspects including the sustainability of the project. Indoor environmental quality was of concern, specifically thermal comfort, ventilation, and lighting. The main question was how to manage heat gains while utilising daylight without the use of mechanical systems. The building façade was revised in an attempt to address these requirements.
These revisions centred around solar shading. The triangular shape would conventionally lead to significant heat gain, as large areas of the building facades would be exposed to direct solar radiation at different times. The North-West façade has the highest exposure during the afternoon and would therefore have required greater consideration of solar shading. The North-East façade on the other hand would require less shading to perhaps take advantage of the less harsh morning sunshine. The South façade would require the greatest shading from potential afternoon solar gain.
Arup proposed a double skin façade: an inner skin of low-E glass with a visible light transmission of 60%, solar energy transmittance of 45%, and a shading coefficient of 0.62. The amount of solar radiation reaching the inner skin was to be reduced by the external skin and the 1.2m slab cantilever. Several materials were proposed for the outer skin with solar energy transmittance of between 30 and 50%. These included mirror glass, coloured glass, glass with ceramic fritting and 50% perforated aluminium screens. The architect argued that solar control glazing may not be appropriate given the cost involved as well as the requirement to incorporate the client’s corporate colour scheme (green) into the façade. The use of mirror glass would lead to daylight reduction and obstructed views of the exterior. He proposed instead the use of a high thermal mass material to mitigate the seemingly unavoidable heat gain. Arup also proposed the use of 1100mm wide horizontal shading fins to reduce mid-day solar gains, which they argued was the most powerful. The architect on the other hand argued that the early morning and evening solar gains were also significant in Nairobi and proposed the use of vertical shading together with the horizontal shading proposed by Arup. These solar shading solutions required an additional investment of KSh. 260 million. Finally, the architect proposed the use of exposed concrete on the walls together with an exposed concrete coffered ceiling to absorb daytime solar and internal heat gains and cool the building during the night. This would not be economically affordable for most clients and would be unnecessary if the design was done differently (Figure 6).
There was also variance with regard to the ventilation design strategy. The project architect recommended that the building should be naturally ventilated; however, Arup, despite agreeing that this would reduce energy costs significantly, recommended the use of mechanical air conditioning, cautioning that during certain conditions the building may become too hot, and the open atrium would complicate any future retrofitting for cooling. However, contrary to Arup’s concern, on reviewing the building during occupancy, the architect admits that the building may have been over-shaded, and this is corroborated in the interviews carried out with building users, who indicate that the building gets too cold at times, requiring the use of portable electric heaters.
This process of negotiation and compromise between the local architect and the external consultant (Arup), illustrates a difference in design approach that can be argued is a result of contextual understanding. In many Western countries, the climate is characterised by clearly defined heating and cooling seasons, and interventions such as double or triple facades, as proposed by Arup, are a typical solution. Whereas these solutions could work in Nairobi, they are not required in the climate, and represent an unnecessary expense. Local availability of the required materials also presents a challenge, creating a bias towards importation, which stifles local innovation. Similarly, recommended use of air conditioning by Arup, when post-occupancy review suggests the building was overcooled, shows a detachment of the solution from the context.
The project was completed in 2015 with a final account sum of KSh. 2.6 billion, an increase of KSh. 800 million from the original tender sum as a result of the changes in façade design as well as compliance with international fire codes proposed by Arup. This case corroborates the perception that sustainable design options are likely to increase the initial cost of the project. However, the building’s energy demand is reported as approximately 40% lower than similar buildings, and therefore the cost of running the building is lower, perhaps making the initial cost investment justifiable over a period of time.
It is worth noting that whereas the building was designed to utilise passive ventilation strategies, mechanical air conditioning systems were installed in top management office spaces as per client (user) instruction once the architect handed over the building for interior fit outs. These systems remain largely unutilised and represent an unnecessary cost. This case presents a good example of an instance in which design intentions were either not well understood or not appreciated by the building users, which then affected predicted building performance.

4.2. Anwa Junior School

Kuonkuey Design Initiative (KDI), a local non-profit, brought together several stakeholders to work with members of the community to design and construct the Anwa Junior School. KDI’s approach identified the community as the main stakeholder (Figure 7).
In 2015, after analysis of precedents school buildings in the Kibera community, KDI presented a proposal to an external German donor interested in constructing 100 schools across Kenya within a short period of time for a fixed budget of approximately KSh. 13 million per school. The donor approved the proposal and commissioned KDI to rebuild two schools within Kibera.
To develop an appropriately detailed design brief, KDI held seven consultative meetings with Anwa Junior School stakeholders and members of the community allowing them to outline their priorities, and participate in the development of the spatial layout, material selection, and construction process. There was an ongoing debate with the project architects’ team, from a technical point of view, as to whether material selection should be discussed with the community. The community was presented with different materials previously used within the context and asked to score them in terms of preference. Despite the architect’s reservations on the use of concrete, the community preferred concrete and masonry stones, due to the perceived prestige they attached to these materials.
Construction began in 2016, but almost immediately stopped for a period of four months due to land disputes (Figure A2). The site was located in what is termed as Nubian land, and the title deed was held by the Nubian Council who were opposed to non-Nubians building permanent structures, in this case the use of concrete and stone. This necessitated rethinking the material selection. The engineers (Arup) insisted, however, that the load-bearing structure must be reinforced concrete. After several consultative meetings, the Nubian Council agreed to the use of concrete only for structural elements. Community design workshops were held, and several proposals were prepared utilising the alternative walling material. The community wanted a structure that would be unique on the one hand but blend in with the surroundings on the other. The architects, through an experimental process, prepared prototypes based on case studies of buildings within the context for the community to approve. This led to the selection of mud (wattle and daub) on the ground floor, and ‘patchwork’ mabati (iron sheets) on the first floor, as is characteristic of the context, both using timber framework. This allowed construction to resume.
KDI opted to manage the construction process in order to actively involve the community. They organised onsite training on the material preparation and construction technology. This training had a significant cost implication that was not anticipated during the scoping stage of the project. Furthermore, the labour-intensive preparation and construction, utilising mud as well as prototyping and fabricating the timber and bamboo works, significantly slowed down the process.
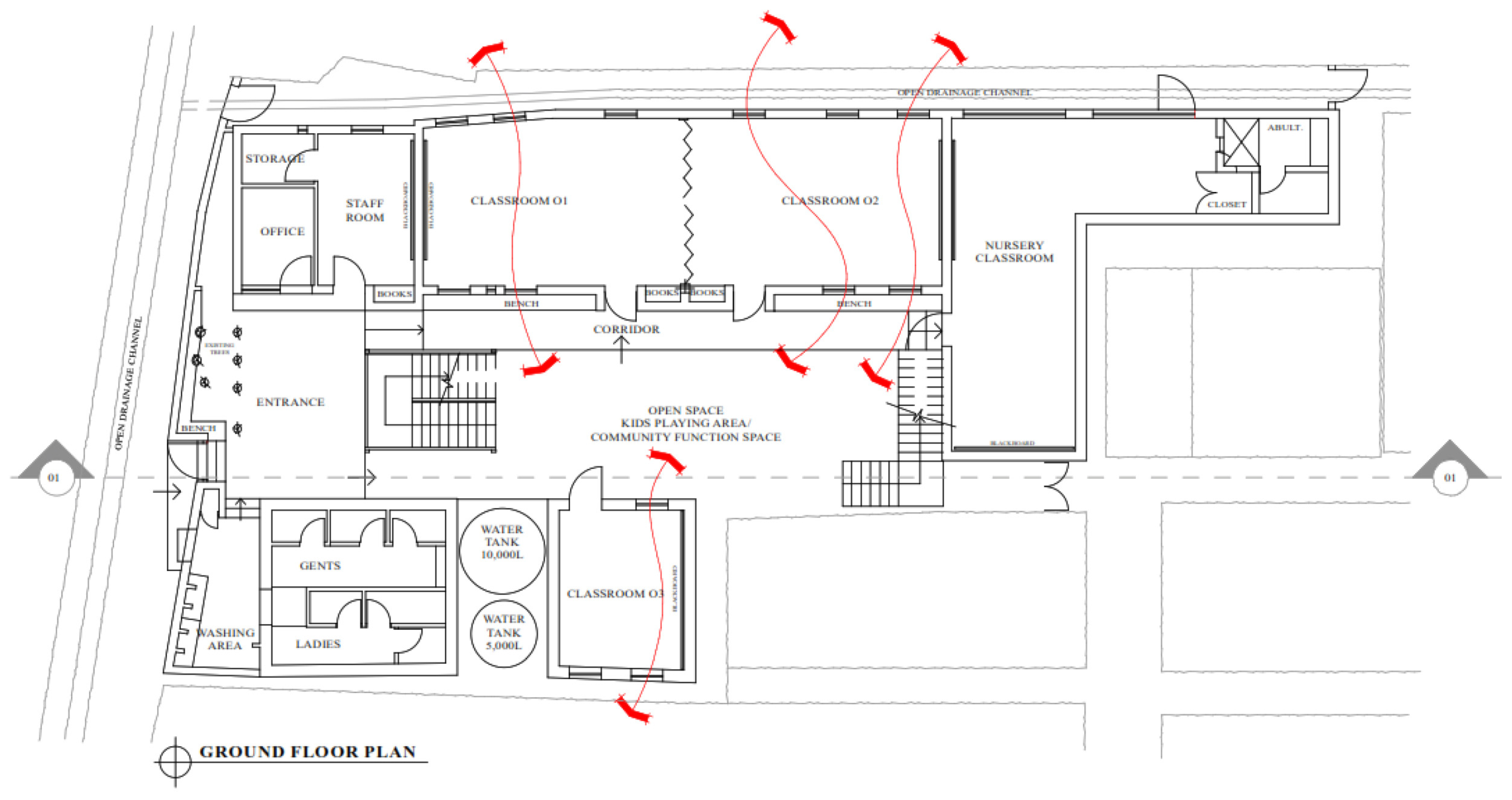
The woven bamboo design on the windows and doors allows air to penetrate the classrooms, facilitating cross ventilation. It also permits natural light to penetrate the classrooms even when the windows are closed. The ground floor wall material allows for an adequate number of windows for ventilation. However, this was a challenge on the first floor, as Arup advised that the required fenestration would compromise the structure (Figure 8).
During the construction it became apparent the project would not be completed on time and that the initial budget would only cover the first phase of the project. It appears that the donor did not fully understand or appreciate KDI’s vision of community involvement in creating a sustainable learning environment, or the cost and time implications embedded in the approach. Having built other schools in a much shorter time and with less financial investment, they were not keen to embark on the second school as earlier proposed. KDI had to seek further funding to complete the project, as they felt they had an obligation to the client. The main construction work was completed in 2017, and phase II begun. However, due to post-election political unrest in the country, the project was put on hold until 2018, and eventually completed in 2019.
The initial budget of Ksh. 13 million in 2015 equated to a construction cost of Ksh. 32,828/m2/US $328/m2. By one estimate, the average construction cost for school buildings in Kenya in 2011 was US $170/m2, equivalent to US $236/m2 in 2015 prices [64]. While this demonstrates that the initial cost investment for a sustainable design approach may be higher, it still represents good value in comparison with the other three case studies. Achieving good design solutions involves a process of negotiation and compromise during the construction, based on different interests and sometimes unpredictable circumstances. International stakeholders, however, may not always fully understand these contextual challenges, and prescribed (standard) solutions may be divorced from the dynamic nature of the context.

4.3. The Learning Resource Centre (LRC)

Having worked with the architect on several other projects, the client gave him full discretion to make design decisions to design a sustainable building. The concept of sustainability was therefore defined and articulated from the autonomous perspective of the architect (Figure 9).
The initial proposal was for a library, however in August 2005, the proposal was expanded to include a conference hall and a cafeteria. The new Learning Resource Centre (LRC) vision was conceived and driven by the then Catholic University of Eastern Africa (CUEA) Vice Chancellor. The project architect explains that ‘the brief was for a development with acceptable comfort levels without air-conditioning and without compromising on the aesthetics of the overall quality of the spaces. The client’s bold concept was matched by the architect’s passion for quality environmental design’ (Musau, 2016). It is not clear; however, how acceptable comfort levels were defined.
Following their commissioning, the architect visited several case study buildings across different cities, including Cairo, Alexandria and Rome, which influenced his design. The design stage was completed at the end of 2006 and drawings submitted to the council for approval. The approval process took several months. In 2007, following a change to the composition of the University’s finance committee, the architect was required to justify his design decisions, as the cost was relatively high when compared to projects of a similar nature. Following approval from the newly constituted finance team, the contractor tender process was completed in January 2008 with a tender sum of approximately KSh. 780 million (KSh. 1.65 billion in 2015 prices).
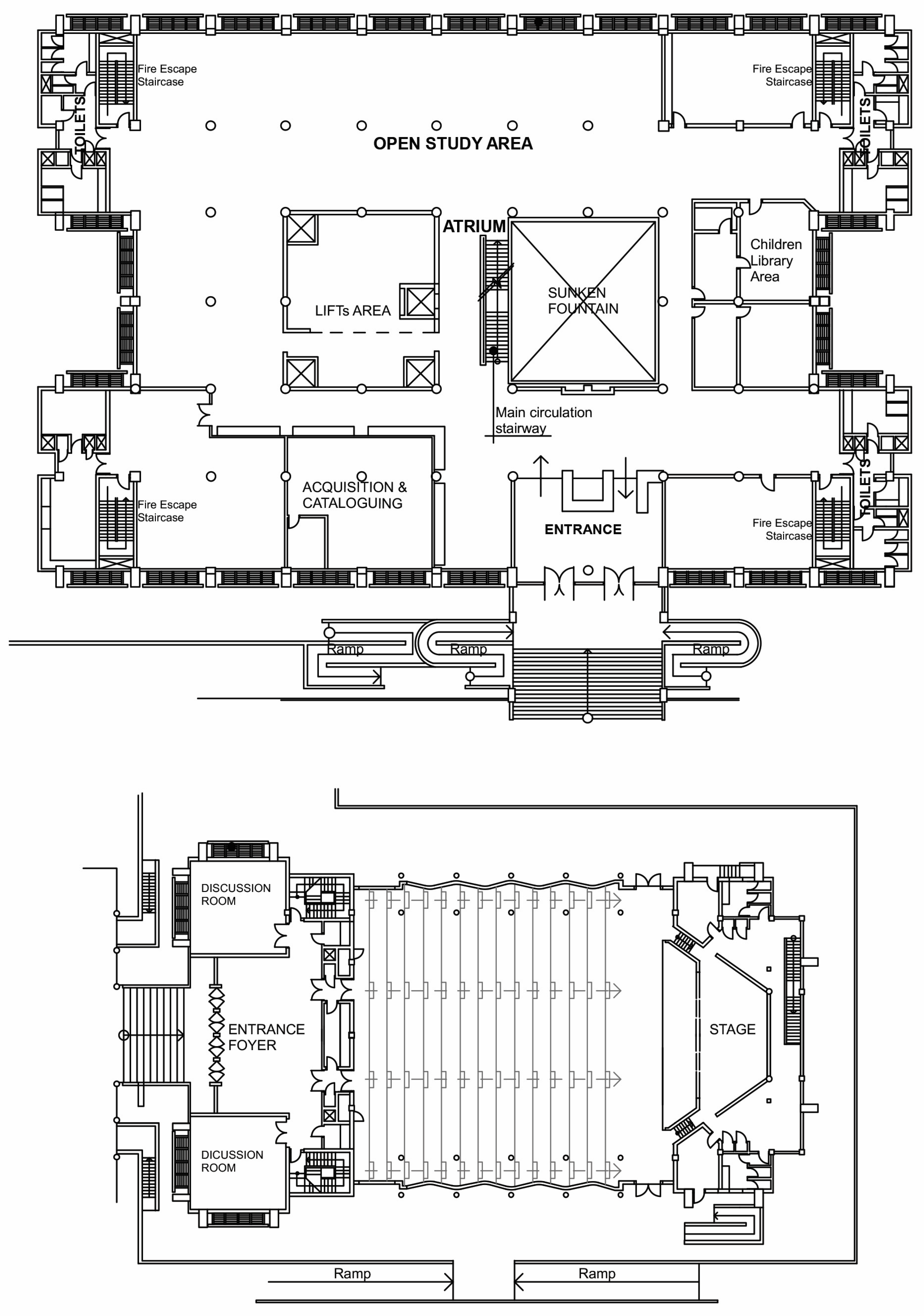
A project manager was appointed to ensure that the project remained within budget. Construction commenced in April 2008 (Figure A3). The majority of design decisions intended to achieve a sustainable building were implemented, with minimal changes made to ensure the project remained within budget. The LRC employed several methods to sunshade glazed areas on the building façade, including pre-cast concrete fins, concrete egg-crates, and horizontal aluminium elements. Hot air exhaustion was achieved through a pattern of 600mm wide aluminium double louvered panels with air shafts on the attic floor that protruded above the roof acting like thermal chimneys capped with ventilation cowls that are driven by wind to improve passive ventilation (Figure 10 and Figure 11).
This passive strategy was taken further in the auditorium, including Africa’s largest rock-bed installed as part of a cooling strategy. The design relies on granite rocks that have been arranged beneath the raked seating. The step risers beneath the seats have openings that allow air into the space. These work together with openings on the sinusoidal walls that channel hot air to the rock-bed for precooling. In essence, air from the outside passes through the rocks that have captured nighttime coolth in the rock surfaces. The rocks then absorb the heat, precooling the air before it is induced into the hall through louvres beneath the seats.
The only significant change was the acoustic details in some of the library spaces, and this was influenced by cost. The project was completed and handed over to the client in April 2013. Similar to the KCB Towers project, the library was ‘over-shaded’. Occupants complained that some of the spaces get too cold even when the outside temperature is comfortable. Another post-occupancy similarity is the user understanding and appreciation of design decisions. The auditorium, for example, was acoustically designed to function without the use of a public address system; however, after handover the client installed a public address system that has not been in use.
It is important to note that the LRC was awarded the Green Building of the Year award by the Kenya Energy Management Awards in 2014, and the project architect, Musau Kimeu, was awarded the Green Architect of the Year in 2015. The design’s main feature, the LRC auditorium, has since been used as a case study building for several projects, not only in Kenya but also internationally. According to the architect, the auditorium acoustics exceeded performance expectations. Interestingly, when asked why he did not seek certification for his design, Kimeu stated that while he appreciates the value of certification, the building speaks for itself. In his words, ‘when you have a good product you don’t have to market it… quality cannot be hidden, it is obvious’ (Kimeu, 2019). His greatest apprehension of assessment systems is the commercialisation and expense that is entrenched in their adoption.

4.4. Strathmore Business School (SBS)

In this case, the project manager acted on behalf of the client to ensure the project was completed within time and budget, and they had the power to make or change design decisions to ensure these were met. In 2006, the architects, Lexicon + Ion, having been awarded the project, suggested to the client that the business school should be benchmarked with international business schools given the lack of local case studies. The architects visited several schools around the world, including Lagos Business School, IESE Business School, Harvard Business School, and London Business School (Figure 12).
Influenced by the case studies, the architect made several changes to the initial brief. Most significant to this study, the architects noticed the LEED certified logo on several of the schools visited, and as a result, were inspired to seek certification. With the decision to seek LEED certification approved by the client, this became the first newly constructed building in Kenya to attempt this process. Before the contractor’s tender process, the architect had to make a presentation to the contractor who was not aware of the LEED certification process. One immediate implication from the contractor was a significant increase in the tender sum, especially on the ‘preliminaries sums’ compared to projects of the same nature and magnitude in the same context, given the lack of understanding of the implications of the LEED process.
Construction began in 2009 (Figure A4). During construction, several design changes were made. First, the initial design proposed the use of solar glass on the façade to meet the LEED criteria for the use of renewable energy. However, the cost implication was approximately 40% more than using regular glass. This resulted in the decision by the project manager (client representative) to use 12mm thick glass curtain wall instead, with a roof overhang to reduce solar gain. Second, the LED lighting was designed to be connected to photovoltaic solar louvers that would also act as shading devices, but these were replaced by aluminium louvers on the East-West façade. Third, the atrium was originally designed to utilise a flexible glass roof that would open and close depending on the solar radiation. However, a fixed glass roof cover was installed, due to financial and procurement challenges.
Lastly, two cascading waterfalls proposed for the atrium were eliminated. These changes significantly affected the performance of the space, and as a result, the atrium space feels like a ‘greenhouse’ in Nairobi’s climate. The project manager’s interest was focused more on ensuring the project was achieved within budget and on time, and not necessarily on achieving the architect’s ambitions for ‘green’ certification (Figure 13).
The building incorporates photovoltaic cells and solar panels, covering nearly 90% of its roof area. This allows the building to achieve self-sufficiency by generating 100% of its required power, with surplus energy that can be fed back into the local grid. The LED lighting system connected to the photovoltaic solar louvers enhances the overall energy efficiency within the building and contributes to LEED points. Nevertheless, the installation of the photovoltaic cells incurred a substantial cost of approximately KSh. 10 million. Such a financial outlay would be prohibitive for most developers undertaking a project of a similar scale within Nairobi.
The project was completed in October 2011. Like the LRC project, the Strathmore Business School (SBS) has also received green building recognition. In March 2012, African Real Estate and Housing Finance (AFREHF) recognised SBS as the best green building in Africa. Since its completion, it has received media attention as a pioneer in green buildings in Africa. SBS, however, did not achieve LEED certification. The cost implications of seeking LEED certification predominantly in terms of technology were not fully anticipated beforehand. It is clear that the lack of clear understanding by the consultants and contractor at that time, given it was the first project in the country to seek LEED certification, as well as the complexity embedded in the process, created a major challenge (Figure 14).
Some of the decisions taken in order to achieve certification, despite being possible solutions, may have not been appropriate for the context. For instance, the bicycle parking and changing rooms were not appropriate as cycling is not a common means of transport, especially for the SBS’s target market. The changing rooms are now used as storage spaces. Similarly, the evaporative cooling units have faced maintenance challenges given the lack of local expertise. Lastly, a decision was made to use U-boot bio-directional hollow flat slabs imported from Italy, made from recycled plastic, in an attempt to meet the LEED criteria for recycled materials. While this reduced the dead weight of the structure and allowed for large span (13.5 m) classrooms, it introduced importation costs, as well as costs for the structural engineering team who travelled to Italy for one-week’s training, as well as a contractor training course on the technology, and significant investment on specific concrete pumps which were uncommon in the context.
Reflecting on the project, the architect posits that he would only recommend LEED certification to clients partnering with international companies, but not to local investors, given the significant cost and time investment, the complexity that comes with the lack of contextualisation of the tool and the general complexity of the process. It is worth noting that Lexicon + Ion have since designed another building, Wrigley’s Headquarters in Nairobi, which achieved LEED Gold standard. Based on this design, the architect holds that seeking LEED Gold is a major financial investment that has more to do with marketing than environmental concerns. He points out that often decisions were made in order to ‘tick the LEED box’ and these may not necessarily add value to the project. For instance, the use of double-glazed windows and heavily insulated walls in the newly constructed Wrigley’s building is not necessary for tropical climates but was done to meet the LEED criteria.

5. Discussion

It is difficult to quantitatively evaluate the sustainability of buildings in Africa, due to a lack of routine data collection and expertise. According to Butera et al., the linear process where architectural design is followed by HVAC system design, combined with a lack of training, has led to a situation where ‘architectural choices very often have a negative impact on [a] building’s energy performance, and on the occupants’ comfort’ [63]. Butera et al. propose the earlier ‘integration’ of technical expertise as a solution, including simulation of energy performance in the form of HVAC system design. However, in a Kenyan context, energy and carbon use are less relevant as building scale performance metrics than in a Western context, as approximately 70% of Kenya’s energy is generated from renewable sources [65]. A preoccupation with the validation of performance risks prioritising hi-tech solutions in a context where a passive design approach may be more appropriate [66]. Bioclimatic and eco-cultural principles, building on tacit knowledge and the response to climate embodied within vernacular architecture, may offer an alternative iterative or circular model of design, where architectural decisions are informed by previous projects, and the environmental approach is developed in consultation with local communities.
The purpose of this article is not to quantitatively evaluate case studies, but to identify common contextual themes or issues in sustainability assessment in this context. These can be divided broadly into four areas.

5.1. Physical Attributes

The technical analysis of the case studies is summarised in Table 3. The findings pertaining to the physical attributes of the case studies offer several insights. Firstly, buildings should be oriented in an east–west direction to minimise direct solar gains effectively. Secondly, the examined cases advocate for the incorporation of materials with high thermal mass in the exterior façade, complemented by the strategic implementation of horizontal and vertical shading devices, as an efficient approach to ensuring thermal comfort. Thirdly, three of the analysed projects demonstrate successful ventilation achieved through passive strategies, such as cross ventilation and stack effect, while active ventilation methods appear to present challenges concerning procurement, cost, and maintenance. Fourthly, all case studies capitalised on Nairobi’s abundant daylight hours by maximising natural daylight. To supplement natural daylighting, energy-efficient LED light, combined with sensor lighting was used. Fifthly, the selection of building materials appears to be influenced more by their local availability rather than their sustainable properties. Although efforts were made to use locally available materials, clients opted to import materials based on quality and procurement costs. Finally, despite waste management being a significant challenge in Nairobi, little emphasis seems to be placed on this aspect within the scope of the examined case studies.

5.2. Epistemological Differences

The discourse of sustainable design encompasses diverse yet interconnected ideological approaches. When these case studies are examined through these different lenses, it suggests that a more techno-centric approach was adopted in the design of SBS compared to the other cases, while the LRC and KCB Towers embraced a climate-responsive approach with a passive design orientation, reminiscent of the tropical architecture movement. In contrast, Anwa Junior School adopts a more radical eco-cultural approach. It is important to note that no approach is inherently superior or inferior; rather their selection is contingent upon a multitude of contextual factors that exert influence and impact on the design outcome. This investigation corroborates the assertion that sustainable design cannot be disentangled from both the physical and human dynamics that characterise the context in which it is realised [66,67,68]. The distinct ideological stances mirror the complexity and fluidity inherent in sustainable design discourse, emphasising the complex relationship between design philosophies and contextual dynamics.
The study does however illuminate the potential challenges associated with adopting a techno-centric approach, particularly in the context of Nairobi, and more broadly in the Global South. As alluded to by previous studies, a more critical evaluation of the role of technology should be considered [69]. As exemplified by both the LRC and SBS case studies, this approach not only introduces significant financial and procurement challenges, but more significantly maintenance challenges stemming from the use of imported technology. The malfunctioning of these technological systems impeded the anticipated performance of the buildings. It is essential to ascertain the availability of local capacity to facilitate the replacement, repair, and maintenance of such technological solutions.

5.3. International Influences

The investigation highlights tensions that emerge between contextually appropriate responses and various forms of international influence. Collectively, the international influences evident in these case studies can be classified under four overarching sources: the use of international case study buildings as ‘benchmarks’; the involvement of international stakeholders; the incorporation of international materials and technology; and the application of international standards and assessment systems [2]. These international influences interplay with the local context, presenting both opportunities and challenges in the pursuit of sustainable design. The need for a more nuanced approach when addressing the complexities that emerge from the coexistence of local and international dynamics, highlighted in previous studies becomes critical in achieving a contextually responsive design approach [70,71,72].

5.4. Cost Implications

The three largest projects (KCB Towers, LRC, SBS) featured a larger initial cost investment compared to a conventional project in this context. The alternative low-tech approach adopted in Anwa Junior School, by contrast, was achieved with a construction cost of less than 30% of the budget of KCB Towers, LRC and SBS (Table 1). While the level of design specification for this building is different from the other three case studies, there are nonetheless valuable lessons about the use of adaptive and resilient passive design strategies and community involvement that could be adopted in the design of more complex buildings.
It is anticipated that prioritising a sustainable approach will lead to long-term savings in building operations; however, a lack of comprehensive performance measurement means that it is not possible to quantify this impact. Despite attempts to apply financial models that can support projected cost benefits, these models often lack the capacity to reflect the dynamic nature of different variables over longer periods of time. Consequently, the value added by sustainable solutions is inconclusive due to the interplay of multifaceted factors in different contexts, potentially contributing to the perceived prohibitive nature of the initial cost investment.
It is evident that solutions labelled ‘sustainable’ or ‘green’ are still considered supplementary additions to conventional building practices. This increases their vulnerability during budgetary decision-making processes. Consequently, when financial challenges arise, these solutions are the first to be excluded from a project.

6. Conclusions

The analysis reveals that stakeholders often conceptualise sustainability in different ways. The specific approach to sustainable design that is adopted in any given project is heavily influenced by how dominant stakeholders interpret the concept according to their own interests. Four systematic problems have been identified from the cases studied here:
(a) Maladaptation of Western guidance or assessment systems in a developing world context. The case studies in this article highlight multiple discrepancies between the recommendations of external consultants and local needs and conditions.
(b) Misunderstanding of local context, leading to poor or ideological decision making with unintended consequences—this could be related to poor understanding or lack of experience of the climate context (e.g., concerning the use of solar shading or natural ventilation), or a lack of understanding of socio-cultural requirements—for example, the need to involve the local community in design decision making.
(c) A normative bias towards technological solutions to contextual problems—a tendency to attempt to control unfamiliar local conditions with homogenous universal solutions, to eliminate variation (often perceived as introducing unacceptable ‘risk’), with the certainty guaranteed by over-specification of mechanical systems (e.g., air conditioning).
(d) The dominance of economic concerns in shaping the trajectory of sustainable design within this context is apparent, attributed to the contextual economic limitations. This is accentuated by the disparity between the immediate economic outcomes and the broader, albeit frequently elusive, socio-cultural benefits for the most important stakeholders—building users.
Taken together, the case studies provide evidence of how contextual physical, socio-cultural, and political dynamics, stakeholder power relationships, international entities, and cost implications collectively influence the concept of sustainable design. The findings reinforce the argument that sustainable design approaches are inherently contextual social constructs, underscoring the impracticality and unsustainability of standardising the concept internationally.
A more comprehensive approach to understanding and assessing the sustainability of any given project requires evaluation of how and why different aspects have been prioritised in different contexts, and the value judgments that have been made to balance competing factors within the design process. One cannot look at a building as an end without interrogating the means by which that end was arrived at.

Author Contributions

Conceptualisation, F.N.C. and R.L.; methodology, F.N.C.; formal analysis, F.N.C. and R.L.; investigation, F.N.C.; data curation, F.N.C.; writing—original draft preparation, F.N and R.L.; writing—review and editing, R.L.; visualisation, F.N.C.; supervision, R.L.; project administration, F.N.C. All authors have read and agreed to the published version of the manuscript.

Funding

This research received no external funding.

Institutional Review Board Statement

The study was conducted according to the guidelines of the Declaration of Helsinki and approved by the Institutional Review Board (or Ethics Committee) of the University of Sheffield (Reference Number 015888, approved 27 July 2017).

Informed Consent Statement

Informed consent was obtained from all subjects involved in the study.

Data Availability Statement

The original contributions presented in the study are included in the article, further inquiries can be directed to the corresponding authors.

Conflicts of Interest

The authors declare no conflict of interest.

Appendix A

Figure A1. Timeline of KCB Towers project. Source: Author 2023.
Figure A1. Timeline of KCB Towers project. Source: Author 2023.
Buildings 14 02383 g0a1
Figure A2. Timeline of Anwa Junior School project. Source: Author 2023.
Figure A2. Timeline of Anwa Junior School project. Source: Author 2023.
Buildings 14 02383 g0a2
Figure A3. Timeline of LRC project. Source: Author 2023.
Figure A3. Timeline of LRC project. Source: Author 2023.
Buildings 14 02383 g0a3
Figure A4. Timeline of SBS project. Source: Author 2023.
Figure A4. Timeline of SBS project. Source: Author 2023.
Buildings 14 02383 g0a4

References

  1. United Nations Environment Programme. 2022 Global Status Report for Buildings and Construction: Towards a Zero-emission, Efficient and Resilient Buildings and Construction Sector; United Nations Environment Programme: Nairobi, Kenya, 2022. [Google Scholar]
  2. Ng’eno Chelang’at, F.; Lawrence, R. Always with the Best Intentions? Interrogating the Use of Sustainable Building Assessment Systems in Developing Countries: Kenya. Sustainability 2024, 16, 3868. [Google Scholar] [CrossRef]
  3. Joseph, S.K.; Ralwala, A.O.; Wachira-Towey, I.N.; Mutisya, E. Sustainable Construction Transition (SCT) Policy Regime in Kenya. J. Constr. Bus. Manag. 2023, 6, 11. [Google Scholar] [CrossRef]
  4. Building Authority of Kenya. National Building Regulations 2015. 2015. Available online: https://www.iekenya.org/images/National%20Building%20Regulations%202015%20with%20cover_compressed.pdf (accessed on 11 January 2024).
  5. Hamrouni, I.B.O.; Wanas, O.; Bouattay, I. Mapping of Certified Green Building and Initiatives in Africa. 2022. Available online: https://globalabc.org/index.php/news/mapping-certified-green-building-and-initiatives-africa (accessed on 3 January 2024).
  6. IEA. Climate Impacts on African Hydropower. 2020. Available online: https://www.iea.org/reports/climate-impacts-on-african-hydropower (accessed on 5 April 2024).
  7. Du Plessis, C. Sustainability and sustainable construction: The African context. Build. Res. Inf. 2001, 29, 374–380. [Google Scholar] [CrossRef]
  8. Pocock, J.; Steckler, C.; Hanzalova, B. Improving socially sustainable design and construction in developing countries. Procedia Eng. 2016, 145, 288–295. [Google Scholar] [CrossRef]
  9. Guy, S.; Farmer, S. Contested Constructions: The Competing Logics of Green Buildings. In Ethics and the Built Environment; Fox, W., Ed.; Routledge: London, UK, 2000. [Google Scholar]
  10. Yaneva, A. Mapping Controversies in Architecture; Ashgate Publishing Limited: Surrey, UK, 2012. [Google Scholar]
  11. Janda, K.; Von Meier, A. Theory, Practice and Proof: Learning from buildings that teach. In Sustainable Architectures: Cultures and Natures in Europe and North America; Guy, S., Moore, S., Eds.; Taylor Francis: London, UK, 2005. [Google Scholar]
  12. Feige, A.; Wallbaum, H.; Krank, S. Harnessing stakeholder motivation: Towards a Swiss sustainable building sector. Build. Res. Inf. 2011, 39, 504–517. [Google Scholar] [CrossRef]
  13. Li, H.; Zhang, X.; Ng, S.T.; Skitmore, M. Quantifying stakeholder influence in decision/evaluations relating to sustainable construction in ChinaA Delphi approach. J. Clean. Prod. 2018, 173, 160–170. [Google Scholar] [CrossRef]
  14. Cvijović, J.; Obradović, V.; Todorović, M. Stakeholder Management and Project SustainabilityA Throw of the Dice. Sustainability 2021, 13, 9513. [Google Scholar] [CrossRef]
  15. Bahadorestani, A.; Naderpajouh, N.; Sadiq, R. Planning for sustainable stakeholder engagement based on the assessment of conflicting interests in projects. J. Clean. Prod. 2020, 242, 118402. [Google Scholar] [CrossRef]
  16. DesJardins, J.R. Environmental Ethics: Concepts, Policy, and Theory; Mayfield Publishing: Mountain View, CA, USA, 1999. [Google Scholar]
  17. Thompson, I. The ethics of sustainability. In Landscape and Sustainability; Taylor Francis: Abingdon, UK, 2007. [Google Scholar]
  18. Guy, S.; Farmer, G. Reinterpreting Sustainable Architecture: The place of Technology. J. Archit. Educ. 2001, 54, 140–148. [Google Scholar] [CrossRef]
  19. Leopold, A. The Land Ethic. In A Sand County Almanac; Oxford University Press: New York, NY, USA, 1949. [Google Scholar]
  20. Girardet, H. Greening Urban Society. In Ethics and the Built Environment; Fox, W., Ed.; Routledge: London, UK, 2000. [Google Scholar]
  21. Talbot, R.; Magnoli, G.C. Social Inclusion and the Sustainable City. In Ethics and the Built Environment; Fox, W., Ed.; Routledge: London, UK, 2000. [Google Scholar]
  22. Edwards, B. Green Architecture. Archit. Des. 2001, 71, 4. [Google Scholar]
  23. McLennan, J. The Philosophy of Sustainable Design; Ecotone Publishing Company: Bainbridge Island, WA, USA, 2004. [Google Scholar]
  24. Benyus, J.M. Biomimicry. In Innovation Inspired by Nature; HarperCollins Publishers Inc.: New York, NY, USA, 1997. [Google Scholar]
  25. Verbrugghe, N.; Rubinacci, E.; Khan, A.Z. Biomimicry in Architecture: A Review of Definitions, Case Studies, and Design Methods. Biomimetics 2023, 8, 107. [Google Scholar] [CrossRef] [PubMed]
  26. Chen Austin, M.; Garzola, D.; Delgado, N.; Jiménez, J.U.; Mora, D. Inspection of Biomimicry Approaches as an Alternative to Address Climate-Related Energy Building Challenges: A Framework for Application in Panama. Biomimetics 2020, 5, 40. [Google Scholar] [CrossRef] [PubMed]
  27. Nkandu, M.; Alibaba, H. Biomimicry as an Alternative Approach to Sustainability. Bull. Polytech. Inst. Jassy Constructions. Archit. Sect. 2018, 8, 1–11. [Google Scholar] [CrossRef]
  28. Chayaamor-Heil, N.; Hannachi-Belkadi, N. Towards a Platform of Investigative Tools for Biomimicry as a New Approach for Energy-Efficient Building Design. Buildings 2017, 7, 19. [Google Scholar] [CrossRef]
  29. Hyde, R. Climate Responsive Design: A Study of Buildings in Moderate and Hot Humid Climates; E FN Spon: London, UK, 2000. [Google Scholar]
  30. Olgyay, V. Design with Climate: Bioclimatic Approach to Architectural Regionalism; Princeton University Press: Princeton, NJ, USA, 1963. [Google Scholar]
  31. Olgyay, A.; Olgyay, V. The Temperate House. Archit. Forum 1951, 94, 179–194. [Google Scholar]
  32. Givoni, B. Man, Climate, and Architecture; Elsevier: New York, NY, USA, 1969. [Google Scholar]
  33. Koenigsberger, O.H.; Ingersoll, T.G.; Mayhew, A.; Szokolay, S.V. Manual of Tropical Housing and Building; Longman: London, UK, 1974. [Google Scholar]
  34. Jones, D.L. Architecture and the Environment. In Bioclimatic Building Design; Laurence King Publishing: London, UK, 1998. [Google Scholar]
  35. Ferstl, K. Fundamentals of climatically appropriate building and relevant design principles. In Tropical Architecture: Sustainable and Humane Building in Africa, Latin America, and South-East Asia; Lauber, W., Ed.; Prestel: Munich, Germany, 2005. [Google Scholar]
  36. Manzano-Agugliaro, F.; Montoya, F.G.; Sabio-Ortega, A.; García-Cruz, A. Review of bioclimatic architecture strategies for achieving thermal comfort. Renew. Sustain. Energy Rev. 2015, 49, 736–755. [Google Scholar] [CrossRef]
  37. Košir, M. Climate Adaptability of Buildings: Bioclimatic Design in the Light of Climate Change; Springer International Publishing: Berlin/Heidelberg, Germany, 2019. [Google Scholar]
  38. Elaouzy, Y.; El Fadar, A. Impact of key bioclimatic design strategies on buildings’ performance in dominant climates worldwide. Energy Sustain. Dev. 2022, 68, 532–549. [Google Scholar] [CrossRef]
  39. Elaouzy, Y.; El Fadar, A. Sustainability of building-integrated bioclimatic design strategies depending on energy affordability. Renew. Sustain. Energy Rev. 2023, 179, 113295. [Google Scholar] [CrossRef]
  40. Robinson, J.; Francis, G.; Legge, R.; Lerner, S. Defining a Sustainable society. Values, Principles and Definitions. Altern. Perspect. Soc. Technol. Environ. 1990, 17, 36–46. [Google Scholar]
  41. Oliver, P. Ethics and vernacular architecture. In Ethics and the Built Environment; Fox, W., Ed.; Routledge: London, UK, 2000. [Google Scholar]
  42. Lazar, N.; Chithra, K. Role of culture in sustainable development and sustainable built environment: A review. In Environment, Development and Sustainability: A Multidisciplinary Approach to the Theory and Practice of Sustainable Development; Springer: Berlin/Heidelberg, Germany, 2022; Volume 24, pp. 5991–6031. [Google Scholar]
  43. Moscatelli, M. Cultural identity of places through a sustainable design approach of cultural buildings. The case of Riyadh. In Proceedings of the IOP Conference Series: Earth and Environmental Science, Volume 1026, International Conference on Sustainability: Developments and Innovations (ICSDI-2022), Riyadh, Saudi Arabia, 19–22 February 2022; p. 012049. [Google Scholar] [CrossRef]
  44. Stephenson, J. Culture and Sustainability. Exploring Stability and Transformation with the Cultures Framework; Palgrave, Macmillan: Cham, Switzerland, 2023. [Google Scholar]
  45. Hughes, M. The relationship between Architecture, Technology and Sustainability. D/Zine 2016, 8, 40–49. [Google Scholar]
  46. Papagiannidis, S.; Marikyan, D. Environmental sustainability: A technology acceptance perspective. Int. J. Inf. Manag. 2022, 63, 102445. [Google Scholar] [CrossRef]
  47. Li, L.; Wang, L.; Zhang, X. Technology Innovation for Sustainability in the Building Construction Industry: An Analysis of Patents from the Yangtze River Delta, China. Buildings 2022, 12, 2205. [Google Scholar] [CrossRef]
  48. Singh, M.; Sahu, G.P. Towards adoption of Green IS: A literature review using classification methodology. Int. J. Inf. Manag. 2020, 54, 102147. [Google Scholar] [CrossRef]
  49. Debrah, C.; Chan, A.P.C.; Darko, A. Artificial intelligence in green building. Autom. Constr. 2022, 137, 104192. [Google Scholar] [CrossRef]
  50. Slessor, C. Sustainable Architecture and High Technology; Thames Hudson Ltd.: London, UK, 1997. [Google Scholar]
  51. Moore, S. Eco-Tech: Sustainability Architecture and High Technology by Catherine Slessor; Sustainable Architecture by James Steele; Architecture and the Environment; Bioclimatic Building Design by David Lloyd Jones. J. Archit. Educ. 2000, 53, 245–249. [Google Scholar]
  52. Fisher, P. Experiencing climate: Architecture and environmental diversity. In Environmental Diversity in Architecture; Steane, M.A., Steemers, K., Eds.; Spon Press: Oxon, UK, 2004. [Google Scholar]
  53. Deleuze, G. Foucault; Rutgers University Press: New Brunswick, NJ, USA, 1988. [Google Scholar]
  54. Klein, N. This Changes Everything: Capitalism vs. the Climate; Simon Schuster: New York, NY, USA, 2014. [Google Scholar]
  55. Richardson, K. Achieving sustainability. Issues 2012, 2, 105. [Google Scholar]
  56. Meeta, J.; Mishra, M.K. The Economics of Environment and Ecology for Sustainable Development; ZBW—Leibniz Information Centre for Economics: Kiel/Hamburg, Germany, 2020. [Google Scholar]
  57. WCED (World Commission on Environment and Development). Our Common Future; Oxford University Press: Oxford, UK, 1987. [Google Scholar]
  58. Escobar, A. Imagining a post-development era? Critical thought, development and social movements. Social Text 1992, 31/32, 20–56. [Google Scholar] [CrossRef]
  59. Kish, K.; Farley, J. A Research Agenda for the Future of Ecological Economics by Emerging Scholars. Sustainability 2021, 13, 1557. [Google Scholar] [CrossRef]
  60. Merchant, C. Radical Ecology: The Search for a Liveable World; Routledge, Chapman Hall, Inc.: London, UK, 1992. [Google Scholar]
  61. Ambec, S.; De Donder, P. Environmental policy with green consumerism. J. Environ. Econ. Manag. 2022, 111, 102584. [Google Scholar] [CrossRef]
  62. Betti, G.; Tartarini, F.; Nguyen, C.; Schiavon, S. CBE Clima Tool: A free and open-source web application for climate analysis tailored to sustainable building design. Build. Simul. 2024, 17, 493–508. [Google Scholar] [CrossRef]
  63. Butera, F.; Adhikari, R.; Aste, N. Sustainable Building Design for Tropical Climates: Principles and Applications for Eastern Africa; UN-Habitat: Nairobi, Kenya, 2014. [Google Scholar]
  64. UK Department for International Development. Delivering Cost Effective and Sustainable School Infrastructure. 2011. Available online: https://www.gov.uk/government/publications/delivering-cost-effective-and-sustainable-school-infrastructure-guidance-note (accessed on 5 April 2024).
  65. USAID. Power Africa Annual Report. 2018. Available online: https://www.usaid.gov/sites/default/files/2022-05/2018-Annual_Report1015_508.pdf (accessed on 11 January 2024).
  66. Aste, N.; Adhikari, R.S.; Del Pero, C.; Leonforte, F.; Timis, I. Sustainable Building in Kenya. Energy Procedia 2017, 105, 2803–2810. [Google Scholar] [CrossRef]
  67. Joseph, S.K.; Ralwala, A.O.; Wachira-Towey, I.N.; Mutisya, E. Sustainability Theory: Synopsis, Concepts, Interpretations and Discourses. J. Kenya Natl. Comm. UNESCO 2023, 2, 2958–7999. [Google Scholar]
  68. Salama, A.M.; Patil, M.P.; Elsemellawy, A.N.; Abudib, H.H.; Almansor, N.A.; MacLean, L.; van Riel, K. People–Place Narratives as Knowledge Typologies for Social Sustainability: Cases from Urban Contexts in the Global South. Buildings 2024, 14, 1001. [Google Scholar] [CrossRef]
  69. Teal, R. The Process of Place: A Temporal View of Sustainability in the Built Environment. Environ. Philos. 2010, 7, 63–78. [Google Scholar] [CrossRef]
  70. Parves Rana, M. Sustainable city in the global North and South: Goal or principle? Manag. Environ. Qual. 2019, 20, 506–521. [Google Scholar] [CrossRef]
  71. Yazdani, S.; Dola, K. Sustainability City Priorities in Global North Versus Global South. J. Sustain. Dev. 2013, 6, 38. [Google Scholar] [CrossRef]
  72. Nagendra, H.; Bai, X.; Brondizio, E.S.; Lwasa, S. The urban south and the predicament of global sustainability. Nat. Sustain. 2018, 1, 341–349. [Google Scholar] [CrossRef]
Figure 1. Map showing location of case study buildings in Nairobi. Source: Author 2023.
Figure 1. Map showing location of case study buildings in Nairobi. Source: Author 2023.
Buildings 14 02383 g001
Figure 2. Probability of day and night dry bulb temperatures (°C) at selected cities, with Köppen–Geiger climate classification. Source: Betti et al. [62].
Figure 2. Probability of day and night dry bulb temperatures (°C) at selected cities, with Köppen–Geiger climate classification. Source: Betti et al. [62].
Buildings 14 02383 g002
Figure 3. Summary of case study research design. Source: Author 2023.
Figure 3. Summary of case study research design. Source: Author 2023.
Buildings 14 02383 g003
Figure 4. Summary of case study analysis. Source: Author 2023.
Figure 4. Summary of case study analysis. Source: Author 2023.
Buildings 14 02383 g004
Figure 5. Summary of human actors involved in the KCB Towers project. Source: Author 2023.
Figure 5. Summary of human actors involved in the KCB Towers project. Source: Author 2023.
Buildings 14 02383 g005
Figure 6. KCB’s typical floor plan showing solar shading and ventilation strategy. Source: Author 2023.
Figure 6. KCB’s typical floor plan showing solar shading and ventilation strategy. Source: Author 2023.
Buildings 14 02383 g006
Figure 7. Summary of human actors involved in the ANWA Junior School project. Source: Author 2023.
Figure 7. Summary of human actors involved in the ANWA Junior School project. Source: Author 2023.
Buildings 14 02383 g007
Figure 8. The Anwa School plan, elevation, and sustainable design strategy. Source: Author 2023.
Figure 8. The Anwa School plan, elevation, and sustainable design strategy. Source: Author 2023.
Buildings 14 02383 g008aBuildings 14 02383 g008b
Figure 9. Summary of key stakeholders involved in the LRC project. Source: Author 2023.
Figure 9. Summary of key stakeholders involved in the LRC project. Source: Author 2023.
Buildings 14 02383 g009
Figure 10. Louvered panels and exhaust chimneys, LRC. Source: Author 2023.
Figure 10. Louvered panels and exhaust chimneys, LRC. Source: Author 2023.
Buildings 14 02383 g010
Figure 11. LRC section through auditorium, and floor plans. Source: Author 2023.
Figure 11. LRC section through auditorium, and floor plans. Source: Author 2023.
Buildings 14 02383 g011aBuildings 14 02383 g011b
Figure 12. Summary of key stakeholders involved in the Strathmore Business School project. Source: Author 2023.
Figure 12. Summary of key stakeholders involved in the Strathmore Business School project. Source: Author 2023.
Buildings 14 02383 g012
Figure 13. SBS plan, and atrium with fixed glass roof. Source: Author 2023.
Figure 13. SBS plan, and atrium with fixed glass roof. Source: Author 2023.
Buildings 14 02383 g013
Figure 14. (a) The 12 mm thick glass curtain wall. (b) Aluminium louvers with roof overhang. (c) Evaporative cooling units. Source: Author 2023.
Figure 14. (a) The 12 mm thick glass curtain wall. (b) Aluminium louvers with roof overhang. (c) Evaporative cooling units. Source: Author 2023.
Buildings 14 02383 g014
Table 1. Case study buildings selected for this research. Source: Author 2023.
Table 1. Case study buildings selected for this research. Source: Author 2023.
BuildingTypeDate
Completed
Budget KSh./US$
(2015 Prices)
GIA m2KSh./m2/US$/m2
1Kenya Commercial Bank Towers, Upper HillCommercial20152.60b/26m15,961162,897/1629
2Anwa Junior School, KiberaEducational201813m/130k39632,828/328
3Learning Resource Centre,
Catholic University of East Africa
Educational 20131.65b/16.5m13,200125,000/1250
4Strathmore Business School, MadarakaEducational & Commercial20111.15b/11.5m10,037114,600/1146
Table 2. Case study technical criteria. Source: Author, 2023.
Table 2. Case study technical criteria. Source: Author, 2023.
1Site and ContextTakes into account the location of the building and its orientation to immediate context.
2Material SelectionHighlights major materials in each case building and investigates issues that led to their selection
3Indoor Environmental QualityExplores ventilation, lighting, and thermal comfort in relation to issues that led to the adoption of these strategies.
4Resource EfficiencyExamines energy and water efficiency as well as waste management strategies put in place for each case in relation to factors that influenced these decisions.
Table 3. Summary of the technical strategies in all case buildings. Source: Author 2023.
Table 3. Summary of the technical strategies in all case buildings. Source: Author 2023.
StrategyKCB TowersAnwa Junior SchoolLRCSBS
Buildings 14 02383 i001Buildings 14 02383 i002Buildings 14 02383 i003Buildings 14 02383 i004
Sustainable SitesConstructed on reclaimed land.
Indoor gardens to replace outdoor gardens lost.
Constructed on reclaimed land.
Maintenance of existing trees and creation of green outdoor space.
Outdoor landscaping of local evergreen plants.Constructed on reclaimed land.
Green outdoor spaces.
Energy EfficiencyMinimise energy requirements through passive techniques.
LED lighting.
Minimise energy requirements through passive techniques.
LEED lighting
Minimise energy requirements through passive techniques.
LED lighting.
Passive techniques.
Photovoltaic cells generate 100%+ energy required.
LED lighting.
Water EfficiencyWater treatment and recycling plant
Storm water collection
Rainwater harvesting and storage.Use of 100% borehole water supply.
Rainwater harvesting
Oxidation ponds sewerage system
Minimal portable water used for construction.
Rainwater harvesting from roof
Materials And ResourcesApproximately 50% locally available materials.
Main material: natural stone and concrete.
100% locally available materials
Main material: mud wall and ‘mabati
Approximately 90% locally available materials.
Main material: natural stone.
Approximately 40% locally available materials.
Main material: natural stone.
Elaborate waste management plan
Indoor Environmental QualityPassive techniques for thermal comfort and lighting.
Northwest–northeast orientation.
High thermal mass façade
Horizontal and vertical shading.
Cross ventilation with stack effect.
Passive techniques for thermal comfort and lighting.
Northwest–southeast orientation.
High thermal mass façade.
Cross ventilation.
Passive techniques for thermal comfort and lighting.
East–west orientation.
High thermal mass façade.
Horizontal and vertical shading.
Cross ventilation with stack effect.
Passive and active techniques for thermal comfort and lighting.
Northwest–southeast orientation.
High thermal mass façade.
Horizontal and vertical shading.
Cross ventilation with stack effect.
Transport---Provision for alternative transport.
Other-Community participation.-LEED certified.
Disclaimer/Publisher’s Note: The statements, opinions and data contained in all publications are solely those of the individual author(s) and contributor(s) and not of MDPI and/or the editor(s). MDPI and/or the editor(s) disclaim responsibility for any injury to people or property resulting from any ideas, methods, instructions or products referred to in the content.

Share and Cite

MDPI and ACS Style

Ng’eno Chelang’at, F.; Lawrence, R. Challenging the Western Framing of Sustainability: A Contextual Analysis of Four Architectural Projects in Kenya. Buildings 2024, 14, 2383. https://doi.org/10.3390/buildings14082383

AMA Style

Ng’eno Chelang’at F, Lawrence R. Challenging the Western Framing of Sustainability: A Contextual Analysis of Four Architectural Projects in Kenya. Buildings. 2024; 14(8):2383. https://doi.org/10.3390/buildings14082383

Chicago/Turabian Style

Ng’eno Chelang’at, Faith, and Ranald Lawrence. 2024. "Challenging the Western Framing of Sustainability: A Contextual Analysis of Four Architectural Projects in Kenya" Buildings 14, no. 8: 2383. https://doi.org/10.3390/buildings14082383

APA Style

Ng’eno Chelang’at, F., & Lawrence, R. (2024). Challenging the Western Framing of Sustainability: A Contextual Analysis of Four Architectural Projects in Kenya. Buildings, 14(8), 2383. https://doi.org/10.3390/buildings14082383

Note that from the first issue of 2016, this journal uses article numbers instead of page numbers. See further details here.

Article Metrics

Back to TopTop