Seismic Response of the Continuous Rigid-Framed Bridge with Super-High Piers Based on Shaking Table Tests
Abstract
1. Introduction
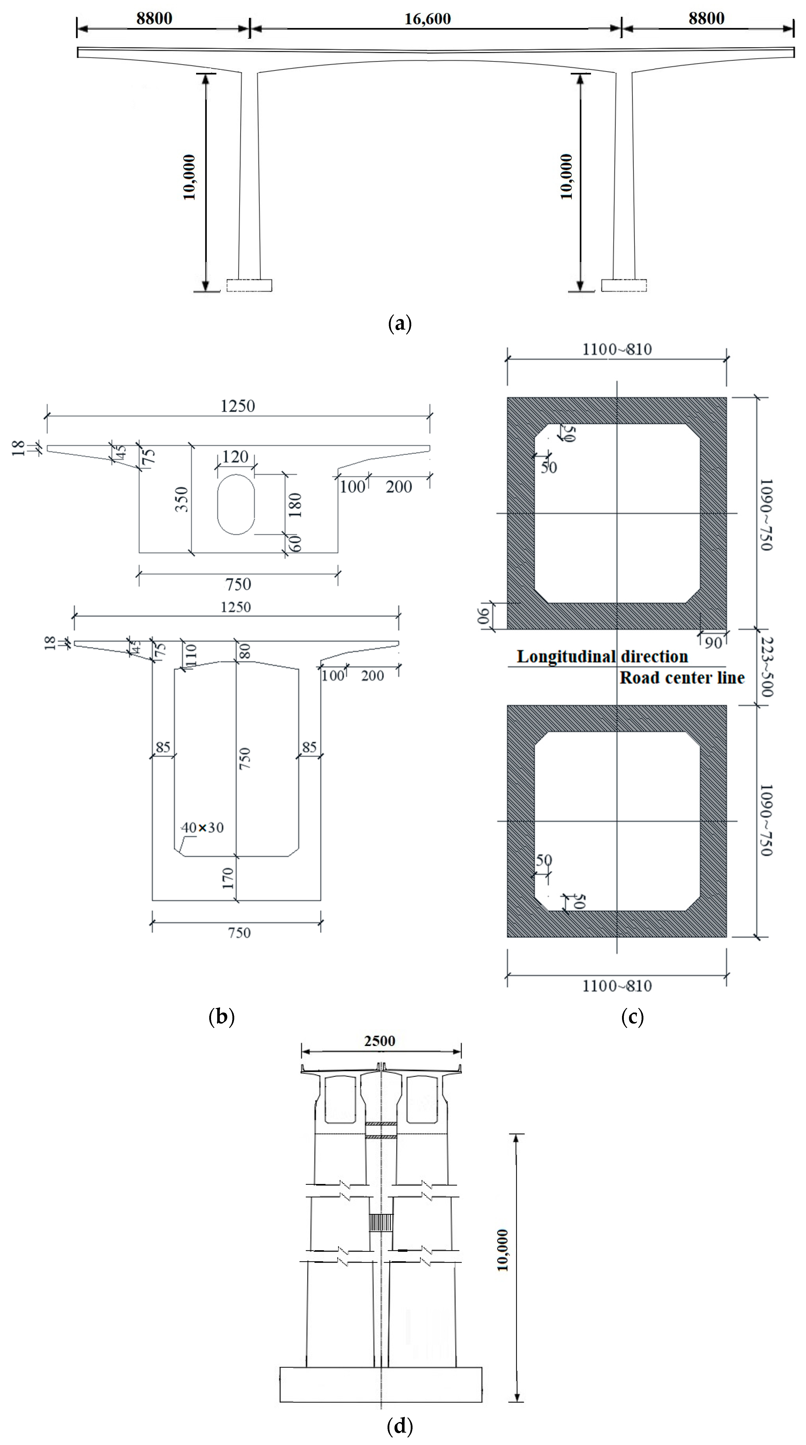
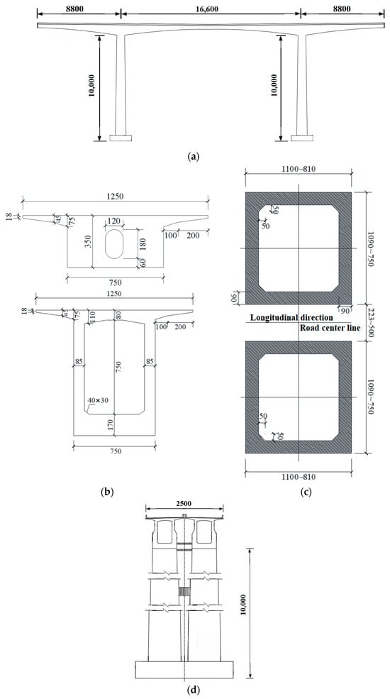
2. Engineering Background
3. Finite Element Model and Experimental Verification
3.1. Finite Element Model and Experimental Verification for a Single Pier
3.1.1. Finite Element Model for a Single Pier
3.1.2. Shaking Table Test for a Single Pier
3.1.3. Experimental Verification for a Single Pier
- Acquisition of acceleration response data is performed at various elevations along the bridge pier, specifically at heights of 2 m, 4 m, 6 m, 8 m and 10 m.
- The autopower spectral density (PSD) and cross power spectral density (CPSD) of the acceleration responses at points with heights H = 2 m, 4 m, 6 m, 8 m and 10 m are calculated.
- 3.
- To ensure comparability across different measurement points, the cross power spectral densities derived in step 2 are subjected to normalization, yielding the normalized cross power spectral densities.
- 4.
- The structural natural frequencies for each mode are identified by locating the peaks in the autopower spectral density.
- 5.
- The vibration modes can be reconstructed using the cross power spectral densities at the identified natural frequencies. At these frequencies, the amplitude of the cross power spectral density is directly proportional to the relative displacement between any two measurement points. The phase differences within the cross power spectral densities allow for the determination of the direction and phase relationships of the structural vibrations. The graphical representation of these vibration modes, as deduced from steps 1 through 5, corresponds to the modes depicted in Figure 7 of the manuscript.
3.2. Finite Element Model for Continuous Rigid Bridge with Super-High Piers
4. Earthquake Records and Analysis Cases
4.1. Earthquake Records
4.2. Analysis Cases
5. Results and Analysis
5.1. Influence of the Ground Motion Properties
5.2. Influence of the Main Bridge Span and Pier Height
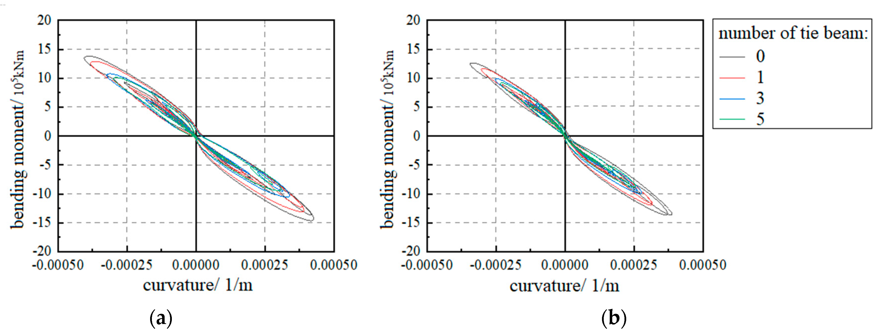
5.3. Influence of Number of Tie Beams
6. Conclusions
- (1)
- CRFB-HP have the characteristic of long vibration periods and are more sensitive to long-period ground motions. Along the longitudinal direction, the peak pier top displacement and pier bottom bending moments of CRFB-HP under NPLP excitations are 40~70% and 30~50% larger than under NLP excitations, respectively. Moreover, the peak pier top displacement and pier bottom bending moment of CRFB-HP under NFPT (TP ≈ T1) are 80~100% and 60~80% larger than under NPLP excitations, respectively. Along the transverse direction, the peak pier top displacement and pier bottom bending moment of the CRFB-HP under NPLP excitations increase by 20~70% and 30~70% compared with those under NLP excitations. In addition, the peak pier top displacement and pier bottom bending moment of the CRFB-HP under NFPT (TP ≈ T1) increase by 60~120% and 50~90% compared with those under NPLP excitations. Thus, the difference in the increase under different types of excitations along the transverse bridge direction is greater than that of along the longitudinal direction.
- (2)
- Under the same ground motions, the change rule of the seismic response of CRFB-HP is the same along the longitudinal direction and transverse direction. With the same span, the peak pier top displacement increases with the pier height increasing, while the peak pier bottom bending moment decreases with the pier height increasing. With the same pier height, the peak pier top displacement and peak pier bottom bending moment both increase with the span length increasing. Moreover, the pier height change has a greater effect on the pier top displacement than that of the span change. Taking the NLP excitation as an example, the peak pier top displacement increases by 20~60% with the pier height change, and by 10~40% with the span change.
- (3)
- CRFB-HP shows obvious high-order response participation (HRP) under different ground motions. Compared with NLP, the feature period of the HRP of cast-in-place and fabricated CRFB-HP increases by 65% and 75% compared to NLPL excitations, respectively. Compared with NLP, the feature period of the HRP of cast-in-place and fabricated CRFB-HP increase by 95% and 113% compared to NFPT (TP ≈ T1) excitation. Thus, the NFPT (TP ≈ T1) ground motions can significantly increase the HRP. Moreover, compared with cast-in-place CRFB-HP, the HRP of fabricated super-high piers is greater (+20~+30%). The plastic hinge may occur in the bottom, middle and top of the pier body resulted in the HRP, especially for the fabricated CRFB-HP.
- (4)
- Under the same ground motion, the peak pier top displacement and pier bottom bending moment both decrease with the increase in the number of tie beams. Compared to the cast-in-place CRFB-HP, the peak pier top displacement is larger and the peak pier bottom bending moment is smaller for the fabricated CRFB-HP. The damage of the pier bottom decreases with the increase of the number of beams. The reason is that the energy consumption of the tie beam increases with the number of beams. Therefore, a reasonable arrangement of tie beams can improve the lateral seismic performance of CRFB-HP.
- (5)
- Due to space limitations, the sensitivity analysis of the influence parameters on the seismic performance of CRFB-HP is not conducted in this study. The sensitivity analysis of the influence parameters on the seismic performance of CRFB-HP, as well as the seismic design method of the CRFB-HP, need to be carried out in future.
Author Contributions
Funding
Data Availability Statement
Conflicts of Interest
References
- Huang, J.; Tan, P.; Zhang, Y.; Zhou, F. Endurance time analysis of seismic performances of long-span continuous rigid-frame bridges with corrugated steel webs. Structures 2022, 43, 990–1001. [Google Scholar] [CrossRef]
- Li, X.; Li, L. Research on Green Evaluation of Mountainous Highway Construction. In Proceedings of the International Symposium on Advancement of Construction Management and Real Estate, Wuhan, China, 28–30 November 2020; Springer: Singapore, 2020; pp. 727–745. [Google Scholar]
- Zheng, Y.; Wang, J.; Xu, W.; Li, N.; Zhang, W.; Chen, Y. Impact of Near-Fault Ground Motions on Longitudinal Seismic Response of CHRF Bridges. Sustainability 2022, 14, 3591. [Google Scholar] [CrossRef]
- JTG/T 2231-01-2020.0; Specifications for Seismic Design of Highway Bridges. China Merchants Chongqing Transportation Research and Design Institute Co., Ltd.: Chongqing, China, 2020.
- Standards I. Eurocode 8-Design Provisions for Earthquake Resistance of Structures—Part 2: Bridges.
- Xu, C.; Xiang, N.; Li, C. Influence of higher-order modes of slender tall pier bridge columns on the seismic performance of pile foundations. Soil Dyn. Earthq. Eng. 2021, 142, 106543. [Google Scholar]
- Xu, C.; Guan, Z.; Li, J.; Spencer, B.F., Jr. Shake table tests of tall-pier bridges to evaluate seismic performance. J. Bridge Eng. 2018, 23, 4018051–4018058. [Google Scholar]
- Tubaldi, E.; Tassotti, L.; Dall’Asta, A.; Dezi, L. Seismic response analysis of slender bridge piers. Earthq. Eng. Struct. Dyn. 2014, 43, 1503–1519. [Google Scholar] [CrossRef]
- Li, J.Z.; Tang, H.; Guan, Z.G. Shake table test and numerical analysis of a bridge model supported on elastomeric pad bearings. J. Earthq. Eng. 2016, 21, 604–634. [Google Scholar] [CrossRef]
- Shao, C.; Qi, Q.; Wang, W.; Wang, Y.; Dai, X.; Huang, H. Study on longitudinal seismic mitigation performance of a long-span railway continuous steel truss girder bridge with super high piers using fluid viscous dampers. China Railw. Sci. 2022, 42, 27–38. [Google Scholar]
- Xu, T.; Li, Q.; Zhao, R.; Ding, J.; Zhan, Y. On the early-age bond-slip behavior of an eccentric bar embedded in a grouted sleeve. Eng. Struct. 2019, 190, 160–170. [Google Scholar] [CrossRef]
- Shen, B.; Xu, W.; Wang, J.; Chen, Y.; Yan, W.; Huang, J.; Tang, Z. Seismic control of super high-rise structures with double-layer tuned particle damper. Earthq. Eng. Struct. Dyn. 2021, 50, 791–810. [Google Scholar] [CrossRef]
- Xu, W.; Luo, Z.; Yan, W.; Chen, Y.; Wang, J. Impact of pulse parameters on the seismic response of long-period bridges. Struct. Infrastruct. Eng. 2020, 16, 1461–1480. [Google Scholar] [CrossRef]
- Borzi, B.; Ceresa, P.; Franchin, P.; Noto, F.; Calvi, G.M.; Pinto, P.E. Seismic Vulnerability of the Italian Roadway Bridge Stock. Earthq. Spectra 2015, 31, 2137–2161. [Google Scholar] [CrossRef]
- Nettis, A.; Iacovazzo, P.; Raffaele, D.; Uva, G.; Adam, J.M. Displacement-based seismic performance assessment of multi-span steel truss bridges. Eng. Struct. 2022, 254, 113832. [Google Scholar] [CrossRef]
- Nettis, A.; Rafaele, D.; Uva, G. Seismic risk-informed prioritisation of multispan RC girder bridges considering knowledge-based uncertainty. Bull. Earthq. Eng. 2024, 22, 693–729. [Google Scholar] [CrossRef]
- Chaudhary, M.T.A. Sensitivity of seismic response of pile-supported, multi-span viaduct bridges to interaction between soil-foundation and structural parameters. Innov. Infrastruct. Solut. 2023, 8, 180. [Google Scholar] [CrossRef]
- Wang, S.; Xu, W.; Huang, X.; Yan, X.; Ma, J.; Sun, H.; Chen, Y. Research on the pounding response and pounding effect of a continuous rigid-Frame bridge with fabricated super-high piers connected by grouting sleeves. Sustainability 2022, 14, 11334. [Google Scholar] [CrossRef]
- Tavares, V.; Gregory, J.; Kirchain, R.; Freire, F. What is the potential for prefabricated buildings to decrease costs and contribute to meeting EU environmental targets? Build. Environ. 2021, 206, 108382. [Google Scholar] [CrossRef]
- Zhao, L.F.; Hao, H.; Bi, K.M.; Li, X. Numerical study of the seismic responses of precast segmental column bridge under spatially varying ground motions. J. Bridge Eng. 2018, 23, 401–425. [Google Scholar] [CrossRef]
- Liu, Y.; Zhou, B.; Cai, J.; Lee, D.S.H.; Deng, X.; Feng, J. Experimental study on seismic behavior of precast concrete column with grouted sleeve connections considering ratios of longitudinal reinforcement and stirrups. Bull. Earthq. Eng. 2018, 16, 6077–6104. [Google Scholar] [CrossRef]
- Ding, Y.; Xu, W.; Chen, Y.; Wang, J.; Yan, W. Experimental research on seismic performance of precast cogging high-strength bolt composite joint and influence of its arrangement location. Eng. Struct. 2020, 225, 111294. [Google Scholar] [CrossRef]
- Xin, G.; Xu, W.; Wang, J.; Yan, X.; Chen, Y.; Yan, W.; Li, J. Seismic performance of fabricated concrete piers with grouted sleeve joints and bearing-capacity estimation method. Structures 2021, 33, 169–186. [Google Scholar] [CrossRef]
- Liu, H.; Chen, J.; Xu, C.; Du, X. Seismic performance of precast column connected with grouted sleeve connectors. J. Build. Eng. 2020, 31, 101410. [Google Scholar] [CrossRef]
- Lu, Z.; Huang, J.; Dai, S.; Liu, J.; Zhang, M. Experimental study on a precast beam-column joint with double grouted splice sleeves. Eng. Struct. 2019, 199, 109589. [Google Scholar] [CrossRef]
- Wang, S.; Xu, W.; Wang, J.; Xin, G.; Chen, Y.; Zhao, Z.; Bai, Y. Experimental research on anti-seismic reinforcement of fabricated concrete pier connected by grouting sleeve based on CFRP and PET materials. Eng. Struct. 2021, 245, 112838. [Google Scholar] [CrossRef]
- Sarkar, N.; Dasgupta, K. Comparative Study of Concrete Models in OpenSEES for Performing Nonlinear Analysis. In Proceedings of the International Conference on Structural Engineering and Construction Management, Kandy, Sri Lanka, 17–19 December 2021; Springer: Cham, Switzerland, 2021; pp. 1135–1143. [Google Scholar]
- GB 50011-2016; Code for Seismic Design of Buildings. Ministry of Housing and Urban-Rural Development. People’s Republic of China: Beijing, China, 2016.
























| C40 | fpc/MPa | epsc0 | fpcu/MPa | epscu | ft/MPa | Ets/MPa | |
|---|---|---|---|---|---|---|---|
| Concrete02 | cover concrete | −21.2 | −0.0020 | −4.2 | −0.0035 | 2.4 | 1625 |
| confined concrete | −26.2 | −0.0025 | −5.2 | −0.0190 | 2.6 | 1625 | |
| Parameter | Dimension | Scale Factor |
|---|---|---|
| Length | [L] | SL = 1/20 |
| Elastic Modulus | [FL−2] | SE = 1 |
| Density | [FT2L−4] | Sρ = 1 |
| Equivalent Mass Density | [FT2L−4] | Sρ0 = 4 |
| Time | [T] | St = (SLSa)0.5 = 0.1 |
| Acceleration | [LT−2] | Sa = 5 |
| Structural Style | Vibration Mode | Experimental Value (Hz) | OpenSees (Hz) | Error (%) |
|---|---|---|---|---|
| Cast-in-place super-high pier | 1 | 2.75 | 2.82 | 2.55 |
| 2 | 18.23 | 18.35 | 0.67 | |
| 3 | 49.24 | 48.05 | 2.42 | |
| Fabricated super-high pier | 1 | 2.88 | 2.95 | 2.43 |
| 2 | 18.95 | 19.01 | 0.32 | |
| 3 | 51.6 | 52.02 | 0.81 |
| Structural Style | Vibration Mode | Midas (Hz) | OpenSees (Hz) | Error (%) |
|---|---|---|---|---|
| Cast-in-place super-high pier | 1 | 2.79 | 2.82 | 1.08 |
| 2 | 18.26 | 18.35 | 0.49 | |
| 3 | 48.01 | 48.05 | 0.08 | |
| Fabricated super-high pier | 1 | 2.91 | 2.95 | 1.37 |
| 2 | 18.95 | 19.01 | 0.32 | |
| 3 | 51.59 | 52.02 | 0.83 |
| Type of the Ground Motion | Seismic Waves | Earthquake Name | Station Name | Rrup (km) | Vs30 (m/s) | Tp-Pulse Period (s) | PGA(g) | |
|---|---|---|---|---|---|---|---|---|
| NLP | RSN503 | “Taiwan SMART1(40)” | “SMART1 C00” | 59.92 | 309.41 | - | 0.037 | |
| RSN40 | “Borrego Mtn” | “San Onofre—So Cal Edison” | 129.11 | 442.88 | - | 0.041 | ||
| RSN55 | “San Fernando” | “Buena Vista—Taft” | 112.52 | 385.69 | - | 0.012 | ||
| NPLP | RSN69 | “San Fernando” | “LB—Terminal Island” | 58.99 | 217.92 | - | 0.029 | |
| RSN74 | “San Fernando” | “Maricopa Array #1” | 193.91 | 303.79 | - | 0.005 | ||
| RSN90 | “San Fernando” | “UCSB—Fluid Mech Lab” | 124.41 | 322.42 | - | 0.017 | ||
| NFPT | Tp < T1 | RSN764 | “Loma Prieta” | “Gilroy—Historic Bldg” | 10.97 | 308.55 | 1.638 | 0.285 |
| RSN1050 | “Northridge-01” | “Pacoima Dam (downstr)” | 7.01 | 2016.13 | 0.588 | 0.618 | ||
| RSN3746 | “Cape Mendocino” | “Centerville Beach_ Naval Fac” | 18.31 | 459.04 | 1.967 | 0.318 | ||
| Tp ≈ T1 | RSN171 | “Imperial Valley-06” | “El Centro—Meloland Geot. Array” | 0.07 | 264.57 | 3.423 | 0.317 | |
| RSN292 | “Irpinia_ Italy-01” | “Sturno (STN)” | 10.84 | 382 | 3.27264 | 0.227 | ||
| RSN983 | “Northridge-01” | “Jensen Filter Plant Generator Building” | 5.43 | 525.79 | 3.535 | 0.571 | ||
| Tp > T1 | RSN184 | “Imperial Valley-06” | “El Centro Differential Array” | 5.09 | 202.26 | 6.265 | 0.244 | |
| RSN1515 | “Chi-Chi_ Taiwan” | “TCU082” | 5.16 | 472.81 | 8.099 | 0.225 | ||
| RSN8606 | “El Mayor-Cucapah_ Mexico” | “Westside Elementary School” | 11.44 | 242 | 7.084 | 0.281 | ||
| Analysis Cases | Span of Main Bridge (m) | Pier Height (m) | Peak Pier Top Displacement (mm) | |||||||||
|---|---|---|---|---|---|---|---|---|---|---|---|---|
| Longitudinal Direction of Bridge | Transverse Direction of Bridge | |||||||||||
| NLP | NPLP | NFPT | NLP | NPLP | NFPT | |||||||
| TP ≈ T1 | TP > T1 | TP < T1 | TP ≈ T1 | TP > T1 | TP < T1 | |||||||
| 1 | 70 | 100 | 736 | 1109 | 1491 | 836 | 813 | 658 | 1021 | 1259 | 834 | 894 |
| 2 | 130 | 883 | 1324 | 1753 | 938 | 949 | 816 | 1136 | 1628 | 926 | 987 | |
| 3 | 160 | 1108 | 1619 | 2015 | 1205 | 1198 | 1096 | 1265 | 1849 | 1196 | 1056 | |
| 4 | 120 | 100 | 839 | 1279 | 1677 | 915 | 935 | 850 | 1098 | 1482 | 986 | 946 |
| 5 | 130 | 1095 | 1620 | 2152 | 1189 | 1177 | 968 | 1468 | 1968 | 1152 | 1025 | |
| 6 | 160 | 1215 | 1997 | 2410 | 1325 | 1395 | 1135 | 1901 | 2135 | 1385 | 1245 | |
| 7 | 166 | 100 | 937 | 1380 | 1858 | 1128 | 1112 | 965 | 1268 | 1593 | 1023 | 966 |
| 8 | 130 | 1205 | 1756 | 2378 | 1359 | 1295 | 1085 | 1596 | 2364 | 1223 | 1000 | |
| 9 | 160 | 1520 | 2231 | 2925 | 1632 | 1689 | 1362 | 2008 | 2796 | 1426 | 1129 | |
| Analysis Cases | Span of Main Bridge (m) | Pier Height (m) | Peak Pier Top Displacement (mm) | |||||||||
|---|---|---|---|---|---|---|---|---|---|---|---|---|
| Longitudinal Direction of Bridge | Transverse Direction of Bridge | |||||||||||
| NLP | NPLP | NFPT | NLP | NPLP | NFPT | |||||||
| TP ≈ T1 | TP > T1 | TP < T1 | TP ≈ T1 | TP > T1 | TP < T1 | |||||||
| 1 | 70 | 100 | 795 | 1218 | 1605 | 895 | 903 | 627 | 1056 | 1196 | 866 | 821 |
| 2 | 130 | 958 | 1472 | 1893 | 1032 | 1052 | 885 | 1285 | 1723 | 964 | 963 | |
| 3 | 160 | 1205 | 1801 | 2136 | 1319 | 1289 | 968 | 1536 | 1926 | 1265 | 1123 | |
| 4 | 120 | 100 | 942 | 1398 | 1883 | 1095 | 1105 | 986 | 1195 | 1534 | 1008 | 1027 |
| 5 | 130 | 1186 | 1793 | 2209 | 1295 | 1287 | 1024 | 1525 | 1897 | 1124 | 1194 | |
| 6 | 160 | 1302 | 2179 | 2596 | 1521 | 1558 | 1169 | 1869 | 2238 | 1438 | 1324 | |
| 7 | 166 | 100 | 1031 | 1470 | 2069 | 1251 | 1268 | 1035 | 1294 | 1642 | 1164 | 1124 |
| 8 | 130 | 1359 | 1920 | 2650 | 1552 | 1502 | 1164 | 1659 | 2389 | 1326 | 1265 | |
| 9 | 160 | 1679 | 2399 | 3198 | 1793 | 1805 | 1398 | 2101 | 2934 | 1521 | 1498 | |
| Analysis Cases | Span of Main Bridge (m) | Pier Height (m) | Peak Pier Bottom Bending Moment (105 kN·m) | |||||||||
|---|---|---|---|---|---|---|---|---|---|---|---|---|
| Longitudinal Direction of Bridge | Transverse Direction of Bridge | |||||||||||
| NLP | NPLP | NFPT | NLP | NPLP | NFPT | |||||||
| TP ≈ T1 | TP > T1 | TP < T1 | TP ≈ T1 | TP > T1 | TP < T1 | |||||||
| 1 | 70 | 100 | 5.9 | 7.9 | 10.1 | 7.6 | 6.7 | 5.8 | 7.6 | 9.9 | 7.4 | 6.3 |
| 2 | 130 | 5.8 | 7.6 | 9.5 | 7.3 | 6.4 | 5.6 | 7.4 | 9.2 | 7.1 | 6.1 | |
| 3 | 160 | 5.6 | 7.2 | 9.0 | 7.1 | 6.2 | 5.5 | 7.1 | 8.4 | 6.8 | 5.9 | |
| 4 | 120 | 100 | 6.8 | 9.4 | 11.9 | 8.5 | 7.5 | 6.2 | 9.1 | 11.4 | 8.5 | 7.2 |
| 5 | 130 | 6.5 | 9.0 | 11.1 | 8.2 | 7.2 | 6.1 | 8.8 | 10.7 | 7.9 | 7.0 | |
| 6 | 160 | 6.3 | 8.4 | 10.4 | 7.8 | 7.0 | 6.0 | 8.3 | 10.2 | 7.3 | 6.6 | |
| 7 | 166 | 100 | 7.9 | 11.0 | 13.6 | 9.0 | 8.4 | 7.2 | 10.1 | 13.1 | 8.8 | 8.2 |
| 8 | 130 | 7.5 | 10.4 | 12.7 | 8.6 | 8.1 | 7.1 | 9.9 | 12.3 | 8.3 | 8.1 | |
| 9 | 160 | 7.2 | 9.7 | 11.7 | 8.2 | 7.7 | 7.0 | 9.2 | 11.8 | 8.0 | 7.6 | |
| Analysis Cases | Span of Main Bridge (m) | Pier Height (m) | Peak Pier Bottom Bending Moment (105 kN·m) | |||||||||
|---|---|---|---|---|---|---|---|---|---|---|---|---|
| Longitudinal Direction of Bridge | Transverse Direction of Bridge | |||||||||||
| NLP | NPLP | NFPT | NLP | NPLP | NFPT | |||||||
| TP ≈ T1 | TP > T1 | TP < T1 | TP ≈ T1 | TP > T1 | TP < T1 | |||||||
| 1 | 70 | 100 | 4.8 | 7.4 | 8.3 | 5.8 | 5.6 | 4.5 | 7.3 | 8.1 | 5.6 | 5.5 |
| 2 | 130 | 4.7 | 7.1 | 7.7 | 5.6 | 5.4 | 4.4 | 7.1 | 7.6 | 5.3 | 5.1 | |
| 3 | 160 | 4.6 | 6.7 | 7.3 | 5.4 | 5.3 | 4.2 | 6.9 | 7.0 | 5.0 | 5.0 | |
| 4 | 120 | 100 | 5.7 | 8.7 | 9.8 | 7.1 | 6.7 | 5.2 | 8.7 | 9.5 | 6.5 | 6.5 |
| 5 | 130 | 5.5 | 8.3 | 9.2 | 6.9 | 6.5 | 5.1 | 8.3 | 8.9 | 6.1 | 6.2 | |
| 6 | 160 | 5.3 | 7.8 | 8.6 | 6.6 | 6.3 | 4.9 | 7.6 | 8.4 | 6.0 | 6.0 | |
| 7 | 166 | 100 | 6.7 | 10.2 | 11.8 | 8.4 | 7.8 | 6.4 | 10.5 | 12.0 | 8.2 | 7.6 |
| 8 | 130 | 6.5 | 9.5 | 10.9 | 8.0 | 7.6 | 6.2 | 9.2 | 10.5 | 8.0 | 7.2 | |
| 9 | 160 | 6.2 | 8.9 | 10.1 | 7.6 | 7.3 | 5.9 | 8.4 | 9.7 | 7.3 | 7.0 | |
| Type of the Ground Motion | Cumulative Duration/s | |
|---|---|---|
| Cast-in-Place Pier | Fabricated Pier | |
| NLP | 2.0 | 2.4 |
| NPLP | 3.3 | 4.2 |
| NFPT | 3.9 | 5.1 |
Disclaimer/Publisher’s Note: The statements, opinions and data contained in all publications are solely those of the individual author(s) and contributor(s) and not of MDPI and/or the editor(s). MDPI and/or the editor(s) disclaim responsibility for any injury to people or property resulting from any ideas, methods, instructions or products referred to in the content. |
© 2024 by the authors. Licensee MDPI, Basel, Switzerland. This article is an open access article distributed under the terms and conditions of the Creative Commons Attribution (CC BY) license (https://creativecommons.org/licenses/by/4.0/).
Share and Cite
Yan, X.-Y.; Zhao, Z.; Cao, S.-S.; Zhang, Y.-F.; Liu, C.-H. Seismic Response of the Continuous Rigid-Framed Bridge with Super-High Piers Based on Shaking Table Tests. Buildings 2024, 14, 1527. https://doi.org/10.3390/buildings14061527
Yan X-Y, Zhao Z, Cao S-S, Zhang Y-F, Liu C-H. Seismic Response of the Continuous Rigid-Framed Bridge with Super-High Piers Based on Shaking Table Tests. Buildings. 2024; 14(6):1527. https://doi.org/10.3390/buildings14061527
Chicago/Turabian StyleYan, Xiao-Yu, Zhuo Zhao, Shan-Shan Cao, Ya-Fen Zhang, and Cong-Hui Liu. 2024. "Seismic Response of the Continuous Rigid-Framed Bridge with Super-High Piers Based on Shaking Table Tests" Buildings 14, no. 6: 1527. https://doi.org/10.3390/buildings14061527
APA StyleYan, X.-Y., Zhao, Z., Cao, S.-S., Zhang, Y.-F., & Liu, C.-H. (2024). Seismic Response of the Continuous Rigid-Framed Bridge with Super-High Piers Based on Shaking Table Tests. Buildings, 14(6), 1527. https://doi.org/10.3390/buildings14061527
