GIS-Based Regional Seismic Risk Assessment for Dubai, UAE, Using NHERI SimCenter R2D Application
Abstract
1. Introduction
1.1. Open-Source Packages for Regional Earthquake Simulations
1.2. UAE Seismicity Uncertainties
2. Methodology and Research Significance
3. Calibrating NMFS Models for Tall Building Archetypes
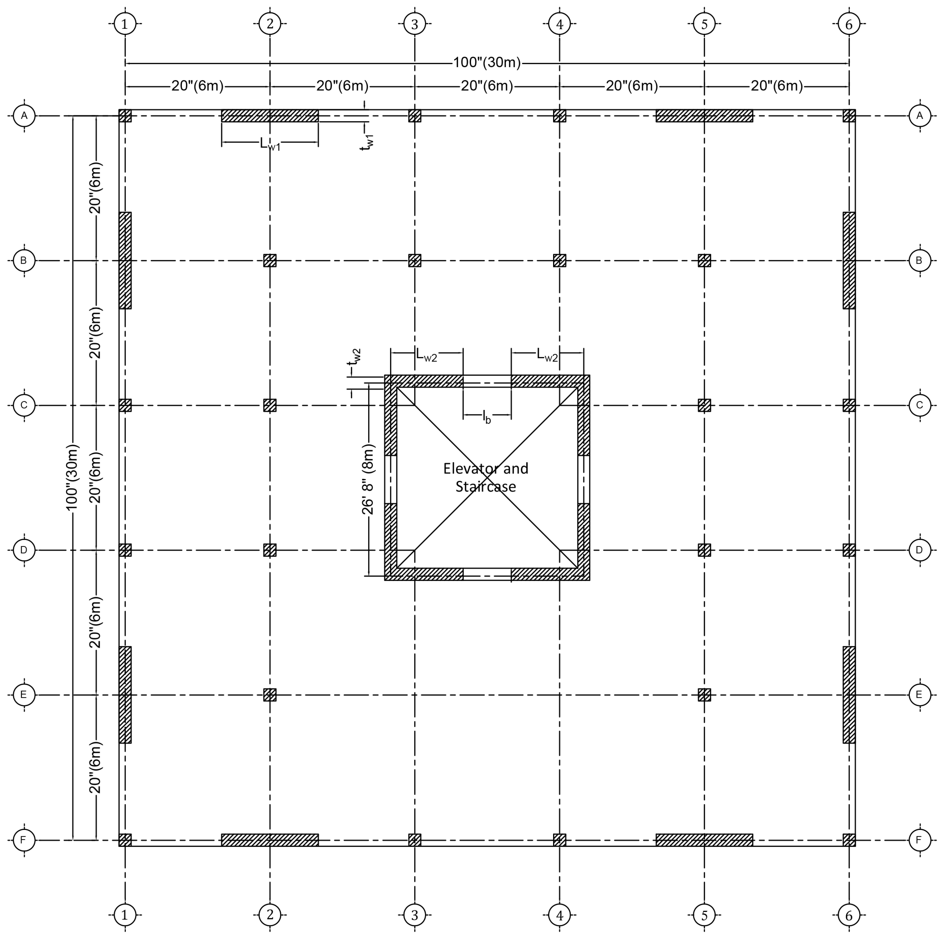
3.1. Design of Tall Building Archetypes
3.2. Calibration Resulting Model (Calibrating NMFS Models for Tall Building Archetypes)
4. GIS Databases for Buildings, Ground Motions, and Risk Assessment Results
4.1. Input Ground Motions
4.2. Buildings Database
5. Risk Assessment Results
5.1. Collapse Probability

5.2. Repair Cost–Replacement Cost Ratio


5.3. Repair Time


5.4. Injuries




6. Conclusions
- -
- The future of SRA research lies in improving the treatment and propagation of uncertainties in scenario-based and probabilistic risk assessments [35].
- -
- There is a need for advancements in the methodological development of regional SRA, including hazard analysis, exposure modeling, fragility assessment, and consequence evaluation, as well as the associated uncertainty quantification and propagation [36].
- -
- Developing resilience metrics, restoration modeling, and planning in regional seismic resilience assessment is also a priority for future research in SRA [37].
- -
- Current Challenges in Regional SRA Research:
- -
- The lack of review studies summarizing the research advancements in SRA from a regional-level perspective presents a challenge in understanding the methodological developments and limitations in regional SRA [36].
- -
- The complexity introduced by regional-level assessment—which includes additional dimensions and complexity compared to traditional site-specific assessment—poses challenges in SRA research [36].
- -
- Role of Machine Learning and AI in Regional SRA Research:
- -
- Machine learning and AI can be leveraged for regional SRA by integrating these technologies in assessing seismic hazard impacts, vulnerability modeling, and consequence evaluation, thereby improving the quantitative and probabilistic assessment of regional seismic hazard impacts [36].
- -
- The use of machine-learning algorithms in seismic vulnerability assessment can effectively protect against earthquakes, as demonstrated in a case study in a densely populated urban area near an active fault [37].
- -
- Key Factors Influencing Research Priorities in Regional SRA:
- -
- The potential implications of seismic risk for disaster management and urban planning, especially in densely populated urban areas, influence the research priorities in regional SRA [38].
- -
- Considering the complexity and uncertainty involved, the need for a systematic approach to reliably and realistically address the risk of seismic events also influences the research priorities in regional SRA [39].
- -
- Regional SRA research has implications for the production of seismic risk maps, which are valuable tools for planning mitigation measures to improve the level of preparedness in case of an earthquake, especially in urban areas [38].
- -
- The deployment of seismic risk management, informed by regional SRA, can support resiliency planning and prioritization of seismic retrofit projects for spatially distributed critical infrastructure, such as water and wastewater systems [40].
Author Contributions
Funding
Data Availability Statement
Acknowledgments
Conflicts of Interest
References
- Lu, X.; McKenna, F.; Cheng, Q.; Xu, Z.; Zeng, X.; Mahin, S.A. An open-source framework for regional earthquake loss estimation using the city-scale nonlinear time history analysis. Earthq. Spectra 2020, 36, 806–831. [Google Scholar] [CrossRef]
- McKenna, F.; Gavrilovic, S.; Zhao, J.; Zhong, K.; Zsarnoczay, A.; Cetiner, B.; Yi, S.-R.; Arduino, P.; Elhaddad, W. The Regional Resilience Determination (R2D). 2021. Available online: https://nheri-simcenter.github.io/R2D-Documentation/index.html (accessed on 21 May 2021).
- SimCenter. Available online: https://simcenter.designsafe-ci.org/ (accessed on 30 September 2022).
- International Seismological Centre. Disaster Prev. Manag. Int. J. 1992, 8, 452. [CrossRef]
- National Geoscience Database of IRAN. 2011. Available online: http://www.ngdir.ir/Earthquake/Earthquake.asp (accessed on 21 May 2021).
- Sigbjornsson, R.; Elnashai, A.S. Hazard assessment of Dubai, united arab emirates, for close and distant earthquakes. J. Earthq. Eng. 2006, 10, 748–773. [Google Scholar] [CrossRef]
- Al-Dogom, D.; Schuckma, K.; Al-Ruzouq, R. Geostatistical seismic analysis and hazard assessment; United Arab Emirates. Int. Arch. Photogramm. Remote Sens. Spat. Inf. Sci. ISPRS Arch. 2018, 42, 29–36. [Google Scholar] [CrossRef]
- Al Khatibi, E.; Elenean, A. Dubai Seismic Network. Dubai Municipality. 2012, p. 2460. Available online: https://www.seismo.geodesy.ae/dsn.aspx (accessed on 9 April 2021).
- Khan, Z.; El-Emam, M.; Irfan, M.; Abdalla, J. Probabilistic seismic hazard analysis and spectral accelerations for United Arab Emirates. Nat. Hazards 2013, 67, 569–589. [Google Scholar] [CrossRef]
- Al-Haddad, M.; Siddiqi, G.H.; Al-Zaid, R.; Arafah, A.; Necioglu, A.; Turkelli, N. A Basis for Evaluation of Seismic Hazard and Design Criteria for Saudi Arabia. Earthq. Spectra 1994, 10, 231–258. [Google Scholar] [CrossRef]
- Abdalla, J.A.; Al-Homoud, A.S. Seismic hazard assessment of United Arab Emirates and its surroundings. J. Earthq. Eng. 2004, 8, 817–837. [Google Scholar] [CrossRef]
- Peiris, N.; Free, M.; Lubkowski, Z.; Hussein, A.T. Seismic hazard and seismic design requirements for the Arabian Gulf region. In Proceedings of the First European Conference on Earthquake Engineering and Seismology, Geneva, Switzerland, 3–8 September 2006; Volume 10. [Google Scholar]
- Musson, P.M.W.; Northmore, K.J.; Sargeant, S.; Phillips, E.; David, B.; David, L.; McCue, K.; Ambraseys, N.N. The Geology and Geophysics of the United Arab Emirates Volume 4: Geological Hazards; Abu Dhabi, Ministry of Energy, United Arab Emirates: Abu Dhabi, United Arab Emirates, 2006; Volume 4, p. 251.
- Aldama-Bustos, G.; Bommer, J.J.; Fenton, C.H.; Stafford, P.J. Probabilistic seismic hazard analysis for rock sites in the cities of Abu Dhabi, Dubai and Ra’s Al Khaymah, United Arab Emirates. Georisk 2009, 3, 1–29. [Google Scholar] [CrossRef]
- Shama, A.A. Site specific probabilistic seismic hazard analysis at Dubai Creek on the west coast of UAE. Earthq. Eng. Eng. Vib. 2011, 10, 143–152. [Google Scholar] [CrossRef]
- Grünthal, G.; Bosse, C.; Sellami, S.; Mayer-Rosa, D.; Giardini, D. Compilation of the GSHAP regional seismic hazard for Europe, Africa and the Middle East. Ann. Geophys. 2021, 42, 2021. [Google Scholar] [CrossRef]
- AlHamaydeh, M.; Abdullah, S.; Hamid, A.; Mustapha, A. Seismic design factors for RC special moment resisting frames in Dubai, UAE. Earthq. Eng. Eng. Vib. 2011, 10, 495–506. [Google Scholar] [CrossRef]
- Aly, N.; AlHamaydeh, M.; Galal, K. Quantification of the Impact of Detailing on the Performance and Cost of RC Shear Wall Buildings in Regions with High Uncertainty in Seismicity Hazards. J. Earthq. Eng. 2020, 24, 421–446. [Google Scholar] [CrossRef]
- AlHamaydeh, M.; Elkafrawy, M.E.; Aswad, N.G.; Talo, R.; Banu, S. Evaluation of UHPC Tall Buildings in UAE with Ductile Coupled Shear Walls under Seismic Loading. In Proceedings of the 2022 Advances in Science and Engineering Technology International Conferences (ASET), Dubai, United Arab Emirates, 21–24 February 2022; pp. 1–6. [Google Scholar] [CrossRef]
- AlHamaydeh, M.; Elkafrawy, M.E.; Amin, F.M.; Maky, A.M.; Mahmoudi, F. Analysis and Design of UHPC Tall Buildings in UAE with Ductile Coupled Shear Walls Lateral Load Resisting System. In Proceedings of the 2022 Advances in Science and Engineering Technology International Conferences (ASET), Dubai, United Arab Emirates, 21–24 February 2022; pp. 1–6. [Google Scholar] [CrossRef]
- AlHamaydeh, M.; Elkafrawy, M.; Banu, S. Seismic Performance and Cost Analysis of UHPC Tall Buildings in UAE with Ductile Coupled Shear Walls. Materials 2022, 15, 2888. [Google Scholar] [CrossRef]
- AlHamaydeh, M.; Al-Shamsi, G.; Aly, N.; Ali, T. Geographic Information System-Based Seismic Risk Assessment for Dubai, UAE: A Step toward Resilience and Preparedness. Pract. Period. Struct. Des. Constr. 2022, 27, 04021069. [Google Scholar] [CrossRef]
- Abrahamson, N.A.; Silva, W.J.; Kamai, R. Update of the AS08 Ground-Motion Prediction equations based on the NGA-west2 data set. In Pacific Engineering Research Center Report; Pacific Earthquake Engineering Research Center: Berkeley, CA, USA, 2013; Volume 174. [Google Scholar]
- Hazus. Hazus–MH 2.1: Technical Manual; Federal Emergency Management Agency: Washington, DC, USA, 2012; Volume 718.
- UAE Construction Cost Insight Report UAE Projects Snapshot. Jll-Mena. 2021. Available online: https://www.jll-mena.com/en/trends-and-insights/research/the-uae-construction-market-report (accessed on 22 March 2022).
- AlHamaydeh, M.; Aly, N.; Galal, K. Effect of Diverse Seismic Hazard Estimates on Design and Performance of RC Shear Wall Buildings in Dubai, UAE. In Proceedings of the 2015 World Congress on Advances in Structural Engineering and Mechanics (ASEM15), Incheon, Republic of Korea, 25–29 August 2015. [Google Scholar]
- Xiong, C.; Lu, X.; Guan, H.; Xu, Z. A nonlinear computational model for regional seismic simulation of tall buildings. Bull. Earthq. Eng. 2016, 14, 1047–1069. [Google Scholar] [CrossRef]
- Lu, X.; Han, B.; Hori, M.; Xiong, C.; Xu, Z. A coarse-grained parallel approach for seismic damage simulations of urban areas based on refined models and GPU/CPU cooperative computing. Adv. Eng. Softw. 2014, 70, 90–103. [Google Scholar] [CrossRef]
- American Society of Civil Engineers (ASCE). Prestandard and Commentary for the Seismic Rehabilitation of Buildings; FEMA-356; American Society of Civil Engineers: Washington, DC, USA, 2000. [Google Scholar]
- Chiou, B.S.-J.; Youngs, R.R. Chiou and Youngs PEER-NGA Empirical Ground Motion Model for the Average Horizontal Component of Peak Acceleration and Pseudo-Spectral Acceleration for Spectral Periods of Interim Report for USGS Review. PEER Rep. Draft. Pac. Earthq. Eng. Res. Cent. Berkeley CA 2006, 219. Available online: https://apps.peer.berkeley.edu/research/lifelines/nga_docs/jul_10_06/Chiou_Youngs_NGA_2006.pdf (accessed on 17 April 2023).
- Zsarnóczay, A.; Deierlein, G.G. PELICUN—A Computational Framework for Estimating Damage, Loss and Community Resilience. In Proceedings of the 17th World Conference on Earthquake Engineering, Sendai, Japan, 13–18 September 2020; pp. 1–12. [Google Scholar]
- Shen, Y.; Zhang, D.; Wang, R.; Li, J.; Huang, Z. SBD-K-medoids-based long-term settlement analysis of shield tunnel. Transp. Geotech. 2023, 42, 101053. [Google Scholar] [CrossRef]
- Mohammed, D.; Horváth, B. Steady-Speed Traffic Capacity Analysis for Autonomous and Human-Driven Vehicles. Appl. Sci. 2023, 14, 337. [Google Scholar] [CrossRef]
- Wang, D.; Lu, C.-T.; Fu, Y. Towards Automated Urban Planning: When Generative and ChatGPT-like AI Meets Urban Planning. arXiv 2023, arXiv:2304.03892. Available online: http://arxiv.org/abs/2304.03892 (accessed on 12 April 2023).
- Crowley, H. Earthquake Risk Assessment: Present Shortcomings and Future Directions. Perspect. Eur. Earthq. Eng. Seismol. 2014, 1, 515–532. [Google Scholar] [CrossRef] [PubMed]
- Du, A.; Wang, X.; Xie, Y.; Dong, Y. Regional seismic risk and resilience assessment: Methodological development, applicability, and future research needs—An earthquake engineering perspective. Reliab. Eng. Syst. Saf. 2023, 233, 109104. [Google Scholar] [CrossRef]
- Narjabadifam, P.; Hoseinpour, R.; Noori, M.; Altabey, W. Practical seismic resilience evaluation and crisis management planning through GIS-based vulnerability assessment of buildings. Earthq. Eng. Eng. Vib. 2021, 20, 25–37. [Google Scholar] [CrossRef]
- Rasulo, A.; Fortuna, M.A.; Borzi, B. A seismic risk model for Italian urban areas. Safety and Reliability of Complex Engineered Systems. In Proceedings of the 25th European Safety and Reliability Conference, ESREL 2015, Zürich, Switzerland, 7–10 September 2015; pp. 4319–4326. [Google Scholar] [CrossRef]
- Vahdat, K.; Smith, N.J.; Amiri, G. Seismic risk management: A system-based perspective. Risk Manag. 2014, 16, 294–318. [Google Scholar] [CrossRef]
- Taing, J.; Nisar, A.; Hitchcock, C.S.; Bates, M.; Blackmun, R. Regional-scale seismic vulnerability assessment of medium-sized water and wastewater systems. Lifelines 2022, 1, 440–447. [Google Scholar] [CrossRef]



| Seismic Risk Source | Description |
|---|---|
| The Zagros Fold and Thrust Belt | A series of major blind thrust faults capable of generating Mb~7 earthquakes. |
| The Makran Subduction Zone | A shallow dipping seismic source ~6°, which steepens to ~19° south of Iran’s coastline. It produced an Ms = 8 earthquake in 1945. |
| The Zendan-Minab Fault System | A complex faulting system created by the Makran subduction zone, joining the Zagros fold and thrust belt. It is capable of generating moderate/large earthquakes. |
| The Sabzevaran Jiroft Fault System | It has a similar seismogenic potential to the Zendan-Minab fault system, located further east. |
| Oman Mountains and the Dibba Line | The region exhibits features of faulting and a history of active tectonics. The 2002 Masafi earthquake originated in this region. |
| The West Coast Fault | It crosses the cities of Dubai and Abu Dhabi and passes very close to Ra’s Al Khaymah. There is limited information regarding its activity (debatable existence). |
| Study | PGA (Return Period = 475 Years) (g) |
|---|---|
| Al-Haddad et al. [10] | <0.05 |
| Abdalla and Al Homoud [11] | 0.14 |
| Peiris et al. [12] | 0.06 |
| Sigbjornsson and Elnashai [6] | 0.16 |
| Musson et al. [13] | 0.05 |
| Aldama-Bustos et al. [14] | <0.05 |
| Shama [15] | 0.17 |
| Grunthel et al. [16] | 0.32 |
| Label | Number of Stories | Year Built | Occupancy Class | Structure Type | Plan Area (Ft2) | Cost (AED K) | Seismic Level |
|---|---|---|---|---|---|---|---|
| LR_RES_F1 | 1 | 1981 | RES1 | RM1L | 1615 | 675 | Low |
| LR_RES_F2 | 2 | 1995 | RES3 | C1L | 2690 | 2025 | Low |
| LR_RES_F3 | 3 | 2000 | RES3 | C2L | 4300 | 4850 | Low |
| MR_RES_F5 | 5 | 2002 | RES3 | C1L | 5382 | 14,500 | Middle |
| LR_COM_F3 | 3 | 1990 | COM2 | C1L | 5920 | 7012 | Low |
| MR_COM_F6 | 6 | 2005 | COM1 | C1L | 5382 | 16,120 | Middle |
| MR_COM_F7 | 7 | 2010 | COM1 | C2L | 5382 | 18,805 | Middle |
| LR_IND_F1 | 1 | 2003 | IND2 | S1L | 10,764 | 4500 | Middle |
| Label | Number of Stories | Cost (AED) | Year Built | Material Properties | Plan Area (Ft2) | Seismic Level | |
|---|---|---|---|---|---|---|---|
| Fc′ (MPa) | Fy (MPa) | ||||||
| HR_COM_F10 | 10 | 58,485 | 2000 | 50 | 420 | 9685 | High |
| HR_COM_F15 | 15 | 87,727 | |||||
| HR_COM_F20 | 20 | 115,970 | |||||
| HR_COM_F25 | 25 | 146,211 | 2005 | 60 | 420 | ||
| HR_COM_F30 | 30 | 175,454 | |||||
| HR_COM_F35 | 35 | 204,696 | |||||
| HR_COM_F40 | 40 | 233,939 | 2010 | 70 | 500 | ||
| HR_COM_F45 | 45 | 263,181 | |||||
| HR_COM_F50 | 50 | 292,423 | |||||
| Archetype | NMFS Model Parameters | ||||
|---|---|---|---|---|---|
| EI (KN·m4) | GA (KN·m2) | ||||
| M1_10F_50RC | 2.65 | 1.20 | 5.28 | 1.7 × 108 | 1.2 × 106 |
| M2_15F_50RC | 1.25 | 1.25 | 6.11 | 1.4 × 108 | 5.9 × 105 |
| M3_20F_50RC | 1.62 | 1.24 | 2.36 | 2.9 × 108 | 4.7 × 105 |
| M4_25F_60RC | 1.22 | 1.23 | 2.41 | 3.8 × 108 | 3.8 × 105 |
| M5_30F_60RC | 1.06 | 1.24 | 2.28 | 1.1 × 109 | 3.1 × 105 |
| M6_35F_60RC | 1.25 | 1.26 | 1.83 | 4.5 × 109 | 3.4 × 105 |
| M7_40F_70RC | 1.30 | 1.26 | 2.01 | 7.3 × 109 | 3.5 × 105 |
| M8_45F_70RC | 1.24 | 1.27 | 1.40 | 4.3 × 109 | 2.7 × 105 |
| M9_50F_70RC | 1.13 | 1.27 | 1.40 | 6.2 × 109 | 2.4 × 105 |
| Average | 1.41 | 1.25 | 2.80 | 2.7 × 109 | 4.6 × 105 |
| Location | Date | Longitude | Latitude | Mw | Focal Depth (km) |
|---|---|---|---|---|---|
| Chaldoran | 24 November 1976 | 39.07 | 44.38 | 7.0 | 15 |
| Tabas | 16 September 1978 | 33.60 | 56.93 | 7.4 | 11 |
| KuliBonyabad | 27 November 1979 | 30.67 | 51.60 | 7.0 | 25 |
| Sirch | 28 July 1981 | 30.20 | 57.54 | 7.2 | 15.5 |
| ArdekulGhaen | 10 May 1997 | 34.61 | 49.85 | 7.2 | 10 |
| Manjil | 6 November 1990 | 28.25 | 55.46 | 7.4 | 11 |
| Hormozgan, northwest of Dehbarez | 2000 | 27.56 | 56.84 | 4.2 | 41 |
| Hormozgan, northwest of Dehbarez | 2002 | 27.64 | 56.74 | 5.3 | 12 |
| Hormozgan, northeast of Bandar-e Abbas | 2002 | 27.49 | 56.62 | 4.4 | 33 |
| Masafi-Bani Hamid | 13 September 2007 | 25.46 | 56.2 | 4.0 | 20 |
| Archetype Group | Neighborhood Class | |||||
|---|---|---|---|---|---|---|
| Description | Stories | Residential | Commercial | Industrial | Unidentified | |
| RES (1_5) | Low- and medium-rise residential buildings | 1–5 | 0.50 | 0.00 | 0.30 | 0.40 |
| IND | Light industrial buildings | 1 | 0.00 | 0.00 | 0.70 | 0.10 |
| COM (3_7) | Low- and medium-rise commercial buildings | 3–7 | 0.25 | 0.25 | 0.15 | 0.15 |
| COM (10_20) | High-rise commercial buildings | 10–20 | 0.15 | 0.25 | 0.00 | 0.15 |
| COM (25_35) | High-rise commercial buildings | 25–35 | 0.05 | 0.25 | 0.00 | 0.10 |
| COM (40_50) | High-rise commercial buildings | 40–50 | 0.05 | 0.25 | 0.00 | 0.10 |
Disclaimer/Publisher’s Note: The statements, opinions and data contained in all publications are solely those of the individual author(s) and contributor(s) and not of MDPI and/or the editor(s). MDPI and/or the editor(s) disclaim responsibility for any injury to people or property resulting from any ideas, methods, instructions or products referred to in the content. |
© 2024 by the authors. Licensee MDPI, Basel, Switzerland. This article is an open access article distributed under the terms and conditions of the Creative Commons Attribution (CC BY) license (https://creativecommons.org/licenses/by/4.0/).
Share and Cite
Maky, A.M.; AlHamaydeh, M.; Saleh, M. GIS-Based Regional Seismic Risk Assessment for Dubai, UAE, Using NHERI SimCenter R2D Application. Buildings 2024, 14, 1277. https://doi.org/10.3390/buildings14051277
Maky AM, AlHamaydeh M, Saleh M. GIS-Based Regional Seismic Risk Assessment for Dubai, UAE, Using NHERI SimCenter R2D Application. Buildings. 2024; 14(5):1277. https://doi.org/10.3390/buildings14051277
Chicago/Turabian StyleMaky, Ahmed Mansour, Mohammad AlHamaydeh, and Mona Saleh. 2024. "GIS-Based Regional Seismic Risk Assessment for Dubai, UAE, Using NHERI SimCenter R2D Application" Buildings 14, no. 5: 1277. https://doi.org/10.3390/buildings14051277
APA StyleMaky, A. M., AlHamaydeh, M., & Saleh, M. (2024). GIS-Based Regional Seismic Risk Assessment for Dubai, UAE, Using NHERI SimCenter R2D Application. Buildings, 14(5), 1277. https://doi.org/10.3390/buildings14051277

