Achieving Energy Self-Sufficiency in a Dormitory Building: An Experimental Analysis of a PV–AWHP-ERV Integrated System
Abstract
1. Introduction
2. Methodology
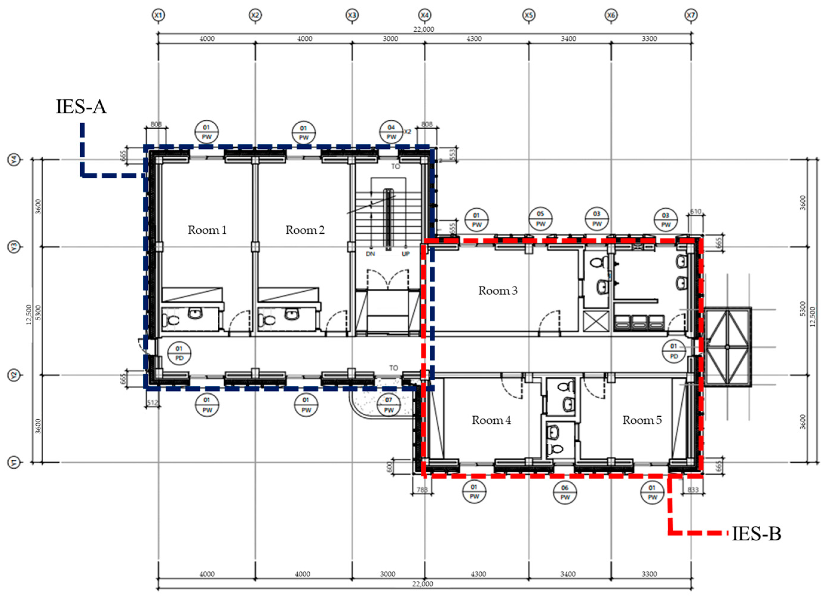
2.1. Building and System Description
2.2. Experimental Conditions
2.3. Key Performance Indicators
2.4. Building Energy Self-Sufficiency Rate
2.5. Economic Analysis
3. Result and Discussion
3.1. Representative Day Analysis
3.1.1. System Performance Analysis
3.1.2. PV Generation and Power Flow Analysis
3.2. Building Energy Independence Analysis
3.3. Energy Independence Analysis by PV–ESS Capacity
3.4. Economic Analysis of PV–ESS System
4. Conclusions
Author Contributions
Funding
Data Availability Statement
Conflicts of Interest
References
- European Parliament. Smarter and More Energy-Efficient Buildings in the EU by 2050. Available online: https://www.europarl.europa.eu (accessed on 26 February 2024).
- European Commission. Horizon Europe Work Programme 2023–2024 Climate, Energy and Mobility; European Commission: Brussels, Belgium, 2023.
- Korol, E.; Shushunova, N. Analysis and Valuation of the Energy-Efficient Residential Building with Innovative Modular Green Wall Systems. Sustainability 2022, 14, 6891. [Google Scholar] [CrossRef]
- IEA. Tracking Buildings 2020; IEA: Paris, France, 2020. [Google Scholar]
- IEA. Energy Efficiency. The First Fuel of a Sustainable Global Energy System. 2022. Available online: https://www.iea.org/topics/energy-efficiency (accessed on 26 February 2024).
- Zheng, Y.; Miao, J.; Yu, H.; Liu, F.; Cai, Q. Thermal Analysis of Air-Cooled Channels of Different Sizes in Naturally Ventilated Photovoltaic Wall Panels. Buildings 2023, 13, 3002. [Google Scholar] [CrossRef]
- Ma, T.; Kazemian, A.; Habibollahzade, A.; Salari, A.; Gu, W.; Peng, J. A comparative study on bifacial photovoltaic/thermal modules with various cooling methods. Energy Convers. Manag. 2022, 263, 115555. [Google Scholar] [CrossRef]
- Prakash, K.B.; Almeshaal, M.; Pasupathi, M.K.; Chinnasamy, S.; Saravanakumar, S. Hybrid PV/T Heat Pump System with PCM for Combined Heating, Cooling and Power Provision in Buildings. Buildings 2023, 13, 1133. [Google Scholar] [CrossRef]
- Li, H.; Sun, Y. Operational Performance Study on a Photovoltaic Loop Heat Pipe/Solar Assisted Heat Pump Water Heating System. Energy Build. 2018, 158, 861–872. [Google Scholar] [CrossRef]
- James, A.; Srinivas, M.; Mohanraj, M.; Raj, A.K.; Jayaraj, S. Experimental Studies on Photovoltaic-Thermal Heat Pump Water Heaters Using Variable Frequency Drive Compressors. Sustain. Energy Technol. Assess. 2021, 45, 101152. [Google Scholar] [CrossRef]
- United Nations Climate Change. Net Zero by 2050: A Roadmap for the Global Energy Sector—A Special Report by the International Energy Agency; United Nations Climate Change: New York, NY, USA, 2021. [Google Scholar]
- Schreurs, T.; Madani, H.; Zottl, A.; Sommerfeldt, N.; Zucker, G. Techno-economic analysis of combined heat pump and solar PV system for multi-family houses: An Austrian case study. Energy Strategy Rev. 2021, 36, 100666. [Google Scholar] [CrossRef]
- Allouhi, A. Techno-economic and environmental accounting analyses of an innovative power-to-heat concept based on solar PV systems and a geothermal heat pump. Renew. Energy 2022, 191, 649–661. [Google Scholar] [CrossRef]
- Martorana, F.; Bonomolo, M.; Leone, G.; Monteleone, F.; Zizzo, G.; Beccali, M. Solar-assisted heat pumps systems for domestic hot water production in small energy communities. Sol. Energy 2021, 217, 113–133. [Google Scholar] [CrossRef]
- Baggio, P.; Bee, E.; Prada, A. Demand-side management of air-source heat pump and photovoltaic systems for heating applications in the italian context. Environments 2018, 5, 132. [Google Scholar]
- Bee, E.; Prada, A.; Baggio, P.; Psimopoulos, E. Air-source heat pump and photovoltaic systems for residential heating and cooling: Potential of self-consumption in different European climates. Build. Simul. 2019, 12, 453–463. [Google Scholar] [CrossRef]
- Zhou, C.; Liang, R.; Zhang, J.; Riaz, A. Experimental Study on the Cogeneration Performance of Roll-Bond-PVT Heat Pump System with Single Stage Compression during Summer. Appl. Therm. Eng. 2019, 149, 249–261. [Google Scholar] [CrossRef]
- Long, T.; Qiao, Z.; Wang, M.; Li, Y.; Lu, J.; Li, W.; Zeng, L.; Huang, S. Performance Analysis and Optimization of a Solar-Air Source Heat Pump Heating System in Tibet, China. Energy Build. 2020, 220, 110084. [Google Scholar] [CrossRef]
- Kong, R.; Deethayat, T.; Asanakham, A.; Kiatsiriroat, T. Performance and Economic Evaluation of a Photovoltaic/Thermal (PV/T)-Cascade Heat Pump for Combined Cooling, Heat and Power in Tropical Climate Area. J. Energy Storage 2020, 30, 101507. [Google Scholar] [CrossRef]
- Bae, S.; Chae, S.; Nam, Y. Performance Analysis of Integrated Photovoltaic-Thermal and Air Source Heat Pump System through Energy Simulation. Energies 2022, 15, 528. [Google Scholar] [CrossRef]
- Bae, S.; Chae, H.; Nam, Y. Experimental analysis of an integrated system using photovoltaic–thermal and air source heat pump for real applications. Renew. Energy 2023, 217, 119128. [Google Scholar] [CrossRef]
- Dermentzis, G.; Ochs, F.; Franzoi, N. Four years monitoring of heat pump, solar thermal and PV system in two net-zero energy multi-family buildings. J. Build. Eng. 2021, 43, 103199. [Google Scholar] [CrossRef]
- Shono, K.; Yamaguchi, Y.; Perwez, U.; Ma, T.; Dai, Y.; Shimoda, Y. Large-scale building-integrated photovoltaics installation on building façades: Hourly resolution analysis using commercial building stock in Tokyo, Japan. Sol. Energy 2023, 253, 137–153. [Google Scholar] [CrossRef]
- Perwez, U.; Shono, K.; Yamaguchi, Y.; Shimoda, Y. Multi-scale UBEM-BIPV coupled approach for the assessment of carbon neutrality of commercial building stock. Energy Build. 2023, 291, 113086. [Google Scholar] [CrossRef]
- Sigounis, A.; Vallianos, C.; Athienitis, A. Model predictive control of air-based building integrated PV/T systems for optimal HVAC integration. Renew. Energy 2023, 212, 655–668. [Google Scholar] [CrossRef]
- Aneli, S.; Arena, R.; Tina, G.M.; Gagliano, A. Improvement of energy self-sufficiency in residential buildings by using solar-assisted heat pumps and thermal and electrical storage. Sustain. Energy Technol. Assess. 2023, 60, 103446. [Google Scholar]
- Perrella, S.; Bisegna, F.; Bevilacqua, P.; Cirone, D.; Bruno, R. Solar-Assisted Heat Pump with Electric and Thermal Storage: The Role of Appropriate Control Strategies for the Exploitation of the Solar Source. Buildings 2024, 14, 296. [Google Scholar] [CrossRef]
- Nicoletti, F.; Cucumo, M.A.; Arcuri, N. Cost optimal sizing of photovoltaic-battery system and air–water heat pump in the Medi-terranean area. Energy Convers. Manag. 2022, 270, 116274. [Google Scholar] [CrossRef]
- Liu, X.; Zhang, P.; Pimm, A.; Feng, D.; Zheng, M. Optimal design and operation of PV-battery systems considering the interdependency of heat pumps. J. Energy Storage 2019, 23, 526–536. [Google Scholar] [CrossRef]
- Yang, C.; Fu, Y.; He, L.; Jiang, Q.; Cui, Y. Real options analysis for regional investment decisions of household PV-ESS in China. Energy 2024, 293, 130725. [Google Scholar] [CrossRef]
- ANSI/ASHRAE Standard 90.2—2007; Energy Efficient Design for Low-Rise Residential Buildings. ASHRAE: Atlanta, GA, USA, 2007.
- ISO 5222-1:2023; Heat Recovery Ventilators and Energy Recovery Ventilators: Testing and Calculating Methods for Seasonal Performance Factor. ISO: Geneva, Switzerland, 2023.










| Authors | System Description | Analytical Approach | Evaluation Method | ||
|---|---|---|---|---|---|
| Performance | Economic | Energy Self- Sufficiency | |||
| Long et al. [18] | PVT/ASHP/HST | Simulation | o | x | x |
| Kong et al. [19] | PVT/ASHP/HST | Simulation | x | o | x |
| Bae et al. [20] | PVT/ASHP/HST | Simulation | o | x | o |
| Bae et al. [21] | PVT/ASHP/HST | Experiment | o | o | x |
| Aneli et al. [21] | PV/ASHP/HST/EES | Simulation | o | x | o |
| Perrella et al. [24] | PV/AWHP/HST/EES | Simulation | x | x | o |
| Nicoletti et al. [25] | PV/AWHP | Simulation | o | o | o |
| This work | PV/AWHP/ERV/HST /EES | Experiment Simulation | o | o | o |
| Component | Specification | |
|---|---|---|
| AWHP | Model | HM051MR U44 |
| Capacity | 5 kW 2EA | |
| Refrigerant | R32 (1.4 kg) | |
| HST | Capacity | 220 L |
| ERV | Air volume | 250 CMH |
| PV Panel | Capacity | 4.44 kW (370 W 12 EA) |
| PCS | AC | 5 kW |
| Power conversion efficiency | 96% | |
| LED | Power consumption | 50 W 5 EA13 W 5 EA |
| Equipment | Metrics | Specification |
|---|---|---|
| RCN8 Ultrasonic Heat Meter | Heat and flow rate | Accuracy class 2 (European EN1434) Temperature sensor: Pt1000 |
| EM415 | Power meter | Accuracy Class B |
| SR-05 | Solar radiation | ISO second class pyranometer Uncertainty < 1.8% |
| QFA3160 | Temperature and humidity | Accuracy: 0.8 K (15~35 °C) 1 K (−35~50 °C) |
| PV Capacity (kW) (%) | |||||||||
|---|---|---|---|---|---|---|---|---|---|
| 1 | 2 | 3 | 4 | 5 | 6 | 7 | 8 | ||
| ESS Capacity (kWh) | 1 | 27.74 | 43.62 | 47.68 | 49.97 | 51.71 | 53.03 | 54.09 | 55.02 |
| 2 | 27.76 | 48.13 | 53.45 | 55.84 | 57.65 | 58.95 | 60.02 | 60.94 | |
| 3 | 27.77 | 51.57 | 58.99 | 61.68 | 63.52 | 64.87 | 65.94 | 66.87 | |
| 4 | 27.79 | 53.81 | 64.00 | 67.43 | 69.36 | 70.76 | 71.86 | 72.79 | |
| 5 | 27.80 | 55.08 | 68.47 | 73.06 | 75.19 | 76.61 | 77.75 | 78.70 | |
| 6 | 27.82 | 55.50 | 72.44 | 78.41 | 80.93 | 82.42 | 83.58 | 84.50 | |
| 7 | 27.84 | 55.56 | 75.78 | 83.28 | 86.28 | 87.66 | 88.65 | 89.44 | |
| 8 | 27.85 | 55.57 | 78.11 | 86.98 | 90.61 | 91.98 | 92.76 | 93.37 | |
Disclaimer/Publisher’s Note: The statements, opinions and data contained in all publications are solely those of the individual author(s) and contributor(s) and not of MDPI and/or the editor(s). MDPI and/or the editor(s) disclaim responsibility for any injury to people or property resulting from any ideas, methods, instructions or products referred to in the content. |
© 2024 by the authors. Licensee MDPI, Basel, Switzerland. This article is an open access article distributed under the terms and conditions of the Creative Commons Attribution (CC BY) license (https://creativecommons.org/licenses/by/4.0/).
Share and Cite
Yang, S.-K.; Kang, Y.-H.; Ahn, Y.-C. Achieving Energy Self-Sufficiency in a Dormitory Building: An Experimental Analysis of a PV–AWHP-ERV Integrated System. Buildings 2024, 14, 882. https://doi.org/10.3390/buildings14040882
Yang S-K, Kang Y-H, Ahn Y-C. Achieving Energy Self-Sufficiency in a Dormitory Building: An Experimental Analysis of a PV–AWHP-ERV Integrated System. Buildings. 2024; 14(4):882. https://doi.org/10.3390/buildings14040882
Chicago/Turabian StyleYang, Su-Kwang, Yul-Ho Kang, and Young-Chull Ahn. 2024. "Achieving Energy Self-Sufficiency in a Dormitory Building: An Experimental Analysis of a PV–AWHP-ERV Integrated System" Buildings 14, no. 4: 882. https://doi.org/10.3390/buildings14040882
APA StyleYang, S.-K., Kang, Y.-H., & Ahn, Y.-C. (2024). Achieving Energy Self-Sufficiency in a Dormitory Building: An Experimental Analysis of a PV–AWHP-ERV Integrated System. Buildings, 14(4), 882. https://doi.org/10.3390/buildings14040882

