Next Article in Journal
A Review of Waterborne Polymer–Cementitious Composite Repair Materials for Application in Saline Soil Environments: Properties and Progress
Previous Article in Journal
Behavior of Concrete-Filled Steel Tube Columns with Multiple Chambers and Round-Ended Cross-Sections under Axial Loading
 
 
Font Type:
Arial Georgia Verdana
Font Size:
Aa Aa Aa
Line Spacing:
Column Width:
Background:
Article

Exhibition Space Circulation in Museums from the Perspective of Pedestrian Simulation

1
School of Civil Engineering and Architecture, Wuhan University of Technology, Wuhan 430070, China
2
School of Economics, Wuhan University of Technology, Wuhan 430070, China
*
Author to whom correspondence should be addressed.
Buildings 2024, 14(3), 847; https://doi.org/10.3390/buildings14030847
Submission received: 12 January 2024 / Revised: 24 February 2024 / Accepted: 14 March 2024 / Published: 21 March 2024
(This article belongs to the Section Architectural Design, Urban Science, and Real Estate)

Abstract

Contemporary studies largely concentrate on the physical aspects of architecture, yet within the sphere of design, the gap between user experience and the designer’s intention is an undeniable fact. This gap, illustrating the contrast between the spatial perception and the actual physical space, to some degree, mirrors preferences in human spatial behavior. It accentuates the complex relationship between human cognitive functions and spatial layout, underlining the critical role of spatial perception in architectural design and planning. This prompts the question of whether perceptions of internal traffic flow within buildings also suffer from spatial distortions. Focusing on museums, and by examining circulation paths and spatial features, a virtual museum model is devised. The research employs a holistic and reductionist approach (complex systems theory) to forge a link between circulation components and the spatial experience of architecture. Utilizing agent-based modeling tools for simulating pedestrian movements, it investigates how different circulation patterns and spatial relationships influence pedestrian behavior. The study proposes a museum circulation optimization strategy, grounded in quantifying spatial experience through Anylogic software analysis. This strategy is aimed at enhancing the design of internal traffic flows in future museum projects, offering fresh insights into museum design research, and probing into new possibilities for using pedestrian simulation software.

1. Introduction

Museums play a pivotal role in the cultural dissemination of a region or city, serving not only as educational spaces but also as showcases of a region’s historical and cultural essence, as well as its developmental trajectory and even national evolution [1,2]. The presence of a distinguished museum enhances cultural transmission and attracts tourists, which in turn fosters urban tourism development and stimulates economic growth [3]. The initiation of free public access has significantly increased museum demand [4,5], highlighting the importance of thoughtful museum design.
Current museum research often focuses on evacuation efficiency in exhibition halls [6] and the impact of exhibit placement and the proportion of space occupied by exhibits on visitors [7]. However, there is a lack of comprehensive study into exhibition space design methods, including the use of simulation models for visual accessibility [8,9]. This gap in research fails to address how various types of visitor flow lines, spatial relationships, and spatial combinations in exhibitions might attract visitors, leading to a theoretical deficiency in exhibition space design. In the context of museum interior design methodologies, the design process of community museums in Nottingham, UK, underscores the value of refining museum designs through insights gathered from visitor experiences [10], leveraging data to improve design techniques. Additionally, the application of cutting-edge AI technology for generating museum floor plans by learning from an extensive collection of existing layouts marks a progressive step in museum design [11].
Research into interior spaces in museums frequently centers on the planning of exhibits, using a standardized evaluation framework across twelve dimensions to determine the optimal exhibition layout through a scoring method [12]. In architectural design, the strategic arrangement of movement paths is crucial for serving the building’s functions [13], with studies on circulation in various buildings, such as Chinese university libraries, revealing characteristic patterns of movement [14]. Pedestrian flow simulation is predominantly used for evacuation planning [15,16], while social force models help simulate crowd concentration in commercial spaces, assessing human traffic density through quantitative methods [17].
Some scholars focus on the distribution of museums in urban areas like Seoul, employing spatial syntax principles to plan the layout effectively and create interconnected museum networks [18]. In data analysis and modeling, the exploration of DIGITAL AIR through enhanced stochastic methods [19], the application of the Unified Danish Eulerian Model for high-level air pollutant studies, and the use of mathematical models for air pollution research demonstrate the diverse applications of mathematical models [20]. Despite this, the integration of mathematical models into architectural design remains limited, indicating an area ripe for further exploration.
In existing research on museum design, there is a predominant focus on the analysis of internal spatial arrangements, aiming to maximize spatial efficiency. Similarly, studies on architectural design methods for museums often concentrate on the edifice itself, employing scoring, artificial intelligence, and rating systems to continually refine the design of interior spaces. This approach optimizes the arrangement and rationality of internal functions, with the application of crowd simulation in architectural research also beginning to emerge. However, there is a notable gap in research that adopts the perspective of the user population to guide architectural design, specifically to enhance the utilization of museum spaces. Moreover, existing crowd simulation studies offer very limited insights into museums. Given this context, this paper argues for the flexibility of the social force model parameters, its strong capability in micro-behavior description, and its high simulation accuracy. Therefore, the AnyLogic 8.8.3 software, known for its flexibility and suitability for secondary development with the social force model, was chosen for experimentation. The second Section of the article focuses on the preliminary data collection for the experiment, establishing the experimental workflow, and analyzing data related to crowd behavior patterns and museum spatial forms, among other study subjects. The third Section primarily concentrates on the design of the simulation experiment and its outcomes, setting pedestrian agent parameters based on the data analyzed previously, designing the experimental simulation plan, and validating the reliability of the simulation data with survey case studies, ultimately presenting the simulation results. The fourth Section analyzes the experimental outcomes, conducting multiple verifications to enhance reliability based on the simulation results, and deriving approaches for museum exhibition space design. The fifth Section is devoted to summarizing and analyzing how the spatial arrangement of exhibits influences visitor attraction, offering guidance for the design of exhibition spaces in comprehensive museums or other types of exhibition buildings. This analysis aims to provide directional guidance for the organization of museum exhibition flow spaces, offer a theoretical basis for museum design, and suggest a new direction and perspective for future crowd simulation research.

2. Research Method

In architectural design, the design of circulation pathways often constitutes a significant portion of the overall effort. Optimal organization of circulation can seamlessly integrate various functional areas. In this paper, we will analyze the elements of circulation organization in museums and utilize pedestrian simulation tools to deconstruct spatial pedestrians, applicable populations, and other related elements within circulation organization for research purposes (Figure 1).
The following is a detailed description of the simulation process:
Establishment of the Museum Model: Initially, the study analyzes cases of medium and large-sized museums to extract characteristics of museum spatial elements. Abstract the spatial features of museum traffic organization, simplify the museum’s plan and spatial structure based on the abstracted elements, and establish an experimental model.
Model Environment Information Input: Based on the built-in modeling elements of the software, establish a simulation environment according to the arrangement of facilities in the plan, use spatial markers in the pedestrian library to translate into the real environment. Clarify entrances, exits, destination target lines, activity area ranges, spatial pedestrian flow counting points, etc. The system requirements include simulation parameter settings, including operation configuration, pedestrian parameters, and process parameters. Operation configuration can adjust time and animation settings; some pedestrian parameters and process parameters can be adjusted directly through the parameter control panel, while others need to be set separately in the module.
Establishment Of Pedestrian Module: The pedestrian module uses intelligent agent modeling and secondary development programming methods to give pedestrians body size, walking speed, visual range, and walking characteristics, thereby endowing them with the basic spatial requirements, visual perception abilities, and walking behavior characteristics of pedestrians in reality.
Establishment Of Process Module: The process module takes three main stages as the main process: consumers entering the environment, visiting and staying, and leaving the environment. Embed the pedestrian module into the discrete event system, meaning that pedestrians in the environment are independent individuals with decision-making, staying and visiting, and path selection abilities to a certain extent, which can more realistically present consumer behavior patterns and improve the accuracy of simulation experiments.
Results Output: In the simulation experiment, pedestrian activities in the simulation environment will be presented in the form of text, images, and animations, including pedestrian density maps, spatial pedestrian flow, and real-time 3D simulation animations.
Result Analysis: Based on the simulation results generated by the software, conduct an analysis of the combination forms of traffic spaces and derive the optimal choice for the traffic organization of the museum.

2.1. Model Selection

Common microscopic pedestrian simulation models encompass the utility-based model [21], cellular automaton model, gravitational model [22], social force model, agent-based model [23], and queue network model [24]. Each model exhibits distinct advantages in its application. Given the complex and self-organizing nature of pedestrian behaviors in indoor museum exhibitions, simulation models must effectively capture the essence of pedestrian self-organization phenomena. Among the models discussed, only the cellular automaton [25,26] and social force models [27,28,29] have the capability to accurately describe self-organizing phenomena. Furthermore, these two models currently attract the highest research interest and are the most extensively utilized microscopic simulation models, achieving widespread recognition (Table 1). Consequently, this study selects the simulation model that best aligns with the simulation requirements via a comparative analysis of the functional characteristics, advantages, and disadvantages of both the cellular automaton and social force models.
Owing to its superior accuracy and flexible parameter settings, the social force model has been selected for this research. Among the pedestrian traffic simulation software platforms utilizing the social force model, AnyLogic 8.8.3 [30], VisWalk 22.00-04 [31], and Urban Analytics Framework 6.3.0 [32] are three commonly utilized options (Table 2). The choice of a simulation platform primarily hinges on its ability to meet the requirements for simulating consumer behavior, including input and output information, development performance, and application scope. A literature review and analysis have been conducted to provide a brief introduction and comparative evaluation of these software platforms. Each of the three software platforms is capable of fulfilling the simulation requirements of this research to a certain degree. However, AnyLogic distinguishes itself with significant advantages in secondary development, enabling more adaptable model construction. Considering factors including accessibility and ease of learning, this study selects AnyLogic as the platform for model development and research.

2.2. Selection of Research Subjects

The trajectories of human movement are complex and varied. Observation of people’s movement trajectories reveals that: (1) the decision-making process in crowd movement is a random process; (2) the choice of movement routes is ultimately influenced by a variety of factors; (3) there is interaction and influence between individuals; (4) group behavior is not a direct accumulation of individual decisions [33].
Within a museum, internal circulation is divided into visitor flow, staff circulation, and researcher circulation. Among these, staff and researcher circulation are more fixed, with a strong purpose for entering the building, and can be considered as a fixed circulation system without other influencing conditions. The visitor circulation covers a large usage space of the museum and has a certain degree of randomness in its movement [34]. Therefore, the research subject of this study is limited to visitor circulation, focusing only on horizontal traffic circulation. The study adjusts variable influencing factors in spatial organization to explore how different exhibition space forms affect visitor circulation.

2.3. Selection of Research Samples

Museums can be categorized into comprehensive museums and specialized museums based on the types of exhibits they house. The spatial combination forms in specialized museums vary according to the types of exhibits to meet different needs. The exhibition methods in comprehensive museums are relatively uniform, with consistent volume and spatial requirements, hence a more stable relationship between exhibits and space.
Given the profound cultural significance of museums, and considering China’s extensive historical development, the artifacts displayed range from the Stone Age to select valuable items post the establishment of the People’s Republic. This results in a long temporal span and diverse forms of exhibition items, leading to complex spatial requirements for the exhibition halls. Moreover, the evolution of Chinese culture has been influenced by various architectural design philosophies, including those from the Soviet Union and modern architectural thought, resulting in a diversity of both external and internal spatial forms in museums [35,36,37]. Therefore, this study primarily utilizes Chinese museums as case studies for investigation, thereby enhancing the universality and applicability of its findings and conclusions. This study primarily focuses on museums in China, selecting 27 representative medium to large comprehensive museums as research samples. The selection is limited to comprehensive museums with relatively fixed types of exhibits. This avoids the variability in space requirements seen in specialized museums due to different exhibits, thereby facilitating the derivation of universally applicable conclusions.
Due to the special requirements for preserving exhibits, museums often prioritize the use of internal spaces for artificial regulation of temperature, humidity, and other climatic conditions during the design phase. This ensures the stability of the preservation conditions for valuable exhibits. As a result, the spatial organization of interior spaces is less affected by climate. Therefore, in this simulation experiment, we do not consider the influence of climate on the internal spatial organization of museums.

2.4. Organization of Museum Exhibition Circulation

In this study, the total building area of the samples varies significantly, with the largest being the National Museum of China (approximately 191,900 m2) and the smallest being the Liuzhou Museum (approximately 16,600 m2). The study converts exhibition space design elements such as architectural functional layout, personnel flow lines, and floor dimensions into controllable variables. Using social force model software for mathematical and statistical analysis, it was found that there is a correlation between the types of personnel flow lines in exhibition spaces and their planar forms.
(1) Jixi Museum (Figure 2): Visitors enter the museum from the main entrance on the south side. The lobby is located directly north of the courtyard, with other exhibition halls sequentially connected around the courtyard, forming an integrated space without the need for additional circulation areas. The overall visitor circulation is linear (“一” shaped), or a derivative of a linear zigzag form.
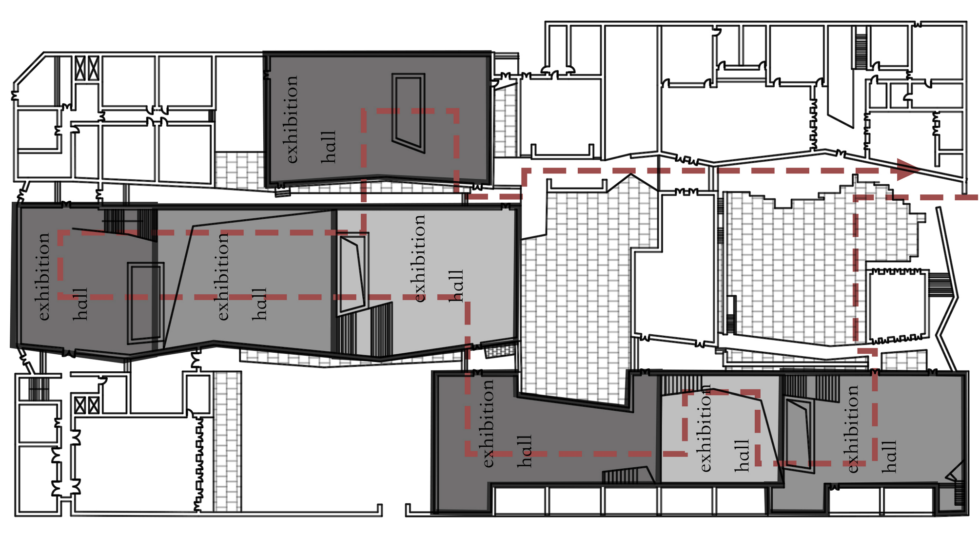
(2) New pavilion of the Hubei Provincial Museum: The visitor circulation here forms a complete loop (“凵” shaped) around the central open hall (Figure 3). Each exhibition space in the Hubei Provincial Museum is independent, requiring corridors or other circulation spaces for connectivity.
The survey results indicate that the arrangement of museum exhibition spaces around open areas can be categorized into four types: parallel2, serial3, combined4, and hall-style [38]. The hall-style form is consistent with the serial form, as both share the same interfaces between circulation and functional spaces. Therefore, the hall-style is incorporated into the serial form for discussion (Table 3).
Analyzing the spatial shapes in the research samples, it is found that the functional spaces of the exhibition halls are predominantly rectangular. Therefore, in this simulation, rectangles play a dominant role in the overall architectural plan.

3. Museum Pedestrian Flow Line Simulation and Analysis

3.1. Construction of the Simulation Model

A prototype model was established based on the analysis of 27 comprehensive museum cases in this study. Key characteristics of the prototype model include: (1) Square spaces with “凵” shaped circulation form the main layout and flow line in this simulation. This floor plan is common among the selected research samples, and the experimental results were obtained by controlling a limited set of variables. (2) In the simulation setup, the parallel form of circulation space is represented by corridors, with functional spaces arranged on one or both sides, and a width set to the standard 2.7 m for large public buildings [39]. Serial circulation involves passing through functional spaces. (3) To eliminate the influence of travel distance on pedestrian route choice, the floor plan is symmetrically arranged to ensure consistent travel lengths. In this simulation, we adjusted the combination of spaces to create different simulation conditions. Accordingly, the total length and width of the simulated building are 75 m and 50 m, respectively.
The study aims to observe changes in pedestrian flow line choices by altering spatial layouts. Thus, six different layout scenarios were developed during the experimental design stage (Figure 4). In scenarios 1 to 6, 2 to 3 alternative routes were set to determine visitors’ spatial preferences during exhibitions. Scenario 1 aims to test the attraction of parallel and serial circulation in exhibition spaces by varying the paths taken by pedestrians. Scenario 2, with unchanged route lengths, moves the central circulation space to one side against the wall, creating a spatial guide to observe if there is a change in the number of people. Scenarios 3 and 4 compare whether turns in the routes within the same type of space, either serial or parallel, influence route choice. In scenario 5, three different routes are available from the starting area to the target space, testing the impact of route segmentation and spatial variation on choice. Finally, in order to explore whether the exhibits in the tandem exhibition hall space have an impact on the route selection of pedestrians, in scenario 6, the two routes are respectively set in tandem form, but the exhibits are placed around and in the middle of the exhibition hall, respectively, so as to explore the influence of the layout form of the exhibits on the crowd choice in the tandem space.

3.2. Simulation Conditions Setting

In AnyLogic software, agents can simulate real-world pedestrian movement choices and trajectories under the influence of the social force model [40]. When the pedestrian simulation model starts, agents move from the starting area, simulating real pedestrian route choices to reach the designated target areas in the model. However, in this study, we are only exploring changes in exhibition spaces and paths, focusing on pedestrian route choice tendencies to reach the target spaces. It is assumed that pedestrians do not enter other functional spaces en route, simplifying the pedestrian flow lines to achieve accurate research results.
Simulation Constraints: (1) The width of circulation spaces remains constant throughout the simulations to avoid the impact of road width on agent route choices. (2) Walls limit pedestrian movement, and all wall structures in the simulation system are defined as solid walls. (3) The width of all exhibition hall doors is set at 1.8 m, allowing pedestrians to enter and exit functional spaces through them. Agent Settings: (1) External characteristics of museum visitors’ behavior include an average step length of about 0.7 m and a comfortable and safe moving speed of about 1.4 m/s, with a comfortable per capita area of 2.33 to 3 m2 [41]. Considering the external characteristics of social groups during exhibition visits, the speed range of the simulated agents is set between 0.69 and 2.23 m/s, with an average speed of 1.34 m/s, and the arrival rate of people is set at 300 persons/h [42]. Simulation Duration: Too short a simulation time can result in data that is too random to be meaningful for statistical simulation analysis. The results will gradually stabilize after running for a certain time. Therefore, the running time of the simulation model is set to 240 min (4 h). Counting of People: Pedestrian flow counting components are set up at the traffic flow lines in the model, with the direction of the counting arrows indicating the forward direction of the pedestrians.

3.3. Model Validation

Simulation validation is conducted through the comparison and analysis of the congruence between measured and simulated results, specifically regarding the distribution of consumers and the frequency of visits to each exhibition hall. Initially, we established the parameters, maintaining the default settings as outlined in Section 3.2, and adjusted other parameters based on the research findings. Regarding body size, the ratio of individuals to pairs of companions was set at 1:1.6, reflecting the peer group dynamics of exhibition visitors observed in the case study, and the simulation experiment is carried out after the parameter setting is completed.
By comparing the actual pedestrian trajectory map of Wuhan Museum with the pedestrian density distribution from the simulation results (Figure 5), both sets of results indicate that the highest pedestrian density occurs within an imaginary circle, primarily near the atrium and the entrances and exits in the area delineated by the line, with pedestrians showing high activity levels in this space; areas of lower pedestrian density within the museum exhibition halls were also identified, particularly in the corners.
Observation of the measured pedestrian trajectories and simulated pedestrian density distributions reveals that the behavioral model of exhibition visitors can predict the overall spatial distribution of pedestrian flows with a certain degree of accuracy. What follows is a comparative analysis of the measured and simulated results, aimed at further validating the consumer behavior model. Pearson’s correlation analysis was performed on the measured and simulated data using SPSS. The analysis yielded Pearson correlation coefficients of 0.830 for the measured and simulated data, with a significance level of P = 0.001, indicating a significant correlation, thereby verifying the consistency between the simulated and measured results, and affirming the visitor behavioral model’s accuracy in predicting museum visitation patterns.

3.4. Experimental Simulation Results and Analysis

The output of the simulation is presented in two forms: planar density maps and pedestrian count bar graphs (Figure 6). By examining these results, one can determine the level of pedestrian congestion within the space and the number of people choosing different routes. This information is used to assess visitors’ spatial experience and preferences for exhibition circulation during their visit. Please refer to Appendix A for specific data for each Scenario.

3.4.1. Serial and Parallel Space Configurations with Pedestrian Flow Lines

In simulation Scenario 1, the characteristics of the routes are displayed with consistent start and end spaces, and the lengths of routes a and b are identical, forming a1 + a2 + a3 + a4 + a5 = b1 + b2 + b3 + b4 + b5 (Figure 7a). Spatially, route a consists of a single parallel space combination, while route b is a single serial space combination. In simulation Scenario 2, the lengths of the two routes are kept consistent with Scenario 1, with the direction and turns of routes a and b, as well as the walking lengths, remaining the same. In this spatial arrangement, route a continues to be parallel, with only route b being guided along one side of the interface (Figure 7b).
Observations reveal that in Scenario 1, the number of people choosing route a was 1017, accounting for 86.9% of the total, while only 152 people chose route b. In Scenario 2, with only the distance from one or both sides of route b altered, the number of agents choosing route a dropped to 888, and those choosing route b increased to 298, with route a accounting for 74.8% of the total. Without any other changes, just by altering the distance between the serial configuration and the side interfaces, the proportion of those choosing route b increased by 12.1% (Figure 6g).

3.4.2. Spatial Turns and Pedestrian Flow Lines

Scenarios 3 and 4 primarily investigate the impact of spatial turns on pedestrian flow line choices. In Scenario 3, both routes a and b adopt a serial space configuration to ensure consistency in the simulation. The lengths of routes a and b are equal (b1 + b2 + b3 + b4 + b5 + b6 + b7 = a1 + a2 + a3 + a4 + a5), but route b has a total of seven segments with shorter distances and six turns, whereas route a has only five segments, with segments a3 and a4 being longer (a3 = b3 + b5, a4 = b4 + b6). In Scenario 4, both routes a and b have parallel spatial forms and identical lengths (a1 + a2 + a3 + a4 + a5 + a6 + a7 = b1 + b2 + b3 + b4 + b5), with the only difference being that route a has more turns (six in total) and shorter segments in a3, a4, a5, and a6 (b3 = a3 + a5, b4 = a4 + a6) (Figure 8).
The results show that 1080 people chose route b in Scenario 3, accounting for 89.5% of the total in this simulation, while in Scenario 4, 947 people chose route a, making up 79.3% of the total participants. This indicates that, whether in serial or parallel spaces, most people (eight to nine out of ten) choose routes with more spatial turns, suggesting that routes with richer spatial layers are the preferred choice for most people (Composite Figure 6g).

3.4.3. Spatial Variation and Pedestrian Flow Lines

In simulation Scenario 5, there are three routes for agents to choose from: a, b, and c. These routes have the same start and end points, with identical lengths (a1 + a2 + a3 + a4 + a5 = b1 + b2 + b3 + b4 + b5 + b6 + b7 = c1 + c2 + c3 + c4 + c5). However, each of these routes has a different spatial combination. Route a consists solely of parallel spaces. Route b is a combination of parallel and serial spaces, with the first half being parallel and the second half serial. Route c is similar to route a, being solely serial spaces, offering three distinct spatial combinations (Figure 9).
The results show that 1012 people chose the combined spatial form of route b, while the number of people choosing routes a and c were 107 and 56, respectively. The preference for the combined space of route b was the highest, accounting for 86.1% of the total (Figure 6g).

4. Exhibition Design Improvement Suggestions

Through the comparison of five simulation scenarios, we explored visitors’ preferences for different traffic space forms in museum exhibitions. When designing exhibition spaces, considering the equal distance of the available routes to exclude other factors that might influence pedestrian choices, the following design strategies can be adopted.

4.1. Setting Boundaries for Traffic Flow Lines

In Scenario 1, route a is a parallel flow line, and route b is a serial flow line. The ratio of the agents choosing route a to route b is approximately 6.69:1, indicating a clear preference for parallel layouts. In Scenario 2, the proportion of agents choosing route b is about 25.1%, up 12.1% from 13.0% in Scenario 1. To prevent random deviations, Scenarios 1 and 2 were simulated multiple times, with the average proportion of route b choices in Scenario 2 y 2 ¯ > y 1 ¯ (Figure 10). This indicates a preference for guided routes in serial spaces, suggesting that traffic spaces should be arranged close to one side of the space or using other elements to satisfy pedestrian preferences.
Therefore, in the sample of this study, Jingzhou Museum mostly adopts a series-connected traffic space combination, with individual spaces being large. Consequently, the entire space appears spacious, lacking clear guidance for flow lines. This leads to lower browsing efficiency for visitors within the museum. But this study suggests that exhibition space design should move away from a single large space format and emphasize path boundaries. Whether in serial or parallel layouts, explicit and implicit methods should be used to reinforce the walking route. When possible, prioritize the parallel form of the route.

4.2. Adding Curves and Segments to Traffic Flow Lines

Comparisons in Scenarios 3 and 4 show that whether in serial or parallel spatial combinations, with consistent space forms and total lengths for both routes, agents tend to choose routes with more turns and shorter segments, accounting for seven to eight out of ten (Figure 6g).
To further explore the impact of the number of turns on flow line choices, using parallel spaces as an example, we maintained six turns for route b and varied the number of turns for route a in the simulation. The results show that as the number of turns “x” increases, making the space more diverse, the proportion of people choosing route a (“y” value) also increases, but when x reaches 10, the “y” value begins to decline slowly. It can be observed that during the initial phase when x < 10, the increase in the number of people is relatively gradual, and there is still a small portion of people choosing simpler routes. However, when x > 10, the decrease in the number of people choosing route a becomes quite drastic. This indicates that as the number of turns increases and the roads become overly complex, the attractiveness and interest for visitors decrease significantly, which is not conducive to increasing the appeal to exhibition attendees (Figure 11a,b).
In the current museum designs, particularly in the organization of series-connected traffic patterns, simple “凵” shaped left-right traffic spaces are commonly utilized, enhancing spatial interest. However, prolonged viewing times for exhibition visitors may lead to visual fatigue, as seen in both the new and old buildings of the Hubei Provincial Museum. Therefore, exhibition flow line design should move away from a simple straight line and increase the number of route turns. Curved routes are more popular with pedestrians. Both in serial and parallel layouts, shortening the length of individual segments and increasing the number of route segments can make the flow lines more interesting and attractive. However, the number of turns should not exceed ten, as overly complex spaces can reduce the number of people choosing that path.

4.3. Diversifying Traffic Spaces

In Scenario 5, with equal total distances, the agents’ choices are not influenced by the turns in the routes. Routes a and c are single space routes, while route b is a combination space route. The results of Scenario 5 show that route b is the most chosen. Reversing the start and end points of Scenario 5 to form Scenario 5(b) and conducting multiple simulations to exclude randomness, we explored the impact of the sequence of space combinations on people’s choices. The results show that the average proportions of people choosing route b in Scenarios 5 and 5(b) are similar and not significantly different, both exceeding 0.86. In this simulation experiment, the proportion of choosing route b reached a maximum of 0.89, with the minimum proportion being 0.848. In all experimental results, the proportion of choosing route b was greater than 0.8, indicating that diversified spatial combinations enhance the attractiveness to exhibition attendees (Figure 12).
Due to the larger number of organizational elements and the larger required building spaces for composite traffic flow line organization, the application scope of composite traffic forms is relatively limited in China. This has resulted in some museums having rudimentary traffic arrangements with lower levels of enrichment, leading to a decrease in the overall attractiveness of the museums. the experiment suggests that exhibition space design should opt for varied spatial forms. When possible, combine parallel and serial spaces to create more layered spaces. The expansion and contraction of traffic spaces, forming diverse spatial experiences, can make museum exhibition spaces more appealing and align with modern, people-centered design needs.

4.4. Node Space Setting Inflections

In the heat map of the results of the five simulation schemes, it can be seen that in the combination of series and parallel traffic spaces, the color of the heat map will be deepened in the corner space, and the density of people will reach a certain peak. Therefore, the experimental results show that in the setting of the circulation line of the museum exhibition space, a certain node space can be set at the turning point of the circulation line, including temporary sales or functional activity space with the flow of people, etc., and the characteristics of the flow of people in the corner can be used to ensure the richness of the flow of people in the node space.

4.5. Tandem Space Exhibits Are Placed along the Perimeter of the Gallery

Route a and route b of Scheme VI are tandem flow lines. Scheme VI’s intelligent body on route a and route b shows a selection ratio of about 9.32:1, visible pedestrians in the tandem layout of the exhibits placed around the layout has a clear preference; Scheme VI for a number of simulations, Scheme VI selection of the number of people in route a accounted for 9% (Figure 13). It can be seen that pedestrians have a clear preference for the layout of exhibits around the space, and in the tandem space, large exhibits should be avoided to be set up in the middle of the interior of the exhibition hall, and be set up in the periphery of the room to satisfy the preference of pedestrians.
Therefore, in this research, sample museums are mostly used in the form of tandem transportation space combination, and the individual space is large, the exhibits will be placed in the middle of the entire exhibition hall, hindering the smoothness of the tandem transportation space. This study shows that the design of tandem exhibition space should put the exhibits on the periphery of the exhibition hall, firstly, to strengthen the path boundary, and secondly, because it can ensure the smoothness of the transportation space.

5. Conclusions

This research seeks to investigate the influence of various traffic flow line combinations within horizontal spaces of museum exhibitions, particularly within the Chinese cultural context, on visitor attraction. This investigation is grounded in case analyses and the construction of museum models. Employing the social force simulation method, this study analyzed the impact of alterations in exhibition spaces on museum visitors. The findings indicate that taking into account the boundaries and diversity of spaces when configuring exhibition flow lines can enhance their attractiveness to visitors [43]. However, this study confines its discussion to the forms of pedestrian traffic spaces, specifically focusing on horizontal traffic configurations within museums, while overlooking vertical traffic connections. Future research should broaden its scope to include multiple dimensions, such as the integration of various traffic flow lines and the examination of traffic combinations’ attractiveness across different building types. This approach aims to progressively refine the theoretical foundation underpinning the organization of flow lines.

Author Contributions

Conceptualization, methodology, resources, writing—original manuscript preparation: Y.L. and J.Y.; software, validation, formal analysis, and visualization.; data collation: Y.L.; writing—review and editing, survey: Y.L., L.C. and Y.X. All authors have read and agreed to the published version of the manuscript.

Funding

This research received no external funding.

Data Availability Statement

The materials and the data that support the findings of this study are available from the corresponding author.

Conflicts of Interest

The authors declare no conflicts of interest.

Appendix A

Displays the specific data of the repetitive simulation experiments conducted in Section 4 of the article to verify the accuracy of the data.
Table A1. Results of the experiment repeated six times for Scenario 1. Source: authors’ own.
Table A1. Results of the experiment repeated six times for Scenario 1. Source: authors’ own.
Experimental TrialsRoute ARoute BProportion of People on Route B in Scenario 1
110171520.130025662959795
29991630.140275387263339
310651540.126333059885152
41108980.0812603648424544
510431570.130833333333333
610831710.136363636363636
Table A2. Results of the experiment repeated six times for Scenario 2. Source: authors’ own.
Table A2. Results of the experiment repeated six times for Scenario 2. Source: authors’ own.
Experimental TrialsRoute ARoute BProportion of People on Route B in Scenario 2
18882980.251264755480607
27983420.3
38413290.281196581196581
48782870.246351931330472
58563270.276415891800507
68893050.255443886097152
Table A3. Enhancing the simulation results of increased number of turns in Scenario 3. Source: authors’ own.
Table A3. Enhancing the simulation results of increased number of turns in Scenario 3. Source: authors’ own.
Number of TurnsRoute ARoute BProportion of People on Route A
25685730.497808939526731
48513690.697540983606557
69472470.793132328308208
81034860.923214285714286
1011491380.892773892773893
1210091530.868330464716007
147054710.599489795918367
162248960.2
Table A4. Results of the experiment repeated six times for Scenario 5. Source: authors’ own.
Table A4. Results of the experiment repeated six times for Scenario 5. Source: authors’ own.
Experimental TrialsPeople on Route A in Scenario 5People on Route B in Scenario 5People on Route C in Scenario 5Proportion of People on Route B in Scenario 5
11071012560.861276595744681
2128998420.854452054794521
31041057710.857954545454545
41181100790.848111025443331
5961089390.889705882352941
61071103590.869188337273444
Table A5. Results of the experiment repeated six times for Scenario 6. Source: authors’ own.
Table A5. Results of the experiment repeated six times for Scenario 6. Source: authors’ own.
Experimental TrialsPeople on Route A in Scenario 5People on Route B in Scenario 5People on Route C in Scenario 5Proportion of People on Route B in Scenario 5
1107963560.855239786856128
21281022420.85738255033557
31041104710.863174354964816
41181167790.855571847507331
51131015390.869751499571551
61071067590.86536901865369

References

  1. Shin, J. History as an Educational Tool: The Educational Turn of the Bakken Museum. Int. J. Adv. Cult. Technol. 2021, 9, 71–85. [Google Scholar]
  2. Brownlee, C. Museum Education: Exploring Its Value for Schoolchildren, Teachers and Museum Professionals: A Qualitative Study. Ph.D. Thesis, Queen’s University Belfast, Belfast, UK, 2021. [Google Scholar]
  3. Nassef, M.; Mohammed, N.; Ibrahim, M. Investigating the Socio-Economic Sustainability within the Egyptian Museums over the Last Decade. Sustainability 2023, 15, 16746. [Google Scholar] [CrossRef]
  4. Candlin, F.; Ballatore, A.; Larkin, J.; Liebenrood, M.; Poulovassilis, A.; Katerinchuk, V. The UK Museum Boom: Continuity and Change 1960–2019. Cult. Trends 2023. [Google Scholar] [CrossRef]
  5. Zhang, F.H.; Courty, P. The China Museum Visit Boom: Government or Demand Driven? J. Cult. Econ. 2022, 46, 135–163. [Google Scholar] [CrossRef]
  6. Xu, H.; Duan, P.F.; Huang, Y.L.; Zhan, X.B. Analysis of Evacuation Efficiency Based on Properties of Construction Materials with Seven Popular Space Combinations in Architecture Design. Appl. Mech. Mater. 2014, 454, 169–174. [Google Scholar] [CrossRef]
  7. Weng, L.F. Application of Interactive Design in Museum Exhibition. Adv. Soc. Sci. Educ. Humanit. Res. 2018, 103, 497–798. [Google Scholar]
  8. Pluchino, A.; Garofalo, C.; Inturri, G.; Rapisarda, A.; Ignaccolo, M. Agent-based Simulation of Pedestrian Behaviour in Closed Spaces: A Museum Case Study. J. Artif. Soc. Soc. Simul. 2014, 17, 16. [Google Scholar] [CrossRef]
  9. Chi, W. A Human-Friendly Intelligent Guidance Robot System in Dynamic Indoor Environments; The Chinese University of Hong Kong: Hong Kong, China, 2017. [Google Scholar]
  10. Guo, S.; Zheng, X.; Heath, T. Research on the Design of Community Museums Based on the Fuzzy Comprehensive Evaluation Method. Sustainability 2022, 14, 10802. [Google Scholar] [CrossRef]
  11. Min, X.; Zheng, L.; Chen, Y. The Floor Plan Design Method of Exhibition Halls in CGAN-Assisted Museum Architecture. Buildings 2023, 13, 756. [Google Scholar] [CrossRef]
  12. Fan, L.P.; Chu, T.H. Optimal Planning Method for Large-Scale Historical Exhibits in the Taiwan Railway Museum. Appl. Sci. 2021, 11, 2424. [Google Scholar] [CrossRef]
  13. Zhao, R.; Li, X.; Chen, Y.W. The Impact of Plan Form of Circulation Systems in Large-scale Environments on Space Cognition: Case Study in Two Shopping Malls in China. In Proceedings of the 2015 IEEE International Conference on Industrial Engineering and Engineering Management (IEEM), Singapore, 6–9 December 2015. [Google Scholar]
  14. Ling, W.; Jiao, Z. Predicting Occupants’ Trajectory in University Library from the Perspective of Urban Ergonomics. Archit. J. 2023, 651, 74–78. [Google Scholar]
  15. Li, Y.; Jia, H.; Li, J.; Gong, J.; Sun, K. Pedestrian Evacuation Behavior Analysis and Simulation in Multi-exits Case. Int. J. Mod. Phys. C 2017, 28, 1750128. [Google Scholar] [CrossRef]
  16. Camillen, F.; Caprì, S.; Garofalo, C.; Ignaccolo, M.; Inturri, G.; Pluchino, A.; Rapisarda, A.; Tudisco, S. Multi Agent Simulation of Pedestrian Behavior in Closed Spatial Environments. In Proceedings of the 2009 IEEE Toronto International Conference Science and Technology for Humanity (TIC-STH), Toronto, ON, Canada, 26–27 September 2009. [Google Scholar]
  17. Kleczek, P.; Was, J. Simulation of Pedestrians Behavior in a Shopping Mall. In International Conference on Cellular Automata; Springer International Publishing: Cham, Switzerland, 2014; Volume 8751. [Google Scholar]
  18. Zhao, X.; Moon, J. Analysis of Urban Spatial Accessibility of Museums within the Scope of Seoul. Buildings 2022, 12, 1749. [Google Scholar] [CrossRef]
  19. Todorov, V.; Dimov, I. Unveiling the Power of Stochastic Methods: Advancements in Air Pollution Sensitivity Analysis of the Digital Twin. Atmosphere 2023, 14, 1078. [Google Scholar] [CrossRef]
  20. Todorov, V.; Dimov, I.T.; Ostromsky, T.; Zlatev, Z.; Georgieva, R.; Poryazov, S.A. Optimized Quasi-Monte Carlo Methods Based on Van der Corput Sequence for Sensitivity Analysis in Air Pollution Modelling. In Studies in Computational Intelligence; Spring: Berlin/Heidelberg, Germany, 2021. [Google Scholar]
  21. Gievska, S.; Lameski, P. Knowledge-Based Approach to Modeling Urban Dynamics. In Distributed, Ambient and Pervasive Interactions, Proceedings of the 5th International Conference, DAPI 2017, Vancouver, BC, Canada, 9–14 July 2017; Lecture Notes in Computer Science; Streitz, N., Markopoulos, P., Eds.; Springer: Berlin/Heidelberg, Germany, 2017; Volume 10291. [Google Scholar]
  22. Hong, I.; Jung, W. Application of gravity model on the Korean urban bus network. Phys. A Stat. Mech. Its Appl. 2016, 462, 48–55. [Google Scholar] [CrossRef]
  23. Lopez Baeza, J.; Carpio-Pinedo, J.; Sievert, J.; Landwehr, A.; Preuner, P.; Borgmann, K.; Avakumović, M.; Weissbach, A.; Bruns-Berentelg, J.; Noennig, J.R. Modeling Pedestrian Flows: Agent-Based Simulations of Pedestrian Activity for Land Use Distributions in Urban Developments. Sustainability 2021, 13, 9268. [Google Scholar] [CrossRef]
  24. Sagredo-Olivenza, I.; Cárdenas-Bonett, M.; Gómez-Sanz, J.J. Using Queueing Networks to Approximate Pedestrian Simulations. In Distributed Computing and Artificial Intelligence, Special Sessions, Proceedings of the 15th International Conference, DCAI 2018, Toledo, Spain, 20–22 June 2018; Advances in Intelligent Systems and Computing; Rodríguez, S., Prieto, J., Faria, P., Kłos, S., Fernández, A., Mazuelas, S., Jiménez-López, M.D., Moreno, M.N., Navarro, E.M., Eds.; Springer: Berlin/Heidelberg, Germany, 2019; Volume 801. [Google Scholar]
  25. Ilachinski, A. Cellular Automata: A Discrete Universe; World Scientific Publishing Co., Inc.: Hackensack, NJ, USA, 2001. [Google Scholar]
  26. Maerivoet, S.; Moor, B.D. Cellular automata models of road traffic. Phys. Rep. 2005, 419, 1–64. [Google Scholar] [CrossRef]
  27. Dirk, H.; Peter, M. Social force model for pedestrian dynamics. Phys. Rev. E 1995, 51, 4282. [Google Scholar]
  28. Chen, X.; Treiber, M.; Kanagaraj, V.; Li, H. Social force models for pedestrian traffic–state of the art. Transp. Rev. 2018, 38, 625–653. [Google Scholar] [CrossRef]
  29. Moreno, J.C.; Puzzo, M.L.R.; Paul, W. Collective dynamics of pedestrians in a corridor: An approach combining social force and Vicsek models. Phys. Rev. E 2020, 102, 022307. [Google Scholar] [CrossRef]
  30. Hui, T.; Jin, C.J.; Li, D. Evaluation of the Simulation Results of Pedestrian Bottlenecks Performed by Different Software. In Proceedings of the 2021 6th International Conference on Intelligent Transportation Engineering (ICITE 2021), Beijing, China, 29–31 October 2021; Lecture Notes in Electrical Engineering; Zhang, Z., Ed.; Springer: Singapore, 2022; Volume 901. [Google Scholar]
  31. Shi, X.; Xue, S.; Feliciani, C.; Shiwakoti, N.; Lin, J.; Li, D.; Ye, Z. Verifying the applicability of a pedestrian simulation model to reproduce the effect of exit design on egress flow under normal and emergency conditions. Phys. A Stat. Mech. Its Appl. 2021, 562, 125347. [Google Scholar] [CrossRef]
  32. Uteng, T.P.; Taylor, D. An Assessment of the Available Simulation Models for the Planning and Design of Safe Urban Intersections for Pedestrians and Cyclists. Norwegian Centre for Transport Research. 2015. Available online: https://www.toi.no/publications/an-assessment-of-the-available-simulation-models-for-the-planning-and-design-of-safe-urban-intersections-for-pedestrians-and-cyclists-article33828-29.html (accessed on 13 March 2024).
  33. Watts, J.D.; Strogatz, H.S. Collective Dynamics of ‘small-world’ Networks. Nature 1998, 393, 440–442. [Google Scholar] [CrossRef] [PubMed]
  34. Kim, H.; Yeo, Y. A Study on Public Space Design Strategies in Japanese National Museums—Focusing on the National Museum of Western Art and the National Art Center in Tokyo. J. Asian Archit. Build. Eng. 2019, 18, 124–130. [Google Scholar] [CrossRef]
  35. Bondarenko, I.; Wang, Z.; Ieremenko, I.; Bondarenko, K. The Selected Architectural Solution of Modern Museums in China in the Aspect of Manifestation of Traditional Culture. Archit. Civ. Eng. Environ. 2020, 13, 17–26. [Google Scholar] [CrossRef]
  36. Xu, H.; Mamat, M.J. Showcasing Tradition, Innovative Design Regional Culture in Chinese Museum Interiors. Migr. Lett. 2023, 20, 1388–1400. [Google Scholar]
  37. Hennings, A. The National Museum of China: Building Memory, Shaping History, Presenting Identity. Ph.D. Thesis, Faculty of Arts, Institute of Art History of East Asia, Heidelberg University, Heidelberg, Germany, 2013. [Google Scholar]
  38. Bo, Z. Discussion on Display and Exhibition Design of Modern Museums; ASME: New York, NY, USA, 2020. [Google Scholar]
  39. Lee, J. Assessment of pedestrian comfort levels based on the microscopic features of pedestrian traffic flow. J. Korean Soc. Transp. 2016, 34, 499–509. [Google Scholar] [CrossRef]
  40. Asano, M.; Iryo, T.; Kuwahara, M. Microscopic Pedestrian Simulation Model Combined with a Tactical Model for Route Choice Behaviour. Transp. Res. C Emerg. Technol. 2010, 18, 842–855. [Google Scholar] [CrossRef]
  41. Xu, L.; Yan, S.; Chen, Z.; Chen, X. Design of the Museum Interactive Lighting System Based on the Digital Twin Technology. Sci. Program. 2021, 2021, 4824417. [Google Scholar] [CrossRef]
  42. Man, S.H.; Gao, Z. Digital Immersive Interactive Experience Design of Museum Cultural Heritage Based on Virtual Reality Technology. J. Electron. Imaging 2023, 32, 11208. [Google Scholar] [CrossRef]
  43. Liu, Q.; Zhai, H.; Liu, Q.; Zhai, H. Research on Public Culture Space from the Perspective of Environmental Behavior. In Proceedings of the 3rd International Conference on Power and Energy Systems (PES 2016), Bangkok, Thailand, 30–31 December 2016; Volume 4, pp. 157–162. [Google Scholar]
Figure 1. Experimental flowchart. Source: authors’ own.
Figure 1. Experimental flowchart. Source: authors’ own.
Buildings 14 00847 g001
Figure 2. Jixi Museum floor plan and visitor circulation. Source: authors’ own.
Figure 2. Jixi Museum floor plan and visitor circulation. Source: authors’ own.
Buildings 14 00847 g002
Figure 3. Floor plan and visitor circulation of the new pavilion of Hubei Provincial Museum, source: http://www.archcollege.com/archcollege/2022/04/50808.html (accessed on 16 December 2023).
Figure 3. Floor plan and visitor circulation of the new pavilion of Hubei Provincial Museum, source: http://www.archcollege.com/archcollege/2022/04/50808.html (accessed on 16 December 2023).
Buildings 14 00847 g003
Figure 4. Space analysis simulation scenarios. Source: authors’ own.
Figure 4. Space analysis simulation scenarios. Source: authors’ own.
Buildings 14 00847 g004aBuildings 14 00847 g004b
Figure 5. Comparison of actual results with simulation results. Source: authors’ own.
Figure 5. Comparison of actual results with simulation results. Source: authors’ own.
Buildings 14 00847 g005
Figure 6. Scenarios 1 to 6—simulation results of pedestrian density and number: (a) Scenario 1: human density; (b) Scenario 2: human density; (c) Scenario 3: human density; (d) Scenario 4: human density; (e) Scenario 5: human density; (f) Scenario 6: human density. (g) Population trends across different scenarios Source: authors’ own.
Figure 6. Scenarios 1 to 6—simulation results of pedestrian density and number: (a) Scenario 1: human density; (b) Scenario 2: human density; (c) Scenario 3: human density; (d) Scenario 4: human density; (e) Scenario 5: human density; (f) Scenario 6: human density. (g) Population trends across different scenarios Source: authors’ own.
Buildings 14 00847 g006
Figure 7. Analysis of space and routes in Scenarios 1 and 2. Source: authors’ own.
Figure 7. Analysis of space and routes in Scenarios 1 and 2. Source: authors’ own.
Buildings 14 00847 g007
Figure 8. Analysis of space and routes in Scenarios 3 and 4. Source: authors’ own.
Figure 8. Analysis of space and routes in Scenarios 3 and 4. Source: authors’ own.
Buildings 14 00847 g008
Figure 9. Analysis of space and routes in Scenarios 5. Source: authors’ own.
Figure 9. Analysis of space and routes in Scenarios 5. Source: authors’ own.
Buildings 14 00847 g009
Figure 10. Proportion of route b selection in Scenarios 1 and 2. Source: authors’ own.
Figure 10. Proportion of route b selection in Scenarios 1 and 2. Source: authors’ own.
Buildings 14 00847 g010
Figure 11. (a) Simulation results for number of turns. (b) Proportion of pedestrians on route a Source: authors’ own.
Figure 11. (a) Simulation results for number of turns. (b) Proportion of pedestrians on route a Source: authors’ own.
Buildings 14 00847 g011
Figure 12. Proportion of pedestrians on route b in Scenarios 5 and 5(b). Source: authors’ own.
Figure 12. Proportion of pedestrians on route b in Scenarios 5 and 5(b). Source: authors’ own.
Buildings 14 00847 g012
Figure 13. Number of persons choosing route a and route b in Scenarios 6. Source: authors’ own.
Figure 13. Number of persons choosing route a and route b in Scenarios 6. Source: authors’ own.
Buildings 14 00847 g013
Table 1. Model comparison. Source: authors’ own.
Table 1. Model comparison. Source: authors’ own.
ModelIndividual
Description
Motion RulesSimulation DensityComputational
Capability
Cellular Automaton ModelPedestrians are treated as “cells” with fixed dimensions.The setting of pedestrian motion rules exhibits discrete characteristics, lacking relatively reasonable explanations.Parameter settings are restricted, with insufficient capacity for detailed description, resulting in lower simulation accuracyFast computational speed, high efficiency, and minimal resource consumption.
Social Force ModelPedestrians are abstracted as ellipses, with adjustable dimensions.The forces acting on pedestrians have practical significance and provide explanations for pedestrian walking characteristics.Parameter settings are flexible, with strong capabilities for micro-level behavior description, resulting in high simulation accuracyThe model’s computational speed is significantly influenced by the number of pedestrians, requiring high hardware specifications.
Table 2. Comparison of simulation platforms. Source: authors’ own.
Table 2. Comparison of simulation platforms. Source: authors’ own.
Software NameModeling MethodInput InformationOutput InformationDevelopment PerformanceApplication Field
AnyLogicSocial Force ModelCreate environment objects and set attributes.Animation, pedestrian count, average density, spatial cross-section, pedestrian flow, etc.Has an open structure and requires secondary development.Pedestrian traffic, logistics industry, and construction industry
VisWalkSocial Force ModelCreate environment and set properties, establish origin-destination table for agents, and define other parameters.Pedestrian density, walking time, evacuation time, walking speed, space utilization rate, etc.Has secondary development capabilities but with certain limitations.Applications related to pedestrian traffic simulation
Urban Analytics FrameworkSocial Force ModelBuilding space layout, physical radius of entities, lateral sway displacement of pedestrians, composition of pedestrian flow, and walking parametersPedestrian walking paths, walking speed, traffic flow density, queue length, and queue delayCan incorporate auxiliary pluginsUrban space design and transportation operation evaluation
Table 3. Analysis of museum spatial forms. Source: authors’ own.
Table 3. Analysis of museum spatial forms. Source: authors’ own.
NameFloor Circulation PatternSpatial
Combination
Example
Serial (Including Hall-Style)Buildings 14 00847 i001Buildings 14 00847 i002Jixi Museum, Qingdao Museum, Jingzhou Museum, Guangdong Museum, New Pavilion of Guizhou Museum, Hong Kong Museum of History, Capital Museum, Tianjin Museum, Hainan Provincial Museum.
ParallelBuildings 14 00847 i003Buildings 14 00847 i004Hubei Provincial Museum, Shanxi Museum, Inner Mongolia Museum, Jilin Provincial Museum, Changzhou Museum, Wuxi Museum, Zhejiang Museum, Fujian Museum, Jiangxi Museum, Shandong Provincial Museum, Liuzhou Museum.
CombinedBuildings 14 00847 i005Buildings 14 00847 i006Suzhou Museum, Shenzhen Museum, National Museum of China, Hebei Provincial Museum, Henan Provincial Museum, Luoyang Museum, Nanjing Museum.
Disclaimer/Publisher’s Note: The statements, opinions and data contained in all publications are solely those of the individual author(s) and contributor(s) and not of MDPI and/or the editor(s). MDPI and/or the editor(s) disclaim responsibility for any injury to people or property resulting from any ideas, methods, instructions or products referred to in the content.

Share and Cite

MDPI and ACS Style

Liu, Y.; Chen, L.; Xu, Y.; Yang, J. Exhibition Space Circulation in Museums from the Perspective of Pedestrian Simulation. Buildings 2024, 14, 847. https://doi.org/10.3390/buildings14030847

AMA Style

Liu Y, Chen L, Xu Y, Yang J. Exhibition Space Circulation in Museums from the Perspective of Pedestrian Simulation. Buildings. 2024; 14(3):847. https://doi.org/10.3390/buildings14030847

Chicago/Turabian Style

Liu, Yuzhe, Libo Chen, Yusu Xu, and Jingqiu Yang. 2024. "Exhibition Space Circulation in Museums from the Perspective of Pedestrian Simulation" Buildings 14, no. 3: 847. https://doi.org/10.3390/buildings14030847

APA Style

Liu, Y., Chen, L., Xu, Y., & Yang, J. (2024). Exhibition Space Circulation in Museums from the Perspective of Pedestrian Simulation. Buildings, 14(3), 847. https://doi.org/10.3390/buildings14030847

Note that from the first issue of 2016, this journal uses article numbers instead of page numbers. See further details here.

Article Metrics

Back to TopTop