Cultural Imprints on Urban Housing: A Spatial Analysis of Apartment Designs in Kenya, Ghana, and South Africa
Abstract
1. Introduction
2. Theoretical Background and Methodology
2.1. Theoretical Background
2.2. Concept of Space Syntax
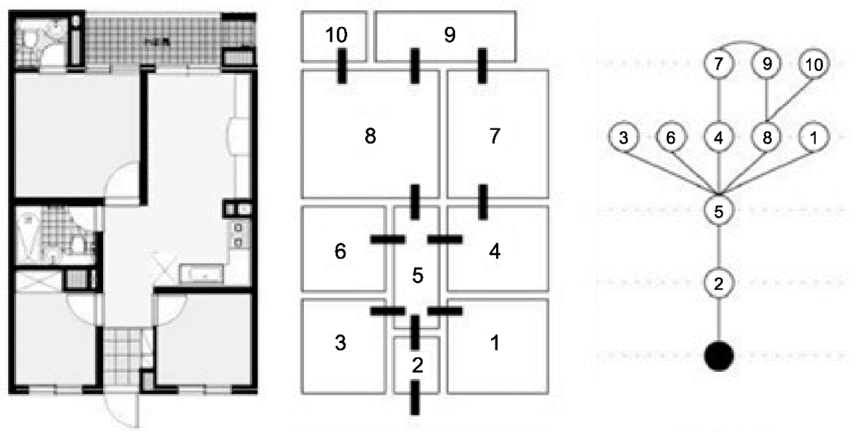
2.3. Analytical Indices and Tools in Space Syntax

2.4. Research Subjects and Method
3. Results
3.1. Space Syntax Results of Kenya, Ghana, and South Africa
3.2. Comparative Analysis of Spatial Structure
3.2.1. Private Areas
3.2.2. Corridors
3.2.3. Kitchens
4. Discussion of the Analysis of Spatial Structure
4.1. Kenya
4.2. Ghana
4.3. South Africa
5. Conclusions
Limitations
Supplementary Materials
Author Contributions
Funding
Data Availability Statement
Conflicts of Interest
References
- IFC. Expanding Access to Sustainable Housing in Africa; International Finance Corporation: Washington, DC, USA, 2023. [Google Scholar]
- Urban and Municipal Development Fund. Promoting Affordable Housing in African Cities; African Development Bank: Abidjan, Côte d’Ivoire, 2023. [Google Scholar]
- Centre for Affordable Housing Finance Africa (CAHF). Housing Finance in Africa Yearbook; Centre for Affordable Housing Finance in Africa: Johannesburg, South Africa, 2023. [Google Scholar]
- Addae-Dapaah, K. Urban housing affordability problem in Africa: A search for pragmatic solution? J. Afr. Real. Estate. Res. 2021, 21, 1–15. [Google Scholar] [CrossRef]
- UN-Habitat. Africa Urban Agenda Programme. 2023. Available online: https://unhabitat.org/africa-urban-agenda-programme (accessed on 18 August 2023).
- Democracy in Africa. Five Trends That Will Shape Urban Africa. 2023. Available online: https://democracyinafrica.org/five-trends-that-will-shape-urban-africa-in-2023/ (accessed on 18 August 2023).
- United Nations. World Urbanization Prospects: The 2018 Revision; United Nations Department of Economic and Social Affairs Population Division: New York, NY, USA, 2019. [Google Scholar]
- Obeng-Odoom, F. Oiling the Urban Economy: Land, Labour, Capital, and the State in Sekondi-Takoradi, Ghana; Routledge: New York, NY, USA, 2014. [Google Scholar]
- Ganiyu, B.O. Strategy to Enhance Sustainability in Affordable Housing Construction in South Africa. Ph.D. Thesis, Cape Peninsula University of Technology, Cape Town, South Africa, 2016. [Google Scholar]
- Rapoport, A. House Form and Culture; Prentice Hall: Saddle River, NJ, USA, 1969. [Google Scholar]
- Hillier, B.; Hanson, J. The Social Logic of Space; Cambridge University Press: Cambridge, UK, 1984. [Google Scholar]
- Njoh, A.J. Urbanization and Development in Sub-Saharan Africa: Colonial Legacies and Contemporary Realities; Ashgate: London, UK, 2003. [Google Scholar]
- Home, R. Of Planting and Planning: The Making of British Colonial Cities; Routledge: London, UK, 2013. [Google Scholar]
- Myers, G. Verandahs of Power: Colonialism and Space in Urban Africa; Syracuse University Press: New York, NY, USA, 2003. [Google Scholar]
- Tipple, A.G. The Many Houses of Ghana: Housing Strategies in Accra, Kumasi, and Tamale. Cities 2004, 16, 91–102. [Google Scholar]
- Lawrence, R.J. Housing, Dwellings and Homes: Design Theory, Research, and Practice; Wiley: Hoboken, NJ, USA, 1987. [Google Scholar]
- Hanson, J. Decoding Homes and Houses; Cambridge University Press: Cambridge, UK, 1998. [Google Scholar]
- Turner, A. DepthMap 4: A Researcher’s Handbook; University College London: London, UK, 2004. [Google Scholar]
- Choi, J.Y. Analysis of the Spatial Organization in the Context of Space Syntax Model for Apartment Unit Plans in Kenya; Seoul National University Graduates: Seoul, Republic of Korea, 2018. [Google Scholar]
- Bafna, S. Space syntax: A brief introduction to its logic and analytical techniques. Environ. Behav. 2003, 35, 17–29. [Google Scholar] [CrossRef]
- Peponis, J.; Hadjinikolaou, E.; Livieratos, C.; Fatouros, D.A. The spatial core of urban culture. Ekistics 1997, 64, 92–108. [Google Scholar]
- Hillier, B. Space Is the Machine: A Configurational Theory of Architecture; Cambridge University Press: Cambridge, UK, 1996. [Google Scholar]
- Shin, J.S. A Study on the Changes in Floor Plan Composition of Highrise Residential Buildings in Korea Below. Master’s Thesis, Seoul National University Graduate School, Seoul, Republic of Korea, 2014. [Google Scholar]
- Kim, M.S. Development and Application of SA Convex: V2.0; Pukyong National University: Busan, Republic of Korea, 2010. [Google Scholar]
- Tipple, A.G. Housing the Poor in the Developing World: Methods to Overcome Bias and Invisibility. Third World Plan. Rev. 1999, 21, 91–111. [Google Scholar]
- Manyoni, S. Above & Below. Master’s Thesis, University of Johannesburg, Johannesburg, South Africa, 2014. [Google Scholar]
- Chipkin, C. Johannesburg Style: Architecture and Society; David Philip Publishers: Cape Town, South Africa, 1993; pp. 1880s–1960s. [Google Scholar]
- Zack, T.; Charlton, S. A better life for some: Post-apartheid housing strategies and their effects on social relations. Urban Forum 2003, 14, 242–262. [Google Scholar]






| Category | Subspaces |
| Public Area | Corridor (CO), entrance (ENT), living room (L), dining room (D), |
| Kitchen Area | Kitchen (K), kitchen yard (KY) |
| Private Area | Bedroom (BR), dressing room (DR), master bedroom (MB), domestic servant quarters (DSQ) |
| Service Area | Toilet (WC), powder room (PR) |
| Balcony | Balcony (BAL) |
| Kenya Apartment Units | Ghana Apartment Units | South Africa Apartment Units | |||||||||
| Rank | Avg. Integration | Room | Area Type | Rank | Avg. Integration | Room | Area Type | Rank | Avg. Integration | Room | Area Type |
| 1 | 1.71 | Corridor | Public | 1 | 2.03 | Corridor | Public | 1 | 1.51 | Dining | Public |
| 2 | 1.41 | Dining | Public | 2 | 1.49 | Dining | Public | 2 | 1.48 | Corridor | Public |
| 3 | 1.20 | Living | Public | 3 | 1.39 | Entrance | Public | 3 | 1.25 | Entrance | Public |
| 4 | 1.13 | Entrance | Public | 4 | 1.27 | Living | Public | 4 | 1.14 | Living | Public |
| 5 | 0.95 | Master Bedroom | Private | 5 | 1.10 | Master Bedroom | Private | 5 | 0.93 | Kitchen | Kitchen |
| 6 | 0.94 | Bedroom 2 | Private | 6 | 1.06 | Bedroom 1 | Private | 6 | 0.89 | Master Bedroom | Private |
| 7 | 0.93 | Bedroom 1 | Private | 7 | 1.03 | Bedroom 2 | Private | 7 | 0.79 | Bedroom 1 | Private |
| 8 | 0.93 | Kitchen | Kitchen | 8 | 1.01 | Master Dressing Room | Private | 8 | 0.78 | Powder Room | Service |
| 9 | 0.88 | Master Dressing Room | Private | 9 | 0.98 | Kitchen | Kitchen | 9 | 0.77 | Bedroom 2 | Private |
| 10 | 0.82 | Balcony | Balcony | 10 | 0.88 | Servant Quarters | Private | 10 | 0.76 | Balcony | Balcony |
| 11 | 0.77 | Exterior | Public | 11 | 0.94 | Powder Room | Service | 11 | 0.72 | Exterior | Public |
| 12 | 0.77 | Powder Room | Service | 12 | 0.88 | Balcony | Balcony | 12 | 0.71 | Kitchen Yard | Kitchen |
| 13 | 0.72 | Toilet 1 | Service | 13 | 0.85 | Exterior | Public | 13 | 0.71 | Toilet 1 | Service |
| 14 | 0.69 | Toilet 2 | Service | 14 | 0.83 | Kitchen Yard | Kitchen | 14 | 0.68 | Master Dressing Room | Private |
| 15 | 0.66 | Kitchen Yard | Kitchen | 15 | 0.83 | Toilet 1 | Service | 15 | 0.58 | Master Toilet | Service |
| 16 | 0.64 | Servant Quarters | Private | 16 | 0.81 | Toilet 2 | Service | 16 | 0.56 | Toilet 2 | Service |
| 17 | 0.64 | Master Balcony | Balcony | 17 | 0.75 | Master Toilet | Service | ||||
| 18 | 0.60 | Master Toilet | Service | 18 | 0.69 | Master Balcony | Balcony | ||||
| Category | Country | N | Avg. | SD | df. | F | Sig. |
| BAL | Kenya | 28 | 0.819 | 0.23388 | Between Group = 2 Within Group = 82 Total = 84 | 1.984 | 0.144 |
| South Africa | 28 | 0.7591 | 0.16873 | ||||
| Ghana | 29 | 0.8825 | 0.28309 | ||||
| Total | 85 | 0.8209 | 0.23671 | ||||
| BR1 | Kenya | 30 ab | 0.931 | 0.16463 | Between Group = 2 Within Group = 87 Total = 89 | 9.971 *** | 0 |
| South Africa | 30 a | 0.7882 | 0.16131 | ||||
| Ghana | 30 b | 1.0596 | 0.33646 | ||||
| Total | 90 | 0.9263 | 0.25811 | ||||
| Post Hoc Multiple Comparisons (Scheffe): Ken-Sout: 0.069, ken-Gha: 0.113, Sout-Gha ***: 0.000 | |||||||
| BR2 | Kenya | 30 b | 0.937 | 0.14986 | Between Group = 2 Within Group = 87 Total = 89 | 9.132 *** | 0 |
| South Africa | 30 a | 0.7704 | 0.13131 | ||||
| Ghana | 30 b | 1.028 | 0.35851 | ||||
| Total | 90 | 0.9118 | 0.25753 | ||||
| Post Hoc Multiple Comparisons (Scheffe): Ken-Sout *: 0.028, ken-Gha: 0.335, Sout-Gha ***: 0.000 | |||||||
| CO | Kenya | 30 ab | 1.706 | 0.53003 | Between Group = 2 Within Group = 83 Total = 85 | 5.784 ** | 0.004 |
| South Africa | 28 a | 1.4838 | 0.48755 | ||||
| Ghana | 28 b | 2.0324 | 0.77103 | ||||
| Total | 86 | 1.7399 | 0.64062 | ||||
| Post Hoc Multiple Comparisons (Scheffe): Ken-Sout: 0.384, ken-Gha: 0.130, Sout-Gha **: 0.005 | |||||||
| D | Kenya | 30 | 1.4129 | 0.35002 | Between Group = 2 Within Group = 87 Total = 89 | 0.525 | 0.594 |
| South Africa | 30 | 1.513 | 0.42264 | ||||
| Ghana | 30 | 1.492 | 0.42088 | ||||
| Total | 90 | 1.4726 | 0.39714 | ||||
| ENT | Kenya | 21 | 1.1332 | 0.20533 | Between Group = 2 Within Group = 46 Total = 48 | 2.896 | 0.065 |
| South Africa | 14 | 1.2547 | 0.39273 | ||||
| Ghana | 14 | 1.3926 | 0.35785 | ||||
| Total | 49 | 1.242 | 0.32536 | ||||
| EX | Kenya | 30 | 0.7671 | 0.11285 | Between Group = 2 Within Group = 87 Total = 89 | 1.529 | 0.223 |
| South Africa | 30 | 0.721 | 0.13716 | ||||
| Ghana | 30 | 0.848 | 0.46034 | ||||
| Total | 90 | 0.7787 | 0.28656 | ||||
| K | Kenya | 30 | 0.9305 | 0.14345 | Between Group = 2 Within Group = 87 Total = 89 | 0.335 | 0.716 |
| South Africa | 30 | 0.9334 | 0.21973 | ||||
| Ghana | 30 | 0.9769 | 0.33514 | ||||
| Total | 90 | 0.9469 | 0.24391 | ||||
| KY | Kenya | 28 | 0.6606 | 0.09892 | Between Group = 2 Within Group = 49 Total = 51 | 1.487 | 0.236 |
| South Africa | 15 | 0.71 | 0.13149 | ||||
| Ghana | 9 | 0.8339 | 0.59932 | ||||
| Total | 52 | 0.7048 | 0.26513 | ||||
| L | Kenya | 30 | 1.2026 | 0.33586 | Between Group = 2 Within Group = 87 Total = 89 | 0.817 | 0.445 |
| South Africa | 30 | 1.1363 | 0.32203 | ||||
| Ghana | 30 | 1.2698 | 0.52342 | ||||
| Total | 90 | 1.2029 | 0.40351 | ||||
| MBR | Kenya | 30 ab | 0.9549 | 0.16352 | Between Group = 2 Within Group = 87 Total = 89 | 3.807 * | 0.026 |
| South Africa | 30 a | 0.89 | 0.21953 | ||||
| Ghana | 30 b | 1.1014 | 0.44957 | ||||
| Total | 90 | 0.9821 | 0.31333 | ||||
| Post Hoc Multiple Comparisons (Scheffe): Ken-Sout: 0.711, ken-Gha: 0.181, Sout-Gha *: 0.031 | |||||||
| MDR | Kenya | 18 ab | 0.8795 | 0.28066 | Between Group = 2 Within Group = 50 Total = 52 | 4.049 * | 0.023 |
| South Africa | 14 a | 0.6818 | 0.18961 | ||||
| Ghana | 21 b | 1.0107 | 0.43612 | ||||
| Total | 53 | 0.8793 | 0.35407 | ||||
| Post Hoc Multiple Comparisons (Scheffe): Ken-Sout: 0.263, ken-Gha: 0.480, Sout-Gha *: 0.023 | |||||||
| MWC | Kenya | 30 b | 0.5995 | 0.08668 | Between Group = 2 Within Group = 87 Total = 89 | 3.744 * | 0.028 |
| South Africa | 30 b | 0.5822 | 0.1072 | ||||
| Ghana | 30 b | 0.754 | 0.44282 | ||||
| Total | 90 | 0.6453 | 0.2759 | ||||
| Post Hoc Multiple Comparisons (Scheffe): Ken-Sout: 0.969, ken-Gha: 0.088, Sout-Gha: 0.051 | |||||||
| WC1 | Kenya | 30 | 0.6938 | 0.1388 | Between Group = 2 Within Group = 87 Total = 89 | 1.976 | 0.145 |
| South Africa | 30 | 0.7058 | 0.14299 | ||||
| Ghana | 30 | 0.8334 | 0.48269 | ||||
| Total | 90 | 0.7443 | 0.30478 | ||||
| WC2 | Kenya | 26 | 0.7162 | 0.1639 | Between Group = 2 Within Group = 49 Total = 51 | 1.287 | 0.285 |
| South Africa | 8 | 0.56 | 0.08066 | ||||
| Ghana | 18 | 0.812 | 0.59711 | ||||
| Total | 52 | 0.7253 | 0.37402 | ||||
| PR | Kenya | 13 a | 0.7660 | 0.13840 | Between Group = 2 Within Group = 38 Total = 40 | 5.825 ** | 0.006 |
| South Africa | 7 ab | 0.7846 | 0.11492 | ||||
| Ghana | 21 b | 0.9394 | 0.17697 | ||||
| Total | 41 | 0.8580 | 0.17480 | ||||
| Post Hoc Multiple Comparisons (Scheffe): Ken-Sout: 0.969, ken-Gha *: 0.013, Sout-Gha: 0.091 | |||||||
Disclaimer/Publisher’s Note: The statements, opinions and data contained in all publications are solely those of the individual author(s) and contributor(s) and not of MDPI and/or the editor(s). MDPI and/or the editor(s) disclaim responsibility for any injury to people or property resulting from any ideas, methods, instructions or products referred to in the content. |
© 2024 by the authors. Licensee MDPI, Basel, Switzerland. This article is an open access article distributed under the terms and conditions of the Creative Commons Attribution (CC BY) license (https://creativecommons.org/licenses/by/4.0/).
Share and Cite
Choi, J.Y.; Choi, J. Cultural Imprints on Urban Housing: A Spatial Analysis of Apartment Designs in Kenya, Ghana, and South Africa. Buildings 2024, 14, 3526. https://doi.org/10.3390/buildings14113526
Choi JY, Choi J. Cultural Imprints on Urban Housing: A Spatial Analysis of Apartment Designs in Kenya, Ghana, and South Africa. Buildings. 2024; 14(11):3526. https://doi.org/10.3390/buildings14113526
Chicago/Turabian StyleChoi, Jung Yun, and Jaepil Choi. 2024. "Cultural Imprints on Urban Housing: A Spatial Analysis of Apartment Designs in Kenya, Ghana, and South Africa" Buildings 14, no. 11: 3526. https://doi.org/10.3390/buildings14113526
APA StyleChoi, J. Y., & Choi, J. (2024). Cultural Imprints on Urban Housing: A Spatial Analysis of Apartment Designs in Kenya, Ghana, and South Africa. Buildings, 14(11), 3526. https://doi.org/10.3390/buildings14113526
