Next Article in Journal
Improvement of the Analytical Model of an Energy Dissipator and Validation with Experimental Tests of a Prototype
Previous Article in Journal
Lifecycle Applications of Building Information Modeling for Transportation Infrastructure Projects
Previous Article in Special Issue
Refurbishment of a Social Interest Building in Mexico Using Earth-to-Air Heat Exchangers
 
 
Font Type:
Arial Georgia Verdana
Font Size:
Aa Aa Aa
Line Spacing:
Column Width:
Background:
Article

Thermal Calculation for the Implementation of Green Walls as Thermal Insulators on the East and West Facades in the Adjacent Areas of the School of Biological Sciences, Ricardo Palma University (URP) at Lima, Peru 2023

1
School of Architecture and Urban Planning, Ricardo Palma University (URP), Santiago de Surco, Lima 15039, Peru
2
Research Laboratory for Formative Investigation and Architectural Innovation (LABIFIARQ), Santiago de Surco, Lima 15039, Peru
*
Author to whom correspondence should be addressed.
Buildings 2023, 13(9), 2301; https://doi.org/10.3390/buildings13092301
Submission received: 9 July 2023 / Revised: 17 August 2023 / Accepted: 24 August 2023 / Published: 9 September 2023
(This article belongs to the Special Issue Thermal Comfort Performance of Buildings)

Abstract

This research aims to implement green walls as thermal insulators on the east and west facades of the adjacent areas of the School of Biological Sciences at Ricardo Palma University. The growth of urban cities causes an increase in CO2 emissions and the loss of agricultural land. The methodology applied involves evaluating the thermal behavior, analyzing the local climate, and assessing plant species for implementation. As a result, the successful implementation of green walls on the east and west facades was achieved, which has proven to effectively reduce wall heating, decrease the temperature rise in nearby spaces, and minimize reliance on artificial ventilation systems. This has led to energy and cost savings, decreased CO2 emissions, and increased oxygen production. By implementing green walls on the east facade, there has been an increase of 60.73% in comfort hours, while on the west facade, there has been an increase of 64.28% in comfort hours. In addition, a total of 977.50 kg of CO2 has been absorbed, resulting in 722.50 kg of purified air. In conclusion, green walls have proven to be a viable solution to the problems faced in urban cities, helping to mitigate the internal temperature of indoor spaces.

1. Introduction

Environmental pollution not only adversely affects people’s quality of life, but it also poses health risks [1]. Moreover, it directly impacts the planet itself, leading to alarming events such as climate change due to the accumulation of greenhouse gases [2] and the extinction of biological species [3]. In order to address the negative effects of human economic activity, multiple scientific studies have explored the use of plants. These research efforts have revealed multiple possibilities and positive aspects of plant implementation. Notably, plants can function as temperature regulators [4], resulting in reduced surface and outdoor air temperatures around buildings [5]. This contributes to energy optimization, lowering indoor energy consumption [6,7]. In addition, plants offer functional benefits by controlling heat gains [8]. Furthermore, plants help to reduce noise levels as they absorb sound [9], and they also play a significant role in stormwater management [10].
In 2000, Peru only accounted for 0.4% of global greenhouse gas emissions (GHG) [11]. However, by 2018, Peru’s emissions had increased significantly, reaching up to 218.70 million tons of carbon dioxide [12] (Figure 1).
Green walls in urban areas represent valuable points for biodiversity, contributing to species conservation, acting as urban wildlife corridors, and aiming for sustainability through a careful selection of materials and structures [14]. Green walls can improve the thermal conditions of buildings [15]. To achieve this, investigations into suitable species and efficient water management have been conducted. These green areas play various roles, creating health, psychosocial, recreational, aesthetic, and environmental impacts [16]. Thanks to the benefits they bring to people’s physical and emotional well-being, the World Health Organization considers green walls to be essential [17]. In fact, they contribute to making places more habitable, including university campuses, thus improving their environmental quality. Designing buildings’ walls with vegetative covers has proven to have a beneficial effect on thermal stability [18], helping to save energy and combat climate change [19]. Furthermore, these soil–plant ecosystems contain microbes, insects, birds, etc., which contribute to urban biodiversity and ecological balance [20]. However, these living structures have also raised concerns about long-term damage to buildings, increased humidity, the release of allergens, and the presence of unwanted insects or reptiles [21].
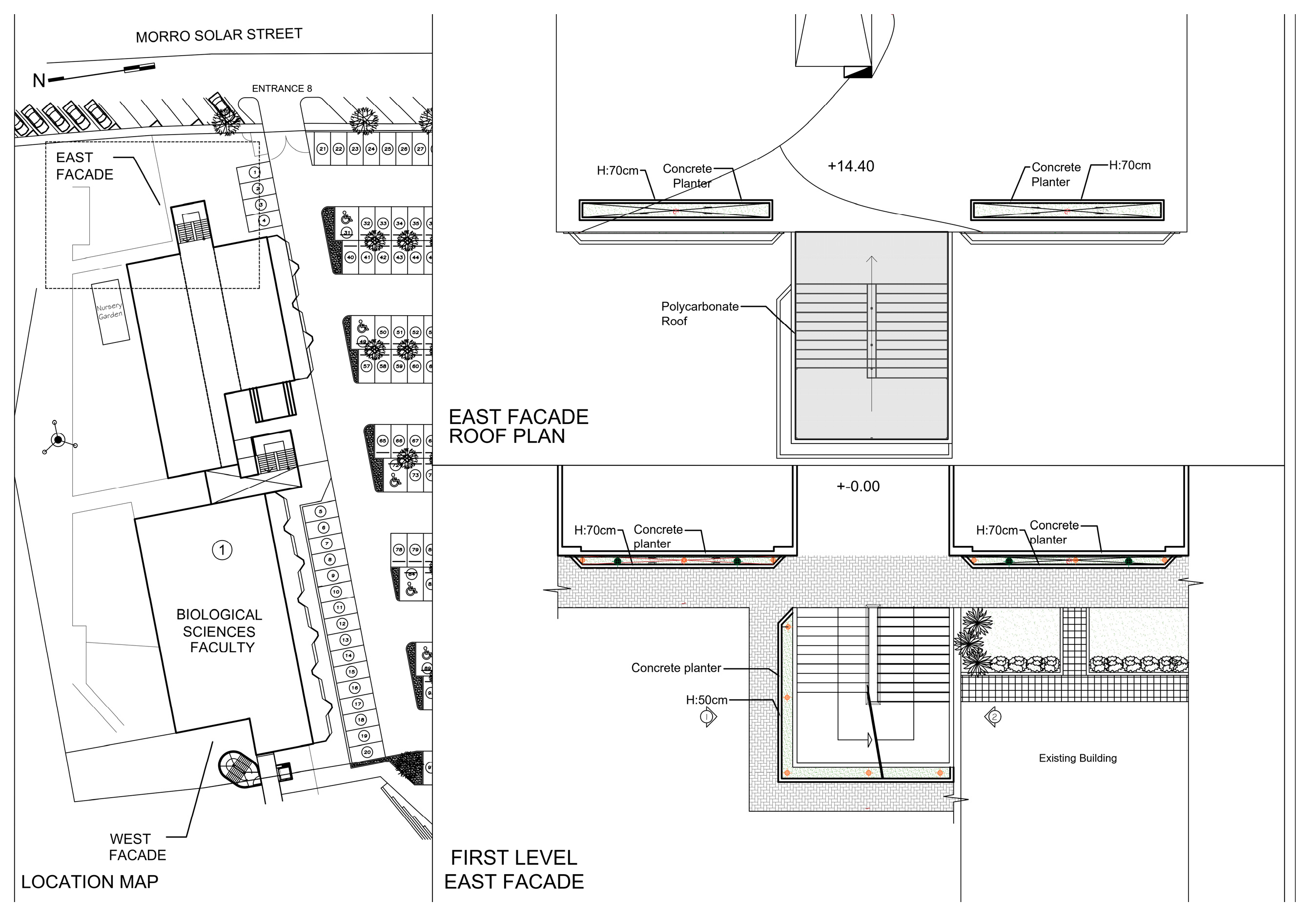
Public and private universities, as education and training institutions for future professionals, are suitable spaces for promoting and raising awareness about environmental education and, consequently, caring for the environment [22,23]. The School of Biology at Ricardo Palma University was selected for this research, after having appropriately assessed its spatial conditions, as well as the issues it faces in summer, which significantly affect thermal comfort, causing lessons to be uncomfortable for both professors and students [24,25]. The implementation of green walls on both facades of the School of Biological Sciences was carried out from February 2022 to March 2023. Specifically, the east facade implementation began in February 2022 and was completed in August 2022. On the other hand, the implementation of the west facade started in November 2022 and was completed in March 2023.
The urban context of university campuses allows for the implementation of architectural structures such as classrooms, laboratories, libraries, administrative offices, cafeterias, restaurants, sports areas, maintenance zones, open areas for circulation, student gathering spaces, and parking lots. However, this causes a reduction in green areas due to the priority given to building square footage [26,27]. As a consequence of not having a proper green area management plan, other types of surfaces such as cement, asphalt, and concrete are more common than green spaces [28]. This leads to various issues, such as excessively heated areas (such as parking lots, walkways, roofs, etc.) causing campus overheating and a lack of oxygen-generating resources [29].
The Ecological University Project-URP involves a proposal on green areas management, which includes the implementation of green walls for the School of Biological Sciences’ east and west facades. This aims to reduce heating on the facades, thus improving thermal comfort in adjacent spaces. Likewise, it expects to capture CO2 and produce oxygen through the vegetal coverings [30,31].
This proposal consists of dividing the walls of the four-story classroom blocks into three sections, each designed with a different type of green wall. The lower part will feature a climbing plant growing from a planter built at the base of the wall, with soil for cultivation. This section will have a technified drip irrigation system. The middle of the green wall will be made of an aluminum frame and geotextiles. It will feature water-efficient, sun-resistant vegetation in various colors. One of the blocks will show the letters “URP” and “BIO” as an informative panel. This section will also have an automated and technified hose irrigation system. At the top of the wall, trailing plants will be planted to grow downwards, until they reach the limit of the middle design. All three green wall systems will efficiently use water with technified drip irrigation. They will also provide thermal insulation for nearby environments and improve thermal comfort inside those spaces [32]. Furthermore, green walls will not only carry aesthetic advantages, but they will also provide the following benefits:
  • Reduce adjacent walls’ heating.
  • Minimize temperature increase in adjacent areas.
  • Decrease the need for electric or mechanical ventilation equipment.
  • Generate energy- and cost savings.
  • Reduce CO2 emissions.
Therefore, the objective of this research is to conduct a thermal calculation to implement green walls as thermal insulators on the east and west facades of the adjacent areas in the School of Biological Sciences at the Ricardo Palma University. This research aims to propose a paradigm shift and establish bioclimatic architecture as the basis for energy efficiency.

2. Literature Review

2.1. Sustainability

Sustainability is defined as the ability to meet current needs without jeopardizing the capacity of future generations to meet their own needs [33]. This entails the responsible use and management of resources, the preservation of ecological balance, and the promotion of social equity and economic development that can endure in the long term [34,35].

2.2. Green Wall

Green walls are often referred to as ‘living walls’, ‘bio-walls’, or ‘vertical gardens’. They incorporate vegetation, cultivation material, irrigation, and drainage into a single system. Some benefits of green walls include providing an attractive design and adding insulation to the building by shading the wall’s surface. They create a cooler microclimate, improve local air quality, and allow the cultivation of plants in areas that would not normally support vegetation [36].

2.3. Thermal Comfort

Thermal comfort refers to the feelings of well-being and comfort in an indoor environment, characterized by the absence of thermal irritation or discomfort. This involves experiencing acceptable climatic conditions, where neither excessive heat nor cold is perceived [37,38,39].

2.4. Bioclimatic Architecture

Bioclimatic architecture involves designing buildings that adapt to the local climate using passive strategies [40,41], with the aim of achieving a favorable indoor environmental quality and minimizing energy consumption [42,43]. There are two approaches to bioclimatic architecture: analytical bioclimatic design and symptomatic bioclimatic design. The first approach is based on analyzing the local climate, identifying the bioclimatic potential, and determining appropriate bioclimatic measures [44].

2.5. Thermal Insulator

A material or a combination of materials that, when used appropriately, have the capacity to decrease the rate of heat transfer via conduction, convection, and radiation is known as a thermal insulator. The delay effect in the heat flow thanks to high thermal resistance results in reduced heat transfer to or from the building [45,46,47].

3. Materials and Methods

3.1. Research Site

This research took place in Peru, in the Lima region, Lima province, specifically in the district of Santiago de Surco. Its geographical coordinates are 12°8′47″ south latitude, 77°0′24″ west longitude, with an altitude of 107 m above sea level. Santiago de Surco is located in the southwest area of metropolitan Lima and covers an area of 52 km2. It should be noted that there are territorial disputes between Santiago de Surco and the districts of Chorrillos and San Juan de Miraflores (Figure 2).

3.2. Climatic Analysis

The climate of Santiago de Surco is temperate. The qualitative vulnerability analysis conducted in May 2020 showed that the Surco district is primarily vulnerable to climate hazards.
Figure 3 shows the temperature diagram, where the warm season spans three months, from 3 January to 5 April, and the average daily maximum temperature exceeds 25 °C. The hottest month is February, with an average maximum temperature of 27 °C and a minimum of 20 °C. On the other hand, the coldest month is August, with an average minimum temperature of 15 °C and a maximum of 19 °C.
Figure 4 shows the solar radiation diagram, with its highest solar incidence period lasting 2.9 months approximately, from 7 September to 5 December, with an average daily incident shortwave energy per m2 exceeding 7.0 KWh. The brightest month is October, with an average of 7.2 KWh (Figure 3).
Figure 5 shows that the frequency of days with precipitation does not vary significantly according to the season. This frequency ranges from 0% to 1%, with an average value of 0%. Among the days with precipitation, a distinction is made between those that have only snow or a combination of different types of precipitation. The month with the most rainy days in Lima is October, with an average of 0.4 days. Based on this categorization, the most common type of precipitation throughout the year is rain alone, with a maximum probability of 1% on 25 January. Figure 6 shows that the average hourly wind speed in Lima has slight seasonal variations throughout the day. The windiest time of the year spans 7.2 months, from 10 May to 16 December, with average wind speeds exceeding 13.6 km per hour. The windiest month in Lima is September, with an average wind speed of 15.3 km per hour. On the other hand, the least windy period of the year lasts for 4.8 months, from 15 December to 10 May. The least windy month in Lima is February, with an average wind speed of 11.8 km per hour.

3.3. Santiago de Surco District’s Comfort Chart

According to the climate of Santiago de Surco, the Givoni diagram shows the following design strategies for indoor spaces (Figure 7):
  • Permanent natural ventilation with shading;
  • Internal heat gains.

3.4. Implementation Location

Implementation will take place at the School of Biology of the Ricardo Palma University, which is located at a latitude of −12.13, a longitude of −76.97, and an elevation of 113 m above sea level (Figure 8).

3.5. Project Overview

3.5.1. Green Walls and Vertical Gardens

The walls of the classroom blocks will be divided into three or four sections according to the building’s height, for which designs of three types of green wall are proposed. The middle part (with a height of one-third or two-quarters compared to the building’s height) will be a green wall based on planters with a vegetation design of colors, having low water consumption and resistance to solar radiation. On the east facade, letters corresponding to each URP and BIO school will be installed.
The wall will be waterproofed using a 1 mm HDPE geomembrane. Then, metal omega profiles will be installed every 35 cm vertically to the axis to give room to the eco-friendly geotextile, onto which the selected plants will be placed. The entire border will be framed with straight aluminum tube profiles.
The lower section will feature a climbing plant that adheres to the wall, which will be planted in a planter on the ground. Soil will be added to the planter, and the plant will be seeded, with the seeds growing attached to the wall. The upper section (with a height of one-third or two-quarters compared to the building’s height) will have climbing plants growing downwards until they reach the boundary of the middle design.

3.5.2. Stairs Area

The stairs area will have a system of steel cables forming rhombuses with a width between 0.70 and 0.75 cm and a height between 1.5 and 1.8 m. These rhombuses will allow the growth of climbing plants in a moderately dense manner, extending from the base to the top level of the staircase (up to the height of the concrete railings). At the top, a roof will be installed over the staircase, featuring a lightweight covering that will originate from the beam connecting the blocks and extend to two posts placed at the landing of the last staircase. Additionally, there will be two additional supports on the plate to enhance the rigidity of the covering.

3.5.3. Concrete Planters

Concrete planters will be made with a width of 70 cm and a height of 60 cm, using European-format concrete blocks measuring 50 × 19 × 9 cm. They will be finished with a plastering process, sealed with CPP sealer, and coated with satin white paint.

3.5.4. Sanitary Installations

The plants on the green wall will be watered using a drip irrigation system, as will the plants in the planters on the first level. Similarly, the plants in the planters located on the roof will be watered through a drip irrigation system, all of which will be managed by an automated control mechanism.

3.5.5. Electrical Installations

The green wall will be illuminated using 2 spotlights fixed to the wall. Climbing plants will be illuminated by placing light fixtures every 0.8 m to 1 m within the concrete planters. The letters installed on the green wall will have their own lighting. The lighting system will incorporate an automated control mechanism.

3.5.6. Planting of the Selected Plants

The plants will be chosen based on characteristics such as easy maintenance, solar radiation resistance, growth suitable for this design, and aesthetics. Some of the chosen plants include Rhoeo vertical, Money Plant, Baby’s Tears, Bridal Veil, Portulaca, Honeysuckle, Creeping Fig, Minka, Boston Ferns, and Variegated Rhoeo. All of these will be planted in carefully selected garden soil, along with moss, substrates, and prepared soil.
Figure 9 shows the implementation of green walls on the east and west facades of the School of Biology building block, as these facades are more exposed to the sun. Additionally, the use of climbing plants on the edge of the staircase, which faces east, will use modular green wall systems with a drip irrigation system. The water usage is based on technified irrigation, where each system (climber, vine, and green wall) has its own drip irrigation system that operates at specific times of the day according to an electronic schedule. This approach ensures a rational use of water resources, making it an excellent technological and design solution for 45 plants per square meter. The west facade will have two green wall modules with dimensions of 7.20 m × 7.90 m and 5.10 m × 10.50 m, while the east facade will have two green wall modules with dimensions of 4.80 m × 7.60 m (see Figure 10a,b).
A design has been proposed for the east and west facades, which divides the four-story walls of the pavilion into three sections, considering the implementation of three types of green walls. The lower part will have climbing plants that start from the bottom and adhere to the wall. The central part will be a green wall composed of textile bags and soil, designed with vegetation that has low water consumption and is resistant to solar radiation. The upper part will consist of vines that, guided by supports, will grow downwards towards the central design limit. The same design was applied to the west facade. The facades that are to be implemented will receive significant annual solar exposure, leading to an increase in the temperature of the walls and subsequently heating up the interior spaces. The advantage of using green walls is not only aesthetic; it helps to reduce wall heating, lowers the internal temperature of adjacent environments, decreases the need for artificial ventilation, resulting in energy and cost savings, and reduces CO2 emissions while producing oxygen. A thermal analysis can provide quantitative data on the current state without green walls and the thermal improvements achieved through the implementation of green walls (Figure 11, Figure 12 and Figure 13).
  • West Facade
Measurements:
  • Left wall: 7.90 m × 7.20 m—a total of 56.88 m2;
  • Right wall: 10.50 m × 5.10 m—a total of 53.55 m2.
Total quantity of plants:
  • Left wall: 2528 alternating plants of Rhoeo, Money Plant, Bridal Veil, Baby’s Tears;
  • Right wall: 2380 plants;
  • Grand total: 4908 Plants.
  • East façade
Measurements:
  • Left wall: 4.90 m × 7.85 m—a total of 38.50 m2;
  • Right wall: 4.90 m × 7.85 m—a total of 38.50 m2.
  • Left wall: 1718 plants;
  • Right wall: 1718 plants;
  • Grand total: 3436 plants.
This article presents a modular system of geomembrane and vertical gardening that facilitates the growth of vegetation on vertical surfaces both outdoors and indoors. This system is composed of a metal anchoring and support structure, a waterproofing layer, a textile mat for planting, and an automatic drip irrigation system. Finally, vegetation is added to the system to complete it. System benefits (Figure 14, Figure 15, Figure 16 and Figure 17):
  • Help to maintain a cool temperature inside homes during the summer and conserve heat during winter;
  • Capture CO2, a greenhouse gas;
  • Filter volatile organic compounds, such as benzene and formaldehyde;
  • Absorb dust from the environment;
  • Contribute to reducing noise pollution.

4. Results

Two simulations were conducted to analyze the thermal behavior of the exterior walls where the green walls were installed, as well as the adjacent interior areas to these walls. The radiation received by the exterior walls was obtained through simulation using Autodesk Revit 2021 software. For the thermal balance study, the behavior simulation was performed using Archicad21 software (Figure 18 and Figure 19).

4.1. Calculation of the Comfort Zone

The Thermal Neutrality (Tn) model, also known as thermopreference, has been used to calculate the comfort zone, and is based on a generic formula proposed by Auliciems & de Dear. This formula relates the sensation of comfort to the outdoor dry bulb temperature, as follows:
Tn = 17.6 + (Tprom × 0.31)
In which:
Tn = Thermal Neutrality Temperature (thermopreference);
Tprom = Average outdoor dry bulb temperature.
Applying the formula to find the thermal neutrality temperature at the Santiago de Surco station, we can find: [The value of Tn would be provided here based on the specific formula and data inputs].
Tprom = 20.56 °C;
Tn = 17.6 + (20.56 × 0.31).
In which:
Tn = 23.9 °C
Applying the amplitude of the comfort zone with a range of oscillation less than 13 °C: +/− 2.50 °C, the following result is produced:
Tmin comfort: 21.40 °C;
Tmax comfort: 26.40 °C.

4.2. Implementation of the Archicad Software on EcoDesigner Star

To determine the thermal calculation due to the implementation of green walls and vertical gardens, the Archicad software with EcoDesigner was employed. EcoDesigner is an energy analysis tool. Building Information Modeling (BIM) is the holistic process of creating and managing information about a built asset. A BIM model can be used across all building-related disciplines (construction, architecture, structures, electrical and plumbing installations). It can also be used for a Building Energy Model (BEM) to obtain energy efficiency data, as in the case of this study. To use it, parametric information must be preconfiguresd in the BIM model. The BEM can be employed as an interactive tool to achieve feedback between a project and the building’s energy efficiency.

4.3. The Radiation Received by the Walls of the East and West Facades

4.3.1. Radiation Received by the East Facade Walls

Without the green walls, the east facade of the School of Biological Sciences received a total annual solar radiation of 138,152 kWh on its walls. With the green walls, the total annual solar radiation received on the east facade was reduced to 36,172 kWh. This represents a 74% reduction in direct radiation captured through the green walls. In the results obtained from the analysis conducted during key solstices and equinoxes on the east facade, the following was observed (Table 1) (Figure 20).

4.3.2. Radiation Received by the West Facade Walls

Without the green walls, the west facade of the School of Biological Sciences received a total annual solar radiation of 125,229 kWh on its walls. With the green walls, the total annual solar radiation received on the west facade was reduced to 37,420 kWh. This represents a 70% reduction in direct radiation captured through the green walls. In the results obtained from the analysis conducted during key solstices and equinoxes on the west facade, the following was observed (refer to Table 2, Figure 21).

4.4. Thermal Balance of the Green Walls’ Adjacent Areas

The incorporation of the U-values (transmittance values) is taken into consideration for the calculation of the thermal balance in the following way:
Ugreen wall = 0.91 w/m2k;
Uclimbing wall = 1.59 w/m2k;
Uvine wall = 2.01 w/m2k;
In which:
U: Thermal Transmittance Coefficient.
Ugreen wall: Thermal Transmittance Coefficient for wall section containing green wall.
Uclimbing wall: Thermal Transmittance Coefficient for wall section containing climbing plants.
Uvine wall: Thermal Transmittance Coefficient for wall section containing vines.
For the district of Santiago de Surco, located in Lima Metropolitan Area, the comfort zone is in the temperature range between 21.4 °C as a minimum and 26.4 °C as a maximum. This range falls within the pink-colored zone in the graphs below:

4.4.1. Thermal Balance on the East Facade

First Floor
  • 21 March
During the fall equinox, the areas adjacent to the east facade of the School of Biological Sciences, without the green walls, have an average temperature of 28.84 °C. However, after installing the green walls, the average temperature decreases to 24.33 °C, resulting in an average temperature reduction of 4.51 °C. Furthermore, it is evident that without green walls, the adjacent areas experience comfort for 5 h daily. In contrast, with the green walls, this comfort period extends to 24 h daily, representing a 380% increase in the percentage of time spent in a comfortable state. These results demonstrate that the implementation of green walls on the east facade has a significant impact on improving thermal comfort, as it reduces the average temperature and provides a more consistent and comfortable environment throughout the day (Figure 22).
  • 21 June
During the winter solstice, the areas adjacent to the east facade of the School of Biological Sciences, without the green walls, have an average temperature of 23.97 °C. However, after installing the green walls, the average temperature reduces to 23.36 °C, resulting in an average temperature reduction of 0.61 °C. Furthermore, it is evident that without the green walls, the adjacent areas experience comfort for 22 h daily. In contrast, with the green walls, this comfort period remains consistent at 24 h daily, representing a 9.09% increase in the percentage of time spent in a comfortable state. These results show that the implementation of green walls on the east facade has a positive impact on thermal comfort during the winter solstice, as it provides a slight reduction in average temperature and ensures a higher percentage of time spent in a comfortable state throughout the day (Figure 23).
  • 21 December
During the summer solstice, the areas adjacent to the east facade of the School of Biological Sciences, without the green walls, have an average temperature of 26.90 °C. However, after installing the green walls, the average temperature reduces to 23.37 °C, resulting in an average temperature reduction of 3.53 °C. Furthermore, it is evident that without the green walls, the adjacent areas experience comfort for 11 h daily. In contrast, with the green walls, this comfort period increases to 22 h daily, representing a 100.00% increase in the percentage of time spent in a comfortable state. These results demonstrate that the implementation of green walls on the east facade has a significant positive impact on thermal comfort during the summer solstice, as it provides a considerable reduction in average temperature and a substantial increase in the percentage of time spent in a comfortable state throughout the day (Figure 24 and Figure 25).
Second Floor
  • 21 March
During the fall equinox, the areas adjacent to the east facade of the School of Biological Sciences, without the green walls, have an average temperature of 28.12 °C. However, after installing the green walls, the average temperature reduces to 24.33 °C, resulting in an average temperature reduction of 3.79 °C. Furthermore, it is evident that without the green walls, the adjacent areas experience comfort for 16 h daily. In contrast, with the green walls, this comfort period extends to 24 h daily, representing a 50.00% increase in the percentage of time spent in a comfortable state. These results demonstrate that the implementation of green walls on the east facade has a significant impact on improving thermal comfort during the fall equinox. It provides a considerable reduction in average temperature and allows for a more extended period of time spent in a comfortable state throughout the day (Figure 26).
  • 21 June
During the winter solstice, the areas adjacent to the east facade of the School of Biological Sciences, without the green walls, have an average temperature of 23.32 °C. However, after installing the green walls, the average temperature slightly reduces to 23.25 °C, resulting in an average temperature reduction of 0.07 °C. Furthermore, it is evident that without the green walls, the adjacent areas experience comfort for 24 h daily. In contrast, with the green walls, this comfort period remains the same at 24 h daily, indicating a 0.00% change in the percentage of time spent in a comfortable state. These results show that the implementation of green walls on the east facade has a minor impact on thermal comfort during the winter solstice. While there is a slight reduction in the average temperature, the comfort level remains consistent, with no significant improvement in the percentage of time spent in a comfortable state throughout the day (Figure 27).
  • 21 December
During the summer solstice, the areas adjacent to the east facade of the School of Biological Sciences have an average temperature of 26.27 °C without green walls. However, after installing the green walls, the average temperature decreases to 23.08 °C, resulting in an average temperature reduction of 3.19 °C. Additionally, it is evident that without the green walls, the adjacent areas experience comfort for 14 h daily, whereas with the green walls, this comfort period increases to 23 h daily, representing a 64.28% increase in the percentage of time spent in a comfortable state. The implementation of green walls on the east facade has a significant impact on improving thermal comfort during the summer solstice, providing a substantial reduction in average temperature and an extended period of time spent in a comfortable state throughout the day (Figure 28 and Figure 29).
Third Floor
  • 21 March
During the fall equinox, the areas adjacent to the east facade of the School of Biological Sciences, without the green walls, have an average temperature of 28.52 °C. However, after installing the green walls, the average temperature reduces to 24.41 °C, resulting in an average temperature reduction of 4.11 °C. Furthermore, it is evident that without the green walls, the adjacent areas experience comfort for 10 h daily. In contrast, with the green walls, this comfort period increases to 24 h daily, representing a 140.00% increase in the percentage of time spent in a comfortable state. These results demonstrate that the implementation of green walls on the east facade has a significant impact on improving thermal comfort during the fall equinox. It provides a considerable reduction in average temperature and allows for a more extended period of time spent in a comfortable state throughout the day (Figure 30).
  • 21 June
During the winter solstice, the areas adjacent to the east facade of the School of Biological Sciences, without the green walls, have an average temperature of 23.87 °C. However, after installing the green walls, the average temperature remains the same at 23.87 °C, resulting in no reduction in the average temperature. Furthermore, it is evident that without the green walls, the adjacent areas experience comfort for 20 h daily. In contrast, with the green walls, this comfort period increases to 22 h daily, representing a 10.00% increase in the percentage of time spent in a comfortable state. These results indicate that the implementation of green walls on the east facade has a limited impact on thermal comfort during the winter solstice, as the average temperature remains unchanged, but it slightly extends the duration of comfort throughout the day (Figure 31).
  • 21 December
During the summer solstice, the areas adjacent to the east facade of the School of Biological Sciences, without the green walls, have an average temperature of 26.73 °C. However, after installing the green walls, the average temperature reduces to 23.21 °C, resulting in an average temperature reduction of 3.52 °C. Furthermore, it is evident that without the green walls, the adjacent areas experience comfort for 12 h daily. In contrast, with the green walls, this comfort period increases to 22 h daily, representing an 83.33% increase in the percentage of time spent in a comfortable state. These results demonstrate that the implementation of green walls on the east facade significantly improves thermal comfort during the summer solstice, as it leads to a notable reduction in average temperature and a more extended period of time spent in a comfortable state throughout the day (Figure 32 and Figure 33).
Fourth Floor
  • 21 March
During the autumn equinox, the areas adjacent to the east facade of the School of Biological Sciences, without the green walls, have an average temperature of 28.59 °C. However, after installing the green walls, the average temperature reduces to 24.37 °C, resulting in an average temperature reduction of 4.22 °C. Furthermore, it is evident that without the green walls, the adjacent areas experience comfort for 10 h daily. In contrast, with the green walls, this comfort period extends to 24 h daily, representing a 140.00% increase in the percentage of time spent in a comfortable state. These results indicate that the implementation of green walls on the east facade significantly improves thermal comfort during the autumn equinox, as it leads to a considerable reduction in average temperature and a more extended period of time spent in a comfortable state throughout the day (Figure 34).
  • 21 June
The adjacent areas to the east facade of the School of Biological Sciences without green walls on the winter solstice have an average temperature of 24.12 °C, while with green walls, the average temperature is 23.81 °C, resulting in a reduction of 0.31 °C in average temperature. Additionally, it is evident that without green walls, comfort is achieved for 20 h daily, whereas with green walls, this figures increases to 24 h daily, representing a 20.00% increment in comfort level (Figure 35).
  • 21 December
The adjacent areas to the east facade of the School of Biological Sciences without green walls on the summer solstice have an average temperature of 26.72 °C, while with green walls, the average temperature is reduced to 23.22 °C, resulting in a temperature reduction of 3.50 °C. Additionally, it is evident that without green walls, comfort is achieved for 12 h daily, whereas with green walls, comfort is extended to 22 h daily, representing a 83.33% increase in comfort state (Figure 36, Figure 37, Figure 38 and Figure 39).

4.4.2. Thermal Balance on the West Facade

First Floor
  • 21 March
The areas adjacent to the west facade of the School of Biological Sciences, without green walls, experience an average temperature of 29.12 °C during the autumn equinox. After installing green walls, the average temperature decreased to 24.40 °C, resulting in a temperature reduction of 4.72 °C. Furthermore, it is evident that without the green walls, the comfort level is maintained for 4 h per day, whereas with the green walls, this increases to 24 h per day, representing a 500.00% increase in comfort hours (Figure 40).
  • 21 June
The areas adjacent to the west facade of the School of Biological Sciences, without green walls, experience an average temperature of 24.32 °C during the winter solstice. After installing green walls, the average temperature slightly increased to 24.42 °C, resulting in a temperature increment of 0.10 °C. Furthermore, it is evident that without the green walls, the comfort level is achieved for 20 h per day, and with the green walls this figures remains the same, at 20 h per day, representing a 0.00% increase in comfort hours (Figure 41).
  • 21 December
The areas adjacent to the west facade of the School of Biological Sciences, without green walls, experience an average temperature of 27.67 °C during the summer solstice. After installing green walls, the average temperature decreases to 23.68 °C, resulting in a temperature reduction of 3.99 °C. Furthermore, it is evident that without the green walls, the comfort level is achieved for 7 h per day, whereas with the green walls this figures increases to 24 h per day, representing a 242.85% increase in comfort hours (Figure 42 and Figure 43).
Second Floor
  • 21 March
The areas adjacent to the west facade of the School of Biological Sciences, without green walls, experience an average temperature of 28.42 °C during the autumn equinox. After installing green walls, the average temperature decreases to 24.22 °C, resulting in a temperature reduction of 4.20 °C. Furthermore, it is evident that without the green walls, the comfort level is maintained for 6 h per day, whereas with the green walls, this figures increases to 24 h per day, representing a 300.00% increase in comfort hours (Figure 44).
  • 21 June
The areas adjacent to the west facade of the School of Biological Sciences, without green walls, experience an average temperature of 23.76 °C during the winter solstice. After installing green walls, the average temperature decreases to 23.38 °C, resulting in a temperature reduction of 0.38 °C. Moreover, without green walls, the comfort level is achieved for 24 h per day, and with green walls, this figures remains the same at 24 h per day, representing a 0.00% increase in comfort hours (Figure 45).
  • 21 December
The areas adjacent to the west facade of the School of Biological Sciences, without green walls, experience an average temperature of 26.94 °C during the summer solstice. After installing green walls, the average temperature decreases to 23.07 °C, resulting in a temperature reduction of 3.87 °C. Moreover, without green walls, the comfort level is achieved for 9 h per day, while with green walls, this figures increases to 22 h per day, representing a 144.44% increase in comfort hours (Figure 46 and Figure 47).
Third Floor
  • 21 March
The areas adjacent to the west facade of the School of Biological Sciences, without green walls, experience an average temperature of 28.70 °C during the autumn equinox. After installing green walls, the average temperature decreases to 24.39 °C, resulting in a temperature reduction of 4.31 °C. Moreover, without green walls, the comfort level is achieved for 5 h per day, whereas with green walls, this figures increases to 24 h per day, representing a 380% increase in comfort hours (Figure 48).
  • 21 June
The areas adjacent to the west facade of the School of Biological Sciences, without green walls, experience an average temperature of 23.54 °C during the winter solstice. After installing green walls, the average temperature increases to 23.66 °C, resulting in a temperature increment of 0.12 °C. Additionally, without green walls, the comfort level is achieved for 24 h per day, and with green walls, this figures remains the same at 24 h per day, representing a 0.00% increase in comfort hours (Figure 49).
  • 21 December
The areas adjacent to the west facade of the School of Biological Sciences, without green walls, experience an average temperature of 27.02 °C during the summer solstice. After installing green walls, the average temperature decreases to 23.59 °C, resulting in a temperature reduction of 3.43 °C. Additionally, without green walls, the comfort level is achieved for 8 h per day, while with green walls, this figures increases to 24 h per day, representing a 200.00% increase in comfort hours (Figure 50 and Figure 51).
Fourth Floor
  • 21 March
The areas adjacent to the west facade of the School of Biological Sciences, without green walls, experience an average temperature of 28.59 °C during the autumn equinox. After installing green walls, the average temperature decreases to 24.43 °C, resulting in a temperature reduction of 4.16 °C. Moreover, without green walls, the comfort level is achieved for 5 h per day, whereas with green walls, this figures increases to 24 h per day, representing a 380.00% increase in comfort hours (Figure 52).
  • 21 June
The areas adjacent to the west facade of the School of Biological Sciences, without green walls, experience an average temperature of 24.26 °C during the winter solstice. After installing green walls, the average temperature decreases to 23.63 °C, resulting in a temperature reduction of 0.63 °C. Moreover, without green walls, the comfort level is achieved for 20 h per day, while with green walls, this figures remains the same at 24 h per day, representing a 20.00% increase in comfort hours (Figure 53).
  • 21 December
The areas adjacent to the west facade of the School of Biological Sciences, without green walls, experience an average temperature of 27.42 °C during the summer solstice. After installing green walls, the average temperature decreases to 23.32 °C, resulting in a temperature reduction of 4.10 °C. Moreover, without green walls, the comfort level is achieved for 8 h per day, while with green walls, this figures increases to 23 h per day, representing a 187.50% increase in comfort hours (Figure 54 and Figure 55).
From the conducted thermal balance study, it is evident that there is a percentage increase in the number of hours during which the spaces are comfortable on both the east and west facades. This observation is presented in the following table (Figure 56, Figure 57, Figure 58, Figure 59 and Figure 60).
In the thermal simulation of the green walls and climbing plant wall, a temperature reduction is observed, resulting in an interior environment that achieves a state of comfort. There is a temperature variation of 26 °C on the exterior and 20 °C on the interior of the building. Additionally, a variation in energy flux is observed, ranging from 0.00 W/m2K to 22.40 W/m2K (Table 3 and Table 4).

4.5. Absorption of CO2 and Production of Fresh Air by Increasing Green Areas

The increase in green areas resulting from the implementation of green walls on the Facade of Biological Sciences provides consistent results in the absorption of CO2 and production of clean air. These results were determined using conversion factors provided by the World Health Organization (WHO), where
a = 2.3 kg · b for a year,
In which:
a = Annually absorbed CO2 (kg for a year);
b = Green area studied, expressed in square meters.
c = 1.7 kg · b for a year,
In which:
c = Annually produced fresh air (kg. year);
b = Green area analyzed, expressed in square meters.
Hence, when calculating the results using these factors, the following was obtained (Table 5, Table 6 and Table 7):

5. Discussion

Based on the conducted research, it has been conclusively demonstrated that the incorporation of green walls on both facades has a positive impact regardless of the winter and summer seasons. In winter, it helps reduce the heating demand by decreasing the heat transfer coefficient. On the other hand, during summer, it achieves a reduction in surface temperatures inside the building.
Furthermore, the installation of green walls and vertical gardens helps prevent significant temperature fluctuations and high maximum temperatures on the exterior surface of the building. This results in a reduction in the stress on construction materials due to temperature changes. It also partially reduces the cooling of the facade during summer nights, leading to higher surface temperatures during nighttime.
However, it is essential to mention that during the transitional period between seasons, the implementation of green walls has a less significant effect. This is because the temperature difference between the interior and exterior is low compared to the summer and winter months, and the heat flux density is not as affected at that time.
The green walls implemented in this research are part of a plan for the Ecological University Project at the Ricardo Palma University located in Santiago de Surco, Lima, Peru. The overall proposal includes the implementation of sunshades to avoid the use of air conditioning equipment entirely, as the adjacent spaces achieve thermal comfort throughout the year due to the implementation of green walls. This, together with green walls, aims to ensure proper comfort (Table 8).
When comparing the data on the reduction in comfort in the other two buildings, it can be seen that the effect is significantly higher than in the other two faculties. This is due to the implementation of low-water-consuming plants and climbing species. To use climbing plants in a specific way, parameters and reference values must be defined; for example, planning tools are needed to compare climbing plants easily and estimate their effects [34].
Undoubtedly, the vertical garden plays a fundamental role in reducing the temperature of the structures, maintaining an average difference of approximately 4 °C compared to brick. It acts as a natural thermal insulator, protecting the construction material from radiation. This thermal difference is more evident during the afternoon, where variations of up to 7 °C can be reached between the temperature recorded on the brick and the temperature in the vertical garden. During the dry season, the importance of the vertical garden intensifies even more, as temperature differences of up to 2 °C are observed for the same hour but in different seasons. This is due to the vertical garden reflecting a greater amount of radiation in those specific months [49].Green wall systems, as key technologies in ecological construction, offer a variety of benefits to urban spaces [50].
Furthermore, the research is part of a comprehensive proposal that includes innovative devices such as photovoltaic systems and solar protectors for different climatic conditions, which amplifies the benefits of green technologies [51,52].
The novelty of this work lies in the implementation of a green wall system and a vertical garden using a drip irrigation system and five plant species. Both systems have allowed for an increase in the comfort standard in the spaces adjacent to the east and west facades. Plants such as Aptenia cordifolia or Rocío and Soleirolii soleirolia, species resistant to high temperatures, were used, which can effectively reduce pollutants. Additionally, the physical characteristics of these two plants naturally enable them to further reduce contaminants.

6. Conclusions

As part of the Eco-Friendly University Project at URP, green walls were implemented in the School of Biological Sciences. These green walls were installed on the east and west facades of the building, with the purpose of controlling incident solar radiation and improving the thermal conditions of the spaces near the treated facades.
For the east and west facades, the proposed design divided the building walls into four floors and three sections, each with a different type of green wall. At the bottom, climbers were planted, which grow from the base and adhere to the wall. The middle section features green walls constructed with textile bags and soil, designed with vegetation that requires low water consumption and is resistant to solar radiation. At the top, climbers were placed, guided properly to grow downwards until reaching the boundary of the middle area design.
The design was carried out similarly for the west facade. The selected facades for intervention receive high solar incidence throughout the year, which increases the wall’s temperature and consequently heats the interior spaces. Green walls not only proved to offer aesthetic advantages, but they also reduced wall heating, decreasing the temperature increase in adjacent spaces and reducing the use of artificial ventilation systems, achieving energy and economic savings, decreasing CO2 emissions, and producing oxygen. Through thermal analysis, quantitative data have been obtained for both the state without green walls and the thermal improvements achieved with their implementation.

Author Contributions

Conceptualization, A.G.; methodology, D.E.; revision, P.M.; software, S.V.; validation, V.R. All authors have read and agreed to the published version of the manuscript.

Funding

This research received no external funding.

Data Availability Statement

All data are in the manuscript.

Conflicts of Interest

The authors declare no conflict of interest.

References

  1. Shushunova, N.; Korol, E.; Luzay, E.; Shafieva, D. Impact of the Innovative Green Wall Modular Systems on the Urban Air. Sustainability 2023, 15, 9732. [Google Scholar] [CrossRef]
  2. Manisalidis, I.; Stavropoulou, E.; Stavropoulos, A.; Bezirtzoglou, E. Impactos ambientales y de salud de la contaminación del aire: Una revisión. Frente Public Health 2020, 8, 14. [Google Scholar] [CrossRef] [PubMed]
  3. Ramanathan, V.; Feng, Y. Contaminación del aire, gases de efecto invernadero y cambio climático: Perspectivas mundiales y regionales. Atmósfera Reinar 2009, 43, 37–50. [Google Scholar]
  4. Stollberg, M.; von Birgelen, A. Las plantas de la pared vivan se ven afectadas por la temperatura y la afectan: Cómo (no) medir la temperatura de las plantas en un experimento de pared viva. Sustentabilidad 2023, 15, 11672. [Google Scholar] [CrossRef]
  5. Elia, M.; Pilar, C.; Morán, R. Muros verdes para las condiciones ambientales de la región nordeste argentina green walls for environmental conditions of the northeast argentina región. Arquitecno 2019, 14, 50–53. [Google Scholar] [CrossRef][Green Version]
  6. Zheng, Y.; Keeffe, G.; Mariotti, J. Nature-Based Solutions for Cooling in High-Density Neighbourhoods in Shenzhen: A Case Study of Baishizhou. Sustainability 2023, 15, 5509. [Google Scholar] [CrossRef]
  7. Perini, K.; Ottelé, M. Diseño de fachadas verdes y sistemas de paredes vivas para construcciones sostenibles. Ent. J. Des. Nat. Ecodinámica 2014, 9, 31–46. [Google Scholar]
  8. Talhinhas, P.; Ferreira, J.C.; Ferreira, V.; Soares, A.L.; Espírito-Santo, D.; Paço, T.A.d. In the Search for Sustainable Vertical Green Systems: An Innovative Low-Cost Indirect Green Façade Structure Using Portuguese Native Ivies and Cork. Sustainability 2023, 15, 5446. [Google Scholar] [CrossRef]
  9. Blanco, I.; Vox, G.; Schettini, E.; Russo, G. Evaluación de las cargas ambientales de fachadas verdes en edificios: Una comparación con paredes exteriores sin vegetación. J. Medio Ambiente Adm. 2021, 294, 112927. [Google Scholar]
  10. Manso, M.; Castro-Gomes, J. Green wall systems: A review of their characteristics. Renew. Sustain. Energy Rev. 2015, 41, 863–871. [Google Scholar] [CrossRef]
  11. Jim, C.Y. Thermal performance of climber greenwalls: Effects of solar irradiance and orientation. Appl. Energy 2015, 154, 631–643. [Google Scholar] [CrossRef]
  12. Instituto de Estadística e Informática. 2017. Available online: https://www.inei.gob.pe/media/MenuRecursivo/publicaciones_digitales/Est/Lib1140/cap10.pdf (accessed on 10 April 2020).
  13. USAID. Greenhouse Gas Emissions in Peru. 2012. Available online: https://www.climatelinks.org/sites/default/files/asset/document/GHG%20Emissions%20Factsheet%20Peru_v2_SC_11_02_15_edited_ref08-18-2016_Clean.pdf (accessed on 23 August 2023).
  14. Gao, Y.; Farrokhirad, E.; Pitts, A. The Impact of Orientation on Living Wall Façade Temperature: Manchester Case Study. Sustainability 2023, 15, 11109. [Google Scholar] [CrossRef]
  15. Bornschlegl, S.; Krause, P.; Kropp, C.; Leistner, P. Análisis de las funciones microclimáticas y de mejora de la biodiversidad de un prototipo de pared viva para una convivencia más que humana en las ciudades. Edificios 2023, 13, 1393. [Google Scholar] [CrossRef]
  16. Esenarro, D.; Raymundo, V.; Mancilla, D.; Becerra, P.; Loja, M.; Dávila, S. Preservation of Flora and Fauna in an Environmental Ecological Interpretation Center-Loreto–Peru. In ICIT 2022: Proceedings of 7th ASRES International Conference on Intelligent Technologies; Lecture Notes in Networks and Systems; Arya, K.V., Tripathi, V.K., Rodriguez, C., Yusuf, E., Eds.; Springer: Singapore, 2023; Volume 685. [Google Scholar] [CrossRef]
  17. Gómez, N.J.; Velázquez, G.A. Asociación entre los espacios verdes públicos y la calidad de vida en el municipio de Santa Fe, Argentina. Cuad. Geogr. Rev. Colomb. Geogr. 2018, 27, 164–179. [Google Scholar] [CrossRef]
  18. Ordóñez López, E.E.; Pérez Sánchez, M.M. Comparación del desempeño térmico de techos verdes y techos blancos mediante técnicas IR. Acta Univ. 2015, 25, 11–19. [Google Scholar] [CrossRef][Green Version]
  19. Proul, J.; Wan, M.; Mandel, B.; Rosenfeld, A. Economic comparison of white, green and black flat roofs in the United States. Energy Build. 2014, 71, 20–27. [Google Scholar] [CrossRef]
  20. Chan, A.L.S.; Chow, T.T. Energy and economic performance of green roof system under future climatic conditions in Hong Kong. Enegy Build. 2013, 64, 182–198. [Google Scholar] [CrossRef]
  21. Urbano, B.; de López, M. Naturación urbana, un desafío a la urbanización. Rev. Chapingo Ser. Cienc. For. Ambiente 2013, 19, 225–235. [Google Scholar] [CrossRef]
  22. Peñafiel Pazmiño, M.E.; Vallejo López, A.B. Educación Ambiental en las Universidades, Retos y Desafíos Ambientales, Revista DELOS Desarrollo Local Sostenible. 2018. Available online: https://www.eumed.net/rev/delos/32/magaly.html (accessed on 23 August 2023).
  23. Pulido, V.; Olivera, E. Aportes Pedagógicos a la Educación Ambiental: Una Perspectiva Teórica. Rev. Investig. Altoandinas 2018, 20, 333–346. [Google Scholar]
  24. Ministerio del Ambiente. Inventario Nacional de Gases de Efecto Invernadero, 2012. 2022. Available online: https://infocarbono.minam.gob.pe/inventarios-nacionales-gei/inventario-nacional-de-gases-efectos-invernaderos-2010-2/ (accessed on 23 August 2023).
  25. Ferrelli, F.; Piccolo, M.C. Propuesta sostenible para mitigar los efectos climáticos adversos en una ciudad costera de Argentina. An. Geogr. Univ. Complut. 2016, 36, 281–306. [Google Scholar] [CrossRef]
  26. Ministerio de Educación. Los Factores que Limitan la Transición a la Educación Superior Situación Actual y Recomendaciones de Política Pública. 2021. Available online: https://repositorio.minedu.gob.pe/bitstream/handle/20.500.12799/7741/Los%20factores%20que%20limitan%20la%20transici%C3%B3n%20a%20la%20educaci%C3%B3n%20superior%20situaci%C3%B3n%20actual%20y%20recomendaciones%20de%20pol%C3%ADtica%20p%C3%BAblica.pdf?sequence=1&isAllowed=y (accessed on 23 August 2023).
  27. Villanueva, J.; Ranfla, A.; Quintanilla, A. Isla de Calor Urbana: Modelación Dinámica y Evaluación de medidas de Mitigación en Ciudades de Clima árido Extremo. Información Tecnológica 2013, 24, 25–26. [Google Scholar] [CrossRef]
  28. Ren, J.; Shi, K.; Li, Z.; Kong, X.; Zhou, H. A Review on the Impacts of Urban Heat Islands on Outdoor Thermal Comfort. Buildings 2023, 13, 1368. [Google Scholar] [CrossRef]
  29. Guo, T.; Zhao, Y.; Yang, J.; Zhong, Z.; Ji, K.; Zhong, Z.; Luo, X. Effects of Tree Arrangement and Leaf Area Index on the Thermal Comfort of Outdoor Children’s Activity Space in Hot-Humid Areas. Buildings 2023, 13, 214. [Google Scholar] [CrossRef]
  30. Pichlhofer, A.; Korjenic, A.; Sulejmanovski, A.; Streit, E. Influencia del enverdecimiento de fachadas con hiedra en el rendimiento térmico de las paredes de mampostería. Sustentabilidad 2023, 15, 9546. [Google Scholar] [CrossRef]
  31. Ruiz-Valero, L.; Arranz, B.; Faxas-Guzmán, J.; Flores-Sasso, V.; Medina-Lagrange, O.; Ferreira, J. Monitoreo de un Sistema de Muro Vivo en Santo Domingo, República Dominicana, como Estrategia para Reducir la Isla de Calor Urbano. Edificios 2023, 13, 1222. [Google Scholar] [CrossRef]
  32. Mohajerani, A.; Bakaric, J.; Jeffrey-Bailey, T. El efecto isla de calor urbano, sus causas y mitigación, con referencia a las propiedades térmicas del hormigón asfáltico. J. Medio Ambiente Adm. 2017, 197, 522–538. [Google Scholar]
  33. Wrase, I. Un análisis de la sostenibilidad en bienes raíces en anuncios de trabajo y perfiles personales en Suiza. Sustentabilidad 2023, 15, 9789. [Google Scholar] [CrossRef]
  34. Battisti, F. SDGs and ESG Criteria in Housing: Defining Local Evaluation Criteria and Indicators for Verifying Project Sustainability Using Florence Metropolitan Area as a Case Study. Sustainability 2023, 15, 9372. [Google Scholar] [CrossRef]
  35. Konstantinavičienė, J.; Vitunskienė, V. Definición y clasificación del potencial de la biomasa maderera forestal en términos de desarrollo sostenible: Una revisión. Sostenibilidad 2023, 15, 9311. [Google Scholar] [CrossRef]
  36. Balany, F.; Ng, A.W.; Muttil, N.; Muthukumaran, S.; Wong, M.S. Green Infrastructure as an Urban Heat Island Mitigation Strategy—A Review. Water 2020, 12, 3577. [Google Scholar] [CrossRef]
  37. Anghel, A.A.; Giurea, D.; Milincu, C.; Mohora, I.; Hapenciuc, A.D.P.; Frigura-Iliasa, F.M. “MODGREW” Intelligent Green Walls For Public Areas. In Proceedings of the 2019 International Conference on ENERGY and ENVIRONMENT (CIEM), Timisoara, Romania, 17–18 October 2019; pp. 133–137. [Google Scholar] [CrossRef]
  38. Song, Y.-L.; Darani, K.S.; Khdair, A.I.; Abu-Rumman, G.; Kalbasi, R. Una revisión de los métodos convencionales de enfriamiento pasivo aplicables a climas áridos y cálidos considerando el costo económico y el análisis de eficiencia en ciudades basadas en recursos. Energy Rep. 2021, 7, 2784–2820. [Google Scholar] [CrossRef]
  39. Esenarro, K.; Malpartida, L.; Silvana, V.R.; Morales, W. Use of Renewable Energies Applied in Design Strategies for User Comfort in a House in Iquitos-Belen. In Proceedings of the 2022 11th International Conference on Power Science and Engineering (ICPSE), Eskisehir, Turkey, 23–25 September 2022; pp. 135–141. [Google Scholar] [CrossRef]
  40. Almodóvar-Melendo, J.-M.; Rodríguez-Cunill, I.; Cabeza-Lainez, J. The Search for Solar Architecture in Asia in the Works of the Architect Antonin Raymond: A Protracted Balance between Culture and Nature. Buildings 2022, 12, 1514. [Google Scholar] [CrossRef]
  41. Amirifard, F.; Sharif, S.A.; Nasiri, F. Aplicación de medidas pasivas para la conservación de energía en edificios: Una revisión. Adv. Construir. Res. Energía 2018, 13, 282–315. [Google Scholar]
  42. Watson, D. Diseño Bioclimático. En Entornos Construidos Sostenibles; Loftness, V., Haase, D., Eds.; Springer: New York, NY, USA, 2013. [Google Scholar]
  43. Manzano-Agugliaro, F.; Gil Montoya, F.; Sabio-Ortega, A.; García-Cruz, A. Revisión de estrategias de arquitectura bioclimática para la consecución del confort térmico. Renovar. Sostener. Energy Rev. 2015, 49, 736–755. [Google Scholar]
  44. Košir, M. Adaptabilidad Climática de los Edificios: Diseño Bioclimático a la Luz del Cambio Climático; Springer International Publishing: Cham, Switzerland, 2019. [Google Scholar]
  45. Prozuments, A.; Borodinecs, A.; Zaharovs, S.; Banionis, K.; Monstvilas, E.; Norvaišienė, R. Evaluación de la reducción del consumo de energía térmica en edificios renovados en Letonia y Lituania. Edificios 2023, 13, 1916. [Google Scholar] [CrossRef]
  46. Rao, X.; Qi, F.; Zhang, X.; Mao, Z. Evaluation Method on Energy-Efficient Retrofitting of Wooden Walls of Chinese Traditional Dwelling—A Case Study of Rendetang in Jinhua. Buildings 2022, 12, 1017. [Google Scholar] [CrossRef]
  47. Esenarro, D.; Chicche, P.; Chichipe, V.; Vilchez, A.; Cobeñas, P.; Raymundo, V. Bioclimatic Criteria for a Guest House in the District of Canta–Lima. In Proceedings of the 2022 11th International Conference on Power Science and Engineering (ICPSE), Eskisehir, Turkey, 23–25 September 2022; pp. 1–9. [Google Scholar] [CrossRef]
  48. Whaether Spark. El Clima y el Tiempo Promedio en todo el año en Lima. 2023. Available online: https://es.weatherspark.com/y/20441/Clima-promedio-en-Lima-Per%C3%BA-durante-todo-el-a%C3%B1o#google_vignette (accessed on 23 August 2023).
  49. Verdinnova. Jardines Verticales, Comofunciona. Available online: https://www.verdinnova.com/servicios/jardines-verticales (accessed on 23 August 2023).
  50. Shushunova, N.; Korol, E.; Luzay, E.; Shafieva, D.; Bevilacqua, P. Garantizar la seguridad de los edificios mediante la reducción del impacto del ruido mediante el uso de sistemas de muros verdes. Energías 2022, 15, 8097. [Google Scholar]
  51. Bevilacqua, P.; Morabito, A.; Bruno, R.; Ferraro, V.; Arcuri, N. Comportamientos estacionales de los sistemas de refrigeración fotovoltaica en diferentes condiciones climáticas. J. Limpio Pinchar 2020, 272, 122459. [Google Scholar]
  52. Szyszka, J.; Bevilacqua, P.; Bruno, R. Una pared de trombe innovadora para uso invernal: La pared de trombe de termodiodo. Energías 2020, 13, 2188. [Google Scholar]
Figure 1. National GHG Record by Sectors in Peru [13].
Figure 1. National GHG Record by Sectors in Peru [13].
Buildings 13 02301 g001
Figure 2. (a) Map of the Americas; (b) map of Peru; (c) map of the Lima region; (d) map of the Surco district.
Figure 2. (a) Map of the Americas; (b) map of Peru; (c) map of the Lima region; (d) map of the Surco district.
Buildings 13 02301 g002
Figure 3. Temperature diagram of Santiago de Surco district [48].
Figure 3. Temperature diagram of Santiago de Surco district [48].
Buildings 13 02301 g003
Figure 4. Solar energy diagram of Santiago de Surco district [48].
Figure 4. Solar energy diagram of Santiago de Surco district [48].
Buildings 13 02301 g004
Figure 5. Rainfall diagram of Santiago de Surco district [48].
Figure 5. Rainfall diagram of Santiago de Surco district [48].
Buildings 13 02301 g005
Figure 6. Wind speed diagram of Santiago de Surco district [48].
Figure 6. Wind speed diagram of Santiago de Surco district [48].
Buildings 13 02301 g006
Figure 7. Psychrometric chart for Santiago de Surco district. Note: adapted from EM 110 Standard. Thermal and lighting comfort.
Figure 7. Psychrometric chart for Santiago de Surco district. Note: adapted from EM 110 Standard. Thermal and lighting comfort.
Buildings 13 02301 g007
Figure 8. (a) Map of Santiago de Surco district in Lima, Peru; (b) location of the School of Biological Sciences in the Ricardo Palma University campus.
Figure 8. (a) Map of Santiago de Surco district in Lima, Peru; (b) location of the School of Biological Sciences in the Ricardo Palma University campus.
Buildings 13 02301 g008
Figure 9. Faculty of Biological Sciences architectural plan.
Figure 9. Faculty of Biological Sciences architectural plan.
Buildings 13 02301 g009
Figure 10. (a) Green wall on west façade; (b) green wall on east facade.
Figure 10. (a) Green wall on west façade; (b) green wall on east facade.
Buildings 13 02301 g010
Figure 11. (a) Rhoeo; (b) Money Plant; (c) Bridal Veil; (d) Baby’s Tears.
Figure 11. (a) Rhoeo; (b) Money Plant; (c) Bridal Veil; (d) Baby’s Tears.
Buildings 13 02301 g011
Figure 12. (a) Rhodeo; (b) Portalucam; (c) Bridal Veil; (d) Baby’s Tears.
Figure 12. (a) Rhodeo; (b) Portalucam; (c) Bridal Veil; (d) Baby’s Tears.
Buildings 13 02301 g012
Figure 13. Climbing plants in the Faculty of Biological Sciences stairs.
Figure 13. Climbing plants in the Faculty of Biological Sciences stairs.
Buildings 13 02301 g013
Figure 14. Applied green wall system, reprinted with permission from Ref. [49]. 2023, Verdinova.
Figure 14. Applied green wall system, reprinted with permission from Ref. [49]. 2023, Verdinova.
Buildings 13 02301 g014
Figure 15. (a) East facade of the School of Biological Sciences in July 2022, during intervention. (b) East facade of the School of Biological Sciences in August 2022, during planting. (c) East facade of the School of Biological Sciences in October 2022, showing the completed wall. (d) East facade of the School of Biological Sciences in March 2023, showing the growth of climbing plants.
Figure 15. (a) East facade of the School of Biological Sciences in July 2022, during intervention. (b) East facade of the School of Biological Sciences in August 2022, during planting. (c) East facade of the School of Biological Sciences in October 2022, showing the completed wall. (d) East facade of the School of Biological Sciences in March 2023, showing the growth of climbing plants.
Buildings 13 02301 g015
Figure 16. (a) West facade of the School of Biological Sciences in November 2022: the beginning of the construction works on the facade. (b) West facade of the School of Biological Sciences in December 2022: placement of metal posts for supporting the green wall. (c) West facade of the School of Biological Sciences in January 2023: installation of the geomembrane and textile mesh for later planting. (d) West facade of the School of Biological Sciences in January 2023: installation of the geomembrane and textile mesh for later planting.
Figure 16. (a) West facade of the School of Biological Sciences in November 2022: the beginning of the construction works on the facade. (b) West facade of the School of Biological Sciences in December 2022: placement of metal posts for supporting the green wall. (c) West facade of the School of Biological Sciences in January 2023: installation of the geomembrane and textile mesh for later planting. (d) West facade of the School of Biological Sciences in January 2023: installation of the geomembrane and textile mesh for later planting.
Buildings 13 02301 g016
Figure 17. (a) West facade of the School of Biological Sciences in March 2023: works in the final stage. (b) West facade of the School of Biological Sciences in May 2023: completed implementation. (c) West facade of the School of Biological Sciences in May 2023: completed implementation and functioning of the installed lighting.
Figure 17. (a) West facade of the School of Biological Sciences in March 2023: works in the final stage. (b) West facade of the School of Biological Sciences in May 2023: completed implementation. (c) West facade of the School of Biological Sciences in May 2023: completed implementation and functioning of the installed lighting.
Buildings 13 02301 g017
Figure 18. (a) East facade of the School of Biological Sciences without intervention in January 2022. (b) Proposed intervention for the east facade of the School of Biological Sciences.
Figure 18. (a) East facade of the School of Biological Sciences without intervention in January 2022. (b) Proposed intervention for the east facade of the School of Biological Sciences.
Buildings 13 02301 g018
Figure 19. (a) West facade of the School of Biological Sciences without intervention in January 2022. (b) Proposed intervention for the west facade of the School of Biological Sciences.
Figure 19. (a) West facade of the School of Biological Sciences without intervention in January 2022. (b) Proposed intervention for the west facade of the School of Biological Sciences.
Buildings 13 02301 g019
Figure 20. Comparison of results obtained for the east facade of the School of Biological Sciences. (a) Annual solar radiation received on the east facade without green walls. (b) Annual solar radiation received on the east facade with green walls.
Figure 20. Comparison of results obtained for the east facade of the School of Biological Sciences. (a) Annual solar radiation received on the east facade without green walls. (b) Annual solar radiation received on the east facade with green walls.
Buildings 13 02301 g020
Figure 21. Comparison of results obtained on the west facade of the Faculty of Biological. (a) Result of annual radiation obtained on the west facade of the Faculty of Biological Sciences without green walls. (b) Result of annual radiation obtained on the west facade of the Faculty of Biological Sciences with green walls.
Figure 21. Comparison of results obtained on the west facade of the Faculty of Biological. (a) Result of annual radiation obtained on the west facade of the Faculty of Biological Sciences without green walls. (b) Result of annual radiation obtained on the west facade of the Faculty of Biological Sciences with green walls.
Buildings 13 02301 g021
Figure 22. Comparison of results in thermal balance: (a) thermal balance result in adjacent areas of the east facade without green walls on the first floor on 21 March. (b) Thermal balance result in adjacent areas of the east facade with green walls on the first floor on 21 March.
Figure 22. Comparison of results in thermal balance: (a) thermal balance result in adjacent areas of the east facade without green walls on the first floor on 21 March. (b) Thermal balance result in adjacent areas of the east facade with green walls on the first floor on 21 March.
Buildings 13 02301 g022
Figure 23. Comparison of results in thermal balance: (a) thermal balance result in adjacent areas of the east facade without green walls on the first floor on 21 June. (b) Thermal balance result in adjacent areas of the east facade with green walls on the first floor on 21 June.
Figure 23. Comparison of results in thermal balance: (a) thermal balance result in adjacent areas of the east facade without green walls on the first floor on 21 June. (b) Thermal balance result in adjacent areas of the east facade with green walls on the first floor on 21 June.
Buildings 13 02301 g023
Figure 24. Comparison of results in thermal balance: (a) thermal balance result in adjacent areas of the east facade without green walls on the first floor on 21 December. (b) Thermal balance result in adjacent areas of the east facade with green walls on the first floor on 21 December.
Figure 24. Comparison of results in thermal balance: (a) thermal balance result in adjacent areas of the east facade without green walls on the first floor on 21 December. (b) Thermal balance result in adjacent areas of the east facade with green walls on the first floor on 21 December.
Buildings 13 02301 g024
Figure 25. Building Energy Model simplified—thermal zones analysis and the identification of the thermal block of the first floor towards the east side of the building for analysis.
Figure 25. Building Energy Model simplified—thermal zones analysis and the identification of the thermal block of the first floor towards the east side of the building for analysis.
Buildings 13 02301 g025
Figure 26. Comparison of results in thermal balance: (a) thermal balance result in adjacent areas of the east facade without green walls on the second floor on 21 March. (b) Thermal balance result in adjacent areas of the east facade with green walls on the second floor on 21 March.
Figure 26. Comparison of results in thermal balance: (a) thermal balance result in adjacent areas of the east facade without green walls on the second floor on 21 March. (b) Thermal balance result in adjacent areas of the east facade with green walls on the second floor on 21 March.
Buildings 13 02301 g026
Figure 27. Comparison of results in thermal balance: (a) thermal balance result in adjacent areas of the east facade without green walls on the second floor on 21 June. (b) Thermal balance result in adjacent areas of the east facade with green walls on the second floor on 21 June.
Figure 27. Comparison of results in thermal balance: (a) thermal balance result in adjacent areas of the east facade without green walls on the second floor on 21 June. (b) Thermal balance result in adjacent areas of the east facade with green walls on the second floor on 21 June.
Buildings 13 02301 g027
Figure 28. Comparison of results in thermal balance: (a) thermal balance result in adjacent areas of the east facade without green walls on the second floor on 21 December. (b) Thermal balance result in adjacent areas of the east facade with green walls on the second floor on 21 December.
Figure 28. Comparison of results in thermal balance: (a) thermal balance result in adjacent areas of the east facade without green walls on the second floor on 21 December. (b) Thermal balance result in adjacent areas of the east facade with green walls on the second floor on 21 December.
Buildings 13 02301 g028
Figure 29. Building Energy Model simplified—thermal zones analysis and the identification of the thermal block of the second floor towards the east side of the building for analysis.
Figure 29. Building Energy Model simplified—thermal zones analysis and the identification of the thermal block of the second floor towards the east side of the building for analysis.
Buildings 13 02301 g029
Figure 30. Comparison of results in thermal balance: (a) thermal balance result in adjacent areas of the east facade without green walls on the third floor on 21 March. (b) Thermal balance result in adjacent areas of the east facade with green walls on the third floor on 21 March.
Figure 30. Comparison of results in thermal balance: (a) thermal balance result in adjacent areas of the east facade without green walls on the third floor on 21 March. (b) Thermal balance result in adjacent areas of the east facade with green walls on the third floor on 21 March.
Buildings 13 02301 g030
Figure 31. Comparison of results in thermal balance: (a) thermal balance result in adjacent areas of the east facade without green walls on the third floor on 21 June. (b) Thermal balance result in adjacent areas of the east facade with green walls on the third floor on 21 June.
Figure 31. Comparison of results in thermal balance: (a) thermal balance result in adjacent areas of the east facade without green walls on the third floor on 21 June. (b) Thermal balance result in adjacent areas of the east facade with green walls on the third floor on 21 June.
Buildings 13 02301 g031
Figure 32. Comparison of results in thermal balance: (a) thermal balance result in adjacent areas of the east facade without green walls on the third floor on 21 December. (b) Thermal balance result in adjacent areas of the east facade with green walls on the third floor on 21 December.
Figure 32. Comparison of results in thermal balance: (a) thermal balance result in adjacent areas of the east facade without green walls on the third floor on 21 December. (b) Thermal balance result in adjacent areas of the east facade with green walls on the third floor on 21 December.
Buildings 13 02301 g032
Figure 33. Building Energy Model simplified—thermal zones analysis and the identification of the thermal block of the third floor towards the east side of the building for analysis.
Figure 33. Building Energy Model simplified—thermal zones analysis and the identification of the thermal block of the third floor towards the east side of the building for analysis.
Buildings 13 02301 g033
Figure 34. Comparison of results in thermal balance: (a) thermal balance result in adjacent areas of the east facade without green walls on the fourth floor on 21 March. (b) Thermal balance result in adjacent areas of the east facade with green walls on the fourth floor on 21 March.
Figure 34. Comparison of results in thermal balance: (a) thermal balance result in adjacent areas of the east facade without green walls on the fourth floor on 21 March. (b) Thermal balance result in adjacent areas of the east facade with green walls on the fourth floor on 21 March.
Buildings 13 02301 g034
Figure 35. Comparative results in thermal balance: (a) thermal balance result in adjacent areas to the east facade without green walls on the fourth floor on 21 June; (b) thermal balance result in adjacent areas to the east facade with green walls on the fourth floor on 21 June.
Figure 35. Comparative results in thermal balance: (a) thermal balance result in adjacent areas to the east facade without green walls on the fourth floor on 21 June; (b) thermal balance result in adjacent areas to the east facade with green walls on the fourth floor on 21 June.
Buildings 13 02301 g035
Figure 36. Comparative results in thermal balance: (a) thermal balance result in adjacent areas of the east facade without green walls on the fourth floor on 21 December; (b) thermal balance result in adjacent areas of the east facade with green walls on the fourth floor on 21 December.
Figure 36. Comparative results in thermal balance: (a) thermal balance result in adjacent areas of the east facade without green walls on the fourth floor on 21 December; (b) thermal balance result in adjacent areas of the east facade with green walls on the fourth floor on 21 December.
Buildings 13 02301 g036
Figure 37. Building Energy Model simplified—thermal zones analysis and the identification of the thermal block of the fourth floor towards the east side of the building for analysis.
Figure 37. Building Energy Model simplified—thermal zones analysis and the identification of the thermal block of the fourth floor towards the east side of the building for analysis.
Buildings 13 02301 g037
Figure 38. Building Energy Model simplified—thermal zones analysis and the identification of the thermal block towards the west side of the building for analysis.
Figure 38. Building Energy Model simplified—thermal zones analysis and the identification of the thermal block towards the west side of the building for analysis.
Buildings 13 02301 g038
Figure 39. Building Energy Model simplified—thermal zones analysis and the identification of the thermal block of the second and third floor towards the east side of the building for analysis.
Figure 39. Building Energy Model simplified—thermal zones analysis and the identification of the thermal block of the second and third floor towards the east side of the building for analysis.
Buildings 13 02301 g039
Figure 40. (a) Result of the thermal balance in adjacent spaces to the west facade without green walls on the first floor on 21 March; (b) result of the thermal balance in adjacent spaces to the west facade with green walls on the first floor on 21 March.
Figure 40. (a) Result of the thermal balance in adjacent spaces to the west facade without green walls on the first floor on 21 March; (b) result of the thermal balance in adjacent spaces to the west facade with green walls on the first floor on 21 March.
Buildings 13 02301 g040
Figure 41. Comparison of thermal balance results: (a) result of the thermal balance in adjacent spaces to the west facade without green walls on the first floor on 21 June; (b) result of the thermal balance in adjacent spaces to the west facade with green walls on the first floor on 21 June.
Figure 41. Comparison of thermal balance results: (a) result of the thermal balance in adjacent spaces to the west facade without green walls on the first floor on 21 June; (b) result of the thermal balance in adjacent spaces to the west facade with green walls on the first floor on 21 June.
Buildings 13 02301 g041
Figure 42. On 21 December, a comparison of thermal balance results in adjacent spaces to the west facade of the School of Biological Sciences shows the following: (a) without green walls, the average temperature is 27.67 °C during the summer solstice. (b) After installing green walls, the average temperature decreases to 23.68 °C, resulting in a temperature reduction of 3.99 °C. Moreover, without green walls, the comfort level is achieved for 7 h per day, while with green walls, this figures increases to 24 h per day, representing a 242.85% increase in comfort hours.
Figure 42. On 21 December, a comparison of thermal balance results in adjacent spaces to the west facade of the School of Biological Sciences shows the following: (a) without green walls, the average temperature is 27.67 °C during the summer solstice. (b) After installing green walls, the average temperature decreases to 23.68 °C, resulting in a temperature reduction of 3.99 °C. Moreover, without green walls, the comfort level is achieved for 7 h per day, while with green walls, this figures increases to 24 h per day, representing a 242.85% increase in comfort hours.
Buildings 13 02301 g042
Figure 43. Building Energy Model simplified—thermal zones analysis and the identification of the thermal block of the first floor towards the west side of the building for analysis.
Figure 43. Building Energy Model simplified—thermal zones analysis and the identification of the thermal block of the first floor towards the west side of the building for analysis.
Buildings 13 02301 g043
Figure 44. A comparison of thermal balance results on 21 March in adjacent spaces to the west facade of the School of Biological Sciences shows the following: (a) without green walls on the second floor, the average temperature is 29.12 °C. (b) After installing green walls on the second floor, the average temperature decreases to 24.40 °C, resulting in a temperature reduction of 4.72 °C. Additionally, without green walls, the comfort level is achieved for 4 h per day, while with green walls, this figures increases to 24 h per day, representing a 500.00% increase in comfort hours.
Figure 44. A comparison of thermal balance results on 21 March in adjacent spaces to the west facade of the School of Biological Sciences shows the following: (a) without green walls on the second floor, the average temperature is 29.12 °C. (b) After installing green walls on the second floor, the average temperature decreases to 24.40 °C, resulting in a temperature reduction of 4.72 °C. Additionally, without green walls, the comfort level is achieved for 4 h per day, while with green walls, this figures increases to 24 h per day, representing a 500.00% increase in comfort hours.
Buildings 13 02301 g044
Figure 45. A comparison of thermal balance results on 21 June in adjacent spaces to the west facade of the School of Biological Sciences shows the following: (a) without green walls on the second floor, the average temperature is 27.67 °C. (b) After installing green walls on the second floor, the average temperature decreases to 23.68 °C, resulting in a temperature reduction of 3.99 °C. Additionally, without green walls, the comfort level is achieved for 7 h per day, while with green walls, this figures increases to 24 h per day, representing a 242.85% increase in comfort hours.
Figure 45. A comparison of thermal balance results on 21 June in adjacent spaces to the west facade of the School of Biological Sciences shows the following: (a) without green walls on the second floor, the average temperature is 27.67 °C. (b) After installing green walls on the second floor, the average temperature decreases to 23.68 °C, resulting in a temperature reduction of 3.99 °C. Additionally, without green walls, the comfort level is achieved for 7 h per day, while with green walls, this figures increases to 24 h per day, representing a 242.85% increase in comfort hours.
Buildings 13 02301 g045
Figure 46. Comparison of results in thermal balance: (a) result of the thermal balance in areas adjoining the west facade without green walls on the second floor on 21 December; (b) result of the thermal balance in areas adjoining the west facade with green walls on the second floor on 21 December.
Figure 46. Comparison of results in thermal balance: (a) result of the thermal balance in areas adjoining the west facade without green walls on the second floor on 21 December; (b) result of the thermal balance in areas adjoining the west facade with green walls on the second floor on 21 December.
Buildings 13 02301 g046
Figure 47. Building Energy Model simplified—thermal zones analysis and the identification of the thermal block of the second floor towards the west side of the building for analysis.
Figure 47. Building Energy Model simplified—thermal zones analysis and the identification of the thermal block of the second floor towards the west side of the building for analysis.
Buildings 13 02301 g047
Figure 48. Comparison of results in thermal balance: (a) result of the thermal balance in areas adjoining the west facade without green walls on the third floor on 21 March; (b) result of the thermal balance in areas adjoining the west facade with green walls on the third floor on 21 March.
Figure 48. Comparison of results in thermal balance: (a) result of the thermal balance in areas adjoining the west facade without green walls on the third floor on 21 March; (b) result of the thermal balance in areas adjoining the west facade with green walls on the third floor on 21 March.
Buildings 13 02301 g048
Figure 49. Comparison of results in thermal balance: (a) result of the thermal balance in areas adjoining the west facade without green walls on the third floor on 21 June; (b) result of the thermal balance in areas adjoining the west facade with green walls on the third floor on 21 June.
Figure 49. Comparison of results in thermal balance: (a) result of the thermal balance in areas adjoining the west facade without green walls on the third floor on 21 June; (b) result of the thermal balance in areas adjoining the west facade with green walls on the third floor on 21 June.
Buildings 13 02301 g049
Figure 50. Comparison of results in thermal balance: (a) result of the thermal balance in areas adjoining the west facade without green walls on the third floor on 21 December; (b) result of the thermal balance in areas adjoining the west facade with green walls on the third floor on 21 December.
Figure 50. Comparison of results in thermal balance: (a) result of the thermal balance in areas adjoining the west facade without green walls on the third floor on 21 December; (b) result of the thermal balance in areas adjoining the west facade with green walls on the third floor on 21 December.
Buildings 13 02301 g050
Figure 51. Building Energy Model simplified—thermal zones analysis and the identification of the thermal block of the third floor towards the west side of the building for analysis.
Figure 51. Building Energy Model simplified—thermal zones analysis and the identification of the thermal block of the third floor towards the west side of the building for analysis.
Buildings 13 02301 g051
Figure 52. Comparison of thermal balance results: (a) thermal balance result in adjacent spaces to the west facade without green walls on the fourth floor on 21 March; (b) thermal balance result in adjacent spaces to the west facade with green walls on the fourth floor on 21 March.
Figure 52. Comparison of thermal balance results: (a) thermal balance result in adjacent spaces to the west facade without green walls on the fourth floor on 21 March; (b) thermal balance result in adjacent spaces to the west facade with green walls on the fourth floor on 21 March.
Buildings 13 02301 g052
Figure 53. Comparison of thermal balance results: (a) thermal balance result in adjacent spaces to the west facade without green walls on the fourth floor on 21 June; (b) thermal balance result in adjacent spaces to the west facade with green walls on the fourth floor on 21 June.
Figure 53. Comparison of thermal balance results: (a) thermal balance result in adjacent spaces to the west facade without green walls on the fourth floor on 21 June; (b) thermal balance result in adjacent spaces to the west facade with green walls on the fourth floor on 21 June.
Buildings 13 02301 g053
Figure 54. Comparison of thermal balance results: (a) thermal balance result in adjacent spaces to the west facade without green walls on the fourth floor on 21 December; (b) thermal balance result in adjacent spaces to the west facade with green walls on the fourth floor on 21 December.
Figure 54. Comparison of thermal balance results: (a) thermal balance result in adjacent spaces to the west facade without green walls on the fourth floor on 21 December; (b) thermal balance result in adjacent spaces to the west facade with green walls on the fourth floor on 21 December.
Buildings 13 02301 g054
Figure 55. Simplified energy model of a building: the thermal transmittance of openings and the thermal transmittance of the green walls of the building are identified.
Figure 55. Simplified energy model of a building: the thermal transmittance of openings and the thermal transmittance of the green walls of the building are identified.
Buildings 13 02301 g055
Figure 56. Thermal simulation of the green wall (temperature). Archicad EcoDesigner STAR—energy model review.
Figure 56. Thermal simulation of the green wall (temperature). Archicad EcoDesigner STAR—energy model review.
Buildings 13 02301 g056
Figure 57. Thermal simulation of the green wall (energy flux). Archicad EcoDesigner STAR—energy model review.
Figure 57. Thermal simulation of the green wall (energy flux). Archicad EcoDesigner STAR—energy model review.
Buildings 13 02301 g057
Figure 58. Simplified energy model of a building, which includes thermal zones and identifies the thermal block on the first and fourth floors on the west side of the building.
Figure 58. Simplified energy model of a building, which includes thermal zones and identifies the thermal block on the first and fourth floors on the west side of the building.
Buildings 13 02301 g058
Figure 59. Thermal simulation of the climbing wall (temperature). Archicad EcoDesigner STAR—energy model review.
Figure 59. Thermal simulation of the climbing wall (temperature). Archicad EcoDesigner STAR—energy model review.
Buildings 13 02301 g059
Figure 60. Thermal simulation of the climbing wall (energy flux). Archicad EcoDesigner STAR—energy model review.
Figure 60. Thermal simulation of the climbing wall (energy flux). Archicad EcoDesigner STAR—energy model review.
Buildings 13 02301 g060
Table 1. Solar radiation received on the east facade walls of the School of Biological Sciences, expressed in kWh, as follows.
Table 1. Solar radiation received on the east facade walls of the School of Biological Sciences, expressed in kWh, as follows.
DateW/o Green WallsWith Green WallsReduction Percentage
21 March41510974%
21 June2707971%
21 December41211971%
Table 2. Solar radiation received on the west facade walls of the School of Biological Sciences, expressed in kWh, as follows.
Table 2. Solar radiation received on the west facade walls of the School of Biological Sciences, expressed in kWh, as follows.
DateW/o Green WallsWith Green WallsReduction Percentage
21 March27710263%
21 June3198773%
21 December41412470%
Table 3. Number of hours in a state of comfort on the east facade of the School of Biological Sciences.
Table 3. Number of hours in a state of comfort on the east facade of the School of Biological Sciences.
FloorTimeW/o Green Walls (h)With Green Walls (h)Increase (%)
121 March 524380
21 June 22249.09
21 December 1122100
221 March 162450
21 June 24240
21 December 142364.28
321 March 1024140
21 June 202210
21 December 122283.35
421 March 1024140
21 June 202420
21 December 122283.33
Total 21935260.73
Table 4. Number of hours in a state of comfort on the west facade of the School of Biological Sciences.
Table 4. Number of hours in a state of comfort on the west facade of the School of Biological Sciences.
FloorTimeW/o Green Walls (h)With Green Walls (h)Increase (%)
121 March 424500
21 June 20200
21 December 724242.85
221 March 624300
21 June 24240
21 December 922144.44
321 March 524380
21 June 24240
21 December 824200
421 March 524380
21 June 202420
21 December 823187.50
Total 21034564.28
Table 5. Absorbed CO2 and produced fresh air, annually, on the east facade of the School of Biological Sciences.
Table 5. Absorbed CO2 and produced fresh air, annually, on the east facade of the School of Biological Sciences.
FloorGreen Wall (m2)Absorbed CO2 (kg)Produced Fresh Air (kg)
173.38168.77124.75
285.30196.19145.01
3
453.82123.7991.49
Total212.50488.75361.25
Table 6. Absorbed CO2 and produced fresh air, annually, on the west facade of the School of Biological Sciences.
Table 6. Absorbed CO2 and produced fresh air, annually, on the west facade of the School of Biological Sciences.
FloorGreen Wall (m2)Absorbed CO2 (kg)Produced Fresh Air (kg)
173.38168.77124.75
285.30196.19145.01
3
453.82123.7991.49
Total212.50488.75361.25
Table 7. Absorbed CO2 and produced fresh air, annually, on the east and west facades of the School of Biological Sciences.
Table 7. Absorbed CO2 and produced fresh air, annually, on the east and west facades of the School of Biological Sciences.
FloorGreen Wall (m2)Absorbed CO2 (kg)Produced Fresh Air (kg)
1146.76337.54249.50
2170.60392.38290.02
3
4107.64247.58182.98
Total425.00977.50722.50
Table 8. Percentage of reduction on the west facades in the schools of Biology, Architecture, and Engineering.
Table 8. Percentage of reduction on the west facades in the schools of Biology, Architecture, and Engineering.
DateW/o Green WallsWith Green WallsReduction Percentage
School of Biology21 March 27710263%
21 June 3198773%
21 December 41412470%
School of Architecture21 March 277-0%
21 June 319-0%
21 December 414-0%
School of Engineering21 March 277-0%
21 June 319-0%
21 December 414-0%
Disclaimer/Publisher’s Note: The statements, opinions and data contained in all publications are solely those of the individual author(s) and contributor(s) and not of MDPI and/or the editor(s). MDPI and/or the editor(s) disclaim responsibility for any injury to people or property resulting from any ideas, methods, instructions or products referred to in the content.

Share and Cite

MDPI and ACS Style

Gómez, A.; Esenarro, D.; Martinez, P.; Vilchez, S.; Raymundo, V. Thermal Calculation for the Implementation of Green Walls as Thermal Insulators on the East and West Facades in the Adjacent Areas of the School of Biological Sciences, Ricardo Palma University (URP) at Lima, Peru 2023. Buildings 2023, 13, 2301. https://doi.org/10.3390/buildings13092301

AMA Style

Gómez A, Esenarro D, Martinez P, Vilchez S, Raymundo V. Thermal Calculation for the Implementation of Green Walls as Thermal Insulators on the East and West Facades in the Adjacent Areas of the School of Biological Sciences, Ricardo Palma University (URP) at Lima, Peru 2023. Buildings. 2023; 13(9):2301. https://doi.org/10.3390/buildings13092301

Chicago/Turabian Style

Gómez, Alejandro, Doris Esenarro, Pedro Martinez, Stefany Vilchez, and Vanessa Raymundo. 2023. "Thermal Calculation for the Implementation of Green Walls as Thermal Insulators on the East and West Facades in the Adjacent Areas of the School of Biological Sciences, Ricardo Palma University (URP) at Lima, Peru 2023" Buildings 13, no. 9: 2301. https://doi.org/10.3390/buildings13092301

APA Style

Gómez, A., Esenarro, D., Martinez, P., Vilchez, S., & Raymundo, V. (2023). Thermal Calculation for the Implementation of Green Walls as Thermal Insulators on the East and West Facades in the Adjacent Areas of the School of Biological Sciences, Ricardo Palma University (URP) at Lima, Peru 2023. Buildings, 13(9), 2301. https://doi.org/10.3390/buildings13092301

Note that from the first issue of 2016, this journal uses article numbers instead of page numbers. See further details here.

Article Metrics

Back to TopTop