Research on Architectural Art and Sustainable Design of Ginling College Historic District (Nanjing, China)
Abstract
:1. Introduction
- Using multidisciplinary research methods such as history, architecture, and urban planning, we chose Ginling College, a modern Chinese university campus building with both Chinese and Western architectural art, as the research object. We then used a combination of qualitative and quantitative methods to analyze the architectural art value of the architectural heritage of modern Chinese universities.
- Using a combination of qualitative and quantitative methods, a detailed analysis of the performance of the building materials and sustainable design methods in the historic area was carried out. By using the green building analysis software (TH SWARE 2022) to analyze the lighting and ventilation of the building’s external environment and indoor environment, it was explored and confirmed that Ginling College still meets the current Evaluation Standards for Green Buildings of the People’s Republic of China; it showcases characteristics of the sustainable development of “Chinese traditional revival style” architecture.
2. Methodology and Materials
2.1. Methodology
2.2. Materials
2.2.1. Case Presentation
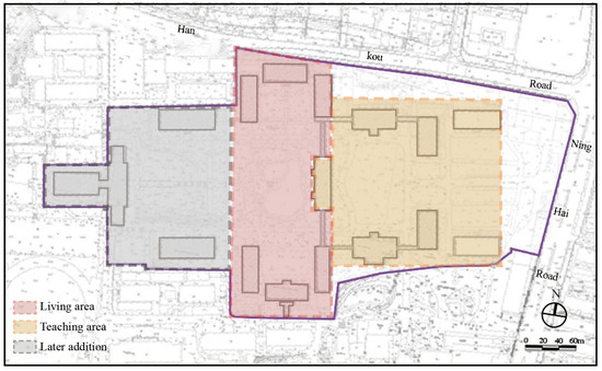
- Brief History and location of the school
- 2.
- Current Building status
2.2.2. Data Collection
3. Results and Discussion
3.1. The Artistic Characteristics
3.1.1. The Artistic Characteristics of Campus Planning
3.1.2. The Artistic Characteristics of the Buildings
- Composition proportion
- 2.
- Roof form
- 3.
- Imitate the important component of traditional Chinese architecture “Tou-kung”
- 4.
- Wall features
- 5.
- Entrance form
- 6.
- Color matching
3.1.3. The Artistic Characteristics of the Architectural Detail
3.2. Sustainable Design
3.2.1. Sustainable Materials: Clay Brick, Tile, and Wood
3.2.2. The Introduction of New Materials: Concrete
3.2.3. Lighting and Ventilation Design
- Windows and Skylights
- 2.
- Vents and Daylight Openings
- 3.
- Porches and Corridors
- 4.
- Courtyards
3.3. The Influence of Sustainable Design on Traditional Chinese Revival Architecture
4. Conclusions
- Conducting research on sustainable restoration and renewal from a multidisciplinary perspective based on historical research combined with on-site surveying and surveying from the aspects of architectural art, structural materials, lighting and ventilation design, etc., using mathematics, geometry, etc. to study the artistic value of the historical building of Ginling College, and using professional green building design software to confirm its natural lighting and natural ventilation meet the Evaluation Standards for Green Buildings of the People’s Republic of China.
- Through detailed qualitative and quantitative analysis, this paper explored a design strategy for a “combination of Chinese and Western Style” university campus that combines architectural art and sustainable design. It is precisely because of the artistic re-creation and technological innovation in Chinese and Western architectural circles that the development of the construction industry and cities have been promoted.
Author Contributions
Funding
Data Availability Statement
Acknowledgments
Conflicts of Interest
References
- Gao, S. History of Christian Schools in China; Hunan Education Publishing House: Changsha, China, 1994; p. 19. [Google Scholar]
- Hu, Q. Cultural Capital of Colleges and Universities: Connotation, Types and Characteristics. J. East China Norm. Univ. (Educ. Sci.) 2022, 40, 4–12. [Google Scholar]
- Dong, L. Buildings in Mission Schools and the Renaissance of Chinese Traditional Architecture. J. Nanjing Univ. (Philos. Humanit. Soc. Sci.) 2005, 5, 70–81. [Google Scholar]
- Watt, D.S. Building Pathology: Principles and Practice; John Wiley & Sons: Hoboken, NJ, USA, 2009; pp. 75–78. [Google Scholar]
- Rabun, J.S.; Kelso, R. Building Evaluation for Adaptive Reuse and Preservation; John Wiley & Sons: Hoboken, NJ, USA, 2009; pp. 115–118. [Google Scholar]
- Rabun, J.S. Structural Analysis of Historic Buildings: Restoration, Preservation, and Adaptive Reuse Applications for Architects and Engineers; John Wiley & Sons: Hoboken, NJ, USA, 2000; pp. 55–56. [Google Scholar]
- Giebeler, G.; Krause, H.; Fisch, R.; Musso, F.; Lenz, B.; Rudolphi, A. Refurbishment Manual: Maintenance, Conversions, Extensions; Birkhäuser: Basle, Switzerland, 2012; p. 125. [Google Scholar]
- Di, X.; Tao, L. Technical Guide for Assessment and Renovation of Existing Buildings; China Building Materials Press: Beijing, China, 2012; pp. 134–136. [Google Scholar]
- Cao, X.; Feng, D.; Wu, G.; Zeng, Y. Reusing & Replacing Performances of the AB-BRB with Thin-Walled Concrete-Infilled Steel Shells. Thin-Walled Struct. 2020, 157, 107069. [Google Scholar]
- Cao, X.; Shen, D.; Feng, D.; Wang, C.; Qu, Z.; Wu, G. Seismic Retrofitting of Existing Frame Buildings through Externally Attached Sub-Structures: State of the Art Review and Future Perspectives. J. Build. Eng. 2022, 57, 104904. [Google Scholar] [CrossRef]
- Zhou, Q.; Ye, B. Technical Guide for Conservation & Renovation of Near-Modern Architecture in Nanjing; China Building Materials Press: Beijing, China, 2018; p. 23. [Google Scholar]
- Xie, M.; Zhang, G.; Xu, F. Sustainable Design Strategies on Retrofit of Old Industrial Building in China, International Symposium on Heating, Ventilating and Air Conditioning; Tsinghua University: Beijing, China, 2007. [Google Scholar]
- Shi, J.; Zhang, T.; Fukuda, H.; Zhang, Q.; Bai, L. Socio-Environmental Responsive Strategy and Sustainable Development of Traditional Tianshui Dwellings. Sustainability 2022, 14, 8890. [Google Scholar] [CrossRef]
- Muhealddin, B.; Abdulrahman, H.; Ali, A. Application of Architecture Principles in Reviving Historical Buildings. J. Eng. Res. 2020, 8, 139–153. [Google Scholar] [CrossRef]
- GB 50178-93; Standard of Climatic Regionalization for Architecture. Ministry of Construction of the People’s Republic of China: Beijing, China, 1993. (In Chinese)
- ERA5-Land Monthly Averaged Data from 1950 to Present. Available online: https://cds.climate.copernicus.eu/cdsapp#!/dataset/reanalysis-era5-land-monthly-means?tab=form (accessed on 26 April 2022).
- Jessie, L.G. China and Christian Colleges, 1850–1950; Zhejiang Education Publishing House: Hangzhou, China, 1987; p. 122. [Google Scholar]
- Leng, T. Pain in Styles, Gain in Tectonic: Study of Church Architecture in Early Modern Nanjing. Ph.D. Thesis, Nanjing University, Nanjing, China, 2009; p. 47. [Google Scholar]
- Sun, H. Ginling Hundred Houses—Ginling College; Hebei Education Press: Shijiazhuang, China, 2005; p. 15. [Google Scholar]
- Nanjing Normal University Website Homepage. Available online: www.njnu.edu.cn (accessed on 26 April 2022).
- Nanjing Municipal Bureau of Planning and Natural Resources. Ginling College Historical District Planning, Nanjing Municipal Bureau of Planning and Natural Resources: Nanjing, China, Unpublished work. 2012.
- Lu, D. Revisiting Adaptive Use and Reuse of Historic Buildings from the Perspective of the Secretary of the Interior’s Standards for Rehabilitation of the United States. Archit. J. 2022, 2, 88–93. [Google Scholar]
- Dong, L. Eclecticism to the Doctrine of “Back to the Ancients” Formal Evolution of Chinese Christian University Architecture. Huazhong Archit. 2005, 23, 160. [Google Scholar]
- Zhang, L. History of Ginling College; Jiangsu People’s Publishing House Co., Ltd.: Nanjing, China, 2005; p. 29. [Google Scholar]
- Cody, J.W.; Murphy, H.K. An American Architect in China, 1914~1935. Ph.D. Thesis, Cornell University, Ithaca, NY, USA, 1989; p. 164. [Google Scholar]
- Xu, W. The Chinese Museum Creation and Practice during the Late Qing and Early Republic of China. Palace Mus. J. 2015, 2, 126–138. [Google Scholar]
- Dong, L. Research on History of Chinese Modern Christian University Architecture; Science Press: Beijing, China, 2010; pp. 147, 150–151. [Google Scholar]
- Lv, B. The Study of Traditional Revival on Modern University Campuses in China. Master’s Thesis, Tianjin University, Tianjin, China, 2017; p. 66. [Google Scholar]
- Pan, G. A History of Chinese Architecture; China Architecture Publishing & Media Co., Ltd.: Beijing, China, 2015; p. 122. [Google Scholar]
- Hu, Q. A Comparative Study of Architectural Design Culture between the Forbidden City and the Louvre Museum. Master’s Thesis, Anhui Polytechnic University, Wuhu, China, 2019; p. 22. [Google Scholar]
- Myers, D.P. Harvard: An Architectural History. J. Soc. Archit. Hist. 1988, 47, 310–312. [Google Scholar] [CrossRef]
- Henry, K.M. The Adaptation of Chinese Architecture. J. Chin. Am. Eng. 1926, 3, 37. [Google Scholar]
- Fu, C. Chinese Classical Style New Building; SMC Publishing Inc.: Taipei, China, 1994; p. 26. [Google Scholar]
- Wang, H.; Hu, Z.; Huang, Y.; Chen, M.; Hu, L.; Zhou, Q. Construction Technologies and Conservation Strategies for the Bell Tower of Former Nanking University (Nanjing, China)—A Case Study of a Typical Architectural Heritage of the American Church School in the Late 19th Century. Buildings 2022, 12, 2251. [Google Scholar] [CrossRef]
- Wang, N. Circles, Squares, and the Place Where Buddha Lives An Explorative Study on Compositional Proportion of the Main Hall of Foguangsi. Archit. J. 2017, 6, 29–36. [Google Scholar]
- Zhang, A. A Study on the Design Evolution Adapted to the Traditional Chinese Curved Roof in Modern Period(1910s–1930s) with the View on History of Technology. Master’s Thesis, Nanjing University, Nanjing, China, 2020; p. 64. [Google Scholar]
- Rauf, A.; Shakir, S.; Ncube, A.; Abd-ur-Rehman, H.M.; Janjua, A.K.; Khanum, S.; Khoja, A.H. Prospects towards Sustainability: A Comparative Study to Evaluate the Environmental Performance of Brick Making Kilns in Pakistan. Environ. Impact Assess. Rev. 2022, 94, 106746. [Google Scholar] [CrossRef]
- Song, Y. Illustrated Tiangong Kaiwu: Encyclopedia of Ancient Chinese Arts and Crafts; Nan Hai Publishing Co.: Haikou, China, 2007; pp. 223–320. [Google Scholar]
- Li, Y. The History of Nanjing Near-Modern Architectural Technology. Ph.D. Thesis, Southeast University, Nanjing, China, 2022; p. 78. [Google Scholar]
- Liu, J. The Application of the Brick and Tile in the Chinese Traditional Architecture Construction Technology. Master’s Thesis, Taiyuan University of Technology, Taiyuan, China, 2009; pp. 15–16. [Google Scholar]
- Lin, W.-C. Chinese Architecture and Metaphor: Song Culture in the “Yingzao Fashi” Building Manual by Jiren Feng. J. Song-Yuan Stud. 2016, 46, 241–247. [Google Scholar] [CrossRef]
- Yang, Y. Research on the Interior and Exterior Decoration Techniques of the Architecture of the Republic of China in Nanjing. Master’s Thesis, Nanjing University of the Arts, Nanjing, China, 2021; p. 16. [Google Scholar]
- Zhan, X.; Fu, S.; Fu, L. Modern Bricks and Tile: A Dialogue between Sintered Brick and Tile Products and Sustainable Building; China Building Materials Press: Beijing, China, 2009; pp. 182–183. [Google Scholar]
- Chen, Y. Western Architectural Culture and the Development of Nanjing Public Buildings during the Republic of China. Master’s Thesis, Anhui University, Hefei, China, 2019; p. 39. [Google Scholar]
- Lin, Z. Building Materials; Peking University Press: Beijing, China, 2008. [Google Scholar]
- Goldhahn, C.; Cabane, E.; Chanana, M. Sustainability in Wood Materials Science: An Opinion about Current Material Development Techniques and the End of Lifetime Perspectives. Philos. Trans. R. Soc. A 2021, 379, 20200339. [Google Scholar] [CrossRef] [PubMed]
- Wang, X. Research on Early Modern Architecture Culture in Jiangsu Province. Ph.D. Thesis, Southeast University, Nanjing, China, 2006; p. 30. [Google Scholar]
- Song, Y.; Liao, C. Structural Materials, Ventilation Design and Architectural Art of Traditional Buildings in Guangdong, China. Buildings 2022, 12, 900. [Google Scholar] [CrossRef]
- Architects & Engineers Co., Ltd of Southeast University. The Design Scheme for the Renovation and Reinforcement Project of Building 10 at the Former Site of Ginling College, Architects & Engineers Co., Ltd of Southeast University: Nanjing, China, Unpublished work. 2017.
- Lu, S. The Research on Campus Plan and Architecture of the Ginling College Site. Master’s Thesis, Southeast University, Nanjing, China, 2018; p. 88. [Google Scholar]
- Wang, H. Study of Educational Architecture in Early Modern Nanjing (1840–1949). Ph.D. Thesis, Southeast University, Nanjing, China, 2018; p. 214. [Google Scholar]
- GB/T 50378-2019; Assessment Standard for Green Building. Ministry of Construction of the People’s Republic of China: Beijing, China, 2019. (In Chinese)
- Yao, X.; Dewancker, B.J.; Guo, Y.; Han, S.; Xu, J. Study on Passive Ventilation and Cooling Strategies for Cold Lanes and Courtyard Houses—A Case Study of Rural Traditional Village in Shaanxi, China. Sustainability 2020, 12, 8687. [Google Scholar] [CrossRef]
- Sung, U.-J.; Eum, J.-H.; Son, J.-M.; Oh, J.-H. Planning Strategies of Wind Corridor Forests Utilizing the Properties of Cold Air. Land 2021, 10, 607. [Google Scholar] [CrossRef]























| No. | Building Name | Age and Scale | Structure and Materials | Method of Lighting and Ventilation | Source |
|---|---|---|---|---|---|
| 1 | No. 100 Building | Age: First built in 1923 Height: 16.7 m Building area: 1823.9 m2 | Brick wall, concrete beam, column, floor slab, and wooden roof truss | Doors, windows, skylights, and porches | Historical photo and blueprint |
| 2 | No. 200 Building | Age: First built in 1923 Height: 15.6 m Building area: 1540 m2 | Brick wall, concrete beam, column, floor slab, and wooden roof truss | Doors, windows, skylights, corridors, and halls | Historical photo and blueprint |
| 3 | No. 300 Building | Age: First built in 1923 Height: 15.6 m Building area: 1494 m2 | Brick wall, concrete beam, column, floor slab, and wooden roof truss | Doors, windows, corridors, and halls | Historical photo and blueprint |
| 4–7 | No. 400 Building No. 500 Building No. 600 Building No. 700 Building | Age: First built in 1923 Height: 12.3 m Building area: 1150 m2 | Brick wall, concrete beam, column, floor slab, and wooden roof truss | Doors, windows, skylights, corridors, and porches | Historical photo and blueprint |
| 8 | No. 8 Building | Age: First built in 1987 Height: 15.6 m Building area: 1932 m2 | Reinforced concrete beam, column, and floor slab | Doors, windows, and corridors | Current photo and blueprint |
| 9 | No. 9 Building | Age: First built in 1987 Height: 15.6 m Building area: 1932 m2 | Reinforced concrete beam, column, and floor slab | Doors, windows, and corridors | Current photo and blueprint |
| 10 | No. 10 Building | Age: First built in 1933 Height: 16.6 m Building area: 1444 m2 | Reinforced concrete beam, column, floor slab, and brick wall | Doors, windows, halls, and corridors | Historical photo and blueprint |
| 11 | No. 11 Building | Age: First built in 1933 Height: 16.6 m Building area: 1850 m2 | Reinforced concrete beam, column, floor slab, and brick wall | Doors, windows, halls, vents, and daylight opening | Historical photo and blueprint |
| 12 | No. 12 Building | Age: First built in 1990 Height: About 12.3 m Building area: 2050 m2 | Reinforced concrete beam, column, and floor slab | Doors, windows, and corridors | Current photo and blueprint |
| 13 | No. 15 Building | Age: First built in 1983 Height: About 12.3 m Building area: 2050 m2 | Reinforced concrete beam, column, and floor slab | Doors, windows, and corridors | Current photo and blueprint |
| 14 | North Building | Age: First built in 1954 Height: About 16.6 m Building area: 2646 m2 | Brick wall, concrete beam, column, floor slab, and wooden roof truss | Doors, windows, corridors, and halls | Current photo and blueprint |
| 15 | South Building | Age: First built in 1955 Height: About 16.6 m Building area: 2646 m2 | Brick wall, concrete beam, column, floor slab, and wooden roof truss | Doors, windows, corridors, and halls | Current photo and blueprint |
| 16 | Middle Building | Age: First built in 1956 Height: About 13.3 m Building area: 3661 m2 | Brick wall, concrete beam, column, floor slab, and wooden roof truss | Doors, windows, and corridors | Current photo and blueprint |
| Material | Density | Bulk Density | Porosity |
|---|---|---|---|
| Limestone | 2.60 | 1800–2600 | 0.2–4 |
| Concrete | 2.60 | 2200–2500 | 5–20 |
| Clay brick | 2.50 | 1700–1800 | 30–32 |
| Wood | 1.55 | 400–800 | 55–75 |
| Cement | 3.10 | ||
| Steel | 7.85 | 7850 | 0 |
| Room | Daylight Type | The Base Value | Area (m2) | Compliance Rate (%) | ||
|---|---|---|---|---|---|---|
| Average Daylight Factor (%) | Illuminance of Natural Light Design (Lx) | The Total Area | Standard Value | |||
| Auditorium | Windows | 3.30 | 450 | 107.36 | 54.68 | 51 |
| Classroom | Windows | 3.30 | 450 | 702.76 | 584.57 | 83 |
| Office room | Windows | 3.30 | 450 | 57.12 | 28.56 | 50 |
| Total standard area ratio | 77 | |||||
| Room Name | Room Number | Direction | Air Pressure Difference (Pa) |
|---|---|---|---|
| First floor | |||
| Auditorium | 1001 | West | −1.23 |
| Piano room | 1001 | West | −1.59 |
| Piano room | 1001 | South | 1.26 |
| Piano room | 1001 | East | −0.77 |
| Dance room | 1001 | South | 2.53 |
| Warehouse | 1001 | East | −8.02 |
| Corridor | 1002 | West | −1.43 |
| Vestibule | 1003 | North | −1.02 |
| Room Name | Room Number | Direction | Air Pressure Difference (Pa) |
|---|---|---|---|
| Second floor | |||
| Auditorium | 1001 | West | −1.25 |
| Storage Room | 1001 | West | −1.38 |
| Piano room | 1001 | East | −0.84 |
| Stairwell | 1001 | West | −2.01 |
| Third floor | |||
| Concert hall | 1004 | West | −2.56 |
| Office room | 1005 | North | −0.95 |
| Corridor | 1006 | East | −0.93 |
Disclaimer/Publisher’s Note: The statements, opinions and data contained in all publications are solely those of the individual author(s) and contributor(s) and not of MDPI and/or the editor(s). MDPI and/or the editor(s) disclaim responsibility for any injury to people or property resulting from any ideas, methods, instructions or products referred to in the content. |
© 2023 by the authors. Licensee MDPI, Basel, Switzerland. This article is an open access article distributed under the terms and conditions of the Creative Commons Attribution (CC BY) license (https://creativecommons.org/licenses/by/4.0/).
Share and Cite
Wang, H.; Yan, Z.; He, X.; Song, Y.; Huang, Y.; Zhang, J.; Zhou, Q.; Yan, Z.; Jiang, X. Research on Architectural Art and Sustainable Design of Ginling College Historic District (Nanjing, China). Buildings 2023, 13, 1725. https://doi.org/10.3390/buildings13071725
Wang H, Yan Z, He X, Song Y, Huang Y, Zhang J, Zhou Q, Yan Z, Jiang X. Research on Architectural Art and Sustainable Design of Ginling College Historic District (Nanjing, China). Buildings. 2023; 13(7):1725. https://doi.org/10.3390/buildings13071725
Chicago/Turabian StyleWang, Hechi, Zhaoyi Yan, Xinyi He, Yingqiu Song, Yanyan Huang, Junxue Zhang, Qi Zhou, Zerong Yan, and Xinran Jiang. 2023. "Research on Architectural Art and Sustainable Design of Ginling College Historic District (Nanjing, China)" Buildings 13, no. 7: 1725. https://doi.org/10.3390/buildings13071725
APA StyleWang, H., Yan, Z., He, X., Song, Y., Huang, Y., Zhang, J., Zhou, Q., Yan, Z., & Jiang, X. (2023). Research on Architectural Art and Sustainable Design of Ginling College Historic District (Nanjing, China). Buildings, 13(7), 1725. https://doi.org/10.3390/buildings13071725

