Circularity Indicators as a Design Tool for Design and Construction Strategies in Architecture
Abstract
1. Introduction
1.1. State of the Art and the Importance of Evaluating Circularity from the Concept-Design Stage
1.2. Measuring Circularity in Current Standards
1.2.1. The Material Circularity Indicator (MCI) Protocol by the Ellen McArthur Foundation
1.2.2. The Level(s) Assessment Protocol by the European Commission
- Ease of disassembly;
- Ease of reuse;
- Ease of recycling.
- Direct reuse (circularity coefficient = 1.00);
- Preparing for reuse (circularity coefficient = 0.90);
- Pure stream recycling (circularity coefficient = 0.75);
- Mixed-stream recycling (circularity coefficient = 0.50);
- Material recovery (circularity coefficient = 0.25);
- Energy recovery (circularity coefficient = 0.15);
- Inert or non-hazardous landfill (circularity coefficient = 0.01);
- Hazardous waste disposal (circularity coefficient = 0.00).
2. Materials and Methods
2.1. Selection and Description of the Case Studies
2.1.1. Case Study A (CSA)
- Name of the project
- Study of innovative temporary wooden housing units for the shelter and accommodation of elderly people in case of functional redevelopment of buildings used as retirement homes.
- Design completion
- 2019
- Sector
- Healthcare and Assistance
- Purpose
- Collaborators
- Università Iuav di Venezia, Italy; University of Kent, UK; Bozza S.r.l., Italy; GreenTech Italy, Italy; Consorzio Progetto Legno Veneto, Italy
- Key Circular Aspects
- The key design aspects were modularity, flexibility, and adaptability of the emergency units to different sites, layouts, and conditions. The structural design was carried out in accordance with the criteria of spatial adaptability, structure modularity, and physical interchangeability, better known as DfD [28,37,38].
- Structural Detailing/Design Approach
2.1.2. Case Study B (CSB)
- Name of the project
- High Efficiency Emergency Living Prototypes Veneto (H.E.L.P. Veneto)—Sustainable adaptive residences for temporary living in environmental emergencies.
- Design completion
- 2021
- Sector
- Residential for disaster relief
- Purpose
- The H.E.L.P. modular unit can be seen in Figure 7. Designed as a modular emergency dwelling for temporary residential use, it allows for flexibility and adaptability of the interior spaces according to the needs of the occupants. The module also features an envelope that can be adapted in accordance with thermo-hygrometric needs at the altitude of construction. The adaptability of the envelope can be actioned by substituting the external layers with other layers of appropriate performance.
- Collaborators
- Università Iuav di Venezia, Italy; University of Padua, Italy; University of Udine, Italy.
- Key Circular Aspects
- The key strategy behind both features of spatial and performance flexibility is an extensive implementation of the DfD principles [28] at the different scales of parts, elements, and assemblies. In detail, the modular units of H.E.L.P. were designed to privilege the physical interchangeability of the structural elements, ensuring their easy disassembly, even for repeated life cycles, using hybrid wood–steel connections [26,27,29,38,39] with a high degree of disassembly.
- Structural Detailing/Design Approach
2.2. Methodology and Assumptions for the Comparative Evaluation of Circularity
- Type and location of the connections used;
- Accessibility of the connections.
2.3. Evaluation of Circularity Based on the Structural Connectivity and Disassembly Hierarchy
- Assembly-level Circularity Score (ACS): measuring the circularity associated with the end-of-life strategy of the assembly;
- Elements-level Circularity Score (ECS): measuring the circularity associated with the end-of-life strategy of each element or system;
- Parts-level Circularity Score (PCS): measuring the circularity associated with the end-of-life strategy of each part;
- Materials-level Circularity Score (MCS): measuring the circularity associated with the procurement and end-of-life strategy of each material.
3. Results
3.1. Analysis of the Construction Details
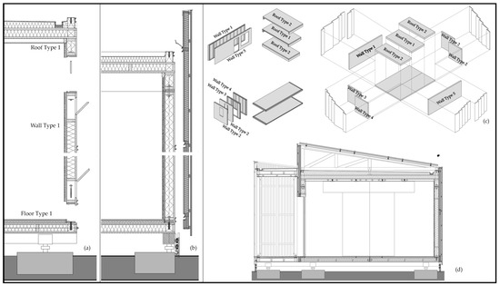
3.1.1. Case Study A (CSA)
3.1.2. Case Study B (CSB)
3.2. Preliminary Estimate of the Percentage of Reused Mass
3.2.1. Case Study A (CSA)
3.2.2. Case Study B (CSB)
3.3. Circularity Score Calculated in Accordance with Level(s)
3.3.1. Case Study A (CSA)
3.3.2. Case Study B (CSB)
3.4. Circularity Score According to MCI
3.4.1. Case Study A (CSA)
3.4.2. Case Study B (CSB)
4. Discussion
- The integration of Design for Disassembly (DfD) principles into the architectural concept design stage encourages designers to consider different scales of the building beyond just the materials used.
- The Material Circularity Indicator (MCI) and Level(s) circularity assessment protocols can be effectively adapted to a hierarchical approach to implementing DfD in architectural design. Despite some differences, they can be employed at the concept-design stage as decision-making tools.
- Circularity indicators may vary at different scales or hierarchies, highlighting the importance of considering multiple levels of disassembly in circularity assessments.
- The hierarchies of disassembly are closely related to the end-of-life strategy of a building, emphasising the significance of considering the entire life cycle in circular design.
- Consideration of end-of-life scenarios should be addressed in the concept-design stage.
- For a comprehensive and flexible approach to conceptualising circularity in architectural design, the four main hierarchies (materials, parts, elements, assemblies) should be considered.
- A concept design based on the hierarchy of disassembly enables the integration of materials with limited inherent circularity into virtuous circular loops through strategic reuse, even in the presence of irreversible bonding.
- The implementation of circularity disrupts the standard approach to concept design and necessitates the consideration of construction technology from the early stages of design development, with consequent requirements of design effort, time, and resources.
Author Contributions
Funding
Data Availability Statement
Acknowledgments
Conflicts of Interest
References
- Dokter, G.; Thuvander, L.; Rahe, U. How circular is current design practice? Investigating perspectives across industrial design and architecture in the transition towards a circular economy. Sustain. Prod. Consum. 2021, 26, 692–708. [Google Scholar] [CrossRef]
- Hart, J.; Adams, K.; Giesekam, J.; Tingley, D.D.; Pomponi, F. Barriers and drivers in a circular economy: The case of the built environment. Procedia CIRP 2019, 80, 619–624. Available online: https://www.sciencedirect.com/science/article/pii/S2212827118312940 (accessed on 23 March 2023). [CrossRef]
- Franconi, A. Multiple Design Perspectives for the Transition to the Circular Economy Managing: Design Strategies Between Systems, Designers and Time. Ph.D. Thesis, Università Iuav di Venezia, Venezia, Italy, 2020. Available online: https://www.researchgate.net/publication/351267555_Multiple_Design_Perspectives_for_the_Transition_to_the_Circular_Economy_Managing_Design_Strategies_Between_Systems_Designers_and_Time (accessed on 20 February 2023).
- Mestre, A.; Cooper, T. Circular Product Design. A Multiple Loops Life Cycle Design Approach for the Circular Economy. Null 2017, 20, S1620–S1635. [Google Scholar] [CrossRef]
- Kirchherr, J.; Reike, D.; Hekkert, M. Conceptualizing the circular economy: An analysis of 114 definitions. Resour. Conserv. Recycl. 2017, 127, 221–232. [Google Scholar] [CrossRef]
- Moreno, M.; De los Rios, C.; Rowe, Z.; Charnley, F. A Conceptual Framework for Circular Design. Sustainability 2016, 8, 937. [Google Scholar] [CrossRef]
- Charnley, F.; Lemon, M.; Evans, S. Exploring the process of whole system design. Des. Stud. 2011, 32, 156–179. [Google Scholar] [CrossRef]
- Murray, A.; Skene, K.; Haynes, K. The Circular Economy: An Interdisciplinary Exploration of the Concept and Application in a Global Context. J. Bus. Ethics 2017, 140, 369–380. [Google Scholar] [CrossRef]
- Charef, R.; Morel, J.; Rakhshan, K. Barriers to Implementing the Circular Economy in the Construction Industry: A Critical Review. Sustainability 2021, 13, 12989. [Google Scholar] [CrossRef]
- Çetin, S.; De Wolf, C.E.L.; Bocken, N. Circular Digital Built Environment: An Emerging Framework. Sustainability 2021, 13, 6348. [Google Scholar] [CrossRef]
- Osobajo, O.A.; Oke, A.; Omotayo, T.; Obi, L.I. A systematic review of circular economy research in the construction industry. Smart Sustain. Built Environ. 2022, 11, 39–64. [Google Scholar] [CrossRef]
- Zhang, N.; Han, Q.; de Vries, B. Building Circularity Assessment in the Architecture, Engineering, and Construction Industry: A New Framework. Sustainability 2021, 13, 12466. [Google Scholar] [CrossRef]
- Benachio, G.L.F.; Freitas, M.d.C.D.; Tavares, S.F. Circular economy in the construction industry: A systematic literature review. J. Clean. Prod. 2020, 260, 121046. [Google Scholar] [CrossRef]
- Walzberg, J.; Lonca, G.; Hanes, R.J.; Eberle, A.L.; Carpenter, A.; Heath, G.A. Do We Need a New Sustainability Assessment Method for the Circular Economy? A Critical Literature Review. Front. Sustain. 2021, 1. Available online: https://www.frontiersin.org/articles/10.3389/frsus.2020.620047 (accessed on 1 April 2023). [CrossRef]
- Goddin, J.; Marshall, K.; Pereira, A.; Herrmann, S.; Tuppen, C. Circularity Indicators Methodology. Ellen MacArthur Found. Ansys Granta 2019, 1, 1–64. [Google Scholar]
- ISO BS ISO 21931-1:2022; Sustainability in Buildings and Civil Engineering Works. Framework for Methods of Assessment of the Environmental, Social and Economic Performance of Construction Works as a Basis for Sustainability Assessment. 2022. Available online: https://www.iso.org/obp/ui/en/#iso:std:iso:21931:-1:ed-2:v1:en (accessed on 21 May 2023).
- European_Commission Towards a circular economy: A zero waste programme for Europe. COM(2014) 398 final/2. Eur. Comm. 2014. Available online: https://hytechcycling.eu/wp-content/uploads/Towards-a-circular-economy-A-zero-waste-programme-for-Europe.pdf (accessed on 21 May 2023).
- Dodd, N.; Traverso, M.; Donatello, S.; Cordella, M. Level(s): A Common EU framework of core sustainability indicators for office and residential buildings: Parts 1 and 2, introduction to level(s) and how it works (Beta v1.0). Eur. Comm. Jt. Res. Cent. 2017. Available online: https://publications.jrc.ec.europa.eu/repository/handle/JRC109285 (accessed on 21 May 2023).
- Level(s) Common Framework Documents. Available online: https://susproc.jrc.ec.europa.eu/product-bureau/product-groups/412/documents (accessed on 14 April 2023).
- Dodd, N.; Cordella, M.; Donatello, S. Level(s) Indicator 2.4: Design for Deconstruction User Manual: Introductory Briefing, Instructions and Guidance. Joint Research Centre 2021. Available online: https://academy.europa.eu/pluginfile.php/15859/mod_scorm/content/1/resources/75127/76593/UM3_Indicator_2.4_v.2.0_clean_20.07.2021.pdf (accessed on 15 January 2023).
- European Commission DIRECTIVE 2008/98/EC OF THE EUROPEAN PARLIAMENT AND OF THE COUNCIL of 19 November 2008 on Waste and Repealing Certain Directives (Text with EEA Relevance). 2008. Available online: https://eur-lex.europa.eu/legal-content/EN/TXT/?uri=celex%3A32008L0098 (accessed on 21 May 2023).
- Kirchherr, J.; Piscicelli, L.; Bour, R.; Kostense-Smit, E.; Muller, J.; Huibrechtse-Truijens, A.; Hekkert, M. Barriers to the Circular Economy: Evidence from the European Union (EU). Ecol. Econ. 2018, 150, 264–272. [Google Scholar] [CrossRef]
- Khadim, N.; Agliata, R.; Marino, A.; Thaheem, M.J.; Mollo, L. Critical review of nano and micro-level building circularity indicators and frameworks. J. Clean Prod. 2022, 357, 131859. [Google Scholar] [CrossRef]
- Anastasiades, K.; Blom, J.; Audenaert, A. Circular Construction Indicator: Assessing Circularity in the Design, Construction, and End-of-Life Phase. Recycling 2023, 8, 29. [Google Scholar] [CrossRef]
- O’Grady, T.; Minunno, R.; Chong, H.; Morrison, G.M. Design for disassembly, deconstruction and resilience: A circular economy index for the built environment. Resour. Conserv. Recycl. 2021, 175, 105847. [Google Scholar] [CrossRef]
- Incelli, F.; Cardellicchio, L. Designing a steel connection with a high degree of disassembly: A practice-based experience. Techne 2021, 104–113. [Google Scholar] [CrossRef]
- Durmisevic, E. Transformable Building Structures. Design for Disassembly as a Way to Introduce Sustainable Engineering to Building Design & Construction. Ph.D. Thesis, Technische Universiteit Delft, Delft, The Netherlands, 2006. Available online: http://resolver.tudelft.nl/uuid:9d2406e5-0cce-4788-8ee0-c19cbf38ea9a (accessed on 3 May 2023).
- Durmisevic, E. Circular Economy in Construction Design Strategies for Reversible Buildings. The Netherlands, 2019; pp. 1–94. Available online: https://www.bamb2020.eu/wp-content/uploads/2019/05/Reversible-Building-Design-Strateges.pdf (accessed on 21 February 2023).
- Beurskens, P.R.; Durmisevic, E. Increasing reuse potential by taking a whole life-cycle perspective on the dimensional coordination of building products. In Proceedings of the 3rd Green Design Conference Proceedings, Mostar, Bosnia-Herzegovina, 4–8 October 2017; Sarajevo Green Design Foundation: Sarajevo, Bosnia-Herzegovina, 2017; pp. 28–38. Available online: https://ris.utwente.nl/ws/portalfiles/portal/24832189/Conference_Proceedings_3rd_Green_Design_Conference_web.pdf (accessed on 4 April 2023).
- Durmisevic, E.; Berg, M.C.; Atteya, U. Design Support for Revisable Buildings with Focus on Visualizing and simulating Transformation Capacity during Initial Design Phase. In Proceedings of the International HISER Conference on Advances in Recycling and Management of Construction and Demolition Waste, Delft, The Netherlands, 21–23 June 2017; TU Delft Library: Delf, The Netherlands, 2017; pp. 264–270. [Google Scholar]
- Bertino, G.; Kisser, J.; Zeilinger, J.; Langergraber, G.; Fischer, T.; Oesterreicher, D. Fundamentals of Building Deconstruction as a Circular Economy Strategy for the Reuse of Construction Materials. Appl Sci 2021, 11, 939. [Google Scholar] [CrossRef]
- Zhang, C.; Hu, M.; Di Maio, F.; Sprecher, B.; Yang, X.; Tukker, A. An overview of the waste hierarchy framework for analyzing the circularity in construction and demolition waste management in Europe. Sci. Total Environ. 2022, 803, 149892. [Google Scholar] [CrossRef]
- Sáez-de-Guinoa, A.; Zambrana-Vasquez, D.; Fernández, V.; Bartolomé, C. Circular Economy in the European Construction Sector: A Review of Strategies for Implementation in Building Renovation. Energies 2022, 15, 4747. [Google Scholar] [CrossRef]
- van Stijn, A.; Gruis, V. Towards a circular built environment: An integral design tool for circular building components. Smart Sustain. Built Environ. 2020, 9, 635–653. [Google Scholar] [CrossRef]
- van Eck, N.J.; Waltman, L. Citation-based clustering of publications using CitNetExplorer and VOSviewer. Scientometrics 2017, 111, 1053–1070. [Google Scholar] [CrossRef] [PubMed]
- Raworth, K. A Doughnut for the Anthropocene: Humanity’s compass in the 21st century. Lancet Planet. Health 2017, 1, e48–e49. [Google Scholar] [CrossRef] [PubMed]
- Palumbo, E.; Rossetti, M.; Incelli, F.; Panozzo, C.; Camerin, F. Towards the circular building as design practice: A Design for Disassembly case study. In Proceedings of the Conference Pre-Free, Up-Down, Re-Cycle: Pratiche Tradizionali e Tecnologie Innovative per L’end of Waste: 4, Roma, Italy, 28 May 2021; Anteferma: Conegliano, Italy, 2021; pp. 222–235. [Google Scholar]
- Camerin, F.; Incelli, F.; Rossetti, M. Facing Time. Temporary Wooden Housing Units for the Non-Self-Sufficient Elderly. TECHNE-J. Technol. Archit. Environ. 2020, 282–291. Available online: https://oaj.fupress.net/index.php/techne/article/view/8268 (accessed on 29 June 2023).
- Ciampa, F.; Croatto, G.; Rossetti, M.; De Carli, M.; Chinellato, F.; Turrini, U.; Bertolazzi, A.; Incelli, F. Architectural technology responds to the environmental crisis: Participatory design in an emergency context [La tecnologia dell’architettura risponde alla crisi ambientale: La progettazione partecipata in ambito emergenziale]. Valori E Valutazioni 2022, 30, 119–134. [Google Scholar] [CrossRef]
- Mulhall, D.; Braungart, M.; Hansen, K. Creating Buildings with Positive Impacts. 2019. Available online: http://resolver.tudelft.nl/uuid:5eea906e-4d5a-4086-be4b-4cfab969b2a0 (accessed on 17 February 2023).
- Eguez, A. Compliance with the EU waste hierarchy: A matter of stringency, enforcement, and time. J. Environ. Manag. 2021, 280, 111672. [Google Scholar] [CrossRef]
- Jiang, L.; Bhochhibhoya, S.; Slot, N.; de Graaf, R. Measuring product-level circularity performance: An economic value-based metric with the indicator of residual value. Resour. Conserv. Recycl. 2022, 186, 106541. [Google Scholar] [CrossRef]
- Brunet-Navarro, P.; Jochheim, H.; Muys, B. The effect of increasing lifespan and recycling rate on carbon storage in wood products from theoretical model to application for the European wood sector. Mitig. Adapt. Strat. Glob. Chang. 2017, 22, 1193–1205. [Google Scholar] [CrossRef] [PubMed]
- Braakman, L.; Bhochhibhoya, S.; de Graaf, R. Exploring the relationship between the level of circularity and the life cycle costs of a one-family house. Resour. Conserv. Recycl. 2021, 164, 105149. [Google Scholar] [CrossRef]
- Herzog, T.; Krippner, R.; Lang, W. Facade Construction Manual, 3rd ed.; DETAIL Business Information GmbH: Munich, Germany, 2021. [Google Scholar]
- Arup-Ktn. Design Innovation for the Circular Economy the Materials and Design Exchange Project for End-of-Life Building Façades Knowledge Transfer Network. ARUP. 2021. Available online: https://www.arup.com/-/media/arup/files/publications/f/ktn_arup_facade_report_web.pdf (accessed on 25 May 2023).



























| Authors | Publication Title |
|---|---|
| Dokter et al. [1] | How circular is current design practice? Investigating perspectives across industrial design and architecture in the transition towards a circular economy |
| Hart et al. [2] | Barriers and drivers in a circular economy: the case of the built environment |
| Franconi et al. [3] | Multiple Design Perspectives for the Transition to the Circular Economy Managing: Design Strategies Between Systems, Designers and Time |
| Kirchherr et al. [5] | Conceptualizing the circular economy: An analysis of 114 definitions |
| Moreno et al. [6] | A Conceptual Framework for Circular Design |
| Osobajo et al. [11] | A systematic review of circular economy research in the construction industry |
| Zhang et al. [12] | Building Circularity Assessment in the Architecture, Engineering, and Construction Industry: A New Framework |
| Benachio et al. [13] | Circular economy in the construction industry: A systematic literature review |
| Walzberg et al. [14] | Do We Need a New Sustainability Assessment Method for the Circular Economy? A Critical Literature Review |
| Criterion | Description | Rationale 1 |
|---|---|---|
| A | Extensive implementation of DfD principles from the concept-design stage | The research focuses on cutting-edge implementation of DfD in architectural design. |
| B | Concept design based on circular economy principles | Circularity is the underlying prerequisite of this research. |
| C | Design to be detailed for construction and deconstruction | The construction phase and the design phases immediately prior to that often provide effective solutions that design alone, be it concept or detailed, may not provide. This engagement of contractors and the supply chain contributes to effective solutions during the construction phase and design phases leading up to it. Their involvement ensures the practical implementation of circular design strategies and enhances the overall circularity performance of the building. |
| D | Similar material choices, preferably timber | To ensure that the buildings had some level of comparability and to prevent the nature of the material from overshadowing the effect of the connectivity strategy on the circularity indicator (CI) value, similar material choices, preferably timber, were considered. Timber is widely recognised in the literature as a suitable material for circular applications, making it a preferred choice in this study. |
| E | Presence of a deconstruction strategy as project deliverables | To limit the assumptions regarding end-of-life scenarios and avoid unrealistic, though promising, outcomes of the study |
| F | Dimensions of the buildings to be comparable | To reduce the impact of the material masses on the CI evaluation |
| G | Modular design | Modular designs are prone to allowing for circular principle implementation. |
| H | Connectivity strategy based on maximising the complete reversibility of interface connections | Reversibility is one of the fundamental principles of DfD. |
| I | Design location and scope to be comparable (i.e., same country or same region) | To ensure the buildings had similar envelope stratigraphy |
| J | Reversible connections and structural strategy comparable but not identical | To test the capabilities of the protocols used to highlight the link between connectivity and structural strategy and CI and also function as decision-making tools |
| Type of Connection | Waste Hierarchy in Level(s) | Fraction of Material Reuse (MCI) |
|---|---|---|
| Chemical or mechanical bond | Hazardous waste disposal (circularity coefficient = 0.00) Inert or non-hazardous landfill (circularity coefficient = 0.01) Energy recovery (circularity coefficient = 0.15) | 0.00 0.01 0.15 |
| Nails | Pure stream recycling (circularity coefficient = 0.75) Mixed-stream recycling (circularity coefficient = 0.5) | 0.75 0.5 |
| Staples | Preparing for reuse (circularity coefficient = 0.90) | 0.90 |
| Screws | Preparing for reuse (circularity coefficient = 0.90) | 0.90 |
| Bolts | Direct reuse (circularity coefficient = 1.00) | 1.00 |
| Inserts | Direct reuse (circularity coefficient = 1.00) | 1.00 |
| Clasps | Direct reuse (circularity coefficient = 1.00) | 1.00 |
| Pressure joint | Direct reuse (circularity coefficient = 1.00) | 1.00 |
Disclaimer/Publisher’s Note: The statements, opinions and data contained in all publications are solely those of the individual author(s) and contributor(s) and not of MDPI and/or the editor(s). MDPI and/or the editor(s) disclaim responsibility for any injury to people or property resulting from any ideas, methods, instructions or products referred to in the content. |
© 2023 by the authors. Licensee MDPI, Basel, Switzerland. This article is an open access article distributed under the terms and conditions of the Creative Commons Attribution (CC BY) license (https://creativecommons.org/licenses/by/4.0/).
Share and Cite
Incelli, F.; Cardellicchio, L.; Rossetti, M. Circularity Indicators as a Design Tool for Design and Construction Strategies in Architecture. Buildings 2023, 13, 1706. https://doi.org/10.3390/buildings13071706
Incelli F, Cardellicchio L, Rossetti M. Circularity Indicators as a Design Tool for Design and Construction Strategies in Architecture. Buildings. 2023; 13(7):1706. https://doi.org/10.3390/buildings13071706
Chicago/Turabian StyleIncelli, Francesco, Luciano Cardellicchio, and Massimo Rossetti. 2023. "Circularity Indicators as a Design Tool for Design and Construction Strategies in Architecture" Buildings 13, no. 7: 1706. https://doi.org/10.3390/buildings13071706
APA StyleIncelli, F., Cardellicchio, L., & Rossetti, M. (2023). Circularity Indicators as a Design Tool for Design and Construction Strategies in Architecture. Buildings, 13(7), 1706. https://doi.org/10.3390/buildings13071706

