Analysis of Typical Layout of Apartment Buildings in Indonesia
Abstract
1. Introduction
2. Methodology
2.1. Data Collection for Public Apartments
2.2. Data Collection for Private Apartments
2.3. Classification
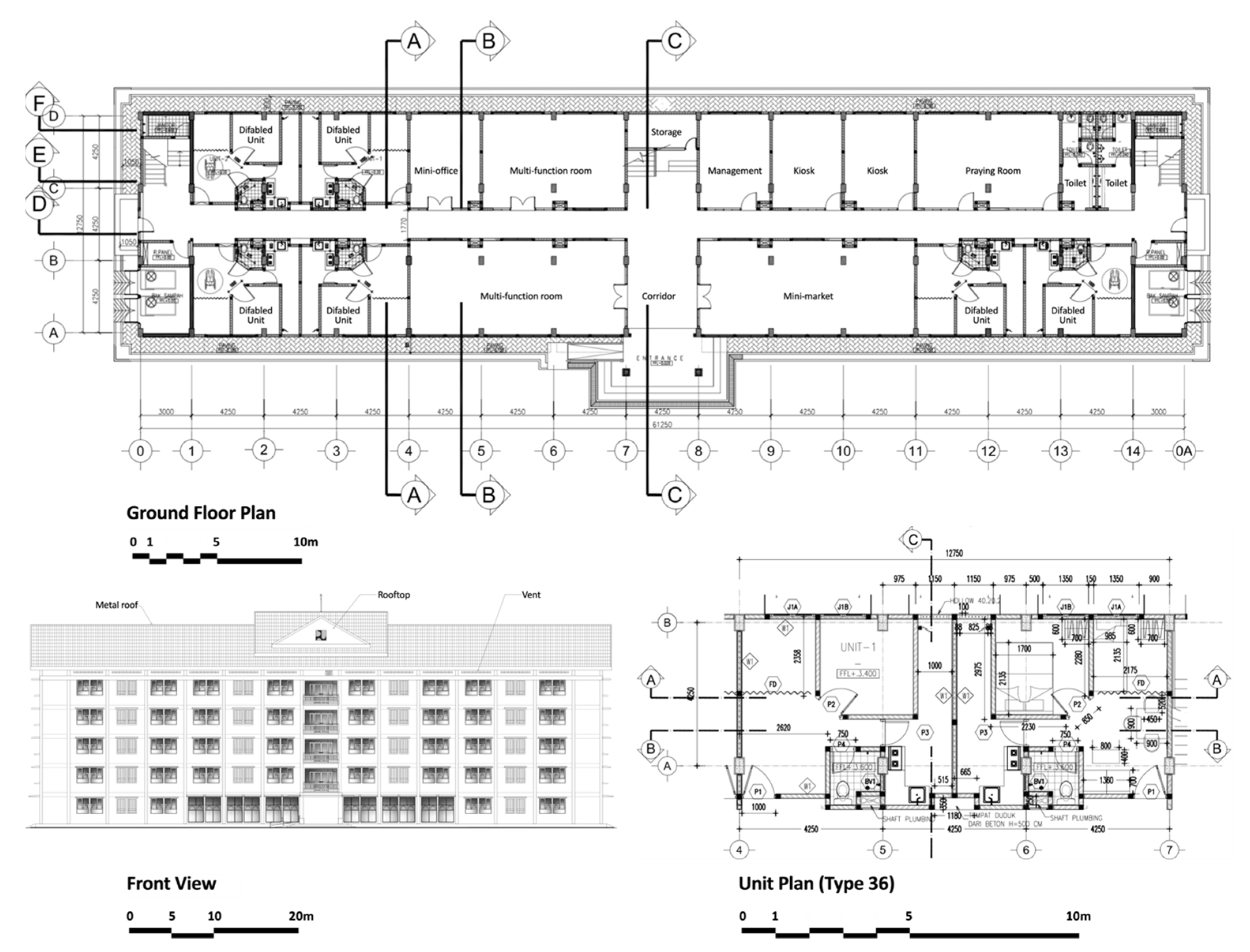
3. Results
3.1. Classification of Public Apartments
3.1.1. Qualitative Analysis
3.1.2. Quantitative Analysis
3.2. Classification of Private Apartments
3.2.1. Qualitative Analysis
3.2.2. Quantitative Analysis
4. Discussion
5. Conclusions
- In total, six typical layouts for public apartments and thirteen typical layouts for private apartments were determined for both 1BR and 2BR units through a cluster analysis. Furthermore, four typical unit layouts from public and private apartments associated with building-scale classifications, respectively, were proposed as the base models for the current typical apartments in Indonesia. The proposed typical unit layouts can be used for various kinds of building simulations and building standardizations in the future.
- In public apartments, the average unit size increased from 27.1 m2 to 32.3 m2 over the last few decades. However, the number of rooms increased at the same time, and therefore, the individual room size was reduced instead. Indonesian public apartments tended to sacrifice semi-open spaces such as a wide corridor and an internal void space, to increase the size of units and the number of rooms. These tendencies may lead to the deterioration of indoor environmental conditions, such as natural ventilation and daylight.
Author Contributions
Funding
Data Availability Statement
Acknowledgments
Conflicts of Interest
References
- Vossoughian, N. Standardization Reconsidered: Normierung in and after Ernst Neufert’s Bauentwurfslehre (1936). Grey Room 2014, 54, 34–55. [Google Scholar] [CrossRef]
- Foster, S.; Hooper, P.; Kleeman, A.; Martino, E.; Giles-Corti, B. The high life: A policy audit of apartment design guidelines and their potential to promote residents’ health and wellbeing. Cities 2020, 96, 102420. [Google Scholar] [CrossRef]
- Tamura, Y.; Ohkuma, T.; Okada, H.; Kanda, J. Wind loading standards and design criteria in Japan. J. Wind. Eng. Ind. Aerodyn. 1999, 83, 555–566. [Google Scholar] [CrossRef]
- Hyde, R. Improving the building typology. Archit. Sci. Rev. 2018, 61, 97–98. [Google Scholar] [CrossRef]
- Tereci, A.; Ozkan, S.T.E.; Eicker, U. Energy benchmarking for residential buildings. Energy Build. 2013, 60, 92–99. [Google Scholar] [CrossRef]
- Schaefer, A.; Ghisi, E. Method for obtaining reference buildings. Energy Build 2016, 128, 660–672. [Google Scholar] [CrossRef]
- Famuyibo, A.A.; Duffy, A.; Strachan, P. Developing archetypes for domestic dwellings-An Irish case study. Energy Build. 2012, 50, 150–157. [Google Scholar] [CrossRef]
- EU. Directive 2010/31/EU of the European Parliament and of the Council on the Energy Performance of Buildings; European Union: Maastricht, The Netherlands, 2010. [Google Scholar]
- Attia, S.; Evrard, A.; Gratia, E. Development of benchmark models for the Egyptian residential buildings sector. Appl. Energy 2012, 94, 270–284. [Google Scholar] [CrossRef]
- Horváth, M.; Kassai-Szoó, D.; Csoknyai, T. Solar energy potential of roofs on urban level based on building typology. Energy Build. 2016, 111, 278–289. [Google Scholar] [CrossRef]
- Kragh, J.; Wittchen, K.B. Development of two Danish building typologies for residential buildings. Energy Build. 2014, 68, 79–86. [Google Scholar] [CrossRef]
- Loga, T.; Stein, B.; Diefenbach, N. TABULA building typologies in 20 European countries—Making energy-related features of residential building stocks comparable. Energy Build. 2016, 132, 4–12. [Google Scholar] [CrossRef]
- Berrill, P.; Gillingham, K.T.; Hertwich, E.G. Linking housing policy, housing typology, and residential energy demand in the United States. Environ. Sci. Technol. 2021, 55, 2224–2233. [Google Scholar] [CrossRef] [PubMed]
- Ishikawa, T.; Nakata, S.; Asami, Y. Perception and conceptualization of house floor plans: An experimental analysis. Environ. Behav. 2010, 43, 233–251. [Google Scholar] [CrossRef]
- Nijskens, R.; Lohuis, M.; Hilbers, P.; Heeringa, W. Hot Property: The Housing Market in Major Cities; Springer International Publishing: Cham, Switzerland, 2019. [Google Scholar] [CrossRef]
- Soeranto, D.A. Dinamika Pengembangan Perumahan Skala Besar; PUPR: Jakarta, Indonesia, 2020. [Google Scholar]
- International Energy Agency. 2021 Global Status Report for Buildings and Construction: Towards a Zero-EMISSIONS, EFFICIent and Resilient Buildings and Construction Sector; International Energy Agency: Paris, France, 2021. [Google Scholar]
- Government of Indonesia. Indonesia Long-Term Strategy for Low Carbon and Climate Resilience 2050 (Indonesia LTS-LCCR 2050); Government of Indonesia: Jakarta, Indonesia, 2021. [Google Scholar]
- International Energy Agency. Southeast Asia Energy Outlook 2022. 2022. Available online: www.iea.org/t&c/ (accessed on 6 June 2022).
- Sueca, N.P. Typology of flat towers in Indonesia. J. Civ. Eng. Archit. Built Environ. 2017, 1, 1. [Google Scholar]
- Faradisa, S.; Ariastita, P.G.; Septanaya, I.D.M.F. Tipologi Rusunawa di Kota Surabaya. J. Tek. ITS 2020, 9. [Google Scholar]
- Tong, Z.; Chen, Y.; Malkawi, A.; Liu, Z.; Freeman, R.B. Energy saving potential of natural ventilation in China: The impact of ambient air pollution. Appl. Energy 2016, 179, 660–668. [Google Scholar] [CrossRef]
- Prajongsan, P.; Sharples, S. Enhancing natural ventilation, thermal comfort and energy savings in high-rise residential buildings in Bangkok through the use of ventilation shafts. Build. Environ. 2012, 50, 104–113. [Google Scholar] [CrossRef]
- Kubota, T.; Chyee, D.T.H.; Ahmad, S. The effects of night ventilation technique on indoor thermal environment for residential buildings in hot-humid climate of Malaysia. Energy Build. 2009, 41, 829–839. [Google Scholar] [CrossRef]
- Melo, A.; Sorgato, M.; Lamberts, R. The effect of window opening ventilation control on residential building energy consumption. Energy Build. 2016, 133, 1–13. [Google Scholar] [CrossRef]
- He, Y.; Li, N.; He, M.; He, D. Using radiant cooling desk for maintaining comfort in hot environment. Energy Build. 2017, 145, 144–154. [Google Scholar] [CrossRef]
- Memon, R.; Chirarattananon, S.; Vangtook, P. Thermal comfort assessment and application of radiant cooling: A case study. Build. Environ. 2008, 43, 1185–1196. [Google Scholar] [CrossRef]
- Al-Absi, Z.A.; Hafizal, M.I.M.; Ismail, M. ‘Innovative PCM-incorporated foamed concrete panels for walls’ exterior cladding: An experimental assessment in real-weather conditions. Energy Build. 2023, 288, 113003. [Google Scholar] [CrossRef]
- Musiał, M.; Lichołai, L. The impact of a mobile shading system and a phase-change heat store on the thermal functioning of a transparent building partition. Materials 2021, 14, 2512. [Google Scholar] [CrossRef]
- Kitagawa, H.; Asawa, T.; Kubota, T.; Trihamdani, A.R.; Sakurada, K.; Mori, H. Optimization of window design for ventilative cooling with radiant floor cooling systems in the hot and humid climate of Indonesia. Build. Environ. 2021, 188, 107483. [Google Scholar] [CrossRef]
- Kitagawa, H.; Asawa, T.; Kubota, T.; Trihamdani, A.R. Numerical simulation of radiant floor cooling systems using PCM for naturally ventilated buildings in a hot and humid climate. Build. Environ. 2022, 226, 109762. [Google Scholar] [CrossRef]
- Kitagawa, H.; Asawa, T.; Kubota, T.; Trihamdani, A.R.; Mori, H. Thermal storage effect of radiant floor cooling system using phase change materials in the hot and humid climate of Indonesia. Build. Environ. 2022, 207, 108442. [Google Scholar] [CrossRef]
- Kitagawa, H.; Asawa, T.; Del Rio, M.A.; Kubota, T.; Trihamdani, A.R. Thermal energy simulation of PCM-based radiant floor cooling systems for naturally ventilated buildings in a hot and humid climate. Build. Environ. 2023, 238, 110351. [Google Scholar] [CrossRef]
- Soeranto, D.A. Perjalanan Lima Tahun Program Sejuta Rumah; Yayasan Badan Penerbit Pekerjaan Umum: Jakarta, Indonesia, 2019. [Google Scholar]
- Indonesian Ministry of Public Works and Housing. Informasi Statistik Infrastruktur PUPR 2021; Indonesian Ministry of Public Works and Housing: Jakarta, Indonesia, 2021. [Google Scholar]
- Indonesian Ministry of Public Works and Housing. Ministry of Public Works Regulation No.05/2007 on the Technical Guidelines for Public Apartment Construction; Indonesian Ministry of Public Works and Housing: Jakarta, Indonesia, 2007. [Google Scholar]
- Slovin, E. Slovin’s Formula for Sampling Technique. Available online: https://www.statisticshowto.com/probability-and-statistics/how-to-use-slovins-formula/ (accessed on 21 April 2023).
- Government of Indonesia. Government Regulation 13/2021; Government of Indonesia: Jakarta, Indonesia, 2021. [Google Scholar]
- BPS RI. Konstruksi Dalam Angka 2020; BPS RI: Jakarta, Indonesia, 2020. [Google Scholar]
- Watkins, C.A. The definition and identification of housing submarkets. Environ. Plan A 2001, 33, 2235–2253. [Google Scholar] [CrossRef]
- Kaiser, H.F. An Index of Factorial Simplicity. Psychometrika 1974, 39, 31–36. [Google Scholar] [CrossRef]
- Hair, J.F.; Black, W.C.; Babin, B.J.; Anderson, R.E. Multivariate Data Analysis, 7th ed.; Pearson: London, UK, 2009. [Google Scholar]
- Jeong, S.K.; Ban, Y.U. The spatial configurations in South Korean apartments built between 1972 and 2000. Habitat Int. 2014, 42, 90–102. [Google Scholar] [CrossRef]
- Brkanić, I.; Stober, D.; Mihić, M. A comparative analysis of the spatial configuration of apartments built in Osijek, Croatia, between 1930 and 2015. J. Asian Archit. Build. Eng. 2018, 17, 23–30. [Google Scholar] [CrossRef]
- Gao, X.; Asami, Y.; Zhou, Y.; Ishikawa, T. Preferences for Floor Plans of Medium-Sized Apartments: A Survey Analysis in Beijing, China. Hous. Stud. 2013, 28, 429–452. [Google Scholar] [CrossRef]
- Ornstein, S.W.; Villa, S.B.; Ono, R. Residential high-rise buildings in São Paulo: Aspects related to the adequacy to the occupant’s needs. J. Hous. Built Environ. 2010, 26, 73–84. [Google Scholar] [CrossRef]
- Ju, S.R.; Lee, L.; Jeon, S.Y. The typologies of block and unit plan in Malaysian apartments-Focused on middle cost houses supplied by the private sector. J. Asian Archit. Build. Eng. 2014, 13, 397–404. [Google Scholar] [CrossRef]
- Guney, Y.I.; Wineman, J. The Evolving Design of 20th-Century Apartments in Ankara. Environ. Plann. B Plann. Des. 2008, 35, 627–646. [Google Scholar] [CrossRef]
- Kotani, H.; Satoh, R.; Yamanaka, T. Natural ventilation of light well in high-rise apartment building. Energy Build. 2003, 35, 427–434. [Google Scholar] [CrossRef]
- Kumar, N.; Bardhan, R.; Kubota, T.; Tominaga, Y.; Shirzadi, M. Parametric study on vertical void configurations for improving ventilation performance in the mid-rise apartment building. Build. Environ. 2022, 215, 108969. [Google Scholar] [CrossRef]
- Ju, S.R.; Oh, J.E. Design elements in apartments for adapting to climate: A comparison between Korea and Singapore. Sustainability 2020, 12, 3244. [Google Scholar] [CrossRef]
- Kumar, N.; Kubota, T.; Tominaga, Y.; Shirzadi, M.; Bardhan, R. CFD simulations of wind-induced ventilation in apartment buildings with vertical voids: Effects of pilotis and wind fin on ventilation performance. Build. Environ. 2021, 194, 107666. [Google Scholar] [CrossRef]
- Kisnarini, R.; Krisdianto, J.; Indrawan, I.A. Contribution of Balcony on Thermal Comfort Rusunawa, Kisnarini, 2018. Open House Int. 2018, 43, 14–21. [Google Scholar] [CrossRef]
- Kisnarini, R.; Post, J.; Van E, E.; Mohammadi, M. Providing Adaptability of Space to Ensure Sustainable Living in Low-Cost Housing in Indonesia. Procedia Soc. Behav. Sci. 2015, 179, 222–229. [Google Scholar] [CrossRef]

























| Categories | Cities | Samples | % |
|---|---|---|---|
| Megapolitan City | 1 | 64 | 23.8 |
| Metropolitan City | 10 | 137 | 51.1 |
| Large City | 5 | 35 | 13.1 |
| Medium City | 4 | 32 | 11.9 |
| Total | 20 | 268 |
| Categories | Cities | Samples | % |
|---|---|---|---|
| Megapolitan city | 1 | 68 | 25.3 |
| Metropolitan city | 8 | 200 | 74.6 |
| Total | 9 | 268 |
| Sample | Condominium | Rusunami | Total |
|---|---|---|---|
| Building | 220 | 48 | 268 |
| 1BR units | 382 | 88 | 470 |
| 2BR units | 324 | 93 | 417 |
| Categories | Variants | ||||||
|---|---|---|---|---|---|---|---|
| Building Scale | Heights | Low-rise Building <5 floors (L) | Medium-rise Building 5–8 floors (M) | High-rise Building >8 floors (H) | |||
| Corridor Types | Single-loaded Corridor (S) | Double-loaded Corridor (D) | |||||
| Main Upper Structure | Conventional Reinforced concrete (CRC) | Precast Concrete (PC) | |||||
| Unit Scale | Unit Type * | 21 | 24 | 27 | 30 | 36 | 45 |
| Balcony | With Balcony (W) | No Balcony (N) | |||||
| Inside Balcony | Outdoor Half/Full Balcony | ||||||
| Floor Plan Types | Open Plan (O) | Fixed Plan (F) | |||||
| Room Arrangement | Bedroom (BR) and living room (LR) adjacent to the width of the unit | Bedroom (BR) and living room (LR) adjacent to the length of the unit | |||||
| Toilet Types | Positioned next to the corridor/entrance | Positioned next to the outdoor side | |||||
| Categories | Variants | |||||
|---|---|---|---|---|---|---|
| Rusunami (RM) | Building Scale | Height | <21 floors (H1) | 21–40 floors (H2) | >40 floors (H3) | |
| Unit Scale | Room Arrangement | Bedroom (BR) and living room (LR) adjacent to the width of the unit | Bedroom (BR) and living room (LR) adjacent to the length of the unit | |||
| Balcony Types | Inside Balcony | Outdoor Half Balcony | Outdoor Full Balcony | No Balcony | ||
| Toilet Types | Positioned next to the corridor/entrance | Positioned next to the outdoor side | ||||
| Condominium (CD) | Building Scale | Heights | <21 floors (H1) | 21–40 floors (H2) | >40 floors (H3) | |
| Unit Scale | Room Arrangement | Bedroom (BR) and living room (LR) adjacent to the width of the unit | Bedroom (BR) and living room (LR) adjacent to the length of the unit | |||
| Balcony Types | Inside Balcony | Outdoor Half Balcony | Outdoor Full Balcony | No Balcony | ||
| ToiletTypes | Positioned next to the corridor/entrance | Positioned next to the outdoor side | ||||
| No | 1BR | 2BR |
|---|---|---|
| 1 | Year of construction | Year of construction |
| 2 | Unit size | Unit size |
| 3 | Total opening size | Total opening size |
| 4 | Wall-to-floor area ratio (WFR) | Wall-to-floor area ratio (WFR) |
| 5 | Window-to-wall area ratio (WWR) | Window-to-wall area ratio (WWR) |
| 6 | Ceiling height | Ceiling height |
| 7 | External wall size | External wall size |
| 8 | External window size | External window size |
| 9 | Balcony size | Balcony size |
| 10 | Type A1: Unit layout | Type A: Unit layout |
| 11 | Type A2: Unit layout | Type B: Unit layout |
| 12 | Type B1: Unit layout | |
| 13 | Type C: Unit layout | |
| 14 | Number of bedrooms |
| a. 1BR Unit Types (n = 162) | b. 2BR Unit Types (n = 106) | |||||
|---|---|---|---|---|---|---|
| Specifications | A1b | A1d | B1b | B1d | D2a | E1a |
| Cluster (%) | 27.8 | 19.1 | 20.4 | 32.7 | 71.7 | 28.3 |
| Unit size (m2) | 24.7 | 23.8 | 25.3 | 35.3 | 35.4 | 41.7 |
| Floor to ceiling (m) | 2.9 | 2.8 | 2.7 | 2.7 | 2.9 | 2.6 |
| WFR (%) | 29.8 | 24.6 | 33.0 | 26.0 | 22.4 | 26.3 |
| WWR (%) | 22.9 | 28.6 | 28.6 | 27.8 | 23.9 | 30.5 |
| Balcony size (m2) | 1.9 | - | 2.1 | - | 2.0 | 2.9 |
| Door and window size (m2) | 7.4 | 5.9 | 8.3 | 9.1 | 7.9 | 11.0 |
| Outdoor window size (m2) | 2.7 | 3.3 | 3.3 | 4.5 | 3.3 | 6.5 |
| Outdoor wall size (m2) | 12.0 | 11.6 | 11.4 | 16.2 | 14.1 | 21.3 |
| No | 1BR | 2BR |
|---|---|---|
| 1 | Unit size | Unit size |
| 2 | Bedroom size | Bedroom 1 size |
| 3 | Toilet size | Bedroom 2 size |
| 4 | Number of balcony | Total number of toilet |
| 5 | Balcony size | Toilet 1 size |
| 6 | Number of windows | Toilet 2 size |
| 7 | Type A1a: Unit layout | Number of balcony |
| 8 | Type A1c: Unit layout | Balcony 1 size |
| 9 | Type A1d: Unit layout | Balcony 2 size |
| 10 | Type A2: Unit layout | Number of doors |
| 11 | Total number of windows | |
| 12 | Bedroom 1: Number of windows | |
| 13 | Bedroom 2: Number of windows | |
| 14 | Type A1a: Unit layout | |
| 15 | Type A1b: Unit layout | |
| 16 | Type A3b: Unit layout | |
| 17 | Type A4a: Unit layout | |
| 18 | Type A4b: Unit layout | |
| 19 | Type A5: Unit layout | |
| 20 | Type A6: Unit layout |
| Specifications | A.1.a | A.1.b | A.1.c | A.1.d | A.2.a | C.1.b |
|---|---|---|---|---|---|---|
| Cluster (%) | 42.1 | 18.9 | 9.87 | 10.9 | 11.4 | 6.84 |
| Unit size (m2) | 22.1 | 26.1 | 31.7 | 23.1 | 26.2 | 38.7 |
| BR size (m2) | 11.6 | 12.3 | 14.7 | 13.1 | 11.6 | 11.3 |
| No of toilet | 1.00 | 1.00 | 1.00 | 1.00 | 1.00 | 1.00 |
| Toilet size (m2) | 2.61 | 2.75 | 3.99 | 3.10 | 3.23 | 3.44 |
| No of balcony | 1.00 | 1.00 | 1.00 | 0.49 | 1.00 | 1.00 |
| Balcony size (m2) | 1.48 | 1.50 | 3.22 | 0.91 | 2.01 | 2.37 |
| No of doors | 3.00 | 3.40 | 3.22 | 2.00 | 3.29 | 3.89 |
| No of windows | 1.14 | 1.42 | 0.99 | 1.19 | 1.12 | 1.20 |
| Specifications | D.1.a | D.1.b | D.2.a | D.3.a | D.3.b | E.3.a | E.3.b |
|---|---|---|---|---|---|---|---|
| Cluster (%) | 10.5 | 6.42 | 11.9 | 14.2 | 9.8 | 34.5 | 12.9 |
| Unit size (m2) | 49.1 | 47.7 | 48.4 | 41.7 | 41.5 | 54.9 | 61.0 |
| BR1 size (m2) | 9.05 | 8.2 | 9.38 | 8.2 | 8.3 | 8.46 | 9.3 |
| BR2 size (m2) | 12.1 | 11.5 | 12.2 | 11.1 | 10.9 | 12.2 | 13.4 |
| No of toilet | 1.0 | 1.0 | 1.18 | 1.0 | 1.0 | 1.28 | 1.3 |
| Toilet avg. size (m2) | 4.11 | 3.58 | 3.54 | 3.4 | 3.46 | 3.52 | 3.4 |
| No of balcony | 0.80 | 1.2 | 1.0 | 1.0 | 1.0 | 1.0 | 1.4 |
| Balcony size (m2) | 3.08 | 2.25 | 2.49 | 2.2 | 1.91 | 2.36 | 2.2 |
| No of doors | 4.75 | 5.1 | 5.18 | 5.1 | 5.0 | 5.31 | 5.7 |
| No of LR windows | 0.61 | 0.2 | 0.26 | 0.7 | 1.0 | 0.45 | 0.2 |
| No of BR1 windows | 0.56 | 0.2 | 0.5 | 0.4 | 0.5 | 0.73 | 0.7 |
| No of BR2 windows | 1.05 | 1.0 | 1.06 | 1.0 | 0.7 | 1.07 | 1.3 |
Disclaimer/Publisher’s Note: The statements, opinions and data contained in all publications are solely those of the individual author(s) and contributor(s) and not of MDPI and/or the editor(s). MDPI and/or the editor(s) disclaim responsibility for any injury to people or property resulting from any ideas, methods, instructions or products referred to in the content. |
© 2023 by the authors. Licensee MDPI, Basel, Switzerland. This article is an open access article distributed under the terms and conditions of the Creative Commons Attribution (CC BY) license (https://creativecommons.org/licenses/by/4.0/).
Share and Cite
Prasetya, A.; Ho, A.D.; Kubota, T. Analysis of Typical Layout of Apartment Buildings in Indonesia. Buildings 2023, 13, 1387. https://doi.org/10.3390/buildings13061387
Prasetya A, Ho AD, Kubota T. Analysis of Typical Layout of Apartment Buildings in Indonesia. Buildings. 2023; 13(6):1387. https://doi.org/10.3390/buildings13061387
Chicago/Turabian StylePrasetya, Andhika, Anh Dung Ho, and Tetsu Kubota. 2023. "Analysis of Typical Layout of Apartment Buildings in Indonesia" Buildings 13, no. 6: 1387. https://doi.org/10.3390/buildings13061387
APA StylePrasetya, A., Ho, A. D., & Kubota, T. (2023). Analysis of Typical Layout of Apartment Buildings in Indonesia. Buildings, 13(6), 1387. https://doi.org/10.3390/buildings13061387

