Mosque Typo-Morphological Classification for Pattern Recognition Using Shape Grammar Theory and Graph-Based Techniques
Abstract
1. Introduction
2. Literature Review
3. The Term Classification
4. Type and Typology
4.1. Typology in Architecture
4.2. Morphology in Architecture
4.3. Typo-Morphology in Architecture
5. Shape Grammar
5.1. The Concept of Shape Grammar
- Morphological characteristics, which deal with the examination of form and its properties.
- Mathematical properties that enable the use of mathematical analysis to determine proportions.
- Functional characteristics specify the boundaries of the functional spaces.
- Typological characteristics that specify the connections between the elements.
- Spatial characteristics specify where an element is located within a system or a group.
- Classification; refers to the process of grouping components or styles that have similar qualities together.
- Analyzing; involves identifying a certain style’s morphological and mathematical components.
- Evaluation; the process of determining the context of a certain element within an architectural language.
- Generation; the development of a variety of options using the same architectural language.
5.2. Element and Types of Shape Grammar
- Shapes: represented as S.
- Symbols: a certain set of symbols L, termed labels, can characterize the states of each shape. The Labeled Shape has the shape and labels.
- Shape Rules: a set of shape rules, R, with two identified shapes separated by arrows (α → β). It includes forms and spatial relations.
- The design’s initial shape, labeled Shape I.
5.3. Shape Grammar as an Analytical Tool
5.4. Shape Grammar Application in Architectural Classification
6. Pattern Recognition
6.1. What Is Pattern Recognition
6.2. Pattern Recognition Types
6.3. Pattern Recognition Approaches
6.4. Graph-Based Pattern Recognition
7. Research Methodology
7.1. Step One
7.2. Step Two
7.3. Step Three
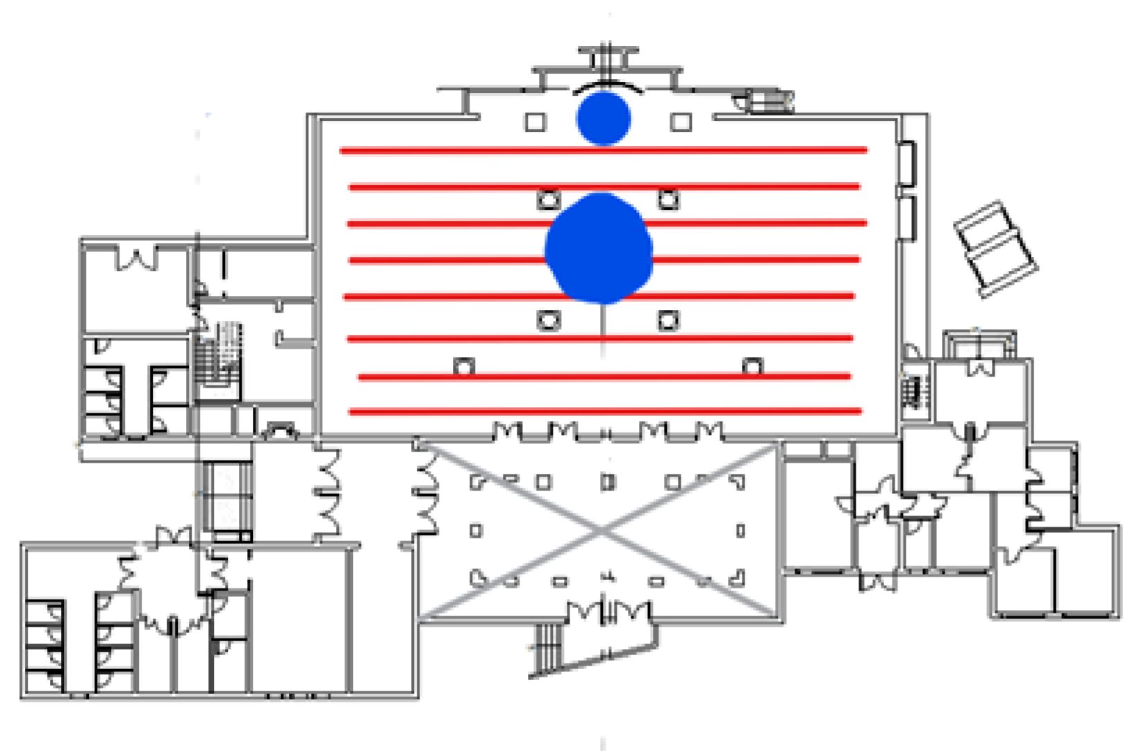
- Spatial arrangement.
- Visual weight distribution.
- Prayer hall 2-dimensional shape.
- Prayer hall 3-dimensional form.
- Morphological element relationship.
- Abstract syntactical layout pattern.
- Abstract morphometric layout pattern.
Mosque Shape Grammar—Mosque Prototypes
7.4. Step Four—Exact Matching
8. Findings
9. Conclusions
Author Contributions
Funding
Data Availability Statement
Acknowledgments
Conflicts of Interest
References
- Okuyucu, S.E. Evaluation of spatial fictions, design concepts, aesthetic quests of traditional, modern mosques from past to present and the analysis of mosque samples. Civ. Eng. Archit. 2016, 4, 54–66. [Google Scholar] [CrossRef]
- Macaulay, D. Mosque, 1st ed.; Houghton Mifflin Harcourt: Boston, MA, USA, 2008. [Google Scholar]
- Farrag, E. Architecture of Mosques and Islamic Centers in Non-Muslim Context. Alex. Eng. J. 2017, 56, 613–620. [Google Scholar] [CrossRef]
- Othman, R.; Inangda, N.; Ahmad, Y. A Typological Study of Mosque Internal Spatial Arrangement: A Case Study on Malaysian Mosques (1700–2007). J. Des. Built Environ. 2008, 4, 41–54. [Google Scholar]
- Khan, H.U. The architecture of the mosque, an overview and design directions. In Expressions of Islam in Buildings; Salam, H., Ed.; Concept Media/The Aga Khan Award for Architecture: Singapore, 1990; pp. 109–127. [Google Scholar]
- Hussein, K.A.; Ismaeel, E.H. Shape Grammar Strategies for Representing the Built Heritage. Al-Qadisiyah J. Eng. Sci. 2020, 13, 189–199. [Google Scholar] [CrossRef]
- Hoag, J.D. Islamic Architecture: History of World Architecture, 1st ed.; Rizzoli Intl Pubns: New York, NY, USA, 1 January 2004. [Google Scholar]
- Munes or Monis, Hussein “Mosques”; World of Knowledge series; National Council for Culture, Arts and Literature: Kuwait City, Kuwait, 1981; 37.
- Khachan, L. Form and Function of Northeast Ohio Mosques. Master’s Thesis, University of Akron, Akron, OH, USA, 2008. [Google Scholar]
- Hakim, N. Mosque Architecture Past and Present. In Sacred Buildings: A Design Manual; Birkhäuser Verlag: Basel, Switzerland, 2008; pp. 46–53. [Google Scholar] [CrossRef]
- Alkhaled, Z. Contemporary Mosques: Conventional and Innovative Approach in Mosque Design at Turkey. J. Des. Studio 2019, 1, 37–44. [Google Scholar]
- Hillenbrand, R. The mosque in the medieval Islamic world. In Architecture in Continuity; Aperture: New York, NY, USA, 1985; pp. 33–51. [Google Scholar]
- Taher, A.N. Common Phenomena in Mosque Architecture: An Inductive, Comparative Study of the Axis in Religious Buildings. Master’s Thesis, Department of Architectural Engineering, University of Baghdad, Baghdad, Iraq, 1994. [Google Scholar]
- Aazam, Z. The social logic of the mosque: A study in building typology. The social logic of the mosque: A study in the relationships between building typology and urban morphology. In Proceedings of the 6th International Space Syntax Symposium, Istanbul, Turkey, 12–15 June 2007; Volume 58, pp. 1–18. [Google Scholar]
- Jahić, E. Stylistic expressions in the 20th century mosque architecture. Prost. Znan. Časopis Za Arhit. I Urban. 2008, 16, 2–21. [Google Scholar]
- Mustafa, F.A.; Hassan, A.S. Mosque layout design: An analytical study of mosque layouts in the early Ottoman period. Front. Archit. Res. 2013, 2, 445–456. [Google Scholar] [CrossRef]
- Ahmad, A.A.; Ali, A.; Zin, M.; Arbi, E. Typology of interior architecture for traditional mosques in peninsular Malaysia from 1700–1900 AD. J. Al-Tamaddun 2013, 8, 89–100. Available online: https://samudera.um.edu.my/index.php/JAT/article/view/8664 (accessed on 18 June 2021). [CrossRef]
- Loukma, M.; Stefanidou, M. The Morphology and Typology of the Ottoman Mosques of Northern Greece. Int. J. Herit. Archit. Stud. Repairs Maintence 2017, 1, 78–88. [Google Scholar] [CrossRef]
- Elkhateeb, A.; Attia, M.; Balila, Y.; Adas, A. The classification of prayer halls in modern Saudi masjids: With special reference to the city of Jeddah. Archnet-IJAR Int. J. Archit. Res. 2018, 12, 246. [Google Scholar] [CrossRef]
- Mustafa, F.A.; Ismael, Z.K. A typological Study of the Historical Mosques in Erbil City. Sulaimania J. Eng. Sci. 2019, 6. [Google Scholar] [CrossRef]
- Rashid, M. Islamic Architecture: An Architecture of the Ephemeral 2020. Available online: http://hdl.handle.net/1808/30156 (accessed on 9 November 2022).
- Ardalan, N. The Visual Language of Symbolic Form: 18 A Preliminary Study of Mosque Architecture. In Architecture as Symbol and Self-Identity, Proceedings of the Seminar, Fez, Morocco, 9–12 October 1979; Aga Khan Award for Architecture: Philadelphia, PA, USA, 1980; pp. 18–36. [Google Scholar]
- Al-Omari, H.R. Modern Mosque Architecture in Iraq-An Analytical Field Study of Baghdad Mosque Architecture Since World War II. Master’s Thesis, Department of Architectural Engineering, University of Baghdad, Baghdad, Iraq, 1988. [Google Scholar]
- Prochazka, A.B. Architecture of the Islamic Cultural Sphere: MOSQUES; MARP (Muslim Architectural Research Program): Mansfield, UK, 1986. [Google Scholar]
- Al-Jameel, H.; Younis, M.D.; Hamed, M.R. Congregational Mosques Classification Using Pattern Recognition Method. AL-Rafdain Eng. J. (AREJ) 2013, 21, 71–87. [Google Scholar] [CrossRef]
- Cherif, I.; Bouhoula, N.A. Ancient Tunisian mosques: Morphological knowledge and classification. Int. J. Herit. Archit. 2017, 1, 503–511. [Google Scholar] [CrossRef]
- Hjørland, B.; Nissen Pedersen, K. A substantive theory of classification for information retrieval. J. Doc. 2005, 61, 582–597. [Google Scholar] [CrossRef]
- McKelvey, B. Organizational systematics: Taxonomic lessons from biology. Manag. Sci. 1978, 24, 1428–1440. [Google Scholar] [CrossRef]
- Kwasnik, B.H. The role of classification in knowledge representation and discovery. Library Trends 1999, 48, 22–47. [Google Scholar]
- Jacob, E.K. Classification and categorization: A difference that makes a difference. Libr. Trends 2004, 52, 515–540. [Google Scholar]
- Miller, D. Configurations revisited. Strateg. Manag. J. 1996, 17, 505–512. [Google Scholar] [CrossRef]
- Rich, P. The organizational taxonomy: Definition and design. Acad. Manag. Rev. 1992, 17, 758–781. [Google Scholar] [CrossRef]
- Hjørland, B. Core classification theory: A reply to Szostak. J. Doc. 2008, 64, 333–342. [Google Scholar] [CrossRef]
- Procter, P. Cambridge International Dictionary of English. Ph.D. Thesis, Univerza v Mariboru, Ekonomsko-poslovna fakulteta, Maribor, Slovenia, 2000. [Google Scholar]
- McHenry, C. The New Encyclopedia Britannica, 3rd ed.; Encyclopedia Britannica. Inc.: Chicago, IL, USA, 1992; 1150p. [Google Scholar]
- Wojtowicz, J.; Fawcett, W. Architecture: Formal Approach; Academy Editions & St. Martin’s Press: London, UK; New York, NY, USA, 1986. [Google Scholar]
- Memarian, G.; Tabarsee, M. Type and typology of architecture. Iran. Sci. Archit. Soc. Archit. Urban Plan. 1986, 6, 103–114. [Google Scholar]
- Majeed, M.N.; Mustafa, F.A.; Husein, H.A. Impact of building typology on daylight optimization using building information modeling: Apartments in Erbil city as a case study. J. Daylighting 2019, 6, 187–201. [Google Scholar] [CrossRef]
- Ching, F.D. Architecture: Form, Space, and Order; John Wiley & Sons: Hoboken, NJ, USA, 13 October 2014. [Google Scholar]
- Doty, D.H.; Glick, W.H. Typologies as a unique form of theory building: Toward improved understanding and modeling. Acad. Manag. Rev. 1994, 19, 230–251. [Google Scholar] [CrossRef]
- Hameed, A.M. Type and Typology in Architecture. Ph.D. Thesis, Al-Nahrain University, Baghdad, Iraq, 2011. [Google Scholar] [CrossRef]
- Pearce, P.J. Principles of morphology and the future of architecture. Int. J. Space Struct. 1996, 11, 103–114. [Google Scholar] [CrossRef]
- Saci, A.B. Une théorie générale de l’architecture: Morphometrie & modélisation systémique. Ph.D. Thesis, Université Jean Moulin, Lyon, France, 2000. [Google Scholar]
- Ali, L.A.; Mustafa, F.A. The state-of-the-art knowledge, techniques, and simulation programs for quantifying human visual comfort in mosque buildings: A systematic review. Ain Shams Eng. J. 2023, 12, 102128. [Google Scholar] [CrossRef]
- Moudon, A.V. The Changing Morphology of Suburban Neighborhoods. In Typological Process and Design Theory; Petruccioli, A., Ed.; Aga Khan Program for Islamic Architecture, Harvard University, Massachusetts Institute of Technology: Cambridge, UK, 1998; pp. 141–158. [Google Scholar]
- Leite, J.; Justo, R. Typo-morphology: From research to architectural education. In Architectural Research Addressing Societal Challenges. In Proceedings of the EAAE ARCC 10th International Conference, Lisbon, Portugal, 15–18 June 2016; pp. 15–18. [Google Scholar]
- Özkar, M.; Stiny, J. Introduction to Shape Grammars. In Proceedings of the SIGGRAPH Course, New Orleans, LA, USA, 3–7 August 2009. [Google Scholar]
- Chen, X. Relationships between Product Form and Brand: A Shape Grammatical Approach. Ph.D. Thesis, University of Leeds, Leeds, UK, 2005. Available online: https://ethos.bl.uk/OrderDetails.do?uin=uk.bl.ethos.494115 (accessed on 17 November 2022).
- Stiny, G. Kindergarten Grammars: Designing with Froebel’s Building Gifts. Environ. Plan. B Plan. Des. 1980, 7, 409–462. [Google Scholar] [CrossRef]
- Jo, J.H.; Gero, J.S. Space layout planning using an evolutionary approach. Artif. Intell. Eng. 1998, 12, 149–162. [Google Scholar] [CrossRef]
- Steadman, P. Architecture Morphology; Pion Ltd.: London, UK, 1983. [Google Scholar]
- Michalek, J.; Choudhary, R.; Papalambros, R. Architectural layout design optimization. Eng. Optim. 2002, 34, 461–484. [Google Scholar] [CrossRef]
- Stiny, G.; Gips, J. Shape grammars and the generative specification of painting and sculpture. In Proceedings of the InIFIP Congress, Ljubljana, Yugoslavia, 23–28 August 1971; Volume 2, pp. 125–135. [Google Scholar]
- Knight, T. Applications in architectural design, and education and practice. InNSF/MIT Workshop Shape Comput. 1999, 67, 1–11. [Google Scholar]
- Stiny, G.; Mitchell, W.J. The palladian grammar. Environ. Plan. B Plan. Des. 1978, 5, 5–18. [Google Scholar] [CrossRef]
- Flemming, U. The secret of the casa giuliani frigerio. Environ. Plan. B Plan. Des. 1981, 8, 87–96. [Google Scholar] [CrossRef]
- Buelinckx, H. Wren’s language of City church designs: A formal generative classification. Environ. Plan. B Plan. Des. 1993, 20, 645–676. [Google Scholar] [CrossRef]
- Knight, T.W. The forty-one steps. Environ. Plan. B 1981, 8, 97–114. [Google Scholar] [CrossRef]
- Chiou, S.C.; Krishnamurti, R. The grammar of Taiwanese traditional vernacular dwellings. Environ. Plan. B Plan. Des. 1995, 22, 689–720. [Google Scholar] [CrossRef]
- Stiny, G.; Mitchell, W.J. The grammar of paradise: On the generation of Mughul gardens. Environ. Plan. B Plan. Des. 1980, 7, 209–226. [Google Scholar] [CrossRef]
- Tepavčević, B.; Stojaković, V. Shape grammar in contemporary architectural theory and design. Facta Univ.-Ser. Archit. Civ. Eng. 2012, 10, 169–178. [Google Scholar] [CrossRef]
- Eloy, S.; Duarte, J.P. A Transformation Grammar-Based Methodology For Housing Rehabilitation. Design Computing and Cognition DCC’12; Cambridge University Press: Cambridge, UK, 16 May 2014; pp. 301–320. [Google Scholar] [CrossRef]
- Benrós, D. A generic housing grammar for the generation of different housing languages: A generic housing shape grammar for Palladian villas, Prairie and Malagueira Houses. Ph.D. Thesis, UCL (University College London), London, UK, 2018. [Google Scholar]
- McCullough, M. 20 years of scripted space. Archit. Des. 2006, 76, 12–15. [Google Scholar] [CrossRef]
- Haakonsen, S.M.; Rønnquist, A.; Labonnote, N. Fifty years of shape grammars: A systematic mapping of its application in engineering and architecture. Int. J. Archit. Comput. 2022. [Google Scholar] [CrossRef]
- Eilouti, B.H.; Hamamieh Al Shaar, M.J. Shape grammars of traditional Damascene houses. Int. J. Archit. Herit. 2012, 6, 415–435. [Google Scholar] [CrossRef]
- Eilouti, B.H.; Al-Jokhadar, A.M. A generative system for Mamluk madrasa form-making. Nexus Netw. J. Patterns Archit. 2007, 9, 7–29. [Google Scholar] [CrossRef]
- Yavuz, A.Ö.; Sağıroğlu, Ö. Reviewing the bricks used in the traditional architecture with the shape grammar method. Gazi Univ. J. Sci. 2016, 29, 741–749. [Google Scholar]
- Trescak, T.; Esteva, M.; Rodriguez, I. A shape grammar interpreter for rectilinear forms. Comput.-Aided Des. 2012, 44, 657–670. [Google Scholar] [CrossRef]
- Şener, S.M.; Görgül, E. A shape grammar algorithm and educational software to analyze classic Ottoman mosques. A|Z ITU J. Fac. Archit. 2008, 5, 12–30. [Google Scholar]
- Andaroodi, E.; Andres, F.; Einifar, A.; Lebigre, P.; Kando, N. Ontology-based shape-grammar schema for classification of caravanserais: A specific corpus of Iranian Safavid and Ghajar open, on-route samples. J. Cult. Herit. 2006, 7, 312–328. [Google Scholar] [CrossRef]
- Lambe, N.R.; Dongre, A.R. A shape grammar approach to contextual design: A case study of the Pol houses of Ahmedabad, India. Environ. Plan. B Urban Anal. City Sci. 2019, 46, 845–861. [Google Scholar] [CrossRef]
- Sayed, Z.; Ugail, H.; Palmer, I.; Purdy, J.; Reeve, C. Parameterized shape grammar for generating n-fold Islamic geometric motifs. In Proceedings of the 2015 International Conference on Cyberworlds (CW), Visby, Sweden, 7–9 October 2015; pp. 79–85. [Google Scholar] [CrossRef]
- Sass, L.A. Palladian construction grammar—Design reasoning with shape grammars and rapid prototyping. Environ. Plan. B Plan. Des. 2007, 34, 87–106. [Google Scholar] [CrossRef]
- Theodoridis, S. Konstantinos Koutroumbas, Pattern Recognition, Pattern Recognition; Elsevier: Amsterdam, The Netherlands, 1982. [Google Scholar]
- Olszewski, R.T. Generalized Feature Extraction for Structural Pattern Recognition in Time-Series Data; Carnegie Mellon University: Pittsburgh, PA, USA, 2001. [Google Scholar]
- Richard, O.; Duda, P.; Hart, E.; David, E.S. Pattern Classification, 2nd ed.; Wiley: New York, NY, USA, 2001. [Google Scholar]
- Fukunaga, K. Introduction to Statistical Pattern Recognition, 2nd ed.; Academic Press: Boston, MA, USA, 1990. [Google Scholar]
- Anil, K.; Jain, R.; Duin, W.P.; Mao, J. Statistical Pattern Recognition: A Review. IEEE Trans. Pattern Anal. Mach. Intell. 2000, 22, 4–37. [Google Scholar] [CrossRef]
- Bunke, H.; Riesen, K. Recent advances in graph-based pattern recognition with applications in document analysis. Pattern Recognit. 2011, 44, 1057–1067. [Google Scholar] [CrossRef]
- Firschein, O. Syntactic pattern recognition and applications. Proc. IEEE 1983, 71, 1231. [Google Scholar] [CrossRef]
- Rafael, C.G.; Michael, G. Thomason. Syntactic Pattern Recognition: An Introduction; Addison Wesley: Reading, MA, USA, 1978. [Google Scholar]
- Pavlidis, T. Structural Pattern Recognition; Springer: Berlin/Heidelberg, Germany, 1977. [Google Scholar]
- Foggia, P.; Percannella, G.; Vento, M. Graph Matching and Learning in Pattern Recognition in the Last 10 Years. Intern. J. Pattern Recognit. Artif. Intell. 2014, 28, 1450001. [Google Scholar] [CrossRef]
- Bei, W.; Guo, M.; Huang, Y. A Spatial Adaptive Algorithm Framework for Building Pattern Recognition Using Graph Convolutional Networks. Sensors 2019, 19, 5518. [Google Scholar] [CrossRef] [PubMed]
- Luo, B.; Wilson, R.C.; Hancock, E.R. A spectral approach to learning structural variations in graphs. Pattern Recognit. 2006, 39, 1188–1198. [Google Scholar] [CrossRef]
- Riesen, K. Structural pattern recognition with graph edit distance. In Advances in Computer Vision and Pattern Recognition; Springer: Cham, Switzerland, 2015. [Google Scholar]
- Dolgachev, I. Lectures on Invariant Theory; Cambridge University Press: Cambridge, UK, 7 August 2003. [Google Scholar]












| Classification Criteria | Previous Studies | No. of Classifications | |
|---|---|---|---|
| Descriptive study | Chronological description | Hoag JD, 1975 [7] | 18 |
| Mo’nis, 1981 [8] | 7 | ||
| Khan HU,1990 [5] | 5 | ||
| Jahić E, 2008 [9] | 4 | ||
| Hakim N, 2008 [10] | 4 | ||
| Alkhaled Z, 2019 [11] | 4 | ||
| Analytical study | Typological analysis | Hillenbrand R,1985 [12] | 3 |
| Tahir,1994 [13] | 4 | ||
| Aazam, Z. (2007) [14] | 4 | ||
| Khachan LG, 2008 [15] | 6 | ||
| Mustafa and Hassan (2013) [16] | 6 | ||
| Ahmad AA, 2013 [17] | 3 | ||
| M. Loukma, M. Stefanidou, 2016 [18] | 2 | ||
| Elkhateeb et al. (2018) [19] | 2 | ||
| F. Mustafa, Z. Ismael, 2019 [20] | 9 | ||
| Rashid, M. (2020) [21] | 8 | ||
| Morphological analysis | Ardalan N. 1980 [22] | 5 | |
| Al-Omary, 1988 [23] | 4 | ||
| Prochazka AB, 2013 [24] | 6 | ||
| Al-Jameel AH, 2013 [25] | 5 | ||
| I. Cherif, N. Allani-Bouhoula, 2017 [26] | - |
| Mosque Style and Period | Mosques Name | Mosque Style Model | Syntactical and Morphological Composition Characteristics |
|---|---|---|---|
| 1. The beginning of Islamic Mosque (622–661) | Al-Masjid an-Nabawi (The Prophet’s Mosque in Medina) | ![]() | The rows of the prayer hall are produced by vertical supporting beams or columns bearing a flat roof. A simple courtyard surrounded on all four sides by one-story arcades. |
| 2. Umayyad Mosques (661–750) | The Great Mosque of Damascus (Umayyad Mosque) | ![]() | Three wide aisles with gabled roofs divided the prayer hall. The large central transept is the most prominent element. A courtyard surrounded on four sides by a two-story arcade, not corresponding to any inner horizontal division. |
| 3. Spanish Umayyad (756–1031) | The great Mosque of Cordoba Spain (Andalus Islamic Architecture) | ![]() | A large hypostyle prayer hall with many columns makes up this building. A magnificent dome is located above the Mihrab. A courtyard with a fountain is in the middle. |
| 4. Abbasid Mosques (750–1256) | Al-Mutawakkil Great Mosque in Samarra (Great Mosque of Samarra) | ![]() | It is a rectangular hypostyle plan. An arcaded courtyard surrounded by several columns. |
| 5. Early Islamic Mosques in North Africa (800–909) | A. Aghlabids (800–909) The Great Mosque of Kayrouan in Tunisia | ![]() | A hypostyle prayer hall, a central capped nave on the side of the courtyard is wider and higher in the ceiling than the other aisles, emphasizing the direction of prayer towards the Qibla wall, creating a T-shaped movement in its layout. A small dome is erected in front of the Mihrab. |
| B. Tulunids (868–905) Mosque of Ahmad Ibn-Tulun, Cairo | ![]() | The rectangular hypostyle prayer area is attached to a central square courtyard (sahn) surrounded by four riwaqs. | |
| 6. The Classic Mosque Architecture in North Africa and Spain | A. Almoravids (1061–1130) Al-Qarawiyyin Mosque, Morocco | ![]() | The internal hypostyle prayer hall occupies the majority of the mosque’s space. The prayer hall’s central axis is perpendicular to the Qibla wall. The courtyard is rectangular and is enclosed on three sides by the prayer hall. |
| B. Almohads (1141–1269) Tinmal Mosque, Morocco | ![]() | The prayer hall is a longitudinal aisle adjacent to the Qibla wall and gives a T-shaped layout. The courtyard is made up of wide and long arcades. | |
| 7. Fatimids (909–1171) | Mosque of Al-Azhar, Egypt | ![]() | A hypostyle prayer hall that consists of aisles parallel to the old Qibla wall with a central nave passing through them in the middle, extending from the courtyard to the old Qibla wall in the east. |
| 8. Seljuk (1071–1308) | Great Mosque Konya | ![]() | The hypostyle pattern is a Seljuk architecture. The columns supporting the stone vaulted ceiling divide the hall into bays and aisles. |
| 9. Ayyubids (1171–1250) | Madrasa of al-Salih Najm al-Din Ayyub | ![]() | The Madrasa has two similar schools with a shared entranceway and façade. Two opposed doors lead to the entrance. The eastern door leads to the Maliki and Shafi’i Madrasas’ Iwans and the western door to the Hanbali and Hanafi Madrasas. The subsequent Mamluk Madrasa layout with four axial Iwans (topology) evolved from this style. |
| 10. The Ilkhanids (1256–1353) Central Asia | The Masjid-i-Jomeh at Varamin (1322-26), Tehran, Iran, | ![]() | This mosque shows the ideal four-Iwan layout design and has a highly symmetrical layout. |
| 11. Mamluks (1250–1517) | Mosque of al-Zahir Baybars | ![]() | Square-shaped hypostyle building with a flat roof supported by columns. The mosque has three lateral entrances to the square courtyard. |
| 12. The Timurids (1370–1506) | Bibi-Khanym Mosque in Samarkand | ![]() | Rectangular hypostyle prayer hall with a flat roof and a domed Iwan. Three Iwans surround the entrance to the square courtyard facing the prayer hall. |
| 13. Ottman Architecture (1299–1923) | A. Multiple domes, Ulu Cami, Bursa, Turkey | ![]() | Multi equal-sized domes stand on pendentives and arches that connect the huge, square-plan pillars to the massive main walls. The central dome of this mosque has a glazing cover. |
| B. Central massive dome, Sulaymaniyah Mosque, Turkey | ![]() | The most important characteristics are an expressive dome with an outstanding design that is very high and expansive, providing a considerably large prayer hall to accommodate more worshipers. | |
| 14. Safavid Architecture (1502–1736) | Shah Mosque, Isfahan, Iran | ![]() | The traditional four-Iwan layout has a central courtyard with two monumental entrances on opposite sides, creating the illusion of gateways. |
| 15. Moghul Architecture (1526–1858) | Triple Dome Mosque of Wazir Khan, Lahore, Pakistan (1634-36) | ![]() | The prayer hall is hypostyle and rectangular; it is topped by three marble domes, the largest of which is in the center and the other two flanking it on either side. A huge courtyard is connected to the prayer hall’s entrance with arcades on three sides. |
| Mosque Name & Analysis Including: Spatial Arrangement Visual Weight 2D Prayer Hall Shape | Morphological Element Relationship | 3D Form Proportion | Typo-Morphological Prototype | ||
|---|---|---|---|---|---|
| Abstract Syntactical Pattern Layout | Abstract Morphological Pattern Layout | ||||
| Type 1-A | ![]() | ![]() | ![]() | ![]() | ![]() |
| Linear arrangement Equal visual focus Rectangular shape | Flat roof | (X > Y), (X > Z), (Y > Z) | Hypostyle flat roof courtyard pattern | ||
| Type 1-B | ![]() | ![]() | ![]() | ![]() | ![]() |
| Linear arrangement Equal visual focus Rectangular shape | Flat roof with a dome | (X > Y > Z) | Hypostyle domed flat-roof courtyard pattern | ||
| Type 1-C | ![]() | ![]() | ![]() | ![]() | ![]() |
| Linear arrangements Central transept Rectangular shape | Gabled roof | (X > Y), (Y > = Z), X > Z | Hypostyle gabled-roof courtyard pattern | ||
| Type 1-D | ![]() | ![]() | ![]() | ![]() | ![]() |
| T-shape aisle T-shape visual focus Rectangular shape | Naved roof | X > Y > Z | Hypostyle naved-roof courtyard pattern | ||
| Type 1-E | ![]() | ![]() | ![]() | ![]() | ![]() |
| Linear and central T-shape visual focus Rectangular shape | A flat articulated domed roof | (X > Y), (Y > = Z), X > Z | Hypostyle domed—articulated courtyard pattern | ||
| Type 2-A | ![]() | ![]() | ![]() | ![]() | ![]() |
| Central arrangements Central visual focus Polygonal shape | Central dome attached with Iwan | (X = Y), (X or Y < Z) | Domed Iwan pattern | ||
| Type 2-B | ![]() | ![]() | ![]() | ![]() | ![]() |
| Central and linear Central visual focus Rectangular and square | Domed Iwan mosque | (X = Y), (X < Z), (X1 > Y1) | Two Iwan pattern | ||
| Type 2-C | ![]() | ![]() | ![]() | ![]() | ![]() |
| Central and linear Central visual focus Rectangular shape | Multi-Domed Iwan mosque | (X > Y), (X < Z) | Four Iwan pattern | ||
| Type 3-A | ![]() | ![]() | ![]() | ![]() | ![]() |
| Linear arrangements Linear visual focus Rectangular shape | Multi-similar domed | (X = Y), (X or Y > Z) | Non-courtyard—duplicated dome pattern | ||
| Type 3-B | ![]() | ![]() | ![]() | ![]() | ![]() |
| Central distribution Central visual focus Square shape | Single dome with portico | (X = Y), (X or Y < Z) | Non-courtyard—single dome slop-portico pattern | ||
| Type 3-C | ![]() | ![]() | ![]() | ![]() | ![]() |
| Central distribution Central visual focus Repeated equal size squares on a T-shape | Different size of domes | (X = Y + Y1), (X1 = Y = Y1), (X > Z1) | Non-courtyard earring pattern (pendentive layout) | ||
| Type 3-D | ![]() | ![]() | ![]() | ![]() | ![]() |
| Central distribution Central visual focus Repeated unequal-size squares with a T-shape pattern | Domes of different sizes | (X = Y), (X, Y > Z), (X1 = Y1 = Z1) | Non-courtyard—multiple-dome pattern | ||
| Type 4-A | ![]() | ![]() | ![]() | ![]() | ![]() |
| Central distribution Central visual focus Repeated squares | Central big dome with multiple small domes on earing roofs | (X = Y1), (X1 > Y) (X and Y1 > Z2) | Courtyard earring—pendentive-dome pattern | ||
| Type 4-B | ![]() | ![]() | ![]() | ![]() | ![]() |
| Central distribution Central visual focus Square shape | Central massive dome supported by four huge columns | (X = Y), (X and Y < Z) | Courtyard supported by central-domed pattern | ||
| Type 4-C | ![]() | ![]() | ![]() | ![]() | ![]() |
| Central distribution Central visual focus Square shape | Central massive dome supported by multiple columns | (X = Y), (X and Y < Z) | Multiple-dome courtyard pattern | ||
| Type 5-A | ![]() | ![]() | ![]() | ![]() | ![]() |
| Triple centrality Central visual focus Rectangular shape | Three massive domes supported by several columns | (X > Y), (X < Z) | Massive courtyard—triple domes | ||
| Type 6-A | ![]() | ![]() | ![]() | ![]() | ![]() |
| Linear distribution No visual focus Rectangular shape | Square shape without dome | (X = Y), (X and Y > Z) | Non-courtyard—non-domed square layout | ||
| Type 6-B | ![]() | ![]() | ![]() | ![]() | ![]() |
| Linear distribution Central visual focus Square shape | Square shape covered with a dome | (X = Y), (X and Y > Z) | Non-courtyard—domed square layout | ||
| Type 6-C | ![]() | ![]() | ![]() | ![]() | ![]() |
| Linear distribution Mihrab visual focus Rectangular shape | Square shape flat roof | (X = Y), (X and Y > Z) | Courtyard—non-domed square layout | ||
| Type 6-D | ![]() | ![]() | ![]() | ![]() | ![]() |
| Linear distribution Central visual focus Rectangular shape | Rectangular shape domed roof | (X > Y), (X and Y > Z) | Closed courtyard—rectangular-domed layout | ||
| Symbol | Mosques Name | Location | Symbol | Mosques Name | Location |
|---|---|---|---|---|---|
| C1 | The Great Mosque of Dohuk | Iraq | C29 | Basuna Mosque | Egypt |
| C2 | Al-Azhar Mosque | Egypt | C30 | Haji Dawood Mosque | Iraq |
| C3 | Diyarbakır Ulu Camii | Turkey | C31 | Dome of Soltaniyeh | Iran |
| C4 | Koya Great Mosque | Iraq | C32 | Bali Pasha Mosque | Turkey |
| C5 | Mosque of Mohamed Abdulkhaliq Gargash | UAE | C33 | Altun Mosque in Erbil | Iraq |
| C6 | Khanaqa Mosque | Iraq | C34 | Sulaimani Grand Mosque | Iraq |
| C7 | Madrasa and Friday Mosque of Sultan Hasan | Egypt | C35 | Selimiye Mosque | Turkey |
| C8 | Fatih Mosque | Turkey | C36 | The Great Mosque of Bursa | Turkey |
| C9 | Great Mosque of Amedi | Iraq | C37 | Friday Mosque of Neyshabur | Iran |
| C10 | Eyup Sultan Mosque | Turkey | C38 | Mihrimah Sultan Mosque | Turkey |
| C11 | Sheikh Lotfollah Mosque | Iran | C39 | Pertevniyal Valide Sultan Mosque | Turkey |
| C12 | Yavuz Selim Mosque | Turkey | C40 | Mosque of Wazirxan, Lahure | Pakistan |
| C13 | Arcapita Mosque | Bahrain | C41 | Abdul Rahman Siddique Mosque | UAE |
| C14 | Najadah Mosque | Qatar | C42 | Firuz Agha Mosque | Turkey |
| C15 | Al-Hakim Mosque | Egypt | C43 | Üç Şerefeli Camii | Turkey |
| C16 | Rustem Pasha Mosque | Turkey | C44 | Mohammed Jassim Al-Saddah Grand Mosque | Kuwait |
| C17 | Haji Abdulqadir Saeed Dabbagh Mosque | Iraq | C45 | The Great Mosque of Akre | Iraq |
| C18 | Masjid Um-Alqura | Iraq | C46 | Jumma Mosque | Qatar |
| C19 | Al Fateh Grand Mosque | Bahrain | C47 | Zabeel Mosque | UAE |
| C20 | Sheik Zayed Mosque | UAE | C48 | Hüsrev Pasha Camii | Turkey |
| C21 | Al-Nasir Muhammad Mosque | Egypt | C49 | Süleymaniye Mosque | Turkey |
| C22 | Jameh Mosque of Yazd | Iran | C50 | Isa Bey Mosque | Turkey |
| C23 | Sultan Bayazid II Mosque | Turkey | C51 | Shah Mosque, Isfahan | Iran |
| C24 | Khurmal Mosque | Iraq | C52 | Grand Mosque of Kuwait | Kuwait |
| C25 | Al-Masjid an-Nabawi | KSA | C53 | King Saud Mosque | KSA |
| C26 | Gowhar-šād Mosque | Iran | C54 | Behram Pasha Mosque | Turkey |
| C27 | Muradiye Mosque | Turkey | C55 | Firdaws Mosque, Erbil | Iraq |
| C28 | Murat Pasha Mosque | Turkey |
Disclaimer/Publisher’s Note: The statements, opinions and data contained in all publications are solely those of the individual author(s) and contributor(s) and not of MDPI and/or the editor(s). MDPI and/or the editor(s) disclaim responsibility for any injury to people or property resulting from any ideas, methods, instructions or products referred to in the content. |
© 2023 by the authors. Licensee MDPI, Basel, Switzerland. This article is an open access article distributed under the terms and conditions of the Creative Commons Attribution (CC BY) license (https://creativecommons.org/licenses/by/4.0/).
Share and Cite
Ali, L.A.; Mustafa, F.A. Mosque Typo-Morphological Classification for Pattern Recognition Using Shape Grammar Theory and Graph-Based Techniques. Buildings 2023, 13, 741. https://doi.org/10.3390/buildings13030741
Ali LA, Mustafa FA. Mosque Typo-Morphological Classification for Pattern Recognition Using Shape Grammar Theory and Graph-Based Techniques. Buildings. 2023; 13(3):741. https://doi.org/10.3390/buildings13030741
Chicago/Turabian StyleAli, Lana Abubakr, and Faris Ali Mustafa. 2023. "Mosque Typo-Morphological Classification for Pattern Recognition Using Shape Grammar Theory and Graph-Based Techniques" Buildings 13, no. 3: 741. https://doi.org/10.3390/buildings13030741
APA StyleAli, L. A., & Mustafa, F. A. (2023). Mosque Typo-Morphological Classification for Pattern Recognition Using Shape Grammar Theory and Graph-Based Techniques. Buildings, 13(3), 741. https://doi.org/10.3390/buildings13030741






















































































































