A Study on Recommendations for Improving Minimum Housing Standards
Abstract
:1. Introduction
1.1. Research Background
1.2. Research Background and Purpose
2. Materials and Methods
2.1. Definition of Terms
2.1.1. Minimum Housing Standards
2.1.2. Area Standard
2.1.3. Bedroom Standard
2.1.4. Facility Standard
2.1.5. Location Standard
2.2. Scope and Methodology of the Study
3. Literature Review and Theoretical Framework
3.1. Literature Review
3.2. Theoretical Framework
3.2.1. Housing Rights
3.2.2. Minimum Housing Standards in South Korea
3.2.3. Minimum Housing Standards in South Korea (in 2004 and 2011)
4. Setting Directions for Improving Minimum Housing Standards
4.1. Analysis of the Current Status of Households below the Minimum Housing Standards in South Korea
4.1.1. Overview of the Analysis
- (1)
- Exclusive residential areas per number of household members:
- (2)
- Private walk-in kitchen:
- (3)
- Private flush toilet:
- (4)
- Private bathrooms:
- (5)
- Water supply and drainage facilities:
- (6)
- Number of bedrooms per household composition:
4.1.2. Analysis Results
- (1)
- Households below the minimum housing standards:
- (2)
- Households below the area and facility standards:
- (3)
- Households below the bedroom standards:
4.1.3. Direction for Improving Minimum Housing Standards Based on the Current Status Analysis of Households below the Standards
4.2. Overseas Case Studies
4.2.1. Housing Standards in the UK
4.2.2. Housing Standards in Japan
- (1)
- 1976~2005
- (2)
- 2006–Current
4.2.3. Direction for Improving Minimum Housing Standards Based on Analysis Results of Overseas Case Studies
4.3. Collection of Expert Opinions
4.3.1. Summary of Expert Opinion Collection
4.3.2. Result of Expert Opinion Collection
- (1)
- Direction for minimum housing standards
- (2)
- Area standard
- (3)
- Bedroom standard
- (4)
- Facility standard
- (5)
- Location standard
5. Results of Minimum Housing Standards Improvement Proposal
5.1. Direction for Improving Area and Bedroom Standards
5.1.1. Prerequisite
5.1.2. Direction for Specific Improvements
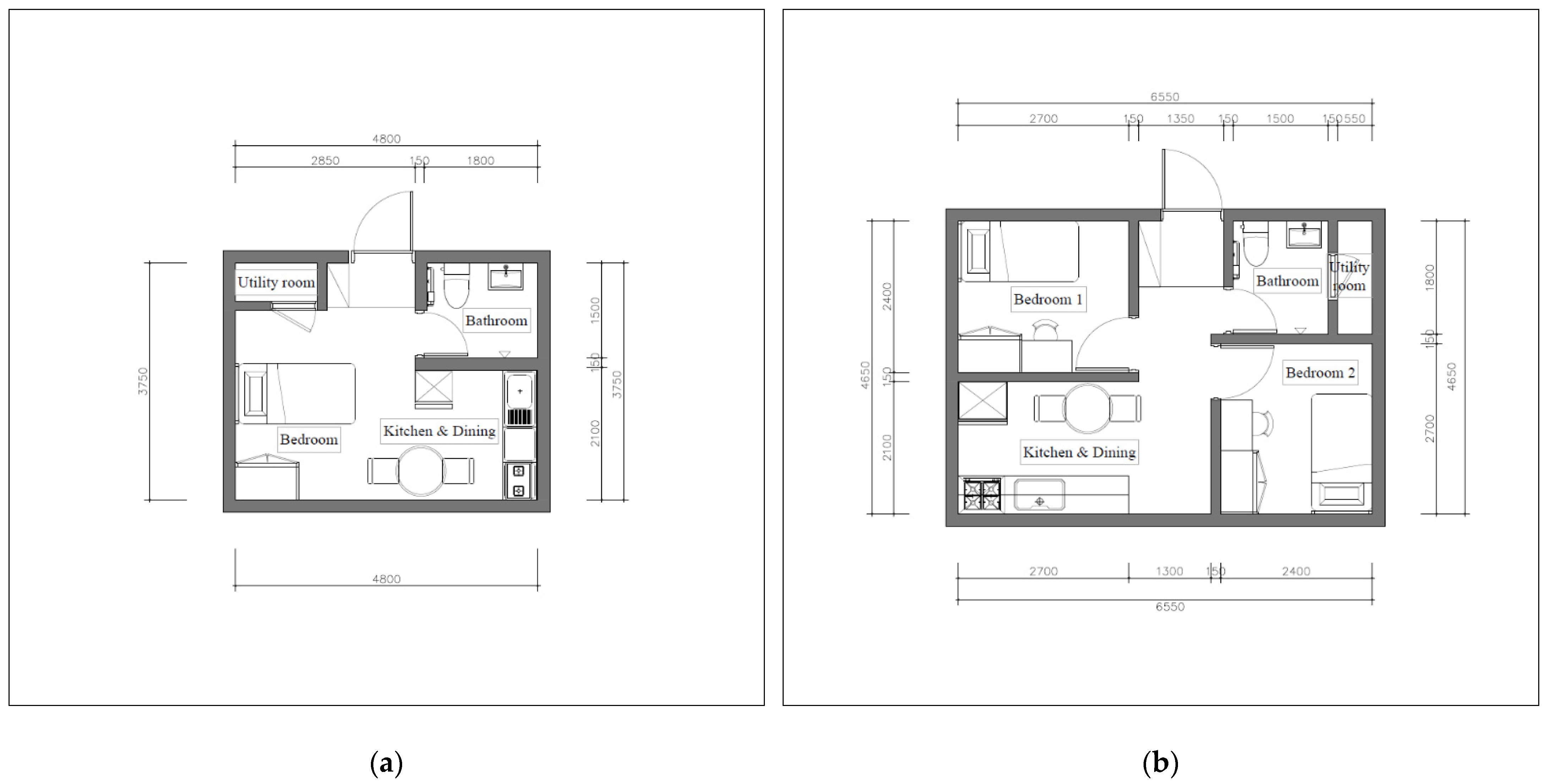
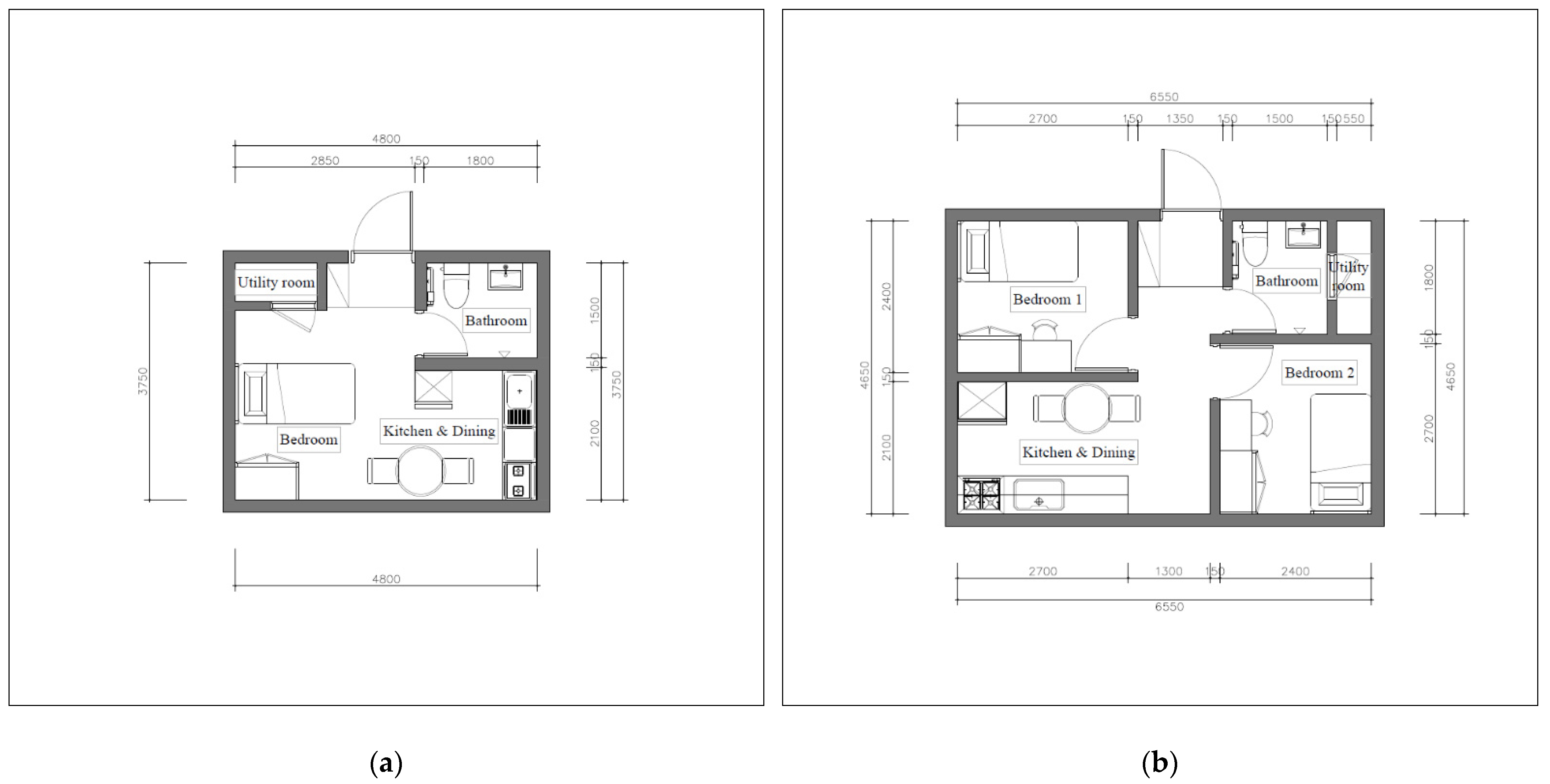
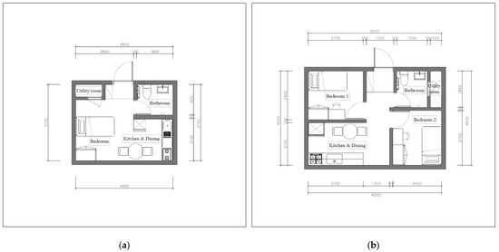
5.1.3. Design Simulation
- (1)
- Premise
- (2)
- Estimation of Furniture Sizes
- (3)
- Application of universal design
- (4)
- Design simulation results
5.2. Improvements in Minimum Housing Standards
5.2.1. Area Standard
5.2.2. Bedroom Standard
5.2.3. Facility Standard
5.2.4. Location Standard
- (1)
- Underground and semi-underground houses:
- (2)
- Rooftop houses:
- (3)
- Other location standard:
5.2.5. New Minimum Housing Standards with Improvements (Synthesis)
5.2.6. Estimation of Households below the Minimum Housing Standards Based on New Standards
6. Discussion
7. Conclusions
Author Contributions
Funding
Data Availability Statement
Conflicts of Interest
References
- Reyes, A.; Novoa, A.M.; Borrell, C.; Carrere, J.; Pérez, K.; Gamboa, C.; Daví, L.; Fernández, A. Living Together for a Better Life: The Impact of Cooperative Housing on Health and Quality of Life. Buildings 2022, 12, 2099. [Google Scholar] [CrossRef]
- Rolnik, R. Late Neoliberalism: The Financialization of Homeownership and Housing Rights. Int. J. Urban Reg. Res. 2013, 37, 1058–1066. [Google Scholar] [CrossRef]
- Wilson, S. Litigating Housing Rights in Johannesburg’s Inner City: 2004–2008. S. Afr. J. Hum. Rights 2017, 27, 127–151. [Google Scholar] [CrossRef]
- Troy, L.; Easthope, H.; Randolph, B.; Pinnegar, S. ‘It depends what you mean by the term rights’: Strata termination and housing rights. Hous. Stud. 2017, 32, 1–16. [Google Scholar] [CrossRef]
- Jin, H.C.; Kang, D.W.; Lee, S.W. A Study on the Changing Factors of Minimum Housing Standard and Housing Density in Seoul Metropolitan Area, 1995–2005. Hous. Stud. Rev. 2010, 18, 41–68. [Google Scholar]
- Xu, K.; Chai, X.; Jiang, R.; Chen, Y. Quantitative Comparison of Space Syntax in Regional Characteristics of Rural Architecture: A Study of Traditional Rural Houses in Jinhua and Quzhou, China. Buildings 2023, 13, 1507. [Google Scholar] [CrossRef]
- Homepage of Korean Law Information Center. Available online: https://www.law.go.kr/admRulLsInfoP.do?chrClsCd=&admRulSeq=2000000055520 (accessed on 22 March 2022).
- Homepage of Korean Law Information Center. Available online: https://www.law.go.kr/admRulLsInfoP.do?admRulSeq=2000000059613 (accessed on 22 March 2022).
- Homepage of MOLIT Statistics System. Available online: https://stat.molit.go.kr/portal/cate/statFileView.do?hRsId=327&hFormId= (accessed on 11 July 2022).
- Homepage of MOLIT. Available online: http://www.molit.go.kr/USR/NEWS/m_71/dtl.jsp?id=95087936 (accessed on 3 March 2023).
- Kim, S.Y.; Kim, S.L.; Lee, J.S. The Effect on Housing on Health. Health Soc. Sci. 2013, 34, 109–133. [Google Scholar]
- Choi, E.; Kim, Y.; Kwon, S. Spatio-Temporal Changes of Households Failing to Meet the 2011 New Minimum Housing Standard (1995–2010). J. Korea Real Estate Anal. Assoc. 2012, 18, 171–195. [Google Scholar]
- Lim, S. The change of magnitude and characters in households below minimum housing standard (2005–2011). Soc. Secur. Res. 2014, 30, 215–244. [Google Scholar]
- Yun, H.J. Proposal of Minimum Housing Standard for Eup-Myun Area. J. Rural Plan. 2011, 17, 13–21. [Google Scholar] [CrossRef]
- Lee, H.S. A Study on the Minimum Housing Standards and House Rental Supplement. Public Land Law Rev. 2011, 54, 95–117. [Google Scholar]
- Kim, J.H. Minimum Standards for Residential Accommodation (MSRA) and the Housing Welfare Policy—Focusing on the ‘Housing Comprehensive Plan’. J. Korea Plan. Assoc. 2015, 50, 185–207. [Google Scholar] [CrossRef]
- Lim, S. A Study on the Minimum Residential Standard and Guaranteeing the Housing Rights from the Perspective of Administrative Law. Admin Law J. 2021, 66, 175–204. [Google Scholar]
- Wang, J.; Lee, C.L.; Shirowzhan, S. Macro-Impacts of Air Quality on Property Values in China—A Meta-Regression Analysis of the Literature. Buildings 2021, 11, 48. [Google Scholar] [CrossRef]
- Wang, J.; Lee, C.L. The value of air quality in housing markets: A comparative study of housing sale and rental markets in China. Energy Policy 2022, 160, 112601. [Google Scholar] [CrossRef]
- Boadi, E.B.; Chen, S.; Shi, G.; Li, Y.; Dodoo, R.N.A.; Mensah, F.; Dieme, I.S.M.; Appiah, R.; Mangudhla, T. The Impact of Resettlement on Quality of Life in Ghana: The Mediating Role of Residential Satisfaction. Buildings 2023, 13, 2288. [Google Scholar] [CrossRef]
- Bangura, M.; Lee, C.L.; Schafer, B. The Unintended Consequences of COVID-19 Economic Responses on First Home Buyers? Evidence from New South Wales, Australia. Buildings 2023, 13, 1203. [Google Scholar] [CrossRef]
- Homepage of the United Nations. Available online: https://www.un.org/en/about-us/universal-declaration-of-human-rights (accessed on 22 March 2022).
- Homepage of Korean Law Information Center. Available online: https://www.law.go.kr/LSW/lsInfoP.do?efYd=19880225&lsiSeq=61603#0000 (accessed on 22 March 2022).
- Homepage of Korean Law Information Center. Available online: https://www.law.go.kr/LSW/lsSc.do?section=&menuId=1&subMenuId=15&tabMenuId=81&eventGubun=060101&query=%EC%A3%BC%ED%83%9D%EB%B2%95#undefined (accessed on 22 March 2022).
- Pane, A.; Gunawan, B.; Withaningsih, S. Development of Kampung Susun Akuarium Based on Sustainable Housing Principles. Sustainability 2023, 15, 8673. [Google Scholar] [CrossRef]
- Kucharska-Stasiak, E.; Źróbek, S.; Żelazowski, K. European Union Housing Policy. An Attempt to Synthesize the Actions Taken. Sustainability 2022, 14, 39. [Google Scholar] [CrossRef]
- Bacter, C.; Săveanu, S.; Buhaş, R.; Marc, C. Housing for Sustainable Societies. Children′s Perception and Satisfaction with Their House in Countries around the World. Sustainability 2021, 13, 8779. [Google Scholar] [CrossRef]
- Azarnert, L.V. Migration, congestion and growth. Macroecon. Dyn. 2019, 23, 3035–3064. [Google Scholar] [CrossRef]
- Homepage of Micro Data Integrated Service. Available online: https://mdis.kostat.go.kr/dwnlSvc/ofrSurvSearch.do?curMenuNo=UI_POR_P9240 (accessed on 9 January 2023).
- Homepage of Korea Indicator. Available online: https://www.index.go.kr/unify/idx-info.do?idxCd=4229 (accessed on 2 February 2023).
- Homepage of Korea Indicator. Available online: https://www.index.go.kr/unify/idx-info.do?idxCd=5065 (accessed on 2 February 2023).
- Homepage of Korean Statistical Information Service. Available online: https://kosis.kr/statHtml/statHtml.do?orgId=116&tblId=DT_MLTM_5416&vw_cd=MT_ZTITLE&list_id=I1_11&scrId=&seqNo=&lang_mode=ko&obj_var_id=&itm_id=&conn_path=MT_ZTITLE&path=%252FstatisticsList%252FstatisticsListIndex.do (accessed on 2 February 2023).
- Homepage of Korean Statistical Information Service. Available online: https://kosis.kr/search/search.do?query=%EA%B0%80%EA%B5%AC%EC%88%98 (accessed on 2 February 2023).
- Homepage of Government of U.K. Available online: https://www.gov.uk/guidance/decent-homes-standard-review (accessed on 15 April 2022).
- Homepage of Department for Communities and Local Government. Available online: https://www.gov.uk/government/publications/technical-housing-standards-nationally-described-space-standard (accessed on 15 April 2022).
- Homepage of Department for Communities and Local Government. Available online: https://www.gov.uk/guidance/decent-homes-standard-review#contents (accessed on 8 May 2023).
- Homepage of Ministry of Land, Infrastructure, Transport and Tourism. Available online: https://www.mlit.go.jp/en/index.html (accessed on 2 May 2022).
- Homepage of Ministry of Land, Infrastructure, Transport and Tourism. Available online: https://www.mlit.go.jp/common/001098415.pdf (accessed on 2 May 2022).
- Homepage of Korean Statistical Information Service. Available online: https://kosis.kr/statHtml/statHtml.do?orgId=101&tblId=DT_2AS017&conn_path=I2 (accessed on 16 February 2023).
- Homepage of Korean Statistical Information Service. Available online: https://kosis.kr/statHtml/statHtml.do?orgId=101&tblId=DT_2KAA204 (accessed on 16 February 2023).
- Bae, S.S.; Chun, H.S.; Kim, M.C.; Seo, J.A. Study on Improving Minimum Housing Standards; Korea Research Institute for Human Settlements: Sejong, Republic of Korea, 2010. [Google Scholar]
- Homepage of Korean Standards & Certification. Available online: https://standard.go.kr/KSCI/portalindex.do (accessed on 11 April 2023).
- Homepage of Ministry of Government Legislation. Available online: https://www.law.go.kr/LSW/lsSc.do?dt=20201211&subMenuId=15&menuId=1&query=%EC%9E%A5%EC%95%A0%EC%9D%B8#undefined (accessed on 11 April 2023).
- Liu, Y.; Lan, B.; Shirai, J.; Austin, E.; Yang, C.; Seto, E. Exposure to air pollution and noise from multi-modal commuting in a Chinese city. Int. J. Environ. Res. Public Health 2019, 16, 2539. [Google Scholar] [CrossRef] [PubMed]
- Dahmann, N.; Wolch, J.; Joassart-Marcelli, P.; Reynolds, K.; Jerrett, M. The active city? Disparities in the provision of urban recreation resources. Health Place 2010, 16, 431–445. [Google Scholar] [CrossRef] [PubMed]





| 2006 | 2008 | 2010 | 2012 | 2014 | 2016 | 2017 | 2018 | 2019 | 2020 | 2021 | |
|---|---|---|---|---|---|---|---|---|---|---|---|
| Ratios (%) | 16.6 | 12.7 | 10.6 | 7.2 | 5.4 | 5.4 | 5.9 | 5.7 | 5.3 | 4.6 | 4.5 |
| 2000 | … | 2006 | 2008 | 2010 | 2012 | 2014 | 2016 | 2017 | 2018 | 2019 | 2020 | 2021 |
|---|---|---|---|---|---|---|---|---|---|---|---|---|
| 20.2 | … | 26.2 | 27.8 | 28.5 | 31.7 | 33.5 | 33.2 | 31.2 | 31.7 | 32.9 | 33.9 | 33.9 |
| Number of Household Members | Standard Household Composition 1 | Space (Room) Requirement 2 | Total Living Area (m2) | ||
|---|---|---|---|---|---|
| 2004 | 2011 | 2004 | 2011 | ||
| 1 | One person household | 1 K | 1 K | 12 | 14 |
| 2 | Married couple | 1 DK | 1 DK | 20 | 26 |
| 3 | Parents + 1 Child | 2 DK | 2 DK | 29 | 36 |
| 4 | Parents + 2 Children | 3 DK | 3 DK | 37 | 43 |
| 5 | Parents + 3 Children | 3 DK | 3 DK | 41 | 46 |
| 6 | Grandparents + Parents + 2 Children | 4 DK | 4 DK | 49 | 55 |
| Details | |||
|---|---|---|---|
| Rationale | Article 20 of the “Framework Act on Residence” and Article 13 of the Ordinance for Enforcement of the Act | ||
| Survey sponsor | Ministry of Land, Infrastructure, and Transport | ||
| Survey implementer | Korea Research Institute for Human Settlements | ||
| Survey period | 2006~2016: Biennial survey in even years 2017~2021: Every year | ||
| Survey targets and scope | General households residing nationwide | ||
| Survey methods | Face-to-face interview | ||
| Total number of households in South Korea | 21,448,463 households (in 2021) | ||
| Number of valid samples | Approximately 51,000 households | ||
| Survey period | The period between July and December every year | ||
| Weighting | The weighting applied in consideration of the sampling probability of the population | ||
| Survey items used for this analysis | (1) Area standard | (2) Bedroom standard | (3) Facility standard |
| □ Number of household members □ Exclusive residential area | □ Household composition □ Number of bedrooms (including areas for living rooms) | □ Private walk-in kitchen □ Private flush toilet □ Private bathroom □ Water supply and drainage facility | |
| Number of Bedrooms | Persons | 1-Storey Dwellings | 2-Storey Dwellings | 3-Storey Dwellings | Built-in Storage |
|---|---|---|---|---|---|
| 1b | 1p | 39(37) 1,2 | - | - | 1.0 |
| 2p | 50 | 58 | - | 1.5 | |
| 2b | 3p | 61 | 70 | - | 2.0 |
| 4p | 70 | 79 | - | ||
| 3b | 4p | 74 | 84 | 90 | 2.5 |
| 5p | 86 | 93 | 99 | ||
| 6p | 95 | 102 | 108 | ||
| 4b | 5p | 90 | 97 | 103 | 3.0 |
| 6p | 99 | 106 | 112 | ||
| 7p | 108 | 115 | 121 | ||
| 8p | 117 | 124 | 130 | ||
| 5b | 6p | 103 | 110 | 116 | 3.5 |
| 7p | 112 | 119 | 125 | ||
| 8p | 121 | 128 | 134 | ||
| 6b | 7p | 116 | 123 | 129 | 4.0 |
| 8p | 125 | 132 | 138 |
| Number of Household Members | Space Requirement | Living Area (Room + Living) | Residential Area | Total Area |
|---|---|---|---|---|
| 1 | 1 K | 7.5 m2 | 16 m2 | 21 m2 |
| 2 | 1 DK | 17.5 m2 | 29 m2 | 36 m2 |
| 3 | 2 DK | 25.0 m2 | 39 m2 | 47 m2 |
| 4 | 3 DK | 32.5 m2 | 50 m2 | 59 m2 |
| 5 | 3 DK | 37.5 m2 | 56 m2 | 65 m2 |
| 6 | 4 DK | 45.0 m2 | 66 m2 | 76 m2 |
| 7 | 5 DK | 52.5 m2 | 76 m2 | 87 m2 |
| Number of Household Members | Residential Area | (1) single: 25 m2 (2) more than 2: 10 m2 × person + 10 m2 (3) when calculating the number of household members □ Below 3 years old: 0.25 person □ 3 years old and above but under 6: 0.5 person □ 6 years old and above but under 10: 0.75 person □ If the calculated number of household members is less than two, it is counted as two. |
| 1 | 25 m2 | |
| 2 | 30 m2 | |
| 3 | 40 m2 | |
| 4 | 50 m2 |
| Country | UK | Japan | South Korea | ||||
| Country size (2021) | Area | 243,610 km2 | 377,970 km2 | 100,410 km2 | |||
| Population | 67,326,569 | 125,681,593 | 51,744,876 | ||||
| Population density (2021) | 276.4/km2 | 332.5/km2 | 515.3/km2 | ||||
| The per capita gross national income (2021) [39] | 45,380$ | 42,620$ | 34,980$ | ||||
| Urbanization rates (2023) 1 [40] | 84.6% | 92.0% | 81.5% | ||||
| Housing standard (Area standard) | Number of Household Members | Residential Area (m2) | Number of Household Members | Residential Area (m2) | Number of Household Members | Residential Area (m2) | |
| 1 | 40.0 | 1 | 25.0 | 1 | 14.0 | ||
| 2 | 51.5 | 2 | 30.0 | 2 | 26.0 | ||
| 3 | 63.0 | 3 | 40.0 | 3 | 36.0 | ||
| 4 | 72.0 | 4 | 50.0 | 4 | 43.0 | ||
| 5 | 88.5 | 5 | 60.0 | 5 | 46.0 | ||
| 6 | 97.5 | 6 | 70.0 | 6 | 55.0 | ||
| Date | 10–31 March 2023 | ||||
| Method | In-depth interviews with experts (visit in person or written questionnaire) | ||||
| Expert | Field | Housing Policy | Housing Welfare | Facilities and Equipment | Housing Plan |
| Number of Experts | 6 | 5 | 5 | 6 | |
| Participant Groups |
|
|
|
| |
| 2011 | 2023 | |||
|---|---|---|---|---|
| Improvement Direction | Rationale | |||
| Area standard | 1-person | 14 m2 | ▲ | a, b, c, d |
| 2-person | 26 m2 | △ | a, b, c, d | |
| 3-person | 36 m2 | △ | a, b, c, d | |
| 4-person | 43 m2 | △ | a, b, c, d | |
| 5-person | 46 m2 | △ | a, b, c, d | |
| 6-person | 55 m2 | △ | a, b, c, d | |
| Universal design | Absence | ▲ | d | |
| Bedroom standard 1 | 1-person | 1 2 K 3 | △ | b, d |
| 2-person | 1 DK 4 | ▲ | b, d | |
| 3-person | 2 DK | = | b | |
| 4-person | 3 DK | = | b | |
| 5-person | 3 DK | = | b | |
| 6-person | 4 DK | = | b | |
| Standard household composition | Presence | × | b, d | |
| Standard separating bedrooms | Presence | × | b, d | |
| Bedroom | Bedding | Bed (Bed frame) | Closet (Blanket chest) | Desk (Chair) | |
| Bedding for one person: 1000 × 2100 Bedding for two persons: 1400 × 2100 | Single bed: 1000 × 2100 (1100 × 2300) Double bed: 1400 × 2100 (1500 × 2300) | 900 × 700 | 800 × 600 (800 × 1200) | ||
| Kitchen and dining room | Sink table (free space) | Kitchen counter (free space) | Gas table | Refrigerator | Table |
| 840 × 550 (600) | Length: 550 (600) | 2 burners: 700 × 600 4 burners: 750 × 600 | 1 person: 600 × 600 2 persons: 800 × 700 More than 3 persons: 1000 × 900 | 1~2 person: 800 × 800 More than 3 persons: 1200 × 825 | |
| Bathroom | Toilet (free space) | Washstand | Shower booth | ||
| 550 × 700 (650 × 800) | 550 × 400 | 800 × 800 | |||
| Others | Entrance | Shoe rack | Boiler room or Utility room | ||
| 1 person: more than 0.5 m2 2 persons: more than 0.8 m2 More than 3 persons: more than 1.6 m2 | 1 person: 600 × 300 2 persons: 900 × 300 More than 3 persons: 1200 × 300 | 1 person: more than 0.7 m2 2 persons: more than 1.0 m2 More than 3 persons: more than 2.0 m2 | |||
| Number of Household Members | 1 | 2 | 3 | 4 | 5 | 6 |
|---|---|---|---|---|---|---|
| Spatial Composition | 1 DK | 2 DK | 2 DK | 3 DK | 3 DK | 4 DK |
| Bedroom 1 | 6.48 (2.4 × 2.7) | 6.48 (2.4 × 2.7) | 9.90 (3.0 × 3.3) | 9.90 (3.0 × 3.3) | 9.90 (3.0 × 3.3) | 9.90 (3.0 × 3.3) |
| Bedroom 2 | - | 6.48 (2.4 × 2.7) | 6.48 (2.4 × 2.7) | 6.48 (2.4 × 2.7) | 9.90 (3.0 × 3.3) | 9.90 (3.0 × 3.3) |
| Bedroom 3 | - | - | - | 6.48 (2.4 × 2.7) | 6.48 (2.4 × 2.7) | 6.48 (2.4 × 2.7) |
| Bedroom 4 | - | - | - | - | - | 6.48 (2.4 × 2.7) |
| Kitchen & Dining | 4.41 (2.1 × 2.1) | 5.67 (2.1 × 2.7) | 6.48 (2.4 × 2.7) | 7.29 (2.7 × 2.7) | 8.91 (2.7 × 3.3) | 8.91 (2.7 × 3.3) |
| Bathroom 1 | 2.70 (1.5 × 1.8) | 2.70 (1.5 × 1.8) | 2.70 (1.5 × 1.8) | 2.70 (1.5 × 1.8) | 2.25 (1.5 × 1.5) | 2.25 (1.5 × 1.5) |
| Bathroom 2 | - | - | - | - | 1.80 (1.2 × 1.5) | 1.80 (1.2 × 1.5) |
| Others | 4.41 | 9.13 | 14.34 | 15.09 | 16.64 | 16.86 |
| Total Area | 18 | 30 | 40 | 48 | 56 | 63 |
| Facility Standard | Usage Classification | Absence or Presence of Standard | Type Classification | Absence or Presence of Standard | ||
|---|---|---|---|---|---|---|
| 2011 | 2023 | 2011 | 2023 | |||
| (1) Kitchen | Private | ○ | ○ | Walk-in | ○ | ○ |
| (2) Toilet | Private | ○ | ○ | Flush toilet | ○ | ○ |
| (3) Bathroom | Private | ○ | ○ | Hot water | × | ○ |
| (4) Water supply and drainage facility | Installation | ○ | ○ | - | - | - |
| (5) Heating system | Installation | × | ○ | Fuel for heating 1 | × | ○ |
| (6) Entrance door | Private | × | ○ | - | - | - |
| 1. Area Standard | 2. Facility Standard | 3. Location Standard | |||
|---|---|---|---|---|---|
| (1) 1-person | 18 m2 | (1) Kitchen | Private and Walk-in | (1) Semi-underground house | Below the standard |
| (2) 2-persons | 30 m2 | (2) Toilet | Private and flush toilet | (2) Underground house | Below the standard |
| (3) 3-persons | 40 m2 | (3) Bathroom | Private and hot water | (3) Rooftop house | Below the standard |
| (4) 4-persons | 48 m2 | (4) Water supply and drainage facility | Installation | ||
| (5) 5-persons | 56 m2 | (5) Heating system | Installation and Fuel | ||
| (6) 6-persons | 63 m2 | (6) Entrance door | Private | ||
| 4. Structure, performance, and environment standards | |||||
| (1) As a permanent building, structural strength must be secured, and materials for principal structural parts shall be heat-resistant/proof, fire-resistant, and moisture-proof. | |||||
| (2) Adequate soundproofing, ventilation, natural light, and heating facilities shall be provided. | |||||
| (3) Environmental factors such as noise, vibration, odor, and air pollution shall meet legal standards. | |||||
| (4) A house shall not be located in an area with significant risks of natural disasters such as tsunamis, floods, landslides, and cliff collapse. | |||||
| (5) It shall be equipped with safe electrical facilities, and structures and facilities for safe evacuation in case of fire. | |||||
Disclaimer/Publisher’s Note: The statements, opinions and data contained in all publications are solely those of the individual author(s) and contributor(s) and not of MDPI and/or the editor(s). MDPI and/or the editor(s) disclaim responsibility for any injury to people or property resulting from any ideas, methods, instructions or products referred to in the content. |
© 2023 by the authors. Licensee MDPI, Basel, Switzerland. This article is an open access article distributed under the terms and conditions of the Creative Commons Attribution (CC BY) license (https://creativecommons.org/licenses/by/4.0/).
Share and Cite
Kim, D.; Sim, H.; Kim, S. A Study on Recommendations for Improving Minimum Housing Standards. Buildings 2023, 13, 2708. https://doi.org/10.3390/buildings13112708
Kim D, Sim H, Kim S. A Study on Recommendations for Improving Minimum Housing Standards. Buildings. 2023; 13(11):2708. https://doi.org/10.3390/buildings13112708
Chicago/Turabian StyleKim, Donghyun, Hyunnam Sim, and Seiyong Kim. 2023. "A Study on Recommendations for Improving Minimum Housing Standards" Buildings 13, no. 11: 2708. https://doi.org/10.3390/buildings13112708
APA StyleKim, D., Sim, H., & Kim, S. (2023). A Study on Recommendations for Improving Minimum Housing Standards. Buildings, 13(11), 2708. https://doi.org/10.3390/buildings13112708

