Abstract
Today, numerous studies have shown that the physical environment in hospitals can significantly influence patients’ well-being, comfort, and recovery. However, this is currently neglected in hospitals in the Global South. Therefore, there is an urgent need to increase awareness to make it more applicable worldwide. Thus, this study focuses on improving the healing environment standards by exploring the impact of evidence-based design and patient-centered care in hospitals for cancer patients, particularly the architectural space quality, on patient health outcomes as well as hospital staff health and well-being. In Global North countries such as the UK, the achieving excellence design evaluation toolkit (AEDET) is used by their National Health Services to assess the effectiveness of various environmental attributes. However, these toolkits have not been designed for and do not work well within Global South countries, such as Northern Cyprus. To examine and compare the effectiveness of different physical environmental attributes and to evaluate user responses, the post-occupancy evaluation method and the AEDET toolkit were used in this study. These were applied to both public and private hospitals in Northern Cyprus, involving cancer patients, staff, and professionals (n = 220). The findings reveal the strengths and weaknesses in terms of environmental comfort based on the aspects of the evidence-based design of the hospitals such as natural light, air quality, noise, view, infection control, etc., to create a more optimal physical environment for better psychological outcomes. They also reveal that these toolkits are not fit for purpose for Global South contexts and require adaptations. This is the first study to propose an adaptation of the AEDET toolkit to assist architects in designing healthcare facilities that are responsive to the requirements of hospital patients and staff and to promote the quality of a healing environment for improved health and well-being outcomes.
1. Introduction
In hospitals, the process of applying architectural design is of great importance for the physical, psychological, and physiological health of the individual. The impacts of the physical environment on healing and well-being have become more and more important in recent years for patients, their caregivers, and medical professionals [1]. The first design guidelines for hospital wards were created by Florence Nightingale in her 1863 book Notes on Hospitals. They included considerations for spatial layout, materials, and color, but most importantly for the quality of the environment, where natural elements like daylight, fresh air ventilation, and heating played a key role in establishing sanitation standards [2]. To create an environment that will enhance the patient’s quality of life, healing environments involve complicated relationships amongst practices, space, and care. Healing environments in healthcare settings aim to enhance healthcare quality and safety by utilizing evidence-based design principles and adopting a patient-centered care approach [3]. This approach recognizes the impact of physical environments on patients’ well-being, comfort, and healing process [4]. For this purpose, the benefits of healing design in hospitals have been well evidenced by relevant studies and experiments. These include shortening the length of the patient’s stay in the hospital, accelerating the patient’s recovery time, reducing painkiller doses, and increasing the productivity of medical staff. In addition to providing patients with the most cutting-edge medical care and technology, healing environments should also provide its users—staff members, patients, and their caregivers—with psychological, emotional, and social support [4]. However, healing environment design is universal and not only specific to hospitals, as it applies to all kinds of buildings, interiors, and other similar disciplines such as in neurology, psychology, architecture, biophilic design, and medicine. These disciplines can work together with the concept of evidence-based design (EBD), where many academic studies focus on these concepts within the architectural literature [5]. According to Alfonsi et al. [6], evidence-based design (EBD) is a research-driven approach that uses scientific evidence to guide design decisions in healthcare settings. It involves incorporating findings from studies and research into the design process to create environments that promote positive health outcomes and improve patient experience. EBD considers various factors, such as the use of natural light, access to nature, noise reduction, infection control, and ergonomic design, among others, to enhance the healing environment. Roger Ulrich and colleagues conducted several experimental and quasi-experimental studies to determine the effects of healing hospitals on patients and other users [7]. They found that the environment, such as environmental comfort, which can be physical, functional, or psychological, affects patient well-being. As a result, the decision made by the designer has an impact on patient comfort and should be considered as such [7]. Like Ulrich, similar perspectives from different researchers have been studied through healthcare design, and EBD scholars Hamilton and Watkins, who describe EBD as ‘best available information from research and practice’ [8]. Cama points out the importance of ‘The process involves reorganizing thinking, conducting thorough research, developing scientific questions and hypotheses, and testing innovative design solutions’ [9].
The evidence base is critical for the design of cancer care facilities, just as it is for the diagnosis, treatment, and care of cancer patients [10].
Therefore, the EBD concept is followed by the biophilic design concept to help patients to reduce stress, and it improves health and well-being, especially for illnesses due to stress with the help of nature for a better restorative response. This is possible with the use of design patterns that deal with the nature, design, and human biology of the physical surrounding [11].
Kellert, in his book, discusses biophilia and biophilic design and comes to the findings, within the light of studies by Ulrich, Hartig, Frumkin, and others, that the six dimensions of biophilic design that shape the study are: environmental features, natural shapes and forms, natural patterns and processes, light and space, place-based relationships, and evolved human nature relationship, which are derived from within more than 70 biophilic design attributes [12].
1.1. The Importance and the Study Challenge
A definition of health can be found in the prologue of the WHO constitution:
“Health is a state of complete physical, mental and social well-being and not merely the absence of disease or infirmity.” [13]
In recent years, the importance of hospitals needing to be carefully designed with patients and users in mind has emerged in the literature. This is even more important for cancer patients in order to create an appropriate healing environment to support mood and reduce stress, affecting their health and well-being. Healthcare building facility design tries to maximize the quality of care for patients and patient privacy through the patients’ experience [14]. For this reason, this study focuses on cancer patients. Cancer, as a disease, plays a crucial role in patient psychological well-being. Jencks, who is the husband of the founder of Maggie’s Cancer Care Centre’s Maggie Keswick Jencks, has provided evidence that cancer patients can live longer when recovering within a good environment [15]. According to the Ministry of Health statistics for cancer patients in N. Cyprus, there were previously around 700 cancer patients registered in its system. The general number of cancer patients has reached 21,000 since 1993, and 7000 were reported to have died due to several types of cancer disease. Studies have recorded 3633 patients during the last 5 years [16].
When designing hospitals, the focus is often on functional efficiency, without considering the mental and spiritual well-being of patients and staff. For this reason, hospitals are typically associated with negative emotions such as fear, depression, and increased stress load, and accordingly, this creates reluctance in patients [17]. Designing healing hospitals for cancer patients will only be possible if architects are aware of the existence of healing concepts of design. In this direction, based on a literature review, Ulrich, Phiri, Bobrow, and Thomas point out that healing environment design in hospitals has the following characteristics and values: [18,19,20]
- Shortening hospital stays;
- The great effect of exposure to nature on pain;
- Increased motivation and productivity in patients and staff.
The work of biophilic design is also associated with cognitive architecture, where Ann Sussman explains in her studies the relationship of looking into to how to design hospital environments for user experience and the need for better design with an understanding of human behavior by using nature as a context [21].
All these literature data are linked to nature itself, which can be used as a landscape, whilst at the same time preferably uses photo content analysis in their studies to be able to compare the landscape in different environmental conditions. The study demonstrates the importance of the perception of the view that may affect the perception of the space [22].
1.2. Purpose and Objective of the Study
Emotions can have counter-productive effects on the immune system. Therefore, a psycho-social support design is required to prevent such feelings and aid the process of improving one’s health and well-being [20]. The healing environment design approach is a very broad concept. Healing design applications can be found at various scales. Healing environment design takes place in many disciplines such as interior architecture, architecture, landscape design, and urban planning. This study is limited to health buildings—oncology hospitals—from various building categories according to their function in the field of architecture and interior architecture as well as environmental aspects such as natural light, air quality, view, the use of art, noise, etc. There is a significant emphasis on designing healing environments to achieve better health outcomes for patients. Cancer is the most serious disease type and can cause many malignant conditions in people. The increasing number of cases and deaths due to cancer in N. Cyprus as well as in the rest of the world in the past years can cause fear for many individuals. According to the statistics from the Health Ministry of N. Cyprus [23], the increasing number of cancer cases and the need to design care hospitals has recently shown the importance of how there is a link between the environment and patient health and well-being. Therefore, this study looks into oncology hospitals in N. Cyprus and uses selected and accredited NHS AEDET and ASPECT toolkits to explore the opportunities of using the toolkit in a developed country and to apply it in the developing country of N. Cyprus in order to identify the strengths and weaknesses of the toolkit and make recommendations for the adoption of the toolkit and determine whether it is applicable.
Within the scope of this strategy, newly built hospitals abroad are defined as “healing” facilities that have a positive impact on the built environment. However, there is a huge misunderstanding when it comes to designing hospital buildings. Hospitals that are built nowadays suffer from a ‘lack of soul’ due to the use of contemporary materials and turn out to be like glass boxes in the end. Therefore, hospital buildings end up with a modern appearance; however, this does not meet the standards of either biophilic design or healing environment design, even if the interior has been well planned. In this case, it can be said that the beauty of the building is questionable, whether talking about the classical definition or a modernist approach. Donald Ruggles defines the aesthetic form of contemporary buildings as potentially being disappointing when compared to more classical buildings that affect people’s psychological cognition, and he introduces his theory called ‘the nine square’ to fit into modern architecture as a building façade that can be divided and then fit into a tic-tac-toe board [24].
There is also a new topic about fracturing biophilia. Taylor, in his article published in 2021, discusses the fragmentation of the whole image of a building itself into a naturistic form that resembles the aesthetic space itself [25]. This is currently beyond the scope of this paper. This is a statement that puts fractals into art, design, and architecture; however, this is beyond the scope of this study, and due to the criticisms of the study, it may be explored more in detail as a future study.
In addition to the well-known functional complexity of healthcare facilities, there are several standards, guidelines, and requirements that architects must consider when designing hospitals. These vary from one country to the next in terms of quantity and focus. For instance, the Department of Health and NHS Estates in the UK has released a sizable number of standards and guideline documents to control and direct architects throughout the design process of healthcare facilities [26]. Phiri [18], in his book, discovers and categorizes EBD under four main headings: improving compliance, improving design quality, enhancing efficiency and effectiveness, and achieving sustainability in architectural healthcare estates, where the AEDET and ASPECT toolkits were used to support the argument in terms of design quality indicators for better healthcare quality.
The design quality indicator (DQI), if used well, can provide better health outcomes. The AEDET and ASPECT Toolkits are frameworks derived from the design quality indicator (DQI) that meet under three main headings and categories [26]. AEDET has a structured method for classifying each design criterion that was taken from the four NHS toolkits. The design quality indicator (DQI) is the foundation of the AEDET toolkit. The DQI was created to assess the design quality of structures at each of the four critical stages of building development. In this study, the toolkit was used to evaluate two oncology hospitals to check the adaptability of the toolkit within the local authorities studied.
There has been limited use of these toolkits in Global North countries. A handful of studies carried out by Ghazali, Chaham, Mahmood, et al., explore hospitals in Malaysia, Kurdistan, etc. [27,28,29], using the AEDET Evolution toolkit as an assessment method for studying the hospital buildings. However, none of these papers assess the toolkits, nor do they provide recommendations for their use in Global North countries. Although part of this study is the evaluation of two hospitals in terms of creating a better healing environment, the main contribution of this study is the recommendations for using these toolkits. AEDET is more related to professionals, however ASPECT is more appropriate for patients usage. Currently, this statement makes the claim that is not supported by these data, and interviews were included in this study. Interviews with the architects strengthen this argument.
Scheme 1 below shows the reproduced AEDET toolkit criteria based on the open government licence. In this context, the aim of this study is to investigate the concepts of evidence-based design and patient-centered design in terms of the healing environment in hospitals, to examine the cancer hospitals in N. Cyprus through the use of an existing toolkit, and to create recommendations based on how this toolkit that was developed for developed countries can be used in developing contexts too. This is achieved by employing the evaluation toolkits across two oncology hospitals in N. Cyprus.
Scheme 1.
The modified framework of the NHS’s AEDET toolkit is based on the design quality indicator [26].
Research indicates that access to nature, daylight, and wellness factors can reduce drug use and hospital stays. Nature positively impacts patients’ emotions, reduces anxiety, and stimulates senses. Natural environments and design can improve health by balancing contrast and harmony [30].
At the Center for Health Design, an organization that supports healthcare and design professionals to improve the quality of healthcare through evidence-based building design, researchers have proposed the definition of EBD as: “the process of basing decisions about the built environment on credible research to achieve the best possible outcomes” [31].
Scientific evidence is used to improve the effectiveness of design interventions and gain the support of healthcare providers trained to rely solely on sound scientific data. This new scientific approach to the design of healing environments is generally referred to as ‘evidence-based design’ [32]. The primary potential uses of the instruments are measuring the facility design to develop the existing surroundings [33], devising updated hospital buildings, and offering a quantitative method for evaluating a built structure for research [34].
This study focuses on finding a relevant existing toolkit to evaluate the link between nature, human comfort, and well-being to create healthy and sustainable spaces that enrich daily lives through the use of evidence-based design and patient-centered are design in terms of environmental comfort. The main purpose of this study is to raise awareness about the role of architecture, guidance, and biophilic design in interacting with the healing environment in the healing process of cancer patients. In addition, the purpose of this study is to develop criteria and design guidelines for the implementation of cancer design practices in hospitals in N. Cyprus and to fill the gap in the literature in this context.
1.3. Study Framework
This study aims “to draw attention to the role of architecture in the interaction with nature and its elements in the healing process of patients, to develop criteria and design guidelines for the application of healing environment design in hospitals in N. Cyprus”.
For evaluating facilities, there are numerous techniques and resources. The technical building performance, function/usability, or form/beauty are often the three areas of concern. However, assessments of active structures are uncommon. They are regarded as a drawn-out and expensive portion of the last stage of a construction project. As a result, the mistakes made during completed construction projects are not recorded. For this, mixed methods, including both qualitative and quantitative approaches, are used. Procedures include collecting, observing, analyzing, and comparing both qualitative and quantitative data in terms of primary and secondary data.
In general, the study framework process of this study proceeded as follows: A targeted literature search and data collection process in terms of the concept of evidence-based design, patient-centered care design, and biophilic design research was conducted. The healing environment design literature and theories were carefully studied to define the guidelines. A targeted literature search and data collection process was carried out in terms of evidence-based design in hospitals. To establish the analysis method of hospitals, a pilot analysis study was conducted on hospitals with selected toolkits. Existing oncology hospitals in N. Cyprus were researched. First of all, different hospitals were examined in the selection of the study hospitals. At this stage of the study, various pieces of information and documents regarding qualitative and quantitative sources were collected, and individual interviews were conducted with some professionals, such as architects, engineers, stakeholders, and doctors. The number of existing oncology hospitals in N. Cyprus was identified, and architectural studies and the AEDET and ASPECT evaluation toolkits were applied. A comparison was made between public and private hospitals to test their validity according to their strengths and weaknesses, and a proposal for a new healing design for hospitals was developed in line with the findings. The results and recommendations section provide a design guide proposal based on all the research and analysis conducted in this study.
Scheme 2, shows the study framework with the general themes followed by the method selection and application to the case studies. General hospital samples were examined in a field study that was carried out to examine the architectural space quality in oncology units. In this study, a public hospital’s oncology center and a private hospital’s oncology unit were selected as the study areas. When selecting the hospitals, the limitation was based on to provide one public and one private hospital to be comparable within, which are assumed to have better spatial conditions, and the facilities are preparing for accreditation to fulfill the requirements, hence the importance of patient rooms as well as the treatment spaces. In the course of the study and data analysis, the hospitals are referred to as (A) and (B) without being named.
Scheme 2.
The study framework.
This study focused on patient experience in the studied healthcare facilities in order to recognize the deficiencies within this context. As such, it was necessary to rethink the patient experience within the healthcare facilities and to create new guidelines, which can be applied in other Global South countries worldwide.
POE is possibly the most well-known assessment method for evaluating the quality of buildings by users. ‘Post-occupancy’ refers to a building already being in use at the time of evaluation. In other words, POE can be described as a process for assessing a facility in a more defined and systematic way after the completion and use of the building [34].
AEDET is a toolkit used for assessing the design quality of buildings within the healthcare sector. It creates a detailed report demonstrating the strengths and weaknesses of the inspected design [26].
A staff-and-patient environment calibration toolkit (ASPECT) supports the AEDET Evolution toolkit in evaluating the design quality of spaces in hospitals for healthcare staff and their patients [35].
At the Center for Health Design, an organization that supports healthcare and design professionals to improve the quality of healthcare through evidence-based building design, researchers have proposed the definition of EBD as “the process of basing decisions about the built environment on credible research to achieve the best possible outcomes” [31]. Scientific evidence is used to improve the effectiveness of design interventions and gain the support of healthcare providers trained to rely solely on sound scientific data. This new scientific approach to the design of healing environments is generally referred to as ‘evidence-based design’ [36].
According to Ulrich [37], the physical surroundings of a facility can be healing for patients and supportive for the families of patients, and it can be efficient for staff if the facility is designed successfully. To sum up, evidence-based design provides a scientific justification for the deep-rooted notions of the importance of the physical environment for health and healing.
Healthcare building design frequently involves complex concepts that are difficult to measure and evaluate. The achieving excellence design evaluation toolkit (AEDET) is a questionnaire tool that is used with a post-occupancy evaluation to evaluate the quality of healthcare buildings in order to understand their strength and weaknesses. AEDET evaluates a design by posing a series of clear, non-technical statements based on three key criteria: functionality, build quality, and impact [26].
To achieve this guidance, the accredited evaluation method in the United Kingdom’s National Health Service (NHS), achieving excellence design evaluation toolkit (AEDET), was used for patients and caregivers [26].
On the other hand, in terms of the staff and patient environment, ASPECT is a complementary tool that is used alongside AEDET for the staff of the hospital [35]. In the end, radar table formation was achieved separately based on the results and findings for the selected cases of one private hospital building, which was the oncology unit of private university hospital, and the public oncology center of a public hospital, which is based at the capital city, Nicosia.
The methods employed for data collection were the UK’s NHS AEDET Evolution and ASPECT evaluation toolkit questionnaires (Supplementary Materials), personal site observation, and photographic documentation supplemented by the toolkit evaluations [21].
- The AEDET (achieving excellence design evaluation toolkit) Evolution questionnaire is part of a benchmarking tool that assists in measuring and managing the design quality in healthcare facilities. In terms of reliability, it includes references to the evidence-based design literature, and this is related to the criteria used in the evaluation. In terms of validity, its use is mandatory in major hospital design development in N. Cyprus. It evaluates a design through a series of statements that encompass three areas. The impact area deals with the degree to which the building creates a sense of place and contributes positively to the lives of the users and its neighbors. It involves four sections—character and innovation, form and materials, staff and patient environment, and urban and social integration. The build quality area deals with the physical components of the building rather than the spaces and involves three sections—performance, construction, and engineering. The functionality area deals with issues on the primary purpose of the building and involves three sections—use, access, and space—as follows [26]. Table 1. below, shows the criteria for the AEDET evolution in detail which is reproduced from the AEDET checklist under the open government licence and transformed to a table.
Table 1. AEDET questionnaire modified table aspects with numbers in detail [26].
- The ASPECT (a staff and patient environment calibration toolkit) toolkit measures the manner in which the healthcare environment can impact both the satisfaction levels of patients and the provision of facilities to staff. It evaluates eight sections—privacy, company, and dignity, views; nature and outdoors; comfort and control; legibility of place; interior appearance; facilities; and staff. In terms of reliability and validity, the ASPECT toolkit is based on a database of over 600 pieces of research. The ASPECT evaluation toolkit, in the form of questionnaires, assesses users’ satisfaction with both nurses and patients. In this study, an overall total of 50 staff, 20 professionals, including architects, engineers, and stakeholders, and 150 cancer patients responded to the questionnaires as follows [35]. Table 2 shows the criteria for the AEDET evolution in detail which is reproduced from the ASPECT checklist under the open government licence and transformed to a table.
Table 2. ASPECT questionnaire aspects with numbers [21].
1.4. Case Study Setting
1.4.1. Hospital A: A Public Central Hospital’s Oncology Centre
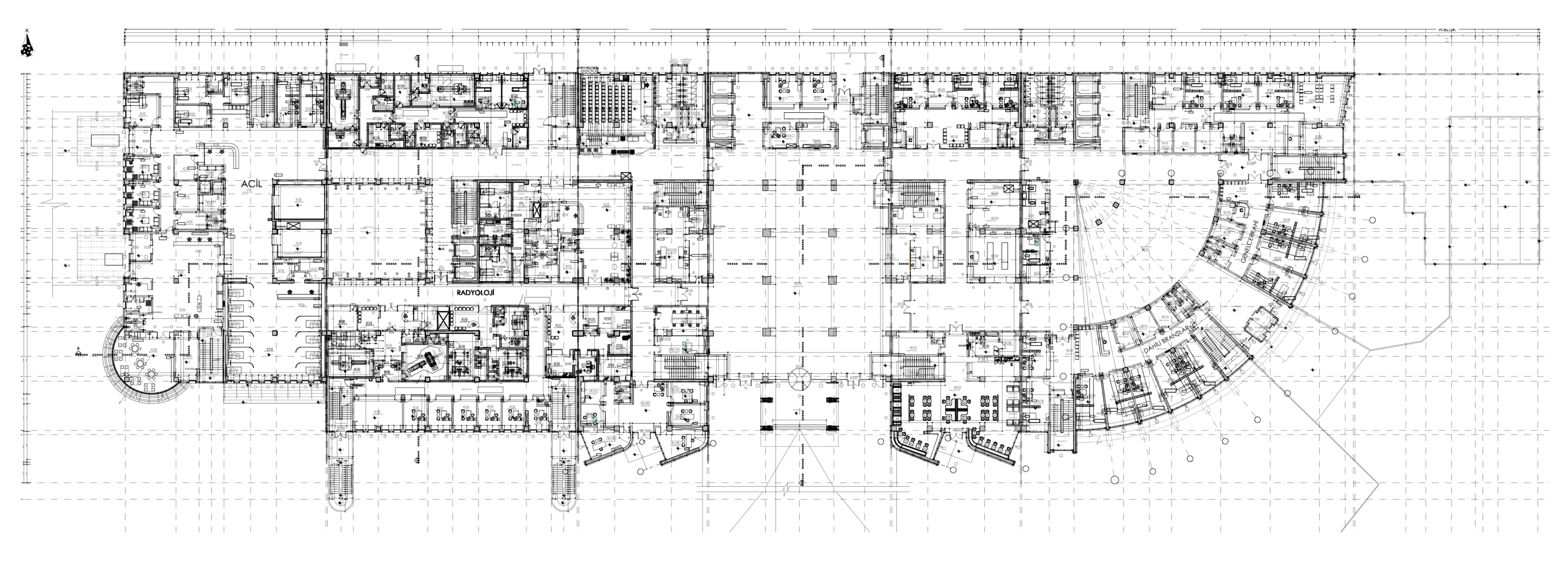
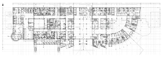
The public central hospital’s oncology center investigated in this study is a cancer-oriented center established in 2016 and aims to provide global healthcare standards for cancer patients and to promote their psychology in a new, technically and physically developed suitable environment [38]. There are 62 beds and 5 intensive care beds in the 6-story oncology center, with a total capacity of 67 beds. Figure 1, shows the ground floor plan of the public oncology hospital where Figure 2 shows some points through the main entrance, exterior and the interior details from the building.
Figure 1.
Typical functional floor plan of the public oncology center.
Figure 2.
Public oncology hospital, Nicosia.
1.4.2. Hospital B: Private Hospital Oncology Unit
The private hospital is composed of three separate blocks, including several entrances to the accommodation unit for the patients and relatives. The main entrance is segregated from the other entrances to prevent public and private relationships. The hospital proposes specific entries for staff and service facilities. The emergency department also provides another entry to the facility that has a connection to the outpatient department in order to ease the travel distance between the departments.
The three separate blocks are as follows. The main central blocks have nine floors and offer inpatient care. The east block has one floor is built for emergency services. The west blocks have three floors and are for healthcare services. The floors are connected with a vertical circulation system.
The hospital comprises more than 200 single-patient rooms, 8 operational surgical spaces with contemporary equipment for operations, monitoring, and anesthesia as well as neonatal intensive care units, intensive care units where a laboratory is located near the, radiotherapy department, a nuclear medicine department, and radiotherapy centers to provide faster and more accurate results for diagnosis, scanning, and treatment for cancer patients [39]. Figure 3, shows the ground floor plan of the public oncology hospital where Figure 4 shows some points through the main entrance, exterior and the interior details from the building.
Figure 3.
Typical functional floor plan of the hospital.
Figure 4.
Private Near East University Hospital from left to right.
2. Materials and Methods
2.1. Data Collection and Research Design
Data Analysis
The primary method used in evaluating healthcare facilities within this study was the application of the existing AEDET and ASPECT toolkits. The methodological framework shown below applied the AEDET and ASPECT toolkits in two different oncology hospitals in order to (a) evaluate and compare the main criteria of the build quality, functionality, and impact on health outcomes and (b) create a revised assessment method based on the findings that can be used by architects designing hospitals in Global South contexts, such as in N. Cyprus. The decision about the number of people was made in collaboration with the Cancer Research Centre and was based on similar numbers from other related studies.
The methodology comprised the following:
- -
- A literature review;
- -
- A comparative analysis between the two hospitals;
- -
- Testing the AEDET and ASPECT toolkits as questionnaires in these hospitals amongst patients, relatives, and staff;
- -
- Semi-structured interviews with architects;
- -
- Personal building observations;
- -
- A photo content analysis;
- -
- Results being shown as tables in numeric form and as charts for comparison.
The research took place in both the oncology units of the private hospital and central hospital’s oncology centers. The main focus was on patients’ perceptions through their experiences in the hospitals.
Due to the COVID-19 pandemic period, considerable delays were observed in securing the necessary permissions. Once approved, all the recommended COVID-19 protection precautions were taken, and the in-person questionnaire process was thus more appropriate and relevant in parallel to the studies as well as in providing more practical information.
The questionnaire data were entered into Google Forms and carried out with different user profile groups within the building, consisting of:
- -
- One hundred and fifty cancer patients and relatives above 18 years old (75 per hospital);
- -
- Fifty doctors and staff (25 per hospital);
- -
- Twenty professionals such as architects, engineers, and stakeholders.
The questionnaires were selected due to their relevance to the study in terms of the observational, environmental, functional, and behavioral aspects of the building, as well as focusing on patients’ needs. The key aspects were used as the main framework, under the main themes; however, the questions were selected and modified according to reasons decided beforehand. Scheme 3, shows the methodology framework in detail below.
Scheme 3.
Methodological framework of the study.
3. Results
3.1. AEDET Toolkit Findings
A comparative approach was used, and the results are shown with radar tables in order to evaluate the selected cases together and to make new suggestions for global standards for future healthcare architecture projects in N. Cyprus. The table presented below provides a comprehensive overview of the AEDET criteria across ten distinct categories. The table includes the previously mentioned point allocations for each criterion. Additionally, the table presents a comparative summary of the overall results, quantified on a scale from 1 to 6. The AEDET evaluation highlighted that the aspects related to public hospitals tended to fall below average, particularly in terms of functionality. While there was not a significant disparity between the building quality and the impact aspects for both the public and private hospitals, a noteworthy distinction emerged when considering functionality. This divergence underscores a substantial difference in this particular aspect between the two types of hospitals.
3.2. Comparative Case Study Findings between Hospitals
This study revealed that these toolkits have not been evaluated before and that these evaluation toolkits are not enough to be used in this context. The main gap is that these toolkits are not fully appropriate for use in the Global South and need to be modified, and this is the contribution of this paper to the field.
Northern Cyprus has similar hospital designs and challenges, and the toolkits used in this study are not fit for purpose and need to be modified. Examples need to be supported, including studies on the toolkits used in this study and what they look like. The toolkits used in this study are not fit for purpose and need modification, which is addressed in this paper. They have been designed for the context of developed countries instead of developing countries. Other studies include talking about hospitals rather than the tools they used. There are a handful of studies that have used these tools beyond the Global North context, but they have not discussed the shortcomings of the toolkits and they have not proposed any solutions. This is the first paper to discuss the shortcomings of the toolkits and what needs to be added or changed.
Based on the data presented below, Table 3 demonstrates that, it is evident that the private hospital exhibited a higher score in comparison to the public hospital in terms of scoring. This disparity was particularly pronounced in terms of its distinct characteristics and innovative practices. However, the variation in terms of building performance between the two hospitals was comparatively marginal.
Table 3.
AEDET mean results from questionnaire out of 6 (n = 200).
Based on the findings shown in Table 3, a bar chart in Figure 5 was constructed to more easily follow the comparisons and to demonstrate the strengths and weaknesses of the toolkit.
Figure 5.
Findings table for comparing the studied hospitals within the proportions of the AEDET design parameters.
The radar chart in Figure 6, shown above was constructed to show the above comparisons and findings between the studied public and private hospitals more clearly.
Figure 6.
Clear comparison between hospitals for AEDET.
3.3. Findings of the Data Analysis Method for the ASPECT Toolkit
The overall results and mean comparisons of the ASPECT questionnaire shown above were in between scorings of 1–6, where 1 is virtually no agreement, 2 is hardly any agreement, 3 is a little agreement, 4 is a fair agreement, 5 is strong agreement, and 6 is virtually complete agreement. Below are the main findings and comparisons made amongst the ASPECT criteria for the studied public and private hospitals. The comprehensive assessment indicated that both hospitals were situated at an intermediate level in terms of their overall performance. Notably, the aspect displaying the most pronounced vulnerability pertained to “Facilities” (c07), garnering a rating of 2.5 out of 6. This outcome suggests an inadequacy in the provisions extended to users within the public hospital context. Conversely, this same aspect yielded a notably higher rating of 3.9 out of 6 for the private hospital, denoting a relatively more satisfactory arrangement of user-oriented facilities. The facet reflecting the most robust outcome pertained to “Legibility of Place,” wherein the public hospital secured a commendable score of 4.6 out of 6, and the private hospital excelled with a score of 5.6 out of 6, affirming the effective navigational and comprehensible attributes of both establishments.
3.4. Comparative Case Study Findings between Hospitals
Based on the findings shown in Table 4, a bar chart was constructed to allow an easier comparison and to demonstrate the strengths and weaknesses of the toolkit in detail.
Table 4.
ASPECT mean results from questionnaire out of 6 (n = 200).
Figure 7 demonstrates the findings for all ASPECT Criteria and the comparison within hospitals which can be clearly seen.
Figure 7.
Findings table for comparing the studied hospitals within the proportions of the ASPECT design parameters in detail.
The radar table shown below in Figure 8, was constructed to show the comparisons and findings above between the public and private hospitals more clearly.
Figure 8.
ASPECT questionnaire—staff and patient environment comparison radar table.
The radar table effectively underscores a distinct contrast between the private and public hospitals. Notably, “Staff Experience” emerged as a salient forte for the private hospital, while it conversely ranked as the least prominent aspect for the public hospital. In the realm of user experience, the element of “Comfort” emerged as a pivotal determinant. This encompasses a spectrum ranging from lighting, air quality, and views to design layout, window provision, and temperature control. The collective impact of these factors cannot be overstated. It is noteworthy that user feedback uniformly converged on a specific observation: the inability to open windows, which was attributed to safety concerns. This convergence underscores a shared constraint experienced by users across both hospital types.
4. Discussion
The findings from the AEDET and ASPECT evaluation provided valuable insights into the current state of healing environment design in the selected hospitals in Northern Cyprus. By analyzing the results through the lens of the relevant literature and theory, key linkages and implications emerged surrounding environmental design, user experience, and the need for localized design toolkits.
4.1. According to Data Analysis Results for AEDET Toolkit
The following Table 5 was made by the authors from the results of the table for the AEDET toolkit. The comparison was made based on each aspect of each hospital.
Table 5.
Discussion of AEDET questionnaire results.
- The goal in healthcare environments is to create nurturing, home-like spaces for patients that prioritize patient-centered care. This can be achieved by optimizing the design to provide access to nature, maximize natural light through large windows, reduce noise with single-bed patient rooms and outdoor healing gardens, and use calming natural colors. Technology integration is also important for sustainability. Proximity to nature is a key element in designing healing spaces, with factors like daylight, ventilation, tranquility, and natural colors being consistent considerations in hospital design [41].
- Environmental factors significantly impact building designs, including healthcare facilities. However, there is often a lack of consideration for these factors in healthcare facility planning. To enhance patient health and wellness, it is essential to integrate natural settings, establish visual connections with nature, and create therapeutic healing gardens. The use of natural light and color can elevate environmental quality standards, leading to faster patient recovery [42].
- Patient rooms must be designed to create a homely, attractive environment that contributes to patient well-being and faster recovery. Therefore, in stationary rooms and waiting areas, attention should be paid to the use of natural light, natural materials, and textures, as well as artistic objects [43].
The following factors need to be considered by management to practice patient-centered care design:
- The location of the building and the selection of the place with the city center;
- Contextual design principles;
- The functional relationship of efficient and appropriate interior spaces;
- Easy signs for in-hospital navigation;
- Suitably designed and accessible structures for all people [44].
4.2. According to Data Analysis Results for ASPECT Toolkit
A general Table 6 has been made within the ASPECT Criteria which discuss about the results achieved from the findings.
Table 6.
Discussion of ASPECT questionnaire results.
4.3. Recommended Design Criteria Checklist
The Table 7 below, summarizes the results and discussion around the main categories of functionality, build quality, and impact, and the following recommendation checklist was made to adapt the AEDET and ASPECT toolkits to improve the use of hospitals in Northern Cyprus.
Table 7.
Recommended and adapted checklist for Northern Cyprus.
5. Conclusions
This paper explored the potential of using the AEDET hospital evaluation toolkit to create better healing environments for cancer patients beyond the Global North context, with a focus on hospitals in Northern Cyprus. The healing environment is crucial for cancer patient well-being and recovery, yet current hospital designs in the Global South often neglect these considerations. This study explored and analyzed two different healthcare facilities in Nicosia, Northern Cyprus, namely one public oncology hospital and one private oncology department of a university hospital, which mainly consisted of the same characteristics as each other. The profile of the users for these hospitals was generally explored; however, the profile of the patients focused on short-term illnesses who had experienced a stay in hospital for at least one night. The patient’s ages were categorized as above 18, according to adult age characteristics. Surveys were prepared to provide and receive data from the patients, staff, and relatives within the themes of physical, environmental, and behavioral characteristics formed from different functions, ranging from the general scale to the building scale and room scale.
This study focused on the physical and psychological characteristics of the spaces; however, it did not include technical standards.
Human–environment interactions are intricate and entail personal characteristics in addition to social, cultural, and behavioral difficulties [45]. It is noted that the definitions of disease and health have changed many times in the evolution from the first hospital buildings in history to today’s hospital structures, and many advances have been made in medical science [46].
The AEDET evaluation indicates a positive shift in the physical qualities and design direction of hospitals, aligning to create healing environments [27]. However, this improvement does not appear to correspond with the levels of satisfaction reported by end users, as revealed in the ASPECT analyses.
This incongruity emphasizes the intricate relationship between design evolution and user experience, prompting a need to address both physical and subjective aspects to ensure the creation of genuinely satisfying healing environments for N. Cyprus. The toolkits used in the evaluation processes ensure good quality in the development process, assuming they have been tailored to specific cases. Otherwise, they are inadequate. Thus, providing architects with a ‘modified local’ checklist toolkit as an assessment method will help in designing better-quality and qualified healthcare facilities. As Pantayou et al. note in their article on Cyprus “This study is one of a few focusing on Cyprus. It considers a relatively long period and updated the previous evidence in the literature regarding heat-related morbidity”. This study also proves the development in the importance of healthcare buildings on people’s health and well-being in Cyprus [47].
Through a mixed-methods approach involving a literature review, case studies, surveys, and interviews, this study evaluated two oncology hospitals in Northern Cyprus using the NHS-accredited AEDET toolkit and ASPECT questionnaires. The findings revealed the strengths and weaknesses of the hospitals regarding environmental comfort, privacy, views, facilities, and other design aspects affecting patient experience. The comparative analysis found that the private hospital performed better overall, especially in the functionality criteria.
However, a key finding was that the AEDET toolkit in its current form is not fully fit for purpose in the Cyprus context, requiring adaptations in order for it to be applicable in the Global South. The toolkit was designed for developed countries and lacks considerations for local climate, culture, regulations, materials, and other contextual factors. This paper is the first to critically analyze the limitations of AEDET for developing countries and to propose targeted modifications to improve its relevance.
Based on the evaluation results and findings, this study put forth a recommended design criteria checklist adapted for hospitals in Northern Cyprus. The adapted criteria integrate learnings in terms of privacy, access to nature, wayfinding, staff facilities, and other aspects affecting patients and staff. This localized criteria checklist can serve as a practical tool for architects to design healthcare facilities aligned with user needs, promoting quality care. This approach can be extended to other Global South settings.
This study is limited in terms of its focus being only on two hospitals in Nicosia, involving a small sample of patients, staff, and professionals. Additionally, the scope centered on physical and environmental qualities, without considering other technical standards. Further research across more hospitals and regions would strengthen the findings.
The localized design criteria put forth can guide hospital design in N. Cyprus and other developing nations to better support patient health. The findings highlight the need for toolkit modifications to suit local contexts, paving the way for further refinements. The approach can be replicated to evaluate and tailor toolkits for diverse settings.
This work has broader implications for hospital design worldwide. It emphasizes that while evidence-based design principles are universal, the pathways for its implementation must consider contextual specificities. Environmental design is integral for healing, but toolkits to enable it must resonate locally. This study indicates the value of participatory methods to assess and evolve healthcare design toolkits across the Global North and South. Adapting toolkits can catalyze the spread of healing environments to where they are most needed.
Supplementary Materials
The following supporting information can be downloaded at: https://www.mdpi.com/article/10.3390/buildings13102588/s1. The Supplementary Materials is attached as the AEDET toolkit questionnaire and ASPECT toolkit questionnaire distributed to the respondents.
Author Contributions
All authors contributed to the process. The authors’ contributions are as follows: Conceptualization: B.T.T. and O.D. Methodology: B.T.T. and O.D. Formal analysis: B.T.T. Writing—original draft preparation: B.T.T. Supervision, review, and editing: O.D. All authors have read and agreed to the published version of the manuscript.
Funding
This research received no external funding.
Institutional Review Board Statement
All subjects gave their informed consent for inclusion before they participated in the study. The study was conducted in accordance with the guidelines of the NHS under the open government license. The protocol was approved by the Eastern Mediterranean University’s Scientific Research and Publication Ethics Board (approval code: ETK00-2021-0162); The protocol was approved by the Ethics Committee of Nalbantoglu State Hospital (approval code: 42/21); The protocol was approved by the Ethics Committee of Near East University Hospital (approval code: YDH-295/2021).
Informed Consent Statement
Informed consent statements were obtained from all subjects involved in the study.
Data Availability Statement
Data supporting the reported results can be requested from the corresponding author.
Acknowledgments
The authors would like to thank the Cancer Association of North Cyprus for their cooperation in collecting data; Nalbantoglu State Hospital and Near East University Hospital for providing the necessary drawings and information related to the hospitals.
Conflicts of Interest
The authors declare no conflict of interest.
References
- Huisman, E.R.C.M.; Morales, E.; van Hoof, J.; Kort, H.S.M. Healing Environment: A Review of the Impact of Physical Environmental Factors on Users. Build. Environ. 2012, 58, 70–80. [Google Scholar] [CrossRef]
- Nightingale, F. Introductory Notes on Lying-In Institutions; Longmans, Green: London, UK, 1871; Volume 3. [Google Scholar]
- Tekin, B.H.; Corcoran, R.; Gutiérrez, R.U. A Systematic Review and Conceptual Framework of Biophilic Design Parameters in Clinical Environments. Health Environ. Res. Des. J. 2023, 16, 233–250. [Google Scholar] [CrossRef]
- Sternberg, E.M. Healing Spaces: The Science of Place and Well-Being; Harvard University Press: Cambridge, MA, USA, 2010; pp. 50–70. [Google Scholar]
- Smith, R.; Watkins, N. Therapeutic Environments | WBDG—Whole Building Design Guide. Wbdg.org. Available online: https://www.wbdg.org/resources/therapeutic-environments (accessed on 20 July 2023).
- Alfonsi, E.; Capolongo, S.; Buffoli, M. Evidence-Based Design and healthcare: An unconventional approach to hospital design. Ann. Ig. 2014, 26, 137–143. [Google Scholar] [CrossRef]
- Ulrich, R.S.; Simons, R.F.; Losito, B.D.; Fiorito, E.; Miles, M.A.; Zelson, M. Stress Recovery during Exposure to Natural and Urban Environments. J. Environ. Psychol. 1991, 11, 201–230. [Google Scholar] [CrossRef]
- Hamilton, D.K.; Watkins, D.H. Evidence-Based Design for Multiple Building Types; John Wiley & Sons, Inc.: Hoboken, NJ, USA, 2009. [Google Scholar]
- Cama, R. Evidence-Based Healthcare Design; John Wiley & Sons: Hoboken, NJ, USA, 2009. [Google Scholar]
- Berry, L.L.; Crane, J.; Deming, K.A.; Barach, P. Using Evidence to Design Cancer Care Facilities. Am. J. Med. Qual. 2020, 35, 397–404. [Google Scholar] [CrossRef]
- Browning, W.; Ryan, C.O.; Clancy, J.O. 14 Patterns of Biophilic Design; Terrapin Bright Green: New York, NY, USA, 2014. [Google Scholar]
- Kellert, S.R.; Heerwagen, J.; Mador, M. Biophilic Design: The Theory, Science and Practice of Bringing Buildings to Life; Wiley: Hoboken, NJ, USA, 2013. [Google Scholar]
- The World Health Organisation. Public Health 1946, 60, 74–75. [CrossRef]
- Høybye, M.T. Healing environments in cancer treatment and care. Relations of space and practice in hematological cancer treatment. Acta Oncol. 2013, 52, 440–446. [Google Scholar] [CrossRef]
- Jencks, C. The Architecture of Hope; Frances Lincoln Ltd.: London, UK, 2015. [Google Scholar]
- Gokcora, N.; Ince, F.; Hocaoglu, M.; Akcay, N.; Eker, O. Kidem Cyprus Cancer Statistics; Ministry of Health Report; Ministry of Health: North Cyprus, Türkiye, 2018; pp. 2–37. [Google Scholar]
- Gashoot, M.M. Holistic Healing Framework: Impact of the Physical Surrounding Design on Patient Healing and Wellbeing. Art Des. Rev. 2022, 10, 18–28. [Google Scholar] [CrossRef]
- Phiri, M. Design Tools for Evidence-Based Healthcare Design; Routledge: London, UK, 2015. [Google Scholar]
- Design Quality Indicator as a Tool for Thinking. Available online: https://www.tandfonline.com/doi/abs/10.1080/0961321032000107564 (accessed on 20 July 2023).
- Ulrich, R. Nature, and Mental Health: Biophilia and Biophobia. Environ. Ment. Health 1993, 3, 179–196. [Google Scholar]
- Sussman, A.; Hollander, J.B. Cognitive Architecture: Designing for How We Respond to the Built Environment; Routledge: New York, NY, USA, 2015. [Google Scholar]
- Lavdas, A.A.; Tasser, E.; Schirpke, U. Assessing Landscape Aesthetic Values: Do Clouds in Photographs Influence People’s Preferences? PLoS ONE 2023, 18, e0288424. [Google Scholar] [CrossRef]
- KKTC Sağlık Bakanlığı > İSTATİSTİKİ BİLGİLER > KANSER İSTATİSTİKLERİ. Gov.ct.tr. Available online: http://arsiv.salik.gov.ct.tr/ (accessed on 20 June 2023).
- Ruggles, D.H. Beauty, Neuroscience, and Architecture: Timeless Patterns and Their Impact on Our Well-Being; Fibonacci: Denver, CO, USA, 2018. [Google Scholar]
- Taylor, E.; Hignett, S. DEEP SCOPE: A Framework for Safe Healthcare Design. Int. J. Environ. Res. Public Health 2021, 18, 7780. [Google Scholar] [CrossRef] [PubMed]
- Achieving Excellence Design Evaluation Toolkit. Available online: https://www.pcpd.scot.nhs.uk/Capital/SCIM_Pilot/2017/AEDET%20Refresh%20Guidance.docx (accessed on 10 May 2023).
- Ghazali, R.; Abbas, M.Y. Natural Environment in Paediatric Wards: Status and Implications. Procedia-Soc. Behav. Sci. 2012, 68, 173–182. [Google Scholar] [CrossRef][Green Version]
- Alalouch, C.; Aspinall, P.A.; Smith, H. Design Criteria for Privacy-Sensitive Healthcare Buildings. Int. J. Eng. Technol. 2016, 8, 32–39. [Google Scholar] [CrossRef]
- Fouad, J.; Mahmood, F. Post-occupancy evaluation Correlated with Medical Staffs’ Satisfaction: A Case Study of Indoor Environments of General Hospitals in Sulaimani City. J. Eng. 2021, 27, 28–48. [Google Scholar] [CrossRef]
- Kobus, R.L. Building Type Basics for Healthcare Facilities; Wiley: Hoboken, NJ, USA, 2008. [Google Scholar]
- CHD. Center for Health Design. Available online: https://www.healthdesign.org/certification-outreach/edac/about-ebd (accessed on 31 August 2022).
- Preiser, W.F.E.; Rabinowitz, H.Z.; White, E.T. Post-Occupancy Evaluation; Van Nostrand Reinhold: New York, NY, USA, 1988. [Google Scholar]
- Miller, R.L.; Swensson, E.S. New Directions In Hospital and Healthcare Facility Design; McGraw-Hill: New York, NY, USA, 1995. [Google Scholar]
- van der Voordt, D.J.M.; van Wegen, H.B.R. Architecture in Use: An Introduction to the Programming, Design, and Evaluation of Buildings; Elsevier: Amsterdam, The Netherlands, 2005. [Google Scholar]
- The National Archives ASPECT. Available online: http://webarchive.nationalarchives.gov.uk/20130124042001/http://www.dh.gov.uk/prod_consum_dh/groups/dh_digitalassets/@dh/@en/documents/digitalasset/dh_082081.pdf (accessed on 21 August 2022).
- Kvåle, K.; Bondevik, M. What Is Important for Patient Centred Care? A Qualitative Study about the Perceptions of Patients with Cancer. Scand. J. Caring Sci. 2008, 22, 582–589. [Google Scholar] [CrossRef]
- Ulrich, R.S. Viewing through a window may influence recovery from surgery. Science 1984, 224, 420–421. [Google Scholar] [CrossRef] [PubMed]
- North Cyprus Ministry of Health. North Cyprus. Available online: http://bndh.gov.ct.tr/tr/servisler/dahili-birimler/onkoloji (accessed on 8 February 2022).
- Near East University Hospital. North Cyprus. Available online: https://neareasthospital.com/departments/medical-oncology/?lang=en (accessed on 8 February 2022).
- Zeisel, J. Inquiry by Design: Environment/Behavior/Neuroscience in Architecture, Interiors, Landscape, and Planning; W.W. Norton & Co.: New York, NY, USA, 2006. [Google Scholar]
- Ulrich, R.S. How design impacts wellness. Healthc. Forum J. 1992, 35, 20–25. [Google Scholar]
- Berg, A.E.V.D. Health Impacts of Healing Environments: A Review of the Evidence for Benefits of Nature, Daylight, Fresh Air, and Quiet in Healthcare Settings; University Hospital: Groningen, The Netherlands, 2005. [Google Scholar]
- Greenberg, J.; Jonas, E. Psychological Motives and Political Orientation—The Left, the Right, and the Rigid: Comment on Jost et al. (2003). Psychol. Bull. 2003, 129, 376–382. [Google Scholar] [CrossRef]
- Sunand, P. Changing Hospital Architecture, 1st ed.; RIBA: London, UK, 2008. [Google Scholar]
- Ismaeil, E.M.H.; Sobaih, A.E.E. Enhancing Healing Environment and Sustainable Finishing Materials in Healthcare Buildings. Buildings 2022, 12, 1676. [Google Scholar] [CrossRef]
- Akinluyi Muyiwa, L.; Fadamiro Joseph, A.; Ayoola Hezekiah, A.; Alade Morakinyo, J. Theoretical Issues and Conceptual Framework for Physical Facilities Design in Hospital Buildings. J. Archit. Environ. Struct. Eng. Res. 2021, 4, 28–35. [Google Scholar]
- Pantavou, K.; Giallouros, G.; Philippopoulos, K.; Piovani, D.; Cartalis, C.; Bonovas, S.; Nikolopoulos, G.K. Thermal Conditions and Hospital Admissions: Analysis of Longitudinal Data from Cyprus (2009–2018). Int. J. Environ. Res. Public Health 2021, 18, 13361. [Google Scholar] [CrossRef] [PubMed]
Disclaimer/Publisher’s Note: The statements, opinions and data contained in all publications are solely those of the individual author(s) and contributor(s) and not of MDPI and/or the editor(s). MDPI and/or the editor(s) disclaim responsibility for any injury to people or property resulting from any ideas, methods, instructions or products referred to in the content. |
© 2023 by the authors. Licensee MDPI, Basel, Switzerland. This article is an open access article distributed under the terms and conditions of the Creative Commons Attribution (CC BY) license (https://creativecommons.org/licenses/by/4.0/).










