A Study of the Emotional Impact of Interior Lighting Color in Rural Bed and Breakfast Space Design
Abstract
:1. Introduction
2. Literature Review
2.1. Rural Lodging Spaces
2.2. The Significance of the Study of Lighting Colors in Indoor Spaces
2.3. The Effect of White Light in Space on Emotions
2.4. Emotional Responses to Colored Light in Spaces
2.5. Knowledge Gaps and Potential Contributions of Current Research
3. Methodology and Experiments
3.1. Experimental Flow Design
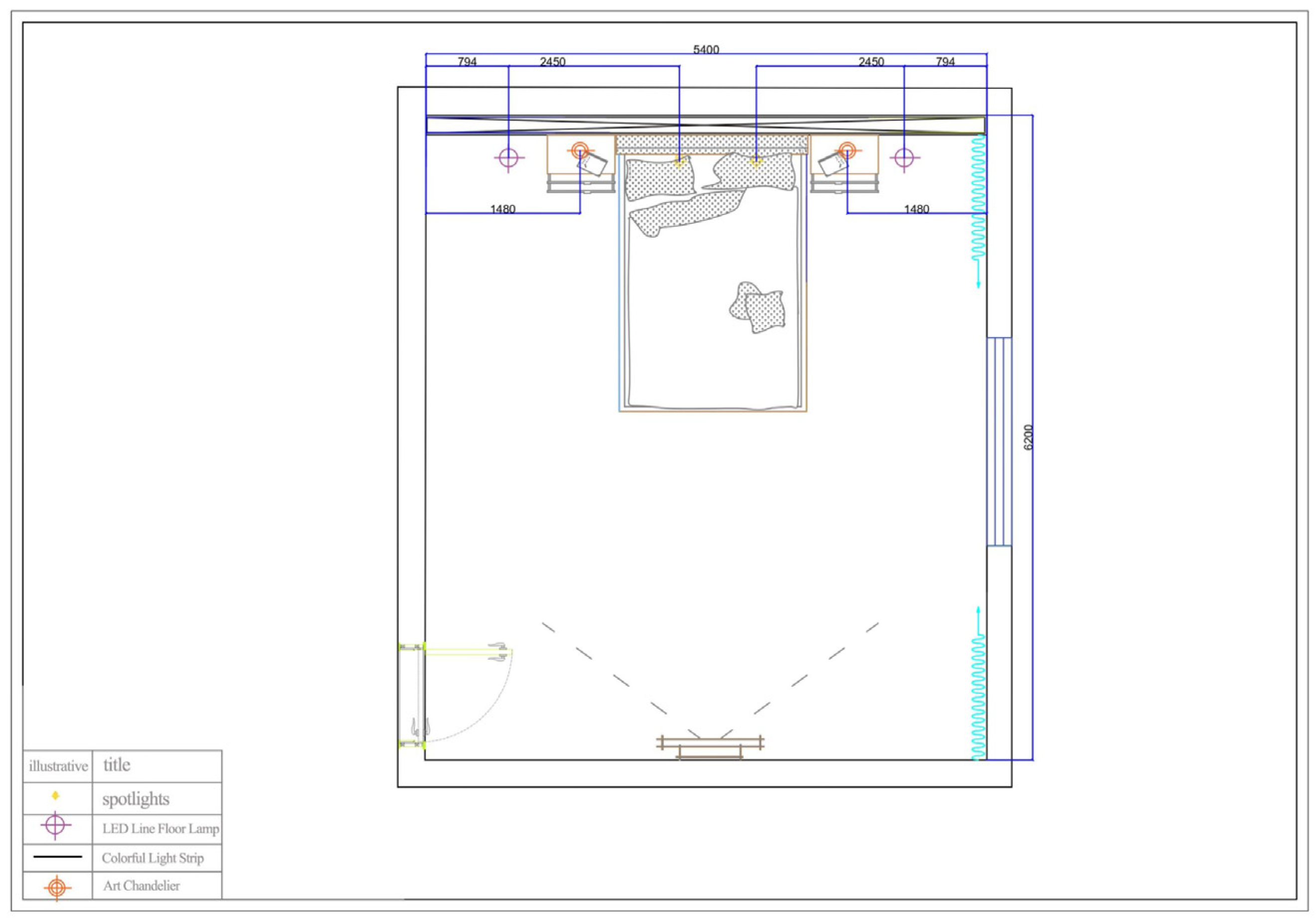
3.1.1. Experimental Environment
3.1.2. Participants in the Experiment
3.1.3. Mood Measurement Questionnaire
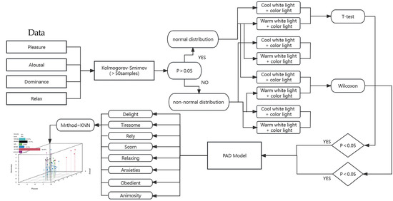
3.2. Analysis of Experimental Data
4. Results
4.1. Analysis of the PAD Sentiment Model
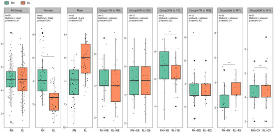
4.1.1. Pleasure Level Analysis
4.1.2. Arousal Level Analysis
4.1.3. Dominance Analysis
4.1.4. Relaxation Level Analysis
4.1.5. The Basic Emotional Model
4.2. Visual Perception and Anxiety Analysis
5. Discussion and Conclusions
5.1. Theoretical Implications
5.2. Practical Implications
6. Limitations and Improvements
Author Contributions
Funding
Data Availability Statement
Acknowledgments
Conflicts of Interest
References
- Liu, C.; Dou, X.; Li, J.; Cai, L.A. Analyzing government role in rural tourism development: An empirical investigation from China. J. Rural Stud. 2020, 79, 177–188. [Google Scholar]
- Chi, X.; Lee, S.K.; Ahn, Y.-J.; Kiatkawsin, K. Tourist-Perceived Quality and Loyalty Intentions towards Rural Tourism in China. Sustainability 2020, 12, 3614. [Google Scholar] [CrossRef]
- Jeon, J.-E. The impact of XR applications’ user experience-based design innovativeness on loyalty. Cogent Bus. Manag. 2023, 10, 2161761. [Google Scholar]
- Cui, Z.; Cao, K.; Xu, H. On the Possibilities of Light Environment Art in Digital Scenes: From the Perspective of Metaverse Research; Springer International Publishing: Cham, Switzerland, 2022. [Google Scholar]
- Villegas-Garza, A.-S.; Medina-Quintero, J.M.; Alfaro-Pérez, J.; Abrego, D. Do You Feel It? In Global Perspectives on the Strategic Role of Marketing Information Systems; IGI Global: Hershey, PA, USA, 2023; pp. 26–46. [Google Scholar] [CrossRef]
- Sample, K.L.; Hagtvedt, H.; Brasel, S.A. Components of visual perception in marketing contexts: A conceptual framework and review. J. Acad. Mark. Sci. 2020, 48, 405–421. [Google Scholar] [CrossRef]
- Yu, C.; Xie, S.Y.; Wen, J. Coloring the destination: The role of color psychology on Instagram. Tour. Manag. 2020, 80, 104110. [Google Scholar]
- Lan, L.; Hadji, S.; Xia, L.; Lian, Z. The effects of light illuminance and correlated color temperature on mood and creativity. Build. Simul. 2021, 14, 463–475. [Google Scholar] [CrossRef]
- Wen, P.; Tan, F.; Wu, M.; Cai, Q.; Xu, R.; Zhang, X.; Wang, Y.; Khan, M.S.A.; Chen, W.; Hu, X. The effects of different bedroom light environments in the evening on adolescents. Build. Environ. 2021, 206, 108321. [Google Scholar]
- Chinazzo, G.; Chamilothori, K.; Wienold, J.; Andersen, M. Temperature–Color Interaction: Subjective Indoor Environmental Perception and Physiological Responses in Virtual Reality. Hum. Factors 2021, 63, 474–502. [Google Scholar] [CrossRef]
- Konstantzos, I.; Sadeghi, S.A.; Kim, M.; Xiong, J.; Tzempelikos, A. The effect of lighting environment on task performance in buildings—A review. Energy Build. 2020, 226, 110394. [Google Scholar]
- Martinez, L.M.; Rando, B.; Agante, L.; Abreu, A.M. True colors: Consumers’ packaging choices depend on the color of retail environment. J. Retail. Consum. Serv. 2021, 59, 102372. [Google Scholar]
- Zhang, R.; Campanella, C.; Aristizabal, S.; Jamrozik, A.; Zhao, J.; Porter, P.; Ly, S.; Bauer, B.A. Impacts of Dynamic LED Lighting on the Well-Being and Experience of Office Occupants. Int. J. Environ. Res. Public Health 2020, 17, 7217. [Google Scholar] [CrossRef] [PubMed]
- Xian, D.; Chen, Z.; Zhang, T. The Comparative Analysis of Two Minshuku Interior Design Styles by the Principles of Formal Beauty. E3S Web Conf. 2020, 179, 02114. [Google Scholar] [CrossRef]
- Günaydın, Y.; Correia, A.; Kozak, M. Comparing efficiency in all-inclusive and bed and breakfast hotel businesses: A multi-period data envelopment analysis in Turkey. Eur. J. Manag. Bus. Econ. 2022, 31, 439–452. [Google Scholar]
- Chen, C.C.; Han, J.; Wang, Y.C. A hotel stay for a respite from work? Examining recovery experience, rumination and well-being among hotel and bed-and-breakfast guests. Int. J. Contemp. Hosp. Manag. 2022, 34, 1270–1289. [Google Scholar]
- Li, B.; Hua, N.; Zhang, T. Characteristics of Bed and Breakfast (B&B) and Guest Perceived Value. Tour. Anal. 2023, 28, 255–268. [Google Scholar]
- Tan, K.-H.; Goh, Y.-N.; Lim, C.-N. Linking customer positive emotions and revisit intention in the ethnic restaurant: A Stimulus Integrative Model. J. Qual. Assur. Hosp. Tour. 2022, 1–30. [Google Scholar] [CrossRef]
- Yu, H.; Bai, G.; Wu, L. Application of Perception Theory in Hotel Interior Design. Open J. Appl. Sci. 2018, 8, 285–295. [Google Scholar] [CrossRef]
- Siamionava, K.; Slevitch, L.; Tomas, S.R. Effects of spatial colors on guests’ perceptions of a hotel room. Int. J. Hosp. Manag. 2018, 70, 85–94. [Google Scholar] [CrossRef]
- Geng, Z.; Le, W.; Guo, B.; Yin, H. Analysis of factors affecting visual comfort in hotel lobby. PLoS ONE 2023, 18, e0280398. [Google Scholar]
- Shi, J.; Yang, X. Sustainable Development Levels and Influence Factors in Rural China Based on Rural Revitalization Strategy. Sustainability 2022, 14, 8908. [Google Scholar] [CrossRef]
- Takahashi, Y.; Kubota, H.; Shigeto, S.; Yoshida, T.; Yamagata, Y. Diverse values of urban-to-rural migration: A case study of Hokuto City, Japan. J. Rural Stud. 2021, 87, 292–299. [Google Scholar] [CrossRef]
- Shen, J.; Chou, R. Rural revitalization of Xiamei: The development experiences of integrating tea tourism with ancient village preservation. J. Rural Stud. 2022, 90, 42–52. [Google Scholar]
- Rustiadi, E.; Saizen, I.; Pravitasari, A.; Wulandari, S.; Mulya, S.; Rosandi, V. AsianRuralFuture2030; The Association of Rural Planning: Tokyo, Japan, 2022. [Google Scholar]
- Gerend, J. Lessons in Rural Persuasion: Village Infill Development in Bavaria, Germany. Sustainability 2020, 12, 8678. [Google Scholar] [CrossRef]
- Zabel, R.; Kwon, Y. Evolution of urban development and regeneration funding programs in German cities. Cities 2021, 111, 103008. [Google Scholar] [CrossRef]
- Xu, L.; Zhao, H.; Chernova, V.; Strielkowski, W.; Chen, G. Research on Rural Revitalization and Governance From the Perspective of Sustainable Development. Front. Environ. Sci. 2022, 10, 839994. [Google Scholar] [CrossRef]
- Schiller, M.; Jonitz, E.; Eur, P.S.; Pettrachin, A.; Caponio, T. Local Integration Policies and Multi-Level Policymaking Interactions in Small-and Medium-Sized Towns and Rural Areas; Whole-COMM: Brooklyn, NY, USA, 2022. [Google Scholar]
- Sept, A. Thinking together digitalization and social innovation in rural areas: An exploration of rural digitalization projects in Germany. Eur. Countrys. 2020, 12, 193–208. [Google Scholar]
- Maroto-Martos, J.C.; Voth, A.; Pinos-Navarrete, A. The Importance of Tourism in Rural Development in Spain and Germany. In Neoendogenous Development in European Rural Areas: Results and Lessons; Cejudo, E., Navarro, F., Cejudo, E., Navarro, F., Eds.; Springer International Publishing: Cham, Switzerland, 2020; pp. 181–205. [Google Scholar]
- Petrovič, F.; Petrikovičová, L. Landscape tranformation of small rural settlements with dispersed type of settlement in Slovakia. Eur. Countrys. 2021, 13, 455–478. [Google Scholar] [CrossRef]
- Van Der Borg, J. The role of the impacts of tourism on destinations in determining the tourism-carrying capacity: Evidence from Venice, Italy. In Handbook of Tourism Impacts; Edward Elgar Publishing: Cheltenhem, UK, 2022; pp. 103–116. [Google Scholar]
- Fischer, A.; Adolf, H.; Bender, O. Are the Skiing Industry, Globalisation, and Urbanisation of Alpine Landscapes Threatening Human Health and Ecosystem Diversity? Springer: Berlin/Heidelberg, Germany, 2022. [Google Scholar] [CrossRef]
- Neacsu, N.A.; Zamfirache, A. Sustainability Measures Implemented in the Hotel Industry. Case study: Romania. In Proceedings of the International Conference on New Trends in Sustainable Business and Consumption, Graz, Austria, 25–27 May 2022; pp. 186–192. [Google Scholar] [CrossRef]
- Küller, R.; Ballal, S.; Laike, T.; Mikellides, B.; Tonello, G. The impact of light and colour on psychological mood: A cross-cultural study of indoor work environments. Ergonomics 2006, 49, 1496–1507. [Google Scholar] [CrossRef]
- Oh, J.; Park, H. Effects of Changes in Environmental Color Chroma on Heart Rate Variability and Stress by Gender. Int. J. Environ. Res. Public Health 2022, 19, 5711. [Google Scholar] [CrossRef]
- Moriyama, T.; Shimada, T.; Sakai, T.; Nakamura, S.; Kasahara, K.; Urata, I. Comparative Analysis on the Effect of Illumination Color in Clinical Environment of Preventive Care. J. Photogr. Soc. Jpn. 2020, 83, 114–115. [Google Scholar]
- Yu, N.; Lv, Y.; Liu, X.; Jiang, S.; Xie, H.; Zhang, X.; Xu, K. Impact of Correlated Color Temperature on Visitors’ Perception and Preference in Virtual Reality Museum Exhibitions. Int. J. Environ. Res. Public Health 2023, 20, 2811. [Google Scholar] [CrossRef]
- Rosenqvist, T. Color and Competence: A New View of Color Perception. In Life and Mind: New Directions in the Philosophy of Biology and Cognitive Sciences; Springer International Publishing: Cham, Switzerland, 2023; pp. 73–103. [Google Scholar]
- Zhang, X.; Zhang, X. Test and Design of Colors and Visual Illusion Based on Changing Spatial Characte. E3S Web Conf. 2020, 179, 02131. [Google Scholar] [CrossRef]
- Xiao, H.; Cai, H.; Li, X. Non-visual effects of indoor light environment on humans: A review✰. Physiol. Behav. 2021, 228, 113195. [Google Scholar]
- Zhu, Y.; Yang, M.; Yao, Y.; Xiong, X.; Li, X.; Zhou, G.; Ma, N. Effects of illuminance and correlated color temperature on daytime cognitive performance, subjective mood, and alertness in healthy adults. Environ. Behav. 2019, 51, 199–230. [Google Scholar] [CrossRef]
- Kong, Z.; Liu, Q.; Li, X.; Hou, K.; Xing, Q. Indoor lighting effects on subjective impressions and mood states: A critical review. Build. Environ. 2022, 224, 109591. [Google Scholar]
- Chen, Y.; Guo, Y.; Liu, Q.; Liu, Y.; Lei, Y. Therapeutic lighting in the elderly living spaces via a daylight and artificial lighting integrated scheme. Energy Build. 2023, 285, 112886. [Google Scholar] [CrossRef]
- Taylor, L.H.; Socov, E.W. The movement of people toward lights. J. Illum. Eng. Soc. 1974, 3, 237–241. [Google Scholar] [CrossRef]
- He, S.; Yan, Y. Impact of advance light exposure on assembly-line workers’ subjective work alertness and sleep quality. Light. Res. Technol. 2023, 55, 105–128. [Google Scholar] [CrossRef]
- Plitnick, B.; Figueiro, M.G.; Wood, B.; Rea, M.S. The effects of red and blue light on alertness and mood at night. Light. Res. Technol. 2010, 42, 449–458. [Google Scholar] [CrossRef]
- Nishi, R.; Fukumoto, T.; Asakawa, A. Possible effect of natural light on emotion recognition and the prefrontal cortex: A scoping review of near-infrared (NIR) spectroscopy. In Advances in Clinical and Experimental Medicine; Official Organ Wroclaw Medical University: Wrocław, Poland, 2023. [Google Scholar] [CrossRef]
- Liberman, J. Light: Medicine of the Future: How We Can Use It to Heal Ourselves Now; Inner Traditions/Bear & Co.: Rochester, VT, USA, 1990. [Google Scholar]
- Robbins, C.L. Daylighting: Design and Analysis; OSTI.GOV; Van Nostrand Reinhold: New York, NY, USA, 1985. [Google Scholar]
- Li, Y.; Ru, T.; Chen, Q.; Qian, L.; Luo, X.; Zhou, G. Effects of illuminance and correlated color temperature of indoor light on emotion perception. Sci. Rep. 2021, 11, 14351. [Google Scholar]
- Nguyen, T.K.L.; Cho, K.M.; Lee, H.Y.; Cho, D.Y.; Lee, G.O.; Jang, S.N.; Lee, Y.; Kim, D.; Son, K.-H. Effects of White LED Lighting with Specific Shorter Blue and/or Green Wavelength on the Growth and Quality of Two Lettuce Cultivars in a Vertical Farming System. Agronomy 2021, 11, 2111. [Google Scholar] [CrossRef]
- Kim, S.J.; Lee, S.H.; Suh, I.B.; Jang, J.W.; Jhoo, J.H.; Lee, J.H. Positive effect of timed blue-enriched white light on sleep and cognition in patients with mild and moderate Alzheimer’s disease. Sci. Rep. 2021, 11, 10174. [Google Scholar] [CrossRef]
- Choi, K.; Shin, C.; Kim, T.; Chung, H.J.; Suk, H.J. Awakening effects of blue-enriched morning light exposure on university students’ physiological and subjective responses. Sci. Rep. 2019, 9, 345. [Google Scholar] [CrossRef]
- Baniani, M. The association between colors, color preferences, and emotions among Japanese students: From elementary school to university. Color Res. Appl. 2022, 47, 992–1004. [Google Scholar] [CrossRef]
- Wang, J.; Lu, J.; Xu, Z.; Wang, X. When Lights Can Breathe: Investigating the Influences of Breathing Lights on Users’ Emotion. Int. J. Environ. Res. Public Health 2022, 19, 13205. [Google Scholar] [CrossRef]
- Cha, S.H.; Zhang, S.; Kim, T.W. Effects of interior color schemes on emotion, task performance, and heart rate in immersive virtual environments. J. Inter. Des. 2020, 45, 51–65. [Google Scholar] [CrossRef]
- Xie, X.; Cai, J.; Fang, H.; Tang, X.; Yamanaka, T. Effects of colored lights on an individual’s affective impressions in the observation process. Front. Psychol. 2022, 13, 938636. [Google Scholar] [CrossRef]
- Theodorson, J.; Scott, J. Colored LED Lighting as a Primary Interior Spatial Condition, Human Preference and Affectual Response. In Proceedings of the 4th International Congress on Ambiances, Alloaesthesia: Senses, Inventions, Worlds, Réseau International Ambiances, E-conference, 2–4 December 2020; pp. 102–107. [Google Scholar]
- Sanad, R.; Ali, F.S. A Study of Interior Design Colour Scheme Impact on Undergraduate Students’ Mood. Asian J. Arts Cult. Tour. 2023, 5, 1–8. [Google Scholar]
- Xie, J.; Sawyer, A.O.; Ge, S.; Li, T. Subjective Impression of an Office with Biophilic Design and Blue Lighting: A Pilot Study. Buildings 2023, 13, 42. [Google Scholar] [CrossRef]
- Lee, H.; Lee, E. Effects of coloured lighting on pleasure and arousal in relation to cultural differences. Light. Res. Technol. 2022, 54, 145–162. [Google Scholar] [CrossRef]
- Nair, A.S.; Priya, R.S.; Rajagopal, P.; Pradeepa, C.; Senthil, R.; Dhanalakshmi, S.; Lai, K.W.; Wu, X.; Zuo, X. A case study on the effect of light and colors in the built environment on autistic children’s behavior. Front. Psychiatry 2022, 13, 1042641. [Google Scholar] [CrossRef] [PubMed]
- Khalili, A.; Soltanzadeh, H.; Ghoddusifar, S.H. Effect of lights and colors on the environmental perception and legibility using augmented reality technology. Iran. Evol. Educ. Psychol. J. 2020, 2, 148–159. [Google Scholar] [CrossRef]
- Building Lighting Design Standard GB 50034-2013 approved for partial revision. China Light. Appl. 2019, 1, 28.
- Campbell, I.; Sharifpour, R.; Vandewalle, G. Light as a Modulator of Non-Image-Forming Brain Functions—Positive and Negative Impacts of Increasing Light Availability. Clocks Sleep 2023, 5, 116–140. [Google Scholar] [PubMed]
- McDonald, J.; Canazza, S.; Chmiel, A.; De Poli, G.; Houbert, E.; Murari, M.; Rodà, A.; Schubert, E.; Zhang, J.D. Illuminating music: Impact of color hue for background lighting on emotional arousal in piano performance videos. Front. Psychol. 2022, 13, 828699. [Google Scholar] [CrossRef]
- Wardono, P.; Hibino, H.; Koyama, S. Effects of interior colors, lighting and decors on perceived sociability, emotion and be-havior related to social dining. Procedia-Soc. Behav. Sci. 2012, 38, 362–372. [Google Scholar] [CrossRef]
- Afifi, M.; Krumrei-Mancuso, E.; Trammell, J. Investigation on factors toinfluence color emotion and color preference responses. Optik 2017, 136, 71–78. [Google Scholar]
- Afifi, M.; Krumrei-Mancuso, E.; Trammell, J. Effects of Color and Lighting Temperature on Mood and Cognitive Performance; Pepperdine University: Malibu, CA, USA, 2023. [Google Scholar]
- Baper, S.Y.; Husein, H.A.; Salim, S. The Impact of Colour on Students’ perception in Learning Spaces. Tikrit J. Eng. Sci. 2021, 28, 33–43. [Google Scholar] [CrossRef]
- Huang, T.; Zhou, S.; Chen, X.; Lin, Z.; Gan, F. Colour Preference and Healing in Digital Roaming Landscape: A Case Study of Mental Subhealth Populations. Int. J. Environ. Res. Public Health 2022, 19, 10986. [Google Scholar] [CrossRef]

















| LED Spotlight | Bedside Table Pendant Light | LED Strip | LED Strip Floor Lamp |
|---|---|---|---|
| CCT = 5300 K CCT = 3000 K CRI ≥ 80 220 V/50 Hz 800 LM 10 W | CCT = 6000 K CCT = 6500 K CRI ≥ 90 220 V/50 Hz 1000 LM 12 W | Color-Tunable (LED RGB) CRI ≥ 80 220 V/50 Hz 1200 LM 12 W | Color-Tunable (LED RGB) CRI ≥ 90. 220 V/50 Hz 1200 LM 12 W |
| Grouping | All Groups | Group I | Group II | Group III | Group IV | Group V | Group VI | |
|---|---|---|---|---|---|---|---|---|
| Males | 46 | 8 | 7 | 8 | 8 | 8 | 7 | |
| Females | 44 | 7 | 8 | 7 | 7 | 7 | 8 | |
| Age 18–30 | 36 | 6 | 6 | 6 | 6 | 6 | 6 | |
| Control subjects | Age 31–40 | 17 | 4 | 2 | 2 | 1 | 4 | 4 |
| Age 41–50 | 14 | 2 | 2 | 3 | 2 | 2 | 3 | |
| Age 51–60 | 15 | 2 | 4 | 2 | 2 | 3 | 2 | |
| Age over 60 | 8 | 2 | 1 | 2 | 1 | 1 | 1 | |
| Males | 44 | 8 | 7 | 7 | 7 | 8 | 7 | |
| Females | 46 | 7 | 8 | 8 | 8 | 7 | 8 | |
| Age 18–30 | 38 | 6 | 6 | 6 | 6 | 6 | 6 | |
| Experimental group | Age 31–40 | 18 | 4 | 2 | 2 | 4 | 4 | 4 |
| Age 41–50 | 12 | 2 | 2 | 2 | 2 | 2 | 2 | |
| Age 51–60 | 16 | 2 | 4 | 2 | 4 | 4 | 2 | |
| Age over 60 | 6 | 1 | 1 | 1 | 1 | 1 | 1 |
| Emotion | Pleasure | Arousal | Dominance |
|---|---|---|---|
| Delight | 2.77 | 1.21 | 1.42 |
| Tiresome | −0.53 | −1.25 | −0.84 |
| Rely | 0.39 | −0.81 | −1.48 |
| Scorn | −1.58 | 0.32 | 1.02 |
| Relaxing | 2.19 | −0.66 | 1.05 |
| Anxieties | −0.95 | 0.32 | −0.63 |
| Obedient | 1.57 | −0.79 | 0.38 |
| Animosity | −2.08 | 1 | 1.12 |
| Color | RN + RB | RL + RB | RN + GB | RL + GB | RN + YB | RL + YB | RN + RG | RL + RG | RN + RY | RL + RY | RN + GY | RL + GY |
|---|---|---|---|---|---|---|---|---|---|---|---|---|
| E.M S.E | E.M S.E | E.M S.E | E.M S.E | E.M S.E | E.M S.E | E.M S.E | E.M S.E | E.M S.E | E.M S.E | E.M S.E | E.M S.E | |
| Visual comfort | 3.69 0.17 | 2.91 0.12 | 2.58 0.14 | 1.89 0.12 | 2.53 0.17 | 1.93 0.12 | 2.98 0.16 | 2.02 0.12 | 2.53 0.17 | 1.93 0.12 | 3.78 0.16 | 2.93 0.17 |
| Attraction | 3.86 0.14 | 3.11 0.14 | 2.76 0.16 | 2.04 0.12 | 3.91 0.14 | 2.96 0.13 | 2.31 0.15 | 1.71 0.12 | 2.56 0.15 | 1.93 0.14 | 3.67 0.17 | 3 0.14 |
| Warmth | 2.51 0.16 | 1.73 0.13 | 1.58 0.1 | 1.29 0.81 | 3.51 0.15 | 3.29 0.16 | 2.44 0.14 | 1.78 0.12 | 3.09 0.18 | 2.11 0.15 | 3.23 0.15 | 2.62 0.14 |
| Sedative effect | 2.27 1.4 | 1.62 0.1 | 3.76 0.16 | 2.58 0.14 | 1.89 0.12 | 2.67 0.12 | 1.85 0.12 | 3.09 0.12 | 1.62 0.11 | 2.64 0.12 | 2.53 0.12 | 3.42 0.19 |
| Peaceful | 3.13 0.17 | 3.53 0.17 | 2.87 0.17 | 3.51 0.19 | 2.13 0.14 | 2.91 0.19 | 2.36 0.15 | 3.2 0.16 | 1.89 0.12 | 3 0.16 | 3.13 0.16 | 3.91 0.14 |
| Excite | 3.58 0.17 | 2.47 0.23 | 1.93 0.12 | 1.33 0.09 | 3.4 0.18 | 2.82 0.18 | 2.82 0.17 | 1.93 0.13 | 3.04 0.16 | 2.16 0.15 | 3.16 0.16 | 2.44 0.16 |
| Delighted | 3.29 0.16 | 2.71 0.17 | 2.42 0.17 | 2.33 0.17 | 3.33 0.18 | 2.47 0.16 | 2.2 0.14 | 1.73 0.12 | 2.73 0.15 | 2 0.14 | 3.13 0.19 | 2.13 0.14 |
| Warmth color | 2.47 0.15 | 1.76 0.12 | 1.6 0.1 | 1.24 0.65 | 3.49 0.17 | 2.42 0.14 | 2.8 0.15 | 2.02 0.13 | 3.29 0.17 | 2.18 0.12 | 3.89 0.15 | 2.76 0.14 |
| Brightness | 1.82 0.11 | 1.22 0.63 | 1.62 0.11 | 1.22 0.06 | 3.67 0.16 | 2.71 0.11 | 1.89 0.11 | 1.44 0.81 | 3.42 0.16 | 2.47 0.15 | 3.71 0.15 | 2.88 0.16 |
| Anxiety | 47.11 1.41 | 46.69 1.54 | 46.11 1.5 | 44.38 1.61 | 44.11 1.77 | 38.42 1.78 | 48.22 1.35 | 41.15 1.48 | 53.84 0.96 | 48.96 1.08 | 38.27 1.48 | 35.18 1.53 |
| Color | RB | GB | YB | RG | RY | GY | ||||||||||||
|---|---|---|---|---|---|---|---|---|---|---|---|---|---|---|---|---|---|---|
| Est | S.E | p | Est | S.E | p | Est | S.E | p | Est | S.E | p | Est | S.E | p | Est | S.E | p | |
| Visual comfort | 0.114 | 0.778 | 0.049 | 0.689 | 0.83 | 0.052 | 1.022 | 0.144 | 0.005 | 0.706 | 0.956 | 0.078 | 0.6 | 0.863 | 0.183 | 0.737 | 0.844 | 0.034 |
| Attraction | 0.756 | 0.115 | 0.001 | 0.113 | 0.711 | 0.961 | 0.684 | 0.956 | 0.002 | 0.451 | 0.6 | 0.135 | 0.348 | 0.622 | 0.064 | 0.346 | 0.667 | 0.065 |
| warmth | −0.778 | 0.083 | 0.539 | 0.108 | 0.289 | 0.843 | 0.168 | 0.222 | 0.032 | 0.135 | 0.667 | 0.067 | 0.074 | 0.978 | 0.071 | 0.14 | 0.933 | 0.096 |
| Sedative effect | −0.644 | 0.085 | 0.763 | 0.136 | 1.178 | 0.031 | −0.778 | 0.149 | 0.065 | 0.163 | −1.24 | 0.052 | 0.137 | −1.12 | 0.096 | −0.889 | 0.223 | 0.035 |
| Peaceful | 0.116 | 0.4 | 0.877 | 0.206 | −0.462 | 0.046 | 0.023 | −0.778 | 0.031 | 0.18 | −0.84 | 0.034 | −1.11 | 0.199 | 0.061 | 0.134 | 0.13 | 0.026 |
| Excited | 0.204 | −1.111 | 0.014 | 0.116 | 0.6 | 0.033 | 0.181 | 0.578 | 0.027 | 0.792 | 0.889 | 0.049 | 0.615 | 0.658 | 0.037 | 0.393 | 0.712 | 0.048 |
| Delighted | 0.112 | −0.58 | 0.033 | 0.164 | 0.889 | 0.572 | 0.144 | 0.867 | 0.038 | 0.103 | 0.467 | 0.037 | 0.129 | 0.734 | 0.049 | 0.154 | 0.142 | 0.069 |
| Warmth color | 0.211 | 0.068 | 0.657 | 0.156 | 0.908 | 0.963 | 1.067 | 0.086 | 0.024 | 0.334 | 0.778 | 0.067 | 0.15 | 1.111 | 0.034 | 1.031 | 0.603 | 0.049 |
| Brightness | 0.564 | 0.6 | 0.613 | 0.565 | 0.4 | 0.651 | 0.978 | 0.956 | 0.048 | 0.44 | 0.929 | 0.061 | 0.744 | 0.956 | 0.026 | 0.882 | 0.911 | 0.015 |
| Anxiety | −0.622 | 0.298 | 0.715 | −0.43 | 0.906 | 0.033 | −0.989 | 1.006 | 0.046 | −0.413 | 1.275 | 0.073 | −0.681 | 0.799 | 0.021 | −0.916 | 0.373 | 0.037 |
Disclaimer/Publisher’s Note: The statements, opinions and data contained in all publications are solely those of the individual author(s) and contributor(s) and not of MDPI and/or the editor(s). MDPI and/or the editor(s) disclaim responsibility for any injury to people or property resulting from any ideas, methods, instructions or products referred to in the content. |
© 2023 by the authors. Licensee MDPI, Basel, Switzerland. This article is an open access article distributed under the terms and conditions of the Creative Commons Attribution (CC BY) license (https://creativecommons.org/licenses/by/4.0/).
Share and Cite
Wei, Y.; Zhang, Y.; Wang, Y.; Liu, C. A Study of the Emotional Impact of Interior Lighting Color in Rural Bed and Breakfast Space Design. Buildings 2023, 13, 2537. https://doi.org/10.3390/buildings13102537
Wei Y, Zhang Y, Wang Y, Liu C. A Study of the Emotional Impact of Interior Lighting Color in Rural Bed and Breakfast Space Design. Buildings. 2023; 13(10):2537. https://doi.org/10.3390/buildings13102537
Chicago/Turabian StyleWei, Yangyang, Yuan Zhang, Yihan Wang, and Chajuan Liu. 2023. "A Study of the Emotional Impact of Interior Lighting Color in Rural Bed and Breakfast Space Design" Buildings 13, no. 10: 2537. https://doi.org/10.3390/buildings13102537
APA StyleWei, Y., Zhang, Y., Wang, Y., & Liu, C. (2023). A Study of the Emotional Impact of Interior Lighting Color in Rural Bed and Breakfast Space Design. Buildings, 13(10), 2537. https://doi.org/10.3390/buildings13102537

