Next Article in Journal
Systematic Identification of the Influencing Factors for the Digital Transformation of the Construction Industry Based on LDA-DEMATEL-ANP
Previous Article in Journal
A Methodology of Creating a Synthetic, Urban-Specific Weather Dataset Using a Microclimate Model for Building Energy Modelling
 
 
Font Type:
Arial Georgia Verdana
Font Size:
Aa Aa Aa
Line Spacing:
Column Width:
Background:
Case Report

Procedure for Safety Assessment and BIM Modelling of an Historical Complex Structure through a Macroelement Approach: The Building “Molino-Pastificio Soresi” of Partinico (Italy)

1
Dipartimento di Ingegneria, Università degli Studi di Palermo, Viale delle Scienze, 90128 Palermo, Italy
2
ReLUIS—Rete dei Laboratori Italiani di Ingegneria Sismica, Via Claudio, 21, 80125 Napoli, Italy
*
Author to whom correspondence should be addressed.
Buildings 2022, 12(9), 1408; https://doi.org/10.3390/buildings12091408
Submission received: 5 August 2022 / Revised: 28 August 2022 / Accepted: 1 September 2022 / Published: 8 September 2022
(This article belongs to the Section Building Structures)

Abstract

:
The structural assessment of existing historical structures is a complex task due to the inner main difficulty in making up reliable models for structural analysis, able to include mechanical and geometrical nonlinearities, existing damage, complex configurations and arrangements of materials. This task becomes more difficult in mixed RC-masonry structures, which structural modelling can be particularly tough due to the different connections and interactions between structural members and materials. This paper presents the case study of a multi-storey mixed Reinforced Concrete (RC)-masonry historical structure, namely the former mill “Molino-Pastificio Soresi” building, located in Partinico (Sicily—Italy). It is shown as it is possible to obtain an accurate and detailed representation of the building, as well as a reliable structural model. The assessment of the seismic vulnerability from the global point of view of the considered case study is carried out through a multidisciplinary approach based on four stages: (1) historic analysis and study of the relevance of the building; (2) geometrical survey and photographic documentation; (3) structural identification and materials; (4) BIM implementation and structural modelling.

1. Introduction

The restoration of the historical centres is the modern challenge in the field of building engineering as well as the need for the preservation of culture and history of cities and communities.
In particular, this target is significantly important in the Mediterranean area, where the severe seismic risk of the countries is coexisting with the wide cultural treasure affecting the history of humanity in the centuries [1]. The building stock of these regions, such as the South of Italy, Maghreb, Greece and Turkey, is packed with well-known monuments, mixed to surrounding historical common buildings, the last reflecting the history and the evolution of culture and economy of the territory.
Today’s perspective of technicians working in the field of constructions is to work with increasing complexity of case studies, which usually increases with the age of the building. Older constructions imply more changes, different materials and structural systems, different staged constructions and usages of the building during its service life. The complexity of examining an existing historical building is also increased by the normal deterioration of materials, and the neglected state of a building for long time speeds up this process. In this way, practitioners, including engineer and architects, need to work in a complex environment and the adoption of innovative tools which allow to simplify the design of the structural or functional rehabilitation. Among this framework, the use of Building Information Modelling (BIM) and rapid structural modelling methods assumes a crucial importance.
BIM proved to be effective in digitally reproducing the coordinated set of simple elements, connected each other by design logical and construction techniques, that comprise any built artefact. However, this approach can be difficult when applied to existing buildings. Although existing buildings can be decomposed into recurrent elements, the modelling of their parameters and information appears much more complex, both in terms of the geometric transposition of the continuity of the real world, and its qualitative and semantic description. This evidence has led professionals to adopt BIM usually for new constructions while few applications on existing structures are available. Only in recent years, the proposal of a specific BIM environment for existing constructions is rising in the literature, namely HBIM, where the prefix “H” stands for Historic or Heritage [2]. Despite the proposal of a specific BIM environment for the existing construction, a few of applications are actually available and its use is still limited for practical applications.
This paper describes the methodologies adopted for the HBIM implementation and the assessment of the structural safety of a complex historical building located in Sicily (Italy), namely the former Mill “Molino-Pastificio Soresi”, exploiting the use of these tools for a possible functional refurbishment of the building. The building belongs to the industrial archaeology heritage of Sicily, made with an interacting mixed masonry-reinforced concrete (RC) structure. The BIM implementation is discussed, showing how it is possible to get digital representation of the existing built environment despite its complexity and finally the rules adopted for a practical modelling of a mixed structure are presented and discussed.

2. The Case Study: The “Molino-Pastificio Soresi” Building

2.1. History and Relevance of the Building

The built environment of Sicily is characterized by a huge variety of building typologies reflecting the transition from the rural to the industrial economy, and the case study described in this paper is a representative example on how the evolution of the economy has been reflecting in constructive and structural changes during the last century.
The city of Partinico is a medium centre in the district of Palermo, in the north-west zone of Sicily. The territory spreads for 110 square kilometers and borders, proceeding from the east towards west, with the municipalities of Borgetto, Grisì (fraction of the Municipality of Monreale), Alcamo, Balestrate, Trappetto, Terrasini, Carini and Giardinello.
Its economy has been for long years based on agriculture, with particular reference to cultivation of vines, olive trees and wheat [3], and this activity still represents an important source of economy for the zone. Coming inside the historical built centre of the city, the shape of the former “Molino-Pastificio Soresi” (Soresi Mill and Pasta industry) becomes clearly visible. It stands distinctly in a field of low Terranean houses, small streets paved with limestone stones and a wide square, marked by the presence of a medieval watering trough, a tangible sign of a past in which farming was the engine of everyday life [4].
The “Molino-Pastificio Soresi” was built by Eng. Pietro Lo Vasco, maternal grandfather of the current owner, at the beginning of the last century.
The owner transformed a first stock of buildings, with an oil mill inside, received in inheritance, located at the corner between the Maggiore Guida street and the Pozzo del Grillo street (Figure 1).
After buying the adjacent houses, Pietro Lo Vasco built the first cylinder Mill of Sicily, called “Molino a cilindri S. Leonardo dell’Ing. Pietro Lo Vasco” during the early ’30s (Figure 2a). The cylinder mill was already one of the most modern mills in Sicily.
Afterwards, Mr. Nicolò Soresi received the company in 1937, and continued the family business, which was on grain trade since 1800. The company then changed its name to “Nicolò Soresi and son” (Figure 2b).
Around the 1960s, the company faced a great development with the installation of new and heavy machines and introduced new production processes (Figure 3).
This significant increase of loads and weights required an important transformation of the structure itself and assumed the today morphology. Literally an “internal emptying” was performed from the original factory: the masonry walls were reinforced by means of a RC framed structure, connected to the original structure, aiming to make up a real “processing tower”.
Eight internal RC silos 14.50 m tall were installed inside the main building with separation joints and used for the storage of grain. Original design drawings (Figure 4) indicates the date of the construction (1950). The silos are supported from RC columns with square cross-section with side length equal to 70 cm and placed at the crossing points of the walls. The structure was made using the RC “Hennebique system” [5], widespread in those years. Square openings were also installed at each storey for inspecting the silos inside.
Figure 5 shows the evolution of the plan since the early 1900 (Figure 5a) to about the ’60s (Figure 5d), highlighting the introduction of new parts of the building and the construction of the framed structure. The ”Molino-Pastificio Soresi” company worked for almost ninety years, also under commission of relevant companies marketing pasta worldwide, and it ended its activity in 1990. The building was then closed and abandoned still today.
It is shown as each change in property and modernization stage of the company corresponds to a change in the morphology of the building, from functional and structural point of view.

2.2. Geometry and Photographic Documentation

The structure is characterized by six floors above ground. Morphologically the plan shape of the building can be considered a trapezoid, having the greater size along Pozzo del Grillo street equal to about 28.70 m, the smaller base size bordering another property equal to about 14.75 m, smaller oblique side along Maggiore Guida street equal to about 48.00 m and greater oblique side along Tarollo street equal to about 53.45 m. The interstorey heights are ranging from 2.70 m—for the first floor—to 4.80 m—for the sixth floor.
The roof of the fourth floor is flat and accessible for maintenance only, placed at an altitude, from the road level of Maggiore Guida street, equal to about 18.45 m and accessible from the pre-cleaning grain room, through the fifth floor of the RC silos. On the other hand, it has a double inclined pitch made by means of RC trusses with a covering layer in clay tiles of Marsellais type. It reaches an altitude, at the level of the top ridge, equal to about 24.85 m.
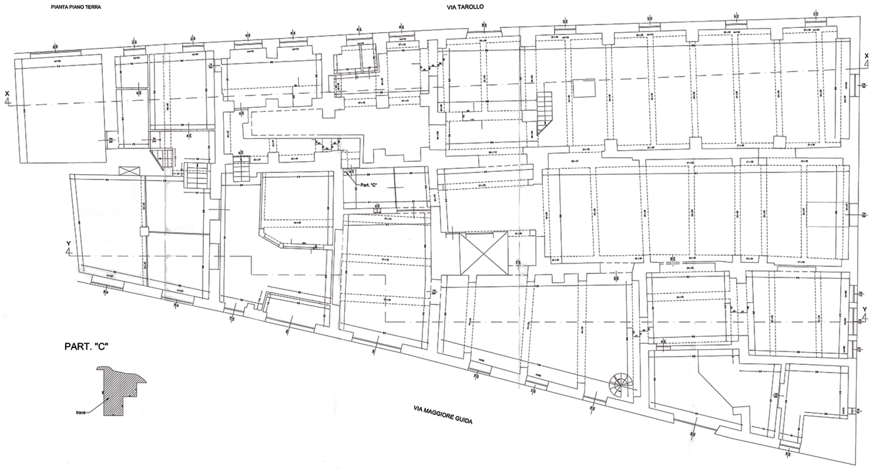
The complete architectural survey of the first floor is reported in Figure 6, while Figure 7a shows the main front on Maggiore Guida street and Figure 7b the rear front along Tarollo street.

3. BIM Implementation and Discussion

The digital processing of geometry data by means of a BIM approach allows to optimize time not only in the design phase, reducing burdens and costs, but also in the phase of verification of the existing one, making up the relations between the various technical elements.
A complete BIM model allows the designer to anticipate at the design stage any interference problems (Clash Detection) and it facilitates the management and maintenance of buildings.
The historical building is by nature the result of different layers and architectural changes over the years. The lack of clear project documentation makes the problem of digital representation tough to be faced. For this reason, aiming to plan the recovery or restoration of an historical structure, the HBIM approach follows a different path than the traditional one, which differs from new buildings for different aspects. First of all, the process starts from a thorough knowledge of the history and evolution that the building had over the time, by selecting every single characteristic/component of the building. In a second step, each component is modeled as an “object”. Everything begins from the study of the construction processes that led to the creation of a particular artifact.
The important phase of data acquisition plays an important role. High-definition surveying methods allow high-resolution point clouds to be generated, for example through the use of drones and laser scanners. These are tools that allow to highlight the different sizes and the volumes, making easier the modelling phase of various elements and components. Due to the large number of points represented—the “dense cloud” perception is extremely realistic, much more than it can be with traditional methodologies.
On the basis of the above survey, a detailed HBIM model was developed floor by floor with the help of software Autodesk Revit® [6] (v.2020, individual educational license for educational purposes provided by Autodesk.).
The procedure followed for the BIM implementation and analysis is summarized in the flowchart of Figure 8. This last is staged in different stages. The initial stages aims to create a digital architectural model of the building by taking advantage of parametric objects, to be implemented into the software, such as “families”. These can be of system, loadable or realizable in-place, all fully customizable with parametric dimensions which allows to adapt a single modeled element to more usages. The output of this model is an International Foundation Class (.IFC) file, which is platform neutral and can be read and edited by any BIM software and it represents the base input file for the structural modelling. The final stage of the work consists in the passage from the architectural model to the structural model. This passage is allowed by the package BIM2CAD, included in Tremuri [7], which converts the BIM format in a classic CAD model and exporting plane views for each storey. These plane representations allow the straightforward structural modelling, converting objects in finite elements, such as beam, slabs or walls.
Figure 9a shows the axonometric view of the first floor of the building with a surface of about 800 square meters and characterized by two floors of footfall placed at different altitudes; in fact the two levels at Maggiore Guida street and Tarollo street differs in height of about 1 m. The lower part of the building adjacent to the Tarollo street was then selected for procuring and storing water due to the presence of a water well. A basement level with a surface area of about 65 square meters and originally used as a technical room can be identified. It is accessed from the first floor by means of a steel spiral staircase. Bearing walls are made with a regular masonry of calcarenite stone units. The stone was of sedimentary clastic origin and units were produced in the quarry of Mazara del Vallo, about 40 km far from Partinico. This kind of stone is almost common in much of the island of Sicily. Masonry walls have a thickness of 60 cm at the base storey and it decreases down to 40 cm at the fourth storey on the Maggiore Guida street front.
The axonometric cross-section in Figure 9b shows the second floor of the building with a surface of about 800 square meters and characterized by the presence of RC silos and holes in the floors. In addition, an intermediate “mezzanine” floor on the ground floor with an area of about 100 square meters can be identified, which was originally used as an archive.
An internal lift made by masonry walls for moving heavy weights can be identified inside. Slabs are built with reinforced bricks and concrete, namely “SAP” typology (self-supporting slab), widely adopted in Italy during the ’50s and ’60s. Similar typologies of this kind of slab can be found all across Europe [8]. These slabs are made by small beams made with concrete, in-place assembled and cast into brick grooves, reinforced with plain bars and finally finished with mortar. Finally, the slab is finished with a continuous layer of concrete. All the slabs in the buildings have openings with various shapes and dimensions for allowing the movement of the different industrial machines and goods inside the building.
Figure 9c and Figure 10a show respectively the third and fourth floor of the building, both with a surface area of about 800 square meters. Also in this case, RC silos and holes in the floors can be seen. RC frames are visible with the Hennebique system, which provides the connection between beams and columns through link beams and the presence of main and secondary beams along the two directions of the slab.
The axonometric cross-sections in Figure 10b,c present the fifth and sixth floors of the building, respectively, with a surface area of about 300 square meters. Note on the sixth floor the presence of two cast-in-place RC trusses approximately 7.50 m long, and a flat cover with an area of about 500 square meters and accessible for maintenance only. Silos develop up to the fourth floor, with a final inclined roof made with the already described SAP slab supported by the RC trusses. The top part of the silos is open, forming wide tanks for the movement of the grains through the use of industrial machines. The tanks are accessible on the top part through a wood footbridge. Two glass skylights are also present at the fourth level with dimensions equal to 3.00 by 1.60 m.
Figure 11 reports the main elevations, from which it is possible to note clearly the regular distribution of the openings in the masonry panels. The different internal sections of the building are shown in Figure 12, from which it it possible to observe the internal RC staircase connecting the floors from the first storey up to the sixth, and the steel spiral staircase connecting from the underground basement up to the third floor. The above presented digital drawings were obtained through an automated procedure from the BIM model built by the software Autodesk Revit® [6].

4. Structural Identification and Materials

4.1. Geometry

The set of buildings that characterizes the “Soresi” mill and pasta industry consists of three Structural Units (US):
  • US01—Mill
  • US02—Pasta industry
  • US03—Silos
The mill and the pasta industry are connected seamlessly, instead the eight silos with a RC structure are located inside the building, but separated by this, by means of separation joints (Figure 13).
The global analysis were performed with the 3Muri software [7]. This structural analysis software was selected due to its particular dedication to the seismic verification of buildings with load-bearing masonry structure, and the possibility of application of modal dynamic and non-linear static analysis to complex masonry buildings modelled with a simplified but accurate modelling approach.
The solver implements the Frame by Macro Elements method (FME), which schematizes the structure by means of different structural macro-elements such as masonry panels, columns, partitions, slabs, beams and chains.
The definition of the model is based on the observation of the real damage mechanisms to which masonry buildings are subject in the presence of an earthquake and it is aimed at the description of the behavior global building.
A three-dimensional equivalent frame is the reference model, in which the non-linearities of piers and spandrel beams are taken into account with a concentrated plasticity approach, inserting appropriate plastic hinges at the two ends of the element and a shear hinge in its center.
The applicability of the method based on equivalent frames is allowed from the presence of the concrete slabs, which can be considered rigid in their plane. Additionally, the regularity of the arrangement of the external openings guarantees the easy definition of each vertical structural member.
The presence of openings in the wall panels is decisive for the distinction between the two types of elements: vertical masonry panels and top bands that form the coupling beams of the walls.
The wall panels are the vertical elements, subject to the permanent vertical loads and horizontal, the plan bands allow the distribution of horizontal actions to the elements vertical, and constitute boundary conditions of the walls limiting displacements and rotations. They are connected by rigid zones, two-dimensional rigid nodes of finite size, to which the macro-elements transmit the actions along the three degrees of freedom considered. This strategy allows the association of the wall to a plane frame and thus simplifies the analysis. In addition to the fact that it allows the introduction of one-dimensional elements of other material, for this reason it is much used in the seismic analysis of mixed-structure buildings in which vertical resistant members are made by masonry panels and RC columns.
In the following, the results achieved on the US01 and US02 that make up the “Molino-Pastificio Soresi” are discussed from a global point of view, taking into account the dynamic interaction of the US04 of other property, but excluded from the calculation results from the structural model (Figure 14).

4.2. Materials

The definition of the mechanical characteristics of materials detected in the building was made by considering the values reported in the Italian Standard, NTC2018 [9] and Circ. n. 7/2019 (Table C8.5.I) [10]. This choice was made due to the academic nature of the current study and the absence of a budget for performing the tests. Additionally, the building is currently closed and not accessible for safety reason. For this reason, the results achieved have to be considered as preliminary and to be confirmed from future in-situ tests.
In the case of existing masonry, the values indicated by the code refer to masonry conditions with mortar of poor characteristics, joints not particularly thin and in the absence of recoveries or battens that, with constant pitch, regularize the texture. In addition, it is assumed that the walls have disconnected faces. The adopted parameters are summarized in Table 1.
Where f m is the mean compression strength value, τ 0 is the value of average shear strength according to Turnšek-Cacovic criterion, f v 0 is the value of average shear strength of the masonry according to Mohr-Coulomb criterion, E is the Young’s modulus, G is the shear modulus and w is the unit weight.
To define the mechanical parameters of the concrete used for the RC elements, reported in Table 2, assumptions were made, not having data provided by direct tests.
After searching similar structures (by construction date), the following properties of concrete were assumed.
Where f c m is the mean compression strength value equal to: f c k + 8 , f c k is the characteristic value of cylindrical compression strength equal to: 0.83 · R c k , α c c is the reduction coefficient for long lasting resistances, E is the Young’s modulus, G is the shear modulus and w is the unit weight.
For the definition of the mechanical properties of the steel used for the RC elements reported in Table 3, reference was made to the mechanical values provided by the Regulation in force at the time of construction, that is to R.D.L. 16/11/1939 n. 2229 [11] and the Circular of the Ministry of Public Works [12].
The steel used is of the soft and homogeneous type (smooth bars) called “Aq42” [13].
Where f y k is the average characteristic value of yield strength, f t k is the ultimate tensile strength, ϵ t is the percentage value of total elongation, E is the Young’s modulus, G is the shear modulus and w is the unit weight.
According to NTC2018 [9], mechanical properties are divided by a knowledge factor equal to 1.35 and for the partial safety factors γ M = 2 , for masonry, γ S = 1.15 , for steel and γ C = 1.5 , for concrete.

4.3. Foundation and Soil Characterization

The geological and geotechnical characterization of the soil on which the “Molino-Pastificio Soresi” is located is based on analyses drawn from the technical literature on territorial scale.
According to the EuroCode 8 [14], this is the type of soil B: Deposits of very dense sand, gravel or very stiff clay, at least several tens of meters thickness, characterized by a gradual increase of mechanical properties with depth, and characterized by a value of V S , 30 = 360 800 m/s.
In addition, for average slope angles lower than about 15° the effects of topography may be neglected, as a result the topographic amplification factor ST = 1.0 was used.
The foundation of the “Molino-Pastificio Soresi” is characterized by masonry walls that extend below ground level and by slabs coupled to foundation beams under the vertical structural elements in RC.

4.4. Loads and Analysis Cases

The verification of the structure was made by following the well-known N2 method [15,16] by performing the static non-linear analysis.
The 3Muri software [7] provides 24 load combinations and, therefore, 24 pushover analyses to take into account the earthquake along the two directions X and Y, and the accidental eccentricities required by the code for taking into account the spatial effect of the earthquake.
According to the regulations, in order to identify the most severe seismic load situation, the load conditions to be examined must consider at least two distributions of inertia forces, falling one in the main distributions (Group 1) and the other in the secondary distributions (Group 2) as shown below:
  • distribution corresponding to a trend of accelerations proportional to the shape of the fundamental mode to vibrate (Group 1);
  • uniform distribution of forces, proportional to the mass (Group 2).
The analysis, performed under displacement control, proceeds to the calculation of the distribution of forces that generates the value of the required displacement. The analysis is continued up to a load drop of 20% from its peak value.
A critical aspect in the seismic analysis of buildings in the aggregate is the choice of the control node; this must represent the displacement of the entire building under the seismic action so, its position must be carefully evaluated.
The control node was chosen into account the elements that come to collapse and their elevation position that affected the most significant levels of the building (Figure 15).

5. Results

The parameter that defines the seismic vulnerability of the construction consists in the safety index α S D , for the considered Significant Damage (SD) Limit State, obtained from the following ratio:
α S D = P G A C , S D P G A D , S D
where P G A C , S D indicates the peak ground acceleration, in terms of the capacity of the structure for the SD limit state. This can be larger or lower than the demand, and this means that the earthquake exactly inducing the limit state is different and it has scaled (up or down) elastic spectrum and P G A D , S D indicates the peak ground acceleration, in terms of demand, of the structure for the SD limit state. It is associated with the Reference Elastic Spectrum. It is the spectral acceleration for a period equal to T = 0 .
This ratio can be larger or lower than 1 in the case that the system is satisfying or not the safety check, allowing safety assessment in terms of acceleration demand [17].
In the following, a summary of the results obtained from the pushover analysis performed is reported, with reference to the control node placed at the mass center gravity of the sixth storey (node n.219). Table 4 shows the results summarized in tabular form, reporting the maximum required displacement D m a x , S D , the displacement capacity D u , S D of the equivalent Single Degree of Freedom (SDOF) system, the associated reduction factor q , S D * and the corresponding safety index α S D .
The results indicate that the structure never passes the safety check, with values of the safety index lower than 1, while highlighted rows show the most significant results. In this case, the most unsafe conditions are related to an uniform load pattern with a safety index of about one-third in both directions X and Y.
Figure 16 shows the capacity curve of the structure for the first load combination, being X the main load direction, and the corresponding bilinear curve of the SDOF system, while Figure 17 shows the color plot of failure modes in the structural members at the last step of the analysis. It is highlighted as the vulnerability of the structure is mainly related to the large openings at the first floor, which limit the shear capacity of the shear walls. The framed RC structure inside the building keeps almost undamaged, with the exception of a bending damage at the beam ends and a few of shear failures, while the overall capacity is affected from the achievement of the shear capacity for almost all the masonry walls at the first floor, as highlighted from Figure 18. This latter shows the main front along X direction, and it stresses that the limited stiffness of the structure at the base storey and the relatively low shear strength give to the structure an ultimate “soft-storey” mechanism, limiting the displacement capacity.
Similarly, Figure 19 shows the capacity curve of the structure for analysis n.21, i.e., uniform distribution of loads and Y main direction of the forces.
Similarly, Figure 20 shows the failure mode of the structure for analysis case n.21 (Y direction and uniform distribution). It is highlighted that the structure has a slightly lower lateral capacity and a greater ultimate displacement, meaning that the structure is more flexible along the Y direction, as confirmed by the presence of a lower number of walls in this direction. In this case, the seismic force is mainly sustained by the RC framed structure and by the front walls, as highlighted by Figure 20. In this last case, the attainment of the Limit State is due to the shear failure of the walls in Y direction and reaching of the ultimate rotational capacity of the beam elements in the RC structure.
Figure 21 shows the detail of the front wall at the last step of the analysis, confirming the predominance of shear mechanisms in the masonry structure.

6. Conclusions

This paper described the procedures followed for the implementation of an HBIM and structural model of a complex existing building, namely the former “Molino-Pastificio Soresi”, aimed at the structural safety assessment and functional refurbishment. This case study was selected for its structural complexity, arising from a mix of materials and structural systems coming from the long story of this construction. The target was to show how the complexity can be managed taking advantages of digital tools for BIM modelling and straightforward approaches for the structural modelling. The results indicated that:
  • The building is a complex set of structural typologies. RC frames, masonry walls, RC walls, trusses and silos. Despite the inner complexity, a reasonable digital representation can be achieved through object module modelling [6] and the structural analysis can be performed adopting a FME model [7].
  • The main problems of the building are related to its abandoned state and natural decay of materials.
  • From the seismic point of view, the main vulnerability of the structure is related to the low shear strength of masonry walls at the first floor, limited from the large openings. However, all the quantitative result should be considered as preliminary due to the academic nature of this work.
  • Possible retrofitting interventions should be addressed to enhance the shear and flexural capacity of masonry walls.
  • Despite its vulnerability, the safety of the structure is not fully compromised, thank to the apparently good mechanical properties of masonry.
  • The results achieved in this study are to be considered preliminary due to the absence of a detailed material characterization phase. An appropriate diagnostic phase should be planned and performed in the future prior to confirming the results achieved in this study and designing possible intervention strategies.

Author Contributions

Conceptualization, G.M., L.L.M. and S.P.; methodology, G.M., L.L.M. and S.P.; software, G.R.; investigation, G.R.; data curation, G.R.; writing—original draft preparation, G.M.; writing—review and editing, G.M. and L.L.M.; supervision, L.L.M. and S.P. All authors have read and agreed to the published version of the manuscript.

Funding

This research received no external funding.

Institutional Review Board Statement

Not applicable.

Informed Consent Statement

Informed consent was obtained from all subjects involved in the study.

Data Availability Statement

All the data regarding the building are available upon request to Dr. Leonardo Soresi.

Acknowledgments

The authors express their gratitude to Leonardo Soresi for making all the resources available from its personal family archive. Arch. Vincenzo Bongiorno is also gratefully acknowledged for providing its drawings and survey documentations.

Conflicts of Interest

The authors declare no conflict of interest.

References

  1. Lazzarotti, R. Historical centres: Changing definitions. Ital. J. Plan. Pract. 2014, 1, 73–89. [Google Scholar]
  2. Stober, D.; Žarnić, R.; Penava, D.; Podmanicki, M.T.; Virgej-Đurašević, R. Application of HBIM as a research tool for historical building assessment. Civ. Eng. J. 2018, 4, 1565. [Google Scholar] [CrossRef]
  3. Marino, S. Partinico e i Suoi Dintorni; Tip. e Legatoria Clamis e Roberti: Palermo, Italy, 1855. (In Italian) [Google Scholar]
  4. Abbate, G. Il Ruolo dell’Analisi Tipologica nel Recupero dei Centri Storici; Publisicula: Palermo, Italy, 2002. (In Italian) [Google Scholar]
  5. Hellebois, A.; Espion, B. Structural weaknesses of the Hennebique early reinforced concrete system and possible retrofitting. Struct. Eng. Int. 2013, 23, 501–511. [Google Scholar] [CrossRef]
  6. Demchak, G.; Dzambazova, T.; Krygiel, E. Introducing Revit Architecture 2009: BIM for Beginners; John Wiley and Sons: Hoboken, NJ, USA, 2009. [Google Scholar]
  7. Lagomarsino, S.; Penna, A.; Galasco, A.; Cattari, S. TREMURI program: An equivalent frame model for the nonlinear seismic analysis of masonry buildings. Eng. Struct. 2013, 56, 1787–1799. [Google Scholar] [CrossRef]
  8. Serrrano-Lanzarote, B.; Cerdán-Castillo, V.; Ortega-Madrigal, L.; Almerich-Chulia, A. Use of reinforced ceramics for slabs in an autarchy period. Pathology and intervention strategies. Case Stud. Constr. Mater. 2020, 13, e00437. [Google Scholar] [CrossRef]
  9. Mordà, N.; Mancini, A. Norme Tecniche per le Costruzioni (NTC 2018); D. Min. Infrastrutture e Trasporti 17 gennaio 2018; Legislazione tecnica: Roma, Italy, 2018. (In Italian) [Google Scholar]
  10. Circolare 21 gennaio 2019, n. 7 C.S.LL.PP., Istruzioni Per L’applicazione dell’«Aggiornamento delle “Norme Tecniche Per le Costruzioni”» di Cui al Decreto Ministeriale 17 Gennaio 2018. 2019. Available online: https://www.gazzettaufficiale.it/eli/id/2019/02/11/19A00855/sg (accessed on 1 February 2020). (In Italian).
  11. Regio Decreto 16/11/1939 n. 2229· Norme Per la Esecuzione delle Opere in Conglomerato Cementizio Semplice od Armato. 1939. Available online: http://sttan.it/norme/Storiche/1939_11_10_RDL_n_2229_norme_CA.pdf (accessed on 1 February 2020). (In Italian).
  12. Circolare 23 Maggio 1957 N°1472, Armature delle Strutture in Cemento Armato. 1957. Available online: http://sttan.it/norme/Storiche/1939_11_10_RDL_n_2229_norme_CA.pdf (accessed on 1 February 2020). (In Italian).
  13. Verderame, G.M.; Ricci, P.; Esposito, M.; Sansiviero, F.C. Le caratteristiche meccaniche degli acciai impiegati nelle strutture in ca realizzate dal 1950 al 1980. In Proceedings of the XXVI Convegno Nazionale AICAP, Padua, Italy, 19–21 May 2011. (In Italian). [Google Scholar]
  14. Code, P. Eurocode 8: Design of Structures for Earthquake Resistance-Part 1: General Rules, Seismic Actions and Rules for Buildings; European Committee for Standardization: Brussels, Belgium, 2005. [Google Scholar]
  15. Fajfar, P. A nonlinear analysis method for performance-based seismic design. Earthq. Spectra 2000, 16, 573–592. [Google Scholar] [CrossRef]
  16. Lagomarsino, S.; Cattari, S. Seismic performance of historical masonry structures through pushover and nonlinear dynamic analyses. In Perspectives on European Earthquake Engineering and Seismology; Springer: Cham, Switzerland, 2015; pp. 265–292. [Google Scholar]
  17. Borzi, B.; Ceresa, P.; Faravelli, M.; Fiorini, E.; Onida, M. Seismic risk assessment of Italian school buildings. In Computational Methods in Earthquake Engineering; Springer: Berlin/Heidelberg, Germany, 2013; pp. 317–344. [Google Scholar]
Figure 1. Site plan of Molino-Pastificio Soresi (today).
Figure 1. Site plan of Molino-Pastificio Soresi (today).
Buildings 12 01408 g001
Figure 2. Historical photos. (a) Cylinder mill “San Leonardo” by Eng. Pietro Lo Vasco; (b) Mill “Nicolò Soresi and son”.
Figure 2. Historical photos. (a) Cylinder mill “San Leonardo” by Eng. Pietro Lo Vasco; (b) Mill “Nicolò Soresi and son”.
Buildings 12 01408 g002
Figure 3. Historical photos of Molino-Pastificio Soresi. (a) Semolator machines; (b) Machines for the production of short pasta.
Figure 3. Historical photos of Molino-Pastificio Soresi. (a) Semolator machines; (b) Machines for the production of short pasta.
Buildings 12 01408 g003
Figure 4. Project of the silos in RC of the late ’50s. (a) Original design drawings: plan; (b) Original design drawings: section.
Figure 4. Project of the silos in RC of the late ’50s. (a) Original design drawings: plan; (b) Original design drawings: section.
Buildings 12 01408 g004
Figure 5. Constructive evolution: from 1900 about to 1960 about. (a) 1900 about; (b) 1915 about; (c) 1950 about; (d) 1960 about.
Figure 5. Constructive evolution: from 1900 about to 1960 about. (a) 1900 about; (b) 1915 about; (c) 1950 about; (d) 1960 about.
Buildings 12 01408 g005
Figure 6. Geometric survey of the first floor.
Figure 6. Geometric survey of the first floor.
Buildings 12 01408 g006
Figure 7. Building exterior views. (a) Main front; (b) Secondary front.
Figure 7. Building exterior views. (a) Main front; (b) Secondary front.
Buildings 12 01408 g007
Figure 8. Flow process for HBIM modeling and seismic safety assessment.
Figure 8. Flow process for HBIM modeling and seismic safety assessment.
Buildings 12 01408 g008
Figure 9. (a) First floor; (b) Second floor; (c) Third floor.
Figure 9. (a) First floor; (b) Second floor; (c) Third floor.
Buildings 12 01408 g009
Figure 10. (a) Fourth floor; (b) Fifth floor; (c) Sixth floor.
Figure 10. (a) Fourth floor; (b) Fifth floor; (c) Sixth floor.
Buildings 12 01408 g010
Figure 11. Digital drawings: main elevations. (a) North Elevation on the Maggiore Guida street; (b) East Elevation on the other property; (c) South Elevation on the Tarollo street; (d) West Elevation on the Pozzo del Grillo street.
Figure 11. Digital drawings: main elevations. (a) North Elevation on the Maggiore Guida street; (b) East Elevation on the other property; (c) South Elevation on the Tarollo street; (d) West Elevation on the Pozzo del Grillo street.
Buildings 12 01408 g011
Figure 12. Digital drawings: Building internal sections.
Figure 12. Digital drawings: Building internal sections.
Buildings 12 01408 g012
Figure 13. Identification of Structural Units.
Figure 13. Identification of Structural Units.
Buildings 12 01408 g013
Figure 14. Structural model performed using the “macro-elements” modeling approach.
Figure 14. Structural model performed using the “macro-elements” modeling approach.
Buildings 12 01408 g014
Figure 15. Choice of control node.
Figure 15. Choice of control node.
Buildings 12 01408 g015
Figure 16. Pushover curve of seismic analysis n.1, direction X (Uniform).
Figure 16. Pushover curve of seismic analysis n.1, direction X (Uniform).
Buildings 12 01408 g016
Figure 17. Structural damage at the last step of seismic analysis n.1, direction X (Uniform).
Figure 17. Structural damage at the last step of seismic analysis n.1, direction X (Uniform).
Buildings 12 01408 g017
Figure 18. Structural damage wall n.1 at the last step of seismic analysis n.1, direction X (Modal forces).
Figure 18. Structural damage wall n.1 at the last step of seismic analysis n.1, direction X (Modal forces).
Buildings 12 01408 g018
Figure 19. Pushover curve of seismic analysis n.21, direction Y (Uniform).
Figure 19. Pushover curve of seismic analysis n.21, direction Y (Uniform).
Buildings 12 01408 g019
Figure 20. Structural damage at the last step of seismic analysis n.21, direction Y (Uniform).
Figure 20. Structural damage at the last step of seismic analysis n.21, direction Y (Uniform).
Buildings 12 01408 g020
Figure 21. Structural damage wall n.3 at the last step of seismic analysis n.21, direction Y (Uniform).
Figure 21. Structural damage wall n.3 at the last step of seismic analysis n.21, direction Y (Uniform).
Buildings 12 01408 g021
Table 1. Mechanical characteristics of masonry.
Table 1. Mechanical characteristics of masonry.
Type of
Masonry
f m
(N/mm2)
τ 0
(N/mm2)
f v 0
(N/mm2)
E
(N/mm2)
G
(N/mm2)
w
( kN/m3)
Blocks of
calcarenite
(soft rock)
2.000.040.10120040016.00
Table 2. Mechanical characteristics of concrete.
Table 2. Mechanical characteristics of concrete.
Type of
Concrete
f cm
(N/mm2)
f ck
(N/mm2)
α cc
( )
E
(N/mm2)
G
(N/mm2)
w
( kN/m3)
C20/2528.7520.750.8529,96212,48425.00
Table 3. Mechanical characteristics of steel.
Table 3. Mechanical characteristics of steel.
Type of
Steel
f yk
(N/mm2)
f tk
(N/mm2)
ϵ t
(N/mm2)
E
(N/mm2)
G
(N/mm2)
w
( kN/m3)
Aq4222641220.00195,00075,00078.50
Table 4. Synthetic results of pushover analysis, control node n.219.
Table 4. Synthetic results of pushover analysis, control node n.219.
N.Dir.Ecc.Seismic Load D max , SD
[cm]
D u , SD
[cm]
q * , SD α SD SD ver.
1+X0%Uniform3.461.293.820.388No
2+X0%Modal forces4.702.993.320.637No
3−X0%Uniform3.491.463.680.430No
4−X0%Modal forces4.603.953.340.858No
5+Y0%Uniform5.082.303.550.453No
6+Y0%Modal forces6.676.613.660.819No
7−Y0%Uniform5.131.873.470.364No
8−Y0%Modal forces7.285.133.160.704No
9+X+5%Uniform3.531.363.930.399No
10+X−5%Uniform3.401.283.780.392No
11+X+5%Modal forces4.653.233.450.694No
12+X−5%Modal forces4.552.833.460.621No
13−X+5%Uniform3.551.473.730.425No
14−X−5%Uniform3.441.383.600.417No
15−X+5%Modal forces4.734.213.320.890No
16−X−5%Modal forces4.563.643.360.799No
17+Y+5%Uniform5.142.303.900.448No
18+Y−5%Uniform5.002.393.270.479No
19+Y+5%Modal forces6.838.163.830.783No
20+Y−5%Modal forces6.555.593.620.829No
21−Y+5%Uniform5.221.763.780.337No
22−Y−5%Uniform5.182.032.930.392No
23−Y+5%Modal forces7.366.203.460.842No
24−Y−5%Modal forces6.934.103.290.592No
Publisher’s Note: MDPI stays neutral with regard to jurisdictional claims in published maps and institutional affiliations.

Share and Cite

MDPI and ACS Style

Minafò, G.; Rusticano, G.; La Mendola, L.; Pennisi, S. Procedure for Safety Assessment and BIM Modelling of an Historical Complex Structure through a Macroelement Approach: The Building “Molino-Pastificio Soresi” of Partinico (Italy). Buildings 2022, 12, 1408. https://doi.org/10.3390/buildings12091408

AMA Style

Minafò G, Rusticano G, La Mendola L, Pennisi S. Procedure for Safety Assessment and BIM Modelling of an Historical Complex Structure through a Macroelement Approach: The Building “Molino-Pastificio Soresi” of Partinico (Italy). Buildings. 2022; 12(9):1408. https://doi.org/10.3390/buildings12091408

Chicago/Turabian Style

Minafò, Giovanni, Giuseppe Rusticano, Lidia La Mendola, and Silvia Pennisi. 2022. "Procedure for Safety Assessment and BIM Modelling of an Historical Complex Structure through a Macroelement Approach: The Building “Molino-Pastificio Soresi” of Partinico (Italy)" Buildings 12, no. 9: 1408. https://doi.org/10.3390/buildings12091408

APA Style

Minafò, G., Rusticano, G., La Mendola, L., & Pennisi, S. (2022). Procedure for Safety Assessment and BIM Modelling of an Historical Complex Structure through a Macroelement Approach: The Building “Molino-Pastificio Soresi” of Partinico (Italy). Buildings, 12(9), 1408. https://doi.org/10.3390/buildings12091408

Note that from the first issue of 2016, this journal uses article numbers instead of page numbers. See further details here.

Article Metrics

Back to TopTop