Next Article in Journal
Human Close Contact Behavior-Based Interventions for COVID-19 Transmission
Previous Article in Journal
Immersive Technology Implementation in the Construction Industry: Modeling Paths of Risk
 
 
Font Type:
Arial Georgia Verdana
Font Size:
Aa Aa Aa
Line Spacing:
Column Width:
Background:
Article

A User-Centered Evaluation of Wayfinding in Outpatient Units of Public Hospitals in Malaysia: UMMC as a Case Study

1
Department of Architecture, Faculty of Built Environment, University of Malaya, Kuala Lumpur 50603, Malaysia
2
Centre on Addiction Sciences (UMCAS), University of Malaya, Kuala Lumpur 50603, Malaysia
3
Department of Psychological Medicine, Faculty of Medicine, University of Malaya, Kuala Lumpur 50603, Malaysia
4
Faculty of Electrical and Electronic Engineering, University Tun Hussein Onn Malaysia, Parit Raja 86400, Malaysia
5
Department of Landscape Architecture, Faculty of Design and Architecture, Universiti Putra Malaysia, Serdang 43400, Malaysia
*
Author to whom correspondence should be addressed.
Buildings 2022, 12(3), 364; https://doi.org/10.3390/buildings12030364
Submission received: 13 February 2022 / Revised: 10 March 2022 / Accepted: 12 March 2022 / Published: 16 March 2022
(This article belongs to the Section Architectural Design, Urban Science, and Real Estate)

Abstract

:
The difficulty of finding one’s way in a complex structure has been a long-standing issue of many buildings with highly institutionalized functions. This has been especially observed in hospital buildings as an issue that can cause various adverse outcomes for both the institution and the user. Therefore, regular evaluation of the existing wayfinding system and its efficacy is needed. This study aimed to evaluate the wayfinding system efficacy in an outpatient unit of a Malaysian public hospital in order to provide information that could help guide future upgrade initiatives for existing healthcare facilities’ wayfinding systems. This study employed a user survey questionnaire to evaluate the wayfinding system currently in use and investigate users’ needs for a better wayfinding system. The statistical analysis of the gathered data indicated a higher than average level of dissatisfaction regarding the existing wayfinding system. The findings of the study suggest the need for an upgrade in the physical environment. Furthermore, the results of this study suggest the need to devise a set of guidelines to be employed when designing wayfinding systems in Malaysia’s public hospitals.

1. Introduction

Wayfinding can be defined as the process of finding one’s way to a destination in a familiar or unfamiliar setting using any cues given by the environment. Due to its presence in everyday life, wayfinding appears to be an easily characterized and understood process. However, multiple studies on wayfinding have revealed that it is a profoundly complex exercise [1]. Malaysia has many old and new hospital buildings; however, there are no locally drawn guidelines to inform the design of healthcare facilities, and current design practices tend to rely on the information and guidelines in foreign materials and resources [2]. Outpatient areas are some of the most visually cluttered regions of a hospital’s interior environments and have little exposure to the exterior environment. Thus, they scored the lowest in terms of levels of spatial quality and overall user satisfaction, with wayfinding being one of the most challenging in this particular area [2]. According to [3], healthcare facilities are often considered to be complex and overwhelming for users, who indicated that wayfinding through healthcare facilities could be demanding and taxing.
Wayfinding can be considered an essential aspect of the environmental spatial quality [2]. Ref. [4] defined the spatial quality of environments of interiors to be the structure and enclosures formed by the architectural elements of which the domain is comprised, such as floors, ceilings, walls, windows, and vertical movement bridging features, such as stairwells and elevators. Interior elements of the environment can serve both visual and functional purposes by incorporating material properties, construction element properties, and technology. Visible elements of the built environment conform spaces into habitable and available spaces and can otherwise cause confusion and visual clutter, which can cause visual discomfort [5], as well as several other undesirable outcomes, including high levels of stress and anxiety, a loss of perceived control, and insufficient access to positive distractions, which was described as a lack of meaningful interaction with nature by [6,7].
An investigation of the literature on the topic of wayfinding indicated four thematically linked research domains in which researchers have attempted to identify the concept of wayfinding. These domains are: (1) the individual domain; (2) the social domain; (3) the physical environment domain; and (4) the institutional domain (see Table 1).
Based on the socio-ecological model (SEM), these domains can be viewed conceptually as layers or levels stemming from the center. In the SEM, human cognition occurs outwardly, leading to the social environment as the second layer, then the physical environment as the third layer. Finally, the institutional environment comprises what the institution has adopted as its standard operating procedure. Figure 1 summarizes the various factors that can influence the wayfinding process within the framework of the SEM.

1.1. Wayfinding in Hospitals

The indoor environments of hospitals are some of the most complex environments to navigate due mainly to the high degree of intersection between functions and activities and the many functional goals and environmental concerns [22]. Consequently, the higher levels of functional integration led to the spaces being arrayed in specific patterns to ensure that the required levels of functionality were achieved [30]. According to [31], interiors of healthcare facilities have been designed with assertiveness in order to achieve functional objectives. This practice-oriented tendency may create an environment that dismisses the psychological needs of patients, visitors, and staff members. [30] regarded the interior environment of these healthcare facilities as psychologically challenging and stressful to users. In this regard, the emphasis on the role of wayfinding and its effects on patients’ physical and psychological states is apparent. Furthermore, healthcare buildings are not static; new linkages are often built to connect newly built annexes to the main building [32]. These buildings should thus be viewed as dynamic entities that grow, shift space within their morphology, and change or alter their topology.
What is it that makes wayfinding especially challenging in healthcare settings compared with other structures such as airports and shopping centers? The wayfinding process in a healthcare setting is highly standardized; it has a purpose at its core. Therefore, it is considered a resolute type of wayfinding, except in spaces in which recreational wayfinding can emerge. While wayfinding in airports and shopping centers is regarded as a recreational type of wayfinding, the urgency levels differ. Furthermore, hospital patients are considered users who are cognitively operating at a sub-optimal level, which requires them to pay further attention to the nuances of wayfinding.

1.2. The Malaysian Healthcare System

The Malaysian healthcare system was initially based on the British healthcare model. It evolved and formulated the hierarchy of its referral system based on local health needs and the requirements of the World Health Organization (WHO) [26].
The Malaysian healthcare system has been subject to continuous development with the goal of achieving a higher-quality healthcare service. Healthcare facilities have been distributed according to the forecasted population density. According to the Malaysian Ministry of Health (MoH), the Malaysian healthcare system adopts a referral scheme [26]. The referral scheme is divided into three phases, namely primary, secondary, and tertiary care as shown in Figure 1. The Malaysian healthcare referral system is built upon a bottom-up sequential transfer of medical cases to other medical facilities based on the treatment requirements of the medical cases [33]. Cases transition from widespread primary care units comprised of scattered primary care clinics to better-equipped, specialized secondary and tertiary facilities. Primary care facilities are located both in rural and urban areas. Primary care units in rural areas comprise an organized set of facilities in clinics located in the rural areas in question with the capacity to serve populations between 4000 and 5000 people within a radius of 10 km. Rural clinics refer cases to a more extensive set of healthcare facilities serving 15,000–20,000 people. However, primary care clinics function as subsidiary outpatient units in highly urbanized areas. Urban health clinics offer a consulting capacity of 500 to 1000 patients per day. Both urban and rural clinics offer thorough healthcare services, including laboratory and radiology services for the communities they serve. Patients visiting a primary healthcare clinic can then be referred to a hospital if necessary. Hospitals or secondary care centers comprise a set of hospitals that vary in terms of their size and service capacity, which ranges from 50 beds to over 1000 beds for large healthcare complexes.
Consequently, the offered services differ among hospitals depending on the needs and requirements of their locations. District hospitals are usually suitable for providing services in areas with more than 40,000 inhabitants. General District Hospitals are generally located in large states, such as Sarawak, Selangor, and Johore. General District Hospitals, in turn, refer their patients to either General State Hospitals or another Regional General Hospital, such as Penang Hospital or a National Referral Hospital in Kuala Lumpur city.
Teaching Hospitals, while under the institutional jurisdiction and management of the Ministry of Education (MoE), are a constituent of the Malaysian healthcare system and have a slightly more nuanced set of priorities geared towards learning and teaching. However, wise planning led to the use of these medical facilities to serve the populations located near them. At present, privately owned and operated healthcare facilities are not fully integrated into the national healthcare system and used in accordance with the rules and regulations of the Ministry of Health (MoH). Private healthcare facilities are normally located within urban areas and occasionally refer their cases to government hospitals. Collaboration between public and private healthcare facilities occurs in certain instances, especially when there is a need to share facilities and workforces to provide healthcare services to communities.
Despite the improvement in the Malaysian healthcare system over the past few decades, the creation of an environment that supports the healing, mental health, and wellbeing of staff, patients, and visitors has yet to be achieved in the physical, mental, and psychological domains [26].
As Malaysia is attempting to evolve towards being a more developed nation, the quality of its healthcare facilities requires regular investigation [18]. Since patient satisfaction and quality of life are being increasingly considered in the competitive world of healthcare, wayfinding should be a priority, especially in the pursuit of a high-quality environment for users of the Malaysian public healthcare system. Therefore, this study aimed to assess the wayfinding system of a Malaysian hospital’s outpatient unit in order to provide insights into its current state.

2. Methods

This study investigates the efficacy of wayfinding within the Malaysian healthcare system, with public hospitals being the focus. Therefore, the study employed a survey questionnaire technique to evaluate the user wayfinding experience and investigate users’ needs in a wayfinding system within the Malaysian healthcare setting. In the following two sections, we describe the case study’s location and characteristics and present a detailed description of the data collection protocol, the sampling technique, and the data analysis techniques used in the study.

2.1. Characteristics of UMMC’s RUKA

The case study selected for this research is RUKA. RUKA is a component of the University Malaya Medical Center (UMMC), also known as Pusat Perubatan Universiti Malaya (PPUM), a government teaching hospital in Malaysia. The hospital was established in 1987 and provides medical care to the Klang Valley area. The UMMC is currently one of the largest hospitals in the country, with over 1600 beds.
RUKA is divided into five regions: a pick-up/drop-off area, a registration counter, a waiting area, consultation rooms, and a pharmacy. Typically, a patient seeking treatment at RUKA will go through a registration process, a waiting period before consultation with a doctor, and a second waiting period before collecting medicine. The average visitor is expected to follow a path that starts at the pick-up/drop-off location and stops at the registration counter regardless of whether the visitor has booked an appointment or not. Typically, the visitor will have to wait for a turn, be referred to the examination room, and then stop by the pharmacy if medication is to be collected. That would be the end of the journey if payment was not required, according to the Malaysian Ministry of Health’s persons handling guidelines and the person management system (PMS) (see the high-level workflow displayed in Figure 2). Since its opening, the facility has attracted a growing number of patients annually. However, no major renovation that resulted in the alteration of its layout has been carried out, making it a suitable candidate for this research.
The building is a three-story building, with ground, first, and second floors. The ground and first floors are where medical examinations and consultations are carried out, and the second floor serves as an administrative area with an independent connection to the hospital’s central spinal axis (see Figure 3).
This building is the initial point-of-care to which first-time visitors to the facility are required to go for registration, primary care/consultation, and potential referrals within the UMMC’s campus. Therefore, the function of this building is essential to users’ wayfinding experience due to its position in the hierarchy as an interface between direct visits from primary care seekers without a prior consultation history and secondary/tertiary care areas within the complex.
Therefore, this building serves as a distributor of patients to other departments and facilities with more specialized staff and equipment (see Figure 4).

2.2. The Internal Workflow of Outpatient Units in the Malaysian Healthcare System

A set of documents was published by the Malaysian Ministry of Health (MoH) in July 2006 that represents a guideline on which healthcare facilities’ Information Management Systems (IMS) can be based [35]. The documents are not focused on wayfinding in healthcare facilities but on how information is communicated amongst the stakeholders within the hospital. However, the documents contain a set of recommended institutional practices regarding users’ procedures when visiting a healthcare facility from registration to billing (see Figure 4). The persons management system (PMS) is a document published by the Malaysian Ministry of Health that outlines the standard operating procedure (SOP) to be implemented in healthcare information systems. It highlights high-level methods for handling cases from an institutional perspective of inpatient and outpatient care in hospitals. This leads to the conclusion that RUKA’s high-level internal workflow for handling patients is a generic one within the Malaysian healthcare system. This leads us to believe that it can serve as a good representation of outpatient units in public hospitals of Malaysia.

2.3. Data Collection Technique

In this study, we employed a questionnaire that was based on a modified version of the NHS Health Building Note (HBN) called “Healthcare facility user questionnaire”, which suited the purpose and scope of our study. The questionnaire included two main sections. The first section was focused on collecting demographic data on users, such as age, gender, level of education (LoE), marital status, ethnicity, level of income (LoI), and preferred language of communication (PL). The second section included 18 questions about features of the existing wayfinding system and the overall user experience. The second section consisted of two parts (see Appendix A).
The first part investigated interior environmental elements, such as the number of signs, the positioning and orientation of signage, the signage’s legibility, signage differentiation, the legibility of text within the signage, the clarity and comprehensibility of the text within the signage, the usage of a multi-lingual signage system, the usage of symbols in the signage system, the perceived difficulty of wayfinding, the use of maps in wayfinding, and the organization of the interior environment. The second part investigated users’ perceptions regarding the difficulty of the journey, asking for directions, the clarity of the verbal direction provided, the attitude of staff members, and the attitude of patients/visitors.
In the second section of the questionnaire, subjects answered the questions on a 5-point Likert scale indicating the subjects’ perceived wayfinding performance and perceptual data regarding the current wayfinding system.

2.4. Sampling Technique and Data Collection Protocol

Due to the restrictions on human interactions during the spread of COVID-19 in Malaysia, we employed a convenient sampling technique. We targeted users who did not work in the environment in order to avoid the effect of being familiar with the setting. Therefore, the results reflect the actual users’ perceived wayfinding experience. Only adults over the age of 18 navigate the environment alone, thus eliminating the effect of social interaction while navigating the environment in dyads or groups. A total of 165 copies of the survey questionnaire were distributed to users at the entrance of the RUKA building within a period of 14 days. Users were briefed on the study’s general aim during recruitment, and the questionnaires were collected after they were completed by the participants.

2.5. Data Analysis Techniques

In this study, we carried out a range of statistical analyses using SPSS version 25. In this application, a set of statistical techniques were implemented to investigate users’ needs. The statistical analysis techniques included a Cronbach’s alpha test for reliability and internal consistency, descriptive statistics indicating mean responses and standard deviations, and a Pearson’s correlation test to investigate the correlations between demographic variables and the various items in question.

3. Results and Findings

The questionnaire’s scales were tested for reliability by examining the Cronbach’s alpha values for the survey results. The reliability statistics indicate a Cronbach’s alpha value of 0.845. A value of ≥0.70 is considered to be a reflection of good reliability [36,37].
The descriptive statistics were grouped based on the nature of the item investigated. The first section displays the responses to items of the physical environment (see Table 2), while the second section groups the responses to items of the human-related elements listed in Table 3.
The result on the question investigating the availability of a sufficient number of signs scored a mean response of 3.61 regarding the number of signs available in the built environment with a standard deviation of 0.686, indicating an insufficient number of available signs based on the five-point Likert scale employed in the questionnaire. Similarly, the response to the question investigating the positioning and orientation of the signage scored a mean response of 3.98 with a standard deviation of 0.529, indicating a tendency toward perceptual dissatisfaction regarding the positioning and orientation of the signage (see Figure 5).
Regarding the legibility of the signage, the respondents averaged a score of 3.13 with a standard deviation of 0.726. Similarly, the mean score of responses to the level of color differentiation of signage against the background color was 3.85 with a standard deviation of 0.577. Regarding the legibility of text within the signage, the respondents recorded a mean response of 3.30 with a standard deviation of 0.657.
Regarding the comprehensibility or clarity of the information within the signage, the respondents recorded a mean response of 3.64 with a standard deviation of 0.699, indicating a tendency toward a low level of satisfaction with the clarity of the information within the signage available on site. However, on the question investigating whether the use of a multi-lingual signage system would positively affect the overall wayfinding experience, the mean response registered was 3.19 with a standard deviation of 0.671. This indicates a good level of agreement amongst the study’s subjects about employing a multi-lingual signage system.
Similarly, when asked about the usage of symbols in the signage system, the respondents registered an average score of 3.84 with a standard deviation of 0.624, indicating dissatisfaction with the frequency of the employment of symbols in the built environment. Moreover, when asked about the usefulness of symbols to the wayfinding system, subjects registered an average response of 3.16 with a standard deviation of 0.683. This indicates a good level of appreciation for the usage of symbols in the wayfinding system amongst the study’s subjects.
Furthermore, when asked about how sufficient the usage of maps in the built environment was, the respondents registered an average response of 4.04 with a standard deviation of 0.528, indicating dissatisfaction with the low level of usage of maps in the building. Similarly, when asked about how comprehensible the available maps were, subjects responded with an average score of 3.29 and a standard deviation of 0.663, indicating that the subjects perceived the maps available on site to be incomprehensible.
Regarding the overall organization of the interior environment, subjects responded with an average score of 3.98 and a standard deviation of 0.584, indicating dissatisfaction with the organization of the interior environment.
Finally, when asked about whether a better-designed signage system would make their journey easier when being referred from one place to another within the building or from one building to another, the respondents registered an average response of 3.57 with a standard deviation of 0.783, agreeing with this statement (see Table 2).
The responses regarding the environmental elements indicate the need for better placement of signage, better differentiation of signage from the background, the placement of signage in more locations, as well as an improvement in the graphics and comprehensibility of the signage in general. An analysis of the users’ responses indicates that an upgrade of the overall interior environmental conditions might be required. The results suggest that this could be achieved by employing symbols instead of just text and a multi-lingual signage system, which could be useful due to the cultural diversity of the setting.
When the subjects were asked to rate the difficulty of their overall journey within the hospital, they registered an average response of 4.01 with a standard deviation of 0.512, indicating that the subjects found wayfinding within the building difficult (see Figure 6).
Consequently, when asked about the number of times that they required assistance with wayfinding by asking for directions, the subjects registered an average response of 2.22 and a standard deviation of 0.675.
Furthermore, when asked about the clarity of the verbal direction provided to them, the subjects registered a mean response of 3.22 and a standard deviation of 0. 638, indicating that the subjects were dissatisfied with the clarity of the provided verbal direction.
When the subjects were asked to rate the attitude of staff members toward being asked for help with directions, the mean response registered was 3.29 with a standard deviation of 0.724, leaning toward a negative reaction to the attitude of staff members when asked for directions. Similarly, when asked to rate the attitude of other hospital users (patients/visitors) toward being asked for directions, the mean response was 3.25 with a standard deviation of 0.687 (see Table 3).
Analysis of the human-related elements within the questionnaire indicated a perceived difficulty with performing wayfinding tasks in the setting and highlighted a potential outcome represented by users having to ask for directions multiple times on average during their journey within the environment. In addition, the analysis of the human-related elements demonstrated a lack of verbal clarity when giving directions and a poor attitude from both staff members and other users toward being asked for directions within the environment. This may be due to a lack of awareness on the part of users who are more familiar with the setting, such as staff members and more experienced users, about the difficulty of the wayfinding process, especially for patients who might be operating under less-than-optimal mental conditions. An institutional intervention might be required in this case to raise the level of awareness and perhaps provide training to staff members to handle such situations.
A Pearson’s correlation test was employed to statistically test the correlation between the investigated variables and subjects’ responses. This test can reveal intercorrelations, the corresponding levels of significance of these intercorrelations (sig, two-tailed), and the correlation strength. A system of assessing the strength of the relationship between variables was implemented in which correlation values are weak when they are less than 0.30, strong when they are greater than 0.50, and of medium strength when they lie in between these values [38].
The results suggest that age is positively correlated with the subjects’ responses to all questions except for the question on environmental organization, where a negative correlation value was detected. However, the test results suggest that not all of the correlation values are statistically significant. The Sig(two-tailed) values for the questions investigating the perceived difficulty of the journey, the usage of maps, and the environmental organization did not register statistical significance based on a confidence level of 0.05. Conversely, the rest of the questions showed Sig(two-tailed) values less than 0.05, indicating a statistically significant correlation between respondents’ age and responses.
Moreover, when testing whether gender correlated with subjects’ responses, the Pearson’s correlation test results indicated a statistically significant correlation to the number of signs in the building, which registered a correlation coefficient value of 0.160, a weak positive correlation, and a Sig(two-tailed) value of 0.04. The positive coefficient value indicates a higher response score from female respondents on average. However, the correlation coefficient value suggests a weak correlation, indicating that gender does not account for much of the change in the overall response.
Furthermore, the Pearson’s correlation test indicated that LoE correlates positively with responses on the number of signs, the positioning and orientation of signage, the legibility of text on signage, the degree to which signage contrasts with the background, the clarity of information provided by signage, the usage of a multi-lingual signage system, and the usage of symbols. Each of these variables registered a statistically significant correlation (Sig(two-tailed) values of 0.003, 0.000, 0.042, 0.001, 0.001, 0.000, 0.000, 0.045, 0.002, 0.022, and 0.000, respectively). The responses on symbols’ usefulness, the number of instances where subjects required external help, dissatisfaction with the attitude of other hospital patients/visitors, and the difficulty of using the maps available on site did not register a significant correlation.
In addition, we tested whether the number of visits (NoV) correlated with subjects’ responses. The test results indicate statistically significant correlations with nine items. The correlation test registered a positive correlation between the NoV and the number of signs, the legibility of signage, the legibility of text, the clarity of information, the employment of a multi-lingual signage system, the frequency of use of symbols within the environment, the number of times that visitors required help, the clarity of verbal directions, and the attitude of other users toward being asked for directions (correlation values of (0.403, 0.246, 0.170, 0.277, 0.257, 0.170, 0.203, 0.192, and 0.171, respectively).
Moreover, the test results indicate a statistically significant negative correlation between subjects’ purpose of visit (PoV) and the overall responses. This suggests that the level of satisfaction toward the number of signs available in the building was affected by the PoV, whereby the visitors were less satisfied with the number of available signs (Sig (two-tailed) values of 0.008 and 0.018 and correlation values of −0.207 and 0.184, respectively). On the other hand, there was a positive correlation between the PoV and the response to the attitude of staff members towards being asked for directions. This finding indicates that, on average, patients were less satisfied with the attitude of staff members toward being asked for directions (a correlation value of 0.184 and a Sig(two-tailed) value of 0.018).
Furthermore, we investigated the relationship between subjects’ LoI and their responses. The test results indicate a positive, statistically significant correlation in all items except three (the perceived difficulty of the journey, the number of times subjects required assistance and asked for directions, and the organization of the interior environment). Moreover, no statistically significant correlation was found between respondents’ ethnic background and their responses to all of the items investigated in the questionnaire.
Lastly, when investigating the relationship between the respondents’ LoP and their responses, no significant correlation was found in the responses to all of the questions except for the questions on the difficulty of the overall journey through the building and the number of times the respondents required help. Correlation values of −0.180 and −0.165 and Sig(two-tailed) values of 0.021 and 0.034 were obtained, indicating that respondents’ LoP is inversely correlated to the response to these questions. In both cases, the correlation values were less than 0.3, indicating a weak relationship between the respondents’ ethnic background and their responses as listed in Table 4.
The correlation test results indicate that, while the responses to various elements varied amongst demographic groups, the coefficient values show an overall homogenous response to the items investigated. This suggests that the variables studied had a similar overall impact on the various groups, with a few exceptions for specific items. Table 4 shows that the registered correlation coefficients were all greater than 0.3 and no group registered a correlation coefficient greater than 0.5.

4. Discussion of the Results

The survey questionnaire contained questions investigating the public perception of the quality of the interior environment in general and focused on elements commonly perceived to be part of the wayfinding system. An examination of the mean statistics indicated a need for an overall upgrade of the interior environmental conditions and the internal organization of the environment. The results also suggest that the average level of satisfaction with the current wayfinding system in RUKA is lower than average. Therefore, the results indicate that a better-organized interior environment and a better-designed wayfinding system will improve the wayfinding experience of users of the built environment.
These results are consistent with the findings of [39,40,41] in terms of the gender effects observed. The Pearson’s test results gave Sig(two-tailed) values less than 0.05, indicating a significant correlation. Furthermore, the results are consistent with those of [42,43,44,45] with regard to the effect of familiarity with the environment. The results indicate a statistically significant correlation between subjects’ responses and NoV.
Moreover, the questionnaire results concerning the effect of age are consistent with [14,40,46,47], in which the Pearson’s correlation test results showed a significant correlation. Furthermore, the survey questionnaire results are consistent with [48,49], in which statistically significant correlations with respondents’ LoE were observed. Moreover, the results of this study are consistent with [50], in which the effect of users’ LoP was detected and a statistically significant correlation was registered. It is worth mentioning that, while it is difficult to establish a relationship between LoI as a sociodemographic factor and wayfinding [31], the results of the Pearson’s correlation test indicate a statistically significant difference. This could be due to the fact that the level of income in our sample showed a statistically significant correlation with other sociodemographic factors, such as education and age. The results of this study have implications for interior designers, architects, healthcare facilitators, policy-makers, and researchers in the field of wayfinding in healthcare facilities in general. The results of the study suggest that interior designers and architects in Malaysia should take into account the needs and preferences of users when designing wayfinding systems, especially those items investigated and discussed in this study. Furthermore, the results of this study should encourage policy-makers in Malaysia to start developing a Malaysia-specific wayfinding system design guideline for public healthcare facilities given the fact that Malaysia has yet to develop its own guideline. Moreover, we encourage other researchers to further investigate this subject matter within the Malaysian context and build upon the findings of this study.

5. The Study’s Limitations

While this study has yielded helpful and relevant findings, it has several limitations. Firstly, the findings are limited by the sample size; a larger sample size could produce a more generalizable set of findings. Secondly, the findings of this study are limited by the fact that we targeted the users of a single public outpatient unit (RUKA). Further studies in which data are collected from various locations could provide further insight into whether the overarching dissatisfaction with RUKA’s wayfinding system can also be observed in other locations. Furthermore, collecting data from multiple locations within the country might provide further insight due to the culturally diverse nature of the country. Thirdly, this study employed a quantitative approach to assess the wayfinding system of a Malaysian public outpatient unit. The use of this approach may have led us to neglect potential qualitative aspects related to users’ perceptual responses. Therefore, assessing the wayfinding systems of Malaysian outpatient units from a qualitative perspective could offer a unique perspective. Finally, this study only included patients of and visitors to a Malaysian public hospital. This led us to neglect employees’ perceptions of the environment, which may be different from those of patients and visitors due to employees’ familiarity with the environment.

6. Conclusions

This study aimed to evaluate the efficacy of a wayfinding system in an outpatient unit of a Malaysian public hospital. The results of the evaluation could be employed as a guide to future upgrade initiatives. This study employed a survey questionnaire to evaluate the as-built wayfinding system in a Malaysian public outpatient unit. The statistical analysis of the collected data indicated users’ dissatisfaction with the existing wayfinding system. Furthermore, the results indicate that human-related variables, such as age, gender, LoE, familiarity, LoP, and LoI, need to be taken into consideration when attempting to design or upgrade a wayfinding system in an outpatient unit of a Malaysian public hospital. Similarly, the results also indicate that environmental elements, such as color, contrast, the visibility of signage, the number of signs, the orientation of signage, and the comprehensibility of the information displayed, are of importance to any future upgrade initiatives planned for RUKA. Moreover, the results indicate the need to upgrade the wayfinding system in RUKA. It is worth highlighting that the survey questionnaire employed in this study can be used as a starting point in the development of a method for the evaluation of wayfinding systems in healthcare facilities within the Malaysian public healthcare sector. The results of this study also highlight the need to address human spatial needs systematically by employing an evidence-based scheme rather than having the design and assessment of wayfinding systems be unguided.

Author Contributions

Conceptualization, A.A.-S., M.A. and A.S.A.N.; methodology, A.A.-S., M.A. and A.S.A.N.; software, A.A.-S., A.A. and R.M.; formal analysis, A.A.-S.; writing—original draft preparation, A.A.-S.; writing—review and editing, A.A. and A.A.-S.; supervision, M.A. and A.S.A.N. All authors have read and agreed to the published version of the manuscript.

Funding

This research received no external funding.

Institutional Review Board Statement

Not applicable.

Informed Consent Statement

Not applicable.

Data Availability Statement

Not applicable.

Conflicts of Interest

The authors declare no conflict of interest.

Appendix A

Survey Questionnaire

Brief: This study aims to understand patients’ requirements for a good wayfinding system in an outpatient unit of a Malaysian hospital. Your participation in this study is highly appreciated. We assure all participants in this survey that full anonymity will be preserved and that all personal information will be concealed.
To begin this survey, we would appreciate it if you told us a little bit about yourself.
Name …………………………………………
Time…………… Date………………………………………
Age……………………………………
Please highlight the box in front of the choice/statement that best represents your opinion with a (×) or any other symbol of your choice.
  • Marital status
Single    
Married
  • Please specify your gender
Male    
Female
  • Ethnicity
Malay    
Chinese
Indian
Other
  • Please state your language of preference
Malay    
Chinese (Cantonese/Mandarin)
Tamil
English
Other
  • Please state your purpose in coming to the hospital building
I am a visitor    
I am a patient
  • What is the highest level of education you have achieved?
Did not finish high school    
High school
Diploma/vocational training
Undergraduate education
Higher/postgraduate education
  • What is your level of income?
0–999    
1000–1999
2000–2999
3000–3999
4000–above
  • How many times have you visited RUKA in the last six months?
This is my first time    
Once
Twice
Three times
More than three times
1-
Do you think there was a sufficient number of signs to help you navigate the building?
Very sufficientSufficientModerateInsufficientVery insufficient
    
2-
What do you think of the positioning and orientation of the signage in the building?
Very well positionedWell positionedModerateBadly positionedVery badly positioned
    
3-
How would you describe the legibility of the signage?
Very legiblelegibleModerateillegibleVery illegible
    
4-
How well do you think the signage was differentiated or contrasted against the background colors?
Highly differentiatedDifferentiatedModerateUniformVery Uniform
    
5-
How legible was the text within the signage in the building?
Highly legibleLegibleModerateIllegibleVery illegible
    
6-
How comprehensible/clear was the information within the signage?
Very comprehensibleComprehensibleModerateIncomprehensibleVery incomprehensible
    
7-
Do you think that the usage of a multi-lingual signage system would positively affect your wayfinding journey?
Totally disagreeDisagreeNot sureAgreeTotally agree
    
8-
How frequently did you notice the usage of symbols in the signage?
Very frequentFrequentModerateRareVery rare
    
9-
How useful was the usage of symbols in the signage to your journey?
Very UselessUselessModerateUsefulVery useful
    
10-
How would you describe the difficulty of your overall journey in the building today?
Very easyEasyModerateDifficultVery difficult
    
11-
How many times did you ask for help with directions during your journey in the building today?
Did not need to askOnceTwiceThree timesMore than three times
    
12-
How clear were the verbal directions given to you?
Very clearClearModerateConfusingVery confusing
    
13-
How would you describe the attitude of the staff toward being asked to give directions?
Very goodGoodModerateBadVery bad
    
14-
How would you describe the attitude of other patients/visitors toward being asked to give directions?
Very goodGoodModerateBadVery bad
    
15-
How sufficient do you think the usage of maps is in the building?
Very sufficientSufficientModerateInsufficientVery insufficient
    
16-
How would you describe the maps that you have noticed during your journey?
Very easy to understandEasy to understandModerateComplicatedVery complicated
    
17-
How would you describe the organization of the interior environment of the building in general?
Very well organizedWell organizedModerateDisorganizedVery disorganized
    
18-
Do you think that a better-designed signage system would make your journey easier when being referred from one building to another?
I totally disagreeI disagreeNot sureI AgreeI totally agree
    
Thank you very much for participating in this survey.

References

  1. Ouf, T.A.; Makram, A.; Razek, S.A.A. Design Indicators Based on Nature and Social Interactions to Enhance Wellness for Patients in Healthcare Facilities. In Advanced Studies in Efficient Environmental Design and City Planning; Springer: Cham, Switzerland, 2021; pp. 449–461. [Google Scholar] [CrossRef]
  2. Abu Samah, Z.; Ibrahim, N.; Amir, J.S. Translating Quality Care Factors to Quality Space: Design Criteria for Outpatient Facility. Procedia-Soc. Behav. Sci. 2013, 105, 265–272. [Google Scholar] [CrossRef] [Green Version]
  3. Lee, S.; Dazkir, S.S.; Paik, H.S.; Coskun, A. Comprehensibility of universal healthcare symbols for wayfinding in healthcare facilities. Appl. Ergon. 2014, 45, 878–885. [Google Scholar] [CrossRef] [PubMed]
  4. Ching, F.D.; Binggeli, C. Interior Design Illustrated; John Wiley & Sons: Hoboken, NJ, USA, 2018. [Google Scholar]
  5. Abu Bakar, S.; Al-Sharaa, A.; Munther, R.; Suhardi, M. Measuring Visual Pollution Threshold Along Kuala Lumpur Historic Shopping District Streets Using Cumulative Area Analysis. In Proceedings of the Visual Resource Stewardship Conference, Lemont, IL, USA, 27–30 October 2019; State University of New York: Albany, NY, USA, 2019. [Google Scholar]
  6. Iyer, A.; Stein, L.; Franklin, E.S. Bettering healthcare outcomes through environmental design. In Clinical Engineering Handbook; Academic Press: Cambridge, MA, USA, 2019; pp. 852–857. [Google Scholar] [CrossRef]
  7. Verderber, S.; Refuerzo, B.J. Innovations in Hospice Architecture; Routledge: London, UK, 2019. [Google Scholar]
  8. Moore, K.D. Healthy Places. Enq. ARCC J. Archit. Res. 2020, 17, 1–20. [Google Scholar]
  9. Wang, Y. Comparison and Quantification of Cognitive Load generated by Sternberg Test using EEG Signals. In Proceedings of the Construction Research Congress 2020, Tempe, AZ, USA, 8–10 March 2020. [Google Scholar]
  10. Weisberg, S.M.; Newcombe, N.S. Cognitive maps: Some people make them, some people struggle. Curr. Dir. Psychol. Sci. 2018, 27, 220–226. [Google Scholar] [CrossRef] [PubMed] [Green Version]
  11. Jamshidi, S.; Pati, D. A Narrative Review of Theories of Wayfinding Within the Interior Environment. HERD Health Environ. Res. Des. J. 2020, 14, 290–303. [Google Scholar] [CrossRef] [PubMed]
  12. He, Q.; McNamara, T.P.; Bodenheimer, B.; Klippel, A. Acquisition and transfer of spatial knowledge during wayfinding. J. Exp. Psychol. Learn. Mem. Cogn. 2019, 45, 1364–1386. [Google Scholar] [CrossRef] [PubMed]
  13. Verghote, A.; Al-Haddad, S.; Goodrum, P.; Van Emelen, S. The Effects of Information Format and Spatial Cognition on Individual Wayfinding Performance. Buildings 2019, 9, 29. [Google Scholar] [CrossRef] [Green Version]
  14. Lin, B.S.M.; Lin, C.Y.; Kung, C.W.; Lin, Y.J.; Chou, C.C.; Chuang, Y.J.; Hsiao, G.L.K. Wayfinding of firefighters in dark and complex environments. Int. J. Environ. Res. Public Health 2021, 18, 8014. [Google Scholar] [CrossRef]
  15. Dalton, R.C.; Hölscher, C.; Montello, D.R. Wayfinding as a Social Activity. Front. Psychol. 2019, 10, 142. [Google Scholar] [CrossRef] [Green Version]
  16. Karimi, H.A.; Zhang, L.; Benner, J. Personalized accessibility map (PAM): A novel assisted wayfinding approach for people with disabilities. Ann. GIS 2014, 20, 99–108. [Google Scholar] [CrossRef]
  17. Bae, C.J.; Montello, D.R. Dyadic route planning and navigation in collaborative wayfinding. In Proceedings of the 14th International Conference on Spatial Information Theory (COSIT 2019), Regensburg, Germany, 9–13 September 2019. [Google Scholar]
  18. Abu Samah, Z.; Ibrahim, N.; Wahab, M.H.A. Users’ Assessment on Interior Environment of a Hospital Outpatient Unit in Malaysia. Asian J. Environ. Stud. 2018, 3, 179–187. [Google Scholar] [CrossRef]
  19. Pati, D.; Harvey, T.E., Jr.; Willis, D.A.; Pati, S. Identifying elements of the health care environment that contribute to wayfinding. HERD Health Environ. Res. Des. J. 2015, 8, 44–67. [Google Scholar] [CrossRef] [PubMed]
  20. Rodrigues, R.; Coelho, R.; Tavares, J.M.R.S. Healthcare Signage Design: A Review on Recommendations for Effective Signing Systems. HERD Health Environ. Res. Des. J. 2018, 12, 45–65. [Google Scholar] [CrossRef] [PubMed]
  21. Anuar, N.K.; Pagliari, R.; Moxon, R. An evaluation of airport wayfinding and signage on senior driver behaviour and safety of airport road access design. J. Air Transp. Stud. 2017, 8, 108–129. [Google Scholar] [CrossRef]
  22. Jiang, S.; Verderber, S. On the planning and design of hospital circulation zones: A review of the evidence-based literature. HERD Health Environ. Res. Des. J. 2017, 10, 124–146. [Google Scholar] [CrossRef] [PubMed]
  23. Pouyan, A.E.; Ghanbaran, A.; Shakibamanesh, A. Impact of circulation complexity on hospital wayfinding behavior (Case study: Milad 1000-bed hospital, Tehran, Iran). J. Build. Eng. 2021, 44, 102931. [Google Scholar] [CrossRef]
  24. Aljunid, S.S.; Shukri, N.N.H.M.; Taib, M.Z.M.; Abu Samah, Z. Determinants of patient satisfaction on interior design quality of public hospitals in malaysia. Malays. J. Public Health Med. 2020, 20, 233–241. [Google Scholar] [CrossRef]
  25. Kalantari, S.; Tripathi, V.; Kan, J.; Rounds, J.D.; Mostafavi, A.; Snell, R.; Cruz-Garza, J.G. Evaluating the impacts of color, graphics, and architectural features on wayfinding in healthcare settings using EEG data and virtual response testing. J. Environ. Psychol. 2021, 79, 101744. [Google Scholar] [CrossRef]
  26. Nawawi, N.M.; Sapian, A.R.; Majid, N.H.A.; Aripin, S. Hospital design in tropical Malaysia towards a green agenda. In Proceedings of the uia/phg 2013 Annual Healthcare forum+ Gupha Meeting at IIDEX Canada, Toronto, ON, Canada, 24–28 September 2013. [Google Scholar]
  27. Iftikhar, H.; Shah, P.; Luximon, Y. Human wayfinding behaviour and metrics in complex environments: A systematic literature review. Arch. Sci. Rev. 2020, 64, 452–463. [Google Scholar] [CrossRef]
  28. Ulrich, R.S.; Berry, L.L.; Quan, X.; Parish, J.T. A Conceptual Framework for the Domain of Evidence-Based Design. HERD Health Environ. Res. Des. J. 2010, 4, 95–114. [Google Scholar] [CrossRef]
  29. World Health Organization. Malaysia Health System Review. 2012. Available online: https://apps.who.int/iris/bitstream/handle/10665/206911/9789290615842_eng.pdf (accessed on 1 March 2019).
  30. Ulrich, S.; Grill, E.; Flanagin, V.L. Who gets lost and why: A representative cross-sectional survey on sociodemographic and vestibular determinants of wayfinding strategies. PLoS ONE 2019, 14, e0204781. [Google Scholar] [CrossRef] [PubMed] [Green Version]
  31. Ulrich, R.S.; Cordoza, M.; Gardiner, S.K.; Manulik, B.J.; Fitzpatrick, P.S.; Hazen, T.M.; Perkins, R.S. ICU Patient Family Stress Recovery During Breaks in a Hospital Garden and Indoor Environments. HERD Health Environ. Res. Des. J. 2019, 13, 83–102. [Google Scholar] [CrossRef] [PubMed]
  32. Chahal, H.; Gupta, M.; Lonial, S. Operational flexibility in hospitals: Scale development and validation. Int. J. Prod. Res. 2018, 56, 3733–3755. [Google Scholar] [CrossRef]
  33. Haron, S.N.; Hamid, M.Y.; Talib, A. Exploration of usability issues in Malaysia public hospital spatial design: Pilot study. Int. J. Appl. 2011, 1, 127–134. [Google Scholar]
  34. Official Portal University Malaya Medical Centre. Available online: https://www.ummc.edu.my/ (accessed on 10 February 2020).
  35. Official Portal Ministry of Health Malaysia. Available online: https://www.moh.gov.my/ (accessed on 1 April 2019).
  36. DeVon, H.A.; Block, M.E.; Moyle-Wright, P.; Ernst, D.M.; Hayden, S.J.; Lazzara, D.J.; Savoy, S.M.; Kostas-Polston, E. A psychometric toolbox for testing validity and reliability. J. Nurs. Scholarship. 2007, 39, 155–164. [Google Scholar] [CrossRef] [PubMed]
  37. Alhasan, A.; Audah, L.; Ibrahim, I.; Al-Sharaa, A.; Al-Ogaili, A.S.; Mohammed, J.M. A case-study to examine doctors’ intentions to use IoT healthcare devices in Iraq during COVID-19 pandemic. Int. J. Pervasive Comput. Commun. 2020. [Google Scholar] [CrossRef]
  38. Schober, P.; Boer, C.; Schwarte, L.A. Correlation coefficients: Appropriate use and interpretation. Anesth. Analg. 2018, 126, 1763–1768. [Google Scholar] [CrossRef] [PubMed]
  39. Munion, A.K.; Stefanucci, J.K.; Rovira, E.; Squire, P.; Hendricks, M. Gender differences in spatial navigation: Characterizing wayfinding behaviors. Psychon. Bull. Rev. 2019, 26, 1933–1940. [Google Scholar] [CrossRef] [PubMed]
  40. Wang, Y.V. Effectiveness of Drinking Fountain Wayfinding Signage at the Nest; UBC: Vancouver, BC, Canada, 2019. [Google Scholar]
  41. Zhou, Y.; Cheng, X.; Zhu, L.; Qin, T.; Dong, W.; Liu, J. How does gender affect indoor wayfinding under time pressure? Cartogr. Geogr. Inf. Sci. 2020, 47, 367–380. [Google Scholar] [CrossRef]
  42. Kim, K.; Bock, O. Acquisition of landmark, route, and survey knowledge in a wayfinding task: In stages or in parallel? Psychol. Res. 2020, 85, 2098–2106. [Google Scholar] [CrossRef]
  43. Dong, W.; Qin, T.; Yang, T.; Liao, H.; Liu, B.; Meng, L.; Liu, Y. Wayfinding Behavior and Spatial Knowledge Acquisition: Are They the Same in Virtual Reality and in Real-World Environments? Ann. Am. Assoc. Geogr. 2021, 112, 226–246. [Google Scholar] [CrossRef]
  44. Su, W.; Lu, Z.; Sun, Y.; Liu, G. Let eyes tell: Experimental research on university library signage system and users’ wayfinding behavior. Libr. Hi Tech 2021, 40, 198–221. [Google Scholar] [CrossRef]
  45. Li, H.; Thrash, T.; Hölscher, C.; Schinazi, V. The effect of crowdedness on human wayfinding and locomotion in a multi-level virtual shopping mall. J. Environ. Psychol. 2019, 65, 101320. [Google Scholar] [CrossRef]
  46. Iftikhar, H.; Asghar, S.; Luximon, Y. The efficacy of campus wayfinding signage: A comparative study from Hong Kong and Pakistan. Facilities 2020, 38, 871–892. [Google Scholar] [CrossRef]
  47. Chen, M.-S.; Ko, Y.-T.; Hsieh, W.-C. Exploring the Planning and Configuration of the Hospital Wayfinding System by Space Syntax: A Case Study of Cheng Ching Hospital, Chung Kang Branch in Taiwan. ISPRS Int. J. Geo-Inf. 2021, 10, 570. [Google Scholar] [CrossRef]
  48. Erkan, I. Examining wayfinding behaviours in architectural spaces using brain imaging with electroencephalography (EEG). Arch. Sci. Rev. 2018, 61, 410–428. [Google Scholar] [CrossRef]
  49. Hidayetoglu, M.L.; Yildirim, K.; Akalin, A. The effects of color and light on indoor wayfinding and the evaluation of the perceived environment. J. Environ. Psychol. 2012, 32, 50–58. [Google Scholar] [CrossRef]
  50. Klippel, A.; Hansen, S.; Davies, J.; Winter, S. A high-level cognitive framework for route directions. In Proceedings of the SSC, Melbourne, Australia, 25 September 2005. [Google Scholar]
Figure 1. The referral system in the Malaysian healthcare system [29].
Figure 1. The referral system in the Malaysian healthcare system [29].
Buildings 12 00364 g001
Figure 2. The UMMC treatment and referral system [34]. RUKA, the trauma and emergency area, areas highlighted as primary care areas, and secondary and tertiary care areas are all separate buildings on the UMMC campus.
Figure 2. The UMMC treatment and referral system [34]. RUKA, the trauma and emergency area, areas highlighted as primary care areas, and secondary and tertiary care areas are all separate buildings on the UMMC campus.
Buildings 12 00364 g002
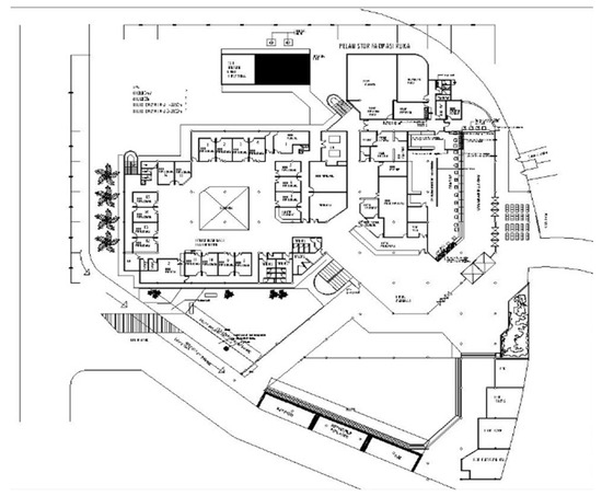
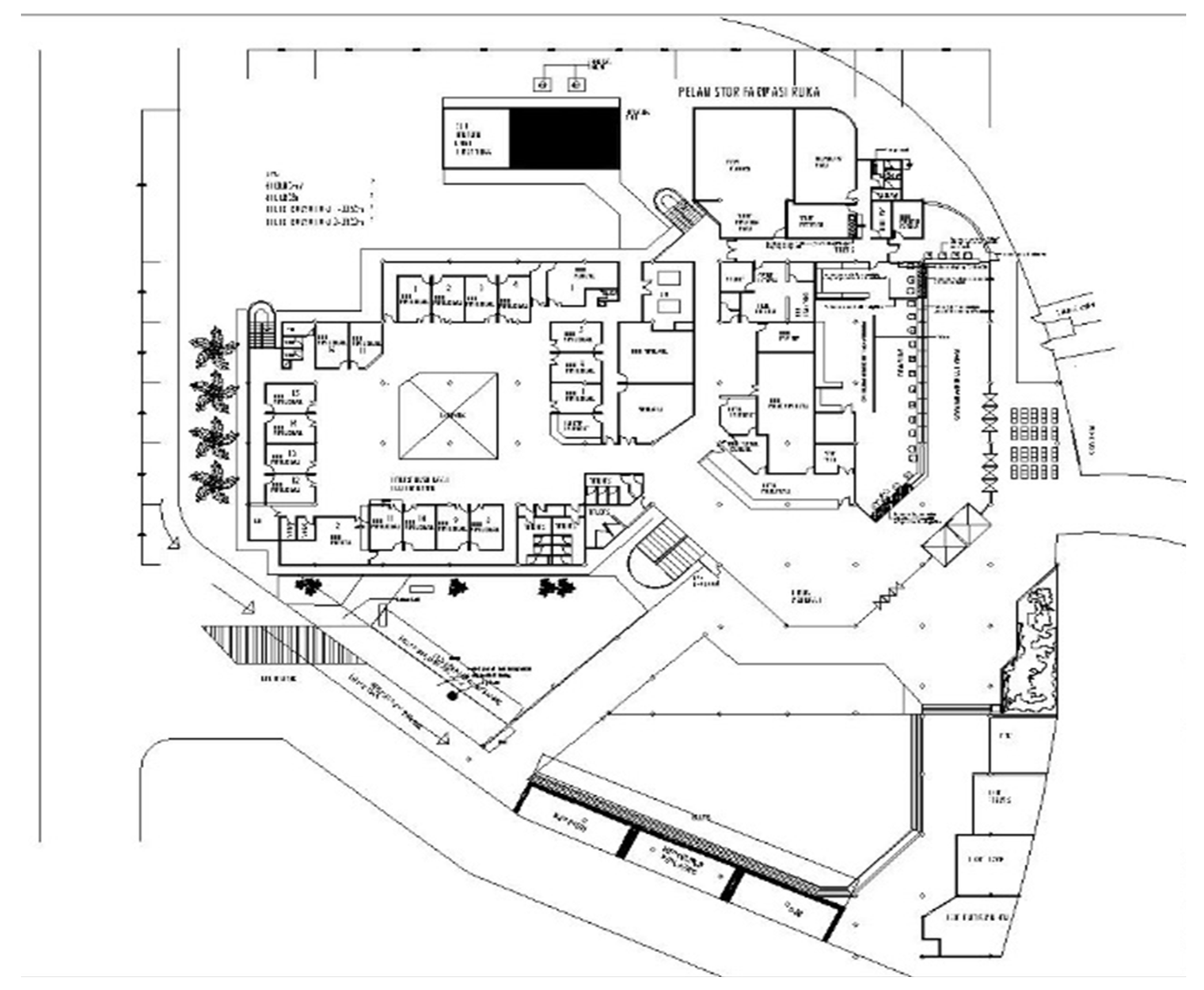
Figure 3. The layout of the ground floor of the RUKA building at the UMMC.
Figure 3. The layout of the ground floor of the RUKA building at the UMMC.
Buildings 12 00364 g003
Figure 4. High-level workflow of an outpatient unit based on the MoH’s IMS guidelines [35].
Figure 4. High-level workflow of an outpatient unit based on the MoH’s IMS guidelines [35].
Buildings 12 00364 g004
Figure 5. Subjects’ responses to the environmental items investigated in the questionnaire. Results are expressed as mean values.
Figure 5. Subjects’ responses to the environmental items investigated in the questionnaire. Results are expressed as mean values.
Buildings 12 00364 g005
Figure 6. Mean responses to the user elements in the questionnaire.
Figure 6. Mean responses to the user elements in the questionnaire.
Buildings 12 00364 g006
Table 1. The domains and factors identified in some of the recently published research in the field of wayfinding.
Table 1. The domains and factors identified in some of the recently published research in the field of wayfinding.
Social–Ecological Model Level (Domain)ReferenceHighlightsVariables
The individual domain [8]Wayfinding induced stress and was correlated with age
  • Demographics
  • Knowledge of the environment
  • Mental representation of the environment
  • Prior experience
[9]Working memory has an effect on wayfinding performance
[10]Cognitive map and wayfinding
[11]Spatial representation/cognitive mapping
[12]Spatial learning and wayfinding
[13]Cognitive workload effect on wayfinding
[14]Effect of age and fear of confinement on wayfinding
The social domain[15]Dyad navigation and wayfinding/information synchronicity and wayfinding
  • Attitude of people around other people (other users and staff members)
  • Type of communication (synchronous, asynchronous, etc.)
  • Availability of information
  • Clarity of provided information
[16]Geo-crowdsourcing services and collecting accessibility information on the built environment.
[17]Social role-taking (leading and following) within dyads.
[12]Asynchronous wayfinding in complex environments
The physical environment domain [4]Physical differentiation effect on wayfinding
  • Location
  • Orientation.
  • Spatial organization
  • Legibility
  • Contrast
[18]Interior spatial quality effects on wayfinding
[19]Physical design elements contributing to wayfinding
[20]Information display effects on wayfinding
[21]Information display effects on wayfinding behavior
[22]Physical properties of hospitals’ circulation areas and wayfinding performance
[23]Interior organization and layout effects on wayfinding patterns
[24]Physical environmental element effects on patients’ satisfaction
[25]Effects on architectural features on enhancing wayfinding performance
The institutional domain [26]Hospital design guidelines in Malaysia and their potential effects on user satisfaction
  • The way of showing items’ properties (i.e., size, color, language, etc.)
  • Institutional attitude towards showing directions to people.
[27]Institutional wayfinding in complex environments and potential effects on users
[28]Organizational outcomes resulting from controlling design variables
[24]Interior design quality evaluation in public inpatient units
Table 2. Descriptive statistics of the responses to the environmental elements.
Table 2. Descriptive statistics of the responses to the environmental elements.
ItemMean STDV.
Number of signs3.610.686
Positioning and orientation of the signage 3.980.529
Signage legibility 3.130.726
Contrast against the background 3.850.577
Legibility of text within the signage3.30.657
Clarity of the information 3.640.699
The usage of a multi-lingual signage system3.190.671
The usage of symbols 3.840.624
Symbols’ usefulness3.160.683
The usage of maps in the built environment4.040.528
The comprehensibility of maps 3.290.663
Organization of the interior environment3.980.584
Effect of a better signage system 3.570.783
Table 3. Descriptive statistics of the responses to the human-related elements.
Table 3. Descriptive statistics of the responses to the human-related elements.
ItemMean STDV.
Difficulty of the journey4.010.512
Clarity of the verbal direction provided3.220.638
Attitude of staff members3.290.724
Attitude of patients/visitors 3.250.687
Table 4. Pearson’s correlation test results between the demographic factors and environmental and human-related items tested in the questionnaire survey.
Table 4. Pearson’s correlation test results between the demographic factors and environmental and human-related items tested in the questionnaire survey.
Item AgeGenderEduNoVPoVLoIEthnicityLoP
Number of signs0.495 **0.160 *0.233 **0.403 **−0.207 **0.376 **0.021−0.004
Sig(2-tailed)0.0000.0400.0030.0000.0080.0000.7870.963
Positioning and orientation0.269 *−0.0470.268 **0.128−0.0290.285 **−0.013−0.014
Sig(2-tailed)0.0000.5460.0000.1000.7070.0000.8640.855
Signage legibility0.274 *−0.0030.159 *0.246 **−0.0720.154 *−0.007−0.092
Sig(2-tailed)0.0000.9690.0420.0010.360.0480.9240.24
Contrast against the background0.232 *0.0350.253 **0.0130.0000.318 **−0.074−0.003
Sig(2-tailed)0.0030.660.0010.8720.9960.0000.3460.97
Text legibility 0.372 *0.0330.1440.170 *−0.050.324 **0.042−0.084
Sig(2-tailed)0.0000.6780.0660.0290.5240.0000.5910.281
Clarity of the information0.297 *0.1410.257 **0.277 **−0.0470.280 **0.022−0.047
Sig(2-tailed)0.0000.0710.0010.0000.5490.0000.7770.553
Use of a multi-lingual signage system0.442 *−0.0270.0610.257 **−0.0940.160 *0.03−0.143
Sig(2-tailed)0.0000.7260.4370.0010.2320.040.7010.067
Usage of symbols0.182 *0.070.282 **0.170 *0.0520.356 **0.073−0.059
Sig(2-tailed)0.0190.370.0000.0290.5050.0000.3540.451
Symbols’ usefulness0.431 *−0.0020.280 **0.149−0.0420.372 **−0.082−0.026
Sig(2-tailed)0.0000.9840.0000.0560.5920.0000.2970.741
Difficulty of the journey0.064−0.0830.0750.0940.1380.0790.087−0.180 *
Sig(2-tailed)0.4130.290.3380.2300.0760.3160.2680.021
Asking for directions0.398 *−0.0710.156 *0.203 **−0.0440.1110.016−0.165 *
Sig(2-tailed)0.0000.3650.0450.0090.5720.1570.8390.034
Clarity of the verbal direction0.373 *0.020.1020.192 *−0.0260.280 **−0.002−0.086
Sig(2-tailed)0.0000.7960.1920.0140.7410.0000.9770.269
Attitude of staff members0.296 *0.0290.1260.0630.184 *0.269 **0.109−0.073
Sig(2-tailed)0.0000.7110.1060.4230.0180.0000.1630.35
Attitude of patients/visitors0.431 *−0.0240.238 **0.171 *0.0040.212 **−0.034−0.121
Sig(2-tailed)0.0000.7580.0020.0280.9570.0060.6680.121
Usage of maps in the built environment0.066−0.021−0.0470.0160.0190.181 *0.055−0.038
Sig(2-tailed)0.3980.7900.5520.8430.810.020.4850.63
Comprehensibility of maps0.354 *0.0870.179 *0.0690.060.388 **−0.037−0.099
Sig(2-tailed)0.0000.2680.0220.3810.4450.0000.6360.206
Organization of the interior environment−0.078−0.0010.1390.1160.0880.1520.0820.008
Sig(2-tailed)0.3220.9870.0740.1370.2610.0520.2960.914
Effect of a better signage system0.263 *0.0840.333 **0.1410.1260.382 **0.088−0.044
Sig(2-tailed)0.0010.2820.0000.0720.1080.0000.2590.573
Note: (**) indicates that the correlation is significant at the 0.01 level, while (*) indicates that the correlation is significant at the 0.05 level.
Publisher’s Note: MDPI stays neutral with regard to jurisdictional claims in published maps and institutional affiliations.

Share and Cite

MDPI and ACS Style

Al-Sharaa, A.; Adam, M.; Amer Nordin, A.S.; Alhasan, A.; Mundher, R. A User-Centered Evaluation of Wayfinding in Outpatient Units of Public Hospitals in Malaysia: UMMC as a Case Study. Buildings 2022, 12, 364. https://doi.org/10.3390/buildings12030364

AMA Style

Al-Sharaa A, Adam M, Amer Nordin AS, Alhasan A, Mundher R. A User-Centered Evaluation of Wayfinding in Outpatient Units of Public Hospitals in Malaysia: UMMC as a Case Study. Buildings. 2022; 12(3):364. https://doi.org/10.3390/buildings12030364

Chicago/Turabian Style

Al-Sharaa, Ammar, Mastura Adam, Amer Siddiq Amer Nordin, Ameer Alhasan, and Riyadh Mundher. 2022. "A User-Centered Evaluation of Wayfinding in Outpatient Units of Public Hospitals in Malaysia: UMMC as a Case Study" Buildings 12, no. 3: 364. https://doi.org/10.3390/buildings12030364

APA Style

Al-Sharaa, A., Adam, M., Amer Nordin, A. S., Alhasan, A., & Mundher, R. (2022). A User-Centered Evaluation of Wayfinding in Outpatient Units of Public Hospitals in Malaysia: UMMC as a Case Study. Buildings, 12(3), 364. https://doi.org/10.3390/buildings12030364

Note that from the first issue of 2016, this journal uses article numbers instead of page numbers. See further details here.

Article Metrics

Back to TopTop