Abstract
The recent growth of cooperative housing in Spain questions existing design standards and regulations as well as cultural norms of ownership, management and current housing typologies. This paper analyzes the design opportunities and challenges emerging from this. It studies the transformative capacity of housing cooperatives and how the realization of new social, spatial and economic demands is restricted by regulatory and administrative frameworks that limit collective ownership and use. Based on a case study analysis of recent projects in Barcelona, the paper discusses how regulations condition housing design, but also why changing ideas of ownership, household and dwelling structures require a review of how regulations are formulated and implemented. It examines this in the context of designing with housing cooperatives and their ethos defined by engagement in and responsibility for all decision-making processes and self-management. In cooperative housing, architecture is a process, not a product, one that extends beyond the completion of a building. This gives credibility to the claim of cooperative housing not just as a grassroots response to housing failures, but also as a political project of democratization and social transformation.
1. Spain 2006: “NO VAS A TENER UNA CASA EN LA PUTA VIDA!”
“You won’t have a house in your fucking life!” was the motto with which the Spanish grassroots movement V de Vivienda at the height of the real estate bubble in 2006 called attention to rising housing unaffordability and the urgent need for a change in housing policy. Two years later, an economic collapse was followed by austerity measures and unprecedented social welfare cutbacks. The economic crisis soon became a social one. Growing housing dispossession resulting from evictions and unaffordability—often referred to as “silent evictions”—laid bare social and urban inequalities, exacerbated by growing gentrification and energy poverty. More than 60,000 evictions took place per year from 2011 to 2018 in Spain [1] and house prices increased by 148% (2000–2018), while in comparison salaries only grew by 3% [2,3,4]. The housing crisis was denounced in 2006 by the then UN Special Rapporteur on Adequate Housing, Miloon Kothari, after visiting Spain [5], and declared a “housing emergency” a few years later by the new municipal government of Barcelona [6].
Unlike other cities with large non-profit housing sectors that supply affordable housing, for example, Zurich or Vienna, in Barcelona 98% of housing is provided by the private sector [3]. Paradoxically, Spain had a public housing procurement policy during the 1920s and since the 1960s that, in the case of Barcelona, produced an estimated 15–25% of the housing stock according to public housing agencies. However, public housing was gradually and extensively privatized, and reduced to only 2% of housing today. This prioritization of homeownership was part of a long political project in Spain, promoted over decades by various housing ministers—from Jose Luis Arrese announcing in 1957 during the military dictatorship that “we want to turn proletarians into [home] owners” to Beatriz Corredor declaring in 2010 at the height of the economic crisis that “it is a good moment to buy a house”. Housing speculation was at the same time systematically stimulated through laws and policies in support of tax incentives, foreign real-estate investment, deregulation and urban rezoning [7,8,9]. With homeownership becoming a sign of social status and wealth, investment in housing as a life-time asset created a fast-growing economy fueled by mortgage indebtedness [7,8,9]. This however proved to be unsustainable and came at a high social cost, with housing debt causing financial insecurity and a lack of housing accessibility creating social exclusion.
The failure of public housing policies to deliver on the right to decent and affordable housing led to the rise of grassroots movements such as the V de Vivienda in 2003 and Plataforma de Afectados por la Hipoteca (Platform for People Affected by Mortgages, PAH) in 2009 as well as new housing cooperatives such as Sostre Civic (2004) and later the Fundació la Dinamo (2016). While the activist groups tackled immediate housing problems, the cooperatives sought a more radical answer to the housing crisis by developing alternative noncommodifiable housing models distinct from existing private- and public-sector ones.
Current cooperative housing is thus based on the right to use a house, not the right to own and make a profit from it [10,11]. While inspired by Danish Andel cooperatives and the Uruguayan Federation of Mutual Aid Housing Cooperatives (FUCVAM), Spanish cooperatives have adapted these models to their specific national contexts and needs. Especially self-management and active participation by dwellers throughout all procurement phases and beyond have become an essential characteristic of these cooperatives (Figure 1). This encompasses community-led design, collective ownership and management and communal forms of living. Cooperatives are both defined by a sharing of physical space, legal structure and economic responsibility and, more importantly, by issues of governance and management, collective identity and values and mutual care [12]. Collective property ownership offers thereby solidarity and mutual networks of care and support and reduces inequalities [13]. The cooperatives hence define themselves as autonomous organizations with the aim of realizing alternative social, financial and physical, environmental values [11].
Figure 1.
Dwellers are involved in all project phases from procurement to management and maintenance post completion. Source: authors.
The first two of the new cooperative projects in Barcelona were developed with support by the municipal government of Xavier Trias in 2014. It agreed to the cession of a building on Carrer Princesa for refurbishment by the Sostre Civic housing cooperative and a public plot of land for La Borda, a new-build housing development. In addition, the arrival of a municipalist government in 2015 with Barcelona en Comú (Barcelona in Common) formed by housing rights activists under the leadership of Ada Colau—a PAH activist—instigated a housing policy shift through the “Plan for the Right to Housing in Barcelona 2016–2025” [14,15]. The municipal government encouraged at the same time the growth of community-led housing by holding competitions on public land for the development of cooperative housing in 2017 and 2020. By entering into public-cooperative partnerships, the government acknowledged the importance of community-led groups in delivering new housing solutions and the limitations of the administration to deal with this on their own.
The demand by grassroots movements for a new supply of social housing, combined with a supportive local government in Barcelona, led to a call for greater self-determination. While the planning of housing in Spain was historically mostly centralized, the municipalism starting in 2015 led to a shift towards local planning. New housing models thus have been mostly realized at a local level by municipal administrations and grassroots movements. While there are other cases in Spain, for example, Entrepatios in Madrid, Barcelona has so far seen the stronger commitment by both administration and housing cooperatives. Although cooperative housing projects are still few in number, with only three completed in Barcelona and seven in Catalonia at the end of 2020 [16], the new cases are critical to its development, as they question deep-rooted cultural ideas and regulatory frameworks around housing.
As studied by Fernández and Miró [17], Spain has now entered its fourth phase of cooperative housing, with the previous three taking place during the twentieth century. What distinguishes the current phase from earlier ones in Spain is that property remains in collective ownership and that it is self-managed, owing to a fundamental change in its social aims and goals. This resurgence has to be seen in a wider global context, with interest in cooperative housing models currently growing worldwide.
While historical examples include Uruguay (starting in the late 1960s), Denmark (first cooperative in 1866) and Switzerland (late nineteenth century), new examples are widely found now in cities such as Brussels, Amsterdam and Berlin. Although there are diverse drivers of cooperative housing, commonly shared motivations are a lack of affordable housing, social activism and greater community participation in urban governance and housing policy. However, cooperative housing does not provide a unitarian model, and its principles are adapted to each specific context of regulations, financial framework and cultural values [11,12]. Today, an estimated 27 million Europeans live in cooperatives, which have proven effective in addressing various crises of housing affordability and shortage [18].
The current strength of cooperative housing in certain countries derives from long-term support and well-established tradition. In Uruguay, for example, cooperative housing is seen as both a bottom-up social movement for the right to housing and as an established institutionalized and professionalized system to provide affordable housing in a participatory manner [18]. This was achieved through three critical developments. First, a strong social organization had to be formed (Federación Urugaya de Cooperativas de Vivienda por Ayuda Mutua, FUCVAM), second, governmental housing and economic policy had to change and, third, a multidisciplinary and professionalized support system had to be created (Institutes of Technical Assistance) [19].
The current rethinking of cooperative housing in Spain as well as of collective ownership and management is an important moment in time to clarify its model and role and the necessary institutions needed to make it scalable as in countries such as Uruguay. Cooperative housing does not only offer opportunities to realize new social forms of organizing, owning and managing housing, but also result in new spatial forms that challenge existing notions of housing standards and the very definition of dwelling. Although cooperative housing designs are shaped by the commitments, interests and skills of a group, they are also limited by legal frameworks and different state-level decision-making. In Barcelona, as elsewhere, the different needs and social aims arising with cooperative housing have forced an engagement with legislation and an adaptation of existing regulations that were designed for conventional housing typologies and household compositions—most commonly the house for a homeowning, nuclear family. It is in this way that cooperative housing can be understood as a distinct socio-political project.
There is a lack of analysis of these issues and challenges, but also of the importance of how housing cooperatives engage with policy and design governance as well as their impact on housing design outcomes. Cooperative housing in Spain has been recently examined from a legal and policy study perspective [20] and its current state in Catalonia in relation to design policies and tools has been reviewed [21]. Building on this, the questions this paper examines are important in analyzing the potential and challenges of cooperative housing in realizing social value and addressing the larger housing crisis.
The paper discusses how the arrival of a new housing model, cooperative housing, is challenging design policy standards and social organization while responding to changing social needs. It studies the problems arising from planning and building housing that is collective in its ownership, management and occupancy and, therefore, often lies outside current conventional social ideas of the household, regulatory design constraints and legal and economic definitions of a dwelling. It thereby reveals the continuous design and building negotiations needed to realize the social aims of cooperative housing against these limits, and the fundamental role of dwellers as active stakeholders within these negotiations.
The questions explored in the following are: how are typological definitions of housing and notions of domestic space redefined and shaped by the social aims of cooperative housing? What rethinking and changes in design governance are needed to enable housing design innovation? What regulatory changes and new institutions and processes are needed to make cooperative housing scalable?
2. Methods
While studying the interrelationships between typological problems, housing policies and design regulations, typological questions are understood as concerned with how the form of architecture is determined in relation to the social diagrams and practices that underpin, or are enabled by, it [22].
The paper used a mixed-methods case study analysis of recent and current cooperative housing in Barcelona that included site visits, analysis of the drawings of the developments at different stages (competition, design development, statutory approvals and post-completion), a review of key cooperative housing literature in Spain and elsewhere, a study of grey literature relevant to the design regulation of housing in Spain, informal conversations and interviews with project stakeholders. The case study analysis focused on what typological design problems arise, how collective design decisions are made and how this process engages with regulatory constraints and governmental or governance issues. The typological analysis of the projects and the discussion of design decision processes are directly linked to a study of regulatory policy documents and legal definitions.
The selected case studies were or are developed in a public-cooperative partnership between the Municipal Institute of Housing and Renovation Barcelona (IMHAB), which is tasked with developing and managing municipal land and maintains public housing, and housing cooperatives as the developers. The discussed cases are La Borda, the first instance of this new procurement system, completed in 2019; La Balma and Cirerers Florits, which are currently under construction following a competition by IMHAB held in 2017; and Sotrac, La Regadora and Quinta Força, which are still at an early design stage and whose public competition winners were announced in 2020. These case studies represent the different stages of current cooperative housing developments in Barcelona.
The analyzed projects all entered into a legal agreement with the municipality to transfer the “surface right” (dret de superfície): a leasehold agreement giving the cooperative the right to build on public land and use the building for a period of 75 years (with an option to extend this by a further 15 years) after which both land and buildings are returned to the municipality. The legal relationship between the cooperative who owns the building and dwellers is defined by a “grant of use” (cessió d’ús) of the dwellings and common areas, which also includes a clause prohibiting property speculation.
The key regulations that apply to the design of housing and that were analyzed are the national Technical Building Codes (Código Tècnico Edificación, CTE) [23] and regional (Catalonia) Habitability Decree 141/2012 (Decret d’Habitabilidad 141/2012, DH) [24] and the recent Decree Law 50/2020 (Decret Llei 50/2020) that introduces new measures to stimulate the procurement of protected housing and rental housing models [25]. In addition, Barcelona has local plans and regulations, the Metropolitan Urban Planning Regulations (Normativa Urbanística Metropolitana) that contains the General Metropolitan Masterplan Planning Regulations (Normatives Urbanístiques del Plà General Metropolità, NN.UU PGM) and Metropolitan Building Ordinances (Ordenances Metropolitanes de l’Edificació, OME) [26]. Furthermore, public procurement agencies such as IMHAB have their own design guides and standard development criteria, which however are rewritten by the cooperatives to meet their specific needs.
In addition, stakeholders involved in the projects were interviewed to understand different views on how design decisions are negotiated. Interviewees included architectural design teams, municipal policymakers, officers of the Regional Housing Agency and dwellers. Interviews took place between December 2020 and February 2021 with Diego Carrillo (Celobert, architects of Cirerers Florits, 2017); Cristina Gamboa (Lacol, architects of La Borda 2014 and La Balma, 2017); Jordi Mitjans (Arqbag, architects of La Regadora, 2020); Ariadna Artigas Fernandez, Núria Vila Vilaregut and Mirko Gegundez Corazza (Lacol, architects of Sotrac), Josep Maria Montaner (Councillor for Housing, Barcelona City Council, 2015–2019), Marta Ibars Mitjaneta (Head of Evaluation and Qualification of Protected Housing, Agència de l’Habitatge de Catalunya), Jordi Estivill i Jover (Protected Housing Inspector, Directorate of Housing, Agència de l’Habitatge de Catalunya), and Ferran Aguiló (dweller of La Borda). Ibon Bilbao and Caterina Figuerola (Llindarquitectura) and Raül Avilla-Royo are the architects of Quinta Força building, 2020.
Although the cooperative housing movement is slowly growing in Spain, the case of Barcelona is particularly pertinent for studying common issues. Unlike other cities, cooperative housing has the explicit support of the municipal government in Barcelona and its discussion is, therefore, more advanced. However, it also reveals some of the fundamental problems faced by cooperative housing. These problems include existing legislation, negotiation processes and financing that do not suit cooperative housing procurement or the lifestyle of its dwellers, unfamiliarity with the model and cultural expectations of homeownership that have forced the first cooperative experiments to find innovative ways of overcoming them. These will be studied in detail. The current ongoing consolidation of a new cooperative housing model is a timely opportunity to reflect on the unique legal and participatory processes that are emerging. It is also a critical moment to assess possible learning for future projects, and if the model can deliver affordable housing at scale.
3. Discussion: From Prototype to Model
Housing cooperatives in Catalonia come in different sizes and structures, from Sostre Civic as an umbrella organization with 900 members who are developing eight projects (named “phases”) to smaller cooperatives owning a single building, as in the case of La Borda. All are directly managed by their members through regular assemblies and governing councils, although the differences in size are reflected in different governance and decision-making processes. In this respect, La Borda’s governance is comparable to that of a “phase” of Sostre Civic. While bigger organizations have their own professionalized technical departments, smaller cooperatives are commonly organized on a voluntary basis and rely on support by external interdisciplinary teams.
Housing cooperatives in Spain are classified as “protected housing”, which creates budget constraints, limits permissible dwelling floor areas, and determines the eligibility of dwellers through the criteria of a maximum income threshold and demonstrable housing need. In comparison to protected housing developed by public agencies, cooperative housing can afford a higher degree of experimentation, both in terms of the form and materialization of the building, as this process is self-managed. This gives direct control and decision-making powers throughout all project phases to the dwellers and creates a horizontal relationship between dwellers and technical consultants (architects, engineers, economical, juridical, etc.).
Unlike public and private sector housing, cooperative housing projects include significant amounts of social gathering and meeting spaces to promote communal life and shared activities that are central to their ethos. Except for La Borda, which is widely recognized as an important prototype, the studied projects are the result of competitions. They have different levels of project resolution and had a varying engagement with the future dwellers in the development of the competition entries. Although the proposals being analyzed here all contravened in some way existing regulations, they were still awarded the sites for the housing development, indicating the willingness of the administration to review the regulation and definition of housing through transformative design projects.
3.1. 2014: La Borda
La Borda is located in Can Batlló, a historic industrial and working-class neighborhood in Sants that saw the uprise of a social movement over Can Batlló’s future plans. It succeeded in turning it into a cooperatively managed hub of civic services. The project was designed by the young architects cooperative Lacol, which received the City of Barcelona Architecture Award in 2018 for the project. La Borda became immediately a milestone for cooperativism in Spain, and a catalyst of legal and urban regulatory changes: the development model based on “surface rights” was tested for the first time, and the planning requirement of the Metropolitan Building Ordinance (DOGC-A-18281034-2018, Art. 300.8) [26] to provide car parking was not enforced, saving construction costs and promoting a car-free and more sustainable living.
As members of a social movement, the dwellers are activists committed to communal and sustainable forms of living. To realize this ambition, La Borda members gave up 10 m2 of their dwellings for use in shared, larger areas scattered throughout the building, which provide essential spaces typically found in a private home but also additional functions (Figure 2 and Figure 3). These include a common kitchen, living room and bike store on the ground floor, a large community room, laundry room, guest rooms and storage spaces on each housing level and a communal rooftop. In addition, La Borda invited a food and consumer cooperative, which it hosts on the ground floor in support of sustainable and responsible commerce.
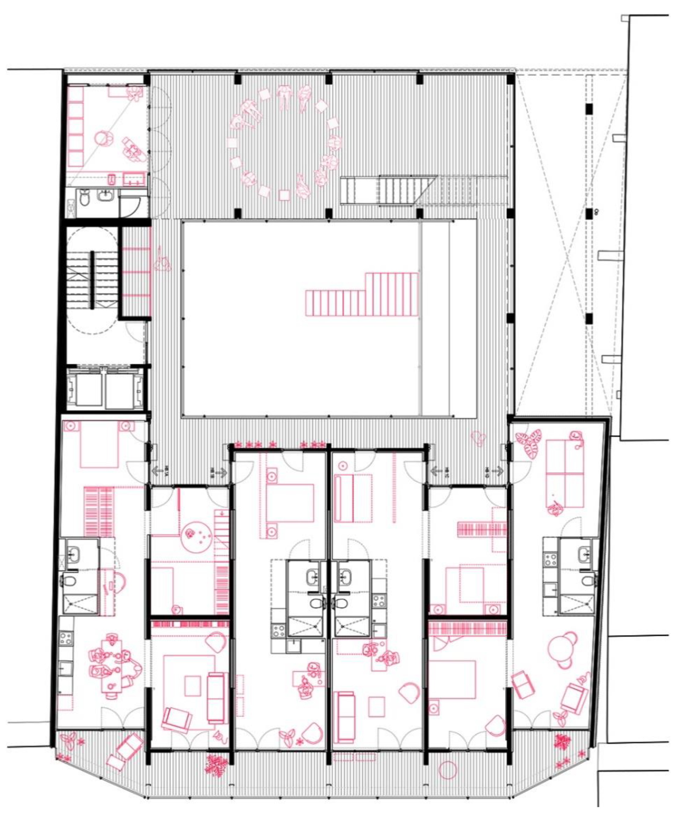
Figure 2.
La Borda, first-floor plan. To the north is a large sharing space, the laundry, shared toilet and storage space. To the south are the dwelling units. Source: Courtesy of Lacol.
Figure 3.
Top: a comparison of the distribution of areas for dwellings and shared spaces in a conventional building and La Borda with its additional shared spaces. Below: dwelling layout strategy: green shows the dwelling areas and yellow the “common spaces for private use” (interchangeable rooms between dwellings). While all units are registered as 40 m2, the aggregation of yellow rooms allows for different actual dwelling sizes. Source: Courtesy of Lacol.
According to Ferran Aguiló (a La Borda dweller, Can Batlló activist and Fundació la Dinamo member), La Borda’s common areas are working well. They have created spaces for highly intensive and shared uses. In fact, La Borda is considering reducing the number of washing machines due to a higher efficiency of sharing. Communal guest rooms are very successful, with an occupation rate of 75%. In addition, the generosity of shared areas has offered great flexibility in accommodating diverse uses and activities during the unexpected Covid-19 lockdowns since 2020, while permitting social distancing to be maintained.
The dwellings provide neutral spaces and are organized nonhierarchically to maximize room sizes and increase flexibility in layout. Agreed between dwellers, the “basic unit” plans were designed to allow variations in two ways. First, individual dwellings can incorporate up to three extra rooms and, second, dwellers can “customize” parts of their unit such as the kitchen location (Figure 4). The strategic positioning of extra rooms accessible to both adjoining units enables long-term adaptation to a household’s changing needs and use of their dwelling. Some rooms are also directly accessible from the common access deck, permitting these to be used by nonadjacent units as a satellite space.
Figure 4.
Dwellings variation. Top: customization of the dwelling layout by users. Below: S, M, L dwelling types Source: Courtesy of Lacol.
The cooperative members were committed to making construction and management as sustainable as possible. La Borda is the tallest building in Spain using cross-laminated timber (CLT), includes a state-of-the-art environmental monitoring system for heating and ventilation, has a courtyard designed as an enclosed “greenhouse” and operates a solidarity box for neighbors in economic hardship (Figure 5). Furthermore, while energy usage depends on a dwellings’ orientation, the dwellers living in sunnier south-facing dwellings agreed to pay a greater share of the energy bill than those facing north as compensation for living in better-oriented dwellings.
Figure 5.
Left: La Borda, housing elevation as seen from Can Batlló. Centre: The courtyard in La Borda forming a central void in the building that connects different uses: bike store (ground floor), large meeting room (1st floor), guest rooms (at the back), dwellings (to the left with a timber facade) and the “greenhouse” rooftop. Right: La Borda under construction. Promenade between dwellings, later enclosed and adapted by the dwellers using “temporary” partitions. Source: Courtesy Lacol (left and right); and Lacol and Lluc Miralles (centre).
The development involved the collective self-building of communal spaces during weekends, and the completion of some less urgent spaces was left for after dwellers moved into La Borda. Neighborhood volunteers and supporters also helped with the building works, reducing construction costs. Shared and public activities prior to the inhabitation of the building became critical to strengthening community bonds and attracting interest in the cooperative housing model. It resulted in members on the waiting list of La Borda later forming the Sotrac housing cooperative.
Although La Borda has been an important landmark in challenging Barcelona’s affordable housing policies, it has also revealed a fundamental issue of affordability, even in cooperatives. To become a dweller, members needed a down-payment of around €18,500—very low in comparison to market prices but still prohibitive to many. At the same time, La Borda’s dweller pays only a monthly fee of around €500 that covers loans and shared expenses, which is fixed long-term and significantly below the cost in market housing.
While La Borda is a great success, it is difficult to replicate. It is very much part of the larger political project and social movement of Can Batlló, which has given this group a unique cause. While its first members have a strong political commitment to the right to housing, the growth of cooperative housing will inevitably have to include less political members. However, according to Aguiló, there is a reason for optimism, since housing cooperatives create solidarity around the socially urgent problem of housing, a common ground that will attract the participation of diverse dwellers.
3.2. 2017: La Balma & Cirerers Florits
The projects developed for a housing competition for cooperatives in 2017, incorporated already some of the lessons learned from the prototype La Borda. They were the first attempt at creating a cooperative housing model that is repeatable in other parts of the city to benefit a larger population. As the outcome of a competition, it gave importance to the criteria of selection by the municipality and what was deemed the best proposal—evaluated against architectural and community-social aspects as well as long-term policy aims.
Of seven competition sites, four are currently under construction. Two of these will be further analyzed: Cirerers Florits designed by the architects cooperative Celobert and La Balma by Lacol and Laboqueria. Both projects are being developed by the Sostre Civic housing cooperative, use a CLT structure and provide generous community spaces. Yet the site conditions greatly differ and have partially determined the building design. La Balma is a linear block while Cirerers occupies a corner plot in a dense urban fabric.
Unlike La Borda, where only minor design changes had to be made to meet the ventilation requirements of the Habitability Decree (Art. 3.72) [24], these projects had to extensively modify the competition proposal in their construction plans. La Balma had to enclose its proposed cantilevered circulation deck, compact the previously generous plan and reduce built areas due to budget constraints. It also had to change its building outline from a rectangle to a trapezoid shape following different interpretations of regulations by the municipal planning department after the competition. This had a significant impact on the volume and appearance of the building (Figure 6).
Figure 6.
La Balma cooperative housing by Lacol and Laboqueria. Left: Rendering and 4th-floor plan from the competition. Right: Project in the construction tendering phase. Source: Courtesy of Lacol and Laboqueria.
At the same time, Cirerers had to increase its original provision of 27 dwelling units proposed in the competition to 32 built units to make the project financially viable (Figure 7). In addition, the requirements of the Habitability Decree and Metropolitan Building Ordinances became severely limiting, according to Celobert, as they were based on outdated and normative ideas on the lifestyles and social structures of dwellers that no longer meet today’s demands or social reality.
Figure 7.
Cirerers under construction and typical plan for construction tender. Source: Plan, courtesy of Celobert; image courtesy of Celobert and Gifré de Peray.
In the process of design negotiation, the critical role of the IMHAB and the Municipal Planning services as facilitators to achieving desired housing results and design ambitions is often underestimated. Both Diego Carrillo from Celobert and Cristina Gamboa from Lacol emphasized in their interviews the importance of constant negotiation with them throughout the design and approval phase (Proyecto Básico) and after completion (Certificado Final de Obra) to overcome regulatory constraints and realize the cooperative’s ambitions. The negotiation process was essentially determining possible design outcomes.
In the case of La Borda, the architects especially acknowledged the crucial support of the municipal Housing Department led by Josep Maria Montaner and the Regional Housing Agency (Agència d’Habitatge de Catalunya). For example, the compliance of La Borda’s unique system of dwelling units and their aggregation of extra rooms with protected housing requirements could not be assessed against standard layouts used by the existing software of the Regional Housing Agency. As a sign of their support and exceptionality of the project, they manually generated a report that analyzed all possible combinations of unit aggregation.
The interpretation of regulatory constraints by different levels of municipal planning, whether in a favorable manner or not, can vary according to an interest in, or familiarity with, cooperative housing. While La Borda as a pilot project benefitted from full political support by the municipal government and was directly supervised by the central planning services department, Cirerers and la Balma were managed at the district level, which took a stricter view on interpreting regulatory compliance, thus requiring significant design changes.
Despite building on public land, both projects also faced difficulties in financing the construction, which make significantly higher down-payments necessary than in La Borda. It was difficult for the cooperatives to get loans, as the Spanish banking system is used to individual loans and mortgages, with only a few banks such as COOP57, Fiare and the Catalan Finances Institute offering specialized financing. The limited finance options and lack of governmental guarantees, which can only be resolved by greater political support, are a significant barrier to the growth of cooperative housing.
3.3. Challenging Notions of Household and Dwelling
Notwithstanding the need for regulations to safeguard minimum housing standards and control market-oriented housing, they also limit innovation by defining the meaning of dwelling and its spaces and social structures. For example, the household is explicitly defined as a “family” and the term “marital double bedroom” is used in the Metropolitan Building Ordinances (Art. 56 and Art. 62–64) [26], with the division between “main bedroom” and “other bedrooms” in the Technical Building Codes (DB-HS 3, Art. 2.1) [23] clearly assuming a spatial hierarchy coextensive with a familial social hierarchy.
Even after 150 years, one can still see the impact of Henry Roberts’ exemplary design of the Model House for Four Families for the Great Exhibition in 1851 in London, built for the Society for Improving the Conditions of the Laboring Classes. As Robin Evans states, Robert’s scheme is an instrument of social and moral education by separating members by gender and age [27]. More importantly, the model dwelling spatially segregates the family and isolates the performing of domestic labor, establishing the dwelling as an autonomous and self-reliant social unit formed under the authority of parenthood.
While housing regulations have an intrinsic potential to shape social relationships and influence habits, they lack an understanding of social diversity. Symptomatically, housing in Barcelona is classified as: dwellings for the young, the married and the elderly as well as asylums and temporary lodgings, according to the General Metropolitan Masterplan Planning Regulations (Art. 277) [26]. Noteworthy is how marriage is presented as an essential stage of life. While public and private housing therefore does not commonly provide shared spaces, as it assumes the family as the center of social life, this is not the case for public housing for the young or the elderly, where dwellers are more likely to share a household, as many examples in Barcelona show.
These societal norms are questioned by housing cooperatives who rethink both what a household and the limits of a house are. In contrast to the compartmentalized understanding of housing and dwellers reinforced by the state and its housing regulations, cooperative housing strives for intergenerational living beyond the conventional limits of a dwelling by encouraging social interaction throughout all stages of life and resocializing domestic labor. Importantly, communal living is to offer personal security through social networks of support.
3.4. Challenging Spatial Definitions
Regulations set out the spaces that a dwelling must provide: a living-dining space, bathroom and kitchen. The Habitability Decree (Art. 3.1) [24] further stipulates that there must be at least one room of 8 m2 size or greater and a minimum total floor area of 36 m2, or 40 m2 according to the General Metropolitan Masterplan Planning Regulations (DOGC Núm. 4277 de 10/12/04) [26] in the metropolitan area. These mandatory requirements prevent in residential buildings the sharing of functions that are common to other forms of dwellings such as hotels, or more unusual housing with cluster plans (for example in the cooperative housing project Mehr als Wohnen in Zurich). The minimum dwelling is defined by the General Metropolitan Masterplan Planning Regulations (Art. 55) [26] in terms of minimum floor areas: 18 m2 per person up to 2 people, then an additional 10 m2 for each additional person, without regard for the quality of spaces or lifestyle expectations.
To overcome these legal restrictions and their functional implications, the ownership of spaces in La Borda was defined for planning purposes according to four strategic categories: common areas (circulation spaces), collective spaces (shared activity spaces), “common spaces for private use” (interchangeable rooms between dwellings) and the private dwelling unit. This legal categorization was crucial to enabling new spatial configurations and self-management.
Each La Borda dwelling is legally a complete house as defined by regulations. Despite different actual sizes, each dwelling unit is registered as 40 m2 but includes the possibility of adding or removing “common space for private uses” over time, to permit flexibility in unit size and sharing. The management of these spaces is not only determined by legal agreements and collective ownership, but also based on the dwellers’ commitment to supporting changing communal needs. This is underpinned by the understanding that everyone is only laying claim to the space needed, for example, large units must be occupied by more than one person. To share some of the functions needed in all houses, the dwellers agreed on a more efficient common laundry area, socializing domestic chores, with the mandatory preinstallation space for a washing machine mostly used for a dishwasher. The increase of shared spaces, however, reduced the subsidies claimable for the provision of affordable homes, as it lowered the private dwelling areas used to calculate them.
The dwelling defined as an autonomous, legal and spatial unit prevents having rooms outside this dwelling limit. La Borda’s shared guest rooms therefore had to be registered as “collective spaces”, with the plans submitted for approval not including the room partitions that were only later added. Similarly, in the case of Cirerers, these were classified as meeting rooms with WCs—because of this, the originally planned kitchenette was not approved by the planning department. As Cirerers found it impossible to fulfil both urban planning regulations and housing legislations found in the Habitability Decree [24] and Metropolitan Building Ordinances [26], the dwellings were presented to the planning department as “loft apartments” without walls and with some bedrooms indicated in the plans as studio flats to avoid having to increase occupation rates.
Remarkably, in both cases, the plans submitted for planning approval were not the same as the layout and forms of collective living agreed upon between the dwellers. Thus, two sets of plans were produced: one to communicate with the planning department and another for the dwellers. On the “official” completion of construction works, and once the final as-built approval is granted, dwellers will use the “unofficial” set of plans to finish the building works themselves, at times having to demolish and rebuild new walls at a greater economic cost.
While regulations create design limitations through prohibition or legal requirements, also regulatory omissions can be limiting. This is the case for the use of a “terrat”, a vernacular flat roof typology in Catalonia, as a communal programmatic space. The General Metropolitan Masterplan Planning Regulations (Art. 239) [26] prevents “any other use” than that for services and technical equipment on the roof, and makes greenhouses, collective kitchens or any other use illegal. This problem is overcome in Cirerers by building first a shell for “services”, as permitted by the regulation, that will be later fitted out by dwellers, for example, to be used as a shared kitchen.
The need for literal compliance with, and narrow interpretation of, current regulations lead to greater, and sometimes nonsensical, costs and efforts. It prevents opportunities for collective ownership and self-management to be fully developed. There is thus the need for an urgent discussion on how regulations define and limit what is considered a house and its use. More importantly, regulations currently predetermine the social structure of housing and preclude innovation and development, necessary in the response to demographic and socio-cultural change. As the architects involved in the projects during our interviews asked: “What if my family is 300 people?” (Arqbag) or “What if my home is the entire building?” (Celobert).
3.5. 2020: Sotrac, La Regadora, Quinta Força
In 2020, the municipality held a second competition for the development of three new sites for cooperative housing. Having learned from previous cooperative housing projects, the three winning proposals experimented further with environmental strategies, typological definitions and the user level of commitment to innovation.
The Sotrac building for the Sotrac cooperative, which was formed by those left on La Borda’s waiting list and was also designed by Lacol, questions the Technical Building Codes’ method of calculating energy demand based on standard assumptions on household energy consumption. In addition, the CLT construction requires a re-evaluation of sound insulation requirements, which are currently defined by the Technical Building Codes [23] based on solid brick and concrete construction methods, as flexibility to offset individual comfort levels or preferences against achieving greater overall sustainability and lowering construction cost is needed. Once again, the proposed “greenhouse” roof creates a centrally enclosed courtyard important for community and environmental functions but, as discussed, contravenes existing use restrictions at roof level (Figure 8). The proposed unconventional cluster living units in Sotrac, which do not meet current regulations, will require a reassessment of the intention and spirit of housing regulations if approval is to be granted.
Figure 8.
Sotrac housing cooperative by Lacol. Typical plan of the competition proposal and rendered view of the courtyard. The circulation is arranged around a courtyard covered by a “greenhouse” roof. The dwellings are oriented towards the sun and Can Batlló. Two additional rooms for sharing are located to the north, next to the circulation core. Source: Courtesy of Lacol.
However, cooperative housing has already led to regulatory change, having learned from issues raised by La Borda, La Balma and Cirerers. The Decree Law 50/2020 in December 2020 extended its definition of a dwelling by giving the option of including complementary common areas.
La Regadora, designed by Arqbag and Poma Arquitectura, rejects the conventional definition of interior-exterior spaces by introducing a new notion of “hygrothermal comfort”. In contrast to common notions of environmental comfort, often measured in terms of temperature, hygrothermal comfort understands “spaces that serve bodily needs”—in particular, kitchens and dining areas—as part of a collective domestic experience that should not be a residual and hidden but shared and open space. Thus, a large collective kitchen and living room is placed on each floor. The project also develops an innovative compressed earth block (CEB) construction system, whose use is unprecedented in seven-story tall buildings (Figure 9).
Figure 9.
La Regadora by Arqbag and Poma Arquitectura. Top: typical plan showing dwellings to the left of the circulation core and common areas to the right. Below left: View from the entrance corridor. Below right: Structural diagram, an alignment of structural and spatial organization allows maximum flexibility in use and adaptation. Source: courtesy of Arqbag and Poma Arquitectura.
Finally, La Quinta Força by Llindarquitectura and Avilla-Royo propose the building as an infrastructural space that allows a further shift of dwelling definition from a regular unit or nuclear household flats to cluster living or extended family units. This redefines the “house” as an elastic space in which house size and limits between private and shared spaces can be redefined over time. A large green facade permits the cooperative to change the image of the building and incorporates a phytodepuration system for greywater reuse. The project also challenges the current regulations of the Technical Building Code (DB-HR, modification 732/2019) [23] that determine acoustic requirements according to the boundaries of dwellings—with different requirements between rooms depending on whether they belong to the same dwelling or not—by locating all bedrooms in the building’s “silent” zone (Figure 10).
Figure 10.
La Quinta Força by Llindarquitectura and Avilla-Royo. Top: plan. Below left: the building is presented without boundaries between dwellings as an open plan to be defined by the cooperative. Below right: the dwelling’s boundaries can be redefined over time and respond to different household structures such as nuclear family, extended family or cluster living. Source: Courtesy of Llindarquitectura and Avilla-Royo.
Still in the early design phase, these three projects will be essential to testing the wider feasibility of cooperative housing. It will clarify the opportunities arising from dweller participation in a communitarian project, if the initial collective engagement can be sustained long-term and if the administration will support necessary regulatory changes to make cooperative housing viable at a larger scale. It will further be a test of how to improve the collaboration and negotiation between the administration and housing cooperatives.
3.6. A Regulatory Understanding of the Role of Dwellers
Greater involvement and agency of dwellers throughout the lifetime of a project is a key feature of new housing cooperatives in Barcelona. This is also an important driver in the ongoing transformation of the model. A self-managed procurement requires direct and collective processes of civic engagement, which can open up new, unexpected opportunities and solutions during the design phases. Thus, dwellers as a collective, determine the level of engagement and innovation they want to commit to, whether in typological, material, social, economic or managerial terms. They do so at their own risk without the restrictions set by conservative risk assessments common to other forms of housing procurement.
The occupant is commonly assumed by building regulations as passive. This is particularly evident in environmental strategies: while light-weight structures that can improve energy performance are discouraged in public housing, La Borda’s data on their greenhouse performance demonstrates that their building’s energy use is almost 70% less than traditional courtyard housing blocks without a roof [28]. Rather than assuming that users understand the basic functions of a building and can ventilate when needed, the Technical Building Codes (DBHS3) [18] compels the use of sealed, high-performance windows with double glazing and integrated vents to force passive ventilation.
To give another example of how regulations patronize users is the prohibition (by omission) of self-building in parallel to building work by contractors due to health and safety regulations set out in the national Building Development Act (Ley de Ordenación de la Edificación 38/1999) [29]. This prevents housing cooperatives from gaining valuable construction skills—as long as works are appropriately supervised—which saves money and is useful for later building maintenance. The list of examples of how regulations stifle the dweller’s active participation in the construction and life of the building goes on.
Rather than providing information and training, technical regulations are used to achieve minimum requirements. This can discourage users from taking responsibility and gaining awareness of and greater control over the way they live. The question is whether users are seen as passive and ignorant or interested in and capable of controlling their environment. If users are willing to take collective and individual responsibility, new ways of optimizing the design and building performance become possible.
Joining at the beginning and not at the end of the building procurement process gives dwellers valuable insights into how a building functions and is designed but, importantly, also gives them a meaningful say and agency in this process. They further get to understand the building as an outcome of a process and not just as a final product. Through this, members of the housing cooperative gain direct knowledge of governance and institutional problems and processes that affect their rights as citizens. This raises the question of how do we, as citizens, want to relate to and engage with the state. It also defines housing as a larger and ongoing political project.
The case of La Borda, completed in 2019, is exemplary for how the commitment of dwellers can be sustained, since conversations starting in 2012 continued beyond occupation. For example, the “architecture” committee created for the building development was converted into a “maintenance and self-building” committee once the building was inhabited. As explained by Aguiló, all adults of La Borda belong to one of the committees and meet every fortnight, with elected representatives forming a governing council. There are also several working groups, for example, for organizing collective dinners in the common kitchen and, at least once a month, a general assembly takes place.
Cooperative housing offers great opportunities for collective and pedagogical impact. For this purpose, La Borda has a committee for public sharing that organizes open days and gives lectures. Likewise, other cooperatives promote and support the forming of new housing groups. By fostering understanding of building issues, participating in urban governance, increasing environmental awareness, seeking sustainable design solutions, learning to resolve conflicts and self-manage, negotiate with others, develop mutual support networks and peer learning, cooperative housing reveals itself not only as an outcome of social transformations but equally as one of its drivers.
4. Conclusions
The current development of cooperative housing in Barcelona and Spain will be formative for its long-term scalability and capacity to become more socially diverse. It also raises critical questions about housing affordability and autonomy from external factors such as market pressure or shifts in housing policies and aims. This relates both to the short- and long-term, for example, low monthly costs in contrast to high initial down-payment or the increase of property value in relation to social inclusion in housing cooperatives [11].
An important challenge at a city scale is how housing cooperatives can become a viable housing supply model that can grow and provide long-term affordable and decent homes, while maintaining a degree of political awareness in the social agendas of the cooperatives through direct engagement with and responsibility to others. In Barcelona, the support of smaller cooperative housing projects by larger umbrella cooperatives and territorial institutions like Sostre Civic or Fundació la Dinamo, offers a direct and practical support network and help in self-management. These umbrella cooperatives and the collective knowledge base they represent, are essential to evaluating and improving current housing models based on learning from past projects.
Whereas historical housing policy has followed a hierarchical implementation from the national to the municipal level, civil housing groups remain largely autonomous, however, form a voluntary network at regional or territorial scales through larger cooperative federations or the Housing Section of the Network for Social and Solidarity Economy (Sectorial Habitatge, Xarxa d’Economia Social i Solidària). Despite these networks forming strong enough institutions capable of consolidating and representing the social aims of housing cooperatives, Spain currently still lacks sufficient state support—in political, regulatory and financial terms—that the cooperative movement has received in countries like Uruguay, as well as technical support structures like the Institutes of Technical Assistance in Uruguay that is needed for the supply of cooperative housing at scale. However, how to maintain a balance between necessary institutionalization and state support and the desired autonomy of social movements while agreeing on scalable minimum standards and procurement methods remain fundamental questions in Barcelona’s ongoing cooperative housing debate.
Given the increase and impact of regulations, many celebrated housing projects from the past would be unrealizable today and new models are needed. At the same time, with housing expectations and aims quickly changing, and housing a highly beneficial collective right, what role and responsibility should the government have not just in safeguarding housing standards but also in driving housing innovation? Jordi Estivill and Marta Ibars from the Regional Housing Agency highlight the importance of collaboration, with cooperative housing already bringing about legislative change (as in the case of the recent Decree Law 50/2020 [25]) and a need for new means of evaluating housing, as current standardised assessment methods are no longer fit for purpose.
At the same time, with a refocus on housing users and their inclusion in design, the role of architects must be rethought. Several young architect collectives and cooperatives in Barcelona have thus begun to question traditional disciplinary roles by embracing social sciences and participatory design methods [30]. Architects have to find new ways in their design of bringing together traditional disciplinary knowledge and the knowledge of the city by users based on their everyday experience. From some of the related discussions on design processes in cooperative self-managed housing, two important issues come to the fore that can be considered key to establishing long-term housing change.
First, the simple but critical definition of what is considered a dwelling and by whom it is inhabited. It is important to offer regulatory flexibility to permit users to meet their needs in their homes. In a fast-evolving society, static household definitions and similarly static design regulations have to be questioned as new social structures emerge. This directly relates to how dwellings are considered “private”, precluding other forms of dwelling organization and use. Rather than assessing the quality of dwellings by their minimum floor area and mandatory functions and dimensions, they could be defined as the total provision of functions and spaces necessary for everyday living in the whole building, understood as one unit, permitting shared use, greater efficiencies and flexibility. Regulations should also take into account the inevitable transformation of needs and usage over time, planning for a future increase or decrease of dwellings.
This could be achieved through a different approach to modularity, one not only in terms of construction and spaces but also in regard to building elements. A simple design gesture of providing more access points to a space increases opportunities for use by giving options to segregate from or incorporate these spaces into different units. Short-term inefficiency can create long-term efficiency. The community as a self-managed collective should be able to decide which spaces and actions of socialization it wants and needs. To prevent market speculation from benefiting, these regulations should be conditional to cooperative ownership and self-management.
Second, the social life of a building and its community—including the active participation of dwellers in the design and running of a building, the larger social organization of a household, the constitution of the community and neighborhood networks—should be considered key throughout all stages of housing procurement. This means the inclusion of those who will inhabit and manage the housing, from an early needs definition to community-led design, self-building and post-occupancy. Acknowledging a dweller’s unique needs but also the community needs means abandoning the notion of a standard universal citizen.
During our interviews, Diego Carrillo from Celobert suggested that the current transformation of the housing sector offers opportunities for regulatory change and for rethinking the formal processes of negotiation with the administration, which requires the creation of a technical and coordination committee dedicated to cooperative housing. Jordi Mitjans from Arqbag further proposed a more flexible approach to regulation—or its interpretation—one not based on fixed assessments but more flexible performance requirements that can be adjusted according to the user’s specific needs and level of participation. These regulatory changes and the formation of a strong technical, practical knowledge base that can be shared among cooperative housing is a precondition for its ability to provide affordable housing at scale. At the same time, this requires greater state support to make development land and financing available to the not-for-profit housing sector.
In conclusion, the main limitation of the current regulatory frameworks for cooperative housing is that they assess the building as consisting of several autonomous units, each defined by a dwelling and its household. This does not permit the building to function as a totality made up of interrelated dwellings and households. New approaches to regulations are needed that enable a larger housing project to work as a whole in social, environmental, political and economic terms, and needs to be embedded in a wider urban and socio-economic context. This potential for greater social benefits and socio-spatial innovation is what gives cooperative housing the possibility to become transformative and key to a just city. As the paper discussed, cooperative housing is not a product but a negotiated process of decision making, with an impact before a building is built and beyond its inhabitation.
Author Contributions
Conceptualization, R.A.-R., S.J. and I.B.; methodology, R.A.-R., S.J. and I.B.; investigation, R.A.-R. and I.B.; writing—original draft preparation, R.A.-R.; writing—review and editing, S.J. and R.A.-R.; supervision, S.J. and I.B. All authors have read and agreed to the published version of the manuscript.
Funding
This research received no external funding.
Institutional Review Board Statement
The study was conducted according to the guidelines of the Declaration of Helsinki, and approved by the Ethics Committee of the Royal College of Art (11.10.2018).
Informed Consent Statement
Informed consent was obtained from all subjects involved in the study.
Acknowledgments
The authors would like to thank interviewees for their contribution: Diego Carrillo (Celobert); Cristina Gamboa, Ariadna Artigas Fernandez, Núria Vila Vilaregut & Mirko Gegundez Corazza (Lacol); Jordi Mitjans (Arqbag); Josep Maria Montaner (Councillor for Housing, Barcelona City Council, 2015–2019), Marta Ibars Mitjaneta & Jordi Estivill i Jover (Agència de l’Habitatge de Catalunya), and Ferran Aguiló (La Borda).
Conflicts of Interest
The authors declare no conflict of interest.
References
- Els Desnonaments del 2008–2017. Available online: observatoridesc.org/es/node/4320 (accessed on 1 February 2021).
- L’Habitatge de la Metròpoli de Barcelona. Available online: www.ohb.cat (accessed on 6 February 2021).
- Estructura i Concentració de la Propietat d’Habitatge a la Ciutat de Barcelona. Available online: www.ohb.cat (accessed on 6 February 2021).
- The Housing Problem in Barcelona. Available online: www.ohb.cat (accessed on 6 February 2021).
- Report of the Special Rapporteur on Adequate Housing as a Component of the Right to an Adequate Standard of Living. Available online: https://digitallibrary.un.org/record/601016?ln=es (accessed on 2 January 2021).
- Ajuntament de Barcelona and Patronat Municipal de l’Habitatge de Barcelona. Qüestions d’Habitatge nº19: Repensar el Patronat Municipal de l’Habitatge; Barcelona City Council: Barcelona, Spain, 2016. [Google Scholar]
- Belil, M.; Borja, J.; Corti, M. La Vivienda en España: Un Derecho por Conquistar. In Ciudades: Una Ecuación Imposible; Icaria Editorial: Barcelona, Spain, 2012; pp. 113–121. [Google Scholar]
- Colau, A.; Alemany, A. Vides Hipotecades: De la Bombolla Immobiliària al Dret a l’Habitatge; Angle Editorial: Barcelona, Spain, 2012. [Google Scholar]
- Guillermo, C. Spanish Dream (€spanish Dr€am); Centre de Cultura Contemporánea de Barcelona: Barcelona, Spain, 2009. [Google Scholar]
- Les Claus de l’Habitatge Cooperatiu en Cessió d’Ús. Available online: sostrecivic.coop/com-funciona-model-cessio-us/ (accessed on 18 March 2021).
- Lacol y La Ciutat, I. Habitar en Comunidad: La Vivienda Cooperativa en Cesión de Uso; Los Libros de la Catarata: Madrid, Spain, 2018. [Google Scholar]
- Mogollón García, I.; Fernández Cubero, A. Arquitecturas del Cuidado: Hacia un Envejecimiento Activista; Icaria: Barcelona, Spain, 2019. [Google Scholar]
- Global Study: Community-Led Housing in the COVID-19 Context. Available online: https://www.urbamonde.org/en/projects/community-led-housing-a-concrete-response-to-covid-19/HOUSING%20&%20COVID%20STUDY%20(EN).pdf (accessed on 17 March 2021).
- Ajuntament de Barcelona and Patronat Municipal de l’Habitatge de Barcelona. Qüestions d’Habitatge nº21: “Barcelona Right to Housing Plan 2016–2025; Barcelona City Council: Barcelona, Spain, 2018. [Google Scholar]
- Falagán, D.H. Innovación en Vivienda Asequible: Barcelona 2015-2018; Ajuntament de Barcelona: Barcelona, Spain, 2019. [Google Scholar]
- Llargavista Observatori de l’Habitatge Cooperatiu. Available online: https://llargavista.coop (accessed on 21 December 2020).
- Fernàndez, A.; Miró, I. L’Economia Social i Solidària a Barcelona; Ajuntament de Barcelona: Barcelona, Spain, 2016. [Google Scholar]
- The Role of Cooperatives in the Provision of Affordable Housing: An Introductory Overview. Available online: www.espazium.ch/de/node/9415. (accessed on 1 May 2020).
- Barenstein, J.D.; Pfister, M. The Professionalization of a Social Movement: Housing Cooperatives in Uruguay. Built Environ. 2019, 45, 382–397. [Google Scholar] [CrossRef]
- International Policies to Promote Cooperative Housing. Available online: ladinamofundacio.org/recursos (accessed on 1 January 2021).
- Impuls de les Cooperatives d’Usuàries d’Habitatge. Available online: http://ladinamofundacio.org/recursos (accessed on 3 January 2021).
- Jacoby, S. Typal and Typological Reasoning: A Diagrammatic Practice of Architecture. J. Archit. 2015, 20, 938–961. [Google Scholar] [CrossRef]
- Código Técnico Edificación (CTE). Available online: www.codigotecnico.org (accessed on 20 January 2021).
- Decret 141/2012, de 30 D’octubre. Available online: http://cido.diba.cat (accessed on 9 January 2021).
- Decret Llei 50/2020, de 9 de Desembre. Available online: portaljuridic.gencat.cat (accessed on 20 January 2021).
- Normativa Urbanística Metropolitana, Incl. Normatives Urbanístiques del Plà General Metropolità i Ordenances Metropolitanes de l’Edificació. Available online: www3.amb.cat/normaurb2004/Docs/edificacio.htm (accessed on 20 January 2021).
- Evans, R. Rookeries and Model Dwellings: English Housing Reform and the Moralities of Private Space, Evans, R. Translations from Drawing to Buildings and Other Essays; Architectural Association Publications: London, UK, 2011; pp. 93–117. [Google Scholar]
- Com de sostenible és realment la Borda? Available online: www.lacol.coop/actualitat/sostenible-realment-borda (accessed on 25 January 2020).
- Ley 38/1999, de 5 de noviembre, de Ordenación de la Edificación (LOE). Available online: https://www.boe.es/buscar/act.php?id=BOE-A-1999-21567 (accessed on 8 January 2021).
- Lacol. Building Collectively. Participation in Architecture and Urban Planning; Pol·len Edicions: Barcelona, Spain, 2018. [Google Scholar]
Publisher’s Note: MDPI stays neutral with regard to jurisdictional claims in published maps and institutional affiliations. |
© 2021 by the authors. Licensee MDPI, Basel, Switzerland. This article is an open access article distributed under the terms and conditions of the Creative Commons Attribution (CC BY) license (http://creativecommons.org/licenses/by/4.0/).









